|
№
елемента
|
Nмах кН
|
Ммах
кНм
|
Q кН
|
Nмах кН
|
Ммах
кНм
|
Q кН
|
|
1+2+3+4+5+6+7+9+14
|
1+2+3+4+5+8+11+13
|
|
1
|
-1812,2
|
-8,94
|
54,96
|
377,6
|
34,51
|
-72,65
|
|
2
|
355,98
|
-128,9
|
58,07
|
-1366,3
|
149,143
|
-78,32
|
Вибираємо зусилля по яких буде вестися подальший
розрахунок
Варіант 1:
мах=N1+N2=1812,8+355,98=2168,78
(кН)
Ммах=- N1z+М1+М2+
N2 z=-1812,2∙0,525
- 8,94 - 128,9+355,98∙0,525=1000,44кНм
Варіант 1:
мах=N1+N2=1366,3+377,6=1743,9
(кН)
Ммах=- N1z+М1+М2+
N2 z=-377,6∙0,525
+ 34,51 +149,143+1366,3∙0,525=702,7кНм
Приймаємо до розрахунку перший варіант , як
найбільш завантажений:
Nмах=2168,78 (кН)
Ммах=-1000,44кНм
Q=113,03кН
Визначаємо геометричні характеристики перерізу
над кранової частини колони:
Приведений радіус інерції
двухвіткової колони в площині згину::
(2.23)
=3
=0,08 м2
=0,28м2
Розрахункова довжина при
врахуванні кранового навантаження вираховується згідно з формулами :
0у = μН2(2.25)
10х = 1,5∙7,6=11,4 м.
0у =0,8∙3,95=6,08 м.
Визначаємо приведену гнучкість колони:
λ=10х/ іred (2.24)
λ=11,4/0.28=40,7>14
- необхідно врахувати вплив прогину на
його міцність.
Розраховуємо
ексцентриситет фактичний (2.8):
згідно з рівності (2.9) визначаємо
Визначаємо
за рівністю (2.8)
Приймаємо е0=46см
Мінімальне необхідне армування колони визначаємо за
формулою (2.10):
λу=54.7 → μs,min=0,2%
As,min= A/ s,min=0,002∙25∙50=2,5(см2)
Приймаємо 3ø12 As=3,39см2
За формулою (2.11)
знайдемо значення умовної критичної сили.
За формулою (2.13) визначимо:
Приймаємо
=0,92
Зідно з (2.14):
Звідки умовна критична сила згідно із формулою (2.11)
набуває значення:
Необхідно враховувати
гнучкість колони, тобто вплив прогину на величину ексцентриситету за допомогою
коефіцієнта η(2.17):
η = 1/(1- 2168,78/8772) = 1,26
Ексцентриситет зусилля
відносно менш стиснутої сторони згідно з (2.18)
е =0,46∙ 1,26 + 0,5 ∙0,25- 0,04 =0,66
(м).
Знаходять зусилля у вітках колони за формулою:
(2.26)
=2351,6кН
=-182,81кН
Вичисляємо моменти у вітках колони. Оскільки одна із віток
виявилася розтягнутою то згинаючі моменти від поперечної сили знаходять із
умови передачі всіє поперечної сили на стиснуту колону.
(2.27)
(2.28)
Підбір перерізу арматури:
(2.29)
Зідно з (2.19):

(2.30)
(2.31)
Звідки за (2.31):
Згідно з (2.30) визначимо висоту стисненої зони перерізу:
Оскільки
>
армування віток приймаємо симетричне.
Необхідна площа армування приймається за формулою:
(2.30)
Приймаємо 3ø32
=24,13см2
Оскільки розрахунок вівся для найбільш
завантаженої вітки армування для обох віток приймаємо однакове.
Рисунок 2.3 - Армування
підкранової частини.
.4 Перевірка міцності колони перпендикулярно до
площини згину
Згідно з формулою (2.22)
10у =0,8∙3,95=6,08 м.
іх=0,289hу=0,289*0,5=0,14м.
При розрахунку колону з площини
ширина перерізу дорівнює:
у=2h=2*0,25=0,5м;
hу=b=0,5м.
Приведена гнучкість згідно з (2.24):
λ=6,08/0,28=21,7>14 - необхідно
врахувати вплив прогину на його міцність
Розраховуємо
ексцентриситет фактичний (2.8):
згідно з рівності (2.9) визначаємо випадковий
Визначаємо
за рівністю (2.8)
Приймаємо е0=46см
Мінімальне необхідне армування колони визначаємо за
формулою (2.10):
λу=21,7→ μs,min=0,2%
As,min= A/ s,min=0,002∙50∙50=5(см2)
Приймаємо 2ø18 As=5,09см2
За формулою (2.11)
знайдемо значення умовної критичної сили.
За формулою (2.13) визначимо:
Приймаємо
=0,92
Зідно з (2.14):
Звідки умовна критична сила згідно із формулою (2.11)
набуває значення:
Необхідно враховувати
гнучкість колони, тобто вплив прогину на величину ексцентриситету за допомогою
коефіцієнта η(2.17):
η = 1/(1- 2168,78/4367) = 1,92
Ексцентриситет зусилля
відносно менш стиснутої сторони згідно з (2.18)
е =0,46∙ 1,92 + 0,5 ∙0,5- 0,04 =1,09
(м).
Підбір перерізу арматури:
(2.29)
Зідно з (2.19):

Звідки за (2.31):
Згідно з (2.30) визначимо висоту стисненої зони перерізу:
Оскільки
>
армування віток приймаємо симетричне.
Необхідна площа армування приймається за формулою:
(2.30)
<24,13см2
Отже прийнятої арматури досить.
2.5 Розрахунок армування середньої розпірки
елементів
N=7,06=0кН; Q=303,38кН; М=-161,98кН*м.
По розрахунку стиснутої арматури непотрібно.
Приймаємо: 3Ø25 А-500С2, Афs=Aф1s=114,73см2.
Перевіряємо умову необхідності прийняття за розрахунком за
похилими перерізами:
Отже, умова міцності не виконується, проводимо розрахунок
поперечної арматури:
Відповідно необхідно розрахувати поперечну арматуру.
Приймаємо, поперечну арматуру, так і для стійки.
Ø8мм А240с, Asw=503мм2, S=150мм.
Розрахунок проводимо в відповідності:
=400мм<450мм;
S=150мм<1/2h=200мм.
S=150мм<Sмах=292мм.
Qв,мін=104,9кН.
е=236мм<2h0=2*370=740мм;
е=236мм<h0=370мм.
Приймаємо: е0= h0=370мм.
Отже, міцність похилих перерізів для таких розмірів
достатня.
3.
Розрахунок балки покриття
3.1 Вихідні дані для проектування залізобетонної балки з
паралельними поясами
рама фундамент залізобетонний балка
Характеристики матеріалу для балки:
Бетон класу В 40;
Rb=22 МПа;
Rbt=1,4 МПа;
Rbt,ser=2,1 МПа;
Ев=36000МПа - (з врахування теплової обробки.)
Арматура класу А1000, Rs=815МПа,
Rsс=400МПа,
Rsn=980МПа,
Еs=1,9*105МПа
Розрахунковий проліт приймаємо рівним відстані між
анкерними болтами:
0=18,0-2∙0,15=17,7(м)
Маса балки: m=18,7т
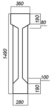
Геометричні розміри балки наведені на рисунку 3.1
Рисунок 3.1 - Геометричні параметри балки
Характеристичне навантаження на 1 м погонний від власної ваги
балки:
=10.21кН/м.п.
Розрахункове навантаження на 1 м погонний балки від власної
ваги з урахуванням коефіцієнта надійності за призначенням будівлі γn=1,1:
вв = 10,21·1,1 =
11,23кН/м.
постійне навантаження на 1 м погонний балки:
=37,92∙1,1=41,71
тимчасове:
ν=18,96∙1,1=21,96
Повне розрахункове навантаження на 1 м погонний
балки
gm= g+ ν+ gвв=41,71+21,96+11,23=74,9
Нормативне навантаження на 1 м погонний балки від власної
ваги з урахуванням коефіцієнта надійності за призначенням будівлі γn=0,975:
вв = 10,21·0,975=
9,95кН/м.
постійне навантаження на 1 м погонний балки:
=32,88∙0,975=32,06
тимчасове:
ν=8,88∙0,975=8,67
Повне розрахункове навантаження на 1 м погонний
балки
e= g+ ν+ gвв=32,06+8,67+9,93=50,68
Зусилля від розрахункових і нормативних
навантажень:
Від розрахункового навантаження:
М = gm ·l02 /8 = 74,9·17,3
2/8 = 2933,2 кН·м;
Q = gm ·l0 /2 =74,9·17,7 / 2
= 662,67кН.
Від нормативного повного навантаження:
Мn = ge ·l02 /8 = 50,68·17,72/8
= 1984,6 кН·м;
Qn = ge ·l0 /2 = 50,68·17.7 /
2 = 448,52 кН.
3.2 Розрахунок балки за 1-шою групою граничних
станів
Розрахунок міцності по перерізу нормальному до
повздовжньої осі
Оскільки для балки з паралельниим поясами
найбільш небезпечний переріз з максимальним моментом знаходиться по середині
прольоту, тому його приймаємо за розрахунковий, М=2933,2 кН∙м
Розрахункова схема балки:
Робоча висота перерізу:
0 = hпл - а = 1490-30=1460 мм.
Висота верхньої та нижньої полиць двотаврового перерізу
hf’ = 230мм - нижня поличка
hf’ = 240мм - верхня поличка
Ширина верхньої полиці плити bf’ = 360 мм,
нижньої - bf = 280 мм.
Ширина ребра таврового (двотаврового) перерізу b = 80мм.
Гранична відносна висота стиснутої зони за
формулою (2.19):
(згідно з (2.20))
=Rs=815 МПа
=500 МПа → γb2=0,9
Зідно з (2.19):
Розміри полички, що враховуються при розрахунку балки:
→
Приймаємо bf = 280 мм.
Знайдемо положення стиснутої зони:
(3.1)
Верхню стиснуту арматуру приймаємо конструктивно: 3Ø14 Аs=4,62см.
Згідно з (3.1):

<М=2933,2кНм
Стиснута зона знаходиться в ребрі
Визначаємо площу робочої арматури:
=0,28→ξ=0,334
ξ=0,334 <
- руйнування відбуваються по розтягнутій
арматурі.
x= x× h0=0,334×
1,46=0,488 см
Коефіцієнт умови роботи напружуваної арматури А1000 (27
[1]),
Потрібна площа перерізу поздовжньої напружуваної арматури:
(3.2)
Приймаємо для армування 4Æ28 А1000, АS= 24,63 см2.
Розрахунок вузла опирання Q=662,67кН
Розрахунок поперечної арматури ведемо виходячи з
умови міцності по похилому перерізі на дію поперечної сили:=-
<Qb +Qsw(3.3)
(3.3)
£jb3×(1+jf+jn)×Rbt×gb2×b×
(3.4)
Вплив звісів стиснутих поличок:
(3.5)
Вплив зусилля обтискування
Попереднє напруження арматури приймаємо
σsp = 0,75 Rs,ser=980∙0,75=735 МПа.
=0,03
=22,05
Р= 24,63∙10-4 ∙103(735-
22,05)=1756 кН
Вичислюємо
1+
+
1+0,41+0,08=1,49
<1,5
Приймаємо 1,49
=2∙1,49∙0,9∙22∙103∙0,08∙1,462=10062(кНм)
В розрахунковому похилому перерізі
Звідси:
с=В/0,5 Q=10062/0,5∙662,67=30,4м>2h0=2∙1,46=
2,76см; приймаємо с=30.4см.
Qsw=Q-
Qb
Qsw=662,67- 331=331,7 кН;
qsw= Qsw/с=331,7/30,4=10,9 кН/м
Діаметр поперечних стержнів приймають dsw=8 мм класа
Вр-ІІ, Rsw =670 МПа, число каркасів-два, А sw=2·0,503=1,06см2.
Крок поперечних стержнів
(3.7)
по конструктивним вимогам S = h/2 =1,46/2 = 0,73 м, але не більше 0,15 см.
Прийнятий крок S = 15 см.
Перевірка по стиснутій зоні між похилими тріщинами:
μ = Asw / bs=1,06/8∙15=0,009;
α= Es / Eb = 200000 /36000 = 5,6;
φ w1= 1+5 α μ = 1+5·5,6·0,009 =1,25 ;
φ b1 = 1 -0,01Rb = 1 -0,01·0,9·22 =0,8;
Перевіримо умову достатності перерізу:
Q = Н < 0,3 φ w1 φ b1 Rb b h (3.8)
Q = 662,7 Н < 0,3 φ w1 φ b1 Rb b h = 0,3·1,25·0,8·0,9·8·22·10 3 ∙0,08·1,46 = 693,8 кH
Умова задовольняється, преріз має достатні розміри
Отже приймаємо dsw=8 мм класа Вр-ІІ з
кроком 15см.
3.3 Розрахунок балки на утворення, розкриття
тріщин і на прогин (II-га група граничних станів)
Геометричні характеристики зведеного перерізу
Площа зведеного перерізу:
Аred=A+a×As(3.9)
α= Es / Eb=190000/36000=5,28
Аred=(36∙23+8∙102+28∙24)+5,28∙24,63=2446см2
Статичний момент пощі приведеного перерізу:
(3.10)
=36×23×137,5+8×102×75+28×24×12=183114см3
Відстань від нижньої грані до центра ваги
зведеного перерізу
(3.11)
Відстань від точки прикладання зусилля в
напружуваній арматурі до центра тяжіння приведеного перерізу:
еор= уred - а=74,86-3=71,86 см.
Момент інерції зведеного перерізу відносно ЦВЗП:
(3.12)
Ired=6690770,55 см4.
Момент опору для розтягнутої грані перерізу
red=Ired/ у0(3.13)
Wred=6690770,55/74,36=86448,8
см3;
е ж для стиснутої грані перерізу
W¢red=Ired/(h-у0)=
6690770,77/(149-74,36)=89640,54 см3.
Відстань від ядрової точки найбільш віддаленої
від розтягнутої зони
(3.15)
см
Відстань від ядрової точки найменш віддаленої від
розтягнутої зони
см
Пружньопластичний момент опору відносно:
нижньої грані Wpl = γ Wred = 1,5 · 86488,6 = 129733 см³.
верхньої грані W′pl = γ W′red
= 1,5 · 89640,54 = 134461 см³.
Тут γ = 1,5 - для двутаврового перерізу при 2
< bf/b =
36 /8 = 4,5 ≤ 6.
Визначення втрат попереднього напруження поздовжньої арматури
Попереднє напруження арматури приймаємо
σsp = 0,75 Rs,ser=0,75∙980=0,735 МПа.
Перевіримо виконання умов:
(3.16)
При електротермічному способі натягу:
р = 30+360/l =
30+360/18 = 50 МПа,
перевіримо умови (3.16)
З цих умов попередньо приймаємо величину попереднього напруження σsp =735 МПа.
Значення попереднього напруження σsp у розрахунках вводять з коефіцієнтом точності
напруження арматури:
,(3.17)
який враховує можливі відхилення попереднього напруження від
призначеного в проекті.
Значення
при електротермічному способі напруження визначають
за формулою (2.3) [1]:
≥0,1(3.18)
де np = 4 − кількість попередньо
напружуваних стержнів арматури.
Коефіцієнт точності натягування арматури за умовою (2.2)
дорівнює
(3.19)
При розрахунку на утворення та розкриття тріщин у верхній (стиснутій
від навантаження) зоні балки від дії зусилля обтискування напруження σsp вводиться в розрахунок з коефіцієнтом
(несприятливий вплив попереднього напруження).
При сприятловому впливі попереднього напружування арматури на роботу
плити σsp вводиться в розрахунок з коефіцієнтом
.
Попереднє напруження з урахуванням точності
натягування:
σsp=735∙0,95=698,25МПа
Перші втрати.
Від релаксації напружень в арматурі s1=0,03ssp=0,03×735=22,05МПа. Втрати від температурного перепаду s2, деформацій
анкерних пристроїв для натягування s3, тертя арматури
об огинаючі пристрої s4, від деформацій
металевої форми s5 - всі ці втрати
дорівнюють нулю, оскільки вони враховані в технологічному процесі виготовлення
плити.
Зусилля попереднього обтискування бетону при
знятті напружуваної арматури з упорів форми
0=(ssp-s1)×Аs(3.20)
P0= (735-22,05)×24,63∙100=
1756 кН.
Ексцентриситет цього зусилля відносно центра ваги перерізу
= 71,86см
Для визначення витрат від швидконабігаючої
повзучості визначаємо напруження обтиску:
(3.21)
/Rb<0,75 Rb=23,5/0,75=28,4<0,5В25.
Приймаємо Rb=28,4МПа
М=578,9МПа
(3.22)
Втрати від швидконабігачої повзучості s6=0,85×40∙sbp/Rbp=0,85×40×0,72=24,48 МПа, тут 0,85 -
коефіцієнт, що враховує теплову обробку балки.
Перші втрати до закінчення обтиску бетону
slos1= 22,05+24,48=46,53 МПа.
Напруження в напружуваній арматурі з врахуванням перших
втрат
ssр1=ssp-slos1=735-46,53=688,47МПа.
Зусилля обтискування перерізу плити після перших втрат
Р1=(ssp-sl1)×Аs=(735-46,53)×24,63=1695,7 кН.
Напруження в бетоні після обтиску за (3.22):
Другі втрати.
Від усадки бетону s8=35 МПа (табл. 5, п. 8а [1]).
Від повзучості бетону при
sbp/Rbp=19,9/28,4=0,7<0,75; s9=0,85∙150×sbp/Rbp=0,85×150×0,7=89,25МПа.
Другі втрати попереднього напружування арматури
slos2=s8+s9=35+89,25=124,25 МПа.
Втрати s7, s10, s11 при електротермічному натягуванні
арматури на упори опалубки відсутні.
Повні втрати попереднього напружування арматури
slos=slos1+slos2= =46,53+124,25=170,8 МПа > slos,min=100 МПа.
Зусилля обтискування перерізу бетону з урахуанням всіх
втрат напружування арматури Р2=(ssp-slos)∙As=(735-170,8)×24,63=1386,9 кH.
Розрахунок на утворення тріщин М=1984,6кНм
Перевіримо виконання умови:
(3.23)
(3.24)
(3.25)
=0,84∙1386,9(71,36+30,05)=118142,2(кНсм)
Wpl = 129733 см³
За формулою (3.24):
Так як умова (3.24)
то потрібно перевірити ширину розкриття тріщин.\
Розрахунок га розкриття тріщин М=1984,6кНм
Від постійних і короткочасних навантажень: М=1595,04кНм
Приріст напружень в арматурі від дії навантажень:
(3.26)
Згідно з [2]
розрахуємо
, що набуває значення:
=134,4см
= Аs∙z1=24,63∙134,4=3310,3см3=0,00331м3
Приріст напружень в арматурі від дії постійних і тимчасових
навантажень за (3.26)
Те ж від повних навантажень:
Ширина розкриття тріщин:
(3.27)
δ=1
η=1
=1
d=28мм
Ширина розкриття тріщин від короткочасної дії повного
навантаження:
Ширина розкриття тріщин від короткочасної дії постійного і
тимчасового навантаження:
Ширина розкриття тріщин від дії постійного і короткочасного
навантаження:
Короткочасна ширина розкриття тріщин:
Довготривала ширина розкриття тріщин:
Отже ширина розкриття тріщин не перевищує нормативних
значень.
Розрахунок плити за деформаціями
Гранично допустимий прогин для розглядуваної
панелі [4]
доп=l/233=1800/233=7,72 см.
Момент від постійного і тривалого навантаження: М=1595,04кНм
Сумарна повздовжня сила:
Ексцентриситет
(3.28)
(3.29)
Кривизна осі при згині:
=
- 
(3.31)
Прогини від відповідних силових дій будуть:
від постійного і довготривалого навантажень по формулі:
(3.32)
Прогин при довготривалому навантаженні
тобто не перевищує допустиму величину.
4. Розрахунок фундаменту
4.1 Підбір розмірів фундаменту
Вихідні дані: пісок мілкий
Розрахунковий опір грунта R0=0.20 МПа.
Арматура класу А500С2 ,Rsc=Rs=365
МПа, Es=200000 МПа.
Бетон використовується важкий класу В-25,Rb=14,5 МПа, Rbt=1,05 МПа, Rbtn=1,6 МПа, Eb=27000 МПа.
висота уступів плитної частини h1 = h2 = 300 мм;
товщина захисного шару 50 мм.
Розрахунок виконують на найбільш небезпечну
комбінацію зусиль
=1221 кН
Глибину закладання підошви фундаменту приймаємо рівною 1,8м
виходячи з конструктивних міркувань та грунтових умов наведених у додатку
Визначаємо розмір підошви фундаменту у першому наближені:
Оскільки фундамент знаходиться під впливом і вертикальної
сили і згинального моменту приймаємо співвідношення сторін b/l=2/3, l/ =
3,3
Приймаємо: l=3,3м
b=2,4м
Перевіряємо умови:
p ≤ R
P
< 1.2R
> 0.
р/
=
р/
=
Визначаємо розрахунковий опір грутну основи у першому
наближені:
Перевіряємо виконання умов:
р/
= 190,2кПа < R = 347,2 кПа;
р/
= 246,4кПа < 1.2R = 468 кПа;
р/
=120,1 кПа > 0.
Так як опір під підошвою значно перевищує тиск під підошвою
робимо наступне уточнення розмірів:
Мінімальний довжина плити
фундаменту для колони розмірами 1,3х0,5м (згідно з[5]):
3,0м
2,1м
Визначаємо розрахунковий опір грутну:
Крайові тиски:
р/
=
р/
=
Перевіряємо виконання умов:
P
= 268,1 кПа < R = 329,7 кПа;
= 389.2 кПа < 1.2R = 395 кПа;
=147 кПа > 0.
Умови виконуються, отже приймаємо до розрахунку
розміри підошви bxL=3,0х1,8м
.2 Розрахунок на продавлювання колоною
В якості матеріалу фундаменту використовуємо
бетон класу В25. Висоту захисного шару бетону можна прийняти рівною a=5 см, тоді робоча висота
перерізу h0=700- 50=6500 (мм). Конструктивне рішення
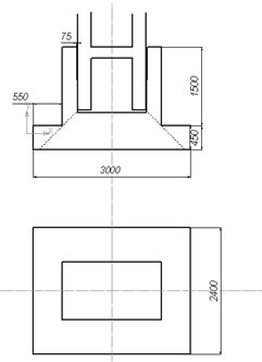
фундаменту показане на рисунку 2.2.
Рисунок 4.1 - Конструктивне рішення фундаменту в
варіанті мілкого закладання
Для забезпечення міцності фундаменту на продавлювання
необхідне виконання умови:
(6.1)
Схема утворення піраміди продавлювання приведена на рисунку
6.1.
Для центрально навантажених квадратних
фундаментів:
(6.2)
(6.3)
=(1,9+2∙0,65)( 0,8+2∙0,65)=6,72 (м2)
Найбільше значення тиску на ґрунт при розрахунках на
міцність визначається за формулою:
(6.4)
Продавлююча сила згідно з формулою (6.1):
=2(bc+hc+2h0)=2(0,8+1,9+2∙0.65)=8 (м)
Згідно з умовою (6.1)
Умова виконується. Міцність фундаменту на продавлювання забезпечена. Отже продавлюючи сила при заданих
парамера фундамента
Тиск під підошвою фундаменту від дії розрахункових граничних
навантажень
F<bmH0Rbt
F=pA=129,7*(0.32*(3+2,36)/2+3*0,4)=266,87(кН)
267(кН)<(0.5+0,93)
*0.93*0.9*1000=1196(кН)
Умова міцності
виконується.
4.3 Розрахунок на згин консольного виступу
фундаменту
Розраховуємо фундамент на згин 2-го консольного виступу фундаменту з метою визначення потрібної
кількості поперечної
арматури підошви. Згинальний момент у перерізі по грані стіни для консольного виступу довжиною
(b-bі)/2
Значення розрахункових згинаючих моментів у перерізах:
(6.6)
У якості робочих стержнів приймаємо арматуру класу А500С з розрахунковим
опором Rs =365 МПа [7].
Визначимо потрібну площу перерізу арматури на 1 м довжини фундаменту як
для елементу, що згинається, з поодинокою арматурою
Аs1
= M/0,9h0Rs =448,25
/(0,9х0,65х365∙103)=2,09х10-43(м2)= 20,9 (см2).
Приймаємо у якості поздовжньої робочої арматури 5Ø25 А500С (Аs= 24.54 см2) з кроком 200 мм (див. рис. 2.3).
Площа поздовжньої арматури у іншому напрямі аналогічна. Крок
стержнів також
100 мм (див. рис. 2.4).
Для розрахунку фундаменту на тріщиностійкість (за другою групою граничних
станів) необхідно визначити можливість виникнення тріщин. Тріщини можуть
виникати, якщо не виконується умова [7, 8]
М ≤ Мcrc,
де М - момент у поперечному перерізі фундаменту від експлуатаційних навантажень (для розглянутого
фундаменту момент у перерізі біля грані стіни); Мcrc - момент
тріщиноутворення, що визначається за формулою [7, 8]
Мcrc = RbtserWpl,
де Rbtser -розрахунковий опір бетону розтягу для розрахунків
за другою групою граничних станів; Wpl
- пружньопластичний момент опору перерізу фундаменту по розтягнутій зоні (при
відсутності стисненої арматури).
Пружньопластичний момент опору знаходять за формулою
Wpl = [0,292+0,75(γ1+2μ1n)]bh2, (2.9)
де γ1=0
для перерізу прямокутного перерізу,
μ1=Аs/bh - коефіцієнт армування,=Es/Eb
- співвідношення між модулями пружності арматури і бетону.
Визначимо згинальний момент у
грані стіни від експлуатаційних навантажень. Тиск під підошвою фундаменту
рg = pceр+Мn/W =389,2 (кПа).
М1 = 448,25 (кНм/м).
За [7] модулі пружності арматури і бетону відповідних класів Es=200000 МПа; Eb= 30000 МПа. Їх співвідношення n=Es/Eb = 200000/27000 = 6,77. Коефіцієнт армування перерізу
μ1=Аs/bh = 24,54/(100х65)=
0,004=0,4%>0,05%.
Пружньопластичний момент опору за формулою (2.9)
Wpl = [0,292+0,75(γ1+2μ1n)]bh2= [0,292+0,75х2х0,004х6,77]х1,0х0,652 = 0,6 (м3).
Момент тріщиноутворення за формулою (2.8)
Мcrc =RbtserWpl=1,6х0,13=0,96 (МНм)= 960 (кНм).
Перевіряємо виконання умови (2.7)
М = 448,25 кНм < Мcrc= 960 кНм.
Умова виконується, отже тріщини у тілі фундаменту не виникають.
Висновок
В даному курсовому проекті створено поперечну
раму промислової будівлі, та проведено до неї всі основні розрахунки, які
включають розрахунок балки покриття, колони та фундаментів стаканного типу.
Було представлено проектування указаних
конструкцій комплексом розрахунків і графічних робіт, що включають себе їх
основні креслення.
Для кожного елемента прийнятий клас бетону і
відповідно до розрахунків прийнята арматура для забезпечення міцності і
стійкості данних конструкцій.
Проектування виконане на основі завдання на проектування з
врахуванням діючих ДБН, БНІП, ТУ та інших нормативних документів, що
забезпечують технічне та економічне обгрунтування прийнятих рішень.
В результаті розрахунку запроектовано раціональні варіанти
армування конструкцій та підібрано оптимальні їх прерізи з забезпеченням
міцності, надійності довговічності та економічності.
Література
1. ДБН В.1.2-2:2006 "Навантаження
і впливи".
2. СНиП 2.03.01-84 "Бетонные и
ж/б конструкций".
. Байков В.Н., Сигалов Э. Е. Ж/б
конструкции - общий курс: Учебник - М., 1991. - 712 с.
4. Голышев А.Б. Проектирование
железобетонных конструкций.: Справочное пособие. - К.: Будівельник, 1985. - 496
с.
5. Мандриков А.П. Примеры расчета ж/б конструкций. - М., 1989. -423с