Расчет железобетонных конструкций жилого дома
ВВЕДЕНИЕ
Железобетон состоит из бетона и стальной арматуры, работающих совместно,
благодаря сцеплению, возникающему между ними. Бетон - искусственный каменный
материал, хорошо сопротивляется сжатию, а на растяжение работает в 15…20 раз
слабее. Для повышения прочности бетона применяют арматуру, которая обладает
значительно более высокой прочностью на растяжение и позволяет существенно
повысить несущую способность строительных конструкций.
Основные достоинства бетона - высокая прочность, долговечность, огнестойкость,
стойкость против атмосферных воздействий, возможность использования местных
строительных материалов, простота формообразования, небольшие эксплуатационные
расходы.
К недостаткам железобетона следует отнести большую плотность, высокую
тепло- и звукопроводность, появление трещин вследствие усадки и силовых
воздействий. Для снижения плотности и теплопроводности железобетона следует
использовать легкие пористые заполнители, при этом массу конструкции можно
уменьшить, применяя тонкостенные и пустотелые конструкции. Специальная
технологическая обработка с помощью пропаривания, вакуумирования повышает
трещиностойкость железобетона.
Бетон должен обладать необходимой прочностью, хорошим сцеплением с
арматурой, достаточной плотностью для защиты арматуры от коррозии. Сцепление
арматуры с бетоном - наиболее важное свойство железобетона, так как оно служит
основой работы материалов, входящих в состав железобетона, прочностные и
деформативные свойства конструктивных элементов.
Надежное сцепление арматуры с бетоном обеспечивается склеиванием геля с
арматурой, трением, вызванным давлением от усадки бетона, зацеплением за бетон
выступов и неровностей на поверхности арматуры.
Главенствующую роль для надежного сцепления арматуры с бетоном играют
выступы и неровности на поверхности арматуры. При создании периодического
профиля арматуры возрастает примерно в два раза.
1. Архитектурно - конструктивное решение
здания
В соответствии с заданием и паспортом запроектирован 2-ух этажный жилой
дом в г.п. Ветка Гомельской области. Высота этажа 2.8 м. Размер здания в осях
38.400×14.400м. В здании предусмотрен
подвал. Климатический район строительстваII-В.
Здание запроектировано с поперечными несущими стенами. Пространственная
жесткость и устойчивость здания обеспечивается перевязкой вертикальных швов
между кирпичами, армированием углов и мест примыкания внутренних стен к
наружным и анкеровкой плит перекрытия со стеной ( Г-образный анкер) и между
собой (линейный анкер).
В проекте применены ленточные фундаменты. Глубина заложения фундамента
3м. По долговечности здание относится к II степени, т. к. его конструктивные
элементы рассчитаны на срок службы не менее 50 лет.
По огнестойкости в соответствии с СНБ 2.02.01-98 здание относится к III
степени.
Класс ответственности здания- II степени по СНиП 2.01.07-85.
Здание размещается на участке со спокойным рельефом, характеризующийся
горизонталями 108.5-110,0.
В основании залегает грунт - песок мелкий=0,5; гII'=
гII=19,8кН/м3; цII=29°.
Уровень грунтовых вод находится на отметке -3,5 м от дневной поверхности.
фундамент
здание этаж кровля
2. Сбор нагрузок
.1 Сбор нагрузки на 1 м2 чердачного
перекрытия
Таблица 1
|
№ п/п
|
Нагрузка
|
Подсчет
|
Нормативная нагрузка gn кН/м2
|
гYf
|
Расчетная нагрузка q, кН/ м2
|
|
1 1.1 1.2 1.3 1.4 1.5
|
Постоянная нагрузка Доски ходовые t=50мм, с=500кг/м3 Шлакоизвестковая
коркаt=30мм, с=1800кг/м3 Плиты минераловатныеt=125мм, с=350кг/м3
Слой бикроста на битумной мастике t=3мм, с=400кг/м3 Плита
перекрытия t=140мм, с=2500кг/м3
|
t×с×10/103= =0.05×500×10/103 t×с×10/103= =0.03×1800×10/103 t×с×10/103= =0.125×350×10/103 t×с×10/103= =0.003×400×10/103 t×с×10/103= =0.14×2500×10/103
|
0.25 0.54 0.44 0.012 3.5
|
1,35
|
0.34 0.73 0.59 0.016 4.73
|
|
|
всего:
|
gn = 4.742
|
|
g = 6.406
|
|
2 2.1
|
Временная Полезная
|
по табл.3 СНиП 2.01.07-85
|
pn = 0.7
|
1,6
|
p = 1.12
|
|
|
итого:
|
gn=5.442
|
|
g = 7.526
|
2.2 Сбор нагрузки на 1м2
междуэтажного перекрытия
Таблица 2
|
№ п/п
|
Нагрузка
|
Подсчёт
|
Нормативная нагрузка gⁿ кН/м²
|
гf
|
Расчётная нагрузка q, кН/м²
|
|
1 1.1 1.2 1.3 1.4
|
Постоянная Линолиумt=5мм, с=1800кг/м3 Мастика
клеющаяt=5мм. с=1400кг/м3 Стяжка из цементно-песчаного раствора
t=25мм, с=2000кг/м3 Плита перекрытия t=140мм, с=2500кг/м3
|
t×с×10/103=0.005×1800×10/103 t×с×10/103= 0.005×1400×10/103 t×с×10/103= 0.025×2000×10/103 t×с×10/103= 0.14×2500×10/103
|
0.09 0.07 0.5 3.5
|
1.35
|
0.12 0.095 0.675 4.73
|
|
|
Итого:
|
gn=4.16
|
|
g=5.62
|
|
2 2.1
|
Временная Снеговая
|
Р-н llБ=0,8;µ=1
|
1.5
|
1.5
|
2.25
|
|
|
Итого:
|
gn=5.66
|
|
g=7.87
|
2.3 Сбор нагрузки на 1 м2перектытия
первого этажа
|
№ п/п
|
Нагрузка
|
Подсчёт
|
Нормативная нагрузка gⁿ кН/м²
|
гf
|
Расчётная нагрузка q, кН/м²
|
|
1 1.1 1.2 1.3 1.4 1.5 1.6 1.7
|
Постоянная Доска t=28мм, с=500кг/м3 Пароизоляция
«кровляэласт» t=98мм. с=2000кг/м3 Лаги 80×52мм. S=400мм, с=500кг/м3
Прокладка из бруса 100×80мм, с=500кг/м3, S= 400мм.
Звукоизоляционная прокладка t=20мм, с=200кг/м3 Улеплитель-минераловатные
плиты t=70мм, с=350кг/м3 Плита перекрытия t=140мм, с=2500кг/м3
|
t×с×10/103=0.028×500×10/103 t×с×10/103= 0.098×2000×10/103 b×h×с×10/S×103= =0.08×0.052×500× ×10/0.4×103 b×h×с×10/S×103= =0.1×0.08×500× ×10/0.4×103 t×с×10/103= =0.02×200×10/103 t×с×10/103= =0.07×350×10/103 t×с×10/103= =0.14×2500×10/103
|
0.14 1.96 0.052 0.1 0.04 0.245 3.5
|
1.35
|
0.19 2.65 0.07 0.135 0.054 0.331 4.73
|
|
|
Итого:
|
gn=6.037
|
|
g=8.16
|
|
2 2.1
|
Временная Снеговая
|
Р-н llБ=0,8;µ=1
|
1.5
|
1.5
|
2.25
|
|
|
Итого:
|
gn=7.537
|
|
g=10.41
|
2.4 Сбор нагрузки на 1 м2 покрытия в
подвале
|
№ п/п
|
Нагрузка
|
Подсчёт
|
Нормативная нагрузка gⁿ кН/м²
|
гf
|
Расчётная нагрузка q, кН/м²
|
|
1 1.1
|
Постоянная Стяжка из бетона t=100мм, с=2500кг/м3
|
t×с×10/103= =0.1×2500×10/103
|
2.5
|
1.35
|
3.37
|
|
|
Итого:
|
gn=2.5
|
|
g=3.37
|
|
2 2.1
|
Временная Снеговая
|
по табл.3 СНиП 2.01.07-85
|
0.7
|
1.5
|
1.05
|
|
|
Итого:
|
gn=3.2
|
|
g=4.4
|
2.5 Сбор нагрузки на 1 м2 покрытия
кровли
|
№ п/п
|
Нагрузка
|
Подсчёт
|
Нормативная нагрузка gⁿ кН/м²
|
гf
|
Расчётная нагрузка q, кН/м²
|
|
1 1.1 1.2 1.3 1.4 1.5
|
Постоянная Волнистые асбестоцементные листы, m=15кг, Ь=30˚
Обрешетка b×h=30×100мм, S=300мм. Противоконденсацион ная пленка.
Контробрешетка b×h=50×25мм, S=300мм. Стропильная нога b×h=180×50мм, S=1100мм.
|
m×10/103×cosЬ= 15×10/103×cos30˚ b×h×с×10/S×103×cosЬ=0.03×0.1×500× ×10/0.3×103×cos30˚ b×h×с×10/S×103×cosЬ=0.05×0.025×500× ×10/103×0.3×cos30˚ b×h×с×10/S×103×cosЬ=0.18×0.05×500× ×10/103×1.1×cos30˚
|
0.173 0.058 0.5 0.024 0.047
|
1.35
|
0.234 0.078 0.675 0.033 0.064
|
|
|
Итого:
|
gn=0.802
|
|
g=1.084
|
|
2 2.1
|
Временная Снеговая
|
Р-н IБ=1.2;µ=0.86 S=S0×м=1.2×0.86
|
1.032
|
1.6
|
1.651
|
|
|
Итого:
|
gn=1.834
|
|
g=2.735
|
3. Расчет многопустотной плиты перекрытия
Исходные данные:
Рассчитать и сконструировать многопустотную плиту перекрытия марки ПТМ
36.12-8. Панель опирается на несущие кирпичные стены, здания - жилой дом.
Расчетная равномерно распределенная нагрузка q=7.265 кН/м2. Панели
выполнены из бетона классаС20/25. Армируется стержневой продольной
арматуройкласса S500 , поперечной класса S400.
3.1 поперечное сечение плиты, схема армирования
Поперечное сечение плиты, схема армирования
- сетка, 2- продольная арматура
3.2 Определяем усилие возникающие в плите от
расчётных и нормативных нагрузок
- Конструктивная длина панели Lk=L-0.02м, Lk=3300-20=3280мм=3.28м
Расчетная длина панели L0=Lk-b/2-b/2= 3280-180=
3100мм= 3.1м.
b=180мм=3300мм0=3100ммk=3280мм
Панель перекрытия рассчитывается как однопролетное свободнолежащая на
опорах балка, загруженная нагрузкой от собственного веса, веса конструкции пола
или покрытия и временной нагрузкой. Расчетное значение изгибающих моментов Msdи
поперечных сил Vsdопределяют по формулам:
sd=(q×L02/8)×B×гn=(7.265×3.12/8)×1.2×1.5=15.709кНм;sd=(q×L0/2)×B×гn=(7.265×3.1/2)×1.2×1.5=20.269кНм;
3.3 Определяем геометрические характеристики
Определяем геометрические характеристики сечения. Сечение многопустотной
панели приводим к эквивалентному двутавровому профилю. Круглые отверстия
заменяют квадратными с той же площадью, моментом инерции и положением центра
тяжести.
-Высота эквивалентного квадрата h1=0,9∙d. d=159 мм.
Бетон растянутой зоны в работе не участвует.
h1=0.9∙159=143.1мм=0.1431м
Определяем высоту сжатой полки панели по формуле
’ƒ=220-h1/2=220-143.1/2=38.45мм=0.03845м
Проверяем условие
>0,1; Если условие выполняется, то в расчет вводится вся
ширина полки b'f.
38.45/220>0.1 0.17>0.1
-Определяем расчетную ширину ребра b = b’f - n∙
h1, где n - количество пустот, определяемое по формуле
=B/200
= b’f - n∙ h1=1160-6∙143.1=301.4мм=0.3014м=B/200=1200/200=6
Определяемрабочую высоту
сечения d=h-c, с - защитный слой бетона 20 мм.=h-c=220-20=200мм=0.2м
.4
Определяем характеристики прочности бетона и арматуры
Определяем необходимые
характеристики для бетона по СНБ 5.03.01-02
Нормативное сопротивление
бетона осевому сжатию
= 20МПа
Нормативное сопротивление
бетона осевому растяжению
=1.5МПа
Коэффициент безопасности по
бетону
=1.5
Расчётное сопротивление
бетона осевому сжатию
=20/1.5=13.3МПа
Расчётное сопротивление
бетона осевому растяжению
=
=1.5/1.5=1МПа
Модуль упругости бетона при
марке по удобоукладываемости СЖ2
=39ГПа
Определяем необходимые
характеристики арматуры
Для продольной ненапрягаемой
арматуры нормативное сопротивление
=417МПа
-
0.9
500/0.8=562.5 МПа
Для поперечной арматуры расчётное сопротивление
=333МПа для сварного каркаса из
проволочной арматуры
Модуль упругости арматуры всех классов ЕS=200∙103
МПа.
3.5 Расчет плиты по нормальным сечениям
-Определяем положение нейтральной оси и проверяем условие:
Мsd≤ Мƒ =ƒcd∙б∙ bƒ ∙ hƒ(d-0.5 hƒ)=13.3·106·1·1.16·38.45·10-3·(0.2-0.5·0.03845)=107.48кН·м;
Мsd=15.709кНм≤ Мƒ=107.48кНм;
где б=1 , коэффициент для бетона класса С50/60 и
ниже
-Т.кМsd=15.709кНм≤ М ƒ=107.48кНм, то нейтральная ось
проходит в полке, сечение рассчитываем как прямоугольное.(по деформационной
модели).
Определяем значение коэффициента бm ,полагают что b= bƒ=1.16м.
бm= Мsd / б∙ ∙b∙d2=15.709·103/1·13.3·106·1.16·0.22=15.709·103/0.61712·106=0.025;
Определяем значение коэффициента о по формуле:
о=1-√1-2 бm=1-√1-2·0.025=0.03;
Определяем придельное значение коэффициента оlimпо формуле:
оlim=еcu/еcu+еsy=3.5/3.5+2.02=0.63;
где еcu=3.5‰-предельная относительная величина деформации
бетона,
еsy=fyd / Es =417·106/2.06·105=2.02‰
о<оlim; 0.03<0.63;
Определяем придельное значение коэффициента бm,limпо формуле:
бm,lim = щc∙оlim(1- k2∙оlim
)=0.74·0.63·(1-0.81·0.63)=0.22
где щс= 0,85-0,008∙ fcd=0.85-0.008·13.3=0.74;2=0.81
для тяжелого бетона.
бm<бm,lim; 0.025<0.22;
Определяем значение коэффициента Ю по формуле:
Ю=0.5+√0.25-ĸ2·бm/щс=0.5+√0.25-0.81·0.025/0.74=0.97
Определяем площадь сечения арматуры:
Аs=Msd/Ю·fyd·d=15.709·103/0.97·417·106·0.2=15.709·103/81.084·106=0.000194м2=1.94см2
По сортаменту подбираем диаметр и количество стержней
Принимаем 5 стержней диаметром 7мм. As=1.92см2 ;
Выполняем проверку правильности подбора арматуры.
Определяем коэффициент о по формуле:
о=Аs∙ƒyd/ б∙ fcd∙b∙d=1.92·10-
·417·106/1·13.3·106·1.16·0.2=800.64·102/3.0856·106=0.026
Опрелеляем коэффициент бmпо формуле:
бm= о(1-о/2)=0.026·(1-0.026/2)=0.0257;
Определяем несущую способность Mrdпо формуле:
МRd=бm∙б∙ fcd∙b∙d2=0.0257·1·13.3·106·1.16·0.22=15.859кНм.=15.859кНм
≥ Msd=15.709кНм.
Несущая способность обеспечена.
Армирование производится сеткой С1, в которой продольные стержни являются
рабочей арматурой принятой по расчету по нормальным сечениям (по деформационной
модели). Продольные стержни расположены по всей длине плиты, общее количество
которых составляет 4 стержня диаметром 9мм, площадью Аs=2.54см2,
с шагом S=370мм.
Поперечные стержни сетки принимаем 11 стержней диаметром 9мм, с шагом
S=321мм, класс арматуры S500
3.6 Расчет прочности по
наклоннымсечениям
1. Для поперечного армирования принимаем конструктивно короткие каркасы,
устанавливаемые в приопорных четвертях пролета панели = 0,25L. Каркасы
устанавливаются в крайних ребрах и далее через 2-3 пустоты.=0.25×3.3=0.825м.
1.1 Примаем поперечную арматура: 12 стержней диаметром 8мм, класс
арматкрыS500, с шагом S=75мм., Аsw=6.04см2
1.2 Принимаем продольную арматуру : 5 стержней диаметром 8мм, класс
арматуры S500, с шагом 230мм, As=2.51, с выпуском арматуры 120мм.

3.7 Обеспечение прочности по наклонной трещине
1. Определяем длину проекции наиболее опасного наклонного сечения на
продольную ось элемента
2.
= 2·1.5·1·106·1.16·0.22/0.5·20.269·103=13.7м
Где
;
.
. Определяем величину поперечной силы, воспринимаемой бетоном
=2·1.5·1·1.16·0.04/13.7=10.16кН;
. Определяем усилие в хомутах на единицу длины элемента для приопорного
участка
=333·106·6.04·10-4/0.075=2681.76кН;
=6.04см2 - площадь поперечного сечения поперечной
арматуры для одного приопорного участка.=75мм - шаг стержней приопорного
участка;
. Определяем длину проекции опасной наклонной трещины на продольную ось
элемента
=
0.228м
. Определяемпоперечнуюсилувоспринимаемуюхомутами
=2681.76·0.228=611.44кН;
. Определяем поперечное усилие воспринимаемое сечением
= 10.16+611.44=621.6кН;
.269кН=
=621.6кН;
Прочность обеспечена.
3.8 Расчет прочности по наклонной полосе между
наклонными трещинами
1.Определяем коэффициент
по формуле
=1-0.01·13.33=0.87
2. Определяем коэффициент
по формуле
;
=1+5·0.00513·69.43·10-4=1<1.3;
Где
=0.00513
=6.04·10-4/1.16·0.075=69.43·10-4
3. Находим максимальное поперечное усилие, воспринимаемое наклоным
сечениям
=0.3·1·0.87·13.33·106·1.16·0.2=807.16кН;
.269кН=
=807.16кН
Прочность обеспечена.
3.9 Проверка плиты на
монтажное усилие
Плита армируется 4 монтажными петлями расположеными на растоянии 365 мм
от торцов панели.
. Определяем изгибающий момент с учетом пластических деформаций
=6.2475·0.365/2=0.416кН;
. Определяем коэффициент
0.416∙103/1∙13.3∙106∙0.22∙1.16=0.00067
. Определяем коэффициент о:
=1-
=0.00067
. Определяемкоэффициент
:
=
=0.59;
Где
0.744
Проверяем условие
. Определяем необходимое количество арматуры на восприятие
отрицательного момента
As=
0.013см2
Принимаем диаметр стержней монтажной арматуры 3мм.
3.10 Расчет плиты на действие изгибающего
момента возникающего при подъеме и монтаже
1. Определяем нагрузку от собственного веса плиты
=6.25∙3.28=20.05кН;
. Определяем усилие на петлю при условии передачи нагрузки от панели на 3
петли:=P/3=20.05/3=6.83кН;
Определяем площадь поперечного сечения одной петли из арматуры класса
S240 по формуле
s=N/fyd=6.83∙103/218∙106=0.313см2
Принимаем диаметр монтажной петли 7мм, при классе арматуры S240 и As=0.385см2
Конструирование плиты перекрытия
Многопустотная плита перекрытия запроектирована в соответствии с рабочими
чертежами, утвержденными РУП «Стройтехнорм» от 03,09,2008 г.
Запроектирована плита ПТМ33.12.22-5.0, продольной и поперечной арматурой
класса S500 и бетоном класса С16/20.
По таблице определяем сетку С1, которая принята для проектируемой плиты в
количестве 1 штука. Данная сетка запроектирована из продольной рабочей арматуры
Ø9 мм с шагом 370 мм; и поперечной
арматуры Ø9 мм с шагом 321 мм. Также в этой таблице узнаём массу плиты
и объем бетона.
Также по данной таблице конструктивно принимаем сетку С2, в количестве 2
штук,расположенных на приопорных участках в верхней части плиты.. Данная сетка
запроектирована из продольной арматуры Ø8 мм.,с шагом 230мм и поперечной
арматуры Ø8мм, с шагом 75мм.
Для поднятия и перемещения плиты выполняются 4 монтажные петли Ø7 мм.из арматуры класса S240. Петли
выполняются на расстоянии 365 мм.от торцов плиты.
4. Расчет лестничного марш
Исходные данные: Рассчитать и сконструировать железобетонный ребристый
марш двухмаршевой лестницы жилого дома, марки ЛМ28.12.14-4. Ширина марша В =
1200 мм, длина L = 2820 мм, высота Н = 1400 мм. Высота этажа Нэт =
2.8 м, ступени размером 14´28 см. Масса лестничного марша равна 1,520 т, объем бетона
0,607 м3.
Длина
горизонтальной проекции марша L1 =
мм.
Угол
наклона марша a=25˚. cosa=0.906.
Уклон
марша tga =H/L1= 1400/2448 = 0,6
Временная
нормативная нагрузка на лестничную клетку жилого дома pn= 3,0 кПа,
коэффициент надежности по нагрузке gf = 1,5.
Лестничный
марш выполнен из бетона класса С20/25, продольная рабочая арматура лобового ребра
класса S800, рабочая арматура плиты класса S400.
4.1 Определение прочностных характеристик
материалов
Для бетона класса С20/25:
нормативное сопротивление бетона осевому сжатию fck =20 МПа и
осевому растяжению fctk = 2.9 МПа;
коэффициент безопасности по бетону gс
= 1,5 (для железобетонных конструкций);
расчетное сопротивление бетона осевому сжатию fcd = fck/gс = 20/1,5 =13,3 МПа, осевому растяжению fctd
= fctk / gс = 2.9/1,5
= 1.93 МПа;
модуль упругости бетона при марке по удобоукладываемости Ж2=39×103 МПа.
Продольная рабочая арматура S800:
расчетное сопротивление fyd = 640 МПа.
Поперечная арматура класса S400:
расчетное сопротивление fyd = 367 МПа.
расчетное сопротивление fywd = 290 МПа.
модуль упругости арматуры Es = 200×103 МПа.
4.2 Определение нагрузок, действующих на марш
Таблица 1 . Сбор нагрузки на 1 м2 горизонтальной проекции
марша
|
№
|
Нагрузка
|
Подсчет
|
Нормативная нагрузка qn кН/м2
|
gf
|
Расчетная нагрузка, q кН/м2
|
|
1 1.1 1.2
|
Постояная От собственной массы марша От ограждения
|
m·10/L·B
|
4.49 0.2
|
1.15 1.05
|
5.17 0.21
|
|
Итого:
|
4.69
|
|
5.38
|
|
2 2.1
|
Временная Полезная
|
|
3
|
1.5
|
4.5
|
|
Итого:
|
7.69
|
|
9.88
|
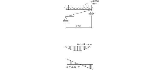
Расчетный пролет при длине площадки опирания с = 9 см.
L0
= L -
= 2820 -
= 2622 -
60 = 2760 мм
Расчетный
пролет в горизонтальной проекции марша0 = L0 ×cosa = 2760× 0,906 = 2500,56 мм
Расчетная нагрузка на 1 метр погонной длины марша
q1
= q1
×B = 9.88× 1,2 = 11,856
кН/м
Расчетный
изгибающий момент в середине пролета марша
=12.507
кН×м
Расчетная
поперечная сила на опоре
=18.13 кН
4.3 Определяем геометрические характеристики
сечения
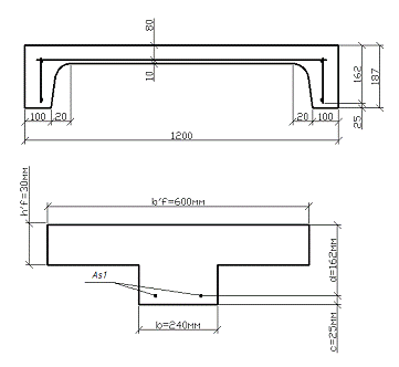
Действительное сечение марша заменяем на расчетное тавровое с полкой в
сжатой зоне
Принимаем толщину защитного слоя с=25мм.
Определяем ширину ребра b = 2·(100+20)=240мм.
Определяем расчетную ширину полки’f=b+12·h’f=240+12·30=600мм.’f=b+2·L0/6=240+2·2332/61017.3мм
Принимаем наименьшее сечение b’f=600мм
Определяем рабочую высоту сечения d=h-c=187-25=162мм.
4.4 Расчет прочности нормальных сечений
1. Определяем положение нейтральной оси и проверяем условие
Msd
M’f=
;’f=1·13.3·106·0.6·0.03·(0.162-0.5·0.03)=35.2кН;sd=12.507кН
M’f=35.2кН;
Нейтральная ось проходит в полке сечения и элемент расчитывают как
прямоугольник. Считаем что b=b’f.
. Определяем значение коэффициента бm
бm= Мsd / б∙ fcd∙b∙d2=12.507/1·13.3·106·0.6·0.1622=0.059;
. Определяем значение коэффициента о по формуле
о=1-
=1-
=0.061;
. Определяем придельное значение коэффициента оlimпо
формуле
оlim=еcu/еcu+еsy=3.5/3.5+3.11=0.53
где еcu=3.5‰-предельная относительная величина деформации
бетона,
еsy=fyd / Es =640·106/2.06·105=3.11‰
о<оlim; 0.061<0.53;
5. Определяем придельное значение коэффициента бm,limпо
формуле
бm,lim = щc∙оlim(1- k2∙оlim
)=0.744·0.53·(1-0.81·0.53)=0.23
где щс= 0,85-0,008∙ fcd=0.85-0.008·13.3=0.744;2=0.81
для тяжелого бетона.
бm<бm,lim; 0.059<0.23;
. Определяем значение коэффициента Ю по формуле
Ю=0.5+
=0.5+
=0.93;
. Определяем площадь сечения арматуры
Аs=Msd/Ю·fyd·d=12.507·103/0.93·640·106·0.162=12.496·103/96.422·106=1.297см2
По сортаменту подбираем диаметр и количество стержней
Принимаем 3 стержня диаметром 8мм. As=1.51см2 ;
. Выполняем проверку правильности подбора арматуры:
Определяем коэффициент о по формуле
о=Аs∙ƒyd/ б∙ fcd∙b∙d=1.51·10-
·640·106/1·13.3·106·0.6·0.162=966.4·102/1.29·106=0.075
Опрелеляем коэффициент бmпо формуле
бm= о(1-о/2)=0.075·(1-0.075/2)=0.072;
Определяем несущую способность Mrdпо формуле
МRd=бm∙б∙ fcd∙b∙d2=0.072·1·13.3·106·0.6·0.1622=15.1кНм.=15.1кНм
≥ Msd=12.496кНм.
Несущая способность обеспечена.
4.5 Расчет прочности лестничного марша по
наклонному сечению
Лестничный марш армируется рабочим каркасом Кр1 с поперечной арматурой
класса S400 , диаметром 4 мм, с шагом 200мм.
1. Определяем длину проекции наиболее опасного наклонного сечения на
продольную ось элемента
=2·1.5·1.93·106·0.6·0.1622/0.5·18.13·103=10.1м
2. Определяем величину поперечной силы, воспринимаемой бетоном
= 2·1.5·1.93·106·0.6·0.162/10.1=9.03кН;
. Определяем усилие в хомутах на единицу длины элемента для приопорного
участка
=290·106·1.758·10-4/0.2=254.91кН;
. Определяем длину проекции опасной наклонной трещины на продольную ось
элемента
=
= 0.597м.
. Определяем поперечную силу воспринимаемую хомутами
=254.91·0.597=152.18кН;
. Определяем поперечное усилие воспринимаемое сечением
= 9.03+152.18=161.21кН;
.13кН=
=161.21кН;
Прочность обеспечена.
4.6 Расчет прочности лестничного марша по
наклонной полосе между трещинами
1. Определяем коэффициент
по формуле
=1-0.01·13.33=0.87;
. Определяем коэффициент
по формуле
;
=1+5·0.00513·14.65·10-4=1<1.3;
Где
=0.00513
=1.758·10-4/0.6·0.2=14.65·10-4
3. Находим максимальное поперечное усилие, воспринимаемое наклоным
сечениям
=0.3·1·0.87·13.33·106·0.6·0.162=337.41кН;
.13кН=
=337.41кН
Прочность обеспечена.
Таким образом плита лестничного марша армируется тремя продольными
стержнями диаметром 8мм, класс арматуры S800, и десятью поперечными стержнями
диаметром 4мм, класс S400.
4.7 Расчет прочности поперечных ребер
Поперечные ребра армируются двумя плоскими каркасами в котором продольная
растянутая арматура принята такой же как и в плите лестничного марша,
продольная сжатая принята конструктивна;
Поперечные крайние стержни приняты диаметром 4мм, класс арматуры S400.
Поперечную арматуру необходимо рассчитать по наклонным сечениям, учитывая шаг
напри опорном участке с шагом 90мм, в середине пролета шаг 290мм.ребра=(1200-50)·0.25=287.5мм.
Принимаем 9 стержней диаметром 4 мм.
Расчет прочности по наклоному сечению:
. Определяем длину проекции наиболее опасного наклонного сечения на
продольную ось элемента
=2·1.5·1.93·106·1.2·0.192/0.5·18.79·103=26.61м
. Определяем величину поперечной силы, воспринимаемой бетоном
= 2·1.5·1.93·106·1.2·0.19/26.61=9.43кН
. Определяем усилие в хомутах на единицу длины элемента для приопорного
участка
=290·106·1.13·10-4/0.09=364.1кН;
. Определяем длину проекции опасной наклонной трещины на продольную ось
элемента
=
= 0.830м.
. Определяем поперечную силу воспринимаемую хомутами
=364.1·0.83=302.2кН;
. Определяем поперечное усилие воспринимаемое сечением
= 9.43+302.2=311.63кН;
.79кН=
=311.63кН;
Прочность обеспечена
Расчет прочности по наклонной полосе между трещинами:
1. Определяем коэффициент
по формуле
=1-0.01·13.33=0.87;
. Определяем коэффициент
по формуле
;
=1+5·0.00513·10.46·10-4=1<1.3;
Где
=0.00513
=1.13·10-4/1.2·0.09=10.46·10-4
3. Находим максимальное поперечное усилие, воспринимаемое наклоным
сечениям
=0.3·1·0.87·13.33·106·1.2·0.19=791.45кН;
.79кН=
=791.45кН
4.8 Конструирование лестничного марша
Плита лестничного марша армируется пространственным каркасом КП1,
состоящим из каркаса КР1 с продольной арматурой Æ8 мм. S400 с шагом 200мм., принято по
расчету. Поперечной арматуройÆ4 мм. S500с шагом на приопорных участках 90 мм., в остальной
части 200 мм., принято по расчету; из каркаса Кр2 с продольной арматурой Æ4 мм., S500 с шагом 200 мм., принято
конструктивно, с поперечной арматурой Æ4 мм., S500 с шагом 200 мм., принято конструктивно; из
каркаса Кр3 с продольной арматурой Æ4 мм., S400 и поперечной арматурой Æ4 мм., S500 с шагом 90мм на при
опорных участках 210 мм., принято конструктивно.
Плита лестничного марша армируется сеткой С1 из стержней Æ8 мм класса S800 с шагом 560 мм в
продольном направлении и стержней Æ4мм класса S400 шагом 200 мм в поперечном направлении,
принято конструктивно.
Закладные детали приняты в соответствии с рабочими чертежами серии
1.151.1-6 «Марши лестничные железобетонные плоские для жилых зданий с высотой
этажа 2.8 м. (выпуск 1)»
5. Расчет ленточного фундамента под внутреннюю
стену
Исходные данные: Рассчитать и запроектировать ленточные фундамент под
внутреннюю стену по оси- B, 2-ух этажного жилого дома. Марка фундамента
ФЛ14.30-2. Кровля скатная, присутствует чердак, подвал с полом по грунту.
Строительство осуществляется в городском поселкеВетка, уровень грунтовых вод на
отметки 3.5 м от дневной поверхности. Глубина заложения фундамента 3 м. Грунт -
песок мелкий, со следующими характеристиками:
ü Коэффициентпористости
;
ü Удельное сцепление грунта Cn=2кПа;
ü Угол внутреннего трения 𝞿т=32°;
ü Модуль деформации Е=20МПа;
ü Удельный вес грунта, залегающего выше подошвы фундамента
кН/м3;
ü Удельный вес грунта, залегающего ниже подошвы фундамента
кН/м3;
ü Полезная нагрузка на перекрытие жилого дома pn=1.5МПа;
(табл.3 СНиП 2.01.07-85)
Бетон
, арматура класса S500.
5.1 Сбор нагрузки на фундамент
Нагрузка от массы 1 м погонного стены от отметки -0.400, до отметки
+5.300 составляет:
Hстен=0.4+5.3=5.7
=
=0.38·1800·5.7·10/103=38.99кН/м;ст=
·
=38.99·1.35=52.63кН/м;
Определяем грузовую площадь
Определяем нагрузку от массы фундаментных блоков
Полная нагрузка на 1м пог. фундамента по обрезу фундаментной плиты
5.2 Определение ширины подошвы фундамента
Для предварительного определения ширины фундаментной плиты пользуемся
табличными значениями сопротивления грунта (табл. 5.4 ТКП)
Для супеси
Принимаем коэффициент б=0.053.(табл.5.10 ТКП), исходя из значения
коэффициента з и о.
Где
- средний удельный вес материала фундамента и грунта на его
уступах.усредненная нагрузка от полаполная расчетная нагрузканагрузка от веса
фундамента и грунта на нем.иl- масса и длина фундаментных блоков.1 и
l1- масса и длина фундаментной плиты
б- коэффициент затухания напряжения
8,96/0,6=29,87=0,2pzq=0,2·44,8=8,96
zq - вертикальное давление от собственного веса грунтаzq=
=16·2,6+16·0,2=44,8
- толщина слоя грунта(0,5)
Принимаем b= 1,4м.
Определяем расчетное сопротивление грунта с учетом поправок на ширину
фундамента и глубину заложения по формуле
Определяем ширину фундамента при R=315.93кПа
Принимаем b= 1.4м, длиной 2980 мм.
Определяем расчетное сопротивление грунта основания по формуле
319,78кПа
Определяем нормативную нагрузку по подошве фундамента с учетом
собственной массы фундаментной плиты Рфи массы грунта Ргр.
Определяем среднее давление по подошве фундамента
Проверяем условие:
Проверяем условие
;
Принимаем b=1.4м, L=3.0м, H=0.3м. Марка фундамента ЛФ14.30-1.
Так как здание имеет подвал определяем активное давление грунта на стену
подвала:
Определяем равнодействующую активного давления грунта на 1м стены
=(10*2.6+16*3.38)*0.55=44.04;
Определяем момент равнодействующей относительно центра тяжести
поверхности фундамента:=T*d/3=44.04*2.6/3=38.17 кН м
Находим эксцентриситет:=
;
Определяем максимальное давление по подошве фундамента
= 182.91кПа<R=319,78кПа
Условие выполняется, принимаем ширину фундамента b= 1.4м
5.3 Расчет тела плитной части фундамента
Принимаем толщину защитного слоя фундамента с=45мм; d=h-c=300-45=255мм.
Определяем расчетную нагрузку:
= 1.1*11.4=12.54кН/м
=1,1*14.72=16.19кН/м=26.12 кН/м3
Давление под подошвой фундамента от действия расчетных нагрузок
определяем по формуле
= 82.58кПа<R=319,78кПа
Поперечную силу и изгибающий момент в сечении фундамента у грани стены от
отпора грунта определяем по формулам
5.4 Расчет площади продольной арматуры плит
фундамента
Определяем коэффициенты
Определяем коэффициент
о=
=1
=0.006
Определяем коэффициент
;
;
Определяем коэффициент
;
0.744
Так как условие
выполняется, находим ŋ
=0.993;
Тогда требуемая площадь растянутой продольной арматуры составит
Принимаем стержни диаметром 7мм. Аst=0.77см2
Проверка
;
;
;
- условие выполняется.
Арматура подобрана верно.
Армирование производим сеткой С1, расположеной в нижней части плиты.
Сетка состоит из продольной рабочей арматуры диаметром 14мм, класса S400, с
шагом 200мм и 170мм., и поперечной арматуры класса S400 диаметром 6 мм, с шагом
принятым 300мм и 210мм.
5.5 Расчет на продавливание
Определяем расстояние от низа плиты до центров тяжести арматуры для
каждого направления:
Ах=50мм. Ау=55мм.
Определяем рабочую высоту фундаментной плиты в каждом направлении
; и
;
Определяем рабочую высоту сечения
;
Определяем коэффициенты армирования в обоих направлениях, класса S500
диаметром 7мм Аst=0.77см2
;
.0016<0.2- минимальное значение коэффициента армирования
регламентированное СНБ2.03.01-02.
Расчетный коэффициент армирования
;
Определяем значение критического периметра исходя их длины закругленных
секторов
=0,01745Rn0=0,584,
где n0 =900 , r=1,5d=0,372 м.
;
Определяем погонную поперечную силу, вызванную местной сосредоточенной
нагрузкой, принимая коэффициент
так как эксцентриситет приложения нагрузки отсутствует
;
Где
- местная поперечная сила с вычетом силы отпора грунта в
пределах расчетной критической площади
;
Определяем коэффициент учитывающий влияние масштабного фактора
=1+
=1+
=1.898;
Определяем погонное усилие которое может воспринять сечение при
продовливании
rd=
=118.32кН;
Где
rd=
=106.64кН.rd=118.32кН>Vrd=106.64кН>Vsd=24.78кН;
Условие выполнено. Прочность на продавливание обеспечена.
Конструирование
ленточного фундамента
В соответствии с заданием на проектирование запроектирован ленточный
фундамент ФЛ14.30-4 изготовленный из бетона марки С20/25 и арматуры класса
S500.
Фундамент армируется сеткой расположенной в нижней части плиты. Сетка
состоит из продольной рабочей арматуры класса S5008Ø7 мм.с шагом 200 мм и 170мм. принятой
по расчету и поперечной арматуры класса S500 Ø6 мм. с шагом 300мм и 210 мм принятым
конструктивно.
Для поднятия плиты устраиваются 4 монтажные петли из арматуры класса S240
Ø7 мм. Петли располагаются на
расстоянии 200 мм от торцов плиты, и 150 мм от боковых граней.
Заключение
Согласно заданию на курсовое проектирование, рассчитаны и запроектированы
элементы:
многопустотная предварительно не напреженная плита перекрытия
ПТМ33.12.22-8.
лестничный марш ЛМ28.12.14-4.
ленточный фундамент ФЛ14.30-4
В ходе курсового проекта я закрепил свои знания по предмету «Строительные
конструкции».
Библиография
1. Берлинов
М.В., Ягупов Б.А. Строительные конструкции. - М.:Агропромиздат, 1990.
2. Павлова
А.И. Сборник задач по строительным конструкциям. - М.:ИНФРА-М, 2005.
. СЕтков
В.И., Сербин Е.П. Строительные конструкции. М.: ИНФРА-М, 2005.
. Веселов
В. А, Проектирование оснований и фундаментов. - М.: Стройздат, 1990.
. Методическая
инструкция. Курсовое проектирование. - Гомель.: УО ГГДСТ, 2005.
. ГОСТ
21.501-93. Правила выполнения архитектурно-строительных чертежей.
. ГОСТ
21.101-93. Основные требования к рабочей документации.
. СНБ
5.01.01.-99. Основания зданий и сооружений.
. СНБ
5.03.01.-02 Бетонные и железобетонные конструкции.
. СНБ
2.04.01-97. Строительнаятеплотехника.
. СНиП2.01.07-85.
Нагрузки и воздействия.