|
№
п/п
|
Нагрузка
|
Подсчёт
|
Нормативная
нагрузка gⁿ кН/м²
|
γf
|
Расчётная
нагрузка q, кН/м²
|
|
1
1.1 1.2 1.3 1.4
|
Постоянная
Покрытие из металлочерепицы Обрешётка из дер.брусков 30х100мм, p=500кг/м²,S = 350мм
Противоконденс. плёнка t =0,5мм; p=1800 кг/м²
Строп.ноги из бруса 200х200мм с шагом S=1000мм, p=500кг/м²
|
5*10/10³
0,03*0,1*500*10 /10³ 1800*0,0005*10/10³
0,2*0,2*500*10 /103
|
0,05
0,037 0,005 0,244
|
1,35
1,35 1,35 1,35
|
0,082
0,071 0,019 0,33
|
|
|
Итого:
|
0,369
|
|
0,502
|
|
2
2.1
|
Временная
Снеговая
|
Р-н
llБ=1,2;µ=0,714
|
0,857
|
1,6
|
1,371
|
|
|
Итого:
|
1,226
|
|
1,873
|
3. Расчет несущей
брусковой перемычки над оконным проемом
Исходные данные:
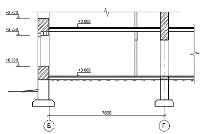
Назначение здания - 5-ти этажное жилое здание,
ширина оконного проема в свету - 780 мм, толщина стены 590 мм, расстояние между
осями наружной и внутренней стены l=6,92
м.
Перекрытия в здании из
многопустотных панелей толщиной 220 мм. Пол - линолеум. Класс бетона С 
, класс продольной арматуры S400, класс
поперечной арматуры S500.
3.1 Подбор элементов перемычки
Перемычка над оконным проемом состоит из 4-ёх
элементов одинаковой ширины. На внутренний элемент перемычки опираются панели
перекрытия, остальные элементы перемычки несут нагрузку только от кладки
(самонесущие).
Определяем минимальную длину перемычек при
минимальных размерах заделки концов в стену:
- в самонесущих - 120
мм;
- в несущих - 250 мм;
l1 = 780
+ 2 ∙ 120 = 1020
мм2 = 780
+ 2 ∙ 250 = 1380
мм
Рисунок 3.1 - Фрагмент разреза здания
Определяем минимальную длину перемычек при
минимальных размерах заделки концов
в стену:
- в самонесущих - 120
мм;
- в несущих - 250 мм;
l1
= 780 + 2 ∙ 120 = 1020 мм
l2
= 780 + 2 ∙ 250 = 1380 мм
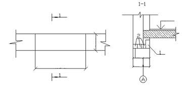
Принимаем перемычки (рисунок 3.2):
- марки 2ПБ 19-3 сечением b
x h
= 120 x 140 мм, lк
= 1680 мм, V = 0,028 м2,
m = 0,071 т.
Рисунок 3.2
- Подбор элементов перемычки
.2 Определение расчетных
усилий
Несущая перемычка воспринимает
нагрузку:
- от половины пролета
перекрытия;
- от собственного
веса перемычки;
- от кладки высотой пояса 3,62 - 2,2 =
1,42 м.
Расчетная нагрузка на 1 м.п. перемычки от веса
перекрытия
qпер
= qтабпер
∙ l/2 = 7,84∙
6,92/2= 27,13 кН/м,
где l
= 6,92 м - расстояние между осями стен.
Расчетная нагрузка на 1 м.п. перемычки от
собственной массы
qсоб
= b x
h x
p x
γf
x 10 / 103
= 0,12 ∙ 0,22 ∙ 2500 ∙ 1,35 ∙ 10/103 = 0,891
кН/м,
где b
x h
= 120х220 - сечение перемычки,
p = 2500 кг/м3
- плотность железобетона,
γf
= 1,35 для железобетона (таб.1 СНиП 2.01.07-85)
Расчетная нагрузка от массы стены
qст = 
· t · h · p · γf · 10 / 103
= 
∙ 0,5 ∙ 1,42 ∙
1800 ∙ 1,35 ∙ 10/103 = 3,54кН/м
где t = 0,51 -
толщина стены;
p = 1800 кг/м3
- плотность кирпича;
γf = 1,35 -
коэффициент надежности по нагрузке для каменных конструкций (таб.1 СНиП
2.01.07-85);
h = 1,42 м -
высота стены над перемычкой.
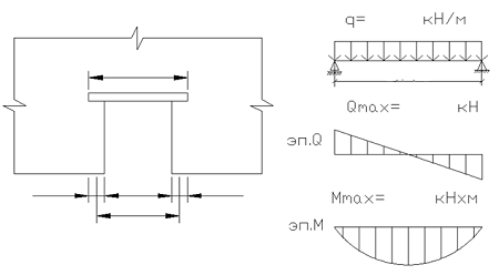
Перемычка работает как
однопролетная, свободно лежащая, равномерно нагруженная балка (рисунок 3).
q = qпер + qсоб + qст = 27,13+
0,891 + 3,54 = 31,56 кН/м
Рисунок 3.3 - Расчетная схема
перемычки
Конструктивная длина перемычки lк = 1410 мм
Расчетный пролет l0 = lк - а = 1410
- 265 = 1145 мм
Максимальная поперечная сила Q :
Q = q ∙ l0/2 = 31,56 ∙
1,145/2 = 18,07 кН
Максимальный изгибающий момент М :
М = q ∙ l02/8 = 31,56 ∙
1,1452/8 =5, 17 кН ∙ м
3.3 Определение прочностных характеристик
материалов
Для бетона класса С 
- нормативное сопротивление бетона на
осевое сжатие
fck
= 12 МПа и осевое растяжение fctk
= 1,1 МПа (таб.6.1. СНБ 5.03.01-02)
- расчетное сопротивление на осевое
сжатие и растяжение
fcd
= fck/γс
= 12/1,5 = 8 МПа
fctd
= fctk/γс
= 1,1/1,5 = 0,73 МПа
где γс
= 1,5 - частный коэффициент безопасности по бетону для железобетонных
конструкций.
Для продольной арматуры класса S400
расчетное сопротивление fyd
= 367 МПа (таб.6.5. СНБ 5.03.01-02).
Для поперечной арматуры класса S500
fywd = 348 МПа
(для сварного каркаса из проволочной арматуры).
.4 Расчет перемычки на прочность по нормальным
сечениям
Расчетное сечение перемычки - прямоугольное с
двойным армированием.
Рабочая продольная арматура - класса S400.
Рабочая высота сечения d
= h - c
= 0,22 - 0,03 = 0,19 м.
Определяем
ξ lim=
0,650
где ω = 0,85 -
0,008 ∙ 8 = 0,786
Определяем
αlim = ξ lim (1 - 0,5 ∙
ξ lim ) = 0,650
(1 - 0,5 ∙ 0,650) = 0,439
Определяем коэффициент
α0=
0,149
Проверяем условие α0 = 0,149
< αlim = 0,439
Условие выполняется, по расчету
требуется только растянутая арматура.
По значению α0 = 0,149
определяем ŋ = 0,919
As1=
0,0000807м2=0,807м2
Принимаем стержень Ǿ 12 мм с As = 1,131 см2
Перемычка армируется одним сварным
каркасом КР1 с продольной нижней арматурой Ǿ 12 мм, верхней арматурой Ǿ
6 мм класса S400.
Рисунок 3.4 - Поперечное сечение
перемычки
.5 Расчет перемычки на прочность по
наклонным сечениям
Расчетная поперечная сила на опоре Q = 18,07 кН
Проверяем условие прочности по
наклонной полосе между наклонными трещинами, полагая ŋwl = 1.
Q<0,3 ŋwl ∙ ŋс1
∙ fcd ∙ b ∙ d
Q=18,07 кН
< 0,3 ∙ 1 ∙ 0,92 ∙ 8 ∙103 ∙ 0,12 ∙
0,19 = 50,34 кН,
где ŋс1 = 1 - 0,01 ∙
fcd = 1 - 0,01∙8
= 0,92
Условие выполняется, размеры
поперечного сечения перемычки достаточны.
Проверяем условие
Q>0,6 ∙
fctd ∙ b ∙ d
Условие выполняется
Шаг поперечной арматуры на
приопорных участках S=100 мм, в середине пролета S=200 мм,
диаметр 4 мм класса S500.
Максимальный шаг поперечной арматуры
Smax=
=
=0,263 м
S = 0,1 м < Smax
= 0,263, условие выполняется.
Определяем усилие
Vsw=
43,85 кН/м,
где 
= 0,126 см2 - площадь
сечения арматуры Ǿ 4 мм.
Определяем длину проекции наклонного
сечения на продольную ось элемента
linc = 2 ∙
d/
= 2 ∙ 0,19/0,6 = 0,63 м
где 
- 0,6 для тяжелого бетона
Проверяем условие linc < l/4
linc = 0,63 >
l/4 = 2,07/4
= 0,517 м
Условие не выполняется, принимаем linc = l/4 = 0,517 м
Определяем длину проекции наиболее
опасной трещины
linc, cr =
0,38 м
Проверяем условие
linc, cr ≤ 2d
linc, cr = 0,38 м =
2d = 2 ∙
0,19 = 0,38 м
Условие выполняется, принимаем linc, cr = 0,38 м
Проверяем условие
Q < 
/ linc + 
∙ linc, cr
Q = 18,07 кН
< 2 ∙ 0,73 ∙ 103 ∙ 0,12 ∙ 0,192
/ 0,517 + 43,85 ∙ 0,38 = 12,234 + 16,663 = 28,9 кН
Условие выполняется, прочность
элемента по наклонному сечению обеспечена.
4. Расчет
многопустотной панели перекрытия
Исходные данные:
Рассчитать и сконструировать многопустотную
панель перекрытия марки ПК 32.12. Панель опирается на несущие стены из кирпича
здания жилого дома. Расчетная равномерно-распределенная нагрузка на перекрытие q=7,91кН/м2
. Панель перекрытия выполнена из бетона класса С25/30, панель армируется
стержневой арматурой периодического профиля класса S400,
поперечная арматура принята класса S500.
.1 Определение расчетных усилий и прочностных
характеристик материалов
Конструктивная длина панели lk=3280
мм
Расчетная длина панели l0=lk-100/2-170/2=3280-50-75=3145
мм
Расчетная нагрузка на 1 погонный метр панели q=qтаб·В=7,91∙1,2=9,41
kН/м
Максимальная расчетная сила Qmax=q·l0/2=9,41
∙3,145/2=12,44 kH
Максимальный изгибающий момент Mmax=q·l02/8=9,41
∙3,1452/8=9,78 kН·м
Расчетная схема панели - однопролетная свободно
опертая балка с расчетным пролетом l0,
равным расстоянию между осями её опор (рис. 4.1)
Рис.4.1 Расчетная схема панели
1-наружная стена, 2-внутренняя стена
Для бетона класса С20/25:
- Нормативное сопротивление бетона
осевому сжатию fck=25
MПа и осевому
растяжению fctk=
1,8 MПа (таб. 6.1 СНБ
5.03.01-02);
- Коэффициент безопасности по бетону gс=1,5
(для ж/б конструкций);
- Расчетное сопротивление бетона
осевому сжатию fcd=fck/gc=25/1,5=16,67
MПа, осевому
растяжению fctd=fctk/gc=1,8/1,5=1,2
МПа;
- Модуль упругости бетона при марке по
удобоукладываемости СЖ 2 Ecm=
40∙103 MПа
(таб. 6.2 СНБ 5.03.01-02);
Для продольной ненапрягаемой арматуры класса S400
Æ 10…32 мм нормативное сопротивление fyd=367
МПа (таб. 6.2 СНБ 5.03.01-02).
Для поперечной арматуры класса S
500 расчетное сопротивление fywd
=417
МПа для сварного каркаса из проволочной арматуры ( таб. 6.5 СНБ 5.03.01-02).
Модуль упругости арматуры всех классов Es
=200∙103
МПа.
.2 Определение геометрических характеристик
сечения
Сечение многопустотной панели приводим к
эквивалентному двутавровому профилю. Круглые отверстия заменяют с той же
площадью, моментом инерции и положением центра тяжести (рис. 4.2).
Рис. 4.2 Расчетное сечение панели
Высота эквивалентного квадрата h1
=0,9d=0,9·159=
143 мм.
Бетон растянутой зоны в работе не участвует.
Высота полки таврового сечения:
hf’
=220-143/2=38,5
мм
Расчетная ширина ребра b=bf’
-n·h1
,где
n- количество пустот
b=1260-6∙143=402
мм
Отношение hf’
/h=38,5/220=0,175>0,1
, в расчет вводится вся ширина полки bf’
=1260
мм.
Рабочая высота сечения d=h-c=22-3=19
см.
.3 Расчет прочности по нормальным сечениям
Определяем положение нейтральной оси , проверяем
условие
M
α·fcd ·bf’·hf’·(d-0,5·hf’)
Mmax=58,32 kH∙м<1∙16,67∙103∙1,26∙0,0385∙(0,19-0,5∙0,0385)=138,08
kH∙м
Условие выполняется, нейтральная ось
проходит в полке , сечение рассчитывается как прямоугольное шириной b=bf’ =1,26 м
Определяем граничное значение
относительной высоты сжатой зоны бетона
𝜉=
0,57
где 𝜔=0,85-0,008·fcd =0,85-0,008∙20=0,717
Определяем αlim=𝜉lim(1-0,5 𝜉lim)=0,57(1-0,5∙0,57)=0,408
Определяем коэффициент
α0=
=0,013
Проверяем условие α0
αlim
α0
αlim =0,39
Определяем площадь сечения
продольной арматуры:
As1=
=0,000141 м2=1,41см2
По сортаменту принимаем 7 стержней Æ 6 мм с As1=1,98 см2
из арматуры класса S400.
.4 Расчет прочности по наклонным
сечениям
Расчетная поперечная сила Qmax=12,44 kH
Проверяем условие прочности по
наклонной полосе между наклонными трещинами, полагая , что ηw1=1
Q= 12,44 kH <0,3∙ηw1∙ηc1∙α∙fcd ∙b∙d=0,3∙1∙0,833∙1∙16,67∙103∙0,402∙0,19=487,57
kH
Где коэффициент ηс1=1-0,01·fcd=1-0,01∙16,67=0,833
Условие выполняется, размеры
поперечного сечения панели достаточны.
Проверяем условие
Q= 12,44 kH <0,6·fctd·b·d =0,6∙1,2∙103∙0,402∙0,19=84,27
kH
Условие выполняется, поперечную
арматуру устанавливаем конструктивно. Принимаем 5 каркасов К1 на приопорном
участке из арматуры Æ
4 мм класса S500 с шагом s=100 мм.
Определяем максимальный шаг поперечной арматуры
smax=0,75∙ηс2fctd∙b∙d2/Q=0,75∙2∙1,2∙103∙0,402∙0,192/12,44
=3,21 м
Где ηс2=2
Проверяем условие s=0,1 м
smax=3,21 м
Условие выполняется.
Определяем усилие Vsw=fywd∙Asw/s=417∙103∙0,502∙10-4/0,1=261,88
Где Asw=0,502 см2
для 4 стержней Æ
4мм.
Определяем длину проекции наклонного
сечения на продольную ось элемента:
где ηс3=0,6 для
тяжелого бетона
Проверяем условие linc=0,63 м<l/4=3,28/4=0,82
м
Условие выполняется .
Определяем длину проекции наиболее
опасной наклонной трещины
linc сr =
= 0,5 м
Проверяем условие linc сr=0,5 м < linc=0,63 м
Условие выполняется .
Проверяем условие linc сr= 0,5 м
<2∙d =2∙0,19=0,38
м
Условие не выполняется, принимаем linc сr=0,38 м
Проверяем условие
Q=32,02 kH<2∙fctd∙b∙d2/ linc+Vsw∙ linc сr=2∙1,33∙103∙0,402∙0,192/0,63+209,33∙0,38=164,26
kH
Условие выполняется, прочность
железобетонного элемента по наклонному сечению обеспечена.
.5 Проверка панели на монтажные
усилия
Панель армирована 4 монтажными
петлями класса S240 , расположенными на расстоянии
365 мм от концов панели (рис. 4.3).
Рис.4.3 План панели
С учетом коэффициента динамичности kd=1,4
расчетная нагрузка от собственного веса панели
q=kd∙gf∙g∙B=1,4∙1,35∙2750∙1,19=6185,03
H/м
где g=hred·r=0,11·2500=2750
H/м
-собственный вес панели; B=1,79-конструктивная ширина панели ;
hred-
приведенная высота сечения ; r-плотность
железобетона.
Расчетная схема панели показана на
рис. 4.4 . Отрицательный изгибающий момент консольной части панели:
M=q∙l12/2=6185,03 ∙0,3652/2=412
H/м
Момент воспринимается продольной
монтажной арматуры каркасов. Полагая,что z1=0,9d, требуемая
площадь сечения составляет
As=
=0,0000111 м2=0,111 cм2
Где fyd=218 МПа -
расчетное сопротивление монтажной арматуры класса S240 (таб.
6.5 СНБ 5.03.01-02).
Принимаем конструктивно стержни Æ 12, As=1,131 см2
Рис. 4.4 Расчетная схема и эпюра
моментов консольной части панели
5. Расчет
ленточного фундамента под наружную стену здания
Исходные данные:
Требуется рассчитать ленточный фундамент под
наружную стену
по оси А 5-этажного жилого дома.
Кровля - скатная, чердак - холодный, пол -
линолеум. Район строительства - г.Рогачев Гомельской области. УГВ на отметке
-1,300. Глубина заложения фундамента d
= 1,2м. Грунт - супесь текучая , со следующими характеристиками:
коэффициент пористости е = 0,5;
удельное сцепление грунта сn=24
кПа;
угол внутреннего трения φn=32º;
- удельный вес грунта, залегающего выше подошвы
фундамента γII'=19,7
кН/м³
- удельный вес грунта, залегающего ниже подошвы
фундамента γII=19,7
кН/м³
- нормативная нагрузка на перекрытие
дома
=5,69 кН/м2
нормативная нагрузка на покрытие
дома
=1,23 кН/м2
Полезная нагрузка на перекрытие
жилого дома pn=1,5кПа
(таб.3 СНиП 2.01.07-85)
5.1 Сбор нагрузки на фундамент
Нагрузка от массы 1м погонного стены от отметки
-0,58 до отметки 14,460
Нст = 0,58 +14,46= 15,040 м;
=15,04 ·(0,02·1800 +
0,51·1800+0,08·50 + 0,02·1600)·10/10 3 = 146,19кН/м
=
=146,19·1,35=197,35кН/м
Нагрузка от массы 3-ух стеновых
фундаментных блоков
= 0,6·(2·0,6+0,3)∙2400∙10/10³
= 25,92 кН/м;
= 
= 25,92 ·1,35 = 34,99кН/м
Полная нагрузка на 1м пог.
фундамента по обрезу фундаментной плиты
=
=1,23 ·3,62+5, 69·3,62·4+25,92 +146,19=
258,95
кН/м;
=1,23 ·3,62+5, 69·3,62·4+34,99+197,35
=323,09
кН/м
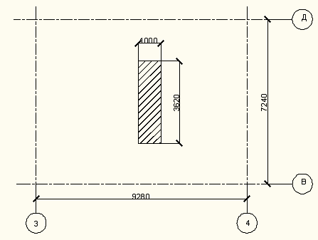
Рис.5.1
Конструкция
Рис.5.2 Грузовая площадь фундамента
.2 Определение ширины подошвы
фундамента
Для предварительного определения
ширины фундаментной плиты пользуемся табличными значениями расчетного
сопротивления грунта ( таб.3 приложение 3[2] ).
Для песка средней крупности R0 = 400 кПа.
Определяем
ширину фундаментной плиты

где
= 20 кН/м - средний удельный вес
материала фундамента и грунта на его уступах;
d - глубина
заложения фундамента.
Принимаем b = 0,8 м.
Определяем расчетное сопротивление
грунта с учетом поправки на ширину фундамента и глубину заложения по формуле 1
приложения 3[2].
где k1 = 0.05 для
песка средней крупности, b0 = 1м, d0 = 2м.
Определяем ширину фундамента при R =
кПа

Принимаем b = 1м массой
m =1,38 т
длиной 2380мм
Определяем расчетное сопротивление
грунта основания по формуле 7 [2]
где
=1,2,
= 1,1 (при соотношении L/H =
17,21/20,02=0,859<1,5);
k = 1, т.к.
характеристики грунта φII и сII определены
непосредственными испытаниями.
1,34;
6,34;
8,55для
= 32º(таб.4[2]).
1 при b = 1<10м.
Нормативная нагрузка по подошве
фундамента с учетом собственной массы фундаментной плиты Рф и массы
грунта Pгр.:
где
Определяем среднее давление по
подошве фундамента:
Проверяем условие Pср =
кПа > R=
кПа.
Т.к. разница между значениями
значительная, принимаем ширину фундаментной плиты b=0,6 (масса
блока 0,93т, длина 2380).
Определяем расчетное сопротивление
грунта при ширине фундамента b=0,8
где
Определяем среднее давление по
подошве фундамента:
Проверяем условие Pср =
кПа > R=
кПа.
Условие выполнено, окончательно
принимаем по каталогу фундаментную плиту шириной b=0,8 (масса
блока 1,15т, длина 2380).
Литература
1.
Берлинов М.В., Ягупов Б.А. Строительные конструкции. - М.: Агропромиздат, 1990.
.
Павлова А.И. Сборник задач по строительным конструкциям. - М.: ИНФРА - М, 2005.
.
Сетков В.И., Сербин Е.П. Строительные конструкции. - М.: ИНФРА-М, 2005.
.
Мандриков А.П. Примеры расчета железобетонных конструкций. - М.: Стройиздат,
1989.
.
Веселов В.А. Проектирование оснований и фундаментов. - М.: Стройиздат, 1990.
.
Методическая инструкция. Курсовое проектирование. - Гомель.: УО ГГДСК, 2005.
.
ГОСТ 21.501-93. Правила выполнения архитектурно-строительных рабочих чертежей.
.
ГОСТ 21.101-93. Основные требования к рабочей документации.
.
СНБ 5.01.01-99. Основания зданий и сооружений.
.СНБ
5.03.01-02. Бетонные и железобетонные конструкции.
.СНБ
2.04.01-97. Строительная теплотехника.
.
СНиП 2.01.-7-85. Нагрузки и воздействия.