Реконструкция магазина 'Пятерочка'
Содержание
ВВЕДЕНИЕ
. АРХИТЕКТУРНО-СТРОИТЕЛЬНЫЙ РАЗДЕЛ
1.1 Технический паспорт здания
.2 Определение технического
состояния здания
1.2.1 Определение нормативного срока
эксплуатации здания
.2.2 Определение физического износа
здания
1.2.3 Определение морального
износа здания
.2.4 Заключение о техническом
состоянии здания
1.3 Объемно-планировочное решение
.4 Конструктивное решение
.5 Теплотехнический расчет
.6 Инженерное оборудование
. РАСЧЕТНО-КОНСТРУКТИВНЫЙ РАЗДЕЛ
.1 Проверочный расчет фундаментов
2.1.1 Сбор нагрузок на покрытие и
перекрытие
2.1.2 Сбор нагрузки по
сечению 1-1
.1.3 Сбор нагрузки по сечению
2-2
2.2 Расчет осадки фундамента (по
сечению 1 - 1)
.3 Расчет простенка первого этажа
. РАЗДЕЛ ТЕХНИЧЕСКОЙ ЭКСПЛУАТАЦИИ
ЗДАНИЯ
.1 Разработка рекомендаций по
техническому обслуживанию и ремонту здания
.2 Разработка мероприятий для
маломобильных групп населения
. НАУЧНО-ИССЛЕДОВАТЕЛЬСКАЯ РАБОТА
.1 Разработка мероприятий по
наружному утеплению стен
.1.1 Причины ухудшения теплозащитных
свойств наружных стен зданий
.1.2 Пути повышения теплозащитных
свойств наружных стен при реконструкции здания
.1.3 Сравнение утеплителей для
наружной стены
. РАЗДЕЛ БЕЗОПАСНОСТИ
ЖИЗНЕДЕЯТЕЛЬНОСТИ
.1 Разработка рекомендаций по
технике безопасности при ведении каменных работ
.2 Защита фундамента от воздействия
грунтовых вод
. ЭКОЛОГИЧЕСКИЙ РАЗДЕЛ
6.1 Мероприятия по охране окружающей
среды в процессе эксплуатации
7. ОРГАНИЗАЦИОННЫЙ РАЗДЕЛ
.1 Строительный генеральный план
.2 Характеристика условий
реконструкции и природно-климатические условия
.3 Описание методов выполнения
основных строительно-монтажных работ с указаниями по технике безопасности
7.4 Земляные работы
7.5 Расчет численности персонала
.6 Обоснование потребности и выбор
типов временных зданий и сооружений
.7 Расчет потребности в
электроэнергии
.8 Расчет потребности в транспортных
средствах
.9 Расчет площадей складов
материалов, изделий и конструкций
.10 Расчет потребности в воде и
определение диаметров временного водопровода
.11 Технико-экономические показатели
проекта производства работ
. ТЕХНОЛОГИЧЕСКИЙ РАЗДЕЛ
.1 Область применения
.2 Технология и организация работ
.3 Потребность в ресурсах
.3.1 Механизированные ресурсы
.3.2 Материально-технические ресурсы
.4 Требования к качеству и приемке
.5 Техника безопасности охрана труда
.6 Подбор строительного крана для
возведения коробки здания
.7 Определение объемов
строительно-монтажных работ
.8 Определение трудоемкости работ,
заработной платы, состава звеньев
.9 График производства
строительно-монтажных работ при возведении здания
ЗАКЛЮЧЕНИЕ
СПИСОК ИСПОЛЬЗУЕМЫХ ИСТОЧНИКОВ
ВВЕДЕНИЕ
Реконструируемое здание находилось в удовлетворительном состоянии,
поэтому необходимо его переустройство, как конструктивное, так и
объемно-планировочное.
Наиболее интересным и эффективным направлением реконструкции домов
является надстройка дополнительного этажа. Именно это направление позволяет
получить дополнительную площадь в размере 30-40% к уже существующей застройке
без отвода земельных участков, позволяет снизить себестоимость на 20% по сравнению
с новым строительством в расчете на одно здание.
Затраты на реконструкцию зданий намного ниже, чем на новое строительство,
так как не требуется приобретения дорогостоящих земельных участков со
значительными затратами на их освоение, основные несущие конструкции
(фундаменты, стены, перекрытия) уже существуют и не требуется их возведения и
расхода материала, имеется вся инфраструктура. При этом модернизируется
архитектурный облик города, увеличивается плотность застройки: за счет
надстройки, замены высоких чердаков мансардами, пристройки.
В связи, с перечисленными выше факторами предлагается в проекте
реконструкция административного здания.
Здание построено в 1986 году. Место расположения здания в городе Вологде
- ул.Ленинградская, д.76.
Здание относится ко II
группе капитальности со сроком службы не менее 150 лет. По огнестойкости здание
относится к I классу.
Город Вологда относится к IV
снеговому району с нормативной снеговой нагрузкой 2,4 кПа; по давлению ветра
относится к I ветровому району с нормативным
давлением 0,23 кПа.
В ходе проекта выполняется надстройка второго этажа высотой 3,3 м. и
архитектурное изменение магазина «Пятёрочка», перепланировка помещений, замена
отслуживших свой срок коммуникаций с целью обеспечение людей более широким
спектром услуг.
Здание имеет размеры в осях 20,4 х 32,76 м. Конструктивная схема
выполнена с продольными и поперечными несущими стенами, в здании до
реконструкции располагается магазин. В процессе реконструкции производится
надстройка одного этажа из металлического каркаса с шагом 6х6м, без изменения
назначения здания (2-х этажный магазин). В здании имеется технический подвал
высотой 1,75м. также проектом реконструкции предусматривается замена оконных и
дверных блоков и инженерного оборудования. Здание полностью вписывается в
городскую среду. Здание после реконструкции улучшает облик города. Вокруг
здания будет выполнено благоустройство - устройство парковочных площадок,
озеленение участка с устройством газонов с посевом многолетних трав и
устройство цветников, установка малых архитектурных форм, а также будут
установлены элементы для маломобильных групп населения.
.
АРХИТЕКТУРНО-СТРОИТЕЛЬНЫЙ РАЗДЕЛ
1.1 Технический паспорт здания
Таблица 1.1 - Технический паспорт здания, г. Вологда, Ленинградская, д.76
|
Характеристика здания
|
По типовому проекту до реконструкции
|
Предусмотрено проектом реконструкции
|
|
1
|
2
|
3
|
|
Магазин площадью 542,26 м2
|
1986 год
|
2016 год
|
|
Надстройка
|
Не производилась
|
Предусмотрена надстройка одного этажа
|
|
Планировка
|
|
Без изменений
|
|
Количество этажей
|
1
|
2
|
|
Фундаменты
|
Ленточный из сборных блоков по ГОСТ 13579-78
|
Проведение ремонтных работ
|
|
Наружные стены
|
Из керамического кирпича толщиной 640 мм
|
Стены утепляются с применением утеплителя ISОVER ВЕНТИ толщиной 80 мм
|
|
Внутренние стены
|
Из керамического кирпича толщиной 510 мм
|
Проведение ремонтных работ
|
|
Перегородки
|
Армокирпичные оштукатуренные толщиной 120 мм
|
Проведение ремонтных работ
|
|
Перекрытия
|
Железобетонные монолитные по профлисту
|
Без изменения
|
|
|
Кровля
|
Плоская, рулонная с внутренним водоотводом системы HUNTER
|
Плоская кровля из профлиста ГОСТ 24045-2010
|
|
|
Водосток
|
Организованный внутренний
|
ПВХ водосточные трубы, резиновые уплотнители, воронка
внутреннего водостока с плоской решеткой
|
|
|
Двери наружные
|
Двупольные металлические по ГОСТ 24698-81*
|
Двупольные металлические по ГОСТ 24698-81*
|
|
|
Двери внутренние
|
Однопольные деревянные по ГОСТ 6629-88
|
Замена деревянных на двери из поливинилхлорида по ГОСТ
30970-2002
|
|
|
Окна
|
Спаренные
|
Установление стеклопакетов по ГОСТ 24866-99
|
|
|
Полы
|
Керамическая плитка, бетонные
|
Частичная замена керамической плитки, ГОСТ 6787-2001
|
|
|
Отделка наружная
|
Облицовка стен штукатуркой
|
навесной вентилируемый фасад системы КРАСПАН
|
|
|
Отделка внутренняя
|
Штукатурка, краска, плитка
|
Частичная замена и ремонт внутренней отделки
|
|
|
Технический этаж
|
высотой 1,8 м
|
Без изменений
|
|
|
Лестницы
|
Сборные железобетонные по ГОСТ 8717.1-84 на металлических
косоурах
|
То же, с проведением ремонтных работ и устройством на
надстраиваемый этаж
|
|
|
Инженерное оборудование
|
|
|
а) отопление
|
Водяное
|
Замена оборудования с устройством разводки на
дополнительный этаж
|
|
|
б) водопровод
|
Хозяйственно-питьевой
|
Замена оборудования с устройством разводки на
дополнительный этаж
|
|
|
в) канализация
|
Хозяйственно-фекальная в наружную сеть
|
Замена оборудования с устройством разводки на
дополнительный этаж
|
|
|
д) электроснабжение
|
360/220 от наружной сети
|
360/220 от наружной сети с разводкой на дополнительный этаж
|
|
1.2 Определение технического состояния здания
1.2.1 Определение нормативного срока эксплуатации здания
Нормативный срок эксплуатации здания определяется по материалу основных
несущих конструкций до реконструкции. В реконструируемом здании фундамент
выполнен из сборных бетонных блоков, стены наружные из силикатного кирпича и
толщиной 640 мм, перекрытия - железобетонные плиты сплошные толщиной 220 мм.
Группа капитальности здания определяется по материалу фундамента, стен и
перекрытия.
Данное здание относится ко II
группе капитальности с нормативным сроком эксплуатации 150 лет. [1]
Здание относится ко II
уровню ответственности - нормальный, γn=1.0, поэтому данный коэффициент в
расчетах не учитывается.
1.2.2 Определение физического износа здания
- по срокам эксплуатации
Данный метод используется для приблизительной оценки физического износа и
составления годовых и пятилетних планов обследования застройки. Проведение
реконструкции предполагается в 2016 году. Здание было построено в 1986 году.
Физический износ определяем по [2]. На момент реконструкции фактический срок
службы здания составил :
Тэ
= 2016 - 1986 = 30 лет (1.1)
Физический износ здания определяем по формуле:
(1.2)
где
Тэ- срок эксплуатации здания;
Т - нормативный срок эксплуатации здания.
по удельным весам стоимости конструкции
Обследование здания проводилось в соответствии с ГОСТ 31937-2011 «Здания
и сооружения» [3]
В процессе обследования были выявлены следующие дефекты и повреждения, на
основании которых составлена таблица 1.2 физического износа конструкций здания.
Таблица 1.2 - Физический износ конструкций здания
|
Наименование элемента
|
Признаки износа
|
Количественная оценка
|
Физ. износ, %
|
Примерный состав работ
|
|
|
1
|
2
|
3
|
4
|
5
|
|
|
1.Фундаменты
|
Трещины в швах, между блоками высолы и следы увлажнения
стен у основания фундамента
|
Ширина трещин 1,5 мм
|
30
|
Затирка трещин. Ремонт цоколя
|
|
|
2.Стены кирпичные
|
Отдельные трещины и выбоины несущего покрытия выступающих
частей фасада. Отдельные мелкие выбоины, трещины
|
На площади до 5%
|
25
|
Заделка трещин и выбоин
|
|
|
3.Перегородки кирпичные
|
Трещины в местах соприкосновения перегородок с потолками,
редкие сколы с плитами перекрытий и заполнения дверных проёмов
|
Трещины шириной до 2мм
|
20
|
Заделка трещин
|
|
|
4.Перекрытия из сборных ж/б сплошных плит
|
Трещины местах примыкания к стенам
|
Ширина трещин до 0,5мм
|
15
|
Заделка трещин
|
|
|
5.Кровля
|
Отслоение рулонной кровли, протечки
|
|
50
|
Полная замена
|
|
|
5.Лестницы сборные ж/б
|
Мелкие выбоины и трещины в ступенях, отдельные повреждения
перил
|
|
25
|
Заделка трещин и выбоин, ремонт перил
|
|
|
7. Полы
|
|
|
- из керамических плиток
|
Мелкие сколы и трещины отдельных плиток на площади 30%
|
-
|
20
|
Замена плиток на площади пола более 50%, ремонт основания
|
|
|
бетонные
|
Массовые глубокие выбоины основания
|
|
60
|
Заделка покрытия в ходовых местах, заделка выбоин, ремонт
основания местами
|
|
8. Окна
|
переплеты рассохлись, покоробились, трещины в местах
сопряжения коробок со стенами
|
-
|
15
|
Замена деревянных окон на пластиковые
|
|
9. Двери
|
|
|
- входные металлические
|
Уплотнительные прокладки изношены или отсутствуют, трещины
в стеклах или отсутствие остекления, трещины в местах сопряжения коробок со
стенами, повреждены декоративные детали дверей
|
-
|
15
|
Восстановление уплотнительных прокладок, замена
декоративных деталей с добавлением нового материала до 50%
|
|
- внутренние деревянные
|
Дверные полотна осели или имеют плохой притвор по периметру
коробки, приборы частично утрачены или неисправны, дверные коробки (колоды)
перекошены, наличники повреждены
|
-
|
40
|
Ремонт дверных полотен и коробок с заменой до 50% приборов
|
|
10. Отделочные покрытия
|
|
|
-окраска водяными составами
|
Местами единичные повреждения окрасочного слоя, волосяные
трещины в рустах, в местах сопряжения потолков и стен
|
|
30
|
Окраска водяными составами
|
|
-штукатурка
|
Волосные трещины и сколы местами
|
|
20
|
Затирка местами со шпаклёвкой
|
|
-окраска масляной краской
|
Потемнение и загрязнение окрашенного слоя, матовые пятна и
потёки
|
|
25
|
Промывка и окраска за один слой
|
|
-облицовка керамическими плитками
|
Местами трещины и сколы в плитках. Частые выпадения или
неплотное прилегание плиток на площади до 50% облицовки
|
|
25
|
Затирание отдельных сколов. Замена отдельными местами
глазурованной плитки более 10 штук в одном месте
|
|
11. Система централизованного отопления
|
Массовое повреждение трубопроводов (стояков и магистралей),
сильное повреждение ржавчиной, следы ремонта отдельными местами; значительное
нарушение теплоизоляции трубопроводов
|
|
65
|
Полная замена системы
|
|
12. Система горячего водоснабжения
|
Неисправные смесители и запорная арматура. Следы ремонта
трубопроводов и магистралей, неудовлетворительная работа полотенце сушителей,
значительная коррозия трубопроводов
|
|
60
|
Замена запорной арматуры, смесителей, полотенце сушителей, частичная
замена трубопроводов, магистралей и стояков
|
|
13. Система холодного водоснабжения
|
Расстройство арматуры и смывных бачков(до 40%); следы
ремонта трубопроводов(Хомуты, заварка, замена отдельных участков);
значительная коррозия трубопроводов; повреждение до 10% смывных бачков
(трещины, потеря крышек, рукояток)
|
|
60
|
Замена запорной арматуры, частичная замена смывных бачков,
замена отдельных участков трубопроводов, окраска трубопроводов
|
|
14. Система канализации и водостоков
|
Массовые течи в местах присоединения приборов; повреждение
эмалированного покрытия моек, раковин, ванн, умывальников до 30% их
поверхности, повреждение керамических умывальников и унитазов до 20% их
количества, повреждение чугунных трубопроводов, массовое повреждение
трубопроводов и полимерных материалов
|
|
65
|
Частичная замена трубопроводов и приборов, замена ПХВ
трубопроводов
|
|
15. Система электрооборудования
|
Полная потеря эластичности изоляции проводов, значительные
повреждения магистральных и внутриквартальных сетей и приборов, следы ремонта
системы с частичной заменой сетей и приборов отдельными местами, наличие
временной прокладки, неисправность ВРУ
|
|
65
|
Замена отдельных участков сетей, приборов, ВРУ, замена
открытой проводки
|
|
16. Лестницы
|
Выбоины и сколы местами в ступенях, перила повреждены,
лестничные площадки имеют трещины поперек рабочего пролета
|
Ширина трещин до 2 мм
|
30
|
Заделка отбитых мест, ремонт перил. Усиление железобетонных
лестничных площадок
|
|
|
|
|
|
|
|
|
Определение физического износа здания представлено в таблице 1.3.
Таблица 1.3 - Физический износ здания
|
Укрупненные элементы здания
|
Удельн. вес эл. по сборн.28,%
|
Удельный вес по прил.%
|
Расчетный уд.вес%
|
Физический износ
|
|
|
|
|
по результ. обслед-я
|
Среднев звешен.
|
|
1
|
2
|
3
|
4
|
5
|
6
|
|
Фундаменты
|
10
|
|
10
|
30
|
3
|
|
Стены
|
19
|
86
|
16,34
|
25
|
4
|
|
Перегородки
|
|
14
|
2,66
|
20
|
0,5
|
|
Перекрытия
|
6
|
|
6
|
15
|
1
|
|
Кровля
|
7
|
|
7
|
50
|
3,5
|
|
Полы
|
12
|
|
|
|
|
|
Керамические
|
|
70
|
8,4
|
20
|
2
|
|
Бетонные
|
|
30
|
3,6
|
60
|
2
|
|
Окна
|
7
|
56
|
3,92
|
20
|
1
|
|
Двери
|
|
44
|
3,08
|
40
|
1,5
|
|
Отделочные работы
|
18
|
|
|
|
|
|
Штукатурка
|
|
40
|
7,2
|
20
|
1,5
|
|
Водн.покраска
|
|
45
|
8,1
|
30
|
3,5
|
|
Плитка
|
|
5
|
0,9
|
25
|
0,5
|
|
Масляная краска
|
|
10
|
1,8
|
25
|
|
Инженерное оборудование
|
16
|
|
16
|
60
|
1
|
|
Лестницы
|
5
|
51
|
2,55
|
25
|
0,5
|
|
Остальное
|
|
49
|
2,45
|
10
|
0,5
|
|
Итого, %
|
100
|
|
100
|
|
26,5
|
Общий физический износ конструкций здания составляет 26,5 %. В целом в
соответствии с [3] здание находится в работоспособном состоянии. Требуется
частичное усиление перекрытий, стен и фундаментов.
1.2.3 Определение морального износа здания
Моральный износ здания определяется путем оценки соответствия
существующего здания к нормативным требованиям. Нормативные требования для
проектирования реконструкции здания даны в [4].
Моральный износ определяется по 3 показателям:
отклонение от нормативных требований архитектурно-планировочных решений;
отсутствие отдельных видов инженерного оборудования;
несоответствие материала конструкций современным нормативным требованиям.
Определение морального износа архитектурно-планировочного решения
выполняем в таблице 1.4.
Таблица 1.4 - Определение морального износа планировки
|
Наименование показателей
|
Нормативное значение
|
Фактическое значение
|
Отклонение от нормы
|
Моральный износ, %
|
|
1
|
2
|
3
|
4
|
5
|
|
1.Наличие утепленных тамбуров на входе
|
Двойной тамбур
|
Имеется
|
Отсутствует
|
0%
|
|
2.Помещение для дежурного
|
3,5 м2
|
Не имеется
|
Присутствует
|
1%
|
|
3.Наличие мероприятий входной группы для маломобильных
групп населения
|
Пандус
|
Не имеется
|
Присутствуют
|
3%
|
|
4.Размер крыльца
|
1,2х1,2; наличие навеса над крыльцом
|
Имеется
|
Отсутствует
|
0%
|
|
5.Ширина коридоров
|
Не менее 1,2 м
|
Имеется
|
Отсутствует
|
0%
|
|
6.Ширина маршей лестниц
|
1,35 м
|
Имеется
|
Отсутствует
|
0%
|
|
7. Высота помещений от пола до потолка
|
3,0 м
|
Имеется
|
Отсутствует
|
0%
|
|
8.Отметка пола помещения у входа в здание
|
Выше отметки тротуара перед входом неменее чем на 0,15 м
|
Имеется
|
Отсутствует
|
0%
|
|
9.Минимальная площадь отдельных помещений
|
Не менее 6 м2
|
Не имеется
|
Присутствует
|
1%
|
|
10.Оптимальная этажность здания
|
2 этажа - площадь свыше 1500 м2
|
Имеется
|
Отсутствует
|
0%
|
|
11.Тип лестниц
|
Л1, наличие естественного освещения в стенах на каждом
этаже
|
Не имеется
|
Присутствует
|
1%
|
|
12.Аварийных выход
|
Не менее 2
|
Не имеется
|
Присутствует
|
3%
|
Отсутствие отдельных видов инженерного благоустройства выполнено в
табличной форме, таблица 1.5.
Таблица 1.5 - Моральный износ инженерного оборудования здания
|
Наименование показателей
|
Фактическое значение
|
Отклонение от нормы
|
Моральный износ, %
|
|
1.Отопление
|
Имеется
|
Отсутствует
|
0%
|
|
2.Горячее водоснабжение
|
Имеется
|
Отсутствует
|
0%
|
|
3.Наличие оборудования для маломобильных групп населения
|
Не имеется
|
Присутствует
|
1%
|
|
4.Наличие пожарной сигнализации
|
Имеется
|
Отсутствует
|
0%
|
|
5.Наличие охранной сигнализации
|
Не имеется
|
Присутствует
|
1%
|
|
6.Наличие неоновой рекламы
|
Не имеется
|
Присутствует
|
1%
|
Материалы конструкций здания не соответствуют современным нормативным
требованиям:
несоответствие конструкций наружной стены (требуется дополнительное
утепление) - 1%;
асбестоцементная кровля - 1%;
отсутствие звукоизоляции в перегородках - 1%;
несоответствие оконных блоков - 1%.
Общий суммарный моральный износ по 3 показателям составляет 16%.
В реконструируемом здании имеются отклонения в планировочном решении - отсутствует
помещение для дежурного, охранная сигнализация, неоновая реклама, не
предусмотрены мероприятия для маломобильных групп населения.
В реконструируемом здании необходимо выполнить реконструкцию входных
групп, установку охранной сигнализации, замена оконных блоков, замена
неэффективных материалов на более эффективные (ISОVER ВЕНТИ). Также
установить дополнительную лестницу на второй этаж для эвакуационного выхода.
1.2.4 Заключение о техническом состоянии здания
По результатам обследования здания и определении физического износа по
удельным весам стоимости конструкции физический износ составляет 26,5 %.
Моральный износ здания составляет 16%.
В целом состояние здания в соответствии с [5] находится в работоспособном
состоянии, в связи с расширением требуется реконструкция. Проведение
реконструкции данного объекта допустима.
1.3 Объемно-планировочное решение
Реконструируемое здание расположено в г. Вологда. Здание имеет
прямоугольную форму с размерами в осях 32.76х20.4 м. Конструктивная схема
выполнена с продольными и поперечными несущими стенами. В здании до
реконструкции располагается магазин. В здании имеется техническое подполье
высотой h= 1.8 м. Количество этажей в здании -
2,с высотой этажа 3.3 м. в здании магазина имеется три входа - главный, эвакуационный,
и вход для разгрузки товаров. Справа от главного входа располагается пандус, с
уклоном 5%. В проекте реконструкции предусматривается надстройка второго этажа
из металлического каркаса с шагом 6х6, без изменения назначения здания (2-х
этажный магазин). Также проектом реконструкции предусматривается перепланировка
помещений, отслуживших свой срок коммуникаций, заменяя дверных и оконных
заполнений, замена материалов полов и отделки.
1.4 Конструктивное решение
Фундаменты реконструируемого здания - сборные ленточные и монолитные
столбчатые стаканного типа под колонны. Класс бетона В15. Серия фундаментных
блоков - ФБС 12.6.6 ГОСТ 13579-78. Фундаментные подушки серий ФЛ-8-12-4 и
ФЛ-6-12-4 ГОСТ 13580-85, под колоннами залегают 1Ф12.8-1 ГОСТ 24476-80.
Каркас 2-го этажа представляет собой металлическую раму с жесткими
узлами. Монолитный диск перекрытия создает горизонтальную диафрагму жесткости.
Стены наружные 2-го этажа выполнены из кирпича красного пустотелого КП-У 125/25
по [ ГОСТ 530-95] с утеплителем ISОVER ВЕНТИ.
Колонны выполнены из двутавра стального горячекатаного с параллельными
гранями полок [6]. 30К1 размером 296х300мм. Ригели - стальные горячекатаные
двутавры I30 размерами 300х135 мм.
Металлические конструкции - сталь марки С255 ГОСТ 27772-88.
Лестницы, площадки - сборные железобетонные площадки, железобетонные
ступени по металлическим косоурам серии 1.450-1.
Перекрытия, покрытия - монолитное по профилированному листу H75-750-0.9 75 мм.
Кровля -плоская рулонная из профлиста ГОСТ 24045-2010.
Водосток - внутренний, системы HUNTER.
Полы - керамическая плитка Atlas Cоncоrde Rus Land Beige 45 45*45 см. Состав полов рассмотрен в разделе 2.
Оконные блоки сделаны из поливинилхлоридных профилей по ГОСТ 30674-99.
Наружные двери - двупольные металлические по ГОСТ 24698-81*, внутренние -
из поливинилхлорида по ГОСТ 30970-2002.
Внутренняя отделка -керамическая плитка, масляная окраска, клеевая
побелка. Внутренние перегородки выполнены каркасными с облицовкой
гипсокартонными плитами. Перемычки - сборные железобетонные, серия 1.038.1-1.
Внешняя отделка - вентилируемый фасад облицован плитами по системе «Краспан».
Отмостка асфальтобетонная, шириной 100 см. Состав: асфальтобетон марки IV ГОСТ 9128-84 -30 мм,
гравийно-песчаная смесь 100 мм, утрамбованный грунт.
1.5 Теплотехнический расчет
Теплотехнический расчёт ограждающей конструкции выполнен
по СНиП 23-02-2003 «Тепловая защита зданий», СП 23-101-2004
«Проектирование тепловой защиты зданий»,
СНиП 23-01-99* «Строительная климатология», в программе ТеРеМОК 0.8.5 /
0118 © 2005-2015 Дмитрий Чигинский.
Определить требуемую толщину слоя в конструкции наружной стены в
общественном, административном или бытовом здании, расположенном в городе
Вологда (зона влажности - нормальная).
Расчетная температурой наружного воздуха в холодный период года, t_ext =
-32 °С.
Расчетная средняя температура внутреннего воздуха здания, t_int = 20 °С.
Средняя температура наружного воздуха отопительного периода, t_ht = -4.1
°С.
Продолжительность отопительного периода, z_ht = 231 сут. Нормальный
влажностный режим помещения и условия эксплуатации ограждающих конструкций - Б.
Коэффициент, учитывающий зависимость положения наружной поверхности
ограждающих конструкций по отношению к наружному воздуху, n = 1.
Коэффициент теплоотдачи наружной поверхности ограждающей конструкции, α_ext
= 10,8 Вт/(м²·°С).
Коэффициент теплоотдачи внутренней поверхности ограждающей конструкции, α_int
= 8.7 Вт/(м²·°С).
Нормируемый температурный перепад, Δt_n = 4.5 °С.
Нормируемое значение сопротивления теплопередаче, R_req = 2.87 м²·°С/Вт.
Заданные слои:
. Кирпич глиняный обыкновенный на цементно-песчаном растворе,
ρ = 1800 кг/м³;
Вт/(м·ºC); t=640 мм;
2. Минераловатные плиты ISОVER ВЕНТИ, ρ = 115 кг/м³;
Вт/(м·ºC).
Толщина искомого слоя, t = 73 мм.
Суммарная толщина конструкции, ∑t = 713 мм.
Принимаем толщину утеплителя 80 мм.
1.6 Инженерное оборудование
Водопровод реконструируемого здания подключен к существующей водопроводной
сети. Ввод водопровода представляет собой чугунные водопроводные трубы
диаметром 100 мм. Внутренние водопроводные сети полностью заменяются на новые
из стальных труб по ГОСТ 3262-62.
Канализация. Отвод сточных вод от санитарных приборов осуществляется
внутренней системой канализации через выпуски в дворовую сеть. Внутренняя
канализационная сеть полностью заменяется на новую из чугунных труб по ГОСТ
6942-80.
Электроснабжение объекта. Ввод в здание предусмотрен кабельным в
асбесто-цементных трубах (каждый кабель в свою трубу).Система заземления здания
TN-C-S. Аварийное освещение выполнено в тепловом узле и электрощитовой.
Ремонтное освещение напряжением 36В выполнено в тепловом узле и в
электрощитовой.
Отопление. Здание подключено к центральному отоплению города. Для
обогрева помещений используются конвекторы, установленные по ГОСТ 20849-94
Конвекторы отопительные. Технические условия. Трубопроводы системы отопления
(магистрали и стояки) запроектированы из полипропиленовых труб.
Молниезащита здания выполнена в виде специальной сетки с ячейками 6-10 м
с расположенными на ней заземляющими устройствами. В реконструируемом здании
использована молниезащита фирмы Оbо Bettermann.
.
РАСЧЕТНО-КОНСТРУКТИВНЫЙ РАЗДЕЛ
Здание имеет размеры в осях 20.4x32.76, конструктивная схема выполнена с продольными и поперечными
несущими стенами, в здании до реконструкции располагается магазин. В процессе
реконструкции производится надстройка 1-ого этажа из металлического каркаса с
шагом 6х6, без изменения назначения здания (2-х этажный магазин). Имеется
техподвал высотой h= 1,8 м, высота
этажа 3,3 м. Также проектом реконструкции предусматривается полная замена
оконных и дверных блоков и инженерного оборудования.
После реконструкции конструкции пола будут выполнены:
Рисунок 2.1 - Конструкция пола первого этажа
Рисунок 2.2 - Конструкция пола второго этажа
Рисунок 2.3 - Конструкция кровли
2.1 Проверочный расчет фундаментов
В основании реконструируемого здания залегают сборные ленточные фундаменты,
передающие нагрузку на грунт основания, и столбчатый стаканного типа под
колонны. Ширина существующей подошвы фундамента 0,8 м под несущими наружными
стенами, 0,6 м - под самонесущими наружными и 1,2х1,2 м - под колоннами.
Глубина заложения фундамента - 2,4 м.
Материал фундаментов: бетон класса В15. Здание по уровню ответственности
относится ко 2 уровню - нормальный уровень, поэтому коэффициент, учитывающий
уровень ответственности, γf равен 1 и в дальнейших расчетах учитываться не будет.
Для проверочного расчета фундамента выбираем 2 расчетных сечения:
-1- по наружной несущей стене;
-2 - по внутренней несущей колонне;
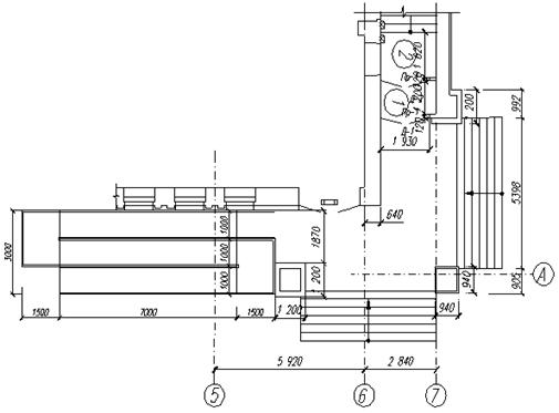
Сечения представлены на рисунке 2.4.
Рисунок
2.4 - Сечение 1-1 и сечение 2-2
2.1.1 Сбор нагрузок на покрытие и перекрытие
Таблица 2.1-Нагрузка от перекрытия 1-ого этажа, kH/м2
|
Наименование нагрузки
|
Нормативная нагрузка, кН/м
|
Расчетная нагрузка, кН/м
|
|
|
Постоянная
|
1. Конструкция пола: Керамическая плитка , t=22мм,
ρ=900 кг/м3
Клей «Плитонит В», t=8мм,
ρ=1800 кг/м3
ц/п стяжка , t=20мм,
ρ=1800 кг/м3
Пароизоляция t=6 мм,
ρ=700 кг/м3
Утеплитель URSA XPS NIII , t=150мм,
ρ=35 кг/м3
Железобетонная плита, tпривед.=110мм,
|
110 10-3 2500 (10)=2750Н/м22,751,13,025
|
|
|
|
|
2. Перегородки, tп=120мм
|
0,94
|
1,1
|
1,034
|
|
Итого:
|
gH =4,49
|
|
g=5,05
|
|
Временная
|
|
нагрузка от людей и оборудования: -полная -пониженная
|
4 1,4
|
1,2
|
4,8
|
|
Всего:
|
qn =8,49
|
|
q =9,85
|
, (2.1)
где
- толщина перегородки;
L -длина
перегородки на плите;
Нпом
- высота помещения;
.
Нагрузка
на 1 м2 перекрытия:
, (2.2)
где
Vпер - объем перегородок
-
плотность кирпичной кладки;
L - размер в
осях;
b - ширина плиты
перекрытия.
.
Таблица
2.2- Нагрузка от междуэтажного перекрытия, кH/м2
|
Наименование нагрузки
|
Нормативная нагрузка, кН/м
|
Расчетная нагрузка, кН/м
|
|
|
Постоянная
|
1. Конструкция пола: Керамическая плитка , t=22мм,
ρ=900 кг/м3
Клей «Плитонит В», t=8мм,
ρ=1800 кг/м3
ц/п стяжка , t=15 мм,
ρ=1800 кг/м3
2. Монолитное перекрытие по профнастилу, t=125мм,
ρ=2500 кг/м3 t=0,5мм,
ρ=7850 кг/м3
10-3
2500
(10)=3125 Н/м2
,5
10-3
7850
(10)=39,25
Н/м2
,125
,039
,1
,05
,44
|
0,04
|
|
|
|
|
3.Перегородки, tп=120мм
|
0,94
|
1,1
|
1,034
|
|
Итого:
|
gH =4,72
|
|
g=5,28
|
|
Временная
|
|
нагрузка от людей и оборудования: -полная -пониженная
|
4 1,4
|
1,2
|
4,8
|
|
Всего:
|
qn =8,72
|
|
q =10,08
|
Таблица 2.3-Нагрузка от кровли, кH/м2
|
Наименование нагрузки
|
Нормативная нагрузка, кН/м
|
Расчетная нагрузка, кН/м
|
|
|
Постоянная
|
1. Покрытие: Линокром ЭКП (2 слоя) , t=8мм,
ρ=600 кг/м3
ЦСП 2 слоя t=24 мм,
ρ=1100 кг/м3
Утеплитель URSA XPS ,
t=160 мм,
ρ=30 кг/м3
Пароизоляция 2слоя рубероида t=8мм,
ρ=600 кг/м3
Профлист Н75-750-0.9 t=0,9мм,
ρ=7850 кг/м3
Подливка бетонная В15 t=125мм,
ρ=2500 кг/м3
|
125 10-3 2500 (10)=3125Н/м23,1251,34,06
|
|
|
|
|
2. Балка [ 25
0,143*10/6
|
0,238
|
1,05
|
0,25
|
|
Ригель I30
0,465*10/6
|
0,776
|
1,05
|
0,81
|
|
Итого:
|
gH =4,62
|
|
g=5,7
|
|
Временная
|
|
Снеговая нагрузкаS0= =0.7·0.85·1·1·2.4=1.43 кН/м2
|
1,43
|
1,4
|
2
|
|
Всего:
|
qn =6,05
|
|
q =7,7
|
2.1.2 Сбор нагрузки по сечению 1-1
Полная нагрузка по сечению будет складываться:
) Нагрузка от покрытия и перекрытия постоянная:
- нормативное значение:
, (2.3)
где
,
,
, - расчетные нагрузки, соответственно, из таблиц 1,
2, 3;
n - число
междуэтажных перекрытий;
L - пролет.
расчетное
значение:
(2.4)
)
Нагрузка от кровли
, кН/м
(2.5)
Нормативное
значение: N2n= qтб1n l1/2=6,05∙6/2=18,15 кН/м;
Расчетное
значение: N2= qтб1 l1/2= 6,7∙6/2=20,1кН/м
3) нагрузка от наружной стены
В наружной стене имеются оконные проемы, что приводит к уменьшению
нагрузки на фундамент. Для определения коэффициента остекления вырезают
фрагмент стены, представленной на рисунке 8.
Рисунок 2.5- Фрагмент по фасаду
Коэффициент проемности:
(2.6)
нормативная
нагрузка от стены составляет:
, (2.7)
где
-высота стены существующей части;
-толщина
кирпичной кладки;
-погонный
метр;
-высота
стены надстраиваемой части;
-
плотность кирпичной кладки;
- толщина
утеплителя по теплотехническому расчету;
-
плотность утеплителя;
-коэффициент
проёмности;
-толщина
облицовки;
-плотность
облицовки;
- толщина
стены кирпичной кладки надстраиваемой части.

-
расчетное значение:
(2.8)
4)
Нагрузка от фундамента:
нормативное
значение:
; (2.9)
расчетное
значение:
; (2.10)
ИТОГО:
- нормативная нагрузка;
-
расчетная нагрузка;
2.1.3 Сбор
нагрузки по сечению 2-2
Полная нагрузка по сечению 2-2 суммируется из:
грузовая площадь представляет собой квадрат 6.0х6.0 м
1) постоянная нагрузка от перекрытий и покрытий:
(2.11)
(2.12)
2)Нагрузка от кровли определяется по формуле
(2.13)
Нормативное
значение: N2n= 6,05∙36=217,8 кН;
Расчетное
значение: N2= 7,7∙36=277,2кН.
)
Нагрузка от ригеля
(2.14)
4) Нагрузка
от колонны определяется по формуле
(2.15)
Нормативное
значение:
;
Расчетное
значение:
5) нагрузка от фундамента:
нормативное значение:
; (2.16)
-
расчетное
значение
(2.17)
.
ИТОГО:
- нормативная нагрузка:
расчетная
нагрузка:
Требуемая
ширина подошвы фундамента с учетом реконструкции будет определяться для 2-х
сечений по формуле:
, (2.18)
где Nn - нормативная нагрузка по сечению;
R0 -
расчетное сопротивление грунта.
по сечению 1-1.
<0.8 м,
следовательно,
усиление не требуется.
по
сечению 2-2
<1.44 м2,
усиление не требуется.
2.2 Расчет
осадки фундамента (по сечению 1 - 1)
Полученные значения ординат эпюры природного давления и вспомогательной
эпюры наносим на геологический разрез. Ординаты эпюры дополнительного давления
определяем по формуле ; значение
находим по табл. 1 приложения I [7].
Вычисление ведем в табличной форме.
Таблица 2.4 - Значения ординат эпюры дополнительных давлений
|
|
|
|
|
Слой основания
|
|
0 0,3 0,6 0,9 1,2 1,5 1,8 2,1 2,4 2,7 3 3,3 3,6 3,9 4,2 4,5
4,8 5,1 5,4 5,7 6 6,3 6,6 6,9 7,1
|
0 0,3 0,6 0,9 1,2 1,5 1,8 2,1 2,4 2,7 3 3,3 3,6 3,9 4,2 4,5
4,8 5,1 5,4 5,7 6 6,3 6,6 6,9 7,1
|
1 0,983 0,929 0,849 0,755 0,67 0,596 0,532 0,477 0,434
0,397 0,365 0,337 0,314 0,293 0,275 0,258 0,244 0,231 0,219 0,208 0,199 0,191
0,183 0,178
|
214 210 199 182 162 143 128 114 102 93 85 78 72 67 63 59 55
52 49 47 45 43 41 39 38
|
I II
|
Давление на границах пластов основания вычисляются интерполяцией.
Полученные значения ординат эпюры наносим на геологический разрез. В точке
пересечения эпюры дополнительных давлений со вспомогательной эпюры находим
нижнюю границу сжимаемой толщи. Так как пересечения нет, то Hc = 7,1 м. Сжимаемую толщу по высоте
разбиваем на слои таким образом, чтобы в пределах каждого слоя был грунт
одинаковой сжимаемости.
Определяем осадку каждого слоя:
см(2.19)
где
- b - безразмерный коэффициент равный 0,8;
szp,i - среднее значение доп. нормального напряжения в i-ом
слое грунта;
hi и Ei -
соответственно толщина и модуль деформации i-ого слоя
грунта;
n - число слоев,
на которое разбита сжимаемая толща основания в пределах Hакт.
Толщину
грунта ниже подошвы фундамента разбиваем на условные слои hi ,
соблюдая условие: hi
0,4b
=0,3м
Основание
на большую глубину сложено однородным грунтом - суглинком, поэтому при его
расчленении на элементарные слои не нужно учитывать границы между различными
инженерно-геологическими элементами szq,0 - вертикальное напряжение от собственного веса
грунта на уровне подошвы фундамента.(z=0)
к
Па,(2.20)
где
- gi -
удельный вес грунта расположенного выше подошвы;
hi - толщина
слоя.
Далее
определяем дополнительное (вертикальное) напряжение в грунте под подошвой
фундамента по формуле
,кПа,(2.21)
где
-Р- среднее давление под подошвой фундамента.
Вычисляем
ординаты эпюры природного давления и вспомогательной эпюры 0,2
:
на
поверхности земли:
0,2
;
Рисунок
2.6 - К расчёту осадки по методу элементарного суммирования:
-
эпюра природного давления грунта; 2 - эпюра дополнительного давления.
на
контакте I и II слоев (глубина 1,5 м):
0,2
Во
II слое (глубина 8,5 м):
0,2
Дополнительных вертикальных напряжений в грунте для различных глубин zi откладываемых от подошвы фундамента
определяем по формуле:
(2.22)
где
- a - коэффициент, принимаемый по табл. 1, приложение 1
[8] для ленточного фундамента.
Нижняя
граница сжимаемой толщи основания принимается на глубине z = Накт, где выполняется условие szp≈0.2×szq.
Под всеми осями осадка не превосходит предельное значение (s = 0.10м). Под высотной частью здания
относительная разность осадок (Ds/L)u осадки не превосходят значения ((Ds/L)u = 0.0036). Это
несколько выше рекомендованного (((Ds/L)u = 0.0024)).
Средняя
осадка
= 0.018м. согласно СП[8].
Осадка
I слоя:
Осадка
II слоя:
Полная
осадка фундамента:
что
допустимо, т. к. s < |s| = 10 см.
Геологические
испытания, проведенные на территории реконструируемого объекта, выявили
следующие инженерно-геологические элементы (ИГЭ):
насыпной
грунт (ИГЭ-1) - песок гравелистый, с включением гальки и строительного мусора
(современные технологические отложения). Вскрытая мощность - 1,5 м;
суглинок
легкий (ИГЭ-2), коричневый, полутвердый, моренный, с включением гальки, гравия
и валунов (среднечетвертичные ледниковые отложения Московского ледникового горизонта).
Вскрытая мощность - 8,5м.
Рисунок
2.7 - Инженерно-геологический разрез грунта
2.3 Расчет простенка первого этажа
Расчет выполняется в варианте здания со сборным перекрытием. Для расчета
принимается вертикальная полоса стены в осях соседних проемов. При выборе
простенка для расчета рекомендуется принимать простенок с минимальной площадью
сечения b * h и максимальной длиной грузовой полосы l. В здании с жесткой конструктивной
схемой такая полоса рас- считывается как вертикальная неразрезная балка.
Рисунок 2.8 - Конструктивная схема продольной стены
Для 1гоэтажа i=1
L=2 м
b=0,73
м
l=2.85м
lопир=0,25
м
hок=
1,8 м
hнадок=0,8
м
hподок
=0,7 м
h=0064
м
Рисунок 2.9 - Нагрузка на стену от перекрытия
Нормативные и расчетные значения нагрузок взяты из таблиц 2.2 и 2.3
Таблица 2.5 -Сбор нагрузок для простенка первого этажа
|
Вид нагрузки
|
Нормативное значение кН/м2
|
γf
|
Расчетное Значение, кН/м2
|
Грузовая площадь, м2
|
Нагрузка на простенок, кН
|
|
1
|
2
|
3
|
4
|
5
|
6
|
|
от кровли
|
|
постоянная
|
4,62
|
|
5,7
|
9,43
|
53,75
|
|
Временная снеговая
|
1,43
|
|
1
|
9,43
|
9,43
|
|
Итого от кровли:63,18
|
|
от междуэтажного перекрытия
|
|
постоянная
|
4,72
|
|
5,28
|
6,98
|
36,85
|
|
временная -полная -пониженная
|
4 1,4
|
|
4,8
|
6,98
|
33,5
|
|
Итого от перекрытия: 70,35
|
|
от наружной стены
|
|
а)собств. вес стены с учетом штукатурки
|
10
|
1,1
|
11
|
3,88
|
42,68
|
|
в)вес надоконного участка
|
10
|
1,1
|
11
|
1,46
|
16,06
|
|
Итого от наружной стены: 58,74
|
Грузовая площадь от кровли:
(2.23)
где
-грузовая площадь от кровли;
l-максимальная
длина грузовой полосы;
L-ширина
грузовой полосы;
Грузовая площадь от перекрытия:
(2.24)
где
-грузовая площадь от кровли;
l-максимальная
длина грузовой полосы;
L-ширина
грузовой полосы.
Грузовая площадь от собственного веса стены:
(2.25)
где
-грузовая площадь от собственного веса стены;
b-ширина
простенка;
bоk-ширина окна;
Hэт-
высота этажа;
hоk-высота окна.
(0,73+1,1)*3,3-1,2*1,8=3,88
Грузовая площадь надоконного участка:
(2.26)
где
-грузовая площадь от собственного веса стены;
b-ширина
простенка;
bоk-ширина окна;
hнадок-высота
надоконной части стены.
(0,73+1,1)*0,8=1,46
Нагрузка от собственного веса стены всех вышележащих этажей:
(2.27)
где
-нагрузка от собственного веса стены
всех вышележащих этажей;
-нагрузка от собственного веса стены;
n
-количество этажей;
-нагрузка от надоконной части стены.
Нагрузка от кровли и перекрытия:
(2.28)
где
-нагрузка от кровли и перекрытия;
-нагрузка от кровли;
-нагрузка от перекрытия;
От перекрытия над рассматриваемым этажом:
(2.29)
где Р1- нагрузка от перекрытия над рассматриваемым этажом.
Расчетная продольная сила:
(2.30)
где N - расчетная продольная сила.
Расчетный изгибающий момент
(2.31)
где М- расчетный изгибающий момент;
е1-эксцентриситет реакции.
где h-толщина простенка.
Рисунок 2.10 - Эпюры изгибающих моментов в простенках здания высотой 2
этажа
Расчетную высоту стены при определении коэффициента продольного изгиба
принимают как для конструкции с частично защемленными опорными сечениями
l0 =
0,9H, (2.32)
где l0-расчетная длина простенка;
Н - расстояние между ригелями по высоте в свету.
l0 =
0,9·2,84=2,55м
Рисунок 2.11- Расчетная схема полосы
Простенок первоначально принимается без пилястры. Толщина стены и ширина
простенка заданы. В последующих вариантах расчета возможно применение таврового
сечения простенка с пилястрой.
Для каждого из расчетных сечений рекомендуется следующая
последовательность расчета.
) Определяем площадь сечения и положение его центра тяжести.
(2.32)
где А- площадь сечения простенка.
(2.33)
где у - расстояние от центра тяжести сечения до наиболее сжатой грани
сечения
2) Вычисляем момент инерции и радиус инерции сечений в плоскости действия
момента:
, (2.34)
где I- момент инерции сечения.
(2.35)
3 ) Определяем по формуле расчетную длину простенка, а затем гибкость по
формулам
, (2.36)
где
- гибкость простенка по длине.
(2.37)
где
- гибкость простенка по высоте.
4) Определяем по табл. 18 [9] коэффициент продольного изгиба простенка в
целом при упругой характеристике кладки α = 1000 (см. табл. 15 [9]). φ=1
) Находим расчетные значения усилий N и Ng ,
M и Mg, а затем эксцентриситеты ео и еоg. N=192,27 кН , М= 17,59 кНм
) Определяем коэффициент mg, при толщине стены более 30 см
mg =1.
) Определяем расстояние от центра тяжести сечения до наиболее сжатой
грани сечения у=0,32м
) Вычисляем коэффициент w , учитывающий местный характер действия внецентренной
нагрузки по формуле:
(2.39)
где
и
- эксцентриситеты, вычисляются по формулам:
м (2.40)
м
м (2.41)
м
) Определяем площадь сжатой части расчетного сечения Ас.
(2.42)
(2.43)
где
и
- площади сжатых частей расчетного сечения.
Для дальнейших расчетов требуется определить величины минимальных
радиусов инерции сжатой части сечений простенка. В рассматриваемом случае
наименьшие радиусы инерции сжатой части следует определять в расчетных сечениях
ic1 иic 2.
10) Определяем размер hc
сжатой части, а затем ее момент инерции в плоскости действия изгибающего
момента.
=2(y-e0), м (2.44)
где hc- высота сжатой части.
hc1=2(0,32-0,038)=0,564
м
hc2=2(0,32-0,0037)=0,633
м
(2.45)
(2.46)
где
и
-моменты инерции в плоскости действия изгибающего момента.
(2.47)
(2.48)
11) Определяем гибкость сжатой части сечения простенка в пределах
однозначной эпюры моментов
(2.49)
(2.50)
φc1=1 , φc2=1
) Вычисляют требуемое расчетное сопротивление кладки:
≤ [
], (2.51)
где
- требуемое сопротивление кладки;
[
]- расчетное сопротивление кирпичной
кладки, определяемое по [9].
≤1,3МПа
≤1,3МПа
Прочность простенка в обоих расчетных случаях обеспечена, т.к. [R]= 1,3МПа. Марка кирпича - 75, марка
раствора -100.
. РАЗДЕЛ
ТЕХНИЧЕСКОЙ ЭКСПЛУАТАЦИИ ЗДАНИЯ
3.1 Разработка рекомендаций по техническому обслуживанию и ремонту
здания
Контроль за техническим состоянием здания в течение всего срока
эксплуатации осуществляется при проведении осмотров здания [10].
Целью осмотров считается формирование возможностных факторов появления
дефектов и выработка мер по их устранению. Плановые осмотры необходимо
проводить:
общие, в процессе которых ведется осмотр здания в целом. Осмотр
выполняется 2 раза в год весной и осенью до начала отопительного периода;
частичные осмотры, учитывающие осмотр отдельных элементов здания и
инженерного оборудования.
Частичные осмотры производятся в соответствии с таблицей 3.1.
Таблица 3.1 - Сроки проведения частичных осмотров
|
Элементы и помещения здания и объекта
|
Периодичность осмотров, мес.
|
Примечание
|
|
1
|
2
|
3
|
|
Кровля
|
3-6
|
|
|
Каменные конструкции
|
12
|
|
|
Железобетонные конструкции
|
12
|
|
|
Стальные закладные детали с антикоррозийной защитой
|
Через 15 лет, затем через каждые 3 года
|
|
|
Вентиляционные каналы
|
12
|
|
|
Внутренняя и наружная отделка
|
6-12
|
|
|
Полы
|
12
|
|
|
Перила и ограждающие решетки на окнах лестничных клеток
|
6
|
|
|
Системы водопровода, канализации, горячего водоснабжения
|
3-6
|
|
|
Системы центрального отопления: в квартирах и основных
функциональных помещениях объектов коммунального и социально-культурного
назначения на чердаках, в подвалах (подпольях), па лестницах
|
3-6 2
|
Осмотр проводится в отопительный период
|
|
Электрооборудование: -скрытая электропроводка и
электропроводка в стальных трубах -светильники во вспомогательных помещениях
(на лестницах, в вестибюлях и пр.)
|
6 3
|
|
|
-лестницы, тамбуры, вестибюли, подвалы, чердаки и прочно
вспомогательные помещения объектов коммунального и социально-культурного
назначения
|
12
|
|
После снегопадов, ураганных ветров и ливней выполняют внеочередной осмотр
элементов зданий, а также в случае аварий на внешних линиях оборудования,
нарушающих требования стандартной эксплуатации.
При осмотрах производят зрительный контроль и контроль с помощью
специальных инженерного оборудования.
Перечень конструкций, элементов, и технических систем здания, доступных
приборному контролированию в ходе плановых и дополнительных осмотров здания,
необходимо осуществлять согласно таблице 3.2.
Таблица 3.2 - Инструментальный контроль элементов здания
|
Конструкция и измеряемый параметр
|
Объем измерений
|
Периодичность
|
|
1
|
2
|
|
Отмостка
|
|
Уклон отмостки, %.
|
По периметру здания в пяти местах по каждой стороне фасада.
|
|
|
Основания и фундаменты
|
|
Деформации оснований фундаментов.
|
По периметру здания.
|
По мере необходимости. Для жилых зданий, возведенных в особых
условиях
|
|
|
(вечномерзлые грунты, закарстованные территории и др.),
периодичность устанавливается проектной организацией, но не реже 1 раза в
год.
|
|
Стены
|
|
Ширина раскрытия трещин.
|
Осмотр всего фасада с измерением наиболее заметных
повреждений.
|
|
Подвал (техподполье)
|
|
Температура и влажность воздуха.
|
В пределах одной секции
|
Проверяется не реже 1 раза в год
|
|
Лестничная клетка
|
|
Температура воздуха
|
В одной лестничной клетке на площадках первого, среднего и
последнего этажей.
|
Срок проведения проверки 1 раз в год
|
|
Деревянные конструкции и детали
|
|
Влажность древесины, степень поражения дереворазрушающим и
грибками.
|
В одном из помещений или узлов конструкции подвергшихся
длительному увлажнению.
|
В период проведения сплошного обследования жилищного фонда.
|
|
Система отопления
|
|
Температура наружного воздуха. Температура воды в подающем
трубопроводе тепловой сети. То же, в обратном трубопроводе Температура
воды в подающем трубопроводе системы отопления.
|
В районе здания. На узле теплового ввода (теплового
пункта) до смесительного устройства (при его наличии) или после вводной
задвижки . На узле теплового ввода (теплового пункта) после смесительного
устройства (при его наличии) или перед вводной задвижкой. На узле теплового
ввода (теплового пункта) после теплового пункта стояках.
|
2 раза в год, при весеннем и осеннем (при пробном пуске)
осмотрах Требует проверки 2 раза в год Сроки проведения проверки - 2
раза в год Проверяется не реже 2 раза в год
|
|
Свободный напор у водоразборных кранов
|
На узле ввода
|
То же
|
|
Качество тепловой изоляции разводящей и циркуляционной
магистралей, стояков и теплотехнического оборудования
|
В квартирах верхнего этажа на наиболее удаленных от
теплового пункта стояках На узле теплового ввода (теплового пункта), чердак,
техническое подполье (подвал)
|
Требует проверки 2 раза в год
|
|
То же, в обратном трубопроводе Температура поверхности
отопительных стояков у оснований (верхнего и нижнего). Температура
поверхности отопительных приборов температура поверхности подводок (подающих
и об ратных) к отопительным приборам.
|
На узле теплового ввода (теплового пункта) до смесительного
устройства (при его наличии) Все стояки. По два замера с интервалом 5 мин.
Проверка всех стояков по два замера через 5 минут
|
Проверяется не реже 2 раза в год 2 раза в год, при
весеннем и осеннем осмотрах Требует проверки 2 раза в год
|
|
Система холодного водоснабжения
|
|
Давление в подающем трубопроводе. Свободный напор у
водоразборных кранов
|
На узле ввода. В квартирах верхнего этажа на наиболее
удаленных от ввода стояков
|
2 раза в год Проверяется не реже 2 раза в год
|
|
Система горячего водоснабжения
|
|
Температура воды в подающей магистрали тепловой сети То
же, в обратном трубопроводе Температура горячей воды, подаваемой на
водоразбор
|
В местном тепловом пункте здания. Четыре замера с
интервалом 1 ч То же На выходе из водонагревателей II ступени или на вводе в здание
|
2 раза в год, при весеннем и осеннем (при пробном пуске)
осмотрах. Сроки проведения проверки - 2 раза в год Проверяется не реже 2
раза в год
|
|
Температура циркуляционной воды. Температура сливаемой воды
из водоразборных кранов.
|
То же, у нижних оснований циркуляционных стояков.
Контрольные квартиры и квартиры на наиболее удаленных от ввода в здание.
|
Проверка 2 раза в год То же, а в последующие годы 1 раз в
год.
|
В ходе эксплуатации производятся следующие виды работ по содержанию
здания:
работы, выполняемые при проведении технических осмотров и обходов
отдельных элементов и помещений зданий:
устранение незначительных неисправностей в системах отопления, канализации,
водопровода и электротехнических устройств
настройка и регулировка систем вентиляции, систем механического
управления инженерным оснащением;
промывание и очищение водопроводных кранов;
контроль единства гидроизоляционного покрытия плоской кровли, осмотр
торгового оснащения ( таких как стеллажи и витрины); заземления слоя
электрокабеля, изоляция проводов;
осмотр систем инженерной охраны объектов на площади торгового здания,
пожарной сигнализации и средств тушения.
Деятельность, производимая при подготовке зданий к эксплуатации в
весенне-летний период:
промывание и опрессовывание системы центрального отопления и
восстановление просевших отмосток.
Работы, выполняемые при подготовке зданий к эксплуатации в осенне-зимний
период:
утепление дверных и оконных проемов, трубопроводов и дымовентиляционных
каналов;
проверка и испытание систем центрального отопления;
Работы, выполняемые при проведении частичных осмотров:
замена прокладок в водопроводных кранах, небольшой ремонт изоляции и
устранение неисправностей электропроводки;
укрепление расшатавшихся санитарно-технических приборов, устройств в
местах их присоединения к трубопроводу;
замена розеток, выключателей, неисправных фонарей внешнего освещения;
осмотр холодильного оборудования;
устранение неисправностей полов торговых залов и подсобных помещений
(замена отдельных плиток, заделка трещин, затирка швов).
Прочие работы:
подготовка здания к праздничным дням;
уход за зелеными насаждениями на территории здания и своевременное
удаление снега, наледей и различного мусора с кровли;;
уборка торговых, подсобных помещений и прилежащей территории;
вывоз мусора из здания.
3.1.1 Проведение текущих и капитальных ремонтов
Проведение текущих и капитальных ремонтов для реконструированного здания
рекомендовано согласно таблицы 3.3:
Таблица 3.3 - Минимальная продолжительность эффективной эксплуатации
зданий
|
Виды жилых и общественных зданий по материалам основных
конструкций
|
Продолжительность, лет
|
|
до постановки на текущий ремонт
|
до постановки на кап. ремонт
|
|
1
|
2
|
3
|
|
Полносборные крупнопанельные, блочные, со стенами из
кирпича, естественного камня и т.п., с железобетонными перекрытиями и
нормальными условиями эксплуатации (жилые дома и здания с аналогичным
температурно-влажностным режимом основных функциональных помещений).
|
3-5
|
15-20
|
3.1.2 Текущий ремонт здания
Продолжительность проведения текущего ремонта определяется по таблице 3.4
с учётом площади здания после реконструкции, которая составляет 542,26 м2.
Таблица 3.4 - Укрупненные нормативы продолжительности
текущего ремонта
|
Вид текущего ремонта
|
Единица измерения
|
Прод-сть,
дн
|
Прод-сть текущего ремонта, дн
|
|
Плановый
|
1000 м2 общей площади
|
22
|
122
|
|
Подготовка к эксплуатации в весенне-летний период (с учетом
наладочных работ)
|
То же
|
5
|
5
|
|
Подготовка к эксплуатации в зимний период
|
То же
|
8
|
8
|
В перечень работ при капитальном ремонте отдельных конструкций и
инженерного оборудования здания входят согласно [11]:
Фундаментов и стен подвальных помещений:
заделка и расшивка стыков, швов, трещин,
восстановление облицовки
фундаментных стен со стороны подвальных помещений,
цоколей;
восстановление отдельных гидроизоляционных участков
стен подвальных помещений;
смена отдельных участков ленточных фундаментов;
устройство (заделка) вентиляционных продухов,
патрубков;
ремонт входов в техническое подполье;
замена отдельных участков отмосток по периметру
зданий;
герметизация вводов в подвальные помещения и
технические;
установка маяков на стенах для наблюдения за
деформациями.
Стен:
заделка трещин, расшивка швов, восстановление
облицовки и перекладка отдельных участков площадей до 2 м кирпичных
стен;
пробивка (заделка) отверстий, гнезд, борозд;
восстановление отдельных простенков, перемычек,
карнизов;
постановка на раствор отдельных выпавших камней;
утепление промерзающих участков стен в отдельных помещениях;
устранение сырости, продуваемости;
прочистка и ремонт вентиляционных каналов и вытяжных
устройств.
Перекрытий:
временное усиление перекрытий;
заделка швов в стыках сборных железобетонных
перекрытий;
заделка выбоин и трещин в железобетонных конструкциях;
восстановление защитного слоя железобетонных
перекрытий.
Крыши:
все виды работ по устранению неисправностей стальных
кровель из штучных материалов (кроме полной замены покрытия), включая узлы
примыкания к конструкциям покрытия парапетов, колпаки и зонты над трубами и пр.
места проходов через кровлю стояков и т. д;
укрепление и замена водосточных труб и мелких покрытий
архитектурных элементов по фасаду;
укрепление, замена парапетных решеток, пожарных
лестниц, стремянок, гильз ограждений крыши, устройство заземления, анкеров,
радио- и телеантенн и др.;
замена или ремонт выходов на крышу, слуховых окон и
специальных люков;
- очистка кровли от снега и наледи.
Оконных и дверных заполнений, светопрозрачных
конструкций:
смена, восстановление отдельных элементов, частичная
замена оконных, дверных витражных или витринных заполнений (деревянных,
металлических);
постановка доводчиков, пружин, упоров и прочее;
смена оконных и дверных приборов;
замена разбитых стекол, стеклоблоков;
врезка форточек.
Лестниц, крылец, козырьков над входами в подъезд:
заделка выбоин, трещин ступеней и площадок;
замена отдельных ступеней, проступей, подступенков;
частичная замена и укрепление металлических перил;
восстановление или замена отдельных элементов крылец;
восстановление или устройство зонтов над входами в подъезды, подвалы и на
балконы верхних этажей;
частичная или полная замена поручней лестничных
ограждений;
ремонт входной группы (входной блок, тамбур) ежегодно.
Полов:
- замена отдельных участков покрытия полов;
заделка выбоин, трещин в бетонных полах и основаниях
под полы;
Внутренней и наружной отделки отделки:
все виды штукатурно-малярных работ в помещениях;
восстановление участков штукатурки и плиточной
облицовки.
укрепление или снятие с фасада угрожающих падением
архитектурных деталей, отдельных кирпичей;
восстановление домовых знаков и наименований улиц.
Водопровода и канализации, горячего водоснабжения
(внутридомовые системы):
уплотнение соединений, устранение течи, утепление,
укрепление трубопроводов, смена отдельных участков трубопроводов, фасонных
частей, сифонов, трапов, ревизий; восстановление разрушенной теплоизоляции
трубопроводов, гидравлическое испытание системы, ликвидация засоров, прочистка
дворовой канализации, дренажа;
смена отдельных водоразборных кранов, смесителей,
душей, запорной арматуры;
замена отдельных участков и удлинение водопроводных
наружных выпусков для поливки дворов и улиц;
замена внутренних пожарных кранов;
прочистка дворовой канализации, дренажа;
антикоррозийное покрытие, маркировка;
- Ремонт или замена регулирующей арматуры;
промывка систем водопровода, канализации;
замена контрольно-измерительных приборов;
выполнение пусконаладочных и наладочных работ.
Электротехнических и слаботочных устройств:
замена неисправных участков электрической сети здания,
вышедших из строя выключателей, светильников, предохранителей и приборов учета;
- выполнение пусконаладочных и наладочных работ.
Внешнего благоустройства:
восстановление разрушенных тротуаров, проездов,
дорожек и площадок.
Прочие работы:
укрепление и устройство козырьков над входами в
здание;
укрепление и установка домовых знаков.
3.1.3 Капитальный ремонт здания
Капитальный ремонт подразделяется на 2 вида:
комплексный;
выборочный.
Минимальные сроки эксплуатации конструкций и
инженерного оборудования представлены в таблице 3.5.
Таблица 3.5 - Минимальная продолжительность эксплуатации конструкций и
продолжительность эксплуатации до капитального ремонта
|
Элементы зданий
|
Минимальный срок эксплуатации в годах
|
Продолжительность эксплуатации до кап.ремонта в годах
|
|
А. Конструктивные элементы и внутренняя отделка зданий
|
|
1.Фундаменты-ленточные из сборных блоков по ГОСТ 13579-78
|
150
|
50
|
|
2. Стены - из керамического кирпича
|
150
|
40
|
|
3. Перекрытия железобетонные монолитные по профлисту
|
150
|
80
|
|
4. Полы -из керамической плитки по бетонному основанию
-бетонные
|
80 40
|
60 40
|
|
5. Кровля: - рулонная плоская - система водоотвода: система
HUNTER
|
30÷35 12
|
10÷15 5
|
|
6. Перегородки- армокирпичные оштукатуренные
|
60
|
60
|
|
7. Лестницы сборные ж/б по металлическим косоурам
|
100
|
60
|
|
8.Окна и двери -Оконные заполнения: -Дверные заполнения:
входные внутренние двери
|
40 40 50
|
30 30 35
|
|
9. Внутренние отделочные работы: облицовка керамическими плитками
облицовка водными составами в помещениях окраска безводными составами стен,
потолков, полов радиаторов, трубопроводов
|
30 3 5 3
|
30 2 2 3
|
|
10. Отделка фасадов здания - Система КРАСПАН
|
20
|
10
|
|
Б.Инженерное оборудование здания
|
|
11. Водопровод и канализация: -трубопроводы чугунные (канализация) -водоразборные
краны -трубопроводы оцинкованные (водопровод) -туалетные краны -умывальники
керамические -унитазы керамические -задвижки и вентили из чугуна -водомерные
узлы
|
40 15 30 5 20 15 8 15
|
30 5 25 5 10 10 8 15
|
|
12. Центральное отопление, горячее водоснабжение: нагревательные приборы, радиаторы
трубопроводы горячей воды изоляция трубопроводов вентили и пробковые краны из
латуни трубопроводы (стояки) трубопроводы (магистрали) задвижки вентили
|
40 30 10 15 30 20 10 10
|
35(25) 15 10 12 25 12 8 8
|
|
13. Вентиляция: вытяжные каналы
|
30
|
30
|
|
14. Электрооборудование: электропроводка скрытая вводно-распределительные
устройства внутренние сети при скрытой проводке сеть освещения помещений
производственно-технического назначения
|
30 30 30 10
|
20 20 15 10
|
В процессе проведения капитального ремонта магазина будут выполняться
следующие виды работ:
- обследование торгового здания и изготовление
проектно-сметной документации (независимо от периода проведения ремонтных
работ);
- ремонтно-строительные работы по смене,
восстановлению или замене элементов зданий (кроме полной замены каменных и
бетонных фундаментный несущих стен и каркасов);
- утепление здания (работы по улучшению теплозащитных
свойств ограждающих конструкций, устройство оконных заполнений с тройным
остеклением);
- замена внутриквартальных инженерных сетей;
установка приборов учета расхода тепловой энергии на
отопление и горячее водоснабжение, расхода холодной и горячей воды на здание;
- авторский надзор проектных организаций за
проведением капитального ремонта здания с полной или частичной заменой перекрытий;
ремонт встроенных помещений в здании.
3.2 Разработка мероприятий для маломобильных групп населения
Увеличение качества архитектурной среды достигается
при соблюдении доступности, безопасности, удобства и информативности зданий для
нужд инвалидов и других маломобильных групп населения без ущемления
соответствующих прав и возможностей других людей, находящихся в этих зданиях.
По степени значимости эти критерии имеют следующий
порядок приоритетов в соответствии с [12]:
доступность;
безопасность;
информативность;
комфортность (удобство).
Критерий доступности включает требования:
свободного движения по коммуникационным маршрутам,
помещениям;
достижения места целевого назначения или обслуживания
и пользования предоставленными возможностями;
способности пользоваться зонами отдыха, ожидания и
сопутствующего обслуживания.
Под безопасностью подразумевается формирование
условий проживания, посещения зоны обслуживания или труда без риска быть
травмированным или причинить вред своему имуществу или другим людям.
Главными условиями критерия безопасности считаются:
вероятность исключения травм, повреждений, увечий,
утомления и тому подобное из-за свойств архитектурной среды зданий;
возможность оперативного распознавания и реагирования
на места и зоны риска;
предупреждение покупателей о зонах, показывающих
возможную угрозу;
пожарная безопасность.
Информативность гарантирует разностороннюю вероятность
своевременного получения, осознания данных и надлежащего реагирования на них.
Требования критерия информативности включают в себя:
применение средств информирования, определенных
отличительными чертами разных групп потребителей;
своевременное распознавание ориентиров в архитектурной
среде общественных зданий;
возможность правильной ориентации в различное время
суток и обладанием непрерывной информации на всем пути следования;
Расположение и характер выполнения компонентов
информационного обеспечения должны учитывать:
расстояние, с которого сообщение может быть эффективно
воспринято;
четкая форма и высококонтрастность, а при необходимости
- рельефность изображения;
соответствие используемых символов или пластических
способов общеустановленному значению;
исключение помех восприятию информационных средств
(бликование указателей, слепящее освещение и тому подобное).
Уровень комфортности архитектурной среды в
проекте характеризуется как с физической, так и с психологической точки зрения.
Критерий комфортности (удобства) включает такие
основные требования:
предоставление своевременной возможности отдыха,
условий для восполнения усилий, затраченных на движение и получение услуги;
снижение времени и усилий на приобретение нужной
информации.
В реконструируемом здании необходимо предусмотреть следующие требования,
обеспечивающие комфортное пребывание маломобильных групп населения [13].
Автостоянки для инвалидов:
на индивидуальных автостоянках на участке около или внутри зданий
учреждений обслуживания следует выделять 10 % мест (но не менее одного места)
для транспорта инвалидов, в том числе 5 % специализированных мест для
автотранспорта инвалидов на кресле-коляске из расчета: до 100 мест - 5%, но не
менее одного места, согласно [13]. Инвалиды пользуются местами для парковки
специальных автотранспортных средств бесплатно;
выделяемые места должны обозначаться знаками, установленными правилами
дорожного движения;
места для личного автотранспорта инвалидов желательно размещать вблизи
входа в предприятие или в учреждение, доступного для инвалидов, но не далее 50
м;
размеры парковочных мест, расположенных параллельно бордюру, должны
обеспечивать доступ к задней части автомобиля для пользования пандусом или
подъемным приспособлением;
пандус должен иметь блистерное покрытие, обеспечивающее удобный переход с
площадки для стоянки на тротуар. В местах высадки и передвижения инвалидов из
личного автотранспорта до входов в здания должно применяться нескользкое
покрытие.
Рис.3.1 Габариты зоны стоянки автомашин инвалидов
В местах перепада уровней, превышающих 4 см, между
горизонтальными участками пешеходных путей или пола в зданиях и сооружениях
следует предусматривать устройство пандусов и лестниц. На всем протяжении
пешеходного пути лестницы должны быть продублированы пандусами. В
исключительных случаях допускаются винтовые пандусы. В начале и конце каждого
подъема следует устраивать горизонтальные площадки шириной не менее ширины
пандуса и длиной не менее 1,4 - 1,5 м. Максимально допустимый уклон пандуса 15
% (предел - 18 %). В социально-значимых объектах и в безальтернативных случаях,
когда доступ инвалидам на колясках должен быть обеспечен в обязательном порядке
, возможно устройство пандуса с большим уклоном. Тогда в середине такого
пандуса должны быть обязательно выполнены ступеньки на ширину 28 - 30 см для
сопровождающего.
По внешним (не примыкающим к стенам) боковым краям
пандуса и горизонтальных площадок должны быть предусмотрены бортики высотой не
менее 0,05 м для предотвращения соскальзывания коляски. По обеим сторонам
пандуса должны устанавливаться ограждения с поручнями на высоте 0,7 и 0,9 м.
Для детей дошкольного возраста поручень располагается на высоте 0,5 м. Длина
поручней должна быть больше длины пандуса с каждой стороны не менее, чем на 0,3
м. Рекомендуемый диаметр сечения поручня 4 см, но не менее 3-х и не больше - 5.
Поверхность поручней пандусов должна быть непрерывной по всей длине и строго
параллельна поверхности самого пандуса с учетом примыкающих к нему
горизонтальных участков. Для обеспечения доступности входа в здание инвалидов и
маломобильных групп населения высокие ступени лестницы дублируются пандусами.
Если лестница состоит всего из 2 - 3-х ступенек, то можно выполнить сплошную
заливку части лестницы в виде пандуса без сохранения внутренних ступенек.
Рисунок 3.2 - Примеры реконструкции входных площадок: 1-боковой пандус;
2,3- центральный пандус
В здании после реконструкции установлен трехпролетный пандус, с уклоном
5% у главного входа в здание.
Рисунок 3.3 - Входная группа с пандусом в реконструируемом здании
Кнопка вызова на входе устанавливается в случае реконструкции действующих
зданий и сооружений, когда нет технической возможности обеспечить свободный
доступ инвалидам на коляске, то есть убрать ступеньки на входе путем понижения
уровня пола или построить нормативный пандус, съезд. Кнопка вызова
устанавливается на высоте 0,85 до 1 м от уровня земли и должна иметь свободный
доступ для инвалида-колясочника. Месторасположение кнопки обозначается
знаком-символом международного образца.
Рис.3.4 - Символ доступности для инвалидов
Лестницы общественно-важных объектов (торговых
центров, аптек и тому подобное), которые посещают все категории граждан,
обязаны быть оборудованы тремя уровнями поручней на высоте 0,5 - 0,7 - 0,9 м.
Лестничные поручни размещаются по всей длине лестничного марша и должны иметь с
обеих сторон участки, выходящие за пределы длины лестничного марша внизу и
вверху не менее, чем на 0,03 м [14]. Ступени лестниц на пути следования
маломобильных групп населения и инвалидов должны быть глухими, ровными, без
выступов и с шероховатой поверхностью.
Для слепых и слабовидящих рекомендуется контрастная
окраска ступеней - светлые проступи и темные подступеньки.
При устройстве съездов с тротуара на транспортный проезд уклон должен
быть не более 1:12, а около здания и в затесненных местах допускается
увеличивать продольный уклон до 1:10 на протяжении не более 10 м.
Бордюрные пандусы на пешеходных переходах должны полностью располагаться
в пределах зоны, предназначенной для пешеходов, и не должны выступать на
проезжую часть. Перепад высот в местах съезда на проезжую часть не должен
превышать 0,015 м [13].
Покрытие пешеходных дорожек, тротуаров и пандусов
должно быть из твердых материалов, ровным, шероховатым, без зазоров, не
создающим вибрацию при движении, а также противоскользящими.
Ребра дренажных решеток, устанавливаемых на путях движения маломобильных
групп населения, должны располагаться перпендикулярно направлению движения и
вплотную прилегать к поверхности. Просветы ячеек решеток должны быть не более
0,013 м шириной. Диаметр круглых отверстий в решетках не должен превышать 0,018
м. Дренажные решетки следует размещать вне зоны движения пешеходов.
Требования к помещениям и их элементам[15]:
входная площадка при входах, доступных МГН, должна иметь: навес,
водоотвод. Размеры входной площадки при открывании полотна дверей наружу должны
быть не менее 1,4×2,0 м или 1,5×1,85
м. Размеры входной
площадки с пандусом не менее 2,2×2,2 м;
входные двери должны иметь ширину в свету не менее 1,2 м.
в тамбурах, лестничных клетках и у эвакуационных выходов не допускается
применять зеркальные стены (поверхности), а в дверях - зеркальные стекла;
пути движении к помещениям, зонам и местам обслуживания внутри здания
следует проектировать в соответствии с нормативными требованиями к путям
эвакуации людей из здания.
Ширина пути движения (в коридорах, галереях и т.п.) должна быть не менее:
при движении кресла-коляски в одном направлении 1,5 м;
при встречном движении 1,8 м.
В здании должен быть как минимум один вход доступный для маломобильных
групп населения, который должен быть обозначен знаком доступности. Дверь должна
открываться в сторону, противоположную от пандуса; ширина дверного проема
должна быть не менее 90 см.
Двери в здании и помещения на путях движения не должны иметь порогов, а
при необходимости их устройства, высота порога не должна превышать 2,5 см.
Визуальная информация для инвалидов по зрению, согласно [15], должна быть
выполнена крупным (высота прописных букв не менее 7,5 см) рельефно-контрастным
шрифтом (на белом или жёлтом фоне) и продублирована шрифтом Брайля. Размеры
цифр должны быть, не менее: ширина - 0,01 м, высота - 0,0 15 м, высота рельефа
цифр - не менее 0,002 м.
Звуковая информация для инвалидов по слуху должна быть продублирована на
светодинамических табло или других средствах вывода оперативной информации.
4. Научно-исследовательская работа
.1 Разработка мероприятий по наружному утеплению стен
.1.1 Причины ухудшения теплозащитных свойств наружных стен зданий
Эксплуатация жилых домов с пониженными теплозащитными свойствами
ограждающих конструкций:
ухудшает условия пребывания людей в помещениях;
требует дополнительного расхода тепла.
Промерзание наружных стен наблюдается в зданиях:
кирпичных;
крупноблочных;
крупнопанельных;
монолитных.
Предпосылки ухудшения теплозащитных качеств кирпичных стен:
избыток объемной массы кирпича в сравнении с расчетными значениями;
несоблюдение технологического процесса кладки (в особенности в зимний
период);
невысокая морозоустойчивость внешнего слоя кладки;
присутствие в кирпиче известковых включений;
использование низкокачественного раствора и изделий;
4.1.2 Пути повышения теплозащитных свойств наружных стен при
реконструкции здания
Проблема промерзания стен решается путем укладки дополнительной теплоизоляции.
Благодаря этому повышается сопротивление теплопередачи стены до величины, при
которой не происходит выпадения конденсата водяных паров.
В соответствии с [16] выполнен теплотехнический расчет, который показал
недостаточность теплоизоляционных свойств существующей конструкции, в процессе
реконструкции будет выполнено наружное утепление стен.
В выпускной квалифицированной работе в качестве наружного утепления стен
используется устройство навесного вентилируемого фасада системы КРАСПАН. Фасады
этого типа представляют собой конструкцию, в которой между утеплителем и
защитной облицовкой расположена вентилируемая воздушная прослойка. Благодаря
такой воздушной прослойке влага не задерживается в толще утеплителя, а
удаляется из нее восходящим потоком воздуха, что оставляет утеплитель сухом
состоянии и сохраняет высокие теплозащитные качества.
Наружное утепление стен выполняется по конструкции, представленной на
рисунке 4.1.
Рисунок 4.1 - Устройство навесного вентилируемого фасада системы КРАСПАН;
1-ветрозащитная пленка; 2- вертикальный профиль; 3- уплотнительная лента; 4-
фасадная заклепка; 5- крепитель утеплителя; 6- утеплитель; 7-анкерный
крепитель; 8- подвижный кронштейн
До реконструкции была выполнена кирпичная конструкция наружной стены из
кирпича М75 толщиной 640 мм.
4.1.3 Сравнение утеплителей для наружной стены
Для сравнения берем два вида утеплителей: URSA GEО Фасад и ISОVER ВЕНТИ. Произведём теплотехнический расчёт каждого
утеплителя.
Теплотехнический расчет утеплителя URSA GEО Фасад.
Теплотехнический расчёт ограждающей конструкции выполнен
по СНиП 23-02-2003 «Тепловая защита зданий», СП 23-101-2004
«Проектирование тепловой защиты зданий».
СНиП 23-01-99* «Строительная климатология», в программе ТеРеМОК 0.8.5 /
0118 © 2005-2015 Дмитрий Чигинский.
Определить требуемую толщину слоя в конструкции наружной стены в
общественном, административном или бытовом здании, расположенном в городе
Вологда (зона влажности - нормальная).
Расчетная температурой наружного воздуха в холодный период года, t_ext =
-32 °С.
Расчетная средняя температура внутреннего воздуха здания, t_int = 20 °С.
Средняя температура наружного воздуха отопительного периода, t_ht = -4.1
°С.
Продолжительность отопительного периода, z_ht = 231 сут.
Нормальный влажностный режим помещения и условия эксплуатации ограждающих
конструкций - Б.
Коэффициент, учитывающий зависимость положения наружной поверхности
ограждающих конструкций по отношению к наружному воздуху, n = 1.
Коэффициент теплоотдачи наружной поверхности ограждающей конструкции, α_ext
= 10,8 Вт/(м²·°С).
Коэффициент теплоотдачи внутренней поверхности ограждающей конструкции, α_int
= 8.7 Вт/(м²·°С).
Нормируемый температурный перепад, Δt_n = 4.5 °С.
Нормируемое значение сопротивления теплопередаче, R_req = 2.87 м²·°С/Вт.
Заданные слои:
кирпич глиняный обыкновенный на цементно-песчаном растворе,
ρ = 1800 кг/м³;
Вт/(м·ºC); t=640 мм;
-минераловатные плиты URSA GEО Фасад, ρ = 85 кг/м³;
Вт/(м·ºC).
Толщина искомого слоя, t = 94 мм.
Суммарная толщина конструкции, ∑t = 734 мм.
Принимаем толщину утеплителя 100 мм.
Теплотехнический расчет утеплителя ISОVER ВЕНТИ.
Теплотехнический расчёт ограждающей конструкции выполнен по СНиП
23-02-2003 «Тепловая защита зданий», СП 23-101-2004 «Проектирование тепловой
защиты зданий», СНиП 23-01-99* «Строительная климатология», в программе ТеРеМОК
0.8.5 / 0118 © 2005-2015 Дмитрий Чигинский.
Определить требуемую толщину слоя в конструкции Наружной стены в
Общественном, административном или бытовом здании, расположенном в городе
Череповец (зона влажности - Нормальная).
Расчетная температурой наружного воздуха в холодный период года, t_ext =
-32 °С.
Расчетная средняя температура внутреннего воздуха здания, t_int = 20 °С.
Средняя температура наружного воздуха отопительного периода, t_ht = -4.1
°С.
Продолжительность отопительного периода, z_ht = 231 сут.
Нормальный влажностный режим помещения и условия эксплуатации ограждающих
конструкций - Б.
Коэффициент, учитывающий зависимость положения наружной поверхности
ограждающих конструкций по отношению к наружному воздуху, n = 1.
Коэффициент теплоотдачи внутренней поверхности ограждающей конструкции, α_int = 8.7 Вт/(м²·°С).
Нормируемый температурный перепад, Δt_n = 4.5 °С.
Нормируемое значение сопротивления теплопередаче, R_req = 2.87 м²·°С/Вт.
Заданные слои:
кирпич глиняный обыкновенный на цементно-песчаном растворе,
ρ = 1800 кг/м³;
Вт/(м·ºC); t=640 мм.
минераловатные
плиты ISОVER ВЕНТИ, ρ = 115 кг/м³;
Вт/(м·ºC).
Толщина
искомого слоя, t = 73 мм.
Суммарная
толщина конструкции, ∑t = 713 мм.
Принимаем толщину утеплителя 80мм.
Для наружного утепления стен было выбрано два вида утеплителя: URSA GEО
Фасад и ISОVER ВЕНТИ, в таблице 4.1 я провела их сравнение по
некоторым характеристикам:
Таблица 4.1 - Сравнение показателей утеплителей
|
Наименование утеплителя
|
Сопротивление теплопередаче
|
Толщина, мм
|
Коэффициент теплопроводности
|
Удельный вес, кг/м3
|
Влагопоглощение, кг/м2
|
Степень горючести
|
Срок эксплуатации
|
|
1. URSA GEО Фасад
|
2,91
|
100
|
0,05
|
100
|
<1
|
НГ
|
50
|
|
2.ISОVER ВЕНТИ
|
2,99
|
80
|
0,039
|
115
|
<1
|
НГ
|
50
|
По результатам сравнения в выпускной квалификационной работе принимается
утеплитель ISОVER ВЕНТИ, т.к. толщина утеплителя и коэффициент
теплопроводности меньше, а сопротивление теплопередаче больше.
5. раздел БЕЗОПАСНОСТи ЖИЗНЕДЕЯТЕЛЬНОСТИ
.1 Разработка рекомендаций по технике безопасности при ведении
каменных работ
Основными задачами охраны труда являются организация работы по ликвидации
причин производственного травматизма в организациях и на предприятиях. При
производстве каменных работ необходимо соблюдать требования [17] и
предусматривать технологическую последовательность производственных операций
так, чтобы предыдущая операция не являлась источником производственной
опасности при выполнении последующих.
В соответствии с действующими нормами и правилами администрация
строительства должна в установленные сроки организовать инструктаж, изучение и
проверку знаний рабочих и технического персонала в области техники безопасности
с обязательным документальным ее оформлением.
Требования охраны труда при выполнении каменных работ [18].
При перемещении и подаче на рабочее место
грузоподъемными кранами кирпича, керамических камней и мелких блоков следует
применять поддоны, контейнеры и грузозахватные устройства, исключающие падение
груза при подъеме.
При кладке стен зданий на высоту до 0,7 м от рабочего настила и
расстоянии от его уровня за возводимой стеной до поверхности земли (перекрытия)
более 1,3 м необходимо применять средства коллективной защиты (ограждающие или
улавливающие устройства) или предохранительные пояса.
Не допускается кладка стен зданий последующего этажа без установки
несущих конструкций междуэтажного перекрытия, а также площадок и маршей в
лестничных клетках.
При кладке стен высотой более 7 м необходимо применять защитные козырьки
по периметру здания, удовлетворяющие следующим требованиям:
ширина защитных козырьков должна быть не менее 1,5 м, и они должны быть
установлены с уклоном к стене так, чтобы угол, образуемый между нижней частью
стены здания и поверхностью козырька, был 110°, а зазор между стеной здания и
настилом козырька не превышал 50 мм;
защитные козырьки должны выдерживать равномерно распределенную снеговую
нагрузку, установленную для данного климатического района, и сосредоточенную
нагрузку не менее 1600 Н (160 кгс), приложенную в середине пролета;
Рабочие, занятые на установке, очистке или снятии защитных козырьков,
должны работать с предохранительными поясами. Ходить по козырькам, использовать
их в качестве подмостей, а также складывать на них материалы не допускается.
Без устройства защитных козырьков допускается вести кладку стен высотой
до 7 м с обозначением опасной зоны по периметру здания.
Над местом загрузки подъемника должен быть на высоте 2,5-5 м установлен
защитный двойной настил из досок толщиной не менее 40 мм.
Снимать временные крепления элементов карниза или облицовки стен
допускается после достижения раствором прочности, установленной проектом.
Обрабатывать естественные камни в пределах территории строительной
площадки следует в специально выделенных местах, где не допускается нахождение
лиц, не участвующих в данной работе.
Рабочие места, расположенные на расстоянии менее 3 м друг от друга,
должны быть разделены защитными экранами.
Каменные работы относятся к работам тяжелым или средней тяжести,
вызывающим большие физические усилия и значительное напряжение органов чувств и
нервной системы. Работа каменщиков на высоте, несмотря на наличие защитных
средств, гарантирующих безопасные условия труда, считается вредной и опасной.
Рабочие, занятые на работах с вредными и опасными условиями труда, должны
проходить медицинский осмотр, подтверждающий возможность использования их на
указанных работах, в порядке и в сроки, установленные Минздравом.
Снижению травматизма на производстве способствует правильное освещение
рабочего места, проходов и проездов, мест складирования конструкций и
материалов. От правильного освещения зависит безопасность труда, самочувствие
работающих, производительность труда и качество выполняемой работы.
В качестве еще одного мероприятия по обеспечению здоровых условий труда
можно назвать рациональный режим труда и отдыха. Он способствует уменьшению
утомления, поддержанию высокой работоспособности рабочих, повышению
производительности труда. Согласно существующим рекомендациям время непрерывной
работы составляет 2 часа, а длительность перерывов для отдыха- 15 минут. Если
рабочий занят работой 45-65% времени смены, то на отдых должно приходиться
4.0-6.5% времени смены.
Применяемые при производстве строительно-монтажных работ машины,
оборудование и технологическая оснастка по своим техническим характеристикам
должны соответствовать условиям безопасного выполнения работ.
Электробезопасность на строительной площадке, участках работ и рабочих
местах должна обеспечиваться в соответствии с требованиями[19].
При применении ручных машин надлежит соблюдать правила безопасной
эксплуатации, предусмотренные[19] и [20], а так же инструкциями
заводов-изготовителей.
Складирование материалов, конструкций и оборудования
должно осуществляться в соответствии с требованиями стандартов или технических
условий на материалы, изделия и оборудование. На подмостях между стеной и
сложенным материалом должен оставаться проход шириной не менее 50 см.
Пожарная безопасность на строительной площадке, участках работ и рабочих
местах должна обеспечиваться в соответствии с требованиями Правил пожарной
безопасности при производстве строительно-монтажных работ и Правил пожарной
безопасности при производстве сварочных работ, а также требованиями [21].
5.2 Защита фундамента от воздействия грунтовых вод
Защитить здание от негативного влияния избыточной влаги призвана
гидроизоляционная системы фундамента. Она препятствует насыщению бетона влагой
и предотвращает разрушение стен, которые расположены ниже уровня почвы.
В реконструируемом здании используется рулонная гидроизоляция. Рулонная
гидроизоляция фундамента - популярный и эффективный способ гидрозащиты зданий,
заключающийся в выполнении цельного гидроизолирующего ковра из рулонных
материалов. Такой способ защиты выполняется из таких оклеечных рулонных материалов,
как рубероид, стеклоизол, пергамин.
Горизонтальная гидроизоляция применяется перед кирпичной кладкой на
бетонные блоки фундамента. Она предотвращает капиллярное проникновение воды к
кирпичным стенам здания.
Вертикальная гидроизоляция может выполняться двух видов:
обмазочная горячим битумом за два раза, если уровень грунтовых вод
находится ниже пола подвала на 0,5 метра;
рулонная гидроизоляция - это наклейка рубероида или гидроизола на горячем
битуме с последующей защитой в ½ или ¼ кирпича стенкой или листовым
материалом.
Рулонная гидроизоляция должна выходить выше уровня грунтовых вод на 0,5
метра, на оставшемся участке гидроизоляцию выполняют обмазочно.
Осуществляют монтаж рулонной гидроизоляции с помощью наклейки нескольких
слоев материала на защищаемую поверхность. Склеивают слои с помощью мастики или
специального клея.
Рисунок 5.1- Схема гидроизоляции фундамента
6. ЭКОЛОГИческий раздел
.1 Мероприятия по охране окружающей среды в процессе эксплуатации
Процесс реконструкции считается относительно непродолжительным.
Взаимодействие здания или сооружения с окружающей средой, его характер и
последствия определяется в период длительной эксплуатации. Отсюда вытекает
важность этого периода в определении экономичности объекта, то есть, каким
образом отразится на состоянии окружающей среды не только появление, но и его
длительное функционирование.
Процесс воздействия зданий и сооружений на окружающую среду исследован не
в полной мере, поэтому почти все экологические мероприятия, которые касаются
эксплуатации зданий, носят рекомендательный характер.
В результате реконструкции формируются новые территории,
преобразовывающие природные ландшафты и их компоненты. Меняется растительный
покров городских территорий. Происходит запыление, газовое и тепловое
загрязнение воздуха. Такое изменение химического состава воздуха негативно
влияет на организм человека.
Воздействие городских территорий на природную среду и на качество среды
на этой территории определяется решениями, заложенными при проектировании, а
затем качеством исполнения этих решений и далее - условиями эксплуатации
объектов.
Необходимо запроектировать объект так, чтобы его существование не
наносило ущерба окружающей среде. Эксплуатация здания не должна наносить ущерб
природе, для восполнения которого потребуются затраты большого количества сил,
времени и средств.
К мероприятиям по охране окружающей природной среды относятся все виды
деятельности человека, направленные на снижение или устранение негативного
воздействия человеческих факторов, сохранение, и рациональное использование
природных ресурсов.
Требования
в области охраны окружающей среды при эксплуатации и зданий, сооружений или
иных объектов прописаны в федеральном законе [22]. Лица, выполняющие
эксплуатацию зданий, обязаны соблюдать утвержденные технологии и требования в
области охраны, восстановления и целесообразного использования окружающей среды
<#"903010.files/image191.jpg">
Рисунок
6.1 - Общий вид урны, используемой на территории здания
Наведением
порядка и соблюдением чистоты на территории здания занимается обслуживающий
персонал - дворники. Дворник прибирает прилегающую территорию у мусорной
площадки на расстоянии 3 метра по периметру от урны.
Наведение
порядка на территории в зимнее время. Производится очистка входов в магазин от
снега вплоть до асфальтного покрытия. При наличии наледи - использование и
обработка ступеней противогололедными средствам, с утра перед началом работы и
в вечернее время. Очистка пешеходных зон - пешеходных дорожек, тротуаров,
проездов, а так же территорию парковки у магазина. Так же должна производиться
очистка газонного ограждения от снега и зачистка отмосток от наледи и снега.
В
летний период времени дворниками проводятся следующие виды работ:
прометание
тротуаров и пешеходных путей; отмосток, парковки.
прогребание
газонов на территории и регулярный скос травы;
разметание
луж после дождей и ливней в зоне отдыха людей и пешеходных зонах (тротуарах).
Наведение
порядка на площадках около урн для сбора мусора. В зимнее время ведется
очищение урн от снега и наледи. В летнее время - выметание площадки и сбор
вывалившегося из урны мусора. Так же необходимо проводить промывание и
обработку площадки обеззараживающими средствами примерно 1 раз в десять дней
(кроме зимнего периода).
Зеленые
насаждения ведут к улучшению газового состава воздуха и его очищению. Основными
объектами зелёных насаждений, используемыми в пределах данной территории,
являются газоны и цветники.
Рисунок
6.2 - Пример оформления цветника у здания
В период эксплуатации ответственность за санитарное содержание объекта
строительства и сбор бытовых отходов несет эксплуатирующая организация. Её
основными задачами служат слежение за состоянием окружающей среды,
осуществление профилактики по предотвращению аварий на инженерных сетях,
осуществлять организованный вывоз бытовых отходов, охрана от загрязнения почвы,
проведение работ по санитарной уборке территории. А обязанность по регулярному
удалению и вывоз бытовых отходов - на спецавтохозяйство.
7. Организационный раздел
.1 Строительный генеральный план
Строительный генеральный план места реконструкции представляет собой
значимо важный документ после проекта производства работ. Он воздействует на
эффективную организацию производства. В нем находят свое решение вопросы
размещения строительных материалов и конструкций, а также их транспортировки,
что отражается на производстве труда и себестоимости работ.
При проектировании строительного генерального плана учтено наличие
временных дорог, расположение складских площадок в зоне действия строительного
крана, ограждение строительной площадки и размещение двух пожарных гидрантов.
7.2 Характеристика условий реконструкции и природно-климатические
условия
Здание расположено в городе Вологда по улице Ленинградской. Характер
строительства - реконструкция.
Объект имеет площадь застройки -747м².
Площадь участка - 5135 м², что позволяет создать все необходимые
условия для реконструкции здания.
существующая застройка - не имеется;
нормативная продолжительность строительства - 8 месяцев.
температура наружного воздуха наиболее холодных суток - 37о С;
температура наружного воздуха наиболее холодной пятидневки - 320 С;
нормативное давление ветра для I ветрового района: 23кгс/м2;
вес снегового покрова для IV
снегового района:240кгс/м2 (расчетное);
нормативная глубина промерзания грунтов: 1,5 м;
рельеф местности - ровный;
средняя температура воздуха наиболее холодного периода - 8,040С;
продолжительность зимнего периода - 210 суток.
В основании фундамента залегает суглинок, глубина промерзания грунта 1,5
м. Уровень грунтовых вод (УГВ) по данным изысканий на глубине до 10 м не
обнаружен.
Вблизи от объекта проходят такие инженерные сети, как водопровод, бытовая
канализация и высоковольтные и низковольтные электросети на опорах.
По просьбе заказчика и с целью увеличения дополнительных рабочих
площадей, предусмотрена надстройка второго этажа, а также пристройка небольшого
объема здания со стороны улицы Гончарной.
7.3 Описание методов выполнения основных строительно-монтажных работ
с указаниями по технике безопасности
Реконструкция данного объекта будет выполняться в два периода, то есть в
основной и подготовительный.
Подготовительный этап содержит в себе большие объемы работ, в первую
очередь это вертикальная планировка строительной площадки с организацией
водоотвода. Далее осуществляется разборка и снос сооружений, которые подлежат
ликвидации, затем ведется перекладка существующих сетей и трубопроводов для
нужд строительства.
На площадке будут расположены инвентарные мобильные здания складского,
подсобно-производственного, служебного и санитарно-бытового назначения. Так же
на территории будут сооружены временные сети и трубопроводы водоснабжения,
канализации, тепло- и электроснабжение. На подготовительном этапе производится
размещение временных подъездных и внутриплощадочных дорог, монтаж площадок
укрупнительной сборки конструкций и установок. Назначаются места складирования
материалов и конструкций в соответствии с требованиями технических условий и
стандартов. Материалы должны располагаться в зоне рабочей доступности крана и
не должны мешать свободному перемещению людей и строительной техники.
Чтобы оградить строительную площадку от проникновения на нее посторонних
лиц, предусматривается ограждение стройплощадки сплошным забором или сплошным
забором с навесом, который обеспечит безопасность проходящих поблизости людей
[23]. Также стройплощадка обеспечивается противопожарным оборудованием.
В подготовительный период строительства выполняется закрепление репера с
привязкой к существующим геодезическим сетям для создания геодезической
разбивочной основы.
Устраивается временное освещение территории, которое производится
прожекторами на столбах/опорах. Временное освещение выполняется в соответствии
с [24].
У въезда на строительную площадку устанавливаются дорожные знаки
ограничения скорости движения автотранспорта и предупреждения о въезде и входе
в опасную зону.
Основной период строительства подразделяется на несколько стадии. В
первые две стадии включены такие работы, как работы по демонтажу и вывозу
частей и элементов реконструируемого здания, работы по переустройству, усилению
и замене некоторых элементов здания. Возводятся надстройки и пристройки. Во
вторую и третью стадии основного периода строительства можно отнести отделочные
работы и работы по благоустройству территории.
При демонтаже в первую очередь демонтируют все внутренние инженерные
системы в здании, а это такие как санитарно-технические и электроснабжения. Во
вторую очередь демонтируют строительные конструкции и в дальнейшем вывозят их
со строительной площадки. Для проведения работ используют специальную
строительную технику.
На стадии основных работ производится перепланировка внутренних помещений
здания, замена перекрытий на монолитные железобетонные, установка железобетонных
лестниц, возводятся пристройки на новый фундамент, а также второй этаж здания.
Подачу конструкций и элементов осуществляют с помощью крана КС-55717А. Подача
бетонной смеси осуществляется бетононасосом. Сварку металлических конструкций и
элементов производят с помощью сварочного аппарата TELWIN Nоrdica 4.220.
При погрузочно-разгрузочных работах используется этот же кран.
Отделочные работы включают установку оконных и дверных проемов, наружное
утепление с устройством облицовки, внутренние малярные и штукатурные работы.
При устройстве навесного вентилируемого фасада подача материалов на
строительные леса осуществляется с помощью строительного подъемника.
Работы по благоустройству включают: устройство парковочных площадок,
озеленение участка посадкой высокорастущих деревьев, кустарников и устройством
газонов с посевом многолетних трав.
Организационно-технологическая модель возведения сооружения определяет
очередность возведения единичных элементов сооружения в зависимости от
технологической схемы и конструктивных решений, а кроме того установленных
способов производства работ. При подборе организационно-технологических схем
следует принимать во внимание такие факторы, как параллельность строительства
отдельных объектов и возведения частей здания, пространственную устойчивость и
конструктивную завершённость части здания.
До начала основных работ по реконструкции должны быть выполнены следующие
подготовительные работы:
устройство временных внутриплощадочных дорог, установка временных
инженерных сетей -водопровода и канализации, постановка ограждения строительной
площадки (забор по периметру территории) в согласовании со стройгенпланом;
техническая организация местности строительной площадки с первоначальными
работами согласно планировке и обеспечиванию временных стоков поверхностных
вод;
формирование общеплощадочного складского хозяйства и организация площадок
под складирование;
Организация строительной площадки, участков работ и рабочих мест должна
производиться в точном соответствии с [23] и [24].
Проектом организации строительства предусмотрен следующий порядок
производства работ основного периода:
земляные работы;
подводка наружных сетей;
устройство фундаментов;
возведение надземной части;
устройство кровли;
послемонтажные работы;
внутренние санитарно-технические работы;
электромонтажные работы;
отделочные работы;
монтаж оборудования;
благоустройство территории;
подготовка объекта к сдаче, сдача объекта.
Работы вести поточным методом, соблюдая технологическую
последовательность.
Технологическая последовательность работ. Строительно-монтажные работы
выполняются по проекту производства работ, по рабочим чертежам проекта и
соответствующим главам [25] и проекта организации строительства. Производство
строительно-монтажных работ осуществляется генподрядным способом с привлечением
субподрядных организаций. Покрытие потребности в рабочих кадрах предусмотрено
осуществлять за счет имеющихся в наличии у генподрядной и субподрядной
организаций. Для размещения рабочих использовать бытовой городок. Место
расположения временной свалки определяется на стадии разработки проекта
производства работ, с учетом условий согласования с местной администрацией.
Материалы и конструкции для строительства объекта доставляются на строительную
площадку с производственных баз строительных организаций и заводов. Механизация
строительно-монтажных работ на объекте обеспечивает повышение
производительности труда, сокращение объемов непроизводительного ручного труда,
оборудования и средств малой механизации, имеющихся в строительных
организациях.
Организационно-технологическая последовательность работ включает в себя
разбивку здания на участки, захватки и ярусо-захватки, в зависимости от объемов
и технологических особенностей возведения здания.
Строительно-монтажные работы на объекте подразделяются на подготовительные
работы и работы основного периода.
7.4 Земляные работы
До начала производства земляных работ существующие подземные коммуникации
должны быть обозначены на местности соответствующими знаками или надписями.
Сами работы необходимо разрабатывать и согласовывать с соответствующими
эксплуатационными организациями, и разработать мероприятия по безопасным
условиям труда. Земляные работы осуществляются под контролем прораба или
мастера, а в охранной зоне кабелей под напряжением - с участием работников
электрохозяйства.
Участки прохода людей через траншеи обязаны быть оборудованы переходными
мостиками, освещаемыми в ночное время. Грунт, извлеченный из котлована или
траншеи, размещается на расстоянии не менее 0,5 м от бровки выемки. Валуны и
камни, необходимо удалять.
Рытье котлованов и траншей с вертикальными стенками без креплений в
нескальных и незамерзших грунтах выше уровня грунтовых вод и при отсутствии
вблизи подземных сооружений допускается на глубину не более, 1,50 м- в
суглинках и глинах. Перед допуском рабочих в котлованы или траншеи глубиной
более 1,3 м должна быть проверена устойчивость откосов.
Загрузка почвы на автосамосвалы должна производиться со стороны заднего
или бокового борта.
7.5 Расчет численности персонала
Расчетная численность персонала в процессе реконструкции включает в себя
количество работников основного и не основного производства,
инженерно-технических рабочих, младший обслуживающий персонал и практикантов
(то есть учеников).
Расчетная численность персонала строительства определяется по формуле:
(7.1)
где
- численность рабочих основного производства;
-
численность рабочих не основного производства;
-
численность инженерно-технических работников;
-
численность работников младшего обслуживающего персонала;
-
численность учеников (практиканты);
,06
- коэффициент, учитывающий отпуска и невыходы по болезни.
Количество
рабочих основного производства определяется согласно максимальной численности
работников в одну смену.
Численность
рабочих не основного производства берется как 20% с количества рабочих
основного производства:
Количество
инженерно-технических работников, а также работников младшего обслуживающего
персонала и учеников принимаются от суммы численности рабочих основного и не
основного производств в количествах соответственно 6-8%, 4%, 5%:
Таким
образом, расчетная численность персонала строительства составит 40 человек.
7.6
Обоснование потребности и выбор типов временных зданий и сооружений
Обоснование потребности и выбор типов временных зданий и сооружений
приведено в таблице 7.1.
Таблица 7.1-Обоснование потребности и выбор типов временных зданий и
сооружений
|
Наименование зданий и сооружений
|
Расчетная численность персонала, чел.
|
Норма на 1 чел.
|
Требуется
|
Принято
|
|
|
Всего
|
% одновр. пользующихся
|
Ед. изм.
|
Кол-во
|
Ед. изм.
|
Кол-во
|
Марка
|
Кол-во
|
|
1
|
2
|
3
|
4
|
5
|
6
|
7
|
8
|
9
|
|
1.Контора прораба
|
3
|
100
|
3-5 15Вагончик 3*6м
|
1
|
|
|
|
|
|
2.Помещение для приема пищи
|
40
|
30
|
1 12Вагончик 3*6м
|
1
|
|
|
|
|
|
|
3.Помещения для обогрева рабочих
|
40
|
100
|
0,1 4,3Вагончик 3*3м
|
1
|
|
|
|
|
|
|
4.Гардеробные с умывальными
|
40
|
70
|
0,5 15Вагон-чик 3*61
|
|
|
|
|
|
|
5.Туалет 40 100 1
очко 1 очко 20 чел 2
1 очко
2
|
4Помещение 4 1
|
|
|
|
|
6.Душевые 40 30 1
рожок 1 рожок 8 чел. 4
1 рожок
5
|
20Помещение 27 1
|
|
|
|
|
|
|
7.Проходная
|
-
|
-
|
9 9Вагончик 3*3м1
|
|
|
|
|
|
|
|
8.Кладовая
|
-
|
-
|
15 15Помещение 3*6м1
|
|
|
|
|
|
|
|
9.Помещение для сушки и обеспыливания одежды
|
40
|
50
|
0,2 20Вагончик 3*9м1
|
|
|
|
|
|
|
10.Медицинское помещение
|
-
|
-
|
12 12Вагончик 3*6м1
|
|
|
|
|
|
7.7 Расчет потребности в электроэнергии
Электроэнергия на строительной площадке необходима для силовых
потребителей, на внутреннее и наружное освещение и на технологические нужды.
Требуемая мощность трансформаторной подстанции определяется согласно
формуле:
(7.2)
где
1,1 - коэффициент, учитывающий потери в сети;
,
,
,
- коэффициенты спроса, учитывающие несовпадение
нагрузок.
=0,3-0,8,
= 0,7,
= 0,8,
= 1;
cоs
, cоs
-
коэффициенты мощности, зависящие от загрузки соответствующих потребителей. cоs
= 0,6, cоs
= 0,75;
- сумма
мощностей силовых, технологических аппаратов (потребителей), приборов
внутреннего и наружного освещения, кВт.
По
полученной расчетной мощности трансформаторной подстанции необходимо
оборудовать одним трансформатором.
Сечение
провода временной электросети определяется по формуле:
(7.3)
где
- расчетная нагрузка на рассматриваемом участке сети в
Вт.;
l - длина
участка сети, м.;
g - удельная
проводимость материала провода (для меди 57);
U - номинальное
напряжение (для силовых потребителей - 380 В, для остальных 220В);
- потери
напряжения в %, принимается 6-8%.
7.8 Расчет потребности в транспортных средствах
Требуемое количество машино-смен работы транспортного средства по
доставке однородного груза определяется по формуле:
(7.4)
где
- количество перевозимого однородного груза, т.;
-
сменная производительность транспортной единицы, т/см.
(7.5)
где
q - паспортная грузоподъемность машины, т;
-
количество рейсов в смену;
-
коэффициент использования грузоподъемности машины (для металлических
конструкций 0,8).
Число
рейсов транспортного средства в смену:
, (7.6)
где
Т - продолжительность рабочей смены в часах;
- время
погрузочно-разгрузочных работ;
l -
расстояние перевозки груза, км;
-
средняя скорость движения автотранспорта (20км/ч).
7.9 Расчет площадей складов материалов, изделий и конструкций
Расчет площадей ведется на однородные грузы. Требуемая площадь склада для
хранения однородного груза определяется:
(7.7)
где
q - подлежащий хранению запас однородных материалов в
натуральных единицах;
r - норма
хранения материала на 1
площади;
-
коэффициент, учитывающий проходы на складах (для складов металла 0,5-0,6).
Запас
однородных материалов, подлежащих хранению:
, (7.8)
где
Q - количество однородных материалов, необходимых для
строительства в натуральных единицах;
t -
продолжительность работ с использованием данного вида материала, дни (по
графику);
n - норма запаса
материалов в днях - зависит от вида транспорта (для автомобильного транспорта -
2-5 дней );
k - коэффициент
неравномерности снабжения (1,2).
7.10 Расчет потребности в воде и определение диаметров временного
водопровода
Вода расходуется на хозяйственно- бытовые нужды, на производственные
нужды и на пожаротушение.
Требуемый расход воды определяется по формуле:
(7.9)
Расход
воды на пожаротушение (
) принимается по площади застройки: до 30 га - 10 л/с
и до 50 га - 20 л/с.
Принимаем
=10 л/с.
Расходы
на хозяйственно-бытовые нужды определяются:
(7.10)
где
- расход воды на принятие душа;
- расход
воды на умывание, принятие пищи и другие нужды.
(7.11)
где
N - расчетная
численность персонала строительства;
а - норма водопотребления на 1 человека, пользующегося
душем: при отсутствии канализации 30-40 л., при наличии канализации 80 л.;
-
коэффициент, учитывающий количество моющихся.
=0,4;
время
работы душевой установки, час.
=0,75(часа).
За 45 минут после окончания рабочего дня все рабочие должны успеть
принять душ.
(7.12)
где
b - норма водопотребления на 1 человека в смену: при
отсутствии канализации 10-15 л., при наличии канализации 20-25 л;
-
коэффициент неравномерности потребления воды,
=1,2-1,3;
n -
продолжительность смены в часах.
Расход
воды на производственные нужды определяется:
(7.13)
где 1,2 - коэффициент на неучтенные потребности;
-
коэффициент неравномерности водопотребления,
=
1,3-1,5;
-
суммарный расход воды в смену в литрах на все производственные нужды по нормам.
Диаметр
трубы временного водопровода определяется:
(7.14)
V - скорость движения воды временного водопровода, V=2м/с
7.11 Технико-экономические показатели проекта производства работ
Таблица 7.2 -Технико-экономические показатели
|
Наименование показателей
|
Ед. изм.
|
Кол-во
|
|
1. Объем здания
|
м3
|
4687
|
|
2. Полезная площадь
|
м2
|
756
|
|
3. Нормативная трудоёмкость работ
|
чел-дн.
|
856
|
|
4. Планируемая трудоёмкость работ
|
чел-дн.
|
841
|
|
5. Планируемый процент выполнения норм выработки
|
%
|
102
|
8. Технологический раздел
.1 Область применения
Технологическая карта разработана на производство бетонных работ
(устройство монолитного перекрытия) при реконструкции магазина Пятерочка,
расположенного по ул.Ленинградская. Реконструируемое здание находится в городе
Вологде. Город расположен в географическом районе - 1, климатическом районе - IIВ.
Предусматриваются пристройки к существующей части магазина по боковому
фасаду с ул. Гончарная на расстояние 2,7м. и со стороны, примыкающей к жилому
дому на 3,55м.
В технологической карте принята подача и укладка бетонной смеси
автобетононасосом СБ-149. Погрузо-разгрузочные, арматурные и опалубочные работы
выполняются автомобильным краном КС-55717А, грузоподъемностью 7 т, стрела
длиной 24 м.
Надстройка магазина не имеет чердака. В надстраиваемой части здания
располагается: непродовольственный магазин «Одежда» с вспомогательными и
складскими помещениями. Загрузка непродовольственного магазина осуществляется
через главный вход до начала работы или после закрытия магазина. Высота
помещений торгового зала непродовольственного магазина - 3,1 м до подвесного
потолка, высота остальных помещений - 3,2 м.
Каркас 2-го этажа представляет собой металлическую раму с жесткими
узлами. Монолитный диск перекрытия создает горизонтальную диафрагму жесткости.
Стены наружные 2-го этажа выполнены из кирпича красного полнотелого КР
75/1800/25 по ГОСТ 530-95 толщиной 250 мм с утеплителем ISОVER ВЕНТИ. Вентилируемый фасад облицован плитами по
системе «Краспан».
Конструктивное решение здания представлено в пункте 1.4 данной выпускной
квалификационной работы.
8.2 Технология и организация работ
До начала устройства монолитного перекрытия должны быть выполнены такие
работы, как:
устройство подъезных дорог и путей, обозначение путей движения;
подготовка монтажных оснасток и приспособлений, обозначение мест
складирования;
завоз арматурных. сеток, комплектов опалубки;
геодезическая разбивка осей и разметка положения стен в соответствии с
проектом.
В состав работ входят вспомогательные (разгрузка,
складирование, сортировка), опалубочные, арматурные и. бетонные работы.
Разгрузку, сортировку, раскладку арматурных сеток, элементов опалубки, монтаж,
сеток и укрупненных панелей опалубки, а также демонтаж. Опалубки выполняют с
помощью автомобильного крана КС-55717А. Арматурные сетки поступают на
стройплощадку в собранном виде.
Пооперационное выполнение работ по устройству
монолитного перекрытия:
разгрузка, сортировка и установка опалубки и арматуры;
арматурные и сварные работы;
бетонные работы, уход за бетоном;
разборка опалубки, разборка опалубки из доборных
щитов, погрузка на автотранспорт приспособлений, инвентаря и элементов
опалубки.
Качество опалубочных работ должно постоянно контролироваться.
Инструментальный контроль опалубочных систем следует выполнять не реже, чем
через каждые 20 оборотов, а для элементов из древесины - через каждые 5
оборотов. При контроле и приемке опалубки проверяют: жесткость и геометрическую
неприменяемость всей системы и правильность монтажа поддерживающих элементов;
плотность щитов опалубки и стыков сопряжений между собой и с ранее уложенным
бетоном; поверхности опалубки и их положение относительно проектных осей
конструкций.
Для работ по монолитному перекрытию используют листы с
дополнительными ребрами жесткости. Жесткость материала определяется высотой
профиля. Для перекрытий годится лист с «волнами» высотой от 60 мм. Толщина
листа должна составлять как минимум 0,7 мм. При этом следует учитывать, что чердачное
перекрытие несет меньшую нагрузку, чем межэтажное. Соответственно, для создания
перекрытия между последним этажом и чердаком может быть использован профиль с
меньшими показателями жесткости и прочности.

Рисунок 8.1 - Размеры и общий вид профлиста
Н75-750-0,9
Качественней всего профнастил к металлическому
основанию крепится саморезами на 32 мм, с усиленным буром. Фиксацию рекомендуют
выполнять на каждом стыке профилированного листа и балки.
В процессе бетонирования необходимо вести непрерывное
наблюдение за состоянием опалубки, поддерживающих элементов и креплений.
Качество конструкций определяется точностью и неизменяемостью положения
арматурного заполнения, соблюдением требований на изменение технологических
свойств укладываемой бетонной смеси и режимов уплотнения.
За некоторое время до заливки бетона выполняется
армирование монолитного перекрытия по профилированному листу. С целью данного
производства арматуру укладывают в гофры. Арматура связывается с помощью
проволоки. Использование сварки при создании арматурного каркаса недопустимо.
Арматурные сетки укладывают. На арматурных сетках располагают фиксаторы с шагом
1м для создания защитного слоя бетона.
При
бетонировании конструкций неизбежны технологические перерывы. В таких случаях
устраиваются рабочие швы, которые исключают перемещения стыкуемых поверхностей
относительно друг друга и не снижают несущей способности конструкций.
Расположение рабочих швов назначается в местах, где наименьший изгибающий
момент или перерезывающая сила. Длина захватки равна длине температурного блока
здания (2 захватки). При перерыве в бетонировании более двух часов возобновляют
укладку только после набора бетоном прочности не менее 1.5 МПа. Мероприятия по
уходу за бетоном в период набора прочности, порядок и сроки их проведения,
контроль за выполнением этих мероприятий необходимо осуществлять в соответствии
с требованиями СНиП 3.03.01-87 <file:///D:\StroyConsultant\Temp\910.htm>.
Убирать элементы опалубки следует производить после достижения бетоном
прочности.
Бетонирование
перекрытий производится с использованием автобетононасоса.
Рисунок 8.2 -
Пример подачи бетона с помощью автобетононасоса
8.3 Потребность в ресурсах
.3.1 Механизированные ресурсы
Автобетононасос СБ-149.
Таблица 8.1 Технические параметры СБ-149
|
Параметры
|
Величина
|
|
1
|
2
|
|
Радиус действия стрелы, м
|
25
|
|
Вылет стрелы по вертикали, м
|
27,5
|
|
Давление в гидросистеме, МПа
|
25
|
|
Число звеньев стрел, шт
|
3
|
|
Угол поворота стрелы в плане, град
|
360
|
|
Внутренний диаметр бетонопровода, мм
|
125
|
|
Длина, мм
|
1050
|
|
Ширина, мм
|
2500
|
|
Высота, мм
|
2400
|
|
Масса, кг
|
6500
|
Автокран КС-55717А.
Таблица 8.2 - Подъемные характеристики автокрана КС-55717А
|
Параметры
|
Величина
|
|
1
|
2
|
|
Грузоподъемность автокрана, т
|
32
|
|
Размер основной стрелы, м
|
9,4 - 27,4
|
|
Длина удлинителя (гусек), м
|
7,2
|
|
Вылет стрелы, м
|
2,8 - 18
|
|
Скорость подъема (опускания) груза, м/мин
|
6
|
|
Длина, мм
|
10730
|
|
Ширина, мм
|
2500
|
|
Высота, мм
|
3950
|
Рисунок 8.3 - Грузовысотные характеристики крана
8.3.2 Материально-технические ресурсы
Потребность в инструментах, инвентаре и
приспособлениях приведена в табл. 8.3
Таблица 8.3 - Ведомость потребности в инструментах,
инвентаре и приспособлениях
|
Наименование
|
Марка, техническая характеристика, ГОСТ
|
Количество
|
Назначение
|
|
1
|
2
|
3
|
4
|
|
Вибратор глубинный
|
ИВ-56
|
1
|
Вибрирование уложенной бетонной смеси
|
|
Строп двухветвевой
|
2СК-5, 0, 500 ГОСТ 25573-82 <file:///D:\5диплом%20готовый\переделываю\2673.htm>1Подъем
элементов
|
|
|
|
Строп четырехветвевой
|
4СК-1-0,8 ГОСТ 25573-82
<file:///D:\5диплом%20готовый\переделываю\2673.htm>1Подъем элементов
|
|
|
|
Трансформатор понижающий
|
ИВ-9 Мощность 1,5 кВт
|
1
|
Сварка соединений
|
Трансформатор
сварочный ТД-500 ГОСТ 95-77
<file:///D:\5диплом%20готовый\переделываю\9361.htm>*Е
|
Мощность 19,4 кВа1Сварка соединений
|
|
|
|
|
Уровень строительный
|
Тип УС2 ГОСТ 9416-83
<file:///D:\5диплом%20готовый\переделываю\2659.htm>1Проверка установки
элементов опалубки
|
|
|
|
Ключ гаечный разводной
|
ГОСТ 7275-75
<file:///D:\5диплом%20готовый\переделываю\33001.htm>2Установка опалубки
|
|
|
|
Термометр стеклянный технический
|
ГОСТ 2823-73*Е (СТ СЭВ 2944-81)
|
1
|
Проверка температурного режима при твердении бетона
|
|
Влагомер
|
ГОСТ 15528-86 <file:///D:\5диплом%20готовый\переделываю\19004.htm>1Проверка
влажности при твердении бетона
|
|
|
|
Отвес строительный
|
ОТ-400 ГОСТ 7948-80
<file:///D:\5диплом%20готовый\переделываю\2658.htm>1Проверка установки
опалубки и армокаркасов
|
|
|
|
Метр складной деревянный
|
РСТ 149-76
|
2
|
Обмер конструктивных элементов
|
|
Рулетка металлическая
|
РС-20 ГОСТ 7502-80*
|
1
|
Обмер конструктивных элементов
|
|
Молоток слесарный
|
ГОСТ 2310-77
<file:///D:\5диплом%20готовый\переделываю\24689.htm>*Е2Крепление
элементов опалубки
|
|
|
|
Лом стальной
|
ЛО-24 ГОСТ 1405-83
<file:///D:\5диплом%20готовый\переделываю\18257.htm>1Установка опалубки
|
|
|
|
Домкрат ручной
|
ГОСТ 18042-72
|
1
|
Распалубка
|
|
Поливочный рукав
|
длина 40 м
|
1
|
Поливка бетонных поверхностей
|
|
Вибратор поверхностный
|
ИВ-91А
|
1
|
Вибрирование уложенной бетонной смеси
|
|
Лопата растворная
|
ГОСТ 3620-76
|
2
|
Разравнивание бетонной смеси
|
.4 Требования к качеству и приемке работ
Все исходные материалы должны отвечать требованиям ГОСТов. Показатели
свойств материалов определяют в соответствии с единой методикой, рекомендованной
для строительных лабораторий. В процессе армирования конструкций контроль.
осуществляется при. приемке, (наличие заводских марок и бирок, качество
арматурной стали), при складировании и транспортировке (правильность
складирования по маркам, сортам, размерам, сохранность при перевозках), при
изготовлении арматурных элементов и конструкций (правильность формы и размеров,
качество сварки, соблюдение технологии сварки). Правильность положения опалубки
в пространстве проверяют привязкой к разбивочным осям и нивелировкой, а размеры
- обычными измерениями.
Перед укладкой бетонной смеси контролируют чистоту рабочей поверхности
опалубки и качество ее смазки. При бетонировании больших массивов однородность
уплотнения бетона контролируют с помощью электрических преобразователей
(датчиков) сопротивления в виде цилиндрических щупов располагаемых по толщине
укладываемого слоя. Принцип действия датчиков основан на свойстве бетона с
увеличением плотности снижать сопротивление прохождению тока.