Технология монолитного домостроения
Министерство
образования и науки РФ
Федеральное
государственное бюджетное образовательное учреждение
Высшего
профессионального образования
«Сибирский
государственный индустриальный университет»
Кафедра
строительных технологий и материалов
Расчетно -
пояснительная записка к курсовому проекту
«Технология
монолитного домостроения»
Выполнил ст.
гр. СПО-12 Мартынцев Д.Ю.
Проверил:
доцент. Панов С.А.
г.
Новокузнецк 2017 г.
Содержание
бетон стена опалубка этаж
Введение
1.
Исходные
данные для проектирования
2.
Расчет
параметров выдерживания бетона в стенах
3.
Выбор
и конструирование опалубки
4.
Определение
объемов работ
5.
Выбор
способа укладки бетонной смеси
6.
Контроль
качества бетона
7.
Калькуляция
трудовых затрат
8.
График
производства работ на бетонирование первого этажа
9.
Строительный
генеральный план
10. Указания по производству работ и
технике безопасности
11. Материально-технические ресурсы
Заключение
Список использованной литературы
Введение
Проблемы сокращения сроков строительства,
повышение производительности труда в подрядных организациях и снижения
себестоимости производства в современных условиях приобрели особую
актуальность. Заинтересованность в их решении вызвана высокой конкуренцией на
рынке подряда, жесткими требованиями заказчика к соблюдению сроков возведения
зданий, а также стремление строительных организаций к увеличению доходов от
производственной деятельности. Важную роль на сегодняшнем рынке играет
эффективность инвестиционных проектов. В понимании инвестора и предприятия-заказчика
она определяется соотношением продолжительности и стоимости создания
строительной продукции.
В связи с этим растет спрос на монолитное
домостроение. В настоящее время стало очевидным, что альтернативы монолитному
строительству практически нет, по крайней мере - с точки зрения стоимости.
Однако по-прежнему большую долю строительного рынка играет строительство из
сборного железобетона. Это объясняется созданной в минувшие годы огромной
производственной базой, которая жестко диктует свои условия, особенно если это
домостроительный комбинат, где насчитывается 2-2,5 тыс. рабочих.
Для новых подрядных организаций, не имеющих
развитой и громоздкой производственной базы, использование технологий
монолитного строительства целесообразно по многим причинам. Производственная
база в этом случае сводится к минимуму: нужны товарный бетон, опалубка и
арматура. Причем во многих случаях арматура вяжется непосредственно на
строительной площадке.
Отпадает необходимость жесткого следования
номенклатуре изделий из сборного железобетона, выпускаемых заводом. Поэтому у
архитектора появляются мало чем ограниченные возможности для творчества.
Актуальность применения монолитных технологий
усилилась с введением в 2000 г. новых требований по теплоснабжению ограждающих
конструкций зданий Увеличение толщины кирпичных стен экономически невыгодно.
Выход найден применении систем наружного утепления фасадов зданий в сочетании с
легкобетонными конструкциями наружных ограждающих стен. Все это превосходно
сочетается со схемой монолитного домостроения.
Особое значение среди характеристик здания имеют
жесткость и прочность его конструктивных элементов. В этом отношении монолитным
зданиям нет равных: они меньше подвержены деформациям, что предотвращает
появление трещин, между плитами нет стыков, которые традиционно считаются
слабым местом панельных зданий.
Производство бетонных работ требует разработки
методов и технологий, обеспечивающих определенные гарантии безопасности
возводимых объектов. Наибольшая частота дефектов наблюдается при производстве
работ при отрицательных температурах, что повышает деформации конструктивных,
снижение физико-механических характеристик бетонов, что влияет на интенсивность
набора или недобора распалубочной и проектной прочности бетона.
Критические ситуации возникают из-за низкого
качества бетонной смеси, недостаточного прогрева, а также при нарушении
технологии укладки и уплотнения. Все эти позиции требуют четкого просчета.
Таким образом, рост спроса на монолитное
строительство объясняемся следующими моментами:
использование эффективных индустриальных
опалубочных систем позволяет получать различные планировочные решения зданий и
сооружений;
)монолитное строительство позволяет экономить
затраты за счет того, что не нужно содержать заводы по производству сборного
железобетона, возможна экономия затрат на материальные ресурсы на 10-15%, а
также - экономия энергоресурсов 25-35%.
1. Исходные данные для проектирования
Район строительства - Новокузнецк
Начало бетонирования - октябрь 2014г.
Температура наиболее холодной пятидневки с
обеспеченностью 92% -39°С
Наружные ограждающие стены будут выполнены
монолитными из поризованного шлакозолобетона (у= 1000 кг/м3) на
основе цемента ШПЦ 400 толщиной 8=500 мм. Внутренние несущие стены будут
выполнены монолитными из шлакозолобетона (у=1800 кг/м-5) толщиной
5=200 мм. Перекрытия сборные.
С учетом данных условий необходимо провести
расчет параметров выдерживания бетона в стенах, выбрать опалубку и способы
подачи бетона в опалубку, выполнить калькуляцию трудозатрат и заработной платы,
определить продолжительность строительства, построив график производства работ.
Итогом проектирования должна стать
ориентировочная стоимость одного квадратного метра жилой площади в доме,
выполненном по технологии монолитного домостроения. Также важным выводом по
итогам проектирования будет установление закономерности между стоимостью
квадратного метра жилья и высотностью дома.
2. Расчет параметров выдерживания
бетона в стенах
Определение продолжительности твердения бетона
для наружных и внутренних стен при зимних условиях бетонирования производится
по таблице 2.1.
Таблица 2.1
Нарастание прочности бетона марок М200-М300 на
шлакопортландцементе марки 400 (%R.28)
|
Возраст
бетона, сут.
|
Темпе
ратура бетона, °С
|
|
0
|
5
|
10
|
20
|
30
|
40
|
50
|
60
|
|
1/2
|
-
|
-
|
4
|
7
|
20
|
25
|
32
|
42
|
|
1
|
-
|
-
|
10
|
16
|
30
|
40
|
50
|
65
|
|
2
|
-
|
2
|
18
|
30
|
40
|
60
|
75
|
90
|
|
3
|
-
|
18
|
25
|
40
|
55
|
70
|
90
|
-
|
|
5
|
-
|
27
|
35
|
55
|
65
|
85
|
-
|
-
|
|
7
|
-
|
34
|
43
|
65
|
70
|
92
|
-
|
-
|
|
14
|
35
|
50
|
60
|
80
|
96
|
10
|
-
|
-
|
|
28
|
45
|
65
|
70
|
100
|
-
|
-
|
-
|
-
|
Определим модуль поверхности наружных и
внутренних стен:
Mn=Fост/b=2/b
Где b
- толщина стены.
Для наружных стен:
Mn=Fост/b=2/0,5=4м.
Для внутренних стен:
Mn=Fост/b=2/0,2=10м.
Определим среднюю температуру бетона:
tб.ср= t
б.н/(1,03+0,181* Mn+0,006*
t б.н)
где t
б.н - начальная температура бетона
t б.н = 20 - t
с
где tc
- температура среды.
· Октябрь
- ^ =2,2 °С;
· Ноябрь
- tc = -8,3 °С;
· Декабрь-
tc = -15,4°C.
Наружные стены:
- Октябрь
t б.н =20-2,2
= 17,8 
,
tб.ср =
17,8/(1,03+ 0,181-4+ 0,006* 17,8)=9,57 
.
- Ноябрь
t б.н =20-(-8,3)
= 28,3 
tб.ср =
28,3/(1,03+ 0,181*4+ 0,006 *28,3)=14,71 
Декабрь
t б.н =20-(-15,4)
= 35,4 
tб.ср =
35,4/(1,03+ 0,181*4+ 0,006 *35,4)=18 
Внутренние стены
- Октябрь
t б.н =20-2,2
= 17,8 
,
tб.ср =
17,8/(1,03+ 0,181*10+ 0,006 *17,8)=6,04 
- Ноябрь
t б.н =20-(-8,3)
= 28,3 
tб.ср =
28,3/(1,03+ 0,181*10+ 0,006 *28,3)=9,4 
Декабрь
t б.н =20-(-15,4)
= 35,4 
tб.ср =
35,4/(1,03+ 0,181*10+ 0,006 *35,4)=11,6 
Время твердения бетона наружних стен (50%
от R28)
· Октябрь - tc
=9,57 °С - 11 суток
· Ноябрь - tc =14,71 
- 7 суток
· Декабрь - tc = 18
- 5 суток
Время твердения бетона наружних стен (50%
от R28)
· Октябрь - tc
=6,04 °С - 14 суток
· 11оябрь - tc
= 9,4 °С - 11 суток
· Декабрь - tc
= 11,6°С - 9 суток
3. Выбор и конструирование опалубки
При производстве опалубочных работ была выбрана
металлическая крупнощитовая опалубка. В состав комплекта опалубки входят:
основные щиты, угловые щиты, доборные щиты.
Каркасы опалубки между собой стыкуются с помощью
замков (при необходимости с помощью фланцевых винтов). Замки также служат для
крепления всех вспомогательных частей к элементам и для устройства распора
опалубки. Замковые соединения можно устанавливать в любом месте рамы.
Палуба металлической опалубки выполняется из
стального листа толщиной 5 мм. Рамы опалубки выполнены из высокопрочных
стальных неразъемных полых профилей с формированным гофром. Высота профиля 120
мм, ширина - 60 мм.
Спецификация щитов опалубки приведена в таблице
3.1. Схема щита приведена на рисунке 3.1.
Таблица 3.1
Спецификация щитов опалубки
|
Наименование
|
Размеры,
axb
|
Количество
|
|
1
|
2
|
3
|
|
Наружные стены
|
|
|
|
Щит
опалубочный основной
|
6000x2800
|
16
|
|
Щит
опалубочный основной
|
3000x2800
|
4
|
|
Щит
опалубочный основной
|
6500x2800
|
8
|
|
Щит
опалубочный основной угловой
|
900x2800
|
8
|
|
Внутренние стены
|
|
|
|
Щит
опалубочный основной
|
6000x2800
|
22
|
|
Щит
опалубочный основной
|
4000x2800
|
8
|
4. Определение объемов работ
Таблица 4.1
Ведомость объемов работ на монолитные
конструктивные элементы одного этажа здания.
|
Конструктивные
элементы здания
|
Бетон,
м3
|
Арматура,
т
|
Опалубка,
2 м~
|
|
1
|
2
|
3
|
4
|
|
Наружные
стены
|
102,38
|
15,4
|
448
|
|
Внутренние
стены
|
38,56
|
7,71
|
358,4
|
. Выбор способа укладки бетонной смеси
В данном курсовом проекте предусматривается
укладка бетонной смеси бадьями, подаваемыми краном непосредственно в
бетонируемую конструкцию, с частичной перекидкой бетонной смеси. Уложенная
бетонная смесь разравнивается и уплотняется глубинными вибраторами. Открытая
поверхность бетона заглаживается.
Бетонную смесь следует укладывать в бетонируемые
конструкции горизонтальными слоями одинаковой толщины без разрывов, с
последовательным направлением укладки в одну сторону во всех слоях.
При уплотнении следует не допускать опирания
вибратора на арматуру и закладные детали, а также другие элементы крепления
опалубки. Глубина погружения вибраторов в бетонную смесь должна обеспечивать
погружение вибратора на 5-10 см в ранее уложенный слой.
Укладка следующего слоя допускается до начала
схватывания предыдущего слоя. Верхний уровень уложенной бетонной смеси должен
быть 50-70 мм ниже верхов щитов опалубки.
Выбор крана осуществляется по трем основным
характеристикам:
·
грузоподъемность
QM;
·
монтажная
высота Нм;
·
монтажный
вылет LM.
Данные параметры назначаются в зависимости от
габаритов здания и массы наиболее тяжелого элемента, подлежащего подъему.
Определяем монтажную высоту Hv:
Н = h
+h
+h
+h
,= 36 + 0,5 + 1,5 + 2,5 = 40,5м,
где ho
-
высота монтажного горизонта, м;
h3
-
высота зазора, м;
h,
-
высота монтируемого элемента, м;
he
-
высота строповки, м.
Грузоподъемность Q=3
т
(вес бадьи с бетоном).
Монтажный вылет L:M
=28,5 м.
По найденным параметрам принимаем 2 башенных
крана с поворотной башней КБ - 160.2.
Рассчитаем необходимые параметры:
Сменная производительность, м3/см:ч
П см = (60* tсм
*Vб* kВ1
*kВ2)/ Тц
где tCM
- продолжительность работы сены, ч;
Vб - объем
укладываемой бетонной смеси, м3;
KB1
- коэффициент, учитывающий технологические перерывы:
Кв2 - коэффициент, учитывающий
организационные перерывы.
Продолжительность монтажного цикла, мин:
Тц =Тм + Тр
где Тм - время машинных операций,
мин;
Тр - время ручных операций,мин.
Тм = Н1/𝑉1
+ Н2/𝑉2
+ 2∗𝛼360∗𝑛
* kпов
где Н1, Н2 - высота подъема и
опускания при укладки бетонной смеси, ; V, V2
- скорости подъема и опускания бункера, м/мин;
а - угол поворота стрелы крана от места погрузки
бетонной смеси до места её выгрузки;
n - скорость
вращения стрелы крана, об/мин;
Кпов - коэффициент поворота, учитывающий
совмещение вертикального подъема конструкции с поворотом.
Тр = 𝐻вр∗60/
𝑁зв
Нвр -норма времени, чел/ч
𝑁зв-
количество человек в звене.
Для 1 этажа:
Tц= 1,56+25=26,56
мин ;
Тм= 3,3/20+3,3/22,5+ 2*180/(360*0,6)*0,75=1,56
мин.
Тр= 0,83*60/2=25.
Псм = 60*8,2*1,1*0,85*0,75/26,56=13 
/см.
Для 2 этажа:
Tц= 1,87+25=26,86
мин ;
Тм= 6,6/20+6,6/22,5+ 2*180/(360*0,6)*0,75=1,87
мин.
Тр= 0,83*60/2=25.
Псм =
60*8,2*1,1*0,85*0,75/26,87=12,84 
/см.
Для 3 этажа:
Tц= 2,2+25=27,2 мин
;
Тм= 9,9/20+9,9/22,5+ 2*180/(360*0,6)*0,75=2,2
мин.
Тр= 0,83*60/2=25.
Псм = 60*8,2*1,1*0,85*0,75/27,2=13 
/см.
Для 4 этажа:
Tц= 2,5+25=27,5 мин
;
Тм= 13,2/20+13,2/22,5+ 2*180/(360*0,6)*0,75=2,5
мин.
Тр= 0,83*60/2=25.
Псм =
60*8,2*1,1*0,85*0,75/27,5=12,55 
/см.
Для 5 этажа:
Tц= 2,8+25=27,8 мин
;
Тм= 16,5/20+16,5/22,5+ 2*180/(360*0,6)*0,75=2,8
мин.
Тр= 0,83*60/2=25.
Псм =
60*8,2*1,1*0,85*0,75/27,8=12,41 
/см.
Для 6 этажа:
Tц= 3,12+25=28,12
мин ;
Тм= 19,8/20+19,8/22,5+ 2*180/(360*0,6)*0,75=3,12
мин.
Тр= 0,83*60/2=25.
Псм = 60*8,2*1,1*0,85*0,75/28,12=12,27

/см.
Для 7 этажа:
Tц= 3,43+25=28,43
мин ;
Тм= 23,1/20+23,1/22,5+ 2*180/(360*0,6)*0,75=3,43
мин.
Тр= 0,83*60/2=25.
Псм =
60*8,2*1,1*0,85*0,75/28,43=12,14 
/см.
Для 8 этажа:
Tц= 3,74 +25=28,79
мин ;
Тм= 26,4/20+26,4/22,5+ 2*180/(360*0,6)*0,75=3,74
мин.
Тр= 0,83*60/2=25.
Псм = 60*8,2*1,1*0,85*0,75/28,79=12 
/см.
Для 9 этажа:
Tц= 4,05+25=29,05
мин ;
Тм= 29,7/20+29,7/22,5+ 2*180/(360*0,6)*0,75=4,05
мин.
Тр= 0,83*60/2=25.
Псм =
60*8,2*1,1*0,85*0,75/29,05=11,88 
/см.
Для 10 этажа:
Tц= 4,36+25=29,36
мин ;
Тм= 33/20+33/22,5+ 2*180/(360*0,6)*0,75=4,36
мин.
Тр= 0,83*60/2=25.
Псм =
60*8,2*1,1*0,85*0,75/29,36=11,75 
/см.
Для 11 этажа:
Tц= 4,46+25=29,66
мин ;
Тм= 36,3/20+36,3/22,5+
2*180/(360*0,6)*0,75=40,66 мин.
Тр= 0,83*60/2=25.
Псм =
60*8,2*1,1*0,85*0,75/29,66=111,63 
/см.
Для 12 этажа:
Tц= 4,99+25=29,99
мин ;
Тм= 36,6/20+39,6/22,5+ 2*180/(360*0,6)*0,75=4,99
мин.
Тр= 0,83*60/2=25.
Псм =
60*8,2*1,1*0,85*0,75/29,99=11,5 
/см.
Окончательно для бетонирования
принимаем 2 крана КБ -160.2.
Рис. 5.1 Зависимость между сменной
производительностью и количеством этажей
6. Контроль качества бетона
При приемке законченных бетонных и
железобетонных конструкций или частей сооружений следует проверять следующее:
· соответствие
конструкций рабочим чертежам;
· качество
бетона по прочности, а при необходимости - по морозостойкости,
водонепроницаемости и другим показателям, указанным в проекте;
-качество применяемых в конструкции материалов,
полуфабрикатов и
изделий.
Прочность, морозостойкость, плотность,
водонепроницаемость, деформативность, а также другие показатели, установленные
проектом, следует проверять согласно требованиям действующих государственных
стандартов.
Приемку законченных бетонных конструкций или
частей сооружений следует оформлять в установленном порядке актом
освидетельствования скрытых работ или актом ответственных конструкций.
Требования, предъявляемые к законченным бетонным
конструкциям или частям сооружений, приведены в таблице 6.1.
Таблица 6.1
Операционный контроль качества работ
|
Наименование
операций, подлежащих контролю
|
Контроль
качества выполнения операций
|
|
Производ.
работ
|
Мастером
|
Состав
|
Способы
|
Время
|
|
1
|
2
|
3
|
4
|
|
1.
Опалубочные работы
|
|
Монтаж-опалубки
|
-
|
11равильность
сборки опалубки и монтаж
|
Визуально
|
В
процессе работ
|
|
-
|
Монтаж
опалубки
|
Отклонение
плоскости опалубки по вертикали и горизонтали
|
Рейка-отвес
|
|
|
|
|
Местные
неровности опалубки
|
Рейка
|
|
|
2.
Арматурные работы
|
|
Установление
арматурных каркасов и сеток
|
-
|
Соответствие
установленной арматуры рабочим чертежам
|
Визуально
|
До
начала бетонир.
|
|
-
|
Установление
арматурных каркасов и сеток
|
Отклонение
от проектной толщины защитного слоя. Отклонения от проектных расстояний между
рас предел ител ь н ы м и стержнями в одном ряду. Отклонение от проектных
положений осей стержней, с I ыкуемых каркасов. Отклонений от проектных
расположений стыков стержня по длине элемента.
|
Визуально,
рулетка металлическая, линейка измерительная
|
В
процессе работ
|
|
-
|
Установление
закладных деталей
|
Соответствие
точности установки закладных деталей. Геодезическая проверка соответствия
чертежам
|
Визуально,
рулетка, линейка измерительная
|
В
процессе работ
|
|
3.
Бетонные работы
|
|
Укладка
бетонной смеси
|
-
|
Проверка
подвижности бетонной смеси. Проверка соответствия требуемой точности,
водонепроницаемости и морозостойкости бетона. Проверка состояния опалубки и
лесов при бетонировании, высоты свободного падения бетонной смеси, толщины
укладываемых слоев, времени вибрирования и качества уплотнения; соблюдения
сроков установленных перерывов в бетонировании: качества заглаживания лицевых
открытых поверхностей
|
Контроль
по ГОСТам. Отбор проб, испытание образцов
|
Не
реже, чем 2 раза в смену). Для каждого состава бетона
|
|
-
|
Уход
за бетоном
|
Проверка
наличия укрытия и содержания поверхности бетона во влажном состоянии,
поддержания температурно-влажностного режима твердения в надлежащие сроки:
соблюдения соответствующих мер. предохраняющих твердеющий бетон от
ударов.сотрясений и других механических воздействий
|
Наблюдения,
выборочные замеры, регистрция времени, наблюдения за влажностью
|
В
процессе бетонирования
|
Наиболее распространенными методами определения
прочности бетона к моменту распалубливания являются:
1. Метод Кашкарова. Использование молотка
Кашкарова основано на определении Прочности бетона в зависимости от величины
соотношения
d
6/dэ,
где d о и d,
- диаметры отпечатка бойка (стальной шарик d=15xl03
м) на поверхности бетона и эталонного стержня (стальной стержень Ст.З диаметром
d - 1,2* Ю-2,
сти = 440 МПа).
2. Ультразвуковой метод. С помощью
приборов «Бегов», «УКБ-1», «УКБ-2», а также «УК-14П» и т.п. измеряется скорость
распространения ультразвуковых колебаний в бетоне, величина, которой, зависит
от прочности, плотности и однородности материала.
7. Калькуляция
трудовых затрат
Таблица 7.1
Калькуляция трудовых затрат и заработной платы
на 1-й этаж здания
|
Обоснование
|
Наимснованис
paбот
|
Ед.
изм.
|
Объемы
работ
|
Норма
вр. на ед. изм.. чел-ч
|
Трудозатр
на весь объем ра-бот. чел-дн
|
Расценка
на ед. изм.. руб-кои
|
Стоим,
затрат на весь об. раб., руб-кои
|
|
1
|
2
|
3
|
4
|
5
|
6
|
7
|
8
|
|
§Е4-1-37
|
Установка
металлической опалубки
|
м2
|
806.4
|
0.28
|
16.25
|
0-20.4
|
164.51
|
|
§Е4-1-46
|
Установка
и вязка арматуры отдельными стержнями
|
т
|
23.11
|
17
|
35.73
|
13-18
|
304.6
|
|
§Е4-1-49
|
Укладка
бетонной смеси в конструкции стен толщиной до 200 мм
|
м3
|
38.56
|
1.20
|
4.35
|
0-85,5
|
32,96
|
|
§Е4-1-49
|
Укладка
бетонной смеси в конструкции стен толщиной более 300 мм
|
м3
|
102.38
|
0.79
|
13.3
|
0-565
|
57.84
|
|
§Е4
общая часть
|
Выдерживание
и уход за бетоном
|
смен
|
7
|
8,2
|
22
|
8-69
|
60,83
|
|
§Е4-1-37
|
Разборка
металлической опалубки
|
м2
|
806.4
|
0.11
|
6.4
|
0-07.3
|
58.87
|
|
§Е4-1-7
|
Укладка
пли г покрытия
|
шт
|
126
|
1,2
|
21,2
|
0.85
|
107.1
|
|
§Е4-1-26
|
Замоноличивание
швов плит покрытия
|
100
пог.м. шва
|
1
1.9
|
4,3
|
11.17
|
3,4
|
40.46
|
|
§Е4
общая часть
|
Обслуживание
башенного крана КВ-160.2 на 1 захватке
|
маш-смен
|
14
|
8,2
|
18
|
8-69
|
121,66
|
|
§1-4
общая часть
|
()бслуживание
башенного крана КВ-160.2 на 2 захватке
|
маш-смен
|
14
|
8,2
|
18
|
8-69
|
121,66
|
|
Всего
|
|
|
|
182,6
|
|
1101.8
|
|
Районный
коэффициент
|
|
|
1.3
|
257.38
|
|
1432,4
|
|
Зимний
коэффициент
|
|
|
1,15
|
272,99
|
|
1647,3
|
T= 31,8 чел*ч/
С= 11,69руб/
9. Строительный
генеральный план
Строительным генеральным планом называется план
строительной площадки, на котором нанесены строительные объекты; а также
существующие здания и сооружения; мобильные (инвентарные) здания; постоянные и
временные дороги; склады; сети канализаций; водо- и энергоснабжения; подкрановые
пути и места стоянок монтажных кранов; площадки укрупнительной сборки
конструкций и технологического оборудования; стационарные и передвижные
механизированные установки и др.
Проектирование строительных генеральных планов
осуществляется, исходя из условий, при которых протяженность временных
коммуникаций и путей перемещений материалов и конструкций в пределах
строительной площадки была бы минимальной, но достаточной для обеспечения
бесперебойного выполнения строительно-монтажных работ.
Проектирование общеплощадочного строительного
генплана начинается с нанесения на него существующих и проектируемых зданий и
сооружений в соответствии с генеральным планом застройки жилого микрорайона,
градостроительного комплекса или промышленного предприятия. Затем на генеральном
плане размещаются строительные машины, механизирован ные установки, склады
материалов и конструкций, мобильные (инвентарные) здания, коммуникации (в том
числе железные и автомобильные дороги) и проставляются их основные размеры.
Все объекты строительного генерального плана
должны быть наиболее рационально размещены на площадке, отведенной под
строительство.
Должна быть предусмотрена рациональная
организация грузовых и людских потоков.
Для временных зданий следует использовать
сборно-разборные инвентарные передвижные вагончики и контейнеры.
Склады сборных конструкций и массовых материалов
необходимо располагать у мест их наибольшего потребления.
Приобъектные склады располагаются в зонах работы
кранов и в непосредственной близости от дорог.
Строительную площадку во избежание доступа
посторонних лиц необходимо оградить.
Необходимо обеспечить безопасное и безвредное
производство работ, соблюдение санитарных и экологических норм.
Должны быть обеспечены противопожарная
безопасность, освещение проходов, проездов и рабочих мест.
Служебные здания, помещения, вагончики
(прорабская будка, диспетчерская, комната отдыха, санитарно-бытовые помещения)
располагаются по возможности ближе ко входу на строительную площадку.
Дороги на стройплощадке устраивают кольцевыми с
объездами, площадками для разворота и разъезда автомобилей. Ширина проезда
составляет 3,5 м при одностороннем движении и 6 м - при двустороннем.
Временное ограждение строительной площадки
предусматривается глухим из бетонных щитов.
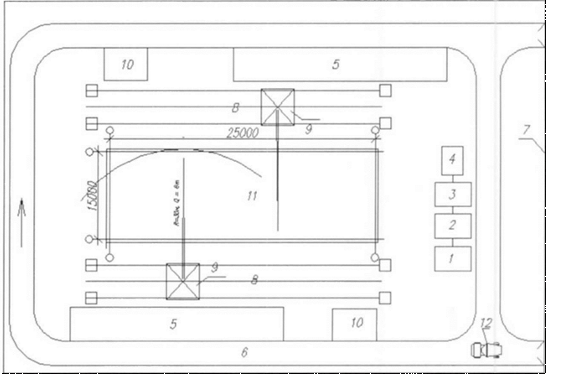
Изображение строительного генерального плана
приведено на рис. 9.1.
Рисунок 9.1 Строительный генеральный план 1 -
прорабская; 2 - столовая; 3 - душевая; 4 -туалет; 5 - площадка для
складирования материалов; 6 - временная автомобильная дорога; 7 -временный
забор; 8 - подкрановые пути; 9 - башенный кран; 10 - места приема бетонной
смеси; 11 - строящееся здание
10. Указания по производству работ и техники
безопасности
Опалубочные работы
Типы опалубок следует применять в соответствии с
ГОСТ 23478-79.Нагрузки на опалубку следует рассчитывать в соответствии с
требованиями СниП 3.03.01-87. Установка и приемка опалубки, распалубливание
монолитных конструкций, очистка и смазка производятся по ППР. Снятие всех типов
опалубки следует производить после предварительного отрыва от бетона.
При установки опалубки при помощи крана
необходимо соблюдать следующие правила:
· монтируемые
элементы опалубки должны быть надежно скреплены;
· расстроповка
разрешается только после закрепления элемента постоянными или временными
связями;
- при монтаже и демонтаже опалубки запрещается
находиться пол монтируемыми элементами.
Распалубка осуществляется только с разрешения
производителя работ, а в случае особо ответственных конструкций - с разрешения
главного инженера.
Арматурные работы Арматурная
сталь и сортовой прокат, арматурные изделия и закладные элементы должны
соответствовать проекту и требованиям соответствующих стандартов.
Транспортирование и хранение арматурной стали следует выполнять по ГОСТ
7566-81. Изготовление пространственных крупногабаритных арматурных изделий
следует производить в сборочных кондукторах. Заготовку (резку, сварку,
образование анкерных устройств), установку и натяжение напрягаемой арматуры
следует выполнять по проекту в соответствии со СНиП 3.09.01-85. Установку на
арматурных конструкциях пешеходных, транспортных или монттажных устройств
следует осуществлять в соответствий с ПНР, по согласованию с проектной
организацией. Монтаж арматурных комструкдий следует производить преимущественно
из крупноразмерных блоков или унифицированных сеток заводского изготовления с
обеспечением фиксации защитного слоя.
Бессварочные соединения стержней следует
производить: стыковые внахлестку или обжимными гильзами и винтовыми муфтами с
обеспечением равнопрочности стыка; крестообразные - вязкой отожженной
проволокой. Допускается применение специальных соединительных элементов
(пластмассовых и проволочных фиксаторов).
Бетонные работы
Транспортирование и подачу бетонных смесей
следует осуществлять специализированными средствами, обеспечивающими сохранение
заданных свойств бетонной смеси. Запрещается добавлять воду на месте укладки
бетонном смеси для увеличения ее подвижности.
Емкости для подачи бетонной смеси (бадьи) должны
быть снабжены специальными приспособлениями (замками), не допускающими ее
случайной выгрузки. Расстояние от низа бадьи до поверхности, на которую
производится выгрузка смеси, должна составлять не более 1 м.
Бетонные смеси следует укладывать в бетонируемые
конструкции горизонтальными слоями одинаковой толщины без разрывов, с
последовательным направлением укладки в одну сторону во всех слоях.
При уплотнении бетонной смеем не допускается
опирания вибраторов на арматуру и закладные изделия, тяжи и другие элементы
крепления опалубки. Глубина погружения глубинного вибратора в бетонную смесь
должна обеспечивать углубление его в ранее уложенный слой на 5 -10 см.
Шаг перестановки глубинных вибраторов не должен превышать полуторного радиуса
их действия, поверхностных вибраторов - должен обеспечивать перекрытие на 100
мм площадкой вибратора границы уже провибрированного участка. Укладка
следующего сдоя бетонной смеси допускается до начала схватывания бетона
предыдущего слоя. Продолжительность перерыва между укладкой смежных слоев
бетонной смеси без образования рабочего шва устанавливается строительной
лабораторией. Верхний уровень уложенной бетонной смеем должен быть на 50 - 70
мм ниже верха щитов опалубки. Поверхность рабочих швов, устраиваемых при
укладке бетонной смеси с перерывами, должна быть перпендикулярна оси бетонируемых
колонн и балок, поверхности плит и стен. Возобновление бетонирования
допускается производить до достижении бетоном прочности не менее 1,5 МПа.
Указания по технике безопасности