Монолитное и приобъектное бетонирование
Учреждение образования
БЕЛОРУССКИЙ
ГОСУДАРСТВЕННЫЙ УНИВЕРСИТЕТ ТРАНСПОРТА
Кафедра: «Строительное производство»
КУРСОВАЯ
РАБОТА
по дисциплине:
«Технология заводского производства ЖБИ,
монолитного и приобъектного
бетонирования»
на тему:
«Монолитное и
приобъектное бетонирование»
Выполнил
студент гр. ПК-51
Пархомцов С. Н.
Принял
к.т.н., доцент
Яшина Т.В.
2011
Содержание
1 Технология
монолитного и приобъектного бетонирования
1.1
Арматурно-опалубочный чертеж монолитной конструкции, ее описание и номенклатура
работ
1.2 Проектирование
состава бетона
1.2.1 Расчет
номинального состава бетона и его корректировка с учетом влажности заполнителей
1.2.2 Подбор
состава бетона химическими добавками
1.3
Технологическая карта на бетонирование монолитной конструкции
1.3.3 Калькуляция
трудовых затрат
1.3.4
Пооперационные графики производства работ
1.4 Расчет
трудозатрат и затрат средств механизации
1.5 Расчет
потребности в основных строительных материалах и конструкциях
.6
Организационно-технологические схемы возведения объекта (выбор кранов)
Интенсификация бетонных работ
при отрицательной температуре
2.1 Выбор метода и
технологические расчеты
3 Статистический
контроль прочности бетона
3.1 Анализ прочности изделий
в партии
.2 Оценка достоверности
повышения прочности бетона при применении разного вида заполнителей
.3 Оценка изменчивости
прочности легкого и тяжелого бетона
.4 Определение количества
образцов (наблюдений)
.5 Статистическая обработка
результатов испытаний бетона на сжатие
Охрана труда и техника
безопасности в технологии производства железобетонных изделий
Литература
1. Технология монолитного и приобъектного бетонирования
1.1 Арматурно-опалубочный
чертеж монолитной конструкции, ее описание и номенклатура работ
Основным направлением развития
массового жилищного строительства является сборное, панельное домостроение.
Однако более 35% объемов жилищного строительства осуществляется еще
недостаточно индустриальными методами. Поэтому индустриальные методы
монолитного домостроения рассматриваются как резерв повышения общего уровня
дальнейшей индустриализации строительства. Производственный эксперимент по
применению различных конструктивно-технологических методов монолитного
домостроения позволил сформировать теоретические основы рациональных сфер
применения монолитного бетона, технических решений конструкций зданий и
опалубок, а также разработать ряд нормативных и методических документов по
проектированию, строительству и сравнительной технико-экономической оценке
гражданских зданий из монолитного бетона.
Возведенные жилые и гражданские
здания, как правило, отличавшиеся высоким качеством архитектурных решений.
Анализ показал, что монолитное домостроение по большинству
технико-экономических показателей имеет преимущества по сравнению с кирпичным
домостроением, а в ряде случаев и с крупнопанельным: единовременные затраты на
создание производственной базы меньше, чем в кирпичном на 35% и чем в
крупнопанельном на 40-45%; расход стали в конструкциях снижается на 7-25% по
сравнению с крупнопанельным (экономия увеличивается по мере повышения
этажности); расход стали на опалубку с учетом оборачиваемости форм снижается на
1,5 кг на 1м2 общей площади в сборных конструкциях до 1 кг в
монолитных. Энергетические затраты на изготовление и возведение монолитных
конструкций уменьшается на 25-35% по сравнению со сборными и кирпичными:
трудовые затраты снижаются в среднем на 25-30%, а продолжительность
строительства сокращается на 10-15% по сравнению с кирпичным. Стоимость
строительства с учетом зданий по этажности, архитектурно-планировочным решением
и действующих чем на материалы и конструкции в среднем на 10% ниже, чем
кирпичного, и на 5%, чем крупнопанельного.
К достоинствам монолитного
домостроения следует также отнести возможность с минимальными затратами
получить разнообразные объемопространственные решения, повысить
эксплуатационные качества зданий. При этом сокращается инвестиционный цикл
(проектирование зданий и производственной базы - создание базы -
строительства).
Недостатками монолитного домостроения
являются более высокая по сравнению с крупнопанельным продолжительность
строительства и трудоемкость на строительной площадке при одинаковых
показателях суммарных трудовых затрат, удорожание бетонных работ при
отрицательных температурах.
Стены армируют сварными или вязанными
каркасами с рабочей арматурой класса S-400. Коэффициент продольного армирования должен быть не
менее 0,2…0,4 %. Шаг поперечных стержней принимают не более 20d для сварных и 15d для вязаных каркасов, где d ≥ 16 мм. - диаметр продольных
стержней.
Схему армирования бетонируемой
конструкции (захватки) принимают по справочным (литературным) или проектным
данным. Приводят эскизы арматурных элементов, схемы армирования и данные по
сортаменту и расчетным характеристикам используемой арматурной стали. Принимают
и описывают условия изготовления арматурных элементов, их доставки, хранения,
укрупнительной сборки (при наличии) и другие данные по технологии арматурных
работ.
С целью снижения
трудоемкости на монтаже и повышения качества работ необходимо: шире
использовать унифицированные арматурные заготовки (сетки); механизмы для
монтажа арматуры; применять укрупненные арматурные заготовки (каркасы, сетки);
применять армоопалубочные блоки, в которых на жесткие армокаркасы навешивают
опалубочные щиты и короба; применять наиболее эффективные способы стыковки, в
частности ванную сварку.
Рисунок 1 - Арматурно-опалубочный
чертеж стены подвала
При армировании и в
процессе бетонирования необходимо обеспечить указанную в проекте толщину
защитного слоя. Она зависит от вида конструкций
Для устройства защитного
слоя между арматурой и опалубкой устанавливают прокладки из бетона, пластмассы
и других материалов. С этой целью также к пространственным и плоским
армокаркасам приваривают отрезки стержней (коротыши), упирающиеся в опалубки и
исключающие касание арматурной опалубки.
Стены армируют до
установки опалубки, если армокаркасы достаточно жестки, при двусторонней
опалубке, если позволяет толщина стены, и при опалубке, установленной с одной
стороны.
Если арматура поступила
на объект в виде отдельных стержней, ее собирают в армокаркасы у места монтажа
на специальных козелках и затем помещают в опалубку. Отдельные стержни
армосеток устанавливают в проектное положение по месту.
Складируют арматуру на объекте
в том порядке, который принят для монтажа. Стержни, сетки и другие элементы
укладывают так, чтобы их легко можно было найти. Для обеспечения бесперебойного
ведения монтажа на объекте создают запас арматурных заготовок не менее чем на
трехсменную потребность.
Арматуру складируют на
центральных (базисных) и приобъектных складах. Центральные склады используют
для приемки, длительного хранения, укрупнительной сборки и подготовки
арматурных заготовок. Центральные склады устраивают только при больших объемах
работ и длительной их продолжительности. Приобъектные склады организуют у места
установки арматуры, в зоне действия кранов, обслуживающих объект. Их
рассчитывают на хранение пятидневного запаса арматуры.
Территория складов должна
иметь хорошие подъезды, покрытие из щебня или гравия, а также необходимые
уклоны и водоотводные канавы. Центральные склады оборудуют кранами, стеллажами,
стендами и другими устройствами для складирования арматуры, а также
электрическим освещением. Приобъектные склады оборудуют простейшими стеллажами.
Штабеля арматуры
размещают так, чтобы между ними были проезды для транспорта и проходы для
людей. Пакеты сеток и каркасов, пучки стержней, а также отдельные штабеля нужно
снабжать специальными табличками (бирками) с указанием марки арматуры, ее
количества, номера заказа и позиции по заказной спецификации. Высота штабеля не
должна превышать 1,5 м.
Арматура не должна
соприкасаться с грунтом. Для этого ее укладывают на деревянные, стальные или
бетонные подкладки. Условия хранения арматуры на складах должны исключать ее
коррозию, загрязнение, поломки и деформации.
Штабеля и
крупногабаритные арматурные заготовки располагают длинной стороной вдоль
автодорог или железнодорожных путей, чтобы упростить погрузочно-разгрузочные
операции.
Во избежание повреждений
арматурных заготовок при монтаже строповать их следует в строго определенных
точках. Места строповки длинномерных и пространственных элементов должны быть
определены проектом производства работ и отмечены на каркасах несмываемой
краской.
Сетки стропуют в четырех
точках с помощью пространственной траверсы, каркасы - с помощью двухконцевых
стропов или траверс.
Арматуру можно
устанавливать только после проверки опалубки, подписания акта и составления на
нее исполнителей схемы. Необходимо проверить установку закладных деталей, труб
и других элементов, остающихся в бетоне.
Монтаж арматуры ведут
специализированные звенья арматурщиков. Состав и количество звеньев
определяются видом монтируемой арматуры и объемом работ. Последовательность
установки арматуры должна быть такой, чтобы ранее установленные элементы не
затрудняли последующий монтаж и была обеспечена устойчивость установленной
арматуры.
1.2 Проектирование
состава бетона
1.2.1 Расчет номинального состава
бетона и его корректировка с учетом влажности заполнителей
Подбор состава бетона следует производить в соответствии с требованиями
СТБ 1182-99 [1] с целью получения бетона в конструкциях с прочностью и другими
показателями качества, установленными государственными стандартами,
техническими условиями или проектной документацией на эти конструкции, при
минимальном расходе цемента или другого вяжущего.
Подбор номинального состава бетона производят при организации
производства новых видов конструкций, изменении нормируемых показателей
качества бетона или бетонной смеси, технологии производства, поставщиков, вида
или марок применяемых материалов, а также при разработке и пересмотре
производственных норм расхода материалов.
Рабочие составы бетона назначают при переходе на новый номинальный состав
и далее при поступлении новых партий материалов тех же видов и марок, которые
принимались при подборе номинального состава, с учетом их фактического
качества. При назначении рабочих составов их проверяют в лабораторных или
производственных условиях.
В дальнейшем по результатам операционного контроля качества материалов
данных партий и получаемой из них бетонной смеси, а также приемочного контроля
качества бетона производят корректировку рабочих составов.
Рабочую дозировку назначают по рабочему составу бетонной смеси с учетом
объема приготовляемого замеса.
Подбор состава бетона должен выполняться лабораторией
предприятия-изготовителя бетонной смеси по утвержденному заданию,
разработанному технологической службой этого предприятия.
Результаты подбора номинального состава бетона, отвечающего требованиям
утвержденного задания, должны быть оформлены в журнале подбора состава бетона и
утверждены главным инженером предприятия-изготовителя бетонной смеси. Рабочие
составы и дозировки подписываются начальником лаборатории или другим лицом,
ответственным за подбор состава бетона.
Задание, журнал подбора номинального состава бетона, ведомости рабочих
составов и листы рабочих дозировок вместе с дубликатами документов о качестве
на соответствующие партии бетонной смеси или конструкций следует хранить на
предприятии-изготовителе.
Расчет ориентировочного
состава бетона.
Исходные данные для проектирования состава бетонной смеси:
Тяжелый
бетон
;
;
Фракция
5 - 20мм; ОК= 2..5см;
Качество
заполнителей среднее;
Песок:
= 1500 кг/м3;
= 2500 кг/м3;
Цемент:
= 1100 кг/м3;
= 3100 кг/м3;
Щебень:
= 1600 кг/м3;
= 2700 кг/м3;
= 42 МПа;
= 39,3 МПа;
= 1,4 мм.
Расчет состава бетона выполняют в
следующей последовательности:
Определяют водоцементное отношение В/Ц -
отношение массы воды к массе цемента из условий получения требуемого класса
бетона в зависимости от активности цемента и качества материалов по формулам:
при В/Ц
0,4
при В/Ц
0,4
где
и
- коэффициенты, учитывающие качество материалов (А1=0,60);
- активность цемента, МПа;
- предел прочности бетона на сжатие, МПа.
Определяют
расход воды В, кг/м3, в зависимости от удобоукладываемости бетонной
смеси, вида и крупности заполнителя ориентировочно или на основании предварительных
испытаний:
В
= 190 кг/м3.
Определяют
расход цемента Ц, кг/м3, по известному В/Ц и водопотребности
бетонной смеси:
где
В = 190 кг/м3 - расход воды;
В/Ц
- отношение массы воды к массе цемента.
Нормы расхода цемента не должны превышать
типовые по СНиП 5.01.23-83.
Для неармированных сборных изделий
минимальная норма расхода цемента должна быть не менее 200 кг/м3,
для железобетонных изделий - не менее 220 кг/м3.
Определяют расход крупного заполнителя Щ, кг/м3,
по формуле:
,
где
пустотность щебня в рыхлонасыпанном состоянии,
подставляется в формулу в виде коэффициента;
насыпная
плотность щебня, кг/м3;
истинная
плотность щебня, кг/м3;
коэффициент
раздвижки зерен щебня.
,
Тогда
кг.
Определяют
расход песка П, кг/м3, по формуле:
где Ц, В, Щ - расход цемента, воды, щебня
в килограммах на 1м3 бетонной смеси;
истинная плотность материалов, кг/м3.
кг.
В результате проведенных расчетов получаем
следующий ориентировочный номинальный состав бетона, кг/м3:
Цемент…..........................................................317
кг;
Вода………......................................................190
кг;
Песок……………………………………………482 кг;
Щебень………………………………………....1395 кг.
Плотность бетона:
кг/м3.
Корректировка плотности бетона.
Для получения проектной плотности бетона,
сохраняя водоцементное отношение, увеличиваем расход щебня до 1441 кг, песка до
498 кг.
В итоге получаем:
Цемент…..........................................................317
кг;
Вода………......................................................190
кг;
Песок……………………………………………498 кг;
Щебень…………………………………………1441 кг.
Плотность бетона:
кг/м3.
Корректирование состава
бетона с учетом влажности заполнителей
Влажность заполнителей составляет:
· песка 1%;
· щебня 1%.
Содержание воды в щебне:
;
кг.
Содержание
воды в песке:
;
кг.
Необходимое количество воды затворения:
;
кг.
Содержание воды в заполнителях не является
избыточным, по этому необходимости в их подсушки нет.
Итого:
Цемент…..........................................................317
кг;
Вода………......................................................170,61кг;
Песок
498
………………………………..503 кг;
Щебень1441
………...………………….1455,41 кг.
Плотность бетона:
Подбор
состава бетона химическими добавками
Требуется
определить состав бетона класса
с
добавкой ХК+НН (хлористый кальций + нитрит натрия). Температура наружного
воздуха -11°С, скорость ветра 10м/с, расход
стали 111 кг/м3. Состав бетона в летних условиях в расчете на 1 м3:
Цемент 317
кг/м3; Вода 190 кг/м3;
Песок 498
кг/м3; Щебень 1441 кг/м3;
Согласно
данным таблицы 6.5 [2, с. 142] при указанных исходных данных и использовании не
отогретых заполнителей количество добавки ХК+НН должно составлять 10% от массы
цемента или (317×0,10) = 31,7 кг при максимальной концентрацией.
Согласно таблице 6.7 [2, с. 145] один литр 42% концентрации раствора ХК+НН с
плотностью r =1,263 г/см3 содержит 0,530 кг соли. Для
обеспечения в бетоне требуемого количества добавки необходимо следующее
количество концентрированного раствора добавки:
ХК+НН
= 31,7/0,530 = 60 л.
В
этом объеме раствора содержится воды в количестве:
,263360 = 75,8 л
С
учетом 1% влажности песка (49830,01=4,98л) и с учетом
1% влажности щебня (144130,01=14,41л) суммарное количество воды в заполнителях
и концентрированном растворе добавки будет равно:
В
= 75,8 + 4,98 + 14,41 = 95,19 л.
Расход
материала на 1 м3 бетона при дозировке составит:
цемент
311 кг; песок 498×1,045 = 520,4 кг; щебень 1441×1,045 = 1505,8 кг.
Оставшаяся
часть воды затворения в количестве 190-170,61=19,39л используется для
разбавления концентрированного раствора добавки ХК+НН.
Количество
добавки после разбавления концентрированного раствора составит (в рабочей
концентрации):
%.
Согласно
таблице 6.7 [2] плотность рабочего раствора при контроле её ареометром должна
составить:
t=d-15,1-A×(t-20),
где dt, d-11
- плотность раствора, соответственно, при фактической температуре и -11°С;
А - температурный коэффициент
плотности раствора (г×°С/м3);- фактическая температура бетона,°С.
19 = 1,263 - 0,00045×(-11-20)=1,273
г/см3.
Содержание соли в растворе:
1.3 Технологическая карта на бетонирование
монолитной конструкции
До начала устройства монолитной
железобетонной стены должны быть выполнены следующие работы:
устроены подъездные пути и
автодороги;
обозначены пути движения механизмов,
места складирования, укрупнения элементов опалубки, подготовлена монтажная
оснастка и приспособления;
завезены арматурные сетки, каркасы и
комплекты опалубки в количестве, обеспечивающем бесперебойную работу не менее,
чем в течение двух смен;
составлены акты приемки в
соответствии с требованиями нормативных документов;
предусмотрены мероприятия по
обеспечению сохранения арматурных выпусков из фундаментных плит от коррозии и
деформации;
произведена геодезическая разбивка
осей и разметка положения стен в соответствии с проектом; на поверхность
фундаментной плиты краской нанесены риски, фиксирующие положение рабочей
плоскости щитов опалубки.
Работы выполняются в 2 смены.
В состав работ, рассматриваемых
картой, входят:
вспомогательные (разгрузка,
складирование, сортировка арматурных изделий и комплектов опалубки);
арматурные;
опалубочные;
бетонные.
Разгрузку, сортировку, раскладку
арматурных сеток, армокаркасов, элементов опалубки, монтаж армокаркасов, сеток
и укрупненных панелей опалубки, навеску площадок, а также демонтаж опалубки
выполняют с помощью автокранов КС-2561Д. Количество кранов принимается согласно
ППР.
Арматурные сетки и армокаркасы
поступают на стройплощадку в собранном виде.
Опалубочные панели собирают из
отдельных щитов на специальных стендах. Последовательность сборки приведена
ниже:
щиты укладывают рабочей поверхностью
вниз, в местах установки монтажных и рабочих креплений кладут деревянные рейки;
выверяют габаритные размеры панелей,
по контуру панелей прибивают деревянные бруски-ограничители;
щиты соединяют между собой пружинными
скобами или крюками;
в местах расположения деревянных реек
щиты соединяют болтами;
в деревянных рейках в местах пропуска
стяжек просверливают отверстия диаметром 18 - 20 мм;
поверх щитов раскладывают схватки;
схватки со щитами соединяют натяжными
крюками с клиновым или винтовым запором;
поверх схваток перпендикулярно им
укладывают связи жесткости, для чего используют те же схватки;
схватки со связями соединяют болтами;
на верхнем ярусе схваток укрепляют
монтажные петли;
к нижним ярусам схваток или связям
жесткости прикрепляют подкосы, обеспечивающие устойчивость панелей в
вертикальном положении.
В данной технологической карте даны
схемы укрупненных панелей опалубки высотой 2,1 м и 1,8 м (на высоту яруса
бетонирования) и длиной 4,55 мм.
Работы по возведению монолитной стены
подвала выполняются в определенной последовательности.
Укладывают по всему периметру стены
маячные рейки, которые крепят гвоздями к деревянным пробкам, заложенным в
фундаментной плите; внутренняя грань рейки должна совпадать с наружной гранью
бетонируемой стены.
Устанавливают наружные опалубочные
панели первого яруса.
Укладывают арматурные сетки и каркасы
на всю высоту с раскреплением их расчалками; на арматурных сетках и каркасах
располагают фиксаторы с шагом 1 м для создания защитного слоя бетона; работы ведутся
с передвижных площадок; для временного крепления арматурных каркасов к опалубке
используются струбцины.
Устанавливают наружные опалубочные
панели стены второго яруса и внутренние опалубочные панели первого яруса.
Опалубочные панели устанавливают таким образом, чтобы нижнее внутреннее ребро
панели совпало с нанесенными рисками. Между панелями кладут
прокладки-компенсаторы из деревянных реек или оргалита для ликвидации всех
отклонений в проектных размерах панели. Смежные панели соединяют пружинными крюками
или болтами. Установку панелей опалубки производят с передвижных площадок. На
монтируемых опалубочных панелях первого яруса должны быть закреплены подкосы.
Стропы подъемного механизма могут быть освобождены лишь после того, как
установленная и выверенная относительно горизонтальной оси панель раскреплена
расчалками. После расстроповки ставят монтажные крепления между
противоположными панелями. Для этого в отверстия деревянных реек пропускают
проволочные стяжки и на их концах укрепляют клиновые замки. Затем с помощью
регулировочных винтов подкосов выверяют панели относительно вертикальной оси.
После соединения противоположных панелей и установки временных распорок
инвентарные подкосы снимают и используют при монтаже других панелей. Расчалки
оставляют до укладки в опалубку бетонной смеси.
Бетонируют 1 ярус стены по высоте.
Бетонную смесь укладывают слоями 30 - 40 см. Бетонная смесь должна иметь осадку
конуса 4 - 12 см. Подбор и назначение состава бетонной смеси осуществляется
строительной лабораторией. Бетонирование стены производится автобетононасосом
(базовый вариант) в сочетании с необходимым количеством автобетоносмесителей.
Бетонирование стены следует производить без перерыва участками по 20 м с
устройством заглушек из стальной сетки. При бетонировании стреловыми
самоходными кранами (варианты 2, 3) подача бетонной смеси производится в
поворотных бункерах вместимостью 1 м3. Строповку бункера производят
двухветвевым стропом грузоподъемностью 5 т.
Устанавливают наружные опалубочные
панели третьего яруса и внутренние опалубочные панели второго яруса. На щитах
нижележащей панели закрепляют прокладки из деревянных реек. Вертикальные связи
нижележащих панелей соединяют с вертикальными связями вышележащих панелей.
Внутренние панели второго яруса крепятся расчалками к наружным панелям третьего
яруса. На внутренние панели навешивают рабочие площадки для бетонирования.
Производят выверку панелей и устанавливают рабочие крепления (проволочные)
стяжки.
Бетонируют II ярус стены. Устанавливают внутреннюю
опалубку третьего (верхнего) яруса. После выверки панелей на уровне верхнего
яруса устанавливают 2 - 3 временные деревянные распорки, которые привязывают
проволокой к стяжкам.
Бетонируют III ярус стены.
Мероприятия по уходу за бетоном в период набора прочности, порядок и
сроки их проведения, контроль за выполнением этих мероприятий необходимо
осуществлять в соответствии с требованиями СНиП 3.03.01-87 <C:\Documents
and Settings\Admin\Local Settings\Temp\Rar$DI00.563\910.htm>. Открытые
поверхности бетона необходимо защитить от потерь влаги путем поливки водой или
укрытия их влажными материалами (брезентом). Сроки выдерживания и периодичность
поливки назначает строительная лаборатория.
При производстве работ в зимних условиях принимают меры по обеспечению
нормального твердения бетона при ожидаемой среднесуточной температуре наружного
воздуха ниже 5 °С и минимальной суточной температуре ниже 0 °С в соответствии
со СНиП 3.03.01-87 <C:\Documents and Settings\Admin\Local
Settings\Temp\Rar$DI00.563\910.htm>.
Демонтаж боковых элементов опалубки следует производить после
достижения бетоном прочности, обеспечивающей сохранность поверхности и кромок
углов от повреждений.
Демонтаж опалубки производят с передвижных площадок в следующем
порядке:
снимают замки на стяжках;
убирают навесные площадки;
снимают крепления, соединяющие смежные опалубочные панели;
убирают расчалки и подкосы;
стропят демонтируемую опалубочную панель, производят ее отрыв от
забетонированной конструкции с помощью ломика или ручного домкрата;
переставляют панель на площадку складирования.
Варианты рекомендуемых машин и оборудования для возведения монолитной
железобетонной стены приводятся в табл. 1.
|
Наименование комплекта машин и оборудования
|
Техническая характеристика
|
Марка
|
Количество, шт.
|
|
Кран монтажный
|
Кран автомобильный грузоподъемностью 6,3 т
|
КС-2561Д
|
2
|
|
Машины для бетониро-вания
|
Автобетононасос производительностью 17 м3/ч
|
СБ-126А
|
1
|
|
Кран гусеничный грузоподъемностью до 16 т
|
МКГ-16М
|
1
|
|
Кран пневмоколесный грузоподъемностью до 16 т
|
КС-4362
|
1
|
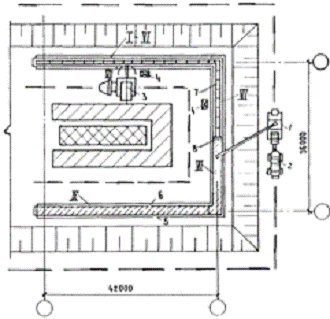
СХЕМА ВОЗВЕДЕНИЯ МОНОЛИТНОЙ
ЖЕЛЕЗОБЕТОННОЙ СТЕНЫ ПРИ УКЛАДКЕ БЕТОННОЙ СМЕСИ АВТОБЕТОНОНАСОСОМ (1 вариант)
СХЕМА ВОЗВЕДЕНИЯ МОНОЛИТНОЙ
ЖЕЛЕЗОБЕТОННОЙ СТЕНЫ ПРИ УКЛАДКЕ БЕТОННОЙ СМЕСИ С ПОМОЩЬЮ СТРЕЛОВОГО КРАНА (2, 3 варианты)
Состав работ
I - установка наружной опалубки 1-го
яруса
II - установка арматурных сеток и
каркасов
III - установка внутренней опалубки 1-го
яруса и наружной опалубки 2-го яруса
IV - бетонирование 1-го яруса
V - установка внутренней опалубки 2-го
яруса и наружной опалубки 3-го яруса
VI - бетонирование 2-го яруса
VII - установка внутренней опалубки 3-го
яруса
VIII - бетонирование 3-го яруса
IX - разборка опалубки
- автобетононасос
- автобетоносмеситель
- автомобильный кран
- передвижные подмостки
- наружная опалубка
- внутренняя опалубка
- арматурные каркасы
- заглушки
- бункеры поворотные
- стреловой кран
- складские площадки
- площадки укрупнительной сборки панелей опалубки
- направление движения автобетононасоса при возведении
стены
ОСНОВНЫЕ ЭТАПЫ ВОЗВЕДЕНИЯ МОНОЛИТНОЙ
ЖЕЛЕЗОБЕТОННОЙ СТЕНЫ
а - установка арматурных каркасов; б
- установка панелей опалубки; в - укладка бетонной смеси
автобетононасосом (вариант 1), г - укладка бетонной смеси с помощью стрелового
крана (варианты 2, 3)
- панель опалубки; 2 - подкос; 3 -
арматурный каркас; 4 - фиксаторы для создания защитного слоя; 5 - арматурные
выпуски; 6 - струбцины; 7 - строп; 8 - расчалки; 9 - якорь; 10 - передвижные
подмости; 11 - навecная площадка; 12 - лоток; 13 - бункер поворотный; 14 -
стреловой кран; 15 - стяжки монтажные; 16 - распорки; 17 - автобетононасос.
СХЕМА РАСКЛАДКИ ПАНЕЛЕЙ ОПАЛУБКИ СТЕН
ПОДВАЛА
- укрупненные панели опалубки (УП-1,
УП-2)
- добор из отдельных щитов
- торцевая опалубка
- прокладки-компенсаторы между
панелями
- подкосы
- стяжка
- стяжка монтажная
- распорка
- маячная рейка
- фундаментальная сварка
- клиновой замок
- арматурные каркасы
- арматурные сетки
- монтажная сварка
Калькуляция затрат
Таблица 2 - Определение трудоёмкости, механоёмкости
производства монолитных бетонных работ и их продолжительности.
|
Наименование работ
|
Объем работ
|
§ в ЕНиР
|
Норма времени
|
Трудоемкость
|
Состав звена
|
Продолжительность работ, дни
|
|
Ед. изм.
|
Кол.
|
|
ТК, ч·час
|
по ЕНиР, ч·час
|
ТК, чел·дни
|
по ЕНиР, чел·дни
|
Профессия, разряд
|
Кол
|
|
|
1
|
2
|
3
|
4
|
5
|
6
|
7
|
8
|
9
|
10
|
11
|
|
Опалубочные работы
|
|
Монтаж опалубки
|
1 м2
|
356
|
Е4-1-37
|
0,22
|
0,23
|
15,16
|
14,15
|
Слесарь строительный IV -//- III
|
1 2
|
2,71
|
|
Демонтаж опалубки
|
1 м2
|
356
|
Е4-1-37
|
0,078
|
0,12
|
3,08
|
8,15
|
Слесарь строительный III -//- II
|
1 2
|
1,75
|
|
Арматурные работы
|
|
Установка арматурных сеток и каркасов вручную
|
1 шт.
|
142
|
Е4-1-44
|
0,065
|
0,15
|
1,55
|
3,28
|
Арматурщик III Арматурщик II
|
1 2
|
1,5
|
|
Бетонные работы
|
|
Прием бетонной смеси из кузова автомобиля-самосвала
и подача к месту бетонирования
|
1 м3
|
112
|
Е4-1-48
|
0,3
|
0,29
|
3,75
|
5,49
|
Бетонщик II
|
4,35
|
|
Укладка бетонной смеси в опалубку
|
1 м3
|
112
|
Е4-1-49
|
0,3
|
0,75
|
3,89
|
11,64
|
Бетонщик IV Бетонщик II
|
1 1
|
4,8
|
Пооперационные графики производства работ
1.4 Расчет трудозатрат и затрат
средств механизации
1. Нормативные затраты труда рабочих,
чел.-ч:
на весь объем - 1936,6
на 100 м3 - 523,4.
. Нормативные затраты машинного
времени, маш.-ч:
на весь объем - 438,14
на 100 м3 - 118,49.
. Заработная плата
рабочих-монтажников, р.-к.:
на весь объем - 1424-13.
. Заработная плата механизаторов,
р.-к.:
на весь объем - 417,43.
. Продолжительность выполнения работ,
смена - 37,3.
. Выработка на одного рабочего в
смену, м3 - 1,57;
с учетом механизаторов - 1,28.
. Условные затраты на механизацию для
базового варианта, р.-к. - 1894-00.
. Сумма изменяемых затрат, р.-к. -
3318-13.
1.5 Расчет потребности в основных
строительных материалах и конструкциях
Таблица 1 - Потребность в инструменте, инвентаре
и приспособлениях
|
Наименование
|
Марка, техническая характерис-тика,
ГОСТ, № чертежа
|
Количество по вариантам
|
Назначение
|
|
|
1
|
2
|
3
|
|
|
Бункер
|
Проект 389-2.00.000
|
-
|
1
|
1
|
Подача бетонной смеси
|
|
Вибратор глубинный
|
ИВ-47А ТУ-22-4666-80
|
1
|
1
|
1
|
Вибрирование уложенной бетонной смеси
|
|
Строп двухветвевой
|
2СК-5,0;500 ГОСТ 25573-82*
|
1
|
1
|
1
|
Подъем элементов
|
|
Строп четырехветвевой
|
4СК 1-0,8 ГОСТ 25573-82
|
1
|
1
|
1
|
То же
|
|
Домкрат ручной
|
ГОСТ 18042-72
|
1
|
1
|
1
|
Распалубка
|
|
Навесные площадки
|
ЦНИИОМТП Р.Ч. «Монолит-77» 2493.00.000
|
20
|
20
|
20
|
Бетонирование стен
|
|
Лоток
|
|
-
|
1
|
1
|
Для спуска бетонной смеси в опалубку
|
|
Передвижные подмости
|
ЦНИИОМТП
|
2
|
2
|
2
|
Установка армокаркасов и панелей опалубки
|
|
Уровень строительный
|
Тип УС 2 ГОСТ 9416-83
|
1
|
1
|
1
|
Проверка установки элементов опалубки и армокаркасов
|
|
Отвес строительный
|
ОТ-400 ГОСТ 7948-80
|
1
|
1
|
1
|
То же
|
|
Ключ гаечный разводной
|
ГОСТ 7275-75
|
2
|
2
|
2
|
Установка опалубки
|
|
Метр складной
|
РСТ 149-76
|
2
|
2
|
2
|
Обмер конструктивных элементов
|
|
Рулетка металлическая
|
РС-20 ГОСТ 7502-80*
|
1
|
1
|
1
|
То же
|
|
Термометр стеклянный технический
|
ГОСТ 2823-73*Е (СТ СЭВ 2944-81)
|
1
|
1
|
1
|
Проверка температурного режима при твердении бетона
|
|
Влагомер
|
ГОСТ 15528-70*
|
1
|
1
|
1
|
Проверка влажностного режима при твердении бетона
|
|
Дрель универсальная
|
ТУ 1-370-72
|
1
|
1
|
1
|
Установка опалубки
|
|
Плоскогубцы комбинированные
|
ГОСТ 17439-72*Е
|
2
|
2
|
2
|
Опалубочные и арматурные работы
|
|
Зубило слесарное
|
ГОСТ 7211-86Е
|
1
|
1
|
1
|
«
|
|
Кусачки
|
ГОСТ 7282-75*
|
2
|
2
|
2
|
«
|
|
Клещи 250
|
ГОСТ 14184-83
|
1
|
1
|
1
|
«
|
|
Отвертка
|
ГОСТ 17199-71**Е
|
1
|
1
|
1
|
«
|
|
Ножницы
|
ГОСТ 7210-75
|
1
|
1
|
1
|
«
|
|
Молоток слесарный
|
ГОСТ 2310-77*Е
|
1
|
1
|
1
|
«
|
|
Щетка стальная
|
ТУ 36-2460-82
|
10
|
10
|
10
|
Очистка опалубки
|
|
Кисть маховая
|
КМ-65 ГОСТ 10597-80*
|
2
|
2
|
2
|
Смазка поверхности опалубки эмульсией
|
|
Лом стальной
|
ЛО-24 ГОСТ 1405-83
|
1
|
1
|
1
|
Опалубочные работы
|
|
Лопата растворная
|
ГОСТ 3620-76
|
2
|
2
|
2
|
Укладка бетонной смеси
|
|
Поливочный рукав
|
длина 40 м
|
1
|
1
|
1
|
Поливка бетонных поверхностей
|
Потребность в материалах и
полуфабрикатах для выполнения работ по возведению монолитных железобетонных
стен приведена в табл. 2.
Таблица 2 - Потребность в материалах и
полуфабрикатах.
|
Наименование материала, полуфабриката, конструкций
(марка, ГОСТ)
|
Исходные данные
|
Потребность в материалах
|
|
Единица измерения
|
Объем работ в нормативных единицах
|
Принятая норма расхода материалов
|
|
|
Унифицированная разборно-переставная опалубка
ЦНИИОМТП «Монолит-77» Арматурные изделия Бетонная смесь В10, В15 Эмульсия ЭКС
Электроды
|
м2
|
1470
|
0,0785 т
|
115,4
|
|
м3 стены
|
370
|
0,23 т
|
85,1 т
|
|
м3
|
370
|
1,015 м3
|
376 м3
|
|
м2 оп-ки
|
1470
|
0,36 кг
|
529 кг
|
|
100 св. соед.
|
39
|
37 кг
|
1443 кг
|
1.6 Организационно-технологические
схемы возведения объекта (выбор кранов)
Грузоподъёмный механизм подбирают по 4 - м параметрам:
грузоподъёмность - Q;
высота подъёма крюка или стропы - Нк;
вылет крюка - Lкp;
длина стрелы - Lc.
Грузоподъёмность определяется по формуле:
Q = m1 +m2,
где m1 - масса элемента;
m2 - масса устройств, т.
Для подбора крана принимаем расстояние от уровня стоянки до
опоры монтируемых элементов на верхнем монтажном горизонте:
h0=6 м - высота опалубки,
м;
Высота бадьи : hэ=3,6 м.
Безопасное расстояние: hб=0,5 м.
Высота полиспасты: hп=1,5 м.
Так как бадья с бетоном (mэ) намного тяжелее опалубки, то
принимаем для неё строп четырёхветвевой грузоподъёмностью до 5 тонн, масса
которого m1-0,05 т и расчётная высота hт=1,5 м.
Масса бадьи с бетоном mэ=4,5 т, тогда:
Q = 4,5 + 0,05 = 4,55 т,
Высота подъёма крюка
Hk=h0+hб+hэ+hт+hn,
Hk = 6 +0,5 + 3,6+ 3 +1,5 = 14,6 м.
По полученным результатам выбираем кран КС-2561Д с высотой подъема
- 25м, вылетом стрелы
-9 м и грузоподъемностью
- 6,3 т.
2. Интенсификация бетонных работ
при отрицательной температуре
2.1 Выбор метода и технологические
расчеты
Существующие методы зимнего бетонирования
подразделяют на две основные группы: с безобогревным выдерживанием бетона и с
искусственным прогревом бетона монолитных конструкций. Методы бетонирования с
искусственным прогревом позволяют не только непрерывно вести работы в зимних
условиях, но и интенсифицировать процесс набора прочности бетоном, сократить
сроки строительства и увеличить темпы оборачиваемости опалубки.
К методам зимнего бетонирования с
безобогревным выдерживанием бетона относят метод «термоса» и его разновидности:
с применением противоморозных добавок и с предварительным разогревом бетонной
смеси.
К методам бетонирования с искусственным
прогревом бетона конструкций относят электротермическую обработку
(электропрогрев сквозной и периферийный, индукционный электропрогрев, греющие
опалубки), прогрев бетона паром, горячим воздухом и в тепляках, обогрев
инфракрасными лучами.
При выборе и проектировании методов зимнего бетонирования
исходят из реальных условий, которые существуют или могут быть созданы на
конкретном объекте.
В общем случае выбор метода зимнего бетонирования зависит от размеров и
назначения конструкции, от возможности изготовления их на заводах и полигонах,
от ожидаемых наружных температур, применяемых цементов, наличия на строительстве
источников тепла, химических добавок, теплоодежд и др.
Именно все эти факторы сведены во едино и нашло отражение в СНиПе
III-15-76 (п.5.3) в качестве рекомендаций, согласно которым предпочтение
следует отдавать методу термоса - как обычному, так и кратковременному
электропрогреву бетонной смеси в бункере с последующим термосным остыванием
бетона в конструкции.
Сущность метода термоса заключается в том, что бетон вследствие
предварительного нагрева и энергии гидратации цемента при надлежащем утеплении
способен продолжительное время сохранять продолжительную температуру, набирать
необходимую по проекту прочность до того, как наступает замерзание.
При проектировании бетонных работ с выдерживанием бетона по методу
«термоса» выполняют теплотехнический расчёт.
Сущность данного метода состоит в том, что бетонная смесь непосредственно
перед укладкой кратковременно прогревается в бадье путём пропускания
электрического тока промышленной частоты. Затем смесь укладывается в горячем
состоянии и в дальнейшем приобретает заданную прочность в процессе медленного
остывания в утеплённой опалубке.
Метод «термоса»
Теплотехнический расчёт по методу термоса выполняется в следующей
последовательности. монолитный бетон опалубочный арматурный
Определяем объём бетона в конструкции (рис.3.2.1) по формуле:
;
;
;
;
.
Определяем
поверхность охлаждения конструкции:
;
=300×2400×2=1,44
м2
=300×1800×2=1,08
м2
=300×2100×2=1,26
м2
=300×1200×2=0,72
м2
=2400×2100=5,04 м2
=1200×1200×4=5,76 м2
=5,04+1,44+1,26+1,08+0,72+5,76=153
м2.
Рисунок 7 - Общий вид столбчатого фундамента под колонну.
Находим модуль поверхности конструкции:
;
м-1
Определяем
начальную температуру бетона с учётом нагрева арматуры:
,
где
- удельная теплоёмкость арматуры, кДж/(кг·ºС);
- расход
арматуры, кг/м3.
=1,047Вт/м3;
=0,48 Вт/м3;
=111 кг/м3; γ1=γ2=2450
кг/м3; tб.н=235 ºС; tВ=-11 ºС.
ºС,
При
марке бетона М500 и марке цемента М500 по графикам [9, стр. 12] определяем
= 21 ºС, при
которой бетон набирает прочность 70% в течение 5 суток.
Ориентировочно
определяем коэффициент теплопередачи опалубки:
;
= 2,7
кДж/(м2·ч·ºС) =0,74 Вт/(м2·ºС).
По
таблице 4 [9, стр. 27, 28] ориентировочно назначаем следующую конструкцию
опалубки:
Рисунок
8 - Схема опалубки фундамента.
Для
данной конструкции опалубки при скорости ветра 5 м/с к=0,8 Вт/(м2·ºС). Определяем удельный тепловой поток через опалубку:
;
= 36,67 Вт/м2.
По
графику (рис. 2) [9, стр. 12] получаем, что коэффициент теплоотдачи конвекции
при скорости ветра 10 м/с равен αК =33,15
Вт/(м2·ºС). При коэффициенте излучения наружного слоя опалубки
(фанеры) равном примерно 4,44 Вт/(м2·ºС) принимаем температуру наружной поверхности наружной
стенки опалубки равной
= -12 ºC, тогда
коэффициент теплоотдачи излучением αЛ = 0.
Проверяем
правильность заданной температуры на наружной стороне опалубки:
;
=-12,3
Определим
процент ошибки:
;
Процент
ошибки в пределах допуска.
По [9] формуле (10) определяем температуру нагрева опалубки:
0С
По [9] формуле (11) определяем количество тепла, идущее на
нагрев опалубки:
где Cj, Fj,бj, Yi -
соответственно удельная теплоемкость, площадь, толщина, объемная масса
материала опалубки. Значения 1 и
4 берутся из приложения 1 9] , таблица 5
Сдоска= 2,52 кДж/(кг • °С); δдоска = 0,025м; Yдоска=700кг/м3.
Спенопласт=1,34 кДж/(кг • °С); δпенопласт=0,030м; Yпенопласт=74 кг/м3.
Сфанера=2,52 кДж/(кг • °С); δфанера=0,004м; Yфанера=600 кг/м3.
Найдем площади:
F=2ּ0,3ּ2,408+2ּ0,3ּ2,108+2ּ0,3ּ1,808+2ּ0,3ּ1,208+1,208ּ1,2ּ4+2,408ּ2,108 =
=15,36 м2.
F=2ּ0,3ּ2,468+2ּ0,3ּ2,168+2ּ0,3ּ1,868+2ּ0,3ּ1,268+1,268ּ1,2ּ4+2,468ּ2,168 = =16,1 м2
F=2ּ0,3ּ2,518+2ּ0,3ּ2,218+2ּ0,3ּ1,918+2ּ0,3ּ1,318+1,318ּ1,2ּ4+2,518ּ2,218 = =16,7 м2.
По [9] находим температуру бетона с
учетом потерь тепла, затраченных на нагрев арматуры и опалубки
Значение коэффициентов теплоотдачи опалубки уточняем по
формуле:
кДж/(м2ּ÷ּ0С)=1,2 Вт/м2
0С
В связи с тем, что найденный коэффициент теплоотдачи
опалубки отличается от ранее полученного, для принятой ранее конструкции
опалубки рассчитываем требуемую толщину слоя теплоизоляции . Для этой цели
определяем коэффициент теплопроводности материалов опалубки, нагретых до tpon = 10,84°С:
доска:
= 0,17 • (l + 0,025 • 10,84) = 0,216 Вт/(м °С).
пенопласт:
= 0,17
• (l + 0,03 • 10,84) = 0,225Вт/(м
°С).:
фанера:
= 0,17 • (l +
0,004 • 10,84) = 0,177Вт/(м °С).
Находим толщину теплоизоляции по формуле:
где
из и
\ - коэффициент
теплопроводности соответственно теплоизоляции и составляющих материалов
опалубки при ton, Вт/(м-°С)
м
= 150мм
По [3] формуле (16)
уточняем удельный тепловой поток, теряемый бетоном через опалубку:
Вт/м2
Окончательно определяем
температуру наружной поверхности опалубки:
0С
Уточняем процент ошибки по формуле:
Определяем температуру бетона к концу выдерживания:
6,3
0С
Продолжительность
остывания бетона окончательно проверяем по формуле:
ч
=5,6сут.
Вывод: окончательный срок остывания составил 5,6 суток, что соответствует
условию задачи и подобранная опалубка подходит для работ при данных
температурах.
3.
Статистический контроль прочности бетона
3.1 Àíàëèç
ïðî÷íîñòè èçäåëèé
â ïàðòèè
Ñðåäíåàðèôìåòè÷åñêîå
çíà÷åíèå.  ðåçóëüòàòå
ýêñïåðèìåíòàëüíûõ
äàííûõ èçìåðåíèé
îïðåäåëÿþò ðàçëè÷íûå
çíà÷åíèÿ èçó÷àåìîãî
ñîñòàâà ìàòåðèàëà,
êàæäîå èç êîòîðûõ
â îòäåëüíîñòè
íå ÿâëÿåòñÿ õàðàêòåðíûì,
ïîýòîìó èñïîëüçóåòñÿ
ñðåäíåàðèôìåòè÷åñêîå
çíà÷åíèÿ.
Ñðåäíåàðèôìåòè÷åñêîå
çíà÷åíèå ÷èñåë
õ1, õ2, …, õn, õàðàêòåðèçóþùèõ
êîëè÷åñòâåííî
îäíî è òîæå ñâîéñòâî
ìàòåðèàëà, îïðåäåëÿþò
ïî ôîðìóëå:
,
ãäå
õi - âàðèàöèîííûé
ðÿä íàáëþäåíèé;-
êîëè÷åñòâî íàáëþäåíèé.
ïðè
n>25
;
ïðè
n≤25
;
,
ãäå
õ0 - ñîìíèòåëüíîå
çíà÷åíèå ñâîéñòâà
ìàòåðèàëà.
Ïóòåì
ñîïîñòàâëåíèÿ
ðàñ÷åòíîãî çíà÷åíèÿ
t ñ òàáëè÷íûìè
êðèòè÷åñêèìè
çíà÷åíèÿìè
t, óñòàíàâëèâàþò
äîñòîâåðíîñòü
ñîìíèòåëüíîãî
íàáëþäåíèÿ.
Èç
òàáëèöû ïðîöåíòíîãî
ðàñïðåäåëåíèÿ
êîëè÷åñòâà âàðèàíòîâ
îïðåäåëÿåì, ÷òî
â ïðåäåëàõ Ì60,67s íàõîäèòñÿ
49% îáùåãî ÷èñëà
âàðèàíòîâ. Ïîñëåäíåå
îçíà÷àåò, ÷òî
ïîãðåøíîñòü èñòèííîãî
çíà÷åíèÿ èçó÷àåìîãî
ñâîéñòâà ìàòåðèàëà
îòíîñèòåëüíî
ê ñðåäíåàðèôìåòè÷åñêîìó
íå ïðåâûøàåò
òðåõêðàòíîãî
çíà÷åíèÿ ñðåäíåêâàäðàòè÷åñêîãî
îòêëîíåíèÿ. Ýòî
îáñòîÿòåëüñòâî
èìåíóåòñÿ çàêîíîì
3s.
Òðåáóåòñÿ
îïðåäåëèòü êîëè÷åñòâî
èçäåëèé ñ ïðåäåëîì
ïðî÷íîñòè ïðè
ñæàòèè 20±4 ÌÏà â
îáùåì îáúåìå
ïàðòèè æåëåçîáåòîííûõ
èçäåëèé, âûïóùåííîé
â òå÷åíèè ðàáî÷åé
ñìåíû è ðàâíîé
280 øò. Èçâåñòíî,
÷òî Ì = 20 ÌÏà, s = ± 6 ÌÏà.
Íàõîäèì
z = 4/6 = 0,67. Ïî òàáëèöå
1.2[1] â ïðåäåëàõ
Ì ± 0,67 íàõîäèòñÿ
49% îáùåãî ÷èñëà
âàðèàíòîâ. Òàêèì
îáðàçîì, ñòàíîâèòñÿ
èçâåñòíûì, ÷òî
49% èç îáùåãî ÷èñëà
(280 øò.), ò.å 137 èçäåëèå
èìåþò ïðåäåë ïðî÷íîñòè
ïðè ñæàòèè 20 ± 4 ÌÏà.
Îäíîâðåìåííî
ìîæíî êîíñòàòèðîâàòü,
÷òî 100% èçäåëèé
ýòîé ïàðòèè èìåþò
ïðåäåë ïðî÷íîñòè
ïðè ñæàòèè â èíòåðâàëå
(20 ± 3·6) ÌÏà, ò.å. îò 2 äî
36ÌÏà.
3.2 Îöåíêà
äîñòîâåðíîñòè
ïîâûøåíèÿ ïðî÷íîñòè
áåòîíà ïðè ïðèìåíåíèè
ðàçíîãî âèäà
çàïîëíèòåëåé
Êîýôôèöèåíò
âàðèàöèè õàðàêòåðèçóåò
èçìåí÷èâîñòü
èçó÷àåìîãî ñâîéñòâà
ìàòåðèàëà.
Ýòîò êîýôôèöèåíò
ïîêàçûâàåò, ñêîëüêî
ïðîöåíòîâ ñîñòàâëÿåò
ñðåäíåêâàäðàòè÷íîå
îòêëîíåíèå îò
ñðåäíåêâàäðàòè÷íîãî
çíà÷åíèÿ èçó÷àåìîãî
ñâîéñòâà ìàòåðèàëà,
è âû÷èñëÿåòñÿ
ïî ôîðìóëå:
.
Ñðåäíÿÿ
îøèáêà ñðåäíåàðèôìåòè÷åñêîãî
çíà÷åíèÿ âû÷èñëÿåòñÿ
ïî ôîðìóëå:
Ñ
ïîìîùüþ ñðåäíåé
îøèáêè ìîæíî
îöåíèòü äîñòîâåðíîñòü
â ðàçëè÷èè äâóõ
ñðàâíèìûõ âåëè÷èí,
êîòîðûå õàðàêòåðèçóþò
ñâîéñòâà ìàòåðèàëà:
ïðè
n³5 , (1)
ïðè
n³25. (2)
Èçãîòîâëåíû
äâå ñåðèè áåòîííûõ
îáðàçöîâ ïî 22 è
24 øò. Ñåðèè îòëè÷àþòñÿ
ìåæäó ñîáîé âèäîì
êðóïíîãî çàïîëíèòåëÿ.
Äëÿ ïåðâîé ñåðèè
îáðàçöîâ Ì = 28 ÌÏà,
m = ± 1,5 ÌÏà; äëÿ âòîðîé
ñåðèè îáðàçöîâ
Ì = 30,5 ÌÏà, m = ± 1,5 ÌÏà. Òðåáóåòñÿ
îöåíèòü äîñòîâåðíîñòü
ïîâûøåíèÿ ïðî÷íîñòè
áåòîíà â ñëó÷àå
ïðèìåíåíèÿ âòîðîãî
âèäà êðóïíîãî
çàïîëíèòåëÿ.
Ñ ïîìîùüþ ñðåäíåé
îøèáêè îöåíèâàåì
äîñòîâåðíîñòü
ñðàâíèâàåìûõ
âåëè÷èí, âîñïîëüçîâàâøèñü
ôîðìóëîé (2), òàê
êàê êîëè÷åñòâî
îáðàçöîâ ïðåâûøàåò
22 øòóê:
.
Òàê êàê óñëîâèå íå âûïîëíÿåòñÿ,
òî ïîíèæåíèå
ïðî÷íîñòè áåòîíà
â ñëó÷àå ïðèìåíåíèÿ
âòîðîãî âèäà
çàïîëíèòåëÿ íåëüçÿ ñ÷èòàòü
äîñòîâåðíûì.
3.3 Îöåíêà
èçìåí÷èâîñòè
ïðî÷íîñòè ëåãêîãî
è òÿæåëîãî áåòîíà
Ñðåäíþþ îøèáêó
ñðåäíåêâàäðàòè÷íîãî
îòêëîíåíèÿ âû÷èñëÿþò
ïî ôîðìóëå:
.
Äîñòîâåðíîñòü
â ðàçëè÷èè äâóõ
çíà÷åíèé s1 è
s2 ñðåäíåêâàäðàòè÷åñêîãî
îòêëîíåíèÿ ïðîâåðÿþò
ïî ôîðìóëå:
.
Ñðåäíþþ
îøèáêó êîýôôèöèåíòà
âàðèàöèè âû÷èñëÿþò
ïî ôîðìóëå:
.
Äîñòîâåðíîñòü
â ðàçëè÷èè äâóõ
çíà÷åíèé êîýôôèöèåíòà
âàðèàöèè (V1 è
V2) ïðîâåðÿþò ïî
ñëåäóþùåé ôîðìóëå:
ïðè
n³5.
Ïî
ðåçóëüòàòàì
èñïûòàíèé 22 îáðàçöîâ
êóáîâ:
· òÿæåëûé áåòîí
Ì1 = 56 ÌÏà, s1 = ± 5,3 ÌÏà;
· ëåãêèé áåòîí
Ì2 = 28 ÌÏà, s2 =62,8 ÌÏà.
Ïðè ïåðâîì ñðàâíåíèè
êàæåòñÿ, ÷òî èçìåí÷èâîñòü
ïðî÷íîñòè òÿæåëîãî
áåòîíà âûøå, ÷åì
ó ëåãêîãî áåòîíà
(ïî àáñîëþòíûì
çíà÷åíèÿì s). Îäíàêî
âû÷èñëåíèÿ äëÿ
êàæäîãî ñëó÷àÿ
êîýôôèöèåíòà
âàðèàöèè ïîêàçûâàþò
îáðàòíîå:
%
%
Çíà÷èò
â äàííîì ñëó÷àå
èçìåí÷èâîñòü
ïðî÷íîñòè ëåãêîãî
áåòîíà íà 0,5% áîëüøå
÷åì òÿæ¸ëîãî.
Äëÿ ïðîâåðêè äîñòîâåðíîñòè
ýòîãî èñïîëüçóåì
ôîðìóëó:
;
;
.
Òàê
êàê óñëîâèå íå
âûïîëíÿòñÿ, òî
ñëåäóåò, ÷òî ïîâûøåíèå
èçìåí÷èâîñòè
ïðî÷íîñòè ëåãêîãî
áåòîíà îòíîñèòåëüíî
èçìåí÷èâîñòè
ïðî÷íîñòè òÿæåëîãî
áåòîíà íå âî âñåõ
ñëó÷àÿõ íàáëþäàåòñÿ,
ò.å. ýòî ðàçëè÷èå
íå âñåãäà ñïðàâåäëèâî.
Äëÿ
îêîí÷àòåëüíîé
îöåíêè ñèòóàöèè
íà äàííîì ïðîèçâîäñòâå
äîëæíû áûòü ïðèâåäåíû
äîïîëíèòåëüíûå
îïûòû ñ ïîâòîðíîé
ïðîâåðêîé îöåíêè
èçìåí÷èâîñòè
ðåçóëüòàòîâ.
Ïîêàçàòåëü
òî÷íîñòè:
Äîïóñòèìàÿ
îøèáêà ýêñïåðèìåíòà
0,02.
Äîïóñòèìàÿ
îøèáêà ýêñïåðèìåíòà
0,023.
Ñðåäíÿÿ
îøèáêà ïîêàçàòåëÿ
òî÷íîñòè:
3.4 Îïðåäåëåíèå
êîëè÷åñòâà îáðàçöîâ
(íàáëþäåíèé)
Ïðàâèëüíîñòü
ïîëó÷åííûõ ðåçóëüòàòîâ
â çíà÷èòåëüíîé
ìåðå çàâèñèò
îò êîëè÷åñòâà
èñïûòàííûõ îáðàçöîâ.
Ïðè íåäîñòàòî÷íîì
êîëè÷åñòâå îáðàçöîâ
ïîëó÷åííûå ðåçóëüòàòû
íå ìîãóò ñ÷èòàòüñÿ
äîñòîâåðíûìè.
×åì áîëüøå êîëè÷åñòâî
îáðàçöîâ, òåì
áëèæå ê èñòèíå
ðåçóëüòàò ýêñïåðèìåíòà.
Íî èñïûòàíèå
áîëüøîãî êîëè÷åñòâà
îáðàçöîâ òðåáóåò
ìíîãî âðåìåíè
è ïðèâîäèò ê ïåðåðàñõîäó
ìàòåðèàëîâ. Ïîýòîìó
íåîáõîäèìî çàðàíåå
ðàññ÷èòàòü íåîáõîäèìîå
êîëè÷åñòâî îáðàçöîâ,
òàê êàê îíî çàâèñèò
îò èçìåí÷èâîñòè
ïîêàçàòåëÿ, òî÷íîñòè
è ïîêàçàòåëÿ
äîñòîâåðíîñòè
èçó÷àåìîãî ñâîéñòâà
ìàòåðèàëà.

,
ãäå n - êîëè÷åñòâî
îáðàçöîâ;
V - êîýôôèöèåíò
âàðèàöèè;
t - ïîêàçàòåëü
äîñòîâåðíîñòè;- ïîêàçàòåëü
òî÷íîñòè.
Äîïóñòèì èçâåñòíî,
÷òî êîýôôèöèåíò
âàðèàöèè ñîñòàâëÿåò
V = 3,5. Òðåáóåòñÿ îïðåäåëèòü
íåîáõîäèìîå
êîëè÷åñòâî ïðîá
äëÿ óñòàíîâëåíèÿ
åãî ïëîòíîñòè.
Åñëè ïîêàçàòåëü
äîñòîâåðíîñòè
ðàâåí t = 3,2, à âåðîÿòíîñòü
ïðèìåì p = 0,97, òî ïîëó÷àåì:
, ñëåäîâàòåëüíî,
n =13 ïðîá.
Ýêîíîìè÷åñêè
âûãîäíî ïðîñ÷èòàòü
îïòèìàëüíîå
êîëè÷åñòâî ïðîá,
â äàííîì ñëó÷àå
èõ êîëè÷åñòâî
ñîñòàâëÿåò 13 øòóê.
3.5 Ñòàòèñòè÷åñêàÿ
îáðàáîòêà ðåçóëüòàòîâ
èñïûòàíèé áåòîíà
íà ñæàòèå
Ïðè èñïûòàíèè
íà ñæàòèå 24 áåòîííûõ
îáðàçöîâ-êóáîâ
ðàçìåðàìè 10310310 ñì ïîëó÷åíû
ñëåäóþùèå ðåçóëüòàòû,
ÌÏà:
|
¹ îïûòà
|
1
|
2
|
3
|
4
|
5
|
6
|
7
|
8
|
9
|
10
|
11
|
12
|
|
Rñæ (Rp),ÌÏà
|
40,1
|
44,1
|
37,1
|
42,6
|
39,9
|
37,3
|
37,1
|
41
|
37,5
|
39,7
|
37,31
|
39,0
|
|
13
|
14
|
15
|
16
|
17
|
18
|
19
|
20
|
21
|
22
|
23
|
24
|
|
45,3
|
44,2
|
44,1
|
43
|
37,5
|
37,4
|
41,3
|
43
|
42,5
|
37,8
|
40,7
|
40,7
|
Òðåáóåòñÿ ñòàòèñòè÷åñêàÿ
îáðàáîòêà ðåçóëüòàòîâ.
Ðåçóëüòàò 45,3 âûçûâàåò
ñîìíåíèå. Ïðîâåðèì
åãî ïðèãîäíîñòü:
ÌÏà;
ÌÏà;
Èç
òàáëèöû ïðè n = 23 ïðèíèìàåì
âåðîÿòíîñòü ðåçóëüòàòà
Ðý = 0,90 è íàõîäèì
tï = 1,64.
Ïðè
ýòîì ñîáëþäàåòñÿ
íåðàâåíñòâî:
t = 1,86 > t =1,64, ÷òî ïîçâîëÿåò
ñóäèòü î ïðèãîäíîñòè
ïîëó÷åííîãî
ðåçóëüòàòà - 45,3ÌÏà.
Ïî
óñëîâèÿì ïåðå÷èñëåíèÿ
ðåçóëüòàòîâ ýêñïåðèìåíòà
â ïîðÿäêå óâåëè÷åíèÿ
èõ çíà÷åíèÿ,
à òàêæå ïî çàïèñÿì
ïîâòîðÿþùèõñÿ
ðåçóëüòàòîâ ñîñòàâèì
òàáëèöó 4.
Òàáëèöà
4 - Ðåçóëüòàòû ýêñïåðèìåíòîâ.
|
Ðåçóëüòàòû
èñïûòàíèÿ îáðàçöîâ,
õ
|
Êîëè÷åñòâî
ïîâòîðÿþùèõñÿ
ðåçóëüòàòîâ
|
Ñóììà ïîâòîðÿþùèõñÿ
ðåçóëüòàòîâ
|
(õ-Ì)
|
(õ-Ì)2
|
å(õ-Ì)2
|
|
37,1 37,3 37,4 37,5 37,8 39,0 39,7 39,9 40,1 40,7 41 41,3
42,5 42,6 43 44,1 44,2 45,3
|
3 1 1 2 1 1 1 1 1 2 1 1 1 1 2 2 1 1
|
111,3 37,3 37,4 75 37,8 39,0 39,7 39,9 40,1 81,4 41 41,3
42,5 42,6 86 88,2 44,2 45,3
|
-3,1 -2,9 -2,8 -2,7 -2,4 -1,2 -0,5 -0,3 -0,1 0,5 0,8 1,1 2
2,1 2,8 3,9 4 5,1
|
9,6 8,41 7,8 7,29 5,76 1,44 0,25 0,09 0,01 0,25 0,64 1,21 4
4,41 7,84 15,21 16 26,01
|
28,8 8,41 7,8 14,58 5,76 1,44 0,25 0,09 0,01 0,5 0,64 1,21
4 4,41 15,68 30,42 16 26,01
|
|
Ñóììà
|
23
|
924,7
|
|
|
166,01
|
Ñðåäíåàðèôìåòè÷åñêîå
çíà÷åíèå:
ÌÏà.
Ñðåäíåêâàäðàòè÷åñêîå
îòêëîíåíèå:
ÌÏà.
Ñðåäíÿÿ
îøèáêà ñðåäíåàðèôìåòè÷åñêîãî
çíà÷åíèÿ:
ÌÏà.
Ìàêñèìàëüíàÿ
îøèáêà ðåçóëüòàòîâ:
ÌÏà.
Êîýôôèöèåíò
âàðèàöèè:
%.
Ïîêàçàòåëü
òî÷íîñòè:
%
4. Îõðàíà
òðóäà è òåõíèêà
áåçîïàñíîñòè
â òåõíîëîãèè
ïðîèçâîäñòâà
æåëåçîáåòîííûõ
èçäåëèé
Ïðè áåòîíèðîâàíèè
â çèìíèõ óñëîâèÿõ
ðàáî÷èå ÷àùå
âñåãî ïîëó÷àþò
â ñòåñíåííûõ
óñëîâèÿõ òåïëÿêîâ
îæîãè ïàðîì, íåðåäêè
ñëó÷àè ýëåêòðîòðàâìàòèçìà
è îòðàâëåíèÿ
õëîðèñòûì êàëüöèåì.
Ê áåòîíèðîâàíèþ
â çèìíèõ óñëîâèÿõ
äîïóñêàþò ðàáî÷èõ,
ïîëó÷èâøèõ ñïåöèàëüíûé
èíñòðóêòàæ è
îáåñïå÷åííûõ
íåîáõîäèìîé
ñïåöîäåæäîé è
ñðåäñòâàìè èíäèâèäóàëüíîé
çàùèòû. Ê îáñëóæèâàíèþ
ïàðîâûõ ñåòåé,
ýëåêòðîóñòàíîâîê
è êîíòðîëþ çà
ðåæèìàìè òåðìîîáðàáîòêè
äîïóñêàþò òîëüêî
ñïåöèàëüíî ïîäãîòîâëåííûõ
ðàáî÷èõ (ýëåêòðèêîâ,
îïåðàòîðîâ, ëàáîðàíòîâ).
Ïðè áåòîíèðîâàíèè
â òåïëÿêàõ ìåæäó
ðàáî÷èìè, êîòîðûå
íàõîäÿòñÿ
òàì, è ìàøèíèñòàìè
êðàíîâ áåòîíîíàñîñîâ
èë.è òðàíñïîð-þâ
äîëæíû áûòü óñòàíîâëåíû
çðèòåëüíàÿ, çâóêîâàÿ
èëè ðàäèî-ÿçü.
 ñëó÷àå ïðèãîòîâëåíèÿ
áåòîííîé ñìåñè
ñ äîáàâêîé õëîðèñòîãî
ëüöèÿ íåîáõîäèìî
èñêëþ÷èòü ïîïàäàíèå
åãî ðàñòâîðà
èëè ïàðîâ ïîìåùåíèå
îïåðàòîðñêîé.
Ïðè ïðåäâàðèòåëüíîì
ýëåêòðîðàçîãðåâå
áåòîííîé ñìåñè
çàïðå-ãòñÿ ïîäàâàòü
íàïðÿæåíèå íà
ýëåêòðîäû áåç
ïðåäâàðèòåëüíîãî
ìëåíèÿ áàäåé
èëè êóçîâà àâòîñàìîñâàëà
è âûõîäà îáñëóæèâàëî
ïåðñîíàëà çà
ïðåäåëû îãðàæäåííîé
îïàñíîé çîíû.
Âõîäèòü
Ïðè ïðîèçâîäñòâå
îïàëóáî÷íûõ,
àðìàòóðíûõ, áåòîííûõ
è ðàñïàëóáî÷íûõ
ðàáîò íåîáõîäèìî
ñëåäèòü çà çàêðåïëåíèåì
ëåñîâ è ïîäìîñòåé,
èõ óñòîé÷èâîñòüþ,
ïðàâèëüíûì óñòðîéñòâîì
íàñòèëîâ, ëåñòíèö,
ïåðèë è îãðàæäåíèé.
Ìîíòàæ óêðóïíåííûõ
ýëåìåíòîâ íàäî
âåñòè ïðè ïîìîùè
êðàíîâ. Óñòàíàâëèâàÿ
êðóïíîáëî÷íûå
ýëåìåíòû îïàëóáêè
â íåñêîëüêî ÿðóñîâ,
íóæíî ñëåäèòü,
÷òîáû êàæäûé
ïîñëåäóþùèé
ÿðóñ ìîíòèðîâàëñÿ
òîëüêî ïîñëå îêîí÷àòåëüíîãî
çàêðåïëåíèÿ ïðåäûäóùåãî.
Ùèòîâóþ îïàëóáêó
êîëîíí, ðèãåëåé
è áàëîê ñ ïåðåäâèæíûõ
ëåñòíèö-ñòðåìÿíîê
äîïóñêàåòñÿ
óñòàíàâëèâàòü
ïðè âûñîòå íàä
óðîâíåì çåìëè
èëè íèæåëåæàùèì
ïåðåêðûòèåì íå
áîëåå 5,5 ì. Ðàáîòàòü
íà âûñîòå îò
5,5 äî 8 ì ðàçðåøàåòñÿ
òîëüêî ñ ïåðåäâèæíûõ
ïîäìîñòåé, èìåþùèõ
íàâåðõó ïëîùàäêó
ñ îãðàæäåíèÿìè.
Íà âûñîòå
áîëåå 8 ì îò óðîâíÿ
çåìëè èëè ïåðåêðûòèÿ
îïàëóáêó ìîíòèðóþò
ñ ðàáî÷èõ íàñòèëîâ,
óëîæåííûõ íà
ïîääåðæèâàþùèõ
ëåñàõ è îáåñïå÷åííûõ
îãðàæäåíèÿìè.
Øèðèíà íàñòèëîâ
äîëæíà áûòü íå
ìåíåå 0,7 ì. Ïðè âîçâåäåíèè
æåëåçîáåòîííûõ
ñòåí äëÿ áåçîïàñíîé
ðàáîòû ñòðîèòåëåé-îïàëóáî÷íèêîâ
ñ îáåèõ ñòîðîí
ñòåíû íåîáõîäèìî
óñòàíàâëèâàòü
íàñòèëû ñ îãðàæäåíèÿìè
÷åðåç êàæäûå
1,8 ì ïî âûñîòå. Îãðàæäåíèÿ
ïðåäñòàâëÿþò
ñîáîé ïåðèëà
âûñîòîé 1 ì ñ áîðòîâûìè
äîñêàìè - øèðèíîé
15 ñì.
Ïðè óñòðîéñòâå
îïàëóáêè æåëåçîáåòîííûõ
ñâîäîâ è êóïîëîâ
ðàáî÷èå íàñòèëû
ñ îãðàæäåíèÿìè
ñëåäóåò ðàñïîëàãàòü
íà ãîðèçîíòàëüíûõ
ñõâàòêàõ ñòîåê
ïîääåðæèâàþùèõ
ëåñîâ. Ïðè íàêëîííîé
îïàëóáêå ðàáî÷èå
íàñòèëû äåëàþò
óñòóïàìè øèðèíîé
íå ìåíåå 40 ñì.
Ñêîëüçÿùóþ
îïàëóáêó è âñå
åå ýëåìåíòû (äîìêðàòíûå
ðàìû, êðóæàëà,
ïîäâåñíûå ëåñà
è ïð.) âîçâîäÿò
â ñîîòâåòñòâèè
ñ óòâåðæäåííûìè
ÏÏÐ è ðàáî÷èìè
÷åðòåæàìè. Ïðè
ïåðåäâèæêå êàòó-÷åé
îïàëóáêè è êàòó÷èõ
ëåñîâ íàäî îáåñïå÷èâàòü
áåçîïàñíîñòü
ðàáîòàþùèõ.
Ê âûïîëíåíèþ
ñâàðî÷íûõ ðàáîò
äîïóñêàþòñÿ
ëèöà, èìåþùèå
ñîîòâåòñòâóþùóþ
êâàëèôèêàöèþ
ñâàðùèêà è ðàçðåøåíèå
íà ïðîèçâîäñòâî
ñâàðî÷íûõ ðàáîò.
Âñå ÷àñòè ýëåêòðîñâàðî÷íûõ
óñòàíîâîê, íàõîäÿùèåñÿ
ïîä íàïðÿæåíèåì,
äîëæíû áûòü çàêðûòû
êîæóõàìè. Ìåòàëëè÷åñêèå
÷àñòè óñòàíîâîê,
íå íàõîäÿùèåñÿ
ïîä íàïðÿæåíèåì
âî âðåìÿ ðàáîòû
(êîðïóñà ñâàðî÷íûõ
òðàíñôîðìàòîðîâ,
ãåíåðàòîðîâ è
äð.), à òàêæå ñâàðèâàåìûå
êîíñòðóêöèè
è èçäåëèÿ íåîáõîäèìî
çàçåìëÿòü. Íàëàäêó
è íàñòðîéêó ýëåêòðîñâàðî÷íûõ
óñòàíîâîê äî
íà÷àëà ðàáîòû
âûïîëíÿþò ýëåêòðîìîíòåðû.
Áåòîíîñìåñèòåëüíûå
è äðóãèå óñòàíîâêè
ìîæíî ÷èñòèòü
è èñïðàâëÿòü òîëüêî
ïðè âûêëþ÷åííîì
ðóáèëüíèêå. Â
ñëó÷àå ïîäà÷è
áåòîííîé ñìåñè
ê ìåñòó óêëàäêè
ïðè ïîìîùè êðàíîâ,
áåòîíîíàñîñîâ,
ïîäúåìíèêîâ
è äðóãèõ ìåõàíèçìîâ
íåîáõîäèìî âûïîëíÿòü
òðåáîâàíèÿ ÑÍèÏ
«Óñòàíîâêà è
ýêñïëóàòàöèÿ
ñòðîèòåëüíûõ
ìàøèí è ìåõàíèçìîâ».
Äî íà÷àëà ïîäà÷è
ñìåñè áåòîíîíàñîñàìè
áåòîíîâîä ïðîâåðÿþò
ãèäðàâëè÷åñêèì
äàâëåíèåì (íå
ìåíåå 3 ÌÏà).
Âîêðóã áåòîíîíàñîñîâ
óñòðàèâàþò ïðîõîäû
øèðèíîé íå ìåíåå
1 ì. Â òåïëîå âðåìÿ
áåòîíîâîä ïðî÷èùàþò
âîäîé èëè ïûæàìè
è áàííèêàìè.
Ïðè î÷èñòêå áåòîíîâîäà
ñæàòûì âîçäóõîì
â çèìíåå âðåìÿ
ðàáî÷èå äîëæíû
íàõîäèòüñÿ îò
âûõîäíîãî îòâåðñòèÿ
áåòîíîâîäà íà
ðàññòîÿíèè íå
ìåíåå 10 ì.
Ïðè óêëàäêå
áåòîííîé ñìåñè
â êîíñòðóêöèè
ñ óêëîíîì 30 ° è áîëåå
ðàáî÷èõ-áåòîíùèêîâ
ñíàáæàþò ïðåäîõðàíèòåëüíûìè
ïîÿñàìè.
Êîðïóñ âèáðàòîðà
íåîáõîäèìî çàçåìëÿòü
äî íà÷àëà ðàáîò.
Âèáðàòîðû ïîäêëþ÷àþòñÿ
ê ñåòè ÷åðåç ïîíèæàþùèå
òðàíñôîðìàòîðû,
ïðåîáðàçóþùèå
íàïðÿæåíèå ñ
220 èëè 380 äî 36 Â. Ðóêîÿòêè
âèáðàòîðîâ äîëæíû
èìåòü àìîðòèçàòîðû.
Ðàáîòàòü ñ âèáðàòîðàìè
ðàçðåøàåòñÿ òîëüêî
â ðåçèíîâûõ ïåð÷àòêàõ
è ðåçèíîâûõ ñàïîãàõ.
Âèáðàòîðû íàäî
âûêëþ÷àòü ïðè
ïåðåðûâàõ â ðàáîòå,
à òàêæå ïðè ïåðåõîäàõ
áåòîíùèêîâ ñ
îäíîãî ðàáî÷åãî
ìåñòà íà äðóãîå.
 ïðîöåññå
ðàáîòû öåìåíò-ïóøêîé
íåîáõîäèìî ïîñòîÿííî
íàáëþäàòü çà
ìàíîìåòðîì, íå
äîïóñêàÿ ïîâûøåíèÿ
äàâëåíèÿ ñâåðõ
ïðåäóñìîòðåííîãî
èíñòðóêöèåé.
Áåòîíùèê, íàíîñÿùèé
òîðêðåò íà ïîâåðõíîñòü,
äîëæåí ðàáîòàòü
â ñïåöîäåæäå ñ
êàïþøîíîì è â
ïðåäîõðàíèòåëüíûõ
î÷êàõ.
Âî âðåìÿ ãðîçû
è ïðè âåòðå ñèëîé
á áàëëîâ è áîëåå
(ò. å. ïðè ñêîðîñòè
âåòðà ñâûøå 9,9 ì/ñ)
âûïîëíÿòü áåòîííûå
è æåëåçîáåòîííûå
ðàáîòû ñ íàðóæíûõ
ëåñîâ çàïðåùàåòñÿ.
Ñïåöèôèêà
ìåðîïðèÿòèé ïî
îõðàíå òðóäà
ïðè ïðîèçâîäñòâå
áåòîííûõ è æåëåçîáåòîííûõ
ðàáîò â çèìíèõ
óñëîâèÿõ è óñëîâèÿõ
æàðêîãî êëèìàòà
îáóñëîâëåíà
ñàìîé òåõíîëîãèåé
ïðîèçâîäñòâà
ðàáîò, ñâîéñòâàìè
ïðèìåíÿåìûõ ìàòåðèàëîâ,
õàðàêòåðèñòèêàìè
èñïîëüçóåìûõ
ìàøèí, ìåõàíèçìîâ,
îáîðóäîâàíèÿ,
èíñòðóìåíòîâ,
à òàêæå âîçäåéñòâèåì
êëèìàòè÷åñêèõ
ôàêòîðîâ.
Ïî ñðàâíåíèþ
ñ ïðîèçâîäñòâîì
áåòîííûõ ðàáîò
â îáû÷íûõ óñëîâèÿõ,
ïðè áåòîíèðîâàíèè
â çèìíèõ óñëîâèÿõ
è óñëîâèÿõ æàðêîãî
êëèìàòà èìåþò
ìåñòî äîïîëíèòåëüíûå
ôàêòîðû, âûçâàííûå
ñïåöèôèêîé ïðîèçâîäñòâà
ðàáîò â ýòèõ óñëîâèÿõ
è ïðåäñòàâëÿþùèå
îïàñíîñòü äëÿ
òðóäà ðàáî÷èõ.
Ê òàêèì ôàêòîðàì
îòíîñÿò:
· ïîâûøåííîå,
ïî ñðàâíåíèþ
ñ îáû÷íûìè óñëîâèÿìè,
íàïðÿæåíèå òîêà,
ïîäàþùåãîñÿ íà
ñòðîèòåëüíóþ
ïëîùàäêó ê ìåñòó
áåòîíèðîâàíèÿ
êîíñòðóêöèé
(äî 380 Â);
· èñïîëüçîâàíèå
íà ñòðîèòåëüíîé
ïëîùàäêå ïàðà;
· íàëè÷èå
ðàçëè÷íûõ õèìè÷åñêèõ
äîáàâîê â ñîñòàâå
áåòîííîé ñìåñè;
· îáðàçîâàíèå
ñíåæíûõ çàíîñîâ
íà òåððèòîðèè
ñòðîèòåëüíîé
ïëîùàäêè è íàëåäåé
íà òðàïàõ, ëåñàõ
è äðóãèõ âñïîìîãàòåëüíûõ
êîíñòðóêöèÿõ
â çèìíèõ óñëîâèÿõ;
· óõóäøåíèå
âèäèìîñòè íà
ñòðîèòåëüíîé
ïëîùàäêå èç-çà
êîðîòêîãî ñâåòîâîãî
äíÿ è ïðè îñàäêàõ
â âèäå ñíåãà;
· äîïîëíèòåëüíûå
íàãðóçêè íà ëåñà,
ïîäìîñòè èç-çà
îáðàçîâàíèÿ
íà íèõ íàëåäåé
è äåéñòâèÿ ïîâûøåííûõ
âåòðîâûõ íàãðóçîê;
· íèçêèå
òåìïåðàòóðû âîçäóõà
â çèìíèõ óñëîâèÿõ;
· âûñîêèå
òåìïåðàòóðû âîçäóõà
è íèçêàÿ âëàæíîñòü
âîçäóõà â ñî÷åòàíèè
ñ ñîëíå÷íîé ðàäèàöèåé
â óñëîâèÿõ æàðêîãî
êëèìàòà.
Ïðè èñïîëüçîâàíèè
â êà÷åñòâå ïðîòèâîìîðîçíîé
äîáàâêè ïîòàøà
ïðèãîòîâëÿòü
è õðàíèòü êîíöåíòðèðîâàííûé
ðàñòâîð ñëåäóåò
â îòàïëèâàåìîì
ïîìåùåíèè â äåðåâÿííûõ
åìêîñòÿõ. Äëÿ
óñèëåííîãî âîçäóõîîáìåíà
â ïîìåùåíèè äîëæíà
áûòü óñòðîåíà
ïðèòî÷íî-âûòÿæíàÿ
âåíòèëÿöèÿ. Ðàáî÷èå,
ïðèãîòîâëÿþùèå
êîíöåíòðèðîâàííûå
ðàñòâîðû ïîòàøà,
äîëæíû áûòü îáåñïå÷åíû
êîìáèíåçîíàìè,
ðåçèíîâûìè ñàïîãàìè
è ïåð÷àòêàìè.
Ïðè ýëåêòðîðàçîãðåâå
áåòîííîé ñìåñè
êîðïóñà áóíêåðîâ,
áàäåé è êóçîâîâ
áåòîíîâîäîâ
äîëæíû çàçåìëÿòüñÿ.
Ïëîùàäêè, ãäå
îñóùåñòâëÿåòñÿ
ýëåêòðîðàçîãðåâ
áåòîííîé ñìåñè,
îãðàæäàþòñÿ.
Ïîëüçîâàòüñÿ
òîêîì íàïðÿæåíèåì
áîëåå 380 Â äëÿ ýëåêòðîïðîãðåâà
áåòîíà çàïðåùàåòñÿ.
 ïðåäåëàõ çîíû
ýëåêòðîïðîãðåâà
ñëåäóåò óñòàíàâëèâàòü
ñèãíàëüíûå ëàìïî÷êè,
çàãîðàþùèåñÿ
ïðè ïîäà÷å íàïðÿæåíèÿ
íà ëèíèþ.
Ëèòåðàòóðà
1. ÑÒÁ 1182-99 «Áåòîíû.
Ïðàâèëà ïîäáîðà
ñîñòàâà». Ìí.,
2000 ã.
2. Ñïðàâî÷íèê
ñòðîèòåëÿ. Áåòîííûå
è æåëåçîáåòîííûå
ðàáîòû. / Ïîä ðåä.
Òîï÷èÿ Â.Ä. - Ì.: Ñòðîéèçäàò,
1987. - 320 ñ.
. Âîçâåäåíèå
ìîíîëèòíûõ æåëåçîáåòîííûõ
çäàíèé. Êàðòû
òðóäîâûõ ïðîöåññîâ
ñòðîèòåëüíîãî
ïðîèçâîäñòâà
4.1-25.Ì., Ñòðîéèçäàò
-1982.-64 ñ.
. Ñîâàëîâ È.Ã.
Áåòîííûå è æåëåçîáåòîííûå
ðàáîòû. Ì.: Ñòðîéèçäàò,
1988 - 336 ñ.
. ÑÍèÏ 3.03.01-87 «Íåñóùèå
è îãðàæäàþùèå
êîíñòðóêöèè».
. ÅÍèÐ. Ñáîðíèê
Å4. Ìîíòàæ ñáîðíûõ
è óñòðîéñòâî
ìîíîëèòíûõ æåëåçîáåòîííûõ
êîíñòðóêöèé.
Âûï. 1. Çäàíèÿ è ïðîìûøëåííûå
ñîîðóæåíèÿ / Ãîññòðîé
ÑÑÑÐ. - Ì.: Ñòðîéèçäàò,
1987 - 64 ñ.
. Òåõíîëîãèÿ
ñòðîèòåëüíîãî
ïðîèçâîäñòâà.
/ Ïîä ðåä. Áàäüèíà
Ã.Ì., Ìåùàíèêîâà
À.Â. - Ë.: Ñòðîéèçäàò,
1987. - 606 ñ.
. Ñòðîèòåëüíûå
êðàíû: Ñïðàâî÷íèê.
/ Ïîä îáùåé ðåäàêöèåé
Â.Ï. Ñòàíåâñêîãî.
Êèåâ: Áóäèâýëüíûê,
1989 - 296 ñ.
. Ñåðãååâà
Î.Ã. «Ïðîèçâîäñòâî
ðàáîò â çèìíèõ
óñëîâèÿõ» ×àñòü
1. Ãîìåëü: ÁåëÈÈÆÒ,
1981 - 35 ñ.
. Àôàíàñüåâ
À.À. «Âîçâåäåíèå
çäàíèé è ñîîðóæåíèé
èç ìîíîëèòíîãî
æåëåçîáåòîíà».
- Ì.: Ñòðîéèçäàò,
1990. - 384 ñ.
. Åâäîêèìîâ
Í.È. «Òåõíîëîãèÿ
ìîíîëèòíîãî
áåòîíà è æåëåçîáåòîíà».
- Ì.: Âûñøàÿ øêîëà,
1982.
. Áàæåíîâ
Þ.Ì. «Òåõíîëîãèÿ
áåòîíà». - Ì.: Èçäàòåëüñòâî
Àññîöèàöèè ñòðîèòåëüíûõ
ÂÓÇîâ, 2003 - 500ñ.
. Êèðèëëîâ
À.Ô. «×åðòåæè ñòðîèòåëüíûå».
- Ì.: Ñòðîéèçäàò,
1984. - 312 ñ.
Ðàçìåùåíî
íà Allbest.ru