Спроектировать привод к вертикальному валу цепного конвейера
Костанайский социально
- технический университет
имени академика З.
Алдамжар
ТЕХНИЧЕСКИЙ факультет
Кафедра ТЕХНИКА И
ТЕХНОЛОГИИ
Курсовая
работа по дисциплине
«Детали
машин и основы конструирования»
ТЕМА:
«Спроектировать привод к вертикальному валу цепного конвейера»
Выполнила
Виноградова Людмила Николаевна
студентка 2 курса специальности
ТТТиТ, з/у
Научный руководитель
Иманов А. Н.
кандидат технических наук, профессор
Костанай 2011
Исходные
данные
Спроектировать привод к вертикальному валу цепного
конвейера по схеме рис.1 с графиком нагрузки рис.2.
Вариант 2.
Мощность на этом валу N6=5,0
кВт и угловая скорость вращения его ω6=0,25
π
рад/сек
. Электродвигатель.
. Клиноременная передача.
. Червячная передача.
. Прямозубая цилиндрическая передача
. Муфта.
. Коническая открытая зубчатая передача
Рисунок 1. Схема цепного конвейера
График нагрузки имеет: Срок службы привода-8 лет
Ксут=0,2; Кгод=0,5; ПВ=1
Рисунок 2. График нагрузки
ВВЕДЕНИЕ
Машиностроение является технической
основой развития общественного производства. Только в результате насыщения всех
отраслей народного хозяйства высокопроизводительными машинами, внедрения
комплексной механизации и автоматизации производства можно добиться такого
повышения производительности труда и расширения выпуска различной продукции,
чтобы были удовлетворены все материальные и культурные потребности общества.
Серийно выпускаются самые
разнообразные машины десятков тысяч наименований, в том числе уникальные
паровые и гидравлические турбины и электрогенераторы мощностью до миллионно
киловатт, газовые турбины мощностью в десятки тысяч киловатт, мощные прокатные
станы, прессы и металлообрабатывающие станки с программным управлением,
подъёмные машины грузоподъёмностью в сотни тонн, экскаваторы и землесосные
снаряды, заменяющие труд десятков тысяч людей, тепловозы и электровозы,
автомобили, тракторы, комбайны, разнообразные машины для горной, химической,
лёгкой и других отраслей промышленности, строительства, сельского хозяйства.
Анализируя исторический путь
развития технологии различных производств и обслуживающих их машин, нетрудно
заметить основные тенденции развития современного машиностроения.
Это, во-первых, непрерывный рост
машиностроения, увеличение номенклатуры и числа машин, выпускаемых для всех
отраслей народного хозяйства.
Во-вторых, неуклонное повышение
мощности и производительности машин, их технологичности и экономичности при
одновременном относительном снижении веса и размеров.
Основой для расширения
машиностроения служит новый, более высокий уровень организации, управления и
технологии производства - широкое внедрение специализации, поточности,
механизации и автоматизации производства, использование принципов
взаимозаменяемости, унификации, нормализации и стандартизации типов машин, их
узлов и деталей, внедрение прогрессивной технологии.
Создание всё более мощных
производительных, технологичных и экономичных машин со сниженными весовыми и
габаритными характеристиками обусловлено непрерывным их конструктивным
совершенствованием, повышением скоростей и ускорений движущихся частей,
действующих нагрузок, напряжений, температур и других параметров. Это, в свою
очередь, вызывает необходимость использования новых, более прочных и
износостойких материалов, различных способов их упрочнения и коррозионной
защиты, совершенствования формы деталей, применения полых и тонкостенных
сечений и так далее.
1.
Кинематический расчет привода, выбор электродвигателя, определение передаточных
чисел, разбивка по ступеням
Двигатель является одним из основных
элементов машинного агрегата. Для проектируемых машинных агрегатов
рекомендуются короткозамкнутые трехфазные асинхронные двигатели серии 4А. Эти
двигатели наиболее универсальны. Закрытое и обдуваемое исполнение позволяет
применить эти двигатели для работы в загрязнённых условиях, в открытых
помещениях и т.д. Для выбора электродвигателя должны быть известны условия
эксплуатации, требуемая мощность и частота вращения вала.
Потребная мощность электродвигателя:
1дв=N6/ηобщ (1.1)
Общий КПД привода, с учетом потерь
на трение в подшипниках стр. 23[1]:
ηобщ=ηрем·ηчерв·ηзуб·ηкон·ηмуф=0,95·0,9·0,96·0,95·0,99=0,77196
ηрем=0,95 средний КПД
клиноременной передачи
ηчерв=0,9 КПД с числом захода
червяка Z1=4
ηзуб=0,96 средний КПД зубчатой
передачи
ηкон=0,95 КПД открытой
зубчатой передачи
ηмуф=0,99 средний КПД муфты
стр. 231[2]
N¹дв=5/0,77196=6,477
кВт
По табл. 22[1] выбираем
электродвигатель N=7,5 кВт, типа 4А132S4УЗ, n=1500 об/мин,
S=3,0%,
Тпус/Тнм=2,0.
Действительное число оборотов
двигателя стр.24[1]:
пдв=псдв·(1-S/100) (1.2)
nдв=1500·(1-3/100)=1455
об/мин
Обороты на тихоходном валу
конической передачи:
n6=30·ω6/π (1.3)
n6=30·0,25π/π=7,5 об/мин
Общее передаточное отношение
конвейера:
Uобщ=nдв/n6 (1.4)
Uобщ=1455/7,5=194
Разбиваем общее передаточное
отношение по ступеням привода. По рекомендациям:
Uрем≤7[2];
Uчерв=8÷80[1]; Uзуб≤6,3[1];
Uкон≤8[1].
Для червячно-цилиндрических
редукторов: при передаточном отношении редуктора Uред>50
передаточное отношение червячной передачи стр.72[1]:
Uчерв=6,3
Дальнейшие варианты по разбивке
ступеней с учетом того, что на последней передаче (т.е. конической) моменты
максимальные, принимаем по ряду стр.51[1]:
Uчерв=6,3; Uзуб=4,00; Uкон=3,55; Uрем=3,15-уменьшаем
ременную:
Uчерв=6,3; Uзуб=4,00; Uкон=3,55; Uрем=2,169-принимаем.
Угловые скорости валов:
ω1=π·nдв/30=3,14·1455/30=152,29
рад/сек
ω2=ω1/Uрем=152,29/2,169=70,21
рад/сек
ω3=ω2/Uчерв=70,21/6,3=11,144
рад/сек
ω4=ω3/Uзуб=11,144/4=2,79
рад/сек
ω5=ω4
ω6=0,25·π=0,79
рад/сек
Числа оборотов на валах:
n1=nдв=1455
об/мин
n2=n1/Uрем=1455/2,169=670,82
об/мин
n3=n2/Uчерв=670,82/6,3=106,479
об/мин
n4=n3/Uзуб=106,479/4=26,62
об/мин
n5=n4
n6=n5/Uкон=7,5
об/мин
Мощность на валах:
N1=6,477 кВт
N2=N1·ηрем=6,477·0,95=6,153
кВт
N3=N2·ηчерв=6,153·0,9=5,538
кВт
N4=N3·ηзуб=5,538·0,96=5,316
кВт
N5=N4·ηмуф=5,316·0,99=5,263
кВт
N6=N5·ηкон=5,263·0,95=5,0
кВт
Крутящие моменты на валах:
Т1=N1/ω1=6477/152,29=42,53
Н·м
Т2=N2/ω2=6153/70,21=87,64
Н·м
Т3=N3/ω3=5538/11,144=496,95
Н·м
Т4=N4/ω4=5316/2,79=1905,38
Н·м
Т5=N5/ω5=5263/2,79=1886,38
Н·м
Т6=N6/ω6=5000/0,79=6329,11
Н·м
2. Расчет
клиноременной передачи
подшипник цилиндрический вал червячный
Выбор сечения ремня:
При N1=6,477 кВт,
n=1455 об/мин
по рис. 9.4 [1] выбираем тип Б.
По табл. 9.4: lр=14, W=17, T0=10,5,
площадь сечения А=1,38 см2, масса одного метра ремня m=0,18 кг/м,
расчетная длина ремня Lр=800÷6300, ∆L=Lp-LВН=40 мм, dmin=125 мм.
Принимаем диаметр меньшего шкива по
ряду стр.267 в соответствии с рекомендациями стр.26, d1>dmin d1=140 мм.
Диаметр большего шкива с учетом
относительного скольжения S=0,01 ф.9.5[1],
d2=d1∙Uрем∙(1-S)=140∙2,169∙(1-0,01)=300,62
мм принимаем d2=301 мм.
Межосевое расстояние ф.9.11[1]:
=0,55(d1+d2)+T0=0,55(140+301)+10,5=253,05
мм.
amax=d1+d2=140+301=441
мм.
Среднее aср=(amin+amax )/2=347,03
мм принимаем aср=348 мм
Расчетная длина ремня ф.9.2[1].
р=2а+π/2·(d1+d2)+(d2-d1)2/(4·a)=
=2·348+3,14/2·(140+301)+(301-140)²/(4·348)=1406,99
мм
По табл.9.4 принимаем Lр=1400 мм
ближайшее
Уточняем межосевое расстояние
ф.9.12[1]:
а=0,25·[(Lp-ω)+
]
ω=0,5·π·(d1+d2)=0,5·3,14·(140+301)=692,37
мм
у=((d2-d1)/2)2=((301-140)/2)2=6480,25
мм2
а=0,25·[(1400-692,37)+√(1400-692,37)2-8·6480,25]=
,25·(707,63+669,9987)=344,4 мм
Угол обхвата меньшего шкива
ф.9.13[1].
α1=180-57·
=180-57(301-140)/344,4=153º
Определяем коэффициенты необходимые
для определения расчётной мощности, руководствуясь таблицами
коэффициент угла обхвата Cα=0,929
значение получено интерполяцией;
коэффициент длины ремня CL=0,9;
коэффициент режима работы Cр=1,1;
цепные транспортеры. Тип двигателя I; смены при kсут=0,2; 24
часа∙0,2=4,8 часа. Принимаем 1 смену
коэффициент, учитывающий число
ремней в комплекте Cz=0,9 при предварительно принятом
числе ремней Z=4÷6.
Номинальная мощность Р0 по таблице 8
для типа Б и d1=140; UР=2,152; n=1450
об/мин, интерполяцией получаем Р0=3,177 кВт.
Расчетная мощность:
Рр=Ро·Сα·СL/Ср=3,177·0,929·0,9/1,1=2,4148
кВт стр. 270[1]
Число ремней ф.9.14:
Z=N1/(Рр·Сz)=6,477/(2,4148·0,9)=2,98
Принимаем Z=3 ремней.
Натяжение каждой ветви одного ремня
ф.9.15[1].
=850·N1·Ср·СL/(Z·V·Сα)+θ·V2=π ·d1·n1/60=3,14·140·1455/60=10,66
м/сек
θ=0,18 для сечения Б стр.
267=850·6,477·1,1·0,9/(3·10,66·0,9)+0,18·10,662=203,91 м
Сила, действующая на валы, стр.271:
Fп=2·S0·Z·sin
=2·203,91·3·sin(153º/3)=1223,46·sin
51º=950,81
Н
Рабочий ресурс клиноременной
передачи для ремней с кордшнуром, стр.271:
Н0=Nоц
=5700·10³·1400·3/(60·3,14·140·1455)=624
час
где Nоц -число
циклов, выдерживаемых ремнем; для ремней с кордшнуром всех сечений Nоц=5,7·106
Установленный стандартом ресурс при
среднем режиме 2000 часов.
Время работы привода за 8 лет:
t∑=Lгод·365·кгод·24·ксут·ПВ=8·365·0,5·24·0,2·1=7008
час
ф.14.12[1].
Количество замен ремней за 8 лет:
Кз=
=7008/624=11,23 раз
т.е. одна замена 8 лет/11,23=0,7
года.
Шкивы для приводных клиновых ремней
(приложение В) выполняют по ГОСТ 20898-80
3. Расчет
прямозубой цилиндрической передачи
.1
Предварительное межосевое расстояние
а1=(Uзуб+1)·
(3.1)
где к=315 для прямозубой передачи,
стр.98[1]; Tp1-расчетный
момент, Н·м:
Tp1=Tmax∙кНД∙∙кН, (3.2)
где Тmax=T4=1905,38
нм.
Коэффициент долговечности ф.4.7:
кНД=кНЕ·
≤1 (3.3)
Коэффициент эквивалентности по
графику нагрузки и ф.4.1 и ф.4.2 будет
кНЕ=
=0,6775 (3.4)
В соответствии с рекомендациями 4.4
и табл.4.5 принимаем материалы:
Шестерни: 40Х, Д=125, S=80, НВ1
сердцевины=269-302, HRC поверхности=45-50, Vв=900, σт=750,
улучшение+закалка ТВЧ.
Колеса: 40Х, Д=125, S=90,
НВ2сер=269-302, σв=900, σт=750 МПа
улучшение. HRCпов=45-50 по
графику рис.3.1.[3] соответствует НВ=450 (шестерня).
Определяем соотношение
НВ1=НВ2 9√Uзуб параграф
4.5 [1]
НВ1=450
НВ2
√Uзуб=(269+302)/2
√4=333,04
т.е. НВ1>НВ2∙
√Uзуб, 450>333,04
поэтому лимитируем колесо.
Считаем наработку колеса, ф.4.10.
N=tΣ 60·n4·c=7008·60·26,62·1=11,19·10
циклов
tΣ=7008 час=26,62
об/мин
с=1, так как за один оборот зуб
входит в зацепление один раз
База контактных напряжений по
рис.4.6 при НВ2=285,5 будет:
NHG=25·106
циклов
Считаем коэффициент долговечности:
кнд=0,6775∙3√11,19·106/20·106=0,56 (3.5)
Коэффициент нагрузки:
кН=кНα·кНβ·кНV (3.4)
кНα=1
для прямозубых передач коэффициент распределения нагрузки.
Предварительное значение окружной скорости:
V1=
(3.5)
n3=106,479
об/мин (шестерня)
Тmax=T4=1905,38
Н·м (колесо)
Uзуб=4
Ψа=0,315
коэффициент ширины зубчатого венца, т.3.3 [1].
CV=14 т.4.9
(ТВЧ1+У2 прямозубая) [1]
V¹=106,479/(103·14)·3√1905,38·103/(42·0,315)=0,44
м/сек
По т.4.10. степень точности передачи будет 9.
По т.4.11. коэффициент динамичности передачи
будет.
Кнv=1,05 (при НВ2≤350)
По ф. 4.27 коэффициент концентрации нагрузки
кНβ=кНβ0·(1-х)+х≥1,05
кНβ0
принимаем по т.4.7. в зависимости от отношения
=0,315∙(4+1)/2=0,788 и схемы
по рис.4.8. №6.
кНβ0=1,39
интерполяцией.
Коэффициент режима, ф.4.29[1]:
x=Σ
=0,475 (3.6)
кНβ=1,39∙(1-0,475)+0,475=1,205
кН=1∙1,205∙1,05=1,265
Тр1=1905,38∙0,56∙1,265=1349,77
Н·м
Допускаемое контактное напряжение по
т.4.6 для колеса из стали 40Х и формуле 4.21 (стр.91):
[σн]=
=585,82 МПа (3.7)
Межосевое:
а=(4+1)∙3√(315/(582,7∙4))2∙1349,77∙103/0,315=213,88
мм (3.8)
по ряду стр.51 принимаем а=224.
Ширина колеса:
в2=а·ψа=224∙0,315=70,56
мм (3.9)
принимаем в2=71 мм.
Действительная скорость ф.4.42:
V=
=2∙0,224∙3,14∙106,479/(4+1)∙60=0,500
м/сек (3.10)
V≈V1, то кНα, кНV, кНβ не
уточняем, коэффициент нагрузки кН остается тот же.
3.2.
Проверочный расчет по контактным напряжениям
σн=к·
(3.11)
σн=315∙(4+1)/(224∙4)∙√(4+1)/71∙1349,77∙103=541,95
МПа
разница между фактическим и
допускаемым
·100%=100%∙(582,7-541,95)/582,7=6,99
%
Допускается недогруз 10 % и перегруз
3 %.
У нас перегруз 6,99 % (стр.98[1]).
3.3. Расчет
на перегрузку ф.4.43(по колесу) в момент пуска двигателя, или по графику
нагрузки
σн max=σн∙
≤[σ]max (3.12)
[σ]max=2,8·σT=2,8·750=2100
МПа
наибольшее допускаемое контактное
напряжение по табл.4.6.
=1,4 по графику
σн max=541,95∙√1,4/0,56=856,90
МПа
856,9<2100-проходит
3.4.
Определение модуля
m1=
(3.13)
где окружная сила по ф. 4.44[1]
Ft=
=1905,38∙(4+1)/(224∙4)=10632,7∙103
Н
к=5 для прямозубых передач стр.99[1]
в1=в2∙1,12=71∙1,12=79,52
мм
принимаем в1=80 мм ф.4.40.-ширина
шестерни.
Допускаемое напряжение на изгиб
т.4.6. ф.4.24 (для колеса)
[σ]F=
=
=293,66 МПа
Коэффициент долговечности по изгибу
ф.4.14.
кFD=кFE·
≤1 (3.14)
m=6 (колесо
улучшенное, оно лимитирует у нас)
N=11,19∙106
наработка колеса
NFG=4∙106
стр.83 база изгибных напряжений
кFE-коэффициент
эквивалентности по изгибу ф.4.13 (переработанная).
кFE=
=0,818
кFD=0,818∙
√11,19∙10
/4∙10
=0,971
Коэффициент нагрузки по изгибу
ф.4.26.
кF=кFα·кFβ·кFV
кFα=1
коэффициент распределения нагрузки с.92 для прямозубых
кFβ-коэффициент
концентрации нагрузки при НВ2<350 по ф.4.32.
кFβ=кFβ0·(1-x)+x≥1,04
кFβ0 принимаем
по т.4.8 при в/d1=0,788; схема передачи 6; твердости
а; интерполяцией кFβ0≈1,390
кFβ=1,39∙(1-0,475)+0,475=1,205
кFV-коэффициент
динамичности, принимаем по ф. 4.12: для 9 степени, скорости 1 м/сек, твердость
а, числитель: кFV=1,13.
кF=1∙1,205∙1,13=1,362
модуль
m1=5∙10632,7∙0,971∙1,362/(71∙293,66)=3,37
Принимаем стандартный модуль стр.53
из ряда: m=4
3.5
Предварительные размеры передачи
Суммарное число зубьев ф.4.46:
ZΣ¹=2∙a/m=2∙224/4=112
(если дробное, то округляем до ближайшего меньшего).
Принимаем ZΣ=112
Число зубьев шестерни ф.4.51:
11=
(число зубьев должно быть не меньше
Z1>=13),
11=112/(4+1)=22,4
округляем до ближайшего целого Z1=22.
Число зубьев колеса
Z2=112-22=90
Фактическое передаточное
Uф=Z2/Z1=90/22=4,091
Расхождение
U=
100%=(4,091-4)/4∙100%=2,28%
допускается до 4%, т.е. проходит.
При Z1<17
делают высотную коррекцию ф.4.53, у нас смещение x1=x2=0.
3.6
Проверка фактического напряжения изгиба зубьев шестерни
σF1=
·Ft·кFD1·кF (3.15)
b1=80, m=4, Ft=10632,7 H, кF=1,362, кFD1=1
к
-коэффициент долговечности по изгибу
у шестерни будет (m=9-т.к. закалка)
кFD1=кFE1·
≤1 (3.16)
кFE1=
=0,875
N1=t∑·60·n3·c=7008∙60∙106,479∙1=44,772∙10
циклов
кFD1=0,875∙
√(44,772∙10
)/(4∙10
)=1,14435
Принимаем кFD1=1
YF1=4,14
интерполяцией по т.4.13 (при x=0 и z1=22)
Yβ=1 для
прямозубой передачи.
σF1=4,14∙1/(80∙4)∙10632,7∙1∙1,362=187,357,
проходит т.к.
σF1<[σ]F1-допускается
перегруз 5% стр.101.
[σ]F1=420 (для
шестерни закаленной ТВЧ, из стали 40Х) табл.4.6.
3.7
Проверка фактического напряжения изгиба по колесу
σF2=
·Ft·кFD1·кF=3,6∙1/(71∙4)∙10632,7∙0,971∙1,362=178,25
МПа
где: b2=71; m=4; кFD=0,971
YF2=3,6 при
Z2=90 и х=0 по т.4.13
[σ]F2=293,66 МПа
см. ранее, т.е. колесо тоже проходит
186,69<293,66
3.8
Проверка на перегруз по изгибу
σFmax=σF·
≤[σ]Fmax (3.17)
Допускаемое максимальное на изгиб по
т.4.6 будет:
Для колеса [σ]Fmax2=2,7·HB2=2,7·285,5=770,8
МПа
Для шестерни [σ]Fmax1=1260 МПа
(табл.4.6)
Действительные напряжения
максимальные на изгиб:
Колесо σFmax2=178,25∙1,4/0,971=257,00
МПа - проходит
Шестерня σFmax1=187,357∙1,4/1=262,30
МПа - проходит
.9
Геометрические параметры передачи
Делительные диаметры:
d1=m∙Z1=4∙22=88
мм
d2=m∙Z2=4∙90=360
мм
Диаметры окружности выступов:
da1=d1+2m=88+2∙4=96
мм
da2=d2+2m=360+2∙4=368
мм
Диаметры окружности впадин:
df1=d1-2,5m=88-2,5∙4=78
мм
df2=d2-2,5m=360-2,5∙4=350
мм
а=d1/2+d2/2=88/2+360/2=224 мм
3.10 Силы в
передаче
Ft=T4/(d2/2)=1905,38/(0,360/2)=10585,44
Н-окружное усилие, уточненное значение
Fr=Ft·tg 20º=10585,44∙0,364=3853,10
Н-радиальное усилие
4. Расчет червячной
передачи
.1 Исходные данные
Червяк: N2=6,153 кВт,
Т2=87,64 Н·м, w2=70,21
р/сек, n2=670,82
об/мин.
Червячное колесо: N3=5,538 кВт,
T3=496,95
Н·м, w3=11,144
р/сек, n3=106,479
об/мин.
кHE=0,6775;
кFE1=0,875; Uчерв=6,3; tΣ=7008 час;
ПВ=1
4.2 Выбор
материала червяка и червячного колеса, расчет межосевого расстояния
Ожидаемая скорость скольжения
червячного колеса ф.7.6.:
Vск1=
=4∙670,82/105∙³√496,95∙103=2,13
м/сек (4.1)
коэффициент эквивалентности для
червячной передачи:
кHE=0,6775·1=0,6775 (4.2)
По т.7.2 выбираем материал группы Iб:
Vск1=2,13,
кНЕ=0,6775 бронзу:
Это Бр 05Ц5С5 т.к. кНЕ гораздо
больше 0,4, то принимаем заливку в кокиль: σв=200 МПа, σт=90 МПа
По рис. 7.1. для Vск=2,13
м/сек, принимаем СV=1,112-коэффициент, учитывающий
износ.
Тогда допускаемое контактное
напряжение по т.7.3.:
[σ]Н=СV·0,9·σB=1,112∙0,9∙200=200,16
МПа (4.3)
Наработка на колесе N=35,6∙106
циклов.
Коэффициент долговечности по
контактным напряжениям ф.7.2:
кНД=кНЕ·
0,6775∙³√∙35,6∙106/10∙106=1,034 (4.4)
Коэффициент долговечности по изгибу
ф.7.4:
кFD=кFE·
0,875∙
√35,6∙106/106=1,301 (4.5)
Согласно §7.4 и 7.3 принимаем червяк
из стали 18ХГТ с цементацией и закалкой до твердости HRC=56-63.
Предварительно коэффициент нагрузки
по ф.7.7:
к1=кβ1·кv1 (4.6)
Коэффициент концентрации по ф.7.8:
кβ1=0,5·(кβ0+1) (4.7)
заходность червяка при Uчерв=8→Z1=4 (стр.216
по рекомендациям), тогда по рис.7.2 начальный коэффициент концентрации кβ0=1,3 тогда:
кβ1=0,5·(1,3+1)=1,15
Коэффициент динамичности кV=1
(стр.215), тогда коэффициент нагрузки будет: к1=1,15·1=1,15
Предварительное межосевое расстояние
ф.7.11:
а1=61·
=61·
=61∙³√496,95∙10³∙1,034∙1,15/200,16=149,60
мм
принимаем ближайшее стр.51: а=160
мм.
4.3
Определение предварительных параметров
Число зубьев колеса ф.7.12: Z21=Z1∙U=4∙6,3=25,2
Модуль по ф.7.13:
m=(1,4÷1,7)·
=(1,4
1,7)∙160/25,2=8,89÷10,79 (4.8)
Принимаем модуль из значений
(стр.53) m=10 и 12,5.
Предварительно принимаем m=10. Коэффициент диаметра червяка
ф.7.14:
q1=
=2∙160/10-25,2=6,8 (4.9)
принимаем (стр.56) q=8.
Коэффициент смещения ф.7.15:
Х=
=1/10∙[160-10/2∙(25,2+8)]=-0,6 (4.10)
γω=arctg∙
(4.11)
γω=arctg∙4/(8+2∙-0,6)=arctg
(0,59)=30°34´
Длина шлифуемых червяков ф.7.18 и
т.7.5 при (Z1=4, X=+0,5):
b1=b10+4·m=(12,5+0,1·Z2)·m+4·m=(12,5+0,1∙25,2)∙10+4∙10=190,2=190
мм
Ширина венца червячного колеса ф.7.20:
b2=0,315·a=0,315∙160=50,4=50
мм
4.4
Проверка фактического контактного напряжения
σн=
(4.12)
делительный диаметр колеса:
d2=m·Z2=10∙25,2=252
мм, ф.7.26
начальный диаметр червяка:
dω1=m·(q+2·x)=10∙(8+2∙-0,6)=68
мм ф.7.27;
фактическая скорость скольжения
ф.7.22:
Vск=
=3,14∙68∙670,82/(60000∙0,8630)=2,768 (4.13)
Коэффициент концентрации по ф.7.9 и
т.7.4:
кβ=1+
·(1-х)=1+(25,2/98)³∙(1-0,475)=1,0089 (4.14)
где θ=98-коэффициент
деформации т.7.4.
Коэффициент режима ф.4.29:
x=0,475 см.
ранее.
Скорость колеса по ф.7.10:
V2=
=3,14∙252∙106,479/6∙10
=1,405 м/сек (4.15)
Для этой скорости по т.4.10 степень точности
передачи 9.
Коэффициент динамичности по т.4.11 и стр.215:
кV=кHV=1,070
интерполяцией для скорости V2=1,405 м/сек
Тогда коэффициент нагрузки по ф.7.7:
к=кβ кV=1,0089∙1,07=1,0795 (4.16)
Расчетный момент:
Тр=Тmax·кНД·к=496,95∙1,034∙1,0795=554,70
Н·м (4.17)
Напряжение будет:
σН=480/252∙√554,7∙10³/68=172,0
МПа (4.18)
Уточняем допускаемое напряжение по
фактической скорости скольжения: При Vск=2,768
м/сек по рис.7.1→СV=1,29
Рассчитываем:
[σ]Н=СV·0,9·σB=1,29∙0,9∙200=232
МПа (4.19)
Недогруз по напряжению:
·100%=(172-232)/232∙100%=-25,86
% (4.20)
Недогруз до 10%.
4.5
Проверка статической контактной прочности
Предельное контактное напряжение по
Т. 7.3.
[σ]Hmax=4·σт=4·90=360
МПа-допускаемое (группа 1б)
Максимальное контактное напряжение
по ф.4.43. действующее
[σ]Hmax=σH
=172∙√1,4∙1/1,034=200,14
МПа (4.21)
4.6
Проверка напряжения изгиба
Допускаемое по т.7.3 (группа Iб)
[σ]F=0,25·σT+0,08·σB=0,25∙90+0,08∙200=38,5 (4.22)
Напряжение изгиба в зубьях колеса
действительное ф.7.24:
σF=
·Ft2·кFD·к (4.23)
Эквивалентное число зубьев колеса
ф.7.25:
ZV=
=25,2/0,8633=39,207 (4.24)
откуда коэффициент формы зуба
стр.219 интерполяцией YF=1,654
Окружная сила на колесе ф.7.23:
Ft2=
=2∙496,95∙10³/252=3,94∙103
Н (4.25)
Напряжение:
[σ]F=1,654∙0,863/(1,3∙10∙68)∙3940∙1,301∙1,0795=8,93
проходит
4.7
Проверка статической прочности на изгиб
Предельное напряжение изгиба по
т.7.3.:
[σ]Fmax=0,8·σT=0,8∙90=72
МПа (4.26)
σFmax=σF
=8,93∙1,4/1,301=9,61 (4.27)
Проходит т.к. 72>9,61
4.8
Основные параметры червячной передачи
а=160 мм - межосевое расстояние;
Uчерв=6,3-передаточное
отношение;=4-заходность червяка;=25,2-число зубьев колеса;=10-модуль;=8-коэфициент
диаметра червяка;
х=-0,6-коэфициент смещения;
γω=30°34´-угол
подъема витка червяка на начальном цилиндре;
b1=190
мм-длина червяка;
b2=50 мм-ширина венца червячного
колеса;=252 мм- делительный диаметр колеса;=68 мм- начальный диаметр червяка
Делительный
диаметр:
=m∙q=10∙8=80
мм
Диаметр
впадин витков:
1=d1-2,4m=80-2,4∙10=56
мм
Диаметр
вершин витков:
=d1+2m=80+2∙10=100
мм
Угол
подъема на делительном диаметре червяка:
(4/8)=arctg(0,5)=26°34´
Диаметр
вершин зубьев червячного колеса:
da2=d2+2∙m∙(1+x)=252+2∙10∙(1+-0,6)=260
мм
Наибольший
диаметр червячного колеса:
daМ2=da2+6∙m/(Z1+2)=260+6∙10/(4+2)=270
мм
Диаметр
впадин зубьев червячного колеса:
df2=d2-2∙m∙(1,2-x)=252-2∙10∙(1,2+-0,6)=216
мм
Радиус
закругления колеса:
Ra=0,5∙d1-m=0,5∙80-10=30
мм
Rf=0,5∙d1+1,2∙m=0,5∙80+1,2∙10=52
мм
Основные
параметры червячной передачи показаны на рис. 3
Рисунок
3. Основные параметры червячной передачи
4.9 Силы в передаче
Окружная
сила на колесе, равна осевой силе на червяке:
Ft2=Fа1=3940 Н
Окружная
сила на червяке, равна осевой силе на колесе:
Ft1=Fа2=
=2∙87,64∙103/68=2578
Н
Радиальная
сила при α=20º
=Ft2·tg α=3940∙0,364=1434,2
Н
5. Расчет конической передачи (с круговым зубом)
Шестерня:
N5=5,263 кВт; Т5=1886,38 Н·м; ω5=2,79 рад/сек; n5=26,62 об/мин
Колесо:
N6=5 кВт; T6=6329,11 Н·м; ω6=0,79 рад/сек; n6=7,5
об/мин; Uкон=3,55
t∑=7008 час; кНЕ=0,6775.
Материал
шестерни: сталь 35 ХМ; D=200 мм; S=125 мм;
НВ2=269-302; HRC=48÷53; σВ=920; σТ=750;
улучшение + закалка ТВЧ.
Материал
колеса: сталь 35 ХМ; D=200 мм; S=125 мм; НВ1=269÷302; HRC=48÷53; σВ=920; σТ=750;
улучшение; HRCпов=48÷53
соответствует по графику рис. 3.1.[3] НВ=490
5.1 Предварительный диаметр основания делительного
конуса колеса
d´е2=165·
(5.1)
расчетный
момент Т´р=Тmax·кНД·кН
Определяем
соотношение
=
·
=490
·
=
∙
√3,55=329 (5.2)
т.е.
поэтому
стр. 89 лимитирует колесо.
Наработка
колеса N=t∑·60·n6·c=7008∙60∙7,5∙1=3,15∙106
циклов
База
контактных напряжений по рис. 4.6. при
=315→NHG=20·106
циклов.
Коэффициент
долговечности ф.4.7.
кНД=кНE·
=0,6775∙3√3,15∙106/20∙106=0,366 (5.3)
Коэффициент
нагрузки ф.4.25.:
к´Н=к´Нα·кНβ·к´НV (5.4)
Предварительная
окружная скорость ф. 4.37
V´m=
=26,62/(103∙10)∙3√6329,11∙103/3,552=0,21
м/сек
где
CV=10
(коническая, ТВЧ1+У2), табл. 4.9.
по
т. 4.10 для V´m=0,21
степень точности будет 9.
Коэффициент
распределения нагрузки по рис. 4.7.: к´Нα=1,1.
Отношение
ширины колеса к среднему диаметру шестерни т.4.7
=0,166∙√3,55²+1=0,612 (5.5)
Коэффициент
концентрации ф.4.28:
к'Нβ=
(5.6)
где
начальный коэффициент концентрации по т.4.7. для схемы 2 (по рис 2),
интерполяцией, твердость а:
к'Нβ=2,4
Коэффициент
режима x=0,475(раньше
определили).
к'Нβ=√2,4∙(1-0,475)+0,475=1,317 (5.7)
Коэффициент
динамичности по т. 4.11.:
к'НV=1,01 (9-я,
ф, знам, V=1)
Коэффициент
нагрузки поэтому
к'Н=1,1∙1,317∙1,01=1,463
а
расчетный момент:
T'p=6329,11∙103∙0,366∙1,463=3389,0∙103
Н∙мм
Допускаемое
контактное напряжение по ф. 4.23. и табл. 4.6 (высокий перепад твердостей)
[σ]Н=
=((2∙285,5+70)/1,1)∙(1,27/
√3,55)=652,00 (5.8)
SH=1,1-коэффициент безопасности
т.4.6.
по
т. 4.18. при ТВЧ1+У2: θН=1,13+0,13U=1,13+0,13∙3,55=1,5915
И
так d'e2=165·
=165∙³√3,55∙3389∙103/(6522∙1,5915)=430,7
мм
По
ряду с.51 принимаем dе2=450
.2 Проверка фактического контактного напряжения
Vm=
=факт.скорость=0,857∙0,45∙3,1416∙7,5/60=0,151
м/сек
Различие
незначительно, поэтому коэффициенты кНα, кНβ, кНV берем
прежними и кН тогда тоже останется прежним.
Фактическое
контактное напряжение ф. 4.89:
σH=
(5.9)
σН=2120/450∙√3,55∙6329,11∙103∙0,366∙1,463/(450∙1,5915)=610,61
Превышение
<3% стр. 127
Если
недогруз, то отношение
не должно
быть меньше 0,85 у нас
=610,61/652=0,94 (5.10)
5.3 Проверка по максимальному контактному напряжению
σНmax=σН·
≤[σН]max (5.11)
[σН]max=2,8·σТ=2,8·750=2100
т.4.6.
σНmax=610,61∙√1,4/0,366=1194,23
1194,23<2100.
Проходит.
5.4 Определение модуля
Число
зубьев колеса ф.4.92
Z"2=к·
=14∙
√3,55²∙
√450=64,3312 (5.12)
к=14
т.4.18
Число
зубьев шестерни ф.4.93.
Z'1=
=64,3312/3,55=18,12 (5.13)
Принимаем
ближайшее Z1=18
Z'2=U·Z1=3,55∙18=63,9 (5.14)
Принимаем
Z2=64
Фактическое
передаточное
Uф=
=64/18=3,556 (5.15)
Отклонение
ΔU=
·100%=(3,556-3,55)/3,55∙100%=0,17%<4%
Торцовый
модуль по ф.4.91.
mte=
=450/64=7,03 (5.16)
5.5 Проверка прочности зубьев колеса на изгиб
Напряжение
изгиба ф.4.95
σF=
·Ft·KFD·KF (5.17)
Угол
делительного конуса ф.4.98
δ2=arctg U=arctg 3,556=74˚18´
Биэквивалентное
число зубьев колеса, при угле наклона линии зуба в середине колеса ф. 4.97 βm=35º
ZVn2=
=64/0,55∙cos(74˚18´)=429,84=430 (5.18)
относительное
смещение по т.4.19 для Z1=18 и передаточному U=3,56
интерполяцией (для шестерни)
Принимаем
для колеса xh1=-0,31; xh2=+0,31-для шестерни
Коэффициент
формы зуба колеса по т.4.13:YF2=3,63 (x=-0,31 ZVn=430)
Ширина
венца ф.4.88 : b'=0,285·Re
Внешнее
конусное расстояние ф.4.87
Re=
=450/2∙√1+(1/3,55²)=233,76 мм (5.19)
b'=0,285∙233,76=66,6 мм
Принимаем
b=71 стр. 51
По
т. 4.18 коэффициент θF=0,85+0,043·Uкон=0,85+0,043·3,556=1,003
Окружная
сила по ф.4.94
Ft=
=2∙6329,11∙103/0,857∙450=32823,1
Н (5.20)
Коэффициент
долговечности ф. 4.14 для зубьев улучшенных.
(5.21)
KFE=0,818 (для 6-й степени
считали раньше)=3,15∙106 (считали раньше)
NFG=4∙106 база стр.83
KFD =0,818∙√3,15∙106/4∙106=0,7861
Коэффициент
нагрузки ф. 4.26:
KFE=KFα·KFβ·KFv (5.22)
KFα=1 при 9-й
степени точности стр.92
Коэффициент
концентрации ф. 4.33
KFβ=
≥1,08 (5.23)
Начальный
коэффициент по т.4.8 (схема 2; а;)
=0,612 раньше считали;
K0Fβ=2,01
KFβ=√2,01∙(1-0,475)+0,475=1,2370
Коэффициент
динамичности т.4.12 (для Vm=0,151 м/сек 9-я степень; а; знаменатель) KFv=1,04, тогда
KF=1∙1,237∙1,04=1,2865
Напряжение:
σF2=3,63∙1,17∙32823,1∙0,7861∙1,2865/7,03∙71∙1,003=281,61
МПа
Допускаемое
напряжение по т.4.6 и ф.4.24
=293,6 МПа (5.24)
Превышение
до 5 %:
=(293,6-281,61)/293,6∙100%=4,08%
проходит.
5.5.1 Проверка статической прочности колеса
Наибольшее
допускаемое напряжение т.4.6
[σ]F2max=2,7·HB2=2,7·285,5=770,85 (5.25)
Действительное
максимальное напряжение ф. 4.57
σF2max=σF2·
=281,61∙1,4/0,7861=501,53
т.е. проходит<770
5.6 Проверка прочности зубьев шестерни на изгиб
ф.
4.99: δ1=90º-δ2=90º-74˚18´=15°42´
Биэквивалентное
число зубьев:
ZVn1=
=18/(0,55∙cos 15°42´)=34 (5.26)
коэффициент
формы зуба по т.4.13
(ZVn1=34, xn1=+0,22)
YF1=3,595 интерполяцией.
Напряжение изгиба в шестерне:
σF1=
(5.27)
σF1=3,595∙1,17∙32823,1∙1,1526∙1,2865/7,03∙71∙1,003=408,92
МПа
KFD=KFE·
≤1 (5.28)
KFD=0,875∙³√11,19∙106/4∙106=1,1526 (5.29)
KFE=0,818 (для
6-й степени считали).
N=tΣ·60·n5·c=7008·60·26,62∙1=11,19∙106
(для 9-й степени считали).
Допускаемое напряжение по т.4.6 и ф.4.24 для HRC=48÷53.
[σ]F1=σFlim10=420
МПа (5.30)
Проходит>408,92
5.6.1
Проверка статической прочности
Наибольшее допускаемое напряжение
т.4.6:
[σ]F1max=1400
Действительное:
[σ]F1max=σF1·
=408,92∙1,4/1,1526=496,69ё (5.31)
Проходит.
5.7
Геометрический расчет
Z1=18; Z2=64; dе2=450; U=3,556; Re=233,76; в=71;
βm=35º; xn1=0,31; δ1=15°42', δ2=74˚18'
Число зубьев плоского колеса
ф.4.101.
Zc=
=√182+642=66,48 (5.32)
Среднее конусное расстояние ф.4.103.
R=Re-0,5в=233,76-0,5∙71=198,26 (5.33)
Расчетный модуль в среднем сечении
ф.4.104.
mnm=
=2∙198,26∙0,81915/66,48=4,89 (5.34)
Высота головки зуба в расчетном
сечении ф.4.105:
hа1=(1+хh1)·mnm=(1+0,31)∙4,89=6,4059
мм
hа2=(1+хh1)·mnm=(1-0,31)∙4,89=3,3741
мм
Высота ножки зуба в расчетном
сечении ф.4.106:
hf1=(1,25-хh1)·mnm=(1,25-0,31)∙4,89=4,5966
мм
hf2=(1,25+хh1)·mnm=(1,25+0,31)∙4,89=7,6284
мм
Угол ножки зуба ф.4.107:
θF1=arctg
=arctg (4,5966/198,26)=arctg (0,0232)=1°20'
θF2=arctg
=arctg (7,6284/198,26)=arctg (0,0385)=2°12'
Угол головки зуба ф.4.108:
θa1=θf2=2°12'
θa2=θf1=1°20'
Угол конуса вершин ф.4.109:
δa1=δ1+θa1=15°42'+2°12'=17°54'
δa2=δ2+θa2=74°18'+1°20'=75°38'
Угол конуса впадин ф. 4.110
δf1=δ1+θf1=15°42'-1°20'=17°02'
δf2=δ2+θf2=74°18'-2°12'=76°30'
Увеличение высоты головки зуба при
переходе от расчетного сечения на внешний торец ф.4.112.
Δhae1=0,5·b·tg θa1=0,5∙71∙tg2°12'=1,3632
мм
Δhae2=0,5·b·tg θa2=0,5∙71∙tg1°20'=0,93482
мм
Внешняя высота головки зуба ф.4.111:
hae1=ha1+Δhal1=6,4059+1,3632=7,7691
мм
hae2=ha2+Δhal2=3,3741+0,93482=4,3089
мм
Увеличение высоты ножки зуба при
переходе от расчетного сечения на внешний торец ф.4.114:
Δhfe1=Δhae1=0,93482 мм
Δhfe2=Δhae2=1,3632 мм
Внешняя высота ножки зуба ф.4.113:
hfe1=hf1+Δhfe1=4,5966+0,93482=5,5314
мм
hfe2=hf2+Δhfe2=7,6284+1,3632=8,9916
мм
Внешняя высота зуба ф.4.115:
hE=hae1+hfe1=hae2+hfe2=13,3005 мм
Диаметр основания конуса шестерни
ф.4.116:
de1=de2·
=450∙18/64=126,56
мм
Можем выполнить вал шестерню, т.к.
предельный диаметр заготовки у нас 200 мм, стр.87, а диаметр вершин зубьев
ф.4.117:
de1=de+2·hae1·cos δ1=126,56+2∙7,7691∙cos15˚42'=141,519
ммуа2=de2+2·hae2·cos
δ2=450+2∙4,3089∙cos74˚18'=452,332
мм
Диаметр впадин зубьев ф.4.118:=de1-2·hfe1·cos
δ1=126,56-2∙5,5314∙cos15˚42'=118,264
мм=de2-2·hfe1·cos
δ2=450-2∙8,9916∙cos74˚18'=445,134
мм
5.8 Силы в зацеплении конических передач
Окружная
сила ф.4.94: Ft=32823,1 Н -
ранее. Примем правый наклон зуба шестерни и направление ее вращения по часовой
стрелке (табл.4.20).
Осевая
сила на шестерне ф.4.119:
Fa1=Ft·γa, (5.35)
где
γа по т.4.20
γа=0,444·sin δ1+0,7·cos δ1=0,444∙sin15˚42'+0,7∙cos15˚42'=0,79404
Fa1=32823,1∙0,79404=26062,9
Н
Радиальная
сила на шестерне ф.4.120:
Fr1=Ft·γr, где γr по т.4.20
γr=0,444·cos δ1-0,7·sin δ1=0,444∙cos 15˚42'-0,7∙sin15˚42'=0,23802
Fr1=32823,1∙0,23802=7812,6
Н
Осевая
сила на колесе:
Fa2=-Fr1=-7812,6 Н (5.36)
Радиальная
сила на колесе:
Fr2=-Fa1=-26062,9 Н (5.37)
6. Ориентировочный
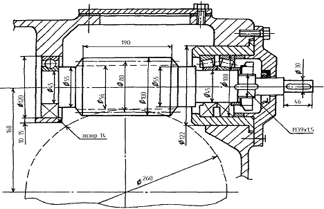
расчет вала червяка
В соответствии с рекомендациями разрабатываем
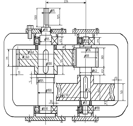
следующую конструктивную схему (Рис. 4).
Рисунок 4. Конструктивная схема вала червяка
Диаметр выходного конца вала:
d≥
≥³√16∙87640/(3,14∙20)=28,16
мм (6.1)
Принимаем d=30 мм.
Диаметр под манжету dм=35 мм, Д=55 мм, В=10 мм.
Диаметр резьбы под гайку стопорную
стр.328: М39×1,5, Д=60
мм, Н=10 мм.
Размеры шайбы стопорной стр.329:
толщина S=1,6 мм.
Диаметр вала под подшипник: dп=45 мм.
Принимаем подшипник средней серии №
7309 Д=100 мм, Т=27,5, В=26, С=83 кН, С0=60 стр.539.
Переходной диаметр d2=55.
Диаметр вала под радиальный
подшипник № 409: dп=45, Д=120, В=29, С=76,1, С0=45,5.
Выбираем размеры шпонки стр.302, для
диаметра d=30:
в=10, h=8, t1=5, t2=3,3.
Рассчитываем рабочую длину шпонки
стр.304:
lp>
=2∙87640/(30∙(8-5)∙80,0)=22,82=23
мм (6.2)
где [σ]см-
допускаемое напряжение смятия, при стальной ступицы и спокойной нагрузке 80…120
МПа; при чугунной вдвое меньше.
Общая длина:
lш=lp+в=23+10=33
мм (6.3)
принимаем общую длину lш=36 из
ряда.
Длина вала под шкив будет: L+10 мм=36+10=46
мм.
По полученным размерам на
миллиметровке прочерчиваем эскизную проработку узла червяка (конструируем).
7. Ориентировочный
расчет промежуточного и тихоходного вала редуктора
В соответствии с рекомендациями разрабатываем
следующую конструктивную схему (Рис. 5).
Рисунок 5. Конструктивная схема промежуточного и
тихоходного вала редуктора
Схема уточняется в процессе расчета и
конструирования.
7.1 Тихоходный вал
Диаметр выходного конца:
d≥
≥³√16∙1905380/(3,14∙18)≥81,39
мм
T4=1905,38
Н·м=1905380 Н·мм, [τ]=18 для
вала из стали 45. Принимаем d=85 мм.
Диаметр под сальник dс=90 с
учетом того, что на выходной конец насаживается полумуфта.
Диаметр под подшипник dп=95.
Принимаем радиальный шарикоподшипник № 319 средней серии Д=200, В=45, Сдин=153
кН,
Сстат=110 кН. стр. 531.
Диаметр под зубчатое колесо dк=100.
Диаметр буртика колеса dб=105.
Зазор между шестерней и корпусом: Δ2=0,8·δ стр.418,
где
толщина стенки корпуса δ=2·
≥6
ф.14.3, где
максимальный момент на тихоходном
валу:
=TH·m·i·η=
·m·i·η,
ф.14.1
где Pн-
номинальная мощность двигателя, Pн=7,5 кВт=7500 Вт; ω=152,29
рад/сек
m=2 кратность
пускового момента к номинальному т.2.2;
i=Uрем·Uзуб·Uчерв=2,169∙4∙6,3=54,659
η=ηмуф·ηзуб·ηчерв·ηкон·ηрем=0,99∙0,96∙0,9∙0,95=0,81
Тmax=7500/152,29∙2∙54,659∙0,81=4360,804
Н·м
δ=2∙4√0,1∙4360,804=9,14
мм, принимаем δ=10
Δ2=0,8·δ=0,8·10=8 мм
Зазор между вершинами зубьев колеса
и корпусом
Δ3=1,25·δ=1,25∙10=12,5=13
мм
Размер шпонки выходного конца вала
ф.90: d=85, в=25, h=14, t1=9, t2=5,4.
Рабочая длина шпонки:
lp>
=2∙1905380/85∙(14-9)∙80=112,08
мм
Общая длина шпонки
lш=lp+
112,08+25/2=124,58
мм
Примем по ряду стр. 302 lш=125
Расчетная длина вала (уточняется по
принятой муфте)
lв=125+5=130
мм.
Рабочая длина шпонки:
lp>
=2∙1905,38∙950/100∙(16-10)∙120=50,28
мм
Общая длина шпонки:
lш=lp+в=50,28+28=78,28
мм
Принимаем по ряду lш=80 мм
7.2 Промежуточный
вал
Определяем диаметр вала под
червячным колесом:
d≥
³=√16∙496950/3,14∙19=51,1
мм
Принимаем d=52 мм стр.
296, где T3=496,95
Н·м=496950 Н·мм.
[τ]=19 для стали шестерни 40Х.
Подбираем шпонку для d=52 мм: b=16 мм, h=10 мм, t1=6 мм, t2=4,3
Рабочая длина
lp>
=2∙496950/52∙(10-6)∙120=39,82
мм
Общая длина lш=lp+в=39,82+16=55,82
мм
Принимаем lш=56 мм по
ряду стр. 303
Назначаем диаметр под втулку Æ51; и под
подшипник Æ50.
Принимаем подшипник № 7310: d=50; Д=110; T=29,5; B=29; с=23; C=100 кН;
С0=75,5 кН.
Другие диаметры назначаем
конструктивно Æ62 и Æ60.
Длины вала x1 и x2
назначаются после конструктивной проработки (прочерчивания) на миллиметровке. В
том числе прочерчивается и вид сбоку (справа) редуктора.
7.3 Конструкция
зубчатого колеса и червячного колеса
Для зубчатого:
диаметр ступицы:
Дст=1,5·dв+10=1,5∙100+10=160=160
мм
толщина обода:
δ0=2,5·mn+2=2,5·4+2=12=12
мм
Конструкция зубчатого колеса и
червячного колеса показана на рис. 6.
Рисунок 6. Конструкция зубчатого
колеса и червячного колеса.
Для червячного колеса: стр. 431:
Dст=1,5·dв+10=1,5∙52+10=88=88
мм
δ0=2,5·m+2=2,5∙10+2=27
мм
·m+1=2∙10+1=21
мм
d=
=50/4=12,5
мм
h=
=13/2=6 мм
Ra=30
Rf=52
7.4 Выбор и
конструирование крышек для подшипников
На тихоходный вал принимаем в
качестве сквозной крышки: крышка торцовая с канавкой для уплотнительного кольца
(по ГОСТ 11641-73) стр. 166 [4];
Крышка 2-200 х 97 ГОСТ 11641-73.
В качестве глухой крышки: торцовую
глухую крышку cтр. 149 [4]:
Крышка 22-200 ГОСТ 18511-73
На промежуточный вал : торцовые
глухие крышки стр. 149 [4]:
Крышка 22-110 ГОСТ 18511-73
Т.к. межосевое расстояние между
валами мало для наружных диаметров крышек, то выполняются лыски:
Если же и это не проходит, то
Конструируем закладные крышки,
Рекомендации стр. 338 и 438.
Конструкция крышек для подшипников
показана на рис. 7.
Рисунок 7. Конструкция крышек для
подшипников
8. Выбор
муфты
Расчетный вращающий момент ф. 15.2.
Тр=kр×Тном4 (8.1)
kр=1,5-коэффициент
режима работы для цепного транспорта т. 15.1.
Тном4-номинальный вращающий момент на 4-м валу,
который можно определить
Тном4=
·ηрем·ηчерв·ηзуб=7500/2,79∙0,95∙0,9∙0,96=2206,452Н·м (8.2)
Рном=7,5 кВт - номинальная мощность
двигателя.
Тр =1,5×2206,452=3309,678
Н·м.
Для данных нагрузок и скоростей
подходят муфты: кулачково-дисковые по ГОСТ 20720-75, цепные по ГОСТ 20742-81,
зубчатые по ГОСТ 5006-55.
Цепные т.15.3 не проходят по нашим
характеристикам Тр=3309,678 Н·м и d=85 мм.
Зубчатая тоже не подходит, поэтому
проверяем параметры кулачково-дисковой стр. 198 [4]. Принимаем муфту: Тр=3309,678
Н·м; d=85 мм.; пmах=4000; c=3,5 тип 1
исполнение 2, ряд 2, т.е.: L=280; l=130; D1=310
Длина вала под полумуфту будет (280-5):2=137,5
мм.
Ранее рассчитанные размеры Lр=112,08 мм.
Поэтому принимаем материал шпонки [σ]см=120 МПа,
тогда рабочая длина Lр=48,18 мм; общая длина Lш=48,18+(25/2)=60,7.
Принимаем по ряду Lш=63 и длина вала L=71.
Остальные параметры: Анурьев В.И.
Издание 4, том 2, стр. 116-118.
По рекомендациям стр. 178-179
(Левятов Д. С. Расчеты и конструирование Д. М.)
D1=(2,5÷3)·d=2,75∙85=233,75=250
мм
DC=1,6·d+10=1,6∙85+10=146=160
мм
h=(0,3÷0,45)·d=0,4∙85=34
мм
Размеры проверяем по допускаемому
давлению на поверхности выступов.
Pmax=
≤[p] (8.3)
Pmax=12∙3309,678/(0,034∙(2∙0,25+0,09)∙(0,25-0,09))=12101752
Па=12 МПа
[Р]=(10¸15) МПа для
стальной герметически не обработанной муфты;
[Р]=(15¸30) МПа для
закаленной, стальной, работающей со смазкой муфты.
Принимаем первую.
Конструкция муфты показана на рис.
8.
Рисунок 8. Конструкция муфты
9.
Проверочные расчеты
.1 Проверка тихоходного
вала на сопротивление усталости
.1.1 Расчетная схема
Ft=10632,7 H-окружное
усилие
Fr=3853,1 H-радиальное
усилие
Тu=1905,38
Н·м-крутящий момент на валу.
Fk=13·
=13∙3√1905,382=1998,01
Н - радиальная сила от муфты, приложена в середине под полумуфтой, направление
как у Ft.
.1.2
Определение опорных реакций в вертикальной плоскости и построение эпюры
изгибающих моментов
ΣМD=0
FK·410-RBв·287,5+Ft·215=0
RBв=(1998∙410+10632,7∙215)/287,5=10801
Н
ΣМB=0
FK·122,5-Ft·72,5+RDв·287,5=0
RDв=(10632,7∙72,5-1998,01∙122,5)/287,5=1830
Н
Проверка:
FK+RDв+RBв-Ft=0
1998+1830+10801-10632,7=0
Изгибающие моменты:
В точке В:
МuB=-Fk·122,5·10-3=-1998,01∙0,1225=-245
Н·м
В точке Г:
МuГ=RDв∙215∙10-3=1830∙0,215=393
Н·м
9.1.3
Определение опорных реакций в горизонтальной плоскости и построение эпюры
изгибающих моментов
ΣМD=0
RBг·287,5-Fr·215=0
RBг=3853,1∙215/287,5=2881,4
Н
ΣМB=0
Fr·72,5-RDГ·287,5=0
RDг=3853,1∙72,5/287,5=971,7
Н
Проверка:
RBг+Fr-RDг=0
2881,4+3853,1-971,7=0
Изгибающие моменты: в точке Г
МuГ=-RBг∙72,5∙10-3=2881,4∙72,5∙10-3=-208,9
Н·м
9.1.4
Построение эпюры суммарных изгибающих моментов для горизонтальной и
вертикальной плоскостей
Эпюра суммарных изгибающих моментов
показана на рис. 9.
Рисунок 9. Эпюра суммарных
изгибающих моментов
Суммарная точка это точка Г:
МuΣ=
=√3932+-2452=463,1
Н·м
9.1.5
Построение эпюры крутящих моментов Т4=2572,9 Н·м
В соответствии с эпюрами МuΣ и Mкр опасным
сечением, подлежащим проверке на сопротивление усталости является сечение Г.
Здесь два концентратора напряжений: шпоночная канавка и посадка с натягом.
Доминирующее значение имеет шпоночная канавка, поэтому в расчет принимаем ее.
9.1.6
Расчет на сопротивление усталости
Принимаем материал вала сталь 45: по
т.4.5- длина любая, диаметр любой, σв=600 МПа, нормализация, НВсердцевины=179-207,
σТ=320 МПа.
Общий коэффициент запаса прочности
стр.297:
S=
(9.1)
Коэффициент запаса прочности по
нормальным напряжениям:
(9.2)
По касательным:
(9.3)
Предел выносливости материала при
симметричных циклах изгиба и кручения стр. 297 для нашей стали:
σ-1=0,43·σв=258 МПа
τ-1=0,58·σ-1=0,58·258=149,64
МПа
Эквивалентные коэффициенты
концентрации напряжений при изгибе и кручении kσ=1,6; kτ=1,635-принимаем
для валов со шпоночными канавками стр. 300 интерполяцией для стали σв=600 МПа.
Масштабные факторы для нормальных и
касательных напряжений стр. 298 принимаем по т.11.6: εσ=0,7; ετ=0,59.
β-коэффициент, учитывающий
влияние шероховатости поверхности, принимаем β=1, стр.
298.
Коэффициенты ψσ=0,05; ψτ=0 принимаем
по данным стр. 299.
Амплитуда циклов нормальных
напряжений (стр. 298) для валов со шпоночными канавками и момент сопротивления
при изгибе (стр. 300).
σа=
(9.4)
Wнетто=
(9.5)
Wнетто=3,14∙0,1003/32-0,028∙0,01∙(0,100-0,01)2/2∙0,100=0,000087
м3
σа=463,1/0,000087=5322989 Па=5,32
МПа
Амплитуда циклов касательных
напряжений стр.299 для валов со шпоночными канавками и момент сопротивления при
кручении (стр.300).
τа=
(9.6)
Wкнетто=
(9.7)
Wкнетто=3,14∙0,1003/16-0,028∙0,01∙(0,100-0,01)2/2∙0,100=0,000185
м3
τа=1905,38/(2∙0,000185)=5149676Па=5,15
МПа
Среднее напряжение нормальных
напряжений:
σm=
=0 (9.8)
Поэтому:
Sσ=258∙106/(1,6/(1∙0,7))∙5,32∙106+0,05∙0=21,22
Sτ=149,64∙106/(1,635/0,59)∙5,15∙106=10,485
S=21,22∙10,485/√21,222+10,4852=9,40-коэффициент
запаса
Допускаемое S=2,5÷3 т.е.
проходит.
9.2
Проверочный расчет подшипников тихоходного вала
n4=n5=26,62
об/мин (9.9)
Значит, проверяем по динамической
грузоподъемности (при n>10 об/мин).
Номинальная долговечность в часах:
Lh=
(9.10)
p=3 для
шарикоподшипников;
n=26,62
об/мин;
с=153 кН- динамическая грузоподъемность
подшипника по каталогу стр.351 (№ 319);
p=Fr·V·кб·кm-эквивалентная
нагрузка;
V=1-коэффициент
вращения колец подшипника;
Кб=1,5-т.12.27 для редукторов;
Кт=1,05-для температуры 125º;
Fr=
=√108012+2881,42=11179
Н (9.11)
Lh=106/(60∙26,62)∙(153000/(11179∙1∙1,5∙1,05))3=410840
час
При годовой работе 7008 часов ресурс
работы 59 года=410840/7008.
10. Расчет размеров
корпуса редуктора и элементов редуктора
Смотри стр.413-454 [1], стр.210-230 [3],
стр.240-251 [3], стр.477-481 [5].
Рекомендуемые зависимости приведены на примере
одноступенчатого редуктора по корпусу (Рис. 10):
Рисунок 10. Одноступенчатый редуктор
dб=
≥10 мм
к=2,7·dб
dф=1,25·dб или=0,036·а+12
h1-принимается
после прочерчивания
Число фланцевых болтов dф при
межосевом расстоянии:
а=100÷350 п=4
а=400÷500 п=6
Диаметры фланцевых болтов даны в
таблице 1.
Таблица 1. Диаметры фланцевых болтов
|
Диаметр
болта dс
|
М6
|
М8
|
М10
|
М12
|
М14
|
М16
|
М18
|
М20
|
М24
|
|
d4
|
14
|
17
|
20
|
26
|
28
|
32
|
36
|
38
|
45
|
Геометрические параметры редуктора сведены в
таблицу 2.
Таблица 2. Геометрические параметры редуктора
|
Толщина
стенки
|
δ, δ1
|
δ=0,25·a+1
мм δ1=0,02·a+1
мм δmin=7
мм
|
|
Зазор
между стенкой и вращающимися деталями
|
a1
|
(3÷6)m
|
|
Диаметр
винтов крышки смотрового люка
|
d3
|
0,5d≥M6
|
|
Ширина
платика смотрового люка
|
|
(2,0-2,2)d3
|
|
Толщина
фланцев
|
b,
b1
|
b=1,5·δ, b1=1,5·δ1
|
|
Наружный
диаметр крышки подшипника
|
Dкр
|
D=(4,0-4,4)d'
|
|
Диаметр
прилива
|
Dδ
|
Dкр+(5-6)
мм
|
|
Расстояние
от края расточки до оси болта
|
l
|
(1,0-1,2)dc
|
|
Расстояние
между осями болтов
|
a″
|
(1,1-1,2)dc
|
|
Расстояние
между болтами на фланцах
|
lв
|
(10-12)d
|
|
Толщина
проушины
|
S
|
(1,5-2,0)·δ1
|
|
Диаметр
отверстия в проушине
|
dn
|
(1,5-2,0)·δ1
|
|
Радиус
подъёмных крючьев
|
R'
|
(1,5-2,0)·δ
|
|
Ширина
подъёмных крючьев
|
h
|
(2,0-3,0)·δ
|
|
Диаметр
фиксирующих штифтов
|
dшт
|
(0,7-0,8)·d
|
По принятым расчетным параметрам прочерчивается
редуктор.
11. Ориентировочный
расчет конической вал-шестерни
В соответствии с рекомендациями стр.316-321
разрабатываем следующую конструктивную схему (рис. 11).
Рисунок 11. Конструктивная схема
Ход расчета ориентирован на предыдущие
рекомендации диаметр вала по муфте и конической шестерни по размерам предыдущих
расчетов.
Диаметр под сальник dc=100
Диаметр под резьбу: гайки круглые шлицевые ГОСТ
11871-66, М=105х2.
Диаметр под подшипник №7522 d=110,
D=200, Т=56, В=53,
С1=46, стр.134[4].
Конструкция крышек ориентируется на стр.116[4].
Схема подшипников (Рис. 12): установка стр.
436[1], L=(2-2,5)l).
Рисунок 12. Схема подшипников
Размер к принять конструктивно.
По принятым расчетным параметрам
прочерчивается узел вал- шестерни.
ЗАКЛЮЧЕНИЕ
Был спроектирован привод к
вертикальному валу цепного конвейера.
Произведен расчет на прочность.
Удовлетворяет предъявленным требованиям. Выполнены чертежи составляющих
редуктора. Поставленная цель достигнута. Задание выполнено.
Список
использованной литературы
1.
Чернавский С. А. «Проектирование механических передач» 1984 г.
.
Куклин Н. Г. «Детали машин» 1984 г.
.
Шейнблит А. Е. «Курсовое проектирование деталей машин» 1991г.
.
В. И. Анурьев «Справочник конструктора-машиностроителя» т. 2, 1978 г.
.
В. И. Анурьев «Справочник конструктора-машиностроит