Проектирование автотранспортного предприятия на 120 грузовых автомобилей

  • Вид работы:
    Дипломная (ВКР)
  • Предмет:
    Транспорт, грузоперевозки
  • Язык:
    Русский
    ,
    Формат файла:
    MS Word
    223,72 Кб
  • Опубликовано:
    2015-07-04
Вы можете узнать стоимость помощи в написании студенческой работы.
Помощь в написании работы, которую точно примут!

Проектирование автотранспортного предприятия на 120 грузовых автомобилей

Содержание

Введение

. Технико-экономическое обоснование проекта

.1 Общая характеристика АТП и его подвижного состава

.2 Организация и управление производством на АТП

.2.1 Структура управления производством

.2.2 Функциональная схема технологического процесса ТО и ремонта

.3 Анализ технико-экономические показателей работы АТП

2. Технологический расчёт предприятия

2.1 Исходные данные

.2 Корректирование нормируемой периодичности технического обслуживания (ТО-1 и ТО-2) и капитального ремонта (КР) автомобилей (автопоездов)

.3 Расчет производственной программы АТП

.3.1 Расчет количества ТО и КР на один автомобиль (автопоезд) за цикл

.3.2 Расчет количества ТО и КР на один автомобиль (автопоезд) и весь парк за год

.3.3 Расчет количества Д-1 и Д-2 на весь парк за год

.3.4 Расчет суточной производственной программы по видам ТО и диагностики

.4 Выбор метода технического обслуживания и диагностики

2.5 Расчет годовых объемов работ АТП

2.5.1 Корректирование нормативных трудоемкостей

2.5.2 Расчет годовых объемов работ по техническому обслуживанию, диагностике и текущему ремонту

.5.3 Расчет годового объема работ по самообслуживанию предприятия

.5.4 Распределение годовых объемов работ по производственным зонам и участкам (цехам)

.6 Расчет численности производственных рабочих

2.7 Расчет количества постов и линий технического обслуживания, диагностики и текущего ремонта

2.7.1 Режим работы производственных зон

.7.2 Расчет количества универсальных постов технического обслуживания и диагностики

.7.3 Расчет поточных линий периодического действия

.7.4 Расчет поточных линий непрерывного действия

2.8 Расчет площадей зон технического обслуживания, диагностики и текущего ремонта

2.9 Расчет площадей производственных участков, (цехов)

2.10 Расчет площадей складских помещений

2.10.1 Cклад смазочных материалов

2.10.2 Склад

.10.3 Склады запасных частей, агрегатов и материалов

2.11 Расчет площадей вспомогательных помещений

2.12 Планировка АТП

2.12.1 Общие положения

2.12.2 Строительные элементы зданий АТП

.12.3 Производственные помещения

2.12.4 Помещения для хранения автомобилей

2.12.5 Генеральный план

2.13 Технико-экономические показатели проекта АТП

. Прогнозирование остаточного ресурса деталей цилиндро-поршневой группы

.1 Исходные данные

.2 Расчёт параметров распределения ресурсов детали автомобильных двигателей

.3 Расчёт параметров распределения ресурсов детали по корреляционным уравнениям долговечности

.4 Определение доверительных границ изменения структурного параметра технического состояния цилиндропоршневой группы и наработки до первого ресурсного диагностирования

3.5 Прогнозирование остаточного ресурса детали ЦПГ автомобильного двигателя на основе результатов диагностирования

.6 Прогнозирование остаточного ресурса детали двигателя по степенной модели на основе результатов диагностирования

. Охрана труда

.1 Функции по охране труда и ответственность руководителя, специалистов и других работников АТП

.2 Требования охраны труда при ТО и ремонте автомобилей

. Промышленная экология

.1 Загрязнение атмосферного воздуха выхлопами газа автомобильного транспорта

.2 Специфика влияния автомобильного транспорта на окружающую среду

.3 Меры борьбы с влиянием выхлопных газов

Заключение

Список использованной литературы

Введение

автотранспортный предприятие деталь поршневый

Путешествуя по интернетовским сайтам в надежде найти десяток-другой фраз, способных украсить вступление к дипломному проекту, и, поневоле, знакомясь с содержанием этих сайтов, я пришел к ошеломительному, по крайней мере, для меня, выводу. Получается что трудяга автомобиль, красавец автомобиль, предмет вожделения многих двуногих на самом деле ни то, ни другое, ни третье. На самом деле это исчадие ада, подарившее человечеству столько проблем и головных болей, что лучше бы оно о нем никогда не знало. Миллионы смертей и отравленная природа - далеко не единственные из этого скорбного списка.

По своей молодости и наивности я полагал, что современные проблемы автомобильного транспорта связаны в первую очередь с самим автомобилем, как сложнейшей инженерной конструкцией. Ничего подобного! Пишут о несовершенстве законодательной базы, о таможенных барьерах и методах их преодоления, о тайнах экспедирования грузов, о защите от рэкетиров, о целесообразности создания платных дорог и крайне мало о технических проблемах автопрома.

Впрочем, оно и понятно: большие затраты на поддержание работоспособности автомобильного парка, фигурирующие в качестве основного аргумента актуальности разрабатываемой темы практически во всех дипломных проектах, - капля в море по сравнению с действительными и искусственно порожденными проблемами, возникающими при перевозке груза из пункта А в пункт Б. Одно только содержание дорожной полиции с ее первородным правом "Не пущать!" обходится в такую круглую копейку, что и выговорить трудно (кстати, что там идет после миллиарда?).

Так что, назад к лошадке? Увы, обратной дороги нет. Наши технологии, наша жизнь настолько автомибилизированы, что несмотря ни на что из сельских автогаражей, из ворот грузовых и автобусных парков каждое утро должны выезжать миллионы машин и наматывать на колеса миллионы же километров. А чтобы это неизбежно случалось, техническое здоровье автомобилей должно поддерживаться на должном уровне. А это, опять-таки значит, что тема данного дипломного проекта, посвященного проектированию АТП на 120 грузовых автомобилей, является, безусловно, актуальной.

1. Технико-экономическое обоснование проекта

.1 Общая характеристика АТП и его подвижного состава

АТП располагается в зоне умеренного климата с умеренной агрессивностью окружающей среды. Продолжительность зимы - 5 месяцев, лета - 7 месяцев. Категория условий эксплуатации ПС - I.

Списочный состав парка ПС АТП представлен 120-ю грузовыми автомобилями марки КамАЗ (см. рисунок 1.1) [1]:

·        КамАЗ-5320 - 60 шт.;

·        КамАЗ-5511 - 60 шт.

Рисунок 1.1. Автомобили КамАЗ-5320 и КамАЗ-5511

Основные параметры эксплуатируемых автомобилей

КамАЗ-5320

Бортовые автомобили-тягачи, выпускаются Камским автозаводом: КамАЗ-5320 с 1976 г. Предназначены для работы преимущественно с прицепами. Кузов - металлическая платформа с открывающимися боковыми и задним бортами.

Настил пола деревянный, предусмотрена установка тента

Грузоподъемность, кг 8000

Снаряженная масса, кг 7080

Полная масса, кг 15 305

Максимальная скорость автомобиля, км/ч 80

Максимальный преодолеваемый подъем автомобилем, % 30

Тормозной путь автомобиля с 60 км/ч, м        36,7

Контрольный расход топлива, л/100 км автомобиля:

при 60 км/ч 23,0

при 80 км/ч 29,6

Двигатель Мод. КамАЗ-740.10, дизель, V-o6p.(90°), 8-цил 120x120 мм, 10,85л

Заправочные объемы и рекомендуемые эксплуатационные материалы.

Топливные баки 175 или 250 л, дизтопливо

Система охлаждения (с подогревателем) 35 л. тосол А-40

Система смазки двигателя 26 л, летом М-10Г2(к), зимой М-8Г2(к), всесезонно ДВ-АСЗп-10В

Гидроусилитель рулевого управления 3,7 л, масло марки Р

Коробка передач с делителем 12 л, ТСп-15К

Картеры ведущих мостов 2x7 л, ТСп-15К

Гидравлическая система выключения сцепления 0,28 л, тормозная жидкость "Нева"

Амортизаторы 2x0,475 л, жидкость АЖ-12Т

Предохранитель против замерзания конденсата в тормозном приводе 0,2 л,

1,0 л, этиловый спирт;

Бачок омывателя ветрового стекла 1,8 л, жидкость НИИСС-4 в смеси с водой.

КамАЗ-5511

Выпускаются Нефтекамским заводом автосамосвалов на базе автомобиля КамА3-5320; КамАЗ-5511 (для работы без прицепа) с 1977 г. Кузов: КамАЗ-5511 - ковшового типа, разгрузка назад.

Грузоподъемность, кг 10 000

Собственная масса, кг 9000

Снаряженная масса, кг 7080

Полная масса, кг 19 150

Макс. скорость автомобиля, км/ч 80

Макс. преодолеваемый подъем автомобилем, % 30

Тормозной путь автомобиля с 40 км/ч, м        17,2

Контрольный расход топлива, л/100 км автомобиля: при 60 км/ч     27,0

Объем кузова, м3 7,2 и 6,2

Угол подъема кузова град 60

Время подъема с грузом, с 19

Подъемное устройство гидравлическое с приводом от коробки отбора мощности, подъемник телескоп. расположен в передней части кузова, макс рабочее давление 140кгс/см2

Двигатель Мод. КамАЗ-740.10, дизель, V-o6p.(90°), 8-цил 120x120 мм, 10,85 л.

Заправочные объемы и рекомендуемые эксплуатационные материалы.

Топливные баки 175 или 250 л, дизтопливо

Система охлаждения (с подогревателем)        35 л, охлаждающая жидкость - тосол А-40

Система смазки двигателя 26 л, летом М-10Г2(к), зимой М-8Г2(к), всесезонно ДВ-АСЗп-10В

Гидроусилитель рулевого управления 3,7 л, масло марки Р

коробка передач с делителем 12 л, ТСп-15К

картеры ведущих мостов 2x7 л, ТСп-15К

гидравлическая система выключения сцепления 0,28 л, тормозная жидкость "Нева"

Амортизаторы 2x0,475 л, жидкость АЖ-12Т

Предохранитель против замерзания конденсата в тормозном приводе 0,2 л или

,0 л, этиловый спирт

Бачок омывателя ветрового стекла 1,8 л, жидкость НИИСС-4 в смеси с водой.

Объем гидросистемы подъемного устройства, л 33 (масло для двигателей: летом - индустриальное 20, зимой - индустриальное 12).

Распределение ПС по величине пробега представлено на рисунке 1.2.

Рисунок 1.2. Распределение ПС по величине пробега (в %) от величины пробега до первого капитального ремонта

Таким образом, АТП располагает достаточно изношенным парком автомобилей.

Хранение подвижного состава осуществляется на открытой площадке без подогрева.

Основные виды грузов, перевозимые АТП по договорам с физическими и юридическими лицами:

. Строительные материалы (ж/б конструкции, кирпич, цемент и т.п.) - до 50% объема выполняемых работ;

. Технологическое оборудование, металл - до 30%;

. Сельскохозяйственные грузы (преимущественно зерно) - до 20%.

Режим работы АТП: шестидневная рабочая неделя; количество смен - 1, продолжительность смены - 8 ч.; количество дней работы в году - 305.

.2 Организация и управление производством на АТП

.2.1 Структура управления производством

Рис. 1.3. Структура управления производством

1.2.2 Функциональная схема технологического процесса ТО и ремонта

АТП пытается создать централизованную систему ТО и ТР автомобилей, поскольку концентрация больших объёмов работ в условиях централизации ТО и ТР позволяет реализовать ряд достоинств производства:

1.      Применять прогрессивную технологию;

2.      Повысить эффективность использования производственного оборудования и производственных площадей;

.        Сократить затраты на капитальное строительство;

.        Повысить производительность труда;

.        Повысить эффективность автомобильных перевозок.

Схемы организации централизованных ТО и ТР приведены на рисунках 1.4-1.6.

Рисунок 1.2. Организация централизованного ТО-1

Централизованное ТО-1 выполняется входящими в комплекс ТО и ТР.

Персонал участка - специалисты по выполнению ТО-1.

ТО-1 выполняется в сменное время.

В соответствии с суточным планом, диспетчером в путевых листах проставляется штамп ТО-1 с указанием времени прибытия в ТО.

По прибытию к месту проведения водитель сдаёт автомобиль представителю ОТК.

После приёмки дальнейшие перестановки осуществляет перегонщик. Автомобиль, поступивший на ТО-1, проходит мойку и поступает на ТО-1 или в зону ремонта. В случае неясного дефекта при Д-1, машина направляется на Д-2, затем на ТР, затем снова на Д-1. После прохождения передаётся водителю или водителю перегонщику.

Централизованное ТО-2 Выполняется участком, входящим в комплекс ТО-ТР базового предприятия.

Сопутствующий ремонт, в зависимости от трудоёмкости, выполняется перед ТО-2 в комплексе с ТО и ТР или непосредственно на линии ТО-2.

Автомобиль поступает на ТО-2 непосредственно с линии.

Принятый автомобиль проходит мойку и затем поступает на участок поэлементной диагностики.

Результаты диагностирования передаются диспетчеру, который, исходя из объёма работ по ремонту, а также состояния производства, определяет маршрут движения автомобиля перед поступлением на ТО-2.

После прохождения ТО-2 автомобиль направляется на проверку качества работ и далее поступает в зону хранения.

Рис. 1.3 - Организация централизованного ТО-2

Рис. 1.4 - Организация централизованного ремонта

Автомобили могут поступать на ремонт в централизованное производство непосредственно с линии.

Автомобили, после их приёмки, проходят мойку и поступают в зону.

На основании заявки на ремонт и результатов диагностики диспетчер определяет маршрут движения по постам зоны ремонта, сроки начала и окончания работ в зоне ТР.

.3 Анализ технико-экономические показателей работы АТП

Нами были проанализированы показатели работы эксплуатационной и технической служб АТП за последние несколько лет и, в частности, такие важнейшие из них как показатели производственной программы (см. таблицу 1.1), коэффициенты выпуска ПС на линию и технической готовности (см. рисунок 1.5) [2].

Таблица 1.1

Показатели производственной программы за 2008 год

Показатели работы

На один ходовой автомобиль

За сутки по парку

За год по парку

Количество перевозимого груза, QT

26,8

2347,7

716049

Грузооборот, PТКМ

1045

91545,5

27921378

Пробег, LОБЩ

234

20498,4

6252012

Число ездок, Ze

5

438

133590

Авточасы работы, АЧР

8,2

718,3

219087

Автодни работы, АДР

1

88

26840


Анализ показал, что имеет место устойчивая тенденция ухудшения этих показателей. Так объем перевозок снизился на 30%, в то время как численность ПС уменьшилась лишь на 15%. Коэффициент выпуска ПС на линию уменьшился на 11%, а падение коэффициента технической готовности составило 9%.

Были установлены причины наличия столь нежелательной тенденции:

·        существенный износ парка ПС;

·        недостаточная степень механизации процессов ТО и ТР;

·        устаревшее технологическое оборудование;

·        несоответствие параметров системы ТО и ТР существующему состоянию транспортной техники и условиям эксплуатации;

·        снижение образовательного ценза и уровня профессиональной компетенции ремонтных рабочих.

Естественно, что приведенный перечень проблем не является исчерпывающим, так как мы по вполне понятным причинам ограничили его вопросами, так или иначе связанными с качеством работы технической службы АТП.

На наш взгляд ситуация не является критической, но требует оперативного вмешательства. В частности, необходимо технологическое перепроектирование автопредприятия. Именно это является основной задачей, решаемой в данном дипломном проекте.

2. Технологический расчёт предприятия

2.1 Исходные данные

Тип автотранспортного предприятия - грузовое атотранспортное предприятие

Списочное количество автомобилей - 120 грузовых автомобилей:

·    бортовой КамАЗ 5320 грузоподъёмностью 8 тонн - 60 а/м;

·        самосвал КамАЗ 5511 грузоподъёмностью 10 тонн - 60 а/м.

Количество дней работы в году автотранспортного предприятия - 305 дней.

Время работы автомобилей на линии (время в наряде) - 12 ч.

Время выпуска и возврата автомобилей с линии: 8:00-20:00 ч.

Категория условий эксплуатации - I.

Климатические условия эксплуатации - умеренные.

Средний пробег автомобиля с начала эксплуатации - 450000 км.

Процентное соотношение новых и прошедших капитальный ремонт автомобилей - 22/98.

При реконструкции - исходные данные принимаются на основе отчетных материалов реконструируемого предприятия с учетом его перспективного развития.

.2 Корректирование нормируемой периодичности технического обслуживания (ТО-1 и ТО-2) и капитального ремонта (КР) автомобилей (автопоездов)

Нормативная периодичность технических обслуживаний (ТО-1, ТО-2) и капитальный ремонт (таблица 2.1) по положению [3] установлена по типам автомобилей для первой категории условий эксплуатации.

Для других условий эксплуатации эти нормативы корректируются с помощью коэффициентов, учитывающих категорию условий эксплуатации К1, модификацию ПС и организацию его работы К2, климатические условия К3.

Таблица 2.1

Нормативные периодичности ТО и КР и корректирующие коэффициенты

Тип ПС

L(н)к

L(н)1

L(н)2

K1

K2

K3

КамАЗ 5320

300000

4000

16000

1

1

1

КамАЗ 5511

300000

4000

16000

1

1

1


Нормы межремонтных пробегов устанавливаются по каждой группе одномарочного состава парка с учетом соотношения новых автомобилей и прошедших капитальный ремонт. В этом случае средний цикловой пробег (нормативный пробег до капитального ремонта) автомобиля определяется из уравнения [4]:

 (2.1)

где Lкн - нормируемый пробег автомобилей до первого капитального ремонта, км;км - нормируемый пробег автомобилей до второго и последующего капитального ремонта, км. Принимается из условия Lкм ≥ 0,8Lкн;

Ан Ак - соответственно количество новых автомобилей и после капитального ремонта;

К1, К2, К3 - коэффициенты, учитывающий соответственно категорию условий эксплуатации, тип и модификацию ПС, природно-климатические условия.

Для всех автомобилей данного АТП

 км.

Установленные значения пробегов между отдельными видами технического обслуживания и капитального ремонта корректируется по кратности со среднесуточным пробегом. Корректировка заключается в подборе численных значений периодичности пробега в км для каждого вида ТО и КР, кратных между собой и среднесуточному пробегу и близких по своей величине и установленным нормативам.

.3 Расчет производственной программы АТП

В результате расчета производственной программы определяется количество технических обслуживании (ЕО, ТО-1, ТО-2), капитальных ремонтов (КР) и диагностических воздействий (Д-1, Д-2) за год и сутки.

Производственная программа по ТО-1 и ТР рассчитывается за цикл эксплуатации (цикловой метод), т.е. за пробег автомобиля до КР, с последующим перерасчетом программ на год и сутки.

Производственная программа по диагностическим воздействиям определяется в зависимости от программ по ТО-1 и ТО-2 за год.

Для текущего ремонта, выполняемого по потребности, количество ТР не определяется.

Планирование простоев подвижного состава и объемов работ в ТР производится, исходя из соответствующих удельных нормативов на 1000 км пробега.

При разнотипном подвижном составе расчет программы ведется отдельно по каждой группе одномарочного состава парка.

2.3.1 Расчет количества ТО и КР на один автомобиль (автопоезд) за цикл

Количество КР Nk =1;

Количество ТО-2

= - Nк =  - 1 = 18 (2.2)

Количество ТО-1

= - (Nk+N2) = - 19 = 56 (2.3)

Количество ЕО

=  =  = 1000, (2.4)

где NK, N2, N1, Neo - соответственно количество КР, ТО-2, ТО-1 и ЕО за цикл на один автомобиль;, L2, L1 - соответственно пробеги до КР, ТО-2 и ТО-1, км;среднесуточный пробег, км.

2.3.2 Расчет количества ТО и КР на один автомобиль (автопоезд) и весь парк за год

Так как пробег автомобиля за год отличается от пробега автомобиля за цикл, для определения количества ТО и КР за год необходимо сделать соответствующий пересчет полученных значений Nk N2, N1, Neo, используя коэффициент перехода от цикла к году hг:

hг = LГ/LK (2.5)

Где LГ - годовой пробег автомобиля.

Г = Драб. г* αт * lcc, (2.6)

где Драб. г - число рабочих дней в году

αт - коэффициент технической готовности.

Число дней нахождения автомобиля в исправном состоянии за цикл:

Дэц =  = =1000. (2.7)

Коэффициент технической готовности am:

·        для подвижного состава с пробегом < :

am =. (2.8)

·        для подвижного состава грузоподъёмностью 10 тонн:

am =

Учитывая близость значений вычисленных коэффициентов готовности, принимаем их одинаковыми и равными 0,84 [5].

Здесь, кроме известных величин, Дрц - число дней простоев автомобиля в ТО-2 и ремонтах за цикл, которое определяется из выражения:

Дрц = Дк+ ДТО-ТР К4 (2.9)

где Дк - простой автомобиля в КР с учетом времени транспортировки на авторемонтное предприятие, дни;

ДТО-ТР - удельный простой автомобиля в ТО и ТР на 1000 км пробега, дни;

К4 - коэффициент изменения простоя в ТО и ТР в зависимости от пробега автомобиля с начала эксплуатации.

При отсутствии точных данных можно принимать:

Дк = (0,1- 0,2)ДТО-ТР К4. (2.10)

Тогда формула (2.7) примет вид:

Дрц = (1,1 - 1,2) ДТО-ТР К4. (2.11)

В нашем случае для всех автомобилей ДТО-ТР = 0,5; К4 = 1,2 для автомобилей до первого капитального ремонта и К4 = 1,3 - после капремонта. Таким образом:

Для подвижного состава с пробегом < :

Дрц = 0,5 *  * 1,2 = 180.

Для подвижного состава с пробегом >:

Дрц = 0,5 *  * 1,3 = 195.

Для автопоездов дни простоя в КР принимаются, как для одиночных грузовых автомобилей.

Для грузовых автомобилей, работающих с прицепами, удельный простой в ТО и ТР принимается, как для одиночных грузовых автомобилей, а для автомобилей-тягачей, работающих полуприцепами - с учетом времени простоя полуприцепов в ТР (ТО-2 автомобиля-тягача и полуприцепа производится одновременно без расцепки).

Значения годового пробега (ф. 2.6) и коэффициента перехода от цикла к году (ф. 2.5):

Г = 305* 0,84 * 300 = 76860 км.

ηr = 76860/300000 = 0,256.

Nкг=Nк · ηr = 1 * 0,256 = 0,256; (2.12)г =N2 · ηr = 18 * 0,256 = 4,61; (2.13)кг=N1 · ηr = 56 * 0,256 = 14,34; (2.14)ЕОг =NЕО · ηr = 1000 * 0,256 = 256. (2.15)

где Nкг, N2г, N1г, Neo2 - соответственно количество КР, ТО-2, ТО-1 и ЕО одного автомобиля за год.

При известном списочном количестве автомобилей, количество ТО и КР на весь парк в год составит (в нашем случае количество воздействий за цикл на все машины одинаково):

SNкг = Nкг * AN = 0,256 * 120 = 30,72 (2.16)

SN2г=N2г * АN = 4,61 * 120 = 553,2; (2.17)

SN1г = N1г * AN =14,34 * 120 = 1720,8 (2.18)

SNEoг=NЕ0 * AN,=256 *1 20 = 30720 (2.19)

где SNкг, SN2г , SN1r, SNeoг - соответственно суммарное количество КР, ТО-2, ТО-1 и ЕО на весь парк автомобилей за год.

.3.3 Расчет количества Д-1 и Д-2 на весь парк за год

Помимо программы по ТО и КР необходимо определить годовую программу по видам диагностики Д-1 и Д-2.

Количество Д-1 на весь парк автомобилей за год SLд-1г определяется из выражения:

SNд-1г = SN 1д-1 + SNТРд-1 + SN 2д-1 =2962,3 (2.20)

где SNд-1г , SNТРд-1, SN 2д-1 - соответственно количество автомобилей за год диагностируемых при ТО-1, при ТР (по узлам и системам, обеспечивающим безопасность движения) и после ТО-2 (заключительный контроль по узлам и системам, обеспечивающим безопасность движения).

По опытным данным Отраслевой лаборатории диагностики автомобилей (ОЛДА) МАДИ эти составляющие равны:

SN1д-1г = SN1г = 1720,8 (2.21)

SNТРд-1 = 0,4 SN1г= 0,4 * 1720,8 = 688,3. (2.22)

SN 2д-1= SN2г = 553,2. (2.23)

Количество Д-2 на весь парк автомобилей за год равно:

SNд-2г= SN2д-2 + SNТРд-2 + SNвд-2= 699,16,      (2.24)

где SN2д-2, SNТРд-2, SNвд-2 - соответственно количество автомобилей за год диагностируемых перед ТО-2, при ТР выборочном контроле ОТК.

Согласно данным ОЛДА:

SN2д-2 = SN2г =553,2. (2.25)

SNТРд-2 = 0,2 SN2г = 0,2*553,2 = 110,64.(2.26)

SN вд-2= 0,1 SN2г=0,1*553,2 = 55,32. (2.27)

.3.4 Расчет суточной производственной программы по видам ТО и диагностики

Суточная программа парка автомобилей по ТО и диагностике автомобилей определяется из следующего выражения:

; (2.28)

;

;

;

;


где SNiг - годовое количество ТО и диагностических воздействий по каждому виду в отдельности (SNЕОг, SNiг, SN2г, SNд-1г, SNд-2г );

Д iрабг - количество рабочих дней в году производственной зоны, для которой определяется суточная программа.

2.4 Выбор метода технического обслуживания и диагностики

Критерием для выбора метода технического обслуживания (поточный ил метод универсальных мостов) является суточная производственная программа по каждому виду обслуживания [6].

По рекомендациям ОЛДА МАДИ диагностирование Д-1 в зависимости от суточной программы и метода проведения ТО-1 может быть организовано на отдельных постах (выделенная диагностика Д-1) или совместно с ТО-1.

Если ТО-1 производится на универсальных постах, то диагностику Д-1 целесообразно организовывать на отдельно выделенном посту.

При организации ТО-1 на поточной линии и особенно при организации ТО-1 на универсальной поточной линии для проведения ТО-1 и ТО-2 в разные смены, диагностику Д-1 целесообразно совмещать с процессом ТО-1 и располагать диагностическое оборудование комплекса Д-1 непосредственно на линии ТО.

Для крупных АТП и БЦТО, где ТО-1 и ТО-2 проводится на нескольких поточных линиях, целесообразно организовывать выделенные специализированные линии Д-1, с тем, чтобы автомобили могли попасть на них из различных производственных зон.


2.5 Расчет годовых объемов работ АТП

Годовой объем работ АТП определяется в чел-ч и состоит из объемов работ по техническому обслуживанию (ЕО, ТО-1, ТО-2); диагностики (Д-1, Д-2); текущему ремонту (ТР) и самообслуживанию предприятия.

Перед расчетом годовых объемов работ необходимо скорректировать нормативы трудоемкости по видам технических воздействий для подвижного состава, проектируемого АТП.

2.5.1 Корректирование нормативных трудоемкостей

Нормативы трудоемкостей по ТО и ТР согласно "Положению" установлены для I категории условий эксплуатации по типу подвижного состава.

Эти нормативы рассчитаны на АТП с количеством 150-300 единиц подвижного состава одного типа при пробеге с начала эксплуатации равном 50-75% от пробега до КР, расположенные в Центральной климатической зоне и оснащенные средствами механизации, согласно табелю гаражного оборудования.

Корректирование указанных нормативов трудоемкостей производится в зависимости от категории условий эксплуатации, типа подвижного состава, природно-климатических условий, размера АТП и метода организации ТО и диагностики.

При применении в ЕО механизированных моечных установок, а также при механизации других видов работ ЕО, например, уборочных, обтирочных (использование воздуха для обдува автомобилей) трудоемкость объема работ должна быть уменьшена.

Расчетную трудоемкость ЕО, реализуемую путем ручной обработки ео1, при поточном методе производства можно определить из следующего выражения:

= tEO1 К2 К5 Км чел-ч. (2.29)

Для подвижного состава грузоподъёмностью 6-8тонн:

=0,35* 1*0,35=0,1225 чел-ч.

Для подвижного состава грузоподъёмностью 8-10тонн:

=0,40* 1,15*0,50= 0,23 чел-ч,

где tEO - трудоемкость ЕО для данного типа подвижного состава по "Положению", чел-ч;

Кз, К5, Км - соответственно коэффициенты, учитывающие: тип и модификацию подвижного состава, размер АТП, снижение трудоемкости за счет механизации работ ЕО.

Значение Км в зависимости от удельного веса механизированной части работ обслуживаемого автомобиля может быть принято от 0,35 до 0,75.

В общем, виде скорректированная нормативная трудоемкость (ТО-1),

(ТО-2) определяется из выражения;

ti = til K2 К5 Кn чел-ч, (2.30)

Для подвижного состава грузоподъёмностью 6-8тонн:

=5,7*1,0*1=5,7; t2=21,6*1,15*1=24,84.

Для подвижного состава грузоподъёмностью 8-10тонн:

=7,5*1*1=7,5; t2=24,0*1,15*1=27,6,

где til - трудоемкость ТО-1 (ТО-2) для данного типа подвижного состава по "Положению", чел-ч;

К2 - коэффициент, учитывающий тип и модификацию подвижного состава;

Кз - коэффициент, учитывающий размер АТП;

Кn - коэффициент, учитывающий снижение трудоемкости за счет поточной организации работ (Кn = 0,90-0,95). При обслуживании на универсальных постах Кп =1,0.

Удельная нормативная трудоемкость текущего ремонта tТР определяется из выражения:

tТР = til K1 К2 Кз К4 К5 чел-ч/1000км, (2.31)

Для подвижного состава грузоподъёмностью 6-8тонн:

tТР =5,0*1,0*1,0*1,0*1,19*1,0=5,95       чел-ч/1000км.

Для подвижного состава грузоподъёмностью 8-10тонн:

tТР =5,5*1,0*1,15*1,0*1,19*1,0=7,526 чел-ч/1000км.

где til - удельная трудоемкость для данного типа подвижного состава по "Положению", чел-ч/1000км;

К1 К3 К4 - соответственно коэффициенты учитывающие: категорию условий эксплуатации, природно-климатические условия, пробег автомобиля с начала эксплуатации.  Далее необходимо определить нормативы трудоемкостей диагностики Д-1 и Д-2, а также скорректировать полученные значения трудоемкостей ТО-1 (ТО-2) в зависимости от выбранного метода диагностики.

При диагностике Д-1, выполняемой на отдельных постах, (выделенная диагностика) ее трудоемкость tд-1 с выполнением регулировочных работ составляет примерно 25% от нормативной скорректированной трудоемкости ТО-1:

д-1 = 0,25 t1 чел-ч. (2.32)

Для подвижного состава грузоподъёмностью 6-8тонн:

tд-1 = 0,25 * 5,7=1,425 чел-ч.

Для подвижного состава грузоподъёмностью 8-10тонн:

tд-1 = 0,25 * 7,5=1,875 чел-ч.

При этом 10% составляет диагностические работы Д-1 и 15% - регулировочные работы, выполняемые на постах после обнаружения неисправности в результате диагностирования Д-1.

Поскольку диагностические работы фактически являются работами, входящими в объем ТО-1, расчетную трудоемкость ТО-1 (t1) при организации Д-1 на отдельных постах следует уменьшить на 15%:

=0.85 t1 чел-ч. (2.33)

Для подвижного состава грузоподъёмностью 6-8тонн:

=0.85*5,7=4,845 чел-ч.

Для подвижного состава грузоподъёмностью 8-10тонн:

=0.85*7,5=6,375 чел-ч.

В случае совмещения диагностики Д-1 с процессом ТО-1, общая трудоемкость этих работ t1+д-1 увеличивается на 10% за счет включения в технологию дополнительных диагностических операций по проверке тормозов, переднего моста, систем зажигания и питания на стендах:

+д-1 = 1,10 t1, чел-ч. (2.34)

Для подвижного состава грузоподъёмностью 6-8тонн:

t1+д-1 = 1,10 *5,7=6,27 чел-ч.

Для подвижного состава грузоподъёмностью 8-10тонн:

t1+д-1 = 1,10 *7,5=8,25 чел-ч.

Диагностика Д-2 в основном выполняется на отдельных постах. При этом трудоемкость Д-2 tД-2 составляет от 10 до 20% от нормативной скорректированной трудоемкости ТО-2 (t2):

Д-2 = (0,1 - 0,2)t2, чел-ч. (2.35)

Для подвижного состава грузоподъёмностью 6-8тонн:

Д-2 = 0,2*24,84=4,968 чел-ч.

Для подвижного состава грузоподъёмностью 8-10тонн:

Д-2 = 0,15*27,6=4,14 чел-ч.

Значение 0,1 t2 принимается для автобусов и грузовых автомобилей большой грузоподъемности, а 0,2 t2 - для легковых автомобилей и грузовых средней и малой грузоподъемности.

При определении tД-2 для автопоездов трудоемкость t2 принимается только для автомобиля тягача.

За счет перенесения на посты Д-2 работ по проверке и регулировки систем питания, зажигания, электрооборудования и др., а также выделения работ по Д-1, трудоемкость ТО-2 соответственно необходимо уменьшить на 10-20%:

t2 = (0,9 - 0,8) t2- tд-1 чел-ч. (2.36)

Для подвижного состава грузоподъёмностью 6-8тонн:

= 0,8* 24,84-1,425=18,447 чел-ч.

Для подвижного состава грузоподъёмностью 8-10тонн:

= 0,85*27,6-1,875=21,585 чел-ч.

По "Положению" совместно с ТО-2 рекомендуется выполнять технологически связанные с ним, часто повторяющееся операции сопутствующего ТР, не превышающее 20% трудоемкости ТО-2. С учетом этого трудоемкость ТО-2 с операциями ТР t2 +тр составит:

+тр =1,2 t2, чел-ч (2.37)

Для подвижного состава грузоподъёмностью 6-8тонн:

+тр =1,2 *24,84=29,808 чел-ч.

Для подвижного состава грузоподъёмностью 8-10тонн:

+тр =1,2 *27,6=33,12 чел-ч.

Для подвижного состава грузоподъёмностью 10-16тонн:

+тр =1,2*35,88=43,056 чел-ч

Удельная трудоемкость ТР (tтр) как при выделенной, как и при совмещенной диагностике может быть снижена на 10-15%за счет повышения качества ТО:

=(0,9-0,85) tтр чел-ч/1000км. (2.38)

Для подвижного состава грузоподъёмностью 6-8тонн:

=0,85*5,95=5,0575 чел-ч/1000 км.

Для подвижного состава грузоподъёмностью 8-10 тонн:

=0,87*7,526=6,547 чел-ч/1000 км.

где tTP - удельная скорректированная трудоемкость ТР, чел-ч/1000 км.

Далее рассмотрим пример корректирования нормативов трудоемкости ЕО, ТО-1, ТО-2 и ТР для АТП, расположенного в зоне умеренного климата, с количеством 120 автомобилей (бортовой КамАЗ-5320, самосвал КамАЗ- 53212 и КрАЗ-250-010), работающих в первой категории условий эксплуатации, и имеющих пробег с начала эксплуатации, равный 1,1 LK. выполнение ЕО и ТО-1 предусматривается на универсальных постах.

На основе скорректированных нормативов, приведен пример определения и корректирования нормативов трудоемкости диагностики, ТО и ТР для различных методов организации диагностики в АТП.

.5.2 Расчет годовых объемов работ по техническому обслуживанию, диагностике и текущему ремонту

Годовой объем работ по техническому обслуживанию, диагностике и текущему ремонту определяется в чел-ч раздельно по каждому типу подвижного состава:

По ЕО ТЕОг=SNЕОг tЕОг; (2.39)

По Д-1 Тд-1г =SNд-1г tд-1 (2.40)

По ТО-1 Т1г = SN1г t (2.41)

По ТО-1 с Д-1 Т1+д-1г = SN1г t1+д-1 + 0,4 SN1г td-2; (2.42)

Д-2 Тд-2г = SNд-2г tд-2 (2.43)

ТО-2 с ТР T2+TPг = SN2г t2+TP; (2.44)

ТР ТТРг = (2.45)

Для подвижного состава грузоподъёмностью 6-8тонн:

По ЕО ТЕОг = (30720/2)*0,1225 = 1882

По Д-1 Тд-1г = (2962,3/2)* 1,425 =2111

По ТО-1 Т1г = (1720,8/2)*5,7 = 4904

По ТО-1 с Д-1 Т1+д-1г =(1720,8/2)*6,27+0,4*(1720,8/2)*4,968=7104

Д-2 Тд-2г = (699,16/2)*4,968 = 1737

ТО-2 с ТР T2+TPг = (553,2/2)*29,808 = 8245

ТР ТТРг

Для подвижного состава грузоподъёмностью 8-10тонн:

По ЕО ТЕОг= (30720/2)*0,23 = 3533

По Д-1 Тд-1г = (2962,3/2)* 1,875 = 2777

По ТО-1 Т1г = (1720,8/2)*7,5 = 6453

По ТО-1 с Д-1 Т1+д-1г =(1720,8/2)*8,25+0,4*(1720,8/2)*4,14=8523

Д-2 Тд-2г = (699,16/2)*4,14 = 1447

ТО-2 с ТР T2+TPг = (553,2/2)*33,12 = 9161

ТР ТТРг ,

где Теог, Т д-1г, Т 1г, Т1+д-1г, Т д-2г, Т2+ТРг, ТТрг, - годовые объемы работ соответственно ЕО, Д-1, ТО-1, ТО-1 с Д-1, Д-2, ТО-2 с ТР, ТР, чел-ч;еог, tд-1г, t1г, t1+д-1г, tд-2г, Т2-ТР - трудоемкость соответственно ЕО, Д-1, ТО-1, ТО-1 с Д-1, Д-2, ТО-2 с ТР , чел-ч;- удельная трудоемкость ТР, чел-ч/1000км;г - годовой пробег одного автомобиля данной группы подвижного состава, км.

Результаты расчета годового объема работ по АТП представлены в таблице 2.2.

Таблица 2.2. Годовые объемы работ, чел.-ч

Вид работ

КамАЗ 5320

КамАЗ 5511

Итого, чел.-ч

1

2

3

4

ЕО-1

1822

3533

5355

Д-1

2111

2777

4888

ТО-1

4904

6453

11357

ТО-1 с Д-1

7104

8523

15627

Д2

1737

1447

3184

ТО-2 с ТР

8245

9161

17406

ТР

17198

23029

40227

Самообслуживание

7221

9139

16360

Итого

5034264062114404




.5.3 Расчет годового объема работ по самообслуживанию предприятия

Годовой объем работ по самообслуживанию предприятий Тсам принимается в процентном отношении (20-30%) от суммарной трудоемкости работ по техническому обслуживанию, диагностике и текущему ремонту всего подвижного состава в зависимости от количества автомобилей. Работы по самообслуживанию, связанные с работой производственных цехов, составляют часть общей трудоемкости вспомогательных и подсобных работ по автотранспортному предприятию и определяются в % от суммарной трудоемкости работ на ТО" диагностику и ТР:

ТСАМ = (ТЕОг + Т 1+д-1г +Тд-2г + Т 2+ТР г + Т ТРг ) Кс чел-ч; (2.46)

Для подвижного состава грузоподъёмностью 6-8тонн:

ТСАМ = (1822 + 7104 + 1737+ 8245 + 17198)0,2=7221 чел-ч;

Для подвижного состава грузоподъёмностью 8-10тонн:

ТСАМ = (3533 + 8523 + 1447+ 9161 + 23029)0,2=9139 чел-ч,

где Кс - объем работ в процентах по самообслуживанию предприятия.

2.5.4 Распределение годовых объемов работ по производственным зонам и участкам (цехам)

По месту выполнения весь объем работ распределяется по различным производственным зонам и участкам (цехам), исходя из технологических и организационных признаков [7].

Учитывая особенности технологии производства, работы по ЕО, ТО-1 выполняются в самостоятельных зонах.

Постовые работы по ТО-2, выполняемые на универсальных постах, и ТР обычно производятся в общей зоне. В ряде случаев ТО-2 выполняется на постах линии ТО-1, но в другую смену.

Работы по обще диагностике Д-1 проводятся на самостоятельных постах (линиях) или совмещаются с работами, выполненными на постах ТО-1.

Поэлементная (углубленная) диагностика выполняется на постах участка Д-2.

В процессе проведения ТО-2 иногда возникает необходимость в снятии отдельных приборов, узлов и механизмов для устранения неисправностей и контроля на специальных стендах в производственных цехах. В основном это работы по системе питания, электротехнические, аккумуляторные и шиномонтажные. Поэтому выполнение 90-95% объема работ ТО-2 планируется на постах, а 5-10% в производственных цехах. В практике проектирования этот объем работ распределяется равномерно по соответствующим цехам.

При совмещении диагностики Д-1 с ТО-1 возможно следующее распределение работ ТО-2:

· Если ТО-2 выполняется на универсальных постах, то объем работ ТО-1 целесообразно распределить таким образом: 10% в цехах, 65% на постах зоны ТО-2 и 25% (смазочные и регулировочные работы) на постах линии ТО-1 или ТО-1 с Д-1, которая в период работы зоны ТО-2 свободна, так как ТО-1 проводится в межсменное время.

· Если ТО-2 выполняется на поточной линии, то 10% объема работ ТО-2 передается в цеха, а 90% - выполняется на постах линии ТО.

Для определения специализации работ и рабочих по постам каждой зоны технического обслуживания, пользуясь данными справочников, производится распределение годовых трудоёмкостей ТО и диагностики по видам работ в % и чел-ч в зависимости от типа подвижного состава.

Распределение объема работ текущего ремонта по видам и месту выполнения (в производственных цехах и на постах) приведено в справочниках.

Распределение работ по их видам по самообслуживанию АТП приведено в справочнике.

Для выявления годовых объемов работ для каждого производственного цеха производится распределение в процентах и чел-ч годовых трудоемкостей текущего ремонта (по каждому виду подвижного состава), самообслуживания предприятия и части работ ТО-2 , выполняемой в цехах.

2.6 Расчет численности производственных рабочих

При расчете численности производственных рабочих определяют технологически необходимое РТ и штатное Рш количество рабочих.

Технологически необходимое количество рабочих рассчитывается по формуле:

РТ =  (2.47)

Для подвижного состава грузоподъёмностью 6-8тонн:

По ЕО РТ =

По Д-1 РТ =

По ТО-1 РТ =

По ТО-1 с Д-1 РТ =

ПО Д-2 РТ =

По ТО-2 с ТР РТ =

По ТР РТ =

Для подвижного состава грузоподъёмностью 8-10тонн:

По ЕО РТ =

По Д-1 РТ =

По ТО-1 РТ =

По ТО-1 с Д-1 РТ =

ПО Д-2 РТ =

По ТО-2 с ТР РТ =

По ТР РТ = ,

где Т iг - годовой объем работ по зонам ЕО, Д-1, ТО-1, ТО-1 с Д-1, Д-2, ТО-2 с ТР и ТР чел-ч;

Фм - годовой фонд времени рабочего места или технически необходимого рабочего при односменной работе, ч.

Годовой фонд времени рабочего места в часах для шестидневной рабочей недели составляет:

Фм = (Дкг - Дв - Дп) х 8 - Дпп х 1. (2.48)

Фм = (365 - 52 - 8) х 8 - 53 х 2=2334,

где Дкг - количество календарных дней в году;

Дв - количество выходных дней в году;

Дп - количество праздничных дней в году;

- продолжительность рабочего дня, ч;

Дпп количество предпраздничных и субботних дней в году;

- час сокращения рабочего дня перед выходными днями.

Штатное количество производственных рабочих Рш определяется из следующего соотношения:

Рш=  (2.49)

Для подвижного состава грузоподъёмностью 6-8тонн:

По ЕО Рш =

По Д-1 Рш =

По ТО-1 Рш =

По ТО-1 с Д-1 Рш =

ПО Д-2 Рш =

По ТО-2 с ТР Рш =

По ТР Рш =

Для подвижного состава грузоподъёмностью 8-10тонн:

По ЕО Рш =

По Д-1 Рш =

По ТО-1 Рш =

По ТО-1 с Д-1 Рш =

ПО Д-2 Рш =

По ТО-2 с ТР Рш =

По ТР Рш = ,

где Фр - годовой фонд времени штатного рабочего, равен 1820 ч.

 (2.50)

Где

Дотп - дни отпуска;

Дуп - дни невыхода по уважительным причинам.

Примем в соответствии с рекомендациями Фр = 1820 дн.

Результаты расчета численности производственных рабочих АТП представлены в таблице 2.3.

Таблица 2.3

Численность штатных рабочих

Вид работ

КамАЗ 5320

КамАЗ 5511

Итого

1




ЕО-1

1

1,9

2,9

Д-1

1,2

1,5

2,7

ТО-1

2,7

3,5

6,2

ТО-1 с Д-1

3,9

4,7

8,6

Д2

1

0,8

1,8

ТО-2 с ТР

4,5

5

9,5

ТР

9,5

12,7

22.2

Итого

23,8

30,1

53,9


2.7 Расчет количества постов и линий технического обслуживания, диагностики и текущего ремонта

2.7.1 Режим работы производственных зон

Режим работ зон технического обслуживания зависит от режима работ подвижного состава на линии.

Для ЕО и ТО-1, выполняемых в межсменное время, продолжительность работы зон обслуживания (начало и конец работы смены) определяется из внутригаражного графика выпуска и возвращения автомобилей.

Возможная продолжительность межсменного времени при равномерном выпуске автомобилей может быть определена из следующего выражения:

Тмс = 24- (Тн - To-Tв), ч; (2.51)

Тмс = 24- (8 - 1-0,5)=17,5 ч,

где Тн - продолжительность работы автомобилей на линии, ч;

То - время обеденного перерыва шофера, ч;

Тв - продолжительность выпуска автомобилей на линию, ч.

Для ЕО и ТО-1 продолжительность работы смен Тоб по времени лежит в пределах Тмс. При этом для облегчения организации работы зон ТОоб может назначаться в одну, полторы или в две смены.

Для ТО-2 Тоб принимается равным 1 или 2 сменам в зависимости от суточной программы обслуживания.

Режим работы зон диагностики зависит от режима работ зон ТО и ремонта. Зона Д-1 работает одновременно с зоной ТО-1. Для проведения Д-1 после ТО-2 и ТР зона Д-1 работает в дневное время.

Зона Д-2 работает в дневное время в 1 или 2 смены.

Зная режим работы технического обслуживания и суточную производственную программу, определяют ритм производства, представляющий собой долю времени работы зоны технического обслуживания, приходящуюся на выполнение одного обслуживания всего АТП:

= мин. (2.52)

мин.

 мин.

мин.

мин.

где Тоб - продолжительность работы зоны по данному виду технического обслуживания в течение суток, ч;iC - количество обслуживании в сутки.

Суточный режим работу постов текущего ремонта составляет две или три рабочих смены. В зависимости от режима работы автомобилей, на линии производственные цеха работают в одну или две рабочих смены.

.7.2 Расчет количества универсальных постов технического обслуживания и диагностики

Исходной величиной для расчета универсальных постов обслуживания служит такт поста ti или время простоя автомобиля под обслуживанием на данном посту:

ti = , мин, (2.53)

Для подвижного состава грузоподъёмностью 6-8тонн:

tЕО =  мин,

t1+д-1 =  мин,

t2 =  мин,

tд-2 =  мин.

Для подвижного состава грузоподъёмностью 8-10тонн:

tЕО =  мин

t1+д-1 =  мин

t2 =  мин

tд-2 =  мин

где ti - трудоемкость работ по обслуживанию, выполняемых на данном посту, чел-ч;- время, затрачиваемое на передвижение автомобиля при установке его на пост и съезд с поста (tn = 1-3 мин. в зависимости от габаритной длины автомобиля), мин;

Рп - количество рабочих, одновременно работающих на посту.

Количество универсальных постов Хi обслуживания определяется из следующего уравнения:

=  (2.54)

Для подвижного состава грузоподъёмностью 6-8тонн:

XЕО = ; X1+д-1 =

Для подвижного состава грузоподъёмностью 8-10тонн:

ЕО = ; X1+д-1 =

При расчете постов ТО-2 и диагностики Д-2 вводится коэффициент использования рабочего времени поста hг = 0,85-0,95:

=  (2.55)

Для подвижного состава грузоподъёмностью 6-8тонн:

=  Xд-2 =

Для подвижного состава грузоподъёмностью 8-10тонн:

=  Xд-2 =

.7.3 Расчет поточных линий периодического действия

Поточные линии периодического действия используют для проведения работ по техническому обслуживанию и диагностике.

Для расчета количества поточных линий необходимо определить такт линии tiл (интервал между двумя последовательно сходящими с линии автомобилями, прошедшими данный вид обслуживания):

tiл =  мин, (2.56)

Для подвижного состава грузоподъёмностью 6-8тонн:

t1+д-1 =  мин,

t2 = , мин.

Для подвижного состава грузоподъёмностью 8-10тонн:

t1+д-1 = , мин,

t2 = , мин,

где ti - трудоемкость работ данного вида технического обслуживания на потоке, чел-ч;

Рл - общее количество технологически необходимых рабочих на линии обслуживания;- время передвижения автомобиля с поста на пост, мин.

Количество рабочих на линии Рл определяется по формуле:

Рл = ХлРср (2.57)

Для ТО-1 с Д-1:

для грузовых автомобилей грузоподъёмностью 6-8тонн

Рл = 3 * 2,5 = 7,5

для грузовых автомобилей грузоподъёмностью 8-16тонн

Рл = 3 * 3= 9

где Хл - количество постов линии, устанавливаемое по техническим соображениям в соответствии с распределением работ данного вида обслуживания;ср, - среднее количество рабочих на посту.

Количество рабочих на линии принимается не менее: 5 при ТО-1 и 7 при ТО-2.

При использовании конвейера время передвижения автомобиля с поста на пост определяется из выражения:

=  мин; (2.58)

= 2 мин,

где VK - скорость передвижения автомобиля конвейером, см/мин равная 10-15м/мин;- габаритная длина автомобиля (автопоезда), м;

а - интервал между автомобилями, м.

Количество линий обслуживания тi определяется соотношением ti к Ri:

= . (2.59)

+д-1 = .

Для подвижного состава грузоподъёмностью 8-10тонн:

+д-1 = .

Следует иметь в виду, что общее количество технологически необходимых (явочных) рабочих, занятых на постах и линиях данной зоны, может быть меньше количества рабочих, рассчитанных исходя из годового объема работ (см. раздел 1.6.), за счет увеличения годового фонда времени работы зон по сравнению с годовым фондом времени технологически необходимого рабочего при его односменной работе.

.7.4 Расчет поточных линий непрерывного действия

Поточные линии непрерывного действия применяются для ежедневного обслуживания с одновременным использованием механизированных установок для мойки и сушки (обдува) автомобилей.

При полной механизации процессов в отсутствие работ, выполняемых в ручную, пропускная способность постовых установок (для мойки колес, дисков, сушки (обдува) автомобилей) должна быть равна пропускной способности основной установки для мойки автомобиля, в этом случае такт линии tЕОл и необходимая скорость конвейера VK определяются из выражений:

tЕОл = (2.60)

 (2.61)

где Nд - производительность механизированной моечной установки автомобилей на линии ЕО, авт/ч;

LA - габаритная длина автомобиля, м;

а - расстояние между автомобилями на постах линии, м.

Число постов линий будет определятся числом используемых механизированных постовых установок.

При механизации всего процесса рабочие на линии обслуживания могут отсутствовать, за исключением оператора для управлениями установками. При автоматизации управления оператор также может отсутствовать.

Если на линии обслуживания предусматривается механизация только одного вида работ, например моечных, а остальные работы выполняются вручную (уборка обтирка после мойки и др.), то такт линии следует определить с учетом скорости перемещения автомобилей на линии (не более 3 м/мин.), чтобы обеспечить возможность выполнения работ в процессе движения автомобилей:

tЕОл = (2.62)

Пропускная способность линии ЕО в данном случае будет равна:

ЕОя =  =20авт/ч (2.63)

Количество постов на линии ЕО следует назначать по технологическим соображениям из условия их специализации по видам работ, например, уборка, мойка, обтирка (обсушка) и т. д.

Число рабочих, занятых на постах ручной обработки линии Рео при известном также такте линии может быть определено из выражения:

РЕОя =  (2.64)

Для подвижного состава грузоподъёмностью 6-8тонн:

РЕОя = .

Для подвижного состава грузоподъёмностью 8-10тонн:

РЕОя = .

где  - трудоемкость работ ЕО, выполняемая вручную, чел/ч.

Количество линий для потока непрерывного действий определяется так же, как для потока периодического действия, т.е.

ЕОл =  (2.65)

Для подвижного состава грузоподъёмностью 6-8тонн:

ЕОл = .

Для подвижного состава грузоподъёмностью 8-10тонн:

ЕОл = .

2.8 Расчет площадей зон технического обслуживания, диагностики и текущего ремонта

Площадь зон ориентировочно рассчитывают по формуле:

= fa Хп Ко

где fa - площадь, занимаемая автомобилем в плане (по габаритным размерам), м2;

Хп - число постов;

Ко - коэффициент плотности расстановки постов.

Величина Ко зависит от типа автомобиля, расположения постов и их оборудования. равно обычно 4-5.

F3= 12,5*16*4 =800 м2.

Более точно площадь зон технического обслуживания, диагностики и текущего ремонта определяется графическим методом.

2.9 Расчет площадей производственных участков, (цехов)

Площади производственных участков (цехов) рассчитывают по площади, занимаемой оборудованием в плане, и коэффициенту плотности его расстановки

ц - ¦o6 Kn,

где Fц - площадь цеха, м ;

Кn - коэффициент плотности расстановки оборудования;

¦об - площадь цеха, занимаемая оборудованием в плане, м2.

Последовательность расчета. На основании каталогов гаражного, станочного и другого оборудования по каждому цеху. Затем по количеству рабочих по номенклатуре подбирается соответствующее оборудование и определяется суммарная площадь, занимаемая этим оборудованием fa по каждому цеху.

Если в помещении предусматриваются места для автомобилей или кузовов, то к площади, занимаемой оборудованием данного помещения, необходимо добавить площадь, занимаемую автомобилем или кузовом по горизонтальной проекции. Далее зная ¦об и Кп, рассчитывается общая площадь цехов. Для контроля результатов расчета в справочнике приведены площади цехов по данным Гипроавтотранса. Примерная площадь ОГМ на одного работающего в максимально загруженную смену принимаем 15-20 м2, площадь на один установленный компрессор 20-25 м2.

2.10 Расчет площадей складских помещений

Площади складских помещений рассчитываем по площади, занимаемой оборудованием для хранения запаса эксплуатационных материалов, запасных частей, агрегатов и коэффициенту плотности оборудования.

Определив по нормативам, исходя из суточного расхода и дней хранения, количество хранимых материалов, производится подбор оборудования для складов (емкости для хранения смазочных материалов, стеллажи и др.). затем по габаритным размерам определяется площадь, занимаемая этим оборудованием в плане помещений fоб и площадь склада FCK:

=fo6К2,

где К2 - коэффициент плотности оборудования.

2.10.1 Cклад смазочных материалов

Запас смазочных материалов Зп определяем по удельным нормам расхода смазок на каждые 100 литров израсходованного автомобилями топлива и продолжительности хранения материалов на складе :

Зп = 0,01 Gcyм qr Д3,

где Gcyм - суточный расход топлива, л;- норма расхода смазочных материалов на 100л топлива;

Д3 - дни запаса хранения смазочных материалов (10-30 дней).

Расход керосина устанавливается в размере 0,5% по весу от суточного расхода топлива. Суточный расход топлива автомобилем равен:

Gcyм = (Gл, + Gг) ω,

где Gл, - суточный расход топлива на линейную работу автомобилей, л;г - суточный расход топлива на внутригаражное маневрирование и технические надобности;

ω - коэффициент, учитывающий повышение или снижение нормы расхода топлива. Суточный расход топлива на линейную работу автомобилей можно рассчитать по следующей формуле:

л=

где αr - коэффициент технической готовности (взят из расчета 100% использования технически исправных автомобилей);

А - списочное количество автомобилей;cc - среднесуточный пробе, км;

д - расход топлива по нормам, л/100 км.

Объем отработанных масел принимается в размере 15% от расхода свежих масел. Определив запасы смазочных материалов, необходимо подобрать емкости для свежих и отработанных масел (моторных трансмиссионных и т.д.) и консистентных смазок. Выбрав емкости и рассчитав их количество, определяем площадь, занимаемую оборудованием склада ƒоб - Затем по коэффициенту плотности оборудования определяется общая площадь склада, которую, в результате расчётов, мы определили 20 м2.

.10.2 Склад

Запас покрышек или камер Зрез можно рассчитать по формуле:

Зрез= ,

где Хк - количество колес автомобилей (без запасного);гк - гарантийная норма пробега новой покрышки без ремонта, км; средняя норма Lгк для расчета может быть принята: для грузовых автомобилей - 45000 км, легковых - 33000 км, автобусов - 60000 км;гн - гарантийная норма пробега после первого восстановления наложением нового протектора, км. Для расчета средняя норма Lгн - может быть принята: для грузовых автомобилей - 24000км, автобусов - 32000км;

Д3 - число дней запаса (40 дней).

Длина стеллажей определяется из выражения:


где п - количество покрышек на 1 пог.м стеллажа.

При двухъярусном хранении n = 6-10. Ширина стеллажа Вст определяется размером покрышки. Площадь занимаемая стеллажом равна:

ƒo6 = lcmBcm

Зная ƒоб и Кп - можно определить общую площадь склада.

.10.3 Склады запасных частей, агрегатов и материалов

Размер запаса по запчастям, агрегатам и материалам рассчитывается отдельно по каждой группе.

Размер запаса склада запчастей Gзч определяют по формуле:

зч =

где Ga - вес автомобиля, кг;

а - средний процент расхода запчастей на 10000км пробега;

Д3 - дни запаса (80 дней)

Размер запаса склада материалов и металлов рассчитывается аналогично. При этом средний процент расхода материалов и металлов на 10000 км. пробега принимается по таблице, а Д3=45 дней.

Размер запаса склада агрегатов Gca определяется по количеству и весу оборотных агрегатов на каждые 100 автомобилей одной марки. Площадь пола занимаемая стеллажами для хранения запчастей, металлов и агрегатов, определяют из выражения:

ƒсm=,

где Gi - вес запчастей, металлов и пр., кг;

дсс - допускаемая нагрузка на 1 м площади стеллажа, составляющая для запчастей 600 кг/м , агрегатов 500 кг/м2, прочих материалов 250 кг/м2.

Определив ƒоб рассчитывается площадь склада. Расчет площадей (при укрупненных расчетах) складских помещений может производится по общему пробегу подвижного состава с учетом поправочных коэффициентов на модификацию подвижного состава Кма размер АТП Кр и разнотипность автомобилей (разномарочность) Краз:

ск =

где fc = удельная площадь склада на 1 млн. км. пробега автомобилей, м2.

В АТП предусматривается три марки автомобилей, и поправочный коэффициент Краз принимается в следующих размерах: При 3-х марочном парке - 1,3.

2.11 Расчет площадей вспомогательных помещений

Состав и площади вспомогательных помещений - административных, бытовых - должны соответствовать СН и П [8]. Нормы проектирования".

Ниже даны лишь некоторые основные положения, необходимые для учета их в общем, планировочном решении технологического процесса.

При проектировании вспомогательных помещений учитывают этажность предприятия.

Численность эксплуатационного (шоферы, кондуктора и др. линейный персонал) и производственного (слесаря, смазчики и др.) персонала рассчитывают.

Служебный (ИТР и служащие) и младший обслуживающий персонал определяются по нормативам численности работников. Отнесение от основных профессий, работающих в предприятиях по обслуживанию автомобилей, к соответствующим группам производственных процессов приведено в справочниках.

Площади административных помещений рассчитывают по штатному расписанию управленческого аппарата, исходя из следующих норм: рабочие комнаты отделов - 4 м2 на одного работающего в помещении; кабинеты - от 10 до 15% от площади рабочих комнат, в зависимости от количества служащих; вестибюлей, гардеробных - 0,27 м2 на одного служащего.

Площади помещений для получения и приема путевых документов водителями и кондукторами принимают их расчета пребывания 30% водителей и кондукторов, выезжающих в период максимального часового выпуска автомобилей на линию, при норме 1,5м на каждого человека, но не менее 18 м.

Площадь кабинета по безопасности движения принимают из расчета: при списочном количестве водителей до 1000 человек - 25 м2; от 1001 до 3000 человек - 50 м2.

Гардеробные для производственного персонала могут быть закрытым или открытым способом хранения одежды. При закрытом хранении всех видов одежды количество индивидуальных шкафов принимается равным количеству рабочих во всех сменах: при открыто хранении одежды на вешалках - количеству рабочих в двух и наиболее многочисленных сменах.

Количество мест хранения одежды в гардеробах для водителей легковых автомобилей, водителей и кондукторов автобусов принимается по количеству работающих в наиболее многочисленной смене, а для водителей грузовых автомобилей - по штатному составу.

Площадь пола гардеробной на один закрытый индивидуальный шкафчик составляет 0,25 м. При хранении одежды на открытых вешалках на каждое место предусматривается 0,10 м2 площади гардеробной.

Душевые и умывальные. Количество душевых сеток и кранов в умывальных определяется по количеству (на одну душевую сетку или кран) работающих в наиболее многочисленной смене в зависимости от группы производственного персонала.

Количество душевых сеток и умывальников для водителей легковых автомобилей и количество умывальников для водителей грузовых автомобилей, автобусов и кондукторов принимается из расчета водителей и кондукторов, возвращающихся в гараж в период максимального часового возвращения автомобилей с линии.

Площадь пола на один душ (кабину) с раздевалкой - 2 м2, на один умывальник при одностороннем их расположении - 0,8 м2.

Туалеты рассчитывают раздельно для мужчин и женщин. Количество кабин с унитазами принимают из расчета одна кабина на 15 женщин и одна кабина на 30 мужчин, работающих в наиболее многочисленной смене.

Количество кабин для водителей и кондукторов принимают из расчета водителей и кондукторов, выезжающих в период максимального выпуска автомобилей на линию.

Площадь пола туалета берется из расчета 2,0-3,0 м на одну кабину. Расстояние от наиболее удаленного рабочего места до туалета должно быть не менее 75 м.

Курительные. Площадь курительных определяется из расчета на одного работающего в наиболее многочисленной смене: 0,08 м2 для мужчин и 0,01 м2 для женщин, но не менее 9 м2. Расстояние от рабочих мест до курительных не должно превышать 75 м.

.12 Планировка АТП

.12.1 Общие положения

Под планировкой автотранспортного предприятия понимается компановка или взаимное расположение производственных, складских и административно-бытовых помещений в плане здания или отдельно стоящих зданий (сооружений), предназначенных для обслуживания, ремонта и хранения автомобилей.

Планировка является наиболее сложным и ответственным этапом проектирования. Удачная планировка АТП при прочих равных условиях способствует повышению производительности труда не менее чем на 15-20%.

В процессе планировки решаются вопросы использования и застройки земельного участка, взаимного расположения зданий, сооружений и помещений, конструктивных схем, размеров и этажности зданий, организаций движения на территории и в здании, размещение рабочих постов и мест хранения подвижного состава.

При планировке АТП необходимо исходить из площади и конфигурации отводимого под застройку участка.

Если участок позволяет, то желательно иметь здание прямоугольной формы, что обеспечивает наибольшую экономичность планировочного решения.

В основе планировочного решения лежит схема технологического процесса и производственной программы по видам обслуживания и ремонта.

Схема технологического процесса определяет последовательность прохождения автомобилей различных производственных зон и участков. Производственная программа оказывает существенное влияние на выбор метода организации обслуживания и ремонта автомобилей (тупиковый или поточный метод, универсальные или специализированные посты и участки и т.д.).

·        Несмотря на многообразие факторов, оказывающих различное влияние на планировку АТП, имеется ряд общих положений и требований проектирования, которые следует учитывать при разработке планировочных решений АТП, к ним относятся:

·        Соответствие планировки схеме технологического процесса и технологическому расчету;

·        Расположение основных зон и производственных участков предприятия, если позволяют условия планировки, в одном здании;

·       Унификация конструктивных и объемно-планировочных решений зданий; Безопасность производства и удобства выполнения работ;

·        Создание наилучших условий освещения, вентиляции и изоляции шумных процессов производства;

·        Простота маневрирования автомобилей и зданий;

·        Организация одностороннего закольцованного движения автомобилей;

·        Наличие внутреннего сообщения между производственными зонами;

·        Рациональное использование площади за счет технологически оправданного взаимного расположения помещения, применения экономических способов расстановки автомобилей, использования конструктивных схем зданий, при которых не требуется устройство промежуточных опор или ограничивается их количество;

·       Возможность некоторых изменений технологических процессов и расширения производства без существенной реконструкции здания.

Реализации перечисленных положений и требований способствует широкое применение типовых проектов и централизация их разработки.

.12.2 Строительные элементы зданий АТП

Типовые проекты автотранспортных предприятий предусматривают унификацию строительных элементов зданий.

В современном промышленном строительстве, к которому относятся и автотранспортные предприятия, одноэтажные производственные здания выполняются каркасного типа с сеткой колонн, имеющей шаг, равный 6 или 12м пролеты с модулем 6 м, т. е. 2, 18, 24 м и более и прямоугольную форму в плане с высотой 4, 8 и 6 м.

Одноэтажные здания, как правило, проектируются с пролетами одного направления, одинаковой ширины и высоты. Однако требования по унификации строительных элементов зданий из-за специфики АТП не всегда обеспечивают рациональность их объемно-планировочных решений.

В частности для помещений, где происходит движение автомобилей, их маневрирование и установка, целесообразно применение крупноразмерной сетки, и наоборот для производственно-складских помещений, имеющих относительно небольшие площади, желательно использование мелкоразмерной сетки. Поэтому в ряде случаев используют конструктивные схемы зданий, имеющие центральных пролет 12, 16 или 24 м и открылки по 9 или 12 м.

Кроме каркасного типа в настоящее время получает развитие строительство зданий на основе так называемых модульных облегченных конструкций с перекрестно-стержневой пространственной решеткой покрытия. Несущими элементами модуля являются четыре колонны с размерами их установки 18x18 м при модуле 30х30 м или 24х24 м при модуле 36х36 м.

Модулем в данном случае является типовая часть здания (с размерами 36х80м, 36x36 и др.), которая может повторяться, увеличивая общую площадь здания в целое число (2, 3, 4 и т.д.). Панели наружных стен подвешиваются к покрытию и не являются несущими. Такие здания монтируются из выбора готовых элементов в короткие сроки.

Для многоэтажных зданий в АТП используется сетка колонн 6х6м при высоте этажей 3,6 м. При этом в верхнем этаже допускается укрупненная удвоенная сетка колонн.

Помещения постов обслуживания или хранения автомобилей компонуются из технологических планировочных секций в зависимости от схемы расстановки автомобилей.

Более подробно вопросы выбора и обоснования объемно-планировочных решений АТП изложены в книге проф. Давидовича Л.Н.

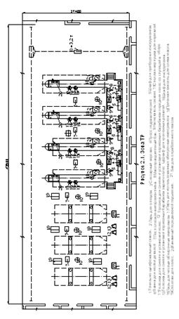
.12.3 Производственные помещения

Планировка производственных помещений разрабатывается с учетом норм и правил проектирования. Зона ТР, зона ТО-2, зона диагностики, аккумуляторный и кузнечно-рессорный участок представлены на рис. 2.1-2.5.

Планировка производственных помещений зависит от состава помещений, технологии проведения работ, объемно-планировочного решения, а также требований, предъявляемых к противопожарным и санитарно-гигиеническим условиям отдельных зон и производственных участков.

Состав помещений зависит от производственной программы АТП и определяется технологическим расчетом.

На предприятиях по обслуживанию автомобилей должны предусматриваться отдельные производственные помещения для размещения следующих отделений (участков) [9]:

· постов мойки и уборки автомобилей II, III и IV категорий;

- постов технического обслуживания и ремонта автомобилей;

моторного, агрегатного, механического, электротехнического и приборов системы питания;

кузнечно-рессорного, сварочно-жестяницкого и медницкого;

столярного и обойного; окрасочного; аккумуляторного.

В помещениях для размещения сварочно-жестяницкого или столярных отделений (участков) допускается размещать посты для выполнения соответствующих работ непосредственно на автомобиле. Для размещения окрасочных отделений должно проектироваться два помещения: одно для окрасочных работ и другое - для подготовки красок.

Для аккумуляторных работ должно быть не менее двух помещений, одно для ремонта, другое для зарядки аккумуляторов.

В АТП должны предусматриваться складские помещения для хранения шин, смазочных материалов, лакокрасочных материалов, химикатов, сгораемых материалов (текстильные, бумажные, резиновые и т.д.), а также агрегатов и деталей в сгораемой таре.

Геометрические размеры зон технического обслуживания и ремонта определяются: габаритными размерами автомобилей, расстояниями между автомобилями на постах, а также между автомобилями и элементами зданий или оборудованием, шириной проезда автомобилей в зонах и методом расстановки автомобилей.

Нормируемые расстояния в зонах технического обслуживания и ремонта установлены СН и П П-93-74 в зависимости от категории автомобилей.

Ширина проезда в зонах зависит от типа подвижного состава, угла расстановки постов, их оборудования и способа заезда на посты.

Рисунок 2.2. Зона ТО-2

- ларь для отходов; 2 - щит электрический; 3 - ларь с песком и огнетушителями; 4 - шкаф-кассета для деталей; 5 - гайковерт электрический; 6 - верстак с тисами; 7 - тележка-стол электрика; 8 - колонка маслораздаточная; 9 - шкаф инструментальный; 10 - тележка для аккумуляторов; 11 - стеллаж для колес; 12 - пожарный щит; 13 - ларь с опилками; 14 - наждак электрический

В зонах технического обслуживания и ремонта с постами тупикового типа в основном применяют однорядную расстановку автомобилей с независимым их выездом [10]. При этом расстановка постов может быть прямоугольной и косоугольной. Расположение постов под углом к оси проезда более удобно для заезда на них автомобилей и несколько сокращает ширину проезда. Однако при этом площадь поста будет больше, чем при его прямоугольном расположении.

Ширина проезда в помещениях с тупиковыми постами для обслуживания и ремонта автомобилей определяется, исходя из того, что въезд автомобиля на пост производится передним ходом, с возможным применением при повороте в проезде заднего хода, причем расстояние от автомобиля до соседних автомобилей и границ проезда должно быть не менее указанных в справочнике.

Рисунок 2.3. Зона диагностики

- механизм открывания ворот; 2 - стол диагноста; 3 - шкаф для приборов; 4 - воздухораздаточная колонка; 5 - слесарный верстак; 6 - электрошкаф; 7 - стенд КИ-207 для проверки тормозных механизмов; 8 - пульт управления стендом КИ-207; 9 - подъемник канавный; 10 - стол конторский; 11 - стенд КИ-4872 для проверки установки передних колес грузового автомобиля; 12 - пульт управления стендом КИ-4872

Посты обслуживания и ремонта автомобилей должны бать оборудованы устройствами, обеспечивающими удобное производство работ (канавами, подъемниками, эстакадами и т.д.) [11].

Поточные линии технического обслуживания обычно оборудуют прямоточными канавами на всю длину линии.

Линии (посты) ежедневного обслуживания должны иметь продольные канавы для стока воды и грязи.

Тупиковые посты текущего ремонта по рекомендациям Гипроавтотранса целесообразно оборудовать: для грузовых автомобилей - 50-60% канав и 30-40% подъемников. Остальное количество постов следует оставлять напольными.

При параллельном расположении трех и более рабочих канав они должны быть соединены открытой траншеей при тупиковой расстановке автомобилей и закрытыми туннелями - при прямоточной расстановке автомобилей. Ширина траншей и туннелей должны быть не менее 1 м, если они служат для прохода и не менее 2 м, если в них расположены рабочие места и технологическое оборудование.

Рисунок 2.4. Аккумуляторный участок

- верстак для ремонта аккумуляторных батарей; 2 - стеллаж для зарядки аккумуляторных батарей; 3 - выпрямители; 4 - шкаф для материалов; 5 - стенд для проверки и разряда аккумуляторных батарей; 6 - ларь для отходов; 7 - тележка для аккумуляторов; 8 - стеллаж для аккумуляторных батарей; 9 - ванна для приготовления электролита; 10 - приспособление для розлива кислоты; 11 - электрический дистиллятор; 12 - ванна для промывки деталей батарей; 13 - верстак с оборудованием для плавки свинца и мастики; 14 - ванна для слива электролита

Рисунок 2.5. Кузнечно-рессорный участок

- пневматический молот; 2 - вертикально-сверлильный станок; 3 - обдирочно-шлифовальный станок; 4 - горн кузнечный; 5 - двурогая наковальня; 6 - стеллаж для рессорных листов; 7 - ларь для кузнечного инструмента; 8 - ящик для угля; 9 - верстак рессорщика; 10 - тиски для сборки рессор

Высота туннеля от пола до низа выступающих частей должна быть не менее 1,8 м, траншей -0,9 м. Соединительные траншеи рабочих канав должны быть ограждены металлическими периллами высотой не менее 0,9 м. Траншеи и туннели должны иметь выходы в помещение из расчета один выход на пять рабочих канав. Одиночные канавы должны иметь выходы в помещение по ступенчатой лестнице. Лестницы из канавы не должны располагаться под автомобилем, установленным над канавой, а лестницы из канав, траншей и туннелей не должны располагаться на путях движения автомобилей.

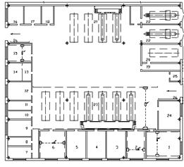
Взаимное расположение производственных помещений определяется технологическими, противопожарными и санитарными требованиями. Производственный корпус представлен на формате А1, а также на рис. 2.6.

Помещения для топливных, электротехнических, аккумуляторных работ, а также склад смазочных материалов по технологической взаимосвязи располагают вблизи постов технического обслуживания.

Рисунок 2.6. Производственный корпус

- агрегатный участок; 2 - склад агрегатов; 3 - электротехнический участок; 4 - сварочно-жестяницкий участок; 5 - кузнечно-рессорный участок; 6 - слесарно-механический участок; 7 - склад материалов; 8 - медницкий участок; 9 - аккумуляторный участок; 10 - обойный участок; 11 - склад запасных частей; 12 - арматурный участок; 13 - малярный участок; 14 - склад лакокрасочных материалов; 15 - промежуточный склад; 16 - склад смазочных материалов; 17 - участок ремонта системы питания; 18 - инструментально-раздаточная кладовая; 19 - вулканизационный участок; 20 - шиномонтажный участок; 21 - зона ТО; 22 - посты диагностики; 23 - зона ТР; 24 - отдел ГМ; 25 - трансформаторная; 26 - пожарный щит с огнетушителями

Помещения для выполнения агрегатных, слесарно-механических, сварочных, кузовных и малярных работ, а также склады запасных частей, агрегатов и материалов приближают к постам текущего ремонта.

Кроме того, желательно комплексное расположение технологически связанных между собой участков (отделений). Например, тепловые отделения (кузнечно-рессорный, медницкий, сварочный) целесообразно располагать в одном боке. Малярное столярное, обойное и жестяницкое отделения кузовного цеха по условиям технологического процесса размещаются также смежно. При этом малярное отделение необходимо располагать так, чтобы была возможность въезда в нег из разборочно-сборочного цеха или непосредственно с территории предприятия. Слесарно-механический и агрегатный цехи желательно группировать около складов запасных частей, агрегатов и материалов. Смежно со слесарно-механическим и агрегатным цехами рекомендуется размещать инструментально-раздаточную кладовую.

Помещения для агрегатных и других видов работ иногда целесообразно на уровне пола тупиковых канав постов ТО-2 и ТР. При этом ширину открытой траншеи, соединяющей канавы, увеличивают до 4-6 м для размещения в ней необходимого оборудования.

Устройство подвалов в современных производственных зданиях не рекомендуется. В порядке исключения в АТП они устраиваются для складов шин и масел. При этом склад шин располагают под помещениями для шиномонтажных и вулканизационных работ. Связь между складом и отделением осуществляется вертикальным подъемником. Склад масел располагается обычно под помещением для раздачи смазочных материалов вблизи постов смазки.

При расположении склада смазочных материалов на первом этаже он делается в 2-х уровнях: на уровне пола располагается оборудование для раздачи масел, а на пониженном уровне - (1,9) размещаются резервуары для хранения смазочных материалов.

Зоны обслуживания, текущего ремонта и участки необходимо располагать с учетом кратчайшего, исключающего затруднительное маневрирование пути автомобиля и транспортировку агрегатов, механизмов, деталей. Так, например, следует предусматривать прямой, без маневрирования въезд автомобилей в зоны ЕО и ТО-1 и оттуда после обслуживания на стоянку, не прибегая к выезду из здания производственного корпуса (в случае, когда цехи и стоянки автомобилей находятся в одном корпусе).

Непосредственный выход наружу рекомендуется иметь в следующих производственных и складских помещениях:

а)  для кузнечно-рессорных, сварочных и вулканизационных работ при площади помещения более 100 м2;

б)  для зарядки аккумуляторов при площади помещения более 20 м2;

в)  для хранения масел и обтирочных материалов при площади помещения более 50 м2;

г)  для окрасочных работ, для хранения легко воспламеняющихся материалов, независимо от площади помещений.

Хранение шин и сгораемых материалов допускается в одном помещении, если его площадь не превышает 50 м2.

Помещения для хранения шин площадью более 25 м2 должны располагаться у наружных стен.

Производственные помещения, в которых выполняются работы аккумуляторные, вулканизационные, сварочные, медницкие, столярные, обойные и малярные, а также слады масла, обтирочных и легковоспламеняющихся материалов не должны иметь непосредственного сообщения с зоной хранения автомобилей.

Количество ворот в здании для выезда (въезда), расположенных в первом или цокольном (подвальном) этажах должно приниматься: при количестве автомобилей в помещении до 25 - одни ворота, от 25 до 100 автомобилей - двое ворот. При количестве автомобилей более 100 - должны предусматриваться дополнительно одни ворота на каждые 100 автомобилей.

В многоэтажных зданиях для въезда (выезда) автомобилей со 2-го этажа и вышележащих этажей должны предусматриваться дополнительные (к количеству ворот для выезда из помещения 1-го этажа) одни ворота на каждую полосу движения по рампам или на каждые два стационарных лифта.

Желательно устройство наружных ворот в малярном и сварочных отделениях, а также в складах запасных частей и материалов, если они не обеспечены удобным внутренним проездом.

Высота помещения для постов технического обслуживания и ремонта определяется исходя из условий, что наименьшее расстояние от верха автомобиля, находящегося на подъемнике или от верха поднятого кузова автомобиля-самосвала, стоящего на полу до низа конструкции покрытия или перекрытия или до низа выступающих частей грузоподъемного оборудования должна быть не менее 0,2 м.

Высота помещений независимо от расчета должна быть не менее 2,8 м.

Важным элементом планировки производственных помещений является организация движения автомобилей, которая зависит от общей схемы движения автомобилей в АТП, количество и расположение постов в здании, способа производства ТО и ТР.

Наибольшие удобства и безопасность движения обеспечиваются при одностороннем закольцованном между боками и участками сообщения, поскольку движение совершается лишь в одном направлении, что исключает возможность встреч и пересечения потоков автомобилей.

Административные, служебные и общественные помещения обычно сосредотачиваются в блоке административного корпуса, который планируется в общем здании с производственными помещениями или выделяется в самостоятельное здание, примыкающее, как правило, к производственному корпусу.

Бытовые помещения, обслуживающие непосредственно нужды производства, размещаются в зонах обслуживания и ремонта, гардеробную размещают у основного входа рабочих.

2.12.4 Помещения для хранения автомобилей

Площадь помещений для хранения автомобилей определяется числом автомобилей, находящимся на хранении, типом стоянки и способом расстановки автомобилей.

Места хранения могут быть закреплены за определенными автомобилями, либо обезличены. В первом случае число мест хранения будет равно списочному составу парка, во втором случае их число может быть несколько меньше за счет хранения автомобилей на постах ТО и ТР, а также нахождения части автомобилей на линии и в капитальном ремонте.

Тип стоянки зависит от хранимого подвижного состава, климатических условий, эксплуатационных и экономических факторов, определяющих минимальные капитальные вложения.

Легковые автомобили и автобусы, как правило, следует обеспечивать стоянками закрытого типа.

Грузовые автомобили в зависимости от климатических условий могут хранится как на открытых, так и закрытых или частично закрытых стоянках.

Закрытые стоянки могут быть наземные и подземные, одноэтажные и многоэтажные.

Наибольшее распространение получили одноэтажные стоянки манежного типа с прямоугольной расстановкой автомобилей.

Многоэтажные стоянки в зависимости от способа перемещения автомобилей с этажа на этаж подразделяются на немеханизированные, полумеханизированные и механизированные.

В немеханизированных стоянках движение автомобилей с этажа на этаж осуществляется собственным ходом по рампам, которые могут быть прямолинейными и криволинейными.

Количество рамп определяется из расчета скорости движения автомобилей равной 15 км/ч., интервала между ними 20 м и эвакуации всех автомобилей из здания в течение часа.

Независимо от расчета при общем количестве 100 и менее автомобилей, размещаемых на всех этажах, кроме первого, устраивается однопутная рампа, предназначенная как для подъема, так и для спуска. При большем количестве автомобилей (101-200) предусматривается двухпутная рампа, одна полоса движения которой служит для подъема, другая для спуска. При числе автомобилей более 200 устраиваются две однопутные рампы, одна для подъема, другая для спуска. Продольный уклон прямолинейных рамп должен быть не более 18%, а криволинейных - 10%. Продольный уклон рамп не защищенных кровлей должен быть не более 10%.

Ширина проездной части рамп определяется в зависимости от размеров автомобиля.

В полумеханизированных стоянках подъем и спуск автомобилей с этажа на этаж осуществляется лифтами, перемещение по этажам производится собственным ходом.

В механизированных стоянках вертикальное перемещение осуществляется лифтами, горизонтальное с помощью тележек, катучих лифтов и т.д. В основном этот тип стоянок используется для кратковременного хранения автомобилей. Наибольшее распространение этот тип стоянки получил за рубежом.

Расстановка автомобилей в помещениях хранения может быть однорядная, двухрядная и многорядная; по углу расстановки - прямоугольная и косоугольная; по условиям движения - тупиковая и прямоточная.

Геометрические размеры стоянок определяются габаритными размерами автомобилей, количеством хранимых автомобилей, способом их расстановки, величиной нормируемых расстояний между автомобилями и элементами зданий и шириной проезда.

Нормируемые расстояния в зонах хранения автомобилей установлены (СНиП П-98-74) в зависимости от категорий автомобилей.

Ширина проезда в помещениях для хранения автомобилей определяется исходя из того, что въезд автомобиля на место производится задним ходом при тупиковой расстановке и передним при прямоточной. Причем расстояние от автомобиля должно быть не меньше указанного в справочниках.

Помещения для хранения автомобилей, как правило, не должны непосредственно сообщаться:

1.   с помещениями для зарядки аккумуляторов, вулканизационных, кузнечно-рессорных, сварочных, медницких, деревообрабатывающих, обойных и окрасочных работ;

2.      со складскими помещениями для хранения масел, обтирочных и легковоспламеняющихся жидкостей и обтирочных материалов;

.        с помещением котельной.

В помещениях для хранения автомобилей должны предусматриваться колесоотбойные устройства. Высота помещения для хранения автомобилей (по технологическим соображениям) от пола до выступающих элементов перекрытий или до низа оборудования определяется высотой наиболее высокого автомобиля, хранящегося в помещении плюс не менее 0,2 м, но должна быть не менее 2,0 м.

.12.5 Генеральный план

Генеральный план предприятия (Рис.2.7) - это план земельного участка, на котором расположены производственные здания и сооружения, площадки для безгаражного хранения подвижного состава, указаны проезды и пути движения автомобилей.

Основные требования к разработке генеральных планов определяются соответствующими главами СН и П ("Генеральные планы промышленных предприятий", "Планировка и застройка городов, поселков и сельских населенных пунктов"), а также Нормами технологического проектирования автотранспортных предприятий.

Предприятия по обслуживанию автомобилей I, II, III категорий должны размещаться в одном здании. При количестве постов более 10 или хранения более 100 автомобилей для мойки подвижного состава допускается проектировать отдельное здание.

На генплане указываются пути движения автомобилей по территории предприятия. Пересечение основных потоков движения автомобилей в период их массового выезда и возвращения с линии не допускается.

Предприятия по обслуживанию автомобилей, где предусматривается более 10 постов обслуживания и хранения более 50 автомобилей, должны иметь не менее двух въездов (выездов).

Ворота для въезда на предприятие или выезда должны располагаться с отступом от красной линии, равным не менее длины основной модели обслуживаемых автомобилей, при расстоянии между воротами менее 30 м въезд на предприятие должен предшествовать выезду, считая по направлениям движения по проезжей части дороги со стороны предприятия. При размещении автотранспортного предприятия на участке, ограниченном двумя дорогами общего пользования, ворота должны располагаться со стороны дороги с наименьшей интенсивностью движения.

Заправка автомобилей топливом, как правило, должна производится на автозаправочных станциях общего пользования, расположенных вне территории предприятия.

Территория предприятия должна иметь озеленение.

Предприятия, где предусматривается хранение автомобилей на площадках (открытых или с навесами), должны иметь ограждение высотой 1,6 м.

Ширина проездов для автомобилей может быть определена графическим методом.

При хранении на открытых площадках ширина проезда между рядами автомобилей определяется исходя из следующих условий:

1. автомобили въезжают на место передним или задним ходом; при въезде передним ходом

допускается применение при повороте в проезде заднего хода, причем расстояние от движущегося автомобиля до границ проезда должно быть для автомобилей I категории -0,7 м, II-0,8 м, III и IV-1,0 м;

. расстояние между автомобилями при (выезде или установке) и стоящими рядом автомобилями или ближайшими частями здания должно быть для автомобилей I категории -0,3 м, II - 0,4 м, III и IV - 0,5 м.

Для автопоездов расстояния, указанные в пунктах 1 и 2 увеличиваются на 0,1 м.

Въезд и выезд автопоезда на место хранения на открытой площадке должен производиться передним ходом. Для автомобилей тягачей с полуприцепами выезд может, как исключение, производится и задним ходом.

Рисунок 2.7. Генеральный план АТП

- производственный корпус; 2 - стоянка легковых автомобилей; 3 - административно-бытовой комплекс; 4 - контрольно-пропускной пункт; 5 - пост наружной мойки; 6 - очистные сооружения оборотного водоснабжения; 7 - открытая площадка зоны хранения автомобилей; 8 - автономная электростанция; 9 - котельная; 10 - автозаправочная станция; 11 - водонапорная башня; 12 - спортивная площадка

.13 Технико-экономические показатели проекта АТП

В целях выявления технического уровня разработанного проекта производится оценка и сравнение полученных технико-экономических показателей данного проекта с эталонными.

Гипроавтотрансом для определенных условий на основании прогрессивных норм проектирования автотранспортных предприятий, обобщения опыта действующих АТП, а также результатов научных исследований, разработаны эталонные технико-экономические показатели.

Основными показателями, по которым следует производить оценку проекта, являются:

·        количество производственных рабочих на 1 млн. км. пробега в год;

·        количество рабочих постов на 1 млн. км. пробега в год;

·        площадь стоянки на одно место хранения, м2;

·        площадь производственно-складских помещений на один автомобиль, м2.

Для проектируемого АТП, исходные данные которого отличаются от данных приведенных в справочниках, определение технико-экономических показателей производится путем перемножения численных значений эталонных показателей на соответствующие коэффициенты, учитывающие влияние следующих факторов:

· списочное количество автомобилей - K1;

· подвижного состава - К2;

· наличие прицепов - Кз;

· среднесуточный пробег автомобилей - К4;

· категорию условий эксплуатации K5;

· тип способ хранения автомобилей K6.

Технико-экономические показатели АТП при следующих исходных данных:

· списочный состав - 120 грузовых автомобилей грузоподъемностью 6-8 т; 8-10;

· среднесуточный пробег - 300 км;

· категория условий эксплуатации - I;

· способ хранения - открытый без подогрева, 100% автомобилей с независимым выездом; расстановка на стоянке - косоугольная под углом 45°.

Определение показателей:

1. Количество производственных рабочих на 1 млн. км. пробега:

Р = 6,50хК1 К2К3К4К5 = 6,50x1,07x0,81x0,91x1,05x0,60=4,82

. Количество рабочих постов на 1 млн. км побега:

Хnс=1,40х К, К2 Кз К4 К5 = 1,40x1,16x0,78x0,98x1,08x0,82=1,05

. Площадь стоянки на одно место хранения:

а)      для одиночного автомобиля:

Fcm = 50,5х К2 К6 = 50,5x0,93x1,0=4 7,0м2;

б)      для автомобиля с прицепом

Fcm = 80,0 х К2 Кб = 80,0x0,93x1,0= 74,5м2;

. Площадь производственно-складских помещений на один автомобиль:

ск =11,0xK1 K2K3K4K5 = 11,0x1,14x0,78x0,92x0,83x0,82=6,15м2.

5. Площадь земельного участка на один автомобиль:

= 165,0xK1 К2К3 = 165x1,12x0,88x0,98=143,0м2.

Сравнивая полученные данные с данными выполненного проекта, можно сделать вывод, что показатели спроектированного АТП достаточно близки к эталонным.

3. Прогнозирование остаточного ресурса деталей цилиндро-поршневой группы

.1 Исходные данные

Исходные данные помещены в таблицу 3.1.

Таблица 3.1

Исходные данные

Наименование параметра

Единица измерения

Значение Параметра

1

2

3

Марка автомобиля

-

КамАЗ 5320

Двигатель

-

6ч12х12д

Максимальная частота вращения коленчатого вала

мин-1

2600

Рабочий объём цилиндра

л

9,0

Максимальный крутящий момент, Ме

Н*м

700

Диаметр поршня, D

дм

1,20

Ход поршня, S

дм

1,20

Модуль упругости, Е

МПа 105

1,0

Зазор замка кольца в свободном состоянии, А

дм

0,188

Радиальная толщина кольца ,t

дм

0,050

Высота кольца ,b

дм

0,030

* Твёрдость по Бринеллю: кольцо, гильза, поршень

НВк НВг

700 / 100 230 90

Коэффициент микрорезания


1,77

Передаточное число коробки передач при разгоне для порожнего автомобиля

iг iп

3,1 2,4

1

2

3

Коэффициент, учитывающий процент движения по типам дорог : в городе в пригороде подъездные пути

 1  

 0,5 0,46 0,04

Коэффициент использования пробега

0,68

Коэффициент сопротивления движению: - городские и пригородные дороги - подъездные пути

 0,02 0,04

 * * Скорость движения автомобиля, Va в городских условиях ,Va1 в пригороде , Va2 на подъездных путях, Va3

 км / ч

 25 (30) 35 (40) 5 (10)

Год начала выпуска двигателя, Т

-

1983

Измерительное давление, Рi

Па 105

2,35

Атмосферное давление, Р2

Па 105

1,01

Начальная площадь в замке кольца, F2-0

мкм2 104

9,50

Среднеквадратичное отклонение начальной площади в замке кольца, F2-0

 мкм2

 5175

Предельная площадь зазора в замке кольца, F2-п

мкм2 104

42,6

Показатель степени, 


1,4

Среднеквадратичное отклонение погрешности диагностирования , F2-1

 

 19215

Нагрузка на седельно-сцепное устройство

кгс

8100

Допустимая масса полуприцепа

кг

19100

Собственная масса

кг

6800

В том числе на переднюю ось

кг

3500

В том числе на тележку

кг

3500

Максимальная скорость автопоезда

км/ч

80 - 100

Передаточное число главной передачи


7,22(6,53; 5,94)

Размер шин


260R508

Статический радиус ведущего колеса

м

0,488

Лобовая площадь

м2

6,74

Коэффициент обтекаемости

Н*с2/м4

0,6

Рассматриваемая деталь


Компресси-онное кольцо

** В скобках данные приведены для порожнего автомобиля.

.2 Расчёт параметров распределения ресурсов детали автомобильных двигателей

Параметры распределения ресурсов детали рассчитываются на основе обработки статистической информации об отказах, наблюдаемых в эксплуатации, и используются для разработки стратегии поддержания работоспособности, оценки долговечности и безотказности конструкции и потребности в запасных частях.

Выявим наибольшее lmax и наименьшее lmin значения наработки и определим ширину интервалов группирования по формуле:

Dl = (lmax - lmin) / 1+ 3,2*lg N, тыс. км,

где N - общее число наблюдений, N= 66.

Таблица 3.2

Значения ресурсов l (расставлены по возрастанию), тыс. км

66,3

132,5

 156,4

 164,1

 180,3

188,4

 197,0

 211,4

 219,6

 229,1

 241,9

 87,7

 136,7

 156,9

 164,5

181,0

188,7

198,5

 212,0

 220,8

 233,1

 242,7

96,7

 138,0

 157,0

 168,4

 182,1

 189,1

 200,2

 213,7

 221,7

 233,6

 246,9

 107,2

140,9

 158,0

 170,2

 182,7

 190,1

 205,7

 214,0

 223,7

 237,6

 251,1

 112,5

 151,6

 158,8

 172,7

187,3

190,9

206,8

 214,2

226,0

238,4

 268,8

 126,4

 155,0

 159,4

 173,9

188,2

 194,5

211,3

 214,6

 226,5

241,7

 312,5


 S= 12470,2 (. км)

Dl =36,086 » 36тыс. км.

Подсчитаем частоты попадания случайной величины ресурса l в интервале группирования. Выберем начальное lн и конечное lн значения величины, которые берутся ближе к целочисленному lmax и lmin .

н = 66 ; l1 =66 +36 =102; l2 =102 +36 =138 ; l3 =138 +36 =174;= 174 +36=210; l5 =210 +36 =246; l6= 246 +36 =282; l7 =282 +36 =318;н = 66 и l7 = lк = 318 (тыс. км).

Чертим прямую и разбиваем на интервалы равные от 66 до 318 тыс. км.

Определим какое количество ресурсов попадает в интервалы и определим середины этих интервалов. Для удобства пользования данные вычислений занесём в таблицу 3.3.

Таблица 3.3

Определение частоты попадания ресурсов в заданные интервалы

No интервала

Границы интервалов (тыс. км)

Середины интервалов (тыс. км)

Частота попадания в интервал , ni

1

66 - 102

84

3

2

102 - 138

120

6

3

138 - 174

156

15

4

174 - 210

192

17

5

210 - 246

228

21

6

246 - 282

264

3

7

282 - 318

300

1


Определение параметров и характеристик нормального закона. Плотность вероятности f(l) нормального закона имеет вид [12]:


где  и  - параметры нормального закона распределения;(z) - форма представления числа е в степени z : exp (z)= ez.

а) вычислим математическое ожидание a по формуле:


Где- количество интервалов;- общее число наблюдений;- середины интервалов;- частота попадания в интервалы.


б) Рассчитаем среднеквадратичное отклонение sпо формуле:


в) вычислим значения эмпирической плотности распределения вероятностей fэ(li) по интервалам наработки:


г) рассчитаем нормированные и центрированные отклонения середины интервалов:


д) определим значения теоретической плотности распределения вероятностей fт(li) по формуле:


Полученные значения расчетов в пунктах в, г, д сведем в таблицу 3.4.

Таблица 3.4

Вычисление эмпирической и теоретической плотности распределения вероятностей и нормированных и центрированных отклонений середины интервалов

n i \ Параметры

yi

fэ(li)

fо(li)

fт(li)

n1

-2,262

0,0013

0,0333

0,0007

n2

-1,485

0,0025

0,1333

0,0029

n3

-0,707

0,0063

0,3278

0,0071

n4

0,071

0,0072

0,4

0,0086

n5

0,848

0,0088

0,2857

0,0062

n6

1,626

0,0013

0,1089

0,0023

n7

2,404

0,0004

0,0222

0,0005


е) По результатам расчетов строим на рисунке 3.1 гистограмму: эмпирическую кривую, распределение плотностей вероятностей fэ(li), теоретическую кривую распределения fт(li) и выравнивающую кривую.

Рисунок 3.1. Гистограмма середины интервалов, кривая распределения плотностей вероятностей fэ(li), теоретическая кривая распределения fт(li) и выравнивающая(огибающая) кривая

Проверка согласия между эмпирическим и теоретическим (нормальным) законом распределения по критерию c2 Пирсона:

а.) Определим меру расхождения c2 между эмпирическим и теоретическим распределениями [13]:

и ni` -- соответствие эмпирической и теоретической частоты попадания случайной величины в i-ый интервал.

Для удобства вычислений критерий c2 определим по формуле:


б.) Вычислим число степеней свободы m (при этом интервалы, в которых частоты ni меньше 5-ти объединим с соседними интервалами):

= r1 - k - 1,

где- число интервалов полученное при объединении;- количество параметров закона распределения.

Нормальный закон является двухпараметрическим и определяется математическим ожиданием и средним квадратичным отклонением, т.е. k=2.

= 4-2-1 = 1

в.) По значениям c2 и m определим вероятность согласия P(c2) теоретического и эмпирического измерения P(c2) = P(5,12) = 0,0821; (c2 ) > 0,05, значит эмпирическое распределение согласуется с нормальным законом распределения.

Определение оценок показателей надёжности детали:

а) рассчитаем значение среднего ресурса R [14] при нормальном законе распределения, который численно равен математическому ожиданию а, поэтому R= а = 188,73 (тыс. км)

б) рассчитаем вероятность безотказной работы детали по интервалам наработки по формуле:


в) построим кривую вероятности безотказной работы детали P(li) в зависимости от ее наработки l на рисунке 3.2.

Рисунок 3.2. График P(li) кривая вероятности безотказной работы детали в зависимости от наработки l

.3 Расчёт параметров распределения ресурсов детали по корреляционным уравнениям долговечности

Для сбора данных по эксплуатационной надежности агрегатов автомобиля требуется 5-6 лет, поэтому оценка долговечности новых моделей двигателей производится на основе аналогии, ускоренных испытаний и прогнозных моделей [15].

Одним из направлений прогнозирования является разработка полуэмпирических моделей, представляющих собой корреляционную зависимость линии регрессии между величинами, характеризующими уровень нагруженности, и показателем ресурса рассматриваемой детали.

Для деталей двигателя данный подход реализован в виде корреляционных уравнений долговечности:

К = А+В(R - С*n)-1 ,

где К- критерий нагруженности;

А, В, С -- коэффициенты;- средний ресурс детали;

= Т-Т0=1980-1970=10 - прогнозируемый период (Т- год начала выпуска двигателя,

Т0- 1970 год точка отсчета прогнозируемого периода).

Критерий нагруженности рассчитывается по формуле:

Кк = kмк*kт*Sк(pR + 0.1D2*pi*b-1*r-1),

Гдемк - удельный критерий физико-механических свойств кольца;т - удельный критерий тепло напряженности;- удельное давление на стенку цилиндра от сил упругости кольца МПа;- диаметр цилиндра, дм;- среднее значение индикаторного давления, МПа;- высота верхнего компрессионного кольца, дм;= 0,5(D - t) -- радиус осевой линии кольца, дм;- радиальная толщина кольца , дм;к - путь трения кольца, м/км;

l - отношение радиуса кривошипа к длине шатуна;- ход поршня, м;

r- плотность материала кольца, Н/м3.

Средний ресурс рассчитывается по уравнению:

Кк = - 25,2 + 81840 / (Rк - 2,75n).

Расчет критерия нагруженности детали двигателя включает следующие этапы:

а) Находятся значения сопротивлений дороги Рyij, воздуха Pwij, разгона Pgij автомобиля при заданных вариантах дорожно-транспортных условиях эксплуатации [16]:

Рyij = (Ga + gqн )yi H, (3.1)

где Ga - сила тяжести снаряженного автомобиля, Н;н - номинальная грузоподъемность, Н;

g - коэффициент использования грузоподъемности, g=1;

yi - коэффициент сопротивления движению.

= 15125*9.8 = 148225 (Н),н = 8100*9.8 =79380 (Н),

(79380+148225)*0.04=9104,23175,21587,62964,54552,1.= (kF*V2aij)/13 H,        (3.2)

Где k - фактор обтекаемости автомобиля, Н*с22;- лобовая площадь автомобиля, м2;- скорость движения автомобиля в груженом и порожнем состоянии по различным типам дорог, км/ч.

Pgij = ki [( Me× io× iwj ×h)/rk] H, (3.3)

где ki - коэффициент, учитывающий инерционные нагрузки(междугородние перевозки - ki=0, город и подъездные пути ki = 0,2 , карьеры ki = 0,3);- максимальный крутящий момент Me = 700, Н*м;× - передаточное число главной передачи io = 7,22;wj - передаточное число коробки передач в j-м весовом состоянии.

Таблица 3.5

Значения рассчитанных сил сопротивлений дороги, воздуха и разгона

Транспортные условия

Город

Пригород

Подъездные пути

Рассчитываемые параметры

Рj

PW1j

PY1j

P2j

Pw2j

P 3j

PW3j

PY3j

Груженый автомобиль

4552,1

194,423

5778,958

4552,1

381,069

9104,2

7,777

5778,958

Порожний автомобиль

1587,6

279,969

4474,033

1587,6

497,723

3175,2

31,108

4474,033



б) Рассчитываются средние значения эффективного давления Peij для заданных условий эксплуатации исходя из уравнения мощностного баланса [17], с тем, чтобы учесть влияние дорожно-транспортных условий и конструктивных особенностей трансмиссии автомобиля на нагруженность деталей двигателя:

=ååai bj[(1.25rk×10-2)/(Vh×io×ikij×hт)]×[(1-ki)(Pyij+Pwij)+Pgij] ,

где rk - динамический радиус колеса, м; на дорогах с твёрдым покрытием rk » rст;- рабочий объем цилиндров двигателя, л;- передаточное число главной передачи;- средневзвешенное передаточное число коробки передач;

hт - к.п.д. трансмиссии автомобиля;

ai, bj - коэффициенты, учитывающие распределение пробега автомобиля по типам дорог

åai = 1 и использование пробега åbj = 1;yij, Pwij Pgij - соответственно сопротивления дороги, воздуха и разгона в i-м весовом состоянии на j-м дорожном покрытии, Н .

ikij= 0,6× Vmax(å bj åai × Vij)-1,

где Vmax - максимальная скорость автомобиля, км/ч;- средняя скорость автомобиля в i-м весовом состоянии при j-х дорожных условиях.

=b(a1×Vа1г+a2×Vа2г+a3×Vа3г)+(1-b)(a1×Vа1п+a2×Vа2п+a3×Vа3п),

Где b - коэффициент использования пробега .

=0.68*(0.5*25+0.46*35+0.04*5)+(1-0.68)*(0.5*30+0.46*40+0.03*10)= 30,368, км/ч.= 0.6*90/30.368 =1,778

.5*0.68*((1.25*0.488*0.01)/(9*7.22*1.778*0.9))*((1-0.02)*

(3175.2+31.108)+04474.033)=0,1519127.

Значение средневзвешенного эффективного давления Ре определяется по формуле:

Ре = b(a1×Ре1г+a2×Ре2г+a3×Ре3г)+(1-b)(a1×Ре1п+a2×Ре2п+a3×Ре3п),

где b - коэффициент использования пробега;

ai - коэффициент, учитывающий процент движения автомобиля по типам дорог;

Регi, Репi - среднее эффективное давление при движении автомобиля в груженом и порожнем состоянии по различным типам дорог.

.68*(0.5*0.2080473+0.46*0.09642883+0.04*0.293379)=0.1088789

(1-0.68)*(0.5*0.1257443+0.46*0.04076188+0.04*0.15191270)=

.02806372; Pe=0,1369426 , МПа.

Таблица 3.6

Таблица рассчитанных значений давления

Транспортные условия

Город

Пригород

Подъездные пути

Среднее значение параметров

Рассчитываемые параметры

Pe1j

Pe2j

Pe3j

Pe

Pi

0,2080473

0,09642883

0,293379

0,1088789

0,2067211

0,3156

Порожний автомобиль

0,1257443

0,04076188

0,1519127

0,02806372

0,2067211

0,2347848



S 0,1369426 0,2067211 0,3436637

Для определения Рм используется зависимость:

м = А+В*сm,

где А, В - коэффициенты, устанавливаемые экспериментально;

сm = (2S × io× 0,6Vmax)/(60× 0.377×rk);

cm - средняя скорость поршня, м/с;

= (2*0.12*7.22*0.6*90)/(60*0.377*0.488) =8,476757 , м/cм = 0.105+0.012*8.476757 =0,2067211 МПа.

Определим среднее индикаторное давление.

Рi = Pe + Pм, МПа.

Рi= 0,1369426+0.2067211= 0,3436637 МПа.

Рассчитаем значение удельного давления, возникающего от сил упругости компрессионного кольца:

PR = (0.424*E*A)/[(3-x)*D*(D*t-1-1)3], МПа,

где Е - модуль упругости, МПа;

x - постоянная, зависящая от эпюры давления (x=0,196);

А - зазор в замке кольца в свободном состоянии.

PR=(0.424*1.2*100000*0.170)/((3-0.196)*1.2*(1.2*(1/0.05)-1)*23*23)=

,2112775 МПа.

Определяется критерий физико-механических свойств материалов рассматриваемого сопряжения цилиндропоршневой группы :

а) гильза - компрессионное кольцо:

Кмк =(e0,2t*НВкm*НВгn)/(НВк+НВг),

где e0,2t - коэффициент микрорезания;

НВк, НВг - соответственно, твердость по Бринеллю кольца и гильзы, ед.;, n - показатели степени, при расчете ресурса кольца принимаются n=2 и m=1,5.

Кмк =(1,59*7001,5*2302)/(700+230) = 1675008.

Удельное значение критерия найдем из соотношения :

м = 1/ lgКм;м = 1/log 1675008= 0,16066794.

Оценивается критерий теплонапряженности детали:

Кт = D0.38* cm0..5 [(632pi)/(HH*hi)]0.88,

где HH - низшая теплотворная способность топлива, для дизельного топлива. HH=42496кДж/кг.

Кт = 0,120.38*8,4767570.5*((632*0,3156)/(42496*0,45))0.88 = 0,023458596

Определим удельное значение критерия теплонапряженности:

т = Кт / Ктmax,

где Ктmax - предельное значение критерия теплонапряженности для рассматриваемой конструкции двигателя.

сm = (2S*ne)/60. сm= (2*0.12*2600)/60 =10.4;

ре = [(0.314*t*Me)/Vh ] *10-2 ;= ((0.314*4*700)/9)*0.01 = 0,9768888, МПа;

Ктmax = 0.120,38*10.40,5*((632*0.9768888)/(42496*0.45))0.88 = 0,0702317;т = 0.023458596/ 0.0702317=0,3340172.

Рассчитаем путь трения компрессионного кольца за один километр пути:

Sт = (100*S*io*ikij)/(p*rk),

Sт= (100*0.12*7.22*1.778)/(3.14*0.488) =100,5312 , м/с.

На основании рассчитанных параметров определим критерий нагруженности:

Кк = kмк*kт*Sк(pR+0.1D2*pi*b-1*r-1).

Кк=0.16067*0.3340*1005.312*(0.2112775+(0.1*1.2*1.2*0.34367*(1/0.03)*(1/(0.5*(1.2-0.05)))))=166,1719.

Из корреляционного уравнения долговечности:

Кк = -25,2+81840/(Rк-2,75n).

Определим средний ресурс детали:

к = 81840 / (Кк + 25,2) + 2.75n.к= (81840/(166.1719+25.2) +13*2.75)=463,399, тыс.км.

Определим среднеквадратичное отклонение распределения ресурсов детали:

Вычислим коэффициент вариации по корреляционной зависимости

= 16,507 R-0,807,= 16,507*463.399-0,807 = 0,1165.

Среднеквадратичное отклонение вычисляется из соотношения:

sR =V × R.

sR = 0.1165*463.399 =53,98598, тыс.км.

Для построения кривой распределения плотности вероятности нормального закона рассчитаем:



Таблица 3.7

Рассчитанные значения для кривой распределения плотности вероятностей

l(т.км)

84

120

156

192

228

264

300

336

372

408

444

480

516

552

588

624

f (li)

0,00

0,00

0,00

0,00

0.00

0.00

0.00008

0.00046

0.00176

0.00436

0.00693

0.00705

0.0046

0.00192

0.0016

0.00009



По результатам расчетов построим кривую распределения ресурсов детали по КУД на рис. 3.4.

Расчет параметров распределения ресурсов детали автомобильного двигателя по комбинированному прогнозу.

Комбинированный прогноз рассматривается как задача принятия решения в условиях неопределенности с вероятной оценкой непротиворечивости результатов [18].

Комбинированный прогноз составляется с учетом параметров плотности распределения ресурсов, полученных в результате их расчета по КУД и обработки статистических данных распределения ресурсов детали автомобильных двигателей в эксплуатации. Для нормальных законов распределений с параметрами а и s (обработка статистических данных) и R и sR (определение по КУД) параметры распределения ресурсов по комбинированному прогнозу определяются следующими зависимостями.

fS (t) = (2pDS)-0.5 exp(-((t-tS)2 / (2DS)),

Математическое ожидание определяется по формуле:

å = x1*R+ x2*a,å = 0.5772487*463.399+0.4227513*188.73 =347,2823, тыс. км.

Среднеквадратичное отклонение вычисляется по формуле:

D1 = s2 ; D2 = sR2;= x12 D1 + x12D2 ;

så = Ö x12*sR2+ x22*s2,

где x1, x2 - весовые коэффициенты, определяемые по формулам:

x1=s2/(sR2+s2) ;

x2=sR2 / (sR2+s2);

x2= 53.985982 / (46.22+53.985982) =0,5772487;

x1= 46.22 / (46.22 +53.985982) =0,4227513.= 46.22 =2134,44 ; D2 = 53.985982 =2914,486S = 0.57724872 *2914.486 +0.42275132 *2134.44=1352,618.

så = Ö 0.57724872 *53.985982 + 0.4227512* 46.22 = 36.772.

Рассчитываем значения для теоретической кривой распределения плотности вероятности нормального закона с параметрами полученными по комбинированному прогнозу и по полученным данным построим кривую на рис. 3.4.

Таблица 3.8

Рассчитанные значения для теоретической кривой плотности распределения вероятностей

t(т.км))

84

120

156

192

228

264

300

336

372

408

444

480

516

552

f(t)

0.00

0.00

0.00

0.00001

0.00056

0.00083

0.00475

0.01084

0.00865

0.00276

0.00034

0.00017

0.00

0.00



.4 Определение доверительных границ изменения структурного параметра технического состояния цилиндропоршневой группы и наработки до первого ресурсного диагностирования

Детали ЦПГ функционально сопряжены между собой, поэтому в качестве структурного параметра выбираются интегральные показатели. Рассматриваются три основных параметра: зазор в замке верхнего компрессионного кольца, зазор в сопряжениях кольцо-канавка поршня и зазор между гильзой и юбкой поршня.

Однако лимитирует надежность ЦПГ, как правило, износ верхнего компрессионного кольца по радиальной толщине. Глубина диагностирования определяется уровнем, при котором оценивается значение параметра технического состояния предопределяющего ремонт узла. Для деталей ЦПГ, с учетом изложенного, в качестве структурного параметра может быть выбрана площадь зазора в замке верхнего компрессионного кольца (F2-i).

Рисунок 3.4. Графики плотностей распределения вероятностей

В качестве модели, адекватно отражающей изменение структурного параметра одноименных деталей, используется степенная функция:

-i = F2-0+gita ,

где F2-0 - среднее значение начальной площади в замке компрессионного кольца, мкм2;

gi - средняя скорость изменения F2-i , мкм2/ тыс.км;- наработка, тыс.км;

a - показатель степени функции изменения параметра.

Для определения доверительных границ используется зависимость среднего квадратического отклонения структурного параметра sF2-i от наработки:

sF2-i2 = sF2-i2+sgi2 t2a,

где sF2-i, sgi - среднее квадратическое отклонение F2-0 и gi.

Расчет проводится по следующим этапам:

. Определяется значение:

gi = (F2-п - F2-0)/Ra ,

где F2-п - предельное значение структурного параметра, мкм2;

gi = ((42.6-9.5)*10000)/ 463.3991.4= 61.304305.

2 На основании метода линеаризации после преобразования уравнений оценивается sgi:

sgi = [a2((gi(2+2a)/a/(F2-п-F2-0)2/a))sR2-(gi2/(F2-п-F2-0)2)sF2-02]1/2.

sgi = (1,42* ((61,3043,43 /3310001,43) *53,985982- (61,3042 /3310002)*51752)0,5 =(1.96*((1352342.7 / 78226492)*2914.486 -(3758.1804 / 109561000000)*26780625))0.5 = 9.846.

3 Находятся доверительные границы изменения параметра, с использованием в качестве F2-0, sF2-0 , gi , sgI их оценок:

F2-iBH = (F2-0 ± tbsF2-0)+( gi ±f tbsgi)ta,

где F2-iB, F2-iH - текущие значения верхнего и нижнего доверительных пределов структурного параметра, мкм2;b - статистика Стьюдента для b=0,95;

(t1,t2) =0,8 - нормированная корреляционная функция, деталей ЦПГ;=Ö 1-R2(t1,t2) - коэффициент перемешивания реализаций.

Таблица 3.9

Рассчитанные значения границ изменения параметров

l (i)

84

120

156

192

228

264

300

336

372

408

444

480

516

552

588

624

FB, 104

13.97

11.4

18.74

21.52

24.51

27.7

31.07

34.61

38.3

42.13

46.11

50.21

54.44

58.79

63.26

67.83

FH ,104

11.09

12.77

14.67

16.76

19.01

21.41

23.94

26.6

29.37

32.25

35.24

38.33

41.51

44.78

48.13

51.57



На основании расчетов, для 5-6 значений структурного параметра в диапазоне от ± tb F2-0 до F2-п изображаются на рис. 3.5, кривые нижней и верхней границ в таблице 3.9.

. Определяются минимальное Rв и максимальное Rн значения ресурса деталей. Для этого в уравнение для их нахождения подставляются F2-iB= F2-п, тогда:

Rвн = {[ F2-п -(F2-о± tb sF2-o)] / (gi ± f tbsgi)}1/a,

Rв = ((42.6*104-(9.5*104+1.96*5175))/ (61.3+0.45*1.96*9.846))1/1.4= 412.31 , мкм2,н = ((42.6*104-(9.5*104-1.96*5175))/ (61.3+0.45*1.96*9.846))1/1.4= 430.76 , мкм2.

Рисунок 3.5 . Графики верхней и нижней границ изменения параметра

5. Оценивается наработка до первого ресурсного диагностирования:

= Rв - Lтo,

где Lтo - периодичность TO-2, устанавливается с учетом марки и условий эксплуатации автомобиля,

= 430 -12 = 418, т. км.

3.5 Прогнозирование остаточного ресурса детали ЦПГ автомобильного двигателя на основе результатов диагностирования

Прогнозная оценка остаточного ресурса осуществляется на основе математической модели изменения параметра в функции наработки.

Значение структурного параметра при tgi определяется на основе результатов диагностирования ЦПГ.

Определение структурного параметра на основе результатов диагностирования

В качестве средства ресурсного диагностирования ЦПГ может быть использован пневмотестер модели К-272 [19].

Принципиальная схема измерения площади в замке верхнего компрессионного кольца по величине падения сжатого воздуха, подаваемого в цилиндр, представлена на рис. 3.6.

Значение структурного параметра рассчитывается нa основании следующей зависимости:

F2-1 = K(2Dp / ([1-(p2 / pi2]pi))1/2,

где К=(m1/m2)*F1/3,13;

К - коэффициент, учитывающий соотношение коэффициентов сопротивления истечения через входное сопло m1 и зазор кольца m2, а также площадь входного сопла (К=0,542•106 мкм2);

Рисунок 3.6. Принципиальная схема диагностирования ЦПГ пневмотестером модели К-272:

 - фильтр; 2, 3 - блок питания; 4 - входное сопло; 5 - измерительный блок; 6 - манометр.

р2 - атмосферное давление;

Dр = ро - pi,

Dp - величина падения давления сжатого воздуха, подаваемого в цилиндр, Па;

рo - рабочее давление (рo = 0,26•106 Па);

pi - измерительное давление, полученное в результате диагностирования, Па.

Далее рассчитываются значение F2-1, соответствующее величине pi, из условия задания, и несколько произвольно выбранных значений в диапазоне от начальной до предельной площади в замке. На основании полученных значений строится зависимость F2-i = f(pi).

Таблица 3.10

Рассчитанные значения F2-1, при изменении давления.

pi

0.25*106

0.2*106

0.21*106

0.215*106

0.22*106

F2-1

27,7*104

48,6*104

42,6*104

39,7*104

37,69*104


Рисунок 3.7. Зависимость изменения зазора кольца от изменения давления

.6 Прогнозирование остаточного ресурса детали двигателя по степенной модели на основе результатов диагностирования

Возможны два варианта прогнозирования остаточного ресурса по степенной модели: аппроксимация статистических данных и использование модели с заданными показателями степени для рассматриваемого сопряжения. В дипломном проекте примем второй вариант.

Рассчитываются скорости изменения верхней (gдв) и нижней (gдн) границ структурного параметра:

gдв = [(F2-1+ ftbsF2-0) - (F2-0 - tbsF2-0)] / tg1a

gдн = [(F2-1- ftbsF2-0) - (F2-0 + tbsF2-0)] / tg1a

где tb - статистика Стьюдента для b=0,95;-0 - начальное значение площади в замке компрессионного кольца, мкм2*104;- наработка до первого ресурсного диагностирования;

sF2-1 - среднее квадратическое отклонение погрешности диагностирования, мкм2;

sF2-0 - среднее квадратическое отклонение начальной площади в замке кольца, мкм2;

a - показатель степени.

gдв = 66,75; gдн = 38,98

По результатам диагностирования определим границы изменения структурного параметра:

-iвд= (F2-0 - tbsF2-0) +gв*ta,-iнд= (F2-0 + tbsF2-0)+ gн*ta,

где-0 - начальное значение площади в замке компрессионного кольца, мкм2*104;b - статистика Стьюдента для b=0,95;

sF2-0 - среднее квадратическое отклонение начальной площади в замке кольца, мкм2;- середины интервалов, тыс.км;

gв, gн - соответственно верняя и нижняя границы скорости изменеия структурного параметра.

Полученные результаты сведем в таблицу 3.11.

Таблица 3.11

Рассчитанные значения границ изменения структурного параметра

l(т.км)

48

84

120

156

192

228

264

300

336

372

408

444

480

516

552

F B

9.9

12.4

14

16.3

18.9

21.8

24.8

28

21.5

35.5

39.5

42.9




F H

9.5

10.8

12.3

14

15.8

17.8

20

22

25

27.3

30.3

33

36.6

39

43



На основании полученных результатов строятся кривые верхней и нижней границ изменения структурного параметра, определенные по результатам диагностирования.

Рисунок 3.8. Графики кривых верхней и нижней границ изменения структурного параметра

Оценивается ресурс ЦПГ по верхней (Rдв) и нижней (Rдн) границам реализаций:

Rдв = [( F2-п - (F2-0 - tbsF2-0)) /gв ]1/ a,        {34}дн = [( F2-п - (F2-0 + tbsF2-0)) /gн ]1/ a,     {35}дB = 473,4 ; RдH = 550,57

Находятся границы остаточного ресурса ЦПГ:

RостВ = RдВ - tg1;

RостН = RдН - tg1

RостВ = 473.4 - 418 =55,4; RостВ = 550.57- 418=132,57.остH - RостВ = 132.57-55.4=77,17.

Анализируются результаты расчетов RостВН с позиции принятия решения о периодичности и объеме ремонтных воздействий, исходя из следующих условий:


Значит проводится повторное диагностирование при пробеге равном:

= 55.4 - 13 = 42,4 тыс.км.


.1 Функции по охране труда и ответственность руководителя, специалистов и других работников АТП

Руководитель предприятия обязан обеспечить:

·        безопасную эксплуатацию производственных зданий, сооружений, оборудования, безопасность технологических процессов, а также эффективную эксплуатацию средств коллективной и индивидуальной защиты;

·        режим труда и отдыха работников, установленный законодательством;

·        работников необходимым количеством санитарно-бытовых помещений и оборудования, контролировать их работу и использование по назначению в соответствии с действующим законодательством и действующими инструкциями;

·        на каждом рабочем месте условия труда в соответствии с требованиями КЗоТ, других нормативных правовых актов и инструкций;

·        разработку и выполнение мероприятий по охране труда;

·        проведение предварительных при поступлении на работу и периодических медицинских осмотров в соответствии с действующим нормативным правовым актом;

·        проведение сертификации рабочих мест и производственных объектов по охране труда;

·        разработку, утверждение и переутверждение инструкций по охране труда, а также обеспечение ими всех работников;

·        обучение, проведение своевременных инструктажей и проверку знаний работниками норм и инструкций по охране труда;

·        работников качественной специальной одеждой, специальной обувью и другими средствами индивидуальной защиты в соответствии с действующим законодательством, своевременную их стирку (химическую чистку) и ремонт, а также смывающими и обезвреживающими средствами;

·        возмещение вреда, причиненного здоровью работникам вследствие неблагоприятных и опасных условий труда, в соответствии с действующим нормативным правовым актом;

·        информирование работников о состоянии условий и охраны труда на рабочем месте, о существующем риске повреждения здоровья и полагающихся работникам средствах индивидуальной защиты, компенсациях и льготах;

·        распределение функций по охране труда между специалистами;

·        своевременное расследование несчастных случаев на производстве, происшедших с работниками предприятия;

·        беспрепятственный допуск представителей органов государственного надзора и контроля, а также общественного контроля для проведения проверок, расследования несчастных случаев и профессиональных заболеваний на предприятии;

·        необходимые меры по обеспечению сохранения жизни и здоровья работников при возникновении аварийных ситуаций, в том числе меры по организации первой помощи пострадавшим;

·        обязательное социальное страхование работников от несчастных случаев на производстве и профессиональных заболеваний;

·        выполнение предписаний органов контроля и предоставление им информации о состоянии условий труда на предприятии и несчастных случаях, происшедших на предприятии.

Специалисты предприятия обязаны: выполнять функции по охране труда, возложенные на них руководителем предприятия.

Все работники предприятия обязаны:

·        соблюдать нормы, правила и инструкции по охране труда;

·        правильно применять коллективные и индивидуальные средства защиты;

·        немедленно сообщать своему непосредственному руководителю о любом несчастном случае, свидетелем которого он был, а также признаках профессионального заболевания и возникшей ситуации, которая может угрожать жизни и здоровью людей;

·        оказать пострадавшему первую помощь и помочь доставить его в медпункт или ближайшее медицинское учреждение.

.2 Требования охраны труда при ТО и ремонте автомобилей

Техническое обслуживание и ремонт автомобилей производится на специально отведенных местах (постах), оснащенных необходимыми устройствами, приборами и приспособлениями, инвентарем [20].

Автомобили, направляемые на посты технического обслуживания и ремонта, должны быть вымыты, очищены от грязи и снега. Постановка автомобилей на посты технического обслуживания и ремонта осуществляется под руководством ответственного лица (мастера, начальника участка).

После постановки автомобиля на пост необходимо затормозить его стояночным тормозом, выключить зажигание (перекрыть подачу топлива в автомобиле с дизельным двигателем), установить рычаг переключения передач (контроллера) в нейтральное положение, под колеса подложить не менее двух специальных упоров (башмаков). На рулевое колесо должна быть повешена табличка с надписью "Двигатель не пускать - работают люди!". На автомобилях, имеющих дублирующее устройство для пуска двигателя, аналогичная табличка должна вывешиваться и у этого устройства.

При обслуживании автомобиля на подъемнике (гидравлическом, электромеханическом) на пульте управления подъемником должна быть вывешена табличка с надписью "Не трогать - под автомобилем работают люди!".

В рабочем (поднятом) положении плунжер гидравлического подъемника должен надежно фиксироваться упором (штангой), гарантирующим невозможность самопроизвольного опускания подъемника.

В помещениях технического обслуживания с поточным движением автомобилей обязательно устройство сигнализации (световой, звуковой или др.), своевременно предупреждающей работающих на линии обслуживания (в осмотровых канавах, на эстакадах и т.д.) о моменте начала перемещения автомобиля с поста на пост [21].

Включение конвейера для перемещения автомобилей с поста на пост разрешается только после включения сигнала (звукового, светового) диспетчером или специально выделенным лицом. Посты должны быть оборудованы устройствами для аварийной остановки конвейера.

Пуск двигателя автомобиля на постах технического обслуживания или ремонта разрешается осуществлять только водителю-перегонщику, бригадиру слесарей или слесарю, назначенному приказом и прошедшему инструктаж.

Перед проведением работ, связанных с проворачиванием коленчатого и карданного валов, необходимо дополнительно проверить выключение зажигания (перекрытие подачи топлива для дизельных автомобилей), нейтральное положение рычага переключения передач (контроллера), освободить рычаг стояночного тормоза.

После выполнения необходимых работ автомобиль следует затормозить стояночным тормозом.

Работники, производящие обслуживание и ремонт автомобилей, должны обеспечиваться соответствующими исправными инструментами и приспособлениями.

При необходимости выполнения работ под автомобилем, находящимся вне осмотровой канавы, подъемника, эстакады, работники должны обеспечиваться лежаками.

При вывешивании части автомобиля, прицепа, полуприцепа подъемными механизмами (домкратами, талями и т.п.), кроме стационарных, необходимо вначале подставить под неподнимаемые колеса специальные упоры (башмаки), затем вывесить автомобиль, подставить под вывешенную часть козелки и опустить на них автомобиль.

Запрещается:

·     работать лежа на полу (земле) без лежака;

·        выполнять какие-либо работы на автомобиле (прицепе, полуприцепе), вывешенном только на одних подъемных механизмах (домкратах, талях и т.п.), кроме стационарных;

·        подкладывать под вывешенный автомобиль (прицеп, полуприцеп) вместо козелков диски колес, кирпичи и другие случайные предметы;

·        снимать и ставить рессоры на автомобилях (прицепах, полуприцепах) всех конструкций и типов без предварительной их разгрузки от массы кузова путем вывешивания кузова с установкой козелков под него или раму автомобиля;

·        проводить техническое обслуживание и ремонт автомобиля при работающем двигателе, за исключением отдельных видов работ, технология проведения которых требует пуска двигателя;

·        поднимать (вывешивать) автомобиль за буксирные приспособления (крюки) путем захвата за них тросами, цепью или крюком подъемного механизма;

·        поднимать (даже кратковременно) грузы массой более, чем это указано на табличке данного подъемного механизма;

·        снимать, устанавливать и транспортировать агрегаты при зачаливании их тросом или канатами;

·        поднимать груз при косом натяжении троса или цепей;

·        работать на неисправном оборудовании, а также с неисправными инструментами и приспособлениями;

·        оставлять инструмент и детали на краях осмотровой канавы;

·        работать под поднятым кузовом автомобиля-самосвала, самосвального прицепа без специального дополнительного упора;

·        использовать случайные подставки и подкладки вместо специального дополнительного упора;

·        работать с поврежденными или неправильно установленными упорами;

·        пускать двигатель и перемещать автомобиль при поднятом кузове;

·        производить ремонтные работы под поднятым кузовом автомобиля-самосвала, самосвального прицепа без предварительного его освобождения от груза;

·        проворачивать карданный вал при помощи лома или монтажной лопатки;

·        сдувать пыль, опилки, стружку, мелкие обрезки сжатым воздухом.

Ремонт, замена подъемного механизма кузова автомобиля-самосвала, самосвального прицепа или долива в него масла должны производиться после установки под поднятый кузов специального дополнительного упора, исключающего возможность падения или самопроизвольного опускания кузова.

При ремонте и обслуживании автобусов и грузовых автомобилей рабочие должны быть обеспечены подмостями или лестницами-стремянками. Применять приставные лестницы не разрешается.

Подмости должны быть устойчивыми и иметь поручни и лестницу. Металлические опоры подмостей должны быть надежно связаны между собой.

Доски настила подмостей должны быть уложены без зазоров и надежно закреплены. Концы досок должны находиться на опорах. Толщина досок подмостей должна быть не менее 40 мм.

Переносные деревянные лестницы-стремянки должны иметь врезные ступеньки шириной не менее 150 мм.

Лестница-стремянка должна быть такой длины, чтобы рабочий мог работать со ступеньки, отстоящей от верхнего конца лестницы не менее чем на один метр. Нижние концы лестницы должны иметь наконечники, препятствующие ее скольжению.

Убирать рабочее место от пыли, опилок, стружки, мелких металлических обрезков разрешается только щеткой.

При работе на поворотном стенде (опрокидывателе) необходимо предварительно надежно укреплять автомобиль на нем, слить топливо из топливных баков и жидкость из системы охлаждения и других систем, плотно закрыть маслозаливную горловину двигателя и снять аккумуляторную батарею.

Для снятия и установки деталей, узлов и агрегатов массой 15 кг и более (для женщин - 10 кг и более) необходимо пользоваться подъемно-транспортными механизмами, оборудованными специальными приспособлениями (захватами).

Тележки для транспортирования должны иметь стойки и упоры, предохраняющие агрегаты от падения и самопроизвольного перемещения по платформе.

Перед снятием узлов и агрегатов систем питания, охлаждения и смазки автомобиля, когда возможно вытекание жидкости, необходимо предварительно слить из них топливо, масло и охлаждающую жидкость в специальную тару, не допуская их проливания.

Автомобили-цистерны для перевозки легковоспламеняющихся, взрывоопасных, токсичных и т.п. грузов, а также резервуары для их хранения перед ремонтом необходимо полностью очистить от остатков вышеуказанных продуктов.

Работник, производящий очистку или ремонт внутри цистерны или резервуара из-под этилированного бензина, легковоспламеняющихся и ядовитых жидкостей, должен быть обеспечен спецодеждой, шланговым противогазом, спасательным поясом с веревкой; вне резервуара должен находиться специально проинструктированный помощник.

Шланг противогаза должен быть выведен наружу через люк (лаз) и закреплен с наветренной стороны.

К поясу рабочего внутри резервуара прикрепляется прочная веревка, свободный конец которой должен быть выведен через люк (лаз) наружу и надежно закреплен. Помощник, находящийся наверху, должен наблюдать за работающим, держать за веревку, страхуя работающего в резервуаре.

Ремонтировать топливные баки, заправочные колонки, резервуары, насосы, коммуникации и тару из-под горючих жидкостей можно только после полного удаления их остатков и обезвреживания в соответствии с п. 2.1.9.14 настоящих Правил.

Работы по техническому обслуживанию и ремонту холодильных установок на автомобилях-рефрижераторах должны выполняться специалистами в соответствии с инструкциями завода-изготовителя.

Для перегона автомобилей на посты диагностики, технического обслуживания и ремонта, включая проверку тормозов, должен быть выделен специальный водитель (перегонщик) или другое лицо, назначаемое приказом по В зоне технического обслуживания и ремонта автомобилей запрещается:

протирать автомобиль и мыть агрегаты легковоспламеняющимися жидкостями (бензином, растворителями и т.п.);

хранить легковоспламеняющиеся жидкости и горючие материалы, кислоты, краски, карбид кальция и т.д. в количествах больше сменной потребности;

заправлять автомобили топливом;

хранить чистые обтирочные материалы вместе с использованными;

загромождать проходы между стеллажами и выходы из помещений материалами, оборудованием, тарой, снятыми агрегатами и т.п.;

хранить отработанное масло, порожнюю тару из-под топлива и смазочных материалов.

Разлитое масло или топливо необходимо немедленно удалять с помощью песка или опилок, которые после использования следует ссыпать в металлические ящики с крышками, устанавливаемые вне помещения.

Использованные обтирочные материалы (промасленные концы, ветошь и т.п.) должны немедленно убираться в металлические ящики с плотными крышками, а по окончании рабочего дня удаляться из производственных помещений в специально отведенные места [22].

Настоящие Правила должны соблюдаться и при техническом обслуживании или ремонте, проводимом вне предприятия.

5. Промышленная экология

Вследствие загрязнения среды обитания вредными веществами отработавших газов двигателей внутреннего сгорания зоной экологического бедствия для населения становятся целые регионы, в особенности крупные города. Проблема дальнейшего снижения вредных выбросов двигателей все более обостряется ввиду непрерывного увеличения парка эксплуатируемых автотранспортных средств, уплотнения автотранспортных потоков, нестабильности показателей самих мероприятий по снижению вредных веществ в процессе эксплуатации.

В денежном исчислении величина ежегодного экологического ущерба (загрязнение атмосферы, шум, воздействие на климат) от функционирования автотранспортного комплекса по ряду стран СНГ достигает 2-3% валового национального продукта при общих экологических потерях 10% и затратах на природоохранные мероприятия не более 1% [23].

Основная доля ущерба от автотранспорта (78%) связана с загрязнением атмосферного воздуха выбросами вредных веществ (что во многом объясняется низким качеством отечественных топлив в сравнении с европейскими стандартами), 16% ущерба приходится на последствия шумового воздействия транспорта на население.

Продукты переработки автомобильного топлива становятся причиной смерти европейцев в пять раз чаще, чем дорожно-транспортные происшествия.  Как сообщает "ЭХО-ДВ" со ссылкой на "Новые известия", такие данные привели на днях медики испанского исследовательского центра "Риск". Они подсчитали, что ежегодно от заболеваний, связанных с выхлопными газами, в Европе умирают 225 тыс. человек. В России подобной статистики не ведется. Но экологи и медики сходятся во мнении: у нас жертв выхлопных газов как минимум в 2 раза больше [24].

5.1 Загрязнение атмосферного воздуха выхлопами газа автомобильного транспорта

Принцип работы автомобильных двигателей основан на превращении химической энергии жидких и газообразных топлив нефтяного происхождения в тепловую, а затем - в механическую энергию. Жидкие топлива в основном состоят из углеводородов, газообразные, наряду с углеводородами, содержат негорючие газы, такие как азот и углекислый газ. При сгорании топлива в цилиндрах двигателей образуются нетоксичные (водяной пар, углекислый газ) и токсичные вещества. Последние являются продуктами сгорания или побочных реакций, протекающих при высоких температурах. К ним относятся окись углерода СО, углеводороды CmHn, окислы азота (NO и NO2) обычно обозначаемые NOX. Кроме перечисленных веществ вредное воздействие на организм человека оказывают выделяемые при работе двигателей соединения свинца, канцерогенные вещества, сажа и альдегиды. В таблице 5.1 приведено содержание основных токсичных веществ в отработавших газах бензиновых двигателей [25].

Таблица 5.1

Содержание основных токсичных веществ в отработавших газах бензиновых двигателей

Токсичные вещества

Содержание

 Окись углерода %

до 10,0

 Углеводороды, %

до 3,0

 Окислы азота %

до 0,5

 Альдегиды %

0,03

 Сажа г/м3

до 0,04

 Бенз(а)пирен мкг / м

до 20

 Двуокись серы %

0,008


Основным токсичным компонентом отработавших газов, выделяющихся при работе бензиновых двигателей, является окись углерода. Она образуется при неполном окислении углерода топлива из-за недостатка кислорода во всем объеме цилиндра двигателя или в отдельных его частях.

Основным источником токсичных веществ, выделяющихся при работе дизелей, являются отработавшие газы. Картерные газы дизеля содержат значительно меньшее количество углеводородов по сравнению с бензиновым двигателем в связи с тем, что в дизеле сжимается чистый воздух, а прорвавшиеся в процессе расширения газы содержат небольшое количество углеводородных соединений, являющихся источником загрязнений атмосферы.

Примерное содержание токсичных компонентов в отработавших газах дизеля приведено в таблице 5.2.

Таблица 5.2

Содержание токсичных компонентов в отработавших газах дизеля

Токсичные вещества

Содержание

Окись углерода %

0,2

Углеводороды, %

0,01

Окислы азота %

0,25

Альдегиды %

0,002

Сажа г/м3

0,01 - 1,1

Бенз(а)пирен мкг / м

до 10

 Двуокись серы %

0,03


Загрязнение воздуха автомобильным транспортом происходит в результате сжигания топлива. Химический состав выбросов зависит от вида и качества топлива, технологии производства, способа сжигания в двигателе и его технического состояния.

Наиболее неблагоприятными режимами работы являются малые скорости и "холостой ход" двигателя, когда в атмосферу выбрасываются загрязняющие вещества в количествах, значительно превышающих выброс на нагрузочных режимах. Техническое состояние двигателя непосредственно влияет на экологические показатели выбросов. Отработавшие газы бензинового двигателя с неправильно отрегулированными зажиганием и карбюратором содержат оксид углерода в количестве, превышающем норму в 2-3 раза.

.2 Специфика влияния автомобильного транспорта на окружающую среду

Специфика источников загрязнения (автомобилей) проявляется:

в высоких темпах роста численности автомобилей;

в их пространственной рассредоточенности (автомобили распределяются по территории и создают общий повышенный фон загрязнения);

в непосредственной близости к жилым районам (автомобили заполняют все местные проезды и дворы жилой застройки);

в более высокой токсичности выбросов автотранспорта;

в сложности технической реализации средств защиты от загрязнений на подвижных источниках;

в низком расположении источника загрязнения от земной поверхности, в результате чего отработавшие газы автомобилей скапливаются в зоне дыхания людей (приземном слое) и слабее рассеиваются естественным образом (даже при ветре) по сравнению с промышленными выбросами, которые, как правило, осуществляются через дымовые и вентиляционные трубы значительной высоты.

Перечисленные особенности подвижных источников приводят к тому, что автотранспорт создает в городах обширные зоны с устойчивым превышением санитарно-гигиенических нормативов загрязнения воздуха.

Высокий процент автомобилей с карбюраторными двигателями, наряду с широким применением этилированного бензина на большей части территории России, обусловили загрязнение атмосферы соединениями свинца. Основным загрязнителем здесь является грузовой транспорт: на его долю приходится 54% общей массы выброса свинца.

Загрязнение атмосферы подвижными источниками автотранспорта происходит в большей степени отработавшими газами через выпускную систему двигателя автомобиля, а также, в меньшей степени, картерными газами через систему вентиляции картера двигателя и углеводородными испарениями бензина из системы питания двигателя (бака, карбюратора, фильтров, трубопроводов) при заправке и в процессе эксплуатации.

Отработавшие газы автомобилей с карбюраторными двигателями в числе наиболее токсичных компонентов содержат оксид углерода, оксиды азота и углеводороды, а газы дизелей - оксиды азота, углеводороды, сажу и сернистые соединения. Один автомобиль ежегодно поглощает из атмосферы в среднем более 4 т. кислорода, выбрасывая при этом с отработавшими газами примерно 800 кг угарного газа, 40 кг оксидов азота и почти 200 кг различных углеводородов. Снижению токсичности и нейтрализации отработавших газов уделяется основное внимание, и в этом направлении ведется постоянный поиск эффективных технических решений.

Картерные газы вносят свою долю в загрязнение атмосферного воздуха. Их количество в двигателе возрастает с увеличением износа. Кроме того, оно зависит от условий движения и режимов работы двигателя. На холостом ходу система вентиляции картерных газов, которой снабжены практически все современные двигатели, работает менее эффективно, что ухудшает экологические показатели автомобилей.

Испарения бензина имеют место при работе двигателя и в нерабочем состоянии. Внутренняя полость бензобака автомобиля всегда сообщается с атмосферой для поддержания давления внутри бака на уровне атмосферного по мере выработки бензина, что является необходимым условием нормальной работы всей системы питания двигателя, но в то же время создает условия для испарения легких фракций бензина и загрязнения ими воздуха.

5.3 Меры борьбы с влиянием выхлопных газов

Первоначальная задача выхлопной системы - снижение уровня шума при выходе отработавших газов в атмосферу, обеспечение лучшего наполнения камер сгорания топливовоздушной смесью, отвод выхлопных газов за пределы кузова автомобиля и снижение температуры выхлопных газов, достигающих при выходе из цилиндров двигателя около 900Сo.

Последнее время забившие тревогу экологи стали вводить ограничения на количество выбрасываемых вредных веществ в продуктах сгорания топлива, и к имеющимся задачам выхлопной системы добавилась еще одна - очистка выхлопных газов. Последние требования и превратили простой узел автомобиля в достаточно сложное устройство, за которым необходимо следить и брать во внимание во время эксплуатации автомобиля.

Основными составляющими выхлопной системы на сегодняшний день являются: коллектор, каталитический нейтрализатор (катализатор), лямбда-зонд (кислородный датчик), глушитель и соединительные трубы. Коллектор служит для вывода отработавших газов из цилиндров двигателя и объединения их в один поток. После открытия выпускного клапана, в коллекторе образуется зона пониженного давления, перемещающаяся по трубе до тех пор, пока она не ударится о препятствие, которым служит место соединения труб, и отражается в обратном направлении, в сторону следующего цилиндра. За счет длин труб достигается момент, когда зона пониженного давления оказывается у следующего выпускного клапана в момент его открытия. Такое разряжение позволяет лучшим образом наполнять цилиндр новой топливовоздушной смесью.

Сразу за коллектором располагается каталитический нейтрализатор, в задачи которого входит снижение количества выбрасываемых в атмосферу вредных веществ, образующихся в процессе сгорания топлива, которыми являются окись углерода (CO), углеводороды (CH), образованные в результате неполного сгорания топлива, оксиды азота (NO) и несгоревшие частицы сажи (в дизельных двигателях).

Катализатор представляет собой металлическую конструкцию (нержавеющая сталь) с сотовыми керамическими пластинками внутри, поверхность которых покрыта сплавом, содержащим платину, родий и палладий. Собственно эти металлы и увеличивают стоимость выхлопной системы.

Отработавшие газы из выпускного коллектора поступают в катализатор, в котором, соприкасаясь с поверхностью сот, окись углерода превращается в углекислый газ, углеводороды в воду и углекислый газ, окись азота в воду и азот. Работает катализатор при температуре выхлопных газов от 200Сo до 800Сo. Если температура будет ниже, то процессов окисления не будет, если выше, то оплавится катализаторная решетка, что приводит его в негодность. Также выводят из строя катализатор изношенные двигатели. В таких случаях масло, попадающее и несгорающее в цилиндрах, оседает на керамических поверхностях катализатора. Изношенные или несоответствующие данному двигателю свечи зажигания, которые не обеспечивают полное сгорание топлива, тоже сокращают его продолжительность службы. Кроме того, керамика - хрупкий материал и повреждение катализатора может привести к его разрушению, а повредить его не так уж и сложно, учитывая, что элементы выхлопной системы расположены под днищем автомобиля. Резкое изменение температуры в меньшую сторону (попадание в лужу) также может его погубить.

Именно за счет катализатора производителям двигателей удается соблюдать требуемые экологические нормы. Наличие этого элемента является сегодня обязательным почти во всех странах мира.

Для правильной работы катализатора необходимо чтобы в отработавших газах содержалось определенное количество кислорода, при котором поддерживается рабочая температура каталитического нейтрализатора. Анализирует это лямбда-зонд. Датчик измеряет остаточное количество кислорода в отработавших газах и при помощи компьютера регулируется количество подаваемого топлива для получения оптимальной рабочей смеси. Катализатор в паре с лямбда-зондом позволяют не только уменьшить выброс вредных веществ в атмосферу, но и обеспечивают меньший расход топлива, улучшают эффективность работы двигателя.

При выходе из строя лямбда-зонда, возможны различные пропорции топлива и воздуха в топливовоздушной смеси: обогащенная либо обедненная. И та и другая уничтожают катализатор, первая - за счет большого содержания углеводородов, вторая приводит к его перегреву.

Катализатор и лямбда-зонд очень чувствительны к качеству топлива. Заливать в топливные баки автомобилей, в выхлопной системе которых находится катализатор необходимо исключительно неэтилированный бензин. Пагубно влияет на них свинец, содержащийся в бензине, накапливающийся на стенках керамического покрытия. Кроме того, для увеличения продолжительности срока службы этих элементов лучше не применять присадки к топливу и моторному маслу, если в них содержится все тот же свинец.

На дизельных двигателях очистка отработанных газов производится нерегулируемым окислительным катализатором. Уменьшение содержащихся вредных веществ в таких моторах достигается за счет системы повторного сжигания выхлопных газов. При помощи специального клапана, установленного в выхлопной системе на прогретом двигателе часть отработанных газов направляется в цилиндры двигателя, в результате чего уменьшается процент окисей азота в выбрасываемых в атмосферу газах. Каталитические нейтрализаторы кроме всего, способствуют снижению шума.  Сгорание топливовоздушной смести носит взрывной характер, что сопровождается характерным звуком. Для борьбы с этим в системе выпуска отработавших газов устанавливается глушитель. В зависимости от способов работы, глушители делятся на четыре типа: резонатор, отражатель, ограничитель и поглотитель.

Резонатор, как правило, располагается сразу за каталитическим нейтрализатором, и по своей сути является предварительным глушителем. Конструктивно он представляет собой перфорированную трубу и окружающую ее камеру. Чаще всего резонаторы включают в себя несколько камер различного размера и служат для гашения низкочастотных шумов.

Ограничитель является трубой в корпусе глушителя, диаметр которой сначала значительно сужается, создавая акустическое сопротивление потоку, за которым следует полость большого объема, сглаживающая колебания. Звуковая энергия рассеивается в отверстии, нагревая газ. Чем больше сопротивление, то есть меньше отверстие, тем лучше эффективность сглаживания. Существенным минусом такого глушителя является большое сопротивление потоку.

Чаще всего замыкает выхлопную систему отражатель. В его корпусе находится большое количество стенок, играющих роль акустических зеркал. Каждое отражение звука от которых - это частичная потеря энергии, затрачиваемая на нагрев зеркал. В итоге внутри глушителя энергия звуковых волн переходит в тепловую и рассеивается в атмосферу.

Поглотитель гасит акустические волны за счет пористого материала, расположенного в нем. Принцип тот же, что и у отражателя. Энергия звуковых колебаний преобразуется в тепловую за счет трения волокон стекловолокна, колеблющихся под действием звуковой энергии. Как правило, сегодня производители используют все перечисленные методы для создания системы выпуска отработавших газов.

Заключение

В первой главе дипломного проекта дана общая характеристика АТП и эксплуатируемого им подвижного состава, а также представлен анализ работы предприятия. Анализ показал, что имеет место устойчивая тенденция ухудшения ряда важнейших показателей работы. Так за последние три года объем перевозок снизился на 30%, в то время, как численность ПС уменьшилась лишь на 15%. Коэффициент выпуска ПС на линию уменьшился на 11%, а падение коэффициента технической готовности составило 9%.

Были установлены причины наличия столь нежелательной тенденции:

·        существенный износ парка ПС;

·        недостаточная степень механизации процессов ТО и ТР;

·        устаревшее технологическое оборудование;

·        несоответствие параметров системы ТО и ТР существующему состоянию транспортной техники и условиям эксплуатации;

·        снижение образовательного ценза и уровня профессиональной компетенции ремонтных рабочих.

Очевидное предложение - провести технологическое перепроектирование автопредприятия. Именно такое перепроектирование выполнено во второй главе дипломного проекта. Оно включало определение периодов технического обслуживания подвижного состава, структуру и численность персонала, величину площадей производственных помещений и т.д.;

Третья глава (специальная часть) дипломного проекта посвящена прогнозированию остаточного ресурса деталей цилиндро-поршневой группы двигателя автомобиля КамАЗ. В рамках этой темы выполнено следующее:

·        получен экспериментальный закон распределения ресурса детали ЦПГ с проверкой согласия между эмпирическим и теоретическим (нормальным) законами распределения по критерию χ2 Пирсона;

·        построена кривая безотказной работы детали в зависимости от наработки;

·        произведен расчет параметров распределения ресурсов детали по корреляционным уравнениям долговечности, являющийся важным звеном в процессе прогнозирования ресурсной долговечности в условиях ускоренных испытаний;

·        построены графики верхней и нижней границ изменения структурного параметра (площади в замке компрессорного кольца) в зависимости от наработки и произведена оценка наработки до первого ресурсного диагностирования (418 тыс. км):

·        произведено прогнозирование остаточного ресурса детали ЦПГ на основе результатов диагностирования, в результате которого установлен пробег до повторного диагностирования. Он составляет 42,4 тыс. км.

Список использованной литературы

1. Сайт <http://www.autoussr.ru/auto.php?nom=87>

. Техническая эксплуатация автомобилей: Учебник для вузов. - Под ред. Крамаренко Г.В. - М.: Транспорт, 1983. - 488 с.

. ОНТП-01-91. Общесоюзные нормы технологического проектирования предприятий автомобильного транспорта - М.: Гипроавтотранс, 1991. - 184 с.

. Напольский Г.М. Технологическое проектирование автотранспортных предприятий и станций технического обслуживания: Учебник для вузов. - М.: Транспорт, 1993. - 271 c.

. Проектирование предприятий автомобильного транспорта: Конспект лекций / В.И. Пархоменко, Павлодар, 2007. - 147 с.

. Положение о техническом обслуживании и ремонте подвижного состава автомобильного транспорта. - М.: Транспорт, 1986. - 73 с.

. Клебанов Б.В. Проектирование производственных участков авторемонтных предприятий. - М.: Транспорт, 1983

. СНиП II-92-76 Вспомогательные здания и помещения промышленных предприятий. - М. Стройиздат, 1977. - 32 с.

. Техническое обслуживание, ремонт и хранение автотранспортных средств: Учебник: В 3 кн. - К.: Выща шк., 1991. - Кн. 1. Теоретические основы. Технология / Канарчук В.Е., Лудченко А.А., Курнеков И.П., Луйк И.А. - 359с.

. Дмитриенко В.М. Технологические процессы технического обслуживания, ремонта и диагностирования подвижного состава автотранспортных средств: в 2 ч. - Пермь: Изд-во Пермского ГТУ, 2002. - Ч. 1. - 160 с; Ч. 2. - 102 с.

. Табель технологического оборудования и специализированного инструмента для АТП, АТО и БЦТО.- М.: ЦБНТИ, 1983. - 98 с.

. Гмурман В.Е. Теория вероятностей и математическая статистика. - М: Высшая школа, 2003

. Севастьянов Б.А. Курс теории вероятностей и математической статистики. - М.: Наука, 1982

. Проников А.С. Надежность машин. - М.: Машиностроение, 1978. - 592 с.

. Малкин В.С. Техническая эксплуатация автомобилей: Теоретические и практические аспекты. - М.: Издательский центр "Академия", 2007. - 288 с.

. Вахлмов В.К. Автомобили: Теория и конструкция автомобиля и двигателя. - M.:  <http://www.kupit-knigu.biz/knigi/i24605m3.html>Издательство Академия, 2007 г.

. Гришкевич А.И. Автомобили: Теория: Учебник для вузов. - Мн.: Высш. шк., 1986. - 208 с.

. Хазов Б.Ф., Дидусев Б.А. Справочник по расчету надежности машин на стадии проектирования. - М.: Машиностроение, 1986. - 242 с.

. Сидоров В.И. Техническая диагностика. - М.: Изд-во МАДИ, 1993. - 113с.

. Салов А.И. Охрана труда на предприятиях автомобильного транспорта. - М.: Транспорт, 1985. - 281 с.

. Типовые инструкции по охране труда для основных профессий и видов работ на автомобильном транспорте. - Алматы: Товарищество специалистов охраны труда Республики Казахстан, 2003. - 159 с.

. Правила пожарной безопасности в Республике Казахстан. - Алматы, 2006. - 184 с.

. Казанцева Л.К., Тагаева Т.О. Современная экологическая ситуация в России // ЭКО. - 2005. - №9. - С. 30-45

. Петрунин В.В. Плата за негативное воздействие на окружающую среду в 2006 году // Финансы. - 2006. - №4. - С. 25-30.

. Коробкин В.И. Экология. - М., 2006. - 465 с.

Похожие работы на - Проектирование автотранспортного предприятия на 120 грузовых автомобилей

 

Не нашли материал для своей работы?
Поможем написать уникальную работу
Без плагиата!
Без нейросетей!