Проектирование локальной вычислительной сети учреждения

  • Вид работы:
    Курсовая работа (т)
  • Предмет:
    Информационное обеспечение, программирование
  • Язык:
    Русский
    ,
    Формат файла:
    MS Word
    1,16 Мб
  • Опубликовано:
    2016-04-14
Вы можете узнать стоимость помощи в написании студенческой работы.
Помощь в написании работы, которую точно примут!

Проектирование локальной вычислительной сети учреждения

СОДЕРЖАНИЕ

ВВЕДЕНИЕ

. Технология Подключения оборудования к локальной вычислительной сети учреждения

.1 Подключение рабочих станций к локальной вычислительной сети по стандарту IEEE 802.3 10/100 BASET

.2 Подключение серверного оборудования к вычислительной сети по стандарту по стандарту GigabitEthernet IEEE 802.3 1000 BASE X

. ИСПОЛЬЗУЕМОЕ ОБОРУДОВАНИЕ

.1 Компания 3COM

.2 Расчет показателей оборудования

. РАСЧЁТ IP-АДРЕСОВ, ДЛИН ВИТЫХ ПАР И КОЛИЧЕСТВА РАЗЪЁМОВ RJ-45

.1 Ip-адрес

.2 Формирование подсетей

.3 Присваивание IP-адресов и длин витых пар

.4 Расчёт длины витой пары, затраченной на реализацию сети и количества разъёмов RJ-45

. Построение топологии локальной вычислительной сети учреждения

.1 Схема прокладки кабельных трасс 1-го этажа

.2 Схема прокладки кабельных трасс 2-го этажа

.3 Схема организации связи

. РАСЧЕТ МАТЕРИАЛЬНЫХ ЗАТРАТ

.1 Проектная цена создания и реализации ЛВС

. Охрана труда

.1 Техника безопасности при работе с электроприборами

.2 Техника безопасности при прокладке кабельных трасс

ЗАКЛЮЧЕНИЕ

СПИСОК ЛИТЕРАТУРЫ

ВВЕДЕНИЕ

Локальные сети предназначены для реализации таких прикладных функций, как передача файлов, электронная графика, обработка текстов, электронная почта, доступ к удаленным базам данных, передача цифровой речи. Локальные сети объединяют ЭВМ, терминалы, устройства хранения информации, переходные узлы для подключения к другим сетям и др. Локальные сети составляют один из быстроразвивающихся секторов промышленной средств связи, локальную сеть часто называют сетью для автоматизированного учреждения. Локальная сеть представляет собой канал и протоколы обмена данными для связи рабочих станций и ЭВМ.

В производственной практике ЛВС играют очень большую роль. Посредством ЛВС в систему объединяются персональные компьютеры, расположенные на многих удаленных рабочих местах, которые используют совместно оборудование, программные средства и информацию. Рабочие места сотрудников перестают быть изолированными и объединяются в единую систему. В такой внутрипроизводственной организации есть ряд преимуществ:

разделение ресурсов позволяет экономно использовать ресурсы, например, управлять периферийными устройствами, такими как лазерные печатающие устройства, со всех присоединенных рабочих станций;

разделение данных предоставляет возможность доступа и управления базами данных с периферийных рабочих мест, нуждающихся в информации;

разделение программных средств, предоставляет возможность одновременного использования централизованных, ранее установленных программных средств.

1. Технология Подключения оборудования к локальной вычислительной сети учереждения

.1 Подключение рабочих станций к локальной вычислительной сети по стандарту IEEE 802.3 10/100 BASET

Base-T - появилась в 1990 г. на базе стандарта IEEE 802.3. Предназначена для построения сети на базе витой пары. Большинство сетей строится в виде звезды, но по способу передачи сигнала - шина.

Используемый концентратор - многопортовый повторитель. Количество портов может быть до 32-х.

Для подключения узла к повторителю используются 2 пары проводов: одна для приема, другая - для передачи. Подключение узла к повторителю выполняется с помощью сегмента кабеля длиной не более 100 м. Минимальная длина кабеля - 2,5 м. Хаб подключается к сети питания и должен находиться возле розетки. Хабы объединяются, подключаясь друг к другу через RJ-45 и получая каскадную структуру.

Правила подключения должны быть следующими:

Не должно быть закольцованных путей

Между любыми двумя узлами должно быть не более 4-х хабов.

BASE-T - общий термин для обозначения стандартов, использующих в качестве среды передачи данных витую пару. Длина сегмента до 100 метров. Включает в себя стандарты 100BASE-TX, 100BASE-T4 и 100BASE-T2.

BASE-TX, IEEE 802.3u - развитие стандарта 10BASE-T для использования в сетях топологии «звезда». Задействована витая пара категории 5, фактически используются только две неэкранированные пары проводников, поддерживается дуплексная передача данных, расстояние до 100 м.

BASE-T4 - стандарт, использующий витую пару категории 3. Задействованы все четыре пары проводников, передача данных идёт в полудуплексе. Практически не используется.

BASE-T2 - стандарт, использующий витую пару категории 3. Задействованы только две пары проводников. Поддерживается полный дуплекс, когда сигналы распространяются в противоположных направлениях по каждой паре. Скорость передачи в одном направлении - 50 Мбит/с. Практически не используется.

1.2 Подключение серверного оборудования к вычислительной сети по стандарту GigabitEthernet IEEE 802.3 1000 BASE X

BASE-T, IEEE 802.3 - стандарт, использующий витую пару категорий 5e. В передаче данных участвуют 4 пары. Скорость передачи данных - 250 Мбит/с по одной паре. Используется метод кодирования PAM5, частота основной гармоники 62,5 МГц. Расстояние до 100 метров

BASE-TX был создан Ассоциацией Телекоммуникационной Промышленности (англ. TelecommunicationsIndustryAssociation, TIA) и опубликован в марте 2001 года как «Спецификация физического уровнядуплексного Ethernet 1000 Мб/с (1000BASE-TX) симметричных кабельных систем категории 6(ANSI/TIA/EIA-854-2001)» (англ. «A Full Duplex Ethernet Specification for 1000 Mbis/s (1000BASE-TX)Operating Over Category 6 Balanced Twisted-Pair Cabling (ANSI/TIA/EIA-854-2001)»).Стандарт, использует раздельную приёмо-передачу (по одной паре в каждом направлении), что существенно упрощает конструкциюприёмопередающих устройств. Ещё одним существенным отличием 1000BASE-TX является отсутствие схемыцифровой компенсации наводок и возвратных помех, в результате чего сложность, уровень энергопотребления и цена процессоров становится ниже, чем у процессоров стандарта 1000BASE-T. Но, как следствие, для стабильной работы по такой технологии требуется кабельная система высокого качества, поэтому 1000BASE-TX может использовать только кабель 6 категории. На основе данного стандарта практически не было создано продуктов, хотя 1000BASE-TX использует более простой протокол, чем стандарт 1000BASE-T, и поэтому может использовать более простую электронику.

BASE-X - общий термин для обозначения стандартов со сменными приёмопередатчиками GBIC или SFP.

BASE-SX, IEEE 802.3z - стандарт, использующий многомодовое волокно. Дальность прохождения сигнала без повторителя до 550 метров.

BASE-LX, IEEE 802.3z - стандарт, использующий одномодовое волокно. Дальность прохождения сигнала без повторителя до 5 километров.

BASE-CX - стандарт для коротких расстояний (до 25 метров), использующий твинаксиальный кабель с волновым сопротивлением 75 Ом (каждый из двух волноводов). Заменён стандартом 1000BASE-T и сейчас не используется.

BASE-CX - стандарт для коротких расстояний (до 25 метров), использующий твинаксиальный кабель с волновым сопротивлением 75 Ом (каждый из двух волноводов). Заменён стандартом 1000BASE-T и сейчас не используется.

BASE-LH (LongHaul) - стандарт, использующий одномодовое волокно. Дальность прохождения сигнала без повторителя до 100 километров.

. ИСПОЛЬЗУЕМОЕ ОБОРУДОВАНИЕ

.1 Компания 3COM

Корпорация 3Com является ведущим поставщиком передовых, практичных и высокоэффективных продуктов, услуг и решений для создания защищенных конвергентных сетей, предназначенных для компаний любых масштабов и организаций государственного сектора.

Компания 3Com обладает мощным портфелем интеллектуальной собственности и ведет свою деятельность по всему миру, ее финансовое положение устойчиво, а торговая марка широко признана. Компания имеет стратегических партнеров мирового уровня, предлагает один из самых широких в отрасли ассортиментов продукции, реализуемой через один из самых широких каналов дистрибуции. Компания 3Com продолжает определять способ построения сетей, основанный на первоклассных конструкторских разработках и использовании стандартов, что позволяет упростить организацию сети при более эффективном применении запатентованных систем и снижении стоимости владения. 3Com предоставляет своим заказчикам решения с использованием основных продуктовых линеек: коммутаторов для рабочих групп и ядра сети, маршрутизаторов различного масштаба, беспроводных коммутаторов и точек доступа, ADSL-маршрутизаторов, решений с поддержкой IP-телефонии для средних и крупных корпоративных заказчиков и решений для обеспечения безопасности сети, основой которых стали продукты подразделения 3Com TippingPoint.

Компанию основал в 1979 году Боб Меткалф (BobMetcalfe), изобретатель технологии Ethernet. Название компании 3Com образовано от трех слов: computer, communications и compatibility (компьютер, коммуникации, совместимость).

.2     
Расчет показателей оборудования

Пассивное сетевое оборудование, используемое в проектируемой сети, приведено в таблицах 2.2.1, 2.2.2, 2.2.3, 2.2.4.

Таблица 2.2.1 - Кабель UTP, AWG Hyperline UTP4-C5E-SOLID-GY

Сечение:

0.51 мм

Материал:

Медь

Количество жил:

Одножильный

Цена

20 рублей


Таблица 2.2.2 - Компьютерный разъем «REXANT RJ-45 CAT 5e»

Материалы:

Корпус:

Ножи контакта:

сплав меди с золотым напылением

Экран:

сплав меди, покрытие - никель


Таблица 2.2.3 - Розетка сетевая (LAN)

ТипРозетки Ethernet


Количество портов

1 порт

Тип портов

RJ-45


Таблица 2.2.4 - Патч-корд RJ45 - RJ45, 5е, 1 м, серый, NEOMAX

Материал внешней оболочки:

PVC (ПВХ - поливинилхлорид)

Назначение:

Для прокладки в помещениях

Экранирование:

UTP (без экрана)


Активное сетевое оборудование, используемое в проектируемой сети, приведено в таблице 2.2.5

Таблица 2.2.5 - Характеристики активного сетевого оборудования

Устройства Характеристики

HP MSR900

3COM Switch 4200G

3COMBaselineSwitch 2948-SFPPlus

Тип устройства

маршрутизатор (router)

коммутатор (switch)

коммутатор (switch)

Количествопортов

4

12

48

Базоваяскоростьпередачиданных

10/100 Мбит/сек

10/100/1000 Мбит/сек

10/100/1000 Мбит/сек

Поддержка IPv6

Да

Да

Да

Консольныйпорт

Нет

Да

Да

Web-интерфейс

да

Да

Да

Средняя цена, рублей

28 310

49 360

42 888



. РАСЧЁТ IP-АДРЕСОВ, ДЛИН ВИТЫХ ПАР И КОЛИЧЕСТВА РАЗЪЁМОВ RJ-45

3.1 Ip-Адрес

локальный вычислительный стандарт топология

IP-адрес (aй-пи адрес, сокращение от англ.InternetProtocolAddress) - уникальный идентификатор (адрес) устройства (обычно компьютера), подключённого к локальной сети или интернету.адрес представляет собой 32-битовое (по версии IPv4) или 128-битовое (по версии IPv6) двоичное число. Удобной формой записи IP-адреса (IPv4) является запись в виде четырёх десятичных чисел (от 0 до 255), разделённых точками, например, 192.168.0.1. (или 128.10.2.30 - традиционная десятичная форма представления адреса, а 10000000 00001010 00000010 00011110 - двоичная форма представления этого же адреса).адрес состоит из двух частей: номера сети и номера узла. В случае изолированной сети её адрес может быть выбран администратором из специально зарезервированных для таких сетей блоков адресов (192.168.0.0/16, 172.16.0.0/12 или 10.0.0.0/8). Если же сеть должна работать как составная часть Интернета, то адрес сети выдаётся провайдером либо региональныминтернет-регистратором (RegionalInternetRegistry, RIR). Всего существует пять RIR: ARIN, обслуживающий Северную Америку; APNIC, обслуживающий страны Юго-Восточной Азии; AfriNIC, обслуживающий страны Африки; LACNIC, обслуживающий страны Южной Америки и бассейна Карибского моря; и RIPE NCC, обслуживающий Европу, Центральную Азию, Ближний Восток. Региональные регистраторы получают номера автономных систем и большие блоки адресов у ICANN, а затем выдают номера автономных систем и блоки адресов меньшего размера локальным интернет-регистраторам (LocalInternetRegistries, LIR), обычно являющимся крупными провайдерами.

Какая часть адреса относится к номеру сети, а какая к номеру узла, определяется значениями первых бит адреса. Значения этих бит являются также признаками того, к какому классу относится тот или иной IP-адрес.

На рисунке 3.1.1 показана структура IP-адреса разных классов.

Рисунок 3.1.1 - Структура IP-адреса разных классов

3.2 Формирование подсетей

С помощью подсетей одну сеть можно разделить на несколько. Ниже мною будет выделено 3 подсети (количество подсетей было выбрано исходя из условий технического задания).

Формула расчета количества подсетей:

                                                    (1)

где n-количество занятых бит от порции хоста.

Формула расчета количества хостов:

                                               (2)

где i = количество свободных бит в порции хоста.

У нас есть адрес сети 205.100.1.0 /26, нам надо разделить имеющуюся сеть на 3 подсети.

/26 - префикс сети или сетевая маска

В формате двоичных чисел 11111111 11111111 11111111 11000000

В четвертом поле (последний октет)11000000 первые 2 бита определяют число подсетей по формуле (1), в нашем случае.

В четвертом поле (последний октет) 11000000 последние 6 бит определяют число хостов подсети по формуле (2), в нашем случае .

Таким образом, я получаю 4 подсети

Таблица 3.2.1 - 4 подсети

№ подсети

Десятичный вид

1

205.100.1.0

2

205.100.1.64

3

205.100.1.128

4

205.100.1.192 (резервная)


Таким образом, мы разбили нашу сеть на 3 подсети и одна подсеть у нас будут резервной.

Теперь наша сеть включает в себя 4 подсети.

3.3 Присваивание IP-адресов и длин витых пар

В таблице 3.3.1 показаны IP- адреса присвоенные каждой рабочей станции и расписано, сколько метров кабеля UTPпотребуется для подключения отдельного ПК.

Таблица 3.3.1 - Присваивание IP-адресов и длин витых пар

№ этажа

№ кабинета

Количество компьютеров

Длина витой пары, м

№ подсети

IP - адреса (длина витой пары, м)

2

44

1

-

1

1- 205.100.1.1 (4)


2

29

5

85

1

1- 205.100.1.2 (8) 2- 205.100.1.3 (10) 3- 205.100.1.4 (12)

4- 205.100.1.5 (14) 5- 205.100.1.6 (16)

2

52

4

55

1

1- 205.100.1.7 (8) 2- 205.100.1.8 (10) 3- 205.100.1.9 (12)

4- 205.100.1.10 (14) 5- 205.100.1.11 (16)

2

46

5

20

1

1- 205.100.1.12 (8) 2- 205.100.1.13 (10) 3- 205.100.1.14 (12)

4- 205.100.1.15 (14) 5- 205.100.1.16 (16)

1

48

5

40

1

1- 205.100.1.17 (8) 2- 205.100.1.18 (10) 3- 205.100.1.19 (12)

4- 205.100.1.20 (14) 5- 205.100.1.21 (16)

1

17

1

-

1

1- 205.100.1.22 (50)


1

53

4

95

1

3- 205.100.1.25 (12) 4- 205.100.1.26 (14)

1

45

25

45

2

1- 205.100.1.65 (8) 2- 205.100.1.66 (10) 3- 205.100.1.67 (12) 4- 205.100.1.68 (14) 5- 205.100.1.69 (16) 6- 205.100.1.70 (18) 7- 205.100.1.71 (20) 8- 205.100.1.72 (22) 9- 205.100.1.73 (24) 10- 205.100.1.74 (26) 11- 205.100.1.75 (28) 12- 205.100.1.76 (30) 13- 205.100.1.77 (32)

14- 205.100.1.78 (34) 15- 205.100.1.79 (36) 16- 205.100.1.80 (38) 17- 205.100.1.81 (40) 18- 205.100.1.82 (42) 19- 205.100.1.83 (44) 20- 205.100.1.84 (46) 21- 205.100.1.85 (48) 22- 205.100.1.86 (50) 23- 205.100.1.87 (52) 24- 205.100.1.88 (54) 25- 205.100.1.89 (56)

1

32

50

90

3

1- 205.100.1.129 (6) 2- 205.100.1.130 (8) 3- 205.100.1.131 (10) 4- 205.100.1.132 (12) 5- 205.100.1.133 (14) 6- 205.100.1.134 (16) 7- 205.100.1.135 (18) 8- 205.100.1.136 (20) 9- 205.100.1.137 (22) 10- 205.100.1.138 (24) 11- 205.100.1.139 (26) 12- 205.100.1.140 (28) 13- 205.100.1.141 (30) 14- 205.100.1.142 (32) 15- 205.100.1.143 (34) 16- 205.100.1.144 (36) 17- 205.100.1.145 (38) 18- 205.100.1.146 (40) 19- 205.100.1.147 (42) 20- 205.100.1.148 (44) 21- 205.100.1.149 (46) 22- 205.100.1.150 (48) 23- 205.100.1.151 (50) 24- 205.100.1.152 (52) 25- 205.100.1.153 (54)

26- 205.100.1.154 (10) 27- 205.100.1.155 (12) 28- 205.100.1.156 (14) 29- 205.100.1.157 (16) 30- 205.100.1.158 (18) 31- 205.100.1.159 (20) 32- 205.100.1.160 (22) 33- 205.100.1.161 (24) 34- 205.100.1.162 (26) 35- 205.100.1.163 (28) 36- 205.100.1.164 (30) 37- 205.100.1.165 (32) 38- 205.100.1.166 (34) 39- 205.100.1.167 (36) 40- 205.100.1.168 (38) 41- 205.100.1.169 (40) 42- 205.100.1.170 (42) 43- 205.100.1.171 (44) 44- 205.100.1.172 (46) 45- 205.100.1.173 (48) 46- 205.100.1.174 (50) 47- 205.100.1.175 (52) 48- 205.100.1.176 (54) 49- 205.100.1.177 (56) 50- 205.100.1.178 (58)


3.4 Расчёт длины витой пары, затраченной на реализацию сети и количества разъёмовRJ-45

Для расчета длины витой пары, затраченной на реализацию сети, нужно:

1.      Рассчитать общую длину витых пар, прокладываемых до кабинетов;

2.      Рассчитать общую длину витых пар, прокладываемых в кабинетах к рабочим станциям;

.        Рассчитать общую длину витых пар.

Таблица 3.4.1 - Общая длина витых пар, прокладываемых от сервера (2 этаж, 44 кабинет) до кабинетов

Этаж

№ кабинета

Длина (м)

2

29

85

2

52

55

2

46

20

1

48

40

1

53

95

1

45

45

1

32

90

ИТОГО: 430 метров


Таблица 3.4.2 - Общая длина витых пар, прокладываемых в кабинетах, от коммутатора к рабочим станциям

Этаж

№ кабинета

Длина (м)

2

29

60

2

52

60

2

46

60

2

44

4

1

48

60

1

53

44

1

45

1

32

1600

1

17

50

ИТОГО: 2 714 метров


Общая длина витых пар: 430 + 2 714 = 3 144 метра

Количества разъёмов RJ-45 - 150 шт.

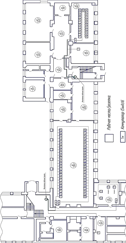
4. Построение топологии локальной вычислительной сети учереждения

.1 Схема прокладки кабельных трасс 1-го этажа

На рисунке 4.1 показана часть плана первого этажа вычислительного центра ОАО «РЖД», в котором мною схематично размещено активное и пассивное оборудование, а именно:

-     Коммутаторы (Switch).

2-      Рабочее место/ LANрозетка. Места расположения рабочих мест и их количество описано в таблице 3.3.1 - присвоение IP-адресов и длин витых пар.

-        Кабельная магистраль, проходящая от серверного кабинета, расположенного на 2 этаже в кабинете № 44, через межэтажные кабельные туннели, которые расположены на лестничных площадках.

-        Кабельная магистраль проходящая в кабинетах, от коммутатора до рабочих мест/ LANрозеток.

Рисунок 4.1 - Схема прокладки кабельных трасс 1 - го этажа

.2 Схема прокладки кабельных трасс 2-го этажа

На рисунке 4.2 показана часть плана второго этажа вычислительного центра ОАО «РЖД», в котором мною схематично размещено активное и пассивное оборудование, а именно:

1-   Маршрутизатор (Router). Расположен в серверном кабинете.

2-      Коммутаторы (Switch).

-        Рабочее место/ LANрозетка. Места расположения рабочих мест и их количество описано в таблице 3.3.1 - присвоение IP-адресов и длин витых пар.

-        Кабельная магистраль, проходящая от серверного кабинета, до кабинетов второго этажа.

-        Кабельная магистраль, проходящая в кабинетах, от коммутатора до рабочих мест/ LANрозеток.

Рисунок 4.2 - Схема прокладки кабельных трасс 2 - го этажа

4.3 Схема организации связи

На рисунке 4.3 размещена схема организации связи. На котором показано:

1-      соединение активного оборудования;

2-      распределение портов коммутаторов;

-        длина кабелей, проходящих по кабельной магистрали в коридорах.

5. РАСЧЕТ МАТЕРИАЛЬНЫХ ЗАТРАТ

5.1 Проектная цена создания и реализации ЛВС

Рисунок 4.3 - Схема организации связи

Таблица 5.1.1 - Проектная цена

Оборудование

Цена, руб.

Единица измерения

Количество

Сумма, руб.

1

Кабель UTP, AWG Hyperline UTP4-C5E-SOLID-GY

20

м.

3 144

62 880

2

Компьютерный разъем «REXANT RJ-45 CAT 5e»

6

шт.

150

900

3

Розетка сетевая (LAN)

130

шт.

101

13 130

4

Патч-корд RJ45 - RJ45, 5е, 1 м, серый, NEOMAX

60

шт.

101

6 060

5

Маршрутизатор HP MSR900

28 310

1

28 310

6

Коммутатор 3COM Switch 4200G

49 360

шт.

7

345 520

7

Коммутатор 3COMBaselineSwitch 2948-SFPPlus

42 888

шт.

2

85 776

ИТОГО: 542 576 рублей



6. Охрана труда

.1 Техника безопасности при работе с электроприборами

Исключительно важное значение для предотвращения электрического травматизма имеет правильная организация обслуживания действующих электрических установок, установленная "Правилами технической эксплуатации электроустановок потребителей" (ПТЭ) и "Правилами устройства электроустановок" (ПУЭ). Помещения, где находятся рабочие места операторов, относятся к категории помещений без повышенной опасности, оборудование относится к классу до 1000 В.

Опасность поражения электрическим током существует всегда, если имеется контакт с устройством, питаемым напряжением 36 В и выше, тем более от электрической сети 220 В. Это может произойти по оплошности в случае прикосновения к открытым токоведущим частям, но чаще всего по различным причинам (перегрузки, не совсем качественная изоляция, механические повреждения). В процессе эксплуатации может ухудшиться изоляция токоведущих частей, в том числе шнуров питания, в результате чего они могут оказаться под напряжением, и случайное прикосновение к ним чревато электротравмой, а в тяжелых случаях - и гибелью человека. Зоной повышенной электроопасности являются места подключения электроприборов и установок.

Для предотвращения поражений электрическим током при работе с компьютером следует установить дополнительные оградительные устройства, обеспечивающие недоступность токоведущих частей для прикосновения; с целью уменьшения опасности можно использовать разделительный трансформатор для развязки с основной сетью, и обязательным во всех случаях является наличие защитного заземления или зануления (защитного отключения) электрооборудования. Для качественной работы компьютеров создается отдельный заземляющий контур.

Для защиты компьютеров от некачественного электропитания (повышенного или пониженного напряжения, провалов и бросков напряжения), являющегося основной причиной сбоев электроники во время работы (зависания, ошибки при записи или чтении диска), в настоящее время применяют источники бесперебойного питания (ИБП).

6.2 Техника безопасности при прокладке кабельных трасс

Надежность ЛВС должна определяться составляющими ее компонентами, к которым относятся: кабель, разъёмы и устройства сопряжения, коммутационные панели. Для повышения надежности ЛВС должны быть приняты следующие меры:

кабели должны прокладываться в коробах - т.е. в труднодоступных для пользователей местах;

для подключения компьютеров и другого оборудования должны использоваться сменные, легкозаменяемые терминальные шнуры.

В помещениях имеющих подвесные потолки кабель прокладывается за панелями. Монтаж коробов должен осуществляться на высоте 10 см ниже уровня потолка, а в помещениях - на высоте не менее 30 см от уровня чистого пола (информационные розетки должны быть расположены ниже уровня рабочей поверхности столов), в помещениях имеющих подвесные потолки или сегмент рабочей локальной сети, схема монтажа коробов может быть изменена.

Если пробиваются или сверлятся сквозные отверстия в стенах и перекрытиях, а по другую сторону пробиваемого отверстия могут находиться или проходить люди, то специально выделенный работник должен предупреждать их об опасности.

При штроблении и пробивке стен необходимо строго следить за тем, чтобы не повредить инструментом скрытой в стене электропроводки и не подвергнуться тем самым опасности поражения электрическим током.

Выполняя эти работы, следует пользоваться предохранительными очками с небьющимися стеклами и рукавицами.

Запрещается сверлить сквозные отверстия в стенах и междуэтажных перекрытиях с приставных и раздвижных лестниц, натягивать горизонтально расположенные провода сечением более 4 мм2, ходить по смонтированным коробам, лоткам, трубам и т. п.

Затяжку проводов и кабелей в трубы производят после удаления заусенцев на трубах: вручную при небольших усилиях натяжения, а при тяжелых условиях, когда усилия одного человека недостаточно, - ручной или электрической лебедкой или специальным приспособлением.

Захват провода или кабеля должен быть надежным, исключающим обрыв при натяжении.

От электромонтажника, подающего провод или кабель в трубы, требуется особая осторожность, чтобы не затянуть руку в трубу вместе с проводом или кабелем. Затяжку проводов и кабелей на высоте нельзя проводить стоя на приставной или раздвижной лестнице, для этого пользуются лесами или специальными настилами.

На каждую систему безопасности должна быть утвержденная проектная документация или акт приемки ее в эксплуатацию, паспорта на оборудование, аппаратуру и приборы, исполнительные схемы электрических соединений, блокировок, размещения оборудования.

ЗАКЛЮЧЕНИЕ

Основное содержание данной курсовой работы -проектирование и построение локальной вычислительной сети учреждения. Достигнуты цели работы, а именно:

создана локальная вычислительная сеть с размещением рабочих мест

Таблица 7.1 -

Похожие работы на - Проектирование локальной вычислительной сети учреждения

 

Не нашли материал для своей работы?
Поможем написать уникальную работу
Без плагиата!
Без нейросетей!