Проектирование локальной вычислительной сети для ГАОУ СПО СО ПФ УРТК им. А.С. Попова

  • Вид работы:
    Дипломная (ВКР)
  • Предмет:
    Информационное обеспечение, программирование
  • Язык:
    Русский
    ,
    Формат файла:
    MS Word
    3,11 Мб
  • Опубликовано:
    2014-09-11
Вы можете узнать стоимость помощи в написании студенческой работы.
Помощь в написании работы, которую точно примут!

Проектирование локальной вычислительной сети для ГАОУ СПО СО ПФ УРТК им. А.С. Попова

Министерство образования и науки Российской Федерации

ФГАОУ ВПО «Уральский федеральный университет имени первого Президента России Б. Н. Ельцина»

Радиотехнический институт - РТФ

Кафедра радиоэлектроники информационных систем





ВЫПУСКНАЯ КВАЛИФИКАЦИОННАЯ РАБОТА

Проектирование локальной вычислительной сети для ГАОУ СПО СО ПФ УРТК им. А.С. Попова


Пояснительная записка

600408с 105 (ИСТ)

Руководитель В.Ф. Кочкина

Консультант С.А. Грицук

Консультант М.Д. Комаров

Нормоконтролер В.Ф. Кочкина

Студент Д.В. Кузнецов


Екатеринбург, 2014 год

Реферат

Пояснительная записка содержит 127 стр., 15 табл., 17 рис., 4 приложения, 42 библ. названий.

МАГИСТРАЛЬНАЯ ВЫСОКОПРОИЗВОДИТЕЛЬНАЯ ИНФОРМАЦИОННАЯ СЕТЬ, СЕТЕВОЕ ОБОРУДОВАНИЕ, ПРОТОКОЛЫ И СЕРВИСЫ

Цель работы - разработать сетевую инфраструктуру ГБУЗ СО «Верхнесалдинская ЦГБ».

В процессе работы был создан проект высокопроизводительной информационной сети ГБУЗ СО «Верхнесалдинская ЦГБ». Пояснительная записка содержит описание всех этапов проектирования сетевой инфраструктуры, методику проектирования структурированных кабельных систем, рекомендации, касающиеся выбора коммуникационного оборудования и реализации сетевых протоколов.

В работе рассмотрены вопросы безопасности жизнедеятельности, природопользования и охраны окружающей среды, а также рассчитана стоимость затрат на разработку проекта.

Содержание

Реферат

Список сокращений

Введение

1. Анализ существующих решений для построения сети

1.1 Выбор топологии для проекта

1.2 Выбор сетевого оборудования

1.2.1 Выбор Маршрутизатора

1.2.2 Сравнение платформ программного маршрутизатора

1.3 Выбор коммутатора

1.4 Выбор монтажного оборудования

1.5 Выводы по результатам анализа существующих решений.

1.6 Проектная часть. Разработка модели сети

2. Установка программного обеспечения

3. Настройка и установка дополнительных программ

3.1 Конфигурирование сети

3.2 Создание и настройка Active Directory

3.3 Установка DHCP и DNS серверов

3.4 Настройка Microtic

3.5 Политика безопасности

3.6 Выводы по результатам проектирования сети

4. Безопасность жизнедеятельности

4.1 Цель дипломного проекта

4.2 Краткая характеристика размещения объекта.

4.3 Характеристика рабочего места

4.4 Безопасность проекта

4.4.1 Характеристика опасных производственных факторов и мероприятий по обеспечению травмобезопасности оборудования

4.4.2 Гигиеническая оценка условий и характера труда

4.4.3 Пожарная безопасность

4.5 Чрезвычайные ситуации.

4.5.1 Среди природных чрезвычайных ситуаций для данного региона наиболее вероятны метрологические чрезвычайные ситуации (бури, ураганы) и природные пожары (лесные пожары, торфяные пожары).

4.5.2 Действия и способы защиты персонала предприятия при ЧС техногенного характера

4.7 Выводы

5. Экономическая часть

5.1 Стоимость одного часа машинного времени

5.1.1 Эффективный фонд времени

.1.2 Эксплуатационные расходы

5.2 Расчет стоимости разработки локальной вычислительной сети

5.2.1 Время разработки локальной вычислительной сети

5.2.2 Стоимость разработки проекта

5.3 Расчеты экономической эффективности от внедрения локальной вычислительной сети

Заключение

Список используемых источников

Список сокращений


ЛВС - локально-вычислительная сеть

ТЗ - техническое задание

ОС - операционная система

ПО - программное обеспечение

ИБП - источник бесперебойного питания

НСД - несанкционированный доступ

ПК - персональный компьютер

ЭВМ - электронно-вычислительная машина

СКС - структурированная кабельная система

НИР - научно-исследовательская работа

НИТ - новые информационные технологии

Введение


Основной вид деятельности Полевского филиала радиотехнического колледжа имени А.С. Попова - предоставление образовательных услуг.

Целью дипломного проектирования является разработка проекта локальной вычислительной сети для ГАОУ СПО СО ПФ УРТК им. А.С. Попова с возможностью выхода в Интернет для управления документооборота посредством программного обеспечения.

Реализация данного проекта позволит:

сократить бумажный документооборот внутри учреждения;

повысить производительность труда, сократить время на обработку информации с использованием специализированного программного обеспечения;

работать с общими устройствами: принтерами, факсами и другой периферией.

Задача разработки проекта возникла в связи с производственной необходимостью, а именно перемещения работы учреждения в другое здание. Актуальностью дипломного проекта является разработанный проект ЛВС для нового здания, что позволит сократить трудозатраты при внедрении данной ЛВС.

Для того чтобы в полном объеме разработать проект ЛВС, необходимо выполнить следующие задачи:

- произвести анализ существующих решений для построения сети;

выбрать сетевое и монтажное оборудование;

разработать модель ЛВС;

смоделировать конфигурацию сетевых настроек рабочих станций.

Техническое задание

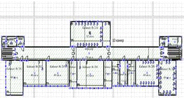
Структурно, в здании для разрабатываемого проекта ЛВС имеется 2 этажа, а так же 19 учебных и административных кабинетов (рис. 1, рис. 2).

При разработке технического задания для проекта ЛВС, были использованы рекомендации следующих нормативных документов:

ГОСТ Р 53245-2008 Информационные технологии. Системы кабельные структурированные. Монтаж основных узлов системы. Методы испытаний;

ГОСТ Р 53246-2008 Информационные технологии. Системы кабельные структурированные. Проектирование основных узлов системы;

- ISO/IEC 11801:2010 Information technology - Generic cabling for customer premises - Amendment 2 (Информационные технологии. Структурированная кабельная система для помещений заказчиков. 2-ое издание);

ISO/IEC 14763-1:1999 Information technology - Implementation and operation of customer premises cabling - Part 1: Administration (Информационные технологии. Ввод и функционирование кабельной системы в помещении пользователя. Часть 1. Администрирование);

- ISO/IEC 14763-2:2000 Information technology. Implementation and operation of customer premises cabling - Part 2: Planning and installation (Информационные технологии. Ввод и функционирование кабельной системы в помещении пользователя. Часть 2. Планирование и установка).

Рис. 1 Первый этаж

Рис. 2 Второй этаж

На основании анализа структуры здания, а так же перечисленных нормативных документов, было составлено следующее техническое задание:

. учебные кабинеты, аудитории и лаборатории должны выдерживать нагрузку по сети питания 220В не менее 10 кВт, а в лаборатории 210 и столовой, не менее 15 кВт;

. кабель сети питания 220В должен быть проложен в отдельном кабель-канале от электрощитовой (№118) до кабинетов, аудиторий и лабораторий, где будут установлены электрические шкафчики и далее внутри помещения;

. использовать кабель для сети питания 220В трёхжильный с заземляющим проводником;

.использовать кабель для прокладки CKC: NKL 9100C-OR, кабель NIKOLAN UTP 4 пары, Кат.5е, внутренний, LSZH, 24 A WG, одножильный, 100МГц, 305м (или аналог);

. кабель-канал должен быть проложен в коридорах на высоте 2,5 метра от уровня пола, а в кабинетах, аудиториях и лабораториях на высоте 0,6 метра от уровня пола;

. во все кабинеты, аудитории, лаборатории и столовую завести из серверной (№100) один сетевой кабель (витая пара), в аудиториях и кабинетах устанавливается розетка, а в лабораториях кабель подключается напрямую к коммутатору, в аудитории 106, 113, 114, 115, 116, 117 кабель прокладывать не нужно;

. в лаборатории сетевой кабель (витая пара) прокладывается от коммутатора до ПК;

. в серверной установить шкаф со следующим оборудованием (пример, можно использовать аналоги):

- DGS-3000-26TC - I шт.;

DES-1210-26/МЕ - 10 шт. (часть из них будет устанавливаться в комп. лабораториях).

Оптические трансиверы DEM-310GT - 2 шт.;

оптические патч-корды LC-ST - 2 шт.;

патч-панели NMC-RP24UD2-HU-BK - 2 шт.;

патч-панели NMC-RP24UD2-HU-BK - 2 шт.;

1 сервер (сервер под задачи филиала);

UPS на 3кВт;

. в лабораториях установить следующее количество оборудования:

101 - компьютер и проектор;

102 - компьютер и проектор;

103 - 11 компьютеров и проектор;

104 - 2 компьютера;

107 - 4 компьютера и 2 принтера;

108 - компьютер и проектор;

109 - компьютер-сервер + 5 тонких клиентов;

110 - компьютер и принтер;

201 - компьютер и проектор;

202 - компьютер и проектор + оборудование по электротехнике (лабораторные стенды 12 рабочих мест);

203 - компьютер и проектор;

204 - компьютер и принтер;

205 - компьютер и проектор;

206 - компьютер;

207 - 3 компьютера и 3 принтера;

208 - 16 компьютеров и проектор + шкаф с сетевым оборудованием;

209 - 16 компьютеров и проектор;

210 - 22 компьютер и проектор;

211 - компьютер и МФУ.

. Для организации телефонной связи, оповещения и охранной сигнализации, завести во все помещения (кроме сан. узлов) из серверной I сетевой кабель (витая пара);

. в помещении электрощитовой (№118) предусмотреть установку шины заземления электрической сети.

Данное техническое задание в полном объеме соответствует разрабатываемому проекту.

1. Анализ существующих решений для построения сети


1.1 Выбор топологии для проекта


Выбор используемой топологии зависит от условий, задач и возможностей, или же определяется стандартом используемой сети. Основными факторами, влияющими на выбор топологии для построения сети, являются:

·   среда передачи информации (тип кабеля);

·   метод доступа к среде;

·   максимальная протяженность сети;

·   пропускная способность сети;

·   метод передачи и др.

В данном проекте ставится задача создания ЛВС для учреждения посредством высокоскоростной сети со скоростью передачи данных - 100 Мбит/сек.

Рассмотрим вариант построения сети: на основе технологии Fast Ethernet.

Данный стандарт предусматривает скорость передачи данных 100 Мбит/сек и поддерживает два вида передающей среды - неэкранированная витая пара. Для описания типа передающей среды используются следующие аббревиатуры, табл. 2.1.

Таблица 2.1

Правила проектирования топологии стандарта 100Base-T

Название

Тип передающей среды

100Base-T

Основное название для стандарта Fast Ethernet (включает все типы передающих сред)

100Base-TX

Неэкранированная витая пара категории 5 и выше.

100Base-FX

Многомодовый двухволоконный оптический кабель

100Base-T4

Витая пара. 4 пары категории 3, 4 или 5.

 

Следующие топологические правила и рекомендации для 100Base-TX и 100Base-FX сетей основаны на стандарте IEEE 802.3u

100Base-TX

Правило 1: Сетевая топология должна быть физической топологией типа «звезда» без ответвлений или зацикливаний.

Правило 2: Должен использоваться кабель категории 5.

Правило 3: Класс используемых повторителей определяет количество повторителей, которые можно каскадировать.

·   Класс 1. Можно каскадировать до 5 включительно концентраторов, используя специальный каскадирующий кабель.

·   Класс 2. Можно каскадировать только 2 концентратора, используя витую пару для соединения средозависимых портов MDI обоих концентраторов.

Правило 4: Длина сегмента ограничена 100 метрами.

Правило 5: Диаметр сети не должен превышать 205 метров.

100Base-FX

Правило 1: Максимальное расстояние между двумя устройствами - 2 километра при полнодуплексной связи и 412 метров при полудуплексной для коммутируемых соединений.

Правило 2: Расстояние между концентратором и конечным устройством не должно превышать 208 метров

Так как расстояние между сегментами сети не превышает 100 метров, а диаметр сети составляет 150 метров, целесообразно использовать сетевую топологию стандарта 100Base-TX, так как она в полном объеме удовлетворяет требованиям разрабатываемой ЛВС.

1.2 Выбор сетевого оборудования

 

1.2.1 Выбор Маршрутизатора

После сравнительного анализа различных маршрутизаторов для стабильной работы соответствует маршрутизатор модели TP-Link TL-WR941ND

Комплектация аппарата находится на хорошем уровне для любого роутера:

- диск с ПО (Маленькие буквы);

инструкция по быстрой настройке;

буклеты с рекламой продукции TP-Link;

сетевой кабель;

три антенны;

блок питания.

Корпус устройства выполнен из белого пластика с черной вставкой посередине. Размер корпуса достаточно велик для учебного маршрутизатора, что объясняется наличием трех антенн:

Три антенны позволяют не только улучшить дальность распространения сигнала, но и увеличивают его мощность, что немаловажно в учебном заведении. Кроме того, благодаря поддержке технологии MIMO, роутер способен передавать данные на постоянной и высокой скорости, несмотря на препятствия прохождению сигнала:

На передней панели роутера расположены световые индикаторы режимов работы, а также кнопка запуска QSS: функции Quick Secure Setup, предназначенной для быстрой настройки защищенного соединения между роутером и беспроводными устройствами:

На задней панели разместились три разъема типа SMA для трех антенн, которые можно заменить любыми другими, имеющими стандартный разъем. Также здесь есть четыре порта LAN 10/100 для подключения устройств домашней сети, а также порт WAN 10/100 для подключения к внешней сети. Слева расположен разъем для блока питания и утопленная кнопка сброса настроек:

Внутреннее строение роутера можно оценить после вскрытия корпуса. Основная плата электроники только одна, содержит процессор Atheros AR9132-BC1E

Для управления интерфейсами проводной сети задействован контроллер Marvell 88E6060, применена гальваническая развязка интерфейсов от электроники роутера. В целом, тестируемый роутер относится уже к третьей ревизии аппаратной части - очевидно, что TP-Link активно работает не только над созданием прошивок, но и над конструкцией самих устройств под своей маркой.

Управление многочисленными функциями роутера осуществляется посредством удобного веб-интерфейса. Нужно отметить, что дизайн веб-интерфейсов многих беспроводных устройств очень похож: меню выбора функций слева, информация о настройках справа и по центру окно с настройками каждого пункта.

Открывается меню страницей статуса, показывающей текущие настройки (рис. 3).

Рис. 3 Текущие настройки маршрутизатора

Следующий пункт меню - экспресс-настройка, выполненная в виде пошагового мастера - её вполне достаточно для правильной настройки работы с Интернет дома, однако настроек безопасности там не предусмотрено, а потому необходимо рассмотреть остальные пункты меню (рис. 4) сеть программа сервер маршрутизатор

Рис. 4 Экспресс-настройка

Например, QSS - здесь нужно только сгенерировать и записать ПИН-код для подключения к системе. Код потом вводится как пароль для подключения Wi-Fi. Можно сделать иначе: активировать Wi-Fi в нужном режиме, произвести настройку безопасности, выбрав метод защиты (WEP, WPA, WPA2) и введя ключевую фразу, а также введя MAC-адреса компьютеров, которым разрешено подключаться к роутеру, не забыв также сменить стандартные логин и пароль для подключения к веб-интерфейсу (рис. 5).

Рис. 5 Настройка QSS

А чтобы обезопасить интернет-соединение, можно настроить функции Firewall, а также запретить подключаться к домашней сети извне, сделав исключение для доверенных серверов и компьютеров в сети. Одна проблема: настройки firewall и указания путей и портов в интерфейсе настолько неочевидны, что можно порой запутаться в них. Здесь стоило бы взять пример с той же TRENDNet, роутер TEW-432BRP который позволяет настроить маршрутизацию и NAT без использования инструкции. В случае же с TP-Link TL-WR941ND придется создавать диапазоны IP-адресов и портов в каждом отдельном меню, названным Host и Target. Причем эти названия далеко не так точны, чтобы понять неподготовленному пользователю (рис. 6, рис. 7, рис. 8).

Рис. 6 Правила контроля

Рис. 7 Настройки параметров

Рис. 8 Параметры размещения

В то же время, роутер предлагает богатые настройки защиты от флуда и атак извне (рис. 9, рис. 10).

Рис. 9 Повышенная безопасность

Рис. 10 Базовая безопасность

Так же роутер предоставляет функцию родительского контроля, с помощью которой можно ограничить посещение нежелательных интернет ресурсов, что имеет большое значение в учебном учреждении (рис. 11).

Рис. 11 Родительский контроль

Так же присутствует поддержка Dynamic DNS для управления роутером посредством глобальной сети Интернет. Можно и без DDNS, но тогда потребуется активный выделенный IP у провайдера (рис. 12).

Рис. 12 Динамический DNS

Так же присутствует DMZ-Host, и Port Triggering, и создание виртуального сервера (рис. 13).

Рис. 13 Виртуальный сервер

Поддерживается и статическая маршрутизация - настройки довольно удобны (рис. 14).

Рис. 14 Статическая маршрутизация

Так же присутствуют функции ограничения пропускной способности. Здесь можно гибко настраивать правила, ограничивая доступ всем, либо определенным IP. Например, детям можно открыть только серфинг на низкой скорости, чтобы не смотрели запрещённые страницы (рис. 15).

Рис. 15 Ограничение пропускной способности

Также аппарат позволяет присваивать определенные IP конкретному ПК при помощи DHCP (можно закреплять IP за нужным MAC-адресом). Либо DHCP все сделает автоматически. Подключение к сети возможно несколькими способами: DHCP, статический IP, PPPoE, PPTP и L2TP. Подключение можно быстро создать и настроить, проблем в работе не возникает.

Выводы

TP-Link TL-WR941ND поддерживает IEEE-802.11N на самой высокой скорости 300 Мбит/с. При этом стоимость роутера составляет от 1850 руб. - для сравнения, аналогичные аппараты конкурентов намного дороже. Пожалуй, единственное, чего не хватает аппарату - это более удобной настройки firewall и NAT.

Данный маршрутизатор полностью соответствует поставленным перед ним требованиям, а так же является ярким представителем оборудования по соотношению цены и качества.

1.2.2 Сравнение платформ программного маршрутизатора

Были рассмотрены 2 платформы MikroTik RouterOS и Zeroshell, кратко об этих платформах:

MikroTik RouterOS

Одним из продуктов MikroTik является RouterOS - сетевая операционная система <#"787464.files/image016.gif">

Рис. 16 Первый этаж

Рис. 17 Второй этаж

На 2 этаже 3 компьютерных класса, 210 аудитория - 20 компьютеров и свитч, 208 аудитория - 15 компьютеров и свитч, 209 аудитория - 15 компьютеров и свитч также в 201, 202, 203, 205, 207 по 1 компьютеру. С 210 аудитории будут идти провода вниз на 1 этаж к серверу.

Благодаря отображению на рисунках сегментов сети можно определьть, что проектируемая сеть будет достаточно легкой в построении и модификации, и не будет зависеть от работы одной из рабочих станций. Это означает то, что данное размещение элементов ЛВС полностью соответсвует поставленной задаче перед проектом.

2. Установка программного обеспечения


Главным требованием, предъявляемым к операционной системе, является выполнение ею основных функций эффективного управления ресурсами и обеспечение удобного интерфейса для пользователя и прикладных программ. Современная операционная система, как правило, должна поддерживать мультипрограммную обработку, виртуальную память, свопинг, многооконный графический интерфейс пользователя, а также выполнять многие другие необходимые функции и услуги.

Клиентские ОС, в общем случае являясь более простыми, должны обеспечивать удобный пользовательский интерфейс и набор редиректов, позволяющий получать доступ к разнообразным сетевым ресурсам.

Что касается операционной системы Windows Vista, то известны случаи, когда большинство программных продуктов просто отказывается работать под этой ОС.

Рис. 18 Ввод имени виртуальной машины

Поэтому выбор будет в пользу Windows XP Professional, которая позволит обеспечить стабильную работу в составе доменной локальной сети под управлением Windows Server 2008. К тому же на сегодняшний день она является наиболее популярной ОС, ввиду своего удобного пользовательского интерфейса и своим набором средств для администрирования.

Для установки ОС потребуется установить программу “Oracle VM VirtualBox” и образ Windows XP.

После запуска программы ” Oracle VM VirtualBox” необходимо создать «виртуальную машину». Нужно указать имя виртуальной машины, указать тип ОС и её версию (рис. 18).

Рис. 19 Указание оперативной памяти для Windows XP

Для дальнейшей работы с «виртуальной машиной» необходимо указать количество оперативной памяти (рис. 19).

Рис. 20 Выбор Жесткого диска для Windows XP

Так же необходимо указать размещение жесткого диска и выбрать формат его размещения на компьютере (рис. 20, рис. 21).

Рис. 21 Формат хранения жёсткого диска для Windows XP

Рис. 22 Выбор образа Windows XP

После настройки параметров вируальной машины необходимо её запустить. После чего выбрать образ ОС программным компонентом Oracle VM VirtualBox (рис. 22). Далее происходит типичная установка ОС Windows XP, в процессе которой необходимо выбрать основные её настройки для работы с ЛВС. При создании виртуальной машины Windows server 2003 необходимо применить те же параметры, что и при Windows XP.

Рис. 23 Создание Router

Аналогичным способом необходимо создать «виртуальную машину» Router как Windows XP. В этом случае необходимо изменить настройки «виртуальной машины» на “other”(другой), версия DOS(Дисковая операционная систем) , размер оперативной памяти 32Мб и место жёсткого диска составляет 500 Мб (рис. 23).

После запуска «виртуальной машины» Router выбиррать обзор Mikrotik для конфигурации настроек данной платформы. На данном этапе следует выбрать нужные для работы ЛВС настройки (рис. 24).

Рис. 24 Настройка Mikrotik

3. Настройка и установка дополнительных программ

В качестве дополнительного ПО необходимо установить GNS3 VirtualBox Edition на «виртуальной машине» сервера, для распределения интернет трафика между виртуальными машинами.

Этапы настройки операционной системы:

1.      конфигурировация сети;

2.      создание и настройка Active Directory;

.        создание сети;

.        установка DHCP И DNS серверов;

.        настройка Microtik;

.        настройка политики безопасносности;

.        проверка работоспособности.

3.1 Конфигурирование сети


Для моделирования работоспособности виртуальной ЛВС необходимо установить программу GNS3 VirtualBox Edition, позволяющую смоделировать структуру сети и работать с виртуальными машинами которые были установлены ранее.

Рис. 25 Добавление виртуальных машин

На рис. 25 отображено добавление виртуальных машин. В левой рабочей области находятся виртуальные устройства, с помощью которых производится конфигурировации настроек.

Рис. 26 Модель локальной вычислительной сети

На рис. 26 отображена модель локальной вычислительной сети. В центральной рабочей области отображаются модели устройств сети с логической структурой их взаимосвязи. В левой рабочей области отображены активные и не активные виртуальные машины.

3.2 Создание и настройка Active Directory


Создание Active Directory необходимо для поддержания надежного уровня службы каталога организации. Active Directory обеспечивает эффективное функционирование службы каталогов и возможность пользователей рабочих станций войти в сеть, обратиться к общедоступным ресурсам, получить и послать электронную почту.

Для того что бы создать и настроить Active Directory необходимо:

•        вставить в дисковод для чтения компакт-дисков или DVD-дисков установочный компакт-диск Windows Server 2003;

•        выполнить команду dcpromo (рис. 27);

Рис. 27 Команда запуска мастер установки Active Directory

•    выбрать вариант Контроллер домена в новом домене;

•    выбрать вариант Новый домен в новом “лесу”;

•    указать полное имя DNS для нового домена;

•    оставить имя домена NetBIOS по умолчанию без изменений;

•    задать для базы данных и файла журнала путь;

•    задать для папки Sysvol путь;

•    выбрать вариант Установить и настроить DNS-сервер на этом компьютере;

•    выбрать вариант Разрешения, совместимые только с Windows 2000 или Windows Server 2003;

•    проверить правильность указанных параметров;

•    перезагрузить компьютер.

Для того чтобы добавить группу пользователей необходимо запустить Active Directory, в контекстном меню выбрать “New”, “Group” и задать необходимые атрибуты группе. (рис. 28, рис. 29).

Рис. 28 Создание группы пользователей

Рис. 29 Назначение атрибутов группе

Для того чтобы добавить пользователя в рабочую группу необходимо запустить Active Directory, в контекстном меню выбрать “New”, “User” и задать необходимые атрибуты пользователя. (рис. 30, рис. 31).

Рис. 30 Создание пользователя

Рис. 31 Назначение атрибутов пользователя

3.3 Установка DHCP и DNS серверов


Следующим шагом после выполнения выше описанных действий следует настройка автоматического получения IP адресов и DNS сервера у остальных виртуальных машин. Для этого необходимо последовательно запустить виртуальные машины, загрузить учётные записи под функционирующим доменом “DIMA” и произвести следующие действия:

•        в свойствах компьютера поменять имя компьютера для обозначения его сетевого имени;

•        зайти в “Сетевые подключения” выбрать свойства Подключения по локальной сети, нажать на кнопку “свойства”, выбрать протокол Интернета (TCP/IP) и выбирать следующие свойства: “Получить IP-адрес автоматически” и “Получить адрес DNS-сервера автоматически”(рис. 32).

Следующим шагом после выполнения настроек имени компьютера и DHCP следует произвести аналогичные настройки у server. Для этого необходимо:

в строке меню диспетчера серверов последовательно выбирать Сервис и DHCP. Откроется консоль DHCP (рис. 34);

Рис. 32 Настройка имени компьютера и DHCP

Рис. 34 Консоль DHCP

·        в дереве консоли DHCP выбрать узел IPv4, выбрать команду “Создать область”. Откроется Мастер создания области;

·        ввести в поле “Имя” имя новой области (dima.local);

·        на странице Диапазон IP-адресов ввести 192.168.77.20 в поле начальный IP-адрес, ввести 198.168.77.100 в поле Конечный IP-адрес, а затем ввести 24 в поле Длина. Значение маски подсети автоматически изменится на 255.255.255.0 (рис. 35).

Рис. 35 Начальный и конечный IP адрес

·        на странице Имя домена в DNS-сервера задать значение 192.168.77.1;

·        на странице Активировать область установить переключатель “Да, я хочу активировать эту область сейчас”;

·        в дереве консоли DHCP выбрать команду Авторизовать;

·        обновить окно консоли DHCP и убедиться, что сервер “srv1” авторизован, а домен “dima.local” активен;

После выполненных действий зайти в DHCP виртуальной машины server и в древе настроек DHCP на вкладке “Reservations” добавить новые записи для того, чтобы виртуальным машинам были присвоены фиксированые IP-адреса в заданном диапазоне.

Рис. 36 Резервирование IP-адресов

3.4 Настройка Microtic


Для того чтобы корректно настроить программную платформу Microtik необходимо зайти в DHCP Client на виртуальной машине сервера с помощью программы Microtik и добавить первый интерфейс, после чего получить IP адрес у провайдера. Далее добавить компонент “Bridge” и в вкладке “Ports” добавить 3-ий интерфейс. В “address List” добавить “Bridge1” для внутренней сети (рис. 37).

Рис. 37 Настройка Microtik

Рис. 38 Настройка интернета

В подменю “firewall”, вкладка “NAT” следует добавить 2 записи: первый интерфейс для выхода в интернет на прямую, bridge для раздачи интернета в сети. В “Queues” добавить также 2 записи, в них прописать ip адреса компьютерных классов и назначить интернет трафик 512 kb для компьютерных классов (рис. 38).

3.5 Политика безопасности


Следующим шагом необходимо организовать обеспечение политики безопасности для домена. Для этого были выполнены следующие действия:

-       выбрать пункт “Propertiens”;

-       выбрать вкладку групповая политика и нажать кнопку “Edit”;

-       в древе выбрать “Password Policy”.

Для того чтобы можно было задать пароль из 3-ёх символов без специальных знаков нужно изменить значение Minimum password length на 3 charactes (рис. 39).

Рис. 39 Политика безопасности пароля

Рис. 40 Политика безопасности CTRL+ALT+DEL

Следующим действием в политике безопасности отключить команду вывода сообщения CTRL+ALT+DEL после запуска компьютера (рис. 40). Теперь при запуске компьютера можно водить логин и пароль сразу без нажатия клавиш CTRL+ALT+DEL.

Рис. 41 Команда выполнить

Отключить команду “выполнить” в политике безопасности для Organization Unit (OU) для учётных записей студентов (рис. 41).

Рис. 42 Добавление диска Z

В групповой политике Organization Unit студентов зайти в “Logoff” и нажать на кнопку “Show Files”. В открытой папке создать текстовый документ, в нём написать следующую команду “subst z: “%UserProfile%\disk””. Тем самым если пользователь студент, будет загружаться с любого компьютера, у него будет выполняться эта команда и появляться диск Z с его личными файлами (рис. 42).

Последним этапом выполнения необходимо создать остальные учётные записи студентов (s1,s2,s3,s4,s5,s6) по примеру описанному выше.

Рис. 43 Пользователи студентов

3.6 Выводы по результатам проектирования сети


В результате разработки проектной части на примере созданных виртуальных машин и дополнительного программного обеспечения можно определить, что при внедрении ЛВС в организацию все сегменты сети и их программное обеспечение будут стабильно работать и взаимодействовать друг с другом, что позволит персоналу и учащимся учебного учреждения эффективно выполнять свои обязанности при работе с данной ЛВС.

4. Безопасность жизнедеятельности

4.1 Цель дипломного проекта


Целью дипломного проекта является Проектирование локальной вычислительной сети для ГАОУ СПО СО ПФ УРТК им. А.С. Попова.

4.2 Краткая характеристика размещения объекта


Разработка дипломного проекта производилась в городе Полевской.

Климат данной зоны является умеренно-континентальный, средняя температура за год составляет +4.2 °С.

Для построения розы ветров используется таблица повторяемости направлений ветра и штилей за год (табл.4.1).

Таблица 4.1. Повторяемость направлений ветра и штилей за год, %.

Направление, румбы

С

С-В

В

Ю-В

Ю

Ю-З

З

С-З

Штиль

Повторяемость, %

7

5

4

18

11

19

30

6

11


Роза ветров представлена на рисунке 4.1.

Рисунок 4.1. Роза ветров.

Преобладающее направление на Запад.

Здание, в котором производилась разработка проекта, не расположено вблизи каких-либо санитарно-защитных зон (СанПиН 2.2.1/2.1.1.1200-03), и не включает объектов производств, являющихся источниками воздействия на среду обитания и здоровье человека.

К опасным производственным факторам, можно отнести электрическую сеть переменного тока, напряжением 220 вольт.

4.3 Характеристика рабочего места


Помещение, в котором осуществлялась работа по проектированию имеет площадь 60 м2 и объем помещения 46 м3, 4 окна, каждое по 2,88 м2 , количество рабочих мест - 10, используемое оборудование и аппаратура: 10 персональных компьютеров на базе Intel Core i3, 10 LED мониторов с диагональю 24”, многофункциональное устройство (принтер-копир-сканер). В течение рабочего времени находится в данном помещении находиться 1 человек - Лаборант компьютерного класса.

Лаборант компьютерного класса выполняет следующую работу:

а)      соблюдает требования правил по охране труда и пожарной безопасности на рабочем месте;

б)      сопровождает аппаратно-программные комплексы систем, включая ремонт и обслуживание оборудования с соблюдением инструкций по эксплуатации и техническому обслуживанию.

Согласно должностной инструкции и инструкции по технике безопасности при работе на персональном компьютере, утверждёнными руководителем предприятия, при 8-ми часовой рабочей смене, лаборант компьютерного класса придерживается регламентированных перерывов, которые устанавливаются через 1,5-2,0 часа от начала рабочей смены и через 1,5-2,0 часа после обеденного перерыва продолжительностью 20 минут каждый или продолжительностью 15 минут через каждый час работы. (ТОИ Р-45-084-01)

4.4 Безопасность проекта

 

4.4.1 Характеристика опасных производственных факторов и мероприятий по обеспечению травмобезопасности оборудования

Опасных производственных факторов на рабочем месте нет.

Освещённость

Для того, что бы рассчитать естественное освещение помещения, необходимо произвести расчет: Находим требуемое значение КЕО

е = ен х mN , где

ен - нормируемое значение КЕО, определяемое в зависимости от разряда зрительной работы- коэффициент светового климата, определяемый в зависимости от ориентации окон и группы административного района по ресурсам светового климата.

е = 1 х 0,8 = 0,8

Находим отношение суммарной площади окон к площади рабочей поверхности

Ао/Ап = 11,52/60 = 0,192, или 19,2%

Определяем отношение глубины освещаемой площади помещения к высоте от верха окна до уровня освещаемой поверхности

п/Но = 3,8/1,6 = 2,38

По графику для определения относительной площади световых проемов при боковом освещении помещений общественных зданий (рис. 2 СниП 23-102-2003) определяем КЕО = 1,4, с учетом коэффициента запаса:

К ЕО = 1,4/1,2 = 1,17

Применяем коэффициент n, учитывающий твердое селективное покрытие стекла

= Т2/Т1 = 0,75/0,76 = 0,99

КЕО = 1,17 х 0,99 = 1,16

Условие е ≤ КЕО (0,8 ≤ 1,16 ) удовлетворяется.

Естественное освещение в помещении является достаточным.

Искусственное освещение, представлено люминесцентными лампами Philips CR200B. Данный вид ламп отвечает следующим требованиям: они экономичны, имеют большую световую отдачу, долговечны (до 10000 часов), меньше нагреваются, спектральный состав излучаемого света близкий к естественному.

Согласно СП 52.13330.2011 норма искусственного освещения для данного вида работ составляет 300 лк.

Таким образом, для соблюдения требований СНиП необходимо наличие в рабочем помещении трех светильников по две лампы Philips CR200B.

В помещении установлено десять светильников. Соответственно, требования соблюдены.

Уровень шума

В производственных помещениях при выполнении основных или вспомогательных работ с использованием ПЭВМ уровни шума на рабочих местах не превышает предельно допустимых значений, установленных для данных видов работ в соответствии с действующими санитарно-эпидемиологическими нормативами.

Печатающее оборудование, являющееся источником шума, установлено на звукопоглощающей поверхности автономного рабочего места пользователя.

В соответствии с ГОСТ 12.1 003-83, защита от шума, создаваемого на рабочих местах осуществляется следующими методами:

•        уменьшение шума;

•        применение средств коллективной защиты (ГОСТ 12.1.0280);

•        применение средств индивидуальной защиты (ГОСТ 12.4.051-87);

•        рациональная планировка помещений;

•        акустическая обработка рабочих помещений.

Для борьбы с шумом необходимо применять следующие меры:

•        увеличение звукоизоляции ограждающих конструкций;

•        уплотнение по периметру дверей, перекрывающих проходы;

•        уменьшение шума источников путем применения прокладок

из эластичных материалов.

В качестве звукопоглощающих конструкций можно предложить:

•        маты из стекловолокна;

•        перфорированные плиты, укрепленные на стене.

В рассматриваемом помещении уровень шума не превышает допустимый.

Уровень вибраций

Уровень вибрации соответствует установленным нормам (СанПиН 2.2.2.542-96), так как вся техника прошла сертификацию. В качестве дополнительной защиты от вибрации могут применяться специальные виброизоляторы, но при современном уровне развития компьютерной техники вибрация от системных блоков очень незначительна.

В помещении нет движущихся механизмов, станков и двигателей. Поэтому на рабочее место не действуют источники ощутимой вибрации.

Главным источником вибрации является персональный компьютер. А главными предметами - вентиляторы и жесткие диски. Данный уровень вибрации не превышает допустимые значения (меньше 50 Дб). Для снижения уровня вибрации на сегодняшний день используют водяное охлаждение вместо вентиляторов, и мягкотельные накопители вместо жестких дисков.

Электробезопасность

Для помещения, в котором производилось проектирование, согласно ПУЭ присваивается класс помещения без повышенной опасности, т.е. в нем отсутствуют условия, создающие повышенную или особую опасность.

Пол в помещении выполнен из кафеля, относительная влажность воздуха не превышает 60%, отсутствует химически активная или органическая среда, отсутствует возможность одновременного прикосновения человека к имеющим соединение с землей металлоконструкциям здания, технологическим аппаратам, механизмам и т.п., с одной стороны, и к металлическим корпусам электрооборудования - с другой, соответственно.

Для электроснабжения офисного оборудования используется переменное напряжение 220В.

Имеются автоматические выключатели питания сети 220В 50 Гц для обесточивания помещения в случае аварии, чрезвычайной ситуации, а так же при отсутствии персонала.

Для защиты сотрудников от поражения электрическим током все оборудование подвергается заземлению к контуру заземления, сопротивление которого при последней проверке от марта 2014 года было 3,85 Ом, при норме 4 Ом.

Для проверки исправности контура заземления ежегодно проводится измерение сопротивления, которое не должно превышать 4 Ом.

4.4.2 Гигиеническая оценка условий и характера труда

Аттестация рабочего места Лаборанта компьютерного класса проводилась 15 ноября 2013г.

Согласно карте аттестации рабочего места значения показателей условий труда, представленные в таблицах 4.3, 4.4, 4.5 с указанием класса и степени вредности условий труда, взяты из карты аттестации рабочего места.

Показатели условий труда на рабочем месте Лаборанта компьютерного класса

Оборудование: ЭВМ

Инструмент и приспособления: отсутствуют

Краткая характеристика выполняемой работы: Работа с применением ЭВМ, в частности - разработка программного обеспечения, разработка - электронной документации, создание сайтов, поддержка и продвижение.

Таблица 4.3. Фактическое состояние условий труда.

Наименование и единицы измерения производственного фактора

ПДК, ПДУ

Фактический уровень фактора

Класс условий труда

Продолжи-тельность воздействия

1. Шум



2


Эквивалентный уровень, дБА

70

40

2

8,00(час)/100%

Максимальный уровень, дБА

110

53

2


Уровень звука, дБА


49


7,20(час)/90%

2. Неионизирущие излучения (ЭМП ПЭВМ)



2


Кабинет




7,20(час)/90%

Напряженность электростатического поля, кВ/м

15

1,7

2


Напряженность переменного электрического поля, В/м





Диапазон 5 Гц-2 кГц

25

<8

2


Диапазон 2 кГц - 400 кГц

2,5

<0,8

2


Диапазон 45 - 55 Гц

500

<50

---


Плотность магнитного потока, нТл





Диапазон 5 Гц-2 кГц

250

<80

2


Диапазон 2 кГц - 400 кГц

25

<8

2


Диапазон 45 - 55 Гц

500

110

---


3. Микроклимат (теплый период)





Кабинет

Кат. - Ia


2

7,20(час)/90%

Температура воздуха, оС

21-28

24

2


Скорость движения воздуха, м/с

0-0,2

0

2


Влажность воздуха, %

15-65

42

2


4. Микроклимат  (холодный период)





Кабинет

Кат. - Ia


2

7,20(час)/90%

Температура воздуха, оС

20-25

22

1


Скорость движения воздуха, м/с

0-0,1

0

1


Влажность воздуха, %

15-75

34

2


5. Световая среда





Кабинет

СанПиН 2.2.2/2.4.1340-03



7,20(час)/90%

КЕО, %

1,5

2,3

2


Освещенность рабочей поверхности (общая), лк

300-500

420

2


Коэффициент пульсации,%

5 (10*)

8

2


Освещенность поверхности экрана, лк

<300

180

2


Тяжесть труда (м)


2

 

Напряженность труда


2

 


Выполняются работы в особых условиях труда или работы в особых условиях труда, связанных с наличием чрезвычайных ситуаций нет

по травмобезопасности 1 (оптимальный) класс

по обеспеченности СИЗ СИЗ не предусмотрены

Таблица 4.4. Оценка условий труда по показателям тяжести трудового процесса.

Факторы трудового процесса

Единицы измерений

Норматив

Данные замера

Класс условий труда

Показатели тяжести трудового процесса

 

 

Динамическая нагрузка за смену

кг·м

 



- при региональной нагрузке при перемещении груза на расстояние до 1 метра

 

До 1500

0

1

- при общей нагрузке при перемещении груза на расстояние от 1 до 5 м.

 

До 7500

0

1

- при общей нагрузке при перемещении груза на расстояние более 5 м


До 14000

0

1

Масса поднимаемого и перемещаемого груза вручную

кг




- подъем и перемещение (разовое) тяжестей при чередовании с другой работой (до 2-х раз в час)


До 5

0

1

- подъем и перемещение тяжестей постоянно в течение рабочей смены

 

До 3

0

1

- суммарная масса грузов, перемещаемых в течение каждого часа смены - с рабочей поверхности - с пола

 

  До 100 До 50

0  0 0

1  1 1

Стереотипные рабочие движения - при локальной нагрузке - при региональной нагрузке

количество за смену

 До 20000 До 10000

 1 200 0

 1 1

Статическая нагрузка - одной рукой - двумя руками - с участием мышц корпуса

кгс

 До 11000 До 22000 До 26000

 0 0 0

 1 1 1

Рабочая поза

%

До 40%

35%


Наклоны корпуса

количество

До 50

20

1

Перемещение в пространстве - по горизонтали - по вертикали

км

 До 4 До 1

 2 0,05

 1 1

Итоговый показатель тяжести

1


Таблица 4.5. Оценка условий труда по показателям напряженности трудового процесса

Факторы трудового процесса

Единицы измерений

Норматив

Данные замера

Класс условий труда

Показатели напряженности трудового процесса

Интеллектуальные нагрузки - содержание работы

 Решение простых задач по инструкции

2

- восприятие сигналов

Восприятие сигналов с последующей коррекцией действий и операций


- степень сложности задания

Обработка, выполнение задания и его проверка


- характер выполняемой работы

Работа по установленному графику и возможной его коррекции по ходу деятельности


Сенсорные нагрузки  - длительность сосредоточенного наблюдения

   % от времени смены

26-50

 2

-  плотность сигналов и сообщений за 1 час работы


До 75

 1

- число производственных объектов одновременного наблюдения


До 5

1

- размер объекта различения при длительности сосредоточенного наблюдения

% от времени смены 

Более 5мм - 100%

1

-  работа с оптическими приборами при длительности сосредоточенного наблюдения

  часов за смену

До 25

1

- наблюдение за экранами видеотерминалов


До 3

2

Нагрузка на слуховой анализатор

Разборчивость слов и сигналов от 100 до 90%. Помехи отсутствуют.

1

Нагрузка на голосовой аппарат

суммарное время, часов, наговариваемое в неделю

До 16

1

Эмоциональная нагрузка - степень ответственности, значимость ошибки

Несет ответственность за функциональное качество основной работы. Влечет за собой исправления за счет усилий всего коллектива

3.1

- степень риска для собственной жизни

Исключена

1

- степень риска за безопасность других лиц

Исключена

1

- Количество конфликтных производственных ситуаций за смену

отсутствует

1

Монотонность нагрузок - число элементов в повторяющихся операциях

   сек 

Более 10

1

- продолжительность выполнения простых заданий или операций


Более 100

1

- время активных действий  (в остальное время наблюдение за ходом производственного процесса)

 % к продолжительности смены

20 и более

1

- монотонность производственной обстановки

% от времени смены

Менее 75

Режим работы - фактическая продолжительность рабочего дня

 ч.

 8-10

 8

2.1.

- сменность работы


Односменная работа

2.1.

- наличие регламентированных перерывов и их продолжительность


Перерывы регламентированы, достаточной продолжительности от 3 до 7% рабочего времени

2

Итоговый показатель напряженности


2


Класс условий труда по показателям производственной среды и трудового процесса - 2.

Эргономика рабочего места

Проектирование рабочих мест, снабженных видеотерминалами, относится к числу важных проблем эргономического проектирования в области вычислительной техники.

Рабочее место и взаимное расположение всех его элементов соответствует антропометрическим, физическим и психологическим требованиям. При организации рабочего места программиста должны быть соблюдены следующие основные условия: оптимальное размещение оборудования, входящего в состав рабочего места и достаточное рабочее пространство, позволяющее осуществлять все необходимые движения и перемещения.

Эргономическими аспектами проектирования видеотерминальных рабочих мест, в частности, являются: высота рабочей поверхности, размеры пространства для ног, требования к расположению документов на рабочем месте (наличие и размеры подставки для документов, возможность различного размещения документов, расстояние от глаз пользователя до экрана, документа, клавиатуры и т.д.), характеристики рабочего кресла, требования к поверхности рабочего стола, регулируемость элементов рабочего места.

Главными элементами рабочего места лаборанта компьютерного класса являются стол и кресло. Основным рабочим положением является положение сидя.

Рабочая поза сидя вызывает минимальное утомление работника. Рациональная планировка рабочего места предусматривает четкий порядок и постоянство размещения предметов, средств труда и документации. То, что требуется для выполнения работ чаще, расположено в зоне легкой досягаемости рабочего пространства.

Моторное поле - пространство рабочего места, в котором могут осуществляться двигательные действия человека.

Максимальная зона досягаемости рук - это часть моторного поля рабочего места, ограниченного дугами, описываемыми максимально вытянутыми руками при движении их в плечевом суставе.

Оптимальная зона - часть моторного поля рабочего места, ограниченного дугами, описываемыми предплечьями при движении в локтевых суставах с опорой в точке локтя и с относительно неподвижным плечом.


Оптимальное размещение предметов труда и документации в зонах досягаемости:

ДИСПЛЕЙ размещается в зоне а (в центре);

СИСТЕМНЫЙ БЛОК размещается в предусмотренной нише стола;

КЛАВИАТУРА - в зоне г/д;

«МЫШЬ» - в зоне в справа;

СКАНЕР в зоне а/б (слева);

ПРИНТЕР находится в зоне а (справа);

ДОКУМЕНТАЦИЯ: необходимая при работе - в зоне легкой досягаемости ладони - в, а в выдвижных ящиках стола - литература, неиспользуемая постоянно.


На рис. 4.7 показан план размещения основных и периферийных составляющих ПК на рабочем столе программиста.

1 - сканер, 2 - монитор, 3 - принтер, 4 - поверхность рабочего стола,

5 - клавиатура, 6 - манипулятор типа «мышь».

Для комфортной работы стол должен удовлетворять следующим условиям [26]:

·   высота стола выбрана с учетом возможности сидеть свободно;

·   нижняя часть стола сконструирована так, чтобы можно было удобно сидеть;

·   поверхность стола обладает свойствами, исключающими появление бликов в поле зрения программиста;

·   конструкция стола предусматривает наличие выдвижных ящиков (не менее 3 для хранения документации, листингов, канцелярских принадлежностей).

·   высота рабочей поверхности в пределах 650мм. Рекомендуемая высота сиденья рабочего кресла над уровнем пола находится в пределах 420-550мм. Поверхность сиденья мягкая, передний край закругленный, а угол наклона спинки - регулируемый.

При проектировании предусматривается возможность различного размещения документов: сбоку от видеотерминала, между монитором и клавиатурой и т.п.

Предусматриваться возможность регулирования экрана:

·   по высоте +3 см;

·   по наклону от -10° до +20° относительно вертикали;

·   в левом и правом направлениях.

Большое значение также придается правильной рабочей позе пользователя.

Существенное значение для производительной и качественной работы на компьютере имеют размеры знаков, плотность их размещения, контраст и соотношение яркостей символов и фона экрана. Если расстояние от глаз оператора до экрана дисплея составляет 60…80 см, то высота знака должна быть не менее 3мм, оптимальное соотношение ширины и высоты знака составляет 3:4, а расстояние между знаками - 15…20% их высоты. Соотношение яркости фона экрана и символов - от 1:2 до 1:15.

Монитор устанавливается на расстоянии 50 см от глаз. Верхняя часть видеодисплея при этом оказывается на уровне глаз или чуть ниже. Создание благоприятных условий труда и правильное эстетическое оформление рабочего места имеет как для облегчения труда, так и для повышения его привлекательности, положительно влияет на производительность труда.

4.4.3 Пожарная безопасность

Категория помещения по пожаро- и взрывобезопасности - «В3» [СНиП 12.13130-2009]. При этом горючими веществами является пластмассовые корпуса мониторов. Кроме того, рабочий стол выполнен из ДСП.

Здание, в котором разрабатывался проект, имеет административно - бытовое назначение. Имеет 2 этажа. Пожаро- и взрывоопасных веществ, материалов нет.

На узле связи рабочее место лаборанта компьютерного класса оборудовано знаками безопасности, а так же применена сигнальная окраска [ГОСТ 12.4.026-01] для обозначения:

места размещения огнетушителя;

путей эвакуации;

- электрооборудования.

В здании расположены 4 (четыре) пожарных шкафа, оборудованных пожарными рукавами и стволами.

Имеются ручные огнетушители углекислотные ОУ-2 , ОУ-03. На каждом этаже размещено по 3 углекислотных огнетушителя.

Похожие работы на - Проектирование локальной вычислительной сети для ГАОУ СПО СО ПФ УРТК им. А.С. Попова

 

Не нашли материал для своей работы?
Поможем написать уникальную работу
Без плагиата!
Без нейросетей!