Организация сети связи железнодорожного узла

  • Вид работы:
    Курсовая работа (т)
  • Предмет:
    Информатика, ВТ, телекоммуникации
  • Язык:
    Русский
    ,
    Формат файла:
    MS Word
    1,98 Мб
  • Опубликовано:
    2016-06-16
Вы можете узнать стоимость помощи в написании студенческой работы.
Помощь в написании работы, которую точно примут!

Организация сети связи железнодорожного узла

ВВЕДЕНИЕ


В настоящее время всё чаще встречаются публикации, посвящённые коренному преобразованию ТфОП и переходу к сети следующего поколения (NGN). Она позиционируется как универсальная сеть, способная удовлетворить практически любые потребности пользователей с заданным качеством обслуживания. При этом предполагается простота введения новых услуг.

Обычно рассматривается два основных варианта перехода к NGN - начиная с транспортной сети и с сети доступа.

Идущий процесс цифровизации сетей электросвязи охватывает как сети общего пользования, так и ведомственные и частные сети, которые с переходом к цифровым методам передачи с высокой пропускной способностью, новым системам сигнализации и сетевым концепциям предоставления услуг пользователям все более усложняются. Одно из важнейших направлений цифровизации - модернизация сетей связи общего пользования на основе концепции NGN (Next Generation Network) - сетей связи следующего поколения.

Основная задача сетей нового поколения заключается в обеспечении взаимодействия существующих и новых телекоммуникационных сетей, поддерживаемых единой инфраструктурой для передачи любых видов информации (голоса, данных, видео).

Под термином "сеть следующего поколения" (NGN) понимают концепцию построения сетей связи, обеспечивающих предоставление неограниченного набора услуг с гибкими возможностями по их управлению, персонализации и созданию новых услуг за счет унификации сетевых решений. В состав NGN входит универсальная транспортная платформа с распределенной коммутацией.

В концепции построения мультисервисной сети нового поколения заложена идея конвергенции (объединения) существующих сетей разных операторов и технологий (ТфОП, сетей мобильной связи и сетей с технологией IP). Конвергенция (Convergence)  процесс постепенного сближения различных технологий и служб связи с целью унификации оборудования и расширения функциональных возможностей систем и сетей.

1.  ХАРАКТЕРИСТИКА УЧАСТКА ЖЕЛЕЗНОЙ ДОРОГИ


1.1 Анализ существующей сети общетехнологической телефонной связи участка железной дороги


1.1.1 Первичная цифровая сеть связи железной дороги

Стратегические направления, совпадающие с основными пассажиро- и грузонапряженными железно-дорожными магистралями Беларуси, имеющими общегосударственное значение и обеспечивающими увязку с соседними дорогами сопредельных государств являются:

Госграница (Польша) - Брест - Барановичи - Минск - Орша - Госграница (Россия).

В настоящее время цифровая первичная сеть связи (ЦПСС) железной дороги технологически опережает в развитии вторичные сети связи.

Цифровая первичная сеть связи на магистральных направлениях дороги (МЦПСС) организуется на основе системы передачи синхронной цифровой иерархии уровня STM-16 (2488,32 Мбит/с) и STM-4 (622,08 Мбит/с), дорожная цифровая первичная сеть связи (ЦПССД) - уровня STM-4 и STM-1 (155,52 Мбит/с), для отделенческой ЦПСС - уровня STM-1. Основным компонентным информационным потоком, выделяемым на каждой станции участка, является первичный цифровой канал (ПЦК) Е1 со скоростью цифрового потока 2,048 Мбит/с, соответствующий рекомендациям МСЭ-T G.703.

В узлах, где сходятся линии связи нескольких направлений, установлен универсальный синхронный мультиплексор SMS-600V, который является составной частью семейства изделий SDH, разработанных фирмой NEC (Япония) и производимых российским предприятием ЭЗАН. Этот мультиплексор может быть сконфигурирован как терминальный (TRM), ввода/вывода (ADM), кольцевой (RING); работает на уровнях STM-4 или STM-1 в кольцевых или линейных конфигурациях. Мультиплексор соответствует всем стандартам МСЭ-Т, поддерживает все виды защитной коммутации. Обеспечивает ввод/вывод и гибкую кросс-коммутацию потоков Е1 непосредственно с уровня STM-4.

На промежуточных станциях ЦПССД базируется на синхронных мультиплексорах ввода/вывода SMS-150С, разработанных и производимых российским предприятием ЭЗАН. SMS-150C представляет собой компактный мультиплексор SDH третьего поколения уровня STM-1. Аппаратура характеризуется совместимостью с другими версиями SDH, поддерживает устройства по эксплуатации, управлению, техобслуживанию, имеет интерфейсы аварийной сигнализации состояния помещения. Мультиплексор SMS-150C может обеспечить выделение на каждой промежуточной станции до 21 первичного цифрового потока E1.

Высокие показатели надежности и живучести проектируемой цифровой первичной сети связи дорожного уровня, как и магистрального уровня, обеспечиваются использованием защитной коммутации тракта SNCP для виртуальных контейнеров высокого и низкого порядков, благодаря способности универсального синхронного мультиплексора SMS-600V работать в двухволоконных кольцевых структурах.

Цифровая первичная сеть связи на всех уровнях (магистральном, дорожном, отделенческом) обеспечивает каналами высокого качества и надежности с требуемой пропускной способностью все вторичные сети связи: оперативно-технологическую связь, в т.ч. и технологическую радиосвязь, сеть общетехнологической телефонной связи, сеть передачи данных.

1.1.2 Существующая сеть общетехнологической телефонной связи ШЧ-6

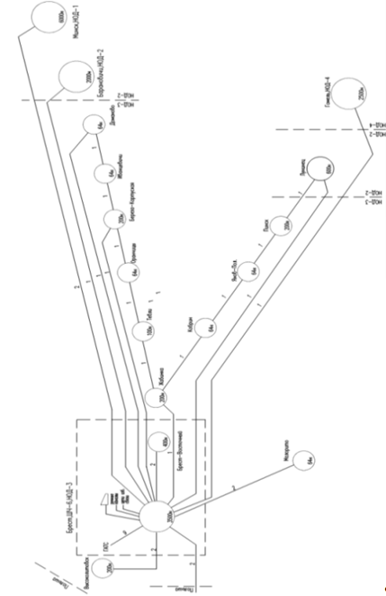
Проектируемый участок железной дороги, представленный на рисунке 1.1, - Брестская дистанция сигнализации и связи (ШЧ-6) Брестского отделения дороги (НОД-3).

Узловая станция ШЧ-6 емкостью 3500 номеров расположена в г.Брест.

В границах дистанции расположено 12 АТС различных станций. Имеется выход на городскую сеть ТфОП. Узловая станция оборудована РМТС. Организовано подключение оборудования технологической телефонной связи (ТТС) через распорядительную станцию диспетчера РСДТ-У.

За пределами города в направлении Минска расположено 3 АТС, в направлении Бреста - 7 АТС, в направлении Гомеля - 5 АТС.

Организовано прямое соединение с дорогами сопредельных государств, с дистанциями Барановичи ШЧ-3 и Осиповичи ШЧ-4.

На участке ШЧ-6 находятся в эксплуатации АТС цифровой, квазиэлектронной и координатной систем.

Анализ существующей сети ОбТС показал, что сеть не соответствует современным требованиям по качеству связи, возможностям связи; 40 % оборудования находится 20 и более лет в эксплуатации и изношено физически.

Рисунок 1.1 - Структурная схема существующей сети ОбТС Брест ШЧ-6

 

.2 Технико-экономическое обоснование реорганизации сети с применением современного оборудования


Внедрение новой техники должно способствовать решению задач по повышению эффективности производства и улучшению качества продукции и услуг.

Организация и реорганизация сетей телефонной связи должны осуществляться на основе применения коммутационного оборудования с программным управлением, обеспечивающего цифровой соединительный тракт, автоматизацию технического обслуживания и соответствовать требованиям абонентов по видам предоставляемых услуг. Это позволит:

-       уменьшить стоимость телефонной сети путем децентрализации коммутационных устройств и введения цифровой коммутации;

-       обеспечить независимость качества связи от расстояния при введении цифровой передачи и коммутации;

-       программно изменять назначение станции, что обеспечивает большую гибкость системы;

-       значительно сократить обслуживающий персонал за счет большей надежности оборудования, а также автоматического контроля.

Указанные требования могут быть выполнены только при использовании цифровых систем коммутации.

При обосновании применения цифрового коммутационного оборудования пользуются техническими, технико-экономическими и моральными критериями.

Технико-экономические критерии основаны на анализе уровня надежности и связаны с последствиями отказов объектов. Технические критерии основаны на анализе уровня надежности и связаны с последствиями отказов объектов.

Эксплуатационные затраты основаны на анализе составляющих текущих затрат как затрат на содержание персонала, транспортные затраты, затраты на текущее обслуживание оборудования, оплату электроэнергии, содержание средств эксплуатации, потери от простоя коммуникационного оборудования.

Моральные критерии отражают степень соответствия свойств коммутационной платформы требованиям предоставления современных коммуникационных услуг.

1.3 Определение конечной емкости станций сети, числа абонентов по категориям. Организация сети с составлением схемы связи и разработка системы нумерации


Единая система нумерации предназначена для применения на цифровых местных и междугородных сетях ОбТС и для использования на переходный период при одновременной работе фрагментов цифровой и аналоговой сетей в рамках железной дороги.

В основу плана нумерации цифровой сети ОбТС положен принцип единой закрытой пятизначной нумерации вида аХХХХ внутри одной зоны (на рисунке 3.5 показаны три таких зоны внутри железной дороги).

Единая система нумерации на цифровой сети связи (ЕСНЦ) железнодорожного транспорта должна использоваться во всех зоновых сетях и на магистральной сети ОбТС.

Внутри каждой зоны применяется закрытая 5-значная нумерация. Абонентам присваиваются номера вида аХХХХ, где а - любая цифра, кроме 1, 9, 8, 0. В пределах одной зоны число абонентов ОбТС может доходить до 60000.

Номера вида 1ХХХХ закрепляются за линиями специального назначения (стол заказов РМТС, стол справок и т.п.).

Индекс выхода на телефонную сеть общего пользования - цифра 9.

Индекс выхода в другую зону сети ОбТС - цифра 0.

Номера вида 8ХХ резервируются в качестве кодов выхода на коммерческие сети и для доступа к перспективным сервисным службам.

Каждой зоне сети ОбТС присваивается двухзначный код вида АВ, где А - любая цифра, кроме 9 и 0, В - любая цифра.

При установлении соединения внутри зоны набирается 5-значный номер вызываемого абонента: аХХХХ.

При соединении между абонентами разных зон набирается индекс доступа к междугородной сети 0, код зоны АВ и 5-значный номер вызываемого абонента: 0-АВ-аХХХХ. Прослушивания акустического сигнала станции после набора 0 не требуется.

Для ЦСС выделена отдельная зона с кодом АВ = 30, так как наша зона находится в ведомстве НОД-3.

При соединении от абонента железнодорожной сети к абоненту сети общего пользования набирается индекс доступа к сети общего пользования 9 и номер абонента ГТС в соответствии с принятым на данной сети планом нумерации.

В процессе соединения от абонента железнодорожной сети к сети междугородной или международной связи общего пользования после индекса 9 набирается код выхода на междугородную станцию 8, а затем либо междугородный или международный номер, либо код выбора оператора междугородной или международной связи (две цифры) и далее междугородный или международный номер.

При соединении от абонента железнодорожной сети к специальным службам сети общего пользования (0X, 0ХХ) после индекса 9 набирается номер соответствующей службы.

При составлении плана нумерации желательно, чтобы совпадали последние цифры номера ОбТС и ГТС. В случае невыполнения данного условия АТС сети ОбТС должна устанавливать соединения с применением двух планов нумерации - для сети ОбТС и для сети ОП.

На цифровой сети при установлении соединений внутри зоны и между зонами передача акустического сигнала ответа станции, а также речевых сообщений не предусматривается. Такие сигналы могут сохраниться на этапе, пока существует цифро-аналоговая сеть.

В таблице 1.1 представлена характеристика системы единой нумерации на цифровой сети ОбТС.

Таблица 1.1 - Конечная емкость станций и организации нумерации

Станция

Монтируемая емкость

Конечная емкость

Распределение емкости

Код

Нумерация

ДС Брест

3500

4500

О -2000 С - 1500 К - 1000

30

43000-44999 45000-46499 52000-52999

Брест Восточный

400

600

С - 400 К - 200

30

46500-46899 53000-53199

Жабинка

200

300

С - 200 К - 100

30

46900-47099 53200-53299

Высоколитовск

200

300

С - 200 К - 100

30

47100-47299 53300-53399

Малорита

64

96

С - 64 К - 32

30

47300-47363 53400-53431

Тевли

100

150

С - 100 К - 50

30

47364-47463 53432-53481

Оранчицы

64

96

С - 64 К - 32

30

47464-47527 53482-53515

Береза-Картуская

200

300

С - 200 К - 100

30

47528-47727 53516-53615

Ивацевичи

64

96

С - 64 К - 32

30

47728-47791 53616-53647

Доманово

64

96

С - 64 К - 32

30

47792-47855 53648-53679

Кобрин

64

96

С - 64 К - 32

30

47856-47919 53680-53711

Янов-Полеский

64

96

С - 64 К - 32

30

47920-47983 53712-53743

Пинск

200

300

С - 200 К - 100

30

47984-48183 53744-53843


Таблица 1.2 - Распределение абонентов станций по типам оборудования

Станция

Конечная емкость

Количество абонентского оборудования типа



NPSTN - 90%

NISDN - 3 %

NSH - 2%

Ni_lan - 2%

Nj_v5 - 3%

ДС Брест

4500

4050

135

90

90

135

Брест Восточный

600

540

60

-

-

-

Жабинка

300

270

30

-

-

-

Высоколитовск

300

270

30

-

-

-

Малорита

96

86

10

-

-

-

Тевли

150

135

15

-

-

-

Оранчицы

96

86

10

-

-

-

Береза-Картуская

300

270

30

-

-

-

Ивацевичи

96

86

10

-

-

-

Доманово

96

86

10

-

-

-

Кобрин

96

86

10

-

-

-

Янов-Полеский

96

86

10

-

-

-

Пинск

300

270

30

-

-

-


Рисунок 1.2 - Схема первичной сети связи Брест ШЧ-6

2.     
ВЫБОР КОММУТАЦИОННОГО ОБОРУДОВАНИЯ С РАЗРАБОТКОЙ СХЕМЫ СЕТИ ОбТС


2.1 Разработка схемы NGN/IMS


Схема сети телефонной связи железнодорожного узла разрабатывается в соответствии с заданием и с учетом монтируемой и конечной емкостей выбранных станций коммутации, количества видов внешней связи, выбранной системы нумерации, дополнительных видов услуг. Примерные схемы сетей IMS представлены на рисунках 2.1 и 2.2. Они отражают характер терминального оборудования, способ взаимосвязи и определяет способность сети к доставке информации в требуемые пункты сети. На рисунках приняты следующие обозначения: SX - гибкий коммутатор; AS - сервер приложений; SA - коммутатор доступа; SG - сигнальный шлюз; TG - транспортный шлюз; RAGW - резидентный шлюз доступа.

Шлюзы NGN сети:

-       сигнальные шлюзы (Signaling Gateway, SG), используемые только в интересах управления установлением соединений;

-       транспортные шлюзы (Media Gateway, MG), применяемые для сопряжения взаимодействующих сетей по форматам передачи пользовательских данных;

-       транкинговые шлюзы (Trunking Gateway, TGW), обеспечивающие совместное выполнение функцийMG и SG;

-       шлюзы доступа (Access Gateway, AGW), играющие роль MG и SG для оборудования доступа, подключаемого через интерфейс V5;

-       резидентные шлюзы доступа (Residential Access Gateway, RAGW), позволяющие подключать к NGNпользователей, использующих терминальное оборудование СТфОП/УЦСИС.

Абоненты железнодорожного узла, как показано на схеме, должны иметь выход на городскую телефонную сеть.

На рисунках 2.1 и 2.2 показано всё оборудование, которым оснащается участок дороги, а также количество абонентов по типам.

В целом технология NGN представляет собой очередной шаг в эволюции сетей электросвязи. Значимость этого шага для развития телекоммуникаций можно будет оценить только после эксплуатации сетей NGN в течении 5-10 лет.

Сеть абонентского доступа представляет собой постоянно развивающийся организм, аппаратные и программные средства которого ежегодно пополняются новыми "ноу-хау". В сложившихся условиях существенно повышается значение вопросов планирования и проектирования СД в общей проблематике построения информационной инфраструктуры любого масштаба.

Рисунок 2.1 - Схема сети NGN/IMS Брест ШЧ-6 (часть 1)

Рисунок 2.2 - Схема сети NGN/IMS Брест ШЧ-6 (часть 2)

2.2 SoftSwitch Huawei U-SYS


Сетевой коммутатор или свитч (свич от англ. switch - переключатель) - это устройство, позволяющее подключать несколько компьютеров к одной сети. Передача данных при помощи switch <#"862726.files/image005.gif">

Рисунок 2.5 - Интегрированный медиашлюз доступа UA5000

сеть связь железнодорожный доступ

Таблица 2.3        - Основные характеристики оборудования UA5000

Параметры

Значение

Поддерживаемая емкость

1920 POTS / 1920 ADSL2+ на статив, 32 POTS / 32 ADSL2+ на плату

Применение

· TMG - медиашлюз соеденительных линий · AMG - медиашлюз доступа · VIG - шлюз видеовзаимодействия между абонентами мобильной и NGN сетей

Интерфейсы услуг

· POTS · ISDN · ADSL/ADSL2+ · COMBO · G.SHDSL · V.24/V.35 · FXO/FXS · 2/4 Wire

Сетевые интерфейсы

· ATM · GE · FE

Протоколы

· V5 · H.248


2.6 SBC - SessionEngine2000  <#"862726.files/image006.gif"> 

где 1,1 - коэффициент, учитывающий нагрузку, создаваемую вызовами, которые не закончились разговором из-за занятости абонентских линий, неответа вызываемого абонента, ошибочно набранного номера и др;р - коэффициент, учитывающий долю вызовов, закончившихся разговором;

 - число источников нагрузки создающих внутристанционную нагрузку;

Свн - среднее число вызовов от одного источника нагрузки внутри станции;

Тср.вн - средняя длительность занятия абонентской внутри станции в секундах. Для вызовов, закончившихся разговором.

При вычислении среднего числа вызовов на одно абонента были взяты реальное количество вызовов в ЧНН(час наибольшей нагрузки) и поделено количество абонентов создающих эту нагрузку. В реальности внутри станции совершают звонки работники у которых работа на одном месте(начальство, дежурные и т.д.).

 

где    0,6742 - коэффициент, определенный из нормированной функции Лапласа.

Расчет нагрузки на межгород, УПАТС и ГАТС считаем по аналогично как и для внутристанционной нагрузки .

Нагрузка по междугородным линиям (без кв. сектора):

 

 

Нагрузка по соединительным линиям с УПАТС (без кв. сектора):

 

 

Нагрузка по соединительным линиям с ГАТС входящая:

 

 

Нагрузка по соединительным линиям с ГАТС исходящая:

 

 

Общая нагрузка ГАТС:

 

Разделение нагрузки на входящее и исходящее направление без анализа подробной статистики не производится. При этом необходимо учитывать, что все каналы в нашей сети двусторонние. Примем равные нагрузки для исходящих и входящих звонков. Таким образом, расчетная нагрузка на абонентские линии:

 

Тогда удельная нагрузка на одну абонентскую линию:

 

Для упрощения расчетов в данном курсовом проекте полученное значение удельной нагрузки будем использовать для всех типов абонентов.

.        РАСЧЕТ ПАРАМЕТРОВ ШЛЮЗОВ ДОСТУПА, ИХ КОЛИЧЕСТВА, А ТАКЖЕ ЕМКОСТНЫЕ ПОКАЗАТЕЛИ ПОДКЛЮЧЕНИЯ ШЛЮЗОВ К ТРАНСПОРТНОЙ СЕТИ

4.1   Расчет шлюза доступа

Шлюз доступа поддерживает взаимодействие IMS-сети с ТфОП и позволяет устанавливать соединения между пользователями этих сетей. Он имеет распределенную структуру, характерную для архитектуры Softswitch: SGW - Signaling Gateway, MGCF - Media Gateway Control Function и MGW - Media Gateway.

Определим общую нагрузку, поступающую от различных абонентов на шлюз доступа.

Общая нагрузка от абонентов PSTN:

 

где  - количество абонентов PSTN;

 - удельная нагрузка на одну абонентскую линию.

Общая нагрузка от абонентов ISDN:

 

где  - количество абонентов ISDN.

Общее количество абонентов . Найдем общую нагрузку, поступающая на шлюз доступа, который обеспечивает подключение оборудования доступа через интерфейс V5:

 

С помощью калькулятора Эрланга найдем количество линий нужных для обеспечения данной нагрузки.

Для подключения абонентов V5 будем использовать протокол V5.2 тогда количество портов нужных для подключения 135 абонентов нам понадобится:

 

Количество УПАТС: M_PBX = 2; емкость каждой УПАТС .

Нагрузка, поступающая от одной УПАТС:

 

Общая нагрузка, поступающая на транкинговый шлюз, к которому подключено оборудование УПАТС:

 

Если шлюз реализует функции резидентного шлюза доступа, шлюза доступа и транкингового шлюза подключения УПАТС, то общая нагрузка, поступающая на шлюз:

 

Для каждого из сетевых элементов составим таблицу, в которой проводится сравнение максимальных значений параметров подключения, предусмотренных для этого оборудования, и того реального количества подключенных абонентов.

Исходя из количества портов различных типов, необходимо поставить 3 шлюза. Схема распределения подключения абонентов приведена на рисунке 4.1.

Распределяем наших абонентов таким образом, что бы нагрузка создаваемая каждым из них была приблизительно равной.

Шлюз RAGW1.1 Интегрированный медиашлюз доступа, UA5000, HUAWEI

Тип порта

Значение для оборудования

Подключено портов

POTS

1350

1350

ISDN

0

0

PRI

0

0

V5

1

1


Шлюз RAGW1.2 Интегрированный медиашлюз доступа, UA5000, HUAWEI

Тип порта

Значение для оборудования

Подключено портов

POTS

1350

1350

ISDN

0

0

2

2

V5

0

0


Шлюз RAGW1.3 Интегрированный медиашлюз доступа, UA5000, HUAWEI

Тип порта

Значение для оборудования

Подключено портов

POTS

1450

1350

ISDN

235

135

PRI

0

0

V5

0

0




Рисунок 4.1 - Распределение подключения абонентов

Коммутатор SA1.1 Гибкий коммутатор, SoftX3000, HUAWEI

Тип порта

Значение для оборудования

Подключенное оборудование

Подключено портов

100M

300

MG

1



GW

3



Аб. SIP/H.323

90



LAN

2

1G

2

WAN

1


При таком распределении подключения абонентов по шлюзам появляется возможность покупать меньше разнотипных плат в каждый отдельный шлюз, что приводит к уменьшению стоимости проекта.

Для рассматриваемого варианта задано следующее процентное соотношение использования различных кодеков:

1.      Кодек G.711 - 70 % вызовов.

2.      Кодек G.723 h/r - 30 % вызовов.

Скорости, с которыми будет передаваться пользовательская информация при условии использования кодеков разных типов:

Для кодека G.711:

 

где  - коэффициент избыточности;

 - скорость кодека.

Для кодека G.723 h/r:

 

Рассчитаем, какая нагрузка поступает на каждый шлюз.

Общая нагрузка на 1-й шлюз.

 

где  - нагрузка создаваемая абонентами PSTN подключенными к первому шлюзу;

 - нагрузка создаваемая абонентами V5 подключенными к первому шлюзу.

При этом данная нагрузка обрабатывается разными кодеками, их процентное соотношение было приведено выше.

Для кодека G.711:

 

Для кодека G.723 h/r:

 

Рассмотрим СМО с потерями.

Пользуясь калькулятором Эрланга, определим число соединений, необходимое для обслуживания нагрузки, обрабатываемой кодеком определенного типа (х), с условием, что вероятность потери вызовов ρ = 0,001:

Для кодека G.711: x = 73;

Для кодека G.723 h/r: x = 37;

Таким образом, транспортный поток на выходе кодеков G.711 и G.723 h/r:

 

 

Тогда транспортный поток на выходе первого шлюза:

 

Нанесем полученные результаты на схему шлюза (рисунок 4.2).

Рисунок 4.2 - Распределение подключения абонентов

Общая нагрузка на 2-ой шлюз.

 

где  - нагрузка создаваемая абонентами PSTN подключенными к второму шлюзу;

 - нагрузка создаваемая абонентами PBX подключенными к второму шлюзу.

При этом данная нагрузка обрабатывается разными кодеками, их процентное соотношение было приведено выше.

Для кодека G.711:

 

Для кодека G.723 h/r:

 

Рассмотрим СМО с потерями.

Пользуясь калькулятором Эрланга, определим число соединений, необходимое для обслуживания нагрузки, обрабатываемой кодеком определенного типа (х), с условием, что вероятность потери вызовов ρ = 0,001:

Для кодека G.711: x = 79;

Для кодека G.723 h/r: x = 40;

Таким образом, транспортный поток на выходе кодеков G.711 и G.723 h/r:

 

 

Тогда транспортный поток на выходе первого шлюза:

 

Нанесем полученные результаты на схему шлюза (рисунок 4.3).

Рисунок 4.3 - Распределение подключения абонентов

Общая нагрузка на 3-ий шлюз.

 

где  - нагрузка создаваемая абонентами PSTN подключенными к третьему шлюзу;

 - нагрузка, создаваемая абонентами ISDN подключенными к третьему шлюзу.

При этом данная нагрузка обрабатывается разными кодеками, их процентное соотношение было приведено выше.

Для кодека G.711:

 

Для кодека G.723 h/r:

 

Рассмотрим СМО с потерями.

Пользуясь калькулятором Эрланга, определим число соединений, необходимое для обслуживания нагрузки, обрабатываемой кодеком определенного типа (х), с условием, что вероятность потери вызовов ρ = 0,001:

Для кодека G.711: x = 73;

Для кодека G.723 h/r: x = 37;

Таким образом, транспортный поток на выходе кодеков G.711 и G.723 h/r:

 

 

Тогда транспортный поток на выходе первого шлюза:

 

Нанесем полученные результаты на схему шлюза (рисунок 4.4).

Рисунок 4.4 - Распределение подключения абонентов

Общий транспортный поток в интерфейсе подключения шлюзов к коммутатору доступа:

 

Рассмотрим СМО с ожиданием.

Определим λ для каждого вида кодека:

 

 

Теперь можно рассчитать общую интенсивность поступления пакетов в канал:

 

Предельно допустимая задержка доставки IP-пакета от одного пользователя услуг VoIP к другому не должна превышать S = 100 мс.

Зная величину задержки и интенсивность поступления заявок, определим интенсивность обслуживания заявок в канале:

 

Рассчитав значения интенсивности поступления и обслуживания заявок, определим нагрузку канала:

 

Зная транспортный поток, поступающий в канал, и зная, что этот поток может максимально нагружать канал на величину ρ, определим общий требуемый объем канала τ:

 

4.2 Расчет основных параметров коммутатора доступа

Возможны разные варианты построения сети ОбТС-П на железных дорогах. На сети ОбТС-П должны сохраниться магистральный и дорожный уровни иерархии. Внутри железной дороги должны быть образованы районы, в каждом из которых используется единая 5-значная нумерация. В пределах одного или нескольких районов должен быть центр технического обслуживания сети ОбТС-П. Количество районов сети ОбТС-П зависит от конкретной железной дороги. В частности один район может совпадать с одним отделением железной дороги. На рисунке 4.5 в качестве примера показана общая схема построения сети ОбТС-П на одной железной дороге с пятью районами. В каждом районе находятся устройства, управляющие соединениями: коммутаторы Softswitch и/или SIP-серверы, а также сервер конференцсвязи. На схеме для районов 1, 2 и 3 показаны только коммутаторы Softswitch, SIP-серверы и серверы конференцсвязи. На рисунке штрихпунктирные линии указывают на логические соединения между узлами сети и с узлами других сетей. Так, например, SIP-сервер района 2 может маршрутизировать вызовы к коммутаторам Softswitch районов 1 и 5 и к SIP-серверу района 4. Предполагается, что все узлы сети ОбТС-П включены в дорожную IP-сеть.

На дорожной сети в главном районе (на рисунке 4.5 - район 1), в котором находится Управление железной дороги, должен устанавливаться коммутатор Softswitch, выполняющий роль дорожного узла (ДУ). Этот коммутатор логически связан с SIP-серверами и коммутатором Softswitch других районов. Через него осуществляются соединения внутри района и между районами железной дороги, а также с другими дорожными узлами на магистральном уровне. Коммутатор Softswitch ДУ обеспечивает соединения с сетью общего пользования для абонентов района 1.

В других районах преимущественно должны устанавливаться SIP-серверы, а в наиболее крупных - коммутаторы Softswitch (на рисунке 4.5 - район 5). SIP-сервер или коммутатор Softswitch обслуживает вызовы внутри одного района, устанавливая соединения между абонентами этого района и внешние соединения с другими районами сети ОбТС-П и с сетью ОП. Эти же устройства устанавливают транзитные соединения между районами. В каждом районе для включения аналоговых телефонных аппаратов должны применяться шлюзы различной емкости, распределяемые по разным железнодорожным станциям. Шлюзы логически связаны с SIP-сервером или коммутатором Softswitch. Возможен вариант объединения шлюзов с управлением от контроллера MGC по протоколу MGCP адаптеры.

Как видно из рисунка 4.5, на сети ОбТС-П предусматривается не менее двух маршрутов установления соединений между районами, что повышает живучесть сети и предотвращает перегрузки отдельных SIP-серверов и коммутаторов Softswitch при установлении транзитных соединений.

В каждом районном центре или в одном центре, обслуживающем несколько районов, должны устанавливаться серверы конференцсвязи, с помощью которых организуются аудио конференции для абонентов одного и/или разных районов. Ресурсы конференц-серверов могут быть распределены между сетями ОбТС и ОТС.

Рисунок 4.5 - Пример построения сети ОбТС-П

Взаимодействие с сетью ОП должно происходить в каждом районе на местном уровне. Управление соединениями с сетью ОП должно осуществляться SIP-сервером или коммутатором Softswitch соответствующего района. Если телефонная сеть ОП является пакетной, то SIP-сервер или коммутатор Softswitch сети ОбТС обменивается сигнальной информацией с узлом управления сети ОП, например, с коммутатором Softswitch сети ОП (на рисунке 3.6 - район 4). С целью пропуска речевого и сигнального трафика IP-сеть ОбТС должна быть напрямую связана с IP-сетью ОП (на рисунке 4.5 - IP-сети не показаны). При взаимодействии с TDM-сетью ОП, должны использоваться шлюзы соединительных линий, причем в одном районе может быть несколько точек присоединения к сети ОП (на рисунке 4.5 для района 5 показаны две точки присоединения). На сети ОП каждая точка присоединения организуется для отдельной АТС.

Для сети ОбТС характерно множество железнодорожных станций небольшой емкости, расположенных вдоль одной линии. Доступ пользователей этих станций к IP-сети железной дороги может осуществляться разными способами. Рассмотрим варианты сети доступа с применением цифровых линий xDSL и коммутаторов локальной сети.

Расчет нагрузки создаваемой IP абонентами (SH и LAN) производится аналогично шлюзу. При этом необходимо учитывать, что кодек встроен в аппарат и всю работу он выполняет индивидуально для абонента.

Общая нагрузка, создаваемая абонентами SH:

 

где  - количество абонентов SH;

- удельная нагрузка на одну абонентскую линию.

Общая нагрузка, создаваемая абонентами LAN:

 

где  - количество абонентов LAN;

- удельная нагрузка на одну абонентскую линию.

Нагрузка обрабатывается разными кодеками.

 

 

 

 

Требуемое число соединений:

 

 

 

 

Транспортный поток на выходе кодека:

 

 

 

 

Тогда общий транспортный поток:

 

 

 

Требуемый объем канала:

 

Для передачи сигнального трафика создается отдельный логический канал, параметры которого необходимо определить.

Протокол управления транспортным шлюзом H.248/Megaco является развитием протокола MGCP. Так же, как и протокол MGCP, он является внутренним протоколом, который работает между функциональными блоками распределенного шлюза, а именно - между MGC и MG. Принцип действия этого протокола тот же - master/slave (ведущий/ведомый). Устройство управления MGC является ведущим, а транспортный шлюз MG - ведомым, т.е. шлюз MG выполняет команды, которые поступают к нему от устройства управления.

В коммутаторе доступа для обмена сообщениями протокола MEGACO, используемого для управления шлюзом, должен быть предусмотрен транспортный ресурс, который определяется формулой:

 

где общее количество абонентов, подключенных при помощи сетей LAN, PBX и V5, а также аналоговых PSTN и цифровых ISDN абонентов и ранее рассчитанные значения.

Примем значение ksig = 5, что соответствует нагрузке в 0,2 Эрл, т.е. одна пятая часть времени сеанса тратится на передачу сигнальной информации.

Для передачи сигнальной информации с целью обслуживания вызовов различных типов требуются следующие размеры полосы пропускания:

 

 

 

 

 

Где LV5UA - средняя длина сообщения протокола V5UA;V5UA - среднее количество сообщений протокола V5UA при обслуживании одного вызова;IUA - средняя длина сообщения протокола IUA;IUA - среднее количество сообщений протокола IUA при обслуживании одного вызова;SH - средняя длина сообщения протоколов SIP/H.323;SH - среднее количество сообщений протоколов SIP/H.323 при обслуживании одного вызова.

Общий поток сигнальной информации:

 

Общая требуемая пропускная способность коммутатора доступа:

 

Результаты расчетов приведены на рисунке 4.5.

Рисунок 4.6 - Распределение потоков данных коммутатора доступа

4.3 Расчет оборудования гибкого коммутатора

Основной задачей гибкого коммутатора при построении распределенного абонентского концентратора является обработка сигнальной информации обслуживания вызова и управление установлением соединений.

Рассчитаем общую интенсивность потока вызовов от источников всех типов, обрабатываемых гибким коммутатором:

 

Теперь определим нижний предел производительности гибкого коммутатора при обслуживании потока вызовов с интенсивностью PCALL:

 

где ,,, - поправочные коэффициенты для каждого вида абонентов.

Общий поток сигнальной информации, поступающий через коммутатор доступа и рассчитанный ранее:

 

Рисунок 4.7 - Распределение сигнальных потоков распределенного абонентского концентратора

5.     
РАСЧЕТ ТРАНСПОРТНОГО РЕСУРСА, НЕОБХОДИМОГО ДЛЯ ВЗАИМОДЕЙСТВИЯ СЕТЕВЫХ ЭЛЕМЕНТОВ

5.1 Расчет оборудования транспортных шлюзов

Общая нагрузка между сетями ОбТС и ТфОП:

 

Определим необходимое число потоков E1 для обслуживания данной нагрузки.

Пользуясь первой формулой Эрланга или одноименным калькулятором определяем число линий, необходимых для облуживания данной нагрузки при вероятности потерь 0,001: x = 68. Это соответствует числу первичных потоков 68 / 30 = 2,267 ≈ 3Е1.

С учетом 20% запаса число линий увеличивается до 68∙1,2 = 81,6 ≈ 82. Соответственно требуемое число потоков E1 составит:

 

Округляем до 4Е1 так как в одной плате содержится 2 потока Е1, то есть количество каналов четное.

Удельная нагрузка на один канал 64 кбит/с в потоке E1 составит:

 

Рассчитаем общую нагрузку с учетом резерва, поступающую на транспортный шлюз от АТС ТфОП:

 

Нагрузка обрабатывается разными кодеками:

 

 

Требуемое число соединений:

 

 

Транспортный поток на выходе кодека:

 

 

Тогда общий транспортный поток:

 

Требуемый объем канала:

 

Рассчитаем транспортный ресурс, необходимый для передачи сообщений протокола MEGACO:

 

Таким образом, общий транспортный ресурс MGW будет равен:

 

Результаты расчетов приведены на рисунке 5.1.

Рисунок 5.1 - Распределение потоков данных транзитного коммутатора доступа

5.2 Расчет оборудования гибкого коммутатора

Интенсивность потока вызовов, поступающих на транспортный шлюз, определяется формулой:

 

Интенсивность потока вызовов, поступающих на гибкий коммутатор:

 

В рассчитываемой нами сети количество шлюзов L = 1, следовательно, значения PSX и Pl_GW будут совпадать:

 

Учитывая среднюю длину и количество сообщений протокола MxUA, необходимых для обслуживания одного вызова, можно вычислить транспортный ресурс для подключения сигнальных шлюзов к пакетной сети:

 

Аналогично, транспортный ресурс гибкого коммутатора, необходимый для передачи сообщений протокола MGCP, составляет:

 

Суммарный минимальный полезный транспортный ресурс Softswitch, требуемый для обслуживания вызовов в структуре транзитного коммутатора, составляет:

 

Результаты расчетов приведены на рисунке 5.2.

Рисунок 5.2 - Распределение сигнальных потоков распределенного транзитного коммутатора

Общая производительность гибкого коммутатора составит:

 

.    
РАЗРАБОТКА СТРУКТУРНОЙ СХЕМЫ СЕТИ IMS

6.1 Расчет нагрузки на S-CSCF

CSCF - центральная интеллектуальная функция на сигнальном уровне, т.е. функция SIP-сервера, который управляет сеансом. Помимо этого, S-CSCF выполняет функцию регистрирующего сервера сети SIP (SIP-registrar), то есть поддерживает привязку местоположения пользователя (например, IP-адресом терминала, с которого пользователь получил доступ в сеть) к его SIP-адресу (PUI-Public User Identity).

Функция S-CSCF взаимодействует по протоколу Diameter с HSS, получает от последнего данные аутентификации пользователя, пытающегося получить доступ к сети, и данные о профиле пользователя, т. е. перечень доступных ему услуг - набор триггерных точек для маршрутизации сообщения SIP к серверам приложений. В свою очередь, функция S-CSCF информирует HSS о том, что этот пользователь прикреплен к нему на срок своей регистрации, и о срабатывании таймера регистрации.

Таблица 6.1 - Исходные данные

Параметр

Значение

5 сообщений

15 сообщений

10 сообщений

15сообщений

140 байт

X%

20%

Y%

30%

15 сообщений


Транспортный ресурс, необходимый для организации взаимодействия между S-CSCF и Softswitch:

 

Транспортный ресурс, необходимый для организации взаимодействия между S-CSCF и серверами приложений (AS):

 

Транспортный ресурс, необходимый для организации взаимодействия между S-CSCF и MRF:

 

Транспортный ресурс, необходимый для организации взаимодействия между S-CSCF и I-CSCF:

 

Тогда общий транспортный ресурс:

 

6.2 Расчет нагрузки на I-CSCF

CSCF - еще один SIP-прокси, расположенный на границе административного домена Оператора. Когда SIP-сервер определяет следующую пересылку для некоторого SIP-сообщения, он получает от службы DNS адрес I-CSCF соответствующего домена. Кроме исполнения функций SIP-прокси I-CSCF взаимодействует по протоколу Diameter с HSS и SLF, получает от них информацию о местонахождении пользователя и об обслуживающей его S-CSCF. Если никакая функция S-CSCF еще не назначена, функция I-CSCF производит ее назначение.

Транспортный ресурс между Softswitch и I-CSCF (рис. 6.1), который требуется для обмена сообщениями по протоколу SIP во время обслуживания вызовов:

 

Общий транспортный ресурс:

 

Функция управления сеансами CSCF (Call Session Control Function) является центральной частью системы IMS, представляет собой, по сути, SIP-сервер и обрабатывает SIP-сигнализацию в IMS. Существуют функции CSCF трех типов: Proxy-CSCF (P-CSCF), Interrogating-CSCF (I-CSCF) и Serving-CSCF (S-CSCF).

Первая из перечисленных, функция P-CSCF - это первая точка взаимодействия (на сигнальном уровне) пользовательского IMS-терминала и IMS-сети. С точки зрения SIP, она является входящим/исходящим прокси-сервером, через который проходят все запросы, исходящие от IMS-терминала или направляемые к нему. Однако функция P-CSCF может вести себя и как агент пользователя UA, что необходимо для прерывания сеансов в нестандартных ситуациях и для создания независимых SIP-транзакций, связанных с процессом регистрации.

Рисунок 6.1 - Архитектура IMS. Результаты расчета нагрузки на S-CSCF и на I-CSCF

.    
РАЗРАБОТКА ПЛАНА РАЗМЕЩЕНИЯ И ЭЛЕКТОПИТАНИЯ ПРОЕКТИРУЕМОГО ОБОРУДОВАНИЯ

Стены и потолок должны быть ровными и гладкими, чтобы не накапливалась пыль и для облегчения уборки помещения. Стены и потолок рекомендуется покрыть светлой синтетической акриловой краской.

Пол должен быть ровным и нивелированным. Допустимое отклонение нивелировки пола должно составлять ±3 мм/м2. Пол необходимо покрыть антистатическим материалом во избежание появления ошибок, вызванных статическим электричеством.

Максимальная нагрузка пола должна составлять 9500 ч 10000 Н/м2, распределенная нагрузка - 2500 Н/м2.

Следует предусмотреть общее и дополнительное освещение помещения. Общее электрическое освещение должно составлять не менее 300 люкс рассеянным светом, измеренное на высоте 1 м от уровня пола.

Электрические цепи для освещения, электропитания выпрямителей и электропитания розеток с заземляющим контактом следует отделить друг от друга, то есть их следует подключить к отдельным предохранителям.

Для электропитания выпрямителей следует проложить кабель сечением 5x4 мм2 от главного распределительного ящика 380/220 B до места, где расположен шкаф с выпрямителями (необходимо оставить запас кабеля длиной 2,5 м вне стены на высоте 500 мм от уровня пола).помещении необходимо обеспечить температуру от +5 до +40єC при относительной влажности воздуха 20…80 % (оптимальные условия - 40…60 %).

Похожие работы на - Организация сети связи железнодорожного узла

 

Не нашли материал для своей работы?
Поможем написать уникальную работу
Без плагиата!
Без нейросетей!