Управление девелоперским проектом
Содержание
Введение
1. Теоретическая
часть
2. Практическая
часть
.1 Информация о квартире
2.2 План работы
Заключение
Список литературы
Введение
Становление рыночных отношений в российской экономике
привело к появлению новых самостоятельных направлений в отечественном
менеджменте, которые возникли в результате критического переосмысления
передовой зарубежной управленческой теории и практики, выработки оригинальных
управленческих подходов, методов и средств. Наиболее значительное место в
структуре современного российского менеджмента занимает управление проектом.
Первоначально наиболее часто термин «проект»
использовался проектировщиками в строительстве, где возведение любого объекта
по многим параметрам всегда уникально. Хотя в современных условиях проекты
реализуются в разных областях, благодаря специфике строительства этот термин
приобрел иное содержание: Проект - это системный комплекс плановых (финансовых,
технологических, организационных и прочих) документов, содержащих
комплексно-системную модель действий, направленных на достижение оригинальной
цели.
Управление проектом (проектное управление) - особый
вид управленческой деятельности, базирующийся на предварительной коллегиальной
разработке комплексно-системной модели действий по достижению оригинальной цели
и направленный на реализацию этой модели.
К настоящему времени управление проектами стало
признанной во всем мире профессиональной деятельностью. Методология и средства
проектного управления широко используются во всех сферах целенаправленной и проектно-ориентированной
деятельности. За последние 30 лет управление проектами сформировалось как новая
культура управленческой деятельности и стало своеобразным культурным мостом в
цивилизованном бизнесе и деловом сотрудничестве стран разных континентов с разной
историей развития, традициями, экономикой и культурой.
Сейчас уже трудно назвать хотя бы один значительный
проект, который осуществлялся бы вне рамок идеологии и методологии проектного
управления. Трудно также назвать хотя бы одну известную в мире компанию, не
использующую в своей практике методы и средства проектного подхода.
В данном курсовом проекте затронуты вопросы,
касающиеся управления девелоперским проектом на стадии разработки. Очевидно,
что любой девелоперский проект неразрывно связан с огромными рисками, ведь
только «маленькие деньги» могут быть безрисковыми. Важнейшее значение имеют
такие особенности рынка недвижимости, как локальность, высокая зависимость от
состояния региональной экономики, долгосрочный характер инвестиций, низкая ликвидность
товара на рынке. Накладываясь на высокую капиталоемкость объектов недвижимости
и значительный уровень издержек сделок с недвижимостью, эти обстоятельства
ставят проблему управления рисками на одно из первых мест в девелопменте.
Девелопер - предприниматель, инициирующий и
организующей наилучший из возможных вариантов развития объектов недвижимости,
включая финансирование проекта и реализацию созданного объекта недвижимости. В
обязанности девелопера обычно входят: выбор и определение концептуальной коммерческой
идеи проекта, выбор площадки, оптимально соответствующий концептуальной идее, и
приобретение прав на нее, маркетинг, поиск механизмов привлечения инвесторов,
организация финансирования проекта, организация и управление проектированием,
строительством, сдача завершенного объекта в аренду с последующей эксплуатацией
или его продажа. В зависимости от функциональной направленности различают
офисный, торговый, жилой, гостиничный, спортивный, развлекательный,
рекреационный и комбинированный девелопмент.
1. Теоретическая часть
Толковый словарь по недвижимости, выпущенный в 1993
года в Лондоне, трактует термин " девелопмент " исходя из определения
этого понятия, данного в Законе Великобритании 1971 года "О городском и
сельском планировании", согласно которому это "выполнение
строительных, инженерных, земляных и иных работ на поверхности, над или под
землей или осуществление каких-либо материальных изменений в использовании
зданий или участков земли". И далее составители словаря указывают, что
определять девелопмент именно через эти операции чрезвычайно важно для уяснения
этого понятия, ибо девелопмент не включает работы по улучшению внутреннего
интерьера, по изменению внешнего вида здания.
В буквальном переводе с английского " девелопмент
" означает "развитие", а применительно к недвижимости -
продвижение проектов, связанных с качественным преобразованием недвижимости.
Сущность явления девелопмента можно
выразить как:
) особый вид предпринимательской деятельности с целью
получения дохода в результате преобразования материальных процессов,
выражающийся в инвестиционном развитии объектов недвижимости. Он включает
подбор команды участников проекта, исследование рынка, маркетинг,
проектирование, строительство, финансирование, бухгалтерский учет, управление
имуществом. Эта сфера деятельности требует достаточно крупных инвестиций с
длительным циклом, а объекты недвижимости в течение длительного времени могут
создавать регулярные потоки денежных средств. Это сфера, которая чутко
реагирует на изменения в технологиях, экономике, демографии, архитектуре,
законодательстве, социальной сфере. Таким образом, девелопмент является одной
из разновидностей инвестиционны проектов;
) преобразование объекта недвижимости в результате
строительных (ремонтных) и иных работ со зданиями, сооружениями или землей или
превращение его в другой новый объект недвижимости (изменение функционального
назначения), обладающий большей стоимостью, чем исходный.
Правовой аспект девелопмента связан с юридическим
оформлением произведенных изменений, появления качественно нового объекта
недвижимости. Регистрация вновь созданного объекта и прав на него -
принципиально важный момент, ибо только после этого возможно
Анализ современного российского опыта и присущих ему
проблем свидетельствует о становлении девелопмента как особого рода бизнеса.
Девелопмент становится разновидностью предпринимательской деятельности, в связи
с чем появился производный термин - девелопер.
Девелопер, с экономической точки зрения - это агент
рынка, который в условиях несовершенного рынка выполняет задачу наиболее
эффективного использования ограниченного ресурса - недвижимости (пользователи
недвижимости, специализированные девелоперские компании, финансовые институты и
строительные компании).
Понятие «девелопмент» вошло в обиход участников
российского рынка недвижимости в 2000 году, когда оправившись от кризиса, он
начал бурно развиваться. Девелоперами стали называть себя все - и инвесторы, и
подрядчики, и компании, которым удалось зарезервировать за собой большие
земельные участки. При этом классический девелопмент или продвижение проекта от
идеи до продажи (или сдачи в аренду) конечному потребителю за определенный
гонорар в России был практически не представлен. Это можно объяснить некоторыми
особенностями российского рынка недвижимости - неразвитостью финансового
сектора, отсутствием доступной информации о конъюнктуре рынка, а также сложными
и непрозрачными взаимоотношениями бизнеса и власти.
Долгое время российский рынок недвижимости был рынком
застройщиков. Они боролись за городские заказы, выгодные площадки и объемы.
Девелопмент начал зарождаться, когда заказчики стали уделять внимание не только
количественным показателям, но и качеству проектов. Мало просто построить
здание - необходимо сделать проект физически возможным, юридически допустимым,
а также оправданным и востребованным в данном месте в данном окружении. В
идеале девелоперские компании берут на себя весь комплекс работ по созданию
нового объекта недвижимости: разрабатывают концепцию, подбирают участок,
организуют проектирование, управляют строительством, находят конечных
потребителей. Это многоступенчатый бизнес, требующий привлечения значительного
числа специалистов в области маркетинга, бюджетного планирования,
архитектурного проектирования, строительства, инжиниринга, продажи площадей,
рекламы и т.д.
На данный момент понятие девелопмент (от англ. to
develop - развивать, разрабатывать, раскрывать) понимается как концепция
организации инвестиционного процесса, обеспечивающая эффективные хозяйственные
связи между участниками инвестиционного процесса и в максимальной степени
нацеленная «на результат».
Сущность этой концепции состоит в системном,
«сквозном» воздействии на инвестиционный процесс, в рамках которого разработка,
организация финансирования и осуществление проектов по развитию недвижимости
осуществляются относительно новым для российского рынка участником рынка
профессиональных услуг - девелопером, обеспечивающим создание, управление и
продажу объектов недвижимости в заданные сроки, в пределах соответствующих бюджетных
ограничений, - нередко с использованием собственных средств.
Девелопмент - это вид деятельности,
предусматривающей качественные изменения в объекте и обеспечивающей, как
правило, повышение его стоимости. К объектам девелопмента в общем случае
относят не только объекты недвижимости, но и развитие, например, шоу-бизнеса,
информационных технологий и др. Но во всех случаях в основе девелопмента
находятся инвестиции, которые можно определить как денежные средства, целевые
банковские вклады, паи, акции и другие ценные бумаги, технологии, машины,
оборудование, лицензии, кредиты, любое другое имущество или имущественные
права, интеллектуальные ценности, вкладываемые в объекты предпринимательской
деятельности в целях получения прибыли (дохода) и достижения положительного
экономического и социального эффекта.
) Девелопмент (development) предполагает освоение
свободного участка земли путем возведения на нем зданий или сооружений;
) Модернизация (modernisation) или реконструкция
(reconstruction) предполагает изменение внутренних или внешних строительных
конструкций и элементов, а также элементов инженерных систем, выполняемые для
восстановления соответствия зданий и сооружений современным рыночным
требованием в части функций, объемно-планировочных решений и отделки;
) Реставрация (restoration) предполагает
восстановление существующего здания или его части до первоначального состояния;
) Редевелопмент (redevelopment) предполагает очистку
участка от существующих построек и возведение нового здания или сооружения.
Любое улучшение или обновление существующей городской застройки (в
американской-терминологии).
Таким образом, общим признаком девелопмента как вида
человеческой деятельности является комплексная, «сквозная» организация
инвестиционного процесса, подразумевающая организацию финансирования и
осуществления некоего проекта силами девелопера в заданные сроки и в пределах
соответствующих бюджетных ограничений с целью извлечения коммерческой выгоды.
Говорят также, что девелопмент - это процесс осуществления идеи покупателя/арендатора
или заказчика / собственника / застройщика.
До сих пор в русском языке не существует полноценного
аналога терминам «девелопмент» и «девелопер» - слова «развитие», «застройщик»
«организатор» не в полной мере отражают сущность процессов девелопмента.
Представим основные определения понятий, которые
наиболее часто используются в данной курсовой работе, это, прежде всего:
Девелопер - юридическое или физическое лицо,
обеспечивающее продвижение (реализацию) проекта, получающее прибыль от создания
объектов недвижимости, для чего выступающее в качестве:
· автора идеи проекта;
· покупателя прав на земельный участок
под застройку;
· организатора проектирования объекта,
нанимателя заказчика, генподрядчика, брокеров для реализации вновь созданного
объекта, управляющих недвижимостью. Все участники проекта должны обладать
соответствующими лицензиями;
· финансирует сам или привлекает
необходимые инвестиции.
Недвижимость, недвижимое имущество - земельные и
другие естественные угодья (участки недр, обособленные водные объекты, леса),
другое имущество, прикрепленное к земле, прочно связанное с ней: здания,
сооружения, объекты. Имущество, использование которого по назначению и без
ущерба его характеристикам и ценностным свойствам исключает его перемещение. К
недвижимым вещам относятся также подлежащие государственной регистрации
воздушные и морские суда, суда внутреннего плавания, космические объекты.
Законом к недвижимым вещам может быть отнесено и иное имущество (ст. 130 ГК
РФ).
Проект - ограниченное по времени, целенаправленное
изменение отдельной системы с установленными требованиями по стоимости и
качеству результатов и специфической организацией.
Девелоперский проект - инвестиционный проект,
предполагающий комплексный подход к управлению его реализацией. Данное понятие
используют также как альтернативу так называемому собственному проекту, т.е.
проекту, осуществляемому силами самого заказчика.
Девелоперская (управляющая) компания - компания
(фирма, предприятие), комплексно осуществляющая по поручению заказчика-титулодержателя
(генерального заказчика, инвестора) функции застройщика (заказчика) на всех
фазах проектного цикла: от исследования рынка и прединвестиционных исследований
до завершения проекта (ввода в эксплуатацию, вывода на проектную мощность и
др.).
Управление проектом - наука и искусство руководства
людскими и материальными ресурсами на протяжении жизненного цикла проекта путем
применения современных методов и техники для достижения определенных в проекте
результатов по составу и объему работ, стоимости, времени, качеству и
удовлетворению участников проекта.
Управляющая компания - компания, специализирующаяся на
профессиональном управлении (компаниями, проектами); управляющая компания может
не владеть собственным производственным потенциалом. Данный термин, таким
образом, может быть использован в качестве одной из характеристик девелоперской
компании.
Для того чтобы определить место девелопмента в
современном управлении проектами рассмотрим схему, приведенную на рис. 1:
Рис. 1. Модель основных бизнес-процессов управления
проектом
Управление проектом осуществляется посредством
выполнения сформированных бизнес-процессов, которые можно определить как набор
взаимосвязанных процедур по реализации проектов, конечной целью которых
является получение прибыли за счет продажи созданной проектом продукции.
Назначение каждого бизнес-процесса состоит в том, чтобы предложить потребителю
продукцию, удовлетворяющую его по стоимости, сервису, качеству и долговечности.
Основными преимуществами девелопмента по сравнению с
традиционными формами организации инвестиционной деятельности являются:
· полная (в том числе финансовая)
ответственность за конечные результаты инвестиционной деятельности;
· максимальное комплексирование
услуг/продукции;
· наработка в силу специфической
организационной структуры устойчивых деловых связей как на производственном,
так и на управленческом уровне;
· улучшение финансовых результатов
деятельности за счет снижения финансовых и других рисков, а также перехода от
затратного (сметного) подхода к бюджетированию проектов. Объективно такой
подход означает значительную заинтересованность девелоперской компании в
снижении себестоимости проекта (как единственного средства увеличения
собственной прибыли);
· обеспечение высокого качества работ
за счет повышения профессионализма работников (и как следствие снижение
непроизводительных затрат) путем обязательного обучения современным методам
управления и технологии строительства. Работники девелоперских компаний
«вынуждены» разрабатывать и внедрять наиболее современные системы менеджмента
качества - в первую очередь базирующиеся на требованиях международного
стандарта качества ИСО-9000:2000;
· реальное управление стоимостью
строительства осуществляется на основе современной системы управленческого
учета;
· объективно обусловленная
необходимость реального перехода к конкурсной системе выбора участников
строительства.
Для того чтобы реализовать потенциальные преимущества
новой концепции, девелоперские компании используют новую стратегию, суть
которой сводится к следующим положениям:
· консолидация производственного,
управленческого и финансово-экономического потенциалов компаний-партнеров с
соответствующим повышением ответственности за консолидированные финансовые
результаты проекта;
· системное использование методологии
управления проектами;
· переход к проектной
(проектно-матричной, дивизиональной) структуре с созданием института
проект-менеджеров, обеспечивающих конечный результат в виде законченных
объектов;
· развитие горизонтальных систем
управления с уменьшением иерархичности и упрощением процесса принятия решений;
· консолидация прибыли как основного
источника инвестиций на перспективу;
· привлечение недорогих акционерных и
заемных средств;
· обеспечение достаточно высокого
уровня доходности на вложенный капитал;
· реализация программы приобретений
(поглощений и слияний);
· развитие системы проектного
управления и финансирования.
· разработать и обосновать концепцию
девелопмента применительно к конкретным задачам;
· оценить эффективность проекта,
реализуемого на основе концепции девелопмента;
· осуществить подготовку и реализацию
проекта на всех фазах его жизненного цикла;
· разработать рациональную схему
финансирования, а также смету и бюджет проекта;
· сформировать команду исполнителей;
· оформить юридические права на объект
недвижимости;
· организовать сдачу-приемку объекта;
· организовать эффективное управление
объектом и его продажу.
Успех девелоперской деятельности
определяется рядом факторов, среди которых:
· уровень финансового менеджмента;
· отношения с властными структурами;
· знание рынка в сочетании с
профессиональным «чутьем»;
· профессионализм команды;
· инновационная «смелость» во всех
сферах девелоперской деятельности - от разработки финансовых схем до технологии
сервисного обслуживания построенных объектов.
Девелоперский проект в процессе
своего развития проходит нижеследующие стадии:
1. предпроектная стадия:
· анализ рынка недвижимости,
· подбор объекта недвижимости,
· формирование стратегии проекта,
· инвестиционный анализ,
· оформление исходно-разрешительной
документации,
· привлечение кредитных и
инвестиционных средств;
. стадия проектирования:
· разработка финансовой схемы,
организация финансирования,
· формирование архитектурно-инженерной
группы,
· привлечение для консультаций брокера,
который будет реализовывать площади,
· руководство проектированием,
· проведение тендера на строительные
работы;
. стадия строительства:
· координация ведения строительных
работ (поставка материалов, инженерных работ),
· контроль качества строительства и
сметных расходов;
. стадия реализации:
· маркетинг, реализация площадей,
· контроль за эксплуатацией здания и
работой инженерных систем после окончания строительства.
Одной из важных особенностей девелопмента по сравнению
с традиционной системой управления проектами является значение, которое
уделяется прединвестиционной фазе девелоперского проекта. Если в случае
классического управления проектами в распоряжении заказчика имеется, как правило,
концепция проекта или хотя бы видение того, что он хочет реализовать (жилой
дом, офисное здание, промышленное предприятие), то в случае девелоперского
проекта в широком смысле заказчик чаще всего ждет от девелопера предложений -
какой проект реализовать с тем, чтобы максимизировать будущие прибыли и
минимизировать затраты. Именно поэтому анализ рынка недвижимости, подбор
объекта, а в широком смысле проекта является значимым этапом.
Наиболее важными этапами предпроектной стадии являются
исследование рынка и выбор местоположения будущего объекта. Именно эти этапы
способны повлиять на исход всего проекта.
Исследование рынка должно отвечать на
следующие вопросы:
· в каком секторе рынка существуют
незаполненные ниши в настоящий момент и сохранятся ли они в дальнейшем;
· какой именно объект нужно строить;
· каков наиболее вероятный уровень цен
продажи построенных площадей;
· каков прогноз рентабельности проекта;
· уровень конкуренции в том или ином
сегменте;
· возможные риски и способы их
уменьшения.
Исследование рынка позволяет определить существующее
соотношение спроса и предложения в различных сегментах рынка недвижимости и
таким образом выявить незаполненные ниши, в которых ощущается недостаток тех
или иных площадей. Анализ цен реализации и строительных затрат позволит
выявить, в какой из этих ниш реализация девелоперского проекта будет наиболее
эффективной.
Большое внимание в исследовании должно уделяться
прогнозам этих показателей, поскольку ситуация на рынке динамична. Исследование
должно также содержать анализ деятельности конкурентов с выявлением их сильных
и слабых сторон и характеризовать общий уровень конкуренции в выбранном
сегменте рынка. Еще один важный пункт - анализ существующих рисков и способов
их уменьшения.
Выбор времени осуществления проекта должен учитывать
такую закономерность в развитии рынков недвижимости, как цикличность. Это
особенно важно для девелопмента, поскольку реализация таких проектов длится не
менее двух-трех лет. Таким образом, осуществление проекта может начаться в тот
момент, когда конъюнктура рынка благоприятна, а закончиться в период спада.
Поэтому в последнее время на Западе придерживаются одной из распространенных
теорий девелопмента: проекты нужно начинать в тот момент, когда рынок находится
в нижней точке активности, но уже появились первые симптомы оживления. Тогда к
моменту окончания проекта рынок будет близок к пику активности.
Выбор местоположения - один из ключевых моментов в
развитии девелоперского проекта. Всем известно, что продать или сдать в аренду
плохое здание в хорошем месте легче, чем хорошее здание в плохом месте.
Известный афоризм американских девелоперов гласит: «Стоимость определяется
тремя факторами: местоположением, местоположением и, наконец, местоположением».
Выбор площадки должен учитывать множество факторов:
оживленность места, расположение транспортных магистралей, общий имидж района,
перспективы продажи или сдачи в аренду площадей, построенных на данном участке,
назначение и качество застройки прилегающих участков, размеры, топографию,
конфигурацию участка, существующие архитектурные ограничения, сложности
подведения коммуникаций, зонирование, варианты использования, состояние
грунтов, экологию.
Для каждого конкретного проекта значимость тех или
иных параметров местоположения может меняться. Чтобы прояснить важность каждого
пункта, девелопер при выборе участка должен определить, насколько важны для
бизнеса, для которого предназначено здание, следующие детали: близость к
потребителю, клиенту или покупателю, партнерам по бизнесу, обслуживающему персоналу,
жилым районам, торговым точкам, предприятиям бытового обслуживания и
общественного питания, транспортным магистралям, удобство сообщения с вокзалами
и аэропортами, уровень жизни в районе, возможность расширения для
компании-арендатора или покупателя.
Следует отметить, что задача выбора земельного участка
нередко осложняется вследствие правовой неопределенности. Часто юридические
лица, предлагающие земельные участки, не имеют на это права. Кроме того, на эти
участки может распространяться действие нормативных актов, не допускающих
определенные типы использования. Нередко городские административные органы
требуют от застройщика дополнительных компенсаций. Градостроительное задание не
содержит детального описания состояния инженерных коммуникаций в районе. В
результате застройщик сталкивается с непредвиденными затратами, и строительство
часто становится нерентабельным. Во избежание финансовых рисков при выборе
участка необходимы тщательные, детально проработанные исследования территории,
которые разумно проводить с привлечением чиновников соответствующих городских
служб. На основе имеющегося анализа участка и исследования рынка
разрабатываются функциональная концепция объекта и эскизный проект, которые
затем рассматриваются с точки зрения их рентабельности.
Центральным вопросом девелопмента является организация
финансирования девелоперских проектов.
В международной практике получил широкое
распространение комплекс методов и инструментов финансирования инвестиционных
проектов:
· долговые обязательства в форме ценных
бумаг (акций, облигаций);
· разнообразные ценные бумаги
международных финансовых рынков;
· различные виды кредитных линий и
банковских кредитов;
· различные виды лизинга;
· различные гарантии;
· обязательства, подкрепленные прямыми
гарантиями третьих лиц;
· специфические контракты
(обязательства) на продажу будущей продукции;
· структурирование финансирования
проектов на основе дочерних компаний, специализированных филиалов, совместных
предприятий, специальных проектных компаний, трастовых фирм и венчурных фондов,
стратегических альянсов, партнерств и т.п.
Участниками формируемой сегодня международной системы
проектного финансирования являются международные и региональные
финансово-кредитные институты, различные многосторонние агентства развития и агентства
по гарантиям инвестиций, транснациональные и многонациональные корпорации,
транснациональные банки, крупные международные страховые ассоциации-синдикаты,
национальные правительства, национальные (государственные или
полугосударственные) агентства экспортно-импортного кредитования и страхования,
а также национальные кредиторы и институциональные инвесторы
(финансово-промышленные группы, инвестиционные и пенсионные фонды, холдинги,
банки или их объединения, финансовые, инвестиционные, страховые и лизинговые
компании, фонды венчурного капитала и специально создаваемые венчуры-инвесторы
целевого назначения и др.).
Для успешного выполнения проектов используются
различные схемы проектного финансирования, такие как:
· «строй - владей - эксплуатируй» (BOO = «Build, Own and
Operate»),
· «строй - эксплуатируй - передай право
собственности» (ВОТ = «Build, Operate and Transfer)
· комбинированные схемы «строительство
- приобретение нрав собственности - эксплуатация - передача прав собственности
и получение дивидендов» (BOOT = «Build, Own, Operate and Transfer), а также
другие схемы финансирования, в процессе реализации которых часто происходит
совмещение финансирования с ограниченным регрессом и финансирования под
Особенности девелопмента жилой
недвижимости
· При выборе площадки под застройку
повышенное внимание должно уделяться фактору экологии района. Большое значение
имеет также сложившееся место района в рейтинге престижности, насыщенность
района объектами социальной инфраструктуры, удобство транспортного сообщения с
центром города и другими районами.
· Маркетинг ориентирован на физических
лиц с определенным уровнем достатка. Среди архитектурных особенностей следует
отметить наличие таких деталей, как балконы, лоджии, эркеры. Планировочные
особенности: главная цель для застройщика - разбить площадь этажа на небольшие
блоки (отдельные квартиры) таким образом, чтобы добиться компромисса между
максимальным увеличением полезной площади и долей помещений общего пользования,
позволяющей сохранить принадлежность жилья к определенному классу.
Особенности девелопмента офисной
недвижимости
· При выборе площадки под застройку
приоритетными являются центр города или районы деловой активности. Фактор
экологии играет значительно меньшую роль, чем при работе в секторе жилой недвижимости,
но все же сохраняет свое значение. Поэтому желательно расположение не на
главных магистралях, но в непосредственной близости от них. Очень важной
является возможность строительства подземного гаража или наличие на участке
места для парковки автомобилей.
· Цель, к которой стремятся все
девелоперы, - максимально увеличить полезную площадь. Правда, в случае
строительства зданий экстра-класса девелопер обязан жертвовать полезной площадью
в пользу общих помещений. Оптимальным вариантом, к которому стремится
девелопер, является гибкая планировка помещений. Девелопер предпочитает сдавать
помещения этажами, поскольку в этом случае он не теряет полезную площадь на
коридорах и местах общего пользования.
· Архитектура офисных зданий значения
практически не имеет. Уровень сервиса, отделки, инженерных систем должен четко
соответствовать тому классу потребителей, на который рассчитано здание.
· При финансировании проекта особую
роль играет привлечение средств будущих арендаторов или покупателей еще на
этапе строительства. В случае работы под одного клиента возможно привлечение
его в качестве стратегического инвестора. Для офисного здания, сдаваемого в
аренду, требуется организация долгосрочного кредитования, часто сроком до 5-10
лет.
Основные принципы девелопмента
Один из ключевых принципов девелопмента - создание
сильной команды консультантов, которые будут работать на разных стадиях
проекта - от маркетингового исследования до реализации площадей и эксплуатации
здания. Привлечение таких специалистов стоит дорого, но, как показывает опыт,
окупается. Кроме того, на каждой стадии развития проекта следует выделить
ключевые моменты, при удачном осуществлении которых можно ожидать удачного
завершения всего проекта.
На предпроектной стадии девелоперского проекта это
исследование рынка и выбор местоположения будущего объекта. Именно эти этапы
способны повлиять на исход всего проекта. Исследование рынка должно отвечать на
следующие вопросы:
1) в каком секторе рынка существуют незаполненные ниши
в настоящий момент и сохранятся ли они в дальнейшем;
) какой именно объект нужно строить;
) каков наиболее вероятный уровень цен продажи
построенных площадей; 4) каков прогноз рентабельности проекта;
) уровень конкуренции в том или ином сегменте;
)Возможные риски и способы их уменьшения..
Исследование рынка недвижимости позволяет определить существующее
соотношение спроса и предложения в различных сегментах рынка недвижимости и
таким образом выявить незаполненные ниши, в которых ощущается недостаток тех
или иных площадей. Анализ цен реализации и строительных затрат позволит
выявить, в какой из этих ниш реализация девелоперского проекта будет наиболее
эффективной.
Большое внимание в исследовании должно уделяться прогнозам
этих показателей, поскольку ситуация на рынке динамична. Исследование должно
также содержать анализ деятельности конкурентов с выявлением их сильных и
слабых сторон и характеризовать общий уровень конкуренции в выбранном сегмента
рынка. Еще один важный пункт - анализ существующих рисков и способов их
уменьшения.
Выбор времени осуществления проекта должен учитывать
такую закономерность в развитии рынков недвижимости, как цикличность. Это
особенно важно для девелопмента, поскольку такие проекты по времени занимают от
двух лет. Таким образом, проект может начаться в тот момент, когда конъюнктура
рынка благоприятна, а закончиться - в период спада.
Следует отметить, что в Москве задача выбора
земельного участка осложняется благодаря юридической неопределенности. Часто
юридические лица, предлагающие земельные участки, не имеют на это права. Кроме
того, на эти участки может распространяться действие нормативных актов, не
допускающих определенные типы использования. Нередко городские административные
органы требуют от застройщика дополнительных компенсаций. Градостроительное
задание не содержит детального описания состояния инженерных коммуникаций в
районе. В результате застройщик сталкивается с непредвиденными затратами,
которые часто делают строительство более затратным, чем ожидалось.
Для контроля стоимости функциональная концепция должна
разрабатываться межотраслевой группой, включающей застройщика, архитектора и
экономистов-сметчиков. Уже на этой стадии возможно привлечение для консультаций
специалиста-брокера, который будет продвигать площади на рынке.
Целесообразным выглядит проведение тендера на
проектирование. В этом случае при выборе лучшего эскизного проекта должны
учитываться различные параметры, такие как: наличие профессиональной страховки
у проектировщика, стоимость проектирования, наличие опыта проектирования
подобных зданий, наличие связей с городскими структурами, максимальный выход
полезной площади здания. В Москве ситуацию на данном этапе осложняет отсутствие
или недоступность генерального плана города с исчерпывающей информацией о
территориальном зонировании и планах будущей застройки.
Финансирование из собственных средств встречается,
пожалуй, только в теории. Даже если взять девелоперский опыт крупных западных
страховых компаний и пенсионных фондов (они, как правило, финансируют
девелоперские проекты, целиком из собственных ресурсов), то окажется, что и они
используют заемные деньги, только кредиторами в данном случае выступают не
банки или крупные инвестиционные компании, а мелкие клиенты этих организаций.
Аксиомой выглядит утверждение, что без собственного капитала невозможно
реализовать проект. При реализации девелоперских проектов крайне важно
соблюдать оптимальную пропорцию между собственными и заемными деньгами.
Когда схема финансирования, являющаяся ключевым
пунктом в развитии проекта, выстроена, можно приступать к архитектурному
проекту, определяющему внешний вид будущего здания, конструкции, инженерное
оборудование и благоустройство территории. В Москве требования государственных
инстанций к представляемой на утверждение документации варьируются в
зависимости от размера проекта. Очень важно уже на стадии проектирования
поддерживать контакты со всеми имеющими отношение к строительству
государственными службами. На этой стадии размер бюджета можно определить уже с
погрешностью до 10%. В дальнейшем смета должна постоянно уточняться.
Если к моменту готовности здания арендаторы (либо
покупатели) уже найдены, площади могут быть сразу отданы в их распоряжение.
Часто договоры об аренде могут быть подписаны лишь после завершения
строительства, поскольку арендаторы хотят быть уверенными в том, что здание
соответствует их требованиям.
Если арендаторы все же не найдены, следует или усилить
рекламную кампания, или пересмотреть ее стратегию. Возможно, группа
потребителей была выбрана не совсем правильно. Если период между окончанием
строительства и продажей площадей затягивается, вся схема финансирования
ставится под угрозу.
Особенности девелопмента при создании жилых, офисных и
торговых площадей В зависимости от функционального назначения строящихся
площадей, развитие проектов имеет ряд особенностей. В основе каждого вида
девелопмента лежат единые принципы управления, однако выбор сегмента придает
определенную специфику процессу реализации проекта. Особенности девелопмента в
различных областях рынка недвижимости связаны с выбором целевого сегмента
(группы потребителей на рынке, на которых рассчитан создаваемый объект),
осуществлением маркетинга, выбором проектных и архитектурных решений,
структурой финансирования проекта, управлением готовым объектом, юридическим
оформлением прав на владение собственностью.
2. Практическая часть
девелоперский недвижимость персонал жилой
Редевелопмент 2-х комнатная квартира под салон печати г. Новосибирск ул.
Вокзальная магистраль 8/2.
2-х комнатную квартиру по адресу: г. Новосибирск ул. Вокзальная
магистраль дом 8/2 жилого дома с административными помещениями, я приобрела в
1995 году и сдавала её в аренду как жилую площадь, спустя время вокруг стали
образовываться офисные помещения и я решила заняться её перепланировкой под
салон печати, так как квартира находится на 2-ом этаже, а лоджия выходит на
главную улицу, то вход в офис можно будет сделать прямо с улицы. Идея о салоне
печати пришла мне после того как на очередной праздник я захотела подарить
что-нибудь необычное и к сожалению поняла что фото салонов по печати на
различных предметах не так и много, да и их предложения уже не новшества. С тех
пор я загорелась мыслью удивить наш город необычными возможностями фото и граффити
печати.
Жесткой конкуренции на рынке нет. В моих идеях рассматривается печать
фотографий, картинок, граффити или надписей на различных предметах какие только
возможны. В моих силах предложить клиентам всю базу возможностей печати и
удобства. Удобное место расположения и близость от метро позволит добраться
даже с другого конца города, так же будет предоставляться фото студия с
квалифицированным фотографом который сможет сделать незабываемые сьёмки как в
студии так и за её переделами. Многочисленные гости нашего города так же смогут
воспользоваться моими услугами и навсегда оставить хорошие воспоминания о нашем
городе, нося его на теле, если это футболка или другая вещь гардероба либо
выпивая чай из кружки. Быстрота печати позволит за короткие сроки осуществить
желания клиента. Так же в салоне будет работать стилист - визажист, который
поможет создать тот образ, который чётко выразит желание посетителя. Близкое
расположение от гостиницы «НОВОСИБИРСК» и «АЗИМУТ ОТЕЛЬ СИБИРЬ» может
гарантировать постоянный наплыв как иностранных, так и посетителей нашего
города из всей необъятной России. Туристы - самая благодарная клиентура,
готовая удовлетвориться и предложением, и расценками.
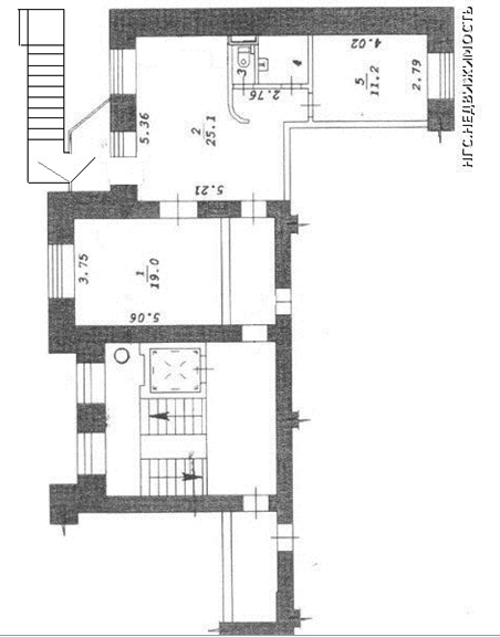
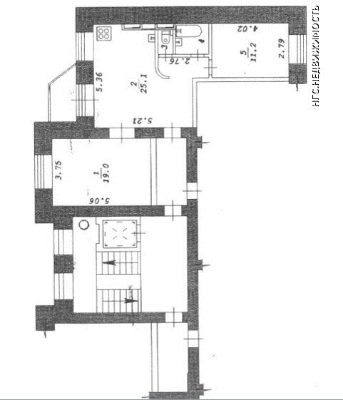
2.1 Информация о квартире
· Тип: Квартира
· Город: Новосибирск
· Район: Центральный район
· Улица: Вокзальная магистраль
· Дом:
8/2
<#"825214.files/image003.jpg">

2. План квартиры
3. Перепланировка квартиры
Описание комнат:
Комната №1(19,0 кв.м)- Фотостудия
Комната №2(25,1 кв.м)- приёмная
Комната №3- туалет
Комната №4( 4,3 кв.м)-комната персонала
Комната №5(11,2 кв.м)-кабинет печати
Комната №6(5,2 кв.м)- комната моментального фото.
Закупка оборудования и посуды
- Фотостудия 2 стула, зеркало, компьютерный стол,
диван, шкаф -35тыс.руб.,
Кабинет печати 2стола, стол для работ мастера,
стул.-15тыс.руб.,
кабинет администратора (приёмная клиентов)-
компьютерный стол, 2 стула, диван, витрина-25тыс.руб.
Закупка инвентаря- 30тыс.руб.
Общая сумма составляет 105тыс.руб
Подбор персонала
Численность персонала -4-5человек
1 фотограф, стилист- визажист;
1 специалист по печати, дизайнер;
1 системный администратор ( по договору-подряда)
1 администратор;
1 уборщица помещений ( по договору-подряда)
Рекомендуемая оплата труда - сдельно-премиальная.
Программное обеспечение.
Программное обеспечение существенно облегчит и
автоматизирует работу салона печати. Мы можем контролировать значимые процессы,
анализировать финансовую ситуацию, имея возможность видеть в режиме онлайн
данные расчетов.
Заключение
К основным проблемам девелоперского рынка, можно
отнести дефицит хороших земельных участков, а также длительность процесса их
оформления. Большая часть наиболее привлекательных территорий, которые
расположены на удобных транспортных развязках и в центре города, уже заняты. По
этой причине сейчас активно осваиваются спальные районы, что является
достаточно удачным решением с позиции невысокой насыщенности конкурентной
среды, а также рассматриваются возможности реконцепции территорий, которые
раньше были заняты производственными предприятиями.
Существенной проблемой для девелоперов являются также
пробелы в сфере регулирования отношений между городом и бизнесом. Поскольку
четких правил реализации инвестиционных контрактов не существует, эти отношения
в основном базируются не на правовой основе, а на формальных договоренностях.
Город стремится загрузить застройщиков по максимуму,
повесив на них обременения в виде создания объектов социальной инфраструктуры,
инженерных сетей, благоустройству территории и тому подобное. Механизм расчета
доли города является непрозрачным и часто вызывает протесты со стороны
застройщиков.
Сегодняшняя доходность коммерческой недвижимости
Новосибирска на уровне 50% годовых (и это только за счет внутренней
капитализации недвижимости, без учета прибыли от бизнеса) - дает основания
предполагать активизацию московских и федеральных инвесторов в нашем регионе.
Однако если сравнивать новосибирский и столичный рынки в абсолютных
показателях, то становится понятно, почему московские инвесторы приходят в
Новосибирск только для того, чтобы построить объекты и продать. В Новосибирске
совершенно другой уровень цен и другие масштабы объектов коммерческой
недвижимости. В столице даже не в центральных районах цена одного квадратного
метра коммерческой недвижимости достигает $15 тысяч, а площадь «нормального»
объекта начинается от 100 тысяч квадратных метров. Новосибирск пока не дорос до
подобных объектов, поэтому нет смысла их строить. А заниматься менее масштабными
объектами крупным московским инвесторам не интересно. Вложения, безусловно,
отобьются, и достаточно быстро, но лучше больше вложить и больше получить.
В дальнейшем, с ростом общего экономического развития
региона и ростом доходов населения, у инорегиональных инвесторов будет больше
простора для творчества на самарском рынке. В перспективе у нас должны
появиться масштабные объекты современного качественного уровня.
Особенно интересным с точки зрения девелоперов
выглядит приход в сектор недвижимости крупных инвесторов, для которых
строительный бизнес не является профильным, а также зарубежных пенсионных
фондов, давно примеривающихся к инвестициям в самарскую недвижимость.
Список литературы
1. Конституция Российской Федерации.
. Гражданский кодекс Российской Федерации: часть первая от 30 ноября 1994
г. № 51-ФЗ, часть вторая от 26 января 1996 г. № 14-ФЗ, часть третья от 26
ноября 2001 г. № 146-ФЗ и часть четвертая от 18 декабря 2006 г. № 230-ФЗ.
. Жилищный кодекс Российской Федерации от 29 декабря 2004 г. № 188-ФЗ.
. Градостроительный кодекс Российской Федерации от 29 декабря 2004 г. №
190-ФЗ.
. Асаул А.Н. Экономика недвижимости. 2-е изд. - СПб.: Питер, 2008.
. Асаул А. Н., Абаев Х. С., Молчанов Ю. А. Управление, эксплуатация и
развитие имущественных комплексов/ - СПб.: Гумманистика, 2007.
. Максимов С. Н., Девелопмент. Развитие недвижимости. Организация. Управление.
Финансирование, Питер, 2003 г.
. Игнатов Л.Л., Экономика недвижимости, МГТУ, М 2004г.
. Тарасевич Е. И. Экономика недвижимости. - М.: Изд-во МКС, 2007.