Проектирование реакторной установки

  • Вид работы:
    Дипломная (ВКР)
  • Предмет:
    Физика
  • Язык:
    Русский
    ,
    Формат файла:
    MS Word
    248,5 Кб
  • Опубликовано:
    2014-12-09
Вы можете узнать стоимость помощи в написании студенческой работы.
Помощь в написании работы, которую точно примут!

Проектирование реакторной установки

ВВЕДЕНИЕ

реактор судовой атомный

Разработана реакторная установка ВБЭР-300 мощностью 300 МВт (эл.) на основе технологий судовых блочных реакторов, опирающихся на многолетний опыт разработки, изготовления и эксплуатации корабельных и судовых реакторных установок.

РУ ВБЭР-300 является перспективным энергоисточником для АТЭЦ и АЭС с небольшим сроком реализации и привлекательными технико-экономическими показателями, решает задачу создания региональных атомных энергоисточников для теплоэлектроснабжения и расширения сегмента использования атомной энергетики.

Важнейшим и неотъемлемым требованием к АС является ее безопасность. Концепция, положенная в основу энергоблоков с реакторными установками ВБЭР-300, отвечает повышенным требованиям безопасности, основанным на принципах самозащищенности, пассивной безопасности, с учетом значительного опыта эксплуатации ядерных установок такого типа.

Целью дипломной работы - является выбор оптимальных проектных решений, в том числе наиболее оптимальной структуры и масштаба строительства АС с РУ ВБЭР-300 инвестиционного проекта по наиболее целесообразным маркетинговым, технико-технологическим, финансовым, институциональным, экологическим, социальным и другим решениям, предполагаемым в рамках реализации проекта.

Актуальность темы. Внедрение атомных станций средней мощности в региональные энергосистемы позволит уменьшить затраты регионов на закупки природного газа и топливного мазута, повысить системную надежность энергоснабжения, ограничить рост тарифов на электрическую и тепловую энергию, отпускаемую населению и промышленным предприятиям, улучшить экологическую обстановку в районе размещения.

Главный эффект использования атомных энергоисточников - крупномасштабная экономия природного газа в сфере теплофикации и теплоснабжения крупных городов.

Ключевым условием внедрения атомных станций в региональную энергетику является обеспечение экономических преимуществ по сравнению с традиционными углеводородными источниками энергии. Это обуславливает необходимость применения новых, инновационных для традиционной атомной энергетики решений, направленных на более короткие сроки сооружения и ввода в действие, снижение затрат на строительство и эксплуатацию блоков с выполнением требований по надежности и безопасности, предъявляемых к перспективным атомным энергоисточникам.

Практическое значение и новизна работы заключается в возможности широкого применения усовершенствованных конструкций.

Инновационный характер реакторной установки ВБЭР-300, заключается в применении атомной паропроизводящей установки (ППУ) судового типа с водой под давлением.

Специфические требования использования ядерной энергии на атомных ледоколах сформировали особый облик реакторной установки, характерными чертами которой стали предельная компактность, необходимая для размещения установки в малом объеме реакторного отсека, герметичный контур первичного теплоносителя, повышенная надежность, высокая автоматизация и минимальная потребность в обслуживании при эксплуатации. В связи с этим применение ядерных реакторов и энергоустановок судового типа для энергоблоков малой и средней мощности представляется логичным, экономически оправданным и технологически подготовленным.

Научная новизна дипломной работы заключается в формировании теоретических и практических аспектов оценки эффективности инвестиционных проектов для предприятий атомной отрасли.

К числу наиболее существенных результатов, полученных лично автором и обладающих научной новизной, относятся следующие результаты:

) Определены особенности критериев эффективности инвестиционных проектов в атомной энергетике. В качестве показателей эффективности рассматриваются показатели: назначения, надежности, ремонтопригодности, живучести, безопасности, экологичности, стойкости к внешним воздействиям и др. Сформулированы и проанализированы основные подходы к определению показателей эффективности проектов: дифференциальный, комплексный и смешанный. Определены основные требования к критериям конкурентоспособности, эксплуатационным показателям, критериям безопасности.

Выявленные особенности критериев эффективности позволяют повысить объективность выбора эффективных инвестиционных проектов с учетом особенностей атомной электроэнергетики.

) Дано обоснование необходимости многокритериального выбора инвестиционных проектов в атомной электроэнергетике. Предложена модель полезного результата указанных проектов. В соответствии с этой моделью при определении эффективности инвестиционных решений необходимо наряду с экономическими результатами учитывать: социальные, экологические, инновационные, показатели конкурентоспособности, безопасности и другие факторы.

Определены группы показателей, относящихся к каждому виду указанных результатов. Выявлены возможные противоречия между анализируемыми показателями каждой группы.

Для применения предложенной модели рекомендуется использование методологии многокритериального выбора.

) Предложен многоуровневый подход к оценке эффективности инвестиционных проектов в атомной электроэнергетике, имеющих общественную значимость. В качестве уровней анализа могут выступать: уровень предприятия, региональный, федеральный и другие уровни. Необходимость многоуровневого подхода обусловлена значительными затратами, которые могут составлять десятки и сотни миллиардов тенге, существенной ролью государственных органов, социальными, экологическими последствиями и требованиями к безопасности эксплуатации АЭС. Определены основные денежные потоки для каждого уровня анализа, а также критерии выбора эффективных решений.

Применение указанного подхода позволит осуществить оценку эффективности инвестиционных проектов на каждом уровне анализа.

) Предложены процедуры определения эффективности инвестиционных проектов по совокупности критериев. Выявлены особенности оценки эффективности единственного проекта и сравнения нескольких проектов. Определены условия, при которых оптимальные решения по каждому из применяемых проектов совпадают или являются различными. Показано, что при использовании традиционных экономических критериев для оценки эффективности единственного проекта применение каждого из критериев приводит к одинаковым результатам. В случае сравнительного анализа нескольких проектов данное условие в общем случае может не выполняться. Предложенные процедуры могут найти применение для оценки эффективности инвестиционных проектов различного назначения.

) Разработана методика выбора эффективных инвестиционных решений. Данная методика базируется на системном многоуровневом подходе к определению эффективности инвестиционных проектов.

В качестве уровней анализа могут выступать уровни: бизнес-единиц, предприятия, интегрированных производственных структур, отраслей промышленности, государственных органов разных уровней управления.

Применение предлагаемой методики позволит осуществить широкий «народно-хозяйственный» подход к выбору эффективных инвестиционных решений с учетом общественных интересов.

Практическая значимость дипломной работы заключается в том, что ее результаты могут быть использованы при определении эффективности общественно-значимых инвестиционных проектов в электроэнергетике промышленными предприятиями, предприятиями, входящими в состав ОАО «Казатомпром», административными органами разных уровней, финансовыми и иными структурами, научно-исследовательскими организациями и федеральными научно-производственными центрами. Результаты исследований также могут быть использованы в учебном процессе на экономических и технических факультетах высших учебных заведений и при переподготовке кадров в области маркетинга-менеджмента.

1.     
Технологическая часть

1.1    Обоснование выбранной технологии

Развитие общества связано с подъемом экономики и ее основы -энергетики. В настоящее время атомная энергетика является одним из основных мировых источников электроэнергии, ее доля составляет приблизительно 17 % производимой электроэнергии. Экологические и экономические преимущества атомной энергетики позволяют рассчитывать на хорошие перспективы ее развития и в дальнейшем. Такое качество атомной энергетики как конкурентоспособность с энергоблоками на органическом топливе, обусловленная наличием достаточного запаса ядерного топлива, постоянным ростом цен на углеводородное топливо, высвобождением транспорта, необходимого для доставки сырья на объекты энергетики, отсутствием выброса в атмосферу загрязняющих веществ, в том числе, оксидов углерода, способствующих созданию парникового эффекта, создает благоприятные условия для дальнейшего развития атомной энергетики.

Выбранная для реакторов ВБЭР-300 освоенная атомно-энергетическая водо-водяная технология АЭС (ВБЭР) зарекомендовала себя как надежный и экономичный источник энергии, наиболее распространенный в странах, имеющих атомную энергетику. А сочетание данной технологии с уникальным российским опытом производства ядерных энергетических установок для атомного флота позволяет существенно повысить надежность и безопасность АС с РУ ВБЭР в целом.

.2 Концепция проекта. Основные критерии

 

Выбор проектных решений по тепломеханическим, электротехническим системам, АСУ ТП, средствам связи, физической защите, системам обращения с ядерным топливом и радиоактивными отходами, системам технического водоснабжения, водно-химическому режиму, системе канализации, системам радиационной безопасности и контроля, системам обеспечения пожарной безопасности и другим представляет собой реализацию эволюционного подхода с использованием опыта разработки, изготовления, строительства и эксплуатации российских и зарубежных АЭС с ВВЭР и АЭС с PWR. При выборе основных технических решений руководствовался требованиями действующих законодательных и нормативных документов в области использования атомной энергии Российской Федерации и Республики Казахстан с учетом рекомендаций МАГАТЭ, требований EUR. Требования к проектированию систем и выбору оборудования АС с РУ ВБЭР-300 в РК выдвигаются на базе следующих основных положений:

необходимости соответствовать требованиям современных норм и правил в части обеспечения повышенного уровня в ядерной, радиационной, технической и экологической безопасности;

обеспечения экономической конкурентоспособности АС по сравнению с источниками энергоснабжения на органическом топливе за счет применения основного оборудования с повышенным сроком службы (до 60 лет), технических решений, снижающих сроки и стоимость сооружения АС и повышающих эффективность использования ядерного топлива, а также снижения эксплуатационных затрат;

результатов прогнозных расчетов по балансам мощности и энергопотребления региона расположения площадки АС, а также анализа рынка сбыта;-

ориентации на промышленную базу РФ при создании основного оборудования, включая оборудование РУ и связанных с ней систем;

стандартизации и унификации оборудования, использования модульной и агрегатной поставки основного оборудования реакторной установки;

реализации эволюционного подхода при выборе оборудования, проверенного положительным опытом эксплуатации, как в составе систем судовых реакторных установок, так и в составе систем АЭС с реакторами типа ВВЭР, на основе технических решений, не исчерпавших себя с учетом предстоящей многолетней эксплуатации блока, при одновременной интеграции технических достижений и эволюционного совершенствования;

учета комплекса работ, касающихся повышения надежности оборудования и его ресурса, выполняемого применительно к действующим ВВЭР-1000, а также для блоков АЭС с ВВЭР нового поколения;

использования результатов всего спектра НИР и ОКР, выполненных как по судовым реакторным установкам, так и при разработке проектов АЭС с ВВЭР;

системного подхода к созданию энергоблока как неразрывного целого. Это необходимо для успешного решения задач обеспечения надежности, безопасности и экономической эффективности блока, при этом должна быть обеспечена сквозная система качества и культуры безопасности. /1/

Приведены основные показатели, характеризующие технологический процесс и принципиальные требования к основному технологическому оборудованию. Все основные показатели приведены с учетом требований «Технического задания на проект АС в составе двух блоков с РУ ВБЭР-300 в Республике Казахстан» инв. № А-90395 пм (по учету ОАО «НИАЭП»).

Принятая в проекте АС с РУ ВБЭР-300 технология в целом опирается на многолетний опыт разработки, сооружения и эксплуатации судовых реакторных установок, а также успешно эксплуатирующихся как в России, так и за рубежом АЭС с реакторами типа ВВЭР, что выражается в максимальном использовании материалов, оборудования и систем, подтвердивших свою надежность и ресурсные показатели при эксплуатации. В ОБИН представлены основные требования к обеспечению безопасности энергоблока АС с РУ ВБЭР-300 с точки зрения ядерной, радиационной и технической безопасности, целевые вероятностные показатели безопасности, включая оценку степени риска персонала и населения, основанные на требованиях НД, практике проектирования, предварительных расчетах. Детальное обоснование безопасности блока выполняется в ООБ на стадии сооружения АС, а в ограниченном объеме - в ПООБ на этапе получения лицензии на строительство АС в части концептуального описания объекта и его безопасности для окружающей среды и населения, включая предварительный анализ безопасности и физической защиты.

В настоящее время существует вариантность в реализации некоторых функций и систем для различных действующих, сооружаемых и проектируемых российских и зарубежных АС. Проектные решения по АС с РУ ВБЭР-300 оптимизировались с точки зрения снижения капитальных вложений и эксплуатационных расходов при обеспечении требуемого уровня безопасности и надежности.

.3 Общие проектные положения

Каждый из двух энергоблоков АС с РУ ВБЭР-300, проектируемый для Республики Казахстан, является моноблоком максимальной электрической мощностью 295 МВт. Каждый энергоблок может обеспечить максимальный отпуск тепла в теплофикационном режиме 1926 ГДж/ч (460 Гкал/ч) с соответствующим снижением электрической мощности до 200 МВт. Назначенный срок службы каждого энергоблока - 60 лет. В реакторной установке ВБЭР-300 используется лицензированное, освоенное слабообогащенное оксидное топливо реакторов ВВЭР, обеспечивающее экономичные топливные циклы. Перегрузка топлива производится один раз в два года. Прорабатываются варианты топливного цикла с перегрузками через один и полтора года. Время нахождения (кампания) топлива в активной зоне составляет шесть лет. Основными компонентами каждого энергоблока являются реакторная установка с реактором типа ВБЭР-300 и турбоустановка. При этом реализована двухконтурная схема передачи тепла (производства пара) для турбины и трехконтурная тепловая схема отпуска тепла потребителям. Первый контур представляет собой герметичную замкнутую систему, предназначенную для отвода тепла от активной зоны реактора и передачи его воде-пару второго контура в парогенераторе. /2/

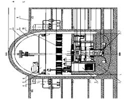
Основным компонентом первого контура РУ ВБЭР-300 является реакторный блок, отличительной особенность которого заключается в том, что корпуса реактора, четырех парогенераторов и гидрокамеры четырех ГЦН собраны в единый блок (интегрированный корпус) сварными соединениями патрубков, через которые по схеме «труба в трубе» осуществляется циркуляция теплоносителя между отдельным оборудованием. Таким образом, реализуется компактная компоновка оборудования первого контура исключающая разветвленные петлевые циркуляционные трубопроводы, что позволяет минимизировать объем герметичного ограждения и защитной оболочки, а также повысить безопасность установки (исключить большие и средние течи теплоносителя). В реакторном блоке реализована четырех петлевая схема циркуляции теплоносителя первого контура. Принудительная циркуляция теплоносителя при работе на мощности осуществляется главными циркуляционными насосами.

Рисунок 1 - Компоновка основного оборудования РУ и реакторного отделения в  защитной оболочке главного корпуса.

Реакторный блок и основные сопряженные системы и оборудование размещаются в защитной герметичной оболочке реакторного отделения. Защитная оболочка двойная: внутренняя, выполненная из стали и рассчитанная на внутреннее давление и воздействия при проектных и запроектных авариях, и внешняя, выполненная из железобетона и рассчитанная на внешние воздействия.

Для создания и поддержания давления первого контура в заданных   пределах во всех режимах работы энергоблока предусмотрена вынесенная  паровая система компенсации давления.

Второй контур предназначен для выработки из питательной воды пара требуемых параметров и транспортировки его на турбоустановку.

Второй контур - нерадиоактивный, состоит из паропроизводительной части парогенераторов, паропроводов и трубопроводов питательной воды с арматурой, турбоустановки и вспомогательных систем.

Турбоустановка со вспомогательными системами расположена в  турбинном отделении.

Каждый энергоблок АС с РУ ВБЭР-300 оснащен системами безопасности как активного, так и пассивного принципа действия. Для большинства   систем безопасности предусматривается двухканальная схема с внутренним резервированием активных элементов в пределах канала.

При двухканальной схеме систем безопасности выполнение нормативных требований по обеспечению безопасности обеспечивается как по детерминистским, так и по вероятностным характеристикам благодаря резервированию элементов внутри каналов и резервированию систем безопасности.

Отработавшее топливо хранится в стеллажах бассейна выдержки не менее пяти лет с учётом возможности полной выгрузки активной зоны реактора.

Объём бассейна выдержки определяется с учётом 15 % запаса по хранящемуся количеству ТВС, а также возможности размещения до 15 % дефектных ТВС в гермопеналах.

Топливо в бассейне выдержки хранится под защитным слоем воды, имеющей концентрацию борной кислоты не менее 16 г/дм.

К основным системам безопасности, в проекте АС с РУ ВБЭР-300 в Республике Казахстан, относятся: !)

· система приводов СУЗ;

· система очистки и расхолаживания;

- система промежуточного контура охлаждения ответственных потребителей;

· система аварийного охлаждения активной зоны;

· система аварийной подпитки первого контура;

· система ввода жидкого поглотителя;

· система рециркуляции и ремонтного расхолаживания;

· система аварийного отвода тепла;

· система снижения давления в герметичном ограждении;

· система защиты первого контура от превышения давления;

· система защиты второго контура от превышения давления;

· система аварийного газоудаления;

· система сжатого воздуха;

· система охлаждения ответственных потребителей;

· система защитных оболочек (герметичного ограждения);

система сжигания водорода внутри гермооболочки;

Рисунок 2 - Схема реакторной установки ВБЭР-300

1-Реактор; 2-Парогенератор; 3-ГЦН; 4-Рекуператор СОиР; 5-Доохладитель СОиР; 6-9-Фильтр; 10-Насос; 11- Компенсатор; 12-Фильтр 3 контура; 13-Расширительный бак; 14-Теплообменник 3-4 контуров; 15-Насос 3 контура; 16-бак САОТ; 17-емкость САОТ; 18-ЗО; 19,20-Гидроаккумуляторы; 21-Шахта реактора; 22-Пит.клапан; 32-емкость аварийного ввода бора; 24-Бак системы подпитки; 25-Насос подпитки; 26-Насос системы рециркуляции; 27-Гидроаккумулятор; 28-ТО системы снижения давления в ЗО; 29-Конденсатосборник; 30-ТО системы рециркуляции

Состав и наименование систем могут уточняться на последующих стадиях проектирования система аварийного электроснабжения.

Проект АС включает в себя ряд систем нормальной эксплуатации, обеспечивающих работу АС в различных режимах. Основными системами нормальной эксплуатации реакторного отделения являются: !)

·   система подпитки и борного регулирования;

·   система дренажа;

·   система подачи азота;

·   система газовых сдувок;

·   система дожигания водорода;

·   система воздухо- и газоудаления;

·   система дистиллата;

·   система охлаждения бассейна выдержки отработавшего топлива;

·   система спецканализации;

·   система охлаждения неответственных потребителей;

·   система бакового хозяйства.

Состав и наименование систем могут уточняться на последующих     стадиях проектирования.

.4      Состав и описание оборудования РУ и первого контура

1.4.1 Основные положения

Основными компонентами РУ ВБЭР-300 являются первый контур (и связанные с ним системы) и второй контур в пределах герметичного ограждения (и связанные с ним системы).

Первый контур предназначен для отвода тепла (образующегося в результате управляемой ядерной реакции деления топлива) от активной зоны реактора и передачи его воде и пару второго контура в парогенераторах.

В состав первого контура входят следующие основные системы и компоненты:

· реакторный блок;

· система компенсации давления;

· система очистки и расхолаживания.

В качестве теплоносителя первого контура используется вода с содержанием борной кислоты до 7,0 г/кг в начале кампании и не более 0,1 г/кг в конце кампании.

Циркуляция теплоносителя первого контура:

- при работе на мощности и плановом расхолаживании -принудительная;

-при аварийном расхолаживании - принудительная или естественная (при полном обесточивании).

Второй контур предназначен для получения перегретого пара из питательной воды за счет отвода тепла от теплоносителя первого контура в парогенераторах и передачи его в паротурбинную установку.

Циркуляция теплоносителя второго контура:

-при работе на мощности и плановом расхолаживании - принудительная;

-при аварийном расхолаживании через систему аварийного отвода тепла естественная.

Основными компонентами второго контура реакторной установки являются парогенераторы (по питательной воде/пару), трубопроводы питательной воды и пара в пределах герметичного ограждения, предохранительные устройства, арматура, два питательных комплекса (рабочий и резервный), механический фильтр тонкой очистки питательной воды.

Таблица 1- Основные технические характеристики РУ ВБЭР-300:

Наименование

Значение

1. Тепловая мощность реактора, МВт

850

2. Количество ГЦН / парогенераторов, шт.

4/4

3. Параметры первого контура: - давление, МПа; - температура теплоносителя на входе / выходе активной зоны, °С; - расход теплоносителя через реактор, т/ч

 15,7 289,4/323,0 15600

4. Параметры второго контура: - паропроизводительность, т/ч; - давление перегретого пара на выходе ПГ, МПа; - температура перегретого пара на выходе ПГ, °С; - температура питательной воды, °С Значения параметров приведены для режима работы на мощности и могут уточняться в ходе оптимизации при разработке проекта РУ

1538 6,38 305 220 100 % номинальной

5. Основные характеристики активной зоны: - удельная энергонапряженность, МВт/м ; - режим перегрузки; - продолжительность кампании между частичными перегрузками, эфф.сут

64,3 трехкратная частичная 660-670

6. Число часов использования установленной мощности реактора в год, ч, не менее

8000

7. Назначенный срок службы незаменяемого оборудования, лет

60


Ниже представлено краткое описание основного оборудования главного циркуляционного контура - реакторного блока (и его компонентов) и компенсатора давления.

1.4.2 Реакторный блок. Общее описание

Реакторный блок предназначен для производства пара требуемых параметров за счет тепла ядерной реакции.

В состав реакторного блока входят следующие основные компоненты:

· реактор с активной зоной;

· четыре парогенератора;

· четыре главных циркуляционных насоса;

· верхний блок с приводами СУЗ.

Отличительной особенностью компоновки реакторного блока РУ ВБЭР-300 является то, что корпуса реактора, парогенераторов и гидрокамеры главных циркуляционных насосов соединяются между собой с помощью сварки через короткие патрубки в интегрированный корпус. Такая компоновка исключает трубопроводы большого диаметра, а вместе с тем и класс аварий с большими течами.

В конструкции интегрированного корпуса также применены страховочные устройства - силовые шарнирные соединения парогенераторов с реактором, обеспечивающие минимальное взаимное перемещение корпусов при гипотетическом гильотинном разрыве сварного шва главного патрубка.

Технические решения, использованные при создании конструкции реакторного блока, подтверждены соответствующим положительным опытом применения их в эксплуатирующихся судовых установках.

Для изготовления основного оборудования реакторного блока применяются отработанные технологии, ориентированные на традиционные заводы - изготовители, владеющие опытом изготовления изделий - аналогов, современным производственным оборудованием и комплексом средств технического контроля качества, апробированной технологией формирования интегрированного корпуса как на заводе - изготовителе, так и на месте монтажа с применением автоматизированных способов сварки и наплавки. /3/

Циркуляция теплоносителя первого контура в реакторном блоке осуществляется следующим образом.

Теплоноситель с напора ГЦН через внутренние насосные патрубки и кольцевую полость парогенератора попадает в реактор. Пройдя кольцевой зазор между корпусом реактора и обечайкой внутрикорпусной шахты теплоноситель через щелевой фильтр попадает в напорную камеру активной зоны. Пройдя активную зону, нагретый теплоноситель первого контура попадает в сливную камеру реактора, откуда через главные патрубки поступает в кольцевой зазор между обечайкой трубной системы и корпусом парогенератора, а затем через переливные окна на трубную систему парогенераторов. Из парогенераторов охлажденный теплоноситель первого контура по кольцевым полостям между главными и внутренними патрубками поступает в гидрокамеры на всас главных циркуляционных насосов замыкая круг циркуляции.

Рисунок 3- Реакторный блок

1 - корпус интегрированный, 2 - активная зона, 3 - шахта внутрикорпусная, 4 - блок труб и устройств, 5 - блок верхний, 6 - привод СУЗ, 7 - трубная система парогенератора, 8 - главный циркуляционный насос

 В качестве материала компонентов интегрированного корпуса используется перлитная сталь с антикоррозионной наплавкой. Назначенный срок службы интегрированного корпуса - 60 лет.

На корпусах парогенераторов размещены патрубки для подключения трубопроводов сопряженных систем. Все патрубки имеют сужающие устройства, предназначенные для ограничения течи при разгерметизации данных трубопроводов.

Высота реакторного блока - 15285 мм, описанный диаметр реакторного блока - 11210 мм, масса реакторного блока в сухом состоянии - 1257 т (в рабочем состоянии - 1438 т).

Реакторный блок установлен и раскреплен в бетонной шахте (внутри герметичного ограждения), выполняющей функции опорной конструкции и биологической защиты. По периферии шахты в районе активной зоны реактора размещены 12 ионизационных камер. Нижняя часть корпуса реактора размещается в стальном кессоне, предназначенном для охлаждения корпуса в запроектных авариях, связанных с тяжелым повреждением активной зоны.

1.4.3 Реактор с активной зоной

Основные компоненты реактора размещены в корпусе реактора (JAA), являющегося составной частью интегрированного корпуса реакторного блока.

В корпусе реактора размещается выемной блок (включающий внутрикорпусную шахты и блок труб и устройств) предназначенный для размещения активной зоны и организации циркуляции теплоносителя первого контура.

В реакторе использована кассетная активная зона (JKA), в состав которой входят 85 каркасных безкожуховых ТВС шестигранного профиля типа ТВС А эксплуатирующихся на 17 энергоблоках с реакторными установками ВВЭР-1000).

Данная конструкция обеспечивает геометрическую стабильность ТВС и, соответственно, стабильность нейтронно-физических и теплогидравлических характеристик активной зоны, а также исключает заклинивание поглощающих элементов рабочих органов СУЗ в направляющих каналах, что в свою очередь позволяет обеспечить надежность и безопасность активной зоны в процессе эксплуатации.

В качестве основного режима эксплуатации активной зоны реакторной установки ВБЭР-300 на данной стадии проектирования принят режим трех кратных частичных перегрузок топлива один раз в два года со сроком службы ТВС 6 лет (возможна реализация других режимов перегрузок).

Относительно ВВЭР-1000 в ВБЭР-300 снижены на -40% энергонапряженность активной зоны и линейная нагрузка твэл.

В ТВС используется отработанные твэл реакторов ВВЭР-1000. В качестве топлива используются таблетки диоксида урана (обогащением по U-235 не более 5 %).

Компенсация части запаса реактивности активной зоны на выгорание осуществляется (аналогично ВВЭР-1000) за счет применения в ТВС твэг с гадолинием в таблетках двуокиси урана, а также за счет создания соответствующей концентрации борной кислоты в теплоносителе первого контура.

Для контроля за нейтронно-физическими и теплотехническими параметрами активной зоны в части ТВС устанавливаются зонды СВРК.

Коэффициенты реактивности активной зоны отрицательны во всем диапазоне эксплуатационных параметров.

Воздействие на реактивность в нормальных и аварийных режимах работы обеспечивается за счет:

·   изменения положения поглощающих стержней (электромеханической системой воздействия на реактивность);

·   изменения концентрации бора в теплоносителе первого контура (системой подпитки и борного регулирования при нормальной эксплуатации или системой ввода жидкого поглотителя при авариях отказах в электромеханической системе воздействия на реактивность).

Рабочие органы СУЗ активной зоны представляют собой кластеры, выполненные в виде пучков поглощающих стержней, объединенных общей траверсой и перемещающихся внутри направляющих трубок в ТВС. Каждый РО СУЗ (48 шт.) перемещается индивидуальным приводом СУЗ.

Все рабочие органы СУЗ одновременно являются органами компенсации реактивности и аварийной защиты (приоритетная функция).

По сигналам аварийной защиты происходит погружение всех РО СУЗ в активную зону под действием собственного веса после обесточивания приводов СУЗ.

Количество рабочих органов СУЗ назначено из условия обеспечения в любой момент кампании (без наиболее эффективного РО) подкритичности активной зоны в расхоложенном до ~ 120 °С состоянии с учетом отравления ксеноном.

1.4.4 Парогенератор

Парогенератор (JEA10-40) предназначен для выработки пара требуемых параметров. Парогенератор представляет собой вертикальный змеевиковый модульный теплообменный аппарат поверхностного типа, в котором осуществляется теплообмен между теплоносителем первого контура, циркулирующим в межтрубном пространстве, и рабочей средой второго контура, циркулирующей во внутритрубном пространстве.

Общий вид парогенератора представлен на рисунке 4.

Основными составными частями каждого парогенератора являются корпус (являющийся составной частью интегрального корпуса реакторного блока) и трубная система.

Конструкция трубной системы разработана на основе конструктивных решений, использованных в парогенераторах реакторных установок транспортного назначения, надежная работоспособность которых подтверждена большим объемом выполненных НИР и ОКР, а также длительным опытом эксплуатации.

Теплообменная поверхность трубной системы состоит из 55 унифицированных змеевиковых парогенерирующих модулей, охваченных по периферии обечайкой трубной системы. По питательной воде и пару парогенерирующие модули объединены в три независимые друг от друга секции.

Циркуляция рабочих сред парогенератора осуществляется следующим образом:

- теплоноситель первого контура подводится в парогенератор из реактора по кольцевому зазору между внутренним и наружным патрубками. Далее, по зазору между корпусом и наружной обечайкой трубной системы теплоноситель поднимается в верхнюю часть и через окна обечайки попадает в напорную камеру. Затем теплоноситель распределяется по парогенерирующим модулям и двигается сверху вниз по межтрубному пространству, отдавая тепло среде второго контура, сливается в полость между наружной обечайкой трубной системы и корпусом парогенератора, поднимается вверх и через кольцевой зазор между внутренним и наружным патрубками отводится на всас главного циркуляционного насоса и далее в реактор;

- питательная вода через питательные патрубки подается в питательные коллекторы и, опускаясь вниз по питательным трубам, распределяется по теплообменным трубам модулей. Двигаясь снизу вверх во внутритрубном пространстве змеевиков теплообменной поверхности, вода подогревается до кипения, превращается в пар и перегревается до требуемых параметров. Пар от модулей поступает в пароотводящие каналы крышки парогенератора и через паровые коллекторы и паровые патрубки отводится в паровые трубопроводы.

Назначенный срок службы трубной системы парогенератора 30 лет.












Рисунок 4 - Парогенератор

1 - корпус парогенератора, 2 - фланец нажимной, 3 - крышка парогенератора, 4 - коллектор питательный, 5 - модуль парогенерирующий

1.4.5 Главный циркуляционный насос

Главный циркуляционный насос (JEB10-40) предназначен для обеспечения циркуляции теплоносителя первого контура внутри реакторного блока и представляет собой моноблочный агрегат, состоящий из осевого насоса и герметичного асинхронного электродвигателя.

Проточная часть насоса включает в себя направляющий фланец, рабочее колесо и направляющий аппарат.

Электродвигатель (мощностью 1300 кВт) состоит из корпуса статора со встроенным трубчатым холодильником, магнитопровода с обмоткой статора, ротора, подшипников и крышки. Магнитопровод и обмотка статора отделены от роторной полости тонкостенной перегородкой, которая приваривается к корпусу статора.

Подвод электропитания к обмотке статора осуществляется через прочно-плотные электровводы.

Ротор электродвигателя вращается в подшипниках скольжения. Осевое усилие, действующее на ротор, воспринимается упорным подшипником и пятой.

В нижней части ротора, над рабочим колесом, размещается маховик, который обеспечивает насосу необходимый выбег при обесточивании электродвигателя.

Смазка и охлаждение подшипников скольжения, а также охлаждение ротора и статора электродвигателя осуществляется водой автономного контура, перекачиваемой при помощи вспомогательного колеса (импеллера).

Вода автономного контура и корпус электронасоса охлаждаются водой промежуточного контура, циркулирующей в змеевиковом холодильнике.

Корпус статора каждого ГЦН крепится к соответствующей гидрокамере ГЦН (являющейся составной частью интегрального корпуса реакторного блока).

Назначенный срок службы главного циркуляционного насоса 30 лет.

Рисунок 5- Главный циркуляционный насос

1 - подшипник радиальный, 2 - обмотка статора, 3 - магнитопровод, 4 - датчик сигнализатора оборотов, 5 - сигнализатор уровня, 6 - термопреобразователь сопротивления, 7 - рабочее колесо, 8 - подшипник радиальный, 9 - подшипник упорный, 10 - клеммная коробка, 11 - аппарат спрямляющий, 12 - фланец направляющий, 13- обмотка ротора, 14- статор, 15 - холодильник, 16 - прокладка, 17 - маховик, 18 - крышка, 19 - импеллер, 20 - перегородка, 21 - шпильки, 22 - тор, 23 - накидной фланец.

1.4.6 Верхний блок с приводами СУЗ

Основными сборочными верхнего блока являются крышка и приводы рабочих органов СУЗ (приводы СУЗ).

Крышка обеспечивает герметизацию главного разъема реактора при помощи шпилек Ml50 с двумя кольцевыми металлическими прокладками круглого сечения аналогичных уплотнению главного разъема реактора ВВЭР-1000. На крышке расположены стойки для установки приводов СУЗ и стойки для герметизации стоек СВРК. Охлаждение стоек приводов СУЗ - воздушное.

Привод рабочих органов СУЗ предназначен для управления реактивностью реактора путем изменения положения рабочего органа СУЗ в активной зоне в режимах пуска и вывода реактора на мощность, поддержания и изменения заданных параметров реактора, останова и поддержания реактора в подкритическом состоянии.

Приводы рабочих органов СУЗ электромеханического типа (48 шт.) являются составной частью системы управления и защиты реактора.

Привод СУЗ обеспечивает выполнение следующих функций:

· подъем и опускание РО СУЗ с заданной скоростью в пределах рабочего хода в режиме перемещения от электродвигателя, а также удержание РО СУЗ в заданном положении;

· опускание РО СУЗ с требуемой скоростью в режиме самохода (под действием силы тяжести подвижных частей) из любого положения рабочего хода при обесточивании электродвигателя;

· стопорение рабочего органа СУЗ от самопроизвольного перемещения вверх из активной зоны при внешних и внутренних воздействиях;

-   выдачу сигналов о положении рабочего органа СУЗ в активной зоне и сигналов на остановку электродвигателя в верхнем и нижнем рабочих положениях РО;

-    ручное перемещение РО СУЗ;

· сцепление и расцепление с РО СУЗ. Привод СУЗ обеспечивает:

· скорость перемещения РО СУЗ от электродвигателя - от 1 до 20 мм/с;

-    время опускания РО СУЗ в режиме «самохода» из верхнего рабочего положения при прохождении рабочего хода - не более 3,3 с.

Привод СУЗ состоит из следующих основных частей: шагового электродвигателя, обгонной муфты, реечного механизма, редуктора, датчика положения, датчика перемещения.

Назначенный срок службы привода СУЗ - 30 лет.

Компенсатор давления является основным компонентом системы компенсации давления первого контура (JEF), которая обеспечивает создание давления в первом контуре реакторной установки, поддержание давления при работе реакторной установки в стационарных режимах в заданных пределах и ограничение отклонений давления в переходных и аварийных режимах.

В реакторной установке ВБЭР-300 использована вынесенная паровая система компенсации давления. Кроме компенсатора давления, в состав системы входят регулирующая и предохранительная арматура, трубопроводы.

Основными составными частями компенсатора давления являются корпус, электронагреватели, душирующее устройство, внутренние металлоконструкции.

Компенсатор давления подключен к первому контуру по «горячей ветке» трубопроводом к одному из парогенераторов. Впрыск «холодного» теплоносителя в душирующее устройство компенсатора давлении производится с напора главного циркуляционного насоса по трубопроводу с двумя (параллельно установленными) быстродействующими клапанами (клапаны впрыска).

Размеры компенсатора давления, соотношение пара и воды в нем, производительность впрыска и мощность электронагревателей обеспечивают:

·  поддержание давления в первом контуре в определенных проектом интервалах и изменение давления с допустимыми скоростями во всех проектных режимах;

·  исключают оголение электронагревателей и превышение максимально допустимого уровня теплоносителя в нем при изменении мощности реакторной установки в диапазоне от нулевой до номинальной.

При плановом разогреве и расхолаживании изменение объема теплоносителя в первом контуре компенсируется системами дренажа и подпитки.

Для обеспечения термостабилизации основных трубопроводов системы предусмотрен постоянный небольшой расход теплоносителя с напора главного циркуляционного насоса через душирующее устройство параллельно регулирующим клапанам. /4/

Корпус компенсатора давления изготовлен из перлитной стали с антикоррозионной наплавкой. Назначенный срок службы корпуса компенсатора  давления  -  60 лет  (назначенный  срок  службы электронагревателей 10 лет).

На компенсаторе давления установлены два импульсных-предохранительных устройства (ИЛУ), обеспечивающие защиту первого контура от превышения давления сверх допустимого.

.4.8 Состав и описание систем и оборудования турбинного отделения и второго контура

Выбор технологии основного и вспомогательного тепломеханического оборудования машинного зала и деаэраторного отделения представляет собой реализацию эволюционного подхода с использованием опыта разработки, изготовления, строительства и эксплуатации российских АЭС.

Для АС с РУ ВБЭР-300 в Республике Казахстан предусматривается, реализация оптимальных решений с точки зрения снижения капитальных вложений и эксплуатационных расходов, при обеспечении требуемого уровня безопасности и эксплуатационной надежности.

В составе каждого энергоблока предусматривается быстроходная одновальная конденсационная турбоустановка подвального типа Т-200/300-6,1/50 электрической мощностью 295 МВт. Электрическая мощность обеспечивается при тепловой мощности реактора 850 МВт, давлении свежего пара на входе в турбину 6,08 МПа, температуре свежего пара на входе в турбину 300 °С, абсолютном давлении в конденсаторе 5 кПа и средней температуры морской охлаждающей воды 10,3 °С, при отсутствии дополнительных отборов пара.

Таблица 2 Основные теплотехнические характеристики турбоустановки

Наименование

Значение

1. Результаты  расчета  турбоустановки  в конденсационном режиме: 1.1 Удельный расход тепла (брутто), кДж/кВт-ч(ккал/кВт-ч) 1.2 Расход пара в турбину, т/ч 1.3 Мощность генератора (на клеммах), МВт 1.4 Температура питательной воды, °С

10145 (2423) 1538 295 220

2. Результаты  расчета  турбоустановки   в теплофикационном режиме: 2.1 Удельный расход тепла (брутто), кДж/кВт-ч(ккал/кВт-ч) 2.2 Расход пара в турбину, т/ч 2.3 Мощность генератора (на клеммах), МВт 2.4 Температура питательной воды, °С 2.5 КПД турбоустановки (брутто)

5338 (1275) 1538 200 220 0,67


Указанные в таблице и далее по тексту параметры могут уточняться в ходе оптимизации при разработке проекта турбоустановки.

Определяющий конструкцию турбины показатель - скорость вращения вала турбоагрегата - выбран равным 3000 об/мин./5/

Очевидным преимуществом быстроходной (частотой вращения, равной частоте сети) турбины является сокращение капитальных затрат на сооружение машинного зала и монтаж, а также эксплуатационных затрат на ремонты и обслуживание турбоагрегата ввиду меньших габаритов и массы статорных и роторных деталей турбины и генератора.

.4.9 Мероприятия по энергосбережению

Энергосбережение - реализация правовых, организационных, научных, производственных, технических и экономических мер, направленных на эффективное (рациональное) использование (и экономное расходование) ТЭР и на вовлечение в хозяйственный оборот возобновляемых источников энергии.

В системы электроснабжения предприятия входят электрические сети напряжением 0,4 кВ, 6 или 10 кВ, понижающие трансформаторы, электродвигатели, электропривод, осветительные комплексы, системы автоматизации и др.

Вопросы сбережения и экономии электроэнергии содержат организационные и технические мероприятия. Организационные мероприятия включают:

• разработку планов потребления электроэнергии и удельных норм ее расходования;

• упорядочение потребления электроэнергии в электросиловых установках;

• поддержание рационального режима пользования электроосвещением;

• учет расхода электроэнергии;

• правильность взаиморасчетов с энергосберегающими организациями и сторонними потребителями;

• подведение итогов работы по экономии электроэнергии.

Технические мероприятия включают:

• снижение потерь электроэнергии в сетях и линиях электропередачи;

• реконструкцию сетей без изменения напряжений;

• перевод сетей на повышенное напряжение;

• включение под нагрузку резервных линий электропередачи;

• снижение потерь в силовых трансформаторах;

• применение экономически целесообразного режима одновременной работы трансформаторов.

Основные энергосберегающие направления в электроэнергетике:

• рациональный выбор мощности электродвигателей, приводов механизмов и трансформаторов, при которых обеспечиваются высокие коэффициенты мощности и коэффициенты полезного действия;

• автоматизация электроприводов и осветительных сетей, направленных на экономное расходование электроэнергии;

• применение частотно-регулируемого электропривода на механизмах

с переменной производительностью;

• разработка производственно-технологических процессов с учетом норм расхода электроэнергии.

Энергосбережение в системах электроснабжения предприятия включает следующие основные мероприятия:

. Модернизация систем возбуждения синхронных двигателей (СД) путем замены аналоговых на цифровые возбудительные устройства (ЦВУ). ЦВУ позволяют повысить надежность возбудителя, улучшить условия пуска СД, обеспечивают оперативный анализ работы СД в переходных и нагрузочных режимах, обеспечить защиту от неправильных действий персонала, снизить потери в примыкающей сети, повысить статическую и динамическую устойчивость работы СД. /6/

. Применение гидродинамических муфт (ГМД) для регулирования производительности синхронных двигателей, что позволяет экономить до 15 % электроэнергии, повысить качество регулирования параметров технологических процессов, повысить срок службы, пуск двигателя без нагрузки.

. Установка полупроводниковых пусковых устройств для синхронных двигателей.

. Использование современных осветительных комплексов с металлогалогенными лампами. Замена ламп ДРЛ-400 на лампы НЛВД-300. Замена ламп накаливания на компактные люминесцентные Е-27.

. Внедрение современных автоматизированных систем коммерческого учета энергоресурсов на базе микропроцессорной техники.

. Внедрение частотно-регулируемого электропривода и систем автоматического регулирования на основном и вспомогательном оборудовании.

. Оптимизация режимов работы систем электроснабжения по реактивной мощности путем автоматического регулирования возбуждения синхронных двигателей и автоматического включения батарей статических конденсаторов.

. Применение современных высокотехнологичных уплотняющих материалов для электрических насосов.

. Автоматизация управления освещением путем установки фотореле, а также регулярная (по графику) очистка светильников.

Поддержания номинальных уровней напряжения в сетях. Увеличение коэффициентов загрузки электроприемников с электродвигателями и трансформаторных подстанций и ограничения их холостого хода.

Оснащение систем электроснабжения системами мониторинга потребления электроэнергии.

Сокращение области применения ламп накаливания и замена их люминесцентными.

Применение малогабаритных криптоновых ламп вместо обычных люминесцентных.

Замена люминесцентных ламп старой модификации на новые: 18 Вт вместо 20, 38 Вт вместо 40, 58 Вт вместо 65.

Окраска помещений в более светлые тона.

Замена электромагнитных пускорегулирующих устройств у люминесцентных ламп на электронные.

Уменьшение числа личных бытовых приборов (кипятильники, кофеварки, электрочайники и т.д.).

.4.9.1 Общие мероприятия по энергосбережению

. Назначение ответственного лица за расходом энергоносителей и проведение мероприятий по энергосбережению.

. Совершенствование порядка работы организации и оптимизация работы систем освещения, вентиляции, водоснабжения.

. Соблюдение правил эксплуатации и обслуживания систем энергопотребления и отдельных энергоустановок, введение графиков включения и отключения систем освещения, вентиляции, тепловых завес и т.д.

. Ведение разъяснительной работы с сотрудниками по вопросам энергосбережения.

. Ежеквартальная проверка и корректировка договоров на энерго- и ресурсопотребление с энергоснабжающими организациями.

Вывод по первой части ДР

Данный тип реакторной установки был выбран в результате     сравнительного анализа вариантов размещения в Актау различных энергетических блоков, использующих как ядерную энергию, так и традиционные (работающие на угле, газе) и альтернативные (ветровые, солнечные) источники энергии.

Современные условия формирования топливно-энергетического баланса страны определили необходимость новой стратегии развития атомной энергетики страны, ориентированной на ускоренный ввод энергоблоков АЭС нового поколения в Мангистауской области с достижением ее доли до 40-55 % от суммарной генерирующей мощности, обеспечение эксплуатационной безопасности, повышение конкурентоспособности по сравнению с энергоисточниками на органическом топливе и достижение баланса экономических и социальных интересов республиканского и обласного уровней.

Стратегия развития генерирующих мощностей АЭС в стране может быть реализована только в условиях обеспечения безопасности ядерного топливного цикла, их конкурентоспособности в современном энергетическом рынке и социальной приемлемости на региональном уровне, поэтому остро встает проблема оценки эффективности инвестиционных проектов и выбора предпочтительных решений в электроэнергетике (как атомной, так и тепловой), при этом она по-разному решается в централизованной и рыночной экономиках.

ВБЭР-300 относится к наиболее освоенному в мировой практике классу корпусного водо-водяного реактора. За основу проекта принята компактная блочная конструкция ППУ, применяемая на атомных ледоколах. Учитывая опыт эксплуатации и существующую производственно-технологическую базу, для ВБЭР-300 не требуются масштабные научно-исследовательские работы, что является одним из факторов снижения временных и финансовых затрат на реализацию проекта.

Проектная концепция ВБЭР-300 основана на сочетании технологий и опыта создания и эксплуатации судовых ядерно-энергетических установок с решениями по активной зоне и топливному циклу АЭС с реакторами ВВЭР.

2. Расчетная часть

2.1 Техническое задание

В данном разделе было необходимо разработать главный циркуляционный насос (ГЦН), предназначенный для циркуляции теплоносителя в первом контуре. В связи с увеличением единичных мощностей блоков АЭС появляется необходимость в разработке ГЦН с рабочим колесом (РК) осевого типа.

Высокие требования к надежности и долговечности таких насосов обусловлены следующим:

) ГЦН устанавливается в первом контуре и поэтому практически недоступны для ремонта во время работы АЭС;

) вода в контуре циркулирует при высоком давлении (до 160 кгс/см2) и температуре (до 300 °С).

Требования к ГЦН обусловлены назначением и условиями их эксплуатации (бесперебойный теплоотвод от реактора, высокая температура и повышенное давление рабочего теплоносителя, его радиоактивность):

высокая надежность, т.к. ГЦН должны работать надежно и обеспечивать устойчивую работу при нормальной эксплуатации и в переходных режимах в течение длительного времени;

надежная герметизация ГЦН во избежание утечки теплоносителя из первого контура; обеспечение ремонта насосов с минимальным временем нахождения поблизости от них ремонтного персонала для демонтажа вынимаемых частей ГЦН;

материалы проточной части ГЦН должны отвечать всем требованиям, предъявляемым к материалам главного циркуляционного контура:

ü  не должны взаимодействовать с теплоносителем в рабочем диапазоне температур и давлений;

ü  должны допускать дезактивацию щелочными и кислотными растворами;

ü  должны быть коррозионно-стойкими и устойчивыми против эрозии при предельных скоростях движения теплоносителя в проточных частях.

Таблица 3. Техническое задание

Величина

Значение

подача насоса Q, м3

60000

напор H, м

90

частота вращения РК n, об/мин

1500

кавитационный коэффициент быстроходности Cкр

1000

Температура перекачиваемой жидкости t, ºС

294

Pизб, МПа

16

высота всасывания Hвс, м

-20


2.2 Подготовка исходных данных для расчёта обтекания

По полученным геометрическим характеристикам рабочего колеса с помощью комплекса ROBON был произведён расчёт обтекания. Методика расчета предусматривает последовательное решение следующих задач:

определение параметров осесимметричного потенциального потока в зоне расположения лопастной системы, т.е. в пространстве между втулкой и камерой рабочего колеса;

интерполирование геометрических характеристик лопасти и задание параметров профиля на 5 расчетных радиусах от втулки до периферии;

определение сечения лопасти осесимметричной поверхностью тока потенциального потока;

решение прямой задачи обтекания полученной решетки профилей на осесимметричных поверхностях тока в слое переменной толщины;

расчет значения теоретического напора и режим экспресс-графики.

Для подготовки данных, которые будут использованы в программе, была построена проточная часть в зоне лопастной системы и рассечена 16-ю плоскостями (рисунок 6).

Рисунок 6 - Проточная часть насоса

******************************************************************* Исходные данные для расчета плоского и осесимметричного потенциального потока методом элементов (файл «idp.dat») ******************************************************************* Целое число заканчивается в 60 позиции ---------------------------------------------------------------------------------------------------- Ключ, определяющий геометрию области      Kluch=1 (1-область осесиммертричная; 2-область плоская) ---------------------------------------------------------------------------------------------------- Число глобальных узлов расчетной области       =32 (не может быть больше 32) ---------------------------------------------------------------------------------------------------- Число линий тока                 Nlt=5     (не может быть больше 9) - - - - - - - - - - - - - - - - - - - - - - - - - - - - - - - - - - - - - - - - - - - - - - - - - - - - - - - - -  Густота расчетной сетки поперек потока       Ny=5 ---------------------------------------------------------------------------------------------------- Густота сетки вдоль потока для каждой глобальной подобласти  (целое число в строке «0» заканчивается под «!» шаблона) !  !  !  !  !  !  !  !  !  !  !  !  !  !  !     3  3  3  3  3  3  3  3  3  3  3  3  3  3  3 - - - - - - - - - - - - - - - - - - - - - - - - - - - - - - - - - - - - - - - - - - - - - - - - - - - - - - - - -Координаты глобальных узлов  1…..N построчно (реальные числа по формату f7.1 в строках «0» десятичная точка располагается под «!» шаблона) ____________________ «Х» («Z»),    mm___________________________ !    !   !   !   !   !   !   !  521.2  521.2  445.4  445.4  386.8  386.8  323.1  323.1  266.4  266.4  201.8  201.8  137.9  137.9   60.8   60.8   0.0   0.0  -67.4   -67.4  -132.1  -132.1  -195.1  -195.1   -250.8  -250.8  -310.5  -310.5  -375.0  -375.0  -438.3  -438.3 ____________________ «Х» («Z»),    mm___________________________ !    !   !   !   !   !   !   !  545.0  0.0   545.0   47.8  545.0  140.0  545.0  193.4  545.0  225.2  545.0  244.1  545.0  255.3  545.0  259.9  545.0  260.0  545.0  260.0  545.0  260.0  545.0  260.0  545.0  260.0  545.0  260.0  545.0  260.0  545.0  260.0  - - - - - - - - - - - - - - - - - - - - - - - - - - - - - - - - - - - - - - - - - - - - - - - - - - - - - - - - - Скорость на входе в расчетную область реальное число по формату       f8.3 (десятичная точка в 60 позиции) Vml=-17.9 m/c *******************************************************************


Таблица 4. Исходные данные для расчета плоского и осесимметричного потенциального потока методом элементов (файл «idp.dat»)

******************************************************************** Файл «par.dat» - исходные данные для расчета лопастной системы осевого насоса - - - - - - - - - - - - - - - - - - - - - - - - - - - - - - - - - - - - - - - - - - - - - - - - - - - - - - - - - !!! программа использует файл «potout.dat» и «resdon.bas» ! :::::::::::::::::::::::::::::::::::::::::::::::::::::::::::::::::::::::::::::::::::::::::::::::::::::::::::::::::::::::::    целое число (15) - заканчивается в 50 позиции    реальное число (f10.5) - точка в 50 позиции    ключ для расчета                точки схода   число лопастей рабочего кол.         угловая скорость             осевые координаты:    - входной кромки л.с.        - оси поворота л.с.         - выходной кромки л.с.     Расчетные радиусы цилиндрических сечений:     окружные скорости на входе:         окружная скорость на входе в НА, для РК Ga(i)=0.0:  М=0, ММ=0 Np1=56, Np2=56 Zp.к=4.0  Omega =157/0, 1/c   Yb=0.305, m Ym=0.0, m  Ye= -0.390, m   Rc(1)=0.260, m Rc(2)=0.353, m Rc(3)=0.427, m Rc(4)=0.490, m Rc(5)=0.545, m Vul(1)=0.0, m/c Vul(2)=0.0, m/c Vul(3)=0.0, m/c Vul(4)=0.0, m/c Vul(5)=0.0, m/c Vul(6)=0.0, m/c Vul(7)=0.0, m/c Vul(8)=0.0, m/c Vul(9)=0.0, m/c Ga(1)=0.0, m Ga(2)=0.0, m Ga(3)=0.0, m Ga(4)=0.0, m Ga(5)=0.0, m Ga(6)=0.0, m Ga(7)=0.0, m Ga(8)=0.0, m Ga(9)=0.0, m  Таблица 5. Файл исходных данных для расчёта РК осевого насоса (par.dat)

******************************************************************** N  !  NS !  C !  D !  DO !  U  !  KQ  !  KH !  ND ******************************************************************** 1500  765  1309  1.090  0.499   85.6  0.515    0.121  1635 ------------------------------------------------------------------------------------------------------- РЕЗУЛЬТАТЫ РАСЧЕТА **************************** ГЕОМЕТРИЧЕСКИЕ И ГИДРОДИНАМИЧЕСКИЕ ПАРАМЕТРЫ РАБОЧЕГО КОЛЕСА НАПОР - Р=90.00 м.вод.ст. ПОДАЧА - Q=16.670 м.куб./сек. ЧАСТОТА ВРАЩЕНИЯ - N=1500 об./мин. КОЭФФИЦЕНТ БЫСТРОХОДНОСТИ Ns=765 КАВИТАЦИОННЫЙ КОЭФФИЦИЕНТ БЫСТРОХОДНОСТИ - С=1309 ДИАМЕТР РАБОЧЕГО КОЛЕСА - D=1.090 м ДИАМЕТР ВТУЛКИ - Dвт=0.520 м ЦИРКУЛЯЦИЯ СКОРОСТИ ВОКРУГ ЛОПАСТИ - Gл=9.328 мюкв./сек. ЧИСЛО ЛОПАСТЕЙ - Z=4 ОКРУЖНАЯ СОСТАВЛ. СКОРОСТИ НА ВХОДЕ - Vul м/с  ГЕОМЕТРИЯ РЕШЕТКИ ТОНКИХ ДУЖЕК ******************************************************************** Х !  R !  1i !  T !  Rд !  Dmax/L  !  K  !  Vz !  W8 ******************************************************************** 1   0.260  0.817 0.500  1.285   0.100   1.275   29.49  47.72 2   0.353  0.780 0.712  1.667   0.077   1.190   27.51  60.79 3   0.427  0.698 0.962  1.959   0.059   1.125   26.02  70.65 4   0.490  0.645 1.192  2.234   0.044   1.084   25.06  79.38 5   0.545  0.634 1.351  2.723   0.030   1.056   24.42  87.42 ------------------------------------------------------------------------------------------------------ УГЛОВЫЕ ХАРАКТЕРИСТИКИ РЕШЕТКИ ДУЖЕК = = = = = = = = = = = = = = = = = = = = = = = = = = = = = = = = = == = = = = = = =  I !  Beta L !  BETA D !  B8 !  B2 ! = = = = = = = = = = = = = = = = = = = = = = = = = = = = = = = = = == = = = = = = =        1   47.1     13.2    45.1  52.1        2   31.8     8.3    31.1  33.0        3   24.4     6.9    24.0  25.0        4   20.0     6.4    19.8  20.4        5   17.1     5.6    17.1  17.5 - - - - - - - - - - - - - - - - - - - - - - - - - - - - - - - - - - - - - - - - - - - - - - - - - - - - -


Таблица 6. Результирующий файл программы расчёта геометрических характеристик DON Rezdon.bas

ГЕОМЕТРИЧЕСКИЕ ХАРАКТЕРИСТИКИ ЛОПАСТИ = = = = = = = = = = = = = = = = = = = = = = = = = = = = = = = = = == = = = = = = = I !  R !  1i !  Rд !  Zвх !  BETA  !  Dmax/2  !  Uвх  = = = = = = = = = = = = = = = = = = = = = = = = = = = = = = = = = == = = = = = = =  1  0.260  0.817  1.285  0.254   47.1     0.041    0.327   2  0.353  0.780  1.667  0.166   31.8     0.030    0.356  3  0.427  0.698  1.959  0.116   24.4     0.021    0.331  4  0.490  0.645  2.234  0.088   20.0     0.014    0.311  5  0.545  0.634  2.723  0.076   17.1     0.010    0.308 - - - - - - - - - - - - - - - - - - - - - -- - - - - - - - - - - - - - - - - - - - - - - - - - - - - - - - - - - - -  Минимальный радиус проточной части - 0.190 м Угол поворота лопасти - 3.0 град //////////////////////////////////////////////////// // Создан: 29.04.2014 17:02:03// /////////////////////////////////////////////////// = = = = = = = = = = = = = = = = = = = = = = = = = = = = = = = = = = = = = = = = = =  Дополнительная информация для чтения программой ДОН: Температура перекачиваемой жидкости [град. С] - 294 Избыточное давление в контуре [МПа] - 16 Допускаемый кавитационный запас [м] - 78.2 Гидравлический КПД густоты решетки на переферии = 0.3 [%] - 78  Гидравлический КПД густоты решетки на переферии = 1.0 [%] - 83.7 Максимальная относительная толщина лопасти в корневом сечении - 0.1 Максимальная относительная толщина лопасти в переферийном сечении - 0.03 Примятый гидравлический КПД [%] - 81.58


.3 Результаты расчёта обтекания

Расчёт выполняется в автоматическом режиме. Предварительная визуализация расчёта выполняется в программе «Lab Windows».

Результаты расчета обтекания берём из файла RRO.dat. По этим данным строятся графики, следующие ниже (рисунок 7-8).

Рисунок 7 - График относительной скорости для сечений с 1-го по 5-ое

Рисунок 8 - График избыточного давления для сечений с 1-го по 5-ое

По результатам в файле RRP.dat строим линии тока (рисунок 9).

Рисунок 9 - Линии тока

Также в результате расчёта обтекания были получено действительное значения теоретического напора. Оно составило 131,37 м. Это несколько больше требуемого значения (110,6 м), поэтому необходимо предпринять меры для его уменьшения.

.4 Прогнозирование кавитации режимов ГЦН

.4.1 Профильная кавитация

Профильная кавитация (или кавитация формы) возникает при отрыве потока от обтекаемой им поверхности с образованием кавитационных пузырей. Этот вид кавитации зависит от условий подвода и входа потока в лопасть. У осевых насосов влияние оказывает профиль лопасти, форма обтекателя, конструкция ребра, поддерживающего обтекатель, и т. д. /7/

Под прогнозированием профильной кавитации понимают расчётное определение геометрической высоты всасывания, соответствующее появлению профильной кавитации:

,(1)


м,          (2)



Для отсутствия профильной кавитации необходимо выполнение условия:

.(3)


,

(4)



высота всасывания установки,

 - давление на входе в РК, - потери на входе:

,            (5)

где , - местные потери по длине и при повороте на 90º.

Общая формула для расчёта потерь:

   ,     (6)



где - скорость в трубопроводе;- коэффициент местных потерь.

;        (7)



Коэффициент местных потерь:

   ,       (8)



где - коэффициент сопротивления трения, который рассчитывается по формуле Дарси-Вейсбаха:

   ,      (9)



где - число Рейнольдса:

,        (10)



где - диаметр трубопровода, - коэффициент кинематической вязкости.

Коэффициент сопротивления трения:

     ;   (11)



Коэффициент местных потерь:

     ;    (12)



Тогда местные потери:

          (13)



Коэффициент местных потерь при повороте на 90º:

,         (14)



где , , - коэффициенты, которые берутся из справочника, тогда местные потери при повороте на 90º:

;         (15)



Тогда потери на входе:

.         (16)


Определим фактическое значение высоты всасывания, соответствующее началу профильной кавитации:

.         (17)



Определим фактическое значение высоты всасывания установки:

         (18)



          (19)



Условие бескавитационной работы выполнено.

.5 Щелевая кавитация

 

Щелевая кавитация возникает вследствие резкого повышения скорости потока в щелях различного рода и зазорах. Она возникает также в зазорах между торцами лопастей и стенками камеры рабочего колеса. Наиболее типичным примером эрозии, вызванной щелевой кавитацией, является разрушение стенок колесных камер и периферийных торцов лопастей рабочих колес осевых насосов.

Течение, порождающее щелевую кавитацию, характеризуется средней скоростью щелевого потока.

Определим среднюю скорость щелевого потока:

 ,

        (20)


где - коэффициент расхода при острой кромке, - динамический напор, определённый по графику давлений.

Коэффициент расхода  примем равным 0,8.

Тогда:

 (21)

 

2.5.1 Торцевая кавитация

Торцевая кавитация возникает вследствие повышения относительной скорости течения в зоне отрыва потока на входе в щелевой зазор при острой кромке на входе.

Определим длину области отрыва с использованием эмпирической формулы:

;        (22)



В соответствии с рекомендациями, величина нормального радиального зазора осевого рабочего колеса принимается равной:

м.         (23)



Число Рейнольдса можно определить как:

         (24)



Тогда:

    .    (25)


Т.к. , условия для возникновения торцевой кавитации отсутствуют.

2.5.2 Струйная кавитация

После выхода потока из щелевого канала образуется плоская пристенная турбулентная струя, распространяющаяся вдоль внутренней поверхности камеры РК в условиях её относительного смещения. Взаимодействуя с пограничным слоем на камере, эта струя образует вихревую пелену с повышенными скоростями в центральной области этих вихрей. Струйная кавитация - это кавитация в центральной области каждого вихря в отдельности.

Для отсутствия струйной кавитации необходимо выполнение условия:

  ,       (26)



где

          (27)



         (28)



Определим величину кавитационного запаса, соответствующего возникновению струйной кавитации:

 .        (29)


.         (30)


,        (31)



следовательно, условие отсутствия струйной кавитации выполнено.

 

2.5.3 Вихревая кавитация

После выхода потока из щели возникает не только струйная, но и вихревая кавитация. Вихревая кавитация - это кавитация в центральной области линейного вихря с повышенными скоростями, который образуется в результате взаимодействия струи после выхода из щели с потоком, обтекающим профиль лопасти в периферийном сечении./8/ Подход к прогнозированию вихревой кавитации основывается на том, что скорость в центральной области вихря определяется относительной скоростью обтекания всасывающей поверхности лопасти на периферии. Для отсутствия вихревой кавитации необходимо выполнение условия:

    ,    (32)



Где

    ,     (33)



Где

          (34)



Значение м/с - определяется из графика скоростей, полученного в результате расчёта обтекания.

Определим величину кавитационного запаса, соответствующего возникновению вихревой кавитации:


.6 Конструирование насоса

Насос состоит из корпуса и вынимаемой части. Для обеспечения герметичности вынимаемая часть уплотнятся медной прокладкой 19 трапецеидального сечения.

Корпус насоса сварной конструкции, из теплоустойчивой стали. Он крепится к опорному кольцу насоса. К нему приварены опорные лапы, которыми он опирается на фундамент.

Вынимаемая часть состоит из крышки главного разъема 2, выполненной в одно целое с выправляющим аппаратом, крышки с горловиной 3, в которой расположены ГСП и уплотнение вала насоса (см. Рис.8), рабочего колеса 7. Вал насоса - цельнокованый. Рабочее колесо осевого типа. Колесо и выправляющий аппарат выполнены из нержавеющей стали./9/

Внутренние поверхности крышки защищены нержавеющей наплавкой. Конструкция ГЦН допускает агрегатный ремонт или полную замену вынимаемой части.

Похожие работы на - Проектирование реакторной установки

 

Не нашли материал для своей работы?
Поможем написать уникальную работу
Без плагиата!
Без нейросетей!