|
Марка
автомобиля
|
Годовое
кол-во усл. обсл. автом. на СТО, Nсто
|
Кол-во
заездов одного автом. в год, d
|
Годовое
кол-во продаваемых автом., Nп
|
Среднегодовой
пробег, Lг
|
Число
рабочих дней в году, Драб
|
Продол.
смены, Tсм
|
Число
смен, С
|
|
Hyundai
Accent 1.5
|
900
|
2
|
100
|
40000
|
245
|
12
|
2
|
Модель Accent выпускается крупнейшим
автопроизводителем Южной Кореи - Hyundai Motors Corp с 1994 года. Автомобиль,
сочетающий в себе оригинальную внешность, комфортабельность салона, лёгкость
управления и богатый выбор дополнительных опций, плюс экономный расход топлива,
приобрёл широкую известность во всем мире, о чём свидетельствует высокий
уровень объема продаж. Hyundai Accent последнего поколения отличает современный
дизайн, мощный двигатель, высокий уровень безопасности и компактность. Accent -
один из лучших автомобилей от Hyundai.
1.2 Расчет годовых объемов работ
Годовой объем работ СТО может включать
уборочно-моечные работы, работы по приемке и выдаче, работы по предпродажной
подготовке автомобилей, работы по ТО и ТР.
Значения трудоемкостей основных видов работ
приводятся в табл. 2.
Таблица 2 - Трудоёмкости основных работ по
одному автомобилю
Уборочно-моечные работы выполняются перед ТО и
ТР или как самостоятельный вид услуг. В первом случае число заездов на УМР
принимается равным числу заездов обслуживаемых в год автомобилей:
, (1)
заездов.
Если на СТО УМР выполняются как самостоятельный
вид услуг, то число заездов на УМР может быть принято из расчета одного заезда
на Lз=1000 км пробега. Таким образом, число заездов на УМР как самостоятельный
вид услуг:
, (2)
заездов.
Годовой объем уборочно-моечных работ
(в чел.-ч.):
, (1)
где tУМР - средняя трудоемкость
одного заезда на УМР; tУМР для легкового автомобиля малого класса принимаем
равным 0,2 чел.-ч.
чел.-ч.
Годовой объем работ по приемке и
выдаче вычислим по формуле:
, (2)
где tпв - трудоемкость работ по
приемке и выдаче автомобилей; tпв для легкового автомобиля малого класса
принимаем равным 0,2 чел.-ч.
чел.-ч.
Годовой объем работ по предпродажной подготовке
определим как:
, (3)
где Nп - количество продаваемых
автомобилей в год;пп - трудоемкость предпродажной подготовки автомобиля; tпп
легкового автомобиля малого класса принимаем равным 3 чел.-ч.
чел.-ч.
Годовой объем работ по ТО и ТР
определим по формуле:
, (4)
где NСТО - годовое количество
условно обслуживаемых автомобилей;г - среднегодовой пробег автомобиля, км;ТО-ТР
- удельная трудоемкость ТО и ТР; tТО-ТР для легкового автомобиля малого класса
принимаем равным 2,3 чел.-ч. / 1000 км.
чел.-ч.
На СТО также выполняются вспомогательные
работы, в состав которых входят работы по ремонту и обслуживанию
технологического оборудования, оснастки и инструмента различных зон и участков,
содержанию инженерного оборудования, сетей и коммуникаций. Годовой объем
вспомогательных работ:
, где (7)
Двсп - доля от общего объема работ;
Двсп принимаем равным 0,1;
ТСТО - общий объем работ СТО.
чел.-ч.
Результаты расчета годовых объемов
работ приведены в табл. 3.
Таблица 3 - Годовые объемы работ
|
№
п/п
|
Виды
трудоемкостей
|
Ед.
изм.
|
Значение
|
|
Число
заездов на УМР перед ТО и ТР
|
ед.
|
1800
|
|
Число
заездов на УМР
|
ед.
|
36000
|
|
1
|
Трудоемкость
УМР
|
чел.-ч.
|
7560
|
|
2
|
Трудоемкость
приемки и выдачи
|
чел.-ч.
|
360
|
|
3
|
Трудоемкость
предпродажной подготовки
|
чел.-ч.
|
300
|
|
4
|
Трудоемкость
ТО и ТР
|
чел.-ч.
|
82800
|
|
Всего
трудоемкость
|
чел.-ч.
|
91020
|
|
5
|
Трудоемкость
вспомогательных работ
|
чел.-ч.
|
9102
|
|
ИТОГО
трудоемкость
|
чел.-ч.
|
100122
|
1.3 Распределение годовых объемов
работ
В настоящее время ТО и ремонт автомобилей
производится на базе готовых деталей, узлов и механизмов. Поэтому работы
(услуги) по ТО и ТР выполняются на рабочих постах. Отдельные производственные
помещения с рабочими постами предусматриваются для выполнения УМР, кузовных,
окрасочных работ.
Распределение общего годового объема работ по ТО
и ТР по видам и месту выполнения в зависимости от числа рабочих постов
представлено в табл. 4.
Таблица 4 - Распределение объема работ по видам
и месту их выполнения
Для распределения объема работ необходимо
предварительно вычислить число рабочих постов, которое определяется из
следующего выражения:
, (8)
где ТТО-ТР - годовой объем работ по
ТО и ТР, чел.- ч.;
j
- коэффициент неравномерности поступления автомобилей; j принимаем равным 1,15;
Кп - доля постовых работ в общем
объеме; Кп принимаем равным 0,85;
Драб - число рабочих дней в году;
Тсм - продолжительность смены;
С - число смен;
Рп - число рабочих, одновременно
работающих на посту; Рп принимаем равным 1.
hп
- коэффициент использования рабочего времени поста; hп принимаем равным 0,9.
постов.
Используя данные табл. 4 (колонка от
11 до 20 постов), производим распределение годового объема работ ТО и ТР
проектируемой СТО по видам и месту выполнения (табл. 5).
Таблица 5 - Распределение годового
объема работ ТО и ТР
|
№
п/п
|
Виды
работ
|
Распределение
объема работ
|
Место
выполнения
|
|
|
%
|
чел.-ч.
|
на
рабочих постах
|
на
участках
|
|
1
|
Диагностирование
|
4
|
3640,8
|
3640,8
|
0
|
|
2
|
Обслуживание
и ремонт
|
27
|
24575,4
|
24575,4
|
0
|
|
3
|
Агрегатные
|
17
|
15473,4
|
7736,7
|
7736,7
|
|
4
|
Слесарно-механические
|
7
|
6371,4
|
0
|
6371,4
|
|
5
|
Электротехнические
|
4
|
3640,8
|
2912,64
|
728,16
|
|
6
|
Аккумуляторные
|
2
|
1820,4
|
182,04
|
1638,36
|
|
7
|
Ремонт
приборов системы питания
|
4
|
3640,8
|
2548,56
|
1092,24
|
|
8
|
Шиномонтажные
|
2
|
1820,4
|
546,12
|
1274,28
|
|
9
|
Кузнечно-рессорные
|
3
|
2730,6
|
2047,95
|
682,65
|
|
10
|
Медницкие
|
3
|
2730,6
|
2047,95
|
682,65
|
|
11
|
Сварочные
|
7
|
6371,4
|
4778,55
|
1592,85
|
|
12
|
Жестяницкие
|
9
|
8191,8
|
6143,85
|
2047,95
|
|
13
|
Окрасочные
|
8
|
7281,6
|
7281,6
|
0
|
|
14
|
Обойные
|
3
|
2730,6
|
1365,3
|
1365,3
|
|
Всего
|
100
|
91020
|
65807,46
|
25212,54
|
Расчет численности рабочих
Технологически необходимое число
производственных рабочих:
(9)
Штатное число производственных рабочих
(10)
где Т - годовой объем работ,
чел.-ч.;
Фт и Фш - соответственно годовой
фонд времени технологически необходимого рабочего при односменной работе и
штатного рабочего, ч.
Для специальностей с вредными
условиями труда установлены фонды:
Фт = 1780 ч и Фш = 1560 ч (35 ч
продолжительность недели и 24 дня отпуска).
Для всех других специальностей:
Фт = 2020 ч и Фш = 1770 ч (40 ч
продолжительность недели и 24 дня отпуска).
Результаты расчета общей численности
производственных рабочих приведены в табл. 6
Таблица 6 - Результаты расчета общей
численности производственных рабочих СТО
|
№
п/п
|
Виды
работ
|
Объем
работ
|
Фонд
рабочего времени
|
Технологическое
число рабочих, ч
|
Штатное
число рабочих, ч
|
|
|
Т,
чел.-ч.
|
Фт,
ч
|
Фш,
ч
|
расчет
|
принято
|
расчет
|
принято
|
|
1
|
Диагностирование
|
3640,8
|
2020
|
1770
|
1,8
|
2
|
2,06
|
2
|
|
2
|
Обслуживание
и ремонт
|
24575,4
|
2020
|
1770
|
12,17
|
12
|
13,88
|
14
|
|
3
|
Агрегатные
|
15473,4
|
2020
|
1770
|
7,66
|
8
|
8,74
|
9
|
|
4
|
Слесарно-механические
|
6371,4
|
2020
|
1770
|
3,15
|
3
|
3,6
|
4
|
|
5
|
Электротехнические
|
3640,8
|
1780
|
1560
|
2,05
|
2
|
2,33
|
2
|
|
6
|
Аккумуляторные
|
1820,4
|
1780
|
1560
|
1,02
|
1
|
1,17
|
1
|
|
7
|
Ремонт
приборов системы питания
|
3640,8
|
2020
|
1770
|
1,8
|
2
|
2,06
|
2
|
|
8
|
Шиномонтажные
|
1820,4
|
2020
|
1770
|
0,9
|
1
|
1,03
|
1
|
|
9
|
Кузнечно-рессорные
|
2730,6
|
2020
|
1770
|
1,35
|
1
|
1,54
|
2
|
|
10
|
Медницкие
|
2730,6
|
1780
|
1560
|
1,53
|
2
|
1,75
|
2
|
|
11
|
Сварочные
|
6371,4
|
1780
|
1560
|
3,58
|
4
|
4,08
|
4
|
|
12
|
Жестяницкие
|
8191,8
|
2020
|
1770
|
4,06
|
4
|
4,63
|
5
|
|
13
|
Окрасочные
|
7281,6
|
1780
|
1560
|
4,09
|
4
|
4,67
|
|
14
|
Обойные
|
2730,6
|
2020
|
1770
|
1,35
|
1
|
1,54
|
2
|
|
Всего
|
91020
|
|
|
|
47
|
|
55
|
|
15
|
Вспомогательные
|
9102
|
2020
|
1770
|
4,51
|
5
|
5,14
|
5
|
Результаты расчета численности производственных
рабочих на постах и на участках приведены соответственно в табл. 7 и табл. 8.
Таблица 7 - Результаты расчета общей численности
производственных рабочих на постах
|
№
п/п
|
Виды
работ
|
Объем
работ на постах
|
Фонд
рабочего времени
|
Технологическое
число рабочих, ч
|
Штатное
число рабочих, ч
|
|
|
Т,
чел.-ч.
|
Фт,
ч
|
Фш,
ч
|
расчет
|
принято
|
расчет
|
принято
|
|
1
|
Диагностирование
|
3640,8
|
2020
|
1770
|
1,8
|
2
|
2,06
|
2
|
|
2
|
Обслуживание
и ремонт
|
24575,4
|
2020
|
1770
|
12,17
|
12
|
13,88
|
14
|
|
3
|
Агрегатные
|
7736,7
|
2020
|
1770
|
3,83
|
4
|
4,37
|
4
|
|
4
|
Слесарно-механические
|
0
|
2020
|
1770
|
0
|
0
|
0
|
0
|
|
5
|
Электротехнические
|
2912,64
|
1780
|
1560
|
1,64
|
2
|
1,87
|
2
|
|
6
|
Аккумуляторные
|
182,04
|
1780
|
1560
|
0,1
|
0
|
0,12
|
0
|
|
7
|
Ремонт
приборов системы питания
|
2548,56
|
2020
|
1770
|
1,26
|
1
|
1,44
|
1
|
|
8
|
Шиномонтажные
|
546,12
|
2020
|
1770
|
0,27
|
0
|
0,31
|
0
|
|
9
|
Кузнечно-рессорные
|
2047,95
|
2020
|
1770
|
1,01
|
1
|
1,16
|
1
|
|
10
|
Медницкие
|
2047,95
|
1780
|
1560
|
1,15
|
1
|
1,31
|
1
|
|
11
|
Сварочные
|
4778,55
|
1780
|
1560
|
2,68
|
3
|
3,06
|
3
|
|
12
|
Жестяницкие
|
6143,85
|
2020
|
1770
|
3,04
|
3
|
3,47
|
3
|
|
13
|
Окрасочные
|
7281,6
|
1780
|
1560
|
4,09
|
4
|
4,67
|
5
|
|
14
|
Обойные
|
1365,3
|
2020
|
1770
|
0,68
|
1
|
0,77
|
1
|
|
Всего
|
65807,46
|
|
|
|
34
|
|
37
|
Таблица 8 - Результаты расчета общей численности
производственных рабочих на участках
|
№
п/п
|
Виды
работ
|
Объем
работ на участках
|
Фонд
рабочего времени
|
Технологическое
число рабочих, ч
|
Штатное
число рабочих, ч
|
|
|
Т,
чел.-ч.
|
Фт,
ч
|
Фш,
ч
|
расчет
|
принято
|
расчет
|
принято
|
|
1
|
Диагностирование
|
0
|
2020
|
1770
|
0
|
0
|
0
|
0
|
|
2
|
Обслуживание
и ремонт
|
0
|
2020
|
1770
|
0
|
0
|
0
|
0
|
|
3
|
Агрегатные
|
7736,7
|
2020
|
1770
|
3,83
|
4
|
4,37
|
4
|
|
4
|
Слесарно-механические
|
6371,4
|
2020
|
1770
|
3,15
|
3
|
3,6
|
4
|
|
5
|
Электротехнические
|
728,16
|
1780
|
1560
|
0,41
|
0
|
0,47
|
0
|
|
6
|
Аккумуляторные
|
1638,36
|
1780
|
1560
|
0,92
|
1
|
1,05
|
1
|
|
7
|
Ремонт
приборов системы питания
|
1092,24
|
2020
|
1770
|
0,54
|
1
|
0,62
|
1
|
|
8
|
Шиномонтажные
|
1274,28
|
2020
|
1770
|
0,63
|
1
|
0,72
|
1
|
|
9
|
Кузнечно-рессорные
|
682,65
|
2020
|
1770
|
0,34
|
0
|
0,39
|
0
|
|
10
|
Медницкие
|
682,65
|
1780
|
1560
|
0,38
|
0
|
0,44
|
0
|
|
11
|
Сварочные
|
1592,85
|
1780
|
1560
|
0,89
|
1
|
1,02
|
1
|
|
12
|
Жестяницкие
|
2047,95
|
2020
|
1770
|
1,01
|
1
|
1,16
|
1
|
|
13
|
Окрасочные
|
0
|
1780
|
1560
|
0
|
0
|
0
|
0
|
|
14
|
Обойные
|
1365,3
|
2020
|
1770
|
0,68
|
1
|
0,77
|
1
|
|
Всего
|
25212,54
|
|
|
|
13
|
|
14
|
1.4 Расчет числа постов
Посты по своему технологическому назначению
подразделяются на рабочие и вспомогательные. Рабочие посты - это автомобиле -
места оснащенные соответствующим технологическим оборудованием и
предназначенные для технического воздействия на автомобиль, поддержания и
восстановления его технически исправного состояния и внешнего вида (посты УМР,
диагностирования, ТО, ТР, кузовных, окрасочных и противокоррозионных работ).
, где (11)
Тп - годовой объем постовых работ,
чел*ч,
j
- коэффициент неравномерности поступления автомобилей; j принимаем равным 1,15;
Драб г - число рабочих дней в году;
Тсм - продолжительность смены;
С - число смен;
Рп - число рабочих, одновременно
работающих на посту; Рп принимаем равным 1.
hп
- коэффициент использования рабочего времени поста; hп принимаем равным 0,9.
Результаты расчета числа постов по
видам работ приведены в табл. 9. В результате анализа данных таблицы
установлено, что необходима организация отдельных постов по следующим видам
работ: диагностирование, техническое обслуживание и ремонт, агрегатные,
электротехнические, ремонт приборов системы питания, сварочные, жестяницкие,
окрасочные.
В окончательном виде результаты
распределения объемов работ, численности производственных рабочих и рабочих
постов приведены в табл. 10.
Таблица 9 - Результаты расчета числа
рабочих постов по видам работ
|
№
п/п
|
Виды
работ
|
Объем
работ на постах
|
Число
рабочих постов
|
|
|
чел.-ч.
|
расчет
|
принято
|
|
1
|
Диагностирование
|
3640,8
|
0,79
|
1
|
|
2
|
Обслуживание
и ремонт
|
24575,4
|
5,34
|
5
|
|
3
|
Агрегатные
|
7736,7
|
1,68
|
2
|
|
4
|
Слесарно-механические
|
0
|
0
|
|
5
|
Электротехнические
|
2912,64
|
0,63
|
1
|
|
6
|
Аккумуляторные
|
182,04
|
0,04
|
0
|
|
7
|
Ремонт
приборов системы питания
|
2548,56
|
0,55
|
1
|
|
8
|
Шиномонтажные
|
546,12
|
0,12
|
0
|
|
9
|
Кузнечно-рессорные
|
2047,95
|
0,45
|
0
|
|
10
|
Медницкие
|
2047,95
|
0,45
|
0
|
|
11
|
Сварочные
|
4778,55
|
1,04
|
1
|
|
12
|
Жестяницкие
|
6143,85
|
1,34
|
1
|
|
13
|
Окрасочные
|
7281,6
|
1,58
|
2
|
|
14
|
Обойные
|
1365,3
|
0,3
|
0
|
|
Всего
|
65807,46
|
14,31
|
14
|
Таблица 10 - Распределение объемов работ по
видам и месту выполнения, расчет численности производственных рабочих и рабочих
постов
|
№
п/п
|
Виды
работ
|
Объем
работ на постах
|
Объем
работ на участках
|
Штатное
число рабочих на постах, чел
|
Штатное
число рабочих на участках, чел
|
Число
рабочих постов, ед.
|
|
|
чел.-ч.
|
чел.-ч.
|
принято
|
принято
|
принято
|
|
1
|
Диагностирование
|
3640,8
|
0
|
2
|
0
|
1
|
|
2
|
Обслуживание
и ремонт
|
24575,4
|
0
|
14
|
0
|
5
|
|
3
|
Агрегатные
|
7736,7
|
7736,7
|
4
|
4
|
2
|
|
4
|
Слесарно-механические
|
0
|
6371,4
|
0
|
4
|
0
|
|
5
|
Электротехнические
|
2912,64
|
728,16
|
2
|
0
|
1
|
|
6
|
Аккумуляторные
|
182,04
|
1638,36
|
0
|
1
|
0
|
|
7
|
Ремонт
приборов системы питания
|
2548,56
|
1092,24
|
1
|
1
|
1
|
|
8
|
Шиномонтажные
|
546,12
|
1274,28
|
0
|
1
|
0
|
|
9
|
Кузнечно-рессорные
|
2047,95
|
682,65
|
1
|
0
|
0
|
|
10
|
Медницкие
|
2047,95
|
682,65
|
1
|
0
|
0
|
|
11
|
Сварочные
|
4778,55
|
1592,85
|
3
|
1
|
1
|
|
12
|
Жестяницкие
|
6143,85
|
2047,95
|
3
|
1
|
1
|
|
13
|
Окрасочные
|
7281,6
|
0
|
5
|
0
|
2
|
|
14
|
Обойные
|
1365,3
|
1365,3
|
1
|
1
|
0
|
|
Всего
|
65807,46
|
25212,54
|
37
|
14
|
14
|
|
15
|
Вспомогательные
|
9201
|
5
|
|
Число механизированных постов УМР
, где (52)
ТУМР - трудоемкость уборочно-моечных
работ, чел*ч;
jм
- коэффициент неравномерности поступления автомобилей на посты мойки; jм принимаем равным 1,3;
Тоб = Тсм - суточная
продолжительность работы участка, ч;- производительность моечной установки,
авт. / ч; Ny принимаем равным 5;
hп
- коэффициент использования рабочего времени поста; hп принимаем равным 0,9.
пост.
Число постов приемки-выдачи
, где (63)
ТПВ - годовой объем постовых работ,
чел*ч,
j
- коэффициент неравномерности поступления автомобилей; j принимаем равным 1,15;
Драб г - число рабочих дней в году;
Тсм - продолжительность смены;
С - число смен;
Рп - число рабочих, одновременно
работающих на посту; Рп принимаем равным 1.
hп
- коэффициент использования рабочего времени поста; hп принимаем равным 0,9.
постов.
Вспомогательные посты
, где (14)
ДВСП - число вспомогательных постов
на один рабочий пост; ДВСП принимаем равным 0,25.
поста.
Результаты расчета общего числа
рабочих постов приведены в табл. 11.
Таблица 11 - Распределение рабочих
постов по видам воздействий
|
№
п/п
|
Виды
постов
|
Ед.
изм.
|
Значение
|
|
1
|
Число
постов УМР
|
ед.
|
1
|
|
2
|
Число
постов приемки и выдачи
|
ед.
|
0
|
|
3
|
Число
постов диагностирования
|
ед.
|
1
|
|
4
|
Число
постов обслуживания и ремонта
|
ед.
|
5
|
|
5
|
Число
постов ремонта узлов и агрегатов
|
ед.
|
2
|
|
6
|
Число
постов электротехнических работ
|
ед.
|
1
|
|
7
|
Число
постов работ по ремонту приборов системы питания
|
ед.
|
1
|
|
8
|
Число
постов сварочных работ
|
ед.
|
1
|
|
9
|
Число
постов жестяницких работ
|
ед.
|
1
|
|
10
|
Число
постов окрасочных работ
|
ед.
|
2
|
|
Всего
постов
|
ед.
|
15
|
|
11
|
Число
постов вспомогательных работ
|
ед.
|
4
|
|
ИТОГО
постов
|
ед.
|
19
|
1.5 Расчет числа автомобиле-мест
В зависимости от условий могут быть созданы
автомобиле-места ожидания и хранения, размещаемые как в закрытых помещениях,
так и на открытых площадках.
Автомобиле-места ожидания - это места,
занимаемые автомобилями, ожидающими постановки их на посты ТО и ТР. При
необходимости автомобиле-места ожидания могут использоваться для выполнения определенных
видов работ ТО и ТР.
Число автомобиле-мест ожидания постановки на
посты ТО и ТР
, где (15)
Хобщ - общее число рабочих постов на
СТО.
автомобиле-мест.
Предусматриваем, что 50% (т.е. 4)
автомобиле-мест размещаются в помещении станции, а остальные - на открытой
стоянке.
Число автомобиле-мест для готовых к
выдаче автомобилей
, где (16)
Тпр - среднее время пребывания
автомобиля на СТО после обслуживания до выдачи владельцу; Тпр принимаем равным
5 ч;
Тв = Тсм - суточная
продолжительность работы участка, ч.
автомобиле-места.
Предусматриваем, что 50% (т.е. 1,
т.к. округляем в меньшую сторону) автомобиле-мест размещаются в помещении
станции, а остальные - на открытой стоянке.
Число автомобиле-мест на открытой
стоянке магазина
, где (17)
п - число продаваемых автомобилей в
г
од, ед.;
Дз - число дней запаса, дн.; Дз
принимаем равным 15;
Драб м = Драб г - число рабочих дней
магазина в год.
автомобиле-мест.
Для демонстрации новых автомобилей в
помещении станции предусматриваем 10% (т.е. 0, т.к. округляем в меньшую
сторону) автомобиле-мест от числа автомобиле-мест на открытой стоянке магазина.
Результаты расчета количества автомобиле-мест приведены в табл. 12.
Таблица 12 - Количество
автомобиле-мест
|
№
п/п
|
Виды
автомобиле-мест
|
Ед.
изм.
|
Значение
|
|
1
|
Автомобиле-места
ожидания
|
ед.
|
8
|
|
в
помещении
|
ед.
|
4
|
|
на
открытой стоянке
|
ед.
|
4
|
|
2
|
Автомобиле-места
готовых к выдаче автомобилей
|
ед.
|
3
|
|
в
помещении
|
ед.
|
1
|
|
на
открытой стоянке
|
ед.
|
2
|
|
3
|
Автомобиле-места
на стоянке магазина
|
ед.
|
6
|
|
4
|
Автомобиле-места
для демонстрационных автомобилей
|
ед.
|
0
|
|
Всего
автомобиле-мест
|
ед.
|
17
|
|
в
помещении
|
ед.
|
5
|
|
на
открытой стоянке
|
ед.
|
12
|
1.6 Определение площадей помещений
Состав и площади помещений определяются размером
станции обслуживания и видами выполняемых работ.
Площади СТО по своему функциональному назначению
подразделяются на:
• производственные (зоны постовых работ,
производственные участки);
• складские;
• технические помещения (компрессорная,
трансформаторная, электрощитовая, водомерный узел, тепловой пункт, насосная и
др.);
• административно - бытовые (офисные помещения,
гардероб, туалеты, душевые и т.п.);
• помещения для обслуживания клиентов
(клиентская, бар, кафе), помещения для продажи запчастей и автопринадлежностей,
туалет и т.п.;
• помещения для продажи автомобилей (салон -
выставка продаваемых автомобилей, зоны хранения и др.).
Площади постов
, где (78)
- площадь, занимаемая автомобилем в
плане; площадь автомобиля Hyundai Accent 1.5 MT (длина - 4,235 м, ширина - 1,67
м) равна 7,07 м2;- число постов; КПп - коэффициент плотности расстановки
постов; КПп принимаем равным 5.
Коэффициент КПп представляет собой
отношение площади, занимаемой автомобилями, проездами, проходами, рабочими
местами, к сумме площадей проекции автомобилей в плане.
Результаты расчета площадей постов
приведены в табл. 13.
Площади автомобиле - мест
, где (19)
- число автомобиле-мест;
КПа - коэффициент плотности
расстановки постов; КПа принимаем равным 6.
Результаты расчета автомобиле-мест
приведены в табл. 14.
Таблица 13 - Площади постов
|
№
п/п
|
Виды
постов
|
Число,
ед.
|
Площадь,
м2
|
|
1
|
Посты
УМР
|
1
|
35
|
|
2
|
Посты
приемки и выдачи
|
0
|
0
|
|
3
|
Посты
диагностирования
|
35
|
|
4
|
Посты
обслуживания и ремонта
|
5
|
177
|
|
5
|
Посты
ремонта узлов и агрегатов
|
2
|
71
|
|
6
|
Посты
электротехнических работ
|
1
|
35
|
|
7
|
Посты
работ по ремонту приборов системы питания
|
1
|
35
|
|
8
|
Посты
сварочных работ
|
1
|
35
|
|
9
|
Посты
жестяницких работ
|
1
|
35
|
|
10
|
Посты
окрасочных работ
|
2
|
71
|
|
Всего
по постам
|
15529
|
|
|
11
|
Посты
вспомогательных работ
|
4
|
141
|
|
ИТОГО
по постам
|
19
|
670
|
Таблица 14 - Площади автомобиле-мест
|
№
п/п
|
Виды
автомобиле-мест
|
Число,
ед.
|
Площадь,
м2
|
|
1
|
Автомобиле-места
ожидания
|
8
|
339
|
|
в
помещении
|
4
|
170
|
|
на
открытой стоянке
|
4
|
170
|
|
2
|
Автомобиле-места
готовых к выдаче автомобилей
|
3
|
127
|
|
в
помещении
|
1
|
42
|
|
на
открытой стоянке
|
2
|
85
|
|
3
|
Автомобиле-места
на стоянке магазина
|
6
|
255
|
|
4
|
Автомобиле-места
для демонстрационных автомобилей
|
0
|
0
|
|
Всего
автомобиле-мест
|
17721
|
|
|
в
помещении
|
5
|
212
|
|
на
открытой стоянке
|
12
|
509
|
Площади производственных участков
, где (208)
- площадь на первого работающего,
м2,- то же на каждого последующего работающего, м2,
Рт - число технологически
необходимых рабочих на участке, чел.
Результаты расчета площадей участков
приведены в табл. 15.
Таблица 15 - Площади участков
|
№
п/п
|
Виды
работ
|
Площадь
на первого рабочего, м2
|
Площадь
на последующего рабочего, м2
|
Число
рабочих, чел
|
Площадь
участка, м2
|
|
1
|
Агрегатные
|
18
|
12
|
4
|
54
|
|
2
|
Слесарно-механические
|
22
|
14
|
3
|
50
|
|
3
|
Электротехнические
|
15
|
9
|
0
|
6
|
|
4
|
Аккумуляторные
|
15
|
9
|
1
|
15
|
|
5
|
Ремонт
приборов системы питания
|
14
|
8
|
1
|
14
|
|
6
|
Шиномонтажные
|
14
|
8
|
1
|
14
|
|
7
|
Кузнечно-рессорные
|
15
|
9
|
0
|
6
|
|
8
|
Медницкие
|
14
|
8
|
0
|
6
|
|
9
|
Сварочные
|
15
|
9
|
1
|
15
|
|
10
|
Жестяницкие
|
15
|
9
|
1
|
15
|
|
11
|
Окрасочные
|
18
|
12
|
0
|
6
|
|
12
|
Обойные
|
14
|
8
|
1
|
14
|
|
Всего
|
|
|
13215
|
|
Площадь технических помещений
, где (21)
ДТП - доля от площади
производственных помещений (посты плюс участки); ДТП принимаем равным 0,07;пр -
площадь производственных помещений.
м2.
Площадь складских помещений
, где (22)
Дскл - доля от площади
производственных помещений (посты плюс участки); Дскл принимаем равным 0,08.
м2.
Площадь административных помещений
, где (23)
Дадм - доля административных рабочих
от числа производственных рабочих; Дадм принимаем равным 0,15;
Уадм - площадь на одного
работающего; Уадм принимаем равным 7 м2;пр - численность производственных
рабочих на постах и участках, чел.
м2.
Площадь бытовых помещений
, где (24)
Убыт - площадь на одного
работающего; Убыт принимаем равным 4 м2;пр - численность производственных
рабочих на постах и участках, чел.
м2.
Площадь помещения для клиентов
, где (25)
Укл - площадь на один рабочий пост;
Укл принимаем равным 2,5 м2;
Хпр - число рабочих постов, ед.
м2.
Площадь помещения для продажи
запасных частей
, где (26)
Дзч - доля от площади клиентской;
Дзч принимаем равным 0,3.
м2.
Результаты расчета площадей
административно-бытовых помещений приведены в табл. 16.
Таблица 16 - Площади
административно-бытовых помещений
|
№
п/п
|
Виды
помещений
|
Площадь,
м2
|
|
1
|
Технические
помещения
|
62
|
|
2
|
Складские
помещения
|
71
|
|
3
|
Административные
помещения
|
59
|
|
4
|
Бытовые
помещения
|
224
|
|
5
|
Помещения
для клиентов
|
38
|
|
6
|
Помещения
для продажи запасных частей
|
11
|
|
Всего
по административно-бытовым помещениям
|
465
|
Расчет площади территории
Площадь участка
, где (27)
з пс, Fз aб, Fхр - площадь
соответственно производственно-складских помещений, административно - бытовых
помещений и площадок для хранения автомобилей, м2;
Кз - плотность застройки территории;
Кз принимаем равным 0,3.
м2.
Результаты расчета площади
территории приведены в табл. 17.
Таблица 17 - Площадь территории
|
№
п/п
|
Виды
площадей
|
Площадь,
м2
|
|
1
|
Площадь
постов
|
670
|
|
2
|
Площадь
участков
|
215
|
|
3
|
Площадь
автомобиле-мест:
|
721
|
|
в
помещении
|
212
|
|
на
открытой стоянке
|
509
|
|
4
|
Площадь
административно-бытовых помещений
|
465
|
|
Всего
площадь помещений
|
2071
|
|
Всего
открытая площадь
|
509
|
|
Всего
по площадям
|
2580
|
|
5
|
Площадь
территории
|
6903
|
1.7 Определение потребности в
технологическом оборудовании
Шиноремонтный участок предназначен для демонтажа
и монтажа колес и шин, замены покрышек, ТР камер и дисков колес, а также
балансировки колес в сборе. Поскольку рассчитанная площадь шиномонтажного
участка очень мала, то работы по мойке и сушке колес перед их демонтажем
выполняют в зоне УМР, где имеется шланговая моечная установка. Шиномонтажное
оборудование характеризуется быстрой окупаемостью - за счет того, что
автовладельцам необходимо регулярное обслуживание, полный комплект оборудования
может окупиться всего за один сезон «переобувки». Тем более что грамотно
укомплектованный шиномонтажный участок будет работать не только в «сезон», но и
в любое время года (шиномонтажное оборудование включает в себя оборудование для
ремонта камер и покрышек, а также оборудование для правки дисков).
В табл. 18 - табл. 21 представлен перечень
необходимого технологического оборудования, технологической оснастки,
подъемно-транспортного оборудования, организационной оснастки и
производственной тары и емкостей.
Таблица 18 - Подъемно-транспортное оборудование
|
№
п/п
|
Наименование
|
Тип,
модель
|
Число
единиц
|
Габаритные
размеры, мм
|
|
|
|
|
|
|
Домкрат
гидравлический подкатной
|
Nordberg
N3203
|
1
|
640х340
|
|
Тележка
для снятия, установки и транспортирования колеса автомобиля
|
ГАРО
1115 М
|
1
|
1216х930
|
Таблица 19 - Технологическое оборудование и
оснастка
|
№
п/п
|
Наименование
|
Тип,
модель
|
Число
единиц
|
Габаритные
размеры, мм
|
|
|
|
|
|
|
Шиномонтажный
станок
|
КС302А
|
1
|
970х1650
|
|
Шинный
цифровой манометр
|
БЕРКУТ
Digital 4x4
|
1
|
-
|
|
Балансировочный
стенд
|
ЛС
42
|
1
|
1100х700
|
|
Стенд
сход-развал компьютерный головочный проводной
|
Техновектор
S4216
|
1
|
-
|
|
Поршневой
компрессор
|
ABAC
Pole Position O20P
|
1
|
610х260
|
|
Вулканизатор
для камер и покрышек
|
Nordberg
V1
|
1
|
400х200
|
|
Ванна
для проверки камер
|
КС-013
|
1
|
900x510
|
|
Ударный
гайковерт автомобильный
|
Defort
DCW-12
|
1
|
-
|
Таблица 20 - Организационная оснастка
|
№
п/п
|
Наименование
|
Тип,
модель
|
Число
единиц
|
Габаритные
размеры, мм
|
|
|
|
|
|
|
1
|
Стеллаж
для покрышек
|
-
|
1
|
2150х750
|
|
Вешалка
для камер
|
-
|
1
|
1500х500
|
Таблица 21 - Производственная тара
|
№
п/п
|
Наименование
|
Тип,
модель
|
Число
единиц
|
Габаритные
размеры, мм
|
|
|
|
|
|
|
1
|
Ларь
для обтирочных материалов
|
ОРГ
- 1468
|
1
|
1000×500
|
|
Ларь
для отходов
|
ОРГ
- 1468 - 090 А
|
1
|
500х500
|
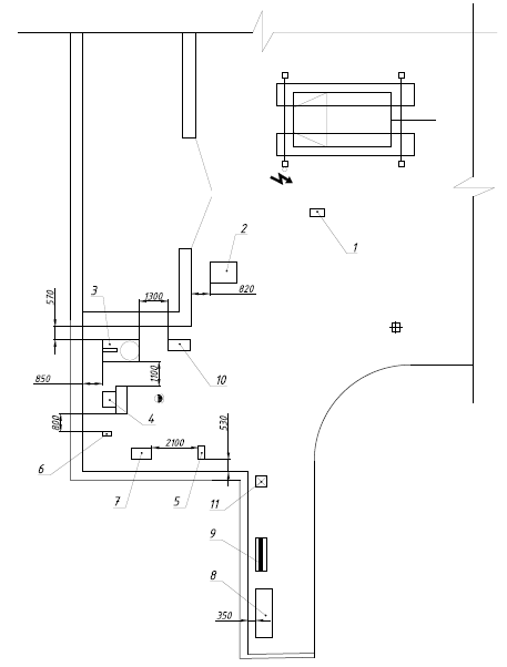
2. ГЕНЕРАЛЬНЫЙ ПЛАН СТО
Генеральный план СТО представлен на Листе 1
графической части курсового проекта (рис. 2). Общая площадь территории
составляет 6903 м2, а площадь помещений СТО - 2071 м2. Остальная территория
отведена под открытую автомобильную стоянку: 4 автомобиле-места ожидания
постановки автомобиля на посты ТО и Р площадью 170 м2, 2 автомобиле-места
готовых к выдаче автомобилей площадью 85 м2 и 6 автомобиле-мест общей площадью
255 м2 отведено под стоянку автомобилей.
Рисунок 2 - Генеральный план СТО: 1 -
производственный корпус; 2 - автомобиле-места ожидания постановки автомобиля на
посты ТО и Р; 3 - автомобиле-места хранения готовых к выдаче автомобилей; 4 -
стоянка для автомобилей клиентов; 5 - стоянка для автомобилей персонала
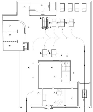
3. ПЛАНИРОВКА ПРОИЗВОДСТВЕННОГО
КОРПУСА СТО
При разработке производственно-административного
корпуса СТО (Лист 2 графической части курсового проекта, рис. 3 данной
пояснительной записки) основными помещениями являются зона постовых работ ТО-1
и ТО-2 и ТР (5 постов общей площадью 177 м2), агрегатный участок с 2 постами
общей площадью 125 м2 и 4 поста вспомогательных работ (141 м2).
Кроме того, отдельно выделены:
слесарно-механический участок (50 м2), участок по ремонту приборов системы
питания (49 м2) и по одному посту диагностических, электротехнических,
сварочных и жестяницких работ каждый площадью 35 м2.
Рисунок 3 - Производственный корпус СТО: 1 -
техническое помещение; 2 - складское помещение; 3 - административные помещения;
4 - бытовые помещения; 5 - помещения для клиентов; 6 - помещение для продажи
запасных частей; 7 - пост УМР; 8 - пост диагностирования; 9 - посты ремонта
узлов и агрегатов; 10 - участок электротехнических работ; 11 - пост работ по
ремонту приборов системы питания; 12 - пост сварочных работ; 13 - пост
жестяницких работ; 14 - посты окрасочных работ; 15 - пост вспомогательных работ
4. ТЕХНОЛОГИЧЕСКАЯ ПЛАНИРОВКА
ШИНОМОНТАЖНОГО УЧАСТКА
технический обслуживание станция
Проектируемым участком является шиномонтажный
участок (Лист 3 графической части курсового проекта, рис. 4 данной
пояснительной записки).
Планировка участка шиномонтажа представляет
собой план расстановки технологического оборудования, постов обслуживания и
ремонта (если на участок предусматривается заезд автомобилей), подъемно-транспортного
оборудования. Планировочные решения производственных участков разрабатываются
после компоновки производственного корпуса и определения размеров участков.
Оборудование необходимо располагать так, чтобы перемещения
рабочего при выполнении работы в соответствии с технологическим процессом были
минимальными. При расстановке оборудования нужно учитывать, что для удобства
монтажа и обслуживания стационарного оборудования, устанавливаемого на
фундаментах, должен обеспечиваться доступ к нему со всех сторон. Кроме того,
необходимо предусмотреть условия безопасной работы на оборудовании.
На рис. 5 - рис. 11 представлены изображения и
характеристики основного оборудования, применяемого в зоне ТО и Р на
проектируемой СТО.
Рисунок 4 - Шиномонтажный участок: 1 - домкрат
гидравлический подкатной; 2 - тележка для снятия, установки и транспортирования
колеса автомобиля; 3 - шиномонтажный станок; 4 - балансировочный стенд; 5 -
поршневой компрессор; 6 - вулканизатор для камер и покрышек; 7 - ванна для
проверки камер; 8 - стеллаж для покрышек; 9 - вешалка для камер; 10 - ларь для
обтирочных материалов; 11 - ларь для отходов
Рисунок 5 - Отечественный шиномонтажный станок
КС302А
Не так давно вышел в свет отечественный
шиномонтажный станок КС302А (рис. 5). Кроме набора стандартных функций (монтаж
и демонтаж колесных шин, балансировка и т.д.) появилась возможность оперативно
производить накачку и подкачку колес легковых автомобилей. Основной
особенностью стала функция накачки до установленного уровня, контроль утечки
воздуха из шины. С помощью цифрового индикатора Motorola оператор или
автомеханик может задать конкретное давление в шине, от 0,5 до 4,5 бар и станок
все сделает сам. Погрешность в расчете нужного давления составляет не более
0,05 бар. Время накачки шины зависит от ее размера, требуемого давления и
компрессора, но не превышает двух минут.
Рисунок 6 - Шинный цифровой манометр БЕРКУТ
Digital 4x4
Прибор имеет очень стильный дизайн (рис. 6),
отличается хорошей эргономикой, универсальностью (диапазон измерений: 0,4 - 7,0
бар, температурный диапазон: от -10°С до +40°С) и небольшой погрешностью
измерения (0,05). В использовании удобен наличием подсветки экрана и голубого
фонарика, который поможет в поиске ниппеля в темноте.
Рисунок 7 - Балансировочный стенд ЛС 42
На рис. 7 представлен балансировочный стенд 5-го
поколения ЛС-42 (диск 9"...22") (производство Россия).
Балансировочный станок 5-го поколения ЛС 42 построен на новейшей элементной
базе и обладает самым современным набором функций и сервисных программ для
точной и быстрой балансировки колес с любыми типами ободов. Набор функций и
сервисных программ балансировочных машин ЛС 42 соответствует лучшим образцам
отечественных и импортных аналогов, а по оперативности управления и удобству
работы, даже превосходит их. Дополнительные удобства создает наличие
стояночного электромагнитного тормоза, которого нет у аналогов.
Рисунок 8 - Поршневой компрессор
Портативный безмаcляный коаксиальный поршневой
компрессор ABAC Pole Position O20P (рис. 8) с рапидным соединением имеет
следующие конструктивные особенности:
специальный крючок для удобного крепления
инструментов и аксессуаров;
установленные колеса и длинная рукоятка упрощают
транспортировку компрессора;
панель управления с двумя установленными
манометрами и удобной регулировкой давления на выходе;
автоматический повторный пуск однофазного
электрического двигателя с теплозащитой от перегрева.
Рисунок 9 - Домкрат гидравлический
подкатной Nordberg N3203
Домкрат подкатной гидравлический
грузоподъемностью 3 т. (рис. 9) применяется в профессиональной деятельности и
имеет следующие особенности:
усиленная конструкция рамы;
двухштоковый механизм быстрого
подъема;
износостойкий механизм опускания
через кардан;
клапан защиты от перегрузки;
маневренный.
Рисунок 10 - Вулканизатор для камер и покрышек
Nordberg V1
Вулканизатор Nordberg V1 (рис. 10) с
автоматическим электронным контроллером температуры для вулканизации шин
легковых и грузовых автомобилей имеет следующие характеристики:
напольное исполнение;
две нагревательные головки для быстрой и
надежной вулканизации;
фиксируемая поворотная консоль с верхней
нагревательной головкой;
зажимное приспособление верхней головки
позволяет легко и быстро производить вулканизацию путем соединения под
давлением посредством подпружиненного винтового зажима;
электронный температурный контроллер
предотвращает повреждение шины, которое может быть вызвано перегревом;
фиксируемая поворотная консоль с верхней
нагревательной головкой;
тумба полностью металлическая;
имеет таймер.
Рисунок 11 - Ванна для проверки камер КС-013
Ванна для проверки камер КС-013 (рис. 11)
предназначена для проверки камер и бескамерных шин на герметичность, поиск
проколов, порезов.
5. ОЦЕНКА ЭФФЕКТИВНОСТИ ПРОЕКТА
Основные статьи текущих затрат и их удельные
значения приведены в табл. 22.
Таблица 22 - Удельные текущие затраты
|
№
п/п
|
Наименование
затрат
|
Ед.
изм.
|
Годовые
удельные затраты
|
|
1
|
Затраты
на коммуникации
|
руб
/ м2
|
10000…40000
|
|
2
|
Затраты
на приобретение и монтаж технологического оборудования
|
руб
/ пост
|
300000…600000
|
|
3
|
Затраты
на ремонт зданий, оборудования и коммуникаций
|
руб
/ пост
|
50000…70000
|
|
4
|
Затраты
на аренду земельного участка
|
руб
/ м2
|
100…500
|
|
5
|
Затраты
на электроэнергию
|
руб
/ пост
|
20000…30000
|
|
6
|
Затраты
на отопление составляют
|
руб
/ м2
|
30…40
|
|
7
|
Затраты
на воду для питьевых и технических нужд
|
руб
/ пост
|
800…1000
|
|
8
|
Затраты
на расходные материалы
|
руб
/ пост
|
30000…40000
|
|
9
|
Затраты
на амортизацию зданий и оборудования
|
руб
/ м2
|
400…600
|
|
10
|
Затраты
на заработную плату
|
руб
/ чел
|
10000...20000
|
|
11
|
Накладные
расходы
|
руб
|
5…15%
от суммарных текущих затрат
|
Результаты расчета единовременных и текущих
затрат приведены в табл. 23.
Таблица 23 - Единовременные и текущие затраты
|
№
п/п
|
Наименование
затрат
|
Ед.
изм.
|
Удельные
затраты
|
Абсолютные
затраты
|
|
Всего
площадь помещений
|
м2
|
|
2
071
|
|
Всего
рабочих постов
|
ед
|
|
19
|
|
Всего
рабочих
|
чел
|
|
55
|
|
1
|
строительство
здания с коммуникациями
|
руб
|
40000
|
82
840 000
|
|
2
|
технологическое
оборудование с монтажом
|
руб
|
600000
|
11
400 000
|
|
Всего
единовременные затраты
|
|
|
94
240 000
|
|
3
|
ремонт
зданий, оборудования и коммуникаций
|
руб
|
70000
|
1
330 000
|
|
4
|
аренда
земельного участка
|
руб
|
500
|
1
035 500
|
|
5
|
электроэнергия
|
руб
|
30000
|
570
000
|
|
6
|
отопление
|
руб
|
40
|
82
840
|
|
7
|
вода
для питьевых и технических нужд
|
руб
|
1000
|
19
000
|
|
8
|
расходные
материалы
|
руб
|
40000
|
760
000
|
|
9
|
амортизация
|
руб
|
600
|
1
242 600
|
|
10
|
заработная
плата
|
руб
|
30000
|
1
650 000
|
|
Всего
текущие затраты
|
|
|
6
689 940
|
|
11
|
Накладные
расходы
|
руб
|
10
|
668
994
|
|
ИТОГО
текущие затраты
|
|
|
101
598 934
|
Доход предприятия за год
, где (28)
Т - годовой объем работ; Т принимаем
равным 100122 чел.-ч.;
Н - стоимость нормо-часа; Н
принимаем равным 1500 руб.
руб.
Прибыль предприятия за год
, где (29)
Р - текущие затраты за год, руб.
руб.
Рентабельность предприятия
; (30)
%.
Прибыль от продажи автомобилей
, где (319)
А - прибыль от продажи одного
автомобиля; А принимаем равным 50000 руб.
руб.
Прибыль от продажи запасных частей
, где (32)
Дзч - доля от прибыли за выполнение
работ ТО и ТР; Дзч принимаем равным 0,75;
руб.
Прибыль от услуг по ТО и ТР, продажи
автомобилей и запасных частей
руб. (33)
Чистая прибыль без налогов
, где (34)
НП - действующая ставка налога на прибыль; НП
принимаем равным 20%;
руб.
Результаты расчета прибыли
предприятия приведены в табл. 24.
Таблица 24 - Прибыль предприятия
|
№
п/п
|
Наименование
показателей
|
Ед.
изм.
|
Значение
|
|
Трудоемкость
работ ТО и ТР
|
чел.-ч.
|
100
122
|
|
Стоимость
нормо-часа
|
руб
|
1500
|
|
1
|
Доход
от услуг ТО и ТР
|
руб
|
150
183 000
|
|
2
|
Текущие
затраты
|
руб
|
101
598 934
|
|
3
|
Прибыль
от услуг ТО и ТР
|
руб
|
48
584 066
|
|
4
|
Рентабельность
предприятия
|
%
|
47,8
|
|
Количество
продаваемых автомобилей
|
ед
|
100
|
|
Прибыль
от продажи одного автомобиля
|
руб
|
50000
|
|
5
|
Прибыль
от продажи автомобилей
|
руб
|
5000000
|
|
6
|
Прибыль
от продажи запасных частей
|
руб
|
36
438 049,5
|
|
Общая
прибыль предприятия
|
руб
|
90
022 115,5
|
|
7
|
Чистая
прибыль
|
руб
|
72
017 692,4
|
Определение реальной ценности и срока
окупаемости проекта производится с учетом дисконтирования, т.е. приведения
экономических показателей разных лет к сопоставимому во времени виду с помощью
коэффициентов дисконтирования.
Чистый дисконтируемый доход по годам
, где (3510)
ЧП - чистая прибыль, руб;
А - величина амортизации зданий и
оборудования, руб;
КД - коэффициент дисконтирования, который
принимается для первого года работы - 0,77, второго - 0,59, третьего - 0,46,
четвертого - 0,35, пятого - 0,27.
руб;
руб;
руб;
руб;
руб;
Реальная ценность проекта по годам
-й год
, (116)
-й год
,
-й год
,
-й год
,
-й год
, где
ЕДЗ - величина единовременных затрат,
руб.
руб;
руб;
руб;
руб;
руб.
Результаты расчета показателей
эффективности проекта приведены в табл. 25.
Таблица 25 - Показатели эффективности проекта
|
№
п/п
|
Показатели
|
Ед.
изм.
|
Годы
|
|
|
|
0
|
1
|
2
|
3
|
4
|
5
|
|
1
|
Единовременные
затраты
|
руб.
|
94240000
|
|
|
|
|
|
|
2
|
Текущие
затраты
|
руб.
|
|
101598934
|
101598934
|
101598934
|
101598934
|
101598934
|
|
3
|
Общая
прибыль
|
руб.
|
|
90022115,5
|
90022115,5
|
90022115,5
|
90022115,5
|
90022115,5
|
|
4
|
Чистая
прибыль
|
руб.
|
|
72017692,4
|
72017692,4
|
72017692,4
|
72017692,4
|
72017692,4
|
|
5
|
Амортизация
зданий и оборудования
|
|
|
1242600
|
1242600
|
1242600
|
1242600
|
1242600
|
|
6
|
Коэффициент
дисконтирования
|
|
1
|
0,77
|
0,59
|
0,46
|
0,35
|
0,27
|
|
7
|
Чистый
дисконтированный доход
|
руб.
|
|
56410425,1
|
43223572,5
|
33699734,5
|
25641102,3
|
19780278,9
|
|
8
|
Реальная
ценность проекта
|
руб.
|
-94240000
|
-37829575
|
5393997,66
|
39093732,2
|
64734834,5
|
84515113,5
|
При единовременном вводе мощностей и неизменных
величинах дохода и текущих затрат по годам проект окупит себя на 2-ой год после
ввода в эксплуатацию и начнет приносить прибыль.
ЗАКЛЮЧЕНИЕ
Одним из самых популярных видов сервиса для
автомобилей является шиномонтаж. Работы по шиномонтажу включают в себя
достаточно широкий спектр услуг (балансировка, правка дисков, вулканизация,
мойка колес, непосредственно шиномонтажные работы и т.д.) и поэтому требуют различного
оборудования и инструментов. Причем оборудование для автосервиса является
достаточно дорогостоящим и без грамотной установки и калибровки может попросту
не выполнять своих функций.
В результате проведенного расчета:
был вычислен годовой объем работ и общая
численность рабочих;
было определено необходимое число постов и
участков;
было рассчитано число автомобиле-мест;
была рассчитана площадь территории, помещений и
каждого участка;
были разработаны проекты генерального плана,
производственно-административного корпуса и шиномонтажного участка;
была произведена оценка эффективности проекта.
Производственный корпус спроектирован с учетом
всего производственного процесса, состава помещений, конструктивной схемы
здания, а также противопожарных и санитарно-гигиенических требований,
предъявляемых к отдельным зонам и участкам. При проектировании шиномонтажного
участка был определен перечень проводимых операций, изучена технология
проведения работ и применяемые эксплуатационные материалы, а также подобрано
технологическое оборудование и необходимая организационная оснастка.
Значение срока окупаемости в 2 года является
привлекательным для инвестора, а рентабельность, равная 47,8% - очень хороший
показатель.
Данный курсовой проект является ознакомительным,
но может применяться при проектировании СТО в реальности.
СПИСОК ЛИТЕРАТУРЫ
1. Технологическое
проектирование автосервисных предприятий по дисциплине: «Производственно -
техническая инфраструктура предприятий автомобильного сервиса» для студентов
автомеханического факультета очной и заочной форм обучения / Составители: Хабибуллин
Р. Г., Макарова И. В., Лысанов Д. М., Мухаметдинов Э. М. - Набережные Челны:
Изд-во ИНЭКА, 2010. - 31 с.
. Напольский
Г.М. Технологическое проектирование автотранспортных предприятий и станций
технического обслуживания: Учебник для вузов. - 2-е изд., перераб. и доп. - М.:
Транспорт, 1993
. Справочник
по диагностике неисправностей автомобиля. - М.: Технарь. 2011. - 693 с.