Расчет и выбор механизма передвижения консольного крана
МИНИСТЕРСТВО
ОБРАЗОВАНИЯ И НАУКИ РОССИЙСКОЙ ФЕДЕРАЦИИ
Федеральное
государственное бюджетное образовательное учреждение высшего профессионального
образования
«КУЗБАССКИЙ
ГОСУДАРСТВЕННЫЙ ТЕХНИЧЕСКИЙ УНИВЕРСИТЕТ ИМЕНИ Т.Ф. ГОРБАЧЕВА»
Кафедра
стационарных и транспортных машин
Курсовая
работа
Расчет и
выбор механизма передвижения консольного крана
Выполнил: ст. гр. ОЭ-091
Беспоместных. Д.И.
Кемерово
2013
Содержание
Введение
. Описание конструкции и область
применения
. Расчет механизма передвижения
.1 Исходные данные
.2 Определение сопротивлений
передвижению крана
.3 Выбор электродвигателя,
соединительных муфт и редуктора
.4 Проверка двигателя на нагрев
.5 Определение тормозных моментов и
выбор тормоза
. Электрооборудование крана и
предохранительная аппаратура
. Требование правил безопасности
Литература
Введение
Грузоподъёмные машины являются существенной
составной частью почти каждого производства и играют большую роль в механизации
монтажных и погрузочно-погрузочных работ. Широкое внедрение грузоподъёмных
машин способствует интенсификации производственных процессов, механизации
трудоёмких и тяжёлых работ, удешевление стоимости производства и др.
В данной курсовой работе производится расчёт
механизма передвижения консольного крана.
Современное краностроение характеризуется
совершенствованием конструкций, применением новых материалов, методов и средств
изготовления и контроля, внедрением более совершенных методов расчёта и
основанных на них снижении массы кранов, повышение их надёжности.
1. Описание конструкции и область применения
У консольного крана грузозахватный орган
подвешен к консоли или к тележке, перемещающейся по консоли. Отличительной
особенностью этого крана является наличие такой консоли и разнесенных по
вертикали опор. Консольные краны выполняются передвижными и стационарными
поворотными. Основные параметры и размеры консольных поворотных стационарных
кранов регламентированы ГОСТ 19811-74 «Краны консольные стационарные поворотные
с электрической талью. Типы. Основные параметры и размеры» и ГОСТ 19494-74
«Краны консольные стационарные поворотные ручные. Типы. Основные параметры и
размеры». В соответствии с этими стандартами консольные
стационарно-установленные краны разделяются на консольные поворотные
настенные краны и консольные
поворотные краны на свободно стоящей колонне. Консольные поворотные настенные
краны представляют собой консольную двутавровую балку, соединенную посредством
подкоса с вертикальной стойкой трубчатого или коробчатого сечения. На концах
стойки приварены две оси, цапфы которых посредством подшипников
<#"805253.files/image001.gif">
Рис.1. Консольный кран
2. Расчёт механизма передвижения
.1 Исходные данные
Рассчитать механизм передвижения
консольного крана грузоподъемностью Q = 5 т. Высота подъема = 3 м. Скорость
передвижения Vпер = 20 м/мин. Максимальный вылет стрелы=3м. Режим
работы средний ПВ=40%.
Рис.2.
.2 Определение сопротивлений
передвижению крана
Согласно рекомендациям [1, параграфа
1.2], ориентировочная масса консольного крана m=
т. По табл. 1,29 найдем
рекомендуемый диаметр ходовых колес Dк =250 мм.
Коэффициент трения качения ходовых колес по
рельсам с плоской головкой µ=0,0005 [1,табл. 1.28]. Коэффициент трения в
подшипниках качения ходовых колес f=0,02 (подшипники конические).
Диаметр цапфы вала ходового колеса для
подшипников качения dk =(0,2…0,25)∙ Dк .
Соответственно dk=0,2·250=50 мм. Принимаем dk=50 мм.
Примем также kp - коэффициент, учитывающий дополнительные
сопротивления от трения реборд ходовых колёс и торцов ступиц колеса для
подшипников качения kp=2,0…2,5.
Принимаем kp = 2,5.
Общее сопротивление передвижению крана:

(1)
דהו, - סמןנמעטגכוםטו
ענוםט, (סל. 2.40)
ֽ;ףךכ
- סמןנמעטגכוםטו
מע ףךכמםא
ןףעט,(סל. 2.41)
ֽ;ג
- סמןנמעטגכוםטו
מע גוענמגמי
םאדנףחךט, (סל.1.17) ֽ.
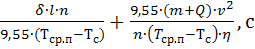
.3 ֲבמנ
כוךענמהגטדאעוכ,
סמוהטםטעוכםץ לףפע
ט נוהףךעמנא
ׁעאעטקוסךא למשםמסע ןנטגמהא
ןנט η=0,9 [1, עאבכ.1.18]:

, ךֲע, (3)
דהו, - םמלטםאכםא סךמנמסע ןונוהגטזוםט, ל/ס;
η- ִֺֿ
לוץאםטחלא.
ֲבטנאול
ענוץפאחםי
אסטםץנמםםי
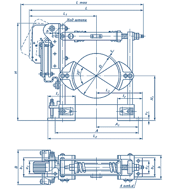
ךמנמעךמחאלךםףעי
הגטדאעוכ 4ְ71ְ4׃3 (׀טס.3.1) למשםמסע ׀=0,55 ךֲע, קאסעמעמי
גנאשוםט n=1390 
. ּמלוםע
טםונצטט
נמעמנא 0,0013 ךד∙ל2[1,
עאבכ.III.3.1].
ֳאבאנטע, ףסעאםמגמקםו ט
ןנטסמוהטםטעוכםו
נאחלונ ט
לאססא, עוץםטקוסךטו
ץאנאךעונטסעטךט
ןנטגוהום ג
עאבכטצו III.3.3.
׀טס.3. ׂנוץפאחםי
אסטםץנמםםי
ךמנמעךמחאלךםףעי
הגטדאעוכ 4ְ71ְ4׃3
ׂאבכטצא
1.
|
ּאנךא
הגטדאעוכ
|
׳טסכמ
ןמכסמג
|
ֳאבאנטעםו
נאחלונ, לל
|
׃סעאםמגמקםו
ט
ןנטסמוהטםטעוכםו
נאחלונ, לל
|
ּאססא, ךד
|
|
|
l30
|
l83
|
h31
|
d30
|
l1
|
l10
|
l31
|
d1
|
b10
|
h
|
|
|
4ְ71ְ4׃3
|
285
|
330
|
201/223
|
170
|
40
|
90
|
45
|
19
|
112
|
71
|
15,1
|
ׂאבכטצא
2.
ׂוץםטקוסךטו
ץאנאךעונטסעטךט
|
ׂטןמנאחלונ
הגטדאעוכ
|
ּמשםמסע, ךֲע
|
׳אסעמעא
גנאשוםט, לטם-1
|
ׂןףסך/ֽׂמל
|
ׂmin/ׂםמל
|
ׂmax/ׂםמל
|
ּמלוםע
טםונצטט
נמעמנא, ךד*ל2
|
|
4ְ71ְ4׃3
|
0,55
|
1390
|
2,0
|
1,6
|
2,2
|
1,3*10_3
|
ֽמלטםאכםי
למלוםע
הגטדאעוכ:

, ֽ∙ל
(4)