|
|
|
|
|
|
|
|
|
|
1250
|
200
|
34
|
9,35
|
4,6
|
550
|
580
|
430
|
1750
|
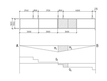
Рисунок 2 - Схема сближенных кранов и
воздействий от них на подкрановую балку
2.2 Сбор нагрузок
Расчетная вертикальная сила давления колеса
, где
- коэффициент надежности по
нагрузке;
- коэффициент надежности по
назначению; обычно
- коэффициент сочетаний; для 2 крана
среднего режима работы
.
Тормозная сила тележки
, где
- грузоподъемная сила крюка крана,
.
Сила поперечного торможения на одно
колесо крана
,
где
- число колес крана на одной стороне
моста крана,
при
грузоподъемности крана
.
Расчетная сила поперечного
торможения на одно колесо крана
2.3 Определение расчетных усилий
Рисунок 3 - Схема размещения колес
на подкрановой балке по правилу Винклера и линия влияния Мх
Определим положение равнодействующей
от четырех грузов на балке относительно крайнего левого груза
Величина отрезка между
равнодействующей и ближайшим к ней грузом (критическим)
.
Найдем значения по линии влияния в
точках приложения сосредоточенной нагрузки от колес крановой тележки (ординаты
л.в. Мх):
Расчетные моменты
, где
- для балок пролетом
.
Рисунок 4 - Схема размещения колес
на подкрановой балке для определения
и л.в.
Ординаты л.в.
:
Расчетные поперечные силы
2.4 Подбор сечения подкрановой балки
Определяем WX, тр.. С учетом
ослабления верхнего пояса отверстиями для крепления рельса
, где
- коэффициент, учитывающий
ослабление верхнего пояса отверстиями болтов и напряжение в нем от болтовых
сил.
Определяем
из условия
требуемой жесткости при
.
Для балки асимметричного сечения
имеем:
Определяем оптимальную высоту балки
из условия наименьшего расхода стали:
где ɳ - коэффициент
ассиметрии;
при наличии тормозной балки
= 0,9.
В соответствии с положением по
унификации принимаем предварительную высоту балки
.
Требуемая толщина стенки из условия
прочности на срез:
.
Из условия местной устойчивости
стенки без продольного ребра жесткости
Принимаем
;
.
Принимаем стенку балки
предварительно 1560х14; hw = 1560; tw = 14;
площадь стенки
.
Определим требуемые площади всего
сечения и поясов при коэффициенте асимметрии
Учитывая воздействие боковых сил
сечение поясов принимаем несколько больше требуемых Аf. По
конструктивным требованиям bf
400 мм, tf
3tw. Принимаем bf = 450 мм, tfв = 28мм, tfн = 22мм.
.
Проверяем местную устойчивость
сжатого пояса
<820, т.е. местная устойчивость
сжатого пояса обеспечена.
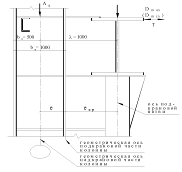
Тормозную балку конструируем из
швеллера № 30 и листа рифленой стали
.
Ширина листа тормозной балки
определяем из выражения
, где
- привязка колонны;
для зданий
с мостовыми кранами грузоподъемностью
,
- расстояние от оси подкрановой
балки до разбивочной оси (1000 мм).
Определяем геометрические
характеристики принятого сечения.
Определяем положение центра тяжести
несимметричной балки относительно оси X стенки
балки:
Момент инерции сечения балки брутто:
Момент инерции отверстий в верхнем
поясе 2 Æ 25
Момент инерции балки нетто
Моменты сопротивления
несимметричного сечения
Рисунок 5 - Сечения подкрановой и
тормозной балок
Определяем положение центра тяжести
тормозной балки относительно оси подкрановой балки:
.
Момент инерции сечения брутто
относительно оси
Момент инерции площади ослабления
Момент инерции площадки сечения
тормозной балки нетто
.
Момент сопротивления правой грани
верхнего пояса балки
.
Статический момент полусечения
(сдвигаемой части)
.
2.5 Проверка прочности
По нормальным напряжениям в верхнем
поясе
Проверка по нормальным напряжениям в
нижнем поясе
Проверка по касательным напряжениям
.
Проверка по напряжениям местного
смятия стенки от давления кранового колеса
, где
- коэффициент, учитывающий
неравномерность давления колес и повышенную динамику под стыками рельсов;
(см. п.2.2);
- условная длина распределения
давления колеса.
, где
- сумма моментов инерции сечения
верхнего пояса и кранового рельса относительно их собственных осей.
.
Проверки показывают, что прочность
принятого сечения обеспечена.
2.6 Проверка жесткости и
устойчивости
Проверка жесткости не производится,
так как высота балки h > hmin .
Общая устойчивость подкрановой балки
обеспечена тормозной конструкцией и не проверяется.
2.7 Проверка местной устойчивости
стенки подкрановой балки
Определяем условную гибкость стенки
т.е. устойчивость стенки нужно
проверять.
При
следует устанавливать основные
поперечные ребра жесткости. Расстояние между ними
, если λw>3,2. При
λw = 3,89 аmax = 2hw = 2.1,55
= 3,1. Принимаем
(кратно
пролету
). Размеры
отсека стенки
(см. рис.
7).
Принимаем подкрановую балку с
двусторонними поясными швами и двусторонними основными поперечными ребрами
жесткости.
Ширина ребра
должна быть
не менее
и не менее
.
. Принимаем
.
Толщина ребра
;
принимается t = 7 мм.
Проверяется устойчивость среднего и крайнего отсеков.
Рисунок 6 - Схема балки, укрепленной
поперечными ребрами жесткости
.7.1 Проверка устойчивости среднего
отсека
Рисунок 7 - К проверке устойчивости
среднего отсека
Напряжения в среднем отсеке
определяются при загружении по схеме для определения
.
Определяем усилия для наиболее
напряженного участка отсека длиной
.
Опорные реакции
Изгибающие моменты
Поперечные силы
Определяем напряжения
(из проверки прочности).
Определяем критические напряжения
для отсека
.
Соотношение размеров отсека
.
Соотношение
.
Коэффициент защемления стенки
При
и
указанном в справочной таблице 1.3
[2].
,
где
- по справочной таблице 1.6 [2].
.
,
где
по справочной таблице 1.4. [2], при
.
,
где
,
, где
- меньшая сторона отсека
.
Проверяем устойчивость стенки балки
Устойчивость стенки при
обеспечена.
2.7.2 Проверка устойчивости крайнего
отсека
Рисунок 8 - К определению устойчивости
крайнего отсека
Определяем усилия для наиболее
напряженного участка отсека длиной
.
Опорная реакция
Изгибающие моменты
Поперечные сила
Определяем напряжения
Проверяем устойчивость стенки в
крайнем отсеке.
Критические напряжения для крайнего
отсека равны
- для
среднего, т.к. размеры их одинаковы.
Следовательно, толщина стенки
и
размещение ребер через
обеспечивают
устойчивость стенки.
2.8 Расчет опорного ребра
Для передачи опорного давления балки
на колонну предусматриваем торцевую диафрагму с пристроганным нижним краем,
называемую обычно опорным ребром.
Рисунок 9 - К расчету опорного ребра
Площадь строганного края опорного
ребра определяется из условия прочности его на смятие, если
- расчетное сопротивление стали
смятию.
По конструктивным требованиям
;
.
Принимаем
;
;
.
Проверяем устойчивость опорной части
из плоскости балки (относительно оси
), как стойки с шарнирно опертыми
концами высотой
. В сечение
опорной части
включается
.
Момент инерции опорной части
Радиус инерции
.
, по λ определяем φ:
Проверяем устойчивость опорной части
балки по формуле
Устойчивость опорной части балки
обеспечена.
2.9 Расчет поясных швов
Двусторонние поясные швы при
подвижной нагрузке рассчитываются по формулам по металлу шва
по металлу границы сплавления
Рисунок 10 - К расчет у поясных швов
Сдвигающая сила на 1 пог. см. балки
, где
- статический момент брутто пояса
относительно нейтральной оси
Сминающая сила на 1 пог. см. балки
Применяем для сварки сварочную
проволоку СВ-08Г2С. Сварка автоматическая.
;
.
Назначаем поясные швы минимально
возможной толщины. При сварке
и
;
2.10 Расчет подкрановой балки на
выносливость при
,
где
- коэффициент, учитывающий
количество циклов нагружения
- расчетное сопротивление усталости
(при временном сопротивлении стали до
)
- расчетное сопротивление по
временному сопротивлению стали,
- коэффициент надежности по
временному сопротивлению.
Проверка показывает, что
выносливость балки обеспечена.
3. Расчет фермы
Шаг стропильных ферм b = 12 м;
Материал конструкций - группа
конструкций - 2; пояса - сталь марки С245, фас., t = 11-20 мм, Ry = 240 МПа;
решетка - сталь марки С245, фас., t = 4-10 мм, Ry = 240 МПа.
Материал фасонок С255;
Сварка полуавтоматическая, βf = 0,9,
сварочная проволока СВ-08Г2С;
Коэффициент условий работы γс = 1,0;
Расчетные характеристики: Ry = 240 МПа,s = 139 МПа,wf = 215 МПа,р
= 360 МПа.
Сопряжение ригеля с колонной -
шарнирное.
3.2 Сбор нагрузок
Постоянные нагрузки на 1 м2
от массы конструкций покрытия приведены в таблице 2.
Узловая нагрузка от веса конструкций
покрытия
F1=b*lm*Σgin*γfn=12*3*1,32=47,52кН
Временная узловая нагрузка от массы
снегового покрова.
По заданию вес снегового покрова Sg=0,8кН/м2.
.
Нормативное значение снеговой
нагрузки на горизонтальную проекцию покрытия определяем по формуле 10.1 [3]:
где сe- коэффициент,
учитывающий снос снега с покрытий зданий под действием ветра или иных факторов,
принимаемый в соответствии с пп. 10.5-10.9 [3];
сt -
термический коэффициент, принимаемый в соответствии с п. 10.10 [3];
- коэффициент перехода от веса
снегового покрова земли к снеговой нагрузке на покрытие, принимаемый в
соответствии с п. 10.4 [8];
Sg -
вес снегового покрова на 1 м2 горизонтальной поверхности земли.
Таблица 2 - Сбор нагрузок.
№ п/п Вид нагрузки Нормативная
нагрузка
,
Коэффициент
надежности по нагрузке,
Расчетная
нагрузка
|
,
|
|
|
|
|
1.
|
Защитный
слой 15 мм из гравия, втопленного в мастику
|
0,3
|
1,3
|
0,39
|
|
2.
|
Водоизоляционный
ковер из трех слоев рубероида
|
0,15
|
1,3
|
0,195
|
|
3.
|
Плоский
стальной настил
|
0,28
|
1,05
|
0,21
|
|
4.
|
Стальной
каркас комплексной панели
|
0,2
|
1,05
|
0,21
|
|
5.
|
Собственная
масса металлической конструкции фермы и связей
|
0,3
|
1,05
|
0,315
|
|
Итого
общая нагрузка
|
1,23
|
|
1,32
|
Кровля здания утепленная, поэтому
согласно п. 10.10 [3]
.
Согласно п. 10.5 [3]
Так как уклон составляет 1,5 %, то
Узловая нагрузка
F2=0,7*cв*ct*μ*Sg*γf*B*3=0,7*1*1*1*0,8*1,4*12*3=28,2кН
3.3 Определение усилий в элементах
фермы
Рисунок 11 - Геометрическая схема фермы из
уголков и тавров для L = 36 м.
Рассмотрим определение усилия в панели верхнего
пояса В2:
от постоянной нагрузки -
;
от снеговой нагрузки -
.
Где
- усилие в панели от загружения
вертикальной единичной силой (по справочной таблице 14 [4]) .
Результаты расчета сводим в таблицу
3.
Таблица 3 - Вычисление усилий в
стержнях фермы.
|
Элемент
фермы
|
Обозначение
стержней
|
Усилия
от отдельных загружений, КН
|
Расчетные
усилия, КН
|
|
|
Постоянная
нагрузка F1=47,52кН
|
Снеговая
нагрузка F2=28,2кН
|
Растяжение
|
Сжатие
|
|
Верхний
пояс
|
В1
|
-
|
-
|
-
|
-
|
|
В2
|
-446,7
|
-265,1
|
-
|
-711,8
|
|
В3
|
-446,7
|
-265,1
|
-
|
-711,8
|
|
В4
|
-724,7
|
-430,05
|
-
|
-1154,8
|
|
В5
|
-724,7
|
-430,05
|
-
|
-1154,8
|
|
В6
|
-821
|
-487,16
|
-
|
-1308,2
|
|
Нижний
пояс
|
Н1
|
235,2
|
139,59
|
374,8
|
-
|
|
Н2
|
609,4
|
361,67
|
971,1
|
-
|
|
Н3
|
797,1
|
473,06
|
1270,2
|
-
|
|
Раскосы
|
Р1
|
-354,0
|
-210,09
|
-
|
-564,1
|
|
Р2
|
298,2
|
176,96
|
475,2
|
-
|
|
Р3
|
-235,2
|
-139,59
|
-
|
-374,8
|
|
Р4
|
165,1
|
98,0
|
263,1
|
-
|
|
Р5
|
-116,4
|
-69,09
|
-
|
-185,5
|
|
Р6
|
34,5
|
20,45
|
55,0
|
-
|
|
Стойки
|
С1
|
-47,5
|
-28,2
|
-
|
-75,7
|
|
С2
|
-47,5
|
-28,2
|
-
|
-75,7
|
|
С3
|
-47,5
|
-28,2
|
-
|
-75,7
|
3.4 Определение расчетных длин
стержней фермы
Определение расчетных длин стержней фермы
производим в табличной форме (см. табл. 4) согласно указаниям СНиП «Стальные
конструкции» и на основании справочных таблиц 14 и 26 [4].
3.5 Подбор сечений элементов
Расчет сжатых элементов:
;
Расчет растянутых элементов:
,
где
φ - коэффициент продольного
изгиба, в первом приближении задается: для поясов 0,7-0,8, элементов решетки
0,5-0,6;
γс -
коэффициент условий работы, равный для верхнего и нижнего пояса, опорного
раскоса и всех растянутых раскосов 0,95; для сжатых раскосов и стоек при λ>60 -
0,8.
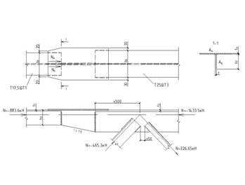
Подбор сечений в панели В2 (
)
По сортаменту (табл. 20 [3])
принимаем сечение Т17,5 ШТ1,
,
,
Проверка принятого сечения:
(по табл. 26 [3])
; φ = 0,852 (по табл.
25[3]), отсюда
Аналогично производим подбор сечений
всех остальных стержней. Конечные результаты записываем в табличной форме (см.
табл. 4)
Таблица 4 - Подбор сечений элементов
фермы из тавров и уголков
3.6 Расчет узлов фермы
Прикрепление стержней решетки из
парных уголков к поясам выполняется угловыми швами и рассчитывается на усилие
N, действующее в прикрепляемом стержне. Это усилие распределяется между швами
по перу и обушку уголка.

,
где 
- приближенно принимают:
,3 - для разнобоких уголков;
,35 - для неравнобоких,
прикрепляемых узкой полкой.
Длину швов определяют по формулам:
По перу:
По обушку:
Результаты расчетов сведены в
таблицу 5.
Таблица 5 - Расчет швов
|
Обозна--чение
стержня
|
Сечение
|
N, кН
|
Шов
по обушку
|
Шов
по перу
|
|
|
|
Nоб,
кН
|
kf, см
|
lw, см
|
Nп,
кН
|
kf, см
|
lw, см
|
|
Р1
|
125х80х12
|
-700,3
|
455,2
|
0,6
|
21
|
245,1
|
0,5
|
14
|
|
Р2
|
100х7
|
589,85
|
412,9
|
0,5
|
22
|
177
|
0,4
|
12
|
|
Р3
|
125х9
|
-465,3
|
325,7
|
0,5
|
18
|
139,6
|
0,4
|
10
|
|
Р4
|
63х6
|
326,65
|
228,7
|
0,5
|
13
|
98
|
0,4
|
7
|
|
Р5
|
100х6,5
|
-202,1
|
141,5
|
0,5
|
8
|
60,6
|
0,4
|
5
|
|
Р6
|
50х5
|
68,15
|
47,7
|
0,5
|
3
|
20,4
|
0,4
|
2
|
|
С1
|
63х6
|
-94
|
65,8
|
0,5
|
4
|
28,2
|
0,4
|
3
|
|
С2
|
63х6
|
-94
|
65,8
|
0,5
|
4
|
28,2
|
0,4
|
3
|
|
С3
|
63х6
|
-94
|
65,8
|
0,5
|
4
|
28,2
|
0,4
|
3
|
3.6.1 Промежуточный узел фермы с
заводским стыком верхнего пояса
Стык пояса смещен в панель с меньшим усилием (NB3<
NB4);
при этом величину смещения принимаем не менее 500 мм в фермах с поясами из
тавров.
В фермах с поясами из тавров полки перекрываются
одной накладкой, а стенки соединяются вставкой из листа толщиной, равной
большей из толщин стенок соединяемых тавров.
Размеры накладки подбираем из условия
равнопрочности.
Соединение Т17,5ШТ1 и Т25ШТ3 в верхнем поясе.
Рисунок 12 - К подбору размеров накладок и
вставок в фермах с поясами из тавров
а) АВ = hr.t
= 16,9х1,42 = 24 см2.
б) Ан = bн.tн>Агп
b1.t1 = 25х1,28 =
32 см2, где bн = 30,4+2х3,0 = 36,4 см;н =
;
принимаем t1 = 9 мм; Ан
= bн.tн = 36,4х0,9
= 32,8 см2 > 32 см2.
Прочность стыка проверяем по
формуле:
Швы прикрепления горизонтальной
полки пояса к накладке рассчитываем по расчетному усилию, воспринимаемому
накладкой.
Nн = Ан.σ = 32,8х15,56 =
510,4 кН. Принимаем kf=1,0 см,
+1 =
+1 = 14,18см.
Принимаем lw=15 см.
Вертикальная вставка прикрепляется к
стенкам тавров стыковыми швами и ее прочность не проверяется.
3.6.2 Укрупнительный стык верхнего
пояса фермы на монтажной сварке
Размеры горизонтальных накладок и
фасонки подбираем из условия их равнопрочности с перекрываемыми горизонтальными
и вертикальными полками пояса (Т25 ШТ3) - рис. 14.
Рисунок 13 - К определению размеров
горизонтальных накладок и фасонок.
а) 2Ан = 2bн.tн>Агп
bп.tуг = 30,4 х
1,78 = 54,11 см2.
bн =
(30,4-4+2х3)/2 = 16,2. Принимаем 17 см;
tн = Ан/bн
= 1,59. Принимаем tн = 1,6 см.
Ан = 17 х 1,6 = 27,2 см2.
б) 2Авн = bвн.tвн = Авn = h.t = 22,72 х
1,42 = 32,26 см2;
bвн = h-(tn+4) = 24,5 -
(1,78 + 4) = 18,75 cм. Принимаем 19 см.
tвн = 2 Авн/2
bвн = 32,26/(2 х
19) = 0,85; принимаем 0,9 см.
Авн = bвн. tвн = 19 х 0,9 =
17,1 см2.
Остальные соединительные накладки в
расчет не вводятся.
Прочность стыка проверяем в
предположении центрального нагружения силой N.
18,33 кН/см2=183,3
МПа<Ryγc=228 МПа
Швы прикрепления горизонтальной
полки пояса к накладке рассчитываем по предельному усилию, воспринимаемому
накладкой.
Nн = Ан.Ry = 27,2 .
24 = 652,8 кН, при kf = 0,6 см; βf = 0,9

см.
Принимаем длину швов с двух сторон
по 30 см.
Необходимо рассчитать шов,
прикрепляющий вертикальные накладки к стенке тавра. Расчет ведется по несущей
способности вертикальной накладки:
Nвн = Авн.Ry = 17,1 .
24 = 410,4 КН, при kf = 0,6 см; βf = 0,9

см, принимаем 37 см.
Шов выполняется косым. Определяем
угол наклона: sinα = 19/37 = 0,5135, α =310.
.6.3 Опорный узел
В узле действует опорная реакция F =
520,4 КН, воспринимаемая опорным фланцем, который проверяют на смятие:
σ =
кН/см2 = 173,5 МПа < Rр = 360 МПа.
Швы прикрепления «Б», «В» (см. рис.
14) рассчитывают на максимальные усилия в опорном раскосе. По длинам этих швов
определяют размеры фасонки.
Рисунок 14 - Опорные узлы фермы.
Швы «Е» прикрепления фасонок к
опорному фланцу проверяем по формуле:
кН/см2 = 180,7 МПа < Ryγc = 200 МПа.
Аw = 2βf.kf..
= 2.0,8.1,0.18
= 28,8 см2, где
kf = 1,0 см; βf = 0,8.
= hф - 1 = 19 - 1 = 18
см.
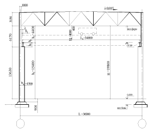
4. Расчет поперечной рамы цеха с
шарнирным прикреплением ригеля к колоннам
Здание однопролетное, отапливаемое с
мостовыми кранами 1250/200 кН среднего режима работы.
Уровень головки рельса - УГР = 14 м.
Определяем размеры рамы по
вертикали: h1, h2, H, hb, hн, h, hоп, hш (см. рис.
15). h1 = УГР = 14 м - наименьшая отметка головки кранового рельса,
которая задается из условия необходимой высоты подъема крюка над уровнем пола.
- расстояние от головки кранового
рельса до низа несущих конструкций покрытия
,
где
- вертикальный габарит крана (по
ГОСТ - табл. 2.5 [4]);
- зазор, установленный по
требованиям техники безопасности;
- размер, учитывающий прогиб конструкции
покрытия
.
Внутренний габарит цеха
Принимаем
(кратно
).
Высота верхней части стойки
,
где
- из расчета подкрановой балки;
- высота кранового рельса КР-120 (по
ГОСТ - табл. 2.5 [4]).
Высота нижней части стойки
Высота стойки рамы
Высота фермы на опоре
- для типовых ферм с i = 1,5%
Высота покрытия от низа ригеля до
конька кровли
.
Определяем размер элементов рамы по
горизонтали
,
,
.
Привязка наружной грани колонны к
разбивочной оси
, т.к.
.
Ширина верхней части колонны
Необходимо, чтобы
; имеем
.
Ширина нижней части колонны
,где
, т.к.
и
необходимо устройство проходов в надкрановой части колонны.
Условие необходимой жесткости
колонны
;
Габарит безопасности движения крана
.
- условие свободного прохода крана
обеспечивается.
Конструктивная схема рамы показана
на рис. 15.
Рисунок 15 - Конструктивная схема
рамы
4.2 Нагрузки, действующие на раму
.2.1 Постоянные нагрузки
Покрытие принято утепленное из
стальных панелей 3х12 м.
Таблица 6 - Постоянная
распределенная поверхностная нагрузка от покрытия
№ п/п Вид нагрузки Нормативная
нагрузка
,
Коэффициент
надежности по нагрузке,
Расчетная
нагрузка
|
,
|
|
|
|
|
1
|
Защитный
слой 15 мм из гравия, втопленного в мастику
|
0,3
|
1,3
|
0,39
|
|
2
|
Водоизоляционный
ковер из трех слоев рубероида
|
0,15
|
1,3
|
0,195
|
|
3
|
Утеплитель
200 мм из плитного пенопласта ( )0,11,20,12
|
|
|
|
|
4
|
Пароизоляция
из одного слоя рубероида
|
0,05
|
1,3
|
0,065
|
|
5
|
Профилированный
настил t = 1 мм
|
0,16
|
1,05
|
0,168
|
|
6
|
Стальной
каркас комплексной панели
|
0,2
|
1,05
|
0,21
|
|
7
|
Собственная
масса металлической конструкции фермы и связей
|
0,3
|
1,05
|
0,315
|
|
Итого
общая нагрузка
|
1,26
|
|
1,463
|
Постоянная линейная нагрузка на ригель
,
где
- угол ската кровли. Для покрытий
промзданий принимается сosα = 1 из-за малости угла ската.
Расчетное давление на колонну от
покрытия:
Расчетный сосредоточенный момент в
уровне уступа:
,
где
- расстояние между осями
надкрановой и подкрановой части колонны (рис. 16),
м.
Рисунок 16 - Колонна и подкрановая
балка.
Нагрузки от стенового ограждения при
расчете рамы не учитывается, т.к. стены приняты из ребристых панелей толщиной
300 мм. Нагрузка от них передается на фундаментные балки.
4.2.2 Снеговая нагрузка
По заданию вес снегового покрова
.
Нормативное значение снеговой
нагрузки на горизонтальную проекцию покрытия определяем по формуле 10.1 [3]:
где сe- коэффициент, учитывающий снос
снега с покрытий зданий под действием ветра или иных факторов, принимаемый в
соответствии с пп. 10.5-10.9 [3];
сt - термический коэффициент,
принимаемый в соответствии с п. 10.10 [3];
- коэффициент перехода от веса
снегового покрова земли к снеговой нагрузке на покрытие, принимаемый в
соответствии с п. 10.4 [3];
Sg - вес снегового покрова на 1 м2
горизонтальной поверхности земли.
Кровля здания утепленная, поэтому
согласно п. 10.10 [3]
.
Согласно п. 10.5 [3]
Так как уклон составляет 1,5 %, то
Расчетная линейная снеговая нагрузка
на ригель
.
Расчетное давление на колонну от
снеговой нагрузки
.
Расчетный сосредоточенный момент в
уровне уступа
.
4.2.3 Вертикальная нагрузки от
мостовых кранов
Вертикальное давление на среднюю
колонну продольного ряда определяется от действия двух сближенных кранов
с помощью
линий влияния опорного давления (см. рис. 17).
Ординаты линий влияния
,
Пролет крана
.
Рисунок 17 -