Цилиндрический редуктор

  • Вид работы:
    Курсовая работа (т)
  • Предмет:
    Другое
  • Язык:
    Русский
    ,
    Формат файла:
    MS Word
    556,84 Кб
  • Опубликовано:
    2015-02-14
Вы можете узнать стоимость помощи в написании студенческой работы.
Помощь в написании работы, которую точно примут!

Цилиндрический редуктор

Содержание

1. Краткое описание состава и работы изделия. Обоснование выбора посадок соединений изделия

. Вероятностный расчет двух разных по характеру посадок гладких цилиндрических поверхностей

.1 Расчет посадки Æ52H7/h9

.2 Расчет посадки Æ22 H7/n6

. Расчет посадок подшипников качения. Назначение допусков формы, расположения и параметров шероховатости конструктивных элементов деталей, сопрягаемых с подшипниками

. Расчет посадок шпоночного соединения. Назначение допусков формы, расположения и параметров шероховатости поверхностей шпоночного соединения

. Обоснование выбора норм точности зубчатой передачи. Выбор контрольного комплекса зубчатого колеса

. Выбор методики измерительного контроля одного из параметров. Краткое описание методики выполнения измерения

. Расчет размерной цепи "подшипниковый узел"

Литература

посадка цилиндрический шпоночный передача

1. Краткое описание состава и работы изделия. Обоснование выбора посадок соединений изделия

Ведущими элементами данного цилиндрического редуктора являются: электродвигатель 27, вал 12 и винт 11. Ведомыми элементами являются зубчатые колеса 13, 14 и втулка 25. Крутящий момент с зубчатых колес на валы, передается с помощью призматических шпонок.

В рассматриваемом редукторе гладкими цилиндрическими сопряжениями являются соединения:

-       внутренние кольца подшипников с валом и винтом.

-       наружные кольца подшипников с поверхностями корпуса.

-       колеса зубчатые с валом и винтом.

-       посадочные поверхности колец с поверхностями корпуса.

-       посадочные поверхности крышки подшипникового узла с поверхностями корпуса.

-       посадочные поверхности корпуса 25 с поверхностью корпуса 10.

-       поверхность гильзы с гайкой.

Заданием на курсовую работу выдан подшипник шариковый радиальный однорядный 6-304 ГОСТ 8338-75, 6-ой класс точности , режим работы - легкий.

Размеры подшипника:

-       номинальный диаметр отверстия внутреннего кольца d=20 мм;

-       номинальный диаметр наружной цилиндрической поверхности наружного кольца D=52мм

-       номинальная ширина подшипника В=15мм.

Характеристика зубчатой передачи - кинематическая, реверсивная.

Выбор норм точностей соединений

Так как передача кинематическая и реверсивная, то нужно выбрать посадку которая позволит обеспечить точность центрирования сопрягаемых деталей, возможность самоустановки колеса под нагрузкой, легкость сборки и разборки соединения. Следовательно принимаем:

-       посадка зубчатого колеса, поз. 14, на вал, поз. 12, Ø22H7/n6;

-       посадка зубчатого колеса, поз. 13, на винт, поз. 11, Ø25H7/n6;

-       посадка втулки, поз. 25, на вал, поз. 12, Ø12H7/n6;

При выборе посадок для колец подшипников с валом и корпусом руководствуемся ГОСТ 3325-85 "Поля допусков и технические требования к посадочным поверхностям валов и корпусов. Посадки". С их помощью устанавливаем предпочтительные посадки для первоочередного применения:

-       посадка внутреннего кольца подшипников, поз. 3, на вал, поз. 12, Ø20L6/js6;

-       посадка внутреннего кольца подшипников, поз. 4, на винт, поз. 11, Ø25L6/js6;

-       посадка наружного кольца подшипников, поз. 3, в корпус, Ø52H7/l6;

-       посадка наружного кольца подшипников, поз. 4, в корпус, Ø62H7/l6;

При сравнительно невысоких требованиях к точности вращения и для создания разъемных неподвижных соединений (крышка - корпус), при наличии требования легкой сборки и разборки примем:

-       Посадка поверхности корпуса 25 с поверхностью корпуса 10, Ø170H7/h9;

-       Посадки всех посадочных поверхностей крышек подшипникового узла с поверхностью корпуса: на валах, поз. 12, Ø52H7/d11; на винте, поз. 11, Ø62H7/d11.

Так как передача кинематическая реверсивная, то выбираем для посадок шпонок на всех валах нормальное соединение:

–       На валу поз. 12 посадка паза вала со шпонкой поз. 6 - 4N9/h9, посадка паза втулки поз. 25 со шпонкой поз. 6 - 4JS9/h9;

–       На валу поз. 12 посадки паза вала со шпонкой поз. 7 - 6N9/h9, посадки паза шестерни поз. 14 со шпонкой поз. 7 - 6JS9/h9.

–       На винте поз. 11 посадки паза вала со шпонкой поз. 8 - 8N9/h9, посадки паза шестерни поз. 13 со шпонкой поз. 8 - 8JS9/h9.

При наличии требования легкой сборки и разборки примем посадки посадочных поверхностей распорных втулок с корпусом H7/h9.

2. Вероятностный расчет двух разных по характеру посадок гладких цилиндрических поверхностей

 

2.1 Расчет посадки Æ52H7/h9


Рассматривая соединение корпуса поз.10 с корпусом поз.26, устанавливаем, что данное соединение для обеспечения лучшей собираемости должно быть с гарантированным зазором. Так как высокая точность не требуется, то принимаем посадку Æ52H7/h9.

Рассчитываем предельные размеры отверстия Æ52H7.

По табл. 1 ГОСТ 25346-89 определяем величину допуска IT7=30 мкм;

По табл. 3 ГОСТ 25346-89 определяем значение основного отклонения ЕI=0 мкм;

Верхнее отклонение    ES=ЕI+IТ =0+30=+30 мкм.

Предельные размеры отверстия:

min=Do+ЕI=52.000+0.000 =52.000 мм;

Dmax=Do+ES=52.000+0.030=52.030 мм.

Рассчитываем предельные размеры вала Æ52 h9.

По табл. 1 ГОСТ 25346 - 89 определяем величину допуска IT9=74 мкм;

По табл. 2 ГОСТ 25346 - 89 определяем значение основного отклонения es=0мкм.

Нижнее отклонение ei = es - IT =0-74=-62 мкм.

Предельные размеры вала:

min = do+ei =52.000+(-0.074) =51.926 мм;

dmax = do+es =52.000+0.000 =52.000 мм.

Результаты расчетов сведем в таблицу 2.1.

Таблица 2.1 - Расчет предельных размеров соединения Æ52 H7/h9.

Диаметр

IT, мкм

ES(es), мкм

EI(ei), мкм

Dmin(dmin), мм

Dmax(dmax), мм

Æ52H7

30

+30

0

52.000

52.030

Æ52h9

74

+0

-74

51.926

52.000


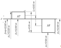
Строим схему расположения полей допусков сопрягаемых деталей и рассчитываем предельные значения табличных натягов.

Рис.2.1 Схема расположения полей допусков сопрягаемых деталей Æ52 H7/h9.

Строим схему расположения полей допусков сопрягаемых деталей и рассчитываем предельные значения табличных зазоров.

max=Dmax-dmin=52.030-51.926=0.104 мм;min=Dmin-dmax=52.000-52.000=0.000 мм.ср=(Dmax+Dmin)/2=(52.030+52.000)/2=52.015 мм.ср=(dmax+dmin)/2=(52.000+51.926)/2=51.963 мм.

Допуск посадки TS=IT(D)+IT(d)=0.030+0.074=0.104 мм.

Средний зазор Sср=(Smax+Smin)/2=(0.104+0.000)/2=0.052 мм.

Принимаем нормальный закон распределения случайных погрешностей и рассчитываем предельные значения зазоров:

max вep=Sсp+3ss;min вер=Sсp.-3ss;

мкм,

где sS - среднее квадратичное отклонение сопряжения.

max вер.=52+3·13.3=92 мкм=0.092 мм;

Smin вер.=52-3·13.3=12 мкм=0.012 мм.

Распределение вероятных натягов представим графически (рис. 2.2).

Рисунок 2.2 - Распределение вероятных зазоров

2.2 Расчет посадки Æ22 H7/n6


Выбор посадки вал поз.12 - зубчатое колесо поз.14, определяется условиями работы редуктора. Принимаем для неподвижных колес посадку Æ22 H7/n6, данная переходная посадка позволит обеспечить точность центрирования сопрягаемых деталей, возможность установки колеса под нагрузкой, легкость сборки и разборки соединения.

Рассчитываем предельные размеры отверстия Æ22 H7.

По табл. 1 ГОСТ 25346-89 определяем величину допуска IT7=21 мкм;

по табл. 3 ГОСТ 25346-89 определяем значение основного отклонения ЕI= 0 мкм;

Верхнее отклонение    ES=ЕI+IТ =0+21=21 мкм.

Предельные размеры отверстия:

max=Do+ES=22.000+0.021= 22.021 мм;

Dmin=Do+ЕI=22.000+0.000 =22.000 мм.

Рассчитываем предельные размеры вала Æ30n6.

По табл. 1 ГОСТ 25346 - 89 определяем величину допуска IT6=13 мкм;

По табл. 2 ГОСТ 25346 - 89 определяем значение основного отклонения ei=15 мкм.

Верхнее отклонение es= ei + IT =15+13=28 мкм.

Предельные размеры вала:

max = do+es =22.000+0.028 =22.028 мм;

dmin = do+ei =22.000-0.015=22.015 мм.

Результаты расчетов сведем в таблицу 2.2.

Таблица 2.2 - Расчет предельных размеров соединения Æ22 H7/n6.

ДиаметрIT, мкмES(es), мкмEI(ei), мкмDmin(dmin), ммDmax(dmax), мм






Æ22H7

21

21

0

22.000

22.021

Æ22n6

13

28

15

22.015

22.028


Строим схему расположения полей допусков сопрягаемых деталей и рассчитываем предельные значения табличных натягов.

Рис.2.3- Схема расположения полей допусков сопрягаемых деталей Æ22 H7/n6.

Smax= Dmax-dmin =22.021-22.015=0.006 мм;

Nmax= dmax- Dmin=22.028-22.000=0.028 мм.

Dср = (Dmax + Dmin)/2 =(22.021+22.000)/2=22.0105 мм.

dср = (dmax + dmin)/2 =(22.028+22.015)/2=22.0215 мм.

Допуск посадки

 = IT(D) + IT(d) =0.021+0.013=0.034 мм.

Принимаем нормальный закон распределения случайных погрешностей и рассчитываем предельные значения вероятных зазоров(натягов). Так как Dср<dср, то рассчитываем вероятность математического ожидания получения натяга:

MN = dcp -Dср =22.0215-22.0105=0.011 мм;

Nmax вep.= MN + 3;

Nmin вер. = MN - 3;

мкм,

где sN - среднее квадратичное отклонение сопряжения.

max вер.=11+3*4.1=23.3 мкм=0.0233 мм;

Nmin вер.=11-3*4.1=-1.3 мкм=-0.0013 мм.

Smax вер.=1.3 мкм=0.0013 мм.

При применении переходных посадок в сопряжениях возможны зазоры или натяги. Поэтому рассчитываем вероятность их получения. Для определения площади, заключенной между кривой Гаусса, осью ординат и осью абсцисс, удобно использовать табулированные значения функции.

,

MN=11 мкм; =4.1 мкм.

z=11/4.1=2.7, Ф(z)=49%.

Тогда вероятность получения натяга P(N)=50.0%+49%=99%;

вероятность получения зазора P(S)=50.0% -49%=1%.

Распределение вероятных зазоров (натягов) представим графически Рисунок 2.4.

Рис.2.4 - Распределение вероятных натягов (зазоров).

3. Расчет посадок подшипников качения. Назначение допусков формы, расположения и параметров шероховатости конструктивных элементов деталей, сопрягаемых с подшипниками

Из исходных данных определяем, что установлен подшипник средней серии 6-304 ГОСТ 8338-75 - шариковый радиальный однорядный Основные размеры подшипника:

·        номинальный диаметр отверстия внутреннего кольца d=20 мм;

·        номинальный диаметр наружного кольца D=52 мм;

·        номинальная ширина подшипника B=15 мм;

·        номинальая высота монтажной фаски r=2 мм;

·        класс точности подшипника - 6.

Выбор посадок требует определения видов нагружения. Т.к. передача крутящего момента в заданном механизме осуществляется зубчатыми колесами, то на вал действует радиальная нагрузка, постоянная по направлению и по величине. Вал вращается, а корпус неподвижен, передача кинематическая, реверсивная, и это определяет, что внутреннее кольцо испытывает циркуляционное нагружение, а наружное - местное. По ГОСТ 3325-85 "Подшипники качения. Поля допусков и технические требования к посадочным поверхностям валов и корпусов. Посадки.", табл. 1, выбираем рекомендуемую посадку цапфы вала, сопрягаемой с подшипником качения. Для циркуляционного вида нагружения внутреннего кольца и при нормальном режиме работы подшипника рекомендуются посадки L6/js6 и L6/k6. Выбираем посадку L6/js6. Аналогично выбираем поле допуска отверстия корпуса. Для местного вида нагружения внутреннего кольца и при нормальном режиме работы подшипника рекомендуются посадки, J7/l6, H7/l6. Принимаем посадку H7/l6. Предельные отклонения средних диаметров колец подшипника качения определяем по ГОСТ 520-2002, предельные отклонения вала Æ20 js6 и отверстия корпуса Æ52 H7 - по ГОСТ 25347-82 "Единая система допусков и посадок. Поля допусков и рекомендуемые посадки" и расчеты сведем в таблицу.

Таблица 3.1.Расчет предельных размеров деталей подшипникового узла.

Диаметр

ES(es), мкм

EI(ei), мкм

Dmax(dmax), мм

Dmin(dmin), мм

Æ20 L6/js6

Внутр. кольцо подшипника

0

-8

20.000

19.992


Вал

+6.5

-6.5

20.0065

19.9935

Æ52 H7/l6

Нар. кольцо подшипника

0

-11

52.000

51.989


Отверстие

+30

0

52.030

52.000


Строим схему расположения полей допусков сопрягаемых деталей подшипникового узла и рассчитываем зазоры (натяги):

max=dmax-Lmin=20.0065-19.992=0.0145 мм;

Smax=Lmax-dmin=20.000-19.9935=0.0065 мм;(N)=IT(L)+IT(d)=8+13=21 мкм;

Lср=(Lmax+Lmin)/2=(20.000+19.992)/2=19.996 мм.ср=(dmax+dmin)/2=(20.0065+19.9935)/2=20.000мм.

Рисунок 3.1 - Схема расположения полей допусков сопряжения Æ20 L6/js6

Принимаем нормальный закон распределения случайных погрешностей и рассчитываем предельные значения вероятных зазоров(натягов). Так как dср>Lср, то рассчитываем величину математического ожидания натяга:

N=dcp-Lср=20.000-19.996=0.004 мм=4 мкм;

Nmax вep.=MN+3s(S,N);min вер.=MN-3s(S,N);

мкм,max вер.=4+3·2.5=11.5 мкм=0.0115 мм;min вер.=4-3·2.5=-3.5 мкм=-0.0035 мм;max вер.=3.5мкм=0.0035 мм.

Для определения площади, заключенной между кривой Гаусса, осью ординат и осью абсцисс используем табулированные значения функции.

,

где

MN=4 мкм; =2.5 мкм.

z=4/2.5=1.6, Ф(z)=44.52%.

Тогда вероятность получения натяга P(N)=50.0%+44.52%=94.52%;

вероятность получения зазора P(S)=50.0%-44.52%=5.48%.

Рисунок 3.2 - Схема расположения полей допусков сопряжения Æ52 H7/l6

Smax=Dmax-lmin=52.030-51.989=0.041 мм;

Smin=Dmin-lmax=52.000-52.000=0.000 мм;

Sср=(Smax+Smin)/2=(0.041+0.000)/2=0.0205 мм.

Производим проверку наличия в подшипнике качения радиального зазора.

ср.=4 мкм; Nэф.=0.85 Nср=0.85·4=3.4 мкм;0=d+(D-d)/4=20+(52-20)/4=28 мм.

∆d1=Nэф.·d/d0=3.4·20/28=2.4 мкм.

По ГОСТ 24810-81 определяем предельные значения зазоров в подшипнике № 304.rmin=0 мкм;rmax=10 мкм.

Средний зазор в подшипнике:

rср.=(Grmin+Grmax)/2=(0+10)/2=5 мкм;

тогда

пос=Grср.-∆d1=5-2.4=2.6 мкм

Вывод: расчет показывает, что при назначении посадки по внутреннему диаметру Ø20 L6/js6 зазор в подшипнике качения после посадки будет положительным и заклинивание не произойдет.

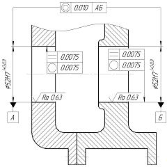
Требования, проставляемые на чертеже вала под посадочную поверхность подшипников.

а) Параметры шероховатости для посадочных поверхностей, сопрягаемых с подшипником:

для вала Ra=0.63 мкм,

для отверстия корпуса Ra=0.63 мкм,

для опорных торцов заплечников валов и корпусов Ra=1.25 мкм;

б) допуски формы (круглости и профиля продольного сечения)

для вала:

круглости - 3.5 мкм

профиля продольного сечения - 3.5 мкм

для отверстия корпуса:

круглости - 7.5 мкм

профиля продольного сечения - 7.5 мкм;

в) допуск торцевого биения заплечиков: для вала - 13 мкм

для отверстия - 30 мкм.

г) допуск соосности поверхностей вала. Примем нормальный ряд зазоров. Тогда для вала

Тсоосн=4·В2/10=4·15/10=6 мкм.

По нормальному ряду принимаем Тсоосн=5 мкм.

Для отверстия корпуса

Тсоосн=8·В2/10=8·15/10=12 мкм.

По нормальному ряду принимаем Тсоосн=10 мкм.

Рисунок 3.3 - Обозначение точностных требований к поверхностям вала, сопряженных с подшипником качения

Рисунок 3.4 - Обозначение точностных требований к поверхностям отверстий корпуса, сопряженных с подшипником качения

4. Расчет посадок шпоночного соединения. Назначение допусков формы, расположения и параметров шероховатости поверхностей шпоночного соединения

. По ГОСТ 23360-78 для вала Æ25 мм выбираем размеры шпонки.

b´h=8´7 мм, l=25 мм, t1=4+0.2 мм, t2=3.3+0.2 мм, исполнение 1,соединение нормальное. Основные параметры шпоночного соединения:

Рисунок 4.1 - Шпоночное соединение.

2. Расчет шпоночного соединения по ширине b:

паз вала b1=8 N9:

=0 мкм B1max=b+ES =8.000+0=8.000 мм;

EI=-36 мкм B1min=b+EI =8.000+(-0.036)=7.964 мм;

ширина шпонки b2=8 h9:

=0 мкм b2max=b2+es =8.000+ 0=8.000 мм;

ei=-43 мкм b2min=b2+ei =8.000+ (-0.036)=7.964 мм;

паз втулки b3=8 JS9:

ES=+18 мкм B3max=b3+ES =8.000+0.018=8.018 мм;= -18 мкм B3min= b3+EI =8.000-0.018=7.982 мм;

3. Строим схемы расположения полей допусков шпоночного соединения по ширине шпонки b

Рисунок 4.2 - Расположение полей допусков шпоночного соединения по ширине шпонки b=8.

Определяем предельные зазоры:

посадка 8 N9/h9 (шпонка-вал).

1max= b2max-B1min =8.000 -7.964 =0.036 мм;1max= B1max-b2min=8.000 -7.964 =0.036 мм;

Посадка 8 JS9/h9 (шпонка-втулка).

3max= b2max-B3min =8.000 -7.982 =0.018 мм;3max= B3max-b2min=8.018 -7.964 =0.054 мм;

5. Расчет шпоночного соединения по высоте шпонки h.

высота шпонки h=7 h11:

es=0 мкм hmax=h+es =7.000+ 0=7.000 мм;=-90 мкм hmin=h+ei =7.000+ (-0.090)=6.910 мм;

глубина паза вала t1=4 мм:

ES=+0.2 мм t1max=t1+ES=4.000+0.200=4.200 мм;=0 мм t1min=t1+EI=4.000+0=4.000 мм;

глубина паза втулки t2=3.3 мм:

=+0.2 мм t2max=t2+ES=3.300+0.200=3.500 мм;=0 мм t2min=t2+EI=3.300+0=3.300 мм.

6. Определяем предельные зазоры по высоте шпонки h.

max=t1max+t2max-hmin=4.200 +3.500 -6.910 =0.790 мм;min=t1min+t2min-hmax=4.000 +3.300 -7.000=0.300 мм.

7. Расчет шпоночного соединения по длине шпонки l.

длина шпонки l=25 h14:

=0 мм l1max=l1+es=25.00+0=25.00 мм;=-0.52 мм l1min=l1+ei=25.00+(-0.52)=24.48 мм;

длина паза L=25 H15:

=+0.84 мм L2max=L2+es=25.00+0.84=25.84 мм;=0 мм L2min=L2+ei=25.00+0=25.00 мм.

8. Строим схемы расположения полей допусков шпоночного соединения по длине шпонки L ( рисунок 4.3).

. Определяем предельные зазоры по длине шпонки l.

max=L2max-l1min=25.84-24.48=1.36 мм;min=L2min-l1max=25.00-25.00=0 мм.

Рисунок 4.3 - Расположения полей допусков шпоночного соединения по длине шпонки 25H15/h14.

Определяем числовые значения допусков расположения:

Тпарал = 0,6 Тшп;

Тсим = 4,0 Тшп,

где Тшп - допуск ширины шпоночного паза b; - 36мкм.

Тпарал - допуск параллельности;

Тсим- допуск симметричности в диаметральном выражении.

Полученные расчетные значения допусков расположения округляют до стандартных по ГОСТ 24643-81.

Тпарал = 0,6Тшп=0,6*36=21.6мкм - округляем до 20 мкм

Тсим = 4,0 Тшп=4*36=144мкм - округляем до 120 мкм.

Так как диаметр вала <50мм, то шероховатость боковых поверхностей и донышка паза вала будет Ra3.2.

5. Обоснование выбора норм точности зубчатой передачи. Выбор контрольного комплекса зубчатого колеса

Принимаем степень точности по нормам кинематической точности - 7.

В кинематических передачах зубья зубчатых колес подвергаются значительным динамическим воздействиям. Следовательно к этим передачам предъявляют повышенные требования по плавности их работы.

Поэтому степень точности по нормам плавности работы принимаем - 7.

Так как передача не является силовой в которой основным требованием является контакт рабочих поверхностей зубьев, то нет необходимости ужесточать нормы контакта зубьев.

Поэтому степень точности по нормам контакта зубьев принимаем - 8.

Принимаем Вид сопряжения - С, ему соответствует вид допуска на боковой зазор - с и класс точности отклонения межосевого расстояния -IV.

Таким образом, обозначение зубчатого колеса: 7-7-8-С ГОСТ 1643-81

Также примем модуль передачи m=2. Числа зубьев зубчатого колеса z1=44, колеса зубчатого z2=100 зубьев.

Для заданных степеней точности выбираем показатели контрольного комплекса для зубчатого колеса (m=2; z1=44) № 3:

Используем ГОСТ 1643-81.

)        По норме кинематической точности:

Рассчитаем делительный диаметр колеса зубчатого:

a=m*z=2*44*cosβ=85,74мм , β=13.

rr - допуск на радиальное биение зубчатого венца, Frr =50 мкм.

FvWr - допуск на колебание длины общей нормали, FvWr=40 мкм.

) По норме плавности:

fpbr- предельные отклонения шага зацепления, fpbr=±16мкм

ffr - допуск на погрешность профиля зуба, ffr=13мкм.

) По норме контакта зубьев:

Fßr -допуск на направление зуба, Fßr=18мкм.

) По норме бокового зазора:

- гарантированный боковой зазор;

- предельное отклонение межосевого расстояния

Определим межосевое расстояние

w=m*( z1+ z2)/2*cosβ=2*(44+100)/2*cos13=140,3мм.

Вид сопряжения - С, класс отклонения межосевого расстояния -IV.

Тогда =87мкм, =±45мкм.

- наименьшее дополнительное смещение исходного контура для зубчатого колеса с внешним зубом: =100мкм.

 - допуск на смещение исходного контура: =120мкм.

- наименьшее отклонение толщины зуба: =80мкм.

 - допуск на толщину зуба, =90мкм.

Расчет длины общей нормали для зубчатого колеса:

Длина общей нормали W определяется в зависимости от числа охватываемых зубьев.

Номинальная длина общей нормали при α=20°

*=(W’+0.684x)m,

где W’ - длина общей нормали при m=1 мм для числа зубьев zw=f(z), охватываемых при измерении.

При z=44 zw=6, W’=16.8530 мм.

Тогда

W*=(16.8530+0.684·0)·2=33,7060 мм.

Допуск на длину общей нормали

=(W*-Ewms)-Twm,

Где Ewms - наименьшее отклонение средней длины общей нормали,

Twm - допуск на среднюю длину общей нормали, Twm=60 мкм.

wms=E’wms+E’’w ms

wms - слагаемое 1 отклонения, E’wms=70 мкм,

E’’wms - слагаемое 2 отклонения, E’’wms=11 мкм,

wms=70+11=81мкм

Ewmi=60+81=141мкм

Тогда длина общей нормали W= мм.

Допуски формы, расположения и шероховатость, проставляемые на чертеже зубчатого колеса

Радиальное биение диаметра вершин зубьев:

Торцевое биение торцов зубчатого колеса:

мкм, мкм.

Принимаем по ГОСТ 24643-81 мкм.

Допуск круглости и профиля продольного сечения посадочного отверстия:Ò;Ôмкм, принимаем по ГОСТ 24643-81Ò;Ôмкм.

Шероховатость посадочного отверстия:

мкм, принимаем по ГОСТ 2789-73 мкм.

Шероховатость боковой поверхности зубьев:

мкм,принимаем по ГОСТ 2789-73 мкм.

Шероховатость торцов зубчатого колеса:

мкм,принимаем по ГОСТ 2789-73 мкм.

Шероховатость боковых сторон шпоночного паза:

мкм (т.к. d<50мм).

Параллельность боковых сторон шпоночного паза:Õ0,6 х Тшп=0,6 х 36=21,6мкм; принимаем по ГОСТ 24643-81 TÕмкм.

Симметричность боковых сторон шпоночного паза:Ùмкм, принимаем по ГОСТ 24643-81 TÙмкм.

Приборы для контроля комплексных и дифференцированных параметров зубчатых колес

Контроль радиального биения зубчатого венца Frr

Контроль радиального биения зубчатого венца производится на приборах типа 25003, БВ05015, БВ-5050, БВ-5060, БВ-5061.

Рисунок 5.1- Схема биениемера (БВ-5015)

Радиальное биение зубчатого венца 1 контролируется на биениемерах рис.7.1., имеющих модульные профильные наконечники 2 с углом конуса 40° для контроля наружных зубчатых колес ( для контроля внутренних зубчатых колес наконечники имеют сферическую форму ).разность положений наконечников, определяется с помощью каретки 4 и индикатора 3, характеризует биение зубчатого венца.

Контроль бокового зазора Jn

Контроль бокового зазора производится на приборах типа НЦ23500-23800. Боковой зазор между неработающими профилями зубьев в собранной передаче можно контролировать с помощью набора щупов, с помощью заложенной между зубьями свинцовой проволочки или методом люфтования. В последнем случае одно из зубчатых колес медленно вращается, а второе при этом совершает высокочастотные колебания, амплитуда которых характеризует боковой зазор. В реальном зубчатом колесе боковой зазор образуется в результате утонения зуба при смещении исходного режущего контура на зуб колеса. Это смещение измеряют на тангенциальных зубомерах рис.7.2, имеющих два базовых щупа 1 и 2, измерительный наконечник 3 и показывающий прибор 4. Перед измерением зубомер настраивают на заданный модуль по ролику расчетного диаметра.

Рисунок 5.2 - Схема тангенциональногозубомера

6. Выбор методики измерительного контроля одного из параметров. Краткое описание методики выполнения измерения

Подберем средства измерений для контроля посадочной поверхности крышки Ø62h11. Для этого используем РД 50-98-86.

По РД 50-98-86 определяем допускаемую погрешность измерения , мкм, допуск , мкм и рекомендуемые средства измерения при измерении накладными средствами измерений:

Ç - ,

где ;

;

a - микрометры гладкие (МК) с величиной отсчета 0,01 мм при настройке на нуль по установочной мере, температурный режим - , предельные погрешности измерения 10 мкм;

Методика измерения диаметра шейки вал-шестерни накладным средством измерения - микрометром.

Рисунок 6.1 - Микрометр гладкий (МК) по ГОСТ 6507-90

Прямые измерения наружного диаметра гладким микрометром, осуществляются методом непосредственной оценки, контактным.

Представление метрологических характеристик применяемых СИ.

Метрологические характеристики микрометра гладкого МК:

-                                  диапазон показаний, мм                           ± 0,1;

-       цена деления, мм                                      0,01;

-                                  основная погрешность, мкм:           ± 0,0025;

-                                  диапазон измерений, мм, от 50 до 75.

В соответствии с вариантом 4а РД 50-98-86 при измерении размеров микрометром гладким с величиной отсчета 0,01 мм при настройке на нуль по установочной мере в диапазоне длин 50…75 мм при используемом перемещении измерительного стержня до ±0,1 мм и температурном режиме ±2 оС предельное значение погрешности измерений Δ не превысит 10 мкм, что не больше назначенной нами допустимой погрешности измерительного контроля [Δ] = 40 мкм.

Следовательно, выбранная методика выполнения измерений соответствует установленным требованиям точности.

7. Расчет размерной цепи "подшипниковый узел"

Исходными данными для расчета размерной цепи являются подшипниковый узел (рис. 7.1), допустимое значение осевого зазора от 0 до 450 мкм, коэффициент асимметрии для всех звеньев ai=0.

Рисунок 7.1 - Эскиз подшипникового узла

Анализ источников неопределенностей.

Используем следующие обозначения:

А - параметрическая цепь;

Аi - наименование первичной неопределенности;

Аi0 - номинальное значение;

emi - среднее отклонение;

Ti - допуск.

Характеристики замыкающего звена

·        номинальный размер А=0;

·        среднее отклонение em=+225 мкм;

·        допуск Т=450 мкм.

Влияние источников первичных неопределенностей.

Все первичные неопределенности являются линейными размерами, относящиеся к классу технологических неопределенностей изготовления деталей (табл. 7.1).

Таблица 7.1 - Первичные неопределенности, приводящие к осевому смещению колец подшипника

Обозначение

Наименование первичного источника неопределенности межосевого расстояния зубчатой передачи

А1

Отклонение ширины посадочной поверхности корпуса

А2

Отклонение монтажной высоты подшипника

А3

Отклонение ширины буртика вала

А4

Отклонение ширины зубчатого колеса

А5

Отклонение ширины втулки

А6

Отклонение монтажной высоты подшипника

А7

Отклонение ширины кольца

А8

Отклонение ширины посадочной поверхности крышки подшипникового узла

А9

Отклонение ширины корпуса

А10

Отклонение ширины станины


Оценка коэффициентов влияния первичных неопределенностей

Рассматриваемая размерная цепь является линейной, поэтому коэффициенты влияния увеличивающих звеньев равны +1, а уменьшающих равны -1:

С12345678=-1

С9+C10=+1

Комплексирование первичных неопределенностей

Результаты нормирования первичных неопределенностей приведены в табл. 7.2.

Таблица 7.2 - Результаты нормирования первичных неопределенностей

Коэффициент влияния

Значения характеристик первичных неопределенностей

Значения характеристик приведенных неопределенностей

А1 - Отклонение ширины посадочной корпуса

С1=-1

Допуск на размер 7 h8 А01=7 мм; Т1=22 мкм; em1=-11 мкм.

С1А01=-7 мм С1Т1=-22 мкм С1(em1+a1Т1)=11мкм

А2 - Отклонение монтажной высоты подшипника

С2=-1

Нормировано ГОСТ 520-2002 в виде верхнего (0 мкм) и нижнего (-120мкм) отклонений ширины кольца подшипника нормального класса точности. А02=15 мм; Т2=120 мкм; em2=-60 мкм.

С2А02=-15 мм С2Т2=-120 мкм С2(em2+a2Т2)=60 мкм

А3 - Отклонение ширины буртика вала

С3=-1

Допуск на размер 10 js8 (ГОСТ 25346-89) А03=10 мм; Т3=22 мкм; em3=0 мкм.

С3А03=-10 мм С3Т3=-22 мкм С3(em3+a3Т3)=0 мкм

А4 - Отклонение ширины зубчатого колеса

С4=-1

Допуск на размер 20 h8 (ГОСТ 25346-89) А04=20 мм; Т4=33 мкм; em4=-16.5 мкм.

С4А04=-20 мм С4Т4=-33 мкм С4(em4+a4Т4)=16.5 мкм

А5 - Отклонение ширины втулки

С5=-1

Допуск на размер 10 h8 (ГОСТ 25346-89) А05=10 мм; Т5=22 мкм; em5=-11 мкм.

С5А05=-10 мм С5Т5=-22 мкм С5(em5+a5Т5)=11 мкм

А6 - Отклонение монтажной высоты подшипника

С6=-1

Нормировано ГОСТ 520-2002 в виде верхнего (0 мкм) и нижнего (-120мкм) отклонений ширины кольца подшипника нормального класса точности. А06=15 мм; Т6=120 мкм; em6=-60 мкм.

С6А06=-15 мм С6Т6=-120 мкм С6(em6+a6Т6)=60 мкм

А7 - Отклонение ширины кольца

С7=-1

Допуск на размер 8 h8 (ГОСТ 25346-89) А07=8 мм; Т7=22 мкм; em7=11 мкм.

С7А07=-8 мм С7Т7=-22 мкм С7(em7+a7Т7)=11 мкм

А8 - Отклонение ширины посадочной поверхности крышки подшипникового узла

С8=-1

Допуск на размер 5h8 (ГОСТ 25346-89) А08=5 мм; Т8=18 мкм; еm8=-9 мкм.

С8А08=-5 мм С8Т8=-18 мкм С8(em8+a8Т8)=9 мкм

А9 - Отклонение ширины корпуса

С9=+1

Допуск на размер 42 h8 А09=42 мм; Т9=39 мкм; em9=-19.5 мкм.

С9А09=42 мм С9Т9=39 мкм С9(em9+a9Т9)=-19.5 мкм

А10 - Отклонение ширины станины

С10=+1

Допуск на размер 48 h8 А010=48 мм; Т10=39 мкм; em10=-19.5 мкм.

С10А010=48 мм С10Т10=39 мкм С10(em10+a10Т10)=-19.5 мкм


А0=-7-15-10-20-10-15-8-5+42+48=0;

em=11+60+0+16.5+11+60+11+9-19.5-19.5=139.5 мкм;

Kз=450/255=1.4

Коэффициент запаса удовлетворительный.

Таблица 7.3. - Результаты параметрической цепи, обеспечивающей работоспособность подшипникового узла

Пара-метр

Коэффи-циент влияния

Номинальное значение, мкм

Среднее отклонение, мкм

Допуск, мм

Примечание

А1

-1

7

-11

22

ГОСТ 25346-89

А2

-1

15

-60

120

ГОСТ 520-2002

А3

-1

10

0

22

ГОСТ 25346-89

А4

-1

20

-16.5

33

ГОСТ 25346-89

А5

-1

10

-11

22

ГОСТ 25346-89

А6

-1

15

-60

120

ГОСТ 520-2002

А7

-1

8

-11

22

ГОСТ 25346-89

А8

-1

5

-9

18

ГОСТ 25346-89

А9

+1

42

-19.5

39

ГОСТ 25346-89

А10

+1

48

-19.5

39

ГОСТ 25346-89


Строим схему полей допусков осевого зазора (рис.7.2).

Рисунок 7.2 - Схема полей допусков осевого зазора, обеспечивающего работоспособность подшипников

Литература

1. Дунаев И.Ф. Леликов О.П. Ворламова Л.П. "Допуски и посадки. Обоснование выбора." Учебное пособие. - Мн.: Выш. шк., 1984.

2. Мягков В.Д. "Допуски и посадки" I и II том, Справочник. -М.: Выш. шк., 1983.

3. Соломахо В.Л. и другие "Справочник конструктора - приборостроителя." -Мн.:Выш. шк., 1988.

4. Корвацкий А.М. и другие "Взаимозаменяемость, стандартизация и технические измерения. Методическое пособие к курсовой работе для студентов заочных факультетов." ,1992.

Технические нормативные правовые акты

(Перечень ТНПА, используемые в ПЗ )

ГОСТ 520-89 Подшипники качения. Общие технические условия

ГОСТ 1643-81 Основные нормы взаимозаменяемости. Передачи зубчатые цилиндрические. Допуски

ГОСТ 2015-84 Калибры гладкие нерегулируемые. Технические требования

ГОСТ 3325-85 Подшипники качения. Поля допусков и технические требования к посадочным поверхностям валов и корпусов. Посадки

ГОСТ 4608-81 Основные нормы взаимозаменяемости. Резьба метрическая. Посадки переходные.

ГОСТ 6636-69 Основные нормы взаимозаменяемости. Нормальные линейные размеры

ГОСТ 8338-75 Подшипники шариковые радиальные однорядные. Основные размеры

ГОСТ 14815-69Пробки проходные с насадками диаметром свыше 50до 100 мм. Конструкция и размеры.

ГОСТ 14816-69Пробки непроходные с насадками диаметром свыше 50до 100 мм. Конструкция и размеры.

ГОСТ 18362-73 Калибры-скобы листовые для диаметров от 3 до 260 мм. Размеры

ГОСТ 23360-78 Основные нормы взаимозаменяемости. Соединения шпоночные с призматическими шпонками. Размеры шпонок и сечений пазов. Допуски и посадки

ГОСТ 24643-81 Основные нормы взаимозаменяемости. Допуски формы и расположения поверхностей. Числовые значения

ГОСТ 24705-81 Основные нормы взаимозаменяемости. Резьба метрическая. Основные размеры

ГОСТ 25346-89 Основные нормы взаимозаменяемости. Единая система допусков и посадок. Общие положения, ряды допусков и основных отклонений

РД 50-98-86 Методические указания. Выбор универсальных средств измерений линейных размеров до 500 мм (по применению ГОСТ 8.051-81)

Похожие работы на - Цилиндрический редуктор

 

Не нашли материал для своей работы?
Поможем написать уникальную работу
Без плагиата!
Без нейросетей!