Процессы открытых горных работ

  • Вид работы:
    Курсовая работа (т)
  • Предмет:
    Геология
  • Язык:
    Русский
    ,
    Формат файла:
    MS Word
    806,29 Кб
  • Опубликовано:
    2014-03-12
Вы можете узнать стоимость помощи в написании студенческой работы.
Помощь в написании работы, которую точно примут!

Процессы открытых горных работ

Введение

. Общие сведения о месторождении и карьере

.1 Район расположения месторождения

.2 Геологическая и технологическая характеристика месторождения

.2.1 Геологическая характеристика месторождения

.2.2 Геологическая характеристика участка

.2.3 Гидрогеологическая характеристика

.2.4 Качественная характеристика

.3 Сведения о параметрах карьера

.4 Режим работы карьера

. Подготовка горных пород к выемке

.1 Буровзрывные работы по полезному ископаемому

.1.1 Основные параметры БВР

.1.2 Буровые работы

.1.3 Дробление негабаритных кусков породы и валунов

.1.4 Определение размеров опасной зоны

.2 Буровзрывные работы по вскрыше

.1.1 Основные параметры БВР

.1.2 Буровые работы

.1.3 Определение размеров опасной зоны

. Выемочно - погрузочные работы

.1 Выбор модели одноковшового экскаватора

.2 Расчет производительности одноковшового экскаватора

. Транспортирование горной массы

. Отвальные работы

. Взаимосвязь процессов

Заключение

Список литературы

Приложение

Введение

горный выемка буровзрывной отвальный

Разработка месторождений открытым способом делится на следующие этапы: подготовка поверхности карьерного поля - вырубка леса и корчевка пней, отвод русел рек и ручьев за пределы карьера, снос зданий и сооружений, перенос шоссейных и железных дорог, линий электропередачи и т.п.; горно-капитальные работы в период строительства карьера заключаются в проведении капитальных траншей для обеспечения транспортного доступа к рабочим горизонтам карьера и разрезных траншей для создания первоначального фронта горных работ, удалении некоторого объема вскрышных пород для вскрытия запасов полезного ископаемого перед пуском карьера в эксплуатацию; горно-подготовительные работы в период эксплуатации карьера - в проведении горных выработок для вскрытия очередного рабочего горизонта; вскрышные и добычные работы.

Подготовка поверхности и осушение месторождения, горно-капитальные и горно-подготовительные работы выполняются последовательно в период строительства карьера. В период эксплуатации горно-подготовительные и вскрышные работы выполняются параллельно с добычными, опережая их в пространстве и времени.

Горно-подготовительные, горно-капитальные, вскрышные и добычные работы выполняются по определенной технологической схеме, включающей следующие производственные процессы: подготовка горных пород к выемке; выемочно-погрузочные работы; перемещение горной массы: разгрузка и складирование полезного ископаемого; отвалообразование.

Разнообразие горно-геологических условий месторождении требует различной механизации и технологии открытых горных работ.

Технология открытой разработки-совокупность горных работи производственных процессов, обеспечивающих безопасную и экономичную добычу полезных ископаемых. В зависимости от применяемых средств механизации технология открытой разработки месторождений может быть: непрерывной(поточной), когда все технологические процессы выполняются непрерывно; цикличной, когда технологические процессы выполняются в последовательном повторении рабочих и холостых ходов; комбинированной (циклично-поточной), если в комплексе машин, выполняющих производственные процессы, используются машины цикличного и непрерывного действия.

Технология с использованием роторных (цепных) экскаваторов и конвейерного транспорта называется непрерывной; с применением одноковшовых экскаваторов, фронтальных погрузчиков н колесных видов транспорта-цикличной; при сочетании выемочно-погрузочных средств цикличного действия, грохотильно-дробильных агрегатов с конвейерным транспортом-циклично-поточной.

Целью курсового проекта является закрепление теоретических основ пройденного материала, приобретению навыков по проектированию, обучении самостоятельному решению комплекса взаимосвязанных технических и технологических задач по подготовке, выемке, перемещению и отвалообразованию горных пород в конкретных горно - геологических условиях. Исходные данные принимаются по первой производственной практике.

1. Общие сведения о месторождении и карьере

 

1.1 Район расположения месторождения


Сырьевой базой ООО фирмы "Старатель" является Родионово - Несветайское месторождение песчаников, расположенное в Родионово - Несветайском районе Ростовской области на пастбищных землях Болдыревской сельской Администрации в 1 километре на юго - запад от поселка Самбек. Месторождение разрабатывается с 1985года.

Поверхность месторождения представляет собой степную равнину, полого снижающуюся в сторону р. Большой Несветай. Абсолютные отметки поверхности месторождения изменяются от 80,0 м до 112,0 м.

Климат района умеренно - континентальный с сильными ветрами восточного направления, среднегодовая температура +90С, среднегодовое количество осадков 450 мм.

Месторождение состоит из двух участков "Северного" и "Южного". В настоящее время разрабатывается "Северный" участок месторождения. Добычные, вскрышные, отвальные, буровые и транспортные работы ведутся хозяйственным способом; взрывные - подрядным, специализированной организацией. Запасы песчаников утверждены в качестве сырья для производства щебня для строительных работ, заполнителя тяжелых бетонов и асфальтобетонов. В связи с чем основным потребителем готовой продукции (щебень фракций 5-20, 20-40, 40-70, 70-120, бутовый камень) являются дорожно - строительные организации, ведущие ремонт и укладку нового дорожного полотна трасс местного и федерального назначения.

Источником энергоснабжения являются линии электропередач, проведенные из близлежащего поселка. В связи с тем, что грунтовые воды расположены близко к поверхности, источником водоснабжения является пробуренная скважина.

1.2 Геологическая и технологическая характеристика месторождения

 

1.2.1 Геологическая характеристика месторождения

В геологическом строении месторождения принимают участие отложения свиты С32 восточного Донбасса. В структурном отношении участок приурочен к южному крылу Несветайской синклинали, в пределах которого породы залегают моноклинально с азимутом падения на северо - восток под углом 30 - 350, тектонических нарушений в пределах месторождения не выявлено.

Полезное ископаемое на месторождении представлено двумя пластами песчаника Н3Sh4 (Южный участок) и h4SH4 (Северный участок), разделенных пачкой глинистых и песчано - глинистых сланцев. Пласт песчаников h4SH4 представляет собой тело полузакрытого типа с четкими контактами, моноклинально падающее в северном - северо - восточном направлении под углом 30 - 350 согласно с вмещающими скальными породами. Абсолютные отметки кровли изменяются от 110,8 м до 100,3 м. максимальная мощность полезной толщи 47,1 м, минимальная - 5,0 м.

Скальные вскрышные породы представлены глинистыми и песчано - глинистыми сланцами мощностью до 36,3 м, рыхлая вскрыша представлена суглинками и ПРГ мощностью от 0,0 м до 3,0 м.

1.2.2 Геологическая характеристика участка

Планом развития горных работ в 2010 году предусматривается разработка месторождения в районе скважин 30, 14, 7, 8, 9, 59, 33а и 21. Полезное ископаемое представлено пластом песчаника мощностью до 47,1 м. Скальная вскрыша представлена глинистыми и песчано - глинистыми сланцами мощностью до 36,3 м, суглинки и ПРГ на планируемом участке сняты.

 


1.2.3 Гидрогеологическая характеристика

Водоносный горизонт безнапорных грунтовых вод на участке, планируемом к отработке, приурочен к песчаникам продуктивной толщи. Зеркало грунтовых вод имеет абсолютные отметки от 79 м до 91 м. Гидравлический уклон зеркала грунтовых вод направлен в восточном направлении ( в сторону области разгрузки р. Большой Несветай).

1.2.4 Качественная характеристика

Песчаники полезной толщи пригодны для получения щебня для строительных работ ( ГОСТ - 3267 - 82) марок 600 - 1200, Мрз - 100, И - 1, У - 75, щебня, как заполнителя для всех видов тяжелого бетона марки 400 - 500 ( ГОСТ - 10268 - 80), кроме гидротехнического, щебня для изготовленияасфальтобетонов ( ГОСТ - 9128 - 84), кроме типа А.

Физико - механические свойства песчаников участка "Северный" характеризуются показателями:

коэффициент крепости - 6 - 10;

плотность - 2,51 - 2,67 т/ м3;

пористость - 1,11 - 7,47 %;

водопоглащение - 0,05 - 2,2 %;

предел прочности в водонасыщенном состоянии - 428 - 1353 кгс/ м3;

предел прочности в сухом состоянии 408 - 1132 кгс / м3;

коэффициент размягчения - 0,54 - 0,97.

Вскрышные породы представлены ПРГ, суглинки, глинистыми и песчано - глинистыми сланцами, которые не могут быть использованы как попутные полезные ископаемые и будут использованы для рекультивации.

Табл. №1 Основные физико - механические показатели полезного ископаемого и вскрышных пород.

Наименование показателей

ПРГ

Суглинки

Сланцы

Песчаники

Объемный вес в плотном теле т / м3

1,2

1,7

2,4

2,55

Коэффициент разрыхления

1,25

1,2

1,5

1,5

Группа пород по КНпР

1

1

VI

VIII

Категория пород по ЕНВ

I

I

IV

IV

Углы откоса: - рабочего уступа, град. - устойчивого, град. - бортов карьера, град.

 25 33 33

 до 80 до 50 40

 до 80 до 50 55

 до 80 до 70 65


1.3 Сведения о параметрах карьера


Горные работы ведутся с применением сплошной, однобортовой, поперечной системы разработки. Вскрытие производится отдельными внутренними траншеями. Отвалообразование внешнее, перемещение фронта работ в западном направлении.

Высота уступов по скальной вскрыше и полезному ископаемому составляет 10 метров, по ПРГ до 0,5 м., по суглинкам до 3,0 м., рабочий угол откоса уступа по ПРГ и суглинкам составляет - 250, по полезному ископаемому и скальной вскрыше до 800, устойчивый - 60 - 650. Дальность транспортирования составляет 1,5 километра. Годовая производительность по полезному ископаемому составляет 300 000 м3 в год; по скальной вскрыше 150 000 м3, а по мягкой вскрыше 50 000 м3.

 

.4 Режим работы карьера


Сезонность работы карьера - круглогодовая. На добычных и вскрышных работах количество рабочих дней в году составляет 299. Остальное время распределено на ремонт технологического оборудования. Вскрышные работы производятся в одну смену, а добычные в две смены. Продолжительность смены составляет 12 часов. В неделю шесть рабочих дней. Годовой фонд рабочего времени на добыче составляет 7176 часов, на вскрыше 3588 часов.

2. Подготовка горных пород к выемке


Вскрыша представлена двумя типами пород: мягкая и скальная. Мягкая вскрыша - ПРГ и песчано - глинистые сланцы; скальная вскрыша - суглинки. Коэффициент крепости скальной вскрыши 4, в связи с чем отрабатывается буровзрывным способом. Высота добычных и вскрышных уступов составляет 10 метров. В качестве взрывчатого вещества применяется граммонит 79/21. Фактический удельный расход взрывчатого вещества на добыче - 0,6 кг/ м3, на вскрыше составляет - 0,5 кг/ м3. В качестве бурового оборудования принимаем СБУ - 100Г с диаметром долота 125 мм.

2.1 Буровзрывные работы по полезному ископаемому

 

2.1.1 Основные параметры БВР

Величина преодолеваемого сопротивления по подошве уступа (СПП) для одиночного скважинного заряда:


где:- вместимость 1 м скважины:

P = p× d2×D / 4 = 3,14 * 0,1342 * 0,9 / 4 = 0,0127 т = 12,7 кг;

d - диаметр скважины, d = 0,134 м;

D - плотность заряжания, D = 0,9 кг / м2

При шарошечном и ударно-вращательном бурении диаметр скважины определяется по формуле

d = dд ·kраз = 0,125 * 1,07 = 0,134 м = 134 мм;

где: dд - диаметр бурового долота, коронки, dд = 0,125 м;раз - коэффициент разбуривания (kраз = 1,05...1,08).

Рассчитанная для вертикальных скважин линия сопротивления по подошве должна удовлетворять условию безопасности:

W ³ H ctga + C,

где a - рабочий угол откоса уступа, градус;³ Z ³ 2 - расстояние от верхней бровки уступа до гусениц бурового станка, м;- призма обрушения уступа:

 = H (ctgaУ - ctga) = 10 * (сtg 650 - ctg 800) = 10 * (0,47 - 0,17) = 10 * 0,3 = 3 м;

aУ - устойчивый угол откоса уступа, aУ = 650;

W ³ 10 * ctg 800 + 3 = 4,7 м; 4,7 = 4,7

В связи с тем, что линия сопротивления по подошве не удовлетворяет условию безопасности, то применяем наклонные скважины.

Величина ориентировочногоперебура:

lпер = 0,5×q×W = 0,5 * 0,6 * 4,7 = 1,4 м;

где: q - удельный расход ВВ, q = 0,6 кг/ м3;

W - сопротивление по подошве уступа, W = 4,7 м.

Величину перебура принимаем 1,5 метра исходя из опыта работы предприятия на данном месторождении.

Длина забойки:

lзаб = (0,6…0,8) * W = 0,7 * 4,7 = 3,3 м;

где: W - сопротивление по подошве уступа, W = 4,7 м.

Длина заряда:

lзар = H + lпер- lзаб= 10 + 1,5 - 3,3 = 8,2 м;

где: P - вместимость 1 м скважины, Р = 8,6 кг / м;

Q - вес заряда в скважине, Q = 67 кг.

Глубина скважины:

l = H + lпер= 10 + 1,5 = 11,5 м;

где: Н - высота уступа, Н = 10 м;пер - длина перебура, lпер = 1,5 м.

Вес заряда в скважине:

 = q·W·a·H = 0,6 * 4,7 * 4,3 * 10 = 121,3 кг;

где: W - сопротивление по подошве уступа, W = 4,7 м;

q - удельный расход ВВ, q = 0,6 кг/ м3;

а - расстояние между скважинами в ряду, а = 4,3 м;

Н - высота уступа, Н = 10 м.

Расстояние между зарядами в ряду:

a = m·W = 0,91 * 4,7 = 4,3 м;

где: m - относительное расстояние между зарядами в ряду, m = 0,8...1,2;

W - сопротивление по подошве уступа, W = 4,7 м;

Исходя из опыта работы данного предприятия на месторождении принимаем расстояние между рядами скважин равным расстоянию между скважинами в ряду, то есть а = b = 4,3 м. Также принимаем интервал замедления, который составляет 15 - 25 мс.

Величина СПП с учетом взаимодействия зарядов при одновременном взрывании скважин первого ряда и m £ 1,2 равна:

WВЗ = W(1,6 - 0,5m) = 4,7 * (1,6 - 0,5 * 0,91) = 5,1 м;

принимаем

W = WВЗ = 4,7 м.

Параметры развала:

а) ширина развала взорванной горной массы:

В = 1,6 * Н + (n - 1) * b = 1,6 * 10 + (2 - 1) * 4,3 =20,3 м;

где: Н - высота уступа, Н = 10 м;

n - количество рядов скважин, n = 2;

b - расстояние между рядами скважин, b = 4,3 м.

б) высота развала взорванной горной массы:

 

Н - высота уступа, Н = 10 м;

n - количество рядов скважин, n = 2;

q - удельный расход ВВ, q = 0,6 кг/ м3.

2.1.2 Буровые работы

Станок СБУ - 100Г ударно - вращательного бурения с диаметром скважины 134 мм. Исходя из опыта работы горного предприятия на данном месторождении коэффициент крепости принимаем равным 8.

Группа пород по СНиП:

F = 2,5(f )0,5 = 2,5 * 80,5 = VII группа.

Показатель буримости горных пород:

Пб = 0,07(sсж+ sсдв) + 0,7 r = 0,07 * (80 + 35) + 0,7 * 2,55 = 9,8

где: sсжпредел прочности на сжатие, sсж = 80 МПа;

sсдв - предел прочности породы на сдвиг, sсдв = 35 МПа;

r - плотность породы, r = 2,55 т/м3.

Техническая скорость бурения пневмоударного станка:

 

dK - диаметр коронки, dK = 0,125 м;энергия единичного удара коронки, W = 140 кДж;У - число ударов пневмоударника, nУ = 21 с-1;

Кф - коэффициент, зависящий от формы коронки Кф = 0,9;

Кб - коэффициент, зависящий от показателя трудности бурения:

Пб

10...14

15...17

18...25

Кб

1

1,05

1,1


Сменная производительность бурового станка (м/см) без учета внеплановых простоев:

Пб.см = (Тсм - Тп.з - Тр.п) / ( 1/vб + tВ) = (12 - 0,75) / (0,096 + 0,1) = 57,4 м;

где:

Тсм - продолжительность смены, Тсм = 12час;

Тп.з, Тр.п - продолжительность подготовительно-заключительных операций и регламентированных перерывов (Тп.зр.п) = 0,5...1 часа), час;В - вспомогательное время на бурение 1 м скважины (для пневмоударногоtВ = 0,1 час).

Годовая производительность бурового станка:

Пб.год = Пб.см ·nсм ·nр.д = 57,4 * 1 * 299 = 17 162,6 м/год;

где nсм - количество рабочих смен бурстанка в сутки, nсм = 1;р.д - количество рабочих дней станка в году, nр.д = 299.

Выход взорванной горной массы с 1 м скважины:

г.м = H ·a [W + b(Np - 1)] / Np = 10 * 4,3 * (4,7 + 4,3 * (2 - 1)) / 2 = 193,5м3;

b - расстояние между рядами скважин, b = 4,3 м;

W - сопротивление по подошве уступа, W = 4,7 м;

а - расстояние между скважинами в ряду, а = 4,3 м;

Н - высота уступа, Н = 10 м;

Nр - количество рядов скважин, Nр = 2.

Рабочий парк буровых станков:

Nб.p = Qг.кар /(Пб.год ·Vг.м) = 300 000 / (17 162,6 * 193,5) = 0,09

где Qг.кар - объем горной массы, подлежащий обуриванию, Qг.кар = 300 000м3.

Принимаем 1 станок СБУ - 100Г для бурения скважин на добыче с диаметром долота 125 мм и типом долота К - 125К.

Инвентарный парк бурстанков:

N б.ин = 1,2 Nб.p = 1,2 * 0,09 = 0,11

Инвентарный парк буровых станков равняется 1.

Объем массового взрыва на рабочем уступе:

м.в = (5…10)Qэ.сут = 10 * 1003,3 = 10 033 м3

где: Qэ.сут - суточная производительность экскаватора, Qэ.сут = 300 000 / 299 = 1003,3м3/ сутки;

Количество взрываемых скважин за один массовый взрыв:

скв= Vм.в/(l·Vг.м) = 10 033 / (11,5 * 193,5) = 6

За один массовый взрыв требуется взорвать 6 скважин.

Длина взрываемого блока:

б = Nскв ·а/Nр = 6* 4,3 / 2 = 13 м.

2.1.3 Дробление негабаритных кусков породы и валунов

Валуны и негабаритные куски породы дробятся взрыванием зарядов в шпурах. бурение негабарита производится ручным перфоратором ПР - 20Л.Длина ребра негабарита принимаем исходя из таблиц 1 и 2, которая составляет 0,9 м. Глубина бурения - 0,35 м; вес заряда - 85 г; диаметр заряда - 32 мм.

Таблица №2 Вес зарядов и глубина бурения шпуров при дроблении негабаритных кусков породы

Длина ребра негабарита, м

Глубина бурения, м

Вес заряда, г

Диаметр заряда, мм

0,5

0,15

20-40

32

0,6

0,20

30-60

32

0,7

0,25

40-80

32

0,8

0,25-0,30

50-110

32

0,9

0,30-0,40

70-114

32

1,0

0,35-0,50

90-180

32

1,1

0,35-0,50

100-200

36

1,2

0,40-0,55

120-250

36

1,3

0,45-0,60

140-280

36

1,4

0,45-0,70

170-340

36

1,5

0,50-0,80

190-380

36

Примечание - нижний и верхний предел глубины бурения и веса зарядов относятся к породам соответственно V и XI категории крепости.


Нормативный выход негабаритных кусков породы приводится в табл. 3

Таблица №3 Допустимый размер негабарита

Тип оборудования

Размер куска, м

Дробилки:


Конусная ККД-500

0,40

Конусная ККД-900

0,75

Конусная ККД-1200

1,00

Конусная ККД-1500

1,20

Щековая 1200х900

0,70

Щековая 1500х1200

1,00

Щековая 2100х1500

1,20

Экскаваторы c емкостью ковша, м3:


Е = 1

0,75

Е = 2

0,90

Е = 3

1,00

Е = 4

1,10

Е = 6

1,30

Е = 8

1,50


2.1.4 Определение размеров опасной зоны

Расстояние, опасное для людей по разлету отдельных кусков породы при взрывании скважинных зарядов:

,

где: hз- коэффициент заполнения скважины ВВ:

hз = lзар/l =8,2 / 11,5 = 0,71;

hзаб - коэффициент заполнения скважины забойкой, hзаб = 1 при полном заполнении свободной части;

f - коэффициент крепости пород по Протодьяконову, f = 8;

d - диаметр взрываемой скважины, d = 0,134 м;

a - расстояние между скважинами в ряду или между рядами, а= 4,3 м.

Принимаю безопасное расстояние по разлету отдельных кусков 310 м.

Сейсмически безопасное расстояние для зданий и сооружений по колебаниям грунта:

,

где КГ - коэффициент, зависящий от свойств грунта в основании охраняемого здания (табл. 4); КС - коэффициент, зависящий от типа здания (сооружения) и характера застройки (табл. 5); a - коэффициент, зависящий от условий взрывания (табл. 6); Q - масса заряда, Q = 121,3 кг.

Таблица №4 Значения коэффициента КГ

Породы

КГ

Скальные породы плотные, ненарушенные

5

Скальные породы, нарушенные, неглубокий слой мягких грунтов на скальном основании

8

Необводненные песчаные и глинистые грунты, глубиной более 10 м

12

Почвенные обводненные грунты и грунты с высоким уровнем грунтовых вод

15

Водонасыщенные грунты

20


Таблица №5 Значения коэффициента КС

Здания (сооружения)

КС

Одиночные здания и сооружения производственного назначения с железобетонным или металлическим каркасом

1

Одиночные здания высотой не более двух-трех этажей с кирпичными и подобными стенами

0,8

Небольшие жилые поселки

2


Таблица №6 Значения коэффициента a

Условия взрывания

a

Камуфлетный взрыв и взрыв на рыхление

1

Взрыв на выброс

0,8

Взрыв полууглубленного заряда

0,5

Примечания - 1. При размещении заряда в воде или в водонасыщенных грунтах значения коэффициента следует увеличить в 1,5-2 раза. 2. При взрыве наружных зарядов на поверхности земли сейсмическое действие не учитывается.


При одновременных взрывах наружных и скважинных (шпуровых) зарядов рыхления безопасные расстояния (rВ, м) по действию ударных воздушных волн (УВВ) на застекление при взрывании пород VI-VIII групп по классификации СНиП определяют по формуле:


где: QЭ - эквивалентная масса заряда:

QЭ = Р ·lзар·КЗ·N = 12,7 * 8,2 * 0,15 * 6 = 93,7 кг;

где Р - вместимость ВВ в 1 м скважины (шпура), Р = 12,7 кг;

КЗ - коэффициент, зависящий от отношения длины забойки lзаб к диаметру скважины (шпура) d :

lзаб/d

0

5

10

15

20

КЗ

1

0,15

0,02

0,003

0,002

lСВ/d

0

5

10

15

КЗ

1

0,3

0,07

0,02

0,004


2.2 Буровзрывные работы по вскрыше

 

2.1.1 Основные параметры БВР

Величина преодолеваемого сопротивления по подошве уступа (СПП) для одиночного скважинного заряда:


где: P - вместимость 1 м скважины:

P = p× d2×D / 4 = 3,14 * 0,1342 * 0,9 / 4 = 0,0127 т = 12,7 кг;

d - диаметр скважины, d = 0,134 м;

D - плотность заряжания, D = 0,9 кг / м2;

q - удельный расход ВВ, q = 0,5 кг/ м3.

При шарошечном и ударно-вращательном бурении диаметр скважины определяется по формуле

d = dд ·kраз = 0,125 * 1,07 = 0,134 м = 134 мм;

где: dд - диаметр бурового долота, коронки, dд = 0,125 м;раз - коэффициент разбуривания (kраз = 1,05...1,08).

Так как W £ 0,8H, 3,5 < 8, то для массового взрыва будут использоваться вертикальные скважины.

Рассчитанная для вертикальных скважин линия сопротивления по подошве должна удовлетворять условию безопасности:

W ³ H ctga + C,

где a - рабочий угол откоса уступа, градус;³ Z ³ 2 - расстояние от верхней бровки уступа до гусениц бурового станка, м;- призма обрушения уступа:

 = H (ctgaУ - ctga) = 10 * (сtg 650 - ctg 800) = 10 * (0,47 - 0,17) = 10 * 0,3 = 3 м;

aУ - устойчивый угол откоса уступа, aУ = 650;

W ³ 10 * ctg 800 + 3 = 4,7 м; 5>4,7

В связи с тем, что линия сопротивления по подошве удовлетворяет условию безопасности, то применяем вертикальные скважины.

Величина ориентировочногоперебура:

lпер = 0,5×q×W = 0,5 * 0,5 * 5 = 1,3 м;

где: q - удельный расход ВВ, q = 0,5 кг/ м3;

W - сопротивление по подошве уступа, W = 5,0 м.

Длина забойки:

lзаб = (0,6…0,8) * W = 0,7 * 5 = 3,5 м;

где: l - глубина скважины, l = 11,5 м;

lзар - длина заряда, lзар = 7,8 м.

Длина заряда:

lзар = H + lпер - lзаб = 10 + 1,5 - 3,5 = 8,0 м;

где: Н - высота уступа, Н = 10 м;заб - длина забойки, lзаб = 3,5 м;пер - длина перебура, lпер = 1,5 м.

Глубина скважины:

l = H + lпер = 10 + 1,3 = 11,5 м;

где: Н - высота уступа, Н = 10 м;пер - длина перебура, lпер = 1,3 м.

Вес заряда в скважине:

 = q·W·a·H = 0,5 * 5,0 * 4,6 * 10 = 115 кг;

где: W - сопротивление по подошве уступа, W = 5 м;

q - удельный расход ВВ, q = 0,5 кг/ м3;

а - расстояние между скважинами в ряду, а = 4,6 м;

Н - высота уступа, Н = 10 м.

Расстояние между зарядами в ряду:

 = m·W = 0,91 * 5,0 = 4,6 м;

где: m - относительное расстояние между зарядами в ряду, m = 0,8...1,2;

W - сопротивление по подошве уступа, W = 5 м;

Исходя из опыта работы данного предприятия на месторождении принимаем расстояние между рядами скважин равным расстоянию между скважинами в ряду, то есть а = b = 4,6 м. Также принимаем интервал замедления, который составляет 15 - 25 мс.

Величина СПП с учетом взаимодействия зарядов при одновременном взрывании скважин первого ряда и m £ 1,2 равна:

WВЗ = W(1,6 - 0,5m) = 5 * (1,6 - 0,5 * 0,91) = 5,5 м;

принимаем

W = WВЗ = 5,0 м.

Параметры развала:

а) ширина развала взорванной горной массы:

В = 1,6 * Н + (n - 1) * b = 1,6 * 10 + (2 - 1) * 4,6 = 20,6 м;

где: Н - высота уступа, Н = 10 м;

n - количество рядов скважин, n = 2;

b - расстояние между рядами скважин, b = 4,6 м.

б) высота развала взорванной горной массы:

 

Н - высота уступа, Н = 10 м;

n - количество рядов скважин, n = 2;

q - удельный расход ВВ, q = 0,5 кг/ м3.

2.1.2 Буровые работы

Станок СБУ - 100Г ударно - вращательного бурения с диаметром скважины 110 мм. Исходя из опыта работы горного предприятия на данном месторождении коэффициент крепости принимаем равным 4.

Группа пород по СНиП:

F = 2,5(f )0,5 = 2,5 * 40,5 = V группа.

Показатель буримости горных пород:

Пб = 0,07(sсж+ sсдв) + 0,7 r = 0,07 * (60 + 20) + 0,7 * 2,4 = 7,3

где: sсжпредел прочности на сжатие, sсж = 60 МПа;

sсдв - предел прочности породы на сдвиг, sсдв = 20 МПа;

r - плотность породы, r = 2,4 т/м3.

Техническая скорость бурения пневмоударного станка:

 

dK - диаметр коронки, dK = 0,125 м;энергия единичного удара коронки, W = 140 кДж;У - число ударов пневмоударника, nУ = 21 с-1;

Кф - коэффициент, зависящий от формы коронки Кф = 0,9;

Кб - коэффициент, зависящий от показателя трудности бурения:

Пб

10...14

15...17

18...25

Кб

1

1,05

1,1


Сменная производительность бурового станка (м/см) без учета внеплановых простоев:

Пб.см = (Тсм - Тп.з - Тр.п) / ( 1/vб + tВ) = (12 - 0,75) / (0,07 + 0,1) = 66,2 м;

где: Тсм - продолжительность смены, Тсм = 12час;

Тп.з, Тр.п - продолжительность подготовительно-заключительных операций и регламентированных перерывов (Тп.зр.п) = 0,5...1 часа), час;В - вспомогательное время на бурение 1 м скважины (для пневмоударногоtВ = 0,1 час.

Годовая производительность бурового станка:

Пб.год = Пб.см ·nсм ·nр.д = 66,2 * 1 * 299 = 19 793,8 м/год;

где nсм - количество рабочих смен бурстанка в сутки, nсм = 1;р.д - количество рабочих дней станка в году, nр.д = 299.

Выход взорванной горной массы с 1 м скважины:

г.м = H ·a [W + b(Np - 1)] / Np = 10 * 4,6 * (5,0 + 4,6 * (2 - 1)) / 2 = 221м3;


b - расстояние между рядами скважин, b = 4,6 м;

W - сопротивление по подошве уступа, W = 5,0 м;

а - расстояние между скважинами в ряду, а = 4,6 м;

Н - высота уступа, Н = 10 м;

Nр - количество рядов скважин, Nр = 2.

Рабочий парк буровых станков:

Nб.p = Qг.кар /(Пб.год ·Vг.м) = 150 000 / (19 793,8 * 221) = 0,03

где Qг.кар - объем горной массы, подлежащий обуриванию, Qг.кар = 150 000м3.

Принимаем 1 станок СБУ - 100Г для бурения скважин на добыче с диаметром долота 125 мм и типом долота К - 125К.

Инвентарный парк бурстанков:

N б.ин = 1,2 Nб.p = 1,2 * 0,03 = 0,04

Инвентарный парк буровых станков равняется 1.

Объем массового взрыва на рабочем уступе:

м.в = (5…10)Qэ.сут = 10 * 501,7 = 5017 м3

где: Qэ.сут - суточная производительность экскаватора, Qэ.сут = 150 000 / 299 = 501,7 м3/ сутки;

Количество взрываемых скважин за один массовый взрыв:

скв= Vм.в/(l·Vг.м) = 5017 / (11,5 * 221) = 2

За один массовый взрыв требуется взорвать 2 скважины.

Длина взрываемого блока:

б = Nскв ·а/Nр = 2 * 4,6 / 2 = 4,6 м.

2.1.3 Определение размеров опасной зоны

Расстояние, опасное для людей по разлету отдельных кусков породы при взрывании скважинных зарядов:

,

где: hз- коэффициент заполнения скважины ВВ:

hз = lзар/l =8,0 / 11,5 = 0,69;

hзаб - коэффициент заполнения скважины забойкой, hзаб = 1 при полном заполнении свободной части;

f - коэффициент крепости пород по Протодьяконову, f = 4;

d - диаметр взрываемой скважины, d = 0,134 м;

a - расстояние между скважинами в ряду или между рядами, а= 4,6 м.

Принимаю безопасное расстояние по разлету отдельных кусков 450 м.

Сейсмически безопасное расстояние для зданий и сооружений по колебаниям грунта:

,

где КГ - коэффициент, зависящий от свойств грунта в основании охраняемого здания (табл. 3);

КС - коэффициент, зависящий от типа здания (сооружения) и характера застройки (табл. 4);

a - коэффициент, зависящий от условий взрывания (табл. 5);

Q - масса заряда, Q = 115 кг.

При одновременных взрывах наружных и скважинных (шпуровых) зарядов рыхления безопасные расстояния (rВ, м) по действию ударных воздушных волн (УВВ) на застекление при взрывании пород VI-VIII групп по классификации СНиП определяют по формуле:


где: QЭ - эквивалентная масса заряда:

QЭ = Р ·lзар·КЗ·N = 12,7 * 8,0 * 0,15 * 2 = 30,5 кг;

где Р - вместимость ВВ в 1 м скважины (шпура), кг;

КЗ - коэффициент, зависящий от отношения длины забойки lзаб к диаметру скважины (шпура) d :

lзаб/d

0

5

10

15

20

КЗ

1

0,15

0,02

0,003

0,002

lСВ/d

0

5

10

15

20

КЗ

1

0,3

0,07

0,02

0,004

 


3. Выемочно - погрузочные работы

 

3.1 Выбор модели одноковшового экскаватора


По емкости транспортного сосуда:

E = Vтр / nк = 7,5 / 4 = 1,87 м3;

где E - емкость ковша экскаватора, м3;тр - геометрическая емкость транспортного сосуда,Vтр = 7,5 м3;к - рекомендуемое количество ковшей, разгружаемых в одно транспортное средство (для автосамосвалов nк = 3...5(8).

Принимаем экскаватор ЭО - 5124 с емкостью ковша 2 м3 и продолжительностью цикла 20 секунд. Для транспортирования выбираем автосамосвал КрАЗ - 256Б.

3.2 Расчет производительности одноковшового экскаватора


Сменная норма выработки одноковшового экскаватора при погрузке в автосамосвалы:

м3/ смену

где: Кн - коэффициент наполнения ковша, Кн = 0,9;

Кр- коэффициентразрыхления породы, Кр = 1,5;

Тсм - продолжительность смены,Тсм = 720 мин;

Тп.з - время на выполнение подготовительно-заключительных операций,Тп.з = 35 мин;

Тл.н - время на личные надобности, Тл.н = 10 мин;к- количество ковшей для загрузки транспортного сосуда:

nк= q* Кр/(Е* Кн * r) = 12 * 1,5 / (2 * 0,9 * 2,55) = 3,92 4 ковша;

q - грузоподъемность автосамосвала, q = 12 т;

r- средняя плотность породы,r = 2,55 т/м3;ц - число циклов экскавации в минуту:ц = 60/tц = 60 / 20 = 3 цикла в минуту;ц - основное время цикла экскавации 20 с;

Тп - время погрузки одного автосамосвала:

Тп = tц* (nк - 0,5)/ 60 = 20 * (4 - 0,5) / 60 = 1,16 мин

Ту - время установки автосамосвала под погрузкуТу = 0,3мин;

Эi - поправочный коэффициент на условия работы, Эi = 0,82.

Расчетное количество экскаваторов

Nэ.р = (Пк * Кн.п) / (Нэ * Ки.в) = (501,7 * 1,1) / (1819,6 * 0,9) = 0,34

где Пк - производительность карьера в смену:

Пк = Qгод / (Nр.д. * nсм) = 300 000 / (299 * 2) = 501,7 м3 / смену;

Кн.п- коэффициент неравномерности подачи транспорта под погрузку, Кн.п= 1,1;

Ки.в- коэффициент использования оборудования завода во времени, Ки.в = 0,9;

Нэ - сменная производительность экскаватора, Нэ = 1819,6 м3 / смену.

В качестве основного выемочно - погрузочного оборудования принимаем 1 экскаватор ЭО - 5124 с Е = 2 м3.

Количество резервных (подменных) экскаваторов

Nэ.и = Nэ.р* ( Д - а) /а = 1 *(299 - 224) / 224 = 0,33

где:

Д - количество инвентарных дней работы экскаватора в году Д = 299 дней;

а - число полных рабочих дней в году:

а = (Д * Рц) /(Рц + п * T ) =(299 * 15 000) / (15 000 + 248 * 20,4) = 224 дня;

Рц - межремонтный цикл, Рц = 15 000 маш.-ч;

п - количество суток простоев в ремонтах на протяжении полного ремонтного цикла, n = 248;- количество часов работы экскаватора в сутки:

Т = 24 * 0,85 = 20,4 ч.

В качестве резервного выемочно - погрузочного оборудования принимаем 1 экскаватор ЭО - 5124 с Е = 2 м3.

Исходя из расчетов на выемочно - погрузочных работах требуется один основной и один резервный экскаватор ЭО - 5124 с Е = 2 м3 и продолжительностью рабочего цикла 20 секунд.

4. Транспортирование горной массы


Для транспортирования горной массы используется автосамосвал КрАЗ - 256Б с грузоподъемностью 12 тонн и емкостью кузова 7,5 м3.

Автодорога имеют двухскатный профиль с уклоном 10 - 40 ‰. На повороте автодорога односкатная с наклоном в сторону закругления для лучшего вхождения в поворот. Постоянные автодороги имеют щебеночное покрытие с просыпкой более мелкой фракцией. Внутрикарьерные автодороги не имеют специализированного покрытия, так как полезное ископаемое представлено скальными породами. Так как постоянная автодорога проходит вдоль верхней бровки уступа, то для безопасности произведена отсыпка предохранительного вала, высота которого составляет половину диаметра колеса автосамосвала КрАЗ - 256Б. Коэффициент использования автомобильного транспорта составляет 0,8 - 0,9. Руководящий уклон на подъемах составляет 80 ‰.

Техническая производительность автосамосвала:

Па = 60 Vн / Тр = 60 * 4,95 / 10,2 = 29,1 м3/ час;

где:н - объем (в плотном теле) горной массы в кузове автосамосвала;

Vн = Е·nк·Кнр = 1,5 * 5,5 * 0,9 / 1,5 = 4,95 м3;

nк - количество ковшей для загрузки автосамосвала:

nк= qа·Кр/(ЕКнr) = 12 * 1,5 / (1,5 * 0,9 * 2,55) = 5,2 -по грузоподъемности,к= Vа·Кш/(ЕКн) = 7,5 * 1,05 / (1,5 * 0,9) = 5,8 - по объему кузова,

принимаем для загрузки автосамосвала 5,5 ковшей.а - грузоподъемность автосамосвала,т;а - геометрический объем кузова, м3;

Кн - коэффициент наполнения ковша, Кн = 0,9;

Кр-коэффициент разрыхления горных пород, Кр = 1,5 ;

Кш = 1…1,15 - коэффициент загрузки кузова с "шапкой";

Тр - продолжительность рейса автосамосвала:

Тр = 60lг/vг + 60lп /vп + tр + tп + tм + tож + tпр= 60 * 1,5 / 50 + 60 * 1,5 / 70 + 2,14 + 3 + 1 + 1= 10,2 мин.

lг - расстояние транспортирования груженногоавтосамосвала, lг = 1,5 км;п - расстояние транспортирования порожнегоавтосамосвала,lп= 1,5 км;г - средняя скорость движения груженого автосамосвала,vг = 50 км/ч;п - средняя скорость движения порожнего автосамосвала,vп = 70 км/ч;р - время разгрузки автосамосвала (принимается равным 1 мин);п- время погрузки автосамосвала:

tп = (tц+ tц.д) * (nп - 0,5) / 60 = (20 + 5,7) * (5,5 - 0,5) / 60 = 2,14 мин;

tц - основное время цикла экскавации, tц = 20 с;ц.д - дополнительное время на цикл экскавации в случае селективной выемки ПИ или при содержании негабарита в горной массе более 10%, tц.д = 5,7 с;м, tож - время соответственно маневров и ожидания,tм + tож = 3 мин;пр - время простоев в течение рейса tпр = 1 мин).

Фактическая грузоподъемность автосамосвала:

qн = nк* Е * Кн * r / Кр = 5,5 * 1,5 * 0,9 * 2,55 / 1,5 = 12,6 тонн;

где:к - количество ковшей для загрузки автосамосвала, nк = 5,5;

Е - емкость ковша экскаватора, Е = 1,5 м3;

Кн - коэффициент наполнения ковша, Кн = 0,9;

Кр-коэффициент разрыхления горных пород, Кр = 1,5;

r - плотность полезного ископаемого, r = 2,55 т/ м3;

Коэффициент использования грузоподъемности автосамосвала

Кгр = qн /qа = 12,6 / 12 = 1,05 ≤ 1,05 .

Необходимый рабочий парк автосамосвалов:

Nр.а= Пк.см·kн /(Па·Тсм·Ки) = 501,7 * 1,1 / (29,1 * 12 * 0,85) = 1,86

где:

Пк.см - среднегодовая сменная производительность карьера по транспортируемым породам:

Пк.см = 300 000 /(299*2) = 501,7 м3;

kн - коэффициент неравномерности перевозок, для автотранспорта kн= 1,1;

Тсм - продолжительность смены,Тсм = 12 ч;

Ки - коэффициент использования автосамосвалов во времени, при восьмичасовой рабочей смене Ки= 0,85.

Инвентарный парк автосамосвалов с округлением до целого числа автомашин:

Nи.а =Nр.а / Кт.г = 1,86 / 0,8 = 2,3.

Для транспортирования горной массы принимаем 3 автосамосвала КрАЗ - 256Б.

где:

Кт.г - коэффициент технической готовности (при работе автосамосвала в две смены - 0,8).

Величина безопасного интервала между движущимися друг за другом автосамосвалами:

Lб = lо +la = 7,8 + 8,1 = 16 м.

где:o - остановочный путь автосамосвала:

lо = vн·tп + 54Кэ.т·vн2/(1000ψ·ω ± i) = 50 * 1,65 + 54 * 1,3 * 2500 / (1000 * 0,75 * 30 - 80) = 7,8 м.

vн - начальная скорость торможения, vн = 50 км/ч;

tп= tр + tпр + 0,5tу= 0,8 + 0,6 + 0,5 * 0,5 = 1,65 с

расчетное время подготовки тормоза к действию;р = 0,8 с - средняя (расчетная) продолжительность реакции водителя;пр - время срабатывания тормозного привода для пневматического привода - 0,6 с;у ≈ 0,5 с - время увеличения тормозной силы;

Кэ.т - коэффициент эффективности торможения: для грузовых автомобилей (при ψ>0,4 Кэ.т= 1,3…1,4);

ψ - коэффициент сцепления - отношение максимальной касательной силы тяги автомобиля к его сцепному весу (ψ = 0,2…0,25 для наиболее неблагоприятных условий, мокрое дорожное покрытие);

ω - удельное основное сопротивление автосамосвала на прямом горизонтальном пути, ω = 30 Н/кН;- удельное сопротивление движению от уклона пути, которое численно равно уклону пути (‰),i = 80 Н/кН.a - длина автосамосвала,la = 8,1 м.

Пропускная способность автодороги (автосамосвалов в час) при движении в одном направлении:

Nдор = 1000 v·kн·n/Lб = 1000 * 50 * 0,65 * 1 / 16 = 2031,2 автосамосвалов / час;

где: v - расчетная скорость движения автосамосвалов, v = 50 км/ч;н- коэффициент неравномерности движения, kн = 0,5…0,8;- количество полос движения в одном направлении, n = 1;б - величина безопасного интервала между движущимися друг за другом автосамосвалами, Lб = 16 м.

Провозная способность автодороги:

Мдор = Nдор·qн = 2031,2 * 12,6 = 25593,1 тонн / час.

Коэффициент использования пробега

β = lг/(lг + lп) = 1,5 / (1,5 + 1,5) = 0,5;

Средний пробег одного автосамосвала на карьере:

за смену (Lсм, км):

Lсм = 60Тсм·lг·Ки/(β·Тр) = 60 * 12 * 1,5 * 0,85 / (0,5 * 10,2) = 180 км;

где: Тсм - продолжительность смены, Тсм = 12 ч;г - расстояние транспортирования груженного автосамосвала, lг = 1,5 км;

Ки - коэффициент использования автосамосвала во времени, Ки = 0,85;

за год (Lгод, км)

год = 60Тсм·lг·Ки·nр.д·nсм /(β·Тр) = 60 * 12 *1,5 * 0,85 * 299 * 2 / (0,5 * 10,2) = 107 640 км

где: Тсм - продолжительность смены, Тсм = 12 ч;г - расстояние транспортирования груженного автосамосвала, lг = 1,5 км;

Ки - коэффициент использования автосамосвала во времени, Ки = 0,85;

nр.д·, nсм - количество рабочих дней в году и смен в сутки.

Годовой пробег всех автосамосвалов:

∑Lгод = lг·Пг /(β·Vн) = 1,5 * 300 000 / ( 0,5 * 4,95) = 181 818, 2 км

где: Пг - годовой объем перевозок в карьере (грузооборот),Пг = 300 000 м3;г - расстояние транспортирования груженного автосамосвала, lг = 1,5 км;н - объем (в плотном теле) горной массы в кузове автосамосвала, Vн = 4,95 м3.

Годовой расход дизельного топлива при работе автосамосвалов:

дт = qдт ∑Lгод /100 = 44 * 181 818,2 / 100 = 80 000 кг = 80 тонн.

где: qдт - удельный расход топлива на 100 км пробега, qдт = 44 кг.

Исходя из расчетов для транспортирования взорванной горной массы требуется два основных и один резервный автосамосвал КрАЗ - 256Б.

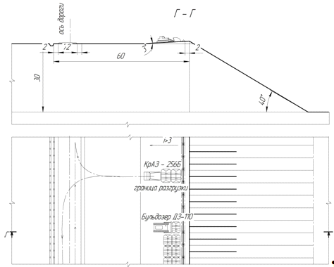
5. Отвальные работы


Сменная производительность бульдозеров в плотном теле при отвалообразовании вскрышных пород с перемещением во внешний отвал:

Пб = 3600 * Тсм * Vб * Ку * Ко * Кп * Кв / (Кр * Тц) =3600 * 12 * 3,2 * 1 * 1 * 0,7 * 0,75 / (1,5 * 215) = 225 м3/ смену;

где: Тсм - продолжительность рабочей смены, Тсм= 12ч;б - объем грунта в разрыхленном состоянии, перемещаемый отвалом бульдозера:

б = l·h·a /2 = 3,22 * 1,18 * 1,7 / 2 = 3,2 м3;

 - длина отвала бульдозера, l = 3,22 м;

h - высота отвала бульдозера, h = 1,18 м;

а - ширина призмы перемещаемого грунта:

 = h/tgj = 1,18 / 0,7 = 1,7 м;

j - угол естественного откоса грунта (j = 30…40°);

Ку - коэффициент, учитывающий уклон на участке работы бульдозера:

Уклон, %

±0

+10

+20

>20

-10

-20 и более

Ку

1

0,95

0,8

0,6

1,1

1,3


Ко - коэффициент, учитывающий увеличение производительности бульдозераКо = 1; Кп - коэффициент, учитывающий потери породы в процессе ее перемещения:

Кп = 1 - l2 * ε = 1 - 50 * 0,006 = 0,7

ε = 0,004…0,008 - коэффициент, учитывающий связность пород (большее значение для рыхлых сухих пород);

Кв - коэффициент использования бульдозера во временипри перемещении взорванной скальной породыКв = 0,75;

Кр - коэффициент разрыхления грунта, Кр = 1,5 ;

Тц - продолжительность одного цикла:

Тц = l1/v1 + l2/v2 + (l1 + l2)/v3 + tп + 2tр =13 / 0,25 + 50 / 0,7 + (13 + 50) / 1 + 9 + 2 * 10 = 215 секунд

где: l1 - длина пути формирования призмы волочения,l1 = 13 м;

v1 - скорость движения бульдозера при наборе грунта, v1 = 0,25м/с;

l2 - расстояние транспортирования грунта, l2 = 50 м;;

v2 - скорость движения бульдозера с грунтом, v2 = 0,7м/с;

v3 - скорость холостого (обратного) хода, v3 = 1 м/с;

tп - время переключения скоростей, tп = 9с;

tр - время одного разворота бульдозера, tр = 10с.

Удельная приемная способность отвального участка:

о = Vа·Ккр/ ba = 7,5 * 2 / 2,64 = 5,7 м3;

где: Vа - вместимость кузова автосамосвала, м3;

Ккр - коэффициент кратности разгрузки автосамосвала по ширине кузова, Ккр = 1…3;

ba - ширина автосамосвала, ba= 2,64 м.

Длина фронта отвального участка по приемной способности отвала:

L'о.у = Qк.см /wо = 334,4 / 5,7 = 58,6 м

где Qк.см - сменная производительность карьера по вскрыше:

к.см = Qк / (Nр.д. * nсм) = 200 000 / (299 * 2) = 334,4 м3/ смену;

Длина возможного отвального участка по условию разгрузки автосамосвалов:

''о.у = B·Na·tр.м /Tр =25 * 2 * 1,5 / 10,2 = 7,35 м

где: В - ширина полосы, занимаемой автосамосвалом при разгрузке и маневрировании,В = 25 м;

Na - количество автосамосвалов, работающих на отвальном участке,Na = 2;

tр.м - продолжительность разгрузки и маневрирования автосамосвала на отвале, tр.м = 1…2 мин;

Tр - продолжительность одного рейса автосамосвала, мин.

Длину отвального участка принимаем 58,6 метров.

Общая длина отвального фронта:

о.ф = (2,5…3)Lо.у = 3 * 58,6 = 175,8 м.

Объем бульдозерных работ на отвале:

б.о = Кзав * Qк.см = 0,6 * 334,4 = 200,6 м3

где: Кзав - коэффициент заваленности (доля породы, остающейся на площадке и подлежащей планировке бульдозером), Кзав = 0,5…0,7.

Количество рабочих бульдозеров на отвале:

б.о = Qб.о / Пб = 200,6 / 225 = 0,89

При отвалообразовании принимаем 1 бульдозер ДЗ - 110.

Площадь, занимаемая отвалом при равнинном рельефе местности:

o = V·К'р/(Н1 +η·) = 200 000 * 1,1 / (25 + 0,6) = 8 593,7 м2;

где: V - общий объем породы, размещаемой в отвале, V = 200 000 м3;

К'р - остаточный коэффициент разрыхления породы в отвале К'р = 1,1;

Н1, Н2 - высота первого и второго ярусов отвала, Н1 = Н2= 25 м;

η = 0,4…0,8 - коэффициент заполнения площади вторым ярусом.

Производительность бульдозеров при планировочных работах:

Ппл = 3600ТсмL (lsina - c) Kв / [n (L/v + tр)] = 3600 * 12 * 20 * (3,22 * 1 - 0,4) * 0,85 / (1,5 * (20 / 0,7 + 9)) = 36 478 м2/ смену

где: L - длина планируемого участка, L = 20 м;

a- угол установки отвала бульдозера к направлению его движения,a = 900;

с - ширина перекрытия смежных проходов, с=0,3…0,5 м;

п - число проходов бульдозера по одному месту,п = 1…2;

v - средняя скорость движения бульдозера при планировке, соответствующая обычно первой или второй передаче трактора, v= 0,7 м/с;

tр - время, затрачиваемое на развороты при каждом проходе, tр= 9 с;

Кв - коэффициент использования бульдозера во времени, Кв = 0,85;

6. Взаимосвязь процессов


Данное месторождение представлено скальным полезным ископаемым - песчаники, коэффициент крепости по Протодьяконову - 8. Вскрыша представлена мягкими породами - ПРГ, скальными - сланцы, коэффициент крепости которых составляет 4. Исходя из этих условий скальную вскрышу и полезное ископаемое рыхлят буровзрывным способом. Для бурения применяется станок ударно - вращательного типа СБУ -100Г с диаметром долота 125 мм. Тип долота К - 105К. максимальная глубина бурения - 35 м. Угол наклона скважин составляет: 900; 750; 600. Для бурения применяется один основной и один резервный станок СБУ - 100Г. Показатель буримости станка - 9,8. Техническая скорость бурения -10,4 м/ час, сменная производительность 57,4 м/ смену.

В качестве взрывчатоговещетва применяют граммонит 79/21. Если скважины обводненные, то применяют гранипор. Удельный расход взрывчатого вещества по полезному ископаемому - 0,6 кг/ м3; по вскрыше - 0,5 кг/ м3. Длина взрываемого блока составляет 9,6 метров.

В качестве выемочно - погрузочного оборудования применяется одноковшовый гидравлический экскаватор ЭО - 5124 с емкостью ковша 2 м3 и продолжительностью рабочего цикла 20 с. Производительность ЭО - 5124 составляет 1819,6 м3/ смену. Погрузка взорванной горной массы осуществляется 1 экскаватором ЭО - 5124. В качестве резервного 1 экскаватор ЭО - 5124.

Транспортировка взорванной горной массы от забоя до дробильно - сортировочного завода (при транспортировке полезного ископаемого) и до отвала (транспортировка вскрыши) осуществляется автосамосвалами КрАЗ - 256Б. Техническая производительность автосамосвала составляет 29,1 м3/ час. Грузоподъемность автосамосвала 12 тонн. Для транспортировки взорванной горной массы используется 2 автосамосвала и один автосамосвал резервный. Годовой пробег всех автосамосвалов составляет 181 818, 2 км. Годовой расход дизельного топлива - 80 тонн.



Заключение


В данной курсовой работы произведены расчеты для выбора горного обрудования, которое является более эффективным и экономичным для данных горно - геологических условий. Мною были закреплены навыки проектирования, а также расчету комплекса задач по выбору оборудования. Все исходные данные принимались на основе прохождения первой производственной практики применительно к условиям Родионово - Несветайского месторождения песчаников.

Список литературы


1. Ржевский В.В. Открытые горные работы. Часть 1. - М.: Недра, 1985

2. Мельников Н.В. Краткий справочник по открытым горным работам

3. Нормативный справочник по буровзрывным работам. - М.: Недра, 1986

4. Единые правила безопасности при взрывных работах.

. Единые правила безопасности при разработке месторождений полезных ископаемых открытым способом.

. Открытые горные работы: Справочник /К.Н.Трубецкой, М.Г.Потапов, К.Е.Виницкий, Н.Н.Мельников и др. - М.: Горное бюро, 1994. - 590 с.

. Единые нормы выработки на открытые горные работы для предприятий горнодобывающей промышленности. Экскавация и транспортирование.

. Циперфин И.М., Штейн В.Д. Карьерный автомобильный транспорт: Справочник.- М.: Недра, 1992.- 415 с.

. Гилевич Г.П. Справочное руководство по составлению планов развития горных работ на карьерах по добыче сырья для производства строительных материалов.- М.: Недра, 1988. - 142 с.

. Майминд В.Я., Арсентьев А.И. Скреперные комплексы на открытых горных разработках. М.: Недра, 1976.-204 с.

. Симкин Б.А., Кутузов Б.Н., Буткин В.Д. Справочник по бурению на карьерах.- М.: Недра, 1990. - 224 с.

. ЕНиР : Единые нормы и расценки на строительные, монтажные и ремонтно-строительные работы.- М.; 1988.- Сб. Е-2 :Землянные работы. Вып. 1 : Механизированные и ручные землянные работы.- 1988.- 224 с.

. ЕНиР : Единые нормы и расценки на строительные, монтажные и ремонтно-строительные работы.- М.; 1990.- Сб. Е-2 :Землянные работы. Вып. 3 : Буровзрывные работы.- 1990.- 94 с.

. Горлов Ю.В. Расчеты производственных процессов на карьерах: Учебное пособие. - Новочеркасск: ЮРГТУ, 2004. - 55 с.

Приложение А


Рис. А.1 - Бульдозерное отвалообразование с применением автотранспорта



Рис. А.2 - Паспорт экскаваторного забоя по скальной вскрыше



Рис. А.3 - Паспорт экскаваторного забоя по полезному ископаемому

Рис. А.4 - Схема коммутации взрывной сети по полезному ископаемому

Рис. А.5 - Схема коммутации взрывной сети по вскрышным породам

Рис.А.6 - Паспорт экскаваторного забоя по мягкой вскрыше

Похожие работы на - Процессы открытых горных работ

 

Не нашли материал для своей работы?
Поможем написать уникальную работу
Без плагиата!
Без нейросетей!