|
Наименование
нагрузки
|
qn кН/м2
|
q кН/м2
|
|
|
1. Гравийная
защита
|
0,3
|
1,3
|
0,39
|
|
2. Гидроизоляц.
ковер3-слойный
|
0,15
|
1,3
|
0,195
|
|
3.
Утеплитель-жесткие минераловатные плиты 0,5
|
1,3
|
0,65
|
|
|
4.
Пароизоляция-1 слой рубероида
|
0,05
|
1,3
|
0,065
|
|
5.
Железобетонные плиты из тяжелого бетона размерами 1,61,11,76
|
|
|
|
|
6. Стропильные
фермы
|
0,2
|
1,05
|
0,21
|
|
7. Связи
покрытия
|
0,04
|
1,05
|
0,042
|
|
Всего:
|
3,312
|
Узловая сосредоточенная нагрузка, приложенная к верхнему
поясу фермы определяется по формуле:
где
- коэффициент надежности по
ответственности и для нормального уровня ответственности принимается равным 1;
B - шаг фермы, равный 6 м.
Опорные реакции от нагрузки:
.2.2
Снеговая нагрузка
Узловые снеговые нагрузки, действующие на ферму, определяются
по формуле:
Sq=3.2
µ=1e=1
Снеговая нагрузка к ферме принимается в 2 вариантах:
) Равномерный снег на всем пролете:
1.3
Определение расчетных усилий в элементах фермы
Таблица 2 - Расчетные усилия в элементах фермы
1.4
Подбор сечений элементов фермы
Элементы фермы проектируем из стали С245.
1.4.1
Подбор сечений элементов верхнего пояса фермы
Сечения подбираем по максимальному усилию:
Зададимся начальной гибкостью
.
По таблице 72/1/ определим коэффициент продольного изгиба
центрально-сжатых элементов:
Требуемую площадь сечения определим по формуле:
где
- коэффициент условий работы для
элементов сварных ферм.
Для одного уголка требуемая площадь:
Для элементов из спаренных уголков предварительно назначаем
толщину узловых фасонок по максимальному усилию:
Определим радиусы инерции сечения:
По сортаменту подбираем уголок с параметрами:
Проведем проверку устойчивости. Вычислим гибкости относительно
осям сечения:
Необходимо проверить выполнение условия:
Необходимо выполнение условия:
Запас прочности составляет:
1.4.2
Подбор сечений элементов нижнего пояса фермы
Сечение подбирается из условия обеспечения прочности по
нормальным напряжениям:
Следовательно, из условия требуемая прочность сечения определим по
формуле:
Для одного уголка требуемая площадь:
Для элементов из спаренных уголков предварительно назначаем
толщину узловых фасонок по максимальному усилию:
По требуемой площади из сортамента подбираем уголок с параметрами:
Определим максимальную гибкость:
Гибкость ограничивается в зависимости от режима работы крана - до
6К включительно
Проверка прочности по нормальным напряжениям:
Запас прочности составляет:
.4.3
Подбор сечения опорного раскоса
Сечения подбираем по максимальному усилию в опорном раскосе:
Зададимся начальной гибкостью
.
По таблице 72/1/ определим коэффициент продольного изгиба
центрально-сжатых элементов:
Требуемую площадь сечения определим по формуле:
Для одного уголка требуемая площадь:
Для элементов из спаренных уголков предварительно назначаем
толщину узловых фасонок по максимальному усилию:
Определим радиусы инерции сечения:
По сортаменту подбираем уголок с параметрами:
Проведем проверку устойчивости. Вычислим гибкости относительно
осям сечения:
Необходимо проверить выполнение условия:

Запас прочности составляет:
1.4.4
Подбор сечений сжатых промежуточных элементов решетки
Сжатые промежуточные раскосы.
. Раскос Р - III:
Зададимся начальной гибкостью
.
По таблице 72/1/ определим коэффициент продольного изгиба
центрально-сжатых элементов:
Требуемую площадь сечения определим по формуле:
Для одного уголка требуемая площадь:
Для элементов из спаренных уголков предварительно назначаем
толщину узловых фасонок по максимальному усилию:
Определим радиусы инерции сечения:
По сортаменту подбираем уголок с параметрами:
Проведем проверку устойчивости. Вычислим гибкости относительно
осям сечения:
Необходимо проверить выполнение условия:
Необходимо выполнение условия:
Запас прочности составляет:
Зададимся начальной гибкостью
.
Для выбора расчетного сечения углового сварного шва, сравним
произведения:
Так как 17,48<19,35, расчетным сечением углового сварного шва
является по металлу границы сплавления.
Проверку прочности сварного шва на срез выполним по формуле:
где
- суммарная реакция опоры в узле равная:
Таким образом, определим:
ферма каркас здание нагрузка
Прочность сварного шва на срез обеспечена.
Расчет длины сварных швов для опорного раскоса Р-I:
Так как данный расчет был проведен ранее в К-образном узле и
толщины фасонок совпадают, принимаем те же конструктивные длины сварных швов:
Расчет длины сварных швов для центральной стойки С - II:
1) По перу:
Максимальный и минимальный (определяемый по таблице 38/1/) катет
сварного шва:
Принимаем угловой шов с неравными катетами
и
По таблице 34/1/ определим коэффициенты:
Коэффициенты условий работы сварного шва равны
Для выбора расчетного сечения углового сварного шва, сравним
произведения:
Так как 17.48<19.35, расчетным сечением углового сварного шва
является по металлу границы сплавления.
Конструктивную длину сварного шва по перу определим по формуле:
Принимаем конструктивную длину сварного шва
) По обушку:
Принимаем катет сварного шва
Конструктивную длину сварного шва по обушку определим по формуле:
Принимаем конструктивную длину сварного шва 
1) По перу:
Максимальный и минимальный (определяемый по таблице 38/1/) катет
сварного шва для данного раскоса:
Принимаем катет шва
.
По таблице 34/1/ определим коэффициенты:
Коэффициенты условий работы сварного шва равны
Для выбора расчетного сечения углового сварного шва, сравним
произведения:
Так как 17.48<19.35, расчетным сечением углового сварного шва
является по металлу границы сплавления.
Конструктивную длину сварного шва по перу определим по формуле:
Принимаем конструктивную длину сварного шва
) По обушку:
Принимаем катет сварного шва
Конструктивную длину сварного шва по обушку определим по формуле:
Размеры горизонтальных накладок:
Нормальное напряжение в ослабленном сечении, в которое входят
горизонтальные накладки и участок фасонки высотой, равной 2bполки, определим по формуле:
Продольные усилия для расчета присоединения горизонтальных
накладок определим по формуле:
Максимальный и минимальный (определяемый по таблице 38/1/) катет
сварного шва:
Принимаем катет шва
.
Горизонтальные накладки присоединяются к уголкам нижнего пояса
сварным монтажным швом при помощи ручной сварки в нижнем положении. Выбираем
электроды марки Э42А. Расчетное сопротивлением угловых швов срезу по металлу
шва - Rwf =18 кН/см2. Расчетное
сопротивление угловых сварных швов по металлу границе сплавления определим по
таблице 3/1/:
где
- временное сопротивление стали разрыву
принимаемое по таблице 51/1/.
По таблице 34/1/ определим коэффициенты:
Коэффициенты условий работы сварного шва равны
Для выбора расчетного сечения углового сварного шва, сравним
произведения:
Так как 12,6<16,65, расчетным сечением углового сварного шва
является по металлу сварного шва.
Конструктивную длину сварного шва определим по формуле:
.
Сварные швы рассчитываются на наибольшее из двух значений усилий:
где
- расчетное усилие в панели нижнего пояса.
) По перу:
Максимальный и минимальный (определяемый по таблице 38/1/) катет
сварного шва:
Принимаем катет сварного шва
По таблице 34/1/ определим коэффициенты:
Коэффициенты условий работы сварного шва равны
Для выбора расчетного сечения углового сварного шва, сравним
произведения:
Так как 17.48<19.35, расчетным сечением углового сварного шва
является по металлу границы сплавления.
Конструктивную длину сварного шва по перу определим по формуле:
) По обушку:
Принимаем катет сварного шва
Конструктивную длину сварного шва по обушку определим по формуле:
Вертикальные накладки присоединяются к полуфасонкам сварным
монтажным швом при помощи ручной сварки в нижнем положении. Выбираем электроды
марки Э42А.
Толщину вертикальных накладок принимаем не менее толщины фасонки:
Принимаем катет сварного шва
По таблице 34/1/ определим коэффициенты:
Коэффициенты условий работы сварного шва равны
Для выбора расчетного сечения углового сварного шва, сравним
произведения:

Так как 12.6 <16.65, расчетным сечением углового сварного шва
является по металлу сварного шва.
Длину сварного шва вычислим по формуле:
Исходя из удобства размещения болтов, присоединяющих 2 вертикальные
накладки к полуфасонкам, принимаем высоту вертикальной накладки - 32 см.
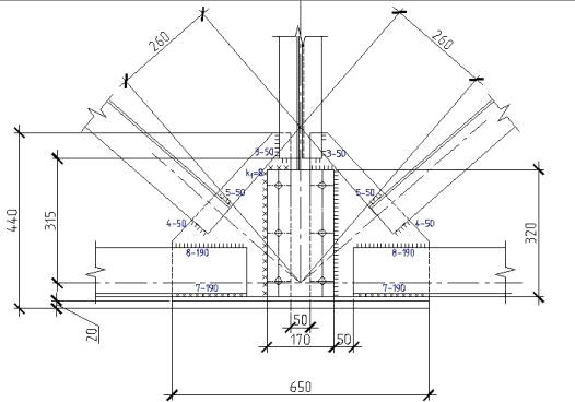
Рисунок 6 - Укрупненный узел нижнего пояса
2.
Расчет поперечной рамы каркаса здания
2.1
Компоновка поперечной рамы
Определим высоту между отметкой головки кранового рельса и нижнем
поясом фермы, учитывая, что компенсация прогиба
и вертикальный зазор безопасности равен 100 мм.
где
- габарит крана на опоре, который
принимается по приложению 1/2/.
Вычислим высоту нижнего пояса фермы, округляя полученное значение
в большую сторону до кратного 0,6 м, за счет увеличения H1:
Тогда отметка головки кранового рельса будет равна:
Высота верхней части колонны определяется по формуле:
где
- высота рельса крана и подкрановой балки
соответственно.
Высоту нижней части колонны вычислим по формуле:
где
- это глубина анкеровки колонны, принятая
0,6 м.
Необходимо найти отметку парапета, определяемую по формуле:
Найдем отметку конька покрытия:
где
- толщина кровли, включающая в себя
утеплитель, гравийную защиту, гидроизоляцию, пароизоляцию, железобетонную
кровельную панель, равная соответственно:
Так как режим работы крана <7К, H<18 м, шаг ферм 6 м и грузоподъемность крана Q=50т<100т, то привязка:
Ширина верхней части колонны равна:
Привязка крана к оси колонны:
где
- размер хвостовика крана, определяемый в
приложении 1/2/.
Ширина нижней части колонны определится по формуле:
2.2
Определение нагрузок на поперечную раму каркаса
2.2.1
Постоянная нагрузка
Погонная равномерно распределенная нагрузка на ригель
поперечной рамы определяется по формуле:
Необходимо учесть собственный вес отдельных частей колонны.
Собственный вес верхней части колонны определим по формуле:
где
- расход стали на 1 м2 площади
здания, приходящейся на несущие колонны каркаса, определяемый по таблице
12.1/2/ и принятый 25 кг/м2.
Собственный вес нижней части колонны определим по формуле:
2.2.2
Крановая нагрузка
При расчете поперечной рамы, учитываем нагрузки от двух
сближающихся кранов. Максимальное давление от колес двух кранов на
рассчитываемую стойку рамы определяется по формуле:
где
- коэффициент сочетания, учитывающий
вероятность появления максимальной крановой нагрузки от двух кранов,
принимаемый
Собственный вес подкрановой балки определяется по формуле:
Ординаты линии влияния под каждым колесом:
Коэффициент надежности по нагрузке для крановой нагрузки:
Таким образом, определим максимальное давление от колес на стойку
рамы:
Нормативное минимальное давление на колесо крана определим по
формуле:
где
- грузоподъемность крана;
- вес крана;
- число колес с одной стороны крана.
Минимальное давление крана на противоположную стойку определяется
по формуле:
Максимальный изгибающий момент в месте уступа определяется по
формуле:
где
- принимаем равной:
Тогда:
Минимальный изгибающий момент в месте уступа определяется по формуле:
Необходимо определить горизонтальную нагрузку от торможения
тележки крана с грузом, прикладываемую в уровне верха подкрановой конструкции,
либо к левой, либо к правой стойке.
Расчетное значение горизонтальной нагрузки:
- горизонтальная нормативная нагрузка на 1 колесо моста крана,
определяемая по формуле:
где
- собственный вес тележки крана,
принимаемый по приложению 1/2/.
Расчетное значение горизонтальное нагрузки тогда будет равно:
2.2.3
Снеговая нагрузка
Снеговую нагрузку, прикладываемую к ригелю рамы в виде
равномерно распределенной погонной нагрузки, для малоуклонных зданий определим
по формуле:
2.2.4
Ветровая нагрузка
Нормативная ветровая нагрузка вычисляется по формуле:
Так как высота до низа стропильной фермы меньше 36 м, а так же
отношение этой высоты к пролету меньше 1.5, пульсационную составляющую можем не
учитывать.
Тогда вычислим среднюю составляющую нормативной нагрузки по
формуле:
где
- нормативное давление ветра,
определяемое по таблице 5 /3/, равное 0.3 кПа;
- коэффициент аэродинамичности, определяемый по приложению 4 /3/
для нагрузки от внешнего давления;
- коэффициент, учитывающий увеличение ветрового давления при
удалении от поверхности земли на высоту (z), определяемый по таблице 6 /3/ в зависимости от типа местности
(В данном проекте используется тип местности - B).
При внешнем давлении ветра на вертикальные стены одноэтажного
здания:
Определим коэффициенты
для высот на уровне 5 м, 10 м, H=12.6 м, Нк=16.7 м:
Определим
на каждом уровне с соответствующими
коэффициентами
:
Погонная ветровая нагрузка на стойке поперечной рамы промышленного
здания для различных сечений определяется по формуле:
где
- коэффициент надежности по нагрузке,
который для ветровой нагрузки равен
.
Определим погонную ветровую нагрузку для своих сечений:
Для удобства выполнения статического расчета поперечной рамы
реальная эпюра ветрового давления заменяется в пределах высоты стойки рамы на
эквивалентную равномерно распределенную нагрузку
. Для этого разобьем реальную эпюру ветрового давления на фигуры с
известными центрами тяжести и площадями(равнодействующими). Затем определим
изгибающий момент в заделке консольной стойки по формуле:
Изгибающий момент в заделке консольной стойки длиной
при действии эквивалентной равномерно
распределенной нагрузке:
Из условия равенства этих изгибающих моментов (
) найдем
:
Эквивалентная равномерно распределенная нагрузка, действующая на
правой стойке, где действует пассивное ветровое давление, найдем по формуле:
Ветровое давление выше отметки «H» заменяется сосредоточенной нагрузкой, равной равнодействующей
эпюры реального ветрового давления в пределах рассматриваемого участка:
На правой стойке:
Список
литературы
1.
СНиП II-23-81*. Стальные конструкции/ Госстрой СССР. - М.:ЦИТП
Госстроя СССР, 1990. - 96 с.
.
Металлические конструкции. Общий курс: Учебник для вузов /Е.И. Беленя, В.А.
Балдин, Г.С. Ведеников и др.; Под общ. ред. Е.И. Беленя. - 6-е изд., перераб. и
доп. - М.: Стройиздат, 1986. - 560 с., ил.
.
СНиП 2.01.07-85. Нагрузки и воздействия/ Госстрой СССР. - М.:ЦИТП Госстроя
СССР, 1986. - 36 с.