Механизация грузовой и коммерческой работы

  • Вид работы:
    Курсовая работа (т)
  • Предмет:
    Транспорт, грузоперевозки
  • Язык:
    Украинский
    ,
    Формат файла:
    MS Word
    243,02 Кб
  • Опубликовано:
    2014-01-31
Вы можете узнать стоимость помощи в написании студенческой работы.
Помощь в написании работы, которую точно примут!

Механизация грузовой и коммерческой работы

Введение

маршрутизация вагон станция подъездной

Грузовая и коммерческая работа занимает важное место в эксплуатационной деятельности железнодорожного транспорта. Она включает комплекс вопросов, связанных с начально-конечными операциями, взаимодействию с другими видами транспорта, разработка и соблюдение условий перевозок грузов и др. Перевозка сырья, полуфабрикатов или готовой продукции с места добычи или производства в места потребления или переработки сопровождается как минимум двумя грузовыми операциями: загрузкой в транспортное средство и выгрузкой из него. Чаще всего в перевозке участвуют различные виды транспорта. Это увеличивает число грузовых операций и требует складов для промежуточного хранения грузов в ожидании транспортных средств. Удельный вес их, а также складских операций в общей затрате трудовых, денежных и материальных ресурсов производства достаточно велик. Снижение его на основе комплексной механизации и автоматизации погрузочно-разгрузочных и складских операций -одна из важнейших задач. Цель выполнения курсового проекта - это приобретение практических навыков выбора типа подвижного состава для организации перевозок заданного груза, технико-экономическое сравнение вариантов КМАПРР и построение суточного плана графика работы станции и подъездных путей. В данной курсовом проекте необходимо выполнить: -определить суточный вагоно- и грузооборот; -рассчитать показатели использования железнодорожного подвижного состава; -выбрать и рассчитать открытые площадки для хранения среднетоннажных контейнеров; -разработать и выбрать оптимальный вариант механизации погрузо-разгрузочных работ; -построить суточный план - график работы станции, грузового двора, подъездных путей и рассчитать их показатели.

 


1. Организация и механизация грузовой и коммерческой работы на станции


1.1 Краткая технико-эксплуатационная характеристика станции и подъездных путей

В данном курсовом проекте грузовая станция "N" расположена в крупном железнодорожном узле. Расстояние от сортировочной станции "А" до грузовой составляет 4 км (рисунок 1). Грузовая станция имеет тупиковую схему (рисунок 2).

Рисунок 1 - Схема железнодорожного направления

Рисунок 2 - Схема станции тупикового типа

Для заданной схемы грузовой станции приводятся:

Характеристика станции в железнодорожном узле, связь ее с сортировочной станцией.

Эксплуатационная характеристика работы станции: характер и объем грузовой и сортировочной работы (погрузка и выгрузка на грузовом дворе и подъездных путях, сортировка, перегруз и др.) с разработкой схемы грузопотоков; категории поездов и вагонов: транзитные, с переработкой, сборные, вывозные, передаточные.

Техническая характеристика станции:

а) специализация парков, наличие вытяжных путей, сортировочных устройств, количество и серия маневровых локомотивов, грузовые районы и характер их работы;

б) размещение служебно-технических зданий: товарной конторы и станционного технологического центра, поста электрической централизации, помещения маневрового диспетчера, пункта технического обслуживания вагонов, устройств для обслуживания пассажиров, других производственных зданий и сооружений, а также места примыкания грузового двора, подъездных путей, расположения вагонных весов; наличие локомотивного и вагонного хозяйств, вычислительных средств и каналов связи и др.

в) объекты грузового двора: пункт выгрузки и погрузки тарно-упаковочных и штучных грузов, хранение которых допускается только в крытых складах; площадки для переработки крупно- и среднетоннажных контейнеров; пункты переработки массовых грузов, перевозимых навалом; площадки для переработки тяжеловесных и длинномерных грузов.

Последовательность выполнения операций при переработке вагонов с грузами и порожних от момента прибытия до отправления со станции, а также место и порядок выполнения приемо-сдаточных операций при передаче вагонов на подъездные пути и с подъездных путей при наличии и отсутствии собственных локомотивов у ветвевладельца.

На станции имеются следующие парки:

1.       Сортировочный парк

2.       Сортировочно-отправочный парк

.        Парк приема вагонов

.        Грузовой двор

.        ПТО

.        Подъездной путь №1

.        Подъездной путь №2

Парк приема служит для приема передаточных поездов. Пути сортировочного парка служат для накопления вагонов, прибывших в адрес грузового двора и подъездных путей предприятий. На сортировочно-отправочных путях происходит накопление вагонов и отправление передаточных и маршрутных поездов.

Грузовые операции выполняются на местах общего пользования - грузовой двор и местах необщего пользования - подъездные пути предприятий. Грузовые объекты имеют необходимые средства механизации и склады для выполнения операций и хранения грузов.

Для выполнения маневровых работ, подачи и уборки вагонов на грузовые объекты на станции имеется один маневровый локомотив. Подача и уборка вагонов на грузовые фронты II-го подъездного пути производится локомотивом ветвевладельца. Для взвешивания вагонов на станции используются вагонные весы.

Передаточные поезда с сортировочной станции прибывают на пути парка приема. После отцепки поездного локомотива выполняется технический и коммерческий осмотр по прибытию. По окончании осмотра маневровый локомотив станции прицепляется к составу поезда, вытягивает его на вытяжной путь, после чего состав расформировывается. В процессе расформирования вагоны подаются на пути сортировочного парка. С путей сортировочного парка вагоны локомотивом станции подаются на подъездной путь №1 либо на пути грузового двора. Вагоны, прибывшие в адрес подъездного пути №2, подаются локомотивом станции на выставочные пути. Локомотив ветвевладельца в свою очередь, вагоны с грузовых фронтов подаёт на выставочные пути, где выполняются приемо-сдаточные операции.

Локомотив станции убирает вагоны, погруженные и выгруженные с подъездных путей и грузового двора на пути сортировочно-отправочного парка. На путях сортировочно-отправочного парка вагоны накапливаются в состав передаточного поезда. После накопления вагонов, достаточных для состава передаточного поезда, при необходимости осуществляется формирование поезда по отправлению. На путях отправления производится технический и коммерческий осмотр поезда. После прицепки поездного локомотива поезд отправляется на сортировочную станцию.

1.2 Расчет суточных вагонопотоков


Для тарно-упаковочных грузов техническая норма загрузки определяется, исходя из объемов выбранного вагона (4-осный крытый цельнометаллический вагон с уширенными дверными проемами), заданных грузовых мест и их массы. Техническая норма загрузки для крытых вагонов:

,(1.1)

где - объем 4-осного вагона, м3 (принимается =120 м3);

,  = 0,05 т;

- масса, т, и объем, м3,  = 0,625 х 0,415 х 0,12 = 0,032 м3;

 - коэффициент укладки ящиков в вагонах (принимается =0,8).

= 120 x 0,05 x 0,8 / 0,032 = 150 т.

Техническая норма загрузки вагонов с контейнерами

,



где  - количество универсальных контейнеров устанавливаемых в вагоне (выберем 10 3-тонных среднетонажных контейнеров и 3 20-тонных крупнотоннажных контейнеров);  - техническая норма загрузки контейнера (соответственно 1,8 и 11 для 3 и 20 тонных контейнеров). Из выражения 1.2 получаем для СТК  т/вагон, для КТК  т/вагон. Для среднетонажных контейнеров, примем полувагон типа 11-Н003 (грузоподъёмность 33 т), для крупнотоннажных - фитинговую платформу типа 13-470 (грузоподъёмность 60 т).

Техническую норму тяжеловесных грузов найдём по формуле:

,

где Рпс - грузоподъемность вагона.

=0,8·70=56 т.

Выбор подвижного состава для заданных грузов представлен в таблице

Таблица 1.1-Выбор подвижного состава для перевозки грузов

Род груза

Тип подвижного состава

% вагонов в физических

парке от единиц

Грузоподъемность вагонов, т.

Техническая норма загрузки вагонов, т.



4-х

8-х

4-х

8-х

4-х

8-х

Тарно-упаковочные

Крытый вагон

100

-

68

-

68

-

Контейнеры среднетоннажные

Полувагон

100

-

33

-

18

-

Контейнеры крупнотоннажные

Фитинговая платформа для КТК

100

-

60

-

33

-

Тяжеловесные

Платформа

100

-

70

-

56

-

Уголь крупнокусковой

Полувагон

100

-

69

-

55,2


Трубы металлические

Полувагон

100

-

69

-

44

-

Нефтепродукты

Цистерна

40

60

62

125

60

120

Руда

Полувагон

100

-

69

-

69

-

Рассчитаем суточный грузопоток для контейнеров по следующей формуле

,



где  - годовой грузопоток по прибытию или отправлению;  - коэффициент неравномерности прибытия или отправления грузов (для контейнеров, примем, 1,1).

Определим суточный грузопоток по прибытию и отправлению

 т/сут,  т/сут,

Рассчитаем суточный вагонопоток для контейнеров по следующей формуле

,

(1.5)


где  - средняя статическая нагрузка 4-осного вагона (при условии что  -  = )

Определим суточный вагонопоток по прибытию и отправлению для СТК и КТК по прибытию

 ваг/сут;

 ваг/сут;

по отправлению  ваг/сут;

 ваг/сут;

Суточные вагонопотоки для каждого рода груза приведены в таблице 1.2.

Таблица 1.2 - Суточные вагонопотоки станции "N" и подъездных путей

Род груза

Суточные вагонопотоки


Грузовой двор

Подъездной путь №1

Подъездной путь №2


Приб.

Отпр.

Приб.

Отпр.

Приб.

Отпр.

Тарно-упаковочные


8





Контейнеры среднетоннажные

13

4





Контейнеры крупнотоннажные

7

2





Тяжеловесные

12






Уголь крупнокусковой



12




Трубы металлические




7



Нефтепродукты





52


Руда






14


.3 Определение количества отправительских маршрутов и составление плана маршрутизации

Грузы немассовые, перерабатываемые на грузовом дворе (контейнерные; тарно-упаковочные), как правило, прибывают и отправляются не маршрутами, а группами вагонов в составах передаточных поездов, поступающих в переработку.

Массовые грузы (уголь, щебень, нефтепродукты, удобрения и др.), как правило, отправляются с мест погрузки маршрутами.

Состав маршрутов в 4-осных вагонах: .

где  - масса брутто маршрута, т, =3000 т;  - средняя масса брутто четырехосного расчетного вагона, т

;

где  - процентное соотношение соответствующих вагонов, =0,4; =0,6;   - средняя масса брутто одного физического вагона, т;

;

где  - масса брутто четырехосного вагона, т;  - масса брутто восьмиосного вагона, т

Средняя масса брутто четырехосного вагона:

;

где  - техническая норма загрузки и масса тары четырехосного вагона соответственно,; - техническая норма загрузки и масса тары восьмиосного вагона соответственно;

4=60+23,5=83,5 т;

q8=120+48,8=168,8 т;

=0,4·83,5+0,6·168,8=134,68 т.

т

Тогда  ваг.

Количество ежедневных отправительских маршрутов, отправляемых с подъездного пути:

= маршрута.

Из остатка вагонов, не охваченных ежедневными отправительскими маршрутами, необходимо разработать вариант организации маршрутов с мест погрузки на месяц с учетом сгущения погрузки по календарному плану. Число таких маршрутов:

,

где  - остаток вагонов, не охваченных ежедневными отправительскими маршрутами,

=52-36∙1=16 ваг.

 маршрутов

Отправление маршрутов необходимо планировать равномерно по дням месяца, обеспечив ритмичность, как по подъездному пути, так и в целом по станции. Календарный план отправительских маршрутов составляется на все дни месяца (таблица 1.3).

Таблица 1.3 - Календарный план отправительских маршрутов

Дни

Вид маршрута

Количество вагонов

Поступило с предприятия

Остаток

1

Ежедневный

36

52

16

2

Ежедневный

36

52

32

3

Ежедневный и календарный

72

52

12

4

Ежедневный

36

52

28

5

Ежедневный и календарный

72

52

8

6

Ежедневный

36

52

24

7

Ежедневный и календарный

72

52

4

8

Ежедневный

36

52

20

9

Ежедневный и календарный

72

52

0

10

Ежедневный

36

52

16

11

Ежедневный

36

52

32

12

Ежедневный и календарный

72

52

12

13

Ежедневный

36

52

28

14

Ежедневный и календарный

72

52

8

15

Ежедневный

36

52

24

16

Ежедневный и календарный

72

52

4

17

Ежедневный

36

52

20

18

Ежедневный и календарный

72

52

0

19

Ежедневный

36

52

16

20

Ежедневный

36

52

32

21

Ежедневный и календарный

72

52

12

22

Ежедневный

36

52

28

23

Ежедневный и календарный

72

52

8

24

Ежедневный

36

52

24

25

Ежедневный и календарный

72

52

4

26

Ежедневный

36

52

20

27

Ежедневный и календарный

72

52

0

28

Ежедневный

36

52

16

29

Ежедневный

36

52

32

30

Ежедневный и календарный

72

52

12

 

1.4 Показатели, характеризующие конструкцию вагона


В организации грузовой работы большое значение имеет наиболее рациональное использование вагонов с учётом технико-экономических особенностей каждого вида подвижного состава. В курсовом проекте определены показатели, характеризующие конструкцию вагонов для средне- и крупнотоннажных контейнеров.

Технический коэффициент, характеризующий качество конструкции вагона

,(1.10)

Для 11-Н003 и 13-470 соответственно

;

Погрузочный коэффициент тары, учитывающий фактически возможное использование грузоподъёмности вагонов при перевозке контейнеров

,(1.11)



где  - коэффициент использования подъёмной силы вагона

,(1.12)



Для 11-Н003 и 13-470 соответственно

;

;

Расчёт коэффициент использования объёма и вместимости, удельного объёма и удельной грузоподъёмности вагона для контейнеров не имеет смысла, так как перевозки осуществляются стандартными контейнерами.

Расчёт удельной площади вагона

,(1.13)



Для 11-Н003 и 13-470 соответственно

1 м2/т;  м2

 

1.5 Расчёт складов


Контейнеры хранят на низких открытых площадках с асфальтобетонным покрытием по бетонному. По бокам площадок устраивают дренажные канавы для отвода дождевых и талых вод. Площадкам придают уклон 0,02 от середины к краям. Продольный уклон площадок допускается не менее 0,004 и не более 0,06. Кюветы делают с продольным уклоном 0,001 и включают в общую сеть водоотвода. Места установки контейнеров и полосы движения на автопроездах размечают несмываемой масляной краской. Железнодорожные пути и автопроезды должны быть расположены так, чтобы они обеспечивали наименьшие перемещения груза.

Погрузку контейнеров будем осуществлять козловым краном ККС-10 и мостовым кранам пролетом 32,5 м и грузоподъемностью 10т.

 

1.6 Расчет площади контейнерной площадки


В задачу расчета входят выбор типа, определение площадей, габаритных размеров площадки. Причем площадь площадки определяется двумя способами:

приближенно - по допускаемой нагрузке на 1 м пола склада;

точно - по схеме размещения СТК на открытой площадке.

На грузовых станциях СТК хранят на открытых асфальтированных площадках. Не площадках устраивают небольшие уклоны, водоотводные кюветы и дренажи; поверхность площадок в зимнее время покрывают тонким слоем песка. Между СТК оставляют свободные проходы шириной не менее 0,6 метра для осмотра и прохода приемосдатчика и 0,1 л между самими СТК.

При переработке СТК козловыми кранами бригада состоит из одного крановщика, так как застропка контейнеров осуществляется автоматически с помощью спредера. Перегрузка СТК осуществляется козловым краном ККС-10. (вариант 1) и мостовым краном грузоподьеностью 10т (вариант 2).

Техническая характеристика кранов приведена в таблице 1.4 и 1.5

Таблица 1.4- Техническая характеристика кранов ККС-10

Грузоподъемность, кг

10000

Длина пролёта, м

32

Число консолей

2

Вылет консолей

8 и 8,5

Скорость крана, м/с (м/мин)

0,6(36)

Скорость груза при подъёме, м/с (м/мин)

0,25(15)

Скорость тележки, м/с (м/мин)

0,616(40)

Суммарная мощность, кВт

42,2

База крана, м

14

Масса крана , кг

41000

Восстановительная стоимость, руб

26450


Таблица 1.5 - Технические характеристики мостового крана

Грузоподъемность, кг

10000

Наибольшая высота подъема груза, м

16

Длина пролета, м

32,5

Скорость, м/с:

 

 

поднимаемого груза

0,33

 

тележки

0,67

 

крана

2

Общая масса, кг

18600

Общая мощность эл.двигателей, кВт

24,9

Восстановительная стоимость, руб

10700


Потребная площадь открытых площадок для хранения СТК определяется по формуле:


Где  - суточный грузопоток с учетом неравномерности поступления груза;

 - продолжительность хранения СТК на площадках, сут, =1,5 сут, =1 сут;

 - коэффициент, учитывающий дополнительную площадь на проходы и проезды погрузочно-разгрузочных машин,  =1,3;

 - доля процента переработки СТК по прямому варианту "вагон-автомобиль", минуя складирование (принимается равной 0,1-0,2);

Р - средняя нагрузка груза в зависимости от его рода и грузовых устройств, 0,5 т/м2

Тогда

= (452,05 х 1,5х0,5 + 150,68 х 1,0х0,5) х 1,3 х (1-0,2)/0,5 = 862 м2

Территория, ограниченная пролетом крана, может быть использована для складирования среднетоннажные контейнеров. Ширина открытой площадки ограничивается пролетом крана, а длина зависит от размеров элементарной площадки, на которой устанавливаются контейнеры.

Ширина контейнерной площадки, оборудованной козловым краном, определяется по формуле:


Где  - ширина пролета козлового крана, равна для крана ККС-10 - 32м,  - габарит ходовой тележки крана, 1,32 м;

 - зазор безопасности между тележкой и крайним контейнером, 0,3 м.

Тогда = 32-2(1,32+0,3)= 28,76 м.

Исходя из габаритных размеров контейнеров определим параметры (длину и ширину) одной элементарной площадки (рисунок 3 и 4).

В соответствии с принятой схемой размещения контейнеров устанавливают длину сектора контейнеро-мест, число крупнотоннажных контейнеров Кконтс, размещаемых на нем, и число секторов


Где  - вместимость всей площадки в контейнерах, определяется по формуле при условии

) при условии NПР > NО

(1.26)

2) если NО > NПР

(1.27)

Где , коэффициенты, учитывающие непосредственную перегрузку контейнеров из вагона в автомобили и обратно, =0,2; =0,3;

,- количество прибывших и отправляемых груженных контейнеров в сутки,  = 13 x 10 = 130; = 4 x 10 = 40;

 - количество прибывших порожних контейнеров,  = 130 - 40 = 90;

- расчетный срок нахождения контейнеров в ремонте, 0,5 сут.

Тогда

 = 251 конт.

Определим параметры открытой площадки, оборудованной козловым краном исходя из размеров элементарной площадки и количества контейнеров, устанавливаемых поперек площадки:

 (1.28)

где  - длина сектора контейнеро-мест, м;

 - количество проходов между секторами;

- ширина прохода (0,6-0,7 м);

- противопожарные разрывы шириной 5 м черев каждые 100 м длины площадки.

Ширина контейнера 1325мм, для козлового крана ККС-10 ширина площадки 28,76 м. Проходы для приемосдатчиков и стропальщиков шириной не менее 0,6 м для свободного доступа к контейнеру хотя бы с одной из его сторон. Количество контейнеров в одном секторе для козлового крана ККС-10:

28,76/(1,325+0,6)*2≈30конт

 = 251/ 30 = 9 секторов.

Длина сектора  будет равна

 = 2x2100+100=4300 мм.

Учитывая, что между секторами устраиваются проходы для приемосдатчиков () равные 0,6 метра и через каждые 100 м площадки - противопожарные разрывы шириной 5 м, длина площадки будет равна

 = 9 x 4,3 + 8 x 0,6 + 0 = 43,5 м.

Определим параметры открытой площадки, оборудованной мостовым краном исходя из размеров элементарной площадки и количества контейнеров, устанавливаемых поперек площадки:

Ширина площадки, м, определяется:


где lпр - пролет крана, 32,5 м; bo - ширина опоры подкрановых путей (принимается 0,5 м); lг - габарит железнодорожного пути, lг=4,9 м; lо - расстояние от оси подкрановой опоры до крайнего положения грузоподъёмного крана (1,2 м),


Ширина контейнера 1325мм, для мостового крана ширина площадки 16,15м. Проходы для приемосдатчиков и стропальщиков шириной не менее 0,6 м для свободного доступа к контейнеру хотя бы с одной из его сторон.

Количество контейнеров в одном секторе для мостового крана:

26,15/(1,325+0,6)*2≈26конт

 = 251/ 26 = 10 секторов.

Длина сектора  будет равна

 = 2x2100+100=4300 мм.

Учитывая, что между секторами устраиваются проходы для приемосдатчиков равные 0,6 метра и через каждые 100 м площадки - противопожарные разрывы шириной 5 м, длина площадки будет равна

 =10 x 4,3 + 9 x 0,6+ 0=48,4 м.

 

1.7 Разработка схем комплексной механизации и автоматизации погрузочно - разгрузочных работ


Для переработки среднетоннажных контейнеров согласно заданию применяются козловой кран ККС-10 и мостовой кран грузоподъемностью 10 тонн и пролетом 32,5 м.

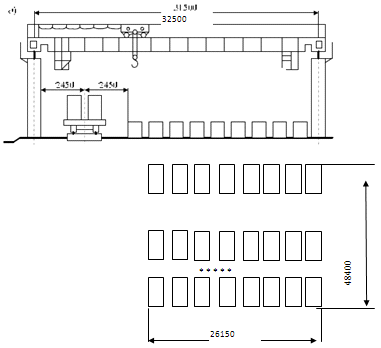
Среднетоннажные контейнеры размещаются в секторах. Сектором называется два ряда контейнеров установленных поперек площадки, т.е. под пролетом крана. В пролете крана ККС-10- 2x15 контейнеров. В пролете мостового крана - 2x13 контейнеров. Между контейнерами в секторе должен быть зазор не менее 0,1 м, для возможности просмотра за пломбами. Между секторами должно быть расстояние 0,6 м для прохода приемосдатчика. Кроме того, предусмотрены заезды для автомобилей под консолью крана шириной 8 м.

Рисунок 3 - Схема КМАПРР СТК оборудованная козловым краном ККС-10

Рисунок 4 - Схема КМАПРР СТК оборудованная мостовым краном

 

1.8 Расчет числа погрузочно-разгрузочных машин


Количество погрузочно-разгрузочных машин (кранов) для переработки среднетоннажных контейнеров определяется дважды для обоих вариантов по формуле:


где - годовой расчетный грузопоток с учетом возможной двойной переработки грузов машинами;

- число рабочих смен в сутки;


Где - объем грузопереработки за год, т,

- коэффициент неравномерности перевозок, =1,1;

 - доля грузов перерабатываемая по прямому варианту,  =0,1;

 = (150000 + 50000) х0,5х 1,1 х (2 - 0,1) =209000 т.

Годовой объем переработки среднетоннажных контейнеров составит:

 = 209000/1,8 =116111 конт/год.

 - время простоя машины в ремонтах в течение года, сут (для ориентировочных расчетов в курсовом проекте принято для машин с электроприводом -  = 15 суток); сменная норма выработки одного крана,  для козлового крана  = 186 конт/см  = 204 конт/см [3, стр.41];

 - число рабочих смен в сутки.

Число рабочих смен в сутки рассчитаем по формуле:

Козловой  =116111 / 365 х 186= 1,71  =2 сменная работа

Мостовой  = 116111/ 365 х 204 = 1,56,  = 2 сменная работа

Подставив значения, получим:

козловой  = 116111/[186 х 2х (365 -15)] ≈ 1 кран.

мостовой = 116111 / [204 х 2х (365 -15)] ≈ 1 кран.

 

1.9 Требования техники безопасности


Расстановку среднетоннажных контейнеров на площадке необходимо выполнять с соблюдением установленного габарита приближения их к подкрановым и железнодорожным путям. Контейнеры разрешается поднимать, зацепив спредером за все четыре угловых захвата. Контейнеры необходимо ставить на свободное, очищенное от посторонних предметов место на площадке. Погрузка и выгрузка среднетоннажных контейнеров должна выполнятся, как правило, с использованием спредеров.

Прежде чем начать подъем контейнера, его отрывают от земли на несколько сантиметров, убеждаются в устойчивости машины, исправности ее тормозов и лишь после этого продолжают подъем. Запрещается подтягивать краном или захватывать груз, когда грузовой канат натянут косо. При управлении краном крановщик руководствуется указаниям приемосдатчика.

Перемещают груз краном на высоте не менее 0,5 м над встречающимися на пути предметами. Скорость передвижения крана без груза не должна превышать 10 км/ч, с грузом -5 км/ч.

Во избежание несчастных случаев правила Проматомнадзора предусматривают ряд требований к стальным канатам (тросам). Если канат не имеет сертификата завода-изготовителя, его следует испытать н установить грузоподъемность. Долговечность стального каната характеризуется главным образом числом перегибов, которые он выдерживает до разрушения. К траверсе, захватному органу, барабану канат следует крепить так чтобы он не перетирался.

2. Технико-экономические расчеты по сравнению вариантов механизации погрузочно-разгрузочных работ

2.1 Инвестиции в средства механизации

Инвестиции в средства механизации по вариантам складываются из следующих затрат:

;

где Кмех - расходы на приобретение погрузочно-разгрузочных машин и механизмов с учётом их транспортировки и монтажа, определяются по формуле:

;

 - восстановительная стоимость механизма; Zмех - количество погрузочно-разгрузочных механизмов; Кин - коэффициент индексации, учитывающий рост цен по отношению к 1985 году, принимаем равным Кин =9000.

Кya - расходы на устройства автоматического и полуавтоматического управления механизмами, если они не включены в Кмех. Например, автостроп ЦНИИ-ХИИТ, спредер и др.;

Кскл - расходы на сооружение складов;

Кскл=FсклСсклКи,

скл - потребная площадь склада, м2

Сскл - стоимость сооружения склада, отнесённая к 1 м2 площади,

Кп - расходы на сооружение железнодорожных путей, связанных с подачей и уборкой вагонов, а также выполнением грузовых операций:

;

где Ln - длина соответствующих путей, м;

Для крытых и открытых складов длина путей определяется из соотношения

,

где Lскл - принятая длина склада, м; lдоп - дополнительная длина пути, необходимая для соединения складских путей с горловиной; lдоп=100 м; n - число погрузочно-разгрузочных путей на складе с учётом выставочных, которые используются для эффективного выполнения маневровых операций; n=2;

Сп - расходы на сооружение 1 м соответствующих путей, Сп=61 руб/м; т - количество стрелочных переводов; m=2; Сс - расходы на укладку одного стрелочного перевода, Сс=6400 руб.

Ка - расходы на строительство автопроездов вдоль открытой площадки, определяется по формуле:

;

где Fа - площадь автопроездов вдоль склада, определяется умножением длины склада Lскл на ширину автопроезда Ва (ширина автопроезда принимается 3м);  Са - стоимость сооружения 1 м2 автопроезда;

Кб - расходы на устройства бытовых устройств для удовлетворения бытовых потребностей механизаторов и рабочих в части, отнесенной к рассматриваемым складам, приняты равными 0;

Кпр - прочие капитальные расходы, не включённые в предыдущие 6 видов:

а)  при применении мостовых кранов - затраты на сооружение подкрановой эстакады,

,

где Сэ - стоимость сооружения 1 м эстакады, руб/м; Lэ - длина эстакады, м;

б)  при применении кранов козловых, портальных и башенных - стоимость сооружения подкрановых путей;

в)      при применении кранов на железнодорожном ходу - стоимость подкрановых путей и двух стрелочных переводов;

г)       при применении аккумуляторных погрузчиков и электрокар - стоимость сооружения подзарядных станций, поддонов, мастерских;

д)      при применении кранов на автомобильном, гусеничном ходу и вилочных погрузчиков на открытых площадках - стоимость сооружения продольного проезда для перемещения указанных машин:

,

где Впр - ширина проезда, Впр=16 м; Спр - стоимость сооружения 1 м2 проезда;

е)    при применении негабаритных аккумуляторных погрузчиков с поддонами и электрокар со столиками - стоимость поддонов и столиков.

Количество поддонов Nпод или столиков Nс определяется по формуле

,

где Qс - суточный грузопоток с учётом неравномерности поступления груза, т;

tхр - продолжительность хранения грузов на поддонах на складе, сут;

Кзап - коэффициент, учитывающий запас поддонов (принимается 1,1);

 - количество тонн груза, укладываемого на поддоне (или столике).

Расчеты по обоим вариантам сведены в таблицы 2.1 и 2.2.

Таблица 2.1 - Капитальные затраты по1 варианту

Наименование машин, устройств, сооружений, оборудования

Единица измерения

Количество единиц

Единичная стоимость, руб.

Сумма затрат, млн. руб.











Козловой кран

шт.

1

26450

238,05

Подкрановый путь

м.

143,5

61

78,78

Открытая площадка

м2

862

11

85,34

Автопроезды

м2

130,5

11

12,92

Железнодорожный путь

м.

287

61

157,56

Стрелочные переводы

шт.

2

6400

115,2

Линия энергоснабжения

м.

43,5

8

3,13

Итого по 1-му варианту

690,98


Таблица 2.2 - Капитальные затраты по 2 варианту

Наименование машин, устройств, сооружений, оборудования

Единица измерения

Количество единиц

Единичная стоимость, млн руб

Сумма затрат, млн руб.











Мостовой кран

шт.

1

10700

96,3

Эстакада для мостового крана

м.

148,4

108

144,24

Открытая площадка

м2

862

11

85,34

Автопроезды

м2

145,2

11

14,37

Железнодорожный путь

м.

296,8

61

162,94

Стрелочные переводы

шт.

2

6400

115,2

Линия энергоснабжения

м.

48,4

8

3,48

Итого по 2-му варианту

621,87


2.2 Эксплуатационные расходы

Годовые эксплуатационные расходы С по каждому варианту рассчитываются по формуле:

;

где Эот - расходы на оплату труда рабочим и механизаторам, обслуживающим погрузочно-разгрузочные механизмы и устройства; Эсс - отчисления на социальные нужды; Ээ - расходы на электроэнергию и топливо; Эм - расходы на обтирочно-смазочные материалы;  - годовые амортизационные отчисления от стоимости погрузочно-разгрузочных машин и механизмов;  - годовые амортизационные отчисления от стоимости складов и других дополнительных сооружений; Эр - расходы на быстро изнашиваемую оснастку; Кобщ - коэффициент, учитывающий общие и хозяйственные расходы (Кобщ=1,3).

Расходы на заработную плату. Для расчета расходов на оплату труда работникам, обслуживающим погрузочно-разгрузочные механизмы и установки, определим состав комплексной бригады (rp). В соответствии с "Едиными нормами выработки и времени на вагонные, автотранспортные и складские погрузочно-разгрузочные работы" (далее ЕНВ) в состав бригады входит один крановщик и три стропальщика. Расходы на заработную плату при сдельной оплате труда и комплексных нормах выработки определяются по формуле:

;

где αп - коэффициент, учитывающий подмены в нерабочие дни, равен 1,2; αк - коэффициент, учитывающий надбавки к заработной плате работникам, входящим в состав комплексных бригад, равен 1,2; rр - количество работников, входящих в бригаду и обслуживающих один кран; Счр - часовая тарифная ставка механизатора и рабочего IV разряда, равна 0,65 рубля; αвр - коэффициент, учитывающий неблагоприятные условия труда, устанавливаемый в зависимости от уровня минимальной заработной платы за каждый час работы в этих условиях. Перечень работ с неблагоприятными условиями труда, на которые могут устанавливаться доплаты за условия труда, определяется по результатам аттестации. В курсовом проекте принимаем αвр=1; Зд - дополнительная годовая заработная плата тем работникам, которые обеспечивают устойчивую работу погрузочно-разгрузочных механизмов (слесари, механики, электрики, сторожа и т.д.). Величина Зд устанавливается исходя из численности этих работников и их заработной платы. В проекте принята величина Зд равная 20 % от заработной платы рабочих комплексных бригад.

Тогда расходы на заработную плату для 1-го варианта составят:

 млн.руб.

Для 2-го варианта составят:

 млн. руб.

Отчисления на социальные нужды определим по формуле:

;

где αс - коэффициент, учитывающий отчисления на социальные нужды, равен 0,4.

Отчисления на социальные нужды составят:

-ый вариант: Эсс=0,4·44,3=17,7 млн. руб.

-ой вариант: Эсс=0,4·40,4=16,2 млн. руб.

Годовые расходы на электроэнергию и топливо складываются из затрат на силовую энергию  (для машин с электроприводом) или из затрат на топливо  (для машин с двигателем внутреннего сгорания) и на электроэнергию на освещение мест производства работ:


Годовые расходы на силовую энергию для козловых и мостовых кранов с электроприводом определяются по формуле:

;

где n’ - коэффициент, учитывающий потери электроэнергии в распределительной сети, принимается равным 1,03;  - суммарная мощность всех электродвигателей; ηдв - полный КПД двигателя машины;  - фактическое время работы всех погрузочно-разгрузочных машин при переработке грузов в течение года, час.;  - расходы на силовую энергию.

;

 часов (козловой кран),

 часов (мостовой кран).

козловой кран Ээ=(1,03·4370·0,4·0,021·42,2)·9000=14,36 млн.руб.;

мостовой кран Ээ=(1,03·3984·0,4·0,021·17,5)·9000=5,43 млн.руб.;

Расходы на освещение мест производства погрузочно-разгрузочных работ при использовании люминесцентных ламп найдем по формуле:

;

где Ео - норма освещенности, для открытых площадок Ео=5 лк; ео - световой поток одной лампы, ео=3440 лм; F - освещаемая площадь, м2;

=Fскл+Fа+Fп+…+Fдр

Fп=Lп·Т;

где Т - боковой габарит подвижного состава (равен 1850мм от оси подвижного состава).

для 1-го варианта площадь составляет F=862+130,5+287 ·4,9=2398,8 м2;

для 2-го варианта площадь составляет F=862+145,2+296,8·4,9=2461,52 м2 ;

Тосв - время работы освещения в течение года, Тосв=4600 ч.; Рл - мощность одной лампы, Рл=80 Вт;  - стоимость 1 кВт.ч осветительной энергии, =0,04 руб.

Расходы на освещение составят:

для 1-го варианта  млн. руб.;

для 2-го варианта  млн. руб.;

Итого годовые расходы на электроэнергию и топливо равны:

для 1-го варианта Э =14,36+1,85=16,21 млн. руб.;

для 2-го варианта Э =5,43+1,9=7,33 млн. руб.

Годовые затраты на обтирочно-смазочные материалы составляют 10 % от стоимости затрат на силовую электроэнергию или топливо, т.е.

для 1-го варианта Эм=0,10·14,36 =1,4 млн. руб.;

для 2-го варианта Эм=0,10·5,43=0,5 млн. руб.

Годовые расходы на амортизацию, на все виды ремонта и техническое обслуживание машин, автостропов, захватов для контейнеров определяются отдельно для каждого механизма и устройства. Амортизация рассчитывается путем умножения стоимости этих машин и устройств на устанавливаемую норму амортизации qа.

Количество видов ремонта, а также техническое обслуживание зависят от интенсивности использования машин и оборудования, поэтому при определении расходов предусматривается корректировка этих ремонтов поправочным коэффициентом отношения. Абсолютное значение затрат на все виды ремонта и амортизацию механизмов  находится из соотношения:

,

где 0,01 - переводной коэффициент; ZмехКмех - общая стоимость машин данного типа;  qа - норма амортизационных отчислений; Ор -отчисления на ремонты, %, если они в течение года работали 3000 ч; φ - поправочный коэффициент, который учитывает действительный процент ежегодных отчислений на все виды ремонта, а также техническое обслуживание с учётом фактического числа часов работы данной машины в течение года,

,

где  - фактическое время работы одной машины в течение года, ч.

,

где Qч - часовая выработка машины, т/ч, определяется по формуле:

.

1-й вариант т/ч

 ч

 млн. руб.

2-й вариант т/ч

 ч

 млн. руб.

Расходы на амортизацию и текущий ремонт сооружений  - складов, площадок, железнодорожных путей, автопроездов, повышенного пути, въезда на повышенный путь, подкрановых путей, стрелочных переводов и других коммуникаций - определяются по формуле


Расчеты отчислений на амортизацию и текущий ремонт погрузочно-разгрузочных механизмов и сооружений отдельно по каждому варианту сведены в таблицы 2.3 и 2.4.

Таблица 2.3 - Отчисления на амортизацию и текущий ремонт (1 вариант)

Наименование машин, устройств, сооружений, оборудования

Сумма затрат, млн. руб

Проценты отчислений







на амортизацию

на ремонт


Козловой кран

238,05

5

12,7

49,09

Подкрановый путь

78,78

5

2

5,51

Открытая площадка

85,34

2,1

2

3,50

Автопроезды

12,92

2,1

2

0,53

Железнодорожный путь

157,56

5

2

11,03

Стрелочные переводы

115,20

5

2

8,06

Линия энергоснабжения

3,13

2,8

2

0,15

Итого по 2-му варианту

77,88


Таблица 2.4 - Отчисления на амортизацию и текущий ремонт (2 вариант)

Наименование машин, устройств, сооружений, оборудования

Сумма затрат, млн. руб

Проценты отчислений

Сумма отчислений,млн. руб







на амортизацию

на ремонт


Мостовой кран

96,30

5

9,8

15,76

Эстакада для мостового крана

144,24

2,1

2

5,91

Открытая площадка

85,34

2,1

2

3,50

Автопроезды

14,37

2,1

2

0,59

Железнодорожный путь

162,94

5

2

11,41

Стрелочные переводы

115,20

5

2

8,06

Линия энергоснабжения

3,48

2,3

2

0,15

Итого по 1-му варианту

45,38


Затраты на быстроизнашиваемую оснастку включают стоимость замены цепей, грузозахватных приспособлений и т.д. и составляют 5 % от стоимости погрузочно-разгрузочных механизмов. Затраты на быстроизнашиваемую оснастку определяются по формуле:

;

Затраты на быстроизнашиваемую оснастку составят:

для 1-го варианта Эр=0,05·238,05=11,9 млн. руб.;

для 2-го варианта Эр=0,05·96,3=4,82 млн. руб.

Итого годовые эксплуатационные расходы составят:

-й вариант Ээкс=(44,30+17,7+16,21+0,5+77,88+11,9)∙1,3=219,03 млн. руб.

-й вариант Ээкс=(40,40+16,2+7,33+1,4+45,38+4,82)∙1,3=150,19 млн. руб.

2.3 Расчет технико-экономических показателей

Для сравниваемых вариантов механизации определяем натуральные и стоимостные показатели. Сопоставляя их между собой, выбираем оптимальный вариант КМАПРР, отдавая предпочтение стоимостным показателям.

.3.1 Расчет натуральных показателей

К натуральным показателям относятся: уровни механизации Ум, комплексной механизации Укм, автоматизации Уа погрузочно-разгрузочных работ; производительность труда работников комплексных бригад; простой подвижного состава под грузовыми операциями.

Уровень механизации погрузочно-разгрузочных работ - это отношение количества перерабатываемого груза механизированным способом в течение года  к общему объему переработки  за тоже время и выражается в %:


Аналогично определяется уровень комплексной механизации и уровень автоматизации:

 

Производительность труда характеризует эффективность труда в процессе производства. Она измеряется количеством времени, затраченным на производство единицы продукции. Производительность труда на погрузочно-разгрузочных работах можно определить делением сменной выработки Qсм на общую численность бригады r, обеспечивающей эту выработку:

;

для 1-го варианта П=186/1=186 т/чел;

для 2-го варианта П=204/1=204 т/чел

Энергоёмкость определяется по формуле:


для 1-го варианта  Вт/т

для 2-го варианта  Вт/т

Металлоемкость определяется по формуле:


для 1-го варианта  кг/т

для 2-го варианта  кг/т

.3.2 Расчет стоимостных показателей

Удельные капитальные вложения Куд, руб/т, находятся делением полных капитальных затрат К на годовую грузопереработку Qрасчг.

Себестоимость переработки одной тонны груза Ссеб находятся делением полных годовых эксплуатационных затрат Сэкс на годовую грузопереработку Qрасчг.Приведенные расходы найдем как

,

где Ен - нормативный коэффициент эффективности капиталовложений, 0,15.

Расчет стоимостных показателей для удобства пользования ими сведен в таблицу 2.6.

Таблица 2.6 - Стоимостные показатели

Наименование показателя

Обозначение показателя

Величина показателя, млн.руб. по вариантам КМАПРР






1-й вариант

2-й вариант

1. Грузооборот, т

209000


2.Капитальные вложения, млн.руб.

К

690,98

621,87

3.Годовые эксплуатационные расходы, млн.руб.

219,03150,19



4. Удельные капитальные вложения, руб./т

3306,122975,45



5. Себестоимость переработки, руб./т

1048718,62



6. Приведенные расходы, млн.руб

322,68243,471




.4 Сравнение вариантов КМАПРР

Детальным анализом данных таблицы 2.6 установим оптимальный вариант сопоставлением между собой капитальных вложений К, годовых эксплуатационных затрат Э и годовых приведенных затрат.

В данном курсовом проекте оптимальным можно считать 2-й вариант, т.к. приведенные затраты у этого варианта меньше.

3. Единая технология работы станции и подъездных путей

3.1 Основные положения по эксплуатации подъездных путей

Эксплуатация железнодорожных подъездных путей осуществляется в соответствии с требованиями Устава железнодорожного транспорта общего пользования и Правилами эксплуатации железнодорожных подъездных путей.

Согласно заданию к станции "N" примыкает два подъездных пути:

·        подъездной путь №1 (ПП1) находится на балансе железной дороги;

·        подъездной путь №2 (ПП2) принадлежит ветвевладельцу.

В зависимости от принадлежности подъездных путей, между железной дорогой и ветвевладельцем заключаются следующие виды договоров:

а) договор на подачу, уборку вагонов с подъездным путем № 1;

б) договор на эксплуатацию подъездного пути с подъездным путем №2.

На подъездной путь №1 вагоны подаются локомотивом железной дороги. Приёмо-сдаточные операции выполняются непосредственно на фронте погрузки-выгрузки вагонов. ПП2 имеет собственный маневровый локомотив. Приёмо-сдаточные операции выполняются на выставочных путях сортировочного парка.

.2 Технология выполнения приемо-сдаточных операций

В процессе выполнения приёмо-сдаточных операций проверяется:

·        исправность кузова в коммерческом отношении;

·        закрытие люков вагона;

·        наличие и исправность пломб;

·        число мест груза на открытом подвижном составе, когда по характеру груза и погрузки такая проверка возможна;

·        правильность размещения и крепления грузов на открытом подвижном составе, отсутствие видимых следов утраты, повреждения груза или упаковки;

·        соответствие номера вагона, массы груза данным в накладной и установление недогруза или перегруза;

·        закрытие крышек сливных приборов цистерн и разгрузочных устройств типа "хоппер", отсутствие признаков течи груза через указанные;

·        закрепление бункеров бункерных полувагонов крюками-зацепами;

·        подготовку автотранспортной техники к перевозке (защита бьющихся, снятие и упаковка легко сминаемых частей), наличие пломб, соответствие числа мест, в том числе с запасными частями, данным указанным в накладной;

·        наличие транспортной маркировки при перевозке на открытом подвижном составе и др. Учет простоя вагона на подъездных путях осуществляется по номерному способу с заполнением ведомостей подачи и уборки вагонов.

3.3 Подготовка данных для разработки суточного плана-графика

Основными исходными данными для составления суточного плана-графика является:

·        размер грузооборота в целом, по каждому грузовому объекту и по родам груза;

·        разложение передаточных поездов по прибытию;

·        нормы выполнения технических операций;

·        нормы выполнения погрузочно-выгрузочных работ;

3.3.1 Составление балансовой таблицы регулировки порожних вагонов

На основе рассчитанного вагонопотока по прибытию и отправлению определяем избыток или недостаток порожних вагонов на станции примыкания и подъездных путях.

Таблица 3.1 - Балансовая регулировка вагонов


Баланс груженых и порожних вагонов на станции и подъездных путях. Баланс груженых и порожних вагонов на станции и подъездных путях выполняется, так как Выгрузка+Недостаток=Погрузка+Избыток. 80+17=97; 35+62=97.

.3.2 Расчет числа передаточных поездов по прибытию

Вагоны с грузами прибывают на станцию и отправляются с нее в передаточных и маршрутных поездах. В передаточные поезда включаются и порожние вагоны. Количество передаточных поездов между сортировочной и грузовой станциями определяется по формуле:


где mпр - общее количество груженых и порожних вагонов по прибытию, равно 97 вагонам; mпор - количество порожних вагонов, поступающих на грузовую станцию под погрузку (или выгрузку) маршрута, равно 36 вагонам; m - состав передаточного поезда, прибывающего на грузовую станцию с сортировочной станции, 10 ваг.

Рассчитаем количество передаточных поездов между сортировочной и грузовой станцией:


3.3.3 Разложение передаточных поездов

После определения числа передаточных поездов и количества вагонов в передаточном поезде составляется таблица разложения каждого состава по прибытию, по родам грузов с указанием порожних вагонов (таблица 3.2).

Таблица 3.2 - Разложение составов по прибытию с указанием порожних вагонов

№ марш.

Время прибытия

Назначение вагонопотоков

Всего вагонов



Грузовой двор

ПП1

ПП2




Т-У

СТК

КТК

Тяжеловесные

Уголь крупнокусковой

Трубы металл

Нефтепродукты

Руда


3701

17.10

0/4

4/0

2/0






6/4

2001

19.15







36/0


36/0

3703

19.45




3/0

7/0




10/0

3705

22.30




2/0




0/9

2/9

3707

2.50

0/4

6/0







6/4

3709

4.30




5/0

5/0




10/0

3711

8.38


3/0

5/0

2/0





10/0

Всего

0/8

13/0

7/0

12/0

12/0

-

36/0

0/9

80/17


3.4 Выбор средств механизации на выполнение погрузочно-разгрузочных работ и определение норм времени на грузовые операции

Средства механизации погрузочно-разгрузочных работ, нормы времени на выполнение погрузочно-разгрузочных работ выбираются на основании данных из приложений 3 и 4 раздела 13 Правил перевозок грузов и приведены в таблице 3.3.

Таблица 3.3 - Выбор средств механизации при выполнении погрузочно-разгрузочных работ

Наименование груза и грузовой объект

Суточное количество вагонов

Грузовая операция

Принятый механизм

Срок погрузки или выгрузки, час

Число машин

Продолжительность грузовой операции на физический вагон с учетом числа машин, мин

Тарно-упаковочные, ГД

8

Погрузка

Погрузчик г/п 1,5 т

1,4

2

42

СКТ, ГД

13

Выгрузка

Мостовой кран г/п 10 т

0,36

1

22


4

Погрузка

Мостовой кран г/п 10 т

0,36

1

22

КТК, ГД

7

Выгрузка

Двухконсольный козловой кран ККС-20

0,40

1

24


2

Погрузка

Двухконсольный козловой кран ККС-20

0,40

1

24

Тяжеловесные, ГД

12

Выгрузка

Мостовой кран г/п 10 т

0,77

1

46

Уголь крупнокусковой, ПП 1

12

Выгрузка

Пов. Путь и автопогрузчикн

0,8

1

48

Трубы металлические, ПП1

7

Погрузка

Козловой кран ККС-10

1,17

2

35

Нефтепродукты , ПП2

36

Выгрузка

Сливная эстакада

5 часов на выгрузка маршрута

Руда , ПП2

14

Погрузка

Пов. Путь и автопогрузчикик ТО-8

0,5

1

30


3.5 Суточный план график

Суточный план-график местной работы станции разрабатывается на основании таблицы разложения передаточных поездов по прибытию, графиков технологических процессов обработки поездов и групп вагонов, технологического процесса работы отдельных цехов станций и ЕТП, работы станции и подъездных путей. Общий вид суточного плана графика приведен в приложении 1.

.6 Расчет показателей работы станции и подъездных путей

Основным качественным показателем, характеризующим работу станции и подъездных путей, является простой местного вагона, который может учитываться по номерному или безномерному способу учета в зависимости от суточного вагонооборота.

При вагонообороте более 50 физических вагонов в сутки применяется безномерной способ учета. Для определения простоя местного вагона в целом по станции данные о почасовом прибытии и отправлении вагонов согласно построенному суточному план-графику записываются в форму ДУ-9 (таблица 3.5).

Таблица 3.5 - Вагонно-часы простоя местных вагонов

Часы суток

Прибыло, ваг.

Убыло, ваг.

Вагоно-часы простоя

Остаток на 17:00 10

17-18

10

0

20

18-19

0

0

20

19-20

46

0

66

20-21

0

0

66

21-22

0

0

66

11

0

77

23-0

0

0

77

0-1

0

0

77

1-2

0

10

67

2-3

10

36

41

3-4

0

0

41

4-5

10

0

51

5-6

0

0

51

6-7

0

0

51

7-8

0

0

51

8-9

10

10

51

9-10

0

0

51

10-11

0

0

51

11-12

0

10

41

12-13

0

0

41

13-14

0

10

31

14-15

0

10

21

15-16

0

10

11

16-17

0

10

1

Всего

97

106

1121


Средний простой местного вагона

,

где В - вагоно-часы простоя за сутки, П,У - количество прибывших и убывших вагонов со станции и ПП.

.

Коэффициент сдвоенных операций указывает на количество грузовых операций, приходящихся на один местный вагон:

,

где Uп, Uв - количество погруженных и выгруженных вагонов за сутки станцией и ПП;  - недостаток порожних вагонов на станции и ПП.


Простой местного вагона на станции, приходящийся на одну грузовую операцию.


Коэффициент использования маневровых локомотивов, представляющий собою долю полезной работы локомотива за сутки:

,

где  - полезное время использования маневровых локомотива за сутки, мин; tэк - продолжительность экипировки и смены бригад за сутки.


Заключение

В данном курсовом проекте приведена краткая технико-эксплуатационная характеристика станции и подъездных путей. Выполнен расчет суточных вагонопотоков для контейнеров. Для нефтепродуктов разработан план отправительской маршрутизации. Рассчитаны показатели, характеризующие четырехосный полувагон. Рассчитана площадь площадки для контейнеров, которая составляет 862 м2. Выполнен расчет числа погрузочно-разгрузочных машин - для первого варианта необходим один козловой кран ККС-10., для второго - один мостовой кран г/п 10 т.

Во втором разделе выполнены технико-экономические расчеты по сравнению вариантов механизации погрузочно-разгрузочных работ. На основании этих расчетов был выбран оптимальный вариант комплексной механизации и автоматизации погрузочно-разгрузочных работ.

Наименование показателя

Величина показателя, млн.руб. по вариантам КМАПРР




1-й вариант

2-й вариант

1. Грузооборот, т

209000

2.Капитальные вложения, млн.руб.

690,98

621,87

3.Годовые эксплуатационные расходы, млн.руб.

219,03

150,19

4. Удельные капитальные вложения, руб./т

3306,12

2975,45

5. Себестоимость переработки, руб./т

1048

718,62

6. Приведенные расходы, млн.руб

322,68

243,471


В данной курсовом проекте наиболее оптимальным можно считать второй вариант механизации, так как приведенные расходы у второго варианта меньше.

В третьем разделе приведена единая технология работы станции и подъездных путей, их взаимодействие. Как составляющая ЕТП производится разработка суточного плана графика. На основании суточного плана-графика рассчитаны средний простой местного вагона - 11,04 часа; средний простой вагона под одной грузовой операцией - 9,27 часа; коэффициенты использования локомотивов - 0, 67 и 0, 18.

Литература

1. Еловой И.А., Гизатуллина В.Г. Организация и механизация грузовой и коммерческой работы на станции и подъездных путях. Гомель, 1997, 68 с.

2.       Единые нормы выработки и времени на вагонные, автотранспортные и складские погрузочно-разгрузочные работы. - М.: Экономика, 1987 -156 с.

.        Падня В.А. Погрузочно-разгрузочные машины: Справочник. М.: Транспорт, 1981. 448 с.

.        Берлин Н.П., Негрей Н.П. и др. Комплексная механизация и автоматизация погрузочно-разгрузочных, транспортных и складских операций на предприятиях железнодорожного транспорта: Методические указания по курсовому и дипломному проектированию.4.1, II, III. Гомель: БелИИЖТ, 1990.

.        Голубков В.В., Киреев В.С. Механизация погрузочно-разгрузочных работ и грузовые устройства. М.: Транспорт, 1981. 112 с.

.        Антоневич Э.Ф. Погрузочно-разгрузочные работы. М.: Транспорт, 1972. 288 с.

.        Тарифное руководство №1. 1990 м. Транспорт

Похожие работы на - Механизация грузовой и коммерческой работы

 

Не нашли материал для своей работы?
Поможем написать уникальную работу
Без плагиата!
Без нейросетей!