Расчет и проектирование фундаментов под промышленное здание
Содержание
Введение
1. Оценка инженерно-геологических условий площадки
2. Анализ грунтовых условий строительной площадки
2.1 Определение наименования второго слоя грунта и его
физико-механических свойств
2.2 Определение наименования второго слоя грунта и его
физико-механических свойств
2.3 Определение наименования четвертого слоя грунта и его
физико-механических свойств
2.4 Определение наименования пятого слоя грунта и его
физико-механических свойств
3. Расчёт фундаментов мелкого заложения
3.1 Определение глубины заложения фундаментов
3.2 Определение размеров фундамента под наружную стену для здания с
подвалом
4. Расчёт свайных фундаментов
4.1 Расчёт ленточного свайного фундамента
4.2 Определение количества свай и размещение их в ростверке
4.3 Проверка прочности основания куста свай
5. Технико-экономическое сравнение вариантов фундаментов
6. Расчет оснований по деформациям
6.1 Проверка подстилающего слоя
6.2 Определение осадки ленточного фундамента
7. Расчет и конструирование железобетонных фундаментов в заданном
сечении, подбор арматуры
7.1 Расчет ленточного фундамента, подбор арматуры
8. Технология производства работ по устройству фундаментов
Список использованной литературы
Введение
В данном курсовом проекте нужно рассчитать и запроектировать
фундаменты под промышленное здание в г. Бобруйск. Часть здания выбранная по
заданию для проектирования фундамента имеет неполный каркас и подвал.
Железобетонные колонны каркаса сечением 40х40 см в нижней части защемлены в
фундаменте с шагом 6 м и расположены в центре здания, кирпичные стены имеют
толщину 510 мм.
Расчетное сечение по заданию - 4-4, расчетные значения
нагрузок для расчета по двум группам предельных состояний на уровне обреза
фундамента:
= 260 кH
= 230 кH
Инженерно-геологические условия площадки определялись по трем
пробуренным скважинам, одной в центре плана здания и двумя, расположенными на
расстоянии 2 м от крайних осей здания по продольной стороне.
1. Оценка
инженерно-геологических условий площадки
Инженерно-геологические условия строительной площадки
представляются по данным буровых скважин.
Оценку инженерно-геологических условий строительной площадки
начинают с построения инженерно-геологического разреза. По данным колонок
скважин (скважин должно быть минимум три) строится инженерно-геологический
разрез (см. графическую часть) в масштабах: вертикальном - 1: 100,
горизонтальном - 1: 200. При построении геологического разреза указывается
граница каждого слоя грунта, проставляются отметки каждого слоя, наносятся
отметки уровня грунтовых вод по каждой из скважин. Чтобы наглядно представить
особенности каждого слоя грунта, справа от геологического разреза строится эпюра
табличных значений Ro по вертикали.
В данном курсовом проекте, исходя из предварительного
изучения данных на проектирование, скважины прошли 4 слоя грунта. Глубина их
составила - 15 м. По этим данным можно определить, что под растительным слоем
идут слои песка, слой суглинка и два слоя глины. Отметки устьев скважин,
мощность каждого из слоев, отметки уровня грунтовых вод по каждой скважине
приведены в задании на проектирование.
фундамент промышленное здание грунт
2. Анализ
грунтовых условий строительной площадки
2.1
Определение наименования второго слоя грунта и его физико-механических свойств
Наименование крупнообломочного и песчаного грунта определяют
по гранулометрическому составу в соответствии с таблицей. Для этого
последовательно суммируются содержания фракций, сначала крупнее 2 мм, затем -
крупнее 0,5 мм и т.д. Наименование грунта принимают по первому удовлетворяющему
показателю.
Таблица 1 - Исходные данные грунта №19
|
Гранулометрический
состав в процентах, при их размерах
|
Физическая
характеристика
|
|
2-1
|
1-0,5
|
0,5-0,25
|
0,25-0,1
|
0,1-0,05
|
0,05-0,01
|
0,01-
0,005
|
менее 0,005
|
rs, г/см3
|
r, г/см3
|
W, %
|
|
1,5
|
8
|
28
|
45,5
|
10
|
3
|
3
|
1
|
2,65
|
1,64
|
9,3
|
Слой №2: WL=0, WP=0
частиц > 1мм - 1,5% < 25%
частиц > 0,5мм - 1,5+8=9,5% < 50%
частиц > 0,25мм - 9,5+28=37,5% < 50%
частиц > 0,1мм - 37,5+45,5=83% > 75%
так как частиц крупнее 0,1 мм - 83%, что больше 75%
следовательно, песок мелкий.
Устанавливаем плотность сложения и коэффициент пористости:
плотность сложения определяется по формуле (1):
, (1)
г/см3.
коэффициент пористости, определим по формуле (2):
, (2)
.
Таким образом, при е>0,75 имеем рыхлый песок.
Определим степень влажности по формуле (3):
, (3)
.
Так как 0< Sr<0,5, то пески маловлажные.
Определим механические характеристики данного грунта:
При е=0,77 для рыхлого мелкого песка маловлажного jn =280, Еn = 12 МПа.
Результаты расчётов заносим в таблицу 5.
2.2
Определение наименования второго слоя грунта и его физико-механических свойств
Таблица 2 - Исходные данные грунта №82
|
Физико-механическая
характеристика
|
|
ρs, г/см3
|
ρ, г/см3
|
W,%
|
WL,%
|
Wp,%
|
|
2,71
|
1,89
|
27
|
33
|
18
|
Число пластичности найдем по формуле (4):
IP = WL - WP, (4)
IP =33-18=15
Показатель текучести вычислим по формуле (5):
, (5)
Так как 7<IP=15<17,
а 0,5< IL=0,6<0,75 то данный грунт является суглинком мягкопластичным.
плотность сложения определяется по формуле (1):
г/см3
коэффициент пористости, определим по формуле (2):
Удельный вес грунта с учётом взвешивающего действия воды,
определим по формуле (6):
(6)
где gsi, ei - соответственно удельный вес частиц грунта и коэффициент
пористости i-го слоя грунта;
gw=10 кН/м3
- удельный вес воды.
кН/см3
Определим степень влажности по формуле (3):
Так как Sr=0,89>0,8
и IL=0,6>0,25, то грунт насыщенный водой и
не является водоупором.
Определим механические характеристики данного грунта: R0=228 кПа; сn=19,5
кПа; φn=19,6 0;
Еn=11,9 МПа.
2.3
Определение наименования четвертого слоя грунта и его физико-механических
свойств
Таблица 3 - Исходные данные грунта №97
|
Физико-механическая
характеристика
|
|
ρs, г/см3
|
ρ, г/см3
|
W,%
|
WL,%
|
Wp,%
|
|
2,76
|
1,98
|
28,5
|
44
|
21
|
Число пластичности найдем по формуле (4):
IP =44-21=23
Показатель текучести вычислим по формуле (5):
Так как IP=23>17,
а 0,25< IL=0,33<0,5 то данный грунт является глиной тугопластичной.
плотность сложения определяется по формуле (1):
г/см3
коэффициент пористости, определим по формуле (2):
Удельный вес грунта с учётом взвешивающего действия воды,
определим по формуле (6):
кН/см3
Определим степень влажности по формуле (3):
Так как Sr=1>0,8
и IL=0,33>0,25, то грунт насыщенный водой и
не является водоупором.
Определим механические характеристики данного грунта: R0=275,35 кПа; сn=47,2
кПа; φn=16,6 0;
Еn=16,8МПа.
2.4
Определение наименования пятого слоя грунта и его физико-механических свойств
Таблица 4 - Исходные данные грунта № 98
|
Физико-механическая
характеристика
|
|
ρs, г/см3
|
ρ, г/см3
|
W,%
|
WL,%
|
Wp,%
|
|
2,75
|
1,9
|
28,8
|
46,9
|
20,9
|
Число пластичности найдем по формуле (4):
IP =46,9-20,9=26
Показатель текучести вычислим по формуле (5):
Так как IP=26>22,
а 0,25< IL=0,3<0,5 то данный грунт является глиной тугопластичной.
плотность сложения определяется по формуле (1):
г/см3
коэффициент пористости, определим по формуле (2):
Удельный вес грунта с учётом взвешивающего действия воды,
определим по формуле (6):
кН/см3
Определим степень влажности по формуле (3):
Так как Sr=0,92>0,8
и IL=0,3>0,25, то грунт насыщенный водой и
не является водоупором.
Определим механические характеристики данного: R0=260 кПа; сn=42,4
кПа; φn=15,80;
Еn=14,7 МПа.
Таблица 5 - Сводная таблица физико-механических свойств
грунта
|
№ слоя
|
Наименованое
грунта
|
Мощ-ность слоя,
м
|
|
|
|
Физическая
характеристика
|
|
|
|
|
Прочностная и
деформационная характеристика
|
|
|
|
|
ps т/м3 ɣs кН/м3
|
p т/м3ɣ кН/м3
|
pd т/м3 ɣd кН/м3
|
W %
|
W (L) %
|
Wp %
|
Ip
|
IL
|
Sr
|
e
|
ϕn град
|
cn кПа
|
R0 кПа
|
E МПа
|
|
2
|
Песок рыхлый
мелкий
|
3
|
2,65
|
1,64
|
1,5
|
9,3
|
-
|
-
|
-
|
-
|
0,32
|
0,77
|
28
|
-
|
-
|
12
|
|
|
|
26,5
|
16,4
|
15
|
|
|
|
|
|
|
|
|
|
|
|
|
3
|
Суглинок
мягко-пластичный
|
4,2
|
2,71
|
1,89
|
1,49
|
27
|
33
|
18
|
15
|
0,6
|
0,89
|
0,82
|
19,6
|
19,5
|
228
|
11,9
|
|
|
|
27,1
|
18,9
|
14,9
|
|
|
|
|
|
|
|
|
|
|
|
|
4
|
Глина тугоплас
- тичная
|
3,1
|
2,76
|
1,98
|
1,54
|
28,5
|
44
|
21
|
23
|
0,33
|
1
|
0,79
|
16,6
|
47,2
|
275,35
|
16,8
|
|
|
|
27,6
|
19,8
|
15,4
|
|
|
|
|
|
|
|
|
|
|
|
|
5
|
Глина тугоплас
- тичная
|
4,45
|
2,75
|
1,9
|
1,48
|
28,8
|
46,9
|
20,9
|
26
|
0,3
|
0,92
|
0,86
|
15,8
|
42,4
|
260
|
14,7
|
|
|
|
27,5
|
19
|
14,8
|
|
|
|
|
|
|
|
|
|
|
|
|
|
|
|
|
|
|
|
|
|
|
|
|
|
|
|
|
|
3. Расчёт
фундаментов мелкого заложения
3.1
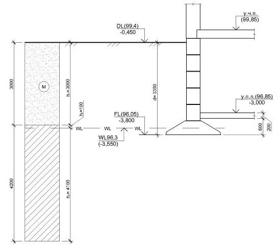
Определение глубины заложения фундаментов
Глубину заложения фундаментов определяем исходя из
конструктивных особенностей здания (наличие подвала, нагрузки и воздействия),
конструкции фундаментов, инженерно - геологических условий строительной
площадки.
Определим минимальную глубину заложения исходя из нормативной
глубины промерзания по формуле:
d1=df×kh. (7)
где kh - коэффициент, учитывающий влияние теплового
режима здания на глубину промерзания грунта у фундаментов наружных стен;
dfn - нормативная глубина промерзания, определяемая
по карте нормативных глубин промерзания, для города Бобруйск df= 1,21м для песка
мелкого.
м.
Глубина заложения фундаментов по условию недопущения морозного
пучения d2 для глинистых грунтов при IL>0,25 принимается не менее d1.
Для
сечения 4-4 глубину заложения определим исходя из конструктивных особенностей
фундамента:
принимается высота подушки 500 мм, толщина конструкции пола
200 мм, планировочная отметка земли относительно отметки чистого пола - 0,450
м, отметку пола подвала относительно отметки чистого пола - 3,000 м (по
заданию), тогда:
м
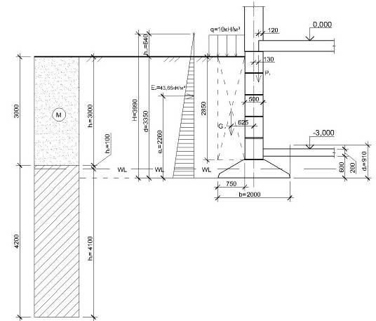
Рисунок 1 - К определению глубины заложения в сечении 4-4.
Принимаем глубину заложения фундамента d=3,35 м (в связи с
необходимостью принятия минимум 5 блоков высотой 600 мм).
3.2
Определение размеров фундамента под наружную стену для здания с подвалом
Размеры подошвы ленточного фундамента под наружную кирпичную
стену определим графоаналитическим способом.
Расчетные значения нагрузок FV0, II =230 кН.
Условие необходимое для выполнения для центрально
нагруженного фундамента:
Рm £ R. (8)
Давление под подошвой центрально нагруженного фундамента:
. (9)
площадь подошвы А=b×1п. м.,
тогда:
Расчётное сопротивление грунта определяется по формуле:
, (10)
где
коэффициенты условий работы, учитывающие
особенности работы разных грунтов в основании;
коэффициент, принимаемый равным 1,1, если прочностные
характеристики грунта приняты по нормативным таблицам;
коэффициент, принимаемый равным 1;
ширина подошвы фундамента, м;
усредненные расчетные значения удельного веса грунтов, залегающих
соответственно ниже подошвы фундамента (при наличии подземных вод определяется
с учетом взвешивающего воздействия воды) и выше подошвы, кН/м3);
безразмерные коэффициенты;
d1 -
глубина заложения фундаментов бесподвальных сооружений;
СII - расчетное значение удельного сцепления
грунта, залегающего непосредственно под подошвой фундамента, кПа.
По L/H=48/10,8=4,4
найдем значения коэффициентов: gС1=1,1; gС2=1; при jII=19,6о, Mg=0,5; Мq=3; Мс=5,6. А также:
кН/м3;
кН/м3.
м. (11)
Задаваясь значением ширины подошвы фундамента b, определяем давление под подошвой Р и расчетное
сопротивление грунта R. Расчетные значения
сведем в таблицу 6.
кПа.
кПа.
Таблица 6 - Сводная таблица определения ширины подошвы
фундамента b
|
b, м
|
1
|
1,2
|
1,4
|
1,6
|
2
|
2,4
|
2,8
|
3,2
|
|
R, кПа
|
221,25
|
222, 19
|
223,13
|
224,07
|
225,95
|
227,83
|
229,71
|
231,59
|
|
Pm,
кПа
|
297,00
|
258,67
|
231,29
|
210,75
|
182,00
|
162,83
|
149,14
|
138,88
|
Рисунок 2 - График для определения ширины b фундамента.
По рисунку 2 определяем необходимую ширину подошвы фундамента
b в точке пересечения
графиков Р=f
(b) и R=f (b). Ввиду того, что
дальнейший расчёт при b=1,6м показал неправильность подбора ширины подошвы
фундамента (с учётом весса грунта на уступе фундамента и собственного весса
фундамента), примем ширину подошвы b=2,0м.
Выбираем фундаментную плиту ФЛ 20.24-2 и GФ=40,5 кН (ГОСТ 13580-85)
и стеновые блоки шириной 0,5м - ФБС 24.5.6-Т (ГОСТ 13579-78) с Gбл=16,3 кН.
Значение удельного веса обратной засыпки принято равным
, где коэффициент 0,95 выражает
соотношение между удельными весами грунтов нагруженной и ненагруженной
структуры.
Собственный вес фундамента на 1 п. м. составит:
Характеристики грунта засыпки за пазухи фундамента примем:
Найдем вес грунта на уступе фундамента:
Давление подошвы фундамента:
(12)
Рисунок 3 - Расчетная схема фундамента.
кПа.
Так как Pm<R, т.е.224,28<225,95 кПа, то размеры подошвы фундамента
подобраны правильно, принимаем фундаментную плиту b=2,0м.
4. Расчёт
свайных фундаментов
Расчет свайных фундаментов и их оснований производится по
двум группам предельных состояний.
По первой группе определяют несущую способность сваи по
грунту, прочность материалов свай и ростверков. По второй группе предельных
состояний рассчитываются осадки оснований фундаментов.
4.1 Расчёт
ленточного свайного фундамента
Определим длину сваи:
lсв=l0+∑lгр+lн. сл=0,1+1=1,1 м. (13)
Принимаем сваю С 5-30, в связи с необходимостью обеспечения
несущей способности свай при однорядном их расположении, которое является более
экономичным по сравнению с двухрядным шахматным со сваей С 3-30, так как при
расчёте минимальная ширина ростверка составила b=1,3м, а n=2,2шт/п. м.
Свая защемлена в грунте, так как несущий слой имеет модуль
деформации ниже 50 МПа.
Рисунок 4 - К определению предварительной длины сваи.
Несущую способность сваи определяется по формуле (14) как
сумма расчётных сопротивлений грунтов оснований под нижним концом сваи и на её
боковой поверхности:
, (14)
где
-коэффициент условий работы сваи в грунте,
принимаемый 1;
R-расчётное сопротивление грунта под нижним концом сваи, кПа;
А - площадь опирания на грунт сваи, м;- наружный периметр
поперечного сечения сваи, м;
Rfi - расчётное сопротивление итого слоя
грунта основания на боковой поверхности сваи, кПа;
hi - толщина итого слоя грунта
соприкасающегося с боковой поверхностью сваи, м;
-коэффициенты условий работы грунта соответственно под нижним
концом и на боковой поверхности сваи, учитывающие влияние способа погружения
сваи на расчётные сопротивления.
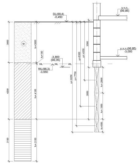
Рисунок 5 - К определению несущей способности сваи.
Первый слой - песок рыхлый, поэтому начинаем со второго слоя.
при z1=4,35 м, суглинок мягкопластичный
при z2=6,3 м, суглинок мягкопластичный
при z3=7,75 м, глина тугопластичная
при z0=8,25 м, глина тугопластичная
.
Несущая способность свай под колону:
Расчётная нагрузка, допускаемая на одну сваю:
, (15)
где
- коэффициент надежности, принимаемый
1,4.
4.2
Определение количества свай и размещение их в ростверке
Необходимое количество свай в грунте определяется по формуле
(16)
Определим расчетное расстояние между осями свай на 1 п. м. стены:
Принимаем однорядную систему расположения свай.
Определяем размеры ростверка в плане:
расстояние от края ростверка до боковой грани сваи
(17)
ширина ростверка:
(18)
где ср - расстояние между рядами свай;
- расстояние от края ростверка до боковой грани свай;
- число рядов.
Тогда b=0,3+2·0,11=0,52м
Принимаем ширину ростверка b=0,6 м и высоту h=0,5 м, ap=1,1м.
Рисунок 6 - Схема конструирования ростверка.
Определяем фактическую нагрузку, приходящуюся на одну сваю,
которая должна быть меньше допустимой:
(19)
Условие выполняется, фундамент запроектирован правильно.
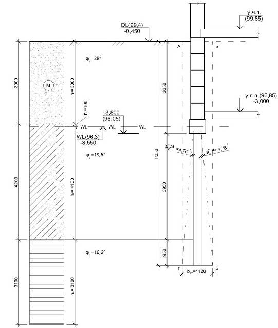
4.3 Проверка
прочности основания куста свай
Удовлетворение условия (19), для каждой сваи не означает, что
основание свай будет работать надежно. С цель проверки прочности основания
свайный фундамент рассматривают как условный массивный фундамент.
Для центрально-загруженного фундамента:
(20)
aусл, bусл - соответственно длина и ширина подошвы условного фундамента,
(21)
Rусл -
расчётное сопротивление грунта в плоскости подошвы условного фундамента, кПа.
Если условия (20) не выполняются, то необходимо либо увеличить
количество свай, либо изменить расстояние между сваями, либо изменить размеры
свай, или же увеличить глубину погружения свай.
Определяем ширину условного фундамента:
(22)
(23),
Объем условного фундамента AБВГ:
(24)
Объем ростверка и части подвала:
Объем свай:
Объем грунта в пределах условного фундамента:
(25)
Вес грунта в объеме условного фундамента:
(26)
где
- средний удельный вес грунтов, лежащих
выше уровня подошвы:
Вес свай, ростверка и ФБС блоков:
(27)
Вертикальная составляющая нормальных сил в уровне нижних концов
свай:
(28)
(29)
Рисунок 7-К расчёту условного свайного фундамента.
Расчетное давление на грунт основания условного свайного
фундамента в уровне его подошвы, при котором еще возможен расчет оснований по II группе предельных состояний:
(30)
gС1 = 1,2; gС2 = 1.
При j=16,60
Mγ = 0,38; Mq = 2,52; Mс = 5,09; Сn = 47,2 кПа.
P=319,86 кПа<Rусл=340,12 кПа
Условия выполняется.
5.
Технико-экономическое сравнение вариантов фундаментов
В данном курсовом проекте рассматриваются два варианта
фундаментов: фундамент мелкого заложения и свайный фундамент. В применении к
заданным геологическим условиям в качестве проектного выбран фундамент мелкого
заложения. Это связано с тем, что проектирование фундамента мелкого заложения
является экономически и технологически выгодным, т.к. при возведении свайного
фундамента материалоёмкость больше и необходимо задействовать большее
количество технических средств.
6. Расчет
оснований по деформациям
Задача расчета по деформациям состоит в том, чтобы не
допустить такие деформации основания, при которых нарушается нормальная
эксплуатация надземных конструкций. Основное условие расчета определяется
выражением:
S£Su, (31)
где S - совместная деформация основания и сооружения, определяемая
расчетом;
Su - предельное допустимое значение деформации
основания.
Осадка основания S с использованием расчетной схемы в виде
линейно-деформируемого полупространства определяется методом послойного
суммирования по формуле
, (32)
где
b=0,8 - безразмерный коэффициент;
szp, i -
среднее напряжение в i-ом слое;
hi - толщина i-го слоя;
Ei - модуль деформации i-го слоя грунта.
Нижняя граница сжимаемой толщи основания принимается на глубине Z=Hc от
подошвы фундамента, где выполняется условие
szp=0,2szq (33)
Вертикальные природные напряжения szq на некоторой глубине Z от поверхности грунта определяют по формуле
, (34)
где gi - удельный вес грунта i-го слоя;
hi - толщина i-го грунта;
n - число слоев грунта в пределах глубины Z. Удельный вес грунтов залегающих ниже уровня подземных вод, но
выше водоупора, должен приниматься с учетом взвешивающего действия воды, т.е.
Дополнительные вертикальные напряжения от внешней нагрузки
определяют по формуле
szp=a×P0, (35)
где Р0=Рср-szg,0 - дополнительное вертикальное давление на основание;
Рср - среднее давление под подошвой фундамента;
szg,0 -
вертикальное напряжение от собственного веса грунта на уровне подошвы
фундамента;
a - коэффициент, учитывающий уменьшение дополнительных напряжений
по глубине.
6.1 Проверка
подстилающего слоя
Проверим глину тугопластичную на прочность по условию:
sZp+sZq£Rz. (36)
Находим вертикальное напряжение на уровне подошвы фундамента
от собственного веса грунта (см. пункт 6.2):
На подошве 2-го слоя (песок мелкий):
sZq1=g2×h1=16,4∙3=49,2 кПа;
,2×sZq1=0,2·49,2=9,84 кПа.
На подошве фундамента от собственного веса грунта:
sZq0=sZq1+g3×h2+gsb2×h2’=49,2+18,9·0,1+
9,4·0,25=74,58 кПа;
На подошве суглинка мягкопластичного Z=3,85 м:
sZq2=sZq0+gsb2×h3’=74,58+9,4· (4,2-0,25)
=110,75 кПа;
Дополнительное давление под подошвой фундамента:
P0=Pср-sZq0=224,28-74,58=149,7 кПа.
Дополнительное вертикальное напряжение, действующее на кровлю
грунта от нагрузки на фундамент на глубине Z=3,85м. Для определения a найдем
=3,85 и
, тогда a=0,319, откуда
sZp=a×P0=0,319∙149,7 =47,76 кПа. (37)
Определяем расчетное сопротивление песка среднего средней
плотности на глубине 1,3м от подошвы фундамента по формуле (10). Для этого по
значению φn=16,60
(см. таблицу 3.3 [1]) находим Mg=0,38,
Mq=2,52, Mc=5,09, Cn=42,4кПа, для песка мелкого рыхлого, gC1=1,2 и при L/H=48/10,8=4,4, gC2=1.
Находим ширину условного квадратного фундамента по формуле:
(38)
Рисунок 8-К проверке прочности подстилающего слоя.
Расчётное сопротивление грунта определяется по формуле (30):
Условие (36) выполняется: sZp+sZq = 47,76+110,75 =158,51 кПа < RZ=361,11 кПа, следовательно, размеры
фундамента подобраны верно.
6.2
Определение осадки ленточного фундамента
Определить осадку ленточного фундамента шириной 2,0 м,
среднее давление по подошве фундамента Рср=Pm=224,28 кПа, глубина
заложения от планировочной отметки 3,35 м. Инженерно-геологические условия в
соответствии с инженерно-геологическим разрезом (смотри графическую часть),
физико-механические характеристики грунта в соответствии с таблицей.
Строим эпюру распределения вертикальных напряжений от
собственного веса в пределах глубины 6×b=6×2,0 м=12,0 м ниже подошвы фундамента.
На подошве 2-го слоя (песок мелкий):
sZq1=g2×h1=16,4∙3=49,2 кПа;
,2×sZq1=0,2·49,2=9,84 кПа.
На уровне грунтовых вод:
sZq гр. в. =sZq1+g3×h2=49,2+18,9·0,1=61,09 кПа;
,2×sZq0=0,2×51,09=10,22 кПа.
На подошве фундамента:
sZq0=sZq гр. в +gsb2×h2’=61,09+ 9,4·0,25=74,58
кПа;
,2×sZq0=0,2×74,58=14,92 кПа.
На подошве 3-го слоя (суглинок мягкопластичный) с учетом взвешивающего
действия воды:
sZq2=sZq0+gsb2×h3’=74,58+9,4· (4,2-0,25)
=110,75 кПа;
,2×sZq2=0,2×110,75=22,15 кПа.
На подошве 4-го слоя (глина тугопластичная) с учетом
взвешивающего действия воды:
sZq3=sZq2+gsb3×h4=110,75+9,83·3,1=141,23кПа;
,2×sZq3=0,2×141,23=28,25 кПа.
На подошве 5-го слоя (глина тугопластичная) с учетом
взвешивающего действия воды:
sZq4=sZq3+gsb4×h5=141,23+9,41·4,45=183,1
кПа;
,2×sZq4=0,2×183,1=36,62 кПа.
Эпюры sZqi и 0,2sZqi показаны в графической
части.
Дополнительное давление на основание под подошвой фундамента:
P0=Pср-sZq0=224,28 - 74,58=149,7
кПа. (39)
Толщу грунта мощностью 6b=12 м ниже подошвы
фундамента разбиваем на слои hi£0,4b£0,4×2=0,8 м, принимаем hi=0,8 м.
Далее строим эпюру распределения дополнительных (к боковому) вертикальных
напряжений в грунте, где a определяем в
зависимости от
Вычисления сведем в таблицу 6. Осадку определим в пределах
сжимаемой толщи, т.е. до точки пересечения эпюр szp=0,2sZq.
Таблица 7 - К расчету осадки фундамента
|
Наименование
грунта
|
Ei,
МПа
|
Толщина пласта
грунта, м
|
ɣisb, кН/м
|
σzq, кПа
|
0,2·σzq, кПа
|
hi,
м
|
Zi,
м
|
ƺ
|
ɑ
|
σzp, кПа
|
Si,
м
|
|
11,90
|
|
|
74,58
|
14,92
|
0
|
0
|
0
|
1,00
|
149,70
|
0,0000
|
|
11,90
|
|
|
82,10
|
16,42
|
0,8
|
0,8
|
0,8
|
0,88
|
131,89
|
0,0089
|
|
Суглинок
|
11,90
|
|
|
89,61
|
17,92
|
0,8
|
1,6
|
1,6
|
0,64
|
96,11
|
0,0065
|
|
мягкопластичный
|
11,90
|
3,85
|
9,40
|
97,13
|
19,43
|
0,8
|
2,4
|
2,4
|
0,48
|
71,41
|
0,0048
|
|
11,90
|
|
|
104,64
|
20,93
|
0,8
|
3,2
|
3,2
|
0,37
|
55,99
|
0,0038
|
|
12,82
|
|
|
110,75
|
22,15
|
0,65
|
3,85
|
3,85
|
0,32
|
47,76
|
0,0024
|
|
12,82
|
|
|
112,23
|
22,45
|
0,15
|
4
|
4
|
0,31
|
45,81
|
0,0005
|
|
Глина
|
16,80
|
|
|
120,09
|
24,02
|
0,8
|
4,8
|
4,8
|
0,26
|
38,62
|
0,0018
|
|
тугопластичная
|
16,80
|
3,10
|
9,83
|
127,96
|
25,59
|
0,8
|
5,6
|
5,6
|
0,22
|
33,38
|
0,0016
|
|
16,80
|
|
|
135,82
|
27,16
|
0,8
|
6,4
|
6,4
|
0, 20
|
29,34
|
0,0014
|
|
16,14
|
|
|
141,23
|
28,25
|
0,55
|
6,95
|
6,95
|
0,18
|
27,25
|
0,0009
|
|
16,14
|
|
|
143,58
|
28,72
|
0,25
|
7,2
|
7,2
|
0,18
|
26, 20
|
0,0004
|
|
14,70
|
|
|
151,11
|
30,22
|
0,8
|
8
|
8
|
0,16
|
23,65
|
0,0013
|
|
Глина
|
14,70
|
|
|
158,64
|
31,73
|
0,8
|
8,8
|
8,8
|
0,14
|
21,41
|
0,0012
|
|
тугопластичная
|
14,70
|
4,45
|
9,41
|
166,17
|
33,23
|
0,8
|
9,6
|
9,6
|
0,13
|
19,76
|
0,0011
|
|
14,70
|
|
|
173,69
|
34,74
|
0,8
|
10,4
|
10,4
|
0,12
|
18,26
|
0,0010
|
|
14,70
|
|
|
181,22
|
36,24
|
0,8
|
11,2
|
0,11
|
16,92
|
0,0009
|
|
14,70
|
|
|
188,75
|
37,75
|
0,8
|
12
|
12
|
0,11
|
15,87
|
0,0009
|
|
|
|
|
|
|
|
|
|
|
Σ=
|
0,0261
|
Суммируем осадку в пределах сжимаемой толщи Hl=6,782 м.
S=0,8·(0,089+0,0065+0,0048+0,0038+0,0024+0,0005+0,0018+0,0016+0,0014+
+0,009) =0,0216 м=2,16 см<Su=8 см.
Следовательно, основное условие расчета по 2-ой группе
предельных состояний удовлетворяется.
7. Расчет и
конструирование железобетонных фундаментов в заданном сечении, подбор арматуры
7.1 Расчет
ленточного фундамента, подбор арматуры
Нужно рассчитать армирование сборной железобетонной
фундаментной плиты. Расчёт производим по ТКП 45-5.01-67-2007 приложению Д.
Ширина плиты b=2,0 м, класс бетона С12/15, с расчетными характеристиками fck=12 МПа, fcd=8 МПа, арматура класса S500 с fyd=435 МПа.
Так как фундамент работает центрально нагружено, то расчетные
изгибающий момент и поперечная сила будут определяться по формулам:
(40),
(41)
где Pm - среднее давление под подошвой фундамента, передаваемое на грунт от
расчетных нагрузок;
а - вылет
консоли фундамента.
Pm=224,28 кПа, определено при расчете
размеров подошвы фундамента.
кН/м.
кН.
hf=500 мм, d=500-45=455 мм.
Определяем площадь рабочей арматуры в сечении 1-1 по формуле:

(42)
где
-коэффициент определяемый в зависимости от
значения
, таблица Д (1):
(43)
Тогда по таблице Д (1)
.
Примем арматуру 8ÆS500 с общей
площадью Аst=5,024 см2 и шагом 200 мм, поперечная
арматура - стержни 6ÆS240 с шагом 200 мм.
Рисунок 9-Расчетная схема ленточного фундамента.
Выполним поверку наклонного сечения. Для этого проверим условие:
(44)
(45)
Тогда
.
кН·м>
кН·м.
Условие выполняется.
8. Технология
производства работ по устройству фундаментов
Из двух просчитанных вариантов предпочтительно устраивать
фундаменты мелкого заложения, т.е. в открытом котловане. При устройстве
фундаментов мелкого заложения разбивку мест установки элементов фундамента
проводят до их монтажа путем натягивания проволоки между обносками по
продольным и поперечным осям. С помощью отвеса на дно котлована переносят точку
пересечения проволоки оси и размещают положение трех узлов фундаментной плиты.
Нивелиром проверяется отметка основания дна котлована под фундамент,
горизонтальность основания в различных направлениях выверяют рейкой и уровнем.
С помощью теодолита определяется правильность установки плитной части
фундамента по осевым рискам или отвесом, подвешенным к проволочным осям,
Монтаж отдельных сборных фундаментов разделяется на:
устройство основания;
подачу сборных элементов в котлован с их установкой в
проектное положение;
заделкой стыков и швов.
Сборные элементы монтируются краном с установкой его внутри
контура котлована, что обуславливает максимальное приближение крана к
монтируемому фундаменту.
Особое внимание обращается на сохранность естественной
структуры грунтов основания. Не допускается движение монтажных средств по
подготовленной поверхности основания фундаментов.
Список
использованной литературы
1.
ТКП 45-5.01-67-2007. Фундаменты плитные. Правила проектирования. Минск: Стройтехнорм,
2008г.
.
СНБ 5.01.01-99 Основания и фундаменты зданий и сооружений - Минск:
Стройтехнорм, 1985г.
.
Веселов В.А. Проектирование оснований и фундаментов - М.: Стройиздат, 1990. -
304 с.
.
П4-2000 к СНБ 5.01.01-99. Проектирование забивных свай. - Минск: БелНИИС, 2001.
- 68 с.