Теоретичні засади управління персоналом на підприємстві на прикладі КООП 'Максим'
ЗМІСТ
ВСТУП
РОЗДІЛ 1. ТЕОРЕТИЧНІ ЗАСАДИ
УПРАВЛІННЯ ПЕРСОНАЛОМ
.1 Управління персоналом: суть,
завдання, основні принципи
.2 Методи управління персоналом
.3 Система управління
персоналом
.4 Персонал як об’єкт
управління
Висновки до розділу 1
РОЗДІЛ 2. ПЕРСОНАЛ ЯК ОБ ЄКТ ТА
ВАЖЛИВИЙ РЕСУРС ОРГАНІЗАЦІЇ НА ПРИКЛАДІ КООП «МАКСИМ» 7
2.1 Загальна характеристика
підприємства КООП «Максим»
2.2 Аналіз основних
техніко-економічних показників діяльності підприємства КООП «Максим» 0
2.3 Характеристика персоналу як
найважливішого й найбільш цінного ресурсу організації
.4 Аналіз системи мотивації
персоналу на КООП «Максим»
Висновки до розділу 2
РОЗДІЛ 3. НЕОБХІДНІСТЬ РОЗВИТКУ
ТА ЗБЕРЕЖЕННЯ ПЕРСОНАЛУ ОРГАНІЗАЦІЇ
3.1 Розвиток трудового
потенціалу підприємства в сучасних умовах
3.2 Шляхи вдосконалення
ефективності управління персоналом на підприємстві КООП «Максим»
Висновки до розділу 3
РОЗДІЛ 4. ОХРОНА ПРАЦІ
.1 Характеристика та аналіз
потенційно шкідливих і небезпечних виробничих факторів на підприємстві
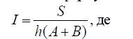
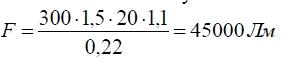
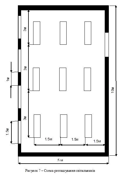
4.2 Розрахунки освітлення
приміщення та розробка правил техніки безпеки на підприємстві
Висновки до розділу 4
РОЗДІЛ 5.БЕЗПЕКА В НАДЗВИЧАЙНИХ
СИТУАЦІЯХ
.1 Оцінка захисту персоналу
об’єкта при виникненні радіаційної обстановки в регіоні
.2 Характеристика об’єкта
.3 Аналіз проведеного
дослідження
Висновки до розділу 5
ВИСНОВКИ
Список використаної літератури
ВСТУП
Корінні зміни, що сталися в системі
функціонування вітчизняних підприємств
та всього народного господарства України в цілому, створили
велику
потребу в нових управлінських знаннях, посилили інтерес до
системи
формування персоналу з високими професійно-кваліфікаційними
характеристиками,
орієнтованого на досягнення кінцевої мети.
Ефективність економіки будь-якого суспільства в
першу чергу визначається якістю наявних трудових ресурсів та способом їх
включення у виробництво, адже основною продуктивною силою є люди з їхніми
здібностями та можливостями.
Якісне відтворення людських ресурсів, формування
трудового потенціалу та раціональне його використання - все це залежить від
управління людськими ресурсами на всіх рівнях. Відоме гасло „Кадри вирішують
все" в умовах демократизації суспільства й ринкової економіки набуває
неабиякого значення.
Підготовка компетентного персоналу,
здатного до продуктивної роботи в ринкових умовах, його раціональне структурне
і просторове розміщення, зміна культури управління підприємства, врешті-решт,
залежить від ефективності функціонування служби управління персоналом і є
запорукою досягнення успіху підприємством. Без мотивованих і
кваліфікованих співробітників
жодна організація не в змозі створити добре працюючі
системи
маркетингу, продажу, фінансів або бухгалтерського обліку.
Управління персоналу особливо важливий у сучасних умовах глобальної конкуренції
і стрімкого науково-технічного прогресу, коли продукти, технології, операційні
методи і навіть організаційні структури старіють з нечуваною швидкістю, а
знання та навички співробітників компанії стають головним джерелом тривалого
розквіту будь-якої компанії.
Вивчення досвіду економічно розвинених
країн показує, що своїми успіхами вони багато в чому завдячують системі
управління персоналом, виробництвом та обміном матеріальних благ, що дістала
назву менеджменту. Система кадрового менеджменту забезпечує безупинне
удосконалювання методів роботи з кадрами і використання досягнень вітчизняної й
закордонної науки і найкращого виробничого досвіду. Сутність кадрового
менеджменту полягає у встановленні організаційно-економічних,
соціально-психологічних і правових відносин суб'єкта й об'єкта управління. В
основі цих відносин лежать принципи, методи і форми впливу на інтереси,
поводження і діяльність працівників із метою максимального їх використання. Без
людей немає організації. Безсумнівно, що управління трудовими ресурсами є одним
із найважливіших аспектів теорії й практики управління.
Ефективне управління трудовими
ресурсами як особлива функція діяльності, пов'язана з найманням працівників,
їхнім навчанням, оцінкою й оплатою їхньої праці, є важливою передумовою для
ефективного функціонування виробництва. Головна мета управління персоналом
складається в забезпеченні підприємства працівниками, що відповідають вимогам
даного підприємства, їхньої професійної і соціальної адаптації.
Тому важливою умовою управління
персоналом є захищати інтереси працівників, оскільки саме вони призводять до
ефективності управління і саме тому існує така наука управління персоналом, яка
включає в себе всі аспекти управління ( методи, концепції, принципи), за
допомогою яких здійснюється процес прийняття управлінських рішень. На даний час
особливої уваги отримало управління розвитком персоналу, що передбачає
навчання, перепідготовку та підвищення кваліфікації, а також новий підхід до
управління соціальним розвитком, що забезпечує охорону здоров'я, соціальне
страхування, правове забезпечення, інформаційне забезпечення. Реалізація цих
процесів суспільного життя населення є актуальною та важливою вимогою в
діяльності кожної організації.
Актуальність теми дипломної роботи
визначається важливістю розгляду персоналу як об’єкта дослідження та найбільш
важливого ресурсу в організації.
Мета дослідження полягає в
обґрунтуванні та поглибленні теоретичних, методичних, організаційно-економічних
аспектів та систематизації вже існуючих наукових здобутків на ниві управління
персоналом.
Для досягнення
поставленої мети були поставлені такі завдання:
- проаналізувати теоретичні засади
управління персоналом;
проаналізувати специфіку роботи
підприємства, розкрити зміст, напрями та методи управління персоналом в
організації;
-
надати рекомендації щодо управління персоналом на
підприємстві КООП «Максим»;
- розглянути
питання охорони праці на стадії розробки методики розрахунка;
-
розглянути питання безпеки в надзвичайних ситуаціях.
Об'єктом дослідження дипломної
роботи є підприємство КООП «Максим».
Предмет дослідження - персонал
як найважливіший та найбільш важливий ресурс організації.
У процесі роботи використовувались
наступні методи: спостереження,порівняння,
вимірювання, моделювання, аналіз і синтез.
Дипломна робота складається з
вступу, п’яти розділів, висновків та пропозицій, списку використаної літератури
який складається з 33 джерел та налічує 97 сторінок друкованого тексту.
РОЗДІЛ 1. ТЕОРЕТИЧНІ
ЗАСАДИ
УПРАВЛІННЯ ПЕРСОНАЛОМ
НА ПІДПРИЄМСТВІ
КООП
«МАКСИМ»
1.1
Управління персоналом: суть, завдання, основні принципи
Процеси управління
людьми здійснювались у всіх цивілізаціях і різних соціумах. Управління
персоналом - це специфічна функція управлінської діяльності, головним об'єктом
якої є люди, що входять у певні соціальні групи, трудові колективи. Як суб'єкт
управління виступають керівники і спеціалісти, які виконують функції управління
стосовно своїх підлеглих. Отже, управління персоналом - це цілеспрямована
діяльність керівного складу організації на розробку концепції, стратегій
кадрової політики і методів управління людськими ресурсами. Це системний,
планомірно організований вплив через систему взаємопов'язаних, організаційно
економічних і соціальних заходів, спрямованих на створення умов нормального
розвитку й використання потенціалу робочої сили на рівні підприємства.
Планування, формування, перерозподіл і раціональне використання людських
ресурсів є основним змістом управління персоналом.
Концепція
управління персоналом - система теоретично-методологічних поглядів на розуміння
та визначення суті, змісту, цілей, завдань, критеріїв, принципів і методів
управління персоналом та розробка механізмів їх реалізації в умовах конкретної
організації. Загальна концепція конкретизується через кадрову політику та
кадрову роботу. Основна мета управління персоналом:
• формування
висококваліфікованого, відповідального за доручену справу персоналу з сучасним
економічним мисленням та розвитком по чуття професійної гордості;
• забезпечення
соціальної ефективності колективу.
Управління
персоналом як цілісна система виконує такі функції:
· організаційну
- планування потреб і джерел комплектування персоналу;
· соціально-економічну
- забезпечення комплексу умов і факторів, спрямованих на раціональне
закріплення й використання персоналу;
· відтворювальну
- забезпечення розвитку персоналу.
Отже, управління
персоналом - це і наука і мистецтво ефективного управління людьми в умовах їх
професійної діяльності. Це система принципів, методів і механізмів оптимального
комплектування, розвитку й мотивації та раціонального використання персоналу.
Управління
персоналом повинно відповідати концепції розвитку підприємства, захищати
інтереси працівників і забезпечувати дотримання законодавства про працю при
формуванні, закріпленні (стабілізації) і використанні персоналу.
Отже, завдання
зводиться до:
· забезпечення
підприємства в потрібній кількості й якості персоналу на поточний період і на
перспективу;
· створення
рівних можливостей ефективності праці та раціональної зайнятості працівників,
стабільного і рівномірного завантаження протягом робочого періоду;
· задоволення
розумних потреб персоналу;
· забезпечення
відповідності трудового потенціалу працівника, його психофізіологічних даних до
вимог робочого місця;
· максимальної
можливості виконання різних операцій на робочому місці.
Управління
персоналом як система включає два блоки: організаційний і функціональний.
До організаційного
відносять:
- формування
персоналу - це прогнозування структури, визначення потреб, залучення, підбір та
розміщення персоналу й укладання договорів та контрактів;
- стабілізація
персоналу - це формування банку даних з питань рівня кваліфікації, персональних
умінь, бажань, результатів оцінки праці з метою визначення потенціалу кожного
працівника для організації навчання, підвищення кваліфікації і закріплення чи
звільнення працівників.
Функціональний
пов'язаний із:
- використанням
персоналу, що включає, професійно-кваліфікаційне і посадову переміщення
працівників (управління кар'єрою),
створення
постійного складу персоналу та робочих місць, покращення морально-психологічного
клімату в колективі.
Також важлива
галузь управління змінами статусу робітників підприємства.
Організації також
мають працювати над розвитком людських ресурсів.
Навчання та
підвищення кваліфікації дають можливість працівникам виконувати продуктивно
теперішню роботу і підготуватися до майбутньої. У процесі менеджменту людських
ресурсів навчання полягає в ознайомленні виробничого та технічного персоналу із
виконання тої роботи, на яку їх було прийнято. Підвищення кваліфікації
стосується навчання менеджерів та спеціалістів навикам, що потрібні як для
теперішньої, так і для майбутньої роботи. Більшість організацій складає
програми постійного навчання та підвищення кваліфікації для менеджерів і
працівників. Оцінення результатів виконання потрібне для визначення потреби у
навчанні, ухвалення рішення щодо підвищення заробітної платні, переміщення на
інші посади та забезпечення ефективного зворотного зв'язку працівниками. Можна
користуватися як об'єктивними методами оцінення, так і методами судження, а
ефективна система, звичайно, передбачає кілька методів. Правильність оцінення
залежить від детального врахування багатьох аспектів виконання працівником
своїх службових обов'язків.
Утримання людських
ресурсів також дуже важливе для організації. Для цього потрібні ефективна
оплата праці та система доплат. Оплата праці є грошовою компенсацією
організації своїм працівникам в обмін на їхню працю. Оплата праці має бути
справедливою щодо інших посад в організації, а також щодо таких самих або
подібних робіт в інших організаціях на ринку праці. Правильно розроблена
система оплати праці та матеріального заохочення, а також обґрунтована система
доплат сприяють залученню та втриманню хороших працівників.
Планування кар'єри
також належить до пріоритетних аспектів менеджменту людських ресурсів. Кар'єра
- це суб'єктивно усвідомлені власні судження працівника про своє трудове
майбутнє, очікувані шляхи самовираження та задоволення працею. Розрізняють два
види кар'єри: професійну - навчання, вибір місця роботи, професійне зростання,
підтримання та розвиток індивідуальних професійних здібностей, вихід на пенсію;
внутрішньорганізаційну - охоплює зміну стадій розвитку працівника у межах
однієї організації. Успішне планування кар'єри потребує участі трьох
зацікавлених сторін: організації, керівника і працівника. В управлінні кар'єрою
відоме поняття „плато кар'єри", під яким розуміють точку у кар'єрному
розвитку, коли ймовірність дальшого просування вгору дуже мала. Цією точкою
закінчується висхідна частина кар'єри.
Диверсифікація
робочої сили є у групах і організаціях, учасники яких відрізняються один від
одного за однією або кількома ознаками. Найважливіші ознаки, за якими
відбувається диверсифікація, - це вік, стать та національність. Диверсифікація
впливає на організацію у таких напрямах: диверсифікація як конкурентна
перевага, диверсифікація як джерело конфлікту. Менеджмент диверсифікації можуть
проводити як окремі особи, так і організація загалом.
Трудові стосунки -
це процес взаємовідносин із працівниками, що об'єднані профспілкою. Більшість
не керівного персоналу організації має право, за бажанням, об'єднатися у
профспілки.
Адміністрація має
брати участь у складанні колективної угоди разом із профспілкою щодо контракту.
Метою колективної
угоди є погодження трудового контракту між адміністрацією та профспілкою, який
задовольняв би обидві сторони. Контракт містить домовленості щодо заробітної
плати, тривалості робочого часу, умов праці, переведення на посади, звільнення,
дисципліни, видів доплат, графіків понаднормового робочого часу, вихідних та
відпусток, методів вирішення конфліктів.
Під час дії
контракту для вирішення трудових конфліктів використовують конфліктну
процедуру. Конфліктна процедура - це засоби вирішення конфліктів на умовах
трудового контракту.
Рис.1.1. Утримання
людських ресурсів.
Рис.1.2. Розвиток
людських ресурсів.
|
Структуру служби управління персоналом на
підприємстві визначає характер його діяльності та розмір. Наводимо
орієнтований склад функціональних підсистем системи управління персоналом,
які обєднують сукупність однорідних функцій:
|
|
1
|
2
|
|
Підсистема служби управління персоналом.
|
Характеристика функціональних завдань.
|
|
1.Підсистема маркетингу, прогнозування та
планування персоналу.
|
Аналіз кадрового потенціалу;вироблення
стратегії управління персоналом; аналіз ринку праці;прогнозування та
планування потреби в персоналі;організація реклами;стосунки із зовнішніми
джерелами, що забезпечують організацію команди; оцінення кандидатів на
вакантні посади;поточне оцінення результатів діяльності.
|
|
2.Підсистема розвитку персоналу.
|
Технічне та економічне навчання;перепідготовка
та підвищення кваліфікації; управління кар’єрою; професійна та
спеціально-психологічна адаптація та профорієнтація працівників
|
|
3.Підсистема аналізу та вдосконалення системи
винагород.
|
Нормування та тарифікація трудового процесу;
управління вибором поведінки; розроблення оплати праці; розроблення форм
участі персоналу у прибутках та капіталі; Використання засобів морального
заохочення.
|
|
4.Підсистема умов праці.
|
Охорона праці та техніка безпеки; дотримання
норм технічної етики,ергономіки та психофізіології праці;
|
|
5.Підсистема трудових відносин.
|
Взаємодія з профспілками; аналіз і регулювання
керівництва; соціально-психологічна діагностика;аналіз регулювання групових
та особистих взаємовідносин; управління організаційними конфліктами.
|
|
6.Підсистема юридичних послуг.
|
Вирішення питань трудових відносин; узгодження
розпорядчих документів із питань
|
|
управління персоналом.
|
|
7. Підсистема обліку персоналу.
|
Оформлення та облік найму; звільнення та
переміщення персоналу; інформаційне забезпечення системи управління
персоналом.
|
|
8.Підсистема розвитку соціальної
інфраструктури.
|
Правління житлово-побутовим обслуговуванням;
забезпечення охорони здоров’я та відпочинку; організація продажу продуктів
харчування та товарів широкого вжитку.
|
|
9.Підсистема розроблення та вдосконалення
організації структури управління.
|
Аналіз наявної організаційної структури
управління;проектування організаційної структури; розроблення штатного
розпису.
|
Табл.1.1. Складові
служби управління персоналом.
Управління
персоналом повинно орієнтуватись на тенденції та плани розвитку організації,
досягнення основних її цілей, що вимагає врахування таких аспектів:
· довгостроковий
розвиток організації;
· забезпечення
ринкової незалежності;
· одержання
відповідних дивідендів;
· самофінансування
розвитку підприємства;
· збереження
фінансової рівноваги;
· закріплення
досягнутого.
Виходячи з цього,
основним завданням управління персоналом є удосконалення:
· кадрової
політики;
· використання
і розвиток персоналу;
· вибору
і реалізації стилю управління людьми;
· організації
горизонтальної координації і кооперації;
· покращення
організації робочих місць і умов праці;
· визнання
особистих досягнень у праці;
- вибір системи
оплати й стимулювання.
Вибір стратегії
управління персоналом визначається реальними умовами роботи підприємства, з
врахуванням яких можна вибирати такі стратегії:
· стратегію
економії затрат на персонал. Суть цієї стратегії полягає в тому, що при
покращенні економічної кон'юнктури залучають додаткову кількість працівників і
звільняють їх за умов її погіршення;
· стратегію
узгодження прогнозів потреб персоналу з планами розвитку організації;
· стратегію
забезпечення підприємства висококваліфікованим персоналом;
· стратегію
додаткових вкладень не тільки в підготовку і розвиток персоналу, а й у
створення умов для раціонального його використання. Така стратегія характерна
для організації з високим рівнем нових напрямів науково-технічного прогресу,
який ставить високі вимоги до якості персоналу.
Управління
персоналом ґрунтується на таких принципах:
· науковість,
демократичний централізм, планомірність, єдність розпоряджень;
· поєднання
одноосібного і колективного підходів, централізації та децентралізації,
лінійного, функціонального і цільового управління;
· контроль
за виконанням рішень.
Управління
персоналом є важливим компонентом управління організацією.
Специфіка людських
ресурсів виражається у тому, що, по-перше, люди наділені інтелектом, їх реакція
на управління є емоційною, продуманою, а не механічною, а це означає, що процес
взаємовідносин є двосторонній; по-друге, люди постійно вдосконалюються і
розвиваються; по-третє, відносини ґрунтуються на довготерміновій основі,
оскільки трудове життя людини може продовжуватись протягом 30-50 років; і
останнє, люди приходять в організацію усвідомлено, з певними цілями і мотивами.
Управління
персоналом у даний час повинно акцентувати увагу на таких позиціях:
· людина
- джерело доходу;
· вся
діяльність організації спрямована на досягнення економічних результатів і
одержання прибутку;
· успішна
робота можлива тільки при забезпеченні організації високопрофесійним штатом
працівників, фірма цінна своїми людьми.
На думку багатьох
зарубіжних економістів, головним у роботі з людськими ресурсами є:
- використання
індивідуальних здібностей працівників відповідно до стратегічних цілей
організації, в першу чергу, для оволодіння новою технікою й технологіями;
- інтеграція бажань,
потреб і мотивів працівників з інтересами фірми.
Суть управління
людськими ресурсами в забезпеченні досягнень цілей
організації за
рахунок комплектування її виробничим персоналом відповідної компетенції.
Стратегія управління людськими ресурсами визначення шляхів розвитку необхідної
компетенції всього персоналу і кожного її співробітника зокрема. Іншими
словами, управління персоналом - це плани, що використовують можливості
зовнішнього середовища для зміцнення і збереження конкурентоспроможності
організації за допомогою своїх працівників. Управління людьми є основою
управління організації. [6,с
15-18]
1.2 Методи
управління персоналом
Управління
персоналом здійснюється при допомозі науково розроблених методів. Методи - це
спосіб впливу на колектив або окремого працівника для досягнення поставленої
цілі, координації його діяльності в процесі виробництва. В теорії і практиці
управління застосовують три групи методів: адміністративні, економічні і
соціально-психологічні.
Адміністративні
методи ґрунтуються на владі, дисципліні та покаранні, відомі в історії як
«метод кнута». Вони опираються на адміністративну підпорядкованість об'єкта
суб'єкту, на основі існуючої ієрархії управління. Адміністративні методи
орієнтуються на такі мотиви поведінки, як усвідомлена необхідність трудової
дисципліни, почуття обов'язку, бажання людини працювати в певній організації,
культура трудової діяльності. Вони досить різноманітні і діють через такі
механізми:
· правові
норми й акти - державні Закони, укази, положення, стандарти, інструкції,
затверджені державними органами і є обов'язковими для виконання;
· інструкції,
організаційні схеми, нормування;
· накази,
розпорядження, які використовуються в процесі оперативного управління.
Головні функції
адміністративних методів - це забезпечення стабільного юридичного середовища
для діяльності організації, захисту конкретного середовища, гарантування прав і
свобод.
Економічні методи
базуються на використанні економічних стимулів і відомі як «метод пряника». За
їх допомогою здійснюється матеріальне стимулювання колективу, окремих
працівників. [6,с 18-19]
Механізмами
економічного методу на рівні держави є: податкова, кредитно-фінансова система,
система цін, розмір мінімальної заробітної плати, плани економічного розвитку.
В умовах
підприємств це - економічні нормативи діяльності, система матеріального
заохочення, участь у прибутках і капіталі, премії тощо.
Соціально-психологічні
методи засновані на використанні моральних стимулів до праці і впливають на
персонал з допомогою психологічних механізмів з метою переведення
адміністративного завдання в усвідомлений обов'язок, внутрішню потребу людини.
Цього можна досягти через:
· формування
колективу, створення нормального психологічного клімату й творчої атмосфери;
· особистий
приклад;
· задоволення
культурних і духовних потреб працівників;
· встановлення
соціальних норм поведінки і соціального стимулювання розвитку колективу;
· встановлення
моральних санкцій і заохочення;
· соціальний
захист.
Крім цих базових
методів управління персоналом, використовують систему методів, що наведена в
табл.1.2.
Табл.1.2.Система методів управління
персоналом.
Методами управління персоналом
називають способи впливу на колективи й окремих працівників з метою здійснення
координації їхньої діяльності в процесі виробництва.
1.3 Система
управління персоналом
Управління
персоналом - багатогранний і виключно складний процес, який характеризується
своїми специфічними особливостями і закономірностями. Управлінню персоналу
властива системність і завершеність на основі комплексного вирішення проблем,
їх відтворення. Системний підхід передбачає врахування взаємозв'язків між
окремими аспектами проблеми для досягнення кінцевих цілей, визначення шляхів їх
вирішення, створення відповідного механізму управління, що забезпечує
комплексне планування та організацію системи.
Система управління
- це упорядкована сукупність взаємозв'язаних елементів, які відрізняються
функціональними цілями, діють автономно, але спрямовані на досягнення загальної
мети.
Система
організаційно закріплює певні функції за структурними одиницями, працівниками,
а також регламентує потоки інформації в системі управління.
Система управління
людськими ресурсами постійно розвивається й удосконалюється. На кожному етапі
розвитку суспільства вона повинна приводитись відповідно до вимог розвитку
продуктивних сил, вносячи корективи в окремі її елементи.
Управління
персоналом забезпечується взаємодією керуючої та керованої системи.
Керуюча система
(суб'єкт) - це сукупність органів управління й управлінських працівників з
певними масштабами своєї діяльності, компетенцією та специфікою виконуючих
функцій. Вона може змінюватись під впливом організуючих і дезорганізуючих
факторів. Керуюча система представлена лінійними керівниками, які розробляють
комплекс економічних й організаційних заходів щодо відтворення і використання
персоналу.
Керована система
(об'єкт) - це система соціально-економічних відносин з приводу процесу
відтворення й використання персоналу.
Управління
персоналом являє собою комплексну систему, елементами якої є напрями, етапи,
принципи, види і форми кадрової роботи. Основними напрямками є набір і
збереження персоналу, його професійне навчання і розвиток, оцінка діяльності
кожного працівника з точки зору реалізації цілей організації, що дає можливість
скорегувати його поведінку.
При всій
різноманітності організацій, які є в сучасному суспільстві і видів діяльності,
якими вони займаються, в роботі з людськими ресурсами вирішують одні і ті самі
завдання, незалежно від їх специфіки.
По-перше, кожна
організація залучає потрібну кількість працівників. Способи підбору залежать
від характеру та умов роботи організації.
По-друге, всі без
винятку проводять навчання своїх працівників, щоб пояснити завдання і привести
їх навички і уміння відповідно до вимог завдання.
По-третє,
організації здійснюють оцінку результатів діяльності кожного працівника. Форми
оцінки є різноманітними, як і типи організацій.
І нарешті, кожна
організація тією чи іншою мірою винагороджує своїх працівників, тобто компенсує
затрати часу, енергії, інтелекту, які вони витрачають для досягнення
поставлених цілей.
Названі функції
існують у будь-якій організації, але вони можуть виражатись у різних формах і
різній мірі розвитку.
Отже, щоб успішно
розвиватись, організація повинна управляти набором, навчанням, оцінкою,
винагородами персоналу, тобто створювати, удосконалювати методи, процедури,
програми організації цих процесів. У сукупності й єдності методи, процедури,
програми являють собою систему управління персоналом.
Головними
елементами системи управління є люди, які одночасно виступають об'єктом і
суб'єктом управління. Здатність людських ресурсів одночасно виступати як об'єктом,
так і суб'єктом управління - основна специфічна особливість управління.
Отже, соціально
економічна система являє собою єдність керуючої та керованої систем, а механізм
управління - це сукупність відносин, форм та методів впливу на формування, розподіл
і використання трудових ресурсів у державі.
Система управління
персоналом в організації складається з комплексу взаємопов'язаних підсистем
(елементів).
Підсистема - це
виділені за функціональними елементами або організаційними ознаками частини системи,
кожна із яких виконує певні завдання, працює автономно, але спрямована на
вирішення загальної мети.
Система підсистем
має багатоступеневу структуру, з великою кількістю напрямів діяльності.
[6,с
21-24]
Традиційно
виділяють підсистеми, що відповідають основним функціям управління людськими
ресурсами (рис.1.3.).
Рис. 1.3.Система управління
персоналом організації.
На рисунку наведено
склад функціональних підсистем системи управління людськими ресурсами. Залежно
від розміру організації, склад підсистеми змінюється: в малих організаціях в
одну підсистему включають функції кількох підсистем, а у великих - функції
кожної підсистеми виконують окремі підрозділи.
Комбінація цих
підсистем унікальна для кожної організації і визначає її специфіку.
Люди виконують
спеціальну роль в організації. З одного боку, вони є творцями організації,
визначають її цілі і вибирають методи досягнення цих цілей, а з другого - люди
є важливим ресурсом, який використовують всі організації для реалізації власних
цілей. В цій якості персоналу необхідне управління. Управління персоналом являє
собою особливу сферу управління у зв'язку зі специфікою його об'єкта -
людини.
У практиці
управління персоналом в останні роки чітко просліджується переплітання різних
його моделей: американської, японської і західноєвропейської. В цьому
проявляється процес інтернаціоналізації сучасного менеджменту. Важливим етапом
цього процесу стали асиміляція ідей системного підходу, розробка різних моделей
організації, як системи - не тільки функціонуючої, але й такої, що
розвивається, на основі яких сформувався новий підхід у кадровому менеджменті -
управлінні людськими ресурсами.
В сучасній теорії і
практиці управління персоналом на фірмах індустріально розвинутих країн
домінують два діаметрально протилежних підходи - американський і японський.
Американський -
передбачає початкове визначення професійно-кваліфікаційної моделі «посади» і
«підтягування» до найбільш відповідних працівників за схемою «посада -
працівник». Особливостями системи управління в американських фірмах є наступне:
персонал розглядається як основне джерело підвищення ефективності виробництва;
йому надається певна автономія; підбір здійснюється за такими критеріями, як
освіта, практичний досвід роботи, психологічна сумісність, уміння працювати в
колективі; орієнтація на вузьку спеціалізацію менеджерів, інженерів, вчених.
Американські
менеджери традиційно орієнтовані на індивідуальні цінності і результати. Вся
управлінська діяльність в американських компаніях ґрунтується на механізмі
індивідуальної відповідальності, оцінці індивідуальних результатів, розробки
кількісних виражень цілей, які мають короткотерміновий характер. Управлінські
рішення, як правило, приймають конкретні особи і несуть відповідальність за їх
реалізацію.
Характерними
умовами праці є:
· зменшення
обсягів роботи в центральних службах і скорочення адміністративного апарату;
· більш
широкий перелік професій і посадових інструкцій;
· перехід
на гнучкі форми оплати праці;
· об'єднання
інженерів, вчених і виробничників у наскрізні колективи - проектно-цільові
групи.
Традиційно в
індустріальних країнах, Канаді, США як малі, так і великі підприємства
дотримуються відкритої політики «вхід - вихід», при якій процедура підбору
кадрів проста, тому робітника можна звільнити або перемістити, якщо це потрібно
фірмі.
Японська модель
передбачає початкове вивчення сильних і слабких сторін особистості працівника і
підбір для нього відповідного робочого місця (система «працівник - посада»).
Японській моделі
характерна орієнтація на:
· довгу
перспективу роботи на одному підприємстві;
· якість
освіти й особистий потенціал робітника;
· оплата
праці визначається комплексно, з врахуванням віку, стажу роботи, освіти та
здібностей до виконання поставленого завдання;
· участь
працівників у профспілках, що створюються в межах організації, а не галузі.
В Японії не існує
традиції розподілу працівників на три категорії (висококваліфікованих,
малокваліфікованих і некваліфікованих). Всі робітники в час прийняття їх на
роботу є некваліфікованими. Вони обов'язково будуть підвищувати свою
кваліфікацію. До того ж, тут немає чіткої межі між інженерно-технічним
персоналом і робітниками.
В Європі і США
чітко визначені службові обов'язки інженера, техніка і робітника. Обидві моделі
- американська і японська мають як «плюси», так і «мінуси». Тому у світовій
практиці намітилась тенденція застосування змішаної системи управління
людськими ресурсами.
1.4 Персонал як об’єкт управління
Персонал - найбільш складний об'єкт
управління в організації, оскільки на підміну від речових факторів виробництва
є живим, дає можливість самостійно приймати рішення, діяти, критично оцінювати
пред'явлені до нього вимоги, має суб'єктивні інтереси і т. ін. Персонал є "мотором"
будь-якої організації. Часто керівники основну увагу приділяють фінансовим,
виробничим питанням, проблемам матеріально-технічного забезпечення чи збуту
готової продукції, забуваючи про людей, які забезпечують роботу організації в
усіх напрямах. Ці помилки занадто дорого коштують.
Без людей немає організації, а без потрібних людей жодна з них не зможе досягти
мети і вижити.
У сучасних умовах персонал є не тільки
найважливішим елементом виробничого процесу на підприємстві, а й головним
стратегічним ресурсом компанії в конкурентній боротьбі. Які б небулії прекрасні
ідеї, новітні технології, найсприятливіші умови, без добре підготовленого
персоналу, його високоефективної роботи домогтися успіху неможливо. Останнім
часом управління персоналом зазнало радикальних змін. Сформувався новий погляд
на робочу силу як на один із ключових ресурсів економіки, "людський
капітал", під яким розуміється форма вираження продуктивних сил людини, що
входить до системи соціально орієнтованої економіки ЯК провідний фактор виробництва.
Під впливом об'єктивних і
суб'єктивних обмежень цей новий вид капіталу формує потенціал людини, тобто
сукупність того, що вона може використовувати для досягнення цілей і
задоволення потреб. Працівники нині розглядаються вже не
як кадри, а як людські ресурси. їхня цінність як фактора успіху постійно
зростає. Поступово формується система управління людськими ресурсами, що
замінює стару систему управління кадрами. Вона має відіграти ключову роль у
забезпеченні умов конкурентоспроможності і довгострокового розвитку
організації.
Під управлінням людськими ресурсами
розуміють розроблення і застосування в організації формальних систем, що
забезпечують ефективне і продуктивне використання людських здібностей для
досягнення організаційних цілей. Сюди належить вся
діяльність із залучення, розвитку й утримання ефективної робочої сили.
Ця система ґрунтується на концепції людських
ресурсів, що визнає необхідність капіталовкладень у формування і цього
основного виду ресурсів. На відміну від концепції управління персоналом ця
концепція виправдовує економічну доцільність витрат, пов'язаних із залученням
якіснішої робочої сили, її безперервним навчанням, підтриманням у працездатному
стані та навіть створенням умов для повнішого виявлення можливостей і
здібностей, закладених в особистості, з подальшим їх розвитком. Вкладання в
людські ресурси стають довгостроковим фактором конкурентоспроможності та
виживання фірми. У зв'язку з цим затрати, пов'язані з персоналом, розглядаються
не як прикрі втрати, а як інвестиції в людський капітал - основне джерело
прибутку.
Під управлінням персоналом
розуміється система взаємозалежних організаційно-економічних і соціальних
заходів для створення умов щодо нормального функціонування, розвитку й
ефективного використання потенціалу робочої сили на рівні організації. Обов'язковою
умовою має бути органічне поєднання управління персоналом з концепцією розвитку
організації.
Класичний підхід до управління персоналом
одержав назву управління кадрами. Він характеризується:
- орієнтацією на авторитарний стиль керівництва
людьми;
- прагненням до мінімізації витрат
на залучення, підвищення кваліфікації кадрів, вирішення соціальних питань;
використанням переважно грошових
стимулів;
індивідуальною організацією праці та
її твердою регламентацією;
зосередженістю кадрових служб
виключно на роботі з документами, що не виходить за рамки фіксації процесів
наймання, переміщення і звільнення, планування потреби в кадрах відповідно до
завдань виробничих планів.
Усе управління персоналом у таких
умовах зосереджується у відділі кадрів і спрямоване на те, щоб забезпечити
наявність потрібних людей у потрібний час у потрібних місцях і звільнити
організацію від непотрібної робочої сили. Водночас управління
людьми - самостійна функція, здійснювана безпосередньо лінійними керівниками
незалежно від кадрових служб.
Однак, як уже зазначалося, спостерігається
стійка тенденція руху від управління кадрами до управління людськими ресурсами.
Вона характеризується такими змінами в діяльності кадрових служб:
- переходом від добору і розміщення
кадрів до участі у формуванні стратегії бізнесу й організаційних змін;
- наданням допомоги лінійному керівництву;
- професіоналізацією сфери управління
персоналом, скороченням у ній ролі технічних виконавців;
- участю у формуванні та реалізації політики
соціального партнерства;
орієнтацією на розвиток людських ресурсів у
тісному зв'язку з цілями організації, із забезпеченням її кваліфікованими,
всебічно розвинутими й освіченими працівниками.
Управління людськими ресурсами - головна функція
будь-якої організації. У рамках концепції управління людськими ресурсами
персонал зрівняний з основним капіталом, витрати на нього розглядаються як
довгострокові інвестиції, кадрове планування переплітається з виробничим,
працівники стають об'єктом корпоративної стратегії, активно впроваджується
групова організація праці, у зв'язку з чим робиться акцент на створенні команд,
на розвитку здібностей людей і формуванні корпоративної культури.
Кадрові служби вирішують
організаційні й аналітичні питання, а також надають підтримку лінійним
керівникам з метою полегшення адаптації працівників компанії. Як
відомо, у концепції людських відносин стверджується, що людина нині прагне:
по-перше, до способу існування в соціальних
зв'язках з іншими людьми;
по-друге, як елемент спільноти до економічної
функції, що потрібна групі та цінується нею.
Висновки до
розділу 1
У першому розділі були розглянуті
теоретичні засади управління персоналом. Сьогодні, поряд з
суттєвими досягненнями у цій сфері ще не вдалося подолати негативні тенденції,
що сьогодні визначають стан персоналу закладів соціальної сфери та результати
його діяльності (падіння престижу соціальних професій, відтік кваліфікованих
працівників та ін.). Причини, що зумовили таке положення, пов’язані як із
загальним станом суспільства, так і з тими процесами, що відбуваються в
соціальних закладах. Небезпечною, з точки зору якості кадрового забезпечення
закладів соціальної сфери, можна визначити ситуацію, коли фактичне становище
працівників соціальних закладів, реальне забезпечення державою їх прав,
обов’язків та законних інтересів відрізняється від їх правового статусу. На
сучасному ринку праці заклади соціальної сфери втрачають свої позиції
конкурентноздатного роботодавця.
Важливим видом соціального
управління є управління підприємством, управління галуззю, управління
територіально-господарським комплексом, управління фінансами, людськими
ресурсами, персоналом і т.д. Але це вже не окремі види управління, а частини
одного цілого - управління економікою.
Система виробничих відносин і
притаманна їй система об' єктивних економічних законів визначають не тільки
необхідність, а й можливість управління економікою.
Ринкова економіка поєднує усіх
членів трудового колективу загальним економічним інтересом, який визначає їх
ставлення до праці і її результатів. Суть трудового колективу полягає у тому,
що об' єднуючи людей загальним соціальним і виробничим інтересом, він ставить
за мету створення умов для розкриття індивідуальності особистості, реалізації
її повноцінного розвитку.
І як результат, розвивається сам
колектив: чим яскравіша і змістовніша індивідуальність, чим більше у колективі
творчих особистостей, людей з розвинутою свідомістю, тим більш дієздатним є
колектив у цілому. Тому управління персоналом перебудовує також характер людських
взаємовідносин всередині трудового колективу.
Людина є суб'єктом виробничого
процесу, яка має власні цілі й інтереси. Саме вона створює все нове, і тільки
їй властивий творчий підхід до роботи. Але вона може стати тормозом процесу,
приховуючи свої можливості, відчувати незадоволеність колективними відносинами.
Працівники, які мають однакову кваліфікацію, не завжди показують однакові
результати в роботі, по-різному ставляться до праці, до свого підприємства.
Таким чином, можна зробити висновок,
що в управлінні трудовим колективом людина (персонал) одночасно може бути суб'
єктом управління (коли приймає рішення) і об' єктом управління (коли виконує
рішення вищого керівництва).
РОЗДІЛ 2. ПЕРСОНАЛ ЯК ОБЄКТ
ТА
ВАЖЛИВИЙ
РЕСУРС ОРГАНІЗАЦІЇ НА
ПРИКЛАДІ
КООП
"МАКСИМ"
2.1
Загальна характеристика підприємства
Кооператив «Максим» (далі КООП
«Максим») засновано в 1999 р., керує компанією генеральний директор Полторацька
І.Л.
КООП «Максим» - це юридична особа,
утворена фізичними та/або юридичними особами, які добровільно об'єдналися на
основі членства для ведення спільної господарської та іншої діяльності з метою
задоволення своїх економічних, соціальних та інших потреб на засадах
самоврядування. Підприємство працює на об'єднаннях капіталів, що не вимагає
особистої участі своїх членів на ділі суспільства. Головною метою КООП «Максим»
є виробництво, переробка та реалізація ювелірної продукції .
Юридична адреса:місто Миколаїв, вул.
8-го березня 10, будинок 30, кв.3-4 тіл.: (0512) 43-81-83.
Дані державної реєстрації речових:
ІПН 1831108220;ОГРН 1051800648965.
Розрахунковий рахунок:
40702810065000000143;
Касовий рахунок:
30101810800000000706;
>БИК 049401706
На початку діяльності на
підприємстві працювали всього 3 людини. У 2000 році число тих, що працюють
зросли до 83 чоловік, а сьогодні близько 500 ювелірів створюють вишукані
ювелірні вироби із золота і срібла. За ці роки підприємство одержало визнання і
завоювало широку популярність на українському ринку.
Компанія є повним циклом виробництва
від дизайну до масового виробництва і реалізації. Нові дизайнерські розробки,
що базуються на сучасних ювелірних технологіях і високоякісних матеріалах,
дозволяють створювати власний унікальний стиль і займати стабільну позицію на
ювелірному ринку.
Асортимент виробів КООП «Максим»
налічує більше 3500 видів і оновлюється щорічно майже на третину. Фахівці
підприємства проводять постійні дослідження в галузі створення нових
асортиментних груп, включаючи високохудожню продукцію, яка задовольнить
найбільш вимогливі смаки сучасних клієнтів.
Підприємство КООП «Максим» пропонує
колекцію ексклюзивного посуду і предметів сервіровки столу, виготовлених із
срібла 925 проби із застосуванням позолоти, черні, емалі, ручного гравіювання,
алмазної грані, інкрустованих коштовними каменями і синтетичними вставками.
Одним з напрямів діяльності
підприємства є виробництво предметів церковного значення, виготовлених
відповідно до православних канонів.
На підприємстві працює ціла плеяда
власних художників, талант яких дозволив підприємству КООП «Максим» вийти на лідируючі
позиції в ювелірній галузі. Серед них заслужений художник України Гусак
Григорій Іванович, Міненко Роман Миколайович, завдяки яким завод одержав безліч
престижних нагород за виробництво виробів високохудожнього дизайну.
Підприємство співробітничає з
Луганським державним національним педагогічним університетом ім. Т. Г. Шевченко
і проводить цілеспрямовану роботу з підготовки кадрів. На базі університету за
ініціативою КООП «Максим» була створена кафедра "Образотворче і
декоративно-прикладне мистецтво (художній метал)", де навчаються майбутні
ювеліри.
Висока якість продукції з КООП
«Максим» підтверджує безліч престижних нагород. На спеціалізованій міжнародній
виставці "Ювелір Експо Україна" (м. Київ) підприємству чотири рази
була вручена нагорода "Скіфський Олень" - за кращі роботи,
представлені на конкурсі (у 2001 році, двічі в 2002 році і в 2005 році). Також
підприємству були вручені нагороди на Московській міжнародній виставці
"Ювелір-2004" і на Одеській міжнародній виставці "Ювелірний
Салон" (за зайняті 1 і 3 місце в конкурсі "Блакитна хвиля").
КООП «Максим» став володарем багатьох нагород на регіональних ювелірних
виставках - в м. Харкові (2000 р., 2001 р.) і в м. Донецьку (2001 р., 2002 р.,
2006 р.).
Неодноразово КООП «Максим» ставало
лауреатом престижних Міжнародних європейських нагород. У 2002 році заводу двічі
був вручений Сертифікат "Лідера Року Європейського співтовариства",
де підприємству привласнили звання "Компанія року", а генеральному
директору Полторацькій І.Л. вручили Сертифікат за перемогу в номінації
"Керівник року".
У 2004 р. виробниче
ювелірно-комерційне підприємство "Рубін" було нагороджено міжнародною
премією "Бізнес-Олімп" з привласненням звання "Золота Торгова
Марка".
У цьому ж році Полторалька І.Л.
одержала від Міжнародної добродійної організації "Фонд суспільного
визнання" почесний орденський знак "Суспільне визнання" III
ступеня.
У 2005 році в Оксфорді проводилося
нагородження "Golden Mercury" ("Золотий Меркурій"). Ірині
Леонідовні Полторацький була вручена нагорода за особистий внесок у економічний
розвиток і сприяння міжнародним процесам інтеграції.
Ювелірні вироби майстрів добре
відомі не тільки в Україні, але і в країнах ближнього і дальнього зарубіжжя.
Колектив підприємства КООП «Максим»
повний планів на майбутнє. Головне завдання ювелірів - при стабільно високій
якості продукції - розширення асортименту виробів і нарощування об'ємів
виробництва. Але завод динамічністю свого розвитку переконує, що він володіє
величезним потенціалом розвиватися і удосконалюватися на ниві ювелірного
мистецтва. Адже 15 років - зовсім не термін, а лише сходинка для нових
звершень. А це означає, що нові перемоги КООП«Максима» ще попереду.
2.2 Аналіз
основних техніко-економічних показників діяльності підприємства КООП «Максим»
Кооператив «Максим» здійснює свою
діяльність відповідно до Закону України «Про кооперацію», «Про господарські
товариства», «Про власність», «Про підпиємництво».
Головною метою КООП «Максим» є
виробництво, переробка та реалізація ювелірної продукції .
Предметом діяльності кооперативу є:
оптова, роздрібна та комісійна
торгівля ювелірною продукцією, продукцією переробки як власного виробництва,
так і придбаної у інших виробників, товарами широкого вжитку.
- ремонт та сервісне обслуговування виробів з драгоцінних,а також напівдрагоцінніх
матеріалів;
здійснення фінансово-кредитної,
облікової та іншої діяльності, пов’язаної з залученням і використанням грошових
коштів, випуском і обігом цінних паперів.
Протягом звітного періоду змін в господарській
діяльності та фінансовому стані порівняно з попереднім роком в емітента не
відбулося. Емітент виробляв, реалізував ювелірні вироби і як результат
прибутковість фінансово-господарської діяльності підприємства.
Основні фінансові показники господарської
діяльності емітента (крім банків) за три останні звітні роки (тис. грн)
наведено у таблиці 2.1.
Табл.2.1 Фінансові показники
господарської діяльності підприємства «Максим».
|
1.
|
2.
|
3.
|
4.
|
5.
|
6.
|
7.
|
8.
|
|
№
|
Показник
|
Один.вим.
|
Попереній період. 2010
|
Звітній період 2011
|
Приріст в грн.
|
Приріст в %
|
Темп зростання.
|
|
1.
|
Обєм реалізації продукції
|
тис.грн.
|
7305,9
|
6275,5
|
-1030,4
|
-14,10%
|
85,90%
|
|
2.
|
Собівартість реалізованої продукції.
|
тис.грн.
|
15674,5
|
5739,7
|
-9934,8
|
-63,38%
|
36,62%
|
|
3.
|
Матеріальні витрати
|
Тис.грн.
|
3427,3
|
3386,2
|
-41,1
|
-1,20%
|
98,80%
|
|
4.
|
Валовий прибуток
|
Тис.грн.
|
3826,6
|
-414
|
-4240,6
|
-110,82%
|
10,82%
|
|
5.
|
Середня чисельність працівників
|
чол
|
563
|
365
|
-198
|
-35,17%
|
64,83%
|
|
6.
|
З них робочих
|
чол
|
207
|
131
|
-76
|
-36,71%
|
63,29%
|
|
7.
|
Фонд оплати праці
|
тис. грн.
|
3109
|
2047
|
-1062
|
34,16%
|
65,84%
|
Середньмісячна зарплата працівників
|
грн.
|
709,81
|
454,88
|
-254,94
|
-35,91%
|
64,09%
|
|
9.
|
Середньорічна вартість основних фондів
|
тис.грн.
|
12124,8
|
12392,8
|
268,05
|
2,21%
|
102,21%
|
|
10.
|
Рентабельність продукції
|
%
|
24,412
|
-7,21
|
-31,62
|
-129,55
|
29,55%
|
|
11.
|
Продуктивність праці
|
тис.грн
|
12,97
|
17,19
|
4,21
|
32,49%
|
132,49%
|
|
12.
|
Матеріаловіддача
|
|
2.13
|
1.85
|
-0,278
|
-13,06%
|
86,94%
|
|
13.
|
Витрати на 1 грн. од.продукції.
|
|
3,61
|
6,50
|
2,89
|
80,23%
|
180,23%
|
|
14.
|
Об єм продукції на 1 грн. заробітної плати
|
|
2,34
|
3,065
|
0,7157
|
30,46%
|
130,46%
|
|
1.
|
2.
|
3.
|
4.
|
5.
|
6.
|
7.
|
8.
|
|
15.
|
Операційні витрати
|
|
2023,2
|
964,3
|
-1059
|
-52,34%
|
47,66%
|
2.3 Характеристика персоналу як
найважливішого й найбільш цінного ресурсу організації
Людськi
ресурси - специфiчний
i
найважливiший з усiх
видів економічних ресурсів підприємства. Специфіка людських ресурсів порівняно
з іншими чинниками економічного розвитку полягає в тому, що, по-перше, люди не
лише створюють, а й споживають матеріальні та духовні цінності; по-друге,
багатогранність людського життя не вичерпується лише трудовою діяльністю, а отже,
щоб ефективно використовувати людську працю, потрібно завжди враховувати
потреби людини як особистості; по-третє, науково-технічний прогрес і
гуманізація суспільного життя стрімко збільшують економічну роль знань,
моральності, інтелектуального потенціалу та інших особистих якостей
працівників, які формуються роками і поколіннями, а розкриваються людиною лише
за сприятливих умов. Існує безпосередня залежність конкурентоспроможності
економіки, рівня добробуту населення від якості трудового потенціалу персоналу
підприємств та організацій даної країни.
Персонал підприємства формується та
змінюється під впливом внутрішніх (характер продукції, технології та
організації виробництва) і зовнішніх (демографічні процеси, юридичні та
моральні норми суспільства, характер ринку праці тощо) факторів. Вплив
останніх конкретизується в таких параметрах макроекономічного характеру:
кількість активного (працездатного) населення, загальноосвітній його рівень,
пропонування робочої сили, рівень зайнятості, потенційний резерв робочої сили.
У свою чергу, ці характеристики зумовлюють кількісні та якісні параметри
трудових ресурсів.
Таблиця 2.2.Використання
трудових ресурсів на КООП «Максим»
|
п/п
|
Назва
показника
|
1-й
рік 2009
|
2-й
рік 2010
|
3-й
рік 2011
|
Відхилення,
3-й рік до 1-го року
|
|
|
|
|
|
Абс.
|
%
|
|
1
|
2
|
3
|
4
|
5
|
6
|
7
|
|
1
|
Середньоспискова
чисельність штатних працівників спискового складу, чол.
|
109
|
111
|
165
|
56
|
51
|
|
2
|
Прийнято
працівників
|
20
|
10
|
73
|
53
|
в
2,7 р.
|
|
3
|
Вибуло
працівників, чол., в тому числі: - за власним бажанням; - звільнено за прогул
та інші порушення трудової дисципліни;
|
10
|
8
|
19
|
9
|
90
|
|
-
з причини скорочення штатів
|
-
|
-
|
-
|
-
|
-
|
|
4
|
Коефіцієнт
обороту з прийому працюючих
|
0,18
|
0,09
|
0,44
|
0.26
|
-
|
|
5
|
Коефіцієнт
плинності кадрів
|
0,09
|
0,07
|
0.12
|
0,03
|
-
|
|
6
|
Коефіцієнт
постійності складу персоналу підприємства
|
0.91
|
0.93
|
0.88
|
-0,03
|
-
|
|
7
|
Фонд
оплати праці, тис. грн.
|
265
|
284
|
459
|
194
|
73
|
|
8
|
Середньомісячна
заробітна плата, грн.
|
202
|
213
|
231
|
29
|
14
|
|
9
|
Виручка
(без врахування ПДВ), тис. грн.
|
3451
|
3915
|
11274
|
7823
|
в
3.3 р.
|
|
1.
|
2.
|
3.
|
4.
|
5.
|
6.
|
7.
|
|
10
|
Продуктивність
праці (тис. грн. / чол.)
|
31,7
|
35.3
|
68,3
|
36.6
|
115
|
|
11
|
Середньорічна
вартість основних фондів, тис. грн.
|
1624
|
1772
|
1977
|
3523
|
22
|
|
12
|
Фондоозброєність,
тис. грн / чол.
|
14,9
|
16.0
|
12.0
|
-2.9
|
-19
|
За наведеними показниками можна зробити висновки
щодо використання трудового потенціалу на досліджуваному підприємстві. Так,
середньоспискова чисельність працівників підприємства за три роки зросла на 51
%, причому пік зростання припадає на останній рік. Така тенденція, пояснюється,
по-перше, збільшенням виробництва та реалізації традиційної продукції
підприємства, по-друге, диверсифікаційною політикою підприємства, коли на
освоєння та запуск нових видів діяльності (виробництво макаронних виробів,
купівля-продаж масла тваринного, сиру твердого тощо) потрібно було залучення
додаткової чисельності персоналу. Про нарощування обсягів виробництва за
останній рік свідчить ще й кількість нових працівників, що в 2,7рази більша за
аналогічний показник базового року.
Такі відносні показники використання персоналу
підприємства застосовуються для характеристики руху робочої сили. В першу
чергу, це-динаміка коефіцієнта обороту з прийому працюючих, який обчислюється
як відношення кількості прийнятого на роботу персоналу до середньоспискової
чисельності персоналу. Це свідчить КООП «Максим»
про значне збільшення кількості прийнятих працівників за останній рік.
Коефіцієнт плинності кадрів (відношення кількості працівників, які звільнилися
за власним бажанням та за порушення трудової дисципліни, до середньоспискової
чисельності персоналу за певний період часу) дещо зростає з роками, а в
останній рік складає 0,12, тобто в розрахунку на 100 чоловік працюючих за
третій рік звільнилось 12 чоловік. Негативним елементом є зменшення коефіцієнту
постійності складу персоналу підприємства, хоча його величина є незначною (0,03
пункти). Коефіцієнт постійності складу персоналу розраховується як відношення
кількості працівників, які проробили повний рік, до середньоспискової
чисельності персоналу. В 1-й рік на 100 чоловік працюючих 91 працівник працював
весь рік, у 3-й рік - 88 чоловік.
Продуктивність праці є показником, який
характеризує ефективність використання трудових ресурсів. На КООП
«Максим»
продуктивність праці за три роки зросла на 115% та склала 68,3 тис. грн. на
одного середньорічного працівника. Слід зазначити, що протягом перших двох
років спостерігається поступове зростання продуктивності праці (з 31,7до 35,3
тис. грн. на одного середньорічного працівника), а в останній рік - різке
зростання цього показника.
Причиною підвищення продуктивності праці
на підприємстві є збільшення обсягу виручки в результаті розширення сфер
господарювання. Збільшення виробництва плавленого сиру було можливим за рахунок
переходу на дво- та тризмінний режим роботи при п'ятиденному робочому тижні,
тоді як у перший рік режим підприємства був зовсім іншим: восьмигодинний
робочий день при три- або чотириденному робочому тижні. Тобто бачимо, що
фактично ніяких удосконалень щодо наукової організації праці на підприємстві не
відбувалось, натомість "завантажувались" виробничі потужності
підприємства, які до останнього часу були незадіяні у виробничому процесі.
У таблиці 4 наведені
дані КООП «Максим» аналізу фонду
оплати праці за період з 2010
по 2011 роки.
Таблиця 2.3.
Оплата
праці КООП «Максим» в 2010-2011
рр.
|
Показник
|
2010 р Тис.грн
|
2011р Тис грн
|
Абсолютне відхилення
|
Темп зросту
|
Структура %
|
|
1.
|
|
|
(+,-)
|
%
|
|
|
|
2.
|
|
|
|
|
2010 р
|
2011 р
|
|
3.Оклади
|
1060
|
1330
|
270
|
25,47
|
76,93
|
76.93
|
|
4.Преміальна частина плати праці
|
318
|
399
|
81
|
25,47
|
23,07
|
23,07
|
|
5.Всього
|
1378
|
1729
|
351
|
50,94
|
100,0
|
100,0
|
Фонд оплати праці зріс на 73 %, в той час як
середньомісячна заробітна плата - на 14 %. Звичайно, зростання продуктивності
праці більшими темпами за середньомісячну заробітну плату працюючих є умовою
розширеного відтворення, однак таке незначне зростання середньомісячної
заробітної плати свідчить про недостатню увагу менеджменту підприємства до
системи стимулювання (мотивації) праці.
Ще однією характеристикою
використання персоналу підприємства є фондоозброєність праці, яка свідчить про
рівень технічного оснащення праці, величину основних виробничих фондів, які
використовує один працівник. Показник фондоозброєності праці за роками на КООП
«Максим» зменшувався, що свідчить про зростання питомої ваги ручної праці на
підприємстві, і складає 12,0тис. грн. на одну особу.
Структура промислово-виробничого персоналу
підприємства залежить від багатьох факторів особливостей галузі та
підприємства, технологічного обладнання, обсягів господарювання тощо.
2.4 Аналіз системи мотивації персоналу на КООП «Максим»
управління персонал мотивація
Система мотивація персоналу на підприємстві КООП
«Максим»
є достатньо складною, тому що складається із окремих напрямків.
Мотивація персоналу та його управління
передполагає застосування наступних груп методів мотивації.
.Адміністративно- організаційні :
а) регулювання взаємовідносин співробітників за
допомогою положень про структурні підрозділи і посадові інструкції
б) використання владної мотивації (видання
наказів, віддача розпоряджень, вказівок) при управлінні поточною діяльністю підприємства.
. Економічні методи:
а) матеріальне стимулювання праці працівників це
преміальні за наслідками праці, використання для окремих категорій працівників
відрядної форми оплати праці.
. Соціально - психологічні методи :
а) розвиток у співробітників відчуття
приналежності до організації за допомогою формування стандартів обслуговування,
ведення корпоративної реклами, широкого використання логотипів компанії,
забезпечення співробітників фірмовим робочим одягом і т.п.
б) стимулювання праці працівників за допомогою
гарантованого надання соціальних гарантій (лікарняні листи, виплати допомоги і
т.п.), організації організаційних свят для співробітників і їх дітей.
Основний акцент в системі стимулювання персоналу
зроблений на матеріальні методи стимулювання. Відповідно до КЗоТ підприємство
самостійно встановлює формулу, систему оплати праці, розміри тарифних ставок і
посадових окладів, а також форми матеріального заохочення. Основні правила
оплати праці і преміювання закріплені Положенням про оплату праці працівників КООП
«Максим»,
затверджуваним наказом Генерального директора. Всіх співробітників, що знов
приймаються на роботу, у обов'язковому порядку знайомлять з даним Положенням.
Підприємство веде політику
гарантування стабільності системи оплати праці, це означає забезпечення
гарантованого законом мінімального розміру оплати праці; при введенні нових і
зміни встановлених умов оплати праці працівники підприємства сповіщаються не
пізніше, ніж за 2 місяці.
Підприємство використовує оплату праці як
найважливіший засіб стимулювання добросовісної роботи. Індивідуальні заробітки
працівників комбінату визначаються їх особистим трудовим внеском, якістю праці,
результатами виробничо-господарської діяльності комбінату і максимальним
розміром не обмежуються. В якості бази використовується тарифна система оплати
праці.
Заробітна плата працівників складається з
посадового окладу, премії і виплачується у відповідні терміни - 4 числа кожного
місяця.
Тарифна частина заробітної плати формується
таким чином. Посадові оклади керівникам, працівникам бухгалтерії,
інженерно-технічним працівникам, працівникам відділу збуту, загальновиробничому
персоналу а також працівникам основного виробництва (майстри - ювеліри)
встановлюються генеральним директором і відображаються в штатному розкладі. При
оплаті праці робочих основного виробництва застосовується комбінована форма
оплати праці: ставка у розмірі мінімальної заробітної плати і відрядна плата за
фактично вироблену продукцію.
До посадових окладів працівників підприємства
встановлені наступні премії:
- за шкідливі
і важкі умови праці - в розмірах і порядку, передбачених законодавством про
працю;
- за поєднання
професій (посад), розширення зони обслуговування, збільшення об'єму виконуваних
робіт в розмірі, що встановлюється за угодою між адміністрацією і працівником;
премії за роботу у вечірній і нічний годинник -
в розмірах і порядку, передбачених законодавством про працю;
- за
керівництво бригадою;
- за
наднормову роботу;
- за вихідні і
святкові дні.
Розміри доплат встановлюються
адміністрацією підприємства залежно від конкретних умов (ступеня тяжкості робіт
і дії несприятливих чинників, об'єму роботи, її важливості для комбінату, рівня
професіоналізму працівника і ін.)
Преміювання працівників здійснюється
щомісячно і має на своїй меті заохочення за якісне і своєчасне виконання
трудових обов'язків, ініціативності і заповзятливості в праці. Показником
преміювання є виконання встановлених місячних планів з випуску продукції в
натуральних показниках і її реалізації для відділу збуту. Основною умовою
нарахування премій працівникам є бездоганне виконання трудових функцій і
обов'язків, передбачених законодавством про працю, правилами внутрішнього
розпорядку, посадовими інструкціями і технічними правилами, своєчасне виконання
заходів щодо охорони навколишнього середовища, строге дотримання санітарного
режиму цехів і територій.
Розмір премії складає:
)для робочих - 30% від окладу і відрядного
заробітку;
)для службовців - 30% посадового окладу;
)для керівників вищої ланки управління - до35%
посадового окладу, згідно з укладеними угодами.
Розглянемо випадки часткового позбавлення
премії, що відбуваються в наступних випадках:
-невиконання або неналежного
виконання трудових обов'язків, передбачених посадовими або технічними
інструкціями;
дисциплінарна провина;
зпричинення матеріального збитку
комбінату або нанесення шкоди його ділової репутації;
порушення технологічної дисципліни;
випуск бракованої продукції;
порушення правил техніки безпеки і охорони праці, а також правил протипожежної
безпеки;
не виконання санітарного режиму
цехів і територій - на 10% при оцінці "задовільно".
Конкретний розмір зниження премії визначається
Генеральним директором КООП «Максим»,
(відносно робочих - начальниками цехів) і залежить від тяжкості провини або
характеру виробничого упущення а також їх наслідків.
Працівники повністю позбавляються премії в
наступних випадках:
- здійснення
прогулу;
поява на роботі в нетверезому стані, а також в
стані наркотичного або токсичного сп'яніння;
розпивання спиртних напоїв на території підприємства;
здійснення розкрадання майна підприємства.
Повне або часткове позбавлення премії
проводиться за той період, в якому було здійснене упущення по роботі.
Преміювання робочих здійснюється згідно
відпрацьованому в поточному місяці часу за табелем і за розпорядженнями
начальників цехів. Преміювання керівників, фахівців і службовців проводиться
авансом в поточному місяці, місяцем пізніше на підставі наказу Генерального
директора комбінату, у разі наявних зауважень і порушень проводяться утримання.
Працівникам, не відпрацьованим повний календарний місяць при звільненні за
власним бажанням, окрім випадків звільнення на пенсію, а також при звільненні
за прогул і інші порушення - премія за даний період не нараховується.
Проведений аналіз умов оплати праці
і преміювання показує, що розмір заробітної плати співробітників підприємства
поставлений в залежність від результатів їх трудової діяльності підприємства. За
кожне порушення трудової дисципліни і технології виробництва до працівника
застосовується санкція у вигляді позбавлення премії або її частини.
Серед методів
соціально-психологічного стимулювання працівників підприємства слід назвати
оптимізацію організації робочих місць, створення кімнат відпочинку, організацію
загальновиробничих свят і ін.
Таким чином, мотивація управління
персоналу підприємства здійснюється за допомогою поєднання адміністративних,
економічних і соціально-психологічних методів стимулювання. Основа системи
стимулювання персоналу закладається використанням організаційно - технічних
методів, які оптимізують побудову системи управління ефективністю праці.
Використовувані КООП «Максим» соціально-психологічні методи ефективно
здійснюють духовне стимулювання, створюючи сприятливий психологічний клімат в
колективі і відчуття приналежності до організації. Встановлений
на підприємстві стабільний розмір винагороди персоналу запобігає збільшенню
плинності кадрів і знижує витрати на пошук нових трудових ресурсів. У частині
використання економічних методів стимулювання у підприємства є резерви
удосконалення процесу управління за рахунок удосконалення системи матеріального
стимулювання персоналу за рахунок використання нових форм оплати праці, зокрема
таких методів управління, як участь працівників в прибутку організації, участь
працівників в управлінні.
Проблеми стимулювання високопродуктивної праці
на КООП «Максим».
Аналіз діяльності підприємства
показує, що на підприємстві слабо проводяться заходи, пов'язані з поліпшенням
існуючого положення про стимулювання і пошуком внутрішньовиробничих ресурсів. Зокрема
застосовуються не продумані і не довершені методи економічного стимулювання .
Основними недоліками в існуючому положенні є недосконалі методи, які слабо
націлюють на економічного стимулювання в повному використанні фактично наявних
резервів у працівників. Крім цього, низька ефективність внутрішньовиробничих
відносин обумовлена також тим, що ініціатива і завзятливість коллективів цехів
не заохочуються, а часто, навпаки присікаються; в цехах не утворюються окремі
фонди економічного стимулювання, а гроші виділяються їм із централізованих
джерел за остаточним принципом; цеха не несуть економічної відповідальності за
ефективність використання виробничих фондів, трудових і матеріальних ресурсів.
Ці слабі сторони існуючої системи стимулювання
праці працівників КООП «Максим»
виявляються в наступному. При визначенні розміру окладу і преміальних практично
не обліковується додатково відпрацьований персоналом час, що значно знижує його
зацікавленість і продуктивність. В деяких випадках використовується почасова
оплата праці яка сама по собі не націлена на виробництво необхідної кількості
продукції, і це також призводить до значного зниження стимулів (у відмінності
від відрядної форми оплати праці). Розробками питань, пов'язаних з мотивацією
праці займаються люди, що не мають спеціальної освіти для здійснення даного
виду діяльності.
Крім того, на підприємстві слабо застосовується
достатньо ефективна багатоступінчата форма оплати праці яка могла б ефективно
стимулювати робітників в отриманні більш високих результатів.
Описана вище економічна ситуація
склалася в цілому з результатів неефективної організації системи мотивації на
підприємстві, і як наслідок, невідповідності витрат працівників і одержуваної
ними матеріальної винагороди за труд.
Висновки до
розділу 2
На основі проведеного
дослідження на підприємстві КООП «Максим» можна зробити висновки, що система
стимулювання персоналу на підприємстві потребує вдосконалення з урахуванням
нових підходів і тенденцій кадрового менеджменту. Треба зробити більш
вдосконалену сучасну форму оплати праці яка змогла би зацікавити робітників
робити більш продуктивніше та якісніше свою продукцію. Це стає дуже актуально
тому, що під час фінансової кризи робітники головну свою увагу приділяють
розміру отриманої їми заробітної плати та кількості праці яка була витрачена
при цьому. Соціально - психологічні методи та методи морального стимулювання
під час кризи мають значно меншого значення, тому що це дуже слабкий мотив для
того щоб робітники працювали краще та були зацікавлені в більш якісній та
сучасній продукції.
Тому метою управління
економічною ситуацією, що склалася, повинно стати, перш за все, підвищення
зацікавленості персоналу в результативності свого труда, а значить, в
функціонуванні підприємства для отримання максимального прибутку, особливо в
періоди підвищеного попиту на продукцію підприємства. Для досягнення потрібного
ефекту необхідно змінити систему мотивації персоналу шляхом розвитку і
впровадженню нових прогресивних форм морального і матеріального стимулювання і
завдяки використанню адміністративних, економічних і соціально-психологічних
методів.
РОЗДІЛ 3.
НЕОБХІДНІСТЬ
РОЗВИТКУ ТА ЗБЕРЕЖЕННЯ ПЕРСОНАЛУ ОРГАНІЗАЦІЇ
3.1 Розвиток
трудового потенціалу підприємства в сучасних умовах
Однією з гострих і значущих для
сталого соціально-економічного розвитку України є проблема збереження і
зміцнення трудового потенціалу. Збереження трудового потенціалу - це подолання
причин його руйнування, попередження виникнення загроз його розвитку та
стабілізація його позитивних кількісно-якісних характеристик. Розвиток
трудового потенціалу - це процес переходу в більш досконалий стан, який
забезпечує його якісне та кількісне відтворення, найповнішу реалізацію та
ефективне використання. Він передбачає демографічний, психофізіологічний,
інтелектуальний, культурний розвиток населення для формування його економічної
активності.
Трудовий потенціал працівника - це
його можлива трудова дієздатність, його ресурсні можливості в галузі праці[6].
Трудовий потенціал підприємства залежить від трудового потенціалу кожного
працівника та кадрового забезпечення виконання стратегічних завдань.
Відповідно, і механізми впливу мають бути спрямовані на формування постійної
зацікавленості підприємств у розвитку трудового потенціалу кожного працівника,
збереження кадрів та їх поповнення.
Основним чинником розвитку трудового
потенціалу особистості є підвищення її освітнього рівня, постійне оновлення
знань. Кожній людині, незалежно від посади, яку вона займає, має бути надана
можливість для подальшої освіти та кар’єрного зростання. Тому, дуже важливо
створити умови для заохочення підприємств витрачати кошти на підвищення
кваліфікації та освітнього рівня працівників. Частково ця проблема вирішується
законодавчо, шляхом дозволу на включення до валових витрат оплати підготовки та
перепідготовки працівників у вищих навчальних закладах України за профілем
діяльності підприємства .
Керівники підприємств КООП «Максим»
повинні замислитись про необхідність розв’язання стратегічних завдань з
підготовки кадрів, які забезпечать стабільний розвиток у майбутньому, бо від
кваліфікації персоналу залежить не тільки продуктивність праці, а й
ефективність використання всіх видів ресурсів.
На рівні підприємств та організацій
першочерговими потребами працюючих є забезпечення гарантії зайнятості, високий
рівень оплати праці, привабливість роботи, можливість подальшого професійного
зростання, робота в безпечних умовах праці, забезпечення захисту трудових
прав.Рівень задоволеності працівників своєю роботою є головним важелем
ефективності праці і прямо впливає на збереження, розвиток та ефективне
використання трудового потенціалу
Використання отриманих знань у
роботі - це важливий показник рівня реалізації трудового потенціалу, що є
чинником його збереження і розвитку. Тобто через застосування професійних надбань
у трудовій діяльності можливе зростання інтелектуального рівня, набуття досвіду
і професіоналізму праці.
Чим буде вищий трудовий потенціал
підприємства КООП «Максим», чим вищі потенційні можливості найнятої робочої
сили, тим складніші задачі можуть розв'язуватися колективом (відносно випуску
продукції, її якості, швидкості освоєння нових її видів, ефективності
виробничо-господарської діяльності і т.д.). Проте наявність таких переваг
зовсім не свідчить про те, що головна задача управління персоналом - максимальне
нарощування трудового потенціалу.
Розвиток трудового потенціалу також
потребує інвестицій, тому особливого значення набуває фінансовий механізм, який
відображає взаємовідносини з приводу формування, розподілу та використання
фінансових ресурсів. Таким чином, фінансово-економічний механізм стимулювання
розвитку трудового потенціалу має будуватись на основі логіки реагування
суб’єктів господарювання на дію фінансово-економічних важелів впливу.
Трудовий потенціал як ресурс
відіграє провідне значення, оскільки від компетентності, кваліфікованості,
навиків і досвіду людей залежить ефективне та раціональне використання інших
ресурсів. Крім того, лише трудовий потенціал, виступаючи самостійним ресурсом з
одного боку, є носієм іншого ресурсу - підприємницького хисту (інтелектуальних
здібностей).
Отже, трудовий потенціал
підприємства вимагає програм з розвитку й підтримки висунутих з боку
працедавців власних компетенцій. Розвиток трудового потенціалу має
здійснюватися як з боку персоналу, так і з боку підприємства. Чималі зусилля
підприємців мають бути спрямовані на формування якісного складу персоналу
підприємства, його стабілізацію та розвиток, ефективну мотивацію і формування у
працівників зацікавленості в результатах праці.
3.2 Шляхи
вдосконалення ефективності управління персоналом на підприємстві КООП «Максим»
Робота будь-якої організації неминуче пов'язана
з необхідністю комплектування штату. Добір нових працівників не тільки
забезпечує режим нормального функціонування організації, але і закладає фундамент
майбутнього успіху. Від того, наскільки ефективно поставлені робота з добору
персоналу, у значній мірі залежить якість людських ресурсів, їхній внесок у
досягнення цілей організації і якість виробленої продукції чи наданих послуг.
Пошук і добір персоналу є
продовженням кадрової політики, реалізованої підприємством, і одним із ключових
елементів системи управління персоналом, тісно ув'язаним практично з усіма
основними напрямками роботи в цій сфері. На мій погляд,
основну увагу у сфері управління персоналом на КООП
«Максим»
необхідно в першу чергу звернути саме на питання добору висококваліфікованого
персоналу. Адже без нього неможливо закріпитись на ринку, а тим більше досягти
завоювання більшої частки ринку.
Підприємству слід інтенсифікувати власні зусилля
у таких напрямках роботи з персоналом:
Кадрове планування. Відбиваючи політику і
стратегію організації, визначає якісну і кількісну потребу в персоналі. Кадрове
планування задає чіткі орієнтири, що стосуються професійної приналежності,
кваліфікації і чисельності організації працівників, що вимагається.
Аналіз роботи, нормування праці й оцінка
виконання. Дозволяють виробити вимоги і критерії, відповідно до яких будуть
відбиратися кандидати на конкретні вакантні посади. З іншого боку, оцінка
робочих показників нових працівників після деякого періоду їхньої роботи в
організації дозволяє визначити ефективність самого процесу добору.
Система стимулювання. Дає можливість
виробити політику стимулювання праці і набір стимулів, спрямованих на залучення
кандидатів, що відповідають усім необхідним вимогам, а також сприяє утриманню
вже найнятих працівників.
Організаційна культура. Порядки, норми
поводження і трудові цінності, які культивуються в організації, враховуються
при встановленні критеріїв, використовуваних при пошуку і доборі нових
працівників. Укомплектувати організацію працівниками, здатними прийняти діючі в
ній норми, цінності, правила, не менш важливо, чим знайти професіоналів, що
володіють необхідними знаннями, досвідом, навичками і діловими якостями. Досвід
багатьох всесвітньо відомих фірм, що домоглися видатних успіхів у своїй сфері
бізнесу, показує, що успіх організації залежить від уміння знайти людей з
потрібним складом розуму, з потрібним відношенням до справи, готових з повною
віддачею сил працювати для досягнення організаційних цілей.
Система заходів для адаптації нових працівників
до роботи в організації і до трудового колективу. Є прямим продовженням процесу
пошуку і добору кадрів. Важливо не тільки відібрати кращих працівників, але і
забезпечити їхнє м'яке входження в організацію і швидкий вихід на необхідний
рівень робочих показників.
Навчання - це продовження процесу добору й
адаптації нових працівників. Воно направлено як на освоєння новачками
необхідних для успішної роботи знань і навичок, так і на передачу їм установок
і пріоритетів, що складають ядро організаційної культури.
Однак для того, щоб зв'язок між основними
функціональними напрямками процесу управління персоналом і роботою по пошуку і
добору персоналу для заповнення вакансій, що існують на підприємстві, не був
декларований лише на папері, необхідна визначена структура служби управління
персоналом. Гарні результати дає досвід багатьох
українських підприємств, коли в єдину службу управління персоналом поєднуються
відділ кадрів, відділ праці, відділ навчання і психологічна служба.
Ефективність діяльності по пошуку і добору нових працівників підвищується, якщо
цей напрямок роботи здійснюється під єдиним керівництвом і координується з
іншими сферами діяльності, пов'язаними з управлінням персоналом, починаючи від
ведення кадрової документації і закінчуючи питаннями нормування і соціального
захисту. Це дозволяє не тільки дотримуватися більш чітких критеріїв і процедур
при пошуку і доборі кадрів, але і забезпечує високі результати в професійній і
соціальній адаптації нових працівників.
Для ефективного пошуку і добору
кадрів досліджуваному підприємству важливо дотримуватися декількох принципів,
що не тільки дозволять вибрати кращих кандидатів на заповнення наявних
вакансій, але і будуть сприяти їх більш легкому входженню в організацію і
швидкий вихід на рівень робочих показників, що відповідають установленим
вимогам.
Пошук і добір кадрів не повинні
розглядатися як просте перебування придатного працівника для виконання
конкретної роботи; пошук і добір повинні бути пов'язані з загальним контекстом
програм, реалізованих у сфері управління персоналом, покликаних забезпечити
досягнення цілей підприємства й успіх у реалізації стратегії, розробленої
керівництвом. Необхідно брати до уваги не тільки
рівень професійної компетентності кандидатів, але і те, як нові працівники
будуть вписуватися в культурну і соціальну структуру організації. Організація
більше втратить, чим придбає, якщо найме на роботу технічно грамотну людину,
але не здатну підтримувати гарні взаємини з товаришами по роботі, з клієнтами
чи постачальниками, що підірве встановлені норми і порядки.
Керівництву досліджуваного
підприємства слід також більше уваги приділяти такому заходу як планування
кар’єри робітника. Планування кар'єри - один з
напрямків кадрової роботи в організації, орієнтований на визначення стратегії й
етапів розвитку і просування фахівців. Це процес зіставлення потенційних
можливостей, здібностей і цілей людини, з вимогами організації, стратегією і
планами її розвитку, що виражається в складанні програми професійного і
посадового росту. Перелік професійних і посадових позицій на підприємстві (і
поза ним), що фіксує оптимальний розвиток професіонала для заняття їм
визначеної позиції в організації, являє собою кар’єрограму, формалізоване
представлення про те, який шлях повинний пройти фахівець для того, щоб одержати
необхідні знання й опанувати потрібними навичками для ефективної роботи на
конкретному місці.
Отже, щодо кадрової ситуації на КООП
«Максим»
вироблені наступні пропозиції:
-збільшити
мотивацію до праці (премії), в першу чергу для того персоналу, який
відрізняється плинністю. Це буде сприяти більш відповідальному ставленню до
роботи.
-перехід
оплати праці агентів з продажу з переважно фіксованої оплати (ставки) до переважно
відсоткової від отриманих контрактів складової. Це також збільшить мотивацію до
праці. Для введення змагального аспекту у їх діяльність можна розробити систему
преміювання кращих.
провести пошук нових
спеціалістів, залучаючи для цього засоби масової інформації (газети,
телебачення) та кадрові агенції, службу зайнятості населення.
-створити
позитивний імідж підприємства - шляхом вироблення корпоративного стилю,
рекламних матеріалів у пресі.
На мій
погляд, ці пропозиції допоможуть досліджуваному підприємству покращити
управління персоналом.
Досвід показав, що ефективність
системи людських взаємин в процесі праці є могутнім резервом підвищення
продуктивності і збільшення загальної ефективності виробництва і збуту.
Основними причинами збоїв в роботі підприємства,
як правило, є: брак сировини, відсутність сталих зв'язків з постачальниками і
споживачами, не конкурентоздатна продукція або ціна, плинність кадрів. Проте є
ще одна істотна причина - криза управління, що ґрунтується на традиційних
помилках. Наприклад, при реорганізації підприємства керівники часто забувають
про зміни в психології працівника, про необхідність застосування
соціально-психологічних методів в управлінні персоналом. Саме психологічні
бар'єри встають на шляху прогресивних перетворень на підприємстві, породжують
плинність кадрів, провокують конфлікти і невиконання обов'язків. Тому
компетенція керівників має розповсюджуватись на застосування сучасних методів і
форм управління людськими ресурсами.
Для усунення цих проблем були
розроблені і випробувані конкретні рекомендації щодо вдосконалення управління
персоналом, які можна поділити на основні групи: організаційні, формальні,
психологічні і допоміжні.
Організаційні рекомендації пов'язані
із побудовою організації і налагодженням її роботи. Вони
умовно підрозділяються на: структурні; пов'язані із стимулюванням персоналу;
комунікаційні.
Структурні рекомендації. Назви посад повинні
давати привід для гордості працівникам, що їх займають. У організації повинна
бути гнучка система відпусток для всього персоналу, а не тільки для керівника.
Обов'язково треба робити виключення для відпусток з поважних причин.
Оскільки на досліджуваному підприємстві є відділ
реалізації, то необхідно пам'ятати, що :
% працівників завжди забезпечують 80
% продажів;
система винагороди працівників
відділу реалізації повинна включати шкалу зростаючих виплат після досягнення
великих об'ємів продажів у відсотках;
у випадках заробляння ким-небудь з
агентів великих грошей, не слід міняти шкалу, адже довіра може бути втрачена;
кращі торгові агенти мають одержати частку в
прибутках, щоб відчувати особисту відповідальність за роботу і набути образ
мислення співвласника фірми;
не слід підвищувати на посаді кращих торгових
агентів, бо: хороший агент - це стан душі, і зміна діяльності зробить його
непотрібним баластом для фірми і невротиком, що постійно переживає почуття
глибокого морального незадоволення.
Для успішного функціонування підприємства
необхідний осмислений опір фахівців. Кожен співробітник повинен мати право
відстоювати свою точку зору з приводу рішення.
Щодо надання привілей, доцільно
слідувати орієнтації на всіх працівників підприємства. Можливо
провести скорочення спеціального дорогого канцелярського приладдя для
начальства; заборону вмикання музики на робочому місці, окрім тих місць, де не
вимагається розумових зусиль; зниження кількості звукових сигналів в офісі,
включаючи телефон. В процесі організаційних та міжособистісних комунікацій
необхідно дотримуватись чесності, відмовлятись від приятельських і фамільярних
відносин між начальником і підлеглим. В роботі з персоналом потрібно
відмовлятись від постійного залучення нових співробітників, а акцентувати увагу
на просуванні власних співробітників.
Створення і підтримка в оптимальному
стані системи зворотного зв'язку в колективі дозволить подолати будь-які
негативні явища в життєдіяльності підприємства через інформацію від
співробітників.
Необхідно також впроваджувати ефективну систему
стимулювання праці і участі персоналу в прибутках:
безпосередній і тісний зв'язок з досягнутими
успіхами в роботі у вигляді доходу від зростання прибутку, вираженого у
відсотках для кожного працівника;
-наперед узгоджені
принципи, винагороди за перевиконання плану, внесені в систему бухгалтерського
обліку;
- відсутність
“стелі” для премій, заснованих на участі в прибутках;
- відповідність
зарплати реальному внеску співробітника в успіху фірми і розумним життєвим
витратам;
- обмеження
базових окладів для керівників вищого рівня;
- не повинно бути
ніяких виплат, незалежних від результатів роботи; краще не преміювати взагалі
нікого;
- погані працівники
не можуть бути премійовані ні в якому випадку і ні яким чином; ніколи не можна
карати матеріально працівників, які допустили помилки
з вини керівництва, навіть в дні криз. Якщо працівник виконує роботу на своїй
ділянці відмінно, він повинен бути заохочений;
- на підприємстві не
повинно бути ніяких секретних або зайвих накладних витрат, що негативно
впливають на преміальну систему.
Крім преміальної системи повинна існувати
система регулярного перегляду зарплат в два етапи: на першому - переглядає
колектив, на другому - керівник. При бажанні останнього і з відома колективу
етапи можна поміняти місцями.
Коли потрібно підвищити співробітника на посаді,
часто здається, що в організації немає людини, здатної зайняти вакантний пост.
У такому разі, слід знайти такого, який відповідав би вимогам тільки на 50% і
дати йому цю роботу. Через деякий час він досягне 100% до загального
задоволення. Але брати людину із сторони неефективно, навіть якщо він підходить
на 110%, оскільки навіть через тривалий проміжок часу він все ще
знайомитиметься з секретами діяльності фірми. Також не варто призначати на вищу
посаду працівників фірми, що мають великий потенціал, але низькі результати
праці: потенціал розташовує до ліні і багато шансів на те, що працівник
провалить доручену справу. З наявних кандидатур потрібно вибрати лідера
(формального або неформального), оскільки саме йому забезпечена підтримка
колективу у разі провалу.
Приділяючи належну увагу професійній
підготовці і перепідготовці співробітників, потрібно пам’ятати, що наочне
викладання на робочому місці набагато ефективніше за теоретичні лекції. Ніколи
не треба економити на зарплаті хорошим працівникам. Одній відданості
організації недостатньо для тривалої роботи в ній. Нижчі потреби також
обов'язково повинні бути задоволені, особливо коли вони пов'язані з такими
вищими потребами, як потреба в пошані і визнанні, яка у наш час базується на
розмірі окладу.
Обов'язково повинен існувати
регулярний контроль результатів діяльності всіх працівників в будь-якій формі,
прийнятній і керівником, і підлеглими, з основною метою - запобіганням помилкам
або їх виправленням на початковій стадії виникнення.
Комунікаційні рекомендації.
Звертатися до керівників вищого рангу краще безпосередньо, оскільки проміжні
учасники спілкування ускладнять контакти і можуть спотворити інформацію.
Формальні рекомендації регулюють формальні
відносини у фірмі "керівник-підлеглий".
Всі рішення повинні ухвалюватися на
можливо нижчому рівні, виходячи з необхідності швидко і без особливих витрат
коригувати ухвалене рішення. Про необхідність делегувати
повноваження багато сказано в різних працях по управлінню. Слід додати, що на
підприємстві делегування часто буває вимушеним із-за недостатності персоналу
для виконання всіх функцій. Треба відзначити, що цей факт підвищує
універсальність знань працівників. Треба тільки навчитися давати співробітникам
не дрібні, а важливі доручення. Від підлеглих, яким делегували повноваження,
треба перш за все добитися не тільки продуманого аргументування з приводу
рішення проблеми, але і обов'язкових відповідей на деякі важливі питання.
В процесі управління колективом важливу роль
відіграють відносини соціально-психологічного характеру між керівником та
підлеглими. Найбільші помилки звичайно здійснюються керівником саме в тій
області, де він відчуває себе неперевершеним, оскільки не було провалів.
Формою винагороди, яку нехтує абсолютна
більшість керівників, є "спасибі". Завжди треба старатися виконувати
свої обіцянки. Якщо керівник піклується про зростання авторитету в колективі,
то він повинен виконувати свої обіцянки раніше призначеного ним часу. Конфлікт
в організації - знак її здоров'я, але до певної межі. Не слід старатися
загасити конфлікт, треба його вирішувати, особливо прихований.
Якщо керівник або працівник не прагне досягти
досконалості в своїй роботі, то краще взагалі не працювати. Тому що, якщо
робота не приносить прибутки або задоволення, то вона знищить працівника як
особу. Така природа згадуваної "імітаційної діяльності".
Керівнику слід обов'язково уникати виправдань
співробітників у разі помилок і невдач. Їм повинна бути запропонована допомога
в процесі рішення проблем, а не при виправленні зробленого. Це примусить
підлеглих проявляти самостійність і поліпшить якість роботи. Всі помилки
повинні визнаватися керівником відкрито і спокійно, заохочуючи до того ж
підлеглих і колег.
Першочергова увага повинна бути обернена на стан
особистої дисципліни кожного і колективу в цілому. У зв'язку з цим можна
сформулювати наступні цілі в діяльності керівника: сформувати і підтримувати
для себе динамічну картину життєдіяльності фірми; упевнено реагувати на нові
ситуації; чітко мотивувати свої дії, дії підлеглих і всього колективу;
регулярно і об'єктивно оцінювати досягнуті результати, аналізувати помилки і
прорахунки, не знімаючи відповідальності з винних, критикувати підлеглих
продумано, зважено; не брати на себе зайву і чужу роботу; ставити собі тільки
конкретні і досяжні цілі; розширювати свій кругозір і завжди зберігати хороший
настрій.
При наймі на роботу особливо пильну увагу слід
звернути на мотивацію кожного претендента, уважно вислухати його розповідь і
попросити час для відповіді.
Необхідно постійно прилюдно відзначати цінність
для колективу конкретного працівника, але ніколи - його нікчемність. При оцінці
підкреслюється не закладений потенціал, а досягнуті результати.
В процесі роботи кожна людина прагне виконати
поставлені перед нею завдання успішно заради задоволення трьох основних
психологічних потреб людини: у визнанні, в пошані, в самореалізації. Ці задачі
вирішує спілкування на підприємстві.
Спілкування будується на зверненні до партнера,
тобто на готовності сприймати адекватно роботу і поведінку колег. Звернення до
партнера грає велику роль, багато в чому визначаючи стабільність колективу і
ефективність його роботи. Спілкування залежить від внутрішніх і зовнішніх
чинників, що становлять середовище організації і індивідуальне сприйняття
керівника.
Серед основних зовнішніх чинників можна
виділити:
• загальний стан справ в організації на
сьогодні;
• морально-психологічний клімат в колективі;
• співвідношення
формальних і неформальних взаємин;
• кількість непопулярних рішень, що приймаються
керівником регулярно;
• загальна кількість управлінських помилок.
До основних внутрішніх чинників відноситься
сприйняття себе і інших з більш загальної точки зору.
Підсилити сприятливий ефект від позитивного
спілкування допоможе правильно встановлена система зворотного зв'язку в
організації. У практиці зворотного зв'язку є декілька правил, які слід
враховувати: зворотний зв'язок вимагає обов'язково осмислювати поведінку тих,
що оточують в різних ситуаціях і свою емоційну реакцію на нього; починати
спілкування з позитивних моментів, що може спонукати співбесідника слухати
уважніше; формулювати негативне враження і перешкоди для подальшого
спілкування, а також особисте відношення до виявлених недоліків в діяльності
працівника.
В процесі спілкування необхідно акцентувати свою
увагу на позитивній поведінці колег і не соромитися висловлювати свою думку за
допомогою похвал. Що стосується помилок, то їх також краще виправляти на
робочому місці підлеглого відразу, по мірі виникнення, ніж розбиратися з ними
потім.
Колективи з таким стилем спілкування
перетворюються на найефективніший вид організації людей - команду.
Допоміжні рекомендації мають нестандартний
характер і застосовуються нерегулярно, залежно від ситуації. Проте вони можуть
бути дуже корисні в управлінському і психологічному відношенні.
Однією з важливих переваг умілого
керівника є здатність користуватися послугами персоналу в питаннях, що
стосуються консультацій і рад, хоч за кінцевий результат відповідальність несе
тільки керівник. Якщо керівник вирішує скористатися консультацією персоналу, то
повинні бути ліквідовані всі бар'єри на шляхах комунікацій і забезпечене пряме
і чесне спілкування. Це забезпечить керівнику не тільки
кваліфіковану пораду, але і значно
зміцнить його авторитет в колективі, допоможе досягти поставлених цілей.
Висновки до
розділу 3
У третьому розділі дипломної роботи
розглянуто питання необхідності розвитку та збереження персоналу організації.
На підприємстві КООП «Максим»
проведене дослідження можливостей застосування розроблених у даній дипломної
роботі підходів до управління персоналу підприємства.
В процесі аналізу було виявлено, що
управління і розвиток персоналу на підприємстві на середньому рівні. Для розробки
програм найму робітників на підприємстві розробленні процедури завліку і оцінці
кандидатів, проводяться адаптаційні заходи по включенню нових співробітників в
організацію, але керівництво не проводить аналіз кадрової ситуації
Надані рекомендації управлінських
впливів, спрямованих на підвищення рівня розвитку управління персоналом на
підприємсті, що не тільки забезпечує режим нормального функціонування
організації, але і закладає фундамент майбутнього успіху.
Для підвищення професійних навиків
керівництво впровадило професійний розвиток до якого відноситься: планування і
розвиток кар’єри, професійне навчання. Професійне навчання розглядається як
неперервний процес, оказивающий непосрідственний вплив на досягнення
організаційних цілей, для цього вони опреділяють потреби неспівпадання
міжвимогаемим і наявним рівнем компетенції співробітника за допомогою
оцінювання знань співробітників.
З метою удосконалення управління і
розвитку персоналу рекомендовано впровадити - маркетинг персоналу, який є
умовою росту кадрового потенціалу за рахунок пошуку і прівлечення із зовнішніх
джерел
необхідної працюючої сили:
ретельне вивчення плинності кадрів,
яка є функцією стабільного трудового колективу;
розвиток відповідальності персоналу
шляхом приділення увазі стичної відповідальності і компетентності, що являється
невід’ємною частиною розвитку персоналу. Це дасть можливість підвищити
ефективність управління і розвитку персоналу:
знизити плинність кадрів;
підвищити продуктивність праці;
підвищити рівень кваліфікації працівників
знизити трудомісткість управлінських
робіт4
підвищити технологію управлінням
персоналу.
За допомогою процедур планування
кар’єри, навчання персоналу, персонал організація прогнозують вдоволення як
організаційних так ііндивідуальних цілей професійного і довжностного росту, що
допомагаєорганізації і персоналу досягти швидше своїх цілей.
РОЗДІЛ 4.
ОХОРОНА ПРАЦІ
.1 Характеристика
та аналіз потенційно шкідливих і небезпечних виробничих факторів на
підприємстві
Підприємство КООП «Максим»
знаходиться на першому поверсі цегляної будівлі. Загальна площа складає 20 м
²,
висота приміщення 3 м . Кількість працюючих у відділі 7 осіб, таким чином на
кожного працівника припадає 5 м² площі
і відповідно 17,5 м3 об'єму, що не відповідає встановленим нормам і стандартам.
Згідно з існуючими нормами на кожного працівника повинно бути 4,5 м
²
площі і 15 м3 об'єму у відповідності з СНиП 2.09.04-87* і ДсанПіН 3.3.2.007-98.
На стінах світлі шпалери, стеля підвісна,
підлога - світлий ламінат. На вікнах вертикальні жалюзі.
Стан повітря у виробничому приміщенні називають
мікрокліматом приміщення або метеорологічними умовами. Мікроклімат або
метеорологічні умови в приміщенні визначаються такими параметрами: температура
повітря в приміщенні, С; відносна вологість повітря, %; рухливість повітря,
м/с. Усі ці параметри поодинці, а також в комплексі впливають на фізіологічні
функції організму, його терморегуляцію і визначають самопочуття.
Опалення приміщення в холодний період року
здійснюється за допомогою централізованої системи опалення.
Приміщення підприємства
вентилюється природним шляхом повітря надходить через кватирки, двері, вікна.
Встановлено один кондиціонер.
Результати вимірювання
метеорологічних параметрів показали, що температура повітря складає 20 С у
холодний період, відносна вологість повітря дорівнює 60% і швидкість руху
повітря 0,12 м/с, що цілком відповідає сучасним санітарним нормам по ГОСТ
12.005-88.
Значення параметрів, що характеризують
санітарно-гігієнічні умови праці і їх відповідність стандартам і норма, представлені
в табл. 4.1.
Таблиця 4.1.
Параметри санітарно-гігієнічного стана праці в приміщенні відділу.
|
1
|
2
|
3
|
4
|
|
Параметр
|
Фактичне
значення
|
Норматив
по ГОСТ 12.1.00588 і іншим державним нормативам
|
Відповідність
фактичного значення державному нормативу
|
|
1.Рівень шуму, дБА
|
40-55
|
50-65
|
Відповідає
|
|
2.Освітленість, лк
|
326
|
300-400
|
Відповідає
|
|
3.Температура
повітря у перехідний період, С
|
20-22
|
18-22
|
Відповідає
|
|
4.Відносна
вологість, %
|
40-60
|
40-60
|
Відповідає
|
|
5.Швидкість
повітря, м/с
|
0,1
|
0,1
|
Відповідає
|
Основним джерелом шуму у відділі є робота 7
комп'ютерів і 2 принтера. Рівень шуму у відділі не перевищує 50 дБА.
Правильно виконане раціональне освітлення має
важливе значення для виконання всіх видів робіт. Світло є важливим стимулятором
всього організму в цілому.
Джерелом природного освітлення є два вікна
розміром (1,5х3)м ², фактична
площа вікон дорівнює 9 м ².
Приміщення за ступенем небезпеки враження людини
електричним струмом та залежно від стану виробничого середовища за «Правилами
улаштування електроустановок» (ПУЕ) діляться на:
-приміщення з
підвищеною небезпекою;
-особливо небезпечні
приміщення;
-приміщення без
підвищеною небезпеки.
Приміщення без підвищеної небезпеки
характеризується відсутністю таких особливо небезпечних факторів:
-відносна вологість
тривалий час перевищує 75 %;
-наявність
струмоведучого пилу, струмопровідної підлоги;
-висока температура
(постійна або тривалий час більш 35 С).
Данне підприємство відноситься до приміщень без
підвищеної небезпеки. Однак варто дотримуватись вимог електронебезпечності при
експлуатації приладів, світильників, ПК.
Все обладнання, серед якого 7 комп'ютерів і 2
принтера, та електроосвітлення працюють під напругою 220 В.
Монітори стоять на робочих столах на відстані
1,5 м від стіни, системні блоки сховані у столи, принтери стоять на спеціальній
тумбі. Ширина проходу між робочими місцями понад 1,5 м, що відповідає
санітарним нормам.
Забезпечення електробезпеки залежить від
конструкції електрообладнання, використання технічних засобів захисту. Для
того, щоб захистити людину від ураження електричним струмом при пошкодженні
ізоляції, передбачене захисне заземлення. Крім захисного заземлення в даному
приміщенні застосовують захисне відключення. Захисне відключення рекомендують
застосовувати як допоміжний засіб, коли нема впевненості у надійності
заземлення. Цей прилад дозволяє миттєво (протягом 0,1-0,2 с) автоматично
відключати дільницю електромережі при виникненні небезпеки ураження людини
струмом.
Електрична проводка виконана під штукатуркою. У
приміщенні встановлені 8 розеток, які розташовані на відстані 1 м від підлоги.
Розетки підключені до групових щитків через трипроводову мережу, а сама
проводка схована в подвійній ізоляції.
Працівники відділу при прийнятті на роботу
проходять первинний інструктаж по техніці безпеки.
Будинок, у якому знаходиться приміщення підприємства
відноситься до 1 ступеня по вогнестійкості, відділ відноситься до категорії Д
пожежонебезпеки, тому що відсутні легкозаймисті речовини.
Пожежна профілактика передбачає
наявність ефективних заходів, які попереджують загорання, або, у разі пожежі,
забезпечення швидкого його гасіння.
Для успішного проведення протипожежної
профілактики необхідно основні причини пожеж. Основними причинами пожеж можуть
бути:
) незадовільний стан обчислювальної та іншої
оргтехніки, електротехнічних приладів та порушення правил їхньої експлуатації;
) несправність електропроводки та опалювальних
приладів та порушення правил їхньої експлуатації;
) невиконання вимог нормативних документів по
питаннях пожежної безпеки.
Для забезпечення пожежної безпеки підприємства
необхідно проводити профілактичні заходи:
) вибір та експлуатація обладнання з урахуванням
пожежобезпечності;
) відповідний вибір та будова систем опалення та
кондиціювання;
) застосування електрообладнання та
світильників, які відповідають класу пожежо-, вибухонебезпезпеці приміщень.
У приміщенні є 2 хімічних вогнегасника ВХП-10.
Також є протипожежний водопровід, який обєднаний із господарсько-питним. Для
гасіння пожеж у середині будівлі встановлений внутрішній пожежний кран з приєднаним
до нього рукавом, який знаходиться у спеціальній ніші з надписом “ПК”. Кран
знаходиться у коридорі та розташований на висоті 1,35 м від підлоги.
Приміщення обладнано такими засобами
пожежної сигналізації та звязку, як телефон загального призначення та пожежний
оповісник ручної дії, який вмикається натиском кнопки у разі виникнення пожежі.
Для інформування людей про місця установки
вогнегасників вивішуються спеціальні вказівні знаки. На кожному поверсі є схема
евакуації у разі виникнення пожежі.
Засоби, які застосовуються для
попередження і ліквідації пожеж, відповідають правилам протипожежної безпеки,
схвалені і дозволені службою пожежної охорони.
Аналіз санітарно-гігієнічних умов
праці, техніки безпеки та пожежної безпеки показав, що приміщення відділу
знаходиться у задовільному стані.
4.2
Розрахунки освітлення приміщення та
розробка правил техніки безпеки на підприємстві
Освітлення робочого місця нормується
згідно з Державними будівельними нормами України: ДБН В.2.5-28-2006 Інженерне
обладнання будинків і споруд. Природне і штучне освітлення.
Мінімальна освітленість
встановлюється в залежності від розряду виконуваних зорових робіт. Для ІV
розряду зорових робіт вона складає 300...500 лк.
Перевіримо освітленість робочого
місця користувача ПК на відповідність розряду зорової роботи. За даними
вимірювань рівень природної освітленості поверхні, де розташований ПК, складає
200 лк за освітленості тієї же поверхні відкритим небосхилом в 20000 лк, тобто
КПО = 1%, що не відповідає нормативному КПО.
Для штучного освітлення у приміщенні
використовуються люмінесцентні лампи.
Розрахунок штучного освітлення
проведемо для кімнати площею 20 м², ширина
якої складає 5м, довжина - 4м, висота - 3м.
Скористаємося методом використання
світлового потоку. Для визначення потрібної кількості світильників, які повинні
забезпечити нормований рівень освітленості, визначимо світловий потік, що падає
на робочу поверхню за формулою:
- світловий потік, що
розраховується, Лм;- нормована мінімальна освітленість, Лк; Е = 300 Лк;- площа
освітлюваного приміщення (у нашому випадку S=20м2 );- відношення середньої
освітленості до мінімальної (зазвичай приймається рівним 1,1... 1,2, в нашому
випадку Z =1,1);- коефіцієнт запасу, що враховує зменшення світлового потоку
лампи в результаті забруднення світильників в процесі експлуатації (його
значення залежить від типу приміщення і характеру робіт, що проводяться в
ньому, в нашому випадку К = 1,5);
η - коефіцієнт
використання світлового потоку, (виражається відношенням світлового потоку, що
падає на розрахункову поверхню, до сумарного потоку всіх ламп, і обчислюється в
долях одиниці; залежить від характеристик світильника, розмірів приміщення,
забарвлення стін і стелі, що характеризуються коефіцієнтами відбиття від стін (ρст.)
і стелі (ρстелі)),
значення коефіцієнтів дорівнюють ρст
= 40% і ρстелі=60%.
Обчислимо індекс приміщення за
формулою:
- площа приміщення, S = 20м2; h -
розрахункова висота підвісу, h = 2,9 м; A - ширина приміщення, А = 4 м; B -
довжина приміщення, В = 5 м.
Підставивши значення отримаємо:
Знаючи індекс приміщення І, за
таблицею 4 [ДБН В.2.5-28-2006] знаходимо η =0,22.
Підставимо всі значення у формулу
для визначення світлового потоку F :
Для освітлення використані
люмінесцентні лампи типу ЛБ 40-1, світловий потік яких F = 4320 Лм. Розрахуємо
необхідну кількість ламп у світильниках за формулою:
- кількість ламп, що визначається; F
- світловий потік, F = 45000 Лм; Fл- світловий потік лампи, Fл = 4320 Лм
В приміщенні використовуються
світильники типу ОД. Кожен світильник комплектується двома лампами. Тобто
необхідно використовувати 6 світильників із 12 працюючими лампами в них. Схема
розташування світильників зображена на рисунку 4.2.1.
Рис.4.1.Схема розташування
світильників.
Важливість економічної безпеки для
діяльності підприємства підвищує актуальність питання щодо її забезпечення. Під
забезпеченням економічної безпеки підприємства розуміється процес у вигляді
послідовності взаємопов'язаних і взаємообумовлених дій (заходів) різного
характеру (кадрових, інформаційних, технічних, технологічних, організаційних,
адміністративних та ін.) щодо запобігання можливим збиткам від внутрішніх і
зовнішніх загроз та локалізації негативних наслідків у разі їх виявлення, метою
якого є досягнення максимального рівня економічної безпеки підприємства.
Забезпечення економічної безпеки підприємства допускає виділення, аналіз і
оцінку існуючих загроз за кожною із функціональних складових безпеки
(виробничої, фінансової, соціально-кадрової, техніко-технологічної,
політико-правової, інформаційної, екологічної та ін.) і розробку на їх основі
системи протидіючих заходів.
Забезпечення економічної безпеки
підприємства є обов'язковою умовою не тільки поточного існування підприємства,
але і має прямий причинно-наслідковий зв'язок з його розвитком, оскільки останнє
неможливо без забезпечення стану захищеності економічних інтересів підприємства
від дії негативних загроз.
Висновки до
розділу 4
Забезпечення економічної безпеки
підприємства передбачає вирішення найрізноманітніших завдань: від формування
загальної послідовності захисних дій (заходів) до забезпечення збереження
окремих видів ресурсів (матеріальних, фінансових, нематеріальних та ін.) Тим не
менше, існують загальні правила, які завжди мають дотримуватися при
забезпеченні економічної безпеки підприємства.
Перше правило полягає у необхідності
розуміння як співвідносяться між собою два процеси - процес виникнення і
розвитку загрози і процес забезпечення безпеки. Основою виникнення загроз є
взаємодія різних елементів зовнішнього і внутрішнього середовища діяльності
підприємства, які одночасно можуть бути як джерелами, так об’єктами загроз. У
процесі забезпечення економічної безпеки ці ж самі елементи можуть розглядатися
як об'єкти забезпечення економічної безпеки підприємства, так і його суб'єкти
(засоби, механізми, способи та ін.). Отже, один і той же елемент може виступати
одночасно в чотирьох ролях, як то суб'єкт забезпечення безпеки (засіб,
механізм, спосіб), об'єкт забезпечення безпеки (елемент, який захищають),
джерело загрози та об'єкт загрози.
За другим правилом організація
забезпечення економічної безпеки підприємства має проводитися на декількох
рівнях: перший - рівень власників (акціонерів); другий - рівень вищої ланки
управління підприємством (рада директорів, генеральний директор); третій - рівень
середньої ланки управління (функціональні директори, начальники функціональних
підрозділів, кадрова політика, система мотивації персоналу, система обліку,
аналізу та контролю господарської діяльності); четвертий - рівень поточної
діяльності підприємства відповідно виділеним бізнес-процесам в його діяльності.
При цьому, більш високі рівні мають пріоритетне значення в забезпеченні
економічної безпеки підприємства.
Третє правило передбачає
необхідність врахування часового фактора у забезпеченні економічної безпеки
підприємства. Усі захисні заходи по відношенню до діяльності підприємства мають
тричі піддаватися контрольним процедурам: прогнозуватися (розглядатися в
майбутньому часі), контролюватися (у теперішньому часі) і аналізуватися (за
минулими періодами). Пріоритет, як правило, віддається заходам превентивного
характеру, тобто протидія загрозам має починатися на ранній стадії їх
реалізації.
Таким чином, запорукою належного
рівня економічної безпеки підприємства є її забезпечення. Значна кількість
суперечливих питань в цьому напрямі, як то неоднозначність трактування понять
«економічна безпека» та «забезпечення економічної безпеки», існування значної
кількості форм та видів забезпечення, відсутність чітко визначеної
послідовності його етапів та ін. Своєчасне вирішення методологічних,
методичних, а тим більше суперечливих питань в області забезпечення економічної
безпеки дозволить посилити її рівень, і, як наслідок, призведе до подолання
кризових явищ і поліпшення економічної ситуації на підприємстві.
РОЗДІЛ 5. БЕЗПЕКА В НАДЗВИЧАЙНИХ
СИТУАЦІЯХ
5.1 Оцінка
захисту персоналу об’єкта при виникненні радіаційної обстановки в регіоні
В Миколаївській області знаходиться
Южноукраїнській АЕС,на якій експлуатується чотири енергоблока типу: ВВЕР
-1000/302, ВВЕР -1000/302, ВВЕР - 1000/338, ВВЕР - 320 сумарною потужністю 3800
МВт.
У разі аварійного вибуху виникають
великої потужні потоки повітря, спрямовані вгору і до його центру.
Частинки ґрунту захоплюються цими
потоками разом з конденсованими на них радіоактивними речовинами і потрапляють
в хмару ядерного вибуху. При ядерному вибуху велика частина радіоактивних
речовин випаровується, а потім конденсується на розплавлених частинках ґрунту.
Хмара ядерного вибуху з великою
швидкістю піднімається на висоту, яка залежить від потужності вибуху. Об‘єм
/розмір/ хмари ядерного вибуху внаслідок різниці температур зовнішнього і
внутрішнього повітря збільшується. При підніманні на висоту температури стають
рівними і піднімання радіоактивної хмари припиняється.
Радіоактивне зараження місцевості
може бути небезпечним протягом декількох діб, тижнів і місяців після ядерного
вибуху. На місцевості, яка потрапляє під радіоактивне зараження при ядерному
вибуху, виникають дві ділянки - вибуху і сліду хмари.
5.2
Характеристика об’єкта
Підприємство КООП «Максим»
знаходиться у місті Миколаєві який розташований при впадінні річки Інгул у
Південний Буг, за 65 кілометрів від Чорного моря. Населення міста складає 495
873 чоловік (на 1 березня 2013). Площа міста 260 км².
Густота
населення 1907.2 осіб/км². Висота
над рівнем моря 42 м. Водойма р. Південний Буг, Інгул.
Місто складається з 4 районів:
Центральний - розташований на
північному заході. Включає історичний центр міста, Ракетне Урочище, місцевості
Соляні, Північний (Сєвєрний), Тернівка (тут діє власна селищна рада),
Матвіївка, Варварівка.
Заводський - розташований на заході.
Володіє значною промзоною. До нього також належать житлові «спальні»
мікрорайони Намив і Ліски.
Ленінський - розташований на сході.
Включає, крім іншого, місцини ПТЗ (ЮТЗ), Новий Водопій і Старий Водопій. На
території району містяться автобусний і залізничний вокзали, зоопарк.
Корабельний - розташований на
півдні. Включає такі місцини: Широка Балка, Жовтневе (Вітовка), Балабанівка,
Кульбакине.
Підприємство КООП «Максим» розташоване
на території Заводського району. На території району містяться автобусний
вокзал, два міських ринки, багатоповерхових житлових будинків, школа, дитсадок
і.т.д. Підприємство розташоване на першому поверсі цегляної, п’яти поверхової
будівлі. Загальна площа приміщення складає 20 м ²,
висота
приміщення 3 м . Підприємство розташоване у центрі міста на вулиці 8-го березня
,біля центрального ринку міста. Карта розміщення підприємства наведена на
рис.5.1.
Рис.5.1. Катра розміщення
підприємства у місті Миколаїв
Територія де розташоване
підприємство забудована багатою кількістю споруд. Район центрального ринку
міста передбачає скупчення великої кількості людей та автомобілів. Навпроти
території, де знаходиться підприємство КООП «Максим», знаходиться один із
міських автовокзалів.
За 122 км. від міста Миколаєва
розташована АЕС у місті Ужноукраїнськ, що є небезпечним як для персоналу
підприємства так і для населення міста при виникненні радіаційної обстановки в
регіоні.
У разі виникнення аварійного вибуху
(на АЕС) вийдуть з ладу системи охолодження реакторів, у результаті чого
станеться вибух у реакторному залі.
Ситуація, яка складеться у
результаті радіаційного забруднення місцевості в наслідок вибуху впливає на
діяльність потенційно небезпечного об’єкту населення, створюючи небезпечну
радіаційну обстановку (РО). Оцінка якої включає:
визначення масштабів зони
радіоактивного забруднення місцевості (РЗМ);
аналіз впливу РЗМ на безпеку
життєдіяльності людей, на функціонування підприємства КООП "Максим",
роботу рятувальних формувань і ліквідаторів наслідків РЗ;
Радіаційну обстановку можна виявити
та оцінити методами прогнозування і за даними розвідки.
Для оцінки РО методом прогнозування
необхідні наступні вихідні дані: -координати АЕС , (47° 48′ 45″ N,
31° 13′ 2″ E)
типи реактора та його потужність,
(ВВЭР-1000,
950 МВт, на АЕС знаходиться чотири реактори);
час початку викиду радіоактивних
речовин (РР), (день)
напрямок середнього вітру і його
швидкість,(у напрямку півдня,Vc= 3,5 м/с);
хмарність, (середня);
коефіцієнт ослаблення радіації -
Косп (Кз),(2) ;
прогноз зміни метеоданих у найближчі
12 годин, (без змін);
обсяг виходу активності,(30 %);
відстань від АЕС до місця
розташування підприємства КООП "Максим"( 122 км).
На основі вихідних даних за
допомогою розрахункових залежностей та довідкових таблиць здійснити оцінку РО,
для чого:
. Визначити категорію
стійкості атмосфери за табл. 5.1.
Таблиця 5.1. Категорія стійкості
атмосфери
|
Швидкість вітру (V10)
на висоті 10 м, м/c
|
Час доби
|
|
День
|
Ніч
|
|
Хмарність
|
|
Відсутня
|
Середня
|
Суцільна
|
Відсутня
|
Суцільна
|
|
V10
£
2
|
A
|
А
|
А
|
А
|
А
|
|
2
< V10 £ 3
|
А
|
А
|
Д
|
F
|
F
|
|
3
< V10 £ 5
|
А
|
Д
|
Д
|
Д
|
F
|
|
5
< V10 £ 6
|
Д
|
Д
|
Д
|
Д
|
Д
|
|
V10
> 6
|
Д
|
Д
|
Д
|
Д
|
Д
|
Категорія стійкості атмосфери
Д-нейтральна (ізотермія)
. Визначаємо середню швидкість
вітру в шарі від поверхні землі до центра хмари Vc за табл. 5.2.
Таблиця 5.2.
Середня швидкість (Vc) вітру в шарі від поверхні землі до висоти переміщення
центра хмари забрудненого повітря, м/с
|
Категорія
стійкості атмосфери
|
Швидкість
вітру на висоті 10 м (V10), м/с
|
|
<
2
|
2
|
3
|
4
|
5
|
>6
|
|
A
|
2
|
2
|
5
|
-
|
-
|
-
|
|
Д
|
-
|
-
|
5
|
5
|
5
|
10
|
|
F
|
-
|
5
|
10
|
10
|
-
|
-
|
Середня швидкість (Vc) вітру в шарі
від поверхні землі до висоти переміщення центра хмари забрудненого повітря,
дорівнює 5 м/с.
. Визначаемо розміри зон РЗМ
(довжину L і ширину b) в за табл.9-13. Дані занести до таблиці 5.3.
Таблиця 5.3.
|
Зона
|
М
|
А
|
Б
|
В
|
Г
|
|
L(км)
|
284
|
74,5
|
99
|
-
|
-
|
|
b(км)
|
18,4
|
3,51
|
0,28
|
-
|
-
|
. Визначаємо зону, в якій
знаходиться досліджуване підприємство КООП "Максим".
Підприємство КООП «Максим» буде
знаходитися у зоні М.
. Визначаємо час початку опромінення
персоналу на КООП "Максим" (tф) радіоактивної хмари за табл. 5.4.
Таблиця 5.4.
Час початку опромінення персоналу ПНО (tф) після аварії на АЕС, година
|
Відстань
від АЕС, км
|
Категорія
стійкості атмосфери
|
|
А
|
Д
|
F
|
|
Середня
швидкість вітру, м/с
|
|
2
|
5
|
10
|
5
|
10
|
|
5
|
0,5
|
0,3
|
0,1
|
0,3
|
0,1
|
|
10
|
1,0
|
0,5
|
0,3
|
0,5
|
0,3
|
|
20
|
2,0
|
1,0
|
0,5
|
1,0
|
0,5
|
|
30
|
3,0
|
1,5
|
0,8
|
1,5
|
0,8
|
|
40
|
4,0
|
2,0
|
1,0
|
2,0
|
1,0
|
|
50
|
5,0
|
2,5
|
1,2
|
2,5
|
1,3
|
|
60
|
6,5
|
3,0
|
1,5
|
3,0
|
1,5
|
|
70
|
7,5
|
4,0
|
2,0
|
4,0
|
2,0
|
|
80
|
8,0
|
4,0
|
2,0
|
4,0
|
2,0
|
|
90
|
8,5
|
4,5
|
2,2
|
4,5
|
2,5
|
|
100
|
9,5
|
5,0
|
2,5
|
5,0
|
3,0
|
|
150
|
14
|
7,5
|
3,5
|
8,0
|
4,0
|
|
200
|
10
|
5,0
|
10
|
5,0
|
|
250
|
23
|
12
|
6,0
|
13
|
6,5
|
|
300
|
28
|
15
|
7,5
|
16
|
8,0
|
|
350
|
32
|
17
|
9,0
|
18
|
9,0
|
|
400
|
37
|
19
|
10
|
21
|
11
|
|
450
|
41
|
22
|
11
|
23
|
12
|
|
500
|
46
|
24
|
12
|
26
|
13
|
|
600
|
53
|
29
|
15
|
31
|
16
|
|
700
|
61
|
34
|
17
|
36
|
18
|
|
800
|
72
|
38
|
20
|
41
|
20
|
|
900
|
82
|
43
|
22
|
46
|
23
|
|
1000
|
89
|
48
|
24
|
50
|
26
|
Опромінення персоналу при категорії
стійкості атмосфери Д, та відстані АЕС до підприємства КООП "Максим"
150 км відбудеться за 3,5 години.
. Визначаємо можливі дози
опромінення населення.
Формування дози опромінення
персоналу та населення відбувається за прямим і непрямим шляхом.
До прямого шляху опромінення
належать:
зовнішнє опромінення - від хмари
забрудненого повітря що переміщується за напрямом вітру та випромінювання
радіонуклідів, які випали з неї на поверхню;
внутрішнє опромінення - від
радіонуклідів, які потрапляють до організму людини через органи дихання.
До непрямого шляху впливу належить
внутрішнє опромінення від радіонуклідів, які потрапили до організму за
харчовими і біологічними ланцюжками.
Послідовність визначення дози
опромінення людини наступна:
а) визначаємо дозу опромінення (Дпх)
від радіоактивної хмари яка пересувається за напрямком вітру за табл. 5.5.;
Таблиця 5.5. Доза опромінення на
місцевості від радіоактивної хмари Дмх, мЗв (реактор ВВЕР-1000, вихід
активності продуктів 10%, висота 0 м)
|
Відстань
від АЕС, км
|
Категорія
стійкості атмосфери
|
|
А
|
Д
|
F
|
|
Середня
швидкість вітру, м/с
|
|
2
|
5
|
10
|
5
|
10
|
|
5
|
35,0
|
38,4
|
28,3
|
51,8
|
37,1
|
|
10
|
15,5
|
14,0
|
10,9
|
20,7
|
15,0
|
|
20
|
4,71
|
4,57
|
3,70
|
8,56
|
6,28
|
|
30
|
2,36
|
2,80
|
2,30
|
5,02
|
3,74
|
|
40
|
1,46
|
2,06
|
1,72
|
3,37
|
2,55
|
|
50
|
0,987
|
1,42
|
1,20
|
2,45
|
1,85
|
|
60
|
0,711
|
1,04
|
0,895
|
1,87
|
1,41
|
|
70
|
0,535
|
0,799
|
0,695
|
1,49
|
1,12
|
|
80
|
0,415
|
0,634
|
0,557
|
1,22
|
0,913
|
|
90
|
0,331
|
0,516
|
0,458
|
1,03
|
0,771
|
|
100
|
0,269
|
0,429
|
0,383
|
8,80
|
0,662
|
|
150
|
0,118
|
0,208
|
0,191
|
0,485
|
0,363
|
|
200
|
0,065
|
0,125
|
0,116
|
0,319
|
0,237
|
|
250
|
0,04
|
0,08
|
0,077
|
0,230
|
0,171
|
|
300
|
0,025
|
0,06
|
0,056
|
0,176
|
0,131
|
|
350
|
0,016
|
0,05
|
0,043
|
0,141
|
0,104
|
|
400
|
0,01
|
0,04
|
0,034
|
0,116
|
0,086
|
|
450
|
0,009
|
0,03
|
0,026
|
0,098
|
0,072
|
|
500
|
0,0086
|
0,028
|
0,02
|
0,085
|
0,06
|
|
600
|
0,0061
|
0,02
|
0,017
|
0,066
|
0,048
|
|
700
|
0,004
|
0,017
|
0,013
|
0,054
|
0,038
|
|
800
|
0,003
|
0,013
|
0,01
|
0,045
|
0,03
|
|
900
|
0,0026
|
0,01
|
0,0089
|
0,038
|
0,026
|
|
1000
|
0,0020
|
0,009
|
0,0075
|
0,032
|
0,02
|
|
|
|
|
|
|
|
Оскільки відстань АЕС знаходиться
від міста Миколаєва на відстані 122км., то доза опромінення людини дорівнює
0,208 мЗв.
б) визначаємо дозу зовнішнього
опромінення від поверхневого забруднення ґрунту (Дп), одержувану людиною при
розташуванні в середині зони забруднення. Її визначають за табл. 5.6. для
терміну перебування людей в зоні; на якій створюється прогноз (прийняти 15 діб
для визначення заходів з табл.5.7.);
Таблиця 5.6. Доза опромінення,
одержувана людиною при відкритому розташуванні в середині зони забруднення (Дп),
мЗв.
|
Час початку опромінення після аварії
|
Тривалість перебування людей у зоні
забруднення
|
|
|
Години
|
|
|
1
|
2
|
3
|
4
|
5
|
6
|
7
|
9
|
12
|
15
|
18
|
|
|
зона «М»
|
|
|
Години
|
1
|
0,4
|
0,7
|
1,0
|
1,3
|
1,6
|
1,9
|
2,1
|
2,6
|
3,3
|
3,9
|
4,5
|
|
|
2
|
0,3
|
0,6
|
0,9
|
1,2
|
1,5
|
1,7
|
2,0
|
2,4
|
3,1
|
3,7
|
4,2
|
|
|
3
|
0,3
|
0,6
|
0,9
|
1,2
|
1,4
|
1,6
|
1,9
|
2,3
|
2,9
|
3,5
|
4,1
|
|
|
5
|
0,2
|
0,5
|
0,8
|
1,0
|
1,2
|
1,5
|
1,7
|
2,1
|
2,7
|
3,3
|
3,8
|
|
|
6
|
0,2
|
0,5
|
0,7
|
0,9
|
1,2
|
1,4
|
1,6
|
2,0
|
2,6
|
3,2
|
3,7
|
|
|
7
|
0,2
|
0,5
|
0,7
|
0,9
|
1,1
|
1,3
|
1,6
|
2,0
|
2,5
|
3,1
|
3,6
|
|
|
9
|
0,2
|
0,4
|
0,6
|
0,8
|
1,1
|
1,3
|
1,5
|
1,8
|
2,4
|
2,9
|
3,4
|
|
|
12
|
0,2
|
0,4
|
0,6
|
0,8
|
1,0
|
1,2
|
1,3
|
1,7
|
2,2
|
2,7
|
3,2
|
0,1
|
0,3
|
0,5
|
0,7
|
0,9
|
1,1
|
1,3
|
1,6
|
2,1
|
2,6
|
3,0
|
|
|
18
|
0,1
|
0,3
|
0,4
|
0,5
|
0,8
|
1,0
|
1,2
|
1,5
|
2,0
|
2,5
|
2,9
|
|
|
Доба
|
1
|
0,1
|
0,3
|
0,4
|
0,6
|
0,8
|
0,9
|
1,1
|
1,4
|
1,8
|
2,3
|
2,7
|
|
2
|
0,1
|
0,2
|
0,3
|
0,4
|
0,6
|
0,7
|
0,8
|
1,1
|
1,4
|
1,8
|
2,1
|
|
3
|
0,1
|
0,2
|
0,3
|
0,4
|
0,5
|
0,6
|
0,7
|
0,9
|
1,2
|
1,5
|
1,8
|
|
5
|
-
|
0,1
|
0,2
|
0,3
|
0,4
|
0,5
|
0,6
|
0,7
|
1,0
|
1,2
|
1,5
|
|
10
|
-
|
0,1
|
0,1
|
0,2
|
0,3
|
0,3
|
0,4
|
0,5
|
0,7
|
0,9
|
1,1
|
|
15
|
-
|
0,1
|
0,1
|
0,2
|
0,2
|
0,3
|
0,3
|
0,4
|
0,6
|
0,7
|
0,9
|
|
Місяці
|
1
|
-
|
-
|
0,1
|
0,1
|
0,1
|
0,2
|
0,2
|
0,3
|
0,4
|
0,6
|
0,6
|
|
2
|
-
|
-
|
-
|
0,1
|
0,1
|
0,1
|
0,1
|
0,2
|
0,2
|
0,3
|
0,4
|
|
6
|
-
|
-
|
-
|
-
|
-
|
-
|
-
|
0,1
|
0,1
|
0,1
|
0,2
|
|
12
|
-
|
-
|
-
|
-
|
-
|
-
|
-
|
-
|
-
|
0,1
|
0,1
|
|
Доба
|
Місяці
|
|
1
|
1,5
|
2
|
3
|
5
|
10
|
15
|
1
|
2
|
6
|
12
|
|
Години
|
1
|
5,5
|
7,4
|
9,0
|
11,8
|
16,4
|
25,1
|
31,9
|
47,0
|
67,8
|
115
|
158
|
|
2
|
5,3
|
7,1
|
8,7
|
11,5
|
16,1
|
24,8
|
31,5
|
46,7
|
67,4
|
115
|
158
|
|
3
|
5,1
|
6,9
|
8,5
|
11,3
|
15,8
|
24,5
|
31,2
|
46,3
|
67,1
|
114
|
157
|
|
5
|
4,8
|
6,5
|
8,1
|
10,8
|
15,4
|
24,0
|
30,7
|
45,8
|
66,5
|
114
|
157
|
|
6
|
4,7
|
6,4
|
7,9
|
10,7
|
15,2
|
23,8
|
30,5
|
45,5
|
66,2
|
114
|
156
|
|
7
|
4,5
|
6,3
|
7,8
|
10,5
|
15,0
|
23,6
|
30,3
|
45,3
|
66,0
|
113
|
156
|
|
9
|
4,3
|
6,0
|
7,5
|
10,2
|
14,7
|
23,2
|
29,9
|
44,9
|
65,5
|
113
|
156
|
|
12
|
4,1
|
5,7
|
7,2
|
9,8
|
14,2
|
22,7
|
29,3
|
44,3
|
64,9
|
112
|
155
|
|
15
|
3,9
|
5,5
|
6,9
|
9,5
|
13,9
|
22,3
|
28,9
|
43,8
|
64,4
|
112
|
154
|
|
18
|
3,7
|
5,3
|
6,7
|
9,2
|
13,5
|
21,9
|
28,4
|
43,3
|
63,9
|
111
|
154
|
|
Доба
|
1
|
3,5
|
4,9
|
6,3
|
8,7
|
12,9
|
21,1
|
27,6
|
42,4
|
62,9
|
110
|
153
|
|
2
|
2,8
|
4,0
|
5,2
|
7,4
|
11,3
|
19,0
|
25,3
|
39,0
|
60,0
|
107
|
149
|
|
3
|
2,4
|
3,5
|
4,6
|
6,6
|
10,2
|
17,5
|
23,6
|
37,7
|
57,7
|
104
|
147
|
|
5
|
1,9
|
2,9
|
3,8
|
5,5
|
8,7
|
15,5
|
21,1
|
34,7
|
54,2
|
108
|
143
|
|
10
|
1,4
|
2,1
|
2,8
|
4,2
|
6,7
|
12,4
|
17,4
|
29,7
|
48,2
|
93,4
|
135
|
|
15
|
1,2
|
1,7
|
2,3
|
3,6
|
5,6
|
10,6
|
15,1
|
26,5
|
44,0
|
129
|
|
Місяці
|
1
|
0,8
|
1,2
|
1,6
|
2,4
|
4,0
|
17,8
|
11,3
|
20,7
|
36,0
|
77,1
|
116
|
|
2
|
0,5
|
0,8
|
1,1
|
1,7
|
2,8
|
5,5
|
8,1
|
15,3
|
27,7
|
64,0
|
101
|
|
6
|
0,2
|
0,4
|
0,5
|
0,8
|
1,4
|
2,9
|
4,3
|
8,4
|
16,1
|
41,8
|
71,9
|
|
12
|
0,1
|
0,2
|
0,3
|
0,5
|
0,9
|
1,8
|
2,7
|
5,4
|
10,6
|
29,1
|
52,7
|
|
Години
|
|
1
|
2
|
3
|
4
|
5
|
6
|
7
|
9
|
12
|
15
|
18
|
|
зона «А»
|
|
|
Години
|
1
|
0,40
|
0,76
|
1,08
|
1,37
|
1,66
|
1,93
|
2,18
|
2,66
|
3,32
|
3,94
|
4,51
|
|
2
|
0,35
|
0,67
|
0,97
|
1,24
|
1,52
|
1,77
|
2,02
|
2,48
|
3,13
|
3,72
|
4,28
|
|
3
|
0,32
|
0,62
|
0,90
|
1,16
|
1,42
|
1,66
|
1,90
|
2,35
|
2,97
|
3,56
|
3,11
|
|
5
|
0,28
|
0,54
|
0,80
|
1,04
|
1,28
|
1,51
|
1,73
|
2,15
|
2,75
|
3,31
|
3,84
|
|
6
|
0,26
|
0,52
|
0,76
|
0,99
|
1,22
|
1,45
|
1,66
|
2,07
|
2,66
|
3,21
|
3,73
|
|
7
|
0,25
|
0,49
|
0,73
|
0,95
|
1,18
|
1,39
|
1,60
|
2,00
|
2,58
|
3,12
|
3,63
|
|
9
|
0,23
|
0,46
|
0,68
|
0,89
|
1,10
|
1,31
|
1,51
|
1,89
|
2,44
|
2,96
|
3,46
|
|
12
|
0,21
|
0,42
|
0,62
|
0,82
|
1,02
|
1,21
|
1,39
|
1,76
|
2,28
|
2,77
|
3,25
|
|
15
|
0,19
|
0,39
|
0,58
|
0,77
|
0,96
|
1,13
|
1,31
|
1,65
|
2,15
|
2,62
|
3,08
|
|
18
|
0,18
|
0,36
|
0,54
|
0,71
|
0,89
|
1,07
|
1,23
|
1,56
|
2,04
|
2,50
|
2,94
|
|
Доба
|
1
|
0,16
|
0,33
|
0,49
|
0,65
|
0,81
|
0,97
|
1,12
|
1,43
|
1,87
|
2,30
|
2,71
|
|
2
|
0,12
|
0,25
|
0,30
|
0,47
|
0,63
|
0,75
|
0,87
|
1,11
|
1,47
|
1,82
|
2,16
|
|
3
|
0,10
|
0,21
|
0,32
|
0,42
|
0,53
|
0,64
|
0,74
|
0,95
|
1,26
|
1,56
|
1,86
|
|
5
|
0,08
|
0,17
|
0,25
|
0,39
|
0,43
|
0,51
|
0,60
|
0,76
|
1,01
|
1,26
|
1,51
|
|
10
|
0,06
|
0,12
|
0,18
|
0,25
|
0,31
|
0,37
|
0,43
|
0,55
|
0,74
|
0,92
|
1,10
|
|
15
|
0,05
|
0,10
|
0,15
|
0,20
|
0,25
|
0,30
|
0,35
|
0,45
|
0,60
|
0,75
|
0,90
|
|
Місяці
|
1
|
0,03
|
0,07
|
0,10
|
0,13
|
0,17
|
0,21
|
0,24
|
0,31
|
0,42
|
0,53
|
0,63
|
|
2
|
0,02
|
0,04
|
0,07
|
0,10
|
0,12
|
0,14
|
0,16
|
0,21
|
0,28
|
0,36
|
0,43
|
|
6
|
0,01
|
0,02
|
0,03
|
0,4
|
0,06
|
0,07
|
0,08
|
0,11
|
0,14
|
0,18
|
0,22
|
|
12
|
-
|
0,01
|
0,02
|
0,2
|
0,03
|
0,04
|
0,05
|
0,06
|
0,09
|
0,11
|
0,13
|
|
Доба
|
Місяці
|
|
1
|
1,5
|
2
|
3
|
5
|
10
|
15
|
1
|
2
|
6
|
12
|
|
Години
|
1
|
5,56
|
7,41
|
9,03
|
11,8
|
16,4
|
25,1
|
31,9
|
47,0
|
67,8
|
115
|
158
|
|
2
|
5,32
|
7,14
|
8,75
|
11,5
|
16,1
|
24,8
|
31,5
|
46,7
|
67,4
|
115
|
158
|
|
3
|
5,13
|
6,93
|
8,52
|
11,3
|
15,8
|
31,2
|
46,3
|
67,1
|
114
|
157
|
|
5
|
4,82
|
6,59
|
8,15
|
10,8
|
15,4
|
24,0
|
30,7
|
45,8
|
66,5
|
114
|
157
|
|
6
|
4,70
|
6,44
|
7,99
|
10,7
|
15,2
|
23,8
|
30,5
|
45,5
|
66,2
|
114
|
156
|
|
7
|
4,59
|
6,31
|
7,85
|
10,5
|
15,0
|
23,6
|
30,3
|
45,3
|
66,0
|
113
|
156
|
|
9
|
4,39
|
6,08
|
7,59
|
10,2
|
14,7
|
23,2
|
29,9
|
44,9
|
65,5
|
113
|
156
|
|
12
|
4,15
|
5,79
|
7,26
|
9,88
|
14,2
|
22,7
|
29,3
|
44,3
|
64,9
|
112
|
155
|
|
15
|
3,95
|
5,54
|
6,99
|
9,56
|
13,9
|
22,3
|
28,9
|
43,8
|
64,4
|
112
|
154
|
|
18
|
3,78
|
5,33
|
6,74
|
9,27
|
13,5
|
21,9
|
28,4
|
43,3
|
63,9
|
111
|
154
|
|
Доба
|
1
|
3,51
|
4,98
|
6,34
|
8,79
|
12,9
|
21,1
|
27,6
|
42,4
|
62,9
|
110
|
153
|
|
2
|
2,83
|
4,09
|
5,28
|
7,47
|
11,3
|
19,0
|
25,3
|
39,0
|
60,0
|
107
|
149
|
|
3
|
2,44
|
3,57
|
4,63
|
6,63
|
10,2
|
17,5
|
23,6
|
37,7
|
57,7
|
104
|
147
|
|
5
|
1,99
|
2,93
|
3,84
|
5,57
|
8,74
|
15,5
|
21,1
|
34,7
|
54,2
|
108
|
143
|
|
10
|
1,46
|
2,17
|
2,87
|
4,21
|
6,76
|
12,4
|
17,4
|
29,7
|
48,2
|
93,4
|
135
|
|
15
|
1,20
|
1,79
|
2,37
|
3,51
|
5,68
|
10,6
|
15,1
|
26,5
|
44,0
|
88,1
|
129
|
|
Місяці
|
1
|
0,84
|
1,26
|
1,67
|
2,49
|
4,08
|
7,86
|
11,3
|
20,7
|
36,0
|
77,1
|
116
|
|
2
|
0,57
|
0,86
|
1,14
|
1,70
|
2,82
|
5,52
|
8,1
|
15,3
|
27,7
|
64,0
|
101
|
|
6
|
0,29
|
0,44
|
0,59
|
0,88
|
1,46
|
2,91
|
4,3
|
8,4
|
16,1
|
41,8
|
71,9
|
|
12
|
0,18
|
0,27
|
0,37
|
0,55
|
0,92
|
1,84
|
2,7
|
5,4
|
10,6
|
29,1
|
52,7
|
|
|
|
|
|
|
|
|
|
|
|
|
|
|
|
|
|
|
|
|
|
|
|
|
|
|
|
|
|
Примітка: 1. Дози опромінення на
внутрішній границі зони приблизно в 3,2 рази більше, а на зовнішній границі в
3,2 рази менше, чим зазначено в таблиці.
. При визначенні за допомогою
таблиці часу початку або тривалості перебування (Т) людей у зоні необхідно
задану дозу опромінення розділити на 3,2 при знаходженні людей на внутрішній
границі зони або помножити на 3,2 при знаходженні людей на зовнішній границі.
Таблиця 5.7.
Середні значення потужності дози опромінення на зовнішніх межах зон забруднення
місцевості, мЗв/год.
|
Час
після аварії
|
Зона
забруднення
|
|
М
|
А
|
Б
|
В
|
Г
|
|
Години
|
1
|
0,14
|
1,4
|
14,2
|
42
|
142
|
|
2
|
0,11
|
1,2
|
11,9
|
36
|
119
|
|
5
|
0,09
|
0,9
|
9,2
|
27
|
92
|
|
7
|
0,08
|
0,8
|
8,2
|
25
|
82
|
|
9
|
0,07
|
0,8
|
7,6
|
23
|
76
|
|
|
Доба
|
1
|
0,05
|
0,5
|
5,4
|
16
|
54
|
|
2
|
0,04
|
0,4
|
4,1
|
12
|
41
|
|
3
|
0,03
|
0,3
|
3,4
|
10
|
34
|
|
4
|
0,03
|
0,3
|
3,0
|
9,1
|
30
|
|
5
|
0,03
|
0,3
|
2,7
|
8,2
|
27
|
|
10
|
0,02
|
0,2
|
2,0
|
5,9
|
20
|
|
15
|
0,02
|
0,16
|
1,6
|
4,9
|
16
|
|
|
Місяці
|
1
|
0,01
|
0,11
|
1,1
|
3,4
|
11
|
|
2
|
-
|
0,08
|
0,8
|
2,3
|
8
|
|
3
|
-
|
0,06
|
0,6
|
1,8
|
6
|
|
6
|
-
|
0,04
|
0,4
|
1,2
|
4
|
Зона М. Доза опромінення, одержувана
людиною при відкритому розташуванні в середині зони забруднення Дп= 0,8, мЗв
в) визначаємо, дозу зовнішнього
опромінення в залежності від фактичного, місця знаходження людини (див.
примітку до табл.5.6.).
У данному випадку зона М є зовнішню
,тоді : 0,8/3,2= 0,25, мЗв.
г) розрахувати загальну дозу
зовнішнього опромінення (Дзо) людини для відкритої місцевості:
, мЗв;
Рзрахунки для зони М. Дзо=
0,208+0,25=0,458, мЗв.
д) визначаємо дози
зовнішнього опромінювання персоналу та населення при їхньому знаходженні в
укриттях, Двкр, з урахуванням Косл (Кз) захисної споруди:
, мЗв;
Зона М. Двкр=0,458/2= 0229
,мЗв.
е) визначаємо інгаляційну
дозу внутрішнього опромінення людини. Вона практично повністю визначається
радіонуклідами йоду. Найбільш уразливою частиною населення, за наслідками
внутрішнього опромінення, є діти від 1 до 8 років.
Величину дози внутрішнього
опромінення людини може бути визначено за співвідношенням:
, мЗв,
де Q - сумарна потужність
аварійних реакторів (додаток), МВт; х - відстань від підприємства КООП
"Максим" до ушкодженого реактора, км;
Дво=200* 3800*122 -(122/200+1,4) =
0,00011632, мЗв.
. Для наочного відображення
масштабів РЗМ, нанести на карту місцевості зони радіоактивного забруднення
(рис. 5.2.):
Рис. 5.2. Схема зон можливого
РЗ місцевості при аварії на АЕС
(при одноразовому викиді РР)
Г - надзвичайно небезпечного
РЗ, В - небезпечного РЗ, Б - сильного РЗ, А - помірного РЗ і зона М -
радіаційної небезпеки,- радіус проммайданчика, підприємства КООП
"Максим".
б) від місця аварії в
напрямку середнього вітру навести вісь сліду хмари забрудненого повітря.
Напрямок вітру вказують в круговій системі. За напрямок вітру приймають ту
частину обрію, звідки віє вітер. Початком відліку 0° вважається напрямок на
північ. Далі відлік ведеться за годинниковою стрілкою від 0° до 360°.
Наприклад, напрямок східного вітру - 90°, південного - 180° і т.д.;
в) позначаємо проммайданчик у
вигляді кола (радіус кола (R) допускається прийняти таким, що дорівнює 0,25
км);
г) позначаємо на карті сектор
з центральним кутом 40°, що утворений двома лініями дотичними до кола
проммайданчика під кутом 20° з одного і другого боку до вісі сліду хмари. В
межах цього сектору, з ймовірністю 90%, утворюється зона РЗМ;
Середні значення потужності
дози опромінення на зовнішніх границях зон забруднення визначають за табл. 5.7.
(за необхідністю).
. На основі порівняння даних
про можливі дози опромінення та рекомендацій нормативних документів, зокрема
норм радіаційної безпеки України (НРБУ-97), призначити заходи щодо захисту
населення, табл. 5.8.
Таблиця 5.8. Нижні межі
виправданості та рівні безумовної виправданості для невідкладних заходів.
|
Контрзахід
|
Відвернена доза за перші 2 тижні після аварії
|
|
Межі
виправданості
|
Рівні
безумовної виправданості
|
|
мЗв
|
мЗв
|
мГр
|
|
На
все тіло
|
На
щитовидну залозу
|
На
шкіру
|
На
все тіло
|
На
щитовидну залозу
|
На
шкіру
|
|
Сховища
|
5
|
50
|
100
|
50
|
300
|
500
|
|
Евакуація
|
50
|
300
|
500
|
500
|
1000
|
3000
|
|
Йодна
профілактика
|
Діти
|
-
|
501
|
-
|
-
|
2001
|
-
|
|
Дорослі
|
-
|
2001
|
-
|
-
|
5001
|
300
|
|
Обмеження
перебування на відкритому повітрі
|
Діти
|
1
|
20
|
50
|
10
|
100
|
300
|
|
Дорослі
|
2
|
100
|
200
|
20
|
300
|
1000
|
|
1)
- очікувана доза при внутрішнім опроміненні радіоізотопами йоду, що попадає в
організм протягом перших двох тижнів після початку аварії.
|
Одже, прогнозовані дози Дзо та Дво
менше ніж нижні межі виправданості, тому заходи не запроваджуються.
5.3 Аналіз
проведеного дослідження
Аналіз проведеного
дослідження показав що радіаційний захист передбачає виявлення та оцінювання
радіаційної обстановки, організацію та проведення дозиметричного контролю,
розроблення типових режимів радіаційного захисту, забезпечення засобами
індивідуального та колективного захисту, організацію і проведення
знезаражування.
На підприємстві
КООП "Максим" необхідно забезпечити заходи радіаційного методу, а
саме:
забезпечити
завчасним накопиченням і підтриманням у готовності засобів індивідуального
захисту, приладів дозиметричного і хімічного контролю;
забезпечити
засобами, способами і методами виявлення та оцінювання масштабів і наслідків
аварії;
на території
розташування підприємства КООП "Максим " підготовити об'єкти
побутового обслуговування і транспортних підприємств для проведення санітарної
обробки людей та спеціальної обробки одягу, майна і транспорту;
завчасно створити,
пристосування та використання засобів колективного захисту персоналу від
радіаційного та хімічного ураження, впридбати в особисте використання підприємства
засобів індивідуального захисту і дозиметрів.
Висновки до
розділу 5
Захист населення при радіаційному
забрудненні, відіграючи вирішальну роль у рятуванні великих мас населення, що
постраждали від вибуху радіоактивних речовин, являє собою цілий комплекс
заходів.
Ці заходи повинні здійснюватися
наділеними для цього повноваженнями службами, організаціями та загонами, що
складаються з працівників та керівників підприємств та організацій.
Ефективність здійснення таких заходів залежить не тільки від вправності робот
формувань цивільної оборони, а й насамперед, від поінформованості суспільства,
його навичок стосовно боротьби із ситуацією радіаційного ураження та поведінки
у такій ситуації. З часів появи ядерної енергії та цивільного захисту як
такого, він став невід'ємною частиною загального захисту населення, та отримав
широку наукову та технічну базу, використання якої - зобов’язання держави та
суспільства при порятунку життів.
ВИСНОВКИ
За наслідками проведеного в дипломній роботі
дослідження можна зробити наступні висновки:
В процесі виконаної випускної роботи
були дослідженні теоретичні і
практичні аспекти управління і
розвитку персоналу організації.
Акцентовано увагу на:
сутність, функції, методи і задачі
управління персоналом;
технологія управління персоналом і
його розвитком;
планування роботи з персоналом;
професійний розвиток персоналу.
Персонал - специфічний і
найважливіший з усіх видів економічних ресурсів підприємства. Специфіка
персоналу порівняно з іншими чинниками економічного розвитку полягає в тому, що
люди не лише створюють, а й споживають матеріальні та духовні цінності.
Термін «персонал» є найбільш
доцільним на рівні організації, так як визначає особовий склад організації,
який працює за наймом і характеризується певними ознаками, основними з яких є:
трудові взаємовідносини з
роботодавцем, як правило, оформляються трудовими договорами;
володіння певними якісними
характеристиками, поєднання особистих та організаційних цілей.
Персонал організації
характеризується кількістю, структурою, професійною придатністю та
компетентністю. Кількість персоналу визнача ється характером, масштабами,
складністю, трудомісткістю виробничих процесів, рівнем їх механізації,
автоматизації та комп’ютеризації.
Для підвищення ефективності
використання персоналу значну увагу треба звертати на збільшення ефективності
організації виробництва, покращення соціально - психологічної обстановки,
якості трудового життя, поліпшення умов праці, удосконалення нормування праці,
навчання та перепідготовку кадрового складу підприємства.
До основних рекомендацій з
поліпшення управління персоналу можливо вважати: надання максимуму реалістичної
інформації в процесі відбору, формування реалістичних очікувань, управління
персоналом по цілях, постановка реальних цілей, розділення складних цілей на
короткострокові етапи, активне використання додаткових навиків співробітників,
увагу до ідей і пропозицій співробітників, формування організаційної культури,
розвиток у співробітників відчуття приналежності до організації, заохочення і
оцінка досягнень співробітників, розвиток системи управління кар'єрою.
Проведений в роботі аналіз КООП «Максим» показав, що підприємство є одним з
найбільших підприємств ювелірного виробництва в Миколаївській області. КООП
«Максим» успішно розвивається, володіє високим технічним потенціалом.
Підприємство займає досить велику частку на ринку ювелірних виробів, що
дозволяє продукції вільно і легко конкурувати з продукцією інших підприємств.
Для формування системи управління кар'єрою на підприємстві необхідно здійснити
наступні заходи:
) провести створення основ
функціонування системи розвитку кар'єри співробітників на основі впровадження
управління за цілями, навчання і управління адаптацією і професійною
орієнтацією, роботи з резервом на висунення, індивідуального психологічного
консультування з питань кар'єри, формування хорошої комунікаційної системи на
підприємства, публічного систематичного інформування про вакансії у фірмі.
) На основі вивчення потреб і
інтересів працівників провести подальший розвиток кар'єрної системи
підприємства і використовуваних методів стимулювання.
Програми розвитку кар'єри для
забезпечення систематичної мотивуючої дії повинні регулярно пропонуватися; бути
відкритими для всіх працівників; модифікуватися, якщо їх оцінка показує, що
необхідні зміни.
В цілому, добре сформульовані
зусилля по розвитку системи управління кар'єрою на підприємстві можуть
допомогти працівникам у визначенні їх власних потреб до просування, дати
інформацію про відповідні можливості кар'єри усередині підприємства і поєднувати
потребі і меті працівника з метою організації. Формування такої системи може
зменшити старіння людських ресурсів, які так дорого обходяться підприємству.
Крім того, система кар'єрного консультування здатна надати чималу допомогу
керівництву підприємства в частині розуміння системи мотивації своїх
співробітників і здійснення коректування використовуваних методів і систем
мотивації.
Для підвищення економічного
стимулювання що існує на КООП «Максим» сьогодні система оплати праці повинна
бути доповнена системою участі працівників в прибутку організації і побудовою
управління персоналом по цілях, на підставі досягнення яких оцінюватиметься
ефективність праці кожного працівника.
Для впровадження системи участі
працівників в прибутку підприємства можна запропонувати норматив відрахувань до
фонду участі працівників в прибутках у розмірі 4,68 % від виручки підприємства.
Розділення створюваного преміального фонду повинне здійснюватися за
нормативами, що розробляються з участю працівників, щоб бути зрозумілими їм. В цілому
можна зробити висновок, що впровадження запропонованих заходів в поєднанні з
вдосконаленням інших методів управління дозволить підвищити зацікавленість
співробітників в результатах своєї праці і ефективність всієї системи
управління підприємством.
Список
використаної літератури
1.
Конституція України. Прийнята 18.06.96р.- К.: Україна, 1996.- 54с.
.
Закон України Про підприємництво: Відомості Верховної Ради України - 1991р. №
20.
.
Закон України Про власність: Відомості Верховної Ради України - 1991р. № 20.
.
Закон України Про підприємства в Україні: Відомості Верховної Ради України -
1991р. № 24.
.
Балабанова Л. В., Сардак О.В. Управління персоналом, 2006.-С 60-65.
6.
Баканов М.ІИ., Шеремет А.Д. Теория экономического анализа: Москва.: Финансы и
статистика, 1997.С 24-30.
.
Бойчук М.І. Економіка підприємства: Н/пос.- Київ, 1995.
8.
Беляева
С.Г., Кошкина В.И. Теория и практика антикризисного управления: Учебник -.
Москва,1996
.
Баканов М.И.Анализ хозяйственноъ деятельности в торговле: Учеб.пособие. -
Москва.: Экономика, 1997
10.
Баканов М.И., Шеремет А.Д. Теория экономического анализа: Москва.: Финансы и
статистика, 1997
1.
Бойчук М.І. Економіка підприємства: Н/пос.- Київ, 1995.
2.
Беляева С.Г., Кошкина В.И. Теория и практика антикризисного управления: Учебник
-. Москва,1996
3.
Василенко В.А., Мельник И.Е "Стратегия и инновации в системе
менеджмента": Учеб.пос.- М.: МГИУ, 2001
.
Григор’єв Л. Управління персоналом і регулярний менеджмент/ Л.Григор’єв//
Робота сьогодні. - 2000.- №5.- С. 32-34.
Дайновский
Ю.А. 505 приемов бизнеса/ Ю.А.Дайновский.- К.,1999. - С. 73-76.
5.
Десслер Гари. Управление персоналом/ Гари Десслер. - М., 1999.- С. 214-230.
6.
Домюк В. Модель фахівця з управління персоналом і економіки
праці/В.Домюк//Україна: аспекти праці.- 2003.- №6.- С. 8-19.
7.
Донцов
А.І. Психологія коллективу: методологічні проблеми дослідження/ А.І. Донцов. -
К., 1999.- С. 43-46.
8.
Енциклопедичний
словник бізнесмена: менеджмент, маркетинг, інформатика / Під ред. М.І.
Молдаванова. - К., 2003.- С. 476-481.
19.
Евсеев В.И. Экономический механизм управления здоровьем. - К.: УИОЗ, 1998
.
Журавель П.В. Сучасна парадигма в управлінні персоналом/ П.В.Журавель//
Персонал. - 2005.- №5.- С. 32-36.
21.
Керуємо кадрами: Підприємство 8.0. Управління персоналом для України//
Дебет-Кредит. - 2004.- №19.- С. 2-5.
.
Крушельницька
О.В., Мельничук Д.П. Управління персоналом: навчальний посібник. - К.: Кондор,
2003. - 296 с. 15-24.
Енциклопедія
бізнесмена , економіста , менеджера . / За редакцією Р.Дяківа - К.: Міжнародна
економічна фундація , 2000
.
Ковальов Г.Д. Інноваційні комунікації/ Г.Д.Ковальов// Персонал. - 2000.- №8.-
С. 14-19.
4.
Колпаков В.М. Как мы принимаем решения?/ В.М.Колпаков// Персонал. - 2002.- №6.-
С. 66-74.
5.
Колпаков В.М. Как мы принимаем решения?/ В.М.Колпаков// Персонал.-2004.- №7.-
С. 56-61.
6.
Колпаков В.М. Методы управления: Учеб.пособ/В.М.Колпаков.- К., 2000.- С. 12-14.
.
Михайлюк В.О., Ізотов В.І., Дубінін В.А. Методичні вказівки до виконання
розрахунково-графічної роботи за темою:«Визначення ступеня ризику небезпеки
СГ»- 2013.С. 12-34.
28.
Філіпова Л.Я. Управління персоналом [Електронний ресурс].- Режим доступу:
http://www.nbuv.gov.ua.- Загол. з екрана.
9.
Щекин Г.В. Как эффективно управлять людьми: психология кадрового менеджмента/
Г.В.Щекин.- К.,2003.- С. 325-331.
30.
Щекин Г.В. Теория социального управления: Монография/ Г.В.Щекин. - К., 2000.
-С. 408-424.
1.
Силка з інтернету:
http://knowledge.allbest.ru/management/2c0b65635b2ad68a4d43b89521216c26_2.html
2.
Силка з інтернету:
<http://bukvar.su/menedzhment/115821-Organizaciya-raboty-po-upravleniyu-personalom-na-predpriyatii-OOO-Kristall-i-puti-ee-sovershenstvovaniya.html>