Проектирование установочно-зажимного приспособления для обработки заготовок

  • Вид работы:
    Курсовая работа (т)
  • Предмет:
    Другое
  • Язык:
    Русский
    ,
    Формат файла:
    MS Word
    1,59 Мб
  • Опубликовано:
    2013-07-14
Вы можете узнать стоимость помощи в написании студенческой работы.
Помощь в написании работы, которую точно примут!

Проектирование установочно-зажимного приспособления для обработки заготовок















Проектирование установочно-зажимного приспособления для обработки заготовок

1. Разработка технологического процесса, схемы установки и базирования для заданной операции

зажимный приспособление отверстие подшипник

1.1    Чертеж детали с указанием обрабатываемых поверхностей

Рис. 1. Нумерация поверхностей детали

1.2 Маршрутный технологический процесс обработки детали с указанием поверхностей, подлежащих обработке и принятых в качестве баз

№ операции

Наименование операции

Вид станка

№ обрабат. поверхности

№ базовых поверхн.

05

заготовительная

литье в песчаные формы



010

фрезерная

вертикально-фрезерный

1

2,3,11,13

015

сверлильная

вертикально-сверлильный

7

1,4,13

020

фрезерная

продольно-фрезерный

13,14

7,2,11

025

расточная

горизонтально-расточной

9,10

7,2,11


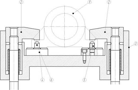
1.3 Выбор аналога приспособления для обработки заданной детали

Рис. 2

При повороте кулачок 1 создает усилие на планке 2, которая перемещаясь, через шпильки 3, тянет зажимы 4. Которые, в свою очередь, создают усилие зажима на детали 5.

При выборе аналога приспособления было рассмотрено несколько приспособлений. И выбор данного аналога продиктован: схожестью конструкции детали на аналоге приспособления и заданной деталью, а также схожестью схем базирования.

1.4 Операционный эскиз на операцию, для которой проектируется приспособление



1.5 Анализ выбранной схемы установки с точки зрения обеспечения заданной точности обработки

1.5.1 Правило шести точек

Лишаемая степень свободы

Чем реализуется.

1

Перемещение вдоль оси X

Цилиндрический палец

2

Перемещение вдоль оси Y

Цилиндрический палец

3

Перемещение вдоль оси Z

Опорный пластины

4

Поворот вокруг оси X

Опорный пластины

5

Поворот вокруг оси Y

Опорный пластины

6

Поворот вокруг оси Z

Ромбический палец


Вывод: Выбрана полная схема базирования, т. к. необходимо лишить заготовку всех степеней свободы.

1.5.2 Метод совпадения баз

Название базы

Номер поверхности на чертеже

Конструкторская база

1, 7

совпадают

Технологическая база

1,7



2. Расчет необходимых сил закрепления

Производим растачивание отверстия Ø72Н7 мм (Рис. 3).

Рис. 3. Корпус подшипника

Обработка данного отверстия производится в несколько этапов. Сначала производится черновая обработка отверстия. Затем получистовая обработка. Последний этап - чистовая обработка отверстия.

.1 Выбор режущего инструмента

Вид инструмента

Резец расточной с углом в плане φ=60 0 с пластиной из твердого сплава

ГОСТ

ГОСТ 18882-72

Основные размеры

25*25, L-240, Р-100

Материал

Пластина ВК6М, хвостовик сталь 45

.2 Выбор станка

Вид станка

Горизонтально-расточной

модель

2620В

Количество шпинделей

1

Расположение шпинделей

горизонтально

Размеры стола: длина (мм) Ширина (мм) Число пазов (шт.)

1120


1250


7

Наибольшие размеры обрабатываемой детали

1120х1250х1000 мм, 3000 кг

Наибольший ход стола: продольный поперечный




Частота вращения шпинделя

12,5…1600 об/мин

Мощность главного привода

8,5 кВт

Производим черновое, получистовое и чистовое растачивание отверстия Ø72 мм. Обработка детали на станке - одноинструментальная. Черновая обработка для станка и установочно-зажимного приспособления это наиболее нагруженная операция так как снимается припуск наибольшей толщины.

Таким образом, расчёт силы зажима заготовки в приспособлении производим для чернового растачивания отверстия в корпусе подшипника.

Рис. 4. Проект установочно-зажимного приспособления для растачивания отверстия корпуса подшипника: 1 - обрабатываемая деталь; 2 - прихваты; 3 - корпус приспособления; 4 - опорные пластины; 5 - ромбический палец; 6 - цилиндрический палец

Заготовка в приспособлении установлена на опорные пластины 4, которые лишают её трёх степеней свободы, и два пальца. Палец 6 - цилиндрический. Он лишает заготовку двух степеней свободы. Палец 5 - ромбический. Он лишает заготовку последней шестой степени свободы.

.3 Расчет сил резания

.3.1 Расчёт режима резания

Принимаем глубину черновой обработки отверстия t = 2 мм.

Выбираем подачу s = 0,2 - 0,3 мм/об (табл. 12, стр. 365 [3]).

Принимаем s = 0,2 мм/об (сечение резца 25 мм, вылет 100 мм, обрабатываемый материал - чугун).

Скорость резания при точении определяется по зависимости (стр. 363 [3]):

, м/мин                                (1)

где: Сv - коэффициент;

T - стойкость инструмента, мин;

t - глубина резания, мм;

s - подача, мм/об.

Согласно табл. 17 (стр. 368 [3]): Сv = 292; x = 0,15; y = 0,20; m = 0,2.

Kv = Kмv·Knv·Kиv,

где: Kмv - коэффициент, учитывающий влияние материала заготовки (табл. 1, стр. 358 [3]); .

nv = 1,25 (табл. 2, стр. 359 [3] - резец из твёрдого сплава, НВ = 190). Таким образом, Kмv = 1.

Knv - коэффициент, учитывающий состояние поверхности заготовки. Согласно табл. 5 (стр. 361 [3]) Knv = 0,8 - 0,85 для отливки с нормальной коркой. Принимаем Knv = 0,8.

Kиv - коэффициент, учитывающий материал инструмента. При обработке серого чугуна твёрдым сплавом Kиv = 1 (табл. 6, стр. 361). Отсюда Kv = 1· 0,8 · 1 = 0,8.

Согласно примечанию к табл. 17 (стр. 368 [3]) при обработке внутренних поверхностей коэффициент Kv следует умножить на 0,9.

Подставляем известные величины в зависимость (1):

 м/мин

Находим скорость вращения шпинделя:

об/мин

Округляем до ближайшей меньшей скорости вращения шпинделя =500 об/мин [14]. Рассчитываем новую скорость резания для 500 об/мин:

м/с

Расчёт составляющих силы резания

Силу резания при точении принято раскладывать на составляющие силы резания, направленные по осям координат станка:

§  радиальную Рy;

§  осевую Рx.

Эти составляющие силы резания при точении рассчитывают по зависимости (стр. 371 [3]):

Pz,y,x = 10·Cv·tx·sy·vn·Kp, H                                           (2)

Составляющая силы резания Рz

Коэффициент Сp и показатели степени x, y, n находим в табл. 22 (стр. 372 [3]). Сp = 92, x = 1, y = 0,75, n = 0.

Поправочный коэффициент Kp=Kмр·Kφp·Kγp·Kλp·Krp. Коэффициенты

Kмр, Kφp, Kγp, Kλp и Krp учитывают фактические условия резания.

Коэффициент  (табл. 9, стр. 362 [3]).

При НВ = 190. Kмр= 1.

Коэффициент Kφp согласно табл. 23 (стр. 374 [3]) равен 1 (для угла φ = 45°, твёрдого сплава ВК6М).

Коэффициент Kγp по табл. 23 (стр. 374) равен 1 (для γ = 10°, твёрдого сплава ВК6М).

Коэффициент Kλp = 1 (табл. 23, стр. 374).

Коэффициент Krp = 1 для режущей части из твёрдого сплава.

Таким образом, коэффициент Kp = 1.

Подставляем известные величины в зависимость (2):

Рz = 10·92·21·0,20,75·113,040·1 = 3094,88 Н

Составляющая силы резания Рy

Находим коэффициент Сp и показатели степени x, y, n для составляющей силы резания Рy (табл. 22, стр. 372 [3]). Cp = 54; x = 0,9; y = 0,75; n = 0.

Значения коэффициентов для расчёта поправочного коэффициента Кр определяем по табл. 9, стр. 362 и табл. 23, стр. 374 [3]. Кр = 1.

Подставляем известные величины в зависимость (2):

Py = 10·54·20,9·0,20,75·132,560·1 = 1694,85 Н

Составляющая силы резания Px.

Коэффициент Ср и показатели степени x, y, n для составляющей силы резания Рx находим по табл. 22 (стр. 372 [3]). Ср = 46; x = 1; y = 0,4; n = 0.

Коэффициент Кр = 1 (табл. 9, стр. 362, табл. 23, стр. 374 [3]).

Отсюда: Px = 10·46·21·0,20,4·132,560·1 = 483 Н

Таким образом, составляющие силы резания при растачивании отверстия будут иметь следующие значения:

Рz = 3094,88 Н

Рy = 1694,85 Н

Рx = 483 Н

Расчет мощности резания

Эффективная мощность резания рассчитываем для проверки правильности выбора оборудования. Зависимость для расчёта мощности резания (стр. 411 [3]):

    кВт,                                        (3)

где: Pz - тангенциальная составляющая силы резания, Н;

v - скорость резания, м/мин.

Подставляем известные из расчётов значения в зависимость (3):


Горизонтально-расточной станок 2620В согласно паспортным данным () имеет мощность 8,5 кВт. Значит, выбранный станок по мощности резания подходит для данной операции.

2.4 Расчёт силы зажима заготовки в приспособлении

Расчёт силы зажима заготовки в приспособлении начинаем с составления расчётной схемы. Расчётная схема позволяет установить вероятность возможного смещения, разворота или опрокидывания заготовки под действием силы резания, а также возможность предотвращения смещения заготовки.

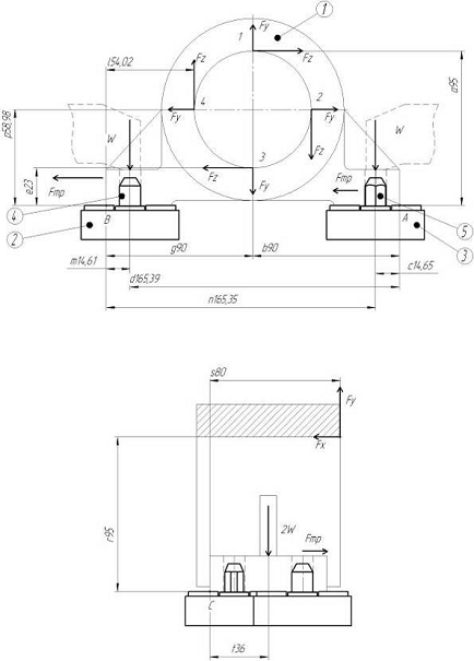
Рис. 5 Расчетная схема определения силы зажима

На расчётной схеме (рис. 5) заготовка показана со стороны главного вида детали. В этой проекции удобно обозначить векторы сил, действующих на заготовку в разных положениях режущего инструмента - резца. На расчётной схеме показаны опорные пластины 2 и 3 и пальцы 4 (цилиндрический) и 5 (ромбический). При составлении уравнений сил и моментов, действующих на заготовку, влияние установочных пальцев учитывать не будем, так как пальцы необходимо разгрузить от действия внешних сил во избежание их деформации или поломки.

Обозначаем составляющие силы резания Рz и Рy в четырёх позициях инструмента (точки 1, 2, 3 и 4). Обозначаем силу зажима заготовки W с двух сторон детали.

Рассматриваем расчётную схему, учитывая соотношение между составляющими силы резания Рz = 3094,88 Н и Рy = 1694,85 Н. Условно представляем себе, что заготовка в приспособлении не зажата, а процесс резания заготовки начинается.

Рис. 6. Расчётная схема для определения силы зажима заготовки со стороны главного вида детали

Точка 1. Составляющая силы резания Рz стремится сместить заготовку вправо. Смещению заготовки препятствует сила трения между заготовкой и опорной пластиной Fтр. Составляющая силы резания Рy в этой точке стремится приподнять заготовку вверх. Смещению заготовки препятствует сила зажима заготовки W. На рис. 6 мы условно приводим её к оси симметрии детали - она проходит через точку 3.

Точка 2. Составляющая силы резания Рy смещает заготовку вправо. Но числовое значение составляющей силы резания Рy меньше, чем числовое значение Рz, поэтому уравнение сил для предотвращения смещения заготовки под действием составляющей силы резания Рy рассматривать не нужно. Составляющая силы резания Рz прижимает заготовку вниз. Смещения заготовки под действием этой силы не происходит.

Точка 3. Составляющая силы резания Рz стремится сместить заготовку влево. Но мы рассматривали уже вероятность смещения заготовки под действием этой составляющей силы резания в точке 1. Направление составляющей силы резани Рz в точках 1 и 3 разное, но сила зажима для предотвращения смещения заготовки будет одна и та же. Составляющая силы резания Рy прижимает заготовку к установочным элементам. Её влияние мы не учитываем.

Точка 4. Составляющая силы резания Рz стремится сместить заготовку вверх. Этому смещению препятствует сила зажима заготовки W, приведённая к оси симметрии детали. Составляющая силы резания Рy стремится сместить заготовку влево. Но числовое значение этой составляющей меньше, чем Рz. Поэтому уравнение сил будем составлять для составляющей силы резания Рz.

Таким образом, для предотвращения смещения заготовки под действием составляющих силы резания Рz и Рy в точках 1, 2, 3, и 4 составляем следующие уравнения равновесия сил.

Точка 1. Определяем силу зажима W1 заготовки для предотвращения смещения заготовки под действием составляющей силы резания Рz.

K·Pz = Fтр1,                                                (3)

где: где: K - коэффициент запаса для обеспечения надежного закрепления заготовки (стр. 117 [3]).

Fтр1 - сила трения между зажимным элементом и заготовкой, Н.

К = К0 ·К1 ·К2 ·К3 ·К4 ·К5 ·К6                              (стр. 117, [3]).

где: К0 - коэффициент гарантированного запаса. К0 =1,5.

Коэффициент К1 - учитывает увеличение силы резания из-за случайных неровностей на обрабатываемых поверхностях. При черновой обработке К1 =1,2.

Коэффициент К2 - характеризует увеличение силы резания вследствие затупления режущего инструмента (табл. 11, стр. 117 [3]). К2 =1.

Коэффициент К3 - учитывает увеличение силы резания при прерывистом резании. В нашем случае прерывистого резания нет. К3 = 1.

Коэффициент К4 - характеризует постоянство силы закрепления в зажимном механизме. При использовании пневмо- и гидроцилиндров двойного действия К4 = 1,0.

Коэффициент К5 - характеризует эргономику ручных зажимных устройств. При механизированном приводе К5 =1,0.

Коэффициент К6 - учитывается только при наличии моментов, стремящихся повернуть заготовку, установленную плоской поверхностью на постоянные опоры. К6 = 1,0

К = 1,5· 1,2· 1· 1· 1,0· 1,0· 1,0 = 1,8

Принимаем К = 1,8.

Сила трения между зажимным элементом приспособления и заготовкой

Fтр1 = 2W1·fтр1,

где W1 - сила зажима заготовки для предотвращения её смещения под действием составляющей силы резания Pz;

fтр1 - коэффициент трения в месте контакта зажимного элемента и детали.

Подставляем полученные значения в уравнение (3) для расчёта силы зажима W1.

К·Pz = Fтр1;  Fтр1 = W1· fтр1.

Отсюда:

 Н

 

Точка 4. Определяем силу зажима W2 для предотвращения смещения заготовки вверх под действием составляющей силы резания Pz.

Уравнение равновесия сил в этом случае имеет вид:

K·Pz =2 W2                                                                                (4)

где: K - коэффициент запаса. K = 1,8.

Подставляем известные значения в зависимость (4).

W2 = 1,8·3094,88/2 = 2785,4 H

Рассмотрим вероятность опрокидывания заготовки в процессе резания.

Наибольший опрокидывающий момент относительно точки A на расчётной схеме (рис. 6) составляющие силы резания Pz и Py создают в точке 1, так как в этой точке у этих сил наибольшие плечи действия a и b (рис. 6). В остальных точках на расчётной схеме (точки 2, 3, 4) опрокидывающий момент можно не рассчитывать, так как плечи действия сил в этих точках значительно меньше, чем в точке 1.

Составим уравнение моментов всех сил относительно точки A. Точка A является общей точкой для заготовки и установочного элемента - опорной пластины. На самом деле это не точка, а линия. У детали это ребро боковой стороны детали. У опорной пластины это тоже ребро - часть фаски на поверхности пластины. Уравнение моментов всех сил, действующих на заготовку, относительно точки A имеет следующий вид:

K·Py·a +K·Pz ·b - W3/2c - W3/2d = 0

После преобразования зависимость имеет вид:

                                          (5)

В нашем примере (рис. 5) а = 95 мм, в = 90 мм, с = 14,65 мм, d = 165.3 мм. Подставляем известные значения в уравнение (5):

Н

Расчётная схема для сечения детали на рис. 5

Рассматриваем расчётную схему на рис. 7.

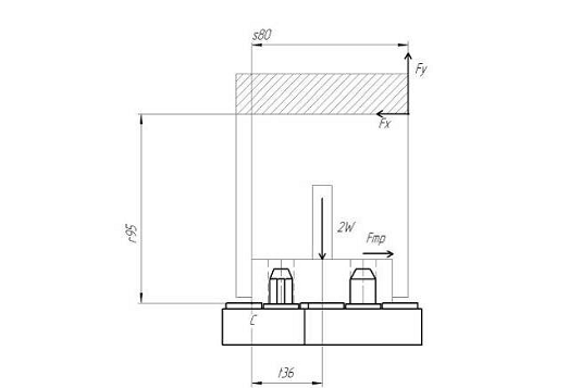
Рис. 7 - Расчётная схема для определения силы зажима заготовки (сечение А - А)

Обозначаем составляющие силы резания Рx и Рy на расчётной схеме в точке 1, так как мы уже знаем, что именно в этой точке составляющие силы резания создают наибольший опрокидывающий момент. В данном случае опрокидывание заготовки может произойти относительно точки C. Силу зажима заготовки W обозначаем на оси симметрии детали.

Анализируем расчётную схему.

Если представить себе, что заготовка не зажата, а процесс резания детали уже начался, то составляющая силы резания Рx стремится сместить заготовку влево. Смещению заготовки препятствует сила трения между заготовкой и зажимным элементом. Но численное значения составляющей силы резания Рx = 483 H значительно меньше, чем численное значение составляющей силы резания Рz = 3094,88 H. А мы уже рассчитывали силу зажима заготовки в приспособлении при воздействии на заготовку составляющей силы резания Рz (уравнение равновесия сил 3). Поэтому уравнение сил для определения силы зажима заготовки с составляющей силы резания Рx использовать не нужно.

Составляющая силы резания Рy стремится сместить заготовку вверх. Заготовку удерживает от смещения сила зажима W. Но численное значение составляющей силы резания Рy = 1694,85 H меньше, чем численное значение составляющей силы резания Рz = 3094,88 Н. Мы уже рассчитывали силу зажима заготовки для предотвращения смещения заготовки под действием составляющей силы резания Рz (уравнение равновесия сил 4). Значит, уравнения сил с участием составляющей силы резания Рz использовать не нужно.

Определим силу зажима заготовки для предотвращения её опрокидывания относительно точки В. Для этого составим уравнение моментов всех сил, действующих не заготовку, относительно точки В:

- K·Py·m - K·Px·n + 2W4·q = 0

Из этого выражения:

 Н                              (6)

В нашем случае: s = 80 мм, r = 95 мм, t = 36 мм.

Подставляем известные значения в зависимость (6):

Н

Таким образом, в результате расчётов получили:

W1 = 11141,57 Н

W2 = 5570,78 Н

W3 = 8788,57 Н

W4 = 5040.56 Н

Для дальнейших расчётов принимаем W = 11141,57 Н.

3. Точностной расчет

3.1 Точностной расчет проектируемого приспособления

Проверяем возможность получения заданной точности при обработке рассматриваемой детали в размер ф72+,03 мм. То есть ξфξдоп.


где: ξф - фактическая погрешность установки заготовки в приспособление;

ξб - погрешность базирования заготовки в приспособлении;

ξз - погрешность закрепления заготовки в приспособлении.

При установке корпуса подшипника в проектируемом приспособлении конструкторская база 1 совпадает с технологической (измерительной) базой 2. Погрешность базирования заготовки в приспособлении ξб будет равна 0.

Погрешность закрепления ξз, если направление зажима совпадает с направлением выполняемого в приспособлении размера, при использовании механизированного привода можно также принять равной 0, если считать, что механизированный привод находится в хорошем состоянии и сила зажима заготовок постоянна

Отсюда фактическая погрешность установки заготовки в приспособлении ξф будет равна 0.

Расчет допускаемой погрешности установки заготовки в приспособление ξдоп не требуется.

Фактическая погрешность будет определятся погрешностью станка равной 0,08 мм [14], что меньше допустимой погрешности равной 0,3 мм.

4. Силовой расчет приспособления

.1 Расчёт гидроцилиндра проектируемого приспособления

При расчёте, силы зажима при растачивания отверстия ф72Н7 в корпусе подшипника W равна 11141,57 Н. Рассчитаем комбинированный зажим для этого значения силы зажима и выберем привод приспособления.

Для чего был произведен предварительный расчет усилия зажима, усилия штока и выбран диаметр гидроцилиндра равный 50 мм.

В процессе выполнения чертежа приспособления было произведено уточнение параметров приспособления и теперь необходимо произвести точный расчет выбранной схемы приспособления.

Рис. 8. Схема для расчета усилия на штоке гидроцилиндра.

Расчёт производим согласно расчётной схеме (рис. 8).

Силу зажима создаваемую прихватами обозначим Qп. Силу прижима создаваемую эксцентриком обозначим как Qэ. Усилие создаваемое штоком гидроцилиндра на рычаге эксцентрика Qшт.

Давление рабочего тела - масла в гидроцилиндре рекомендуется в диапазоне 1-80 МПа.

Усилие на прихватах Qп, необходимое для создания силы зажима W рассчитываем по формуле:

Qп=

где: l-расстояние от оси прихвата до точки приложения силы зажима; f-коэффициент трения в прихвате (f=0.25);

g-жесткость пружины (g=154 Н/мм) ().

Qп==15781,74 Н

Усилие создаваемое эксцентриком равно:

Qштl=

где: Qэ=2Qп=31563,48 Н;

α=40-средний угол подъёма эксцентрика;

ρ=21,435 мм-среднее значение радиуса эксцентрика;

φ1, φ2=5,50-углы трения скольжения в точке зажима и на оси эксцентрика.

Но т. к. усилие штока приложено под углом к рычагу эксцентрика, по этому усилие на штоке необходимо разделить на синус угла между штоком и рычагом. В крайнем положении механизма угол минимален и равен 450.

Qшт/sin45=/l

Qшт==1576,5 Н

Для закрепления детали рабочее тело поступает в бесштоковую полость цилиндра, поэтому соотношение между силой на штоке привода приспособления, давлением рабочего тела в цилиндре привода приспособления и главными размерными параметрами цилиндра выражается следующей зависимостью:

Qшт Н                                         (1)

где: Qшт - рассчитанная сила на штоке привода приспособления, Н;

Рм - давление рабочего тела в цилиндре, МПа; D - диаметр поршня цилиндра, см; η-к.п.д. привода=0,8.

Отсюда:

Рв===1МПа

Расчетное давление в гидроцилиндре равно 1 МПа, что соответствует заданным характеристикам.

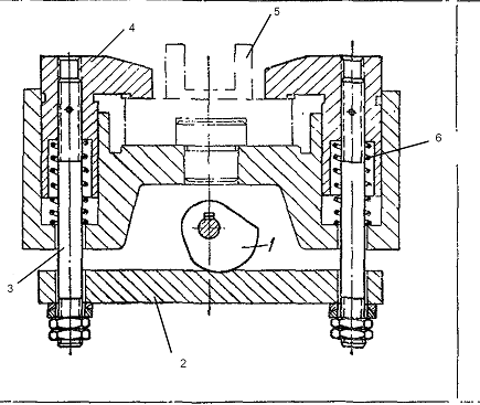
4.2 Описание работы спроектированного приспособления

При поступлении рабочего тела (масла) в бесштоковую полость гидроцилиндра 11, шток гидроцилиндра 10 начинает выдвигаться и создает усилие Qшт на рычаге 9 эксцентрика 8. Рычаг поворачивается вокруг оси 12 вместе с эксцентриком. Эксцентрик при повороте создает усилие Qэ на планке 7 перемещая ее вниз. Планка тянет за собой шпильки 4 и 5 закрепленных на планке гайками 6. Шпильки ввернуты в г-образные захваты 2 и 3, которые перемещаясь вместе со шпильками создают зажимное усилие W на обрабатываемой заготовке 1.

При установке и снятии заготовки прихваты, в верхнем положении, поворачиваются на 900.

Выводы

В процессе выполнения данной курсовой работы мною было спроектировано: маршрутный технологический процесс на обработку заготовки с указанием обрабатываемых поверхностей и баз. Операционный эскиз на операцию расточки отверстия ф72Н7.

Выбраны инструмент и станок для обработки отверстия.

Произведены расчеты: режимов и сил резания, требуемого усилия зажима заготовки, требуемого давления рабочего тела в гидроцилиндре и произведен точностной расчет приспособления. А так же выбран аналог приспособления, по которому мною было спроектировано установочно-зажимное приспособление. В ходе выполнения данной курсовой работы мною рассматривалось несколько схем базирования и закрепления. Данная схема базирования и закрепления была выбрана по причине:

минимальных размеров и массы приспособления;

оптимальной схемы базирования;

простоты изготовления и сборки приспособления;

«простоты» схемы привода зажима;

простоты обслуживания приспособления во время работы.

Мною были получены навыки проектирования приспособлений для обработки различных заготовок.

Инженеры-технологи, консультировавшие меня, по моему месту работы, выразили мнение что данное приспособление вполне работоспособно и может быть изготовлено и применено в работе.

Литература

1.      Андреев Г.Н. и др. Проектирование технологической оснастки машиностроительного производства. М.: Высшая школа, 1999.

.        Справочник технолога - машиностроителя. В 2-х т. Т1 / Под ред. А.М. Дальского и др. - М.: Машиностроение, 2003. - 912 с.

.        Справочник технолога - машиностроителя. В 2-х т. Т2 / Под ред. А.М. Дальского и др. - М.: Машиностроение, 2003. - 944 с.

.        Обработка металлов резанием: Справочник технолога /А.А. Панов, В.В. Аникин, Н.Г Бойм и др.; Под общ. ред. А.А. Панова. 2-е изд., перераб. и доп. - М.: Машиностроение, 2004. - 784 с.

.        Ансёров М.А. Приспособления для металлорежущих станков. М.: Машиностроение, 1975. - 656 с.

.        ГОСТ 2.316 - 2008 ЕСКД. Правила нанесения на чертежах надписей, технических требований.

.        ГОСТ 2.106 - 96 ЕСКД Текстовые документы.

. Смагин А.С. Коновалова И.В. Обеспечение заданной точности обработки детали при проектировании установочно-зажимного приспособления (точностной расчёт приспособления). Методические указания к курсовой работе, расчётно-графической работе по дисциплинам «Технологическая оснастка» и «Проектирование технологической оснастки» и дипломному проектированию для студентов любой формы обучения машиностроительных специальностей и направлений. УрФУ - 2011

. Станочные приспособления: Справочник. В 2-х т. /Ред. совет:
Б.Н. Вардашкин (пред.) и др. - М.:Машиностроение, 1984. - Т. 1 /Под ред.
Б.Н. Вардашкина, А.А. Шатилова, 1984. 592 с., ил.

. Станочные приспособления: Справочник. В 2-х т. / Ред. Совет:
Б.Н. Вардашкин и др. - М.: Машиностроение, 1984. - Т. 2 /Под ред.
Б.Н. Вардашкина, А.А. Шатилова, 1984. 656 с., ил.

. Дащенко А.И., Шмелёв А.И. Конструкция и наладка агрегатных станков. М.: Высшая школа, 1977. 350 с.

. Проектирование установочно-зажимного приспособления для обработки заготовок. Учебное электронное текстовое издание Смагин А.С., Коновалова И.В. Издательство ФГАОУ ВПО УрФУ имени первого Президента России Б.Н. Ельцина, Екатеринбург, ул. Мира 19.

. Технические параметры горизонтально-расточных станков. http://www.rustan.ru/t_181_2620.htm

Похожие работы на - Проектирование установочно-зажимного приспособления для обработки заготовок

 

Не нашли материал для своей работы?
Поможем написать уникальную работу
Без плагиата!
Без нейросетей!