Проектирование металлорежущего инструмента
1.
Проектирование и расчет призматического фасонного резца
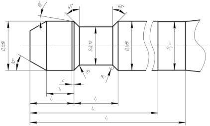
Исходные данные: рисунок 37, вариант 8.
Марка материала прутка Медь М2: σв = 250 МПа.
Тип резца - призматический.
Рисунок 1.1 - Эскиз изготавливаемой детали
Рисунок 1.2 - Эскиз детали с узловыми точками профиля
Рассчитываем высотные размеры профиля в узловых точках на детали по
формулам:
где d1 -
наименьший диаметр, обработанный поверхностей на детали;n - диаметры
обработанных поверхностей на детали.
Выберем габаритные и
конструктивные размеры резца по таблице 2 [1], величины переднего γ и заднего α углов резца по таблице 3 [1].
Таблица 1.1 - Габаритные и
конструктивные размеры.
|
Высота профиля tmax, мм
|
M
|
A
|
F
|
E
|
d
|
H
|
|
10
|
34,46
|
25
|
15
|
6
|
6
|
75
|
Таблица 1.2 - Величины переднего и заднего углов.
|
Обрабатываемый материал
|
γ
0
|
α0
|
|
Медь М2
|
25
|
15
|
Размер B определяем конструктивно.
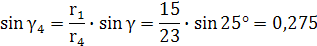
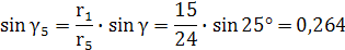
Рассчитаем для каждой узловой точки высотные размеры профиля резца,
измеренные вдоль передней поверхности.
где ri - радиусы узловых точек на профиле детали;
γ - величина переднего угла в базовой
точке 1;
γi - величины передних углов для расчетных
точек на профиле режущей кромки резца.
Рассчитаем высотные размеры профиля резца, необходимые для его
изготовления и контроля.
Высотные размеры профиля для каждой узловой точки задаем в радиальном
сечении.
Проверим результаты аналитического расчета величин Тi
графическим построением профиля резца.
) Обозначим на проекциях детали узловые точки профиля цифрами 1,2,3,4.
) Вычертим на плоскости V контуры проекций передней и задней поверхностей
резца. Проекция передней поверхности круглого резца - прямая линия 1`Р,
проведенная из точки 1` под углом γ к горизонтальной осевой линии детали.
Проекция задней поверхности призматического резца - прямые параллельные линии,
проведённые под углом α к вертикальной осевой линии детали через точки
пересечения линии 1`Р с контурами окружности профиля детали.
) Вычертим на координатной плоскости H профиль резца в нормальном
сечении, для чего:
а) выберем произвольно центр О1 пересечения следов плоскостей
N и H;
б) из центра О1 проведем прямую NN, перпендикулярную задней
поверхности;
в) перенесем с помощью циркуля высотные размеры профиля резца из
плоскости V на плоскость H.
г) Измерим на чертеже высотные размеры каждой узловой точки профиля резца
Т2, Т3 и разделим полученные величины на принятый масштаб
графического профилирования резца, результаты занесем в таблицу и сопоставим с
результатами аналитического расчета.
Таблица 1.3 - Высотные размеры узловых точек профиля резца
|
Номер узловой точки
|
Высотные размеры профиля,
измеренные от базовой точки 1, мм
|
|
на детали
|
на резце
|
|
|
аналитический
|
графический
|
|
2
|
t2 = 2,5 мм
|
T2 = 2,08 мм
|
T2 = 2,08мм
|
|
3
|
t3 = 4 мм
|
T3 = 3,31 мм
|
T3 = 3,31 мм
|
|
4
|
t4 = 8 мм
|
T4 = 6,52 мм
|
T4 = 6,52 мм
|
|
5
|
t5 = 9 мм
|
T5 = 7,32 мм
|
T5 = 7,32 мм
|
|
6
|
t5 = 10 мм
|
T6 = 8,11 мм
|
T6 = 8,11 мм
|
Определяем размеры дополнительных режущих кромок.
Дополнительные режущие кромки подготавливают отрезку детали от прутка.
Высота кромок не должна быть больше высоты рабочего профиля резца, ширина равна
ширине режущей кромки отрезного резца.
b = tmax
+ (5…12), мм (1.5)р = lд + b + c1 + c2
+ f, мм (1.6)
Конструктивно принимаем размеры: b = 5 мм, с1 = 1,5 мм, с2
= 2 мм, f=3 мм. [1]
b =10+10= 25
ммр = 58 + 5 + 1,5 + 2 + 3 = 69,5 мм
Для уменьшения трения резца о заготовку на участках профиля
перпендикулярных оси детали затачиваем угол равный 3˚.
Разрабатываем чертёж шаблона и контршаблона для проверки профиля резца на
просвет.
Профиль шаблона представляет собою негативный профиль резца. Высотные
размеры профиля шаблона равны соответствующим высотным размерам профиля резца.
Осевые размеры между узловыми точками профиля шаблона равны соответствующим
осевым размерам профиля резца. Для построения профиля шаблона необходимо через
узловую базовую точку 1 провести координатную горизонтальную линию, от которой
в направлениях, перпендикулярных к ней, отложить высотные размеры профиля
резца. Допуск на изготовление высотных размеров профиля шаблона ±0,01, линейных
±0,02…0,03.
Ширина шаблона
Lш
= LР + 2· f, мм (1.7)
где LР - ширина резца; f = 2 мм.
Lш
=69,5 + 2·2 = 73,5 мм
Рисунок 1.3 - Шаблон и контршаблон
2. Проектирование и расчёт фасонной протяжки
Исходные данные: рисунок 6, вариант 5.
Размеры обрабатываемого
отверстия:=40 мм, D =52 мм, D =0,05 мм, lд =60 мм,
B =6 мм, d =0,07 мм.
Материал заготовки: Сталь 45,
σв=589 МПа,
HB 207.
Рисунок 2.1 - Профиль
обрабатываемого отверстия
Диаметр хвостовика
где
- минимальный диаметр отверстия под протягивание, мм.
Принимаем стандартное значение по табл. 2.1 [1]
По ГОСТ 4044-70 принимаем основные размеры хвостовика и шейки: D1'
=28 мм, D2 =35,5 мм, l =160 мм, lX =140 мм, l1
=20 мм, l2 =32 мм, R =0,4 мм R2 =1,6 мм,
C=1,5 мм, a =30°
Переходный конускон=20 мм; dmin=dшейки=D2=35,5;
dmax=Dп.н.
Рисунок 2.2 - Размеры хвостовика протяжки
Диаметр и длина передней направляющей части
Dп.н =
d = 40 мм (2.2)
Предельное отклонение по e8.
L п.н.=lд=45
мм, при lд/D≤1,5 (2.3)
где lд - длина протягиваемого отверстия, мм;- диаметр
отверстия, получаемого после протягивания, мм.
Форма и размеры зубьев режущей части
Главные режущие кромки зубьев имеют форму дуг концентрических
окружностей, диаметр которых Di постоянно увеличивается от первого
зуба к последнему. Вспомогательные режущие кромки двух зубьев имеют
прямолинейную форму в зависимости от профиля обрабатываемой детали.
g=15
a=3
Предельные отклонения углов по ГОСТ 16492-70
Dg=+2° -1° Da=+30´
Для уменьшения трения на вспомогательных режущих кромках делают угол
равный 1o, располагающий позади ленточки шириной 0,8…1 мм.
Для обработки заготовки принимаем зубья с криволинейной спинкой.
Ориентировочные размеры режущих зубьев и расположенных между ними
стружечных канавок могут быть определены следующим соотношением:



Диаметр первого зуба протяжки
DZ1=
Dп.н = 40 мм (2.9)
где Dп.н - диаметр передней направляющей части, мм.
Диаметр последнего зуба режущей части протяжки
Dп
= Dк= 52,04 мм (2.10)
где Dк - диаметр калибрующих зубьев протяжки, мм.
Dк=(D+Δ)
- р = (52+0,05) - 0,01 =
52,04 мм (2.11)
где D - диаметр отверстия, получаемого после протягивания, мм;
Δ - предельное отклонение диаметра D
по чертежу, мм;
р - величина разбивания отверстия, р = (0,010 … 0,015) мм
Диаметры промежуточных зубьев режущей части протяжки между первым и
последним получают последовательным прибавлением к диаметру первого зуба
удвоенного значения толщины срезаемого слоя одним зубом 2а.
Диаметр 2-го зуба
DZ2=
DZ1+2a
Диаметр 3-го зуба
DZ3=
DZ2+2a и т. д.
Предельные отклонения диаметра последнего режущего и калибрующих зубьев
по ГОСТ 16492-70 равно -0,02 мм.
Определение толщины срезаемого слоя
Фасонные
протяжки срезают припуск на заготовке, как правило, по генераторной схеме
резания. Толщина срезаемого слоя
равна
разности высот и полу разности диаметров каждой пары сменных режущих зубьев.
Ширина срезаемого слоя
равна длине главной режущей кромке зуба протяжки.
Режущая кромка первого зуба окружность, следовательно:
Режущие
кромки последующих зубьев - дуги концентрических окружностей, поэтому ширина
срезаемого слоя одним зубом равна сумме длин дуговых участков главной режущей
кромки данного зуба, т.е.:
где
b - длина одного дугового участка на режущей кромке данного зуба;- число
дуговых участков на режущей кромке зуба, n=4.
Длина
дуговых участков режущей кромки уменьшается при увеличении диаметра от d до D,
т.е. от первого зуба к последнему на режущей части протяжки. Сила резания при
протягивании зависит от площади срезаемого слоя Р=f(a×b), поэтому для сохранения постоянной силы P за весь
период протягивания отверстия пропорционально уменьшению b увеличивают толщину
срезаемого слоя а, т. е. стремятся получить постоянной величину площади
срезаемого слоя.
Определяем
толщину срезаемого слоя
Определим
общий припуск на протягивание
Разделяем произвольно
величину А на 3 ступени и устанавливаем диаметры ступеней:1=d=40 мм;2=
44мм;3=48 мм;=52,04 мм.
Припуск первой ступени от d1
до d2 срезают зубья первой секции режущей части протяжки, припуск
второй ступени от d2 до d3 срезают зубья секции номер
два, припуск третьей ступени от d3 до D срезают зубья секции номер
три.
Принимаем постоянной величину
а в пределах каждой ступени, но разной на отдельных ступенях: наименьшая на
первой, наибольшая на последней ступени.
Определяем толщину срезаемого слоя на первой ступени
из условия прочности протяжки по
впадине первого зуба:
где
- площадь сечения во впадине первого зуба протяжки, мм2;
- допускаемое напряжение деформации растяжения в материале
режущей части протяжки, МПа. Для стали Р6М5
твёрдость HRCэ 63…66;
- длина режущей кромки первого зуба протяжки, мм;
- число зубьев протяжки участвующих одновременно в резании;
t - шаг зубьев на режущей части протяжки;
- коэффициенты, принимаемые по табл. 4, 5 [1].
Определяем толщину срезаемого слоя на второй
и последующих ступенях из условия
где
- суммарная ширина срезаемого слоя первым зубом каждой
ступени.
где
- длина дугового участка режущей кромки первого зуба каждой
ступени (секции), измеряемая на диаметре данной ступени;- число дуговых
участков.
Величину
определяем путём графического построения профиля длин
дуговых участков в программе КОМПАС и измерения соответствующей длины дуги
(рисунок 2.3).
Расчет
и
Расчет
и

Проверяем возможность размещения стружки в канавке между зубьями при
срезании протяжкой максимальной толщины срезаемого слоя.
где
- коэффициент заполнения стружечной канавки, по табл. 6 [1]
Условие выполняется.
Рисунок 2.3 - Схема построения для определения длин дуговых участков
Проверка прочности протяжки на разрыв по шейке хвостовика
где Р - сила резания при протягивании, Н
где
- коэффициенты, принимаемые по таблицам 4 и 5 [1]
где
- площадь сечения перед первым зубом, мм2
где
- диаметр шейки хвостовика, мм. Принимаем по таблице 1 [1]
где
-допускаемое напряжение при деформации растяжения в
материале хвостовика, МПа. Для стали 40 ГОСТ4543-71
Условие выполняется.
Проверка протяжки по тяговой силе протяжного станка
где Q - номинальная тяговая сила протяжного станка. Принимаем по таблице
7 [1]
Выбираем модель станка 7Б57 с максимальной длиной рабочего хода каретки
2000 мм и номинальной тяговой силой Q=400 кH.
291 кН <
0,9×400 = 360 кН
Стружкоделительные канавки на режущих зубьях протяжки
Канавки делают на зубьях, имеющих длину режущей кромки 5...10 мм и
размещают их в шахматном порядке.
Принимаем
Принимаем
Принимаем
Калибрующая часть протяжки.
Состоит из пяти зубьев одинакового диаметра, равного диаметру последнего
режущего зуба. Стружечные канавки имеют такую же форму и размеры, как и на
режущей части протяжки. Шаг калибрующих зубьев принимают равным шагу режущих
зубьев.
Вершину калибрующей части снабжаем фаской 0,5 мм, которая предназначена
для сохранения диаметральных (поперечных) размеров протяжки при переточках.
Передний угол
принимают равным
, так как при эксплуатации протяжки в
результате переточек затупившихся зубьев происходит постепенный переход
калибрующих зубьев в режущие.
Задний угол имеет небольшую величину по сравнению с режущими зубьями
. Это вызвано необходимостью
обеспечить медленное уменьшение диаметральных размеров зубьев при переточках.
Задняя направляющая часть
Заднюю направляющую часть у гранных и фасонных протяжек выполняют
цилиндрической. Диаметр задней направляющей части:
где d - минимальный диаметр отверстия под протягивание, мм.
Предельное отклонение
по f 7.
Длину задней направляющей части принимаем по таблице 8 [1]:
3. Проектирование и расчет червячной фрезы для обработки прямобочных
шлицев
Исходные данные: Вариант 28
Таблица 3.1 - Размеры шлицевого вала
|
z*d*D
|
b, мм
|
d1min, мм
|
fном, мм
|
fоткл, мм
|
rmax, мм
|
|
10х23х29
|
4
|
20,3
|
0,3
|
+0,2
|
0,2
|
Вид обработки - окончательный.
Базирование происходит по наружному диаметру.
Обозначение вала - D - 10x23x29e8x4h8
Рисунок 3.1 - Профиль торцового сечения шлицевого вала при центрировании
по внутреннему диаметру
Расчетные размеры вала.
где Dmax - максимальная величина наружного диаметра вала, ммmin
- номинальная величина фаски, мм
Dmax=
D + ES, ммmax = 29 + (-0,04) = 28,96 ммр= 28,96
-2·0,3=28,36 мм.
Внутренний диаметр (без учета припуска под шлифование вала):
где dmin - минимальная величина внутреннего диаметра, мм;
- допуск на внутренний диаметр, мм
Ширина шлица без учета припуска:
где
- ширина шлица минимальная, мм;
- допуск на ширину шлица
Диаметр начальной окружности с фаской на сторонах шлица:
Принимаем
мм
Конструктивные элементы фрезы
Определение профиля боковой стороны зубьев фрезы аналитическим методом.
Профиль боковой стороны зуба фрезы представляет собой кривую, огибающую
ряд последовательных положений профиля шлицевого вала при качении начальной
окружности вала по начальной прямой фрезы.
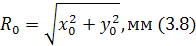
Для нахождения радиуса одной заменяющей окружности R0
и координат х0, у0 центра этой окружности необходимо
иметь координаты трех узловых точек профиля фрезы.
Точка О с координатами х=0, у=0 расположена на начальной прямой в точке
пересечения ее с кривой профиля:
точка 1-по середине профиля;
точка 2-у вершины профиля зуба.
Рисунок
3.2 - Профиль фрезы
Зная
координаты точки 1 и точки 2 найдем х0, у0, R0.
Координаты центра заменяющей окружности.
Радиус заменяющей окружности:
Ординаты точки 1и точки 2 принимаем:
Принимаем y1 = 1,98 мм
Абсциссы точек 1 и 2 из формул:
где
- радиус начальной окружности вала.
- углы обката точки 1 и точки 2 соответственно.
где
угол шлица в точке на
рад

Зная значения углов в градусах:


Определяем:
Тогда радиус заменяющей окружности:
Чтобы проверить точность замены кривой бокового профиля зуба фрезы дугой
окружности, определяем величину отклонений дуги от теоретической кривой в двух
точках а и b в расположенных между точками 0;1;2.
Максимальная погрешность замены в точках а и b:
где
- радиусы точек а и b, мм
где
- координаты точек а и b;

Углы обката точек а и b в радианах:
Рассчитываем предварительные параметры:
Координаты точек:


Определяем радиуса точек:


Погрешность допустимая т.к. выполняется условие:
где (Δa+Δb) - погрешность замены;
Δb - допуск на ширину шлица (0,018 мм).
Толщина зуба фрезы по начальной прямой:
где n - число шлицев вала, n = 10;
- угол в радианах;
Шаг зуба в нормальном сечении:
Смещение уступа от начальной прямой:
Угол уступа (фаски): при n = 10, ψ = 35˚[1]
ширина фаски:
высота фаски:
Размеры канавки для выхода шлифовального круга при затыловании канавки:
радиус: r = 1…2, принимаем r = 1 мм,
ширина:
глубина: h3 = 1,5…3 мм, конструктивно принимаем h3
= 2 мм.
Высота шлифованной части зуба фрезы:
Общая высота профиля зуба:
Геометрия фрезы.
Передний угол: γ=0˚[1].
Задний угол на вершине зуба:
[1], принимаем
Шаг между выбираемыми углами 30°.
На боковых сторонах профиля задний угол:
где
, а значение угла
должно быть
.
Условие выполняется.
Расчет конструктивных и габаритных размеров фрезы.
Число заходов - однозаходные.
Угол подъема витков по среднему диаметру
При увеличении
увеличивается погрешность профиля боковой стороны шлица.
Направление витков левое.
Направление передней поверхности зубьев правое.
Принимаем
40 мм
Число зубьев фрезы:
[1]
Величина затылования:
Принимаем K = 2 мм;
Принимаем K1 =3 мм;
Размеры канавки для выхода стружки:2 = 1,25…2,5 мм [1]
Принимаем r2 = 1,25 мм.
Угол канавки θ = 25˚.
Длина шлифованной части задней поверхности зубьев фрезы:
Принимаем
=4
мм.
Шаг витков фрезы в осевом сечении:
Длина наружной части фрезы:
Принимаем
Общая длина фрезы:
где
- длина буртика фрезы,
=
2…5 мм [1]. Принимаем
=3
мм;
Диаметр цилиндрической части буртиков:
Принимаем
Средний расчетный диаметр:
Угол наклона стружечной канавки:
Шаг стружечной канавки:
Диаметр отверстия фрезы:
Принимаем
.
Заключение
фасонный резец протяжка фреза
В данном курсовом проекте мы изучили основы проектирования
металлорежущего инструмента и его элементы. Проектирование режущих инструментов
является одним из главных направлений в машиностроении. От качества и
надежности, работоспособности режущих инструментов, применяемых в
машиностроении, в значительной мере зависит качество и точность, получаемых
деталей, производительность процесса обработки. При проектировании режущих
инструментов необходимо знание теоретических основ конструирования и расчета инструментов,
нужно уметь правильно определять лучшие для данных условий обработки
конструктивные элементы инструментов и создавать оптимальную их конструкцию,
учитывая условия эксплуатации, знать основные направления их совершенствования,
пути повышения надежности и эффективности, представлять себе возможные
направления и перспективы развития режущего инструмента.
Литература
1.
Методические указания по дисциплине «Режущий инструмент». Раздел «Резцы
фасонные».
.
Методические указания по дисциплине «Режущий инструмент». Раздел «Протяжки
фасонные».
.
Методические указания по дисциплине «Режущий инструмент». Раздел «Расчёт
червячных зуборезных фрез».
. Г.Н.
Кирсанов. Руководство по курсовому проектированию металлорежущих инструментов
М.: Машиностроение, 1986г.