Основы роботизированного производства
Введение
В настоящее время на большинстве заводов и
предприятий применяются станки с числовым программным управлением. Именно эти
типы станков обеспечивают максимальную гибкость производства, что необходимо
для адаптации предприятия к внешним воздействиям рынка спроса. Станки с ЧПУ
легко перенастраиваются на работу с различными типами заготовок, поэтому эти
станки являются наиболее перспективными.
В данной курсовой работе ведётся модернизация
РТК РРТК-3Д31 на базе станка с ЧПУ МОД. 1П756ДФ3, режимы обработки группы
деталей типа «стакан». Подбирается режущий и вспомогательный инструмент.
Разрабатывается расчетно-технологическая карта. Производится кинематический и
силовой расчёты, расчёт валов на статическую прочность.
1. Технологическая часть
.1 Разработка технологического
процесса
Разработку роботизированной системы ведем на
основе подобранного расчета технологического процесса обработки
детали-представителя.
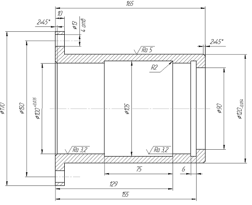
Эскиз заготовки представлен на рисунке 1 - это
стакан. Вид получения заготовки - литье. Материал сталь 40Л. Максимальные и
минимальные размеры детали представлены на рисунке 1.
Операционная карта механической обработки
заготовки представлена в таблице 1.
Рисунок 1 - Чертеж детали-представителя
Параметры чистовой обработки.
Определяем минимальную частоту
вращения:=170*4=680 мм
Глубина резания t=3 мм
Подача S=1.1-1.4 мм/об. Принимаю S=1.4мм/об (из
карты № 2(6))
Скорость выбираем по подаче:V=63 м/мин
Частота вращения на шпинделе
Параметры черновой обработки.
Определяем максимальную частоту
вращения:=90/2=45 мм.
Глубина резания t=1 мм
Подача S=0.16-0.25 мм/об. Принимаю
S=0.25мм/об (из карты № 3(6))
Скорость выбираем по подаче:V=381
м/мин
Частота вращения на шпинделе
Чертеж детали с обозначением
поверхностей представлен на рисунке 2.
Рисунок 2 - Чертеж детали с
обозначением поверхностей
Распределение переходов по установам показано в
таблице 1.
Таблица 1 - Распределение переходов по установам
|
№
установа
|
Наименование
операции и содержание по переходам
|
Режущий
инструмент
|
Приспособления
|
|
1
|
Подрезать
торец 11. Точить начерно поверхность 12 на длине 10 выдерживая Ø171.
|
Резец
подрезной контурный
|
Патрон
трехкулачковый
|
|
Точить
начисто поверхности 11,12. Подрезать фаску 10
|
Резец
подрезной контурный
|
Патрон
трехкулачковый
|
|
2
|
Подрезать
торец 17.Точить начерно поверхность 15 с Ø121, поверхность
14
|
Резец
подрезной контурный
|
Патрон
трехкулачковый
|
|
Точить
начисто поверхности 14,15,17. Подрезать фаску 16
|
Резец
расточной
|
Патрон
трехкулачковый
|
|
Точить
канавку 3
|
Резец
канавочный
|
Патрон
трехкулачковый
|
|
Расточить
начерно поверхности 1,5,7,9
|
Резец
расточной
|
Патрон
трехкулачковый
|
|
Точить
начисто поверхности 1,5,9.
|
Резец
подрезной контурный
|
Патрон
трехкулачковый
|
|
1
|
Термическая
обработка
|
|
|
|
1
|
Сверлить
отверстия 13
|
Сверло
спиральное
|
Патрон
трехкулачковый
|
|
1
|
Шлифовать
поверхности 5,9
|
Шлифовальный
круг
|
Патрон
трехкулачковый
|
Таблица 2 - Операционная карта механической обработки
|
№
|
Пов.
|
l,
мм
|
d,
мм
|
t,
мм
|
S,
мм/об
|
V,
м/мин
|
Pz,
Н
|
Nz,
кВт
|
n,
об/мин
|
NД,
кВт
|
tр.х,
с
|
tх.х,
с
|
|
1
|
11
|
35
|
171
|
0,5
|
0,8
|
147.13
|
1447
|
3.48
|
274.02
|
4.35
|
9.58
|
0.32
|
|
12
|
10
|
170
|
0,5
|
0,8
|
147.13
|
1447
|
3.48
|
275.63
|
4.35
|
2.72
|
0.19
|
|
2
|
17
|
15
|
121
|
0,5
|
0,8
|
147.13
|
1447
|
3.48
|
387.25
|
4.35
|
2.91
|
0.19
|
|
15
|
155
|
121
|
3
|
0,8
|
112.46
|
1507
|
2.77
|
296
|
3.46
|
39.27
|
1.3
|
|
14
|
25
|
171
|
0,5
|
0,8
|
147.13
|
1447
|
3.48
|
274.02
|
4.35
|
6.84
|
0.22
|
|
15
|
155
|
120
|
0,5
|
0,2
|
226.81
|
479.6
|
1.78
|
601.94
|
2.23
|
7.4
|
0.24
|
|
3
|
6
|
105
|
0,5
|
0,08
|
245.18
|
469.9
|
1.88
|
743.65
|
2.35
|
6.05
|
0.2
|
|
9
|
54
|
99
|
2
|
0,15
|
195.14
|
395.3
|
1.26
|
627.7
|
1.58
|
18.4
|
0.4
|
|
7
|
75
|
105
|
2
|
0,15
|
195.14
|
395.3
|
1.26
|
591.8
|
1.58
|
19.7
|
1.19
|
|
5
|
20
|
99
|
2
|
0,15
|
195.14
|
395.3
|
1.26
|
627.7
|
1.58
|
15.8
|
0.46
|
|
1
|
10
|
90
|
2
|
0,15
|
195.14
|
395.3
|
1.26
|
690.51
|
1.58
|
5.4
|
0.28
|
|
5
|
20
|
100
|
0,5
|
0,12
|
226.08
|
327.1
|
1.21
|
720
|
1.51
|
13.1
|
0.46
|
|
9
|
54
|
100
|
0,5
|
0,12
|
226.08
|
327.1
|
1.21
|
720
|
1.51
|
15.97
|
0.61
|
|
1
|
13
|
10
|
13
|
2
|
0,1
|
34.5
|
1772
|
0.8
|
845.17
|
1
|
7.1
|
0.34
|
- частота вращения шпинделя;(1)
Сталь 40Л ГОСТ 977-75.
Для дальнейшего расчета были выбраны
максимальные значения:шmax=2700 об/мин; nш min=29 об/мин; Nтр=6.4 кВт.( Nтр
подбираем по черновой обработке из карты № 6(6))
Полученные частоты вращения
округляем до ближайших стандартных:шmax=2800 об/мин; nш min=28 об/мин.
1.2 Определение направлений
роботизации и автоматизации производства
При выборе участков производства, на
которых должны применяться, в первую очередь, промышленные роботы, предпочтение
следует отдавать литейному, кузнечно-штамповочному производствам, цехам и
участкам гальванопокрытий, окраски, термообработки и другим участкам с вредными
условиями труда. Здесь роботы не только сократят затраты ручного труда, но и
позволят изолировать работающих от вредных условий труда.
В условиях рассматриваемого
производства используется автоматический станок с ЧПУ, который выполняет
основные технологические операции производственного процесса. Поэтому
роботизацию следует осуществлять в направлении автоматизации вспомогательных
этапов производства:
загрузочно-разгрузочные операции;
транспортные операции;
упаковка.
1.3 Выбор основного оборудования
Рассматриваемая деталь относится к
типу «стакан». В качестве основного технологического оборудования целесообразно
выбрать РТК РРТК-3Д31.
РТК предназначен для токарной
обработки наружных и внутренних цилиндрических, конических, сферических и
торцевых поверхностей деталей типа тел вращения со ступенчатым и криволинейным
профилем, а также для нарезания резьб в автоматическом режиме.
2. Обоснование и описание
разрабатываемой роботизированной технологической системы
.1 Операция 1. Описание проблемной
ситуации
Проектируется оборудование для изготовления
группы деталей типа «стакан». Габаритные размеры детали:
длина: 165, мм,
max Ø: 170, мм.
Материал: сталь 40Л ГОСТ 977-75
2.2 Операция 2. Выбор прототипа и
составление списка требований
Роботизированный технологический комплекс
РРТК-3Д31 предназначен для многооперационной обработки заготовок типа коротких
тел вращения (дисков, колец, фланцев и т. п.) в условиях серийного и
многосерийного производств. РТК построен на базе токарного патронного станка с.
ЧПУ мод. 1П756ДФЗ, автоматического манипулятора 2 портального типа мод.
MA80UC.25.09, накопителя заготовок и деталей, выполненного в виде тактового
стола со специализированной тарой, склада-стеллажа для технологической
оснастки, устройства ЧПУ типа «Электроника МС 2101», гидростанции и других
вспомогательных устройств (например, для смены схватов манипулятора).
Автоматический манипулятор в составе РТК
выполняет следующие операции: снятие заготовки из тары первым схватом;
транспортирование ее к патрону станка; взятие из патрона обработанной детали
вторым схватом и установку в него заготовки первым схватом (после поворота
кисти руки манипулятора на 180°); транспортирование детали к таре к установку в
соответствующей ячейке. Токарный патронный станок с ЧПУ мод. 1П756ДФЗ, входящий
в состав РТК, имеет типовую для таких станков компоновку; направляющие станины
расположены в плоскости, наклоненной под углом 20° к вертикали. Это
обеспечивает хороший отвод и удаление стружки из зоны обработки, а также
свободный доступ манипулятора к обрабатываемой в патроне заготовке.
Привод главного движения включает в себя
регулируемый электродвигатель постоянного тока и трехступенчатую механическую
коробку передач. Механизм переключения диапазонов частот вращения шпинделя -
электромеханический.
Конструкция шпиндельной коробки станка. Корпус
крепится винтами на станине в передней части станка. Шпиндель установлен на
двух опорах: двухрядном роликовом подшипнике, работающем в паре с
упорно-радиальным подшипником в передней опоре, и двухрядном роликоподшипнике в
задней опоре, передний конец шпинделя - фланцевый с возможностью быстросменной
установки патрона. На заднем конце шпинделя имеется посадочный поясок для
крепления зажимного устройства.
Входной вал механизма привода связан со
шпинделем через один из двух промежуточных валов, на которых установлены,
соответственно, передвижные блоки зубчатых колес. Настройка на один из трех
диапазонов частот вращения шпинделя осуществляется механизмом управления,
содержащим вал, связанный зубчатыми колесами с приводом (головкой типа ПРИЗ
ВС-05), а также вилки переключения, подвижно установленные на оси. Положения
вилок переключения зубчатых блоков контролируются конечными выключателями и
стопорятся подпружиненными фиксаторами.
Датчик резьбонарезания связан через упругую
пластинчатую муфту с валом, который через зубчатую передачу соединен со
шпинделем. Для выбора зазора в зацеплении разрезное зубчатое колесо этой
передачи снабжено специальным пружинным устройством.
Смазка механизмов шпиндельной коробки
осуществляется централизованно от маслораспределителя, установленного в
корпусе.
Конструкция каретки станка с механизмами
приводов подачи. Каретка устанавливается на направляющие станины и удерживается
относительно них планками. На верхней части каретки прикреплены три планки с
плоскими горизонтальными направляющими качения, по которым в поперечном
направлении перемещается ползушка 5 суппорта. В качестве элементов качения в
направляющих используются танкетки, две из которых жестко прикреплены к
ползушке, а две другие установлены на клиньях для возможности регулирования
величин натяга. Ползушка относительно направляющих удерживается планками.
Защита направляющих от попадания стружки и
охлаждающей жидкости обеспечивается щитками и уплотнениями. Смазка направляющих
станины и каретки, а также шариковых винтов осуществляется централизованно от
гидростанции через гибкие шланги, дозаторы и маслопроводы в корпусе каретки.
На нижней плоскости каретки крепится гайка
шарикового винта продольной подачи. В расточке каретки на опорах установлен
ходовой винт поперечной подачи, гайка которого жестко закреплена на нижней
плоскости ползушки. Верхняя опора винта содержит два упорных и радиальный
игольчатый подшипники, представляющие единый комплект. Предварительный натяг
упорных подшипников осуществляется тарельчатой пружиной. Нижняя опора выполнена
в виде радиального роликового подшипника, свободно установленного в расточке
каретки.
К переходному фланцу на верхней стенке каретки
крепится высокомоментный электродвигатель поперечной подачи ползушки, который
предохранительной муфтой соединен с шариковым винтом.
На ползушке суппорта станка установлены две
револьверные головки: дисковая 8-позиционная с осью, параллельной шпинделю, и
4-гранная с перпендикулярной осью вращения. Обе револьверные головки находятся
друг от друга на расстоянии, достаточном для размещения заготовки с наибольшим
диаметром.
Конструкция револьверной головки с вертикальной
осью. Данная головка предназначена для закрепления блоков режущих инструментов,
используемых при внутренней обработке (расточке, сверлении и т. п.). Корпус
револьверной головки установлен на оси, выполненной в виде полого стакана, и
промежуточном основании. На корпусе устанавливаются сменные инструментальные
блоки, которые базируются на плоскости и зажимаются вручную планками.
Фиксирующее устройство револьверной головки
содержит две торцевые мелкозубые полумуфты. Одна из полумуфт жестко закреплена
на основании, а другая прикреплена к корпусу. Для предварительной фиксации
головки имеется подпружиненный упор одностороннего действия.
Механизм поворота головки смонтирован в полости
стакана и жестко связан с ним осью 9. Электродвигатель через зубчатые колеса,
планетарную передачу с сателлитами соединяется с центральными колесами (с
внутренними зубьями), связанными со стаканом и муфтой зажима. Муфта зажима
револьверной головки выполнена в виде двух полумуфт с винтовым зацеплением,
одна из которых жестко связана с приводным зубчатым колесом, а другая через
промежуточную зубчатую муфту- с осью.
Движение вала электродвигателя через
промежуточные и планетарную передачи передается винтовой полумуфте. При
повороте полумуфты корпус револьверной головки поднимается по винтовым зубьям
полумуфты под действием пружин в основании, расцепляя полумуфты. После этого
корпус поворачивается до заданного положения, контролируемого одним из четырех
микровыключателей в командоаппарате, который монтируется в верхней части
стакана. При срабатывании одного из них дается команда на реверс электре-
двигателя: корпус поворачивается до упора, а затем зажимаетя винтовой муфтой в
заданном положении. Отдельный микровыключатель дает в этот момент команду на
выключение электродвигателя.
В конструкции револьверной головки предусмотрены
внутренне каналы для подачи СОЖ к режущим инструментам. Подача СОЖ
осуществляется по каналам к клапану, который открывается при установке инструментального
блока.
Для закрепления режущих инструментов с
горизонтальной осью для наружной обточки заготовки применяется дискован
8-позиционная револьверная головка.
Конвейер помещен в нише станины и расположен
перпендикулярно оси шпинделя так, чтобы стружка выводилась в сторону задней
стенки станка в тару. Помещенный в сварной корпус из листового металла конвейер
выполнен в виде двух бесконечных цепей, к звеньям которых прикреплены скребки
насаженные на оси. Цепь перемещается по направляющим; ведущие звездочки С
жестко установлены на приводном валу, а ведомые- на валу. Натяжение цепи
осуществляется винтами и крепежными болтами. Kopпус установлен на шасси с
роликами, позволяющими ему выдвигаться назад для обслуживания и ремонта.
Конвейер приводится в действие электродвигателем с зубчато-червячным ре
дуктором. образующими единый комплекс мотора-редуктора.
Управление перемещением каретки тактового стола
осуществляется устройством автоматики по командам от конечных выключателей на
которые воздействуют упоры, предварительно установленные в пазах линейки.
Линейка жестко прикреплена к корпусу каретки параллельно направляющим.
Комплекс РРТК-ЗД31 оснащен (различными
контрольно-измерительными устройствами: датчиком правильной установки заготовки
в патроне станка; контактной головкой для измерения инструментов; сменной
головкой со щупом для измерения обрабатываемой заготовки.
.3 Операция 3. Составление списка
недостатков прототипа
В связи со сформулированным перечнем требований
к разрабатываемому оборудованию, рассмотрим недостатки выбранного прототипа -
РТК РРТК-3Д31:
мощность привода главного движения, почти в 3
раза превышающая максимальную мощность, необходимую для обработки данной группы
деталей;
следствием этого является то, что встроенная в
прототип КП является экономически нецелесообразной, т.к. способна передавать
гораздо большую мощность и момент, чем это необходимо для резания, что повышает
цену элементов КП.
3. Проектирование элементов
механической системы автоматизированного комплекса
.1 Кинематический расчет
комбинированного привода главного движения с регулируемым электродвигателем
шmax=2800 об/мин; nш min=28 об/мин; Nтр=6,4 кВт.
3.1.1 Выбор электродвигателя
Для привода выбираем двигатель, который должен
обеспечивать мощность, необходимую для резания. Определим мощность
электродвигателя привода:
;
где
кВт - требуемая мощность на
шпинделе;
=0,98*0,9959*0,982=0,9- КПД передач
от вала двигателя к валу шпинделя
, кВт
Выбираем двигатель серии 4ПФ 112L с
параметрами:д ном=1000 об/мин;дmax=3000 об/мин;д ном=7,5 кВт.
Т.к. 7,5>7,11, то выбранный
двигатель обеспечивает запас мощности с учётом потерь в рёменной передаче и автоматической
коробке скоростей.
3.1.2 Определение числа ступеней
коробки передач
об/мин;
Принимаем n0=125 об/мин.
,
Построение графика зависимости
мощности от частоты вращения.
Рисунок 3 - Диаграмма мощности
привода шпинделя
Рисунок 4 - Диаграмма мощности
двигателя
Рисунок 5 - Силовая характеристика привода
Принимаем
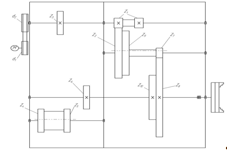
3.1.3 Кинематическая схема привода
Рисунок 6 - Кинематическая схема
привода.
Обозначения валов: I, II, III, IV.
Зубчатые колёса:Z1, Z2 Z3, Z4, Z5,
Z6, Z7, Z8, Z9, Z10,
Диаметры шкивов:d1,d2.
3.1.4 Определение передаточных
отношений передач
Построение графика частот вращения
для φ=1,26
;
;
;
;

Рисунок 7 - График частот вращения
валов коробки передач
Рассчитаем число зубьев зубчатых
колес
:
,
,
,
Исходя из условий компактности
передач,величинуSzв приводах главного движения ограничивают в пределах Sz≤100÷120
Так как a+b=5+6=11,
c+d=e+f=j+k=1+1=2, g+h=16+50=66 наименьшее кратное будет равно 66.
.
,
,
,
,
Так как число зубьев не может быть
равно 16, выберем другое Sz , не кратное одной из сумм.



3.1.5 Расчет зубчатых передач
коробки
Для равномерного изнашивания зубьев
и лучшей их прирабатываемости твердость шестерни назначается больше твердости
колеса. Разность средних твердостей рабочих поверхностей шестерни и колеса в
передачах с прямыми и винтовыми зубьями составляет 20 - 50 НВ.
В качестве материала для шестерни
выбираем сталь 25ХГТ, для шестерни НВ 300, для колеса 35 НВ 260. Определим
допускаемые контактные напряжения: для шестерен:
Н/мм,
для колес:
роботизация
автоматизация производство
Н/мм.
Определим допускаемые напряжения
изгиба:
для шестерен:
Н/мм,
для колес:
Н/мм.
Диаметры шкивов d1 и d2 принимаю равными 140 мм
и 150 мм
Расчет передачи I
Мощность:
кВт
кВт
Частота колеса
об/мин
Передаточное число i=0.83
Число зубьев:
колесо
колеса
Определим межосевое расстояние по
формуле:
,
где Ка - вспомогательный
коэффициент, равный 43, для косозубых передач и 49,5 для прямозубых; ψ - коэффициент
ширины венца, равный для прямозубых колес 0,28 - 0,36, для косозубых 0,2 -
0,25, принимаем ψ=0,25;
i - передаточное
число зубчатой передачи; T2 - крутящий момент на тихоходном валу, Н·м; [σH] - допускаемое
контактное напряжение колеса с менее прочным зубом, Н/мм2; КНВ - коэффициент
неравномерности нагрузки по длине зуба, для прирабатывающихся передач равен 1.
Крутящий момент:
, Н·м.
Определим межосевое расстояние:
, мм.
Определим модуль зацепления:
,
Принимаем значение модуля m=3.5 мм.
Уточняем межосевое расстояние:
, мм.
Определяем геометрические параметры зубчатого
зацепления для шестерени и колеса:
делительные диаметры:
, мм;
, мм;
диаметры вершин зубьев:
, мм;
, мм;
диаметры впадин зубьев:
, мм;
, мм;
ширина венца:
, мм.
Проверочный расчет зубчатой передачи
Определим контактные напряжения
действующие в зацеплении:
,
где:
, Н - окружная сила колес;
К - вспомогательный коэффициент,
равный 436 для прямозубых передач и 376 - для косозубых; Кр - коэффициент
нагрузки зубьев, равный 1,26 для прямозубых колес и 1,4 для косозубых; b -
ширина венца.
, Н/мм
Т.к. допускаемое контактное
напряжение для колеса:
, то условие
прочности зацепления по контактным напряжениям выполняется:
.
Определяем напряжения изгиба зубьев,
действующих в зацеплении:
, Н/мм;
, Н/мм;
Т.к.
,
, то условия прочности по
напряжениям изгиба выполняются:
,
.
Рассчитаем силы действующие в
зацеплении передачи:
окружная:
Н;
радиальная:
, Н
Расчет передачи II
Мощность:
кВт
Частота колеса
об/мин
Передаточное число i=0,32
Число зубьев:
шестерни
колеса
Определим межосевое расстояние по
формуле:
,
Крутящий момент:
, Н·м.
Определим межосевое расстояние:
, мм.
Определим модуль зацепления:
, мм.
Принимаем значение модуля m=10
Уточняем межосевое расстояние:
, мм.
Определяем геометрические параметры
зубчатого зацепления для шестерени и колеса:
делительные диаметры:
, мм;
, мм;
диаметры вершин зубьев:
, мм;
, мм;
диаметры впадин зубьев:
, мм;
, мм;
ширина венца:
, мм.
Проверочный расчет зубчатой передачи
Определим контактные напряжения
действующие в зацеплении:
, Н - окружная сила колес;
К - вспомогательный коэффициент,
равный 436 для прямозубых передач и 376 - для косозубых; Кр - коэффициент
нагрузки зубьев, равный 1,26 для прямозубых колес и 1,4 для косозубых; b -
ширина венца.
, Н/мм
Т.к. допускаемое контактное
напряжение для колеса:
, то условие
прочности зацепления по контактным напряжениям выполняется:
.
Определяем напряжения изгиба зубьев,
действующих в зацеплении:
, Н/мм;
, Н/мм;
Т.к.
,
, то условия прочности по
напряжениям изгиба выполняются:
,
.
Рассчитаем силы действующие в
зацеплении передачи:
окружная:
, Н;
радиальная:
, Н
Расчет передачи III
Мощность:
кВт
Частота колеса
об/мин
Передаточное число i=1
Число зубьев:
колесо
колеса
Определим межосевое расстояние по
формуле:
,
где Ка - вспомогательный
коэффициент, равный 43, для косозубых передач и 49,5 для прямозубых; -
коэффициент ширины венца, равный для прямозубых колес 0,28 - 0,36, для
косозубых 0,2 - 0,25, принимаем ψ=0,25; i - передаточное
число зубчатой передачи; T2 - крутящий момент на тихоходном валу, Н·м; [σH] - допускаемое
контактное напряжение колеса с менее прочным зубом, Н/мм2; КНВ - коэффициент
неравномерности нагрузки по длине зуба, для прирабатывающихся передач равен 1.
Крутящий момент:
, Н·м.
Определим межосевое расстояние:
, мм.
Определим модуль зацепления:
,
Принимаем значение модуля m=5 мм.
Уточняем межосевое расстояние:
, мм.
Определяем геометрические параметры
зубчатого зацепления для шестерени и колеса:
делительные диаметры:
, мм;
, мм;
диаметры вершин зубьев:
, мм;
, мм;
-диаметры впадин зубьев:
, мм;
, мм;
ширина венца:
, мм.
Проверочный расчет зубчатой передачи
Определим контактные напряжения
действующие в зацеплении:
,
где:
, Н - окружная сила колес;
К - вспомогательный коэффициент,
равный 436 для прямозубых передач и 376 - для косозубых; Кр - коэффициент
нагрузки зубьев, равный 1,26 для прямозубых колес и 1,4 для косозубых; b -
ширина венца.
, Н/мм
Т.к. допускаемое контактное
напряжение для колеса:
, то условие
прочности зацепления по контактным напряжениям выполняется:
.
Определяем напряжения изгиба зубьев,
действующих в зацеплении:
, Н/мм;
, Н/мм;
Т.к.
,
, то условия прочности по
напряжениям изгиба выполняются:
,
.
Рассчитаем силы действующие в
зацеплении передачи:
окружная:
Н;
радиальная:
, Н
3.2 Расчёт вала на статическую
прочность
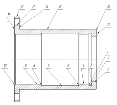
Рисунок 8 - Эпюра нагружения
3.2.1 Определяем опорные реакции
, Н
, Н
3.2.2 Определяем изгибающие моменты
, Н·м
, Н·м
, Н·м
, Н·м
, Н·м
, Н·м
Определяем изгибающий момент в
сечении I:
, Н·м
Определяем изгибающий момент в
сечении II:
, Н·м
Определяем изгибающий момент в
сечении III:
, Н·м
Найдем приведенный момент в сечении
I:
, Н·м
Найдем приведенный момент в сечении
II:
, Н·м
Найдем приведенный момент в сечении
III:
, Н·м
3.2.3 Диаметр вала в сечении,
находим по формуле
где
- допускаемое напряжение изгиба:
, Н/мм
- предел выносливости при изгибе;
=2 - ориентировочное значение
коэффициента концентрации;=2,25 - ориентировочное значение коэффициента запаса
прочности.
Диаметр вала в сечении I:
, мм
Диаметр вала в сечении II:
, мм
Диаметр вала в сечении III:
, мм
Заключение
В процессе выполнения данной курсовой работы
была проведена модернизация стандартного РТК на базе токарного станка с ЧПУ
модели 1П756ДФ3.
Был разработан технологический процесс
производства заданной детали.
В соответствии с заданием, был произведен
кинематический расчет привода главного движения станка, исходя из требований,
предъявляемых к технологическому процессу изготовления заданной группы деталей;
и модернизация основного технологического оборудования, в соответствии с
результатами данного расчета.
Это позволило добиться наибольшей экономической
эффективности вследствие снижения затрат на:
текущие эксплуатационные издержки (главным
образом, мощность, потребляемую основным производственным оборудованием);
простой вспомогательного оборудования
(вследствие оптимизации производственного процесса за счет снижения величины
вспомогательного времени).
Также существует возможность дальнейшей
оптимизации рассматриваемой производственной линии. Предлагается произвести
исследование работы РТК для выявления уровня загрузки основного и вспомогательного
технологического оборудования. По полученным данным можно сделать вывод о
необходимости изменения состава производственного участка с целью снижения
времени простоя основного и вспомогательного технологического оборудования. Это
позволит существенно повысить производительность рассматриваемого участка и
снизить производственные затраты.
Список использованных источников
1. Тугенгольд
А.К., Лаврентьев Е.Б. Методические указания к курсовой работы по дисциплине
«Оборудование роботизированных производств». Ростов - н/Д. Издательский центр
ДГТУ, 2007, 26 с.
2. Методические
указания к курсовой работы по дисциплине «Механика управляемых машин». Метод.
Ростов - на - Дону, 2004. 23 с.
. Бабенко
Э.Г. Расчет режимов резания при механической обработке металлов и сплавов.
Методическое пособие к курсовому и дипломному проектированию. Хабаровск. 1997.
. Панов
А.А. Обработка металлов резанием. Справочник технолога. Машиностроение. 2004 г.
ISBN 5-94275-049-1.
. В.И.
Анурьев. Справочник конструктора-машиностроителя. Под ред. И.Н. Жестковой - М.:
Машиностроение, 2001 г. ISBN 5-217-02963-3.
. Общемашиностроительные
нормативы режимов резания для технического нормирования работ на металлорежущих
станках. Ч.1.М.: Машиностроение. 1974.