|
Частота вращения n,
мин-1
|
n/nн
|
nн/n
|

|
|
|
3000
|
0,6
|
1,667
|
433,335
|
0,584
|
|
3500
|
0,7
|
1,429
|
371,467
|
0,681
|
|
4500
|
0,9
|
1,111
|
288,803
|
0,876
|
|
5000
|
1,0
|
1,000
|
259,949
|
0.973
|
|
5500
|
1,1
|
0,909
|
236,294
|
1,07
|
н=5000 мин-1; Zпр=0,9; Rпр=491
Дж/(кг∙К); Tпр=288 К
При n=5500 мин-1
Полученные точки Qпр - [n/nн]пр наносятся на характеристику
нагнетателя и соединяются линией режимов (рисунок 1).
газопровод давление компрессорный производительность
Рисунок 1 - Приведенная характеристика RF 2BB-30
Вычисляем требуемую степень повышения давления

По
характеристике нагнетателя (рисунок 1) определяем расчетные значения
приведенных параметров. Проведем горизонтальную линию из е =1,474 до линии
режимов и найдем точку пересечения. Восстанавливая перпендикуляр из этой точки
до пересечения с горизонтальной осью, находим, Qпр=305 м3/мин.
Аналогично определяем зпол=0,83 и [Ni/свс]пр =385 кВт/(кг/м3).
Рассчитываем
внутреннюю мощность, потребляемую ЦН

С
учетом, что механические потери мощности составляют 1% oт номинальной
мощности ГТУ, определяем мощность на муфте привода

где
Nмех- механические потери мощности в редукторе и
подшипниках ЦН при номинальной загрузке ( 1% от номинальной мощности привода).
Вычисляем
располагаемую мощность ГТУ

где
Neн - номинальная мощность ГТУ, Neн =12900 кВт
[5, таблица 6];
kN - коэффициент
технического состояния по мощности, kN=0,95 [5, таблица 6];
kОБЛ -
коэффициент, учитывающий влияние системы противообледенения (при отключенной
системе kОБЛ =1);
kУ- коэффициент,
учитывающий влияние системы утилизации тепла (при ее отсутствии kУ=1);
kt -коэффициент,
учитывающий влияние атмосферного воздуха на мощность ГТУ, kt=2,2
[5, таблица 6];
ТВОЗД,
ТнВОЗД - соответственно фактическая и номинальная температура воздуха,
ТВОЗД=283 К, ТнВОЗД=288 К (Юбилейное месторождение) [8];
Ра
- расчетное давление наружного (атмосферного) воздуха, Ра =0,1013 МПа.
Проверяем
условие
. Условие 9851<11778 выполняется.
Рассчитываем
температуру газа на выходе ЦН
,
где
k -показатель адиабаты природного газа, k=1,31
[7].
На
этом расчет можно считать завершенным.
3. ОПИСАНИЕ КОНСТРУКЦИИ И ПРИНЦИПА ДЕЙСТВИЯ ГПА
Основные конструктивные особенности газотурбинных ГПА рассмотрим на
примере наиболее распространенного на компрессорных станциях агрегата ГТК-10.
Конструкция газотурбинной установки включает в себя турбоблок, камеру сгорания
и регенератор, объединенные между собой трубопроводами газовоздушного тракта.
Блок турбогруппы включает в себя осевой компрессор, газовые турбины
высокого и низкого давления, выполненные в одном корпусе, пусковой
турбодетандер, валоповоротное устройство, элементы маслосистемы и системы
регулирования, внешние трубопроводы системы охлаждения и др. Эти элементы ГТУ
монтируют на общей фундаментной раме, одновременно являющейся маслобаком, и
поставляют единым монтажным блоком. Вся турбо-группа закрыта декоративным
кожухом, из-под которого нагретый воздух с помощью специального вентилятора
выбрасывается в атмосферу.
Чугунный корпус компрессора выполнен из трех частей, соединенных
вертикальными фланцами: всасывающего и нагнетательного патрубков и средней
части (обоймы). Корпус имеет общий горизонтальный разъем и лапы, с помощью
которых его устанавливают на фундаментную раму-маслобак; с корпусом турбины
соединяется через корпус среднего подшипника и два сегмента. Проточная часть
компрессора образована ступенями рабочих и направляющих лопаток. Статор
компрессора имеет 12 ступеней: первая - входной направляющий аппарат, десять
ступеней промежуточного направляющего аппарата, последняя ступень - спрямляющий
аппарат. Ротор компрессора имеет 10 ступеней лопаток, установленных на
бочкообразной части ротора турбокомпрессора. Для выпуска части воздуха после
четвертой ступени во время запуска агрегата на корпусе компрессора установлены
автоматические сбросные клапаны. Корпус турбины состоит из четырех частей, соединенных
вертикальными фланцами: передней части корпуса, диффузора и двух выхлопных
патрубков (правого и левого). Передняя часть корпуса и диффузор снабжены
горизонтальным фланцевым разъемом. Передняя часть корпуса выполнена двухстенной
с наружным литым корпусом и внутренней вставкой из листовой жаропрочной стали.
Эта вставка образует проточную часть турбины от входного патрубка до лопаток;
зазор между внутренним и наружным корпусом заполнен тепловой изоляцией. Для
обеспечения свободы теплового расширения вставка подвешена на лапках к передней
части корпуса в плоскости горизонтального разъема. Нижняя половина передней
части корпуса имеет входной патрубок, в котором для жесткости установлена
охлаждаемая воздухом стяжка. Диффузор выполнен сварным из листа и имеет
наружную тепловую изоляцию. Корпус турбины опирается на фундаментную раму при
помощи шести лап на переднем корпусе, диффузоре и выхлопных патрубках. В
корпусе турбины в специальных проточках установлены обойма направляющих
лопаток, диафрагма с передним уплотнением, уплотнение крылатки и заднее
уплотнение турбины.
Обойма с направляющими лопатками установлена в кольцевую проточку
корпуса, которая одновременно является каналом для подвода воздуха на
охлаждение обоймы. Для предотвращения тепловых деформаций обойма выполнена без
горизонтального разъема, но имеет небольшую съемную часть над ротором
турбокомпрессора для удобства разборки. В обойму установлены два ряда
направляющих лопаток. Лопатки первого ряда имеют Т-образный хвост и набраны в
12 сегментах по четыре лопатки. Лопатки второго ряда размещены между двух
бандажей и вместе с бандажом представляют собой единую сварную конструкцию,
которая является одновременно промежуточной вставкой между ТВД и ТНД. В
передней части корпуса турбины со стороны диска ТВД установлена диафрагма с
уплотнением, состоящая из двух половин, соединенных по горизонтальному разъему
шпильками. За диафрагмой в корпусе турбины установлено уплотнение крылатки,
выполненной на валу и являющейся дополнительным воздушным затвором. Между диафрагмой
и уплотнением имеется канал, из которого по трубам воздух и его протечки через
уплотнения удаляются за пределы машинного зала.
В диффузоре установлено уплотнение силовой турбины, которое предотвращает
протечки продуктов сгорания между корпусами турбины и подшипника силового
ротора. В переднем блоке турбогруппы размещены опорно-упорный подшипник ротора
турбокомпрессора, главный масляный насос, валоповоротное устройство,
турбодетандер и элементы маслосистемы и системы регулирования. Нижняя часть
корпуса переднего блока отлита заодно со всасывающим патрубком корпуса
компрессора. Главный масляный насос центробежного типа установлен на роторе
турбокомпрессора в блоке переднего подшипника и служит для обеспечения смазки
агрегата и работы системы регулирования.
Валоповоротное устройство установлено на крышке подшипника переднего
блока и предназначено для медленного проворачивания (с частотой вращения 12
об/мин) ротора турбокомпрессора. Валоповоротное устройство представляет собой
двухступенчатый редуктор с приводом от электродвигателя переменного тока.
Турбодетандер предназначен для запуска агрегата, т. е. для раскручивания
ротора турбокомпрессора до частоты вращения, соответствующей точке
"самоходности" ГТУ. Турбодетандер представляет собой двухступенчатую
парциальную расширительную турбину, рабочим телом которой является природный
газ из пускового коллектора с давлением 1,47 МПа.
Ротор турбокомпрессора выполнен составным из барабана, пробки и диска.
Пробка запрессована в расточку барабана со стороны входа воздуха в компрессор и
зафиксирована четырьмя радиальными штифтами. Диск турбины насажен на другой
конец вала. Для обеспечения надежности соединения с валом применена втулка,
устанавливаемая в отверстие бочки и имеющая выступ, на который насажен диск. На
бочке ротора имеется 10 канавок зубчатого профиля для установки рабочих лопаток
компрессора. На ободе диска выполнены пазы елочной формы для установки рабочих
лопаток турбины высокого давления. Ротор размещен в двух подшипниках скольжения
- опорном и опорно-упорном.
Ротор силовой турбины также выполнен составным из вала с насаженным на
него диском. Утолщение в центральной части вала служит противовесом консольного
диска. Ротор размещен в двух подшипниках скольжения - опорном и опорно-упорном.
Заодно целое с валом изготовлено колесо центробежного насоса-импеллера, напор
которого служит импульсом регулятору скорости в системе регулирования ГТУ. Для
передачи крутящего момента от ротора силовой турбины к ротору нагнетателя
служит зубчатая муфта, состоящая из двух зубчатых втулок, промежуточного вала и
двух обойм. Промежуточный вал между подшипниками силового ротора и подшипника
нагнетателя закрыт кожухом.
Фундаментная рама является основанием для турбоблока и одновременно
резервуаром (маслобаком) для масляной системы ГПА. Турбину и компрессор
устанавливают при помощи лап на стойках рамы-маслобака. Раму прикрепляют к
фундаменту специальными стяжками через сквозные отверстия в площадках рамы.
Раму выставляют на фундаменте при помощи клиновых прокладок, устанавливаемых между
опорными поверхностями низа рамы и металлическими площадками, выполненными на
фундаменте.
Внутренняя полость рамы, служащая масляным баком, разделена перегородками
на отсеки грязного и чистого масла, между которыми установлены три сдвоенных
сетчатых фильтра. Масло, сливаемое из подшипников и системы регулирования,
попадает в грязный отсек, в котором на пути масла установлены две
воздухоотделительные камеры. Из чистого отсека масло, прошедшее через фильтры,
забирается насосами. Чтобы предотвратить попадание масляных паров в машинный
зал, их отсасывает воздушный эжектор из рамы-маслобака и всех картеров
подшипников в общий коллектор и гидрозатвор, где масло конденсируется и
возвращается в раму-маслобак.
Выносная камера сгорания ГТК-10 (рисунок 2) состоит из следующих основных
элементов: корпуса камеры с крышкой, горелочного устройства, фронтового
устройства, вихревого смесителя.
Рисунок 2 - Камера сгорания газотурбинной установки типа ГТК-10
- воспламенитель дежурной горелки; 2- основная горелка; 3- крышка; 4-
фронтовое устройство; 5- огневая часть; 6- корпус; 7- вихревой смеситель
Корпус камеры и крышка воспринимают внутреннее давление и имеют два
патрубка с фланцами для подвода воздуха от трубопроводов после регенератора. На
торцах корпуса выполнены фланцы для крепления крышки и соединения камеры с
переходным патрубком для подачи продуктов сгорания к турбине. На крышке
закреплены горелки и кольцевой коллектор топливного газа с двумя патрубками.
Горелочное устройство состоит из шести основных горелок, одной дежурной и двух
воспламенителей. Дежурная горелка размещена в центре крышки, объединена с
воспламенителями и через дроссельные шайбы обеспечивает постоянный расход части
топливного газа мимо регулирующего клапана.
Основная горелка состоит из головной части, топливоподающей трубы и
фланца для крепления горелки. Воспламенитель выполнен в виде трубы, разделенной
диаметральной перегородкой на две полости, в одной из которых размещена
газоподводящая трубка, а в другой - электроды свечи зажигания. Фронтовое
устройство предназначено для подачи первичного воздуха в зону горения, смешения
его с топливным газом и стабилизации факела на всех режимах работы. Фронтовое
устройство состоит из семи малых лопаточных венцов (шести по окружности и
одного в центре) и одного большого лопаточного венца, расположенного вокруг
малых. Вихревой смеситель предназначен для смешения продуктов сгорания с
вторичным воздухом и получения равномерного поля температур на выходе камеры
сгорания. Он состоит из шести изогнутых лопастей, направляющих наружные слои
воздуха к центру камеры и, следовательно, перемешивающих вторичный воздух с
продуктами сгорания.
4. РАЗРАБОТКА ТЕХНОЛОГИЧЕСКОЙ СХЕМЫ КС
Типовая технологическая обвязка компрессорного цеха
предназначена для обеспечения приема на станцию транспортируемого по
газопроводу технологического газа, его очистки от механических примесей и
капельной жидкости в специальных пылеуловителях и фильтр-сепараторах,
распределения потоков газа по газоперекачивающим агрегатам с обеспечением их
оптимальной загрузки, возможности охлаждения газа после его компримирования
перед подачей в газопровод, вывода цеха для работы на «стационарное кольцо» при
пуске и остановке, а так же транзитного прохода транспортируемого газа по магистральному
газопроводу, минуя КС. Кроме того, технологическая обвязка компрессорного цеха
должна обеспечивать возможность сброса газа в атмосферу из всех его
технологических газопроводов через специальные свечные краны.
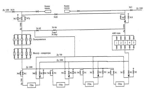
На рисунке 3 представлена принципиальная схема КС с параллельной обвязкой
ГПА для применения полнонапорных нагнетателей. По этой схеме, газ из
магистрального газопровода с условным диаметром 1220 мм (Ду 1200) через
охранный кран № 19 поступает на узел подключения КС к магистральному газопроводу.
Кран № 19 предназначен для автоматического отключения магистрального
газопровода от КС в случае возникновения каких-либо аварийных ситуаций на узле
подключения, в технологической обвязке компрессорной станции или обвязке ГПА.
Рисунок 3 - Принципиальная технологическая схема КС с параллельной
обвязкой ГПА
После крана № 19 газ поступает к входному крану № 7, также расположенному
на узле подключения. Кран № 7 предназначен для автоматического отключения
компрессорной станции от магистрального газопровода. Входной кран № 7 имеет
обводной кран № 7р, который предназначен для заполнения газом всей системы
технологической обвязки компрессорной станции. Только после выравнивания
давления в магистральном газопроводе и технологических коммуникациях станции с
помощью крана № 7р производится открытие крана № 7. Это делается во избежание
газодинамического удара, который может возникнуть при открытии крана № 7, без
предварительного заполнения газом технологических коммуникаций компрессорной
станции.
Сразу за краном № 7 по ходу газа установлен свечной кран № 17. Он служит
для стравливания газа в атмосферу из технологических коммуникаций станции при
производстве на них профилактических работ. Аналогичную роль он выполняет и при
возникновении аварийных ситуаций на КС.
После крана № 7 газ поступает к установке очистки, где размещены
пылеуловители и фильтр-сепараторы. В них он очищается от мехпримесей и влаги.
После очистки газ по трубопроводу Ду 1000 поступает во входной коллектор
компрессорного цеха и распределяется по входным трубопроводам ГПА Ду 700 через
кран № 1 на вход центробежных нагнетателей.
После сжатия в центробежных нагнетателях газ проходит обратный клапан,
выходной кран № 2 и по трубопроводу Ду 1000 поступает на установку охлаждения
газа (АВО газа). После установки охлаждения, газ через выкидной шлейф по
трубопроводу Ду 1200, через выходной кран № 8, поступает в магистральный
газопровод.
Перед краном № 8 устанавливается обратный клапан, предназначенный для
предотвращения обратного потока газа из газопровода. Этот поток газа, если он
возникнет при открытии крана № 8, может привести к обратной раскрутке
центробежного нагнетателя и ротора силовой турбины, что в конечном итоге
приведет к серьезной аварии на КС.
Назначение крана № 8, который находится на узле подключения КС,
аналогично крану № 7. При этом стравливание газа в атмосферу происходит через
свечной кран № 18, который установлен по ходу газа перед краном № 8.
На узле подключения КС между входным и выходным трубопроводом имеется
перемычка Ду 1200 с установленным на ней краном № 20. Назначение этой перемычки
- производить транзитную подачу газа, минуя КС в период ее отключения (закрыты
краны № 7 и 8; открыты свечи № 17 и 18).
На узле подключения КС установлены камеры приема и запуска очистного
устройства магистрального газопровода. Эти камеры необходимы для запуска и
приема очистного устройства, которое проходит по газопроводу и очищает его от
механических примесей, влаги, конденсата. Очистное устройство представляет
собой поршень со щетками или скребками, который движется до следующей КС в
потоке газа, за счет разности давлений - до и после поршня.
На магистральном газопроводе, после КС, установлен и охранный кран № 21,
назначение которого такое же, как и охранного крана № 19.
При эксплуатации КС может возникнуть ситуация, когда давление на выходе
станции может приблизиться к максимальному разрешенному или проектному. Для
ликвидации такого режима работы станции между выходным и входным трубопроводами
устанавливается перемычка 500 с краном №6А. Этот кран также необходим при пуске
или остановке цеха или группы агрегатов при последовательной обвязке. При его
открытии часть газа с выхода поступает на вход, что снижает выходное давление и
увеличивает входное. Снижается и степень сжатия центробежного нагнетателя.
Работа КС с открытым краном №6А называется работой станции на «станционное
кольцо». Параллельно крану №6А врезан кран №6Ар, необходимый для предотвращения
работы ГПА в помпажной зоне нагнетателя. Диаметр этого крана составляет 10 -
15% от сечения трубопровода крана №6А (~150 мм). Для минимально заданной
заводом-изготовителем степени сжатия нагнетателя последовательно за краном №6А
врезается ручной кран №6Д.
Рассмотренная схема технологической обвязки КС позволяет осуществлять
только параллельную работу нескольких работающих ГПА. При таких схемах КС
применяются агрегаты с полнонапорными нагнетателями со степенью сжатия 1,45 -
1,50.
Вся запорная арматура технологических обвязок компрессорной станции имеет
нумерацию согласно оперативной схеме КС, четкие указатели открытия и закрытия,
указатели направления движения газа. Запорная арматура в обвязке КС
подразделяется на 4 основные группы: общестанционные, режимные, агрегатные и
охранные.
Общестанционные краны установлены на узлах подключения станции к
магистральному газопроводу и служат для отключения КС от газопровода и
стравливания газа из технологической обвязки станции. К таким кранам относятся
краны № 7, 8, 17, 18, 20. К общестанционным кранам относятся и краны № 6, 6р,
обеспечивающие работу КС на "Станционное кольцо".
Режимные краны обеспечивают возможность изменения схемы работы ГПА, выбор
групп работающих агрегатов. Нумерация этих кранов на различных КС различна, но,
как правило, эти краны объединены номерами одной десятки и характерны в
основном для обвязок с неполнонапорными ЦБН.
Агрегатные краны относятся непосредственно к обвязке нагнетателя и
обеспечивают его подключение к технологическим трубопроводам станции. К ним
относятся краны № 1, 2, 3, 4,5.
Охранные краны предназначены для автоматического отключения КС от
магистрального газопровода в условиях возникновения каких-либо аварийных
ситуаций на компрессорных станциях. К ним относятся краны № 19 и 21.
К характерным особенностям работы запорной арматуры на магистральных
газопроводах и КС относятся: высокое давление транспортируемого газа (до 7,5
МПа), относительно высокая температура газа на выходе КС (60-70°С), наличие в
составе газа механических примесей и компонентов, вызывающих коррозию, эрозию
металла и т.д.
5.
СПЕЦРАЗДЕЛ
5.1 Установка подготовки газа топливного,
пускового, импульсного и для собственных нужд
На площадках компрессорных станций необходимо предусматривать установку
подготовки газа топливного, пускового, импульсного и для собственных нужд КС и
жилого поселка. На установке проводят:
очистку, подогрев и редуцирование топливного газа в соответствии с
требованиями заводов-изготовителей агрегатов;
очистку и редуцирование пускового газа в соответствии с требованиями
заводов-изготовителей агрегатов;
очистку и осушку импульсного газа;
очистку и редуцирование газа для собственных нужд компрессорной станции и
жилого поселка;
измерение расхода газа.
Отбор газа на установку подготовки предусматривается:
после установки очистки газа (основной отбор);
из нагнетательных шлейфов компрессорного цеха (в зимний период).
В технологической схеме установки подготовки газа следует
предусматривать:
подогрев топливного газа до плюс 25 °С, редуцирование его до рабочего
давления в соответствии с техническими условиями заводов-изготовителей
газоперекачивающих агрегатов и поддержание этого давления с точностью до ± 0,05
МПа;
измерение и редуцирование топливного газа котельной, резервной
электростанции и подогревателей газа;
осушку импульсного газа до точки росы минус 55 °С (при рабочем давлении);
хозрасчетное измерение и учет суммарного расхода топливного, пускового и
импульсного газа с коррекцией по температуре и давлению;
выдачу результатов измерения расхода на диспетчерский пункт КС.
Блоки редуцирования следует проектировать в соответствии с требованиями
СНиП 2.04.08-87*. Топливный газ после установки подготовки должен
соответствовать требованиям ГОСТ 21199 - 82.
Система подогрева топливного газа должна включать не менее двух
подогревателей. При отключении одного из подогревателей оставшиеся в работе
должны обеспечивать не менее 70 % номинальной тепловой производительности
системы.
В системе редуцирования давления пускового и топливного газа необходимо
предусматривать:
100 %-ный резерв регуляторов давления;
автоматическое переключение рабочей и резервной линий;
обвод регуляторов давления.
Система подготовки импульсного газа должна включать: два ресивера, один
из которых предназначается для узла подключения КС; два адсорбера; печь газа
регенерации адсорбента. Вместимость ресиверов импульсного газа следует
рассчитывать из условия обеспечения перестановки всех кранов компрессорной
станции при двух последовательных аварийных остановках станции.
Необходимо предусматривать автоматическое измерение влагосодержания
импульсного газа с помощью регистрирующего влагомера.
Объем адсорбента следует рассчитывать на следующие условия:
число аварийных остановок компрессорной станции - два в год;
число пусков и остановок каждого газоперекачивающего агрегата - 20 в год;
время заполнения ресиверов - не менее 15 мин;
периодичность регенерации адсорбента - 2 - 3 раза в год.
Система подготовки импульсного газа должна иметь два адсорбера, в одном
из которых происходит осушка газа, в другом - регенерация (либо он находится в
резерве). Регенерацию адсорбента необходимо производить осушенным природным
газом, подогретым в печи газа регенерации.
Следует предусматривать контрольное (технологическое) измерение расхода
топливного газа по каждому газоперекачивающему агрегату. Измерительные
диафрагмы необходимо устанавливать на линиях после смешивания потоков газа,
идущих от блока редуцирования и от уплотнения нагнетателей.
Цеховые коллекторы топливного, пускового и импульсного газа должны иметь
продувочные и дренажные свечи.
В качестве примера рассмотрим блок подготовки топливного, пускового и
импульсного газа (БТПГ), предназначенного для снабжения агрегатов ГТН-6
компрессорной станции "Кармаскалинская" топливным газом давлением
1,4-1,5 МПа, пусковым газом давлением 1,0 МПа и импульсным газом для работы
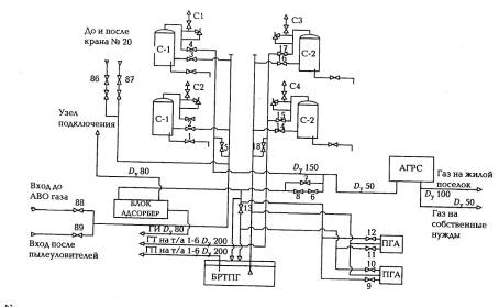
кранов обвязки ГПА и коллекторов технологического газа (рисунок 4).
Рисунок 4 - Схема блока подготовки топливного, пускового и импульсного
газа КС «Кармаскалинская»
Система топливного и пускового газа предназначена для подачи газа с
требуемым давлением и в необходимом количестве к газоперекачивающим агрегатам.
Система импульсного газа обеспечивает его подачу к узлам управления и
пневмоцилиндрам для перестановки кранов топливного и пускового газа, а также к
контрольно-измерительным приборам и устройствам автоматического регулирования
ГПА. В качестве топливного, пускового и импульсного газа используется
транспортируемый газ. Отбор газа на установку подготовки топливного, пускового
и импульсного газа производится из всасывающего коллектора после пылеуловителей
или нагнетательных шлейфов компрессорного цеха в зимний период при аварийной
остановке подогревателей топливного газа, Для первоначального запуска ГПА отбор
газа производят из газопровода.
В БТПГ входят:
два сепаратора первой ступени диаметром 800 мм, р = 6,4 МПа;
два подогревателя газа ПГА-10;
два сепаратора второй ступени для топливного газа диаметром 800 мм, р=1,6
МПа;
один блок-бокс редуцирования топливного и пускового газа
ГБКС.030.00.00.000 СПКБ ПНГСМ;
узел регулирования импульсного газа (дросселирование до давления 1,66
МПа);
блок адсорберов 948.351.00.00.00 (Туламашгаз), р = 5,39 МПа;
приборы КИПиА;
фильтры тонкой очистки топливного и пускового газа.
Отбор газа на БТПГ производится из четырех точек:
через кран № 86 из входного коллектора газопровода, до крана № 20;
через кран № 87 из выходного коллектора газопровода, после крана № 20;
через кран № 88 из выходного коллектора, до АВО газа;
через кран № 89 из выходного коллектора, после АВО газа.
Через один из кранов (№ 86; 87; 88; 89) газ поступает сначала в
сепараторы первой ступени, затем (через краны № 4; 8; 9; 12) на автоматический
подогреватель газа ПГА-10, где нагревается до температуры 20 - 50 °С.
Подогретый в подогревателях топливный газ после блока редуцирования с давлением
0,78 - 0,98 МПа подается в коллектор сепараторов второй ступени, а затем через
краны № 14 и 16 в сепараторы С-2 второй ступени. После прохождения сепараторов
второй ступени топливный газ направляется в кол- лектор топливного газа
компрессорного цеха диаметром 400 мм.
Пусковой газ после блока редуцирования с давлением 0,78 - 0,98 МПа
направляется в коллектор пускового газа компрессорного цеха диаметром 200 мм,
Для обеспечения бесперебойной работы пневматических приводов и приборов
импульсный газ предварительно очищают и осушивают. Степень очистки и осушки
импульсного газа должна быть такойкой, чтобы исключалось заедание и обмерзание
рабочих исполни тельных органов при температуре наружного воздуха до 50 °С.
Осушенный импульсный газ направляется:
в коллектор импульсного газа высокого давления (р = 5,5 МПа) для
управления пневмоприводными кранами обвязки компрессорных агрегатов и кранами
узла подключения;
в коллектор импульсного газа низкого давления (предварительно
дросселированный до 1,66 МПа) для управления кранами топливного и пускового
газа.
Регенерация адсорбента осуществляется горячим воздухом, отпираемым от
осевого компрессора газоперекачивающих агрегатов.
В общем случае давление топливного и пускового газа зависит от типа ГПА.
Топливный газ редуцируется для ГТН-6 до 0,9 МПа, для ГТК-10-4 и ГТН-16 - до 1,5
МПа, для ГТН-25 - до 2,45 МПа. 11усковой газ проходит через регуляторы,
снижающие его давление до 0,9 МПа для ГТН-6, до 1,5 МПа - для ГТК-10-4, ГТН-16
и до 2,5 МПа - для ГТН-25.
Схема подачи топливного и пускового газа к газотурбинным установкам
показана на рисунке 5.
Рисунок 5 - Схема подачи топливного и пускового к газотурбинным
установкам
Топливный газ поступает из коллектора в камеру сгорания через кран №
12бис, расходомерную диафрагму, кран № 12, стопорный (СК) и регулирующий (РК)
клапаны. Краны № 14 и 15 используются для запальной и дежурной горелки в период
пуска агрегата.
Пусковой газ из системы редуцирования, где снижается его давление до
1,0-1,5 МПа, поступает через краны № 11 и 13 на вход м турбодетандер, где
расширяется (давление снижается до атмосферного) и совершает полезную работу,
идущую на раскрутку I некого компрессора и турбины высокого давления.
Системы пускового, топливного и импульсного газа на КС могут- различаться
не только уровнем давлений, но и конструктивно. В последние годы широкое
применение нашли блочные установки. 15 качестве примера можно привести блок
топливного и пускового газа БТПГ6/75.
Блок БТПГ 6/75 предназначен для эксплуатации в условиях умеренного и
холодного климата при температуре окружающего воздуха от - 55 до + 50 °С.
Технические данные
Давление газа на входе, МПа.....................................................
3,5 - 7,5
Количество выходов...................два (для топливного и пускового
газа)
Давление топливного газа на выходе,
МПа..........................................2,5
Давление пускового газа на выходе,
МПа............................................2,5
Пропускная способность линии пускового газа
в нормальных условиях по ГОСТ 2939 - 63, м3/ч...........................
18000
Пропускная способность линии топливного газа
в нормальных условиях по ГОСТ 2939 - 63, м3/ч...........................
35000
Блок БТПГ состоит из следующих основных частей: подогревателя газа; блока
редуцирования; двух датчиков замера расхода газа.
Блок БТПГ работает следующим образом:
Газ высокого давления (3,5 - 7,5 МПа) проходит через расходомерную
диафрагму, соединенную трубками с блоком датчиков замера расхода газа, в
котором установлен сильфонный дифманометр ДСС-734, производящий замер расхода
газа, поступающего на вход БТПГ.
Температуру газа на входе замеряют термосопротивлением ТСМ-50711.После
диафрагмы расходомерный газ распределяется на два потока: часть газа поступает
в подогреватель, откуда подогретый газ поступает на вход линии топливного газа
блока редуцирования, а часть газа поступает непосредственно на вход линии пускового
газа блока редуцирования.
Узел редуцирования топливного газа состоит из двух редуцирующих ниток:
верхней и нижней. Редуцирующие нитки равноценны как по составляющему их
оборудованию, так и по пропускной способности.
Между фильтрами и регуляторами давления газа установлены компенсаторы для
облегчения разборки при проведении ремонтных или профилактических работ на
регуляторах.
Очищенный газ высокого давления поступает на вход регуляторов давления
газа РДУ 80-01, в которых высокое давление газа рвх = 3,5 - 7,5 МПа снижается
до рвых = 2,5 МПа. Регуляторы давления (РД) на каждой редуцирующей нитке
настроены на одно и то же выходное давление.
После блока редуцирования топливный газ проходит через расходомерную
диафрагму, связанную трубками с блоком датчиков замера расхода газа.
Узел редуцирования пускового газа состоит из двух ниток: верхней и
нижней. На входе нижней нитки установлен кран с пневмоприводом, управление
которым осуществляется с помощью блока БУЭП35 вручную по месту или
дистанционно. Перед редуцированием газ очищается от механических примесей на
фильтре, откуда газ поступает на вход регулятора давления РДУ 80-01 32, где
высокое давление газа рвх = 3,5 -7,5 МПа снижается до рвых = 2,5 МПа. На входе
верхней редуцирующей нитки установлен кран с ручным приводом и регулятор
давления РДУ 80-01 31. На обеих нитках перед РД установлены компенсаторы для
облегчения разборки при проведении ревизии и ремонтных работ.
Защита линий пускового и топливного газа от повышения давления
осуществляется предохранительными клапанами.
Контроль за режимом работы основных узлов осуществляется с помощью
датчиков, расположенных в блоках электроконтактных манометров, манометрических
термометров и термометров сопротивления.
Систему подготовки импульсного газа также можно выполнять блочно в виде
узла подготовки импульсного газа (УПИГ).
В состав УПИГ входит следующее оборудование: фильтры-сепараторы,
адсорберы, огневой подогреватель, газовый ресивер, запорная арматура,
контрольно-измерительные приборы, трубопроводы и гибкие резиновые шланги.
Фильтры-сепараторы предназначены для очистки импульсного газа от
механических примесей и влаги. Адсорберы предназначены для осушки импульсного
газа путем поглощения воды, находящейся в газе. Поглощение осуществляется
адсорбентом, находящимся в полости адсорберов. На компрессорной станции для
осушки импульсного газа в качестве адсорбента широко применяется
гранулированный мелкопористый силикагель марки КСМ (ГОСТ 3956 - 54), который в
зависимости от относительной влажности газа поглощает водяных паров при
температуре 20 °С от 9 до 35 % от собственного веса, что способствует понижению
точки росы газа на 50 - 60 °С. Из-за недостаточной степени очистки и осушки
импульсного газа возможно заедание и обмерзание исполнительных органов при
низких температурах наружного воздуха.
Как правило, из двух адсорберов в рабочем режиме поглощения влаги
находится один. Другой адсорбер находится в режиме восстановления адсорбента.
Восстановление осуществляется путем пропускания части подогретого до высокой
температуры газа (около 300 °С) через увлажненный адсорбент. Дело в том, что
при достижении предельной влажности, силикагель теряет способность дальнейшего
поглощения влаги и для возобновления его адсорбционных свойств через него
пропускают горячий теплоноситель. Осушку силикагеля проводят один раз в 2 - 3
месяца. Для подогрева газа используют огневой подогреватель. Цикл регенерации
силикагеля длится примерно 4-6 ч, цикл охлаждения - 2-4 ч.
При эксплуатации УПИГ с помощью контрольноизмерительных приборов
осуществляется контроль за давлением и температурой газа, его расходом и точкой
росы, которая должна составлять - 25 °С.
После УПИГ газ поступает ко всем общестанционным кранам на узел
подключения, режимным и агрегатным кранам, а также на низкую сторону к кранам
топливного и пускового газа.
5.2 Регуляторы давления газа
Управление гидравлическим режимом работы системы газораспределения
осуществляют с помощью регуляторов давления, которые автоматически поддерживают
постоянное давление в точке отбора импульса независимо от интенсивности
потребления газа. При регулировании давления происходит снижение начального -
более высокого - давления на конечное - более низкое. Это достигается
автоматическим изменением степени открытия дросселирующего органа регулятора,
вследствие чего автоматически изменяется гидравлическое сопротивление
проходящему потоку газа.
В
зависимости от поддерживаемого давления (расположения контролируемой точки в
газопроводе) регуляторы давления разделяют на регуляторы «до себя» и «после
себя». В ГРП (ГРУ <#"606929.files/image117.gif">
, высотой
подъема клапанаh и площади седла клапана:

Для
примера: регулятор с диаметром седла 4 мм имеет полный ход клапана 1 мм.
Практически высоту подъема плоского тарельчатого клапана принимают (0,3+0,4)
.
Дальнейший подъем клапана не сказывается на его пропускной способности. При
изменении формы затвора ход клапана можно увеличить. Двух седельные затворы при
тех же условиях обладают значительно большей пропускной способностью вследствие
большей суммарной площади проходного сечения седел. Эти клапаны являются
разгруженными, однако при отсутствии расхода газа они не обеспечивают
герметичности, что объясняется трудностью посадки затвора одновременно по двум
плоскостям. Двух седельные регулирующие органы используют чаще в регуляторах с
постоянным источником энергии. Заслоночные затворы применяют обычно в ГРП с
большими расходами газа (например, ТЭЦ) и используют как регулирующий орган
регуляторов непрямого действия с посторонним источником энергии.
В
регуляторах давления газа, устанавливаемых в ГРП, в качестве чувствительного
элемента и одновременно привода в основном используют мембраны (плоские и
гофрированные).
Плоская
мембрана представляет собой круглую плоскую пластину из эластичного материала.
Мембрана
зажимается между фланцами верхней и нижней мембранных крышек. Центральная часть
мембраны с обеих сторон зажата между двумя круглыми металлическими дисками
(обжимными). Жесткие диски увеличивают перестановочную силу и уменьшают
неравномерность регулирования. Перестановочное усилие, развиваемое мембраной,
зависит от величины так называемой эффективной площади мембраны. Она изменяется
в зависимости от прогиба мембраны.
Перестановочное
усилие определяется по формуле:

,
где
c - коэффициент активности мембраны; F -
площадь мембраны (в проекции на плоскость ее заделки); P - избыточное
давление рабочей среды; cF - активная площадь мембраны. Зависимость коэффициента
активности мембраны c от величины ее относительного прогиба Дh.
В
связи с тем, что при различном прогибе мембраны значения коэффициента
активности изменяются, изменяется и перестановочное усилие мембраны. Это
создает неравномерность регулирования. Поэтому для плоской мембраны с двумя
обжимными металлическими дисками (диаметром 0,8 диаметра мембраны) оптимальным
является участок на кривой при изменении Дh от 0 до 1/2, соответственно,
коэффициент активности c изменяется в пределах от 1 до 2/3 (~ от 100 до 67 %).
Диаметр
обжимных дисков принято выбирать не более 0,8 диаметра мембраны для обеспечения
необходимой подвижности мембранного привода. Основным требованием при подборе
регулятора давления является обеспечение устойчивости его работы на всех
возможных режимах, что проще всего добиться правильным выбором регулятора для
того или иного объекта. Для тупикового газопровода (с отбором газа в конце
газопровода) следует применять статические регуляторы прямого действия. В
случае больших расходов газа - непрямого действия. Для кольцевых и
разветвленных газовых сетей, учитывая их способность к самовыравниванию, в
принципе можно использовать любые типы регуляторов, но так как эти сети имеют обычно
большие расчетные расходы, то лучше применять астатические регуляторы непрямого
действия (с пилотом). Эти регуляторы позволяют более точно поддерживать
давление после себя.
Неравномерность
регулирования у статических регуляторов давления прямого действия ±(0-20) %,
статических непрямого действия (с пилотом) и астатических ±(5-10) %.
При
подключении к сетям высокого давления, давление в которых имеет значительные
колебания, а также учитывая практически существующие конструкции регуляторов,
может оказаться, что одноступенчатое снижение давления не применимо. В этом
случае следует либо выбирать двухступенчатый регулятор давления, либо применить
двухступенчатое редуцирование, при котором первым регулятором давление
снижается до промежуточного значения, а вторым - до необходимого с высокой
точностью.
При
выборе регулятора давления необходимо учитывать явления, связанные с шумом
работающего регулятора. Возникновение шумов вызвано газодинамическими
колебательными процессами у дроссельных органов и стенок регуляторов. При
совпадении частоты колебаний амплитуда колебаний клапана может резко возрасти,
что приведет к износу и разрушению клапана, сильной вибрации регулятора.
Наиболее эффективный метод снижения амплитуд колебаний - установка гасителя
шума (перфорированного патрубка) сразу после редуцирования газа. Пропускную
способность регуляторов давления обычно определяют по аналогии с истечением
газа через суживающееся сопло или сопло постоянного сечения, считая процесс
адиабатическим. При постоянном входном давлении Р1 скорость истечения и
объемный расход растут с уменьшением противодавления (выходного давления) Р2
только до достижения отношения Р2/Р1 определенного для данного газа значения,
которое называют критическим (Р2 и Р1 - абсолютные давления).
Для
природного газа с показателем адиабаты К=1,31 критическое отношение можно
принимать равным 0,5. То есть в регуляторе давления, который поддерживает
низкое давление 2000 Па (200 мм вод. ст.), при входном избыточном давлении в
0,1 МПа и более наступает критический режим истечения газа. При этом скорость
газа, проходящего через седло, постоянна и равна скорости звука в данном газе,
достигнутой при критическом отношении давлений.
Объемный
расход газа при рабочих условиях остается неизменным и при дальнейшем понижении
давления Р2 и повышении Р1. Однако при этом изменяется массовый расход газа, а
также объемный расход, приведенный к нормальным физическим условиям.
При
до критическом режиме истечения пропускная способность определяется
квадратичной зависимостью разности входного и выходного давлений (перепада
давления) ДР=Р1-Р2. При критическом и сверхкритическом режимах пропускная
способность зависит только от входного давления и прямо пропорциональна ему.
Выбор регулятора производят из условия, что его пропускная способность должна
быть на 15-20 % больше максимального часового расхода газа потребителем. Это
означает, что регулятор будет загружен при максимальном газопотреблении не
более, чем на 80 %, а при минимальном газопотреблении - не менее, чем на 10 %.
Если это условие не будет выполняться, то при максимальном отборе газа
регулирующий орган будет полностью открыт и не сможет выполнять функции
регулирования. Регулирование обеспечивается только тогда, когда регулирующий
орган и исполнительный механизм находятся в подвижном состоянии. При снижении
отбора газа ниже предельного могут возникнуть автоколебания (пульсации,
вибрации) клапана.
В
системах газораспределения наиболее распространены следующие типы регуляторов
давления (по виду нагрузки): регуляторы прямого действия с пружинной и
рычажно-пружинной нагрузками и регуляторы непрямого действия с командным
прибором (пилотом).
К
первой группе относятся регуляторы РДГД-20 и РДСК-50 в которых усилие рабочей
мембраны передается непосредственно на клапан, находящийся на штоке и
закрепленный в центре мембраны. В целях разгрузки клапана от влияния входного
давления используется дополнительная разгрузочная мембрана.
Вторая
группа - это беспилотные регуляторы типа РД-32М, РД-50М, РДНК-400. Для них
характерно наличие рычажной системы передачи усилия от рабочей мембраны на
регулирующий клапан. За счет различия в длинах плеч коленчатого рычага
уменьшается сила воздействия входного давления на клапан регулятора. Усилие
мембранного привода на клапан при этом увеличивается, что обеспечивает более
высокое уплотняющее усилие на клапан. Для РД-32М соотношение плеч рычага равно
6. У беспилотных регуляторов первой и второй групп органом настройки
регулируемого выходного давления является настоечная пружина, воздействующая на
рабочую мембрану.
Третья
группа регуляторов - устройства типа РДУК2, РДБК1, РДГ. Их характерная
особенность - наличие регулятора управления (пилота). Процесс регулирования
определяется взаимодействием выходного давления на рабочую мембрану, силы так
называемого управляющего давления, подаваемого из пилота в под мембранное
пространство, грузом подвижных частей, силами трений в соединениях.
Газ
входного давления поступает в пилот. Пилот поддерживает постоянное давление под
рабочей мембраной регулятора. По импульсному трубопроводу газ выходного
давления поступает на мембрану. Через дроссель избыток газа после пилота
постоянно сбрасывается.
Настройка
регуляторов на требуемое выходное давление производится изменением усилия
сжатия регулировочной пружины пилота, а также открытием или закрытием
проходного сечения регулируемых дросселей . Под мембранная полость пилота
сообщена с атмосферой.
Если
Рвых уменьшилось, то уменьшится и давление над рабочей мембраной, клапан вместе
с мембраной поднимается, расход газа через регулятор увеличивается, Pвых
возрастает вновь до заданного значения. Пилотные регуляторы имеют достаточно
широкие интервалы входного и выходного давления и пропускной способности. Эти
факторы обеспечиваются воздействием на рабочую мембрану регулятора под
мембранного управляющего давления, создаваемого пилотом, вместо
непосредственного воздействия настоечной пружины на мембрану.
По
сравнению с пружинными регуляторами прямого действия, пилотные имеют следующие
преимущества:
•
возможность обеспечения достаточно широких интервалов выходного регулируемого
давления 0,01-0,06 МПа и 0,06-0,6 МПа;
•
обеспечение достаточно большой пропускной способности;
•
возможность в ряде случаев перенастройки регуляторов на рабочие параметры без
прекращения подачи газа к потребителям.
Заключение
В данном курсовом проекте был произведен технологический расчёт
магистрального газопровода и расчет режимов работы компрессорной станции.
Плановый объем транспортируемого газа Qг=21,7 млрд. м3/год; протяженность
газопровода составляет L=805 км. В ходе расчета были получены следующие
результаты:
. Рабочее давление в газопроводе Р=7,35 МПа. Для строительства
газопровода приняли трубы Dн=1200 мм с толщиной стенки трубы д=15 мм ХТЗ,
изготовленные по ТУ 14-3р-04-94 из стали 12ГСБ.
. Суточная производительность компрессорной станции Q=62,85 млн.м3/сут.
3. Расчетное число компрессорных станций n=7, расстояние между ними l=115 км.
4. На компрессорных станциях газопровода предполагается установка
газоперекачивающих агрегатов Коберра-182. Плотность газа при условиях всасывания свс=40,8
кг/м3; требуемое
количество нагнетателей mн=3; производительность нагнетателя при
условиях всасывания Qвс=259,949
м3/мин; расчетная частота вращения вала нагнетателя n=4261 об/мин; мощность на муфте привода Ne=9851 кВт; температура газа на выходе
ЦН Тнаг=315,9 К.
Список использованной литературы
1. Козаченко А.Н., Никишин В.И., Поршаков Б.П.
Энергетика трубопроводного транспорта газа. - М.: ГУП Издательство «Нефть и
газ» РГУ нефти и газа им. Губкина, 2001. - 400 с.
2. Мустафин Ф.М., Коновалов Н.И., Гильметдинов Р.Ф. и
др. Машины и оборудование газонефтепроводов. - Уфа: Монография, 2002.- 384 с.
. Проектирование и эксплуатация насосных и
компрессорных станций: Учебник для вузов / Шаммазов А.М., Александров В.Н.,
Гольянов А.И. и др. - М.: ООО «Недра - Бизнесцентр», 2003. - 404 с.
. Ульшина К.Ф. Технологический расчет магистрального
газопровода. Методические указания по выполнению курсового проекта для
студентов, обучающихся по специальности 130501.65 «Проектирование, сооружение и
эксплуатация газонефтепроводов и газонефтехранилищ», очной и заочной форм
обучения. - Альметьевск: Альметьевский государственный нефтяной институт, 2009.
- 68 с.
. СНиП 2.05.06-85*. Магистральные трубопроводы //
Госстрой России. М.: ГУП ЦПП, 2001. - 60 с.
6. СНиП 2.01.01-82*. Строительная
климатология и геофизика // Госстрой России. М.: ГУП ЦПП, 1984. - 184 с.
7. СТО Газпром 2 - 3.5.051 - 2006. Нормы
технологического проектирования магистральных газопроводов. - М.: ООО «ИРЦ»
Газпром, 2006. - 192 с.
8. ГОСТ 30319.1-96. Газ природный.
Методы расчета физических свойств. Определение физических свойств природного
газа, его компонентов и продуктов его переработки.