Тепловой расчет парового котла
МИНИСТЕРСТВО
ОБРАЗОВАНИЯ И НАУКИ РОССИЙСКОЙ ФЕДЕРАЦИИ
Федеральное
государственное бюджетное образовательное учреждение
высшего
профессионального образования
«НАЦИОНАЛЬНЫЙ
ИССЛЕДОВАТЕЛЬСКИЙ ТОМСКИЙ ПОЛИТЕХНИЧЕСКИЙ УНИВЕРСИТЕТ»
Институт -
Энергетический
Направление
(специальность) - Автоматизация технологических процессов и производств (в
теплоэнергетике)
Кафедра -
Автоматизации теплоэнергетических процессов
ТЕПЛОВОЙ
РАСЧЕТ ПАРОВОГО КОТЛА
Е-220-10-510
(БКЗ-220-100-4С)
Пояснительная
записка к курсовому проекту
по дисциплине
«Технологические процессы и производства ТЭС и АЭС»
ФЮРА
311.232.001 ПЗ
Выполнил: ____________ Гартунг М.Г.
студент гр. 6291
Руководитель, ____________ Визгавлюст Н.В.
ассистент кафедры ПГС
Томск - 2012
Введение
Тепловой расчет котла выполняется поверочным методом, целью которого
является оценка возможности работы и эффективности заданного котла в целом и
отдельных его компонентов при переводе на сжигание нового топлива.
Тепловой расчет котла включает ряд этапов: расчеты с топливом, расчет
объемов и тепловосприятии воздуха и продуктов сгорания, определение расхода
топлива, расчет топки, распределение тепловосприятии по элементам конвективной
шахты, водяного экономайзера или воздухоподогревателя. Выполнение поверочного
теплового расчета производится на основании исходных данных, представленных в
задании.
Расчетными теплотехническими характеристиками топлива являются
элементарный состав рабочей массы (СT, HT,
, NT, ОT),
зольность АТ и влажность WT рабочего топлива, низшая
теплота сгорания
, выход летучих на горючую массу Vdaf и тепловые характеристики золы (tA, tB, tC).
. Расчет
элементарного состава и теплотехнических характеристик топлива, объемов и
энтальпий воздуха и продуктов сгорания
Необходимо провести анализ характеристик топлива по заданию, на
соответствие с табличными характеристиками, т.к. возможны отклонения зольности
и влажности топлив от табличных значений. Несоответствие влажности и зольности
сжигаемого топлива (WТ, AТ) средним табличным характеристикам (
,
), приводимым для отдельного
месторождения в справочной таблице, на практике встречается повсеместно. Это
обусловлено колебаниями влажности и зольности добываемых топлив, которые
зависят от времени года и технологии добычи, а также условиями транспортировки
и хранения. В этом случае изменяется теплота сгорания топлива и связанные с ней
объемы и энтальпии образующихся газов и расход воздуха на сжигание топлива. Эти
характеристики необходимо рассчитать.
1.1Расчетные
характеристики топлива
Сжигаемое топливо: Каменный уголь, месторождение “Донецкий бассейн”,
марка Д [№ 1].
Средний (табличный) состав топлива для рабочего
состояния [1,табл.I],
;
;
;
;
;
;
.
Низшая
теплота сгорания [1,табл.I]
.
Выход летучих для сухого беззольного состояния (горючая
масса) [1,табл.I]
.
Температурные
характеристики золы [1,табл.I]
)
температура начала деформации 
,
)
температура начала размягчения
=
,
)
температура начала жидкоплавкого состояния
=
,
)
температура нормального жидкого шлакоудаления
.
Влажность
гигроскопическая [1,табл.I]
.
Приведенная
влажность и зольность [1,табл.I]
;
.
Значения
влажности и зольности топлива (по заданию).
Wр =13,5 %;
Aр = 28 %.
Коэффициент
пересчета состава топлива на массу с заданной влажностью и зольностью
=(100-41,5)/(100-40,8)=0,988
Расчетный
состав рабочей массы топлива
r(о+р)=kSr(о+р)т =
0,988·2,9 = 2,866 %;
Сr=kСrт = 0,988·44,1= 43,579 %;
Нr=kHrт =
0,988·3,3 = 3,261%;
Оr=kOrт =
0,988·8 = 7,905%;
Nr=kNrт=0,988·0,9=0,889
%.
Проверка
правильности перерасчета состава топлива
r+Wr+Sr(o+p)+Cr+Nr+Hr+Or=100%.
+13,5+2,866+43,579+0,889+3,261+7,905=100%.
Низшая
теплота сгорания для рабочего состояния топлива при заданной влажности и
зольности
1.2 Расчет
объемов воздуха и продуктов сгорания
Объемы воздуха и продуктов сгорания при сжигании твердых и жидких топлив
в атмосферном воздухе определяется по приведенным ниже формулам. Теоретическое
количество сухого воздуха, необходимого для полного сгорания топлива
(коэффициент избытка воздуха α=1).
Теоретическое количество сухого воздуха, необходимого для полного
сгорания топлива (α=1)
, [2,
с.5]
.
Теоретические
объемы продуктов сгорания, полученные при полном сгорании топлива с
теоретически необходимым количеством воздуха (α=1):
1)
азота [2, с.5]
;
) трехатомных газов [2, с.5]
;
) водяных паров [2, с.5]
,
.
Коэффициент
избытка воздуха на выходе из топки
принимаем
. [2, приложение 2]
Объемы
продуктов сгорания при избытке воздуха α>1
1)
водяных паров [2, с.5]
;
)
дымовых газов [2, с.5]
;
)
объемные доли трехатомных газов [2, с.5]
;
.
Величины
объемов
и
подсчитываются
раздельно для топки и расположенных за ней поверхностей нагрева по средним
значениям коэффициента избытка воздуха. Результаты этих расчетов представлены в
виде таблицы (приложение А).
Число
колонок таблицы объемов воздуха и продуктов сгорания определяется количеством
поверхностей нагрева заданного котла и их компоновкой. Поэтому, прежде чем
приступать к составлению таблицы, указанной в приложении А необходимо
определить по чертежам и эскизам заданного котла число поверхностей нагрева.
Для традиционных компоновок поверхностей нагрева котлов средней мощности за
топкой расположены следующие поверхности нагрева: ширмы (ШПП), конвективный
пароперегреватель 2-ой и 1-ой ступеней (КПП1 и КПП2),
водяной экономайзер 2-ой ступени (ЭК2), воздухоподогреватель 2-ой
ступени (ВП2), водяной экономайзер 1 ступени (ЭК1) и
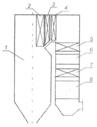
воздухоподогреватель 1 ступени (ВП1) (рисунок 1).
Рисунок
1 - Схема компоновки поверхностей нагрева котла:
-
топка, 2 -ШПП, 3 - КПП2, 4 - КПП1, 5 - ЭК2, 6
- ВП2, 7 - ЭК1, 8 - ВП1
Концентрация
золы в продуктах сгорания [2, c.6]
,
где
аун - доля золы топлива, уносимой газами,
Gr -
масса продуктов сгорания.
Для
котлов с твердым шлакоудалением
. Масса
продуктов сгорания определяется по формуле
. [2, c.6]
Результаты
этих расчетов сведены в таблицу (приложение А).
После
определения компоновки поверхностей нагрева по газоходам котла, необходимо
принять величину коэффициента избытка воздуха на выходе из топки
и присосы воздуха в газоходах
, где располагаются поверхности нагрева котла.
Присосы
воздуха в зависимости от принятой компоновки поверхностей нагрева по отдельным
газоходам (
), [2, приложение 2]
)
присосы воздуха в газоход ширмового пароперегревателя
;
2) присосы воздуха в газоход конвективного пароперегревателя
,
где
n - число ступеней;
)
присосы воздуха в газоход второй ступени водяного экономайзера
;
4) присосы воздуха в газоход второй ступени воздухоподогревателя
;
5) присосы воздуха в газоход первой ступени водяного экономайзера
;
6) присосы воздуха в газоход первой ступени воздухоподогревателя
.
Коэффициент избытка воздуха за i-ой поверхностью по ходу движения дымовых газов после топки определится
как
[2, с.7]
где
- присосы воздуха в i-ой поверхности нагрева.
1) избыток воздуха за ширмовым пароперегревателем
;
) избыток воздуха за конвективным пароперегревателем 2-ой ступени
) избыток воздуха за конвективным пароперегревателем 1-ой ступени
;
) избыток воздуха за второй ступенью водяного экономайзера
) избыток воздуха за второй ступенью воздухоподогревателя
) избыток воздуха за первой ступенью водяного экономайзера
) избыток воздуха за первой ступенью воздухоподогревателя
.
Средний коэффициент избытка воздуха в газоходе каждой поверхности нагрева
[2, с.8]
где
.
1) в газоходе ширмового пароперегревателя
) в газоходе конвективного пароперегревателя (2 ступень)
) в газоходе конвективного пароперегревателя (1 ступень)
) в газоходе второй ступени водяного экономайзера
) в газоходе второй ступени воздухоподогревателя
) в газоходе первой ступени водяного экономайзера
) в газоходе первой ступени воздухоподогревателя
[2, с.12]
1.3 Энтальпия
воздуха и продуктов сгорания
Энтальпия теоретически необходимого количества воздуха
[2, с.8]
Энтальпия
теоретического объема дымовых газов
[2, с.8]
Энтальпия
дымовых газов
[2, с.8]
Энтальпия золы в дымовых газах
[2, с.8]
Значения
энтальпий воздуха
, углекислого газа
, азота
, водяных паров
и золы
, необходимые для расчета
,
,
берутся по нормам [1] или из таблицы [2, приложение
3].
Поскольку энтальпии воздуха и продуктов сгорания определяются
температурами, то они подсчитываются при различных температурах в диапазоне 100
до 2500 0С, а результаты оформляются в виде таблицы, которая
приведена в приложении Б.
1.4 Тепловой
баланс котла
Составление теплового баланса котла заключается в установлении равенства
между поступившим в котел количеством тепла и суммой полезно использованного
тепла Q1, и тепловых потерь Q2, Q3, Q4, Q5, Q6. На основании теплового баланса вычисляются КПД и
необходимый расход топлива.
Тепловой баланс составляется применительно к установившемуся тепловому
состоянию котла на 1 кг твердого (жидкого) или 1 м3 газообразного
топлива при 0 °С и 101,3 кПа.
Общее уравнение теплового баланса имеет вид
. [2,
с.9]
топка сгорание тепловой баланс
Температура
рабочего топлива
Темлоемкость
рабочего топлива
[2, с.9]
где
- теплоемкость сухой массы топлива,
[2, приложение 5];
[2, с.9]
Физическое
тепло топлива
[2, с.9]
Тепло,
вносимое воздухом, при его подогреве вне котла
. [2,
с.9]
Тепло,
вносимое в топку паровым форсуночным дутьём
. [2,
с.10]
Располагаемое
тепло рабочей массы топлива
[2, с.10]
Потеря
тепла от механической неполноты сгорания
q4 [2,
приложение 6]
Определение
потерь тепла с уходящими газами q2
)
энтальпия уходящих газов при избытке воздуха
и
температуре
(по заданию)
;
(приложение Б)
)
температура холодного воздуха
;
)
энтальпия холодного воздуха
[2, с.10]
)
присосы воздуха в систему пылеприготовления [2, приложение 5]
)
присосы воздуха в топку (для газоплотных экранов)
)
отношение количества воздуха на входе в воздушный тракт к теоретически
необходимому
)
доля газов, отбираемых на сушку топлива
при
сушке воздухом
)
энтальпия газов в месте отбора
при
сушке воздухом
)
потери тепла с уходящими газами
[2, с.11]
Потери
тепла от химической неполноты сгорания q3
для
твердого топлива
.4.10
Потери тепла от наружного охлаждения [2, приложение 5]
.
.4.11
Потери с теплом шлака q6
)
температура золы шлака при ТШУ
)
энтальпия золы шлака [2, приложение 3]
)
доля золы топлива в шлаке
)
потеря с теплом шлака q6
Суммарная
потеря тепла в котле
Коэффициент
полезного действия котла
.5 Определение расхода топлива
Паропроизводительность
. (по
заданию)
Температура
перегретого пара
. (по
заданию)
Давление
перегретого пара
. (по
заданию)
Энтальпия
перегретого пара
(определяется по
и
в таблицах для перегретого пара при докритическом
давлении)
[1, табл.XXV]
Температура
питательной воды
. (по
заданию)
Давление
в барабане
. (по
заданию)
Давление
питательной воды на входе в экономайзер
[2, c.11]
Энтальпия
питательной воды
,
(определяется
по
и
в
таблицах удельных объемов энтальпий воды)
[1, табл.XXIV]
Величина
непрерывной продувки
(по
заданию)
Расход
воды на продувку
[2, c.12]
Энтальпия
продувочной воды
,
(определяется
для состояния кипения по давления в барабане
из
таблиц воды и сухого насыщенного пара на кривой насыщения)
[1, табл.XXIII]
Полное
количество тепла, полезно использованное в котле [2, с.12]
где
- расход питательной воды, подаваемой в котел мимо
регенеративных подогревателей (в курсовом проекте
, т. к. подача воды в котел помимо регенеративных
подогревателей не предусмотрена);
-
энтальпия питательной воды, подаваемой в котел мимо регенеративных
подогревателей (в курсовом проекте
, т.к.
подача воды в котел помимо регенеративных подогревателей не предусмотрена);
-
учитывается только при впрыске в первичный тракт "сторонней" воды с
энтальпией
отличной от
(в
курсовом проекте
, т.к. впрыск не предусмотрен);
-
количество насыщенного пара отданного до перегревателя (в курсовом проекте
, т.к. отбор насыщенного пара до перегревателя не
предусмотрен);
-
расходы пара на входе в промежуточные пароперегреватели с начальной
и конечной
энтальпией
(в курсовом проекте
, т.к. промежуточный перегрев пара не предусмотрен);
-
расходы впрысков в промперегреватели (в курсовом проекте
);
- тепло
воды, подогреваемой в котле и отдаваемой "на сторону" (в курсовом
проекте
, т.к. отпуск воды "на сторону" не
предусмотрен);
- тепло избыточного ("отдаваемого на
сторону") воздуха (в курсовом проекте
, т.к.
отпуск воздуха "на сторону" не предусмотрен).
После принятых упрощений формула определения
полного количества тепла, полезно использованного в котле, принимает вид
,
Расход
топлива, подаваемого в топку
[2, с.13]
Расчётный
расход топлива
[2, с.13]
В
дальнейшем во все формулы для определения объемов и количества тепла
подставляется величина ВР.
. Тепловой расчет топки
.1 Конструктивные характеристики топки
Конструктивными
характеристиками топки являются: поверхность стен топочной камеры
, сечение топки
, её
объём
, эффективная толщина излучающего слоя
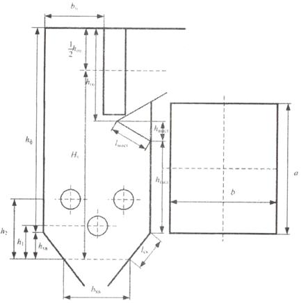
. Для более простого определения необходимо составить эскиз топки в границах активного объёма (по осям
экранных труб) (рисунок 2).
Рисунок
2 - Эскиз топочной камеры: а - глубина топки; b - ширина
топки; bп - ширина
полотка; Hт - высота
топки; bхв -
высота холодной воронки; h1, h2 - уровень расположения осей горелок в ярусе; hтыл - высота тыльного экрана; hф - высота фронтального экрана; lвыст - длина аэродинамического выступа; hвыст - высота аэродинамического выступа; hго - высота газового окна
Все
геометрические размеры топки берём из чертежа заданного котла
Основные
геометрические размеры топки
,
,
,
,
,
,
,
,
,
,
,
,
,
.
Площадь
фронтовой стены
. [3,
с.5]
Площадь
тыльной (задней) стены
[3, с.5]
Площадь
потолка
[3, с.5]
Площадь
холодной воронки
[3, с.5]
Площадь
выходного газового окна
[3, с.5]
Площадь
боковой стены
[3, с.5]
Общая
поверхность стен топочной камеры
, [3,
с.5]
.
Объём топочной камеры
[3, с.5]
Эффективная
толщина излучающего слоя
[3, с.5]
.2 Тепловые характеристики топки
К
тепловым характеристикам топки относят: коэффициент тепловой эффективности
топки
, среднюю суммарную теплоёмкость продуктов сгорания (Vс)ср,
параметр М, учитывающий
влияние на интенсивность теплообмена уровня расположения горелок, критерий
поглощательной способности (критерий Бугера) Bu.
Коэффициент
тепловой эффективности экранов
[3, с.5]
где
χ
- угловой коэффициент экранов; ζ - коэффициент, учитывающий тепловое сопротивление
загрязнения или закрытие изоляцией.
Если
стены топки закрыты экранами с разными значениями коэффициента тепловой
эффективности или экраны покрывают часть поверхности стен, среднее значение
коэффициента эффективности определяется по формуле
[3, с.5]
где
)
Коэффициент тепловой эффективности экранных стен топочной камеры
Где
;
[3,
таблица 1];
)
Коэффициент тепловой эффективности потолка
где
[1, номограмма 1];
[3,
таблица 1];
)
Коэффициент тепловой эффективности газового окна
где
[1, номограмма 1];
[3,
с.6]. При сжигании твердых топлив
,
, тогда
следовательно
Теперь
можем определить среднее значение коэффициента эффективности:
Параметр
М
Параметр
М, учитывающий влияние на интенсивность теплообмена относительного уровня
расположения горелок, степени забалластированности топочных газов и других
факторов определяется по формуле для камерных топок
[1, с.40]
)
Параметр М0 для пылеугольных топок с твердым шлакоудалением при
тангенциальном и встречном расположении горелок -
.
)
Величина хг - величина, характеризующая относительный уровень
расположения горелок в топке
[3, с.8]
где
hг -
средний уровень расположения горелок. При многоярусном расположении горелок
производится усреднение высот по выражению
[3, с.8]
где
n1, n2 - число горелок в первом и втором ярусах; B1, B2 - расход
топлива, подаваемого в горелки каждого яруса; h1, h2 -
уровень расположения осей горелок в ярусе. Расход топлива в горелки определим
по формуле
тогда
.
Теперь
можем определить хг
)
Параметр забалластированности топочных газов
[3, с.8]
где
r - коэффициент рециркуляции (рециркуляция отсутствует,
поэтому r=0);
- объем
газов на выходе из топки;
[3, с.8]
Определяем величину параметра М
Тепло,
вносимое в топку воздухом
, [3,
с.8]
где
- количество воздуха, подаваемого в топку из
воздухоподогревателя, отнесенное к теоретически необходимому для сгорания
топлива;
и
- величины присосов в топке и в пылеприготовительной
системе (при прямом вдувании пыли в топку с молотковыми мельницами
[3, таблица 2]), присосы
воздуха в топку
- для газоплотных с ТШУ [1, стр.
171]);
-энтальпия
теоретически необходимого количества воздуха (принимаем температуру горячего
воздуха tгв=350°C)
(приложение Б);
-
энтальпия присасываемого воздуха;
Полезное
тепловыделение в топке
, [3,
с.9]
По
находим теоретическую температуру горения
(приложение Б)
.
Средняя
суммарная теплоёмкость продуктов сгорания:
, [3,
с.10]
где
- энтальпия продуктов сгорания 1
кг топлива при температуре
, избытке воздуха на выходе из топки
:
, (приложениеБ).
.
Критерий
Бугера
, [3, с.11]
где k - коэффициент поглощения топочной среды, 1/(м МПа),
рассчитывается по температуре и составу газов из топки;
p=0.1МПа- давление в
топочной камере;
s- эффективная толщина
излучающего слоя.
Коэффициент поглощения топочной среды
[3, с.11]
где kг - коэффициент поглощения лучей газовой фазой
продуктов сгорания; k злµзл - коэффициент поглощения частицами золы;
k коксµкокс - коэффициент поглощения
частицами кокса.
1) Коэффициент поглощения лучей газовой фазой продуктов сгорания
, [3,
с.11]
где
-
объемная доля водяных паров (приложение А),
;
) Коэффициент поглощения лучей частицами золы
[3, с.11]
где
µзл - концентрация золы в продуктах сгорания;
коэффициент
Азл принимается 0.8 [3, табл.4].
)
Коэффициент поглощения лучей частицами кокса:
. [3,
табл.5]
Тогда
коэффициент поглощения топочной среды:
И критерий Бугера:
Эффективное
значение критерия Бугера
[3,с.12]
Расчетная температура газов на выходе из топки
ºС; [3, с.12]
ºС
т.к.
Δt =
1100 - 1086.42 = 13.58
ºС , - не превышает 100 ºС, то расчёт
на этом
заканчивается и принимается для последующих расчётов.
.2.10
Энтальпия газов на выходе из для
:
, (приложение2)
Количество
тепла, воспринятое в топке
[3, с.12]
Удельная
тепловая нагрузка стен топки
[3, с.12]
Тепловое
напряжение сечения зоны активного горения
[3, с.13]
Тепловое
напряжение объема топочной камеры
[3, с.13]
.
Распределение тепловосприятий по элементам конвективной шахты
.1
Воздухоподогреватель первой ступени
Температура питательной воды на входе в водяной экономайзер
(по
заданию)
Температура
уходящих дымовых газов
(по
заданию)
Энтальпия
уходящих дымовых газов
(приложение
Б)
Оптимальная
температура воздуха на выходе из первой ступени воздухоподогревателя
Принятая температура воздуха на выходе из первой ступени
воздухоподогревателя
.
Температура
воздуха на входе в первую ступень воздухоподогревателя
. (по заданию)
Энтальпия
воздуха на входе в первую ступень воздухоподогревателя
. (приложение Б)
Энтальпия
воздуха на выходе из первой ступени воздухоподогревателя: для
.
(приложение Б)
Отношение
количества воздуха на выходе из воздухоподогревателя к теоретически
необходимому
,
где
- коэффициент избытка воздуха на
выходе из топки [1,табл. XVII];
- присосы
воздуха в топке;
- присосы воздуха в первой ступени воздухоподогревателя [1,табл.
XVII];
- присосы воздуха в систему пылеприготовления[1,табл. XVII],
тогда
Средняя
температура воздуха
[4, с.5]
Энтальпия
воздуха при средней температуре
(приложение
2)
Тепло,
воспринятое воздухом в воздухоподогревателе
[4, с.5]
Энтальпия
дымовых газов на входе в первую ступень воздухоподогревателя
[4, с.5]
Температура
дымовых газов на входе в первую ступень воздухоподогревателя
(приложение
Б)
3.2 Водяной
экономайзер второй ступени
Энтальпия дымовых газов на входе в ступень
, [4,
с.5]
где
- энтальпия насыщенного пара, определяемая по давлению
в барабане
[1, табл.XXIV]:
.
. [4,
с.6]
Температура
дымовых газов на входе в ступень
.
(приложение 2)
Температура
дымовых газов на выходе из ступени, принимается не более 530
С
[4, с.6]
Энтальпия
дымовых газов на выходе из ступени
.
(приложение Б)
Тепло,
отданное дымовыми газами в водяном экономайзере второй ступени
.
3.3
Воздухоподогреватель второй ступени
Температура горячего воздуха в ступени
.
Энтальпия
воздуха на выходе из ступени
(приложение
Б)
Температура
и энтальпия воздуха на входе в ступень
, [4,
с.6]
.
(приложение Б)
Средняя
температура воздуха в ступени
. [4,
с.6]
Отношение
количества воздуха на выходе из воздухоподогревателя к теоретически
необходимому
. [4,
с.6]
Энтальпия
воздуха при средней температуре в ступени
(приложение
Б)
Тепло
воспринятое воздухом во второй ступени воздухоподогревателя
[4, с.6]
Температура
и энтальпия дымовых газов на входе в ступень
,
.
(приложение Б)
Энтальпия
дымовых газов на выходе из ступени
Температура
дымовых газов на выходе из ступени
(приложение
Б)
3.4 Водяной
экономайзер первой ступени
Температура и энтальпия дымовых газов на входе в ступень
,
. [4, с.7]
Температура
и энтальпия дымовых газов на выходе из ступени
,
[4, с.7]
Тепло,
отданное дымовыми газами в водяном экономайзере второй ступени
.
.5 Сведение
теплового баланса
Тепло, переданное в топке излучением
(п.2.2.11)
Тепловосприятие
водяного экономайзера
. [4,
с.7]
Общее
тепловыделение пароперегревателя за счет конвекции
. [4,
с.7]
Абсолютная
расчетная невязка теплового баланса
[4, с.8]
Относительная
невязка теплового баланса
, [4,
с.8]
<5%.
Полученная
невязка допускается, что свидетельствует о действительности сведения теплового
баланса. Расчет выполнен верно.
Рисунок 3 - Распределение тепловосприятий по элементам конвективной шахты
4. Расчет
воздухоподогревателя первой ступени
Воздухоподогреватель - это элемент (поверхность нагрева) котла,
предназначенная для нагрева воздуха. По способу передачи тепла
воздухоподогреватели бывают регенеративными и рекуперативными. В данном
курсовом проекте рассчитывается рекуперативный воздухоподогреватель.
Рекуперативные воздухоподогреватели конструктивно представляют собой
пучок вертикально расположенных нагревательных труб, внутри которых протекают
дымовые газы. Снаружи эти трубы омываются воздухом, который нагревается за счет
передачи тепла от дымовых газов через стенки труб. Такие воздухоподогреватели
называют трубчатыми (рисунок 4).
Рисунок 4 - Схема рекуперативного (трубчатого) воздухоподогревателя: 1 -
стальные трубы; 2, 6 - верхняя и нижняя трубные доски; 3 - компенсатор тепловых
расширений; 4 - воздухоперепускной короб; 5 - промежуточная трубная доска; 7, 8
- опорные колонны и горизонтальные балки
Для образования перекрестного тока воздуха трубную систему по высоте
делят на несколько ходов промежуточными перегородками - досками; в местах
поворота установлены воздушные перепускные короба. Воздухоподогреватель с боков
имеет наружные стальные плотные стенки, нижняя трубная доска опирается на
металлическую раму, связанную с каркасом котла.
В курсовой работе используется общий случай, когда установлен трубчатый
воздухоподогреватель, и его трубы расположены вертикально, дымовые газы омывают
их изнутри, а воздух снаружи.
4.1 Диаметр и толщина стенки труб
[4, c.10]
.2
Расположение труб - шахматное.
.3
Поперечный к потолку шаг труб
[4, с.10]
.4
Количество труб в одном ряду по глубине конвективной шахты
[4,
с.10]
где
глубина топки.
.5
Температура и энтальпия дымовых газов
)
на входе в ступень
(п. 3.1.14)
(п.
3.1.13)
)
на выходе из ступени
(п. 3.1.3)
(п.
3.1.2)
)
средние значения для ступени
[4,
c.11]
(приложение
Б)
.6
Температура воздуха
На
входе в ступень
(п. 3.1.6)
На
выходе из ступени
(п. 3.1.5)
Среднее
значение для ступени
(п. 3.1.10)
.7
Скорость дымовых газов
[4, с.11]
Живое
сечение для прохода дымовых газов
[4, с.11]
где
- удельный объем дымовых газов (приложение А);
-
расчетный расход топлива (п. 1.5.14).
.9
Общее количество труб в ступени воздухоподогревателя

[4,
с.11]
.10
Количество рядов труб по глубине конвективной шахты

[4,
с.12]
.11
Продольный к потолку воздуха шаг труб

[4,
с.12]
.12
Количество параллельных потоков воздуха в ступени
[4, с.12]
При
этом усложнение компоновки ступени позволяет уменьшить ее габариты за счет
увеличения числа перекрестных ходов воздуха. Для выполнения многопоточной
конструкции воздухоподогревателя в конвективной шахте предусматривается
внутренний перепускной короб, что увеличивает общее сечение конвективной шахты
(рисунок 5).
Рисунок
5 - Двухпоточный двухступенчатый воздухоподогреватель:
-
первая ступень ВП; 2 - вторая ступень ВП; 3 - ступень водяного экономайзера; 4
- внешний воздухоперепускной короб; 5 - внутренний воздухоперепускной короб
.13
Ширина внутреннего воздухоперепускного короба
[4, с.13]
.14
Относительное количество воздуха в ступени
[4, с.13]
.15
Скорость воздуха в ступени

[4, с.13]
.16
Живое сечения для прохода воздуха
[4, с.13]
.17
Высота одного хода для воздуха

[4,
с.13]
.18
Расчет температурного напора в ступени
Наибольшая
разность температур сред

[4,
с.13]
Наименьшая
разность температур сред

[4,
с.13]
Температурный
напор при противотоке

[4,
с.13]
.19
Расчет теплоотдачи конвекцией
Значение
коэффициента без учёта поправок

[1,
ном. 11]
при

Поправка
на физические свойства среды

[1,
ном. 11]
при

Поправка
на длину омываемого канала
[1, ном. 11]
Расчетное
значение коэффициента
[4,
с.14]
.20
Расчет коэффициента теплоотдачи излучением учитывается только в расчете второй
ступени двухступечатого воздухоподогревателя.
.21
Коэффициент использования
[4, табл. 1]
.22
Коэффициент теплоотдачи излучением для запыленного потока
[4,
с.16]
.23
Определение коэффициента теплоотдачи от стенки к воздуху
Значение
коэффициента без учёта поправок
[5, с.124]
при

Поправка
на число рядов труб по ходу газов
[5, с.124]
при

Поправка
на компоновку пучка труб
[5, с.124]
при

Поправка
на физические свойства среды

[5,
с.124]
при

Расчетное
значение коэффициента теплоотдачи от стенки к воздуху
[4, с.16]
.24
Коэффициент теплопередачи
[4,
с.16]
.25
Расчетная поверхность нагрева воздухоподогревателя первой ступени

[4,
с.16]
.26
Полная высота труб ступени

[4,
с.17]
где
.27
Число ходов воздуха в ступени

[4,
с.17]
.28
Действительная высота хода для потока воздуха

[4,
с.17]
.29
Действительная скорость воздуха в ступени

[4,
с.17]
.30
Относительное расхождение принятого и расчетного значения скорости воздуха в
ступени
[4,
с.17]
Тепловой
расчет ступени воздухоподогревателя можно считать законченным, так как 
.
.
Расчёт водяного экономайзера первой ступени
.1
Диаметр и толщина стенки труб
.2
Внутренний диаметр трубы
;
.
.3
Расположение труб шахматное.
Поперечный
шаг труб
;
.
Относительный
поперечный шаг
;
.4
Ширина конвективной шахты
.
.5
Температура и энтальпия дымовых газов
На
входе в водяной экономайзер первой ступени
;
.
На
выходе из водяного экономайзера первой ступени
;
.
Температура
питательной воды
=215
(по заданию).
Энтальпия
питательной воды
кДж/кг.
Величина
непрерывной продувки
P=1,5% (по
заданию).
Расход
воды на продувку
;
.
.6 Расходы воды через водяной экономайзер первой ступени при
регулировании перегрева пара впрыскивающим пароохладителем (на собственном
конденсате)
.7
Энтальпия воды на входе в водяной экономайзер первой ступени и снижение
энтальпии пара в пароохладителе
.8
Давление и энтальпия воды на выходе из водяного экономайзера первой ступени
Так как энтальпия воды на выходе из экономайзера
первой ступени меньше энтальпии воды на линии насыщения(1172.267<
=1482.68), значит
экономайзер некипящий.
.9
Температура воды на выходе из водяного экономайзера первой ступени
.
5.10
Массовая скорость воды в ступени (принимается для некипящих экономайзеров в
пределах
)
.
.11
Количество рядов труб, выходящих из коллектора
.
.12
Количество труб в одном ряду поперек газохода
шт.
.13
Количество параллельно включенных змеевиков в ступени
;
.
.14
Число параллельных потоков воды в ступени
;
.
.15
Средняя температура воды в ступени
.
.16
Среднее давление воды в ступени
.
.17
Удельный объем воды в ступени
. (определяется
по
) [2]
.18
Живое сечение для прохода воды
;
.
.19
Скорость воды в ступени
;
.
.20
Средняя температура дымовых газов в водяном экономайзере первой ступени
.
.21
Живое сечение для прохода дымовых газов
;
.22
Полный объем дымовых газов
(из
расчета топки)
.23
Скорость дымовых газов в ступени
;
.
.24
Температурный напор
Температурный
напор на входе дымовых газов в ступень
.
Температурный напор на выходе дымовых газов из ступени
.
Средний температурный напор в водяном экономайзере первой ступени
;
.
.25
Число рядов труб по ходу дымовых газов (принимается)
.
.26
Продольный шаг труб
Принимаю
.
.27
Относительный продольный шаг
;
.
.28Шаг
петель в змеевике
пет=4*S2=4*0.048=0.19.
.29
Предварительная оценка высоты ступени (по осям труб)
;
.
.30
Определение коэффициента теплоотдачи конвекцией от дымовых газов.
Поправка на число рядов по ходу газов
. [1,
стр. 222]
Поправка
на геометрическую компоновку пучка
. [1,
стр. 223]
Влияние
изменения физических характеристик на коэффициент теплоотдачи
. [1,
стр. 223]
Значение коэффициента без учета поправок
. [1,
стр. 222]
Расчетное
значение коэффициента теплоотдачи
;
.
5.31 Коэффициент теплоотдачи излучением.
Эффективная толщина излучающего слоя
;
Давление дымовых газов в газоходе котла
.
Объемная доля водяных паров
(из
расчета топки).
(из
расчета топки).
Безразмерная концентрация золы в дымовых газах
(из
расчета топки).
Коэффициент поглощения лучей газовой фазой продуктов сгорания
Коэффициент поглощения лучей частицами золы
;
Коэффициент поглощения среды
;
.
Суммарная оптическая толщина продуктов сгорания
=0,128.
Степень черноты потока газов
;
.
.32 Температура стенки трубы
.
.33 Значение коэффициента без учета поправок
[1,
стр. 238].
.314 Коэффициент теплоотдачи излучением
;
.
.35
Коэффициент теплоотдачи излучением с поправкой на излучение газового объема,
расположенного перед ступенью пароперегревателя
Температура дымовых газов в газовом объеме
;
.
Высота газового объема, предусмотренного по условиям компоновки
.
Коэффициент, зависящий от вида сжигаемого топлива
А=0.4.
Коэффициент теплоотдачи излучением с поправкой на излучение газового
объема, расположенного перед ступенью пароперегревателя
.36
Коэффициент теплоотдачи от газов к стенке трубы
,
;

.
.37
Коэффициент теплопередачи
,
;
.38
Теплообменная поверхность водяного экономайзера первой ступени
,
.
.39
Длина одного змеевика
,
;
.
.40
Длина одной петли в змеевике
.
.41
Количество петель в каждом змеевике
;
.42
Высота водяного экономайзера первой ступени по осям труб
,
;
.
.43
Относительная невязка баланса по высоте
;
Заключение
В данном курсовом проекте произведён расчёт парового котла, работающего
на указанном в задании топливе. В процессе работы над проектом были определены
показатели работы котла на заданном топливе:
коэффициент полезного действия котлоагрегата ηк = 91.74%
-
температура дымовых газов на выходе из топки
-
температура дымовых газов на выходе из первой ступени конвективного
пароперегревателя:
=630.561°С;
температура
дымовых газов на выходе из второй ступени водяного экономайзера:
=520°С;
-
температура дымовых газов на выходе из второй ступени воздухоподогревателя:
-
температура дымовых газов на выходе из первой ступени водяного экономайзера:
температура
дымовых газов на выходе из первой ступени воздухоподогревателя:
- расчетный расход топлива Вр = 9,564 кг/с;
тепловое напряжение топочного объема qv = 80 кВт/м3;
Что
меньше предельного теплового напряжения топочного объёма для каменных углей
.
тепловое
напряжение сечения топки qf = 1.407 МВт/м2;
Полученное
значение
(предельного теплового напряжения сечения топки для
каменных углей).
расчетное
значение низшей теплоты сгорания для рабочего состояния при заданных
показателях влажности и зольности Qрр=17055,351
кДж/кг;
относительная
расчетная невязка теплового баланса
.
Так
как основные показатели, определенные в курсовом проекте, находятся в пределах
допустимых норм, следовательно, расчет котлоагрегата можно считать законченным.
Список
литературы
1. Тепловой
расчет котлов. Нормативный метод. Издание 3-е, переработанное и дополненное -
СПб: Изд. НПО ЦКТИ 1998. - 256с. с ил.
. Расчет элементного
состава и теплотехнических характеристик топлив, объемов и энтальпий воздуха и
продуктов сгорания: Методические указания по выполнению курсовой работы для
студентов спец. 140100 - Томск: Изд. ТПУ, 2011. - 20 с.
. Тепловой
расчет топки: Методические указания к выполнению курсовой работы для студентов
спец. 140100 - Томск: Изд. ТПУ, 2011. - 16 с.
.
Распределение тепловосприятия по элементам конвективной шахты. Расчёт
воздухоподогревателя: Методические указания к выполнению курсовой работы для
студентов спец. 140100 - Томск: Изд. ТПУ, 2011. - 20 с.
. Компоновка
и тепловой расчет парового котла: Учебное пособие для вузов/ Ю.М. Липов. - М.:
Энергоатомиздат, 1988. - 208с.
. Расчёт
экономайзера: Методические указания к выполнению курсовой работы для студентов
спец. 140100 - Томск: Изд. ТПУ, 2011. - 17 с.
Приложение А
Средние объемные характеристики продуктов сгорания
|
Размерность
|
; ; ; ; ;.
|
|
|
Газоходы котла
|
|
|
Топка и ширмы
|
КПП
|
ЭК 2 ступень
|
ВП 2 ступень
|
ЭК 1 ступень
|
ВП 1 ступень
|
|
|
|
2 ступень
|
1 ступень
|
|
|
|
|
|
Коэффициент избытка воздуха
за поверхностью
|
-
|
1,15
|
1,165
|
1,18
|
1,2
|
1,23
|
1,25
|
1,28
|
|
Средний коэффициент
избытка воздуха в газоходе
|
-
|
1,150
|
1,158
|
1,173
|
1,190
|
1,215
|
1,240
|
1,265
|
|
Произведение
|
-
|
0,6857
|
0,7199
|
0,7885
|
0,8685
|
0,9828
|
1,0970
|
1,2113
|
|
Объём водяных паров
|
|
0,613
|
0,614
|
0,615
|
0,616
|
0,618
|
0,620
|
0,622
|
|
Полный объём дымовых газов
|
|
5,750
|
5,785
|
5,854
|
5,935
|
6,052
|
6,168
|
6,284
|
|
Объёмная доля сухих
трёхатомных газов
|
-
|
0,1449
|
0,1440
|
0,1423
|
0,1403
|
0,1376
|
0,1351
|
0,1326
|
|
Объёмная доля водяных паров
|
-
|
0,1066
|
0,1061
|
0,1050
|
0,1038
|
0,1021
|
0,1005
|
0,0989
|
|
Суммарная объёмная доля
трёхатомных газов
|
-
|
0,2515
|
0,2501
|
0,2473
|
0,2441
|
0,2397
|
0,2355
|
0,2315
|
|
Масса дымовых газов
|
|
7,585
|
7,630
|
7,720
|
7,824
|
7,973
|
8,122
|
8,272
|
|
Концентрация золы в дымовых
газах
|
|
0,0351
|
0,0349
|
0,0345
|
0,0340
|
0,0334
|
0,0327
|
0,0322
|
Приложение Б
Энтальпия продуктов сгорания