Проектування електричної станції
Вступ
Загальні поняття і
визначення про проектування ЕС
Проектування - це процес
складання опису, необхідного для створення в заданих умовах ще не існуючого
об'єкта, наприклад електростанції чи підстанції. Вихідною інформацією для
проектування об'єкта слугує завдання на проектування. Завдання дає первинний,
вихідний опис об'єкта, який складений по певній формі. Він повинен включати в
себе відомості про призначення об'єкта, умови його функціонування, його
вихідних параметри і т. д.
Електрична станція як
об'єкт проектування відноситься до категорії технічних систем. Технічна система
має, як правило, ієрархічну структуру побудови із наступними ступенями:
підсистеми вищого і нижчого рівнів, фрагменти, елементи.
Елемент - це окремий
предмет: машина, апарат, провідник і т. п. Вибір параметрів елемента виконують
внаслідок деякої дії, яка називається проектною операцією.
Фрагмент являє собою
сукупність функціонально зв'язаних елементів (наприклад розподільчий пристрій).
В загальному випадку фрагмент характеризується параметрами елементів і
структурою зв'язків між ними. Вибір фрагмента визначається проектною
процедурою, яка складається із циклу операцій.
Підсистема (нижчого та
вищого рівнів) відокремлена частина системи, яка складається із множини
фрагментів та має відносно слабкі зв'язки із іншими підсистемами (наприклад,
електроустановка власних потреб).
Процес проектування
підсистеми складається із ряду проектних процедур. Кожна процедура представляє
собою деяку сукупність операцій, виконання яких закінчується проектним
рішенням, тобто описанням фрагмента об'єкта. У результаті проектування у
відповідності із великою кількістю фрагментів отримуємо численні локальні
проектні рішення, а їх сукупність представляє собою кінцеве рішення, яке дає
повний опис підсистеми.
Кожне проектне рішення
оформляється у вигляді проектного документа, виконаного по заданій формі.
Комплект всіх проектних документів складає проект об'єкта.
Для здійснення процесу
проектування необхідно скласти сукупність розпоряджень (формалізованих дій),
яка отримала назву алгоритм проектування.
В теперішній час можливо
назвати 3 способи проектування: неавтоматизоване, автоматизоване і автоматичне.
При неавтоматизованому
проектуванні всі проектні операції і процедури, що необхідні для отримання
кінцевого проектного рішення, виконує людина (проектувальник). При
автоматизованому проектуванні весь вказаний цикл здійснюється на базі взаємодії
людини і ЕВМ. Процес автоматичного проектування здійснюється без участі людини:
за проектувальником залишається лише ввід в ЕВМ технічного завдання, пуск
відповідної системи автоматичного проектування і контроль за її роботою.
Із розвитком
електростанцій зростала і складність їх проектування. відповідно змінювались
методика і способи проектування. Розглянемо спочатку основні історичні етапи,
через які пройшло проектування електростанцій.
Основні стадії
проектування
У процесі проектування
електростанції необхідно виділити три основні стадії: завдання на проектування,
технічний проект, робочий проект в кресленнях.
Завдання на проектування
електростанцій включає в себе зовнішню вихідну інформацію - місце розташування,
тип, призначення станції і його вихідні параметри, паливо та джерело
водопостачання, режими роботи станції, її навантаження і місце в графіку
навантаження енергосистеми, схему приєднання станції до енергосистеми, дані
енергосистеми. Крім того, в завданні вказуються заплановані строки проектування
і спорудження, черговість спорудження.
Завдання складає
заказник проекту (міністерство, відомство, промислове підприємство) на основі
техніко-економічного обґрунтування доцільності запланованого будівництва.
Завдання повинно бути узгодженим із проектною організацією і генеральним
підрядчиком на будівельні роботи.
При проектуванні
потужних електростанцій районного типу вся інформація, пов’язана із
енергосистемою, отримується із назовні стадійної проектної роботи по розвитку
енергосистеми, яку виконує Енерго-Сеть-Проект.
Технічний проект
електростанції являє собою сукупність проектних документів, що відображають
основні проектні рішення і, відповідно дають описання проектної електростанції.
У склад технічного проекту електростанції входять: паспорт, техніко-економічне
обґрунтування станції, кошторис, проектні документи по технічній частині
(підсистеми), проектні документи по електротехнічній частині (підсистеми),
проектно-технічної частини (технічне водопостачання, зовнішнє гідро
золовидалення для ТЕС, водопровід і каналізація), проектні документи по
будівельній частині (архітектурно-будівельний розділ, опалення, вентиляція),
генеральний план будівництва і транспорт, організація будівництва станції.
Робочий проект
електростанції (підстанції) - це сукупність пояснювальної записки із
розрахунками і робочих креслень, по яким виконують монтажно-будівельні роботи.
На рівні робочого проекту виконують коректування проектних рішень у
відповідності із зауваженнями підтверджувальних інстанцій, уточнюють параметри
елементів по умові їх комплектації, можливості виготовлення і поставки, вносять
в проектні рішення додаткові напрацювання у напрямку необхідної деталізації.
Компоновка ТЕЦ
Теплові електростанції
мають велику кількість технологічних споруд, зовнішніх та внутрішніх
технологічних комунікацій. Для ТЕЦ характерна наявність РУ генераторної напруги
закритого типу (ЗРУ), від якого відходить велика кількість кабельних ліній,
використання оборотного водопостачання із штучними охолоджувачами (зазвичай у
вигляді градирень), вивід теплопроводів до місцевих споживачів. Для прикладу
розглянемо компоновку ТЕЦ із поперечними зв'язками.
До числа основних
технологічних споруд ТЕЦ відносять головний корпус, де встановлюються
турбоагрегати, котли і їхнє допоміжне обладнання, градирні і водопроводи
циркуляційної води, склад палива, подача палива, яка включає в себе
розвантажувальний пристрій, дробильний корпус, димові труби. Розміщення
основних технологічних споруд відповідає послідовності технологічного процесу.
У безпосередній
близькості від основних технологічних споруд розміщують їх допоміжні споруди:
хімводоочистку, мазутне господарство, механічну майстерню, матеріальний склад,
що розміщуються у між складом палива і головним корпусом, трансформаторну
майстерню. Масляне господарство через його пожежонебезпечність відносять до у
сторону від основних споруд.
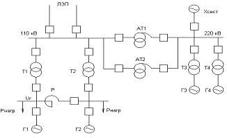
1. Вибір принципової
схеми електричної станції
Схеми електричних
з’єднань і відповідні розподільчі пристрої є важливими елементами електричних
станцій. Розрізняють головні схеми та схеми власних потреб.
1.1 Вибір структурної
схеми
На генераторній напрузі
ТЕЦ приймаємо схему з двома системами збірних шин і з секціонуванням 1-ої
системи шин. Група приєднань навантаження та приєднання власних потреб
підключаються до збірних шин через розвилку двох шинних роз’єднувачів, що
дозволяє здійснювати роботу як на одній, так і на іншій системі шин (один з
шинних роз’єднувачів нормально відключений).
Перевагою схеми з двома
системами збірних шин є можливість ремонту будь-якої системи шин без
відключення споживачів і джерел. Наявність шиноз'єднуючих вимикачів дозволяє
виконувати всі необхідні переключення з одної системи шин на іншу.
Розглянута схема є
гнучкою і забезпечує достатню надійність енергопостачання.
Між 1-ою секцією і
другою системою шин і між 2-ою секцією і другою системою шин є шиноз'єднувальні
вимикачі (ШЗВ). Шини 10 і 110 кВ з’єднуються через 2 трансформатора зв’язку. На
шини генераторної напруги приймаємо підключеними 2 генератора по 60 МВт по
балансу навантаження шин 10,5 кВ.
Для розгляду приймаємо
три варіанта електричних з’єднань ТЕЦ. У всіх цих варіантах 1-ий і 2-ий
генератори підключаються до шин генераторної напруги.
В першому варіанті 3-ій
і 4-ий генератори підключаються до шин 330 кВ, в другому - 3-ій генератор - до
шин 110 кВ, 4-ий генератор - до шин 330 кВ.
Структурні схеми усіх
варіантів показані нижче.
Рис. 1.1
Рис. 1.2
Таблиця 1.1 - Початкові
дані
|
1.
|
Потужність станції
|
Рст
|
240 МВт
|
|
2.
|
Генераторна напруга
|
Uг
|
10,5 кВ
|
|
3.
|
Потужність, що розподіляється на
генераторній напрузі
|
Рнав
|
99 МВт
|
|
4.
|
Потужність, що передається по
розрахунковому відгалудженню від шин генераторної напруги
|
Рвідг
|
6,41 МВт
|
|
5.
|
Кількість відгалуджень від шин
генераторної напруги
|
n
|
41
|
|
6.
|
Потужність, що віддається в мережу
на 110 кВ
|
Р110
|
111 МВт
|
|
7.
|
Струм КЗ системи
|
I
|
32,4 кА
|
2. Вибір
електрообладнання електричної станції
2.1 Вибір
турбогенераторів
Згідно з завданням
номінальна напруга генераторів становить 10,5 кВ і в сумі вони повинні видавати
активну потужність 240 МВт. Тому вибираємо чотири генератори типу ТВФ-60-2,
паспортні данні якого приведенні в таблицю 2.1.:
Таблиця 2.1. Номінальні
параметри генераторів
|
Вид генератора
|
nном, об/хв
|
Sном, МВА
|
Pном, МВт
|
Uном, кВ
|
Xd,
%
|
Вартість, тис. у.о.
|
|
|
ТВФ-60-2
|
3000
|
75
|
60
|
10,5
|
0,8
|
0,195
|
166,16
|
2.2 Вибір обладнання для
1-го варіанту схеми
Вибір трансформаторів
зв'язку 110/10,5 кВ.
Для вибору
трансформаторів зв'язку розглянемо 3 режима:
режим максимального
навантаження (99 МВт);
- режим
мінімального навантаження (
);
аварійний режим
(вихід з ладу одного турбогенератора на генераторній напрузі).
Навантаження власних
потреб приймаємо 10 % від генерації (12 МВт).
Потужність, що
передається через трансформатори: DР = РГ -РВП-Рнав
Вибір трансформатора
зв'язку зводимо в таблицю 2.2.
Таблиця 2.2. - Вибір
трансформатора зв'язку
|
Навантаження в різних режимах МВт
|
|
Норм.
|
min
|
ав.
|
|
Рген, (МВт)
|
120
|
120
|
60
|
|
Рвп, (МВт)
|
12
|
12
|
12
|
|
Рнав, (МВт)
|
99
|
69,3
|
99
|
|
ΔР,
(МВт)
|
9
|
38,7
|
-51
|
По найбільшому розрахунковому
навантаженню визначаємо потужність кожного з двох трансформаторів:
В якості трансформаторів
зв'язку вибираємо два трансформатора типу ТДН-63000/110, його параметри зводимо
в таблицю 2.3.
Таблиця 2.3. - Параметри
трансформатора ТДН-63000/110
|
SН, МВА
|
UК, %
|
IХХ, %
|
UВН, кВ
|
UНН, кВ
|
Сх. і гр. з’єдн.обм
|
ΔРХХ,
кВт
|
ΔРКЗ,
кВт
|
Вартість, тис. у.о.
|
|
63
|
10,5
|
0,5
|
115
|
10,5
|
Yн/Δ-11
|
50
|
245
|
40,61
|
Вибір блочного
трансформатора на шини 330 кВ.
При блочному з’єднанні
генератора потужність трансформатора вибирається по розрахунковій потужності:
Вибираємо трансформатор
типу ТДЦ-125000/330. Параметри трансформатора зводимо в таблицю 2.4.
Таблиця 2.4. - Параметри
трансформатора ТДЦ-125000/330
|
SН, МВА
|
UВН, кВ
|
UНН, кВ
|
ΔРХХ,
кВт
|
ΔРКЗ(ВН),
кВт
|
UК(ВН), %
|
IХХ, %
|
Вартість тис. у.о.
|
|
125
|
347
|
10,5
|
125
|
380
|
11
|
0,55
|
200,88
|
Вибір
автотрансформаторів зв'язку 330/110 кВ.
Для вибору
автотрансформаторів зв'язку розлянемо 3 режима:
режим максимального
навантаження шин 10 та 110 кВ;
- режим мінімального
навантаження шин 10 та 110 кВ;
- аварійний режим (вихід
з ладу одного турбогенератора на генераторній напрузі).
Вибір
автотрансформаторів зв'язку 330/110 кВ зводимо в таблицю 2.5.
Таблиця 2.5 - Вибір
автотрансформаторів зв'язку 330/110 кВ
|
Навантаження в різних режимах МВт
|
|
Норм.
|
min
|
ав.
|
|
Рген, (МВт)
|
120
|
120
|
60
|
|
Рвп, (МВт)
|
12
|
12
|
12
|
|
Р10 (МВт)
|
99
|
69,3
|
99
|
|
Р110 (МВт)
|
111
|
77,7
|
111
|
|
ΔР,
(МВт)
|
-102
|
-39
|
-162
|
Потужність, що проходить
через автотрансформатори:
По найбільшій
розрахунковій потужності визначимо потужність кожного з двох трансформаторів:
Вибираємо 2
автотрансформатори зв'язку типу АТДЦТН-200000/330/110.
Параметри трансформатора
типу АТДЦТН-200000/330/110 зводимо в таблицю 2.6
Таблиця 2.6. - Параметри
трансформатора АТДЦТН-200000/330/110
|
SН, МВА
|
UВН, кВ
|
UСН, кВ
|
UНН, кВ
|
ΔРХХ,
кВт
|
ΔРКЗ
кВт
|
IХХ, %
|
UК(ВС), %
|
UК(ВН), %
|
UК(СН), %
|
Вартість тис. у.о.
|
|
200
|
330
|
115
|
10,5
|
155
|
560
|
0,45
|
10
|
38
|
25
|
180,42
|
Вибір секційного
реактору
Для обмеження токів КЗ
на ТЕЦ застосовують секційні реактори. У нормальному режимі роботи потужності
між секціями розподілені рівномірно і перетоки потужностей через секційний
реактор практично дорівнюють нулю.
Номінальний струм
реактора визначаємо на основі перетоків потужностей між секціями при
відключенні живильних приєднань генераторів та трансформаторів зв'язку.
Номінальний струм
генераторів, підключених до секції.
Номінальний струм
генераторів, підключених до секції.
- номінальний струм
реактора
Вибираємо реактор типу
РБДГ 10-2500-0,25У3. Параметри реактора зводимо в таблицю 2.7.
Таблиця 2.7. - Параметри
реактора РБДГ 10-2500-0,25У3
|
UВН, кВ
|
Тривалий струм, А
|
ХНОМ, Ом
|
Номін.втрати на фазу, кВт
|
IДИН, кА
|
IТЕРМ, кА
|
tТЕРМ, C
|
|
10
|
2150
|
0,25
|
16,1
|
49
|
19,3
|
8
|
.3 Вибір обладнання для
2-го варіанту схеми
Вибір трансформатора
зв'язку між шинами 110 і 10 кВ.
Трансформатори зв'язку
між шинами 110 і 10 кВ вибираємо такі ж як і для першого варіанту схеми.
Вибір блочного
трансформатора на шини 330 кВ.
Блочний трансформатор на
шини 330 кВ вибираємо такий же, як і для першого варіанту схеми.
Вибір блочного
трансформатора на шини 110 кВ.
Вибираємо трансформатор
типу ТДЦ-80000/110. Параметри трансформатора зводимо в таблицю 2.8.
Таблиця 2.8. - Параметри
трансформатора ТДЦ-80000/110
|
SН, МВА
|
UВН, кВ
|
UНН, кВ
|
ΔРХХ,
кВт
|
ΔРКЗ(ВН),
кВт
|
UК(ВН), %
|
IХХ, %
|
Вартість, тис. у.о.
|
|
80
|
115
|
10,5
|
58
|
310
|
10,5
|
0,45
|
70,5
|
Вибір
автотрансформаторів зв'язку 330/110 кВ.
Для вибору
автотрансформаторів зв'язку розглянемо 3 режима:
режим максимального
навантаження шин 10 та 110 кВ;
режим мінімального
навантаження шин 10 та 110 кВ;
аварійний режим (вихід з
ладу 1 турбогенератора на напрузі 10 чи 110 кВ).
|
Навантаження в різних режимах МВА
|
|
Норм.
|
min
|
ав.
|
|
Рген, (МВт)
|
180
|
180
|
120
|
|
Рвп, (МВт)
|
18
|
18
|
18
|
|
Р10 (МВт)
|
99
|
69,3
|
99
|
|
Р110 (МВт)
|
111
|
77,7
|
111
|
|
ΔР,
(МВт)
|
-48
|
15
|
-108
|
По найбільшому
розрахунковому навантаженню визначимо потужність кожного з двох
автотрансформаторів:
Вибираємо 2
автотрансформатори зв'язку типу АТДЦТН-125000/330/100
Параметри трансформатора
зводимо в таблицю 2.9.
Таблиця 2.9. - Параметри
автотрансформатора АТДЦТН-125000/330/100
|
SН, МВA
|
UВН, кВ
|
UСН, кВ
|
UНН, кВ
|
ΔРХХ,
кВт
|
ΔРКЗ
кВт
|
IХХ %
|
UК(ВС), %
|
UК(ВН), %
|
UК(СН), %
|
Вартість тис. у.о.
|
|
125
|
330
|
115
|
10,5
|
100
|
345
|
0,45
|
10
|
35
|
24
|
147,87
|
3. Техніко-економічне
порівняння варіантів
Складаємо порівняльну
таблицю вартості варіантів. В таблиці 3.1 враховується тільки те обладнання, на
які відрізняються варіанти.
Таблиця 3.1. -
Порівняльна таблиця вартості
|
№ п/п
|
Назва і тип обладнання
|
Ціна, тис. у.о.
|
1-ий варіант
|
2-ий варіант
|
|
|
|
n
|
n
|
Вартість, тис. у.о.
|
|
1
|
Блочний трансформатор
ТДЦ-125000/330
|
200,88
|
2
|
401,76
|
1
|
200,88
|
|
2
|
Блочний трансформатор
ТДЦ-80000/110
|
70,5
|
0
|
0
|
1
|
70,5
|
|
3
|
Автотрансформатор
АТДТЦН-200000/330
|
180,42
|
2
|
360,84
|
0
|
0
|
|
4
|
Автотрансформатор
АТДТЦН-125000/330
|
147,87
|
0
|
0
|
2
|
295,74
|
|
5
|
Комірка 330 кВ''
|
219,05
|
3
|
657,15
|
1
|
219,05
|
|
6
|
Комірка 110 кВ'
|
66,51
|
0
|
0
|
1
|
66,51
|
|
7
|
Сумарна вартість
|
1419,75
|
852,68
|
'ст. 577 (Л1),
ВВШ-110-110-25/2000-У1.
''ст. 582 (Л2),
У-330Б - 31,5/2000-У1.
Найбільш економічний
варіант визначаємо по найменшому значенню повних приведених річних витрат.
,
де
-
нормативний коефіцієнт ефективності
Річні витрати
складаються
з трьох складових:
Амортизаційні
відрахування
де,
-
норма амортизаційних відрахувань,
Витрати на
обслуговування ЕС (ремонт і зарплата персоналу)
де,
для
і
для
.
Витрати,
обумовлені втратами енергії.
де
-
вартість 1
втраченої
енергії
Приймаємо
на
2015 рік.
- річні втрати
електроенергії.
3.1 Розрахунок
техніко-економічних показників для 1-го варіанту
.2
Розрахунок техніко-економічних показників для 2-го варіанту
Таблиця 3.2. -
Порівняння двох варіантів схем
№ п/п Вар.
Річні
витрати, млн. грн.Загальні витрати,
|
млн. .
|
|
|
|
|
|
|
Амортизац, Ва
|
На обслугов., В0
|
На втрати, Ввтр.
|
|
|
1
|
1
|
0,170
|
0,090
|
0,0030
|
3,453
|
3,716
|
|
2
|
2
|
0,102
|
0,0546
|
0,018
|
2,816
|
2,991
|
З таблиці бачимо, що за
даними техніко-економічних розрахунків мінімальні повні річні витрати є в
варіанті 2. Тому приймаємо схему електричних з’єднань ТЕЦ по варіанту 2.
4. Розрахунок струмів КЗ
4.1 Розрахунок
параметрів елементів схеми
станція турбогенератор трансформатор
струм
За базисну
потужність приймаємо: 
Базисна напруга: 
Розрахункова
схема показана на (рис 4.1)
Рис. 4.1
Приводимо параметри
елементів схеми заміщення до базисних:
Опори генераторів:
Опори
трансформаторів:
Опір реактора:
Опори
автотрансформаторів:
По розрахунковій
схемі складаємо схему заміщення.
Рис. 4.2. Схема
заміщення
Для розрахунку
струмів к.з. нам необхідно знати опір системи XC. Тому згортаємо
схему відносно точки KC, що знаходиться перед виходом в систему. Так
ми знайдемо XC. Внаслідок симетричності схеми
та
(
,
)
відносно точки
,
не
враховуємо.
4.2 Розрахунок к.з. в точці К1
Згортаємо схему
справа наліво відносно точки К1.
Рис. 4.2. Схема
заміщення
Рис. 4.3.
Згортання схеми заміщення
Знайдемо
коефіцієнти струморозподілу по гілкам схеми:
Перевірка:
4.2
Розрахунок струмів КЗ методом розрахункових кривих
Вихідну систему
замінимо еквівалентною з трьома променями, в першому проміні-генератор Г2,
в другому - генератори Г1, Г3, Г4, в
третьому-система.
Таблиця 4.1.
|
Назва променя
|
SЛ, МВА
|
С
|
|
Г1
|
75
|
0,38
|
|
Система
|
75
|
0,253
|
|
Г2, Г3,
Г4
|
225
|
0,367
|
Для променів маємо:
) для променя 1:
номінальний струм
променя
розрахунковий
опір променя при трифазному КЗ:
розрахунковий
опір променя при двухфазном КЗ:
) для променя 2:
номінальний струм
променя
розрахунковий
опір променя при трьохфазном КЗ:
розрахунковий
опір променя при двухфазном КЗ:
) для променя 3:
номінальний струм
променя
розрахунковий
опір променя при трьохфазном КЗ:
розрахунковий
опір променя при двухфазном КЗ:
По розрахункових
кривих визначаємо відносне значення періодичної складової струму КЗ кожного з
променів схеми, а також відразу обчислюємо значення струмів, що діють, і
ударний струм для кожного виду КЗ:
) Трьохфазне
КЗ, промінь 1 (1):
Струми в кА:
2) Трьохфазне КЗ,
промінь 2
Струми в кА:
3) Трьохфазне КЗ,
промінь 3
Струми в кА:
Ударний струм:
) двухфазне
КЗ, промінь 1 (
):
струми в кА:
5) двухфазне КЗ,
промінь 2
Токи в кА:
6) двухфазне КЗ,
промінь 3
струми в кА:
Результати
занесемо до табл. 4.2 і табл. 4.3.
Таблиця 4.2
|
№ п/п
|
Место к.з.
|
Вид к.з.
|
Uб
|
XЭ1
|
XЭ2
|
Параметры лучей
|
|
|
|
|
|
|
Луч
|
SЛ
|
CЛ
|
IНЛ
|
XРАСЧ
|
|
1
|
K1
|
(3)
|
10.50.074-1750,384,1240,193
|
|
|
|
|
|
|
|
|
|
|
|
|
|
2
|
75
|
0,253
|
4,124
|
0,292
|
|
|
|
|
|
|
3
|
225
|
0,367
|
12,37
|
0,605
|
|
2
|
K1
|
(2)
|
10.50.0920.0921750,464,120,386
|
|
|
|
|
|
|
|
|
|
|
|
|
|
2
|
75
|
0,01
|
4,12
|
17,8
|
|
|
|
|
|
|
3
|
325
|
0,53
|
17,87
|
1,455
|
Таблиця 4.3
|
m()
|
I'0.0
|
I'0.1
|
I'∞
|
I0.0, кА
|
I0.1, кА
|
I∞, кА
|
Iуд, кА
|
|
1
|
5
|
2,52
|
2,55
|
20,62
|
10,39
|
10,52
|
|
|
3,9
|
3,9
|
3,9
|
16,08
|
16,08
|
16,08
|
|
|
1,6
|
1,5
|
1,65
|
19,79
|
18,56
|
20,41
|
|
|
Сума
|
56,13
|
42,97
|
44,19
|
155,78
|
|
2,6
|
2,24
|
2,07
|
18,571
|
16
|
14,786
|
|
|
|
|
0,056
|
0,056
|
0,056
|
0,4
|
0,4
|
|
|
|
0,63
|
0,62
|
0,71
|
19,5
|
19,19
|
21,975
|
|
|
|
Сума
|
38,471
|
35,59
|
37,161
|
-
|
5. Вибір лінійного
реактора
Визначаємо кількість
одинарних реакторів.
Кількість приєднань на
секцію 10,5 кВ:
Приймаємо по 3
відгалудження на лінійний реактор.
Кількість л.р. на
секцію 10,5 кВ:
. Приймаємо
=1600
А.
Визначаємо опір
реактора. Опір реактора повинен бути таким, що знижує
до
величини
вимикача,
який знаходиться на цій лінії.
Приймаємо
вимикачі з
=20
кА.
.
.
.
Приймаємо реактор
РБГ-10-1600-0,20УЗ, з паспортними даними приведеними в табл. 5.1.
Таблиця 5.1.
|
Uн, кВ
|
Тривалий струм, А
|
Xном, Ом
|
Номін. втрати на фазу, кВт
|
Iдин., кА
|
Iтерм., кА
|
tтерм., C
|
|
10
|
1600
|
0,2
|
7,5
|
60
|
23,6
|
8
|
Для віддаленого к.з.
властивості джерел к.з. стають наближено однаковими. Індивідуальні їхні
властивості проявляються слабо. Їх можна об'єднати в промінь, потужність якого
дорівнює потужності всіх джерел включаючи систему
Потужність променя:
Номінальний струм
проміня:
.
.
станція
турбогенератор трансформатор струм
Враховуючи, що
струми трифазного к.з. перевищують струми двофазного к.з., перевірку реактора
робимо по струмам трифазного к.з.
Для трьохфазного
к.з по розрахунковим кривим знаходимо:
Струми в кА:
Ударний струм:
Фактичний струм
через реактор:
1) Перевірку
реактора на електродинамічну стійкість виконаємо за умовою:
= 60 кА >
=
58,913 кА.
Умова
електродинамічної стійкості виконується.
2) Виконаємо
перевірку реактора на термічну стійкість:
Заводське значення
теплового імпульсу струму к.з.,
.
- струм термічної
стійкості.
- час термічної
стійкості.
Розрахунковий
тепловий імпульс струму к.з. за реактором:
.
Приймаємо
.
Приймаємо
.
- повний час
відключення вимикача.
.
- повний час
відключення вимикача.
Умова термічної
стійкості виконується.
6.
Вибір апаратури на розрахунковому відгалуженні
.1
Вибір вимикача розрахункового відгалуження.
Робочий струм
В обтяжувальному
режимі:
Вибираємо вимикач
типу МГГ-10-3150-45У3. Параметри вимикача занесемо в таблицю 6.1.
По робочому
струму:
Перевірка на
електродинамічну стійкість
<
=
120 кА
Умова на
електродинамічну стійкість вимикача виконується.
Перевірка на термічну
стійкість
Заводське значення
теплового імпульсу струму к.з.,
.
- струм термічної
стійкості.
- час термічної
стійкості
Визначаємо
розрахунковий тепловий імпульс струму к.з. за реактором
.
= 0,15 с - повний час відключення вимикача,
= 2,4 с - час дії резервного захисту.
с.
Умова термічної
стійкості вимикача виконується
Перевірка на відключаючу
здатність
В першу чергу проводиться
перевірка на симетричний струм відключення по умові
Потім провіряється можливість відключення аперіодичної складової
струму к.з.
-номінальне значення
відносного вмісту аперіодичної складової в струмі, що відключається.
.
де
-
власний час вимикача,
- мінімальний час дії
релейного захисту
с.
Умова виконується.
Таблиця 6.1.
|
Величини
|
Одиниці вимірювань
|
Параметри
|
|
|
Паспортні
|
Розрахункові
|
|
Тип
|
|
МГГ-10-3150-45У3
|
|
Робоча напруга
|
кВ
|
10
|
10
|
|
Робочий струм
|
А
|
3150
|
194
|
|
Струм відключення
|
кА
|
45
|
21,363
|
|
Струм електродинамічної стійкості
|
кА
|
120
|
58,91
|
|
Термічна стійкість
|
81001209
|
|
|
.2 Вибір шинних
роз’єднувачів на лінійному реакторі
В обтяжувальному режимі:
Вибираємо
роз’єднувач типу РВЗ-10/1000УЗ. Параметри зводимо в таблицю 5.3.
Перевірка
на електродинамічну стійкість:
<
.
Умова на
електродинамічну стійкість роз’єднувача виконується.
Перевірка
на термічну стійкість
Заводське
значення теплового імпульсу струму к.з.,
.
- струм термічної
стійкості.
- час термічної
стійкості
Визначаємо
розрахунковий тепловий імпульс струму к.з. за реактором,
.
= 0,08 с - повний час
відключення роз’єднувача.
= 2,4 с - час дії
резервного захисту.
с.
Умова на термічну
стійкість роз’єднувача виконується.
Таблиця 6.2.
|
Назва параметрів
|
Одиниці вимірюв.
|
Номінальні параметри
|
Розраховані параметри
|
|
Тип
|
РВЗ-10/1000УЗ
|
|
Напруга, U
|
кВ
|
10
|
10
|
|
Струм, I
|
А
|
1000
|
582
|
|
Струм електродинам. стійк., Iуд.
|
кА
|
100
|
58,913
|
|
Тепловий імпульс струму к.з., В
|
64001177
|
|
|
.3 Вибір кабелю
Вибираємо кабель по
напрузі і струму.
Вибираємо
трьохжильний кабель АСБУ Uном.=10 кВ. Визначимо економічний переріз,
прийнявши економічну густину струму 1,1 А/мм²:
Вибираємо кабель
з перерізом струмопровідної жили 150
, з
.
) Визначимо
значення тривало допустимого струму з врахуванням поправки на кількість
прокладених поруч в землі кабелів К1 і температуру довкілля К2. При відстані
між кабелями 100 мм 1, 0,92 при t=15ºC:
Оскільки
<
,
то по допустимому струму кабель підходить.
) Виконуємо
перевірку кабеля на термічну стійкість за умовою:
- мінімальний переріз
кабеля, який при розрахунковому струмі к.з. обумовлює нагрів кабеля до
короткочасно припустимої температури.
- розрахунковий
тепловий імпульс струму к.з.
- функція, для кабелю
до 10 кВ з алюмінієвими жилами
.
.
Переріз кабеля
Оскільки
Умова на термічну
стійкість кабеля виконується
.4
Вибір вимірювального трансформатора струму
.
Таблиця 6.3.
Вторинне навантаження трансформаторів струму
|
Прилад
|
Потужність, яка споживається
послідов. обмоткою тр-ра I(S), BA
|
Пофазно
|
|
|
Фаза А
|
Фаза В
|
Фаза С
|
|
Амперметр
|
0,5
|
0,5
|
-
|
-
|
|
Лічильник акт. енергії
|
2,5
|
2,5
|
-
|
2,5
|
|
Ватметр
|
0,5
|
0,5
|
-
|
0,5
|
|
Варметр
|
0,5
|
0,5
|
-
|
0,5
|
|
4403,5
|
|
|
|
|
= 4 (ВА) - сумарна
потужність, що споживається приладами,
= 5 (А) - номінальний
вторинний струм.
Визначаємо
сумарний опір приладів:
.
Вибираємо
трансформатор струму, який для класу точності 0,5 має відповідний зовнішній
опір. Вибираємо трансформатор струму ТПЛ-10 з параметрами:
Перехідний опір
контактів приймаємо 0,1 Ом, тоді опір проводів:
,
Приймаючи довжину
з’єднувальних проводів з алюмінієвими жилами 5,5 м, визначаємо переріз:
,
де
=0.0283
- питомий опір матеріалу проводу.
В якості
з’єднувальних приладів приймаємо багатожильні контрольні кабелі КРВГ з
перерізом 3 мм².
1) Перевірка на
електродинамічну стійкість:
Умова на
електродинамічну стійкість виконується.
2) Перевірка на
термічну стійкість:
Заводське значення
теплового імпульсу струму к.з.
.
- струм термічної
стійкості,
- час термічної
стійкості.
Розрахунковий
тепловий імпульс струму к.з. за реактором
Умова на термічну
стійкість виконується.
Результати
занесемо до табл. 6.4.
Таблиця 6.4.
|
Назва параметру
|
Одиниці вимірюв.
|
Номінальні параметри
|
Розраховані параметри
|
|
Тип трансформатора
|
ТПЛ-10
|
|
|
Напруга, U
|
кВ
|
10
|
10
|
|
Струм, I
|
А
|
300
|
184
|
|
Струм електродинам. стійк., Iуд.
|
кА
|
175
|
58,913
|
|
Тепловий імпульс струму к.з., В
|
60751177
|
|
|
|
Навантаження, r
|
Ом
|
0,4
|
0,16
|
|
|
|
|
|
6.5 Вибір вимірювальних
трансформаторів напруги
Таблиця 6.5. Вторинне
навантаження трансформаторів напруги.
|
№ п/п
|
Назва приладу
|
Кількість
|
Навантаження одного приладу
|
Навантаження всіх приладів
|
|
|
|
Р, ВА
|
Q, ВА
|
P
|
Q
|
|
1
|
Вотльтметр показуючий
|
2
|
2
|
-
|
4
|
-
|
|
2
|
Ватметр
|
15
|
0,5
|
1,5
|
7,5
|
22,5
|
|
3
|
Варметр
|
15
|
0,5
|
1,5
|
7,5
|
22,5
|
|
4
|
Лічильник акт. енергії
|
15
|
2,5
|
3
|
37,5
|
45
|
|
5
|
Вольтметр контролю ізоляції
|
3
|
2
|
-
|
6
|
-
|
|
6
|
Вольтметр реєструючий
|
1
|
2
|
-
|
2
|
-
|
|
7
|
Варметр реєструючий
|
1
|
1,5
|
0,5
|
1,5
|
|
Всього
|
|
|
|
65
|
91,5
|
Примітка.
. Врахована установка
ватметрів, варметрів, лічильників на кожному відгалудженні секцій і на
трансформаторі зв’язку.
. Врахована установка
вольтметрів контролю ізоляції в кожній фазі.
.
Вибираємо
трансформатор напруги НТМИ-10-66 УЗ.
.
Вибраний
трансформатор напруги забезпечує клас точності 0,5.
Результати
занесемо до табл. 6.6.
Таблиця 6.6.
|
Назва параметру
|
Одиниці вимірюв.
|
Номінальні параметри
|
Розраховані параметри
|
|
Трансформатор напруги
|
НТМИ-10-66 УЗ
|
|
Напруга, U
|
кВ
|
10
|
10
|
|
Потужність
|
ВА
|
120
|
112.2
|
7. Вибір вимикача ГРП.
Номінальний струм
Вимикачі визначаємо за струмом режиму перенавантаження:
Вибираємо вимикач
типу МГГ-10-5000/45 УЗ - 10. Параметри вимикача занесемо в таблицю 7.1.
Для визначення
струму к.з. через вимикач виконується розрахунок
3-фазного к.з. на шинах 10 кВ для 2-променевої схеми (1-й промінь - генератор,
2-й промінь - всі інші генератори і система).
Знайдемо
коефіцієнти струморозподілу:
Для променів
маємо:
) для променя 1:
номінальний струм
променя
розрахунковий
опір променя при трьохфазном КЗ:
) для променя 2:
номінальний струм
променя
розрахунковий
опір променя при трьохфазном КЗ:
1) Трьохфазне КЗ,
промінь 1 (1):
Струми в кА:
) Трьохфазне КЗ,
промінь 2 (1):
Струми в кА:
Ударний струм:
Перевірка на
електродинамічну стійкість
<
=
120 (кА).
Умова на
електродинамічну стійкість вимикача виконується.
Перевірка на термічну
стійкість.
Заводське значення
теплового імпульсу струму к.з.,
.
- струм термічної
стійкості.
- час термічної
стійкості
Визначаємо
розрахунковий тепловий імпульс струму к.з.
.
= 0,15 с - повний час
відключення вимикача,
= 2.4 с - час дії
резервного захисту.
с.
Умова термічної
стійкості вимикача виконується
Перевірка
на відключаючу здатність
В першу чергу
проводиться перевірка на симетричний струм відключення по умові
Потім провіряється можливість відключення аперіодичної складової
струму к.з.
,
-номінальне значення
відносного вмісту аперіодичної складової в струмі, що відключається.
.
де
-
власний час вимикача,
- мінімальний час дії
релейного захисту
с.
Умова виконується.
Дані занесемо в
таблицю 7.1:
Таблиця 7.1.
|
Величини
|
Одиниці вимірювань
|
Параметри
|
|
|
Паспортні
|
Розрахункові
|
|
Тип
|
|
МГГ-10-5000/45УЗ
|
|
Робоча напруга
|
кВ
|
10
|
10
|
|
Робочий струм
|
А
|
5000
|
4330
|
|
Струм відключення
|
кА
|
45
|
21,445
|
|
Струм електродинамічної стійкості
|
кА
|
120
|
59,139
|
|
Термічна стійкість
|
81005639
|
|
|
8. Відкриті розподільчі
установки
.1 Опис відкритої
розподільчої установки
Проектована ТЕЦ має два
розподільні пристрої високої напруги, виконані на відкритому повітрі
ВРП 110 кВ.
Для видачі потужності
станції на напрузі 110 кВ приймаємо 2 лінії електропередачі.
Визначаємо загальну
кількість приєднань 110 кВ:
– трансформатори зв’язку
110/10 кВ - 2;
– блочний
трансформатор 110/10 кВ - 1;
– автотрансформатори
зв’язку 110/220 кВ - 2;
– резервний
трансформатор власних потреб 110/6 кВ - 1;
– лінії
електропередачі 110 кВ - 2.
Всього 8 приєднань.
Враховуючи кількість
приєднань, приймаємо схему ВРУ-110 кВ з двома робочими системами шин і з
обхідною системою шин.
Прийнята схема
забезпечує достатню надійність роботи ВРУ-110 кВ.
Наявність обхідної
системи шин 110 кВ дає можливість виводити в ремонт вимикачі приєднань 110 кВ
із заміною на обхідний вимикач без перерви енергопостачання споживачів. Збірні
шини й ошиновку виконують неізольованими сталеалюмінієвими проводами на
відтяжних і підвісних гірляндах ізоляторів або твердими алюмінієвими трубами на
опорних ізоляторах. Жорсткі шини дозволяють застосувати більш прості несучі
конструкції, зменшити займану площу й висоту ВРП. Однак вартість жорстких
шинних конструкцій вище вартості гнучких шин, а також для їхнього кріплення
потрібні більш дорогі й менш надійні опорні ізолятори. Тому на проектованій
станції збірні шини й ошиновка виконані неізольованими сталеалюмінієвими
проводами. Майданчик ВРП захищається від іншої території станції внутрішнім
забором висотою 1.6 м - суцільним, сітчастим, ґратчастим. На ВРП встановлені
елегазові вимикачі ВГУ-110 і роз'єднувачі РНД3-110В/100.
ВРП 220 кВ
Для з’єднання
електростанції з системою та видачі або прийому потужності в енергосистему або
з енергосистеми приймаємо 2 лінії електропередачі 220 кВ.
Визначаємо загальну
кількість приєднань 220 кВ:
лінії електропередачі
220 кВ - 3;
– блочний трансформатор 110/10
кВ - 1;
– автотрансформатори
зв’язку 220/110 кВ - 2;
Всього 6 приєднань 220
кВ.
Враховуючи кількість
приєднань, приймаємо схему ВРУ 220 кВ полуторну з трьома вимикачами на 2
приєднання.
В нормальному режимі
відключення будь-якого елементу схеми не призводить до порушення зв’язку з
енергосистемою та до перерви енергопостачання споживачів.
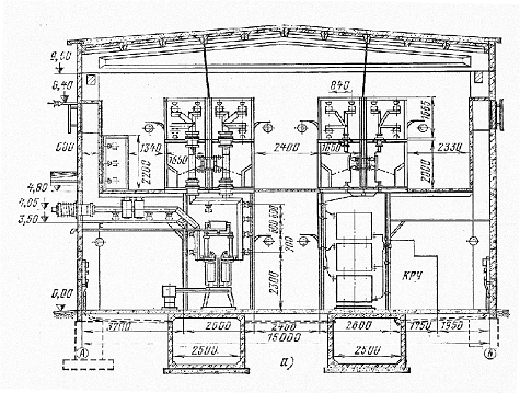
ГРП - 10 кВ
У ГРП 10 кВ
використовуються гнізда КРУ з вакуумними малооб`ємними вимикачами
МГГ-10-5000/45 УЗ - 10. В ГРП 10 кВ передбачено 2 секції збірних шин до кожної
з яких приєднаний генератор 60 МВт. Будівля споруджується із стандартних
залізобетонних конструкцій, несучі колони розволожені в два ряди кожні 6 м. На
колони опираються балки перекриття прольотом 15 м. Висота будівлі до балок 9.6
м. Стіни із залізобетонних плит не мають віконних промів. Основою комірок є
стальний каркас, на який опираються плити міжповерхового перекриття на висоті
4.8 м. Таким чином, будівля ГРУ - двохповерхова. Все обладнання розташоване в
два ряди у відповідності зі схемою. Робоча СШ розташована в центральному
відділі, резервна - в бокових відділах, по довжині будівля розділена
поперечними стінами, що відділяють одну секцію від іншої. Перегородки комірок
першого поверху - із залізобетонних плит, другого - із абсоцементних плит, закріплених
на металічному каркасі. Збірні шини коробчасті, алюмінієві, з відстанню між
фазами по горизонталі 840 мм, по вертикалі 1180 мм, з прольотами між
ізоляторами 800 мм, розраховані на ударний струм 300 кА. Блоки збірних шин і
шинних роз’єднувачів опираються на металічний каркас комірок першого поверху.
Тяжке обладнання - генераторні вимикачі, секційні реактори, комірки КРУ - на
першому поверсі, фундаментом для них служать залізобетонні конструкції тунелей
для силових і контрольних кабелів. Спеціальні вентиляторні тунелі не
споруджуються, підвід охолоджуючого повітря в камери реакторів для збірних шин
здійснюється із центрального коридору першого поверху.
8.2 Вибір і розрахунки
гнучких шин
У РП 35 кВ і вище
застосовуються гнучкі шини, виконані проводами АС. Гнучкі струмопроводи для
з'єднання генераторів і трансформаторів з РП 6-10 кВ виконуються пучком
проводів, закріплених по окружності в кільцях-обіймах. Два проводи з пучка -
сталеалюмінієві - несуть в основному механічне навантаження від власної маси
струмопровода, ожеледі й вітру. Інші проводи - алюмінієві - є тільки
струмоведучими. Перетин окремих проводів у пучку рекомендується вибирати
максимально великим (500, 600 мм²), тому що це зменшує число проводів і вартість струмопровода.
Перетин гнучких шин і
струмопроводів вибирається:
по економічній щільності
струму:
і перевіряється
по тривалому припустимому струму з умови нагрівання
,
по припустимій
термічній дії струму к.з.
або 
по
електродинамічній дії струму к.з.
Гнучкі шини й
струмопроводи звичайно кріпляться на гірляндах підвісних ізоляторів з досить
великою відстанню між фазами. Так, для збірних шин прийняті відстані: при
напрузі 35 кВ - 1,5 м; 110 кВ - 3,0 м; 220 кВ - 4,0 м; для струмопроводів
генераторної напруги - 3,0 м. При таких відстанях сили взаємодії між фазами
невеликі, і тому розрахунки на динамічну стійкість гнучких шин звичайно не
роблять. Однак при більших струмах к.з. проведення у фазах можуть настільки
зблизитися один з одним, що відбудеться їх схльостування.
Найбільше
зближення фаз спостерігається при двофазному короткому замиканні сусідніх фаз,
коли проводи спочатку відкидаються в протилежні сторони, а потім, після
відключення струму к.з., рухаються назустріч один одному. Їхнє зближення буде
тим більше, чим менша відстань між фазами, чим більша стріла прогину й чим
більша тривалість протікання й величина струму к.з.
Розрахунок
струма к.з ВРУ-110кВ по методу загальної зміни
Визначимо
реактивний опір системи з урахуванням того, що Uб110 = 110 кВ
Відносний опір системи, наведений до базисної напруги 110 кВ:
Знайдемо
еквівалентний опір системи відносно точки К3:
Рис. 8.1. Схема
заміщення
Розрахуємо
струм короткого замикання
Потужність
променя
Номінальний струм променя:
Розрахунковий
опір променя при трьохфазном к.з.:
Розрахунковий
опір променя при трьохфазном к.з.:
) Для трьохфазного к.з
по розрахунковим кривим знаходимо:
Струми в кА:
Ударний струм:
) Для двофазного
к.з(
)
по розрахунковим кривим знаходимо:
Струми в кА:
Результати
занесемо до табл. 8.1. і табл. 8.2.
Таблиця 8.1.
|
№ п/п
|
Місце к.з.
|
Вид к.з.
|
Uб
|
XЭ1
|
XЭ2
|
XЭ0
|
XЭ()
|
Параметри променів
|
|
|
|
|
|
|
|
|
SЛ
|
CЛ
|
IНЛ
|
XРОЗР.
|
|
1
|
K3
|
(3)
|
110
|
0,041
|
-
|
-
|
0,041
|
498,1
|
1
|
2,614
|
0,272
|
|
2
|
K3
|
(2)
|
110
|
0,041
|
0,041
|
-
|
0,082
|
498,1
|
1
|
2,614
|
0,544
|
Таблиця 8.2.
|
m()
|
I'0.0
|
I'0.1
|
I'∞
|
I0.0
|
I0.1
|
I∞
|
Iуд
|
|
1
|
3
|
3,7
|
2,35
|
9,672
|
7,842
|
6,143
|
26,673
|
|
1,81,61,728,157,2447,787-
|
|
|
|
|
|
|
|
Розрахунок однофазного
к.з на ВРУ-110 кВ
Розрахуємо
однофазне к.з. на шинах 110 кВ. Приймемо, що від ВРУ - 110кВ відходить три ЛЕП
довжиною
,
з погонним опором
та
за нею знаходяться три трансформатори з
.
Знайдемо величини
опорів у відносних одиницях. За базисну приймемо потужність Sб = 75
МВА. За базисну візьмемо напругу 110 кВ.
Опір понижуючих
трансформаторів:
Опір ліній:
Опір автотрансформаторів і системі:
Побудуємо схему
заміщення для нульової послідовності:
Еквівалентний
опір схеми нульової послідовності буде дорівнювати:
Розрахуємо струм
к.з. методом загальної зміни:
Потужність
променя:
Номінальний струм
променя:
:
Розрахунковий
опір променя при однофазному к.з.:
Для однофазного
к.з(
)
по розрахунковим кривим знаходимо:
Струми в кА:
Результати
занесемо до табл. 8.3. і табл. 8.4.
Таблиця 8.3.
|
№ п/п
|
Місце к.з.
|
Вид к.з.
|
Uб
|
XЕ1
|
XЕ2
|
XЕ0
|
Параметри
променів
|
|
|
|
|
|
|
|
|
|
SЛ
|
CЛ
|
IНЛ
|
XРАСЧ
|
|
1
|
K3
|
(1)
|
1100,0410,0410,0210,103498,112,6140,684
|
|
|
|
|
|
|
|
|
Таблиця 8.4.
|
m()
|
I'0,0
|
I'0,1
|
I'∞
|
I0,0
|
I0,1
|
I∞
|
|
3
|
1,43
|
1,32
|
1,51
|
11,214
|
10,351
|
11,841
|
Перевірка за умовами
корони
Номінальний струм
гнучких шин:
Необхідний перетин
гнучких шин:
По таблиці
приймаєм провід АС-1000/56, який має наступні параметри:= 1000 мм², d = 42.4 мм, Iдоп = 1180А, 2769
кг. Відстань між фазами D =3 м, фази розташовані горизонтально
Перевірка
необхідна для гнучких провідників при напрузі 35 кВ та вище.
Розряд у вигляді
корони виникає навколо проводу при високих напруженостях електричного поля і
супроводжується потріскуванням і світінням.
Процеси іонізації
повітря навколо проводу призводять до додаткових втрат електроенергії, до
виникнення електромагнітних коливань, які створюють радіоперешкоди, до
виникнення озону, який шкідливо впливає на поверхню контактних з’єднань.
Правильний вибір
провідників повинен забезпечити зменшення дії корони до допустимих значень.
Розряд у вигляді
корони виникає при максимальному значенні початкової критичної напруженості
електричного поля, кВ/см.
,
де
-
коефіцієнт, який враховує шершавість поверхні провода, для багатопроволочних
проводів
;
- радіус проводу, см.
.
.
Напруженість
електричного поля біля поверхні нерозщепленого проводу визначається за виразом:
де
-
лінійна напруга. Приймаємо
=126 кВ (найбільша
робоча напруга для мережі 110 кВ згідно з Л-6 - «Правила технічної експлуатації
електричних станцій і мереж», п. 12.12.22).
- середньо-геометрична
відстань між проводами фаз, см. При горизонтальному розташуванні дротів
.
.
При
горизонтальному розташуванні проводів напруженість на середньому проводі
приблизно на 7 % більше величини
.
Проводи не будуть
коронувати, якщо найбільша напруженість поля біля поверхні проводу не більша
0,9
.
Тоді умова
перевірки на корону має вигляд:
.
Виконуємо
перевірку:
.
Таким чином,
коронування не виникає.
Перевірка
шин на схлестування при к.з.
При великих
значеннях струмів к.з. проводи в фазах внаслідок взаємодії можуть наблизитися
так, що виникне схлестування або перекриття між фазами.
Найбільше
зближення фаз спостерігається при двофазному к.з. між сусідніми фазами, коли
проводи спочатку відкидаються в протилежні сторони, а потім після відключення
к.з. рухаються назустріч один одному. Їх наближення буде тим більшим, чим менша
відстань між фазами і чим більша стріла провису, а також чим більша тривалість
протікання і величина струму к.з.
Перевіримо
гнучкий струмопровід на умови схлестування.
Визначимо зусилля
від тривалого протікання струму двофазного к.з.
де,
- відстань між фазами.
Приймаємо D=3 м.
- періодична складова
струму при 2ф к.з. на шинах 110 кВ для t=0.
за розрахунком.
Тоді
.
Визначимо силу
тяжіння 1 м струмопроводу, кг.
,
де
-
маса 1 м стумопроводу, кг.
Для АС-1000/5
.
.
Задаючись стрілою
прогину h, визначаємо параметр
,
де
-
еквівалентний за імпульсом час дії швидкодіючого захисту.
,
де,
- дійсна витримка часу захисту від струмів к.з.,
,05 -
враховується вплив аперіодичної складової.
Максимальна
стріла прогину h залежить від довжини прольоту, тяжіння проводів, мінімально
припустимої відстані від землі, умов монтажу та інших факторів.
Зазвичай, h не
більше 2 - 2,2 м.
Приймаємо h = 2
м, тоді
.
По діаграмі рис.
4.8 (Л-2), в залежності від
і
,
визначаємо відхилення проводу b та кут
.
. Знаходимо
.
Звідси
.
Знайдене значення
порівнюємо з максимально-допустимим.
,
де,
-
діаметр проводу,
;
- найменша припустима
відстань між проводами в момент їх найбільшого зближення.
при 110 кВ згідно з
ПУЕ.
.
.
Схлестування не
відбувається.
Вибір
розрядників
Вибір розрядників
в нейтралі 110 кВ трансформаторів.
Мережі 110 кВ
працюють в режимі з ефективно заземленою нейтраллю трансформаторів. Це означає,
що нейтраль 110 кВ заземлюється не на всіх трансформаторах.
Згідно з вимогами
Правил технічної експлуатації електричних станцій і мереж розземлення нейтралі
обмоток 110 кВ силових трансформаторів, а також вибір дії релейного захисту і
системної автоматики повинні бути здійснені таким чином, щоб у разі різних
оперативних і автоматичних вимкнень не були виділені ділянки без
трансформаторів із заземленими нейтралями.
На
електростанціях трансформатори зв’язку 110/10 кВ та блочні трансформатори
110/10 кВ в деяких аварійних режимах можуть залишатися в роботі під напругою
тільки з низької сторони (від шин генераторної напруги 10 кВ або від блочного
генератора). Тому у таких трансформаторів нейтраль 110 кВ, як правило,
залишається завжди заземленою.
Для зменшення
струмів однофазного та двофазного на землю короткого замикання інші
трансформатори 110 кВ на електростанціях і в електричних мережах, які не
залишаються в роботі з живленням з низької сторони, можуть працювати з
роземленою нейтраллю.
На теперішній час
трансформатори для мереж з ефективно заземленою нейтраллю (110-220 кВ)
випускаються з ізоляцією з боку нейтралі, зниженою на клас (для мережі 110 кВ -
з ізоляцією на 35 кВ).
В аварійних
режимах мережі 110 кВ напруга в нейтралі трансформаторів, які працюють з
розземленою нейтраллю, може підвищуватись до
, де
-
найбільша робоча напруга електроустаткування, що складає 121 кВ.
.
Для резервного
трансформатора власних потреб 110/6 кВ нейтраль 110 кВ передбачається
заземленою.
Вибираємо в
нейтралі вентильний розрядник РВС-110 з номінальною напругою 110 кВ і
найбільшою допустимою напругою 100 кВ.
Вибір
комплектного струмопроводу на 10 кВ
Вибираємо
комплектний пофазно-екранований струмопровід ТЭНЕ-10-5000 250 УХЛ1, Т1.
Струмопровід з компенсованим зовнішнім електромагнітним полем призначений для
електричних з'єднань на електричних станціях, в ланцюгах трифазного струму
частотою 50 Гц турбогенераторів потужністю до 1200МВт
Таблиця 8.5.
Номінальні характеристики
|
Тип струмопроводу
|
ТЭНЕ-10-5000 - 250 УХЛ1, Т1
|
|
Номінальна напруга, кВ
|
10
|
|
Номінальна струм, А
|
5000
|
|
Струм термічної стійкості, кА
|
100
|
|
Струм динамічної стійкості, кА
|
250
|
|
Зовнішній діаметр екрану, D, мм
|
408
|
|
Відстань між осями фаз, А, мм
|
500
|
Перевіряємо струмопровід
за умовами максимального струму:
Умова стійкості
виконується.
9. Схеми релейного
захисту
.1 Призначення релейного
захисту. Типи реле
Релейний захист (РЗ) є
найважливішою частиною автоматики електроустановок і енергосистем. Її основне
завдання полягає в тому, щоб знайти ушкоджену ділянку електричної системи і
якомога швидше видати керуючий сигнал на його відключення. Додаткове завдання
релейного захисту полягає в сигналізації про виникнення ненормальних режимів.
Релейний захист
виконується за допомогою різних типів реле.
Реле підрозділяються на
первинні й вторинні, а також на реле прямої й непрямої дії. Первинні реле
включаються безпосередньо в первинний ланцюг, а вторинні реле - через
трансформатори струму й напруги. Реле прямої дії впливають безпосередньо на
механізм привода вимикача, а реле непрямої дії - побічно, через електромагніт
відключення. Нижче розглядаються тільки захист, виконаний за допомогою
вторинних реле непрямої дії.
Розрізняють основні й
допоміжні реле. При аварійних і ненормальних режимах в енергосистемі змінюються
струми ланцюгів і їх фази, напрузі в різних точках мережі, напрямку потоків
потужностей, частота змінного струму в мережі, взаємні опори між різними
точками мережі й т. п. Тому в якості основних реле використовують реле струму,
напруги, напрямку потужності, частоти й опори. У якості допоміжних реле
застосовують реле часу, проміжні й вказівні реле.
На схемах положення
контактів реле, як правило, вказується для так званих нормальних умов, якщо
котушки реле не обтікається струмом.
9.2 Вимоги до релейного
захисту
До пристроїв релейного
захисту, який діє на відключення, у загальному випадку пред'являються наступні
чотири вимоги: селективність (вибірковість) дії; швидкість дії; чутливість; надійність
роботи.
Селективна дія - це така
дія релейного захисту, при якому забезпечується відключення тільки ушкодженого
елемента системи.
Ушкоджений елемент
системи завжди бажано відключити якомога швидше. Однак швидкість відключення
обмежується власним часом релейного захисту й вимикача, а також умовами
забезпечення селективної роботи релейного захисту. У загальному випадку час
відключення рівняється:
де tв.ч.г.з -
власний час релейного захисту;з - витримка часу, установлена на
захисті;в.ч.\в-власний час вимикача, тобто час від подачі імпульсу
на котушку відключення до моменту початку розімкнення дугогасних контактів
вимикача;д - час горіння дуги;д - повний час
відключення вимикача.
Для захисту, якій діють
без витримки часу, залежно від типів реле й вимикачів час відключення дорівнює:
с
Таким чином, при
існуючих типах реле йівимикачів нижня границя часу відключення коротких
замикань може становити 3-12 періоди струму частотою 50 Гц.
Релейний захист
має бути досить чутливим до ушкоджень на елементі енергосистеми, який
захищається, а в ряді випадків - також і до ушкоджень на суміжних елементах
системи. При цьому забезпечується резервування дії захистів у випадку відмови
однієї з них.
Вимога надійності
роботи релейного захисту, як властивості виконувати задані функції, зберігаючи
свої експлуатаційні показники в заданих границях протягом необхідного проміжку
або часу необхідного виробітку, зводиться до того, щоб захист надійно
відпрацьовував у тих випадках, якщо вона повинна працювати, і надійно не
відпрацьовувала в інших випадках. Чим простіша схема захисту, менша кількість
реле й контактів у схемі, краща якість реле і якість монтажу вторинних
ланцюгів, тим надійніше працює захист у цілому. Якщо на той самий вимикач діє
кілька незалежних захистів, то надійність спрацьовування підвищується, а
надійність неспрацьовування знижується. Цю обставину необхідно враховувати при
проектуванні пристроїв релейного захисту
9.3
Релейний захист генераторів
Сучасні
генератори є складними й дорогими машинами. Тому до релейного захисту
генераторів пред'являються вимоги підвищеної чутливості при розрахункових видах
ушкодження, збільшення швидкодії, зменшення або повного усунення мертвих зон.
До основних видів
ушкоджень генераторів відносяться:
1. Міжфазні КЗ в
обмотці статора. Це найбільш важкий вид ушкодження, тому що супроводжується
протіканням великих струмів і, як наслідок, значними ушкодженнями обмотки й
заліза статора;
2. Однофазні
замикання на землю в обмотці статора;
. Виткові
замикання обмотки статора;
. Замикання між
витками однієї фази в обмотці статора;
. Замикання на
землю в двох точках ланцюга ротора;
. Проходження в
обмотці статора струму вище номінального, обумовленого зовнішнім КЗ;
. Проходження в
обмотці статора струму, обумовленого симетричним перевантаженням.
Для захисту від
багатофазних КЗ в обмотці статора генератора встановлюється швидкодіючий
поздовжний диференціальний захист, що діє на відключення. Мережі генераторної
напруги в РБ працюють із ізольованою нейтраллю і тому диференціальний захист
може виконуватися на двох фазах. Однак у цьому випадку не забезпечується
відключення генератора при подвійних замиканнях на землю (одне із замикань у
мережі, інше - на фазі генератора, що не має диференціального захисту). Тому
додатково до двофазного дифзахисту передбачають релейний захист від замикань на
землю. Таким чином, з метою підвищення надійності захисту генераторів
установлюємо трифазний дифзахист.
Для захисту генератора
від однофазних замикань на землю в обмотці статора використовуємо блок-реле
БРЭ1301 у виконанні ЗЗГ-12.
Для захисту від виткових
замикань застосовується поперечний дифзахист, що базується на порівнянні
струмів двох паралельних віток статора.
Для захисту ланцюгів
порушення (ротора) генератора від замикання на землю передбачаємо спеціальний
релейний захист; дія її засноване на принципі мосту постійного струму, плечі
якого становлять опори ланцюга збудження і спеціального потенціометра. Захист
включається в роботу тільки з появою стійкого замикання на землю в одній точці
ланцюга порушення і є захистом від появи другого замикання на землю в ланцюзі
збудження. Захист передбачається в одному комплекті на всю станцію, який
виконується переносним. При замиканні на землю в одному місці ланцюга збудження
генератор може продовжувати працювати. У вимірювальному ланцюзі встановлюється
максимальний струмовий захист, що діє на сигнал.
Для захисту обмотки
статора генератора від симетричного перевантаження передбачаємо захист на реле
РТВК із високим коефіцієнтом повернення, включеному в одну з фаз вторинного
ланцюга ТА.
Фільтровий захист
зворотної послідовності застосовується для захисту генератора від зовнішніх КЗ
і для захисту генератора від несиметричних перевантажень.
9.4 Релейний захист трансформаторів
Для силових
трансформаторів, а також ТНС використовується релейний захист від наступних
видів ушкоджень і ненормальних режимів роботи:
1.
Багатофазних замикань в
обмотках і на їхніх виводах;
2.
Внутрішніх ушкоджень
(виткових замикань в обмотках і «пожежі сталі» магнітопроводу);
3.
Однофазних замикань на
землю;
4.
Надструмів в обмотках,
обумовлених зовнішніми КЗ;
5.
Надструмів в обмотках,
обумовлених перевантаженням (якщо вона можлива).
6.
Зниження рівня масла.
При виконанні захисту
трансформатора необхідно враховувати деякі особливості його нормальної роботи,
стрибки струму намагнічування при включенні трансформатора під напругу, вплив
коефіцієнта трансформації й схем з'єднання обмоток трансформатора.
Для захисту від
багатофазних замикань в обмотках і на виводах блокових трансформаторів, а також
ТСН передбачається повздовжний диференціальний захист із циркулюючими струмами,
що діє на відключення вимикачів силового трансформатора без витримки часу.
Особливістю дифзахисту трансформаторів у порівнянні з дифзахистом генераторів,
є нерівність первинних струмів різних обмоток трансформатора і їх розбіжність у
загальному випадку по фазі.
Для компенсації зміщення
струмів по фазі вторинні обмотки трансформаторів струму, установлених з боку
зірки силового трансформатора, з'єднують у трикутник, а вторинні обмотки
трансформаторів струму, установлених з боку трикутника силового трансформатора,
- у зірку. Компенсація нерівності первинних струмів досягається правильним
підбором коефіцієнтів трансформації трансформаторів струму. Якщо не вдається
підібрати коефіцієнт трансформації трансформаторів струму таким чином, щоб
різниця вторинних струмів у плечах дифзахисту була менше 10 % (тому що
трансформатори струму мають стандартне значення коефіцієнта трансформації), при
виконанні захисту для компенсації нерівності струмів використовують
диференціальні реле типу ДЗТ-21.
На робочих і
пускорезервних трансформаторах власних потреб електростанції застосовується
поздовжній дифзахист.
Найбільш простою схемою
виконання поздовжнього дифзахисту є диференціальна струмова відсічка, яке
застосовується у випадках, коли вона задовольняє вимогам чутливості. Якщо ця
умова не виконується, у поздовжньому дифзахисті використовують реле типу
ДЗТ-21.
На трансформаторах з
регулюванням напруги під навантаженням передбачаємо дифзахист з гальмуванням і
установкою реле типу ДЗТ або їх замінники. Попередньо захист розраховується для
випадку застосування реле без гальмування. Якщо вона виявляється недостатньо
чутливою, застосовують реле з мінімальним числом гальмуючих обмоток, що
забезпечують необхідну чутливість.
Для захисту від
внутрішніх ушкоджень (виткових замикань в обмотках, що супроводжуються
виділенням газу) і від зниження рівня масла на всіх трансформаторах ТЕЦ,
застосовується газовий захист із дією на сигнал при слабких і на відключення
при інтенсивних газоутвореннях.
Газовий захист
встановлюється на трансформаторах, що мають розширники, з масляним
охолодженнямі здійснюється за допомогою поплавкових, лопатевих і чашкових
газових реле. Газовий захист є єдиним захистом трансформаторів від «пожежі
сталі» магнітопроводу, що виникає при порушенні ізоляції між листами стали.
У зв'язку із широким
застосуванням трансформаторів 6/0,4 кВ зі схемою з'єднання обмоток трикутник -
зірка, що мають глухо-заземлену нейтраль на стороні 0,4 кВ, застосовуємо
максимальний струмовий захист, встановлений на стороні ВН.
Для захисту блокових
трансформаторів від зовнішніх КЗ, застосовуємо струмовий захист нульової
послідовності.
9.5 Релейний захист шин
Короткі замикання на
шинах ТЕЦ виникають через забруднення або ушкодження шинних ізоляторів, втулок
вимикачів і вимірювальних трансформаторів струму, а також при помилкових діях
персоналу із шинними роз'єднувачами. Ушкодження на шинах малоймовірні. Однак,
враховуючи досить важкі наслідки, до яких ці ушкодження можуть привести,
необхідно мати захист, що діє при ушкодженні шин. У якості захисту шин
застосовуємо диференціальний струмовий захист.
Для виконання
диференціального захисту використовують трансформатори струму з однаковими
коефіцієнтами трансформації незалежно від потужності приєднання.
Диференціальний
струмовий захист шин напругою 220 кВ електричної станції охоплює всі елементи,
які приєднані до системи.
При цьому число
трансформаторів струму виявляється значним і ймовірність обриву їх вторинних
ланцюгів підвищена. Це враховується при виборі струму спрацьовування захисту.
При виникненні обриву захист автоматично з витримкою часу виводиться з дії. Для
цього в зворотній провід диференціального ланцюга ланцюга включається реле
струму, що спрацьовує при обриві вторинних ланцюгів будь-якого трансформатора
струму. Як і будь-який диференціальний захист, диференціальний захист шин не
повинен спрацьовувати при зовнішніх коротких замиканнях. Для підвищення
чутливості захисту використовуємо реле типу РНТ. Чутливість захисту вважається
достатнім, якщо при КЗ на шинах кч ³ 2.
Диференціальний
струмовий захист шин напругою 6-10 кВ виконується за спрощеною схемою. У її
ланцюги струму не включаються трансформатори струму споживачів електричної
енергії. Такий захист називається неповним диференціальним струмовим.
Захист виконується
двоступінчастим. Він містить перший і третій ступені. Перша ступінь, струмова
відсічка без витримки часу, є основною. Третя ступінь, максимальний струмовий
захист, резервує першу захист відходящих ліній, не охоплених диференціальним
захистом.
.6. Релейний захист
двигунів.
Диференціальний захист у
трифазному виконанні використовується для захисту від міжфазних КЗ двигунів
потужністю 4000 кВт і вище. Диференціальний захист виконується з використанням
трьох реле з гальмуванням типу ДЗТ-11.
Струмова відсічка
застосовується на двигунах потужністю менш 4000 кВт від тих же ушкоджень, що й
дифзахист.
Струмовий захист
нульової послідовності призначена для захисту двигунів від замикань на землю,
виконаної на реле типу РТЗ-51.
Захист від подвійних
замикань на землю виконується з реле струму типу РТ-40.
Захист мінімальної
напруги призначений для полегшення умов самозапуску двигунів відповідальних
механізмів.
Струмовий захист від
перевантаження встановлюється на двигунах, підвержених перевантаженням.
10. Схеми управління,
сигналізації, блокування, регулювання й автоматики
На електростанціях
застосовується дистанційне керування комутаційними апаратами (в основному,
вимикачами) при проведенні оперативних перемикань у нормальних режимах роботи й
при ліквідації аварійних станів.
Дія систем керування
супроводжується роботою пристроїв сигналізації, які дають оперативному
персоналу необхідну інформацію про стан устаткування й спрацьовування захисту й
автоматики. Для запобігання неправильних операцій передбачаються спеціальні
блокування.
Пристрої керування,
сигналізації і блокування з відповідними джерелами живлення утворюють на
електричних станціях систему вторинних ланцюгів. До цієї системи відносяться
схеми автоматики, релейного захисту й технологічного контролю.
Схеми керування повинні
передбачати блокування від «стрибання» можливість, що виключає, при к.з.
багаторазових включень вимикача при одному командному імпульсі; схема повинна
передбачати можливість не тільки ручного керування, але й подачі відповідного
імпульсу від пристроїв релейного захисту й автоматики.
Команди дистанційного
керування подаються вручну, як правило, за допомогою керування.
Виконавчими елементами
схем керування вимикачів з електромагнітними приводами є електромагніти
включення ЭВ і відключення ЭО. ЭВ повинні розвинути велике зусилля, тобто крім
переміщення контактної системи вимикача з його допомогою необхідно взвести
відключаючі пружини. Тому такі електромагніти споживають великий струм, їх
живлення здійснюється від джерела живлення через спеціальні шинки живлення
привода ШП. Операцію включення й відключення ланцюгів ЭВ виконує проміжний контактор
КП, котушка якого живиться від шинок керування через контакти ключа, що
замикаються при подачі команди на включення.
ЭО призначений для
звільнення засувки привода, після чого вимикач відключається під дією пружин.
ЭО живиться від шинок керування безпосередньо через контакти ключа або реле
керування.
Команда на включення
виконується в два прийоми. Команда «включити». Утворюється ланцюг: +ШУ,
контакти 5-8 ключа керування, замкнені допоміжні контакти вимикача В, обмотка
проміжного контакту КП, - ШУ. По обмотці проміжного контактора КП протікає
струм, у результаті чого контакти замикають ланцюг живлення ЭВ і вимикач
включається.
Ланцюг команди на
відключення: +ШУ, контакти 6-7 ключа, допоміжний контакт вимикача В (який
замкнувся при включенні вимикача), обмотка електромагніту ЭО, - ШУ. Сердечник
електромагніту ЭО втягується, звільняє засувку привода, і вимикач
відключається.
У цій схемі є можливість
подати імпульс на включення вимикача від пристроїв автоматики й на відключення
від пристроїв релейного захисту.
Сигналізація положення
комутаційних апаратів (вимикачів, роз'єднувачів) служить для інформації
оперативного персоналу про стан схеми електричних з'єднань у нормальних і
аварійних умовах.
Сигналізація положення
вимикачів виконується, як правило, за допомогою сигнальних ламп (мал. 9.2).
Підготовчі перемикання в ланцюгах сигналізації проводяться контактами ключа
одночасно з подачею команди, а зміна положення вимикачів фіксується допоміжними
контактами вимикача. Живлення сигнальних ламп проводиться з тих же шинок, що й
живлення ланцюгів керування.
Сигналізація про основні
положення вимикача «включено» і «відключено» здійснюється при відповідності
положення рукоятки ключа положенню контактів вимикача. Наприклад, якщо ключ
перебуває в положенні «відключено» і вимикач відключений, у схемі (мал. 9.2)
утворюється ланцюг: +ШУ, контакти 15-14 ключа, резистор 2R, нормально замкнений
допоміжний контакт вимикача В, зелена лампа ЛЗ, - ШУ. Зелена лампа горить
рівним світлом. Ланцюг червоної лампи розімкнутий.
Якщо ключ перебуває в
положенні «включено» і вимикач включений, то утворюється ланцюг сигналізації:
+ШУ, контакти 23-21 ключа, резистор 1R, допоміжний контакт вимикача В
(замикається при включенні вимикача), лампа ЛК, - ШУ. Червона лампа горить
рівним світлом.
Рис.9.3.
Принципова схема пристрою блокування «стрибання» (пунктиром показано ланцюг
утримання реле РБМ в підтягнутому положенні при включені вимикача на к.з.)
Для звернення уваги
оперативного персоналу при автоматичному включенні або відключенні вимикачів
виконується миготливе світіння сигнальних ламп (якщо відбувається включення
вимикача, мигає червона лампа, а при автоматичному відключенні - зелена).
Схема виконується з
використанням невідповідності між положеннями ключа й контактів вимикача.
При положенні ключа
«включене» і відключеному положенні вимикача струм проходить по ланцюгу: (+)
ШМ, контакти 13-14 ключа, резистор 2R, допоміжні контакти вимикача В, лампа ЛЗ,
- ШУ. Зелена лампа горить миготливим світлом.
На мал. 8.3 зображена
схема електричного блокування від «стрибання» з використанням спеціального
проміжного реле РБМ. Реле має дві обмотки: послідовну РБМ1 в ланцюзі ЭО і
паралельну РБМ².
При включенні вимикача
на к.з. ключем керування або пристроями автоматики спрацьовує релейний захист
даного приєднання, подаючи команду на відключення вимикача. Створюється
положення, коли одночасно існують дві команди: на включення - контактами ключа
(якщо оператор ще не встигнув відпустити рукоятку ключа) або від пристрою автоматичного
включення і на відключення - контактами релейного захисту. Неправильна робота
вимикача в цьому випадку блокується за допомогою реле РБМ.
Після включення вимикача
на к.з. і спрацьовування реле захисту утворюється ланцюг відключення: +ШУ,
контакти релейного захисту, обмотка РБМ1, допоміжні контакти вимикача В,
обмотка ЭО, - ШУ. Відбувається відключення вимикача й одночасне спрацьовування
реле РБМ. Спрацьовуючи, реле РБМ розмикає контакти РБМ1 в ланцюзі команди
«включити» і замикає іншу пару контактів у ланцюзі самовтримання паралельної
обмотки РБМ², що забезпечує його підтягнутий стан після відключення вимикача
протягом усього часу, поки зберігається положення ключа «включити» або будуть
замкнені контакти пристроїв автоматичного включення. Контактами РБМ1 реле РБМ
блокує ланцюг включення й забороняє повторне включення вимикача. Після зняття
команди на включення (наприклад, відпусканням рукоятки ключа) схема керування
вертається у вихідне положення.
Список використаної
літератури
1. Методичні вказівки до виконання курсового проекту з дисципліни
«Проектування електричних станцій та підстанцій». Частина 1 / Уклад.: П.Л.
Денисюк, - К.: ФЕА НТУУ «КПІ», 2003. - 73 с.
2. Методичні вказівки до виконання курсового проекту з
дисципліни «Проектування електричних станцій та підстанцій». Частина 2 /
Уклад.: П.Л. Денисюк, - К.: ФЕА НТУУ «КПІ», 2004. - 72 с.
. Методичні вказівки до виконання курсового проекту з
дисципліни «Проектування електричних станцій та підстанцій». Частина 3 /
Уклад.: П.Л. Денисюк, Г.М. Гаєвська, Л.П. Федосенко, - К.: ФЕА НТУУ «КПІ»,
2004. - 61 с.
. Неклепаєв Б.Н., Крючков І. П. Електрична частина
електростанцій і підстанцій: Довідкові матеріали для курсового і дипломного
проектування: Навчальний посібник для вузів. - 4-е видавництво, перероб. і доп.
- М.: Енергоатоміздат, 1989. - 608 с.