|
Наименование
механизмов, приспособлений, инструментов
|
Ед.
изм.
|
Количество
|
|
Растворомешалка
|
шт.
|
1
|
|
Угольник
Пиванова
|
»
|
1
|
|
Рейка
Пиванова
|
»
|
10
|
|
Сокол
дюралюминиевый
|
»
|
6
|
|
Полутерок
дюралюминиевый большой
|
»
|
2
|
|
Полутерок
дюралюминиевый малый
|
»
|
6
|
|
Правило
окованное длиной 1,75 м
|
»
|
2
|
|
Малка
деревянная
|
»
|
2
|
|
Терка
дюралюминиевая с поролоновой основой
|
»
|
3
|
|
Терка
дюралюминиевая с войлочной
|
»
|
8
|
|
Штукатурная
кельма
|
»
|
11
|
|
Рейка-отвес
|
»
|
1
|
|
Отвес
|
шт.
|
1
|
|
Уровень
|
»
|
1
|
|
Гладилка
пластмассовая
|
»
|
1
|
|
Правило
усеночное
|
»
|
1
|
|
Ножницы
кровельные
|
»
|
1
|
|
Молоток
штукатурный
|
»
|
7
|
|
Конопатка
деревянная
|
»
|
2
|
|
Киянка
|
»
|
2
|
|
Ковш
штукатурный
|
»
|
3
|
|
Мешалка
деревянная
|
»
|
3
|
|
Кисть
мочальная
|
»
|
9
|
|
Ведро
|
»
|
9
|
|
Скребок
|
»
|
2
|
|
Емкость
для воды и раствора
|
»
|
6
|
|
Рабочий
ящик
|
»
|
3
|
|
Инвентарный
столик-подмости
|
»
|
16
|
|
Щиты
инвентарные
|
»
|
20
|
|
Инвентарный
ящик для раствора емкостью 0,5 м3
|
»
|
1
|
|
Бункер
для хранения цемента емкостью 0,5 м3
|
»
|
1
|
|
Бункер
для хранения гипса емкостью 0,5 м3
|
»
|
1
|
|
Инвентарный
ящик для извести емкостью 0,5 м3
|
»
|
1
|
|
Емкость
для пластификаторов
|
»
|
1
|
|
Перчатки
резиновые
|
пара
|
2
|
|
Очки
защитные
|
»
|
2
|
Комплект инструмента для облицовки керамической
плиткой пола:
зубчатый скребок 1
резиновый скребок 1
кельма для каменных работ 2
ящик для раствора 80 л 1
шнур разметочн. 15 м 2
стеклорез роликовый 2
ножовка по металлу 1
ножовка по дереву 1
щетки для полов 1
ведра 3
рейка-правило сеч. 60x40 мм 1,5 м 2
рейки маячные 2,8x0,15x0,024
уровень = 1,0 м 1
полутерки для разравнивания готовой смеси 2
молотки резиновые 2
молотки плотничные 1
терки деревянные с войлочной основой 2
лопаты совковые 1
лопаты штыковые 1
1.4 Расчет материала
Цементно-известковый раствор приготавливают из
цемента, известкового теста и песка. Для приготовления такого раствора цемент
смешивают с песком, получая сухую смесь. Затем вливают разведённое до густоты
молока известковое тесто и тщательно всё перемешивают.
Составы цементно-известковых растворов
|
Марка
цемента
|
Марка
раствора
|
|
25
|
50
|
75
|
100
|
|
400
|
1
:1,7 : 12
|
1
: 0,7 : 6
|
1
: 0,3 : 4
|
1
: 0,2 : 5
|
|
500
|
-
|
1
:1 : 8
|
1
: 0,5 : 5
|
1
: 0,3 : 4
|
|
600
|
-
|
1
: 0,7 : 6
|
1
: 0,4 : 4,5
|
-
|
Расход шпатлевки на один квадратный метр
готового раствора равен 0.9-1.0 кг. смеси.
Для приготовления шпаклевки СВШ применяются
следующие материалы:
клей КМЦ (МРТУ 6-05-1098-67) марки 55/500 для
строительной промышленности;
латекс СКС-65ГП (ГОСТ 10564-63);
мел молотый или комовой (ГОСТ 1498-64);
асидол-мылонафт (ГОСТ 3854-47) или
асидол масляный (ГОСТ 4118-53);
мыло хозяйственное (ГОСТ 790-41);
жидкость ГКЖ-10 или ГКЖ-11 (МРТУ-6-0.2-271-63).
Шпаклевка СВШ имеет следующий состав (в % по
весу):
клей КМЦ (10%-й раствор) - 10 (сухого вещества
1%);
латекс СКС-65ГП или СКС-30ШР - 4;
мел комовой или молотый с влажностью не более
16% - 76;
мыло хозяйственное (10%-й раствор) - 2 (0,2%
40%-го хозяйственного мыла);
асидол-мылонафт или асидол масляный - 2;
жидкость ГКЖ-10 или ГКЖ-11 - 6.
Для облицовки пола керамической плиткой
понадобятся два основных компонента - песок и цемент - смешивают в пропорции
1:3 или 1:4 по объему (1 часть цемента и 3-4 части песка).
1.5 Организация рабочего места
Штукатурку углов и откосов можно выполнять после
оштукатуривания стен, т.е. сначала штукатурят по маякам стены вокруг угла
(откоса) и только затем выравнивают сам угол. При выделке усенков используют
правила.
Каждый последующий слой наносят только после
затвердения (при известково-цементных или известково-гипсовых растворах) или
побелки предыдущего слоя (при известковых растворах).
К штукатурке углов и откосов приступают после
того как стены будут оштукатурены до накрывочного слоя. Штукатурка стен должна
подсохнуть в течение 2-3 дней и только затем приступают к штукатурке углов и
откосов.
Штукатурка оконных откосов выполняется после
тщательного закрепления оконных коробок.
Зазоры между закреплённой коробкой (блоком) и
наружной стеной тщательно конопатят антисептированным войлоком или другим
теплоизолирующим материалом. Войлок или паклю для этого предварительно
смачивают раствором гипса строительного и уплотняют по всему периметру с обеих
сторон стены таким образом, чтобы до поверхности торцов коробки оставалось
пространство в 20-30 мм, для заполнения его раствором.
Зазоры между коробками (блоками) и внутренними
стенами проконопачивают звукоизоляционными материалами.
В настоящее время для этой цели используют
специальные пенозаполнители. Заполняя пространство между стеной и оконной
коробкой специальной пеной из баллончика, оставляют на некоторое время для
застывания массы. Высохшая масса образует достаточно прочное и эффективное
уплотнение.
Оштукатуренные плоскости и рёбра оконных откосов
должны отвечать требованиям, предъявляемым к работе по маякам.
Раствор наносят небольшими порциями в пазы
откоса и разравнивают, дают ему подсохнуть и снова повторяют до полного
заполнения пазух откоса, толщина намёта за один приём допустима не более 5-7
мм.
Раствор наносят и разравнивают снизу вверх и в
стороны. Линию стыковки штукатурки стен угла выравнивают полутёрком в одну
плоскость с ранее выполненной штукатуркой стен.
При замере проёма по диагоналям разность между
замерами не должна превышать 10-20 мм.
Штукатурку откосов выполняют под небольшим углом
от коробок к поверхности стены. В результате этого получается так называемый
рассвет оконных откосов. Необходимо следить, чтобы углы рассвета всех откосов
были одинаковыми.
Для внутренних откосов применяют
известково-гипсовый или известково-цементный раствор.
Наружные отливы делают из цементного раствора.
Для предохранения от трещин поверхность отлива прикрывают влажным песком или
опилками, поддерживая их влажность в течении 2-3 суток.
Рис. 11
Перед началом работы на верхнюю часть откоса
строго горизонтально закрепляют деревянную рейку с ровной гранью. Рейка
крепится к стене при помощи гвоздей или гипсового раствора, а горизонтальность
внутренней грани проверяется строительным уровнем.
После этого устанавливают и закрепляют рейки на
боковых гранях откоса. Горизонтальность и вертикальность реек на боковых гранях
откоса проверяют при помощи отвеса или строительного уровня.
Для разравнивания раствора изготавливают
деревянную малку. Малка изготавливается из пиломатериалов хвойных пород дерева
и имеет закругленную ручку. Длина малки зависит от ширины откоса, толщина малки
25-32 мм.
Рис. 12 - Малка для разравнивания раствора на
откосах: 1 - правило, 2 - малка, 3 - вырез, 4 - коробка, 5 - конопатка
Рис. 13 - Малки для разравнивания раствора в
заглушинах: а - между оконными коробками на одном уровне, б - то же, на разных
уровнях, в - в нижней заглушине; 1 - простая, 2 - с плечиками
На одном конце малки делают вырез по 1/2 толщины
коробки, при помощи которого малка движется вдоль коробки. Это в последующем
обеспечивает нормальное открывание створок окна.
Рис. 14 - Устройство ремешков вокруг откосов на
стенах при помощи рейки с бортиками одновременно с оштукатуриванием откосов: 1
- правило с бортиком, 2 - штукатурка, 3 - малка, 4 - конопатка
Малку вырезом устанавливают на коробку, а другим
концом на деревянную рейку, закреплённую на грани откоса. После схватывания
раствора кромку угла откоса и стены выравнивают. На откос наносят покрывочный слой
по аналогии со штукатуркой стены и затирают его.
Чтобы усенки не обламывались, их притупляют
закруглениями или плоскими фасками.
Снимают рейку после высыхания слоя штукатурки,
нанесённого на угол, и выравнивают таким же способом другие стороны откосов.
Выровненная под накрывку поверхность должна быть ровной и без раковин. Участки
штукатурки углов тщательно притирают без намаза со штукатуркой стен.
Последний слой грунта выравнивают так, чтобы
накрывочный слой по всей площади имел одинаковую толщину. Толщина слоя накрывки
составляет не более 2 мм. После высыхания откосов устанавливается подоконная
доска.
Перед приготовлением раствора материалы очищают
от посторонних примесей, просеивают, если надо - измельчают и сортируют.
Подготовленные материалы дозируют и перемешивают.
Для просеивания материалов применяют ручные и
механические сита. Материалы отвешивают весовыми или объемными дозаторами.
Перемешивают растворы в растворосмесителях. Для приготовления небольших объемов
раствора непосредственно на объектах служат малогабаритные растворосмесители
СО-46А, СО-26Б, СО-23Б. Их перемещают в пределах площадки и рабочего места на
колесах.
Растворосмесители CQ-46A с электродвигателем и
СО-26Б с двигателем внутреннего сгорания (рис. 27, а) имеют одинаковую
конструкцию. Их средняя производительность по раствору 2 м3/ч с объемом
готового замеса 65 л и вместимостью смесительного барабана по загрузке 80 л.
Растворосмеситель состоит из рамы 1 на колесах и опорной стойки 2,
смесительного барабана 3, предохранительной решетки 4, рукоятки 5 для поворота
барабана при выгрузке раствора.
Рабочий состав шпаклевки СВШ должен отвечать
следующим требованиям:
внешний вид-шпаклевка должна быть однородной;
время высыхания - высыхание слоя шпаклевки
толщиной 1,0 мм при температуре 18-20° не более 4 час, три температуре 60-70° -
3-5 мин;
консистенция - подвижность по погружению
стандартного конуса СтройЦНИЛа должна быть 13-14 см;
удобонаносимость - шпаклевка должна легко
наноситься, хорошо прилипать к горячей и холодной поверхностям бетона и не
тянуться за шпателем;
усадка - на слое шпаклевки толщиной 1,0 мм,
нанесенном на поверхность матовой стеклянной пластинки или бетона с раковинами
до 2 мм, не должны после высыхания появляться усадочные трещины или
отслаивания;
шлифуемость - шпаклевка после высыхания должна
легко шлифоваться мелкозернистой наждачной шкуркой №0;
прочность-прочность сцепления (при отрыве)
рабочего состава шпаклевки СВШ, склеенной с бетоном как при температуре 70-80°,
так и при температуре 20°, через 24 часа должна быть не менее 1 кгс/см2.
Шпаклевку СВШ наносят отделочными машинами на
«сдир».
При подготовке поверхности под механизированную
шпаклевку панели перекрытий с раковинами диаметром свыше 10 мм, неровностями и
другими дефектами предварительно затираются в холодном состоянии
цементно-песчаным раствором.
С поверхности панелей перекрытий должны быть
удалены пыль и наплывы бетона.
Рабочий состав шпаклевки наносят отделочными
машинами за 2-4 прохода в зависимости от величины и количества раковин.
Каждый рабочий проход машины осуществляется без
перерыва как по холодной, так и по горячей (температура 70-80°)
поверхности.
Панели перекрытий в зимнее время после обработки
шпаклевкой должны выдерживаться в течение 1 часа. В летнее время панели
вывозятся сразу после нанесения шпаклевки.
Укладка плитки должна вестись захватками от
середины помещения, для чего в обоих направлениях необходимо натянуть два шнура
под прямым углом.
По натянутому шнуру уложить две маячные рейки на
расстоянии, равному ширине двух плиток, и уложить между ними готовый полимерный
раствор толщиной не менее 5 мм.
Уложенный слой раствора разровнять зубчатой
стороной скребка.
Плитку предварительно смачивают водой,
укладывают на раствор и слегка осаживают, ударяя по ней рукояткой кельмы. Когда
плитки уложены по всей длине захватки, к их ребру прикладывают правило и
ударами по нему молотком выравнивают весь уложенный ряд. Затем на плитки
укладывают брусок длиной 60х70 см и ссаживают их молотком по уровням частого
пола.
После укладки швы между плитками заливает подвижным
раствором этой же марки. Ширина швов не должна превышать 6 мм. Процесс укладки
рядов плитки повторяется.
Готовый пол очищают от остатков раствора ветошью
или поролоновой губкой до его затвердения.
1.6 Охрана труда
Для создания безопасных условий труда
строительные площадки ограждают и вывешивают на территории строительства
указатели проходов и проездов, мест курения, размещения материалов, установки
различных машин и механизмов и т.д. Проезды и проходы систематически очищают от
мусора, раствора, снега, наледи. Опасные зоны ограждают, а в ночное время
освещают.
Оконные и дверные проемы в здании ограждают.
Перед работой штукатуры должны осмотреть свои рабочие места, проверить подмости
и леса, убрать все лишние предметы, особенно доски с торчащими гвоздями. Все
инструменты должны быть осмотрены и исправлены.
При работе на высоте обязательно применяют
предохранительные пояса, закрепляя веревки от них за прочные конструкции
здания. При ремонте домов с кирпичными трубами на крыше при вязывать к трубам
веревки, люльки и т.д. категорически запрещается.
При обработке поверхностей различными машинами
работающие должны быть в рукавицах, защитных очках или респираторах.
При выполнении декоративных штукатурок для их
окрашивания категорически запрещается применять вредные для здоровья пигменты,
имеющие в своем составе добавки свинца. При работе материалами с токсичными
компонентами надо применять меры индивидуальной защиты.
Обслуживать машины или механизмы разрешается
только штукатурам, имеющим удостоверения, прошедшим соответствующие курсы
повышения квалификации. Запрещается без машиниста пускать в ход машину или
механизмы, включать электричество, снимать и надевать на ходу приводные ремни.
Спецодежда для штукатура не должна
препятствовать движениям рук и ног. При работе с щелочами и кислотами следует
работать в рукавицах, а руки дополнительно смазывать защитными мазями и
пастами. На ручках инструментов не должно быть заусенцев, заколов и других
дефектов. Сами инструменты должны быть прочно насажены на черенки, чтобы они не
соскочили во время работы.
Все инструменты и приспособления надо класть в
таких местах, чтобы они не могли упасть. После работы их очищают от раствора,
если требуется, промывают и убирают.
Следует особенно обращать внимание на ручки
терок. На них не должно быть острых кромок, о которые мокрые руки часто
травмируются. Ручки должны быть изготовлены по руке работающего.
Электропроводка должна выполняться из хорошо
изолированных проводов, а сами провода должны подвешиваться на высоте не менее
2,5 м над рабочим местом, 3,5 м - над проходом, 6 м над проездом. При прокладке
проводов на высоте менее 2,5 м от пола или земли их заключают в короба или
трубы. Подсоединение к существующей сети дополнительных ответвлений выполняют
только электромонтеры.
Переносные лампы или светильники должны
применяться только заводского изготовления. Напряжение в сети для переносных
светильников в условиях строительства должно быть не выше 42 В, а в особо
опасных местах - не выше 12 В.
Все ручные машины при их переноске в другое
место должны быть отключены. Оставлять машины временно включенными
воспрещается. При любом перерыве машины надо отключать. Рубильники должны иметь
дверцы, закрываемые на замок. Оставлять их открытыми категорически запрещается.
После окончания работы приборы должны быть
выключены. Около каждой временно поставленной печи или калорифера должен
находиться ящик с песком, бак с водой или огнетушитель.
Вся электропроводка должна быть выполнена в
соответствии с правилами техники безопасности и противопожарной безопасности.
Категорически запрещается пользоваться электропроводкой с неисправной
изоляцией. После окончания работ приборы освещения должны быть отключены.
Курить следует в специально отведенных местах.
Запрещается курить или пользоваться открытым огнем на расстоянии меньше 10 м от
баллонов с ацетиленом и другими горючими газами, а также от газопроводов,
передвижных ацетиленовых аппаратов.
Между сооружениями и местами хранения сгораемых
материалов должны быть сохранены установленные разрывы, к любому объекту
строительства должны быть удобные подъезды.
Первичные средства пожаротушения (огнетушители,
асбестовые и грубошерстные полотна, ящики с песком, бочки с водой) должны
находиться на видном и доступном месте. Кроме того, должен быть минимально допустимый
запас специальных средств пожаротушения (порошковых, газовых, пенных,
комбинированных).
Рабочие, занятые нанесением шпаклевки
отделочными машинами, должны быть обеспечены спецодеждой (комбинезоны,
спецобувь, рукавицы и защитные очки) и мылом.
По окончании работы рабочие должны протирать
руки ветошью и затем промывать теплой содой с мылом.
По работе с керамической плиткой.
Перед началом работ проверяется:
состояние подъемных механизмов, кабелей,
шлангов:
работу оборудования и ручного электрического и пневматического
инструмента на холостом ходу;
наличие и состояние средств индивидуальной
защиты работающих.
Все используемое оборудование и инструменты
должны быть в исправном состоянии. Работа на неисправном оборудовании или с
использованием неисправных инструментов запрещается. Представляющие опасность
движущиеся части оборудования должны быть снабжены средствами защиты, за
исключением частей, ограждение которых не допускается их конструкцией. Корпусы
всех механизмов, ручных электрических машин должны быть заземлены. Места
соединений кабелей должны быть заизолированы. Все пусковые устройства
размещаются таким образом, чтобы исключалась возможность пуска машин и ручного
электроинструмента посторонними лицами.
Дробеструйный аппарат, используемый для подготовки
поверхности конструкций к выполнению работ по устройству элементе пола, должен
периодически проверяться. Дробеструйный аппарат должен быть оборудован
предохранительным клапаном, безотказность действия которого проверяется по
монометру перед пуском аппарата путем подачи в аппарат сжатого воздуха. Ударные
инструменты должны быть надежно насажены на рукоятки овального сечения, с
утолщенным свободным концом и закреплены на них металлическими или деревянными
клиньями.
Поверхности бойков ударных инструментов не
должны иметь трещин, сколов, заусенцев. Поверхности их должны быть гладкими и
быть слегка выпуклыми. Ручные скарпели, шпунты должны удовлетворять следующим
требованиям:
длина инструмента должна быть не менее 200 мм;
места зажима инструмента рукой не должны иметь
острых ребер:
затылочная часть должна быть гладкой, не иметь
трещин, заусенцев, сколов.
Напильники, стамески, ножовки должны быть прочно
закреплены а деревянной рукоятке с насаженным па нее кольцом. Запрещается
пользоваться указанным инструментом без рукояток.
Работать с электрифицированной или
пневматической шлифовальной машинкой разрешается только при наличии защитного
кожуха над абразивным диском.
Клапаны на рукоятках пневматического инструмента
должны быть правильно отрегулированы, т.е. при нажатии на рукоятку они должны
легко открываться, а при прекращении нажатия быстро закрываться и не пропускать
воздуха. Присоединять и отсоединять шланги следует только при включении подачи
воздуха.
Перед присоединением к инструменту шланг следует
тщательно продуть. Подавать воздух разрешается только после установки
инструмента в рабочее положение.
В процессе выполнения работ по устройству
элементов пола следует:
•ежедневно проверять исправность машин и
механизмов, состояние проводов, подводящих ток; состояние шлангов, подающих
сжатый воздух; обнаружив на корпусе напряжение, немедленно прекратить работу,
отключить питание и сдать машину или инструмент в ремонт;
при перерывах в работе или прекращении подачи
электроэнергии машину или инструмент отключать от сети;
во время работы с машинами, с электро- и
пневмоинструментами следить за состоянием изоляции кабеля, отсутствием резких
перегибов, образованием петель:
при переходе с механизированным инструментом с
одного рабочего места на другое не допускается натягивать кабель или шланги.
присоединять и отсоединять шланги только после
отключения подачи воздуха;
на рабочем месте хранить материалы в
количествах, не превышающих сменной потребности:
рабочие составы материалов для устройства
элементов пола, в также составы, используемые для очистки поверхности от
загрязнений, готовить на открытом воздухе или в помещении, оборудованном
приточно-вытяжной вентиляцией.
к обслуживанию растворосмесителя, в котором
приготавливают составы из растворных смесей, допускать лиц. прошедших
специальную подготовку:
загружать растворосмеситель сухими смесями
только после полной остановки перемешивающего органа:
включать пусковой рубильник растворосмесителя
только после предупреждения.
работы в замкнутых объемах выполнять при
работающей приточно-вытяжной вентиляции; с наружной стороны у входа в замкнутые
объемы должен находиться дежурный; рабочий, находящийся в замкнутом объеме,
должен иметь переносную лампу на напряжение 12В и предохранительный пояс,
свободный конец веревки от пояса должен находиться наверху у второго рабочего;
при работе дробеструйного аппарата внутри
емкости (резервуара) должна быть оборудована вытяжная вентиляция, машинист
должен пользоваться противогазом, дежурный должен следить за состоянием
работающих с аппаратом в закрытой емкости;
При химической очистке поверхностей
разбавленными кислотами необходимо:
работать только в очках, резиновых перчатках,
резиновых сапогах и в спецодежде из кислотостойкой ткани:
при разбавлении кислоты водой вливать воду в
кислоту тонкой струей при непрерывном перемешивании:
запрещается наливать воду в кислоту.
пролитую кислоту или случайно попавшую кислоту
на кожу рабочего нейтрализовать раствором соды, для этой цели на рабочем месте
должен находиться небольшой запас соды:
при работе с кислотой в закрытой емкости должна
быть приточно-вытяжная вентиляция с 10-ти кратным обменом воздуха;
При обезжиривании поверхностей растворителями
следует:
к рабочему месту растворители подносить в
оцинкованной или алюминиевой таре в количестве, не превышающем сменной
потребности.
работать только при включенной приточно-вытяжной
вентиляции:
Все работы выполнять, применяя средства
индивидуальной защиты, в том числе:
очки по ГОСТ 12.4.029;
спецодежда по ГОСТ 12.4.029. ГОСТ 12.4.100:
респираторы типа ШБ-1 "Лепесток" по
ГОСТ 12.4.028;
рукавицы по ГОСТ 12.4.010;
спецобувь по ГОСТ 12.4.137;
спецодежду подвергать обеспыливанию и стирке в
соответствии с инструкциями по эксплуатации.
По окончании работы следует отключить электро- и
пневмоинструмент очистить ручной инструмент и убрать его в инструментальный
ящик, очистить рабочее место от мусора; отходы материалов, используемых при
выполнении работ по устройству элементов пола, необходимо собрать в контейнеры
и утилизировать в соответствии с требованиями СанПиН 2.2.7.029.
Перед приемом пищи и после окончания работ по
устройству пола следует тщательно мыть руки щеткой и мылом в теплой воде.
2. Плиточные работы
.1 Технологическая карта
Полы из керамических плиток можно настилать,
если в здании закончены общестроительные и монтажные работы, при производстве
которых может быть повреждено готовое покрытие пола: гидроизоляция, устройство
фундаментов под оборудование, установлены оконные и дверные коробки, проложены
скрытые сети электропроводки, завершены санитарно-технические работы, исключая
установку приборов, освобождены проходы к рабочему месту, доставлены на рабочее
место материалы, инструменты и приспособления.
В каждую поставляемую на объект пачку укладывают
плитки одного типа, сорта, цвета и размера. На упаковке должен быть обозначен
сорт и размер плиток. Транспортировка упакованной в пачки плитки осуществляется
в контейнерах. При транспортировании, погрузке и выгрузке плиток должны быть
приняты меры, обеспечивающие их сохранность от механических повреждений. Не
допускается переброска пачек с плиткой при погрузке, разгрузке и складировании.
На объекте плитки должны храниться в закрытых складах и помещениях,
упакованными в пачках, раздельно по сортам, цветам и уложенными на поддоны.
Устройство покрытий полов разрешается выполнять
только после освидетельствования правильности выполнения основания с
составлением акта на скрытые работы.
Рисунок пола должен быть задан в проекте здания
или сооружения. Сложные рисунки выполняют по разбивочным планам, при этом
рекомендуется плитку укладывать сначала насухо, чтобы представить окончательный
вид пола.
Наиболее часто встречаемые рисунки керамических
полов представлены на рисунке 1.
Пол из керамических плиток укладывают на
тщательно подготовленную прослойку из цементно-песчаного раствора марки не ниже
150 и толщиной не более 15 мм, с добавкой пластификатора, повышающей
водоудерживающую способность прослойки.
Рисунок 15 - Рисунки полов из плиток: а)
трехцветный пол из квадратных плиток диагональной настилки; б) пол из
шестигранных плиток; в) пол из восьмигранных плиток с вкладышами
2.2 Технологический процесс
Работы по устройству полов из керамических
плиток выполняются в следующей технологической последовательности:
а) при настилке плиток поштучно:
промывка, очистка основания;
разметка основания, провеска, установка маяков;
подгонка плиток, сортировка по размеру, цвету,
оттенкам и перерубка их при необходимости;
нанесение на основание прослойки из раствора
толщиной не более 15 мм и ее разравнивание;
укладка плиток по заданному рисунку;
заливка швов раствором и очистка пола мокрыми
опилками.
б) при настилке плиток с помощью шаблона:
промывка, очистка основания;
сортировка плиток по размеру, цвету и оттенкам;
разметка помещения и укладка фризового ряда;
установка маяков на расстоянии 1,5 м один от
другого;
укладка и разравнивание раствора рейкой по
маякам;
установка шаблона на уложенный раствор по
фризовому ряду;
укладка керамических плиток в ячейки шаблона;
осаживание плиток простукиванием полутерком;
снятие шаблона и перенесение его на новую
захватку;
заливка швов раствором и очистка уложенного пола
опилками.
При наличии жировых пятен бетонное основание
обрабатывается 2 - 3 % раствором соляной кислоты или 5 % раствором
кальцинированной соды с последующей промывкой чистой водой.
Для подготовки и выравнивания оснований,
сортировки, обработки и укладки плиток, для контроля качества выполняемых работ
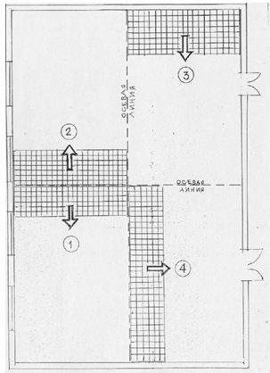
пользуются инструментами, показанными на рисунке 3.
2.3 Инструменты и приспособления
Составы растворов для устройства плиточных
покрытий должны подбираться и периодически контролироваться лабораторным путем.
Облицовщик совместно с работниками лабораторий должен проверить качество
растворов на образцах, макетах, опытных участках облицовки, внести необходимые
поправки и изменения в технологию приготовления и применения проверяемых
материалов.
Подача растворов для плиточных работ осуществляется
различными средствами механизации: растворонасосами, установками для приема и
подачи растворов, кранами в бадьях на приемные площадки и др. Один из вариантов
приема и подачи строительного раствора на этажи с использованием установки
УПТЖР-2,5, которая через передвижные гасители наполняет поэтажные емкости
объемом 0,35 м3, показана на рисунке 16.
Рисунок 16 - Схема приема и подачи раствора для
устройства полов из керамических плиток: 1 - автосамосвал; 2 - установка
УПТЖР-2,5; 3 - растворопровод резинотканевый; 4 - металлический стояк; 5 -
емкость для раствора; 6 - гаситель; 7 - трехходовой кран
Полы можно устраивать при температуре воздуха в
помещении, измеряемой в холодное время года около дверных и оконных проемов на
высоте 0,5 м от уровня пола и температуре нижеуложенного слоя и укладываемых
материалов не ниже:
°С - при укладке прослоек из смесей, содержащих
жидкое стекло; такая температура должна поддерживаться до приобретения
уложенным материалом прочности не менее 70 % проектной;
°С - при укладке стяжек и прослоек, содержащих
цемент; такая температура поддерживается до приобретения уложенным материалом
прочности не менее 50 % проектной.
Устраивать полы из штучных материалов на
промерзших перекрытиях и мерзлых грунтах нельзя. Для ускорения сроков твердения
смесей, содержащих цемент, жидкое стекло и другие материалы, приобретающие
прочность после укладки пола, рекомендуется поддерживать температуру воздуха на
10 - 15°С
выше указанной минимальной.
2.4 Применяемые материалы
Рис. 17 - Ручной инструмент
облицовщика-плиточника: 1 - обыкновенная лопатка; 2 - прямоугольная лопатка; 3
- отрезовка; 4 - стальной шпатель; 5 - штукатурный ковш; 6 - царапка; 7 -
гладилка; 8 - отвес массой 150 г; 9 - резиновый шпатель; 10 - хлопушка; 11 -
брусок; 12 - кисть; 13 - шлямбур; 14 - скарпель; 15 - пазовый уплотнитель; 16 -
ареометр; 17 - рулетка длиной 2 м; 18 - молоток массой 600 г; 19, 20 -
плиточные молотки массой 80 и 60 г; 21 - дубовый клинышек длиной 5 см; 22 -
стальной резец с наконечником из твердого сплава, 23, 24 - клещи; 29 -
карборундовый брусок; 30 - карборундовый круг; 31 - трехгранный брусок; 32 -
уровень; 33 - стальной угольник; 34 - шаблон; 35 - шаблон А.С. Афонина; 36 -
ножовка; 37 - наколенник
Перед настилкой плиточного покрытия производят
разбивку площади пола на захватки применительно к размерам плиток. Разбивку
пола рекомендуется производить с таким расчетом, чтобы по длине и ширине
помещения укладывалось целое число плиток. При необходимости плитку прирезают с
помощью рычажного плиткореза, изображенного на рисунке 4. Для приточки кромок и
нарезки плиток, сверления отверстий в глазурованной плитке применяют
плиткорезы, представленные ни рисунках 5 и 6.
Рисунок 18 - Плиткорез рычажный для метлахских и
глазурованных плиток
Рисунок 19 - Плиткорез с головкой для сверления
отверстий в глазурованной плитке: 1 - каретка; 2 - рычаги; 4 - прижим; 5 -
ролик; 6 - резец
Рисунок 20 - Плиткорез: 1 - стальная пружина; 2
- стальные стержни; 3, 7 - регулировочные и фиксирующий винты; 4 - победитовый
резец; 5 - резиновый валик; 6 - движок
Пол из плиток устанавливают на определенном,
предусмотренном проектом, уровне. Отметку уровня чистого пола необходимо
увязывать с уровнем полов и площадок примыкающих помещений.
Отметку уровня чистого пола переносят с помощью
строительного уровня, а в больших помещениях - с помощью нивелира.
Керамическая плитка подается на этажи в пачках
грузовыми подъемниками С-447 или С-953.
Перед настилкой пола звено сортирует плитки по
размеру, цвету, оттенкам и рисунку, частично перерубает их (по 10 % от общего
количества), подтачивает кромки и сверлит отверстия.
Сортировку плиток по размерам производят с
помощью шаблона, в который поочередно вставляют каждую плитку, а по цвету и
рисунку - визуальным сравнением с утвержденным эталоном.
Установку маяков начинают с установки реперного
маяка у стены для определения в натуре уровня пола, а по нему устанавливают все
остальные (фризовые, промежуточные).
Реперные маяки устанавливают у стен для
определения в натуре уровня пола. Чтобы обеспечить горизонтальность пола от
отметки репера, определенного с помощью нивелира, выставляют маяки и марки,
обозначающие заданный уровень пола. Первую основную марку помещают у стены и от
нее по уровню и рейке на расстоянии 2 - 2,5 м одна от другой устанавливают
остальные марки. Нанесенные на всех стенах отметки от репера целесообразно
соединить горизонтальной чертой.
Фризовые маяки располагают в углах на уровне
реперных маяков.
После установки фризовых маяков около них в пол
вбивают стальные штыри, между которыми натягивают шнуры-причалки для создания
ровной линии будущего плиточного ряда. Шнур привязывают к штырям так, чтобы он
был на уровне маячных фризовых плиток. По натянутому шнуру фризовой ряд плиток
укладывают сначала насухо для точного определения размещения промежуточных
фризовых маяков.
После устройства фризовых промежуточных маяков
настилают фризовые ряды, перпендикулярность шнуров-причалок фризовых рядов друг
к другу проверяют угольником.
Промежуточные маяки или провески устанавливают в
больших помещениях для контроля за уровнем настилаемых плиток.
Рисунок 21 - Установка маяка (а) и направляющих
маячных реек (б): 1 - деревянная рейка; 2 - малка; 3 -заглаженная поверхность;
4 - уровень пола; 5 - штырь для шнура; 6 - шнур; 7 - маяки
Затем поперек помещения укладывают маячные
полосы-провесы, идущие параллельно короткой стороне фризов. Маячные провесы
служат для того, чтобы шнур, натягиваемый вдоль длинной стороны помещения, не
провисал.
После установки фризовых и промежуточных маяков
по шнурам между ними помещают направляющие рейки, в пространстве между которыми
укладывают цементный раствор, выравниваемый заподлицо с маяками малкой,
перемещаемой по рейкам, как показано на рисунке 7. Затем стяжку в местах
извлеченных реек заделывают тем же раствором.
По окончании укладки фризовых рядов и поперечных
рядов плиток, так называемых провесок (через 20 - 25 плиток), приступают к
настилке плиточных полов отдельными полосами-захватками вдоль длинной стороны
помещения с учетом основного фона покрытия пола. Работы ведут захватками
шириной от 3 до 6 плиток, которые располагают вдоль длинной стены. При
определении направления укладки плиток учитывают, что ровнее получаются швы,
расположенные вдоль шнура-причалки, а поперечные швы выходят менее ровными.
Поэтому рекомендуется в тех помещениях, где двери и окна находятся в продольных
стенах, назначать захватки поперек помещения. Пример разбивки фронта работ на
захватки приведен на рисунке 8.
При диагональном способе укладки плиток захватки
разбивают от центра помещения под углом 45° к линии стен или фриза.
Захватки ограничивают с одной стороны стеной или
ранее уложенным рядом плиток, а с другой - шнуром, натянутым между двумя
штырями, вбитыми в основание пола у противоположных стен помещения.
Захватку на всю ширину и длину не менее 1 м
заполняют при помощи лопаты ЛР раствором, который разравнивают рейкой до
необходимой толщины прослойки. Ширина уложенной прослойки должна превышать
ширину захватки на 20 - 30 мм.
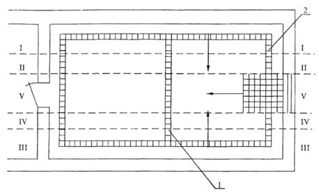
Рисунок 22 - Разбивка фронта работ на захватки:
I - IV продольные захватки; V - захватка, настилаемая поперек помещения; 1 -
провеска; 2 - фризы
Устанавливается следующая последовательность
работ на захватках. На захватке I добавляют ряды фриза до принятой ширины и
укладывают заделку с прирубкой плиток у стены. Затем переходят на захватку II
по направлению к дверному проему.
Захватки III и IV начинают укладывать, двигаясь
также к дверному проему. В последнюю очередь укладывают плитки захватки V,
расположенные против входа в помещение.
Рисунок 23 - Укладка полосок из одного ряда
плиток по угольнику
В каждой захватке настилают плитки одновременно
по ее ширине. Для соблюдения прямолинейности швов рекомендуется захватку делить
по длине на участки по 1 - 1,5 м с помощью полосок из одного ряда плиток,
укладываемых по угольнику, как показано на рисунке 9.
Маячные плитки укладывают на жестком растворе и
устанавливают несколько выше, чем это требуется по отметке, а при проверке
маяка по уровню их осаживают легкими ударами ручки плиточной лопатки до нужной
отметки. Схема размещения маячных плиток при настилке полов дана на рисунке 10.
Плитку укладывают на раствор, затем выравнивают
и осаживают ее легкими ударами ручки плиточной лопатки. При размещении на
прослойке очередного ряда плиток общий шов выравнивают, прижимая плитку сбоку
правилом.
Раствор прослойки не должен заполнять швы между
плитками до верха.
Рисунок 24 - Схема размещения маячных плиток при
настилке пола: I - IV - угловые фризовые плитки; 1 - 6 - промежуточные маячные
фризовые плитки; 7, 8 - промежуточные маячные рядовые плитки; 9 - реперный маяк
у стены
Ширина швов при укладке плитки должна быть не
более 2 мм. Плитки укладывают по выровненному слою свежеуложенного раствора с
помощью угольника вплотную к ранее уложенной плитке. Квадратные и восьмигранные
плитки укладывают «шов в шов», осаждая легким ударом молотка до уровня маячной
плитки, проверяя и выравнивая поверхности и швы каждой уложенной полосы из 20 -
30 плиток.
После настилки пяти-шести поперечных рядов плиток
(20 - 30 штук) уложенную часть пола выравнивают легкими ударами молотка по
уложенной на пол деревянной «хлопушке».
Через 1 - 3 дня после укладки плитки равномерно
заливают предварительно очищенную от мусора и пыли поверхность уложенных плиток
жидким цементным раствором состава 1:1 и растирают залитую поверхность
волосяной щеткой до полного заполнения швов. Излишки раствора удаляют,
поверхность пола очищают опилками и вновь засыпают чистым слоем периодически
увлажняемых опилок.
При устройстве полов с уклоном к трапу в центре
помещения поверхность пола делят диагоналями на четыре части и плитки настилают
«в конверт». Этот способ трудоемок и требует прирубки всех плиток, примыкающих
к диагоналям. На рисунке 11 изображен прибор для проверки уклона пола.
2.5 Расчет материала
Для устройства полов принята керамическая плитка
(метлахская) размером 10´10 см и 15´15
см, соответствующая требованиям ГОСТ 6787-2001.
Для настилки полов применяют цементно-песчаный
раствор марки 150 состава 1:3 (цемент:песок) при марке цемента 400. Для
уменьшения усадочных явлений цементного раствора применяют крупный песок с
размерами зерен от 1,2 до 3 мм. Подвижность раствора должна быть в пределах 3 -
4 см.
Расход материалов на 100 м2 керамического пола
приведен в таблице 1.
Таблица 1 - Ведомость расхода материалов на
устройство 100 м2 керамического пола
|
№
п/п
|
Наименование
материала
|
Ед.
изм.
|
Количество
|
Примечание
|
|
1
|
Керамическая
плитка
|
м2
|
103
|
|
|
2
|
Раствор
|
м3
|
2,06
|
|
|
3
|
Цемент
марки 400
|
кг
|
200
|
|
|
4
|
Песок
|
м3
|
0,12
|
|
Потребность в основных машинах, механизмах и
оборудовании, перечень механизированного и ручного инструмента, инвентаря и
приспособлений для устройства полов из керамических плиток с учетом технических
характеристик, назначения и количества на звено приведена в таблице 2.
Таблица 2 - Ведомость потребности машин,
механизмов, оборудования, инструмента, инвентаря и приспособлений
|
№
п/п
|
Наименование
машин, механизмов и оборудования
|
Тип,
марка, ГОСТ, ТУ, организация-изготовитель
|
Ед.
изм.
|
Кол.
на звено (бригаду), шт.
|
Примечание
|
|
1
|
Компрессор
|
ДК-9
|
шт.
|
1
|
|
|
2
|
Установка
для транспортировки жестких растворов
|
УПТЖР-2,5
|
шт.
|
1
|
|
|
3
|
Шаблон
для сортировки плиток
|
Чертеж
1227 Мосоргстрой
|
шт.
|
3
|
|
|
4
|
Шаблон
клеточный
|
Чертеж
951-00-00 УМОР
|
шт.
|
3
|
|
|
5
|
Лопатка
для плиточных работ
|
Тип
ЛП ГОСТ 9533-81
|
шт.
|
6
|
|
|
6
|
Лопата
растворная
|
Тип
ЛР ГОСТ 19596-87*
|
шт.
|
3
|
|
|
7
|
Кусачки
для плиточных работ
|
ГОСТ
28037-89 ТУ 22-2758-73
|
шт.
|
6
|
|
|
8
|
Молоток
плиточный
|
Тип
МПЛИ-1 ГОСТ 11042-90
|
шт.
|
6
|
|
|
9
|
Молоток
слесарный массой 0,8 кг с квадратный бойком
|
ГОСТ
2310-77*
|
шт.
|
6
|
|
|
10
|
Плиткорез
роликовый
|
-
|
шт.
|
1
|
|
|
11
|
Плиткорез
рычажный
|
Чертеж
671 Мосоргстрой
|
шт.
|
1
|
|
|
12
|
Правило
окованное
|
ГОСТ
25782-90
|
шт.
|
6
|
|
|
13
|
Шпатель
стальной
|
ШСД
|
шт.
|
6
|
|
|
14
|
Скарпель
для бетонных и каменных работ
|
ТУ
22-2781-73
|
шт.
|
6
|
|
|
15
|
Киянка
деревянная прямоугольная
|
-
|
шт.
|
1
|
|
|
16
|
Штырь
стальной диаметром 10 мм, длиной 160 мм
|
Тип
ЛШ ТУ 22-2782-73
|
шт.
|
12
|
|
|
17
|
Уровень
гибкий водяной
|
УС1-300
ГОСТ 9416-83
|
шт.
|
1
|
|
|
18
|
Рулетка
стальная
|
РС-20
ГОСТ 7502-98
|
шт.
|
1
|
|
|
19
|
Шнур
в корпусе (разметочный 15 м)
|
ТУ
222-4633-80
|
шт.
|
3
|
|
|
20
|
Угольник
стальной
|
ТУ
4400-79
|
шт.
|
3
|
|
|
21
|
Скребок
для очистки поверхности
|
ВНИИСМИ
РЧ № 210
|
шт.
|
1
|
|
|
22
|
Щетка
стальная прямоугольная
|
ТУ
494-01-104-76
|
шт.
|
3
|
|
|
23
|
Детка
волосяная
|
-
|
шт.
|
1
|
|
|
24
|
Кисть
макловица
|
КМА-1
ГОСТ 10597-97
|
шт.
|
3
|
|
|
25
|
Полутерок
деревянный
|
Чертеж
669А Мосоргстрой
|
шт.
|
3
|
|
|
26
|
Приспособление
для резки плитки
|
УМОР,
чертеж 671
|
шт.
|
3
|
|
|
27
|
Резец
для плиток
|
ГОСТ
19259-73
|
шт.
|
6
|
|
|
28
|
Тележка
для подачи раствора
|
Т-200
|
шт.
|
1
|
|
|
29
|
Тележка
трехколесная для подачи штучных материалов
|
-
|
шт.
|
1
|
|
|
30
|
Ведро
|
-
|
шт.
|
2
|
|
|
31
|
Ковш
штукатурный
|
|
шт.
|
1
|
|
|
32
|
Шланг
резиновый 20 - 25 м
|
-
|
шт.
|
1
|
|
|
33
|
Маячные
рейки длиной до 2 м
|
Чертеж
389 Мосоргстрой
|
шт.
|
2
|
|
|
34
|
Рейка
деревянная для разравнивания раствора
|
Чертеж
389 Трест Мосоргстрой
|
шт.
|
1
|
|
|
35
|
Контрольная
рейка
|
Чертеж
1226 Мосоргстрой
|
шт.
|
3
|
|
|
36
|
Деревянный
брусок размером 500´150´50 мм
|
-
|
шт.
|
2
|
|
|
37
|
-
|
шт.
|
1
|
|
|
38
|
Стол-верстак
для плиткореза размером 1000´1000´800 мм
|
-
|
шт.
|
1
|
|
|
39
|
Ящик
для раствора
|
Р.ч.
3241.42.000 ЦНИИОМТП
|
шт.
|
1
|
|
|
40
|
Контейнер
для керамической плитки
|
Чертеж
2471-00-00А СКБ Мосстрой
|
шт.
|
1
|
|
Потребность в средствах индивидуальной защиты,
обеспечивающих наибольшую производительность звена при наиболее благоприятных и
безопасных условиях производства работ при устройстве полов из керамических
плиток, с указанием их номера ГОСТа, ТУ, типов, марок или
организации-разработчика и количества на звено приведена в таблице 3.
Таблица 3 - Перечень средств индивидуальной
защиты
|
№
п/п
|
Наименование
машин, механизмов и оборудования
|
Тип,
марка, ГОСТ, ТУ, организация-изготовитель
|
Ед.
изм.
|
Количество
на звено
|
Примечание
|
|
1
|
Комбинезон
|
ГОСТ
12.4.100-80*
|
шт.
|
2
|
|
|
2
|
Каска
строительная
|
ГОСТ
12.4.087-84
|
шт.
|
2
|
|
|
3
|
Очки
защитные
|
|
шт.
|
1
|
|
|
4
|
Респиратор
|
ГОСТ
17269-71*
|
шт.
|
2
|
|
|
5
|
Сапоги
резиновые
|
ГОСТ
12.4.072-79*
|
пар
|
2
|
|
|
6
|
Рукавицы
|
Тип
Г ГОСТ 12.4.010-75*
|
пар
|
2
|
|
|
7
|
Перчатки
резиновые технические
|
Тип
1 ГОСТ 9502-60
|
пар
|
2
|
|
2.6 Организация рабочего места
До начала плиточных работ в санузлах должно быть
выполнено следующее:
подготовлено основание под полы (гидроизоляция и
стяжка по гидроизоляции);
смонтированы и спрессованы сантехнические
разводки стояков к приборам (отопительные, водопроводные);
установлены и обмурованы ванны;
поставлены пробки, крючья и кронштейны для
навешивания санитарно-технических приборов;
установлены и закреплены на соответствующих
отметках трапы.
На лестничных площадках плиточные работы
начинают после монтажа шахты лифтов, установки порталов, забетонирования
примыканий к ним и установки проступей по ступеням марша и лестничных
ограждений.
Поверхности железобетонных плит перекрытий,
стяжек и подстилающих слоев перед настилкой полов должны быть очищены от пыли,
грязи и промыты водой. Впадины, выбоины и выпуклости основания должны быть
ликвидированы.
Зазоры между сборными плитами перекрытий, места
примыкания их к стенам и перегородкам, а также монтажные отверстия должны быть
заделаны цементно-песчаным раствором марки не ниже 100 заподлицо с поверхностью
плит.
После проверки горизонтальности основания
приступают к проверке геометрической формы помещения и разбивке пола: проверяют
углы помещения с помощью шнура, который натягивают по диагоналям помещения.
Если диагонали одинаковые, следовательно, углы прямые; в этом случае размечают
фризы и устанавливают маяки по заданным отметкам чистого пола.
Если диагонали неравны, то пол имеет
неправильную форму. В этом случае для уменьшения этого недостатка основной фон
пола и фризы настилают правильной формы, а между фризом и стеной закладывают
«заделку». Для «заделки» рекомендуется применять плитки того цвета, который
имеет основной фон покрытия.
2.7 Охрана труда
Вопросы безопасности и охраны труда обязательно
должны рассматриваться на стадии проектирования производства работ.
На этом этапе необходимо предусматривать:
заземление станков, укладку вокруг них
деревянных настилов и устройство отвода вод. Настилы следует ежедневно очищать;
выполнение операций по обработке керамических
плиток на специальных подставках (столиках, скамейках), при этом между
работающими должно быть либо расстояние не менее 3 м, либо защитные щиты,
ограничивающие расстояние разлета осколков. При сухой обработке облицовочных
изделий внутри помещений у рабочих мест необходимо установить пылеотсасывающие
устройства;
использование переносного электрифицированного
инструмента с напряжением не более 42 В;
безопасную организацию рабочего места,
включающую применение необходимых средств подмащивания и ограждения рабочих
мест.
Все вновь поступающие на стройку рабочие должны
проходить как вводный инструктаж, так и первичный инструктаж на рабочем месте
по безопасности и охране труда по работе с механизмами, инструментами и
материалами. Инструктаж на рабочем месте проводит производитель работ или
мастер с записью результатов инструктажа в «Журнале регистрации инструктажа на
рабочем месте». Прошедшие вводный инструктаж заносятся в «Журнал регистрации
вводного инструктажа по охране труда».
Бригадиры должны обеспечивать высокую трудовую
дисциплину среди членов бригады и требовать от рабочих строгого соблюдения
правил внутреннего трудового распорядка и правил безопасности и охраны труда.
К работе с электрифицированным инструментом
допускаются только рабочие, прошедшие специальное обучение согласно ГОСТ
12.0.004-90 и первичный инструктаж на рабочем месте по безопасности и охране
труда. Электроинструмент должен быть исправным, иметь гладкие и надежно
закрепленные рукоятки с надежным заземлением.
Чистку, смазку, ремонт и переноску станков и
машин с электроприводом производить только после остановки их и проверки
условий, исключающих случайную подачу напряжения. Провода электрических машин
не должны иметь изломов и пересекаться с другими проводами, находящимися под
напряжением.
Облицовщиков-плиточников необходимо обеспечивать
спецодеждой - комбинезонами, рукавицами, наколенниками, респираторами для
работ, связанных с выделением большого количества пыли, задерживающие до 80%
пыли, защитными очками с небьющимися стеклами для прирубки и сверления
керамических плиток, резиновой диэлектрической обувью и перчатками, чтобы
защитить руки от разъедания их раствором, и защитными касками.
Кроме того, для защиты кожного покрова рук от
воздействия химически вредных соединений следует использовать защитные пасты и
мази.
Плитки при устройстве покрытий на прослойке из цементных
растворов надо укладывать в резиновых перчатках, чтобы защитить руки от
разъедания их раствором; прирубку плиток надо производить в защитных очках; на
ногах должны быть диэлектрические галоши. При настилке полов подколка и
подтеска плиток на камнях запрещается.
Перед включением и после каждого перемещения
оборудования необходимо проверять изоляцию проводов, защитные средства,
ограждения и заземление оборудования.
Инструменты должны быть в полной исправности.
Рукоятки инструмента облицовщиков-плиточников
(молотков, бучард и др.) должны быть выполнены из древесины вязких пород (бука,
акации, дуба и др.) и расклинены металлическим клином, а зубила, закольники,
скарпели не должны иметь в местах захвата рукой острых граней, заусенец, сбитых
головок.
Рабочие места, проходы и проезды необходимо
хорошо освещать. Не следует загромождать их лишними материалами, особенно
досками, щитами с торчащими гвоздями.
На объекте плитки должны храниться в закрытых
складах, упакованными в пачках раздельно по сортам, цветам и уложенными на
поддоны.
Не допускается бросать пачки с плиткой во время
погрузки и разгрузки. При транспортировании, погрузке и выгрузке плиток должны
быть приняты меры, обеспечивающие их сохранность от механических повреждений.
Для предупреждения пожаров необходимо строго
соблюдать требования противопожарной безопасности и регулярно проводить
инструктаж работающих.
Для курения должны быть отведены специальные
места, оборудованные урнами, бочками с водой, ящиками с песком.
Отходы необходимо до окончания работ удалять с
объекта.
В складских помещениях с легковоспламеняющимися
материалами нельзя пользоваться спичками, фонарями «летучая мышь» и тому
подобными средствами.
Все электротехнические установки по окончании
работ необходимо выключать, а кабели и провода обесточивать.
Места производства работ должны быть обеспечены
средствами пожаротушения - огнетушителями, бочками с водой, ящиками с песком,
ломами, топорами, лопатами, баграми, ведрами.
Каждый рабочий должен знать свои обязанности при
возникновении пожара и его тушении, уметь пользоваться средствами
пожаротушения, быстро оповещать пожарную команду, пользуясь средствами связи.
При устройстве полов из керамических плиток
руководствоваться требованиями:
СНиП 12-03-2001 «Безопасность труда в
строительстве. Часть 1. Общие требования»;
СНиП 12-04-2002 «Безопасность труда в
строительстве. Часть 2. Строительное производство»;
ПОТ РМ-016-2001 «Межотраслевые правила по охране
труда (правила безопасности) при эксплуатации электроустановок», М., 2001 г.;
ППБ 01-93** «Правила пожарной безопасности в
Российской Федерации», МВД РФ, М., 2000 г.;
СП 12-135-2002 «Безопасность труда в
строительстве. Отраслевые типовые инструкции по охране труда»;
ГОСТ 12.0.004-90 «Организация обучения
безопасности труда. Общие положения»;
«Рекомендаций по организации работы службы
охраны труда в организации».
3. Малярные работы
.1 Технологическая карта
Малярные работы являются завершающим этапом всех
строительных работ. К малярным работам относятся работы по окраске поверхностей
помещений, фасадов различными красочными составами, которые защищают от
преждевременного износа и увеличивают срок службы зданий и сооружений. Окраску
производят для улучшения санитарно-гигиенических условий помещений, а также для
декоративно-художественного оформления помещений и наружного вида зданий. В
зависимости от назначения здания, а также от требований предъявляемых к
отделке, окраска может быть по степени сложности и качеству выполнения простой,
улучшенной, высокачественной. Категория окраски предусматривается в проектном
решении.
Малярные работы состоят из нескольких операций,
количество и характер которых зависит от вида окраски, применяемого окрасочного
состава и от материала окрашиваемой поверхности (подложка). Вначале выполняют
операции по подготовке окрашиваемых поверхностей, затем огрунтовка (проолифка),
шпаклевка, шлифовка, вторая огрунтовка и окраска. При больших объемах работ
выполняется комплекс операций по приготовлению малярных составов по подбору
колеров.
Последовательность выполнения малярных работ для
различных условий производства указывается в ЕНиРе и в СНиПе 3.04.01-87.
При производстве малярных работ применяют
значительное Количество разнообразных материалов, особенно для приготовления
окрасочных составов.
Основными компонентами для малярных составов
служат: связующие (пленкообразующее вещество); пигменты и красители;
наполнители, растворители (разбавители); добавки для улучшения технологических
и эксплуатационных свойств красок (эмульгаторы гидрофобизаторы, пластификаторы,
сиккативы, антисептики и др.)'
Связующим для водных составов служат известь,
цемент, растворимое стекло, животный, растительный и синтетический клеи. Для
неводных составов связующим являются олифа, растворы синтетических и
натуральных смол в органических растворителях. Малярные покрытия, как правило,
состоят: из нижнего (первого) слоя грунтовки; от одного до трех слоев шпаклевки
с прослойками фунтового состава; верхнего слоя грунтовки по последней
шпаклевке; и заключительных слоев (от одного до трех) окрасочного состава.
Технологические операции, выполняемые при
подготовке и окраске поверхностей внутри помещений масляными, эмалевыми и
синтетическими красками
|
Технологические
операции
|
Вид
окраски
|
|
простая
|
улучшенная
и высококачественная
|
простая
|
улучшенная
и высококачественная
|
простая
|
улучшенная
и высококачественная
|
|
по
дереву
|
по
штукатурке и бетону
|
по
металлу
|
|
1.
Очистка
|
+
|
+
|
+
|
+
|
+
|
+
|
|
2.
Сглаживание поверхности
|
-
|
-
|
+
|
+
|
-
|
-
|
|
3.
Вырезка сучков и засмолов с расшивкой щелей
|
+
|
+
|
-
|
-
|
-
|
-
|
|
4.
Расшивка трещин
|
-
|
-
|
+
|
+
|
-
|
-
|
|
5.
Огрунтовка (проолифка)
|
+
|
+
|
+
|
+
|
-
|
+
|
|
6.
Частичная подмазка шлифовкой подмазанных мест
|
+
|
+
|
+
|
+
|
-
|
+
|
|
7.
Огрунтовка подмазанных мест
|
+
|
+
|
+
|
+
|
-
|
+
|
|
8.
Сплошная шпаклевка
|
-
|
+
|
-
|
+
|
-
|
+
|
|
9.
Шлифовка
|
-
|
+
|
-
|
+
|
-
|
+
|
|
10.
Огрунтовка
|
-
|
+
|
-
|
+
|
-
|
-
|
|
11.
Флейцевание
|
-
|
+
|
-
|
+
|
-
|
-
|
|
12.
Шлифовка
|
-
|
+
|
-
|
+
|
-
|
-
|
|
13.
Первая окраска
|
+
|
+
|
+
|
+
|
+
|
+
|
|
14.
Флейцевание
|
-
|
+
|
-
|
+
|
-
|
-
|
|
15.
Шлифовка
|
-
|
+
|
-
|
+
|
-
|
-
|
|
16.
Вторая окраска
|
+
|
+
|
+
|
+
|
+
|
+
|
|
17.
Флайцевание или торцевание
|
-
|
+
|
-
|
+
|
-
|
-
|
Технологические операции, выполняемые при
подготовке и окраске наружных поверхностей.
|
Технологические
операции
|
Составы
красок
|
|
силикатные
|
известковые
и цементные
|
эмульсионные
синтетические
|
перхлорвиниловые
|
масленые
и эмалевые
|
полимерцементные
и вязкие цементные
|
|
1.
Очистка
|
+
|
+
|
+
|
+
|
+
|
+
|
|
2.
Расшивка трещин
|
+
|
+
|
+
|
+
|
+
|
+
|
|
3.
Подмазка
|
+
|
+
|
+
|
+
|
+
|
+
|
|
4.
Шлифовка
|
+
|
+
|
+
|
+
|
+
|
+
|
|
5.
Шпаклевание
|
-
|
-
|
+
|
+
|
+
|
-
|
|
6.
Шлифование
|
-
|
-
|
+
|
+
|
+
|
-
|
|
7.
Смачивание водой
|
-
|
+
|
-
|
-
|
-
|
+
|
|
8.
Огрунтовка
|
+
|
|
+
|
-
|
+
|
+
|
|
9.
Первая окраска
|
+
|
+
|
+
|
+
|
+
|
+
|
|
10.
Вторая окраска
|
+
|
+
|
+
|
+
|
+
|
+
|
В состав малярных работ входят: подготовка
поверхности под окраску; окраска поверхности; отделка окрашиваемой поверхности.
Выполнение малярных работ контролируется нормами СНиП 3.04.01-87 «Изоляционные
отделочные покрытия». В проекте на отделочные работы должен быть утвержден
набор колеров и вид окраски, а до начала работ определен способ окраски.
Малярные работы принимают только после высыхания водоразбавленных красок и не
ранее образования прочной пленки (отлип) на поверхностях окрашенных водным и
неводными составами, т. к. только на сухой поверхности видны все дефекты.
Поверхности, окрашенные неводными окрасочными
составами, должны иметь однотонную глянцевую или матовую фактуру. Не
допускаются просвечивание нижележащих слоев краски, следы соединения захваток и
кисти, потеки, пятна, пузыри, песчинки, морщины, наплывы, шероховатость. Искривление
линий филенок не должно превышать 2 мм, закраска поверхностей, окрашенных
разными цветами не допустима при высококачественной окраске. При окраске
деревянных и металлических деталей должны быть сохранены профили калевок,
галтелей, плинтусов, фасок и других деталей рельефного профиля.
3.2 Технологический процесс
Для нанесения окрасочных составов используют
различные кисти, валики, краскопульты, компрессорные окрасочные агрегаты с
пистолетами-распылителями.
Кисти применяют при небольших объемах работ и
для окраски труднодоступных мест. Более высокая производительность труда и
качество работ достигаются при применении валиков с поролоновым или меховым
чехлом.
Принцип работы краскопульта (рис. 11.1)
заключается в том, что под давлением краска через отверстие в удочке равномерно
распыляется по поверхности. Однако краскопульты можно использовать только для
нанесения невязких окрасочных составов (известковые, клеевые, силикатные и
т.п.).
Для нанесения малярных составов любой вязкости
применяют компрессорные окрасочные агрегаты с пистолетами-распылителями (рис.
11.1). При малых объемах работ бачок для малярного состава подвешивают к
пистолету-распылителю.
Наносить окрасочные составы удочкой с форсункой
или пистолетом-распылителем следует плавными кругообразными движениями
параллельно окрашиваемой поверхности. При этом надо следить, чтобы не было
пропусков и повторных прохождений по одному месту. Для равномерного и плотного
оседания состава на поверхность следует держать от окрашиваемой поверхности
форсунку удочки на расстоянии 0,75 - 1 м, а головку пистолета - на расстоянии
25 - 30 см. Если расстояние будет больше указанного, краска не долетит до
поверхности, а при меньшем расстоянии образуются потеки (рис. 25). Казеиновые
составы пригодны как для внутренних, так и для окраски фасадов. Но в малярных
работах их применяют редко, так как они допускают применение только
ще-лочеустойчивых пигментов, чем ограничивается их цветовая палитра, а также
из-за дефицитности связующего.
Известковые и цементные составы применяют для
окраски сырых помещений, а также фасадов зданий, к отделке которых не
предъявляют высоких требований.
Силикатные окраски могут использоваться для
окраски внутренних помещений и фасадов. Краски обладают хорошей адгезией к
поверхностям, поэтому впервые окрашиваемые поверхности можно не огрунтовывать.
Водно-дисперсионные краски предназначены для
окраски потолков и стен.
Не допускается окрашивать этими красками оконные
проемы, Двери, пластмассовые изделия.
При нанесении краски кистями поверхность получается
штрихованной, поэтому при необходимости выполняют торцевание свежеокрашенной
поверхности.

Валики и механизированная окраска дают
равномерно шероховатую фактуру. Окрасочные составы всех видов надо наносить
тонким слоем. Если сквозь красочный слой проявляется подложка или предыдущий
красочный слой, необходимо нанести еще один красочный слой до полного получения
дан-10Й тональности. Последний окрасочный слой на потолки наносят 1о
направлению к свету, на стены сверху вниз, а на дерево по направлению волокон.
3.3 Инструменты и приспособления
Инструмент, приспособления, инвентарь
Шпатель стальной для подмазки отдельных мест -
1;
Шпатель универсальный с резиновой вставкой - 1;
Кисть-ручник для проолифки подмазанных мест - 1;
Деревянная колодка для крепления шлифовальной
шкурки - 1;
Ящик для шпаклевки размером 300x200x150 мм с -
1;
Ведро для олифы - 1.
.4 Применяемые материалы
Масляными красочными составами поверхности
окрашивают в защитных и декоративных целях. В том случае, когда главным
являются защитное назначение покрытия, применяют составы, образующие глянцевые
пленки. При образовании глянцевых пленок пигменты погружаются в толщу
красочного покрытия, поверх пигментов находится сплошной слой связующего,
зеркально отражающего свет. При декоративной окраске поверхностей внутри здания
примелют матовые покрытия. Эти покрытия смягчают цветовые тона краски, делают
менее заметным дефекты штукатурки, бетона, древесины. Чаще всего матовые
покрытия получают, снижая в пленке количество связующего и заменяя его
испаряющимся растворителем или вводя в составы матирующие добавки - пчелиный и
искусственный воск, разведенный в растворителе.
При матировании воском пластинки его всплывают
и, располагаясь на поверхности покрытия под различными углами, также рассеянно
отражают падающие на него лучи света.
Такие покрытия красивы, но прочность их
невелика. Кроме того, пленки высыхают медленно, так как на поверхности
образуется пленка, препятствующая испарению растворителя из толщи пленки и
проникновению в нее кислорода для окисления масла. При подготовке под
окрашивание матовыми неводными составами поверхности грунтуют олифой или
краской и окрашивают в
•дин слой жирным масляным составом до глянца.
При этом не должно быть матовых пятен и следов недостаточной жирности окраски,
так как наличие пятен приводит к образованию более темных мест в матовой
окраске и вызывает необходимость в переделке. Гак окрашивают штукатурку, бетон
и иногда дерево.
При приготовлении матовых декоративных составов
с большей насыщенностью пигментами, чем глянцевые, часть тертых на масле
пигментов заменяют сухими, которые затирают на растворителе (табл. 4).
Таблица 4 - Матовые декоративные составы
|
Компоненты
|
Красочные
составы
|
|
1-й
|
2-й
|
3-й
|
4-й
|
|
Белила
тертые
|
4,0
|
3,2
|
5,0
|
-
|
|
Белила
сухие цинковые
|
1,0
|
1,0
|
2,0
|
В
необходимом количестве
|
|
Пигменты
сухие
|
2,0
|
1,5
|
3,0
|
|
|
Олифа
оксоль
|
2,0
|
1,0
|
3,0
|
3,0
|
|
Скипидар
|
3,0
|
3,0
|
1,0
|
6,0
|
|
Сиккатив
|
0,1
|
0,1
|
0,1
|
0,1
|
Примечание. Перечисленные в таблице матовые
составы расположены, начиная с менее матового №1, кончая матовым предельной
сухости №4.
Способ приготовления. Сухие белила и пигменты
перетирают с растворителем до сметанообразной консистенции. Белила тертые
разводят олифой и остатком скипидара, вводят в них перетертые в скипидаре сухие
белила, пигменты и сиккатив. Состав перемешивают и процеживают на вибросите
СО-3 с сеткой 0,25 - 0,2. Составы наносят на поверхности макловицей, валиком с
меховым чехлом или кистью-ручником. Свежеокрашенную поверхность обрабатывают
торцовкой.
При приготовлении восковых матовых покрытий
готовят состав по рецепту:
Белила цинковые тертые ....... 2,0
Белила цинковые сухие ........ 1,0
Скипидар ................... 1,0
Воск натуральный ............. 0,2
Олифа натуральная ............ 0,15
Сиккатив жидкий ............. 0,15
Пигменты сухие по потребности
Способ приготовления. Воск измельчают, заливают
пятикратным количеством скипидара и выдерживают до полного растворения. Сухие
цинковые белила и сухие пигменты разводят половинным количеством скипидара и
перетирают на краскотерке.
Белила тертые разводят остатком скипидара и
сиккативом, затем вводят в состав сухие пигменты и цинковые белила, перетертые
на скипидаре. Состав хорошо перемешивают, затем вводят раствор пчелиного воска.
Состав вновь перемешивают.
Состав наносят на поверхность кистью-ручником,
растушевывая красочный слой и обрабатывая его жесткой щеткой-торцовкой с
тщательно выровненным волосом. Выравнивание волоса щетки-торцовки производят
обжигая ее на раскаленной плите. При работе щеткой-торцовкой необходимо следить
за тем, чтобы не образовывать повторно проторцованную и уже несколько окрепшую
поверхность. Это может привести к образованию более светлых мест, резко
выделяющихся на общем фоне.
Поливинилацетатные водно-дисперсионные краски
широко используются при декоративных отделках.
Эти составы готовят из поливинилацетатной
эмульсии, пигментов с добавлением стабилизатора и пластификаторов. Краски
предназначаются для внутренней отделки зданий по штукатурке
(извес-тково-песчаной, известково-гипсовой, известково-цементной, цементной),
листовому асбоцементу, бетону, гипсолиту, гипсу, дереву. По металлу окрасочные
составы наносят только после предварительного грунтования поверхностей масляной
или лаковой антикоррозионной краской.
Поливинилацетатные краски могут использоваться
при стенной росписи, а также при альфрейных работах. Время высыхания этих
красок непродолжительно - около 2 - 3 ч при температуре 18 - 22 °С, поэтому
двух - трехслойную окраску можно закончить в течение одного дня.
Быстрое высыхание составов определяется временем
испарения воды, которая находится в числе компонентов в количестве 39 - 40%. На
долю смолы и пигментов приходится 60 - 61% состава. Поливинилацетатные краски
представляют собой эмульсию ша MB («масло в воде»). Это такой состав, в котором
смола (святощее) и пигменты в виде отдельных частиц, перемешанные равномерно,
плавают в водной среде. Если нужно понизить вязкость эстава, разводят его
водой. При испарении воды частицы смолы размером 1 - 4 мк сначала сближаются,
окружая плотным кольцом пигменты, а затем смыкаются и сливаются, образуя
плотную пигментно-смоляную массу с некоторым количеством мельчайших пор на
поверхности, через которые испарялась вода. Высохшая пленка занимает
значительно меньший объем и по высоте равна примерно 60% от первоначальной. Так
как поверхность красочной пленки пористая, она приобретает полуматовый
шелковистый блеск, придавая окраске декоративность, и при соответствующей
подготовке оснований и качественном выполнении самой окраски может с большим
успехом заменить при отделке интерьеров матовые масляные покрытия.
Для подготовки поверхностей под окрашивание
высококачественными составами пользуются безмасляной асбестомеловой шпаклевкой,
приготовленной по рецепту (%):
Поливинилацетатная краска любого цвета . . 10
Раствор животного клея (10%-ный) ........ 30
Мел тонкомолотый ..................... 30
Асбест 7 .............................. 30
Способ приготовления. Сухую смесь асбеста и мела
затворяют 10%-ным раствором животного клея до пастообразного состояния, затем
вводят поливинилацетатную краску, перемешивают состав и перетирают его на
краскотерке. Состав пригоден для работы в течение 3 суток. Шпаклевку нужно
хранить в плотно закрывающейся деревянной таре. При хранении в металлической
таре внутренние поверхности ее необходимо предварительно окрашивать эмалевой
или масляной краской. Асбестомеловую шпаклевку применяют для выравнивания
поверхностей бетонных, оштукатуренных известково-песчаными,
известково-гипсовыми, известково-цементными и цементными растворами, сухих
гипсовых и древесно-волокнистых плит и конструкций из дерева. Эта шпаклевка при
нанесении ее на бетонные и оштукатуренные поверхности в отличие от
клеемасля-ных не требует грунтования. На дерево и древесноволокнистые плиты
шпаклевку наносят после предварительного грунтования поверхностей олифой или
масляной краской, разведенной олифой до вязкости 35 -- 40 с по вискозиметру
ВЗ-4.
Для получения высококачественной окраски
поверхности следует обрабатывать следующим образом:
поверхности зачищают и удаляют пыль;
огрунтовывают поверхности ;
выбоины и неровности подмазывают и шлифуют;
поверхности огрунтовывают;
шпаклюют и шлифуют дважды;
огрунтовывают поливинилацетатной грунтовкой;
выправляют цветной шпаклевкой и зачищают;
огрунтовывают поливинилацетатной грунтовкой;
дважды окрашивают.
Огрунтовывают поверхности кистями и валиками, а
окрашивают кистями, валиками и пневматическими краскораспылителями. Для первой
окраски, которую производят кистями и валиками, поливинилацетатные краски
вязкостью 80 с по вискозиметру ВЗ-4 разводят водой до вязкости 50 с. Для второй
окраски кистями и валиками применяют составы вязкостью 80 с.
Для первой и второй окрасок ручным
краскораспылителем поливинилацетатные краски разводят водой до вязкости 35 с.
Гладкое покрытие с шелковистым блеском образуется при окраске ручным
краскораспылителем СО-71. При окраске меховым валиком получают менее гладкую
поверхность, чем при обработке свежеокрашенной пленки мягкой торцовкой. При
окраске кистью может получиться некоторая штриховатость красочной пленки. Ее
можно уменьшить быстрой растушевкой и торцеванием красочного слоя. При окраске
поливинилацетатными красочными составами не следует наносить красочные составы
на основания, покрытые ранее меловой побелкой, а также обработанные
купоросными, квасцовыми и глиноземными грунтовками.
В первом случае пленка поливинилацетатной краски
отстает от основания вместе с набелом, а во втором ложится неровно. Поэтому
перед окраской с этих поверхностей удаляют набелы, а грунтовочные пленки
очищают шкуркой, затем обрабатывают поверхности масляной краской или олифой с
добавлением пигментов. Поверхности окрашивают поливинилацетатными составами при
температуре не ниже 8"С. При более низкой температуре составы запустевают,
распределяются по поверхностям неровным слоем, сроки высыхания их удлиняются.
3.6 Организация рабочего места
До начала работ необходимо тщательно проверить
качество штукатурки всех потолков, подлежащих обработке, а также подготовить и
доставить на рабочее место инструменты, инвентарь и готовую шпаклевку.
В состав шпаклевки не должны входить компоненты,
химически влияющие на последующие слои (огрунтовки, окраски).
Работы следует выполнять, строго соблюдая
правила техники безопасности и охраны труда рабочих согласно СНиП.
Операции по расшивке трещин и частичной подмазке
поверхности потолков выполняют в следующем порядке:
устанавливают на рабочем месте столики-подмости;
укладывают на них материалы и инструменты;
расшивают трещины и подмазывают отдельные места.
штукатурный малярный пол устройство
Рис. 26 - Организация рабочего места: М1, М2 -
рабочие места маляров; 1- столики-подмости; 2- направление ведения работ
Расшивка трещин и подмазка отдельных мест
(широкие и узкие шпатели; рис. 26, 4).Расшивку трещин маляры производят за два
движения. Упираясь одной рукой в потолок, другой рукой маляр расшивает узким
шпателем трещину в штукатурке на глубину около 2 мм. При этом плоскость шпателя
должна быть наклонена вправо под углом примерно в 60° к поверхности потолка.
При повторном движении плоскость шпателя наклоняют влево.
Рис. 27
Затем левой рукой маляр набирает узким шпателем
шпаклевку и накладывает ее на широкий шпатель, который держит в правой руке.
Упираясь левой рукой в потолок, а правой прижимая лезвие широкого шпателя к
поверхности потолка под углом в 30°, маляр ведет его вперед, нанося
шпаклевочный состав на поверхность потолка. Подмазку трещин и выравнивание
нанесенного слоя производят движениями узкого шпателя поперек и вдоль трещины.
По ходу работ маляры переставляют свои столики-подмости.
Рис. 28
3.7 Охрана труда
. Общие требования охраны труда
К выполнению малярных и обойных работ, а также
приготовлению малярных составов допускаются лица не моложе 18 лет.
Маляру следует помнить, что вследствие
невыполнения требований, изложенных в инструкции по охране труда, распорядка
дня, ПТЭ и ПТБ, при проведении малярных работ могут возникнуть опасности;
поражения электрическим током;
отравления парами красок;
падения с высоты;
возгорания лакокрасочных материалов.
Рабочее место должно быть организовано в
соответствии с картами трудовых процессов, содержаться в чистоте.
Состояние лесов, люлек и вышек должно
соответствовать требованиям ГОСТ 12.2.003-91 и ГОСТ 12.2.012-75.
Электрические проводки и оборудование в
замкнутых помещениях должны быть устроены в безопасном исполнении.
В опасных местах и зонах размещаются плакаты и
надписи по ТБ.
Маляр обязан:
выполнять только ту работу, которая ему поручена
руководителем работ;
курить и использовать открытый огонь только в
отведенных для этого местах.. Требования безопасности перед началом работы
Маляр обязан:
получить инструктаж по технике безопасности от
руководителя работ в случае изменения вида работы и условий труда, уяснить
поставленную задачу;
надеть и привести в порядок спецодежду и
индивидуальные средства защиты;
осмотреть рабочее место, убрать ненужные
предметы, освободить проходы;
проверить исправность инструмента;
при необходимости включить вентиляцию и
освещение;
при пользовании механизированным инструментом -
убедиться в исправности электрического оборудования, кабелей, заземления,
соединений шлангов для подачи сжатого воздуха, опробовать его на холостых
оборотах;
проверить готовность лакокрасочных составов к
употреблению.. Требования безопасности во время работы
Маляр обязан:
не загромождать проходы и рабочие места
строительными материалами, тарой;
пользоваться только готовыми колерами.
Запрещается на рабочем месте добавлять в краски и эмали растворители, сиккативы
и т.п.;
не допускать электро- и газосварочных работ,
разведения открытого огня вблизи рабочего места;
подавать инструмент, имеющий острые и колющие
поверхности, так чтобы рабочий принимающий инструмент, мог взять его за
рукоятку.
При работе на высоте:
складировать инструмент и тару после принятия
мер, предотвращающих их самопроизвольное падение;
применять испытанные предохранительные пояса;
спускаться вниз только по стремянкам или
капитальным лестницам;
при производстве работ в лестничных клетках
применять специальные подмости;
очистку поверхности производить исправным
инструментом и с применением индивидуальных средств защиты;
наносить кузбаслак на поверхности только
кистями;
при окраске кровель в жаркую солнечную погоду
предохранять голову от перегрева;
при снятии старых набелов в помещениях смачивать
поверхности водой, работа должна производиться в очках.
Маляру ЗАПРЕЩАЕТСЯ:
работать без спецодежды и средств индивидуальной
защиты;
работать с неисправным оборудованием и инструментом;
работать при неисправном и недостаточном
освещении;
не подходить и не находиться под поднятым
грузом;
подклинивать стойки лесов и подмостей обрезками
досок, кирпичами и другими нештатными приспособлениями и материалами;
разбирать леса и подмости способом обрушения;
проводить работы на неогражденных рабочих местах
при высоте более I м над землей;
курить и проводить работы, связанные с
использованием огня в зоне применения нитрокрасок и других
легковоспламеняющихся составов;
пользоваться открытым огнем при осмотре тары из
под красок, мастик и растворителей.. Требования безопасности по окончании
работы
Маляр обязан:
привести в порядок рабочее место;
отключить от сети механизмы и
электрифицированный инструмент;
обмыть и сдать на склад съемное оборудование и
инструмент;
снять механизмы с подмостей и лесов.. Требования
к поведению рабочего при возникновении опасной ситуации
Аварийная обстановка может возникнуть
вследствие:
превышения предельно допустимой концентрации
паров растворителей и пыли;
превышения нагрузки на леса;
замыкания и возгорания токоподводящих кабелей;
воспламенения паров растворителей;
прекращения подачи электроэнергии.
Маляр обязан:
немедленно подать сигнал об опасности;
принять мери по предупреждению аварии и покинуть
опасную зону;
сообщить руководителю работ;
при необходимости оказать доврачебную помощь
пострадавшим.
Используемая литература
1.
Белоусов Е.Д. Технология облицовки синтетическими материалами, Москва, Высшая
школа, 1982 г.
.
Галкин И.Г. Технология и организация строительного производства, Москва, Высшая
школа, 1981 г.
.
ЕНиР. Единые нормы и расценки на строительные, монтажные и
ремонтно-строительные работы. Сб. Е8. Отделочные покрытия строительных
конструкций. Выпуск 1. Отделочные работы, Москва, Стройиздат, 1987 г.
.
Ивлиев А.А. Рабочий перемешивающий орган струйного смесителя непрерывного
действия. Авторское свидетельство № 237560, 1969 г.
.
Ивлиев А.А. Технология теплоизоляционных материалов и изделий, г. Саратов, 1974
г.
.
Ивлиев А.А., Фахратов М.А., Подгорнов Н.И., Поляков П.Е. Основы менеджмента в
строительстве, Москва, Высшая школа, 1996 г.
.
Кальгин А.А., Сулиманов Ф.Г. Лабораторный практикум по технологии бетонных и
железобетонных изделий, Москва, Высшая школа, 1994 г.
.
Малин В.И. Наружная и внутренняя облицовка зданий природным камнем, Москва,
Высшая школа, 1985 г.
.
Неелов В.А. Строительно-монтажные работы - Москва, Стройиздат, 1986г.
.
Семенов В.Н. Унификация и стандартизация проектной документации для
строительства, Ленинград, Стройиздат, 1985 г.
.
СНиП 3. 21-82. Строительные нормы и правила. Организация, производство и
приемка работ. Отделочные покрытия строительных конструкций, Москва,
Стройиздат, 1985 г.
.
Суржаненко А.Е., Шепелев А.М. Малярные и штукатурные работы, Москва, Высшая
школа, 1968 г.