Определение рыночной стоимости двухкомнатной квартиры

  • Вид работы:
    Курсовая работа (т)
  • Предмет:
    Эктеория
  • Язык:
    Русский
    ,
    Формат файла:
    MS Word
    34,05 Кб
  • Опубликовано:
    2012-04-15
Вы можете узнать стоимость помощи в написании студенческой работы.
Помощь в написании работы, которую точно примут!

Определение рыночной стоимости двухкомнатной квартиры

Введение

В настоящее время оценочная деятельность в России находится в стадии становления:

- вырабатываются механизмы правого регулировщика,

унифицируются стандарты оценки.

Недвижимое имущество играет многогранную роль в экономической жизни. Оно является основной хозяйственной деятельности и составной частью активов предприятия.

Недвижимость занимает очень важное место как возможность вложения капитала. Рынок жилья получил новый виток развития, без оценки невозможно стало совершение практически ни одной сделки, необходимо получение достоверной информации по стоимости объектов.

Задача собственника состоит в том, чтобы угадать с конъектурой рынка, использовать всю имеющеюся информацию, для объективной оценки.

С формированием рыночных отношений понятия «недвижимость» и «оценка» стали широко использоваться на практике.

Актуальность темы состоит в том, что разные объекты удовлетворяют различные потребности, от оценки зависит установление рыночной стоимости объекта, а на стоимость влияют множество факторов.

Цель работы определение рыночной стоимости 2-х комнатной квартиры. Для реализации поставленной цели требуется решение следующих задач:

•        Рассмотреть теоретические аспекты оценки недвижимости;

•        Дать краткую характеристику объекта;

•        Описать техническое состояние объекта оценки;

•        Экспертным путем определить рыночную стоимость недвижимости.

Объект работы - 2-х комнатная квартира, находящаяся по адресу: Еловский район, с. Елово, улица Комсомольская дом 18 квартира 7.

1. Основы оценки

.1 История возникновения оценочной деятельности

Оценка как новое направление рыночной инфраструктуры возникла в связи с необходимостью разрешения имущественных споров, в которых стороны для определения объективной стоимости того или иного имущества были вынуждены прибегать к услугам независимых ценовых арбитров.

В нашей стране в течении семидесяти с лишним лет профессии оценщик не было, и быть не могло. Стоимость любого объекта собственности устанавливалась государством раз и навсегда. Но, объективно, политическая и экономическая ситуация в России, развивающийся рынок требовали правового регулирования формировавшейся оценочной деятельности.

В июле 1998 года, федеральный закон был принят. Он определяет правовые основы регулирования оценочной деятельности в отношении объектов оценки, принадлежащих Российской Федерации, субъектами РФ или муниципальным образованиям, физическим лицам и юридическим лицам, для целей совершения сделок с объектами оценки.

На данное время сформировались саморегулируемые организации оценщиков, появились специализированные издания, разработаны образовательные программы и методики. Оценщик - новая профессия, обусловленная развитием рынка в России.

1.2 Основные понятия и определения в оценке

В России происходит активное формирование и развитие рынка недвижимости. Российский рынок недвижимости отражает все проблемы экономики и характеризуется неравномерным развитием своих отдельных сегментов, несовершенной законодательной базой и низкой инвестиционной ликвидностью граждан и юридических лиц.

Под рынком недвижимости следует понимать определенный набор механизмов, посредством которых передаются права на собственность и связанные с ней интересы, устанавливаются цены и распределяется пространство между различными конкурирующими вариантами землепользователей.

Традиционно в России недвижимость делится на 3 группы:

жилищный фонд,

нежилой фонд,

земля.

Каждая из групп развивается самостоятельно, имеет собственную законодательную базу.

Региональный рынок недвижимости (РРН) представляет собой социально-экономический объект исследования, на функционирование которого влияют три взаимосвязанных комплекса: экономический, социальный, экологический.

Рыночная стоимость - наиболее вероятная цена, по которой объект оценки может быть отчужден на дату оценки на открытом рынке в условиях конкуренции, когда стороны сделки действуют разумно, располагая всей необходимой информацией, а на величине цены сделки не отражаются какие-либо чрезвычайные обстоятельства:

•        Одна из сторон сделки не обязана отчуждать объект оценки, а другая не обязана принимать исполнение;

•        Стороны хорошо осведомлены о предмете сделки и действуют в своих интересах;

•        Объект представлен на открытый рынок;

•        Цена сделки - разумное вознаграждение за объект.

Подход к оценке - наиболее общий принципиальный путь расчета стоимости. объединяющий несколько методов и методик.

Метод оценки - способ расчета стоимости объекта оценки в рамках одного из подходов в оценке.

Цена - денежная сумма, предлагаемая или уплаченная за объект оценки или его налог.

Аналог объекта оценки - сходный по своим экономическим, материальным, техническим и другим характеристикам объекту оценки другой объект, цена которого известна из сделки, состоявшейся при сходным условиях.

Процедура оценки

Процесс определения стоимости объекта оценки, как правило, включает в себя:

Этап 1. Постановка задания на оценку:

• идентификацию объекта недвижимости;

• идентификацию подлежащих оценке имущественных прав;

• назначение (сфера применения) результатов оценки;

• выбор и определение вида стоимости;

• уточнение даты проведения оценки;

• описание объема оценки;

• уточнение иных ограничений.

Этап 2. Оценка стоимости недвижимости проводится в целях определения:

• цены купли-продажи;

• суммы залога при кредитовании;

• базы налогообложения;

• условий арендного договора;

• стоимости зданий и сооружений бухгалтерской отчетности;

• базы справедливой компенсации при отчуждении имущественных прав;

• базы договора страхования.

Этап 3. В соответствии с действующими российскими стандартами оценки можно использовать следующие виды стоимости:

• рыночная стоимость;

• стоимость объекта оценки с ограниченным рынком;

• стоимость замещения;

• стоимость воспроизводства;

• стоимость при существующем использовании;

• стоимость для целей налогообложения;

• инвестиционная стоимость;

• ликвидационная стоимость;

• утилизационная стоимость.

Этап 4. Анализ лучшего и наиболее эффективного использования.

Этап 5. Оценка стоимости недвижимости обычно осуществляется с позиции трех основных подходов:

• затратный подход;

• сравнительный подход;

• доходный подход.

Этап 6. Согласование предварительных результатов оценки и выведение итоговой величины стоимости.

Согласование результатов, полученных на основе различных подходов и методов;

проверка полученных результатов с целью выявления математических и логических ошибок;

проверка результатов определяется содержанием оценочного задания, использованных подходов и методов оценки;

С учетом вышеизложенного, оценщиком принимаются коэффициенты весомости промежуточных результатов, полученных на основе использования различных подходов.

Этап 7. Составление отчета об оценке.

Отчет об оценке имеет развернутую форму. Действующий в Российской Федерации Закон об оценочной деятельности в статье 11 устанавливает общие требования к содержанию и оформлению отчета:

• дата составления и порядковый номер отчета;

• основание для проведения оценщиком оценки объекта оценки;

• юридический адрес оценщика;

• сведения о выданной ему лицензии на осуществление оценочной деятельности;

• точное описание объекта оценки и его балансовой стоимости;

• реквизиты юридического лица;

• стандарты оценки для определения соответствующего вида стоимости;

• перечень использованных при проведении оценки данных с указанием источников их получения,

• принятые при проведении оценки допущения;

• последовательность определения стоимости и ее итоговая вели чина;

• ограничения и пределы применения полученного результата;

• дата определения стоимости объекта оценки;

• перечень документов, используемых оценщиком и устанавливающих количественные и качественные характеристики объекта оценки.

Итоговая величина стоимости, зафиксированная в отчете, признается достоверной и рекомендуется для совершения сделки с объектом недвижимости.

Анализ наилучшего и наиболее эффективного использования

Поскольку оценочная деятельность предполагает определение рыночной стоимости, анализ наиболее эффективного использования выявляет наиболее прибыльный и конкурентоспособный вид использования конкретного объекта собственности.

Все типы сделок с собственностью, основанные на рыночной стоимости, требуют адекватной оценки и тщательного анализа экономического поведения инвесторов и других участников рынка. Влияние рыночного поведения на принятие финансовых решений частных лиц, компаний, органов власти диктует концепцию наиболее эффективного использования недвижимости. Рыночные факторы определяют рыночную стоимость, поэтому требования рыночных сил к объектам недвижимости имеют большое значение для определения наиболее эффективного вида использования.

Стоимостной основой любого объекта недвижимости является стоимость земельного участка. Расположенные на нем здания и сооружения могут быть изменены, однако основные характеристики участка обычно остаются прежними. Вместе с тем доход конкретного участка зависит от эффективности его использования. Инвестор, выбирая земельный участок на конкретном рынке, понимает, что разница в стоимости различных участков объясняется их качественными характеристиками.

Анализ наиболее эффективного использования объекта недвижимости предполагает проведение подробного исследования рыночной ситуации, характеристик оцениваемого объекта, идентификации востребованных рынком вариантов, совместимых с параметрами оцениваемого объекта, расчет доходности каждого варианта и оценку стоимости недвижимости при каждом варианте использования. Таким образом, окончательный вывод о наиболее эффективном использовании может быть сделан только после расчета стоимости.

Наилучшее и наиболее эффективное использование объекта недвижимости представляет вариант использования свободного или застроенного участка земли, который юридически возможен и соответствующим образом оформлен, физически осуществим, обеспечивается соответствующими финансовыми ресурсами и дает максимальную стоимость.

Оптимальное использование участка земли определяется конкурирующими факторами конкретного рынка, к которому принадлежит оцениваемый объект собственности, и не является результатом субъективных домыслов собственника, девелопера или оценщика. Поэтому анализ и выбор наиболее эффективного использования является, по сути, экономическим исследованием рыночных факторов, существенных для оцениваемого объекта.

Обычно анализ наиболее эффективного использования проводится по нескольким альтернативным вариантам и включает следующие направления:

рыночный анализ;

анализ реализуемости варианта;

анализ наиболее эффективного использования.

Обзор социально-экономических условий района

Пермский край - субъект Российской Федерации, расположен на востоке Восточно-Европейской равнины и западном склоне Среднего и Северного Урала. Пермский край был образован 1 декабря 2005 года в результате объединения Пермской области и Коми-Пермяцкого автономного округа в соответствии с результатами референдума, проведенного 7 декабря 2003 года. Край входит в состав Приволжского федерального округа, граничит с Республикой Коми, Кировской областью, Удмуртией, Башкирией, Свердловской областью. Площадь края 160,6 тысяч кв. км, население 2,73 млн. человек (2007), плотность 17,6 человек на кв. км. Пермский край включает 48 муниципальных образований - 42 муниципальных района и 6 городских округов. 6 муниципальных районов и 1 городской округ образуют территорию с особым статусом - Коми-Пермяцкий округ. Административный центр Пермского края - город Пермь, другие крупные города: Березники, Соликамск, Чайковский, Лысьва, Кунгур, Краснокамск, Чусовой, Чернушка, Добрянка.

Пермский край расположен на Востоке Восточно-Европрейской равнины и западном склоне среднего и Северного Урала, 99,3% площади края расположено в Европе, 0,2% - в Азии. Максимальная протяженность края: с севера на юг - 645 км; с запада на восток - 417,5 км. Климат Пермского края - умеренно-континентальный. Зима продолжительная, снежная. Средняя температура января на северо-востоке края -18,5°C, на юго-западе -15°C. Минимальная температура (на севере края) составило - 53°C.

Пермский край - один из экономически развитых регионов России. В 2006 году объем валового регионального продукта составил 436,203 млрд. рублей, средняя начисленная заработная плата - 9516,2 рублей. Основа экономики края - высокоразвитый промышленный комплекс. Ключевые отрасли промышленности нефтяная, химическая и нефтехимическая, черная и цветная металлургия, машиностроение, лесопромышленный комплекс.

Елово - краткая характеристика: село и пристань на левом берегу р. Кама (Воткинское водохранилище), центр Еловского сельского поселения и муниципального р-на.

Население: 5 814 человек (2002). Ранее: 190 человек (1795), 401 человек (1858), 1 189 человек (1926).

Ист. очерк: поселение известно с 1646 г. как починок «На Еловом» - селение осинских дворцовых крестьян. Свое название получило по водному источнику - ныне р. Еловка, приток р. Камы; в его основе лежит слово «ель». Позднее - д. Еловая. В кон. 18 - 1-й пол. 19 вв. входило в состав сначала Рождественского, затем Устиновского удельных приказов Осинского уезда. С постройкой в 1875 г. деревянной Алексиевской церкви получило статус села и наименование - Еловское. В кон. 19 - нач. 20 в. - крупный торговый и перевалочный пункт на р. Кама (пристань находилась в 1,5 км от с. Елово). Торговые обороты местной Алексеевской ярмарки достигали 150 тыс. руб. 1 сент. 1931 г. здесь была создана Еловская МТС, действовавшая до 1958 г. (позднее ремонтно-техническое предприятие). В янв. 1935 г. возник колхоз «Новый путь», который в февр. 1959 г. был укрупнен (слились 4 сельхозартели). С 1942 по 1946 г. существовала спичечная фабрика, с мая по окт. 1942 г. в селе находился эвакогоспиталь №4883. После образования Воткинского водохранилища под воду ушла часть старой застройки села. В 1962-1971 гг. на новое место было перенесено 258 домов. В дек. 1974 г. в Елово пущен в действие маслосыродельный комбинат - крупнейший производитель продукции из молока на Урале. Центр муниципального образования «Еловский район» (с янв. 1924 г., перерыв с 1963 по 1965 гг.) и Еловского сельсовета; с янв. 2006 г. - центр Еловского муниципального р-на и Еловского сельского поселения.

Экономика: Елово - центральная усадьба колхоза «Новый путь» и СХПК «Прикамье». Здесь действуют, помимо ТОО «Еловский маслосыркомбинат», МП «Агропромхимия», хлебозавод, АО «Хлебоприемное предприятие», рыбзавод (ранее, с 1965 г. - рыбоучасток), МП «Еловское предприятие жилищно-коммунального хозяйства», сельский лесхоз, универмаг «Кама», отделение связи.

Здравоохранение: центральная районная больница (с 1949 г.), аптека, медоптика.

Образование: учреждения нар. образования представлены профтехучилищем №76 (ранее СПТУ-76), филиалом Чайковского промышленно-гуманитарного колледжа, средней и двумя начальными школами, вечерней сменной общеобразовательной школой, детской школой искусств (ранее, с 1972 г., детская музыкальная школа), Центром Детского творчества (ранее, с 1958 г., Дом пионеров), детским домом.

Культура: учреждения культуры - Дом досуга (ранее Районный Дом культуры и спорта), известный своим ансамблем песни и танца, кинотеатр «Экран», центральная районная библиотека, детская районная библиотека, краевед. музей (с 1989 г.). Выходит районная газ. «Искра Прикамья» (ранее «Колхозный путь», с 26 авг. 1931 г.). Действующая православная церковь.

Архитектура, достопримечательности: Петро-Павловская каменная церковь (1891-1900 гг., архитектор А.Б. Турчевич), памятники жертвам гражданской войны, участникам Великой Отечественной войны, экипажу бронированного буксира «Русло», погибшему в годы гражданской войны; археологические памятники: поселение Елово I, селища Елово II, III, IV, V, VI, VII, VIII (Ананьинская культура, 7-6 в. до н.э.). Елово - родина Владимира Николаевича Коновалова (род. 1925), Героя Социалистического Труда, заместителя министра общего машиностроения СССР.


2. Определение задания на оценку

.1 Сопроводительное письмо

Уважаемая Светлана Леонидовна!

В соответствии с договором №2192, заключенным между Вами и обществом с ограниченной ответственностью, в лице генерального директора, произведена оценка объекта, включающего в себя двухкомнатную квартиру, расположенную по адресу с. Елово, улица Комсомольская д. 18, к. 7.

Целью оценки является определение рыночной стоимости объекта для реализации имущественных прав.

Обращаю внимание, что это письмо не является отчетом по оценке, а только предваряет отчет, приведенный далее. Полная характеристика объекта оценки, необходимая информация и расчет представлены в отчете, отдельные части которого не могут трактоваться раздельно, а только в связи с полным его текстом, с учетом всех принятых допущений и ограничений.

Произведенные ниже расчеты и анализ позволяют сделать вывод, что рыночная стоимость объекта оценки, включающего в себя двухкомнатную квартиру, расположенную по адресу Еловский район, с. Елово, ул. Комсомольская д. 18 кв. 7 по состоянию на__________ составляет…

Настоящий отчет составляет в соответствии ФЗ «об оценочной деятельности в РФ» от ____________

Если у Вас возникли какие-либо вопросы, пожалуйста, обратитесь непосредственно к нам.

Благодарим Вас за возможность оказать Вам услуги!

Генеральный директор

2.2 Описание объекта оценки

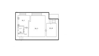
Основные данные и конструктивные особенности объекта оценки приведены в таблице 1.

Таблица 1 - Характеристика объекта

наименование

значение

Объект

Двухкомнатная квартира, площадь 47,9 м2, этаж 2

Адрес

РФ, Пермский край, с. Елово, ул. Комсомольская д. 18, кв. 7

Год постройки

1983

Этажность

2/3

Площадь

Общая - 47,9 м2 В т.ч. жилая - 29,5 м2 Подсобная - 17,7 м2

Число комнат

2

Площадь комнат

1 - 16,5 м2 2 - 13,0 м2

Кухня

8,2 м2

Ванная

2,7 м2

Туалет

0,8 м2

Коридор

5,4 м2

Наличие балкона

Есть

Высота по внутреннему обмеру

2,52 м

Санузел

Раздельный

Конструктивные особенности

Типовая квартира «хрущевка» застройки

Местоположение

Объект расположен в с. Елово

Транспортная доступность

К зданию, в котором находится квартира, подходит асфальтная дорога. общ. транспорт - автобусы, до остановки 50 минуты.

Благоустройство

Территория благоустроена

Водоснабжение

Поселковая сеть

Электроснабжение

Скрытая проводка

Горячее водоснабжение

Водонагреватель

Отопление

Центральное

Газ

Есть

Телевидение

Кабельное

Лифт

Нет

Мусоропровод

Нет

Телефон

Есть

Климатические условия

Умеренный

Наружные стены

Кирпичные

Перегородки

Кирпичные

Перекрытия

Железобетонные плиты

Отделка

Стены - обои, потолок - побелка

Полы

Линолеум


Рисунок 1. План квартиры

оценочный квартира стоимость сравнительный

2.3 Расчет стоимости объекта оценки сравнительным подходом

Сравнительный подход к оценке - это совокупность методов оценки стоимости, основанных на сравнении объекта оценки с его аналогами, в отношении которых имеется информация о ценах сделок с ними.

Сравнительный подход базируется на принципах:

замещения;

сбалансированности;

спроса и предложения.

Наиболее важным является точное определение поправочных коэффициентов (рис 2). Процентные поправки вносятся путем умножения цены продажи объекта - аналога или его единицы сравнения на коэффициент, отражающий степень различий в характеристиках объекта - аналога и оцениваемого объекта.


Последовательность внесения поправок:

•        Поправка на условия финансирования.

•        Поправка на особые условия продаж.

•        Поправка на время продажи.

•        Поправка на местоположения.

•        Поправка на физические характеристики.

Таблица 2 - Основные положения об оценке объекта

Положение

Значение

Основание для проведения Оценщиком оценки объекта:

Договор

Точное описание объекта:

Жилое помещение, площадью 47,9 кв. м., находящиеся на 2 этаже.

Вид определяемой стоимости объекта

Рыночная

Дата определения стоимости объекта

8.08.2008

Административный округ

с. Елово

Расстояние до ближайшей остановки

20 мин

Удобство подъездных путей

4 баллов

Площадь объекта оценки, кв. м.

47,9

Год постройки

1983

Право на объект оценки

Собственность


Описание объектов аналогов.

Объект №1 - Двухкомнатная квартира, находящаяся по адресу ул. Комсомольская д. 54, кв. 38. Продана полгода назад.

Объект №2 - Двухкомнатная квартира, находящаяся по адресу ул. Калинина д. 5, кв. 3. Продана год назад.

Объект №3 - Двухкомнатная квартира, находящаяся по адресу ул. Ленина д. 3, кв. 67. Продана месяц назад.

•        Правовой статус одинаков по всем сравнимым объектам и соответствуют оцениваемому объекту.

•        Сопоставимые объекты выбраны в пределах одинаковых территориальных - экономических зон.

•        Поправка на условия продажи принимается с учетом инфляции на уровне 12%. Поправка на удобство подъездных путей. Поправка была определена экспертным путем на основе анализа рыночной информации на рынке нежилых помещений, так уменьшение балльной оценке на 1 балл характеризуется снижением в стоимости на 3%.

•        Поправка на техническое состояние (уровень отделки).

Евроотделка. Стоимость этого вида ремонта составит от 5000 руб. за 1 кв. м Стандартный ремонт. Стоимость этого вида ремонта составит 3000 руб. за 1 кв. м. Рабочее состояние до приведения состояния помещения рабочему составляет 2000 руб. за 1 кв. м.

Таблица 3 - Характеристики сопоставимых объектов

Характеристики

Объект 1

Объект 2

Объект 3

Цена предложения, тыс. руб.

1100,0

1150,0

1200,0

Общая площадь, кв. м.

52,4

54,7

56,7

Передаваемое право на помещение

Право собственности

Право собственности

Право собственности

Условия продажи

Полгода назад

Год назад

Месяц назад

Условия расчета

Рыночное

Рыночное

Рыночное

Местоположение

Аналог

Аналог

Аналог

Транспортная доступность

30 м.п.

10 м.п.

10 м.п.

Расположение помещения в здании

2 этаж

1 этаж

2 этаж

Удобство подъездных путей в баллах

3

4

5

Наличие отдельного входа

Есть

Есть

Есть

Техническое состояние помещений, уровень отделки

Рабочее состояние (незначительные дефекты)

Евроотделка

Стандартный ремонт


Таблица 4 - Поправка на транспортную доступность

Транспортная доступность

Размер поправок%

5 минут пешком

10 минут пешком

2%

5 минут пешком

20 минут пешком

5%

10 минут пешком

20 минут пешком

3%


Таблица 5 - Поправка на расположение помещения в здании

Расположения помещения в здании

Размер поправок, %

1

5

2%

1

3

5%

1

2-4

2%

5

3

2%

5

2-4

1%


Таблица 6 - Поправка на площадь

Диапазон площадей помещений, кВ.м.

Размер поправок, %

От 50 м2

От 50 до 100 м2

3%


Таблица 2.3 - Определение рыночной стоимости объекта недвижимости методом сравнения продаж

Характеристики

Объект оценки

Объект 1

Объект 2

Объект 3

Цена, тыс. руб.


1100

1150

1200

1. Передаваемое право


Право собственности

Право собственности

Право собственности

Корректировка


-

-

-


1100

1150

1200

2. Условия финансирования


рыночные

рыночные

Рыночные

Корректировка


-

-

-

Скорректированная цена, тыс. руб.


1100

1150

1200

3. Условия продажи


рыночное

рыночное

рыночное

Корректировка


-

-

-

Скорректированная цена, тыс. руб.


1100

1150

1200

4. Дата продажи


Год назад

Погода назад

Месяц назад

Корректировка


12%

6%

1%

Скорректированная цена, тыс. руб.


1232

1219

1212

Общая площадь, кв. м.


52,4

54,7

56,7

Стоимость 1 кв. м. площади, руб.


23512

22285

21376

Местоположение


Аналог

Аналог

Аналог

Поправка на местоположение, %


-

-

-

Транспортная доступность

15 минут пешком

15 минут пешком

10 минут пешком

15 минут пешком

Поправка на транспортную доступность, %


-

-2%

-

Расположение помещения в здании

2 этаж

2 этаж

1 этаж

2 этаж

Поправка на расположение, %


-

+2%

-

Площадь, м2

49,7

52,4

54,7

56,7

Поправка на площадь, %


-

-

-

Удобство в подъездных путей

5

5

4

3

Поправка на удобство подъезда, %


-

+2%

+2%

Наличие отдельного входа

Есть

Есть

Есть

Есть

Поправка на наличие отдельного входа, %


-

-

-

Остекление балкона

Есть

Есть

Нет

Есть

Поправка на остекления балкона, %


-

+5

-

Наличие социальной инфраструктуры

3 балла

4 балла

4 балла

3 балла

Поправка


-2%

-2%

-

Детская площадка

Есть

Есть

Нет

Нет

Поправка на наличие детской площадки


-

+2%

+2%

Общая процентная поправка


-2%

+7%

+4%

Скорректированная стоимость


23042

20725

20521

Техническое состояние

Стандартный ремонт

Рабочее состояние

Евроотделка

Стандартный ремонт

Поправка на состояние, 1 м2 в руб.


+2000

-2000

-

Весовой коэффициент


50%

33%

17%

Определение средневзвешенной величины


12521

6180

3489

Рыночная стоимость объекта оценки

1062901


Вывод: таким образом, величина рыночной стоимости, определенная сравнительным подходом равна 1203000 рублей.

2.4 Расчет стоимости объекта оценки доходным подходом

Доходный подход определяет рыночную стоимость недвижимости как сумму доходов, которые оцениваемый объект может принести в будущем, скорректированную на риск их недополучения. Оценка недвижимости методами доходного подхода основана на прогнозировании будущих доходов, генерируемых объектов, и анализе связанных с ним рисков, которые могут спровоцировать несовпадение фактических доход с величиной, рассчитанной на дату оценки.

Для обоснованного применения доходного подхода необходимо наличие следующих условий:

•        оцениваемый объект приносит достаточно большую положительную следующих условий;

•        величину будущих доходов можно достоверно рассчитать;

•        риски, присущие оцениваемой недвижимости, можно надежно оценить.

Оценка недвижимости с позиции ее способности приносить доход владельцу как основной инвестиционной мотивации имеет определенные преимущества и недостатки. Положительным моментом данного подхода является ориентации на будущие выгоды, что, несомненно, является приоритетным для инвестора, далее расчет ставки доходности основан на оценке риска оцениваемой недвижимости, требующей ее позиционирования на инвестиционном рынке. Негативной стороной доходного подхода является сложность составления прогноза доходов и расходов, связанных с оцениваемым объектом, низкая достоверность.

Капитализация дохода - это процесс, определяющий взаимосвязь будущего дохода и текущей стоимости оцениваемого объекта.

Коэффициент капитализации - это норма дохода, которая отражает взаимосвязь между доходом и стоимостью объекта оценки. Существует два основных направления капитализации:

прямая капитализация;

капитализация дохода по норме отдачи на капитал.

Для оценки полных прав собственности и прав арендатора в качестве потока доходов рассчитывается чистый операционный доход (ЧОД).

Оценщик недвижимого имущества работает со следующими уровнями дохода:

Потенциальный валовой доход (ПВД)

Действительный валовой доход (ДВД)

Чистый операционный доход (ЧОД)

Капитализация дохода - процесс, определяющий взаимосвязь будущего дохода и текущей стоимости объекта.

Базовая формула доходного подхода

, где (3.1)

С (V) - стоимость недвижимости;

ЧД (I) - ожидаемый доход от оцениваемой недвижимости. Под доходом обычно подразумевается чистый операционный доход, который способна приносить недвижимость за период;

К (R) - норма дохода или прибыли - это коэффициент или ставка капитализации.

Коэффициент капитализации - норма дохода, отражающая взаимосвязь между доходом и стоимостью объекта оценки.

Потенциальный валовой доход (ПВД) - доход, который можно получить от недвижимости при 100%-ом ее использовании без учета всех потерь и расходов. ПВД зависит от площади оцениваемого объекта и установленной арендной ставки и рассчитывается по формуле:

 

ПВД=S*СМ, где (3.2)

- площадь, сдаваемая в аренду, м2;

См - арендная ставка за 1 м2.

Действительный валовой доход (ДВД) - это потенциальный валовой доход за вычетом потерь от недоиспользования площадей и при сборе арендной платы с добавлением прочих доходов от нормального рыночного использования объекта недвижимости:

ДВД = ПВД - Потери + Прочие доходы (3.3)

Чистый операционный доход (ЧОД) - действительный валовой доход за минусом операционных расходов (ОР) за год (за исключением амортизационных отчислений):

ЧОД = ДВД - ОР. (3.4)

Операционные расходы - это расходы, необходимые для обеспечения нормального функционирования объекта недвижимости и воспроизводства действительного валового дохода.

Таблица 8 - Расчет ставки капитализации для улучшения

Показатель

Значение, %

Безрисковая ставка

8

Премия за риск

3,5

Премия за низкую ликвидность

1,5

Премия за инвестиционный менеджмент

3

Норма возврата капитала

0,15

Коэффициент капитализации для улучшения

16,15


2.5 Расчет стоимости объекта оценки затратным подходом

Затратный подход - это совокупность методов оценки, основанных на определении затрат, необходимых для восстановления либо замещения объекта оценки с учетом накопленного износа. Базируется на предположении, что покупатель не заплатит за готовый объект больше, чем за создание объекта аналогичной полезности.

Физический износ - постепенная утрата изначально заложенных при строительстве технико - эксплуатационных качеств объекта под воздействием природно - климатических факторов, а также жизнедеятельности человека.

В основе стоимости метода определения физического износа лежит физический износ, выраженный на момент его оценки соотношения стоимости объективно необходимых ремонтных мероприятий, устраняющих повреждения конструкций, элемента, системы или здания в целом, и их восстановительной стоимости.

Суть стоимостного метода определения физического износа заключается в определении затрат на воссоздание элементов здания. (10)

Таблица 4.1 - Определения стоимости строительства

Показатели

Значение

1 Базовый удельный показатель стоимости строительства по объектам жилищного назначения в руб. за кв. м.

2200

2 Общая площадь кв. м.

105380

3 Коэффициент перехода

14,5

4 Стоимость строительства

1528010


Общая площадь кв. м. - 47,5

Базовый удельный показатель - 2200

Коэффициент перехода - 14,5

(2200*47,5) * 14,5 = 1515250 руб.

ВНИ. = Ст. стр.*ФЖ/ЭВ (4,1)

ВНИ = 1515250*31/60=782879,17 руб.

Рыночная стоимость. = Ст. стр. - ВНИ (4,2)

Рыночная стоимость = 1515250-782879,17=732370 руб.

Вывод: величина рыночной стоимости, определенная затратным подходом равна 722370 рублей.

Таблица 4.2 - Согласование результатов оценки объектов

Подходы оценки

Стоимость, руб.

Весовой коэффициент

Скорректированная стоимость

Затратный подход


20%


Сравнительный подход


70%


Доходный подход


10%


Итоги величины



Вывод: рыночная стоимость двухкомнатной квартиры, расположенная по адресу с. Большой - Букор ул. Зеленая 2-3, определенная по состоянию на 23.


Заключение

Оценочная деятельность в России появилась недавно, примерно 15 лет назад. В связи с этим еще есть определение сложности при решении конкретных задач.

В процессе написания курсового проекта была поставлена цель - определение рыночной стоимости двухкомнатной квартиры, расположенной по адресу: с. Елово ул. Комсомольская д. 18, кв. 7, а так же закрепить теоретические знания и практические навыки по оценке рыночной стоимости.

Рыночная стоимость квартиры оценивалась с точки зрения трех подходов:

затратного;

доходного;

сравнительного.

Основным подходом является сравнительный, так как отражает ту цену, которая может возникнуть на рынке. Этот подход имеет больший вес при принятии решения об окончательной стоимости.

Для того чтобы получить точную оценку объекта необходимо:

изучить техническую документацию

знать методику применения в оценке

уметь анализировать и делать выводы по ходу работы.

Проводя необходимые расчеты, получено наглядное представление в процедуре оценки объекта.

И наконец, можно заключить следующее:

рыночная стоимость двухкомнатной квартиры, находящейся по адресу: с. Елово ул. Комсомольская д. 18, кв. 7, определенная по состоянию на__________.

Список литературы

1.   Федеральный закон «Об оценочной деятельности в Российской Федерации» №135 от 17 июля 1998 года с изменением и дополнениями от 18.07.2009. №181-ФЗ

2.      Государственные стандарты РФ в области оценочной деятельности: ГОСТ Р 51195.0.01. - 98 «Единая система оценке имущества» ГОСТ Р 51195.0.02-98» Единая система оценки»

.        Грязнова А.Г. Оценка недвижимости, «Финансы и статистика» 2009 г.


Не нашли материал для своей работы?
Поможем написать уникальную работу
Без плагиата!
Без нейросетей!