Привод буровой лебедки
Содержание
Введение
. Подготовка данных для ввода
в ЭВМ
. Выбор и обоснование
оптимального варианта конструкции
. Кинематический расчет
редуктора
. Статистическое исследование
редуктора
.1 Определение моментов в
зубчатых колесах
.2 Определение усилий в зацеплении
.3 Определение реакций опор
. Геометрический
расчетзубчатых передач
. Расчет зубчатых передач
.1 Выбор материала и
термообработка зубчатых колес
.1.1 Допускаемые контактные
напряжения
.1.2 Допускаемые изгибные
напряжения
.2 Проверочный расчет тихоходной
ступени на прочность
.2.1 Проверка зубьев колес по
контактным напряжениям
.2.2 Проверка зубьев
колес по напряжениям изгиба
. Проектирование валов
. Подбор подшипников валов
.1 Определение ресурса
подшипников промежуточного вала
. Расчет промежуточного вала
.1 Расчет промежуточного вала
на прочность
.2 Расчет промежуточного вала
на усталостную прочность
. Расчет шпонок
. Расчет и конструирование
корпусных деталей и крышек
.1 Корпус редуктора
.2 Обоснование выбора
конструкции крышек подшипников
.3 Обоснование выбора
конструкции манжетных уплотнителей
.4 Определение размеров
проушин корпуса редуктора
.5 Конструирование прочих
элементов редуктора
Заключение
Список использованной
литературы
Приложения
Введение
Привод лебедки был сконструирован для передачи крутящего момента на
барабан, который обеспечивает поднятие груза со скоростью 0,23м/с.
Привод машины (рисунок 2) состоит из электродвигателя, редуктора,
барабана, троса. Электродвигатель и барабан присоединены к редуктору при помощи
муфт.
Рисунок 1. Схема привода
Редуктор состоит из быстроходной шевронной передачи и тихоходной
косозубой передачи. Для корпуса редуктора была применена современная
конструкция. Все выступающие элементы устранены с наружных поверхностей и
введены внутрь. Лапы под фундаментальные болты не выступают за габариты
корпуса. Проушины для подъема и транспортировки редуктора отлиты заодно с
корпусом.
Для удобства сборки корпус выполнен с разъемом. Плоскость разъема
проходит через оси валов.
1.
Подготовка данных для ввода в ЭВМ
Диаметр барабана предварительно назначим из условия:
е
= 18, где е - коэффициент установленный Госгортехнадзором для режима работы 3;
(мм),
где
Fk - усилие в канате;
тогда
(мм),
полученное
значение округляем в большую сторону до целого, следовательно Dб=160 (мм).
Определим
частоту вращения барабана:
(
);
Рассчитаем
КПД по формуле:
;
Где
= 0,99 - КПД
подшипника;
=0,97 2·0,99
3·1 = 0,913;
- КПД
редуктора;
= 0,97 -
КПД зубчатого зацепления;
= 1 - КПД
уплотнения;
=0,85·
0,99· 0,913· 1 2 = 0,83.
Определим
мощность привода:
(кВт);
Передаточное
отношение редуктора:
;
где
nдвиг -
частота вращения электродвигателя;
nбар - частота вращения барабана.
Определим
оптимальное передаточное отношение редуктора, для этого составим таблицу.
Таблица 1
Частоты вращение электродвигателя
|
Тип двигателя
|
nсинх
|
nасинх = nсинх (1-x)
|
nБар
|
i = nасинх / nбар
|
|
100S2
|
3000
|
2820
|
46,6
|
60,52
|
|
100L4
|
1500
|
1410
|
|
30,25
|
|
112MB6
|
1000
|
940
|
|
20,20
|
|
132S8
|
750
|
705
|
|
15,13
|
Выбираем из этой таблицы следующие значения:
i =
20,20;
nдвиг = 950 об/мин;
ncинх = 1000 об/мин.
По таблице 24.9 [2] выбираем электродвигатель 112МВ6/950:
Мощностью P=4 кВт и частотой
вращения n = 950 об/мин.
Определим крутящий момент на барабане:
(Н·м);
Определим
крутящий момент на зубчатом колесе тихоходной передачи:
(Н·м);
Примем
T2T = 725 (H∙м).
Определим
эквивалентное время работы:
Эквивалентное
время работы зависит от режима работы и срока службы.
μН = 0,18-
по таблице 8.10[3];
Lh =
10000;
LHE =
Lh· μН = 10000·0,18
= 1800 часов.
2. Выбор и
обоснование оптимального варианта конструкции
Произведем расчет всех 6 вариантов компоновки редуктора, с целью
нахождения наиболее оптимального из них.
Рисунок 2 - Схема редуктора
Данный вид расчета осуществляется по следующим формулам:
A = da2 max ;= bw Б + bw Т + 3×a;= 0,5×(da1 Б + da2 Т) + aw Б + aw Т ;
;
V = A×B×L;
,
где
- коэффициент пропорциональности, для стальных
зубчатых колес можно принять равным 6,12, кг/дм3
А-
высота редуктора;
В-
ширина редуктора;
L- длина
редуктора;
V - объем
корпуса редуктора;
bw Т
- ширина венца тихоходной ступени;
bw Б
- ширина венца Быстроходной
ступени;
da1 Б - диаметр шестерни быстроходной ступени;
da2 Б - диаметр колеса быстроходной ступени;
da2 Т - диаметр колеса тихоходной ступени;
aw Б
- межосевое расстояние быстроходной
ступени;
aw Т
- межосевое расстояние тихоходной
степени;
da2 max -
наибольший диаметр зубчатых колес;
a - зазор между
корпусом и вращающимися деталями передач (колесами) (одно значение для всех вариантов).
1
вариант компоновки редуктора
(кг)
(дм)
(дм)
(дм)
(л)
вариант
компоновки редуктора
(кг)
(дм)
(дм)
(дм)
(л)
3
вариант компоновки редуктора
(кг)
(дм)
(дм)
(дм)
(л)
вариант
компоновки редуктора
(кг)
(дм)
(дм)
(дм)
(л)
вариант
компоновки редуктора
(кг)
(дм)
(дм)
(дм)
(л)
6 вариант компоновки редуктора
(кг)
(дм)
(дм)
(дм)
(л)
Оптимизацию
по критериям минимального объема и массы зубчатых колес проведем построением
графика зависимости V и m от количества вариантов:
Рисунок
3 - График объемов и масс редуктора для четырёх вариантов
Из
Рисунка 3. можно сделать вывод о том, что наилучшая компоновка редуктора
достигается в 4 случае, т.к. при этом редуктор обладает оптимальными
параметрами (объемом и массой).
3.
Кинематический расчет редуктора
Определим частоту вращения валов и зубчатых колес:
Частота вращения быстроходного вала:
n1 = nдвиг = n1Б = 940 (об/мин);
Частота вращения промежуточного вала:
n2 = n2Б = n1Т =
= 169,06
(об/мин),
где
uб = 5,56 -
передаточное число быстроходной ступени;
Частота
вращения тихоходного вала:
n3 = n2Т = nБ =
=46,70
(об/мин),
где
uТ = 3,62 -
передаточное число тихоходной ступени;
Окружная
скорость в зацеплении быстроходной передачи:
(м/с)
Окружная
скорость в зацеплении тихоходной передачи:
(м/с).
4.
Статистическое исследование редуктора
Рисунок 4. Составляющие полного усилия в зацеплениях передач
4.1
Определение моментов в зубчатых колесах
На хвостовике быстроходного вала
(Н×м)
где uБ = 5,56 - передаточное число быстроходной ступени.
uТ = 3,62 - передаточное число
тихоходной ступени
На шестерне полушеврона быстроходной передачи
(Н×м)
На
колесе полушеврона быстроходной передачи
(Н×м)
На шестерне тихоходной передачи:
(Н×м)
4.2
Определение усилий в зацеплении
Окружная сила на шестерне быстроходной ступени:
Радиальная
сила на шестерне быстроходной ступени:
Осевая
сила на шестерне быстроходной ступени:
Усилия, действующие на колесо быстроходной передачи:
Окружная
сила на шестерне тихоходной ступени:
Радиальная
сила на шестерне тихоходной ступени:
Осевая
сила на шестерне тихоходной ступени:
Усилия, действующие на колесо тихоходной передачи:
4.3
Определение реакций опор
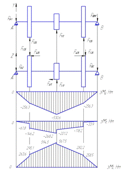
Рассмотрим промежуточный вал и действующие на него нагрузки:
Рисунок 5. Действующие нагрузки на промежуточный вал
Рассчитаем расстояние между колесами и шестернями:
Плоскость
XOY:
Сумма
моментов относительно опоры 3:
;
, тогда
R4Y = R3Y = 5585,32 H;
Проверка:
Плоскость
XOZ:
Сумма
моментов относительно опоры 3:
;
Сумма
моментов относительно опоры 4:
;
Проверка:
Определим
радиальные и осевые реакции опор:
Опора
3:
Опора
4:
5.
Геометрический расчет зубчатых передач
Геометрический
расчет выполняется в минимальном объеме. Определению подлежат: делительные d1 и d2 и
начальные dw1 и dw2 диаметры
колес; коэффициенты смещения X1 и X2; диаметры окружностей вершин da1 и da2; угол
зацепления aw;
коэффициент торцевого перекрытия ea;
коэффициент осевого перекрытия eb для косозубых
колес. Все колеса нарезаются реечным инструментом или долбяком с исходным
контуром по ГОСТ 13755-81 с параметрами: угол профиля a = 20°; коэффициентом головки (ножки) зуба
; коэффициент радиального зазора с* = 0,25.
Выполним
расчет для тихоходной косозубой передачи:
Коэффициенты
смещения колес равны нулю, т.к. суммарный коэффициент смещения Xå = X1 + X2 = 0.
угол
зацепления
Следовательно
a W =a =20˚
делительные
диаметры приводятся в распечатке:
диаметры
вершин:
диаметры
впадин:
начальные диаметры:
коэффициент
торцового перекрытия:
коэффициент
осевого перекрытия:
.
суммарный
коэффициент перекрытия:
Быстроходная косозубая передача:
- угол зацепления
Отсюда
a W =a =20˚
делительные
диаметры приводятся в распечатке:
диаметры
вершин:
диаметры
впадин:
начальные диаметры:
коэффициент
торцового перекрытия:
.
коэффициент
осевого перекрытия:
.
суммарный
коэффициент перекрытия:
6. Расчет
зубчатых передач
6.1 Выбор
материала и термообработка зубчатых колес
Зубчатые колеса редукторов изготавливают из сталей с твердостью H £ 350 HB или H >
350 HB. В первом случае заготовки для колес
подвергают нормализации или улучшению, во втором - после нарезания зубьев
различным видам термической и химико-термической обработки: объемной закалке,
поверхностной закалке ТВЧ, цементации, азотированию, нитроцементации и т.д.,
обеспечивающим высокую твердость поверхности зуба.
Относительно низкая твердость H < 350 HB допускает
возможность зубонарезания с достаточной точностью (степень точности 8 и 7 по
ГОСТ 1643-81) без отделочных операций, что используется как средство для
снижения затрат. Применение других видов термообработки вызывает заметное
искажение размеров и формы зубьев (коробление). При высоких требованиях к
точности такие колеса подвергают отделочным операциям - зубошлифованию,
притирке на специальных станках, обкатке и т.п., что повышает стоимость колес в
десятки раз.
Зубчатые колеса с низкой твердостью хорошо прирабатываются, особенно,
если зубья шестерни имеют твердость больше, чем у колес на (80…200) HB. У косозубых колес перепад твердости
выше. Хорошие результаты обеспечивает закалка ТВЧ зубьев шестерен с HRC 45…55 и термоулучшение колес до
280…350 HB.
При выборе материалов необходимо руководствоваться информацией, указанной
в табл. 1.10 [1] и стремиться к получению допускаемых напряжений возможно
близких к ним величин [sH]Б
и [sH]Т.
Таблица 2
|
Термообработка или хим. терм. обработка
|
Марки стали ГОСТ 4543-81
|
sH0, МПа
|
sF0, МПа
|
SH
|
SF
|
|
Нормализация, улучшение,180…220 HB;260…320 HB
|
40Х, 40ХН, 35ХМ, 45ХЦ, Сталь 45
|
2HB + 70
|
1,8HB
|
1,1
|
1,75
|
|
Закалка ТВЧ, поверхность 45…55HRC,сердцевина 240…300HB
|
40Х, 40ХН, 35ХМ, 35ХТСА
|
17HRC+200
|
900
|
1,2
|
1,75
|
|
Цементация, нитроцементация поверхность 60…63 HRC,
сердцевина 300…400 HRC
|
20Х, 20ХНМ, 18ХГТ, 12ХН3А
|
23HRC
|
750…1000
|
1,2
|
1,5
|
Материалы и обработку зубчатых колес выбираем по таблице 8.9[3]
Тихоходная ступень редуктора:
Материал шестерни - Сталь35ХМ;
Поверхностная твердость зубьев - HRC 45…55
Улучшение и закалка ТВЧ
Материал колеса - Сталь40Х;
Поверхностная твердость зубьев 350HB;
Термообработка - улучшение.
.1.1
Допускаемые контактные напряжения
Допускаемые контактные напряжения рассчитаем по формуле:
,
где
- допускаемые контактные напряжения для колеса
тихоходной ступени;
-
допускаемые контактные напряжения для шестерни тихоходной ступени;
- меньшее
из двух.
где
- предел длительной прочности, соответствующий
базовому числу циклов;
SH -
коэффициент безопасности.
ZN -
коэффициент долговечности.
Для
колеса по таблице 8,9[3] определяем:
=2·HB+70;
=2·350+70=770
(МПа);
=1,2
Коэффициент
долговечности определяем по формуле 8,61[3].
=
;
где
NHG1 = 30×HB 2,4=30×350 2,4 =38,27×10 6;
NHE1
- эквивалентное число циклов;
NHE1 = NH × μH = 60 × nw × n1 × Lh × mH =60×1×940×1800×0,18 = 18×106;
где nw - число зацеплений, в которое входит
шестерня или колесо за один оборот, nw = 1;
n1 - соответствующая частота вращения;
Lh - ресурс привода;
mH - коэффициент режима, определяемый по табл. 8.10 [3]
в зависимости от категории режима.
Рассчитаем коэффициент долговечности:
;
Допускаемые контактные напряжения:
Для
шестерни по таблице 8,9[3] определяем:
=17×HRC+200;
=17×45+200=965 (МПа);
=1,2
Коэффициент
долговечности.
=
;
NHE2
- эквивалентное число циклов, соответствующее
NHE2
= NH × μH = 60 × nw × n2 × Lh × mH =60×1×169,06×1800×0,18=3,3×10 6;
Рассчитаем коэффициент долговечности:
;
Допускаемые
контактные напряжения:
Рассчитаем допускаемые
контактные напряжения:
6.1.2
Допускаемые изгибные напряжения
Допускаемое напряжение изгиба определим по формуле:
,
где
σFlim - предел
выносливости зубьев по напряжениям изгиба;
YА - коэффициент, учитывающий влияние двустороннего
приложения нагрузки (при односторонней нагрузке KFC=1);
YR -
коэффициент, учитывающий шероховатость переходной кривой.(YR = 1 при шероховатости RZ £ 40
мкм);
YN -
коэффициент долговечности;
SF -
коэффициент безопасности;
Рассчитаем
пределы выносливости для колеса и шестерни (табл.8.9 [3]);
σFlim1 = 1,8×НВ = 1,8×350 = 630 (МПа);
σFlim2 = 650 (МПа);
Принимаем значение коэффициентов безопасности для шестерни и колеса
SF = 1,75 по табл.8.9 [3];
Коэффициент долговечности определим по формуле :
- для
колеса;
- для
шестерни,
где
NFG = 4×10 6 - базовое
число циклов;
NFE -
эквивалентное число циклов;
Эквивалентное
число циклов определим по формуле:
NFE =μF× Nк,
где μF - коэффициент эквивалентности по табл.8.10 [3],
для шестерни: μF = 0,016;
для колеса: μF = 0,038.
Nк - число циклов перемены напряжений
за весь срок службы;
Nк = 60×с×n×LH,,
где с - число зацеплений зуба за один оборот колеса;
n -
частота вращения;
LH - ресурс;
NFE1 =μF1× Nк1 = 60×с× n1×LH ×μF1 = 60×1×940×1800×0,016 = 1,6×10 6;
NFE2 =μF2× Nк2 = 60×с× n2×LH ×μF2 = 60×1×169,06×1800×0,038 = 0,7×10 6;
Получим:
Допускаемые
изгибные напряжения равны:
6.2
Проверочный расчет тихоходной ступени на прочность
.2.1
Проверка зубьев колес по контактным напряжениям
Контактные напряжения определяются по формуле:
Коэффициент
расчетной нагрузки:
KH = KHb×KHV×KHa,
где
KHb - коэффициент концентрации нагрузки;
KHV -
коэффициент динамической нагрузки;
KHa - коэффициент распределения нагрузки между зубьями.
Коэффициент
распределения нагрузки между зубьями при v = 0,585 м/с KHa=1,07 по табл. 8.7 [3]).
Коэффициент
ширины шестерни относительно диаметра:
ybd =
;
Коэффициент
концентрации нагрузки при постоянной нагрузке при ybd
= 0,97
KHb = 1,04 по рис.8.15 [3].
Коэффициент
динамической нагрузки определим по табл.8.3[3]:
KHV =
1,02
Коэффициент
расчетной нагрузки
KH = KHb×KHV×KHa,= 1,04×1,02×1,07 = 1,14.
Eпр - приведенный модуль упругости. Для
стальных колес и шестеренЕпр = 0,215×106 МПа;
Т1 - момент на шестерни передачи;
dw1
- начальный диаметр шестерни;
bw - ширина зубчатого венца колеса;
aw
- угол зацепления;
u -
передаточное число передачи .
Коэффициент ZHb определяется по формуле:
где
ea - коэффициент торцевого перекрытия;
b - угол наклона
зубьев на делительном диаметре (из распечатки)
Величина контактного напряжения
, условие
прочности выполняется.
6.2.2
Проверка зубьев колес по напряжениям изгиба
Напряжения в основании зубьев колес определяются по формулам:
Для шестерни:
sF1 =YF1×ZFb×Ft×KF/(bw×m),
где
YF - коэффициент формы зуба;
Эквивалентное число зубьев:
;
,
где
z - число зубьев,
b - угол
зацепления (из распечатки);
Коэффициент
формы зуба по рис.8.20 [3] YF1 = 4; YF2 = 3,75;
ZFb - коэффициент, вычисляемый по
формуле
ZFb = KFa×Yb/ea ;
KFa - коэффициент, учитывающий
распределение нагрузки между зубьями, равный 1,22 по табл. 8.7, [3];
Ft - окружная сила;
bW - ширина зубьев;
m -
модуль.
Yb - учитывает работу зуба как пластины (а не балки) и
определяется равенством
Yb = 1 -b°/140° = 1-14,070/140=0,899;
Тогда
ZFb = KFa×Yb/ea=1,22×0,899/1,64=0,668
Коэффициенты расчетной нагрузки
,
Коэффициент
распределения нагрузки между зубьями по табл.8.7[3]:
1,22
Коэффициент
концентрации нагрузки по рис 8.15 [3]:
1,3
Коэффициент
динамической нагрузки по табл.8.3[3]:
;
1,22×1,3×1,03=1,63;
sF1 = YF1 × ZFb × Ft ×KF/(bw×m) = 4×0,668×8352,55×1,63/(52,5×2,5) = 277,2
МПа;
Для колеса:
sF2 = sF1 × YF2 / YF1.=
277,2 ×3,75/4 = 259,87 МПа.
;
,
Условия
прочности для шестерни и колеса выполняются.
Рассмотренная
ступень редуктора обеспечит необходимую долговечность и ресурс при заданных
нагрузках.
привод лебедка конструкция редуктор
7.
Проектирование валов
Рисунок 6. Конструкции валов редуктора
Диаметры участков валов:
для быстроходного вала
Диаметр конца выхода вала-шестерни
Примем d=32 мм
Диаметр посадочной поверхности под подшипник
Примем
dп = 35 мм
Диаметр буртика для упора подшипника
мм
Примем
41 мм
Длина посадочного места:
мм
Длина
промежуточного участка:
мм
Примем
LКБ = 48
мм.
Наружная
резьба хвостовика быстроходного вала имеет диаметр
мм
для
промежуточного вала
Диаметр
вала
мм,
Примем
dк = 40 мм
Принимаем
d2 =dk=40 мм;
Диаметр
посадочной поверхности для подшипника
мм,
Принимаем
dП =35 мм
Диаметр
буртика для упора подшипника:
мм
Диаметр буртика для упора колеса:
для
тихоходного вала,
Диаметр
вала
Принимаем
d =55 мм;
Диаметр
посадочной поверхности для подшипника
мм
Принимаем
dП =65 мм
Диаметр буртика для упора подшипника
мм
75 мм
Принимаем
dБК = 78 мм
Длина посадочного места:
мм
Длина промежуточного участка тихоходного вала:
LКТ = (0,8…1,2) × dП .=(0,8…1,2)·65 = 52…78 мм
Примем LКТ=60 мм.
Наружная резьба хвостовика вала имеет диаметр

Значения
переходных радиусов и заплечиков приведены в табл. 1.9[1]
Консольные
участки входного и выходного вала выполнены коническими по ГОСТ 12081-72.
Конический конец входного вала выполнен с наружной резьбой, а конец выходного
вала выполнен с внутренней резьбой.
Размеры
выходного вала определяются по табл.24.27 [2].
Для
быстроходного вала:
Рисунок
7. Окончание быстроходного вала
d=32 мм
l1 =80 мм
l2 =58 мм
l2 /2=29 мм
dср =29,1 мм
d1 =M20x1.5
t2 =2,8 мм
Для тихоходного вала:
Рисунок 8. Окончание тихоходного вала
d = 63
мм
l1 = 140 мм
l2 = 105 мм
l2 /2 = 52,5 мм
l3 = 32 мм
l4 = 35 мм
dср = 57,75 мм
d2
= M20х1.5
t2 =3,3 мм
8. Подбор
подшипников валов
Для быстроходного вала-шестерни выберем по ГОСТ 8328-75 роликовые
радиальные подшипники с короткими цилиндрическими роликами 12207.
Внутренний диаметр подшипников промежуточного вала определим по формуле:
где
r=2,5 (мм) - переходной радиус( по табл.1,9[3]);
(мм);
Отсюда
(мм);
Примем
dП = 35 мм.
По ГОСТ 8338-75 выбираем шариковый радиальный однорядный подшипник 207 (легкая
серия).
Внутренний
диаметр подшипников тихоходного вала:
Принимаем
d =55 мм;
мм
Принимаем dП = 65 мм
По ГОСТ 8338-75 выбираем шариковый радиальный однорядный подшипник 213
(легкая серия).
8.1
Определение ресурса подшипников промежуточного вала
Рассчитаем подшипник по динамической грузоподъемности по формуле:
,
где
а1 = 1 - коэффициент надежности;
а2
= 1 - обобщенный коэффициент совместного влияния качества металла и условий
эксплуатации;
α = 3 (для шариковых подшипников);
n - частота
вращения;
-
эквивалентная нагрузка;
X, Y -
коэффициенты радиальной и осевой нагрузок (по табл.16.5 [1])
V - коэффициент
вращения, зависящий от того, какое кольцо вращается (при вращении внутреннего
кольца V = 1);
ks -
коэффициент безопасности, учитывающий характер нагрузки ( при умеренных толчках
ks = 1,3)
kT -
температурный коэффициент (при температуре до 100 С 0 kT = 1).
По
табл. 24.10 [2] определим параметры подшипника:
Динамическая
грузоподъемность С = 25,5 (кН);
Статическая
грузоподъемность С0 = 13,7 (кН).
Для
подшипника 207:
,
е
= 0,34 (табл.16.5 [1];
;
табл.16.5
[1],
откуда
X = 0,56
Y = 1,31.
Эквивалентная
нагрузка:
Ресурс
подшипника:
Lh ³ Lhe,
исходя из этого делаем вывод о работоспособности подшипника с вероятностью
безотказной работы 0,9.
9. Расчет
промежуточноговала
9.1 Расчет
промежуточного вала на прочность
Определим моменты, действующие на промежуточный вал, методом сечений:
Реакции в опорах промежуточного вала мы определили в разделе 5.3:
Полные реакции в опорах:
Определим радиальные и осевые реакции опор:
Опора
А:
Опора
В:
Расчет
и построение эпюр изгибающих моментов:
Плоскость
XOY:
Сечение
1 (0 < х < b):
Сечение
2 (b<x<b+c):
Сечение
3 (b+c<x<b+2c):
Сечение
4 (b+2c<x<2b+2c):
Плоскость
XOZ:
Сечение
1 (0<x<b)
Сечение
2 (b<x<b+c):
Сечение
3 (b+c<x<b+2c):
Сечение
4
(b+2c<x<2b+2c):
Определение
результирующих изгибающих моментов
Сечение
1
Сечение
2
Сечение
3
Сечение
4
Максимальный
изгибающий момент М ∑ = 594,5 (Н·м)
Построим
эпюру изгибающих моментов:
Рисунок 10 - Эпюры изгибающих моментов.
Расчет и построение эпюр крутящих моментов.
Момент на шестерне тихоходной ступени:
Момент
на колесе быстроходной ступени:
Построим
эпюру крутящих моментов:
Рисунок 11 - Эпюра крутящих моментов.
9.2 Расчет
промежуточного вала на усталостную прочность
Примем, что нормальные напряжения изменяются по симметричному циклу
(Рисунок 12), а касательные напряжения - по пульсирующему циклу (Рисунок 13).
σа = σтах;
σМ = 0,
τа = τМ = 0,5∙ τ.
Материал вала сталь 35ХН:
σТ = 850…1400=1100 МПа,[6]
σв = 1000..1600=1300 МПа,[6]
σ-1 = (0,4…0,5)∙
σв =(0,4…0,5)∙1300 =(520…650)=600
(МПа);
τ-1 = (0,2…0,3)∙
σв =(0.2…0.3)∙1300 =(260…390)=350
(МПа);
τв = (0,55…0.65)∙σв =(0,55…0,65)∙1300=(715…845)=800 (МПа).
Рисунок 12 -Цикл изменения нормальных напряжений
Рисунок 13 -Цикл изменения касательных напряжений
Определим опасные сечение вала
Наиболее опасными сечениями являются шестерня (т.к. в нем действуют
максимальные изгибающие и крутящие моменты) и участок под быстроходным колесом
(т.к.имеется шпоночный паз и соединение с натягом), где действуют суммарный
изгибающий момент М равный 594,5 Н·м и 226,02 Н·м соответственно, а также крутящий
момент Т 295,1 Н·м и 111,88 Н·м.
Для шестерни:
где
Wp - полярный момент сопротивления.
τа = τМ =
где
Wос -
осевой момент сопротивления.
Запас
прочности рассчитаем по формуле:
;
Где:
Запас
прочности по нормальным напряжениям:
;
Запас
прочности по касательным напряжениям:
где
kσ =2 - эффективный коэффициент концентраций напряжений
при изгибе; ([1], табл. 15.1)
Kd = 0,6 -
масштабный фактор; ([1], рис. 15.5)
KF =
0,7 - фактор шероховатости поверхности; ([1], рис. 15.6)
ψσ = 0,15 - коэффициент, корректирующий влияние
постоянной цикла напряжений на сопротивление усталости для легированной стали
([1], стр.300);
kτ = 1,43 - эффективный коэффициент концентраций
напряжений при кручении;
Kd =
0,6 - масштабный фактор;
KF=
0,7 - фактор шероховатости поверхности;
ψτ = 0,1 - коэффициент, корректирующий влияние
постоянной цикла напряжений на сопротивление усталости;
Допускаемое
значение запаса прочности примем [s] = 1,5.
Условие
усталостной прочности запишем в виде:
s > [s]
,2
> 1,5.
Таким
образом, для шестерни вала, условие усталостной прочности выполняется
Проверим
статическую прочность при перегрузках:
,
МПа
< 880 МПа,
Таким
образом, условие прочности для шестерни вала выполняется.
Для
участка под колесом:
где
Wp - полярный момент сопротивления.
τа = τМ =
где
Wос -
осевой момент сопротивления.
Запас
прочности рассчитаем по формуле:
;
где
запас
прочности по нормальным напряжениям:
;
;
kσ =3,6 - эффективный коэффициент концентраций
напряжений при изгибе; ([1], табл. 15.1)
Kd = 0,8 -
масштабный фактор; ([1], рис. 15.5)
KF =
1 - фактор шероховатости поверхности; ([1], рис. 15.6)
ψσ = 0,15 - коэффициент, корректирующий влияние
постоянной цикла напряжений на сопротивление усталости для легированной стали
([1], стр.300);
kτ = 2,5 - эффективный коэффициент концентраций
напряжений при кручении;
Kd =
0,8 - масштабный фактор;
KF= 1
- фактор шероховатости поверхности;
ψτ = 0,1 - коэффициент, корректирующий влияние
постоянной цикла напряжений на сопротивление усталости;
Допускаемое
значение запаса прочности примем [s] = 1,5.
Условие
усталостной прочности запишем в виде:
s > [s]
,05>
1,5.
Таким
образом, для участка вала под колесом, условие усталостной прочности
выполняется
Проверим
статическую прочность при перегрузках:
,5
МПа < 1120 МПа.,
Таким
образом, условие прочности для участка вала под колесом, также выполняется.
10. Расчет
шпонок
Подбор шпонок произведем по таблицам стандартов ГОСТ23360-78 для
соединений типа вал-ступица. Принимаем величину допускаемых напряжений смятия [sсм] = 120 (МПа).
Рисунок 14. Соединение шпонкой.
Определим рабочую длину шпонки:
1)
Для колеса
быстроходного вала:
l1 = lр1 + b=11,57+10=23
(мм),
согласуем со стандартным числовым рядом l=32 (мм).
где Т - вращающий момент на колесе тихоходной ступени;
h -
высота шпонки;
l -
длина шпонки;
b -
ширина шпонки;
h -
высота шпонки;
) Для колеса тихоходного вала:
L2 = lр2 + b=26,8+20
= 46,28 (мм),
согласуем со стандартным числовым рядом l=52 (мм).
3) Для входного вала:
L3 = lр3 + b=21,4+10=31,4
(мм),
согласуем со стандартным числовым рядом l = 32 (мм).
4) Для выходного вала:
L4 = lр4 + b= 58
+ 18 = 76 (мм),
согласуем со стандартным числовым рядом l= 80 (мм).
11. Расчет
и конструирование корпусных деталей и крышек
К корпусным относятся детали, обеспечивающие взаимное расположение
деталей узла и воспринимающие основные силы, действующие в машине. Корпусные
детали получают методом литья или методом сварки.
11.1
Корпус редуктора
Размеры корпуса определяются числом и размерами размещенных в них
деталях, относительным их расположением и величиной зазора между ними. Для
удобства сборки корпус выполняют разъемным. Плоскость разъема проходит через
оси валов.
Толщина стенки корпуса редуктора
Принимаем
δ
= 8 мм.
Толщина
стенки крышки корпуса
δ1 = (0,9-1) δ,
где
δ
= 8 мм - толщина стенки корпуса.
δ1 = (0,9-1)∙8
= 8 мм.
Толщину
стенки крышки корпуса принимаем δ1 = 8 мм.
Для уменьшения массы крышки боковые стенки выполняют наклонными.
Диаметр d резьбы винта, соединяющего крышку и
основание корпуса,
Примем d =16 (мм).
Диаметр df фундаментных винтов,
df = 1,25×d=1,25×13,1=16,4 (мм),
Примем df =18 (мм).
Диаметр штифтов,
dшт = (0,7…0,8)×d=(0,7…0,8)×13,1=(9,17…10,48)=10 (мм),
Толщина внутренних ребер жесткости:
0.8·
=0.8·8=6,4 мм.
Высота
ребер жесткости:
hp ≥5
=5·8=40 мм;
Высота
платиков:
h =(0.4…0.5)
=(0.4…0.5)·8=3,2…4 мм;
Расстояние
между дном корпуса и поверхностью колес
b0 ≥3a=3·10=30 мм.
11.2
Обоснование выбора конструкции крышек подшипников
Торцевые крышки предназначены для герметизации подшипников качения,
осевой фиксации подшипников и восприятию осевых нагрузок. В данной работе
применим закладные крышки, не требующие крепления винтами или болтами, что в
свою очередь упрощает конструкцию и процесс сборки.
Рисунок 15. Крышка подшипника
Толщина стенки крышки, d=6 (мм);([2], стр.169)
Ширина проточки,
S =
(0,9…1)×d=(0,9…1)×6=5,4…6=6 (мм);
11.3
Обоснование выбора конструкции манжетных уплотнителей
Резиновые армированные однокромочные манжеты с пружиной предназначены для
уплотнения валов. Манжеты работают в минеральных маслах, воде, дизельном
топливе при избыточном давлении до 0,05 МПа, скорости до 20 м/с и температуре
от -60 до 170 ˚С. Что удовлетворяет нашим условиям работы
Манжету обычно устанавливают открытой стороной внутрь корпуса.
К рабочей кромке манжеты в этом случае обеспечен хороший доступ
смазочного масла.
11.4
Определение размеров проушин корпуса редуктора
Для подъема и транспортировки крышки корпуса и собранного редуктора
применяют проушины (рис. 16), отливая их заодно с крышкой. В данном случае
проушина выполнена в виде ребра с отверстием
d = 3×δ = 3×8 = 24 (мм).
dУ= (2…3)× δ =(2…3) ×8=16…24=24 (мм)
Рисунок 16 - Проушина
11.5
Конструирование прочих элементов редуктора
Для наблюдения за уровнем масла в корпусе устанавливают масло указатели
жезловые (щупы).
При длительной работе в связи с нагревом воздуха повышается давление
внутри корпуса. Это приводит к просачиванию масла через уплотнения и стыки.
Чтобы избежать этого, внутреннюю полость корпуса сообщают с внешней средой
путем установки отдушин в его верхних точках.
Крышку фиксируют относительно корпуса штифтами. Штифты предотвращают
взаимное смещение деталей при растачивании отверстий под подшипники,
обеспечивают точное расположение деталей при повторных сборках.
Люк в верхней части крышки используют не только для заливки масла, но и
для осмотра зацепления колес. Размеры его приняты по возможности большими,
форма - прямоугольной.
Люк закрывают крышкой. В данном проекте используется штампованная крышка,
объединенная с отдушиной и фильтром. Крышка состоит из плоской верхней
пластины, на которой выдавлены гофры, через которые внутренняя полость
редуктора соединяется с атмосферой. В нижней штампованной части имеются 4
отверстия диаметром 5 мм. Эта часть крышки по периметру окантована про
вулканизированной резиной. Фильтр, состоящий из тонкой медной проволоки,
заполняет пространство между верхней и нижней частями крышки.Крышка крепится
винтом М8.
Рисунок17 - Крышка люка редуктора
Для замены масла в корпусе предусмотрено сливное отверстие, закрываемое
пробкой с конической резьбой. Коническая резьба создаем герметичное соединение,
поэтому дополнительного уплотнения не требуют.
Рисунок 18 - Маслосливная пробка.
Заключение
В ходе
выполнения курсовой проекта был спроектирован привод электрической лебедки. Для
этого был разработан редуктор с рациональными показателями массы, размеров и
себестоимости, отвечающий требованиям по безотказной работе и ресурсу. К
редуктору были подобраны двигатель и муфта. А также разработана конструкция
плиты.
Список использованной
литературы
1. Анурьев
В.И. «Справочник конструктора-машиностроителя» том 1. - М.: Машиностроение,
1978 - с. 728.
2. Анурьев
В.И. «Справочник конструктора-машиностроителя» том 2. - М.: Машиностроение,
1979 - с. 559.
3. Дунаев
П.Ф., Леликов О.П. «Конструирование узлов и деталей машин» - М.: Высшая школа,
1985 - с.416.
4. Решетов
Д.Н. «Детали машин» - М.: Машиностроение,1989 - с. 496.
. Иванов
М.Н. «Детали машин» - М.: Высшая школа 1991 - с.383.
Приложения
Эскизы стандартных изделий
Подшипник шариковый радиальный ГОСТ 8338-75
|
Обозначение
|
Размеры, мм
|
|
d
|
D
|
B
|
|
207
|
35
|
72
|
17
|
|
213
|
65
|
120
|
23
|
Подшипник радиальный роликовый ГОСТ 8328-75
|
Обозначение
|
Размеры, мм
|
|
d
|
D
|
B
|
r
|
r1
|
|
12207
|
35
|
72
|
17
|
2
|
2
|
Манжета ГОСТ 8752-79
|
Обозначение
|
D
|
d
|
h
|
|
Манжета 1-35х55
|
55
|
35
|
10
|
|
Манжета 1-60х80
|
90
|
65
|
10
|
Шпонка ГОСТ 23360-78
|
Обозначение
|
d
|
b
|
h
|
t1
|
t2
|
l
|
|
Шпонка 12х8х28
|
40
|
12
|
8
|
5
|
3,3
|
28
|
|
Шпонка 20х12х52
|
75
|
20
|
12
|
7,5
|
4,9
|
52
|
|
Шпонка 10х8х32
|
29,1
|
10
|
8
|
5
|
3,3
|
32
|
|
Шпонка 18х11х80
|
57,75
|
18
|
11
|
7
|
4,4
|
80
|
Винт ГОСТ 11738-84
|
Обозначение
|
d
|
D
|
H
|
l
|
L0
|
|
Винт М12х40
|
12
|
18
|
12
|
40
|
36
|
|
Винт М16х55
|
16
|
22
|
16
|
55
|
40
|
|
Винт М18х50
|
18
|
26
|
18
|
50
|
50
|
|
|
|
|
|
|
|
|
|
|
Шайба ГОСТ 6402-70
|
Номинальный диаметр резьбы
|
d
|
s=b
|
|
12
|
12,2
|
3,0
|
|
16
|
16,3
|
3,5
|
Винт ГОСТ 17473-80
Штифт ГОСТ 9464-79
Шайбы стопорные многолапчатые ГОСТ 11872-80
|
Резьба d
|
d1
|
D
|
D1
|
l
|
b
|
h
|
s
|
|
M20x1.5
|
20,5
|
36
|
27
|
17
|
4,8
|
4
|
1
|
Гайка круглая шлицевая ГОСТ 11871-88
|
d
|
D
|
D1
|
H
|
b
|
h
|
c ≤
|
|
M20x1,5
|
34
|
26
|
8
|
6
|
2
|
1
|
Двигатель АИР 112МВ6/950 ТУ 19-525.571-84
Муфта упругая втулочно-пальцевая ГОСТ 21424-93