Проектирование поселка на 1000 жителей, расположенного на морском побережье
Министерство
образования и науки РФ
Федеральное
государственное автономное учреждение
высшего
профессионального образования
Дальневосточный
федеральный университет (ДВФУ)
Кафедра
архитектуры и градостроительства
Курсовая
работа
по
архитектурному проектированию
по
теме
Проектирование
поселка на 1000 жителей, расположенного на морском побережье
Выполнила: студентка группы С3362
Дмух Тамара
Владивосток
2011
Содержание
градостроительный расчет здание
композиционный
Введение.
Актуальность темы «проектирование
поселка на 1000 жителей, расположенного на морском побережье»
Глава
1
.1
Изучение литературы по теме «проектирование
поселка на 1000 жителей, расположенного на морском побережье
.2
Изучение норм проектирования сельских населенных пунктов
.3
Анализ исходных данных: рельефа, климата, существующей территории
Глава
2
.2
Выполнение предварительного градостроительного расчета
Глава
3
.1
анализ размещения жилых,
общественных зданий
.2
Анализ композиционного решения поселка
Глава
4
.1
Выбор методов проектирования
Заключение
Библиографический
список
Введение. Актуальность
темы «Проектирование поселка на 1000 жителей, расположенного на морском
побережье»
Современные тенденции в застройке новых
территорий, являющиеся основой формирования малых поселений требуют пересмотра
и доработки основных положений. Необходимо по-новому посмотреть на
классификацию населенных пунктов, в основе которой лежит деление их на
городские и сельские. В настоящее время, в связи с экономическими и социальными
изменениями в стране и в регионе появился новый социальный слой населения, а
следовательно возникает необходимость современных решений связанных с
разработкой жилых зон и организацией общественных пунктов.
Современный поселок в качестве населенного
пункта, не обязательно связан с сельскохозяйственным производством. При
продолжающейся интеграции и индустриализации происходит приток новых
технологий, переход к промышленным методам, межхозяйственная кооперация, развитие
арендного, семейного и бригадного подряда и т.д. Следовательно, происходит
изменение функций сельской местности, и, как следствие, развитие поселков.
В настоящее время все ярче проявляется
направленность на изучение и проектирование не городов и сел вообще, а
населенных пунктов определенного функционального профиля. Это закономерно, так
как сфера деятельности жителей наносит свой отпечаток на принципы организации
пространства, и в последствии создает свою специфику формирования
градообразующей базы и архитектурно-планировочной структуры. Повышение уровня
экономического и социального развития способствует разработке и внедрению
инновационных идей в вопросах оптимального размещения крупных жилых зон.
Формулирование цели,
задач, предмета, объекта и границ исследования
Цель проекта.
На основе изучения ландшафтных и других местных
особенностей, их комплексной оценки; анализа разработанных планировочных
структур и выбора наиболее оптимального в художественном и экономическом
отношениях варианта; знакомства с типологией жилых зданий и зданий
общественного назначения и их применения, разработать жилую среду с высокими
архитектурно-пространственными качествами, отвечающую всем требованиям удобства
жителей и исследования.
Задачи проекта.
1. Изучение современной отечественной и
зарубежной литературы по формированию поселков.
2. Анализ ландшафта, климатических и
других особенностей существующей территории.
. Изучение типологии жилых зданий,
применяемых в поселке.
. Изучение планировочных структур
поселков.
. Изучение норм проектирования поселков и
требований СНиП по градостроительству.
. Изучение и анализ конструктивных
элементов зданий и сооружений поселков.
Предмет исследования.
Жилая среда поселка на 1000 жителей,
расположенного на морском побережье.
Объект исследования.
Рельеф, климат, акватория, жилые дома,
общественные здания и сооружения и т.д.
Границы исследования.
Градостроительная - поселок на 1000 жителей;
Территориальная - Приморский край;
Историческая - 2011 год;
Социальная - поселок для танцоров “Step
Up”;
Преимущественно для людей моложе 40 лет, для
танцоров, для туристов.
Глава 1
.1 Изучение литературы
по теме «Проектирование поселка на 1000 жителей, расположенного на морском
побережье
В ходе исследования я использовала
следующую литературу: справочник архитектора
<#"516044.files/image001.gif">
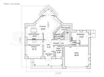
Блокированный дом

Административное здание
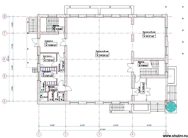
Торговый центр
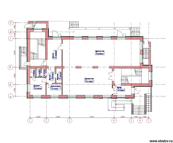
Здание клуба
Здание школы
Здание детского сада