Понятие о гражданских зданиях и их классификация

  • Вид работы:
    Реферат
  • Предмет:
    Строительство
  • Язык:
    Русский
    ,
    Формат файла:
    MS Word
    2,23 Mb
  • Опубликовано:
    2011-01-24
Вы можете узнать стоимость помощи в написании студенческой работы.
Помощь в написании работы, которую точно примут!

Понятие о гражданских зданиях и их классификация

Понятие о гражданских зданиях и их классификация

По назначению гражданские здания подразделяются на жилые и общественные.

К жилым домам относятся:

-        многоквартирные жилые дома;

-        индивидуальные жилые дома;

-        жилые дома усадебного типа;

-        общежития - для длительного проживания людей;

-        гостиницы - для кратковременного проживания;

-        дома - интернаты.

К общественным зданиям относятся:

1. Здания предназначенные для всех видов жизнедеятельности людей:

- школы;

-        детские сады;

-        ясли;

-        больницы;

-        магазины и др.

2. Здания государственного или большого культурного значения:

 - театры;

- музеи;

- здания правительственных учреждений;

- дворцы культуры;

- спортивные сооружения.

По этажности гражданские здания различают в зависимости от расположения пола к тротуару или отмостке:

- этаж, пол которого расположен не ниже тротуара или отмостки, называют надземным этажом;

- этаж, пол которого расположен ниже тротуара или отмостки, но не более чем на половину высоты помещения называют цокольным или полуподвальным;

- этаж, пол которого ниже тротуара или отмостки более чем на половину, называют подвальным;

- этаж, встроенный в пространство чердака называют мансардным.

Основные требования, предъявляемые к зданиям:

1)   функциональная целесообразность (полное соответствие назначению здания);

2)   прочность;

3)   устойчивость;

4)   долговечность (по СНИПу существует 3 степени долговечности: срок службы здания 100 лет; 50 лет; 20 лет);

5)   По классу ответственности

6)    

7)   огнестойкость (в Беларуси существует 8 степеней огнестойкости);

8)   эксплутационные требования - создание условий труда, быта, находящихся в здании;

9)   экономичность (зависит от рационального выбора материалов и методов работ);

10) архитектурно - художественные требования.

По роду материала наружных стен здания подразделяются на деревянные и каменные.

По этажности здания бывают:

-        малоэтажные (до 2 эт.);

-        средней этажности (3-5 эт.);

-        повышенной этажности (6-9 эт.);

-        многоэтажные здания (10-25 эт.);

-        высотные здания (более 25 эт.)/

Все здания делятся на 4 класса:

□ класс - здания удовлетворяют повышенным требованиям (любой этажности);

□ класс - жилые и общественные здания до 9 этажей массового строительства;

□ класс - жилые и общественные здания средней этажности до 5 этажей;

□ класс - здания, которые удовлетворяют минимальным требованиям, до 2 этажей.

Для каждого класса в зависимости от назначения здания нормами предусмотрены определенные степени долговечности, огнестойкости, эксплуатационные нормы, а также учитывается степень влагостойкости, морозостойкости, огнестойкости и т. д.

Основные положения модульной системы

Размеры строительных конструкций должны быть скоординированы и взаимно увязаны.

Совокупность правил, порядок координации и назначение размеров объемно-планировочных и конструктивных элементов, изделий и оборудования составляет Единую модульную систему в строительстве - ЕМС.

Цель применения ЕМС - создание основы для унификации, типизации и стандартизации в проектировании, производстве строительных конструкций и изделий. Модуль = 300

Применяются укрупненные и дробные модули (см. рис.2).

Для точного определения взаимного расположения вертикальных элементов несущего остова здания (стен и колонн) в архитектурных и конструктивных чертежах применяют систему модульных разбивочных осей. Линий продольных осей обычно маркируют буквами, линии поперечных - цифрами.

Номинальный (модульный) размер обозначает проектное расстояние между модульными разбивочными осями здания или условный размер конструктивного элемента, включающий соответствующий части швов и зазоров, назначенный в соответствии с правилами модульной системы.

Конструктивный размер - проектный размер конструктивного элемента, строительного изделия или оборудования, отличающийся от номинального размера, как правило, на величину нормативного зазора.

Натурный размер - фактическое расстояние между разбивочными осями построенного здания и сооружения или фактические размеры его частей или элементов (см. рис.3).

Укрупненные модули применяют для назначения размеров зданий и сооружений - ширины, длины и высоты зданий, шагов колонн, расстояний между несущими конструкциями, высот этажей, размеров пролетов (ферм, балок, плит). Основные и дробные - для обозначения толщины плитных и листовых материалов, размеров зазоров между элементами, сечение колонн, балок, перемычек, элементов конструкций и деталей.

Совокупность таких элементов как фундаменты, стены отдельные опоры перекрытия носит название несущего остова здания. В зависимости от вида несущего остова различают основные конструктивные схемы зданий:

1.   Здания с несущими стенами (бескаркасные);

2.   Здания с неполным каркасом;

3.   Каркасные здания.

В зданиях с несущими стенами нагрузку от перекрытий, крыши и др. воспринимают стены: продольные, поперечные или одновременно и продольные и поперечные.

В каркасных зданиях вся нагрузка передается на каркас, то есть систему связанных между собой вертикальных элементов (колонн) и горизонтальных (прогонов и ригелей).

Конструктивные схемы бескаркасных зданий

А) несущие продольные стены (см. рис.4);

Б) поперечные несущие стены (см. рис.4);

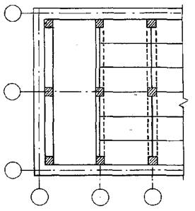
Конструктивные схемы со смешанным каркасом

А) продольное расположение ригелей (см. рис. 5);

Б) поперечное расположение ригелей (см. рис. 5).

Конструктивные схемы каркасных зданий

А) с продольным расположением ригелей (см. рис.6);

Б) с поперечным расположением ригелей (см. рис. 6);

В) с перекрестным расположением ригелей (см. рис. 6);

Г) безригельное решение (см. рис. 6).

Рис. 1.

МОДУЛЬНАЯ СИСТЕМА КООРДИНАЦИИ РАЗМЕРОВ

Рис. 2.

а - пространственная система модульных плоскостей; б - взаимосвязь укрупненных модулей в плоскости

МАРКИРОВКА КООРДИНАЦИОННЫХ (РАЗБИВОЧНЫХ) ОСЕЙ

И ПРИВЯЗКА КОНСТРУКЦИЙ

Рис. 3. а - маркировка осей; б - привязка стен; в, г - привязка колонн

(в - «нулевая» привязка наружных граней колонн; г - их привязка на расстоянии а)

ЗДАНИЯ С НЕСУЩИМИ СТЕНАМИ

ПРОДОЛЬНЫМИ                         ПОПЕРЕЧНЫМИ

Рис. 4.

ЗДАНИЯ С НЕПОЛНЫМ КАРКАСОМ

ПРОДОЛЬНОЕ РАСПОЛОЖЕНИЕ ПОПЕРЕЧНОЕ РАСПОЛОЖЕНИЕ

РИГЕЛЕЙ                                               РИГЕЛЕЙ

Рис. 5.

КАРКАСНЫЕ ЗДАНИЯ

 

С ПРОДОЛЬНЫМ

РАСПОЛОЖЕНИЕМ РИГЕЛЕЙ

С ПОПЕРЕЧНЫМ

РАСПОЛОЖЕНИЕМ РИГЕЛЕЙ

ПЕРЕКРЕСТНОЕ

РАСПОЛОЖЕНИЕ РИГЕЛЕЙ

БЕЗРИГЕЛЬНАЯ СИСТЕМА

Рис. 6.

Похожие работы на - Понятие о гражданских зданиях и их классификация

 

Не нашли материал для своей работы?
Поможем написать уникальную работу
Без плагиата!
Без нейросетей!