Сопряжения с зазором и натягом

  • Вид работы:
    Контрольная работа
  • Предмет:
    Технология машиностроения
  • Язык:
    Русский
    ,
    Формат файла:
    MS Word
    631,06 kb
  • Опубликовано:
    2010-07-31
Вы можете узнать стоимость помощи в написании студенческой работы.
Помощь в написании работы, которую точно примут!

Сопряжения с зазором и натягом

Задача 1

Вариант I

Дано: Ø24

Решение:

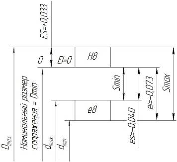
1. Заданное сопряжение Ø24 выполнено в системе отверстия, посадка с зазором.

Параметры сопряжения

Для вала

Для отверстия

Номинальный размер, мм

24

24

Квалитет

8

8

Условное обозначение основного отклонения

е

Н

Условное обозначение поля допуска

е8

Н8

Верхнее отклонение, мм

Еs = -0,040

ES = +0,033

Нижнее отклонение, мм

Ei = -0,073

EI = 0

Наибольший предельный размер, мм

dmax = 23,960

Dmax = 24,033

Наименьший предельный размер, мм

dmin = 23,927

Dmin = 24,0

Допуск размера, мм

Td = 0,033

TD = 0,033


2. Характеристики посадки с зазором.

Наибольший зазор:

Smax = Dmax – dmin = 24,033 – 23,927 = 0,106 мм

Наименьший зазор:

Smin = Dmin – d max = 24,0 – 23,960 = 0,040 мм

Средний зазор:

Sm = (Smax + Smin)/2 = (0,106+0,040)/2 = 0,073 мм

Допуск зазора:

TS = Smax – Smin = 0,106 – 0,040 = 0,066 мм

TS = TD + Td = 0,033 + 0,033 = 0,066 мм

3. Схема расположения полей допусков для сопряжения Ø24:


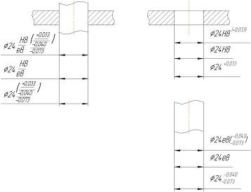
4. Обозначение предельных отклонений:

а) На сборочном чертеже: б) на рабочем чертеже:


Вариант II

Дано: Ø250

Решение:

1. Заданное сопряжение Ø250 выполнено в системе отверстия, переходная посадка.

Параметры сопряжения

Для вала

Для отверстия

Номинальный размер, мм

250

250

Квалитет

7

8

Условное обозначение основного отклонения

m

Н

Условное обозначение поля допуска

m7

Н8

Верхнее отклонение, мм

ES = +0,072

Нижнее отклонение, мм

Ei = +0,017

EI = 0

Наибольший предельный размер, мм

dmax = 250,063

Dmax = 250,072

Наименьший предельный размер, мм

dmin = 250,017

Dmin = 250,0

Допуск размера, мм

Td = 0,046

TD = 0,072



2. Характеристики переходной посадки.

Наибольший зазор:

Smax = Dmax – dmin = 250,072 – 250,017 = 0,055 мм

Наибольший натяг:

Nmax = dmax – Dmin = 250,063 – 250,0 = 0,063 мм

Средний зазор:

Sm = (Smax + Smin)/2 = (0,055 – 0,063)/2 = -0,004 мм

Средний натяг:

Nm = (Nmax + Nmin)/2 = (0,063 - 0,055)/2 = 0,004 мм

Допуск зазора:

TS = Smax + Nmax = 0,055 + 0,063 = 0,118 мм

Допуск натяга:

TN = Smax + Nmax = 0,055 + 0,063 = 0,118 мм

3. Схема расположения полей допусков для сопряжения Ø250:


4. Обозначение предельных отклонений:

а) На сборочном чертеже: б) на рабочем чертеже:



Вариант III

Дано: Ø70

Решение:

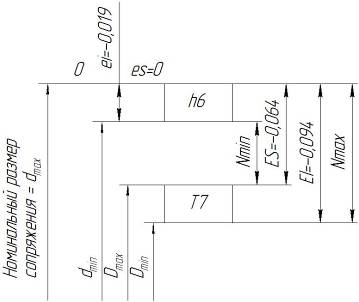
1. Заданное сопряжение Ø70 выполнено в системе вала, посадка с натягом.

Параметры сопряжения

Для вала

Для отверстия

Номинальный размер, мм

70

70

Квалитет

6

7

Условное обозначение основного отклонения

h

T

Условное обозначение поля допуска

h6

T7

Верхнее отклонение, мм

Еs = 0

ES = -0,064

Нижнее отклонение, мм

Ei = -0,019

EI = -0,094

Наибольший предельный размер, мм

dmax = 70,0

Dmax = 69,936

Наименьший предельный размер, мм

dmin = 69,981

Dmin = 69,906

Допуск размера, мм

Td = 0,019

TD = 0,030


2. Характеристики посадки с натягом.

Наибольший натяг:

Nmax = dmax – Dmin = 70,0 – 69,906 = 0,094 мм

Наименьший натяг:

Nmin = dmin – Dmax = 69,981 – 69,936 = 0,045 мм


Nm = (Nmax + Nmin)/2 = (0,094+0,045)/2 = 0,0695 мм

Допуск натяга:

TN = Nmax – Nmin = 0,094 – 0,045 = 0,049 мм

TN = TD + Td = 0,019 + 0,030 = 0,049 мм

3. Схема расположения полей допусков для сопряжения Ø70:


4. Обозначение предельных отклонений:

а) На сборочном чертеже: б) на рабочем чертеже:


Задача 2

Дано: подшипник №314; d = 70 мм; D = 150 мм; В = 35 мм; 6 класс точности; нормальный режим работы; вращается вал; корпус неподвижен.

Решение:

1. По табл. 4 определяем размеры подшипника качения№ 314: наружный диаметр наружного кольца D = 150 мм; диаметр отверстия внутреннего кольца d = 70 мм; ширина подшипника В = 35 мм.

Для указанных условий работы подшипника наружное кольцо испытывает местное нагружение, так как корпус неподвижный; внутреннее кольцо испытывает циркуляционное нагружение, так как вращается вал.

По табл. 6 при нормальном режиме работы с учетом видов нагружений для колец подшипника качения шестого класса точности выбираем для наружного кольца с корпусом посадку Ø150 и для внутреннего кольца с валом – посадку Ø70.

2. По ГОСТ 25347-82 и ГОСТ 520-89 определяем предельные отклонения для вала, отверстия корпуса, для колец подшипника и строим схемы полей допусков для выбранных посадок.

Схема расположения полей допусков:

а) для внутреннего кольца с валом


Nmax = dmax – Dmin = 70,030 – 69,988 = 0,042;

Nmin = dmin – Dmax = 70,011 – 70,0 = 0,011;

Nm = (Nmax + Nmin)/2 = (0,042 + 0,011)/2 = 0,0265;

TN = Nmax – Nmin = 0,042 – 0,011 = 0,031.

б) для наружного кольца с отверстием корпуса:


Smax = Dmax – dmin = 150,040 – 149,989 = 0,051;

Smin = Dmin – dmax = 150 – 150 = 0;

или Nmax = 0

Sm = (Smax + Smin)/2 = (0,051 + 0)/2 = 0,0255;

TS = Smax + Nmax = 0,051 + 0 = 0,051;

3. Обозначение посадок подшипника качения.


Задача 4

Дано: М18х1 -

Решение:

1. Номинальный профиль наружной и внутренней метрической резьбы.


Номинальный наружный диаметр наружной и внутренней резьбы: d = D = 18 мм.

Номинальный средний диаметр наружной и внутренней резьбы:

d2 = D2 = d – 1 + 0,35 = 18 – 1 + 0,35 = 17,35 мм.

Номинальный внутренний диаметр наружной и внутренней резьбы:

d1 = D1 = d – 2 + 0,918 = 18 – 2 + 0,918 = 16,918 мм.

Угол профиля α = 60°.

Резьбовое соединение с мелким шагом, Р = 1 мм.

2. Степени точности, условное обозначение основных отклонений и полей допусков для диаметров резьбы.

Виды резьбы

Диаметры

Степень

точности

Условное обозначение

осн. отклон.

поле допуска

наружная

d

6

h

6h

d2

6

h

6h

d1

-

h

-

внутренняя

D

-

G

-

6

G

6G

D1

6

G

6G


2. По стандарту ГОСТ 16093-81 определяем предельные отклонения, рассчитываем предельные размеры, допуски диаметров резьбового соединения и строим схемы полей допусков для диаметров резьбы.

Номиналь-ные размеры диаметров, мм

Резьба

Предельное отклонение, мм

Предельные размеры, мм

Допуск, мм

Верхнее

Нижнее

Наиб.

Наим.

D(d)=18

внутр.

-

+0,026

-

18,026

-

наруж.

0

-0,180

18

17,820

0,180

D2(d2)=17,35

внутр.

+0,136

+0,026

17,486

17,376

0,110

наруж.

0

-0,118

17,35

17,232

0,118

D1(d1)=16,918

внутр.

+0,262

+0,026

17,18

16,944

0,236

наруж.

0

-

16,918

-

-


Схемы полей допусков:


Задача 5

Дано: D-6х23х28х5

Решение.

Для данного шлицевого прямобочного соединения центрирующей поверхностью является поверхность по наружному диаметру D = 28 мм, количество зубьев Z = 6.

Условное обозначение шлицевого вала: D-6х23b12x28js6x5js7.

Условное обозначение шлицевого отверстия: D-6х23Н11x28Н7x5D9.

Шлицевое соединение неподвижное – втулка не перемещается относительно вала.

Центрирование по D используют в тех случаях, когда шлицевое соединение неподвижное или подвижное, работающее при небольших нагрузках. Требования к износостойкости деталей невысокие, поэтому шлицевую втулку не подвергают термообработке, что позволяет обработать ее протяжкой, обеспечивая высокую точность по D.

Эскиз поперечного сечения шлицевого прямобочного соединения.


Задача 6

Дано: 7-8-8-В

1. Для заданного зубчатого колеса 7-8-8-В ГОСТ 1643-81 установлены следующие требования:

·   по кинематической норме точности – седьмая степень точности;

·   по норме плавности – восьмая степень точности;

·   по норме контакта – восьмая степень точности;

·   по норме бокового зазора – вид сопряжения В, который определяет jnmin, вид допуска – b и класс отклонений межосевого расстояния V; так как вид допуска и класс отклонений межосевого расстояния соответствуют виду сопряжения, то они не проставляются (по умолчанию).

2. Зубчатое колесо в данном случае работает в передаче общего назначения - 7, 8 степень точности. По нормам плавности и контакта не очень высокие требования к точности (8 степень точности).

3. На боковой зазор в зубчатой передаче установлено:

шесть видов сопряжений, которые обозначаются прописными буквами латинского алфавита Н, Е, D, C, B, A. Они определяют различные значения гарантированного бокового зазора (наименьшего предписанного бокового зазора). Виду сопряжения Н соответствует jnmin = 0, виду сопряжения А – наибольший гарантированный боковой зазор.

Восемь видов допусков Тjn, которые в порядке понижения точности обозначаются условно строчными буквами латинского алфавита h, d, c, b, a, z, y, x.

Шесть классов отклонений межосевого расстояния, обозначенные в порядке убывания точности римскими цифрами от I до VI.

Каждому виду сопряжения соответствует свой вид допуска и класс отклонений межосевого расстояния. Разрешается это соответствие нарушать.

Похожие работы на - Сопряжения с зазором и натягом

 

Не нашли материал для своей работы?
Поможем написать уникальную работу
Без плагиата!
Без нейросетей!