Проектирование трехэтажного здания с неполным каркасом и несущими стенами

  • Вид работы:
    Курсовая работа (т)
  • Предмет:
    Строительство
  • Язык:
    Русский
    ,
    Формат файла:
    MS Word
    453,14 Кб
  • Опубликовано:
    2016-12-04
Вы можете узнать стоимость помощи в написании студенческой работы.
Помощь в написании работы, которую точно примут!

Проектирование трехэтажного здания с неполным каркасом и несущими стенами

ОГЛАВЛЕНИЕ

 

. Общая характеристика здания

. Инженерно-геологические условия площадки строительства

.1 Материалы инженерно-геологических изысканий

.2 Оценка инженерно-геологических условий

Список использованных источников

 

 

. Общая характеристика здания


В городе Санкт-Петербурге запроектировано промышленной здание. По конструктивной схеме здание трехэтажное с неполным каркасом и несущими стенами. План и разрез здания приведены на рисунке 1-2.

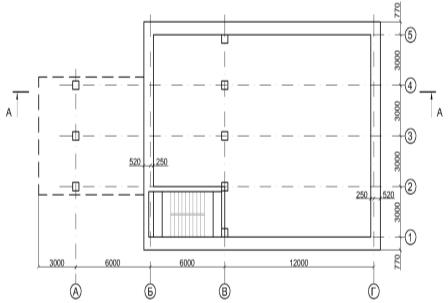
Рисунок 1 - План здания

Рисунок 2 - Разрез здания по сечению А-А

Здание в осях Б-Г имеет два пролета шириной L1=6,0 м, L2=12,0 м и высотой 6,6 м. Высота первого этажа h1=3,0 м, высота второго этажа h2=3,6 м и высота третьего этажа h3=4,8 м. Длинна здания в осях 1-5 составляет 15 м. По оси В установлены колонны 2КБД и 2КБО сечением 400х400 мм, которые воспринимают нагрузку от трех этажей. Наружные стены выполнены из кирпича с утеплителем из теплоизоляционных плит ISOVER SKL с общей толщиной стен 770 мм. Межэтажные перекрытия выполнены из железобетонных многопустотных безопалубочных плит ПБ 60-15, ПБ 120-15 с плиточным полом на цементной основе. Плиты перекрытия опираются на несущие кирпичные стены и на ригеля РДП 4.26, которые в свою очередь опираются на колонны 2КБД и 2КБО. Раскладка плит перекрытия представлена на рисунке 3.

Рисунок 3 - Раскладка плит перекрытия

Для подъема на верхние этажи в осях 1-2 предусмотрена лестница. По осям Б, Г устроены оконные проемы размером 2х1,8 м. Здание имеет техническое подполье высотой 2,5 м. Покрытие здания выполнено из ребристых железобетонных плит 3ПГ12 с рулонной кровлей на битумной основе. Плиты покрытия опираются на железобетонную двускатную балку 3БСД18, которая в свою очередь опирается на несущие кирпичные стены. Раскладка плит покрытия представлена на рисунке 4.

Рисунок 4 - Раскладка плит покрытия

2. Инженерно-геологические условия площадки строительства



2.1 Материалы инженерно-геологических изысканий


Инженерно-геологические условия площадки строительства представлены:

планом расположения буровых скважин (рисисунок 5);

таблицей физико-механических свойств грунтов (таблицы 2, 4).

инженерно-геологическим разрезом площадки (рисунок 6);

Площадка строительства № 15

Данные по пробуренным скважинам представлены в таблице 1

Таблица 1 - Данные по пробуренным скважинам

№ сква-жины

Координаты скважины

Отметка устья скважины

№ ИГЭ по стратиграфии

Глубина от устья скважины до подошвы слоя

Глубина появления


Х

У




Установле-ния подземных вод

1

27.0

18.0

18.7

9 11 9 6 30

12.5 13.5 15.5 17.2 15.0

1.0 1.0

2

45.0

25.0

18.6

9 6 30

16.5 17.3 25.0

1.5 1.5

3

64.0

78.0

16.4

9 30

17.3 25.0

4.2 1.2 6.7 3.2

4

78.0

39.0

17.0

9 6 30

11.2 12.4 25.0

3.1 0.7



Таблица 2 - Исходные показатели физико-механических свойств грунтов

№ ИГЭ

Вид грунта (генетический тип)

ρ, г/см3

ρ s, г/см3

W

WL

WP

Довер. вероят α

φ, град

С, кПа

Е, МПа

Кf, м/сут

6

Торф погребенный D = 25% PkIV

1.84

2.12

-

-

0.95 0.85

10.0 12.0

23.0 25.0

0.5

0.02

9

Пылевато-глинистый грунт, al

1.72

2.69

0.46

0.43

0.29

0.95 0.85

6.0 8.0

8.0 9.0

2.8

0.005

11

Пылевато-глинистый грунт, al

1.72

2.69

0.46

0,29

0,18

0.95 0.85

6.0 8.0

8.0 9.0

2.8

0.04

30

Пылевато-глинистый грунт, al

1.94

2.72

0.28

0,27

0,17

0.95 0.85

18.0 20.0

10.0 11.0

18.0

0.01


Рисунок 5 - План расположения буровых скважин

здание каркас перекрытие грунт

Рисунок 6 - Инженерно-геологическим разрезом площадки

Тип грунтов в основании и их состояние устанавливаются по производным характеристикам грунтов, которые определяются по основным свойствам, представленным в таблице 4, используя следующие зависимости (таблица 3).

Таблица 3 - Расчетные зависимости производных характеристик грунтов

№ п/п

Наименование характеристики грунта

Обозначение

Расчетная формула

Единица измерения

1

Плотность скелета грунта

rd

rd = r / (1+w)

г/см3

2

Число пластичности

IP

IP =wL - wP

-

3

Показатель консистенции

iL

-

4

Коэффициент пористости

e

e = (rs - rd )/ rd

-

5

Степень влажности

Sr

Sr = w rs / (e rw)

-

6

Удельный вес грунта

g

g = 9.81 r

кН/м3

7

Удельный вес грунта во взвеш. состоянии

gsb

gsb = 9.81 (rs - rw)/(1+e)

кН/м3


Таблица 4 - Производные показатели физико-механических свойств грунтов

№ ИГЭ

Вид грунта (генетический тип)

rd , г/см3

Ip

Il

е

Sr

g , kH/м3

gsb , kH/м3

6

Торф погребенный D = 25% PkIV

0.34

-

-

4.41

0.88

18.1

1.52

9

Пылевато-глинистый грунт, al

1.51

0.14

1.2

0.78

1.59

26.4

9.31

11

Пылевато-глинистый грунт, al

1.51

0.14

1.2

0.78

1.59

26.4

9.31

30

Пылевато-глинистый грунт, al

1.52

0.13

0.77

0.79

0.96

26.7

9.42


2.2 Оценка инженерно-геологических условий


Площадка строительства находится в г. Санкт-Петербурге, по климатическому зонированию в соответствии со СНиП 2.01.07-85 «Нагрузки и воздействия» имеет:

II - ветровой район с нормативным значением ветрового давления Wo =0.30;

III - снеговой район с нормативным значением веса снегового покрова Sg= 1.8 кПа.

. Суглинок текучий (IP = 0.14, IL = 1.21) аллювиально-озерного происхождения. Насыщен водой. Мощность слоя от 11.2 до 17.3 м;

. Суглинок текучий (IP = 0.14, IL = 1.21) аллювиально-озерного происхождения. Насыщен водой. Мощность слоя от 0.0 до 1.0 м;

. Суглинок текучий (IP = 0.14, IL = 1.21) аллювиально-озерного происхождения. Насыщен водой. Мощность слоя от 0.0 до 2.0 м;

. Торф погребенный D = 25 % пролювиального происхождения. Насыщен водой. Мощность слоя от 0.0 до 4.7 м. Торф отличается высокой степенью сжимаемости - модуль деформации Е = 0.5 МПа;

. Суглинок текучепластичный (IP = 0.13, IL = 0.77) морского происхождения. Насыщен водой. Нижняя граница этого слоя бурением не установлена - мощность слоя привышает 12.6 м.

Грунтовые воды приурочены к слою суглинка. Уровень грунтовых вод на глубине -1.0 м. от поверхности. Для понижения уровня грунтовых вод устраиваем систему дренажей. Поскольку абсолютная отметка планировки находиться на отметке 19.6 м, то производим засыпку песком до отметки 19.6 м.

Нормативная глубина сезонного промерзания грунта в соответствии с п. 5.5.3 СП 22.13330.2011определяется по формуле:


где Мt - безразмерный коэффициент, численно равный сумме абсолютных значений среднемесечных отрицательных температур за зиму в данном районе, принимаемых по СНиП 23-01-99;

d0 - величина, принимаемая равной для суглинков и глин 0.23 м.

Mt =0.3+5.0+7.8+7.8+3.9=24.8

где 0.3, 5.0, 7.8, 7.8, 3.9, - абсолютные значения среднемесячных отрицательных температур в г. Санкт-Петербурге в ноябре, декабре, январе, феврале и марте соответственно. Отсюда Нормативная глубина сезонного промерзания грунта

Расчетная глубина сезонного промерзания грунта в соответствии с п. 5.5.3 СП 22.13330.2011определяется по формуле:


где dfn - нормативная глубина сезонного промерзания грунта;

kh - коэффициент, учитывающий влияние теплового режима сооружения, принимаемый для наружных фундаментов отапливаемых сооружений - по таблице 5.2 СП 22.13330.2011.

При расчетной температуре внутреннего воздуха в помещении tв = 15оС и с учетом конструктивной особенностью здания (с техническим подпольем) коэффициент kh = 0,5. Отсюда расчетная глубина промерзания грунта


Список использованных источников


1. Аксенов С.Е. Проектирование фундаментов зданий и сооружений. Часть I. Сбор нагрузок: учебное пособие С.Е. Аксенов, И.Ю. Заручевных. - Архангельск: Арханг. гос. техн. ун-т, 2009. - 88 с.

. Аксенов С.Е. Проектирование фундаментов зданий и сооружений. Часть II. Расчет фундаментов мелкого заложения: учебное пособие С.Е. Аксенов, И.Ю. Заручевных. Сев. (Арктич) федер. ун-т им. М.В. Ломоносова - Архангельск: ИД САФУ, 2014. - 143 с.

. Дулматов Б.И. Механика грунтов, основания и фундаменты (включая специальный курс инженерной геологии). - 2 изд. переработано и дополнено. - Л.: Стройиздат, Ленингр. отд-ние, 1988 - 415 с.

. СП 20.13330.2011 Нагрузки и воздействия. Актуализированная редакция СНиП 2.01.07-85*.

. СП 22.13330.2011 Основания зданий и сооружений. Актуализированная редакция СНиП 2.02.01-83*

. СНиП 23-01-99* Строительная климатология.

Похожие работы на - Проектирование трехэтажного здания с неполным каркасом и несущими стенами

 

Не нашли материал для своей работы?
Поможем написать уникальную работу
Без плагиата!
Без нейросетей!