Системы интервального регулирования движением поездов (автоблокировка числового кода)
Федеральное агентство
железнодорожного транспорта
Омский государственный университет
путей сообщения
Кафедра «Автоматика и телемеханика»
СИСТЕМЫ ИНТЕРВАЛЬНОГО РЕГУЛИРОВАНИЯ
ДВИЖЕНИЕМ ПОЕЗДОВ (АВТОБЛОКИРОВКА ЧИСЛОВОГО КОДА)
Введение
Автоматическая блокировка (АБ) является эффективным средством
интервального регулирования движения поездов. Данная система служит для
увеличения пропускной способности железнодорожных магистралей и обеспечения
высокого уровня безопасности движения поездов. Автоблокировка стала основным
средством организации движения поездов на участках, требующих высокую
пропускную способность и обеспечение безопасности движения.
Самой распространенной является числовая кодовая автоблокировка (ЧКАБ),
которая является беспроводной системой интервального регулирования движением
поездов. В данной системе информация о числе свободных впередилежащих
блок-участков передается от одной сигнальной установки к другой по рельсовой
цепи кодовыми сигналами КЖ, Ж и 3. Этими же кодовыми сигналами транслируется
информация о показания впереди стоящего светофора на локомотив.
Числовая кодовая автоблокировка проектируется при всех видах тяги
поездов. В данном курсовом проекте рассматривается рельсовая цепь на сигнальной
частоте 50 Гц при автономной тяге.
Целью данной работы является изучение принципов работы числовой кодовой
автоблокировки, ознакомление с основными схемами, являющимися базовыми при
оборудовании участка железной дороги.
. Расстановка светофоров на перегоне по кривой скорости
Расстановку светофоров АБ выполним с использованием засечек времени на
кривой скорости следования расчетного поезда по перегону.
Исходными данными для решения поставленной задачи являются расчетный
интервал между попутно следующими поездами - 8 мин, длина расчетного поезда -
850 м.
В начале кривую скорости размечаем минутными засечками с помощью
треугольников. Для нечетного направления высота треугольника соответствует
максимальной скорости - 100 км/ч, а для четного - 80 км/ч. Основание равно
пути, проходимое поездом за 1 минуту.
Треугольник располагается на диаграмме так, чтобы его вершина лежала на
кривой скорости, а сторона проходила через начальную точку и основанием было
параллельно оси пути. Проекция полученной точки на оси абсцисс на кривую
скорости дает первую засечку времени 1. Далее треугольник поворачивается так,
чтобы его вершина лежала на оси пути, а основание было параллельно ей и
передвигается до пересечения левой стороной кривой скорости в точке 1. При этом
правая сторона пересечет кривую скорости в точке 2, соответствующей второй
засечке времени. Аналогичным образом устанавливаются остальные засечки времени.
[1]
Рассмотрим расстановку светофоров нечетного направления.
По заданию интервал попутного следования составляет 8 мин., но так как
получаемые при этом длины РЦ больше максимально допустимых, принимаем интервал
6 мин.
На следующем этапе, устанавливается положение поезда №2 - его центр
тяжести на нулевой оси, а также положение поезда №1 - на отметке 6 мин. Голова
поезда №2 ограждается выходным светофором Н1 (525 м). После этого хвост поезда
№1 ограждается светофором серии I. Для
того, чтобы поезд №2 следовал за поездом №1 с трехблочным разграничение
необходимо временной отрезок между светофорами Н1 и I разделить на три части. Установка светофора серии I приходится на отметку 5,8 мин, а Н1
- 2,5. Разница составляет 3,3 мин, а частное от деления на три - 1,1 мин.
Отсюда, временная отметка светофора серии II составляет 2,5+1,1=3,6 мин, а серии III 3,6+1,1=4,7 мин. Для определения мест установки
вторых светофоров серий I, II и III, вычерчиваются положения поезда №2 так, чтобы его
голова находилась в створе с первыми светофорами. После этого осуществляются
проекции центров тяжести поезда на кривую скорости. В данном случае они
соответствуют точкам 3,4; 4,5; 5,6 мин. Добавляя интервал 6 мин, находятся
центры тяжести поезда №1 и ограждаются светофорами (координаты 9,4; 10,5;
11,6). Места установки всех последующих светофоров I, II и III серий находятся также.
Аналогично выполняется расстановка светофоров для четного направления
движения.
После расстановки светофоров в обоих направлениях решаем вопрос о
корректировке длин рельсовых цепей, которая проводится смешением светофора в
течении одной минуты в одну или в другую сторону, для достижения наиболее
рациональных мест установки светофоров. Максимальная длина блок-участка
допускается до 2200 м, а длина предвходных блок-участков - не более 1500 м. При
возникновении расстояния более 2200 м и невозможности передвинуть светофор в
пределах 1 минуты, устанавливался дополнительный светофор в каждом направлении.
Откорректированные места установки светофоров на перегоне согласно кривой
скорости, в двух направлениях движения, представлены на рисунке 1.1.
Входные светофоры Н и Ч установлены на расстоянии 50 м от первой стрелочной
секции. Каждая горловина станции устанавливается от нулевой оси каждой кривой
скорости. Для определения местоположения входного светофора выполнен расчет
ординат стрелок и светофоров. Исходными данными для расчета являются - тип
рельсов Р-65, расчетная длина приемоотправочного пути 1050 м. На главных и
приемоотправочных пассажирских путях укладываются стрелочные переводы марки
1/11. Ширина междупутья, е = 5,3 м. [2]
Соединение двух путей (стрелки 5, 6, 7, 8, 9).
где где α - угол крестовины (5011'40'');
Съезд между параллельными путями, стрелки 2-4, 1-3.
Длина съезда рассчитывается по следующей формуле:
- знаменатель марки крестовины.
м.
Полная длина съезда:
м.
а - от оси передних стыков рамных рельсов до центра перевода (14.06 м).
На приемо-отправочных путях вставка между стрелками 12,5 м.
Путевой план с ординатами стрелок представлен на рисунке 1.2.
Рисунок 1.1 - Кривые скорости с расстановкой светофоров на перегоне
Рисунок 1.2 - Путевой план станции с ординатами стрелок
. Путевой план перегона с переездом, устройством контроля схода
подвижного состава (УКСПС) и САУТ
При разработке проекта автоблокировки составляют путевой план перегона.
На плане изображены: рельсовые цепи в двухниточном изображении с указанием их
длины и указанием питающих и релейных концов; путевые ящики; перегонные
(проходные) светофоры, их нумерация, ординаты их установки, указывая наличие 2х
нитевых ламп; релейные шкафы с указанием типа сигнальной установки и типа КПТШ.
Приборы каждой сигнальной установки размещаются в отдельных релейных
шкафах типа ШРУ-М.
В кодовой АБ применяются кодовые путевые трансмиттеры типа КПТШ-515 и
КПТШ - 715. На сигнальной точке чередуются КПТШ для обеспечения дешифрации
кодов при принятом способе контроля изолирующих стыков.
Типы сигнальных точек [4]:
О - одиночная проходная сигнальная установка на двухпутном участке;
Ом - одиночная предвходная сигнальная установка с мигающим желтым огнем;
Ои - одиночная со схемой извещения на станцию от второго участка
приближения.
Также указано основное электроснабжение устройств автоблокировки,
осуществляемое от высоковольтных линий СЦБ (ВЛ СЦБ), сооружаемых вдоль
железнодорожных путей напряжением 10 кВ, частотой 50 Гц. На путевом плане
показывается эта линия с включением в нее силовых линейных трансформаторов типа
ОМ с указанием их мощности (ОМ-1.25 или ОМ-0.63) и кабельные ящики с указанием
числа жил кабеля, вводимого в ящик. Ом-0,63 - данный тип применяется если
сигнальная точка одиночная, а в случае, когда сигнальная точка, спаренная
используют Ом-1,25. Резервное питание переменным током РПХ, РОХ осуществляется
от линии ЛЭП.
Резервным источником электропитания служит продольная линия
электропередачи (ЛЭП), напряжением 10 кВ.
Линейные цепи автоблокировки выполняются по магистральным кабелям связи.
Н-ОН - цепь смены направления движения;
ДСН-ОДСН - провода двойного снижения напряжения, которые одновременно
используют для передач частотных сигналов ЧДК;
И-ОИ - провода извещения о приближении поезда к станции от сигнальных
установок двух участков приближения;
ЗС-ОЗС - включения мигающих огней на предвходном светофоре;
КС-ОКС - цепь передачи информации на станцию о состоянии устройств УКСПС;
К-ОК - цепь контроля перегона (схема смены направления).
Жильность кабеля к светофорам подсчитывается по принципиальной схеме с
учетом необходимого количества запасных жил. Жильность кабеля к рельсовым цепям
определяется по сборникам нормалей рельсовых цепей. Жильность кабеля,
соединяющего РШ с кабельным ящиком КЯ-6, определяется количеством питающих
проводов.
Данный перегон оборудован охраняемым переездом типа ПАШ и устройствами
УЗП. Извещение на переезд организовано по методу наложения тональных рельсовых
цепей. Так как переезд, охраняемый то в обязательном порядке возле него,
устанавливается будка дежурного по переезду. Её размещают в релейные шкафы, их
количество зависит от объемов устройств, применяемых на переезде. На плане
размещено пять РШ. Из них в двух размещается аппаратура рельсовых цепей, в
третьем аппаратура ПАШ, РШ УЗП и в отдельном шкафу аккумуляторных батарей.
Также на путевом плане отображены участки приближения для каждого
направления. Расчет их длин производится по формулам, где необходимо учитывать
максимальную скорость поезда на этих участках, исходя из кривых скоростей,
приведенных на рисунке 1.1.
По кривой скорости определяем скорость движения поезда (для четного
направления 80 км/ч, для нечетного направления 100 км/ч.).
Расчетные длины участков приближения к переезду обеспечивают извещение на
закрытие переезда с автоматической переездной сигнализацией, в том числе и со
шлагбаумами, за время, необходимое для заблаговременного освобождения переезда
дорожным транспортом длиной 24 м при максимальной скорости движения 8 км/ч при
дополнительном времени 2 с на срабатывание аппаратуры (с учетом времени реакции
машиниста) и гарантийном времени 10 с. Необходимое время извещения о
приближении к переезду:
,
где t1 - время, необходимое автомобилю для проследования
переезда, с;
t2 - время срабатывания аппаратуры, с;
t3 - гарантийный запас времени, с.
Время t1 определяется по формуле:
,
где ln- длина переезда, определяемая
расстоянием от переездного светофора, наиболее удаленного от крайнего рельса,
до противоположного крайнего рельса плюс 2,5 м;
lp -
расчетная длина автотранспортного средства;
lc -
расстояние от места остановки автомобиля до переездного светофора;
Расчетная длина участка приближения:
,
где 0,28 - коэффициент перевода скорости из км/ч в м/с;
lmax -
максимальная скорость движения поездов, заданная на данном участке, км/ч.
Длина переезда на двухпутном участке составляет:
,
где Lшл - расстояние от крайнего рельса до
наиболее удаленного переездного светофора - 6 м (при длине шлагбаума 4 м);
Lк -
ширина колеи - 1,52 м;
Lмп -
ширина междупутья - 5,3 м;
Lт -
габаритное расстояние от крайнего рельса, гарантирующее безопасную остановку
машины за переездом - 2,5 м.
Lп=6+1,52+5,3+2,5= 15,32 м.
Рассчитаем длину участка приближения при движении в нечетном направлении:
Рассчитаем длину участка приближения при движении в четном направлении:
Датчики УКСПС устанавливают перед станцией на расстояние, на котором
обеспечивается остановка поезда у закрытого входного светофора. Для УКСПС
установлен дополнительный шкаф из-за нехватки места в релейном шкафу
предвходного светофора.
3. Расчет режимов работы РЦ первого участка удаления
Рисунок 3.1 - Схема кодовой рельсовой цепи 25 Гц с автономной тягой
Исходные данные для расчета:
длина рельсовой цепи
км;
нормативное удельное сопротивление рельсов для медных приварных
соединителей при частоте сигнального тока 50 Гц
Ом/км;
минимальное удельное сопротивление изоляции для двухниточной рельсовой
цепи
Ом∙км;
максимальное удельное сопротивление изоляции для двухниточной рельсовой
цепи
Ом∙км;
напряжение срабатывания реле типа ИВГ-В
В;
коэффициент запаса на срабатывания реле типа ИВГ-В
;
рабочее напряжение реле
В;
сопротивление реле типа ИВГ-В
Ом;
рабочий ток реле типа ИВГ-В
А;
допустимое напряжение перегрузки реле ИВГ-В
В;
коэффициент запаса на несрабатывание реле типа ИВГ-В
;
коэффициент надежного возврата реле типа ИВГ-В
коэффициент колебания напряжения в сети переменного тока ±10%
;
коэффициент нестабильности источников питания при питании РЦ от
трансформатора типа ПОБС
;
коэффициент трансформации
;
приведенный коэффициент надежного возврата реле типа ИВГ-В
сопротивление ограничителя типа РОБС-3А
;
сопротивление нормативного шунта
Ом;
добавочное сопротивление
Ом;
коэффициенты четырехполюсника ПРТ-А на релейном конце при коэффициенте
трансформации n = 15,7:
;
коэффициенты четырехполюсника ПОБС-3А на питающем конце при коэффициенте
трансформации n = 5:
;
коэффициент распределения тока утечки при железобетонных шпалах
;
коэффициент взаимоиндукции рельсов
;
критическое значение комплексного числа, при котором удельное
сопротивление изоляции рельсовой линии в контрольном режиме принимает
критическое значение,
.
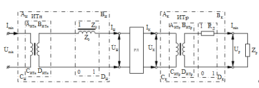
Для сокращения объема расчета все элементы питающего конца РЦ между
рельсами и ПТ замещают четырехполюсником Н, а элементы релейного конца между
рельсами и путевым реле - четырехполюсником К. Схема замещения кодовой РЦ для
расчета в нормальном режиме представлена на рисунке.
.1 Нормальный режим
Коэффициенты четырехполюсника Н определяют из уравнения:
Коэффициенты четырехполюсника К определяют из уравнения
Рисунок 3.2 - Схема замещения кодовой РЦ для нормального режима
Нормальным режимом называется такое состояние исправной и свободной от
подвижного состава РЦ, при котором путевой приемник выдает дискретную
информацию «Свободно».
При расчете нормального режима критериями, определяющими режим работы РЦ,
являются напряжение U, ток I и мощность S источника питания, при которых
надежно срабатывает путевой приемник. Расчет РЦ выполняют при свободной РЦ,
нормативном сопротивлении рельсовой линии, минимальном нормативном удельном
сопротивлении изоляции балласта и минимальном напряжении источника питания. При
критическом сочетании значений основных параметров уровень сигнала на входе
реле ИВГ-В не должен превышать допустимого напряжения перегрузки, т. е.
.
Для автономной тяги эквивалентное сопротивление изоляции рельсовой линии
равно сопротивлению изоляции, так как контактные опоры отсутствуют:
Ом∙км;
Коэффициент распространения определяют по выражению:
1/км;
Волновое сопротивление:
1/км;
Коэффициенты рельсового четырехполюсника определяют по формуле:
Напряжение и ток в конце рельсовой линии:
В;
Напряжение и ток в начале рельсовой линии:
В;
А.
Минимальное напряжение и ток ПТ:
В;
А.
Номинальные напряжения и ток ПТ с учетом колебания напряжения в сети ±
10%:
В;
А.
Мощность ПТ в нормальном режиме:
В∙А.
Обратное сопротивление линии:
Для трансформатора типа ПОБС-3А число витков вторичной обмотки:
Фактические напряжение и ток трансформатора ПОБС-3А:
Фактическая мощность трансформатора в нормальном режиме:
В∙А.
Коэффициент снижения тока релейного конца:
Обратный коэффициент снижения тока четырехполюсника Н:
Прямое входное сопротивление четырехполюсника К:
Обратное входное сопротивление четырехполюсника Н:
Минимальное сопротивление передачи:
Ом.
Максимальное сопротивление передачи:
Ом
Действительный коэффициент перегрузки реле:
Фактический коэффициент перегрузки реле выше допустимого. Для повышения
действительного коэффициента перегрузки параллельно обмотке реле ИВГ-В
включаются стабилитроны Д815Б; допустимое напряжение перегрузки получаем 15 В,
соответственно
= 3,788. Нормальный режим выполняется.
.2 Режим короткого замыкания
Под режимом КЗ подразумевается режим работы генератора при расположении
нормативного поездного шунта в начале рельсовой линии, т.е. в точке подключения
к ней генератора.
Рисунок 3.3 - Схема замещения кодовой РЦ в режиме КЗ
Входное сопротивление короткого замыкания:
Ток короткого замыкания источника:
Мощность короткого замыкания:
Номинальный ток трансформатора ПОБС-3А составляет 1,21 А, номинальная
мощность - 300 ВА. Так как значения тока и мощности короткого замыкания не
превосходят номинальных, режим КЗ выполняется.
.3 Шунтовой режим
Шунтовым режимом называется такое состояние РЦ, при котором ее путевой
приемник выдает дискретную информацию «Занято» при наложении в любой точке РЛ
поездного шунта сопротивлением не ниже нормативного.
Шунтовой режим рассчитывают при нормативном удельном сопротивлении при
переменном токе, максимальном нормативном удельном сопротивлении изоляции
балласта, максимальном напряжении источника питания и коэффициенте
чувствительности РЦ к нормативному шунту Кш ≥ 1.
Рисунок 3.4 - Схема замещения кодовой РЦ в шунтовом режиме
Коэффициенты четырехполюсника РЛ при наложении нормативного шунта на релейном
конце и бесконечном сопротивлении изоляции:
Сопротивление передачи:
Ом
В.
Коэффициент шунтовой чувствительности при наложении нормативного шунта на
релейном конце:
Коэффициент шунтовой чувствительности больше единицы, значит, шунтовой
режим выполняется, при наложении шунта на релейном конце.
Коэффициенты четырехполюсника РЛ при наложении нормативного шунта на
питающем конце и бесконечном сопротивлении изоляции:
Ом.
В.
.
Коэффициент шунтовой чувствительности больше единицы. Шунтовой режим
выполняется при наложении шунта на питающем конце.
.4 Контрольный режим
Контрольным режимом называется такое состояние РЦ, при котором путевой
приемник передает дискретную информацию «Занято» при полном электрическом
разрыве рельсовой нити в любой точке рельсовой линии.
При расчете контрольного режима удельное сопротивление рельсовой линии
аналогично шунтовому, удельное сопротивление изоляции критическое, определяемое
расчетом, относительная координата места разрыва нити при отсутствии поездного
шунта. Коэффициент чувствительности РЦ к обрыву рельса Ккп ≥ 1.
Рисунок 3.5 - Схема замещения кодовой РЦ в контрольном режиме
Коэффициент, учитывающий взаимоиндукцию рельсов:
Коэффициенты схем для рельсовых цепей переменного тока без ДТ:
.
Коэффициенты четырехполюсника РЛ при повреждении рельса:
;
;
;
;
.
Сопротивление передачи при контрольном режиме:
Ом.
Допустимое напряжение источника питания при контрольном режиме:
В.
Определяем коэффициент чувствительности к повреждению рельса:
.
Коэффициент чувствительности к повреждению рельса больше единицы,
следовательно, контрольный режим выполняется.
.5 Режим АЛСН
Режимом АЛСН называется такое состояние исправной занятой РЦ, при котором
в рельсовой цепи создается уровень кодового сигнала, достаточный для надежного
действия локомотивного приемника, расположенного на удаленном от генератора
АЛСН конце рельсовой линии.
Режим АЛСН рассчитывается при наложении нормативного шунта на удаленном
от генератора АЛСН конце рельсовой линии при ее максимальном нормативном
удельном сопротивлении, минимальными удельном сопротивлении изоляции и
напряжении источника питания. Коэффициент тока, являющийся определяющим в этом
режиме работы РЦ, Кл ≥ 1.
Рисунок 3.6 - Схема замещения кодовой РЦ в режиме АЛСН
Сопротивление передачи цепи для режима АЛС:
Ом.
Фактический ток АЛС:
А.
Коэффициент тока:
Коэффициент тока больше единицы, а значит, режим АЛСН выполняется.
4. Схемы сигнальной точки автоблокировки
Блок счетчиков БС-ДА содержит:
Реле-счетчик 1, фиксирующий поступление первого импульса любого кодового
сигнала. Реле-счетчик 1А, фиксирующий первый короткий интервал в кодах Ж и З и
длинный интервал в коде КЖ.
Диоды Д1, Д3, исключающие разряд конденсатора С1 на реле счетчик 1 и
вспомогательное реле В, диод Д2, исключающий разряд конденсатора С3 помимо реле
З.
Блок исключений БИ-ДА содержит:
ПТ - помехозащитное трансмиттерное реле, исключающее появление на
светофоре желтого огня вместо красного при неисправности изолирующих стыков;
В - размыкает цепь питания реле 1А в момент поступления большого
интервала. Оно вместе с реле ПТ исключает возможность включения более
разрешающего показания на светофоре при неисправности изолирующих стыков и
фиксирует поступление кодового импульса только из собственной РЦ;
Диод Д4 - увеличивает время замедления реле В;
Диод Д5 - исключает возможность попадания циркулирующих токов через диод
Д4 в обмотку вспомогательного реле В и другие цепи;
Диод Д6 - исключает шунтирование обмотки реле ПТ диодом Д7;
Диод Д7 - создает замедление трансмиттерному реле Т на отпускание якоря
при передаче кода КЖ;
Блок конденсаторов БК-ДА:
Конденсаторы С1, С2, С3, которые обеспечивают замедление на отпускание
якоря сигнальных реле Ж и З при приеме кодов;
RT - резистор, используемый для обогрева блока конденсаторов.
Переключение на неправильное направление выполняется путём возбуждения
реле Н током обратной полярности. При этом реле Н, переключая контакт
поляризованного якоря, включает реле 2Н, которое выполняет все необходимые
переключения для осуществления неправильного направления движения.
Если реле Ж и З под током, то реле ПТ не включается, т.к. более
разрешающего показания, чем зеленый не бывает и исключать нечего,
соответственно экономится ресурс срабатываний реле ПТ. Если реле Ж или З без
тока, то сначала включается реле ПТ, фронтовой контакт которого пропускает коды
с КПТШ на обмотку реле Т. Это сделано для того, чтобы в случае пробоя изостыка
напряжение на заряд конденсатора С1 и С3 не проходило, и до срабатывания реле И
цепь включения реле В была разомкнута и, соответственно, реле 1А не встанет под
ток.
От опасных последствий пробоя изостыка защищаются включением в цепь
тыловых контактов реле ПТ, проверяется асинхронная работа трансмиттерного реле
Т и импульсного реле И.
Выбор огней светофоров осуществляется контактами сигнального реле З1 и
повторителями реле Ж.
С целью повышения безопасности функционирования схемы она построена таким
образом, что включение разрешающих огней происходит через последовательно
включённые фронтовые контакты реле Ж2 и Ж4, а их выключение и включение
запрещающего сигнала происходит при обесточивании любого из этих реле.
Огневые реле выполняют следующие функции:
РО - контроль основных нитей ламп разрешающих огней в горячем состоянии и
включение резервных нитей при неисправности основных;
О - контроль основной нити лампы красного огня в холодном и горячем
состояниях и включение резервной нити;
ОД - контроль резервной нити лампы красного огня в холодном и горячем
состояниях.
Конденсаторы СИ1, СИ2 и СИ3 вместе с
резисторами RИ1, RИ2 и RИ3 образуют искрогасительные контуры.
Резисторы RО1 и RО2 ограничивают зарядный ток конденсаторов С1 и С3, защищая
контакты в этих цепях в момент их включения.
Реле А - контроль основного питания. Реле А1 - контроль резервного
питания.
ОИ - обратный повторитель импульсного реле.
ДСН, ОДСН - провода светомаскировочного режима, а также для
диспетчерского контроля за состоянием сигнальной точки.
К, ОК - провода контроля перегона четырехпроводной схемы смены
направления на однопутном участке;
Электрообогрев шкафа включается автоматически установленным в верхней
части шкафа датчиком температуры типа ДТКБ-49.
Автоматический выключатель многократного действия АВМ для защиты
аппаратуры от перенапряжений.
Выравниватель ВОЦН-220 предназначен для защиты устройств железнодорожной
автоматики и телемеханики от импульсных перенапряжений, возникающих в
результате грозовых разрядов, коротких замыканий и коммутаций в контактной сети
и электрических сетях высокого и среднего напряжения.
Разрядник РВНШ 250 предназначен для защиты от перенапряжений
электрических цепей аппаратуры автоматики с рабочим напряжением до 250 В.
Блок БКТ-2М - коммутатор тока бесконтактный.
РОБС - 3А предназначен для работы в двухниточных рельсовых цепях
переменного тока в качестве ограничивающих сопротивлений и служит для
ограничения тока при шунтированной рельсовой цепи (реактор однофазный броневой
сухой).
ПРТ-А - путевой релейный трансформатор автоблокировочный.
По заданию участок занят, коды отсутствуют. Схемы сигнальной установки с
положением контактов реле представлены в приложении Б.
5. Временная диаграмма работы дешифраторной ячейки
Временная диаграмма работы дешифраторной ячейки в момент времени приема
кода З, представлена на рисунке 5.1.

6. Схема увязки со станцией по прибытию и отправлению
По заданию поезд находится на втором участке удаления [3].
Увязка по прибытию предназначена для решения следующих задач [7]:
согласование показаний предвходного и входного светофоров;
извещение ДСП о приближении поезда к станции за два блок-участка.
Данная схема состоит из двух цепей: «зс-озс», предназначенную для увязки
показаний светофоров. Цепь «и-ои», предназначена для извещения ДСП о
приближении поезда, она необходимо для своевременного открытия входного сигнала
и исключения остановки подвижного состава перед станцией.
Так
как поезд находится на втором участке удаления, схема по приёму останется в
исходном состоянии. Участки Ч1УП, Ч2УП свободны. На входном светофоре Ч красный
огонь - ЧРУ без тока (ЧРУ исправность и горение разрешающей лампы светофора).
Маршрут на главный путь - ЧГМ1
. Так как
участки приближения свободны в РШ предвходной сигнальной точке сигнальное реле
Ж находится под током, реле ЧИП и его повторители Ч1ИП, получают питание прямой
полярности. Ч1ИП и Ч2ИП у ДСП включают индикацию, которая говорит о свободности
участков приближения.
Контакт
реле ЧПН контролирует установку станции на прием. Питание линейных цепей
осуществляется блоками БПШ.
БКР-76
- блок конденсаторов и резисторов, для получения замедления на отпускание якоря
реле.
Рассмотрим
схему увязки по отправлению. Данная схема необходима для информации о состоянии
двух участков удаления и выбора огня на выходном сигнале. Увязка выходного
светофора с первой сигнальной установкой по удалению при нахождении поезда на
втором участке удаления идет следующим образом. РЦ Ч1УУ кодируется кодом З, Ж
или КЖ в зависимости от показания светофора первой сигнальной установки. При
разрешающем показаний этого светофора в РЦ Ч1УУ поступает код З или Ж.
Аппаратура приема и расшифровки кодов устанавливается на посту ЭЦ станции. Коды
из РЦ Ч1УУ принимает импульсное реле ЧОИ, коды расшифровывает дешифратором и
установленными на его выходе реле ЧЖ и ЧЗ. Через контакты этих реле создаются
цепи индикации занятости или свободности УУ.
ЧКО
- контроль исправности светофорной лампы красного огня на входных светофорах.
БКПТ - 5 бесконтактный кодовый путевой трансмиттер,
При
занятости Ч2УУ реле ЧЖ под током (Ч1УУ свободен), а ЧЗ обесточено.
Схемы
увязки со станцией представлена в приложении В.
7. Схема кодирования РЦ в маршрутах приема и отправления
) Схема кодирования по приему.
По заданию - прием по пригласительному сигналу. Принимаем поезд на первый
путь. Так как на входном светофоре Н пригласительный сигнал, реле НПС под
током.
НКВ - групповое кодово-включающие реле, проверяет условия, разрешающие
кодирование маршрутов приема.
НIКВ, IIПНКВ, 1-7СНКВ индивидуальные кодово-включающие реле -
обеспечивают последовательность подключения рельсовых цепей к шинам
кодирования.
Раз НПС под током то НIКВ не
получает питание, а, следовательно, и реле НПНКВ. Но участок IП ложно занят и реле IПНКВ под током.
НIС - контакт поездного сигнального
реле - обеспечивающий включение разрешающих огней на выходном светофоре.
НIЛС - контакт дополнительного
сигнального реле, обеспечивающий выбор зеленого или желтого сигнального огня на
выходном светофоре (реле НIЛС
проверяет свободность второго блок-участка удаления на перегоне).
НГТ - групповое трансмиттерное реле, обеспечивает посылку кодов в
рельсовые цепи через шины кодирования.
Индивидуальные кодово-включающие реле становятся под ток при вступлении
поезда на участок, предшествующий рассматриваемому и выключаются при занятии
секции, последующей за рассматриваемой секцией. [8]
Выбор кода осуществляется контактами сигнальных реле НIС и НIЛС и зависит от показаний выходного светофора Н1.
) Схема кодирования по отправлению.
НОКВ - групповое кодово-включающие реле, проверяет условия, разрешающие
кодирование маршрутов отправления.
НСКВ - индивидуальное кодово-включающее реле для включения кодирования
отдельных секций маршрутов.
НОИ - импульсное путевое реле рельсовой цепи первого участка удаления,
прилегающего к станции. Пусть первый участок удаления свободен, тогда НОИ под
током, следовательно, встает под ток реле НОТ.
Реле НОКВ в нормальном состоянии выключено и включается по цепи П - НIПС - 2-10З -
- 10МК -
- IП - НОКВ - М при выполнении следующих условий: стрелки по
маршрута переведены в соответствующие положения (реле 10МК обесточено);все
секции в маршруте замкнуты (замыкающее реле 2-10З последней по ходу движения
секции обесточено); выходной сигнал открыт, и пригласительный сигнал на нем не горит
(реле НIIС под током, ЧIIПС обесточено); первый участок
удаления свободен (реле НЖ под током); путь отправления занят (реле IП обесточено). [8]
При вступлении поезда на маршрут закрывается выходной светофор. Реле НIIС обесточится. Реле НОКВ будет получать
питание по цепи самоблокировки через тыловые контакты путевых реле поочередно
всех участков маршрута. Выключается реле НОКВ в момент вступления поезда на
первый участок удаления, когда обесточивается реле НЖ.
Передача кодов в рельсовые цепи посылаются контактом реле НОИ.
В случае отправления поезда с бокового пути сначала срабатывает
вспомогательное реле НВОКВ. Кодирование начинается с секции, следующей за
секцией, содержащей стрелку, ведущую на главный путь - с секции НДП.
Схемы кодирования РЦ в маршрутах приема и отправления представлены в
приложении Г.
8. Схема смены направления - четырехпроводная
Возможны два режима изменения направления движения - нормальный и
вспомогательный. Нормальный режим применяется только при свободном состоянии
перегона, вспомогательный - в том случае если перегон свободен, но неисправна
рельсовая цепь одного из блок-участков, что дает ложную занятость перегона.
Рассмотрим нормальный режим.
Инициатором изменения направления движения является ДСП станции,
настроенной на прием. ДСП станции, настроенной на прием, имеет ограничение в
количестве путей, поэтому возникает необходимость в отправлении поездов.
Станция, настроенная на прием, является станцией инициатором, предположим
это станция А четного направления. ДСП станции А нажимает на кнопку смены
направления. После проверки свободности перегона и подтверждения согласия ДСП
станции Б, нажатием кнопки ДСО происходит переключение обоих станций на прием,
а затем включение станции инициатора смены направления на отправление.
В случае ложной занятости перегона имеется возможность вспомогательной
смены направления с нажатием соответствующих кнопок на обоих станциях.
Питание цепи контроля перегона осуществляется со станции отправления,
главное реле контроля перегона ЧКП находится на станции приема, в данном случае
на станции А. Питание цепи смены направления осуществляется со станции приема,
а главное реле смены направления НСНЛ находится на станции отправления.
Для контроля состояния перегона и установленного направления движения на
табло каждого дежурного по станции предусмотрены четыре лампочки, две из
которых контролируют состояние перегона (ЧКП или НКП) и две - установленное
направление движения (ЧО, ЧП или НО и НП).
Алгоритм работы разворота перегона в нормальном режиме:
. ДСП станции А настроенной на прием нажимает кнопку ЧСН (четная смена
направления) и с проверкой свободности перегона (контакт ЧКП) встает под ток
реле ЧНС (начало смены). Реле ЧНС своим контактом разрывает цепь Н-ОН и реле
НСНЛ обесточивается выключая главное реле смены направления НСН (лист 4).
Тыловым контактом НСН включается зеленая мигающая лампочка на табло станции Б,
говорящая ДСП о том что можно давать согласие.
. ДСП станции настроенной на отправление нажимает кнопку дачи согласия
НДСО. В цепи дачи согласия проверяется 4 условия: свободность перегона: Н1зП
(занятие перегона); ДСП станции А все еще хочет осуществить разворот перегона:
НСНЛ; станция Б действительно на отправлении: НСН2; ДСП станции Б дает согласие
на смену: реле НДСО. Контактом реле НДСО (лист 3) меняется полярность в цепи
К-ОК (реле ЧКП обратной полярности).
. Контакт реле ЧКП обратной полярности подает питание на реле ЧВ
(включающее реле). На этом этапе свободность перегона была проверена в
последний раз. Как только реле ЧВ встало под ток, кнопку ЧСН можно отпустить,
об этом будет говорит мигающая желтая лампочка на табло. Мигающее показание
включится как только сработает реле ЧИзП фронтовым контактом ЧВ (лист 2). Реле
ЧВ разрывает цепь контроля перегона К-ОК тыловым контактом ЧПН1 (реле ЧПН1 не
получает питание - лист 2). В цепи Н-ОН фронтовым контактом ЧВ встает под ток
обратной полярности реле НСНЛ, которое поставит под ток обратной полярности
реле НСН и включит реле НПН1, отключив НСНВ которое выключит НСНД. Как только
выключилось НСНВ, обесточится реле НВ (лист 3), также отключились реле НСН2 и
НСН1 (лист 4). Когда замигала желтая лампочка на табло у ДСП станции Б кнопку
ДСО можно отпустить. Отключившись реле НИзП (лист 4) включит желтую лампочку.
Обе станции встали на прием.
. Реле ЧВКП тыловым контактом обесточивает реле ЧПКПД (повторитель
контроля пернрна дополнительный), который выключает реле ЧПКП. Теперь в цепи
Н-ОН встает под ток прямой полярности реле ЧСНЛ включая реле ЧСН1 и появляется
индикация на табло станции А - зеленая лампа, станция встала на отправление,
перегон развернули.
Схемы смены направления приведены в приложении Д.
9. Схемы управления переездом, оснащенным ПАШ и УЗП
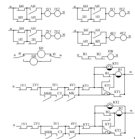
.1 Схема извещения о приближении поезда к переезду
В типовых устройствах контроль приближения к переезду и контроль
проследования поезда через переезд осуществляется посредством четырёх участков
два участка приближения к переезду (1У и 2У) и два участка удаления от переезда
(3У и 4У).
Для работы тональных рельсовых цепей наложения используются амплитудно-модулированные
сигналы с несущими частотами 420, 480, 580, 720, 780 Гц и частотами модуляции 8
или 12 Гц.
Рисунок 9.1 - Схема извещения о приближении поезда к переезду
В схеме извещения о приближении поезда к переезду применяются следующие
реле:
АН, БН - фиксируют направление движения соответственно в направлении А и
Б. Реле АН и БН коммутируют участки приближения к переезду в зависимости от
заданного направления движения;
У - контролирует независимо от направления движения поезда свободность
первого по ходу движения поезда участка приближения, включающего в себя одну
или несколько тональных рельсовых цепей;
У - контролирует свободность второго участка приближения независимо от
направления движения;
ЗУ - контролирует свободность третьего по ходу движения поезда участка
приближения независимо от направления движения;
У - контролирует свободность четвертого по ходу движения поезда участка
приближения независимо от направления движения;
КТ1, КТ2 - исключают возможность открытия переезда в случае
кратковременной потере шунта в рельсовых цепях.
Включающее реле В через свой повторитель дает команду на закрытие и
открытие переезда.
Рисунок 9.2 - Схема реле-счетчиков
Реле-счетчики контролируют последовательное занятие участков поездом. Они
вступают в работу: С1, С1З, СМ, СМ1, СМ2 - при занятии первого участка, С2 -
при занятии второго, ПС2 и С3 - при занятии третьего. Реле СК контролирует
свободность комплекта реле-счетчиков и блокировочных реле.
С1 - фиксирует занятие первого участка приближения при свободности
участков 2У, ЗУ, 4У. Блок выдержки времени БВВ и реле С13 задают поезду время
следования по первому участку приближения, которое определяется исходя из
максимальной расчетной скорости движения, заданной на этом участке.
С2 - фиксирует занятие второго участка приближения не ранее времени,
заданного блоком БВВ и реле С13;
СЗ - фиксирует занятие третьего участка приближения в заданный интервал
времени порядка 3 с;, B2 - включающие реле, которые являются повторителями реле
контроля свободности участков приближения 1У, 2У, ЗУ и 4У.
Фронтовым контактом реле МБ шунтируется контакт реле участка 4У, а реле
МБВ - контакт реле участка ЗУ. Кроме того, они выполняют защитную функцию от неправильной
работы устройств при потере шунта в рельсовых цепях, так как их возбуждение
возможно только после замыкания фронтового контакта термоэлемента КТ, имеющего
выдержку времени на замыкание контакта 8 - 18 с;
Блокировочные реле контролируют последовательное освобождение участков.

Блокировочные реле БВ, ПБВ и МБВ вступают в работу при занятии третьего
участка, а блокировочные реле Б, ПБ, Б1 и МБ при занятии последнего участка.
Ключевым реле для схем является МБВ, дающее разрешение через реле В и его
повторитель ПВ на открытие переезда. Реле МБВ подтверждает занятие третьего
участка при освобождении второго, реле МБ контролирует проследование поезда по
участку 4У. При правильной работе схем реле-счетчиков и блокировочных реле
переезд открывается после освобождения участков БП и 2П - для нечетного
направления движения и участков АП и 1П - для четного направления движения.
Наличие у ТРЦ зон дополнительного шунтирования (до 10% от длины РЦ) гарантирует
контроль зоны переезда ТРЦ 1П, так как ее питающий конец распложен на
расстоянии 5 м от границы переезда. Расстояние от точки подключения аппаратуры
к рельсовой линии до места нахождения колесной пары, вызывающей обесточивание
путевого реле, включенного на выходе путевого приемника, называется зоной
дополнительного шунтирования. При возникновении отказов в схеме реле-счетчиков
и блокировочных реле переезд открывается только после освобождения всех четырех
участков.
Алгоритм работы.
При отсутствии поезда на участке приближения к переезду под током реле
1У1, 1У2, 2У1, 2У2, ЗУ1, ЗУ2, 4У1, 4У2, БН, КТ1, КТ2, Bl, B2. Переезд открыт.
При замыкании фронтовых контактов реле БН, 1У1, 1У2 контролируют
свободность участка АП, реле 2У1,2У2 - участка 1П; реле ЗУ1, ЗУ2 - участка 2П;
реле 4У1, 4У2 - участка БП. При обратном направлении движения и возбуждении
реле АН реле 1У1, 1У2 контролирует свободность участка БП; реле 2У1, 2У2 -
участка 2П; реле ЗУ1, ЗУ2 - участка 1П; реле 4У1, 4У2 - участка АП.
С момента вступления поезда на участок АП в направлении Б обесточиваются
реле 1У1,1У2, а затем реле В1, В2, КТ1, КТ2. Через тыловой контакт реле 1У1 с
проверкой свободного состояния участков 2У, ЗУ и 4У срабатывает реле С1 и
фиксирует занятость первого участка приближения. Фронтовыми контактами реле С1
включается блок выдержки времени БВВ, настроенный на выдержку времени 15 с. По
истечении 15 с срабатывает реле С13. При вступлении поезда на участок 1П
обесточиваются реле 2У1, 2У2, фронтовым контактом которого включается
реле-счетчик С1, а тыловым контактом замыкается цепь срабатывания реле-счетчика
С2. Полностью эта цепь замкнется с проверкой свободности впереди расположенных
участков приближения ЗУ и 4У и при срабатывании реле С13. После срабатывания
реле-счетчик С2 самоблокируется. Контактом реле С1 выключается питание реле CM,
CM1, СМ2.
По условиям работы схемы контроля проследования переезда третий участок
приближения должен заниматься после занятия второго участка приближения, но не
ранее чем через 3 с (время проследования второго участка приближения). При
вступлении поезда на участок 2П обесточиваются реле ЗУ1, 3У2. Тыловым контактом
реле ЗУ1 включается реле-счетчик СЗ, который после срабатывания
самоблокируется, а фронтовым контактом реле ЗУ1 выключается реле-счетчик С2. На
время замедления на отпускание якоря реле С2 через фронтовые контакты реле СЗ
заряжается конденсатор БК и одновременно замыкается цепь возбуждения реле БВ.
После этого через фронтовой контакт реле БВ и тыловой контакт ЗУ2 включается реле
ПБВ и заряжается подключенный параллельно конденсатор.
С этого момента реле БВ и ПБВ начинают работать в импульсном режиме по
принципу пульс-пары. Через фронтовой контакт реле БВ возбуждается реле ПБВ.
Работа пульс-пары продолжается при занятом участке 2П до тех пор, пока
полностью не разрядится емкость конденсатора БК. С момента занятия поездом
участка БП обесточиваются реле 4У1, 4У2. Тыловыми контактами реле 4У2, МБ, С1 и
фронтовыми контактами реле МБВ и СЗ создается мгновенная цепь заряда конденсатора
БК и цепь включения реле Б. Занятие участка удаления БП должно быть не более
чем через 30 секунд с момента занятия участка 2П. Время 30 с обеспечивают реле
БВ, ПБВ и МБВ. Реле СЗ и ПС2 остаются под током через фронтовой контакт реле
МБ. После освобождения участка 1П за время замедления на отпускание реле ПС2
через фронтовой контакт этого реле и реле 2У1и контакт реле СМ2 произойдет
вторичный мгновенный заряд конденсатора БК и возбуждение реле БВ. Через
фронтовые контакты реле 1У1, 1У2, 2У1, 2У2, МБВ, СЗ и тыловой контакт
термоэлемента срабатывают реле КТ1 и КТ2.
При освобождении поездом участка 2П через фронтовые контакты реле МБВ,
СЗ, МБ, 2У2, ЗУ2 и тыловые контакты реле 4У2, СМ2, С2 за время замедления на
отпускание реле СЗ вторично замыкается мгновенная цепь заряда конденсатора БК,
обеспечивающего время работы реле Б, ПБ, которая продолжается до тех пор, пока
поезд не освободит участок БП. В течение 8 - 18 с нагревается термоэлемент,
после чего включаются реле В1, B2, ПВ. Если за время работы реле Б, ПБ поезд
освободит участок удаления 4У, то все элементы схемы придут в исходное
состояние. В направлении А устройства АПС начинают работать с момента
вступления поезда на участок БП по аналогичному алгоритму.
9.2 Схема ПАШ и УЗП
По заданию неисправны аккумуляторные батареи. Проверка состояния
аккумуляторов на переездах производится ШН, ШЦМ с периодичностью один раз в
четыре недели (с дежурным работником; без дежурного работника, устройства,
которые контролируются у ДСП) и один раз в две недели (без дежурного работника,
исправность которых не контролируется у ДСП) [10]. Алгоритм работы ПАШ и УЗП
представлен ниже.
Для управления работой переездных устройств используется реле ПВ. При
приближении поезда к переезду реле ПВ обесточивается, подключая питание к звонку
переездной установки и выключает управляющее реле У. Последнее подает питание
на красные огни переездных светофоров через контакты мигающего реле М и
отключает питание включающего медленнодействующего реле ВМ. После необходимой
для освобождения переезда от автотранспорта выдержки времени реле ВМ
обесточивается и выключает реле ВЭМ. Это реле прекращает подачу питания на
электромагнитную защелку ЭМ, вследствие чего шлагбаум опускается под
собственным весом.
Затем переключаются контакты SQ1 и SQ2 контроля опущенного положения
бруса, что вызывает отключение звонка (реле ЗУ↑) и подготовку цепи для
подъема шлагбаума (реле ВД↑). Кроме того, при обесточивании реле ПВ и У
создается цепь питания для реле ВЭД, исключающего длительную работу двигателя
на фрикцию при подъеме бруса. [9]
Рисунок 9.4 - Схема управления ПАШ
Рисунок 9.5 - Схема управления УЗП
В схемах переездов, оснащенных устройствами заграждения УЗП, после
проверки опущенного положения шлагбаума (реле ЗУ) встает под ток реле включения
устройств заграждения ВУЗ. Это реле имеет медленнодействующий на отпускание и
подъем (в действующих схемах замедление на подъем обеспечивается применением
блока выдержки времени БВМШ) повторитель ВУЗМ. Благодаря этому, любое
переключение реле ВУЗ сопровождается кратковременным несовпадением состояния
основного реле и его повторителя, вследствие чего получает питание фрикционное
реле Ф, управляющее приводами устройств заграждения. Замедление на отпускание
реле Ф определяет необходимое время для подъема или опускания заграждающих
устройств и исключает длительную работу двигателей на фрикцию.
Если заграждающие устройства закрылись при нахождении автомашин в зоне
переезда, необходимо обеспечить их выезд и затем вновь поднять крышки. Для
этого возле заграждающих устройств установлены датчики контроля зоны крышек
КЗК, работающие по принципу радиолокации. Срабатывание датчиков вызывает
изменение положения соответствующих реле РЗК, имеющих медленнодействующие
повторители РЗКМ. Их работа, аналогично асинхронной работе реле ВУЗ и ВУЗМ,
обеспечивает кратковременную подачу питания на фрикционное реле Ф, что приводит
к изменению положения устройств заграждения.
После проследования поезда становится под ток реле ПВ, подающее
напряжение через контакты реле ВЭМ на электромагнитную защелку. Крышки
устройств заграждения опускаются, что создает цепь (реле ПК или выключаемое
дежурным по переезду реле нормализации Н, если при опущенной крышке отсутствует
контроль положения стрелочного перевода) для подъема заградительного бруса.
Встав под ток, реле открытия шлагбаума ОШ подключает рабочее напряжение к
двигателю, и брус поднимается. По завершению перевода обесточивается реле ВД и
затем ОШ, а через контакты контроля положения шлагбаума получает питание реле У
и выключает огни переездных сигналов.
Заключение
В данном курсовом проекте мы выполнили расстановку светофоров путем
нанесения засечек по кривой скорости; спроектировали путевой плана перегона с
переездом, на которой определили количество жил кабелей и их протяжённость
между устройствами автоматики и телемеханики на сигнальных точках; провели
расчет пяти режимов рельсовой цепи (нормальный; шунтовой; контрольный;
короткого замыкания; АЛС).
Так же рассмотрели схемы сигнальной точки автоблокировки с указанием
контактов реле в соответствии с вариантом и построили временную диаграмму
работы дешифраторной ячейки. С учётом заданных отказов, а также при нахождении
поезда на заданных участках рассмотрели следующие схемы: схема увязки со
станцией по прибытию и отправлению, четырехпроходная схема смены направления,
схема кодирования РЦ в маршрутах приема и отправления, а также схемы управления
переездом, оснащенным ПАШ и УЗП.
Таким образом, при выполнении курсового проекта мы приобрели навыки
работы с типовыми материалами для проектирования, справочной литературой, а
также закрепили знания по системам автоматики и телемеханики на перегонах.
светофор переезд автоблокировка замыкание
Библиографический список
1. Эксплуатационные основы проектирования систем
железнодорожной автоматики и телемеханики: Методические указания к курсовому и
дипломному проектированию/В.С. Лазарчук, Г.Г. Ахмедзянов; Омский гос. ун-т
путей сообщения. Омск, 2014, 34 с.
. Железнодорожные станции и узлы (задачи, примеры,
расчеты)/Н. В. Правдин, Т. С. Банек, В. Я. Негрей и др.; Под ред. Н. В.
Правдина. - М.: Транспорт, 1984. - 296 с.
. Автоблокировка числового кода: Методические указания по
курсовому проектированию / А. Г. Ходкевич; Омский гос. ун-т путей сообщения.
Омск, 2011. 28с.
. АБ-2К-50-АТ-82. Двухпутная кодовая автоблокировка
переменного тока 50 Гц с автономной тягой: В 3 альбомах /
Гипротранссигналсвязь. СПб, 1983. 1-й альбом - 44 с.; 2-й - 31 с.; 3-й - 61 с.
. Лазарчук В. С. Устройства управления и контроля перегонных
систем автоматики и телемеханики / В. С. Лазарчук, А. Г. Ходкевич / Омский гос.
ун-т путей сообщения. Омск, 2009. Ч. 2. 32 с.
. В.С. Аркатов и др. Рельсовые цепи магистральных железных
дорог, справочник - 3-е издание, ООО Миссия. - М 2006 г. - 496с.
. Автоматика и телемеханика на перегонах. Часть 1:
Методические указания к лабораторным работам по дисциплине «Автоматика и
телемеханика на перегонах» / С. В. Власенко, А. Г. Ходкевич; Омский гос. ун-т
путей сообщения. Омск, 2007. 34с.
. Кравченко Е.И. Кодирование рельсовых цепей / Е. И.
Кравченко, Д. В. Швалов. М.: Маршрут. 2006. 134 с.
. Автоматика и телемеханика на перегонах. Часть 2:
Методические указания к лабораторным работам по дисциплине «Автоматика и
телемеханика на перегонах» / С. В. Власенко, А. Г. Ходкевич; Омский гос. ун-т
путей сообщения. Омск, 2007. 34с.
. Инструкция по технической эксплуатации устройств и систем
сигнализации, централизации и блокировки от «17» апреля 2014г. № 939р.