Расчет оснований и фундаментов здания химического корпуса
Реферат
Курсовой проект включает: __ страниц, __ рисунков, __ таблиц, __
источников, 1 лист (формата А3) графического материала.
ОСНОВАНИЯ И ФУНДАМЕНТЫ; ФИЗИКО-МЕХАНИЧЕСКИЕ ХАРАКТЕРИСТИКИ ГРУНТА;
РАСЧЕТНОЕ СОПРОТИВЛЕНИЕ ОСНОВАНИЯ; ФУНДАМЕНТЫ МЕЛКОГО ЗАЛОЖЕНИЯ; СВАЙНЫЕ
ФУНДАМЕНТЫ; ДЕФОРМАЦИЯ ОСНОВАНИЯ; ТЕХНИКО-ЭКОНОМИЧЕСКОЕ ОБОСНОВАНИЕ.
Объектом курсовой работы является расчет оснований и фундаментов здания
химического корпуса.
В результате работы над проектом установлены физико-механические
характеристики грунтов и дано их наименование, определено расчетное
сопротивление основания, выполнены расчеты фундаментов мелкого заложения.
Оглавление
1. ЗАДАНИЕ НА КУРСОВОЕ ПРОЕКТИРОВАНИЕ.
. АНАЛИЗ КОНСТРУКТИВНЫХ ОСОБЕННОСТЕЙ ЗДАНИЯ И ХАРАКТЕРА
НАГРУЗОК НА ОСНОВАНИЕ.
. СОСТАВ ГРУНТОВ, АНАЛИЗ ИНЖЕНЕРНО-ГЕОЛОГИЧЕСКИХ УСЛОВИЙ И
ОЦЕНКА РАСЧЕТНОГО СОПРОТИВЛЕНИЯ ГРУНТОВ.
. ВЫБОР ВОЗМОЖНЫХ ТЕХНИЧЕСКИХ РЕШЕНИЙ ФУНДАМЕНТОВ.
. РАСЧЕТ ФУНДАМЕНТОВ МЕЛКОГО ЗАЛОЖЕНИЯ.
. РАСЧЕТ ОСАДОК ФУНДАМЕНТА МЕЛКОГО ЗАЛОЖЕНИЯ.
. БИБЛИОГРАФИЧЕСКИЙ СПИСОК
1.
ЗАДАНИЕ НА КУРСОВОЕ ПРОЕКТИРОВАНИЕ
Ф.И.О. студента: Канипов Айдар
Вариант: 10; А11 - Б11
Здание: Школа на 9 классов
Место строительства: г. Харьков
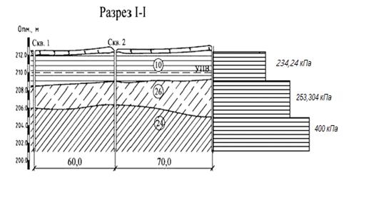
Номер инженерно-геологического разреза: скважина 2, разреза I-I
Физико-механические характеристики слоев грунта:
Таблица 1. Показатели физико-механических свойств грунтов.
|
Номер пробы грунта
|
Удель-ный вес грунта γ, кН/м3
|
Удельный вес частиц γS, кН/м3
|
Влажность
|
Коэффи-циент фильтра-ции КФ, см/с
|
Удель-ное сцепление с, кПа (кгс/см2)
|
Угол внут-рен-него тре-ния φ, град
|
Модуль деформации Е, МПа (кгс/см2)
|
|
|
|
природная ω
|
на границе пластичности ωР
|
на границе текучести ωL
|
|
|
|
|
|
4
|
19.6
|
26.4
|
0.23
|
0.15
|
0.30
|
2.4·10-6
|
41 (0.41)
|
25
|
20 (200)
|
|
21
|
19.6
|
27.0
|
0.15
|
0.11
|
0.20
|
2.4·10-6
|
42(0.42)
|
26
|
22(220)
|
|
13
|
19.1
|
26.4
|
0.17
|
-
|
-
|
3.2·10-2
|
-
|
34
|
30 (300)
|
Таблица 2. Гранулометрический состав песчаных грунтов, %.
|
Номер пробы грунта
|
Размер частиц d , мм
|
|
> 2,0
|
0,5…2,0
|
0,25…0,5
|
0,1…0,25
|
< 0,1
|
|
13
|
4,0
|
23,6
|
32,4
|
19,5
|
20,5
|
Отметка
поверхности природного рельефа :__+208,0__ м
УПВ = ___+204,0___ м
Вариант нагружения:
Фундамент 1: N = _1,34_ МН; M = _0,23_ МН*м; Q = _0,02_ МН.
Фундамент 2: N = _1,63_ МН; M = _-0,26_ МН*м; Q = _-0,02_ МН.
Фундамент 3: N = _0,55_ МН; M = _0,12_ МН*м; Q = _0,01_ МН.
Фундамент 4: N = _0,56_ МН; M = _0,29_ МН*м; Q = __-__ МН.
ЗАДАНИЕ ПОЛУЧЕНО ______ _______________ 20__ г.
(число) (месяц)
Преподаватель Хафизов А. Р.
. анализ конструктивных особенностей здания и
характера нагрузок на основание
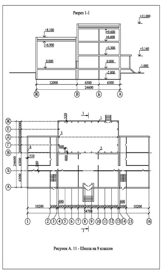
Школа на 9 классов представляет собой четырехэтажное общественное
бескрановое здание с полным каркасом с подвалом. Высота здания 11,0 м, а
глубина подвала -2,8 м. Размеры в плане 55х24,6м. Колонны крайнего ряда,
внутренние колонны и колонны фахверка имеют размер 400х400мм.
Каркас здания, кроме полезной, несет еще ветровую и снеговую нагрузку,
поэтому все фундаменты воспринимают еще моментные усилия и поперечную силу.
3. состав грунтов, анализ инженерно-геологических
условий и оценка расчетного сопротивления грунтов
Глубина промерзания в г. Харьков = 120 см, УПВ на отметке находится на
280 см ниже глубины промерзания.
) Удельный вес грунта с учетом взвешивающего действия воды определяется
по формуле:
(3.1)
где:
γsb
- удельный вес с учетом взвешивающего действия воды, кН/м3;
γs -
удельный вес частиц грунта, кН/м3;
γw -
удельный вес воды, принимаемый 10 кН/м3;
е
- коэффициент пористости.
ИГЭ
№ 4:
= 9,9 кН/м3;
ИГЭ
№ 21:
= 10,73 кН/м3;
ИГЭ
№ 13:
= 10,53 кН/м3.
)
Коэффициент пористости грунта определяется по формуле:
(3.2)
где:
γs
- удельный вес частиц грунта, кН/м3;
w - природная
влажность;
γ - удельный вес грунта, кН/м3.
ИГЭ
№ 4: е = {(26,4 * (1+0,23)) / 19,6} - 1 = 0,65;
ИГЭ
№ 21: е = {(27* (1+0,15)) / 19,6} - 1 = 0,58;
ИГЭ
№ 13: е = {(26,0 * (1+0,11)) / 18,9} - 1 = 0,52.
)
Степень влажности или коэффициент водонасыщения определяется по формуле:
r = (w * γs) / (e * γw) (3.3)
где:
w - природная влажность;
γs -
удельный вес частиц грунта, кН/м3;
е
- коэффициент пористости;
γw - удельный
вес воды, принимаемый 10кН/м3;
ИГЭ
№ 4: Sr = (0,23*26,4) / (0,65*10) = 0,92
ИГЭ
№ 21: Sr = (0,15*27) / (0,58*10) = 0,69
ИГЭ
№ 13: Sr = (0,11*26,0) / (0,52*10) = 0,55
)
Удельный вес сухого грунта вычисляем по формуле:
(3.4)
где:
γd
- удельный вес сухого грунта, кН/м3;
w - природная
влажность;
γ - удельный вес грунта, кН/м3;
ИГЭ
№ 4:
γd = 19,6 / (1 + 0,23) = 15,93 кН/м3
ИГЭ
№ 21:
γd = 19,6 / (1 + 0,15) = 17,04 кН/м3
ИГЭ
№ 13:
γd = 18,9 / (1 + 0,11) = 17,03 кН/м3
)
Число пластичности определяется по формуле:
p = WL - WP, (3.5)
где:
WL - влажность на границе текучести, %;
WP -
влажность на границе пластичности (раскатывания), %.
ИГЭ
№ 4: Ip = 0,3 - 0,15 = 0,15.
ИГЭ
№ 21: Ip = 0,2 - 0,11 = 0,09.
)
Показатель текучести - показатель состояния (консистенции) глинистых грунтов,
определяется по формуле:
L = (W - WP) / Ip, (3.6)
где: W - природная влажность;
WP - влажность на границе пластичности (раскатывания), %
Ip - число пластичности;
ИГЭ № 4: IL =
(0,23 - 0,15) / 0,15 = 0,53
ИГЭ № 21: IL =
(0,15- 0,11) / 0,09 = 0,44
) Дадим полное наименование грунтам.
Для наименования грунтов используем таблицы из литературы [1], [5] .
ИГЭ № 4: По числу пластичности грунт - суглинок. По показателю текучести
суглинок тугопластичный, легкий, насыщенный водой, с коэффициентом пористости е
=0, 65. Проинтерполировав, получили расчетное сопротивление слоя грунта R0= 234,24 кПа
ИГЭ №21: По числу пластичности грунт - суглинок. Полутвердый, насыщенный
водой, с коэффициентом пористости е =0, 58. Проинтерполировав, получили
расчетное сопротивление слоя грунта R0= 253,304
кПа.
ИГЭ №13: Песок средней крупности; по плотности сложения е = 0,62, что
означает, что песок средней плотности. По степени влажности Sr=0,72, следовательно, песок влажный -
средней степени водонасыщения. По степени неоднородности гранулометрического
состава Сu= d60 / d10 = 0,414/0,048= 8,63, получаем
неоднородный грунт. Расчетное сопротивление R0= 400кПа.
Рисунок 2. Эпюра расчетных давлений в слоях грунта.
Таблица 3. Сводная ведомость показателей
физико-механических свойств грунтов.
|
Физико - механические характеристики
|
Усл.
|
Ед.
|
Формула расчета
|
Слои грунта
|
|
обозн.
|
изм.
|
|
№ 4
|
№ 21
|
№ 13
|
|
1
|
2
|
3
|
4
|
5
|
6
|
7
|
|
Мощность слоя
|
h
|
м
|
|
1
|
3
|
4
|
|
Удельный вес грунта при естественной влажности,
|
γ
|
кН/м3
|
γ= ρ g
|
19,6
|
19,6
|
19,1
|
|
Удельный вес твердых частиц
|
γs
|
кН/м3
|
γs= ρs g
|
26,4
|
27
|
26,4
|
|
Естественная влажность
|
w
|
дол.ед.
|
|
0,23
|
0,15
|
0,17
|
|
Удельный вес сухого грунта
|
γd
|
кН/м3
|
15,9317,0416,3
|
|
|
|
|
Коэффициент пористости
|
е
|
д.е.
|
0,6560,5840,62
|
|
|
|
|
Удельный вес грунта с учетом взвешивающего действия воды
|
γsb,
|
кН/м3
|
9,910,7310,12
|
|
|
|
|
Степень влажности грунта
|
Sг
|
д.е.
|
0,920,690,72
|
|
|
|
|
Влажность на границе текучести
|
wL
|
д.е.
|
|
0,3
|
0,2
|
-
|
|
Влажность на границе пластичности
|
wp
|
д.е.
|
|
0,15
|
0,11
|
-
|
|
Число пластичности грунта
|
Ip
|
д.е.
|
Ip=wL-wp
|
0,15
|
0,09
|
-
|
|
Показатель текучести
|
IL
|
д.е.
|
IL= 0,530,44-
|
|
|
|
|
Удельное сцепление
|
с
|
кПа
|
|
41
|
42
|
-
|
|
Угол внутреннего трения
|
j
|
град.
|
|
25
|
26
|
34
|
|
Модуль деформации грунта
|
Е
|
МПа
|
|
20
|
22
|
30
|
|
Условное расчетное сопротивление
|
R0
|
кПа
|
|
234,24
|
253,3
|
400
|
|
Коэффициент фильтрации
|
Кф
|
см/с
|
|
2,4*10-6
|
2,4*10-6
|
3,2*10-2
|
|
Полное наименование грунта
|
|
|
|
суглиноктугопластичный, легкий
|
суглиноктугопластичный, полутвердый
|
песок средней крупности, средней плотности, влажный
|
4. выбор возможных технических решений
фундаментов
Отличительной особенностью проектирования фундаментов является
вариантность. Для типового здания не существует типового фундамента. При выборе
того или иного фундамента необходимо учитывать совместную работу основания,
фундамента и надземных несущих конструкций здания, инженерно-геологические,
гидрогеологические, климатические условия строительной площадки,
чувствительность несущих конструкций здания к неравномерным осадкам, крену и
другие особенности здания, методы выполнения работ по устройству фундаментов,
возможности строительной организации и ряд других факторов. Все это приводит к
необходимости разработки нескольких вариантов фундаментов. Наиболее оптимальный
из них определяется путем технико-экономического сравнения вариантов.
Проектирование оснований и фундаментов выполняется с учетом следующих
положений:
обеспечение прочности и эксплуатационных требований зданий;
максимального использования прочностных и деформационных свойств
грунта;
максимального использования прочности материала фундамента;
достижение минимальной стоимости, материалоемкости и
трудоемкости.
5. расчет фундаментов мелкого заложения
Определение
расчетной глубины заложения фундамента.
Глубина заложения фундаментов d1
принимается с учетом множества факторов, в том числе конструктивных
особенностей проектируемого здания и глубины сезонного промерзания грунтов.
Расчетная глубина промерзания грунтов определяется по формуле:
df=kh*dfn (5.1)
fn - нормативная глубина промерзания грунта = 200см по
карте климатологии [1];
kh - коэффициент, учитывающий влияние теплового режима
здания, принимаемый равным 0,5 по табл.1, п.2 [2].
df=120*0,4=0,48 м.
Исходя из конструктивных
решений, а именно устройство подвала с глубиной 2,8 м, а также выемке верхнего
слоя грунта толщиной 1м принимаем d1=2,2 м.
Определим осредненное расчетное значение удельного веса грунтов,
залегающих выше подошвы фундамента (при наличии подземных вод определяется с
учетом взвешивающего действия воды) gII и залегающих ниже подошвыg/II , кН/м3 (тс/м3)
1. Суглинок тугопластичный
R0
= 234,24кПа
γ = 19,6кН/м3
γsb = 9,9 кН/м3
. Суглинок пластичный
R0
= 253,3 кПа
γ = 19,6кН/м3
γsb = 10,73 кН/м3
. Песок крупный, R0
= 400 кПа
γ = 19,9 кН/м3 ; γsb = 10,38 кН/м3
кН/м3
(5.2)
кН/м3
(5.3)
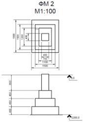
Рисунок 4. Схема фундамента мелкого заложения. М 1:50
Расчет фундаментов.
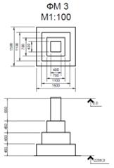
Фундамент №1
Фундамент столбчатый под колонну размером 300*300 мм. Значения нагрузок,
действующих на каркас здания при расчете фундамента №1: N=1340кН, M= 230кН*м, Q= 20
кН.
1. Условное расчетное сопротивление грунта ИГЭ №21, в котором закладываем
фундамент: R0= 253,3 кПа
. Вычисляем предварительную площадь фундамента:
; (5.4)
где: N - вертикальная составляющая внешних
сил,
R0 - расчетное сопротивление грунта,
γср - усредненное значение удельного веса
материала фундамента и грунта на его уступах,
d -
глубина заложения.
.
Определим ширину фундамента:
, (5.5)
где
, где
длина
подошвы фундамента (принимаем конструктивно в пределах от 1 до 4)
,
. Находим расчетное сопротивление грунта:
(5.6)
где
gс1 и gс2 -
коэффициенты, условий работы, принимаемые по табл. 3 СНиП 01-83;- коэффициент,
принимаемый равным: k1 = 1, если прочностные характеристики грунта (j и с) определены непосредственными испытаниями;
Мg , Мq,
Mc - коэффициенты, принимаемые по табл. 4 СНиП 01-83 ;z
- коэффициент, принимаемый равным:
при
b < 10 м (b=2.1м) - kz = 1;
b - ширина подошвы фундамента, м;
gII - осредненное
расчетное значение удельного веса грунтов, залегающих ниже подошвы фундамента
(при наличии подземных вод определяется с учетом взвешивающего действия воды),
кН/м3 (тс/м3);
g/II - то же, залегающих выше подошвы;
сII - расчетное значение удельного сцепления грунта,
залегающего непосредственно под подошвой фундамента, кПа (тс/м2);
d1 - глубина заложения фундаментов бесподвальных сооружений от
уровня планировки
,44
кПа
5. Проверяем условие:
, 
-условие
не соблюдается, следовательно, вместо R0 в формуле (5.4) подставляем полученное R и
повторяем расчеты с 1-5.
.
R0=846,44
кПа
.
Вычисляем предварительную площадь фундамента по формуле (5.4):
.
Определим ширину фундамента по формуле (5.5) :
. Находим расчетное сопротивление грунта по формуле (5.6) :
,51
кПа
5. Проверяем условие:
, 
-условие
соблюдается
Предварительно
принимаем фундамент ФА 1-6 1,5*1,5*0.3 Vбет=2,16 м3
6. Определяем окончательное давление под подошвой фундамента:
ф=Vбет*gбет, (5.7)
где gбет - удельный вес тяжелого бетона,
равный 24 кН/м3;
Vбет - объем бетона, необходимый для
заложения фундамента, м3.
Gф=2,16 * 24= 51,84 кН
. Определяем значение веса грунта на выступах фундамента:
гр=(d1*A- Vбет)* g, (5.8)
где d- глубина заложения фундамента;
g - удельный вес грунта расположенного выше подошвы фундамента, кН/м3;
А-площадь фундамента, определяемый по формуле:
А=l*b (5.9)
А=1,5*1,5=2,25 м2
Gгр=(2,2*2,25-2,16)*19,6=54,7 кН
. Делаем проверочный расчет давления под подошвой фундамента по схеме
внецентренно нагруженного фундамента:
(5.10)
где А - площадь фундамента;
М - изгибающий момент, кН;
Р- центрально нагруженная сила;
W -
осевой момент сопротивления сечения, м3.
. Осевой момент сопротивления сечения определяется в зависимости от формы
подошвы:
(5.11)
.
Центрально нагруженная сила:
Р=
N = ( N+ Gф+ Gгр
) (5.12)
Р=
1340+54,7+51,84=1446,5 кН
Подставляем
значения в формулу (5.10) и проверяем:
Pmax=1107< 1.2*R=1011
кН - условие не выполняется
Pmin=178,61 >0 - условие выполняется => увеличиваем размеры
подошвы фундамента предварительно выбираем ФА 7-12 1,8*1,5*0,3 Vбет = 2,29м3
6. Определяем окончательное давление под подошвой фундамента:
ф=Vбет*gбет, (5.7)
где gбет - удельный вес тяжелого бетона,
равный 24 кН/м3;
Vбет - объем бетона, необходимый для
заложения фундамента, м3.
Gф=2,29 * 24= 54,96 кН
. Определяем значение веса грунта на выступах фундамента:
гр=(d1*A- Vбет)* g, (5.8)
где d- глубина заложения фундамента;
g - удельный вес грунта расположенного выше подошвы фундамента, кН/м3;
А-площадь фундамента, определяемый по формуле:
А=l*b (5.9)
А=1,8*1,5=2,7 м2
Gгр=(2,2*2,7-2,29)*19,6=71,54 кН
. Делаем проверочный расчет давления под подошвой фундамента по схеме
внецентренно нагруженного фундамента:
(5.10)
где А - площадь фундамента;
М - изгибающий момент, кН;
Р- центрально нагруженная сила;
W -
осевой момент сопротивления сечения, м3.
Q-
горизонтальная нагрузка, кН
. Центрально нагруженная сила:
Р= N = ( N+ Gф+ Gгр ) (5.12)
Р= 1340+54,96+71,54=1466,5 кН
Подставляем значения в формулу (5.10) и проверяем:
Pmax=871,55 < 1.2*R=1011 кН - условие выполняется
Pmin=214,75 >0 - условие выполняется
10. Окончательно принимаем ФА 7-12 1,8*1,5*0,45
Рисунок 5. Фундамент №1 ФА 7-12
Фундамент №2
Фундамент столбчатый под колонну размером 400*400 мм. Значения нагрузок,
действующих на каркас здания при расчете фундамента №2: N=1630кН, M= 260кН*м, Q= -20
кН.
1. Условное расчетное сопротивление грунта ИГЭ №21, в котором закладываем
фундамент: R0= 253,3 кПа
. Вычисляем предварительную площадь фундамента:
; (5.4)
где: N - вертикальная составляющая внешних
сил,
R0 - расчетное сопротивление грунта,
γср - усредненное значение удельного веса
материала фундамента и грунта на его уступах,
d -
глубина заложения.
.
Определим ширину фундамента:
, (5.5)
где
, где
длина
подошвы фундамента (принимаем конструктивно в пределах от 1 до 4)
,
. Находим расчетное сопротивление грунта:
(5.6)
где
gс1 и gс2 -
коэффициенты, условий работы, принимаемые по табл. 3 СНиП 01-83;- коэффициент,
принимаемый равным: k1 = 1, если прочностные характеристики грунта (j и с) определены непосредственными испытаниями;
Мg , Мq,
Mc - коэффициенты, принимаемые по табл. 4 СНиП 01-83 ;z
- коэффициент, принимаемый равным:
при
b < 10 м (b=2.1м) - kz = 1;
b - ширина подошвы фундамента, м;
gII - осредненное
расчетное значение удельного веса грунтов, залегающих ниже подошвы фундамента
(при наличии подземных вод определяется с учетом взвешивающего действия воды),
кН/м3 (тс/м3);
g/II - то же, залегающих выше подошвы;
сII - расчетное значение удельного сцепления грунта,
залегающего непосредственно под подошвой фундамента, кПа (тс/м2);
d1 - глубина заложения фундаментов бесподвальных сооружений от
уровня планировки
,3
кПа
5. Проверяем условие:
, 
-условие
не соблюдается, следовательно, вместо R0 в формуле (5.4) подставляем полученное R и
повторяем расчеты с 1-5.
.
R0=850,3
кПа
.
Вычисляем предварительную площадь фундамента по формуле (5.4):
.
Определим ширину фундамента по формуле (5.5) :
. Находим расчетное сопротивление грунта по формуле (5.6) :
,1
кПа
5. Проверяем условие:
, 
-условие
соблюдается
Предварительно
принимаем фундамент ФА 7-12 1,8*1,5*0,3 Vбет = 2,29м3
6. Определяем окончательное давление под подошвой фундамента:
ф=Vбет*gбет, (5.7)
где gбет - удельный вес тяжелого бетона,
равный 24 кН/м3;
Vбет - объем бетона, необходимый для
заложения фундамента, м3.
Gф=2,29 * 24= 54,96 кН
. Определяем значение веса грунта на выступах фундамента:
гр=(d1*A- Vбет)* g, (5.8)
где d- глубина заложения фундамента;
g - удельный вес грунта расположенного выше подошвы фундамента, кН/м3;
А-площадь фундамента, определяемый по формуле:
А=l*b (5.9)
А=1,8*1,5=2,7 м2
Gгр=(2,2*2,7-2,29)*19,6=71,54 кН
. Делаем проверочный расчет давления под подошвой фундамента по схеме
внецентренно нагруженного фундамента:
(5.10)
где А - площадь фундамента;
М - изгибающий момент, кН;
Р- центрально нагруженная сила;
W -
осевой момент сопротивления сечения, м3.
Q-
горизонтальная нагрузка, кН
. Центрально нагруженная сила:
Р= N = ( N+ Gф+ Gгр ) (5.12)
Р= 1630+54,96+71,54=1756,5 кН
Подставляем значения в формулу (5.10) и проверяем:
Pmax=927 < 1.2*R=1020,4
кН - условие выполняется
Pmin=373,9 >0 - условие выполняется
10. Окончательно принимаем ФА 7-12 1,8*1,5*0,45
Рисунок 6. Фундамент №2 ФА 7-12
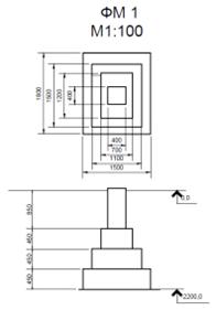
Фундамент №3
Фундамент столбчатый под колонну размером 400*400 мм. Значения нагрузок,
действующих на каркас здания при расчете фундамента №3: N=550кН, M= 120кН*м, Q=10
кН.
1. Условное расчетное сопротивление грунта ИГЭ №21, в котором закладываем
фундамент: R0= 253,3 кПа
. Вычисляем предварительную площадь фундамента:
; (5.4)
где: N - вертикальная составляющая внешних
сил,
R0 - расчетное сопротивление грунта,
γср - усредненное значение удельного веса
материала фундамента и грунта на его уступах,
d -
глубина заложения.
.
Определим ширину фундамента:
, (5.5)
где
, где
длина
подошвы фундамента (принимаем конструктивно в пределах от 1 до 4)
,
4. Находим расчетное сопротивление грунта:
(5.6)
где
gс1 и gс2 -
коэффициенты, условий работы, принимаемые по табл. 3 СНиП 01-83;- коэффициент,
принимаемый равным: k1 = 1, если прочностные характеристики грунта (j и с) определены непосредственными испытаниями;
Мg , Мq,
Mc - коэффициенты, принимаемые по табл. 4 СНиП 01-83 ;z
- коэффициент, принимаемый равным: при b < 10 м (b=2.1м)
- kz = 1;
b - ширина подошвы фундамента, м;
gII - осредненное
расчетное значение удельного веса грунтов, залегающих ниже подошвы фундамента
(при наличии подземных вод определяется с учетом взвешивающего действия воды),
кН/м3 (тс/м3);
g/II - то же, залегающих выше подошвы;
сII - расчетное значение удельного сцепления грунта,
залегающего непосредственно под подошвой фундамента, кПа (тс/м2);
d1 - глубина заложения фундаментов бесподвальных сооружений от
уровня планировки
,51
кПа
5. Проверяем условие:
, 
-условие
не соблюдается, следовательно, вместо R0 в формуле /5.4/ подставляем полученное R и
повторяем расчеты с 1-5.
.
R0=842,51
кПа
.
Вычисляем предварительную площадь фундамента по формуле (5.4):
.
Определим ширину фундамента по формуле (5.5) :
. Находим расчетное сопротивление грунта по формуле (5.6) :
,51
кПа
5. Проверяем условие:
, 
-условие
соблюдается
Предварительно
принимаем фундамент ФА 1-6 1,5*1,5*0,45 Vбет=2,16 м3
6. Определяем окончательное давление под подошвой фундамента:
Gф=Vбет*gбет, (5.7)
где gбет - удельный вес тяжелого бетона,
равный 24 кН/м3;
Vбет - объем бетона, необходимый для
заложения фундамента, м3.
Gф=2,16 * 24= 51,84 кН
. Определяем значение веса грунта на выступах фундамента:
гр=(d1*A- Vбет)* g, (5.8)
где d- глубина заложения фундамента;
g - удельный вес грунта расположенного выше подошвы фундамента, кН/м3;
А-площадь фундамента, определяемый по формуле:
А=l*b (5.9)
А= 1,5*1,5 =2,25 м2
Gгр=(2,2*2,25 - 2,16)*19,6= 54,7 кН
. Делаем проверочный расчет давления под подошвой фундамента по схеме
внецентренно нагруженного фундамента:
(5.10)
где А - площадь фундамента;
М - изгибающий момент, кН;
Р- центрально нагруженная сила;
W -
осевой момент сопротивления сечения, м3.
Q-
горизонтальная нагрузка, кН
. Осевой момент сопротивления сечения определяется в зависимости от формы
подошвы:
(5.11)
.
Центрально нагруженная сила:
Р=
N = ( N+ Gф+ Gгр
) (5.12)
Р=
550+51,84+54,7=656,54 кН
Подставляем
значения в формулу (5.10) и проверяем:
Pmax=532,87
< 1.2*R=842,51 кН - условие выполняется
Pmin=50
>0 - условие выполняется
11. Окончательно принимаем ФА 1-6 1,5*1,5*0,45
Рисунок 7. Фундамент №3 ФА 1-6
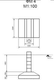
Фундамент №4
Фундамент ленточный под стену шириной 510 мм. Значения нагрузок,
действующих на каркас здания при расчете фундамента №4: N=560кН, M= 290 кН*м, Q= 0
кН.
. Условное расчетное сопротивление грунта ИГЭ №22, в котором закладываем
фундамент: R0= 253,3 кПа
2. Вычисляем предварительную площадь фундамента по формуле (5.4):
. Определим ширину фундамента:
, (5.13)
4. Находим расчетное сопротивление грунта по формуле (5.6):
,4
кПа
5. Проверяем условие:
, 
-условие
не соблюдается, следовательно, вместо R0 в формуле (5.4) подставляем полученное R и
повторяем расчеты с 1-5.
1. R0=859,4 кПа
. Вычисляем предварительную площадь фундамента по формуле (5.4):
.
Определим ширину фундамента по формуле (5.13):
. Находим расчетное сопротивление грунта по формуле (5.6) :
,06
кПа
5. Проверяем условие:
, 
-условие
соблюдается
Предварительно
принимаем фундамент ФЛ 8.24 0,8*2,38*0.3 V=0,82м3
6. Определяем окончательное давление под подошвой фундамента:
ф=Vбет*gбет, (5.7)
где gбет - удельный вес тяжелого бетона,
равный 24 кН/м3;
Vбет - объем бетона, необходимый для
заложения фундамента, м3.
Gф=0,82*24= 19,68 кН
. Определяем значение веса грунта на выступах фундамента:
гр=(d1*A- Vбет)* g, (5.8)
где d- глубина заложения фундамента;
g - удельный вес грунта расположенного выше подошвы фундамента, кН/м3;
А-площадь фундамента, определяемый по формуле:
Gгр=(2,2*0,8-0,82)*19,6=18,42 кН
. Делаем проверочный расчет давления под подошвой фундамента по схеме
внецентренно нагруженного фундамента:
(5.10)
где А - площадь фундамента;
М - изгибающий момент, кН;
Р- центрально нагруженная сила;
W -
осевой момент сопротивления сечения, м3.
Q-
горизонтальная нагрузка, кН
. Осевой момент сопротивления сечения определяется в зависимости от формы
подошвы:
(5.11)
.
Центрально нагруженная сила:
Р=
N = ( N+ Gф+ Gгр
) (5.12)
Р=
550+19,68+18,42=598,1 кН
Подставляем
значения в формулу (5.10) и проверяем:
кН
Pmax=1134,3 < 1.2*R=987,67 кН - условие не выполняется
Pmin=361 >0 - условие не выполняется => увеличиваем размеры
подошвы фундамента предварительно выбираем ФЛ 10.24 1,0*2,38*0,3 Vбет = 0,96м3
6. Определяем окончательное давление под подошвой фундамента:
ф=Vбет*gбет, (5.7)
где gбет - удельный вес тяжелого бетона,
равный 24 кН/м3;
Vбет - объем бетона, необходимый для
заложения фундамента, м3.
Gф=0,96 * 24= 23,04 кН
. Определяем значение веса грунта на выступах фундамента:
гр=(d1*A- Vбет)* g, (5.8)
где d- глубина заложения фундамента;
g - удельный вес грунта расположенного выше подошвы фундамента, кН/м3;
А-площадь фундамента, определяемый по формуле:
Gгр=(2,2*1-0,96)*19,6=24,3 кН
. Делаем проверочный расчет давления под подошвой фундамента по схеме
внецентренно нагруженного фундамента:
(5.10)
где А - площадь фундамента;
М - изгибающий момент, кН;
Р- центрально нагруженная сила;
W -
осевой момент сопротивления сечения, м3.
Q-
горизонтальная нагрузка, кН
. Центрально нагруженная сила:
Р= N = ( N+ Gф+ Gгр ) (5.12)
Р= 550+23,04+24,3=607,34 кН
Подставляем значения в формулу (5.10) и проверяем:
Pmax=915,85 < 1.2*R=987,67 кН - условие выполняется
Pmin=298,84 >0 - условие выполняется
10. Окончательно принимаем ФЛ 10.24 1,0*2,38*0,3
Рисунок 7. Фундамент №4 ФЛ 10.24 1,0*2,38*0,3. Марка блока ФБС
0,86*2,38*0,28)
6. РАСЧЕТ
ОСАДОК ФУНДАМЕНТА МЕЛКОГО ЗАЛОЖЕНИЯ
Для расчета конечной (стабилизированной) осадки фундамента мелкого
заложения промышленных и гражданских зданий [2] использую метод послойного
суммирования.
Порядок расчета:
) Расчет выполняю после определения размера подошвы фундамента.
) Ось фундамента совмещаю со слоями грунта оснований.
) Строю эпюру природного давления, начиная от поверхности грунта.
Природное боковое давление δzg по-другому еще называется бытовым или напряжением от
собственного веса грунта.
Расчет осадок выполняют по схеме линейно деформируемого полупространства
путем суммирования осадок отдельных слоев в пределах ожидаемой толщи основания.
До постройки опоры вся толща грунта находится в состоянии равновесия, так как
под действием природного бытового давления равного весу вышележащих слоев
грунта каждый пласт грунта за длительный период времени уплотнился настолько,
что не претерпевает никаких деформаций. Для расчета выбираем фундамент №1 со
средним давлением подошвы фундамента Рcp=543 кПа.
Осадка основания S c использованием расчетной схемы в
виде линейно-деформируемого полупространства определяется методом послойного
суммирования по формуле:
, (6.1)
где b - безразмерный
коэффициент учитывающий возможность бокового расширения грунта, равный 0,8;
szp,i - среднее
значение дополнительного вертикального нормального напряжения в i-м слое грунта, равное полусумме
указанных напряжений на верхней zi-1 и нижней zi
границах слоя по вертикали, проходящей через центр подошвы фундамента [2];
hi и Еi -
соответственно толщина и модуль деформации i-го слоя грунта;
n -
число слоев, на которые разбита сжимаемая толща основания.
При значительной глубине заложения фундаментов расчет осадки
рекомендуется производить с использованием расчетных схем, учитывающих
разуплотнение грунта вследствие разработки котлована.
Толщу грунта ниже подошвы необходимо поделить на элементарные слои, они
должны быть однородными и толщиной не больше 0,4 ширины фундамента: z = 0,4 * b = 0,4*1,5 = 0,6 м.
Дополнительные вертикальные напряжения на глубине z от подошвы фундамента: szp - по вертикали, проходящей через
центр подошвы фундамента:
szp = aP0; (6.2)
где
a - коэффициент, принимаемый по таблице 1[2] в
зависимости от формы подошвы фундамента, соотношения сторон прямоугольного
фундамента и относительной глубины, равной: m = 2z/b при
определении уzp и n = l/b = 1,2 при определении уzp,c;0
- среднее давление под подошвой фундамента;
szg,0 - вертикальное
напряжение от собственного веса грунта на уровне подошвы фундамента (при
планировке срезкой принимается szg,0 = gd,
при отсутствии планировки и планировке подсыпкой szg,0 = gdn, где g/ -
удельный вес грунта, расположенного выше подошвы).
Напряжения
слоев грунтов и на уровне грунтовых вод определяем по формуле:
szg = ∑γihi,
(6.3)
где
γi и hi - удельный вес и толщина i-го слоя.
Таблица
6.1. Расчет осадки фундамента №2.
|
Z,м
|
=2z/b
|
α
|
σzp, кПа
|
σzg кПа
|
0,2σzg, кПа
|
hi, м
|
E0, кПа
|
Si, см
|
|
1
|
2
|
3
|
4
|
6
|
7
|
8
|
9
|
10
|
|
0
|
0
|
1
|
499,88
|
43,12
|
8,63
|
|
|
|
|
|
|
|
|
|
0,6
|
20000
|
0,97
|
|
0,6
|
0,8
|
0,8
|
399,9
|
54,88
|
10,97
|
|
|
|
|
|
|
|
|
|
0,2
|
20000
|
0,74
|
|
0,8
|
1,06
|
0,7
|
349,916
|
58,8
|
11,76
|
|
|
|
|
|
|
|
|
|
0,6
|
22000
|
0,51
|
|
1,4
|
1,86
|
0,53
|
264,94
|
65,24
|
13,05
|
|
|
|
|
|
|
|
|
|
0,6
|
22000
|
0,33
|
|
2,0
|
2,66
|
0,336
|
167,96
|
71,67
|
14,33
|
|
|
|
|
|
|
|
|
|
0,6
|
22000
|
0,13
|
|
2,6
|
3,46
|
0,228
|
113,97
|
78,11
|
|
|
|
|
|
|
|
|
|
0,6
|
22000
|
0,08
|
|
3,2
|
4,25
|
0,160
|
79,98
|
84,55
|
16,91
|
|
|
|
|
|
|
|
|
|
0,6
|
22000
|
0,05
|
|
3,8
|
5,06
|
0,115
|
57,48
|
90,98
|
18,11
|
|
|
|
|
|
|
|
|
|
0,6
|
22000
|
0,043
|
|
4,4
|
5,85
|
0,091
|
45,49
|
97,06
|
19,41
|
|
|
|
|
|
|
|
|
|
0,6
|
30000
|
0,021
|
|
5,0
|
6,66
|
0,07
|
34,99
|
103,13
|
20,63
|
|
|
|
|
|
|
|
|
|
0,6
|
30000
|
0,017
|
|
5,6
|
7,46
|
0,058
|
28,99
|
109,2
|
21,84
|
|
|
|
|
|
|
|
|
|
0,6
|
30000
|
0,009
|
|
6,2
|
8,25
|
0,048
|
22,99
|
115,27
|
23,05
|
|
|
|
|
|
|
|
|
|
0,6
|
30000
|
Σ=2,9
|
σzg1
= ∑γhi= 2,2 *
19,6=43,12 кПа
σzg2 = 43,12 + 0,6 * 19,6= 54,88 кПа
σzg3 = 54,88 + 0,2 * 19,6= 58,8 кПа
σzg4 = 58,8 + 0,6 * 10,73= 65,24 кПа
σzg5 = 65,24 + 0,6 * 10,73= 71,67 кПа
σzg6 = 71,67 + 0,6 * 10,73= 78,11 кПа
σzg7 = 78,11 + 0,6 * 10,73= 84,55 кПа
σzg8 = 84,55 + 0,6 * 10,73= 90,98 кПа
σzg9 = 90,98 + 0,6 * 10,73= 97,06 кПа
σzg10 = 97,06 + 0,6 * 10,73= 103,13 кПа
σzg11 = 103,13 + 0,6 * 10,73= 109,2 кПа
σzg12 = 109,2 + 0,6 * 10,73= 115,27 кПа
σzp1=
α(Pср-σzg1)=1 * (543 - 43,12)= 499,88 кПа
σzp2= 0,8* 499,88= 399,9 кПа
σzp3= 0,7 * 499,88= 349,91 кПа
σzp4= 0,53 * 499,88= 264,94 кПа
σzp5= 0,336 * 499,88 = 167,96 кПа
σzp6= 0,228 * 499,88= 113,97 кПа
σzp7= 0,160 * 499,88= 79,98 кПа
σzp8= 0,115 * 499,88= 57,48 кПа
σzp9= 0,091 * 499,88= 45,49 кПа
σzp10= 0,07 * 499,88= 34,9 кПа
σzp11= 0,058 * 499,88= 28,99 кПа
σzp12= 0,048 * 499,88= 22,99 кПа
По приложению 4 [2] Su для производственных и гражданских одноэтажных и
многоэтажных зданий с полным железобетонным каркасом равно 8 см. S=2,9 см <
Su = 8,0 см - условие выполняется, и ,следовательно, рассчитанный фундамент
может быть использован при возведении сооружения.
.
БИБЛИОГРАФИЧЕСКИЙ СПИСОК
1. ГОСТ
25100-95 “Грунты. Классификация”. М.: Госстрой, 1995.
. СНиП
2.02.01-83* “Основания зданий и сооружений”. М.: Госстрой, 1983.
. ГОСТ
25100-95 “Грунты. Классификация”. М.: Госстрой, 1995.
. Ухов С. Б.
и др. Механика грунтов, основания и фундаменты. Издание 4. Москва, «Высшая
школа», 2007.
. Шерешевский
И.А. Конструирование промышленных зданий и сооружений: Учеб. пособие для
студентов строит. специальностей вузов. - 3-е изд., перераб. и доп. - Л.:
Стройиздат, Ленингр. отд-ние, 1979. - 168с., ил.
. Гончаров
Б.В., Белов Г.П., Бирюков О.Г.: Расчет фундаментов мелкого заложения. Уфа.
УГНТУ. 1999.