Проектирование строительства завода цинкования мелкоразмерных конструкций
Содержание
1.
Задание
2.
Введение
3.
Общие исходные данные
4.
Функционально-технологические условия
5.Технико-экономическое
обоснование принятого варианта
6.
Архитектурно-строительная часть
6.1
Общие данные для проектирования
6.2
Решение генерального плана
6.3
Объемно-планировочное решение
6.4
Конструктивное решение
6.5
Теплотехнический расчет стенового ограждения
6.6
Технико-экономические показатели
7.
Санитарно-техническое оборудование
7.1
Отопление и вентиляция
7.2
Водоснабжение и канализация
7.3
Электротехническая часть
8.
Расчетно-конструктивная часть
8.1
Краткая характеристика основных конструкций каркаса здания
8.2
Расчет ферм
8.3
Расчет прогона
8.4
Расчет рамы
8.5
Основания и фундаменты
9.
Технология, организация, планирование и управление строительства
9.1
Выбор методов производства работ
9.2
Проектирование технологии производства работ
9.3
Технологическая карта на монтаж каркаса покрытия
9.4.
Выбор рациональных методов организации работ
9.5
Проектирование плана финансирования строительства
9.6
Календарные планы строительства объекта
9.7
Разработка планов обеспечения ресурсов
9.8
Строительный генеральный план
10.
Экономическая часть и технологические показатели
11.
Техника безопасности и охрана труда
11.1
Анализ основных опасных и вредных факторов производственного процесса
11.2
Пожарная безопасность
11.3
Электробезопасность
11.4
Расчёт устойчивости крана
11.5
Техника безопасности на строительной площадке при выполнении работ
11.6
Определение опасных зон
11.7
Охрана окружающей среды
12.
Список использованной литературы
1. Задание
2. Введение
В данной работе разработан проект строительства
завода цинкования мелкоразмерных конструкций. Проработаны следующие разделы:
архитектурно-строительный; расчётно-конструктивный; технология строительства;
экономический; техника безопасности и охрана труда. Были рассчитаны следующие
конструкции: стропильная ферма, сплошная колонна среднего и крайних рядов,
фундаменты под среднюю и крайние колонны. Графическая часть включает в себя:
1-фасады здания; 2-план; 3-разрезы и план кровли, узлы; 4-план озеленения; 5-ферма
Ф-1; 6-ферма Ф-2; 7- поперечная рама завода, схемы связей, колонны К-1,К-2 и
К-3; 8-палан фундаментов;9календарный план;10-стройгенплан; 11-технологическая
карта на монтаж конструкций покрытия.
3. Общие
исходные данные
Место строительства г. Тула. Район
строительства по снеговой нагрузке III,
по ветровой нагрузке I
(расчетный вес снегового покрова-1.8кПа, расчетная температура наружного
воздуха-28ÅС, скоростной напор ветра-0.23кПа).
Климатический район строительства – II
В
Расчетная снеговая нагрузка – 180 кг/м2
Нормативный скоростной напор ветра – 23
кПа
Расчетная зимняя температура - -28°С
За отметку 0.000 принят уровень чистого
пола цеха
4.
Функционально-технологические условия
Завод цинкования мелкоразмерных
конструкций располагается на территории г. Тулы и состоит из:
·производственного
корпуса (цех горячего цинкования);
·бытового корпуса;
·административно-бытового
корпуса;
·погрузочно-разгрузочных
площадок (2 шт.);
·трансформаторной подстанции;
·контрольно-пропускного
пункта (КПП);
·площадки для
кратковременной стоянки 8 автомобилей;
·вольера для служебных
собак;
·ограждения.
Процесс горячего цинкования – это
гальваническое (диффузное) покрытие, получаемое при погружении металлического
изделия в расплавленный цинк при t
= 440 - 460 СÅ. В результате реакции между металлом и
цинком создаётся сплав металла с цинком и таким образом формируется прочное,
стойкое и долговечное покрытие, сохраняющее обрабатываемый металл от коррозии.
Поверхность обрабатываемого металла должна быть хорошо очищена по средством
обезжиривания и травления для получения химически чисто поверхности.
Горячему цинкованию подвергаются изделия
из углеродной стали с массовой долей кремния не более 0,37% углерода не более
0,18% согласно ГОСТ 24723.
Технологический процесс горячего
цинкования включает в себя следующие операции:
·
цеховая
кран-балка перемещает траверсу в ванну обезжиривания, где в растворе ~9%
кислотного обезжиривания в ~20 мин, при t=45ÅС
изделия проходят предварительную обработку;
·
затем
изделия подаются в ванну травления на 40 мин. В раствор 16% - 22% соляной
кислоты при t=40ÅC;
·
далее
изделие кран-балкой подаётся в ванну флюсования, в раствор: хлористый цинк 250
– 350 г/л, эмульгатор ОП-10 до 10 г/л;
·
кран-балка
перемещает траверсу в сушильную камеру на 10мин. при t
= 80 - 120ÅС;
·
далее
траверса с изделиями перемещается в печь цинкования. Цинкование осуществляется
путём плавного погружения изделий в расплав, оптимальная скорость загрузки –
0,5 м/мин.
Доставка сырья и материалов на
предприятие и вывоз готовой продукции осуществляется автомобильным транспортом.
Транспортные операции внутри участков
осуществляются автопогрузчиками.
Затраты на специальные природоохранные
мероприятия в проекте не предусмотрены.
5. Технико-экономическое
обоснование принятого варианта
Технико-экономическое обоснование будем
проводить по расходу материала, в единицах измерения [кг]. Расчет ферм смотри
п.8 донного проекта.
Первый вариант – фермы металлические с
трапециевидной формой с сечением элементов из спаренных уголков и опорными
нисходящими раскосами.
Рис. 5.1. Отправочная марка фермы по
первому варианту.
Спецификация стали марки ВСт3пс6-1
Рис. 5.2. Отправочная марка фермы по
второму варианту.
Спецификация стали марки ВСт3пс6-1
Второй вариант экономически лучше, т.к.
масса отправочной марки на 716,65кг. легче. Но во втором методе в сборочных
марках используется прокатный тавр, который импортируется, в следствии чего
масса 1кг. стали дороже отечественного. Если прокатные тавры изготавливать
путем продольного распиливания двутавров отечественного изготовления, то это не
приведет к уменьшению себестоимости стали, т.к. технология распиливания
двутавров в тавры сложный и требует специального технологического оборудования.
В конструкции покрытия будем
использовать ферму по первому варианту сравнения.
6.
Архитектурно-строительная часть
6.1 Общие данные
для проектирования
Место строительства г. Тула. Район
строительства по снеговой нагрузке III,
по ветровой нагрузке I.
Рельеф территории застройки - спокойный. Грунт – пучинистый (суглинок
мягкопластичный). Расчетная зимняя температура - -28°С. За отметку 0.000 принят
уровень чистого пола цеха.
6.2 Решение
генерального плана
Участок проектирования расположен в г.
Туле.
На участке проектирования размещаются
следующие здания и сооружения:
·производственный корпус
(цех горячего цинкования);
·бытовой корпус;
·административно-бытовой
корпус;
·погрузочно-разгрузочные
площадки (2 шт.);
·трансформаторная
подстанция;
·контрольно-пропускной
пункт (КПП);
·площадки для
кратковременной стоянки 8 автомобилей;
·вольер для служебных
собак;
·ограждение.
В основу компоновки генерального плана
положена технологическая схема производства.
На участка проектирования прокладываются
сети:
·хозяйственно-питьевого
производственного и противопожарного водопровода;
·бытовой и
производственной канализации;
·электроснабжения;
·газопровода.
Прокладка сетей на участке, за исключением
газопровода, предусматривается подземным способом. Прокладка газопровода – на
опорах.
Для обеспечения нормальных
санитарно-гигиенических условий и создания благоприятной производственной среды
на участке проектирования и его архитектурно-декоративного оформления проектом
предусматриваются следующие мероприятия по благоустройству территории и ее
озеленению:
·устройство дорог и тротуаров
с твердым покрытием;
·устройство газонов и
цветника;
·посадка деревьев;
·установка малых
архитектурных форм (скамьи и урны).
Основным видом озеленения приняты
газоны. Газоны устраиваются обыкновенные.
Основные показатели по генеральному
плану на листе графической части.
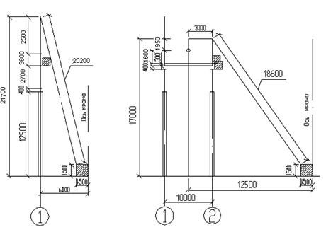
6.3 Объемно-планировочное решение
6.3.1 Производственный корпус
Проектом предусматривается строительство
одноэтажного отапливаемого здания со световым фонарем между осями: 2-12,
монолитным железобетонным фундаментом и металлическим каркасом. Внешние стены
цеха: навесные стеновые панели толщиной – 100мм.
Пролет А-Б по всей длине здания (120м.) оборудован
четырьмя мостовыми кранами легкого режима работы. Пролет Б-В бескрановый,
длиной 50.0 м.
Габариты здания:
·
длина
-120.0 м.;
·
ширина-24.0
+ 18.0 = 42м.;
·
высота
до низа стропильных конструкций в пролёте А-Б – 11.1м., в пролёте Б-В – 8.89м.;
·
отметка
головки крановогорельса – 9.1м.
Пролет А-Б оборудован световым фонарём,
расположенным по коньку пролёта.
Кровля легкая, рулонная.
6.3.2 Бытовой корпус
Здание бытовых помещений пристроено к
основному корпусу цеха вдоль оси В, между осями 3-7, отделено от
производственных помещений кирпичной стеной, толщиной – 380мм. Это двух этажное
здание с металлическим каркасом. Перекрытия сборное железобетонное, фундамент
монолитный. Все внутрение перегородки – кирпичные: кирпич М50, раствор М100.
Наружные стены из навесных трехслойных панелей.
За отметку 0.000 принят уровень чистого
пола первого этажа. Вдоль периметра здания предусмотрен асфальтовая отмостка на
щебеночной основе, шириной – 1.0 м. Кровля легкая, рулонная.
Бытовые помещения расчитаны на 80
человек работающих при трехсменном режиме работы.
6.4 Конструктивное
решение
6.4.1 Конструктивные решения
производственного корпуса:
·
здание
запроектировано в цельнометаллическом каркасе с легкими ограждающими
конструкциями стен и кровли;
·
каркас
решен по связевой схеме (жескость каркаса обеспечивается системой
горизонтальных и вертикальных связей);
·
кровля
предусмотрена двускатной с уклоном равным 12% и организованным наружным
водоотводом;
·
шаг
основных колонн каркаса по продоляным рядам предусмотрен равным 10.0м.,
фахверковых колонн -5.0м. (между основными колоннами), торцевых – 6.0м.;
·
стропильные
конструкции запроектированы в виде ферм трапецивидной формы с сечением элементов
из спаренных и одиночных уголков и опорными нисходящими раскосами;
·
шаг
стропильных ферм принят равным 10.0 м.;
·
стеновое
ограждение разработано с применением типовых стеновых панелей типа «Сендвич»;
·
для
облегчения выверки при монтаже колонн каждый анкерный болт имеет гайки и шайбы
верху и снизу опорной плиты;
·
обрез
фундамента располагается на отметке -0,200. Фундамент под колонны крайнего
ряда, свайный, с размерами подколонника (ростверка) 600х600мм., глубина
заложения -1.5м. Фундамент под колонны среднего ряда, свайный кустовой, с
размерами подколонника 600х600мм.,ростверка 1600х1600мм., глубина заложения -1.5м.
·
конструкция
пола см. табл. 6.1.
Экспликация полов
Таблица 6.1
|
Номер
помещения
|
Тип
пола
|
Схема
пола или тип пола по серии
|
Данные
элементов пола (наименование, толщина,
основание и др.), мм.
|
Площадь,
м2
|
|
28*
|
Наливной
|
|
Наливной пол 5
Выравнивающий слой 50
Подготовительный слой (бетон М150,
армированный Ç10AI,
с шагом 150х150мм.) 95
Грунт основания с втрамбованным
щебнем, крупностью 40-60мм. 150
|
4500
|
*-номер помещения см. лист 2 графической
части
·
окна
и двери см. ведомость заполнения проемов на листе 3 графической части.
6.4.2 Конструктивные
решения бытового корпуса:
·
здание
запроектировано в цельнометаллическом каркасе с легкими ограждающими
конструкциями стен и кровли;
·
каркас
решен по рамной схеме (жескость каркаса обеспечивается заделкой колонн в
фундамент и шарнирное соединение ригеля с колонной);
·
кровля
предусмотрена двускатной с уклоном равным 5% и организованным наружным
водоотводом;
·
шаг
колонн каркаса по продоляным рядам предусмотрен равным 5.0м., торцевых – 6.0
м.;
·
стеновое
ограждение разработано с применением типовых стеновых панелей типа «Сендвич»;
·
обрез
фундамента располагается на отметке -0,200. Фундамент под колонны свайные, с
размерами подколонника (ростверка) 600х600мм., глубина заложения -1.5м. Под
колонны среднего ряда, фундамент выполнен в виде свайного куста, с размерами
ростверка 1600х1600мм., глубина заложения -1.5м.
·
фундамент
под стены лестничной площадки выполнен ленточным из сборных железобетонных
блоков;
·
конструкция
пола см. табл. 6.2.
Экспликация полов
Таблица 6.2
|
Номер
помещения*
|
Тип
пола
|
Схема
пола или тип пола по серии
|
Данные
элементов пола (наименование, толщина,
основание и др.), мм.
|
Площадь,
м2
|
|
1,4,11
|
Плитка
«керамо-гранит» по грунту
|
|
Облицовочная плитка-«керамический
гранит» 6-8
Стяжка из цем.-песчанного р-ра М150 30
Подстилающий слой бетона класса В7.5,
армированный сеткой Ç4ВрI
160
Грунт основания с втрамбованным
щебнем, крупностью 40-60мм. 100
|
76.3
|
|
6,7,8,13
|
Керамическая
плитка по грунту
|
|
Керамическая плитка 5
Стяжка из цем.-песчанного р-ра М150 30
Два слоя гидроизола 6-8
Подстилающий слой бетона класса В7.5,
армированный сеткой Ç4ВрI
160
Грунт основания с втрамбованным
щебнем, крупностью 40-60мм. 100
|
3.5
|
|
2,3,5,9
|
Линолеум
по грунту
|
|
Линолеум на теплоизолирующей подоснове
5
Прослойка из клеящей мастики 5
Стяжка из цем.-песчанного р-ра М150 30
Подстилающий слой бетона класса В7.5,
армированный сеткой Ç4ВрI
160
Грунт основания с втрамбованным
щебнем, крупностью 40-60мм. 100
|
115.5
|
|
10,12,14,27
|
Бетонный
по грунту
|
|
Слой бетонного раствора М200 30
Стяжка из цем.-песчанного р-ра М150 30
Подстилающий слой бетона класса В7.5,
армированный сеткой Ç4ВрI
160
Грунт основания с втрамбованным
щебнем, крупностью 40-60мм. и пропитанный
битумом 100
|
118.0
|
|
25
|
Плитка
«керамический гранит»
|
|
Облицовочная плитка-«керамический
гранит» 7
Цементно-песчанный раствор М150 30
Стяжка поризованная из фосфогипса 18
Подстилающий слой из бетона класса
В7.5 25
Ж/б плита перекрытия 220
|
77.7
|
|
18,19,20,23
|
Керамическая
плитка
|
|
Керамическая плитка 6
Цементно-песчанный раствор М150 30
Стяжка поризованная из фосфогипса 18
Два слоя гидроизола 6
Подстилающий слой из бетона класса
В7.5 25
Ж/б плита перекрытия 220
|
35.5
|
|
15,16,17,21,22,24,26
|
Линолеум
|
|
Линолеум на теплоизолирующей подоснове
5
Прослойка из клеящей мастики 5
Стяжка из цем.-песчанного р-ра М150 30
Теплоизоляционный слой из керамзита 40
Ж/б плита перекрытия 220
|
215.5
|
*-номер помещения см. лист 2 графической
части
·
отделка
помещений см. табл. 6.3.
Ведомость отделки помещений. Площадь,м2
Таблица 6.3
|
Наименование
или номер помещения
|
Потолок
|
Стены
или перегородки
|
Примечание
|
|
Вид
отделки
|
Площадь
|
Вид
отделки
|
Площадь
|
|
|
1,4,25
|
Подвесной
потолок типа «ARMSTRONG»
|
64.6
|
Штукатурка,
шпатлевка, водоэмульсионная покраска
|
333.0
|
Высота
2.7м.
|
|
2,3,5,9,10,11,12,14,16,17,
21,24,27
|
Водноэмульсион-ная
покраска
|
273.2
|
Штукатурка,
шпатлевка, водоэмульсионная покраска
|
748.0
|
Высота
3.0м..
|
|
15,22,26
|
Подвесной
потолок типа «ARMSTRONG»
|
153.7
|
Стеклообои
с последующей окраской
|
188.95
|
Высота
2.7м.
|
|
6,7,8,13,18,19,20,23
|
Водноэмульсион-ная
покраска
|
70.0
|
Керамическая
плитка
|
314.78
|
Высота
3.0м..
|
·
окна
и двери см. ведомость заполнения проемов на листе 3 графической части.
6.5
Теплотехнический
расчет стенового ограждения
Строительство ведется в г. Тула.
Влажностный режим – умеренный.
I. Требуемое сопротивление теплопередаче
ограждающих конструкций (за исключением светопрозрачных), отвечающим
санитарно-гигиеническим и комфортным условиям, определяется по формуле (1)
СНиП II-3-79*
где n - коэффициент, принимаемый в
зависимости от положения наружной поверхности ограждающих конструкций по
отношению к наружному воздуху по табл. 3* СНиП II-3-79*;
tв –
расчетная температура внутреннего воздуха, 0С, принимаемая согласно
ГОСТ 12.1.005-88 и нормам проектирования соответствующих зданий и сооружений;

tн –
расчетная зимня
я температура наружного воздуха, 0С,
равная средней температуре наиболее холодной пятидневки обеспеченностью 0,92 по
СНиП 2.01.01-82;
Δtн
–
нормативный температурный перепад между температурой внутреннего воздуха и
температурой внутренней поверхности ограждающей конструкции, принимаемый по
табл. 2* СНиП II-3-79* ;
αв –
коэффициент теплопередачи внутренней поверхности ограждающих конструкций,
принимаемый по табл. 4* СНиП II-3-79* .
где n = 1;
tв = 22 0С; tн
= – 280С; Δtн
=
6,00С.
II.
Требуемое сопротивление теплопередаче градусо-сутки отопительного периода
(ГСОП) определяем по формуле (1а) СНиП II-3-79*
ГСОП=(tв-tот.пер.)zот.пер.
где tв –
то же что и в формуле 1;
zот.пер
–
средняя температура , 0С, и продолжительность, сут, периода со
средней суточной температурой воздуха ниже или равной 80С по СНиП
2.01.01–82.
где tв = 22 0С; tот.пер
.= – 3,80С; zот.пер = 213 сут.
III. Термическое сопротивление R м2
0С/Вт, слоя многослойной ограждающей конструкции определяем по
формуле 3 СНиП II-3-79*
ГСОП = (22+3,8) × 207 = 5340,6
где δ– толщина слоя, м;
λ – расчетный коэффициент
теплопроводности материала слоя, Вт/ ( м 0С), принимаемый по прил. 3*
СНиП II-3-79*.
а) Сталь.
б) Стекловолокнистый материал, плотностью
17 кг/м3
в) Сталь.
V. Сопротивление теплопередаче R0
м2 0С/Вт ограждающей конструкции следует определять по формуле (3)
СНиП II-3-79*
где αв то же, что в
формуле (1);

Rк – термическое
сопротивление, м2*0С/Вт, определяемое многослойной в
соответствии с пп. 2.2 и 2.8 СниП II-3-79*;
αв – коэффициент
теплопередачи (для зимних условий) наружной поверхности ограждающих
конструкций, Вт/( м 0С),принимаемый по таблице 6*.
VI. Термическое сопротивление Rк
м2 0С/Вт, ограждающей конструкции с последовательно расположенными
однородными слоями следует определять как сумму термических сопротивлений
отдельных слоев
Rк
=
(R1+
R2+………+
Rn)*r
где R1 ,R2 ,…….Rn
– термическое сопротивление отдельных слоев ограждающей конструкции, м2
0С/Вт, определяемые по формуле 3* СниП II-3 79*.
Rк = (0,00001 + 2.5 + 0,00001)*0,94
= 2.35
где r = 0,94 – понижающий коэффициент
для Rк, определяемый по табл. 13 СНиП II-3-79* .
Полученный результат сравниваем с RГСОПтр
,взятом из табл. 1 б* СНиП II-3-79*
R0=2,53> RГСОПтр=2,07
Запроектированная многослойная
ограждающая конструкция отвечает требованиям СНиП II-3-79*.
6.6
Технико-экономические показатели
Производственный корпус:
·
площадь
застройки – 4113.5 м2
·
строительный
объем – 391952.44 м3
·
общая
площадь – 3898.3 м2
Бытовой корпус:
·
площадь
застройки – 375.0 м2
·
строительный
объем – 2812.5 м3
·
общая
площадь – 672.0 м2
7.
Санитарно-техническое оборудование
7.1 Отопление и
вентиляция
7.1.1 Производственный цех
Отопление в помещениях цеха горячего
цинкования воздушное. Агрегаты воздушного отопления нагревают рециркуляционный
воздух. Трубопроводы систем отопления приняты из стальных труб:
водогазопроводных по ГОСТ 3262-75* и бесшовных по ГОСТ 8732-70. Неизолированные
трубопроводы окрашены масляной краской за два раза. Система отопления
рассчитана на поддержание температуры внутреннего воздуха +15ÅС
- 22ÅС.
Для нагрева воздуха в отопительных агрегатах служит горячая вода с параметрами
Т1=85ÅС,
Т2=65ÅС.
Приготовление горячей воды осуществляется в теплоэкономайзере, работающем на
дымах, выходящих из печи цинкования. Для предотвращения проникновения холодного
воздуха в цех, при открывании ворот, проектом предусмотрена установка воздушных
отсечных завес. Завесы устанавливаются в горизонтальном положении над воротами.
Вентиляция цеха горячего цинкования
запроектирована приточно-вытяжная с механическим побуждением. В проекте
предусмотрены установки приточных и вытяжных систем.
1. В продольном направлении по бортам
ванн цинкования установлены трубы всасывания, снабженные рядом специальных
отверстий. Дымы сгорания, получаемые от печи цинкования, попадают в блок
теплоэкономайзера через дымоходы, проложенные в железобетонном полу. От
теплоэкономайзера дымы поступают в каналы генератора тепла для сушильной камеры
для последующего смешивания или выброса в атмосферу, исходя из того, следует ли
еще их температура заданным температурным пределам.
2. Система очистки «белых» дымов состоит
из:
·установки всасывания
«белых» дымов;
·установки фильтрации
«белых» дымов.
Установка всасывания и выброса «белых»
дымов основана на принципе создания герметического закрытия во время погружения
материала, достаточного для достижения эффективности улавливания,
приближающейся к 100%. Система состоит из трех основных частей:
·неподвижная кабина,
размещенная на самой печи и оснащенная подвижными дверями и окнами;
·подвижный дымоуловитель
в виде колпака, расположенный на мостовом кране цинкования, который
соответствует неподвижной кабине и завершает закрытие в виде «коробки»;
·часть, занимающаяся
непосредственно всасыванием, состоящая из одной трубы всасывания, вентилятора и
выхлопной трубы. Если требуется фильтрация выбрасываемых дымов, достаточно
просто вставить систему фильтрации сразу после вентилятора всасывания.
Фильтр для белых дымов устанавливается
после вентилятора всасывания. Условленная электрическая мощность учитывает увеличение
мощности, которое требуется вентилятору всасывания из-за потерь нагрузки,
вызванных наличием фильтра.
Пропускная способность всасывания:
90.000м3/час.
Размеры вытяжной трубы: 1.4х14.0м.
Степень очистки: 98%.
3. Система очистки «кислых» дымов состоит
из:
·установки уничтожения
паров кислоты.
Установка уничтожения паров кислоты
комбинируется с установкой, описанной ниже. Воздух вынуждают проходить через
промывочную колонну с компонентами наполнения, где встречается с водой в
противотоке. Затем, перед выбросом в атмосферу, воздух встречается с
отделителем капель.
Установка всасывания испарений кислоты и
удаления паров кислоты изготовлены по принципу поддержания в состоянии
разрежения всей зоны испарений, находящейся над ваннами предварительной
обработки, поэтому воздух, находящийся над ваннами, стремится вниз. Именно
поэтому каналы по бортам ванн установлены и расположены так, чтобы позволить
правильное применение данного принципа работы.
Таким образом, система базируется на
том, что один или несколько вентиляторов всасывания, в зависимости от объёмов,
подлежащих всасыванию, постоянно забирают воздух: в этом случае вынужден
проходить через отверстия, оставленные между желобками.
Объём потока выброса: 37000м3/час.
Размеры вытяжной трубы: 1.5х14.0 м.
Степень очистки: 98 %.
4. В проекте приняты централизованные
установки приточно-вытяжной вентиляции. Вентплощадка под размещение приточных
камер расположена на первом этаже пристроенных к цеху бытовых помещений. Вентплощадки
под размещение вытяжных вентиляторов предусмотрены непосредственно в цехе.
Схема воздухозабора приточных систем решена с учетом размещения приемных
устройств в менее загрязненной зоне. Очистка наружного приточного воздуха от
пыли предусмотрена в ячейковых фильтрах. Нагрев приточного воздуха
осуществляется в электрокалориферах. В целях освобождения основного объема
производственного помещения от инженерных коммуникаций, прокладка их ведется по
возможности в межферменном пространстве.
В целях защиты от коррозии воздуховоды,
приточной и вытяжных систем, изготовлены из стали тонколистовой оцинкованной.
Вытяжные вентиляторы предусмотрены из нержавеющей стали. В теплый и переходный
периоды года в дополнение к механической системе вытяжной вентиляции проектом
предусмотрено устройство естественной вентиляции. Естественная вентиляция
осуществляется через аэрационный фонарь и открывающиеся фрамуги окон.
7.1.2 Бытовой корпус
Теплоснабжение бытового корпуса
осуществляется от электрического котла. Параметры теплоносителя (горячей воды
на нужды отопления Т1=85ÅС, Т2=65ÅС.
Система отопления в помещениях бытового корпуса завода цинкования
запроектирована водяная, однотрубная с нижней разводкой. Основная разводка
магистральных трубопроводов отопления осуществляется по полу первого этажа. В
качестве нагревательных приборов приняты радиаторы алюминиевые GLOBAL.
Для выпуска воздуха из системы отопления на приборах верхнего этажа установлены
автоматические воздуховыпускные краны. Для отключения стояков на них
предусмотрена установка шаровых кранов. Для монтажной регулировки теплоотдачи
установленных радиаторов на подающих подводках к ним запроектированы шаровые
краны. Трубопроводы системы отопления выполнены из стальных водогазопроводных
труб по ГОСТ 3262-75*. Не изолированные трубопроводы окрашены масляной краской
за два раза. Система отопления рассчитана на поддержание температуры
внутреннего воздуха +18 - +20ÅС.
Вентиляция в помещениях бытового корпуса
предусмотрена приточно-вытяжная с механическим побуждением. Воздух подается в
верхнюю зону помещений через жалюзийные решетки. Удаление воздуха происходит по
воздуховодам, с помощью канальных вентиляторов. Вытяжной воздух выбрасывается
выше уровня парапета на 0.5 м.
7.2
Водоснабжение и канализация
Врезка проектируемого водопровода
предусмотрена в магистральный трубопровод диаметром 150мм., проходящий по
территории промышленной площадки в минимальном приближении к проектируемому
заводу цинкования на расстоянии 7.5м. На месте врезки устанавливается
отключающая арматуру (задвижка), пожарный гидрант и монтируется ж/б колодец.
Источником водоснабжения проектируемой промзоны является скважина с дебитом
воды 90м3/час. Артезианская скважина расположена вблизи проектируемой
промплощадки, скважинный насос работает автоматически от датчиков давления в
аккумуляторных баках. В узле ввода установлены два гидропневматических
мембранных бака объемом 500м3. Магистральная сеть водопровода по
территории промплощадки запроектирована тупиковой длиной 190м. Оканчивается
водопроводная сеть колодцем с пожарным гидрантом и отключающей арматурой на
ввод водопровода в бытовой корпус и на перспективную подачу воды на соседние
предприятия. По периметру корпуса расставлены наружные поливочные краны
диаметром 25мм. Трубопроводы запроектированы из стальных труб. магистральные
трубопроводы диаметром 100мм. смонтированы в теплоизоляции. Подводки
водопровода к техническому оборудованию в полу уложены в футляры. Хозяйственно-фекальные
сточные воды с территории проектируемой промышленной площадки, отводятся в
существующую сеть канализации, расположенной рядом.
Водопроводные и канализационные колодцы
выполнены из сборных ж/б элементов. Трубопроводы наружных сетей водоснабжения и
канализации запроектированы из полиэтиленовых труб.
Расчетные расходы воды на проектируемой
площадке по корпусам приведены в таблице 7.1.
Таблица 7.1
|
Наименование
потребителя
|
Расчетные
расходы
|
Примечание
|
|
м3/сут
|
м3/ч
|
л/с
|
|
Производственный
корпус
|
31.0
|
3.875
|
1.08
|
периодичный
|
|
Бытовой
корпус
|
9.0
|
6.77
|
3.0
|
|
|
Всего
|
40.0
|
10.645
|
4.08
|
|
Расход воды на наружное пожаротушение
равен 25л/с, на внутреннее пожаротушение производственного корпуса – 2 струи по
2.6л/с. Противопожарный объем 250м3 хранится в резервуарах,
расположенных за территорией промплощадки. Потрубный напор у пожарного крана с
рукавом длиной 20м. с диаметром спрыска наконечника пожарного ствола – 13мм.
составляет 21м. Потребный напор на вводе в здание – 30м.
Расчетный расход хозяйственно-фекальной
канализации равен
9.191м3/сут; 6.82 м3/ч.
7.3
Электротехническая часть
7.3.1 Производственный цех
Силовое электрооборудование
Электроснабжение осуществляется от
запроектированной подстанции. В качестве распределительного принят шкаф типа ПР
8000. Расчетная мощность Рр=900кВт. Распределительные сети
выполняются кабелем ВВГнг, проложенным в лотке по стропильным конструкциям, в
полу в стальных трубах.
Электроосвещение.
Предусматривается рабочее, аварийное и
эвакуационное освещение. Используются светильники с ртутными лампами и лампами
накаливания. Управление освещением осуществляется автоматическими выключателями
со щитов. Групповые сети осуществляются кабелем ВВГнг, проложенным открыто, по
строительным конструкциям. Заземление светильников выполняется присоединением
их корпусов к специально проложенной «РЕ» жиле сети освещения.
7.3.2 Бытовой корпус
Силовое электрооборудование.
В качестве вводного устройства принят
шкаф типа ВРУ 1-А-11-10 в качестве распределительного шкафа -тип ПР 8000.
Расчетная мощность Рр=120кВт. Распределительные сети выполняются
кабелем ВВГнг, проложенным открыто по стенам и в подшивных потолках.
Электроосвещение.
Предусматривается рабочее, аварийное и
эвакуационное освещение. Используются светильники с люминесцентными лампами и
лампами накаливания. Управление освещением осуществляется индивидуальными
выключателями. Групповые сети осуществляются кабелем ВВГнг, проложенным как открыто,
так и скрыто в слое штукатурки по стенам, в пустотах плит перекрытий, за
подвесным потолком из негорючим материалов. Для уменьшения пульсации приняты
светильники с электронными ПРА. Коэффициент запаса 1.4. Заземление светильников
выполняется присоединением их корпусов к специально проложенной «РЕ» жиле сети
освещения.
8.
Расчетно-конструктивная часть
8.1 Краткая
характеристика основных конструкций каркаса здания
Поперечные рамы каркаса состоят из
колонн (стоек рамы) и ригелей (ферм с шарнирным сопряжением). Продольные
элементы каркаса – это подкрановые конструкции, связи между колоннами и
фермами, прогоны. Кроме перечисленных элементов в состав каркаса входят
конструкции торцевого фахверка и продольного, площадок, лестниц и других
элементов здания.
Чрезвычайно большое влияние на работу
каркаса здания оказывают краны, поэтому при проектировании каркаса здания
необходимо особо учитывать режим работы мостовых кранов, который зависит от
назначения здания и производственного процесса в нем. Режим работы крана
определяется его загруженностью в течение суток и в течение года, а также
скоростью перемещения крана и тележки. Режим работы мостовых кранов – легкий
(3К). Количество кранов 4шт.
Подкрановые балки. Конструкция
подкрановых балок - обычный прокатный двутавр. Подкрановые балки воспринимают
только вертикальные нагрузки. Для восприятия горизонтальных нагрузок от крана
конструируют тормозные балки или фермы, которые с помощью стальных специальных
деталей крепятся к колоннам. По торцам здания на верхних поясах подкрановых
балок или ферм устанавливают концевые упоры для предотвращения непосредственного
наезда крана на торец здания.
Связи – это важные элементы каркаса,
обеспечивающие неизменность пространственной системы каркаса и устойчивости его
сжатых элементов; восприятия и передачи на фундамент некоторых нагрузок
(ветровых и горизонтальных от кранов); обеспечение совместной работы поперечных
рам при местных нагрузках; создающие жесткость каркаса, необходимую для
нормальных условий эксплуатации. Связи подразделяются на связи между колоннами
связи между фермами. Система связи между колоннами обеспечивает во время
эксплуатации и монтажа геометрическую неизменяемость каркаса и его несущую
способность в продольном направлении, а также устойчивость колонн из плоскости
поперечных рам. Для выполнения этих функций необходим хотя бы один жесткий
вертикальный диск по длине температурного отсека и система продольных
элементов, прикрепляющих колонны, не входящие в жесткий диск. В жесткие диски
включены две колонны, подкрановая балка, горизонтальные распорки и решетка.
Решетка чаще проектируется крестовой, элементы которой работаю на растяжение, и
продольная, элементы которой работают на растяжение и сжатие. При больших шагах
колонн в нижней части колонны целесообразно применять портальные связи, а в
верхней – использование подстропильной фермы. При небольшой длине здания
ставится вертикальная крестовая связь в одной панели посредине температурного
блока (в подкрановой части колонн) и крестовые связи по краям температурного
отсека (в надкрановой части колонн), что целесообразно с точки зрения монтажа и
однотипности решений. Связи, устанавливаемые в пределах высоты ригелей в
связевом блоке и по торцам здания – проектируются в виде самостоятельных
связевых ферм. Сечение связей выполнено из уголков (так же может быть из
швеллеров, прямоугольных и круглых труб).
Рис. 8.1 Схема вертикальных связей между
колоннами и между стойками фонаря
Система связей покрытия состоит из
горизонтальных и вертикальных связей.
Горизонтальные связи располагаются в
плоскостях нижнего и верхнего поясов ферм.
Рис. 8.2 Схема связей покрытия
1 – вертикальные связи по колоннам; 2 –
вертикальная связь фонаря; 3 горизонтальные связи покрытия; 4 - прогоны; 5 -
распорки; 6 – фермы; 7 – фермы фонаря
Горизонтальные связи могут быть
поперечными и продольными. Поперечные – устраиваются для закрепления прогонов
от продольных смещений, они располагаются в торцах здания – для обеспечения
пространственной жёсткости покрытия. Поперечные связи закрепляют продольные, а
в торцах здания они необходимы и для восприятия ветровой нагрузки, направленной
на торец здания.
Стропильные фермы обладают незначительной
боковой жёсткостью, поэтому необходимо устанавливать вертикальные связи между
ними (рис. 8.2.).
8.2 Расчет ферм
8.2.1 Обоснование принятого варианта
стропильной фермы.
Выбор очертания стропильной фермы
является первым этапом их проектирования. Очертание ферм в первую очередь
зависит от назначения сооружения. Оно должно отвечать принятой конструкции
сопряжений с промышленными элементами. Так, очертание стропильной фермы
промздания зависит от назначения цеха, типа кровли, типа и размера фонаря, от
типа соединения ферм с колоннами (шарнирное или жёсткое)
Исходя из исходных данных:
- пролет фермы Ф-1 -
24 м;
- пролет фермы Ф-2 -
18 м;
- шаг ферм - 10 м;
- тип кровли -
теплая облегченная.
Выбираем ферму трапецеидального
очертания с треугольной решёткой с дополнительными стойками. Так как будут
применяться кровельные материалы, не требующие больших уклонов, примем уклон 12
%. Конструкция предназначена для применения в отапливаемом здании с
неагрессивной средой, возводимом во III районе по весу снегового покрова, в I
районе по скоростному напору ветра, в районе с расчетными температурами
наружного воздуха –280С и выше. В качестве несущего и ограждающего элемента
кровли используется стальной профилированный оцинкованный настил, укладываемый
непосредственно по прогонам.
Решётка фермы работает на поперечную
силу, выполняя функции стенки сплошной балки. От системы решётки зависит:
трудоёмкость её изготовления, внешний вид, нагружение фермы. Панели должны
соответствовать расстояниям между элементами, передающим нагрузку на ферму.
Решётка ферм и основные геометрические размеры показаны на рис. 8.3.
Рис. 8.3 Геометрическая схема стропильных
ферм Ф1и Ф2
8.2.2 Расчет и конструирование ферм
Описание конструктивного решения кровли.
Сбор нагрузок на стропильные фермы.
Принимаем следующий состав кровли:
по прогонам стальной профилированный
настил марки ПГЛ57-900-0.7;
утеплитель h = 150 мм из
стекловолокнистых мат (
= 17
);
стальной профилированный настил марки
Н75-750-0.7.
Все нагрузки, действующие на ферму,
передаются, на узлы фермы к которым присоединяются элементы поперечной
конструкции (прогоны кровли).
Нагрузка, действующая на ферму состоит
из постоянной (вес покрытия) и временной (вес снега).
Сбор нагрузок
Таблица
8.1
|
Наименование
конструкции
|
Вид
нагрузки
|
Наименование
нагрузки
|
Нормативная
нагрузка кН/м2
|
Коэффициент
надености по нагрузке
|
Расчетная
нагрузка кН/м2
|
Примечание
|
|
1
|
2
|
3
|
4
|
5
|
6
|
7
|
|
Покрытие
|
Постоянная
|
Профнастил
ПГЛ57-900-0.7 (верхний слой)
|
0.09
|
1.05
|
0.11
|
|
|
Утеплитель:
стекловолокнистые маты g =17кг/ м3 ,t
=150мм
|
0.03
|
1.3
|
0.04
|
|
|
Профнастил
Н57-750-0.7 (нижний слой)
|
0.10
|
1.05
|
0.11
|
|
|
Собственный
вес металлоконструкций
|
0.20
|
1.05
|
0.21
|
|
|
Связи
покрытия
|
0.04
|
1.05
|
0.04
|
|
|
Собственный
вес фонаря
|
0.10
|
1.05
|
0.11
|
Учитывать
в местах фактического опирания фонаря на ферму
|
|
Вес
бортовой стенки и остекления фонаря
|
2
|
1.05
|
2.1
|
Учитывать
в местах фактического опирания к фонарю
|
|
Итого
(без собственного вес фонаря с остеклением)
|
0.46
|
−
|
0.51
|
|
|
Кратко
временная
|
Снег,
III район
|
1.26
|
1.43
|
1.80
|
|
Ферма Ф-1 симметрична, рассчитываем
только половину фермы.
Ферма Ф-2 не симметрична, расчет ведем
всех стержней.
Расчет усилий в стержнях ферм определяем
при помощи программы Structure
CAD.
Расчет фермы Ф-1
Рис. 8.4 Расчетная схема стропильной
фермы Ф1
Комбинации нагрузок на ферму Ф-1.
Таблица 8.2
|
Номер
|
Наименование
|
|
1
|
Постоянная
+снег (1-й вариант загружения)
|
|
2
|
Постоянная
+снег (2-й вариант загружения)
|
Усилия и напряжения элементов при
комбинации нагружений на ферму Ф1.
Таблица 8.3
|
Номер
эл-та
|
Номер
сечен.
|
Номер
комб.
|
Усилия
и напряжения
|
|
|
|
N
(кН)
|
M
(кН*м)
|
Q
(кН)
|
|
1
|
1
|
1
|
645.333
|
0.
|
0.
|
|
|
2
|
649.716
|
0.
|
0.
|
|
2
|
1
|
645.333
|
0.
|
0.
|
|
|
2
|
649.716
|
0.
|
0.
|
|
5
|
1
|
1
|
831.272
|
0.
|
0.
|
|
|
2
|
844.363
|
0.
|
0.
|
|
2
|
1
|
831.272
|
0.
|
0.
|
|
|
2
|
844.363
|
0.
|
0.
|
|
6
|
1
|
1
|
768.797
|
0.
|
0.
|
|
|
2
|
740.601
|
0.
|
0.
|
|
2
|
1
|
768.797
|
0.
|
0.
|
|
|
2
|
740.601
|
0.
|
0.
|
|
7
|
1
|
1
|
-620.817
|
0.
|
0.
|
|
|
2
|
-625.033
|
0.
|
0.
|
|
2
|
1
|
-620.817
|
0.
|
0.
|
|
|
2
|
-625.033
|
0.
|
0.
|
|
8
|
1
|
1
|
-620.817
|
0.
|
0.
|
|
|
2
|
-625.033
|
0.
|
0.
|
|
2
|
1
|
-620.817
|
0.
|
0.
|
|
|
2
|
-625.033
|
0.
|
0.
|
|
10
|
1
|
1
|
-866.545
|
0.
|
0.
|
|
|
2
|
-865.531
|
0.
|
0.
|
|
2
|
1
|
-866.545
|
0.
|
0.
|
|
|
2
|
-865.531
|
0.
|
0.
|
|
11
|
1
|
1
|
-893.942
|
0.
|
0.
|
|
|
2
|
-916.941
|
0.
|
0.
|
|
2
|
1
|
-893.942
|
0.
|
0.
|
|
|
2
|
-916.941
|
0.
|
0.
|
|
12
|
1
|
1
|
-893.942
|
0.
|
0.
|
|
|
2
|
-916.941
|
0.
|
0.
|
|
2
|
1
|
-893.942
|
0.
|
0.
|
|
|
2
|
-916.941
|
0.
|
0.
|
|
13
|
1
|
1
|
-72.9
|
0.
|
0.
|
|
|
2
|
-69.3
|
0.
|
0.
|
|
2
|
1
|
-72.9
|
0.
|
0.
|
|
|
2
|
-69.3
|
0.
|
0.
|
|
14
|
1
|
1
|
-88.3499
|
0.
|
0.
|
|
|
2
|
-102.075
|
0.
|
0.
|
|
2
|
1
|
-88.3499
|
0.
|
0.
|
-102.075
|
0.
|
0.
|
|
15
|
1
|
1
|
-245.233
|
0.
|
0.
|
|
|
2
|
-255.396
|
0.
|
0.
|
|
2
|
1
|
-245.233
|
0.
|
0.
|
|
|
2
|
-255.396
|
0.
|
0.
|
|
17
|
1
|
1
|
116.704
|
0.
|
0.
|
|
|
2
|
151.353
|
0.
|
0.
|
|
2
|
1
|
116.704
|
0.
|
0.
|
|
|
2
|
151.353
|
0.
|
0.
|
|
18
|
1
|
1
|
33.2114
|
0.
|
0.
|
|
|
2
|
17.1213
|
0.
|
0.
|
|
2
|
1
|
33.2114
|
0.
|
0.
|
|
|
2
|
17.1213
|
0.
|
0.
|
|
19
|
1
|
1
|
64.2557
|
0.
|
0.
|
|
|
2
|
75.3773
|
0.
|
0.
|
|
2
|
1
|
64.2557
|
0.
|
0.
|
|
|
2
|
75.3773
|
0.
|
0.
|
|
20
|
1
|
1
|
-36.45
|
0.
|
0.
|
|
|
2
|
-68.4
|
0.
|
0.
|
|
2
|
1
|
-36.45
|
0.
|
0.
|
|
|
2
|
-68.4
|
0.
|
0.
|
|
21
|
1
|
1
|
34.6656
|
0.
|
0.
|
|
|
2
|
65.0515
|
0.
|
0.
|
|
2
|
1
|
34.6656
|
0.
|
0.
|
|
|
2
|
65.0515
|
0.
|
0.
|
Результаты max
расчётных усилий сведём в табл. 8.4
Значение max
расчётных усилий в стержнях фермы.
Таблица 8.4
|
Элемент
фермы
|
Номер
элемента
|
Расчётное
усилие, кН
|
|
сжатие
|
растяжение
|
|
Верхний
пояс
|
7
8
10
11
12
|
625,03
625,03
866,55
916,94
916,94
|
-
-
-
-
-
|
|
Нижний
пояс
|
5
6
|
-
-
|
844,36
768,80
|
|
Стойки
|
3
13
14
|
0
72,90
102,08
|
-
-
-
|
|
Шпренгели
и полураскосы
|
18
19
20
21
|
-
-
68,40
-
|
33,21
75,38
-
65,05
|
|
Опорный
раскос
|
1
|
-
|
649,72
|
|
Раскосы
|
15
17
|
255,40
-
|
-
151,35
|
Подбор сечений стержней фермы Ф-1
Для удобства изготовления и
комплектования сортамента металла при проектировании ферм обычно устанавливают
4-6 разных калибров профиля, из которых набирают все элементы фермы. Чтобы
предварительно установить необходимый ассортимент профилей, определяют
требуемые площади сечений стержней фермы.
Для технико-экономического обоснования
(п.5 данного проекта), произведем подбор сечений стержней фермы Ф1 для двух
вариантов:
1)
ферма
металлическая с трапециевидной формой с сечением элементов из спаренных уголков
и опорными нисходящими раскосами;
2)
ферма
металлическая с трапециевидной формой с сечением элементов решётки из одиночных
уголков, пояса таврового сечения и опорными нисходящими раскосами из одиночных
уголков.
Вариант №1.
Расчет сечений стержней фермы определяем
при помощи программы Structure
CAD
Необходимые данные для расчёта:
·марка стали ВСт3пс6-1 (
=240 МПа)[СНиП II-23-81*,
табл. 51*];
·N
– расчётное продольное усилие;
·[
]-предельная гибкость;
·
- коэффициент условия работы
конструкции;
·lef –
расчетные
длины.
Группа верх. пояс 1. Элемент №(7,8)
|
Расчетное
сопротивление стали Ry= 240000,0 кН/м2
Коэффициент
условий работы -- 0,95
Предельная
гибкость -- 120,0
Коэффициент
расчетной длины в плоскости X1,Y1 -- 1,0
Коэффициент
расчетной длины в плоскости X1,Z1 -- 1,0
Длина
элемента -- 3,02 м
|
Сечение Уголок
равнополочный по ГОСТ 8509-93 L120x15
|
Результаты расчета
|
Проверено
по СНиП
|
Фактор
|
Коэффициенты
использования :
|
|
пп.5.24,5.25
|
прочность
при совместном действии продольной силы и изгибающих моментов без учета
пластики
|
0,66
|
|
п.5.3
|
устойчивость
при сжатии в плоскости X1,O,Y1 (X1,O,U1)
|
0,79
|
|
п.5.3
|
устойчивость
при сжатии в плоскости X1,O,Z1 (X1,O,V1)
|
0,99
|
|
пп.6.15,6.16
|
предельная
гибкость в плоскости X1,O,Y1
|
0,45
|
|
пп.6.15,6.16
|
предельная
гибкость в плоскости X1,O,Z1
|
0,69
|
Коэффициент использования 0,99 -
устойчивость при сжатии в плоскости X1,O,Z1 (X1,O,V1)
Группа верх. пояс 2. Элемент №10
|
Расчетное
сопротивление стали Ry= 240000,0 кН/м2
Коэффициент
условий работы -- 0,95
Предельная
гибкость -- 120,0
Коэффициент
расчетной длины в плоскости X1,Y1 -- 1,0
Коэффициент
расчетной длины в плоскости X1,Z1 -- 1,0
Длина
элемента -- 3,02 м
|
Сечение
Уголок
равнополочный по ГОСТ 8509-93 L150x15
|
Результаты расчета
|
Проверено
по СНиП
|
Фактор
|
Коэффициенты
использования :
|
|
пп.5.24,5.25
|
прочность
при совместном действии продольной силы и изгибающих моментов без учета
пластики
|
0,71
|
|
п.5.3
|
устойчивость
при сжатии в плоскости X1,O,Y1 (X1,O,U1)
|
0,81
|
|
п.5.3
|
устойчивость
при сжатии в плоскости X1,O,Z1 (X1,O,V1)
|
0,91
|
|
пп.6.15,6.16
|
предельная
гибкость в плоскости X1,O,Y1
|
0,37
|
|
пп.6.15,6.16
|
предельная
гибкость в плоскости X1,O,Z1
|
0,55
|
Коэффициент использования 0,91 -
устойчивость при сжатии в плоскости X1,O,Z1 (X1,O,V1)
Группа верх. пояс 2. Элемент №(11,12)
|
Расчетное
сопротивление стали Ry= 240000,0 кН/м2
Коэффициент
условий работы -- 0,95
Предельная
гибкость -- 120,0
Коэффициент
расчетной длины в плоскости X1,Y1 -- 1,0
Коэффициент
расчетной длины в плоскости X1,Z1 -- 1,0
Длина
элемента -- 1,51 м
|
Сечение
Уголок
равнополочный по ГОСТ 8509-93 L125x16
|
Результаты расчета
|
Проверено
по СНиП
|
Фактор
|
Коэффициенты
использования :
|
|
пп.5.24,5.25
|
прочность
при совместном действии продольной силы и изгибающих моментов без учета
пластики
|
0,85
|
|
п.5.3
|
устойчивость
при сжатии в плоскости X1,O,Y1 (X1,O,U1)
|
0,9
|
|
п.5.3
|
устойчивость
при сжатии в плоскости X1,O,Z1 (X1,O,V1)
|
0,95
|
|
пп.6.15,6.16
|
предельная
гибкость в плоскости X1,O,Y1
|
0,22
|
|
пп.6.15,6.16
|
предельная
гибкость в плоскости X1,O,Z1
|
0,33
|
Коэффициент использования 0,95 - устойчивость
при сжатии в плоскости X1,O,Z1 (X1,O,V1)
Группа нижний пояс 1. Элемент №5
|
Расчетное
сопротивление стали Ry= 240000,0 кН/м2
Коэффициент
условий работы -- 0,95
Предельная
гибкость -- 400,0
Коэффициент
расчетной длины в плоскости X1,Y1 -- 2,0
Коэффициент
расчетной длины в плоскости X1,Z1 -- 1,0
Длина
элемента -- 6,0 м
|
Сечение
Уголок
равнополочный по ГОСТ 8509-93 L120x15
|
Результаты расчета
|
Проверено
по СНиП
|
Фактор
|
Коэффициенты
использования :
|
|
пп.5.24,5.25
|
прочность
при совместном действии продольной силы и изгибающих моментов без учета
пластики
|
0,88
|
|
пп.6.15,6.16
|
предельная
гибкость в плоскости X1,O,Y1
|
0,53
|
|
пп.6.15,6.16
|
предельная
гибкость в плоскости X1,O,Z1
|
0,41
|
Коэффициент использования 0,88 -
прочность при совместном действии продольной силы и изгибающих моментов без
учета пластики
Группа нижний пояс 2. Элемент №6
|
Расчетное
сопротивление стали Ry= 240000,0 кН/м2
Коэффициент
условий работы -- 0,95
Предельная
гибкость -- 400,0
Коэффициент
расчетной длины в плоскости X1,Y1 -- 4,0
Коэффициент
расчетной длины в плоскости X1,Z1 -- 1,0
Длина
элемента -- 3,0 м
|
Сечение
Уголок
равнополочный по ГОСТ 8509-93 L100x15
|
Результаты расчета
|
Проверено
по СНиП
|
Фактор
|
Коэффициенты
использования :
|
|
пп.5.24,5.25
|
прочность
при совместном действии продольной силы и изгибающих моментов без учета
пластики
|
0,95
|
|
пп.6.15,6.16
|
предельная
гибкость в плоскости X1,O,Y1
|
0,64
|
|
пп.6.15,6.16
|
предельная
гибкость в плоскости X1,O,Z1
|
0,25
|
Коэффициент использования 0,95 -
прочность при совместном действии продольной силы и изгибающих моментов без
учета пластики
Группа опорный раскос. Элемент №1
|
Расчетное
сопротивление стали Ry= 240000,0 кН/м2
Коэффициент
условий работы -- 0,95
Предельная
гибкость -- 400,0
Коэффициент
расчетной длины в плоскости X1,Y1 -- 3,82
Коэффициент
расчетной длины в плоскости X1,Z1 -- 1,0
Длина
элемента -- 3,14 м
|
Сечение
Уголок
равнополочный по ГОСТ 8509-93 L100x14
|
Результаты расчета
|
Проверено
по СНиП
|
Фактор
|
Коэффициенты
использования :
|
|
пп.5.24,5.25
|
прочность
при совместном действии продольной силы и изгибающих моментов без учета
пластики
|
0,88
|
|
пп.6.15,6.16
|
предельная
гибкость в плоскости X1,O,Y1
|
0,64
|
|
пп.6.15,6.16
|
предельная
гибкость в плоскости X1,O,Z1
|
0,26
Группа стойки. Элемент №3
|
Расчетное
сопротивление стали Ry= 240000,0 кН/м2
Коэффициент
условий работы -- 0,95
Предельная
гибкость -- 120,0
Коэффициент
расчетной длины в плоскости X1,Y1 -- 1,0
Коэффициент
расчетной длины в плоскости X1,Z1 -- 0,8
Длина
элемента -- 2,37 м
|
Сечение
Уголок
равнополочный по ГОСТ 8509-93 L50x7
|
Результаты расчета
|
Проверено
по СНиП
|
Фактор
|
Коэффициенты
использования :
|
|
пп.6.15,6.16
|
предельная
гибкость в плоскости X1,O,Y1
|
0,76
|
|
пп.6.15,6.16
|
предельная
гибкость в плоскости X1,O,Z1
|
0,91
|
Коэффициент использования 0,91 -
предельная гибкость в плоскости X1,O,Z1
Группа стойки. Элемент №13
|
Расчетное
сопротивление стали Ry= 240000,0 кН/м2
Коэффициент
условий работы -- 0,95
Предельная
гибкость -- 120,0
Коэффициент
расчетной длины в плоскости X1,Y1 -- 1,0
Коэффициент
расчетной длины в плоскости X1,Z1 -- 0,8
Длина
элемента -- 1,29 м
|
Сечение
Уголок
равнополочный по ГОСТ 8509-93 L50x7
|
Результаты расчета
|
Проверено
по СНиП
|
Фактор
|
Коэффициенты
использования :
|
|
пп.5.24,5.25
|
прочность
при совместном действии продольной силы и изгибающих моментов без учета
пластики
|
0,68
|
|
п.5.3
|
устойчивость
при сжатии в плоскости X1,O,Y1 (X1,O,U1)
|
0,84
|
|
п.5.3
|
устойчивость
при сжатии в плоскости X1,O,Z1 (X1,O,V1)
|
0,89
|
|
пп.6.15,6.16
|
предельная
гибкость в плоскости X1,O,Y1
|
0,49
|
|
пп.6.15,6.16
|
предельная
гибкость в плоскости X1,O,Z1
|
0,56
|
Коэффициент использования 0,89 -
устойчивость при сжатии в плоскости X1,O,Z1 (X1,O,V1)
Группа стойки. Элемент №14
|
Расчетное
сопротивление стали Ry= 240000,0 кН/м2
Коэффициент
условий работы -- 0,95
Предельная
гибкость -- 120,0
Коэффициент
расчетной длины в плоскости X1,Y1 -- 1,0
Коэффициент
расчетной длины в плоскости X1,Z1 -- 0,8
Длина
элемента -- 2,01 м
|
Сечение
Уголок
равнополочный по ГОСТ 8509-93 L56x4
|
Результаты расчета
|
Проверено
по СНиП
|
Фактор
|
Коэффициенты
использования :
|
|
пп.5.24,5.25
|
прочность
при совместном действии продольной силы и изгибающих моментов без учета
пластики
|
0,49
|
|
п.5.3
|
устойчивость
при сжатии в плоскости X1,O,Y1 (X1,O,U1)
|
0,76
|
|
п.5.3
|
устойчивость
при сжатии в плоскости X1,O,Z1 (X1,O,V1)
|
0,99
|
|
пп.6.15,6.16
|
предельная
гибкость в плоскости X1,O,Y1
|
0,71
|
|
пп.6.15,6.16
|
предельная
гибкость в плоскости X1,O,Z1
|
0,89
|
Коэффициент использования 0,99 -
устойчивость при сжатии в плоскости X1,O,Z1 (X1,O,V1)
Группа раскосы сжатые. Элемент №15
|
Расчетное
сопротивление стали Ry= 240000,0 кН/м2
Коэффициент
условий работы -- 0,95
Предельная
гибкость -- 120,0
Коэффициент
расчетной длины в плоскости X1,Y1 -- 1,0
Коэффициент
расчетной длины в плоскости X1,Z1 -- 0,8
Длина
элемента -- 3,42 м
|
Сечение
Уголок
равнополочный по ГОСТ 8509-93 L90x10
|
Результаты расчета
|
Проверено
по СНиП
|
Фактор
|
Коэффициенты
использования :
|
|
пп.5.24,5.25
|
прочность
при совместном действии продольной силы и изгибающих моментов без учета
пластики
|
0,51
|
|
п.5.3
|
устойчивость
при сжатии в плоскости X1,O,Y1 (X1,O,U1)
|
0,76
|
|
п.5.3
|
устойчивость
при сжатии в плоскости X1,O,Z1 (X1,O,V1)
|
0,94
|
|
пп.6.15,6.16
|
предельная
гибкость в плоскости X1,O,Y1
|
0,68
|
|
пп.6.15,6.16
|
предельная
гибкость в плоскости X1,O,Z1
|
0,83
|
Коэффициент использования 0,94 -
устойчивость при сжатии в плоскости X1,O,Z1 (X1,O,V1)
Группа раскосы растянутые. Элемент №17
|
Расчетное
сопротивление стали Ry= 240000,0 кН/м2
Коэффициент
условий работы -- 0,95
Предельная
гибкость -- 400,0
Коэффициент
расчетной длины в плоскости X1,Y1 -- 1,0
Коэффициент
расчетной длины в плоскости X1,Z1 -- 0,8
Длина
элемента -- 3,82 м
|
Сечение
Уголок
равнополочный по ГОСТ 8509-93 L50x6
|
Результаты расчета
|
Проверено
по СНиП
|
Фактор
|
Коэффициенты
использования :
|
|
пп.5.24,5.25
|
прочность
при совместном действии продольной силы и изгибающих моментов без учета
пластики
|
0,85
|
|
пп.6.15,6.16
|
предельная
гибкость в плоскости X1,O,Y1
|
0,41
|
|
пп.6.15,6.16
|
предельная
гибкость в плоскости X1,O,Z1
|
0,5
|
Коэффициент использования 0,85 -
прочность при совместном действии продольной силы и изгибающих моментов без
учета пластики
Группа полураскосы. Элемент №18
|
Расчетное
сопротивление стали Ry= 240000,0 кН/м2
Коэффициент
условий работы -- 0,95
Предельная
гибкость -- 400,0
Коэффициент
расчетной длины в плоскости X1,Y1 -- 1,0
Коэффициент
расчетной длины в плоскости X1,Z1 -- 0,8
Длина
элемента -- 1,71 м
|
Сечение
Уголок
равнополочный по ГОСТ 8509-93 L20x3
|
Результаты расчета
|
Проверено
по СНиП
|
Фактор
|
Коэффициенты
использования :
|
|
пп.5.24,5.25
|
прочность
при совместном действии продольной силы и изгибающих моментов без учета
пластики
|
0,64
|
|
пп.6.15,6.16
|
предельная
гибкость в плоскости X1,O,Y1
|
0,4
|
|
пп.6.15,6.16
|
предельная
гибкость в плоскости X1,O,Z1
|
0,58
|
Коэффициент использования 0,64 -
прочность при совместном действии продольной силы и изгибающих моментов без
учета пластики
Группа полураскосы. Элемент №19
|
Расчетное
сопротивление стали Ry= 240000,0 кН/м2
Коэффициент
условий работы -- 0,95
Предельная
гибкость -- 400,0
Коэффициент
расчетной длины в плоскости X1,Y1 -- 1,0
Коэффициент
расчетной длины в плоскости X1,Z1 -- 0,8
Длина
элемента -- 1,71 м
|
Сечение
Уголок
равнополочный по ГОСТ 8509-93 L35x5
|
Результаты расчета
|
Проверено
по СНиП
|
Фактор
|
Коэффициенты
использования :
|
|
пп.5.24,5.25
|
прочность
при совместном действии продольной силы и изгибающих моментов без учета
пластики
|
0,68
|
|
пп.6.15,6.16
|
предельная
гибкость в плоскости X1,O,Y1
|
0,25
|
|
пп.6.15,6.16
|
предельная
гибкость в плоскости X1,O,Z1
|
0,33
|
Коэффициент использования 0,68 -
прочность при совместном действии продольной силы и изгибающих моментов без
учета пластики
Группа полураскосы. Элемент №21
|
Расчетное
сопротивление стали Ry= 240000,0 кН/м2
Коэффициент
условий работы -- 0,95
Предельная
гибкость -- 400,0
Коэффициент
расчетной длины в плоскости X1,Y1 -- 1,0
Коэффициент
расчетной длины в плоскости X1,Z1 -- 0,8
Длина
элемента -- 1,91 м
|
Сечение
Уголок
равнополочный по ГОСТ 8509-93 L32x4
|
Результаты расчета
|
Проверено
по СНиП
|
Фактор
|
Коэффициенты
использования :
|
|
пп.5.24,5.25
|
прочность
при совместном действии продольной силы и изгибающих моментов без учета
пластики
|
0,8
|
|
пп.6.15,6.16
|
предельная
гибкость в плоскости X1,O,Y1
|
0,3
|
|
пп.6.15,6.16
|
предельная
гибкость в плоскости X1,O,Z1
|
0,4
|
Коэффициент использования 0,8 -
прочность при совместном действии продольной силы и изгибающих моментов без
учета пластики
Группа шпренгели. Элемент №20
|
Расчетное
сопротивление стали Ry= 240000,0 кН/м2
Коэффициент
условий работы -- 0,95
Предельная
гибкость -- 120,0
Коэффициент
расчетной длины в плоскости X1,Y1 -- 1,0
Коэффициент
расчетной длины в плоскости X1,Z1 -- 0,8
Длина
элемента -- 1,0 м
|
Сечение
Уголок
равнополочный по ГОСТ 8509-93 L40x4
|
Результаты расчета
|
Проверено
по СНиП
|
Фактор
|
Коэффициенты
использования :
|
|
пп.5.24,5.25
|
прочность
при совместном действии продольной силы и изгибающих моментов без учета
пластики
|
0,66
|
|
п.5.3
|
устойчивость
при сжатии в плоскости X1,O,Y1 (X1,O,U1)
|
0,79
|
|
п.5.3
|
устойчивость
при сжатии в плоскости X1,O,Z1 (X1,O,V1)
|
0,85
|
|
пп.6.15,6.16
|
предельная
гибкость в плоскости X1,O,Y1
|
0,45
|
|
пп.6.15,6.16
|
предельная
гибкость в плоскости X1,O,Z1
|
0,55
|
Коэффициент использования 0,85 - устойчивость
при сжатии в плоскости X1,O,Z1 (X1,O,V1)
Верхний сжатый пояс, проектируем с
изменением сечения по длине:
·элементы 7, 8- примем 2 равнополочных
уголка L120x15 по ГОСТ 8509-93;
· элементы 10, 11, 12- примем 2
равнополочных уголка L150x15 по ГОСТ 8509-93;
Нижний растянутый пояс (элементы 5, 6) -
примем 2 равнополочных уголка L120x15 по ГОСТ 8509-93.
Опорный раскос (элемент 1) - примем 2
равнополочных уголка L100x14 по ГОСТ 8509-93.
Стойки (элементы 3, 13, 14) – примем 2
равнополочных уголка L56x4 по ГОСТ 8509-93.
Сжатые раскосы (элемент 15) - примем 2
равнополочных уголка L90x10 по ГОСТ 8509-93.
Растянутые раскосы, полураскосы и
шпренгели (элементы 17, 18, 19, 20, 21) - примем 2 равнополочных уголка L50x6
по ГОСТ 8509-93.
Вариант №2.
Так как элементы решетки фермы из
одиночных уголков, то расчёт следует выполнять с учётом изгибающих моментов в
плоскости фермы Mx
и
из плоскости фермы My,
определяемых по формулам:
Mx
=
Mp + exa
∙
N ∙
z ; My
= ey
∙
N ∙
z , где Mp
= Mq + Me
+ Mf
Mq,
Me, Mf
–
изгибающие моменты соответственно от внеузловой нагрузки, от расцентровки
стержней в узлах и от перемещения системы (от жёсткости узлов); N
– продольная сила, принимаемая со знаком соответствующему усилию;
z
= zо
– 0,5 ∙ d – расстояние от центра
до середины толщины полки уголка;
zо
– расстояние от центральной оси до наружной грани полки уголка;
exa,
ey–
относительные эксцентриситеты прикрепления, определяемые по табл. 53
Моменты Mq
и Me отсутствуют, а моменты
от жёсткости узлов Mf
допускаются не учитывать. Тогда выражение для Mx
примет вид:
Mx
=
exa
∙
N ∙
z
Расчёт на прочность внецентренно–сжатых
и внецентренно–растянутых элементов из одиночных уголков, не подвергающихся
непосредственному воздействию динамических нагрузок, следует выполнять по
формуле:
где ν – коэффициент, определяемый
по табл. 54 [Пособие по проектированию стальных конструкций (к СНиП 11-23-81*)]
в зависимости от условных относительных эксцентриситетов ex
и ey;
gс
- коэффициент условий работы, определяемый по поз. 6 табл. 6* СНиП II-23-81*.
Необходимые данные для расчёта:
Марка стали ВСт3пс6, для которой
Ry
= 240 МПа (фасонный прокат толщиной 2…20 мм)
N
– расчётное продольное усилие;
φ
– коэффициент продольного изгиба;
φe
– коэффициент снижения расчётного сопротивления при расчёте на внецентреное
сжатие;
Сечение верхнего пояса.
Для поясов ферм эксцентриситеты exa
= ey
= 0, следовательно, Mx
= My = 0
Элементы : 7, 8.
N
= – 625,03 Кн
Сечение подбираем из условия устойчивости:
Зададимся гибкостью λ = 60 =>
φ = 0,807
Требуемая площадь сечения:
Расчётные длины стержней:
lefx
= 302 см, табл. 11 п. 1, б [СНиП II-23-81*]
lefy
= 302 см, табл. 11 п. 2, а [СНиП II-23-81*]
Требуемый радиус инерции:
Принимаем Т 15ШТ2, А = 38,53см2,
ix
=
3,84см, iy
=
4,75см
Гибкость стержня:
Проверку на устойчивость будем
осуществлять в плоскости фермы:
Недонапряжение:
Предельная гибкость:
Элементы: 10, 29 (11, 12, 30, 31)
N
= – 866,55 Кн
Зададимся гибкостью λ = 60 =>
φ = 0,807
Требуемая площадь сечения:
Расчётные длины стержней:
lefx
= 302 см, табл. 11 п. 1, б [СНиП II-23-81*]
lefy
= 302 см, табл. 11 п. 2, а [СНиП II-23-81*]
Требуемый радиус инерции:
Принимаем Т 17,5ШТ2, А = 52,02 см2,
ix
=
4,49см, iy
=
5,92см
Гибкость стержня:
Проверку на устойчивость будем
осуществлять в плоскости фермы:
Недонапряжение:
Предельная гибкость:
Сечение нижнего пояса.
Для поясов ферм эксцентриситеты exa=
ey
= 0, следовательно, Mx
= My = 0.
Элементы : 5 (6)
N
= – 844,36 Кн
Сечение подбираем из условия прочности:
Требуемая площадь сечения:
Расчётные длины стержней:
lefx
= 600см, табл. 11 п. 1, б [СНиП II-23-81*]
lefy
= 1200 см, табл. 11 п. 2, а [СНиП II-23-81*]
Требуемый радиус инерции:
Принимаем Т 15ШТ2, А = 38,53см2,
ix
=
3,84см, iy
=
4,75см
Гибкость стержня:
Проверка на прочность:
Недонапряжение
Сечение опорного раскоса.
Элемент : 1.
N
= 649,72 Кн
Относительные эксцентриситеты
присоединения для растянутых элементов решётки ферм из одиночных равнополочных
уголков, прикрепляемых по одной полке приведены в табл. 53 [Пособие по
проектированию стальных конструкций (к СНиП 11-23-81*)]:
·
в
плоскости фермы exa
=
0,36;
·
из
плоскости фермы ey
=
– 0,6.
ν = 0,734
Расчётные длины стержней:
lefx
=
314см;
lefy
= 1200см,
Требуемая площадь сечения:
Принимаем L160х14,
А = 37,39 см2, ix0
=6,20см,
iy0 =
3,16см;
Гибкость стержня:
Проверка на прочность:
Недонапряжение:
Сечение стоек. Относительные
эксцентриситеты присоединения для сжатых элементов решётки ферм из одиночных
равнополочных уголков, прикрепляемых по одной полке приведены в табл. 53
[Пособие по проектированию стальных конструкций (к СНиП 11-23-81*)]:
·
в
плоскости фермы exa
=
0,48;
·
из
плоскости фермы ey
=
– 0,8.
Расчёт на устойчивость
внецентренно–сжатых элементов следует выполнять по формуле:
Для равнополочных уголков при ey
=
– 0,8 φе рекомендуется определять по табл. 55 [Пособие по
проектированию стальных конструкций (к СНиП 11-23-81*)] в зависимости от ex
и , где ex
– условный относительный эксцентриситет в плоскости фермы
ex , – эксцентриситет продольной
силы в плоскости фермы

– условная гибкость в плоскости наименьшей
жёсткости уголка.
Сечение подбираем по радиусу инерции .
Элементы : 14 (3, 13)
N
= -102,08 Кн
Зададимся гибкостью λ = 60
Расчётные длины стержней:
Требуемый радиус инерции:
Принимаем L100х7,
А = 13,75см2, ix0
=3,88см,
iyо =
1,98см.
Гибкость стержня:
Условная гибкость:
Проверка на устойчивость:
Недонапряжение:
Предельная гибкость:
Сечение сжатых раскосов.
Относительные эксцентриситеты
присоединения для сжатых элементов решётки ферм из одиночных равнополочных
уголков, прикрепляемых по одной полке приведены в табл. 53 [Пособие по
проектированию стальных конструкций
·
в
плоскости фермы exa
=
0,48;
·
из
плоскости фермы ey
=
– 0,8.
Расчёт на устойчивость
внецентренно–сжатых элементов следует выполнять по формуле:
Для равнополочных уголков при ey
=
– 0,8 φе рекомендуется определять по табл. 55 [Пособие по проектированию
стальных конструкций (к СНиП 11-23-81*)] в зависимости от ex
и , где ex
– условный относительный эксцентриситет в плоскости фермы
ex , – эксцентриситет продольной
силы в плоскости фермы;
;
– условная гибкость в плоскости наименьшей
жёсткости уголка
Сечение подбираем по радиусу инерции .
Элемент : 15
N
= -255,40 Кн
Зададимся гибкостью λ = 60
Расчётные длины стержней:
Требуемый радиус инерции:
Принимаем L150х12,
А = 34,89см2, ix0
=5,83см,
iyо =
2,97см.
Гибкость стержня:
Условная гибкость:
Проверка на устойчивость:
Недонапряжение:
Предельная гибкость:
Сечения растянутых раскосов,
полураскосов.
Элементы : 17 (18, 19, 21)
N
= 151,35 Кн
Относительные эксцентриситеты
присоединения для растянутых элементов решётки ферм из одиночных равнополочных
уголков, прикрепляемых по одной полке приведены в табл. 53 [Пособие по
проектированию стальных конструкций (к СНиП 11-23-81*)]:
·
в
плоскости фермы exa
=
0,36;
·
из
плоскости фермы ey
=
– 0,6.
ν = 0,734
Расчётные длины стержней:
lefx
=
382·0,9=343,8см;
lefy
= 382см,
Требуемая площадь сечения:
Принимаем L60х8,
А = 9,04 см2, ix0
=2,27см,
iy0 =
1,17см;
Гибкость стержня:
Проверка на прочность:
Сечение шпренгелей.
Относительные эксцентриситеты
присоединения для сжатых элементов решётки ферм из одиночных равнополочных
уголков, прикрепляемых по одной полке приведены в табл. 53 [Пособие по
проектированию стальных конструкций (к СНиП 11-23-81*)]:
·
в
плоскости фермы exa
=
0,48;
·
из
плоскости фермы ey
=
– 0,8.
Расчёт на устойчивость
внецентренно–сжатых элементов следует выполнять по формуле:
Для равнополочных уголков при ey
=
– 0,8 φе рекомендуется определять по табл. 55 [Пособие по
проектированию стальных конструкций (к СНиП 11-23-81*)] в зависимости от ex
и , где ex
– условный относительный эксцентриситет в плоскости фермы
ex , – эксцентриситет продольной
силы в плоскости фермы; ;
– условная гибкость в плоскости наименьшей
жёсткости уголка.
Сечение подбираем по радиусу инерции .
Элемент : 20
N
= -68,40 Кн
Зададимся гибкостью λ = 60
Расчётные длины стержней:
Требуемый радиус инерции:
Принимаем L60х8,
А = 9,04 см2, ix0
=2,27см,
iy0 =
1,17см;
Гибкость стержня:
Условная гибкость:
Проверка на устойчивость:
Недонапряжение:
Предельная гибкость:
Примем L60х8
для шпренгелей, не смотря на недонапряжение свыше 5%, т.к. количественное
отношение элементов к общей массе значительно мало, не резонно вводить новый
элемент (модуль).
Сведем результаты расчета в таблицу 8.5.
Таблица 8.5
|
Элемент
фермы
|
№
стержня
|
Усилие,
кН
|
Сечение
|
Площадь
сечения,
см2
|
|
|
|
[λ]
|
Φmin
|
γc
|
Проверка
на прочность, устойчивость
|
|
Верхний
пояс
|
7,
8
|
-625,03
|
ü15ШТ2
|
38,53
|
|
|
|
118,2
|
0,691
|
0,95
|
227,1
|
|
11,
12,
|
-916,94
|
ü17,5ШТ2
|
52,02
|
|
|
|
129,47
|
0,918
|
0,95
|
192,01
|
|
10
|
-866,55
|
ü17,5ШТ2
|
52,02
|
|
|
|
122,94
|
0,768
|
0,95
|
216,9
|
|
Нижний
пояс
|
5
|
844,36
|
ü15ШТ2
|
38,53
|
|
|
|
400
|
-
|
0,95
|
219,14
|
|
6
|
768,80
|
ü15ШТ2
|
38,53
|
|
|
|
400
|
-
|
0,95
|
199,53
|
|
Стойки
|
3
|
0
|
L100х7
|
13,75
|
|
|
|
-
|
-
|
0,95
|
-
|
|
13
|
-72,90
|
L100х7
|
13,75
|
|
|
|
148,2
|
0,441
|
0,95
|
120,22
|
|
14
|
-102,08
|
L100х7
|
13,75
|
|
|
|
124,2
|
0,351
|
0,95
|
217,51
|
|
Опорный
раскос
|
1
|
649,72
|
L160х14
|
37,39
|
|
|
|
400
|
-
|
0,95
|
226,85
|
|
Сжатые
раскосы
|
15
|
-255,40
|
L150х12
|
34,89
|
|
|
|
119,4
|
0,319
|
0,95
|
227,5
|
|
Растянутые
раскосы и полураскосы
|
17,
18, 19, 21,
|
151,35
|
L60х8
|
9,04
|
|
|
|
400
|
-
|
0,95
|
228,1
|
|
Шпренгель
|
20
|
-68,40
|
L60х8
|
9,04
|
|
|
|
119,4
|
0,389
|
0,95
|
194,5
|
Расчет и конструирование узлов фермы.
При расчёте узлов фермы определяют
размеры сварных швов и назначают габариты фасонок с таким расчётом, чтобы на
них уместились все сварные швы стержней.
Исходные данные для расчёта:
Rwf
= 180 МПа - расчётное сопротивление угловых сварных швов условному срезу по
металлу шва;
Run
= 370 МПа - расчётное сопротивление стали по временному сопротивлению (для
стали марки ВСт3пс6);
Rwz=
0,45∙Run
= 0,45∙370 = 166,5 МПа…расчётное сопротивление угловых сварных швов
условному срезу по металлу границы сплавления;
γwf
=
1 ,коэффициент условия работы сварного соединения угловыми швами при расчёте по
металлу шва (при Ry<
580 МПа и климатических районах с t°
> – 40);
γwz
= 1, коэффициент условия работы сварного соединения угловыми швами при расчёте
по металлу границы сплавления (при Ry
<
580 МПа и климатических районах с t°
> – 40);
При изготовлении фермы принимаем ручную
сварку электродами Э42 и Э42А по ГОСТ 9467–75;
βf
= 0,7, коэффициент сварного соединения угловыми швами при расчёте по металлу
шва;
βz
= 1, коэффициент сварного соединения угловыми швами при расчёте по металлу
границы сплавления;
γc
= 1, коэффициент условия работы конструкции;
βf
∙
Rwf = 0,7 ∙ 180 =
126 МПа
βz
∙
Rwz = 1 ∙ 166,5 =
126 МПа
Следовательно, расчёт будем вести по
металлу шва. Так как сварка ручная то, наиболее эффективно принять катет шва
равный 6мм или 8мм(Kf
= 6мм, Kf
= 8мм).
Расчёт опорного узла стропильной фермы.
В опорном узле сходятся стержни
(элементы) 7, 1 и 24, 26. Рассчитаем прикрепление опорной раскоса 1,24 имеющего
сечение 2 L 100х14 и расчётное
усилие 649.72Кн, конструктивная длина швов(kf
=
8 мм):
– у обушка:
– у пера:
Для крепления верхнего пояса ( элементы)
7, 26), сечением 2L 120х15 и N
= - 625,03Кн, расчётная длина швов (kf
=
8 мм):
– у обушка:
– у пера:
Для крепления опорного ребра к верхнему
поясу о фасонке
N
= - 301,5Кн, расчётная длина швов (kf
=
8 мм):
Находим требуемую площадь сечения ребра
по формуле
где Q-поперечная
сила на опоре фермы (Q=301,5кН);
,
Где Run-временное
сопротивление стали (для марки стали ВСт3пс6-1, Run=370МПа)
-коэффициент надежности по материалу,
принимаемый по табл. 2*[СНиП II-23-81*]
Принимая ширину опорного ребра 250мм,
получаем толщину ребра
, примем tp=20мм.
Рис.8.5 Опорный узел фермы
Расчет верхнего монтажного узла.
Монтажный стык испытывает сжимающие
усилия. Фланцы выполняем из стали марки ВСт3пс6-1 толщиной 20мм. Стык верхнего
монтажного узла рассчитываем на обычных болтах из конструктивных соображений.
Принимаем 4 болта М20 класса прочности 5.6. Размещение болтов осуществляется
при соблюдении конструктивных требований.
Усилие в стыке:
Определяем длину швов прикрепления
уголков к фланцу:
Рис. 8.6 Монтажный стык верхнего пояса
Расчёт и конструирование монтажного
стыка нижнего пояса.
Монтажный стык проектируем на
высокопрочных болтах из стали марки 40Х "Селект", db=24
мм и dотв=27
мм в качестве накладки используем 2 L
120х15 – того же профиля, что и сечение нижнего пояса, с расчётным усилием N=768,80
Кн.
Исходные данные для расчёта:
db=24
мм.-диаметр болта;
dотв=33
мм.-диаметр отверстия под болт;
Abn=3,52
см2-площадь сечения болта нетто;
Rbun=110
кН/см2-наименьшее временное сопротивление стали болтов марки 40Х
"Селект";
Rbh=0,7∙Rbun=0,7∙110=77
кН/см2 – расчётное сопротивление высокопрочных болтов растяжению;
µ=0,35-коэффициент трения, обработка
соединяемых поверхностей производится стальными щетками;
γh=1,17-коэффициент
надёжности при статической нагрузке и разности диаметров болта и отверстия
δ=1…4 мм, способе регулирования натяжения болтов по углам поворота гайки;
γb=0,9-коэффициент
условий работы соединения при количестве болтов 5…10;
k=2-количество
поверхностей трения соединяемых элементов;
Условно делим усилие в стержне на 4
части (2 уголка = 4 полки) и расчитываем количество болтов на каждую полку.
Несущая способность одного
высокопрочного болта:
Количество болтов на половине накладке:
Принимаем n
= 2 шт, располагаем на каждой полке уголка в шахматном порядке.
Рис.8.7 Монтажный стык нижнего пояса.
Расчёт сварных швов крепления элементов
решетки:
· Элементы
13, 19.
Рассчитаем прикрепление стойки имеющей
сечение 2 L 56х4, расчётное усилие
72,90Кн и полураскоса имеющей сечение 2 L
50х6, расчётное усилие 75,38Кн. Конструктивная длина швов(kf
=
6 мм, минимальная расчетная длина сварного шва 40мм):
– у обушка:
– у пера:
Примем длину шва у пера 50мм.
· Элемент
15.
Рассчитаем прикрепление раскоса имеющего
сечение 2 L 90х10 и расчётное
усилие 255,40Кн, конструктивная длина швов(kf
=
6 мм, минимальная расчетная длина сварного шва 40мм):
– у обушка:
– у пера:
· Элементы
18, 20, 21.
Рассчитаем прикрепление полураскоса и
шпренгеля имеющих сечение 2 L
50х6 и max расчётным усилием
68,40Кн, конструктивная длина швов(kf
=
6 мм, минимальная расчетная длина сварного шва 40мм):
– у обушка:
– у пера:
Примем длину шва у пера 50мм.
Рассчитаем прикрепление стойки имеющей
сечение 2 L 56х4 и расчётное
усилие 102,08Кн, конструктивная длина швов(kf
=
6 мм, минимальная расчетная длина сварного шва 40мм):
– у обушка:
– у пера:
· Элемент
17.
Рассчитаем прикрепление раскоса имеющего
сечение 2 L 50х6 и расчётное
усилие 151,35Кн, конструктивная длина швов(kf
=
6 мм, минимальная расчетная длина сварного шва 40мм):
– у обушка:
– у пера:
· Элемент
3
Конструктивную длину швов(kf
=
6 мм) при расчетном усилии равном 0кН, примен по min
значениям, т.е. 50мм.
Расчет фермы Ф-2.
Рис. 8.8 Расчетная схема стропильной
фермы Ф2
Комбинации нагрузок на ферму Ф2
Таблица 8.6
|
Номер
|
Наименование
|
|
1
|
постоянная
+снег
|
Усилия и напряжения элементов при
комбинации нагружений на ферму Ф2.
Таблица 8.7
|
Номер
эл-та
|
Номер
сечен.
|
Номер
комб.
|
Усилия
и напряжения
|
|
|
|
N
(кН)
|
M
(кН*м)
|
Q
(кН)
|
|
1
|
1
|
1
|
-384,91
|
0,
|
0,
|
|
2
|
1
|
-384,91
|
0,
|
0,
|
|
2
|
1
|
1
|
440,525
|
0,
|
0,
|
|
2
|
1
|
440,525
|
0,
|
0,
|
|
3
|
1
|
1
|
-69,3
|
0,
|
0,
|
|
2
|
1
|
-69,3
|
0,
|
0,
|
|
4
|
1
|
1
|
-384,91
|
0,
|
0,
|
|
2
|
1
|
-384,91
|
0,
|
0,
|
|
5
|
1
|
1
|
-106,799
|
0,
|
0,
|
|
2
|
1
|
-106,799
|
0,
|
0,
|
|
6
|
1
|
1
|
497,217
|
0,
|
0,
|
|
2
|
1
|
497,217
|
0,
|
0,
|
|
7
|
1
|
1
|
-453,01
|
0,
|
0,
|
|
2
|
1
|
-453,01
|
0,
|
0,
|
|
8
|
1
|
1
|
-43,4452
|
0,
|
0,
|
|
2
|
1
|
-43,4452
|
0,
|
0,
|
|
9
|
1
|
1
|
-69,3
|
0,
|
0,
|
|
2
|
1
|
-69,3
|
0,
|
0,
|
|
10
|
1
|
1
|
-453,01
|
0,
|
0,
|
|
2
|
1
|
-453,01
|
0,
|
0,
|
|
11
|
1
|
1
|
-38,8513
|
0,
|
0,
|
|
2
|
1
|
-38,8513
|
0,
|
0,
|
|
12
|
1
|
1
|
483,488
|
0,
|
0,
|
|
2
|
1
|
483,488
|
0,
|
0,
|
|
13
|
1
|
1
|
-116,79
|
0,
|
0,
|
|
2
|
1
|
-116,79
|
0,
|
0,
|
|
14
|
1
|
1
|
-384,91
|
0,
|
0,
|
|
2
|
1
|
-384,91
|
0,
|
0,
|
|
15
|
1
|
1
|
-69,3
|
0,
|
0,
|
|
2
|
1
|
-69,3
|
0,
|
0,
|
|
16
|
1
|
1
|
-384,91
|
0,
|
0,
|
|
2
|
1
|
-384,91
|
0,
|
0,
|
|
17
|
1
|
1
|
402,841
|
0,
|
0,
|
|
2
|
1
|
402,841
|
0,
|
0,
|
Значение расчётных усилий в стержнях фермы
Ф2.
Таблица 8.8
|
Элемент
фермы
|
Номер
элемента
|
Расчётное
усилие, кН
|
|
сжатие
|
растяжение
|
|
Верхний
пояс
|
1,4,14,16
7,10
|
384,91
453,01
|
-
-
|
|
Нижний
пояс
|
6
12
|
-
-
|
497,22
483,49
|
|
Стойки
|
3,9,15
|
69,3
|
-
|
|
Опорные
раскосы
|
2
17
|
-
-
|
440,53
402,84
|
|
Раскосы
|
5
8
11
13
|
106,80
43,45
38,855
116,79
|
-
-
-
-
|
Подбор сечений стержней фермы Ф2.
Для удобства изготовления и
комплектования сортамента металла при проектировании ферм обычно устанавливают
4-6 разных калибров профиля, из которых набирают все элементы фермы. Чтобы
предварительно установить необходимый ассортимент профилей, определяют
требуемые площади сечений стержней фермы.
Расчет сечений стержней фермы определяем
при помощи программы Structure
CAD
Необходимые данные для расчёта:
·марка стали ВСт3пс6-1 ( =240 МПа)[СНиП II-23-81*,
табл. 51*];
·N
– расчётное продольное усилие;
·[ ]-предельная гибкость;
· - коэффициент условия работы
конструкции;
·lef –
расчетные
длины.
Группа верхний пояс.
Элемент №(1,4,14,16)
|
Расчетное сопротивление стали Ry=
240345,0 кН/м2
Коэффициент условий работы -- 0,95
Предельная гибкость -- 120,0
Коэффициент расчетной длины в
плоскости X1,Y1 -- 1,0
Коэффициент расчетной длины в
плоскости X1,Z1 -- 1,0
Длина элемента -- 3,02 м
|
Сечение
Уголок равнополочный по ГОСТ 8509-93
L90x12
|
Результаты расчета
|
Проверено по СНиП
|
Фактор
|
Коэффициенты использования :
|
|
пп.5.24,5.25
|
прочность при совместном действии
продольной силы и изгибающих моментов без учета пластики
|
0,41
|
|
п.5.3
|
устойчивость при сжатии в плоскости
X1,O,Y1 (X1,O,U1)
|
0,55
|
|
п.5.3
|
устойчивость при сжатии в плоскости
X1,O,Z1 (X1,O,V1)
|
0,88
|
|
пп.6.15,6.16
|
предельная гибкость в плоскости
X1,O,Y1
|
0,59
|
|
пп.6.15,6.16
|
предельная гибкость в плоскости
X1,O,Z1
|
0,93
|
Коэффициент
использования 0,93 - предельная гибкость в плоскости X1,O,Z1
Группа верхний пояс.
Элемент №(7,10)
|
Расчетное сопротивление стали Ry=
240345,0 кН/м2
Коэффициент условий работы -- 0,95
Предельная гибкость -- 120,0
Коэффициент расчетной длины в
плоскости X1,Y1 -- 1,0
Коэффициент расчетной длины в
плоскости X1,Z1 -- 1,0
Длина элемента -- 3,02 м
|
Сечение
Уголок равнополочный по ГОСТ 8509-93
L100x10
|
Результаты расчета
|
Проверено по СНиП
|
Фактор
|
Коэффициенты использования :
|
|
пп.5.24,5.25
|
прочность при совместном действии
продольной силы и изгибающих моментов без учета пластики
|
0,52
|
|
п.5.3
|
устойчивость при сжатии в плоскости
X1,O,Y1 (X1,O,U1)
|
0,66
|
|
п.5.3
|
устойчивость при сжатии в плоскости
X1,O,Z1 (X1,O,V1)
|
0,94
|
|
пп.6.15,6.16
|
предельная гибкость в плоскости
X1,O,Y1
|
0,55
|
|
пп.6.15,6.16
|
предельная гибкость в плоскости
X1,O,Z1
|
0,83
|
Коэффициент
использования 0,94 - устойчивость при сжатии в плоскости X1,O,Z1 (X1,O,V1)
Группа нижний пояс.
Элемент №6
|
Расчетное сопротивление стали Ry=
240345,0 кН/м2
Коэффициент условий работы -- 1,0
Предельная гибкость -- 400,0
Коэффициент расчетной длины в
плоскости X1,Y1 -- 3,0
Коэффициент расчетной длины в
плоскости X1,Z1 -- 1,0
Длина элемента -- 6,17 м
|
Сечение
Уголок равнополочный по ГОСТ 8509-93
L100x12
|
Результаты расчета
|
Проверено по СНиП
|
Фактор
|
Коэффициенты использования :
|
|
пп.5.24,5.25
|
прочность при совместном действии
продольной силы и изгибающих моментов без учета пластики
|
0,45
|
|
пп.6.15,6.16
|
предельная гибкость в плоскости
X1,O,Y1
|
|
пп.6.15,6.16
|
предельная гибкость в плоскости
X1,O,Z1
|
0,51
|
Коэффициент
использования 1,0 - предельная гибкость в плоскости X1,O,Y1
Группа нижний пояс.
Элемент №12
|
Расчетное сопротивление стали Ry=
240345,0 кН/м2
Коэффициент условий работы -- 1,0
Предельная гибкость -- 400,0
Коэффициент расчетной длины в
плоскости X1,Y1 -- 3,0
Коэффициент расчетной длины в
плоскости X1,Z1 -- 1,0
Длина элемента -- 6,0 м
|
Сечение
Уголок равнополочный по ГОСТ 8509-93
L100x6.5
|
Результаты расчета
|
Проверено по СНиП
|
Фактор
|
Коэффициенты использования :
|
|
пп.5.24,5.25
|
прочность при совместном действии
продольной силы и изгибающих моментов без учета пластики
|
0,78
|
|
пп.6.15,6.16
|
предельная гибкость в плоскости
X1,O,Y1
|
1,0
|
|
пп.6.15,6.16
|
предельная гибкость в плоскости
X1,O,Z1
|
0,49
|
Коэффициент
использования 1,0 - предельная гибкость в плоскости X1,O,Y1
Группа опорные раскосы.
Элемент №2
|
Расчетное сопротивление стали Ry=
240345,0 кН/м2
Коэффициент условий работы -- 1,0
Предельная гибкость -- 400,0
Коэффициент расчетной длины в
плоскости X1,Y1 -- 3,0
Коэффициент расчетной длины в
плоскости X1,Z1 -- 1,0
Длина элемента -- 3,46 м
|
Сечение
Уголок равнополочный по ГОСТ 8509-93
L60x10
|
Результаты расчета
|
Проверено по СНиП
|
Фактор
|
Коэффициенты использования :
|
|
пп.5.24,5.25
|
прочность при совместном действии
продольной силы и изгибающих моментов без учета пластики
|
0,83
|
|
пп.6.15,6.16
|
предельная гибкость в плоскости
X1,O,Y1
|
0,85
|
|
пп.6.15,6.16
|
предельная гибкость в плоскости
X1,O,Z1
|
0,48
|
Коэффициент
использования 0,85 - предельная гибкость в плоскости X1,O,Y1
Группа опорные раскосы.
Элемент №17
|
Расчетное сопротивление стали Ry=
240345,0 кН/м2
Коэффициент условий работы -- 1,0
Предельная гибкость -- 400,0
Коэффициент расчетной длины в
плоскости X1,Y1 -- 3,0
Коэффициент расчетной длины в
плоскости X1,Z1 -- 1,0
Длина элемента -- 3,16 м
|
Сечение
Уголок равнополочный по ГОСТ 8509-93
L60x8
|
Результаты расчета
|
Проверено по СНиП
|
Фактор
|
Коэффициенты использования :
|
|
пп.5.24,5.25
|
прочность при совместном действии
продольной силы и изгибающих моментов без учета пластики
|
0,93
|
|
пп.6.15,6.16
|
предельная гибкость в плоскости
X1,O,Y1
|
0,79
|
|
пп.6.15,6.16
|
предельная гибкость в плоскости
X1,O,Z1
|
0,44
|
Коэффициент
использования 0,93 - прочность при совместном действии продольной силы и
изгибающих моментов без учета пластики
Группа раскосы. Элемент
№5
|
Расчетное сопротивление стали Ry=
240345,0 кН/м2
Коэффициент условий работы -- 0,95
Предельная гибкость -- 150,0
Коэффициент расчетной длины в
плоскости X1,Y1 -- 1,0
Коэффициент расчетной длины в
плоскости X1,Z1 -- 0,8
Длина элемента -- 3,16 м
|
Сечение
Уголок равнополочный по ГОСТ 8509-93
L63x6
|
Результаты расчета
|
Проверено по СНиП
|
Фактор
|
Коэффициенты использования :
|
|
пп.5.24,5.25
|
прочность при совместном действии
продольной силы и изгибающих моментов без учета пластики
|
0,32
|
|
п.5.3
|
устойчивость при сжатии в плоскости
X1,O,Y1 (X1,O,U1)
|
0,66
|
|
п.5.3
|
устойчивость при сжатии в плоскости
X1,O,Z1 (X1,O,V1)
|
0,9
|
|
пп.6.15,6.16
|
предельная гибкость в плоскости
X1,O,Y1
|
0,73
|
|
пп.6.15,6.16
|
предельная гибкость в плоскости
X1,O,Z1
|
0,88
|
Коэффициент
использования 0,9 - устойчивость при сжатии в плоскости X1,O,Z1 (X1,O,V1)
Группа раскосы. Элемент
№8
|
Расчетное сопротивление стали Ry=
240345,0 кН/м2
Коэффициент условий работы -- 0,95
Предельная гибкость -- 150,0
Коэффициент расчетной длины в плоскости
X1,Y1 -- 1,0
Коэффициент расчетной длины в
плоскости X1,Z1 -- 0,8
Длина элемента -- 3,87 м
|
Сечение
Уголок равнополочный по ГОСТ 8509-93
L70x4
|
Результаты расчета
|
Проверено по СНиП
|
Фактор
|
Коэффициенты использования :
|
|
пп.5.24,5.25
|
прочность при совместном действии
продольной силы и изгибающих моментов без учета пластики
|
0,15
|
|
п.5.3
|
устойчивость при сжатии в плоскости
X1,O,Y1 (X1,O,U1)
|
0,38
|
|
п.5.3
|
устойчивость при сжатии в плоскости
X1,O,Z1 (X1,O,V1)
|
0,51
|
|
пп.6.15,6.16
|
предельная гибкость в плоскости
X1,O,Y1
|
0,82
|
|
пп.6.15,6.16
|
предельная гибкость в плоскости
X1,O,Z1
|
0,95
|
Коэффициент
использования 0,95 - предельная гибкость в плоскости X1,O,Z1
Группа раскосы. Элемент
№11
|
Расчетное сопротивление стали Ry=
240345,0 кН/м2
Коэффициент условий работы -- 0,95
Предельная гибкость -- 150,0
Коэффициент расчетной длины в
плоскости X1,Y1 -- 1,0
Коэффициент расчетной длины в
плоскости X1,Z1 -- 0,8
Длина элемента -- 3,46 м
|
Сечение
Уголок равнополочный по ГОСТ 8509-93
L63x4
|
Результаты расчета
|
Проверено по СНиП
|
Фактор
|
Коэффициенты использования :
|
|
пп.5.24,5.25
|
прочность при совместном действии
продольной силы и изгибающих моментов без учета пластики
|
0,17
|
|
п.5.3
|
устойчивость при сжатии в плоскости
X1,O,Y1 (X1,O,U1)
|
0,42
|
|
п.5.3
|
устойчивость при сжатии в плоскости
X1,O,Z1 (X1,O,V1)
|
0,56
|
|
пп.6.15,6.16
|
предельная гибкость в плоскости
X1,O,Y1
|
0,81
|
|
пп.6.15,6.16
|
предельная гибкость в плоскости
X1,O,Z1
|
0,95
|
Коэффициент
использования 0,95 - предельная гибкость в плоскости X1,O,Z1
Группа раскосы. Элемент
№13
|
Расчетное сопротивление стали Ry=
240345,0 кН/м2
Коэффициент условий работы -- 0,95
Предельная гибкость -- 150,0
Коэффициент расчетной длины в
плоскости X1,Y1 -- 1,0
Коэффициент расчетной длины в
плоскости X1,Z1 -- 0,8
Длина элемента -- 3,46 м
|
Сечение
Уголок равнополочный по ГОСТ 8509-93
L70x5
|
Результаты расчета
|
Проверено по СНиП
|
Фактор
|
Коэффициенты использования :
|
|
пп.5.24,5.25
|
прочность при совместном действии
продольной силы и изгибающих моментов без учета пластики
|
0,37
|
|
п.5.3
|
устойчивость при сжатии в плоскости
X1,O,Y1 (X1,O,U1)
|
0,82
|
|
п.5.3
|
устойчивость при сжатии в плоскости
X1,O,Z1 (X1,O,V1)
|
1,0
|
|
пп.6.15,6.16
|
предельная гибкость в плоскости
X1,O,Y1
|
0,76
|
|
пп.6.15,6.16
|
предельная гибкость в плоскости
X1,O,Z1
|
0,86
|
Коэффициент использования
1,0 - устойчивость при сжатии в плоскости X1,O,Z1 (X1,O,V1)
Группа стойки. Элемент
№(3,15)
|
Расчетное сопротивление стали Ry=
240345,0 кН/м2
Коэффициент условий работы -- 0,95
Предельная гибкость -- 120,0
Коэффициент расчетной длины в
плоскости X1,Y1 -- 1,0
Коэффициент расчетной длины в
плоскости X1,Z1 -- 0,8
Длина элемента -- 1,36 м
|
Сечение
Уголок равнополочный по ГОСТ 8509-93
L40x4
|
Результаты расчета
|
Проверено по СНиП
|
Фактор
|
Коэффициенты использования :
|
|
пп.5.24,5.25
|
прочность при совместном действии
продольной силы и изгибающих моментов без учета пластики
|
0,49
|
|
п.5.3
|
устойчивость при сжатии в плоскости
X1,O,Y1 (X1,O,U1)
|
0,66
|
|
п.5.3
|
устойчивость при сжатии в плоскости
X1,O,Z1 (X1,O,V1)
|
0,8
|
|
пп.6.15,6.16
|
предельная гибкость в плоскости X1,O,Y1
|
0,6
|
|
пп.6.15,6.16
|
предельная гибкость в плоскости
X1,O,Z1
|
0,74
|
Коэффициент
использования 0,8 - устойчивость при сжатии в плоскости X1,O,Z1 (X1,O,V1)
Группа стойки. Элемент
№9
|
Расчетное сопротивление стали Ry=
240345,0 кН/м2
Коэффициент условий работы -- 0,95
Предельная гибкость -- 120,0
Коэффициент расчетной длины в
плоскости X1,Y1 -- 1,0
Коэффициент расчетной длины в
плоскости X1,Z1 -- 0,8
Длина элемента -- 2,08 м
|
Сечение
Уголок равнополочный по ГОСТ 8509-93
L50x4
|
Результаты расчета
|
Проверено по СНиП
|
Фактор
|
Коэффициенты использования :
|
|
пп.5.24,5.25
|
прочность при совместном действии
продольной силы и изгибающих моментов без учета пластики
|
0,39
|
|
п.5.3
|
устойчивость при сжатии в плоскости
X1,O,Y1 (X1,O,U1)
|
0,66
|
|
п.5.3
|
устойчивость при сжатии в плоскости
X1,O,Z1 (X1,O,V1)
|
0,8
|
|
пп.6.15,6.16
|
предельная гибкость в плоскости
X1,O,Y1
|
0,77
|
|
пп.6.15,6.16
|
предельная гибкость в плоскости
X1,O,Z1
|
0,9
|
Коэффициент
использования 0,9 - предельная гибкость в плоскости X1,O,Z1
Верхний сжатый пояс (элементы 1, 4, 7,
10, 14, 16) - примем 2 равнополочных уголка L100х10 по ГОСТ 8509-93;
Нижний растянутый пояс (элементы 6, 12)
- примем 2 равнополочных уголка L100х12 по ГОСТ 8509-93.
Опорный раскос (элементы 2, 7) - примем
2 равнополочных уголка L60х10 по ГОСТ 8509-93.
Стойки (элементы 3, 9, 15) – примем 2
равнополочных уголка L50х5 по ГОСТ 8509-93.
Раскосы (элементы 5, 8, 11, 13) - примем
2 равнополочных уголка L70х5 по ГОСТ 8509-93.
Расчет и конструирование узлов фермы.
При расчёте узлов фермы определяют размеры
сварных швов и назначают габариты фасонок с таким расчётом, чтобы на них
уместились все сварные швы стержней.
Исходные данные для расчёта:
Rwf
= 180 МПа - расчётное сопротивление угловых сварных швов условному срезу по
металлу шва;
Run
= 370 МПа - расчётное сопротивление стали по временному сопротивлению (для
стали марки ВСт3пс6);
Rwz=
0,45∙Run
= 0,45∙370 = 166,5 МПа…расчётное сопротивление угловых сварных швов
условному срезу по металлу границы сплавления;
γwf
=
1 ,коэффициент условия работы сварного соединения угловыми швами при расчёте по
металлу шва (при Ry<
580 МПа и климатических районах с t°
> – 40);
γwz
= 1, коэффициент условия работы сварного соединения угловыми швами при расчёте
по металлу границы сплавления (при Ry
<
580 МПа и климатических районах с t°
> – 40);
При изготовлении фермы принимаем ручную
сварку электродами Э42 и Э42А по ГОСТ 9467–75;
βf
= 0,7, коэффициент сварного соединения угловыми швами при расчёте по металлу
шва;
βz
= 1, коэффициент сварного соединения угловыми швами при расчёте по металлу
границы сплавления;
γc
= 1, коэффициент условия работы конструкции;
βf
∙
Rwf = 0,7 ∙ 180 =
126 МПа
βz
∙
Rwz = 1 ∙ 166,5 =
126 МПа
Следовательно, расчёт будем вести по
металлу шва. Так как сварка ручная то, наиболее эффективно принять катет шва
равный 6мм (Kf
= 6мм).
Расчёт опорных узлов стропильной фермы.
В опорных узлах сходятся стержни
(элементы) 1, 2 и 16, 17.
Рассчитаем прикрепление опорного раскоса
(элемент 2) имеющего сечение 2L
60х10 и расчётное усилие 440.53Кн, конструктивная длина швов (kf
=
6 мм):
– у обушка:
– у пера:
Рассчитаем прикрепление опорного раскоса
(элемент 17) имеющего сечение 2L
60х10 и расчётное усилие 402,84Кн, конструктивная длина швов (kf
=
6 мм):
– у обушка:
– у пера:
Для крепления верхнего пояса ( элементы 1,
16), сечением 2L
100х10
и N = 384,91Кн, расчётная длина швов (kf
=
6 мм):
– у обушка:
– у пера:
Для крепления опорного ребра к верхнему
поясу о фасонке
N
= 207,9Кн, расчётная длина швов (kf
=
6 мм):
Находим требуемую площадь сечения ребра
по формуле
где Q-поперечная
сила на опоре фермы (Q=207,9кН);
,
Где Run-временное
сопротивление стали (для марки стали ВСт3пс6-1, Run=370МПа)
-коэффициент надежности по материалу,
принимаемый по табл. 2
Принимая ширину опорного ребра 250мм,
получаем толщину ребра
, примем tp=20мм.
Рис.8.9 Опорные узлы фермы
Расчёт сварных швов крепления элементов
решетки:
· Элементы
3, 9, 15
Рассчитаем прикрепление стойки имеющей сечение
2L 50х5,
расчётное усилие 69,3Кн. Конструктивная длина швов(kf
=
6 мм, минимальная расчетная длина сварного шва 40мм):
– у обушка:
– у пера:
Примем длину шва у пера 50мм.
· Элементы
8, 11
Рассчитаем прикрепление раскоса имеющего
сечение 2L
70х5
и max расчётное усилие 43,45Кн,
конструктивная длина швов (kf
=
6 мм, минимальная расчетная длина сварного шва 40мм):
– у обушка:
– у пера:
Примем длину шва у пера 50мм.
· Элементы
5, 13
Рассчитаем прикрепление раскоса имеющего
сечение 2L 70х5 и max
расчётное усилие 116,79Кн, конструктивная длина швов (kf
=
6 мм, минимальная расчетная длина сварного шва 40мм):
– у обушка:
– у пера:
8.3 Расчет
прогона
Расчет прогона произведен программой NormCAD
Исходные данные:
Геометрические размеры
элемента:
- Расчетная длина
элемента lefx = 1000 см;
- Расчетная длина
элемента lefy = 0 см;
- Длина элемента l =
1000 см;
Нагрузка:
- Изгибающий момент Mx
= 7,09 тс м = 7,09 / 0,00001 = 709000 кгс см;
- Изгибающий момент My
= 1,61 тс м = 1,61 / 0,00001 = 161000 кгс см;
- Поперечная сила на
одну стенку сечения Qy = 3,02 тс = 3,02 / 0,001 = 3020 кгс;
- Сжимающая сила,
действующая на одну стенку элемента
F = 0 тс = 0 / 0,001 =
0 кгс;
Физические
характеристики:
- Модуль упругости E =
2100000 кгс/см 2;
Прочность:
(Вид металла - Фасонный
прокат):
- Расчетное
сопротивление растяжению, сжатию, изгибу по пределу текучести Ry = 2450 кгс/см 2;
- Расчетное
сопротивление стали сдвигу Rs = 1960 кгс/см 2;
Коэффициенты надежности
и условия работы:
- Коэффициент условия
работы gc
= 1 ;
- Коэффициент
надежности в расчетах по временному сопротивлению gu
= 1,3 ;
Основные характеристики
сечений:
(Сечение ветви - из
сортамента; Характеристики сечения - Двутавры нормальные с параллельными
гранями полок по СТО АСЧМ 20-93; 35 Б2; Сечение - одноветьевое):
Опирание:
- Ширина опирания b =
17,5 см;
Результаты расчета:
1) Расчет на прочность
элементов, изгибаемых в двух главных плоскостях
Балки, рассчитываемые
по формуле (38), должны быть проверены по формулам (29) и (33):
Расчет на прочность
элементов, изгибаемых в одной из главных плоскостей (кроме балок с гибкой
стенкой, с перфорированной стенкой и подкрановых балок)
Расчет по п. 5.12 СНиП
II-23-81
Ослабления стенки
отверстиями - отсутствуют.
Косательные напряжения:
t
= Qy Sx/(Jx
t) = 3020·434/(13560· 0,7) =
138,0826 кгс/см2 (формула (29); п.5.12СНиП II-23-81).
3) Продолжение расчета
по п. 5.12 СНиП II-23-81
Минимальное значение
момента сопротивления нетто:
Wxnmin
= min(Wxn1 ; Wxn2)=min(774,8;774,8) = 774,8 см3.
Mx/Wxnmin=709000/774,8=915,07486
кгс/см 2 r Ry gc=2450
· 1=2450 кгс/см 2 (37,34999% от предельного значения) - условие выполнено
t=138,0826
кгс/см 2 r Rs gc=1960
· 1=1960 кгс/см 2 (7,04503% от предельного значения) - условие выполнено
4) Расчет на прочность
стенки балки в местах приложения нагрузки к верхнему поясу и в опорных
сечениях, не укрепленных ребрами жесткости
Ширина опирания - равна
ширине сечения.
Условная длина
распределения нагрузки:
lef = b +2 tf=17,5+2
· 1,1 = 19,7 см (формула (32); п. 5.13 СНиП II-23-81).
Местное напряжение:
sloc
= f/(t lef )=0/(0,7 · 19,7) = 0 кгс/см 2 .
sloc=0
кгс/см2 r
Ry gc=2450
· 1=2450 кгс/см 2 (0% от предельного значения) - условие выполнено (формула
(31); п. 5.13 СНиП II-23-81).
5) Продолжение расчета
по п. 5.14 СНиП II-23-81
Нормальные напряжения:
sy
= sloc
=0 кгс/см2 .
Нормальные напряжения:
sx
= Mx/Wxnmin=709000/774,8
= 915,07486 кгс/см2 .
945,81313
кгс/см 2 r
1,15 Ry gc=1,15
· 2450 · 1=2817,5 кгс/см 2 (33,56923% от предельного значения) - условие
выполнено
6) Продолжение расчета
по п. 5.17 СНиП II-23-81
Минимальные значения
моментов сопротивления:
Минимальное значение
момента сопротивления нетто:
Wxnmin
= min(Wxn1 ; Wxn2)=min(774,8;774,8) = 774,8 см3
.
Минимальное значение
момента сопротивления нетто:
Wynmin
= min(Wyn1 ; Wyn2)=min(112,5;112,5) = 112,5 см3
.
Mx/Wxnmin+My/Wynmin=709000/774,8+161000/112,5=2346,18597
кгс/см 2 r Ry gc=2450
· 1=2450 кгс/см 2 (95,76269% от предельного значения) - условие выполнено
7) Проверка выполнения
условий, при которых устойчивость балок требуется проверять
Условие п. 5.16 а (сжатый
пояс надежно связан с жестким настилом) - выполняется.
Устойчивость балок
проверять не требуется
8.4 Расчет рамы
8.4.1
Сбор нагрузок на раму цеха
Компоновка
поперечной рамы
Вертикальные габариты здания зависят от
технологических условий производства и определяются расстоянием от уровня пола
до головки кранового рельса и расстоянием от головки кранового рельса до
низа несущих конструкций покрытия . В сумме эти размеры составляют полезную
высоту цеха (рис.
8.10).
Рис. 8.10 Схема поперечной рамы
Размер диктуется высотой мостового крана
Сбор нагрузок на поперечную раму цеха
Постоянная нагрузка
Рис. 8.11 Расчётная схема рамы при
расчёте на постоянную нагрузку.
Снеговая нагрузка
Рис. 8.12 Расчётная схема рамы при
расчёте на снеговую нагрузку
Крановая нагрузка
Рис. 8.13 Схема крана
Определяем максимальное расчётное
давление колёс крана
Найдём минимальное нормативное значение
давления колёс крана
где
Q-[т];Gкр-[кН];n0-число колес с одной стороны.
Расчетное
значение минимального давления колес крана
Определение
максимального и минимального давлений кранов на колонны.
Расчет
рамы цеха ведем на два крана находящихся вплотную. Dmin и Dmax
определяем по линии влияния опорной реакции подкрановых балок.
Рис.
8.14 Линия влияния давления колёс крана на колонны.

где
ψ=0,85 – коэффициент сочетания
крановой нагрузки, учитывающий действие двух кранов одновременно;
γf1=1,05
– коэффициент учитывающий собственный вес конструкции;
γf2=1,2
– коэффициент учитывающий динамическое воздействие крановой нагрузки;
= – вес подкрановой балки;
=0,4 кН/м2 – нормативный
вес 1 м2 подкрановой балки;
=1,5 кН/м2
– нормативный вес 1 м2 тормозной балки;
-высота тормозной балки.
Определение
максимального и минимального моментов на раму цеха:
Опирание
подкрановой балки не по оси подкрановой части колонны приводит к появлению
изгибающих моментов в колоннах.
Рис.
8.15 Загружение крана вертикальной крановой нагрузкой
Эксцентриситет:
е=650мм.
Максимальный
момент:
Минимальный
момент:
Определение
сил поперечного торможения:
Сила
поперечного торможения, передаваемая одним колесом крана:
где
gf=1,1 – коэффициент надёжности по
крановой нагрузки;
n0=2 – количество колёс крана с одной
стороны.
Рис.
8.16 Загружение крана горизонтальной тормозной крановой нагрузкой у крайней
колонны либо у средней колонны.
Сбор
ветровых нагрузок
Для
местности типа В (местность с оврагами и лесами, застройка населённых пунктов
высотой 10-25
м) коэффициенты, учитывающие изменения ветрового давления по высоте:
К5=0,5;
К9,38=0,631;
К10=0,65;
К11,43=0,679;
К15,17=0,754;
К20=0,85.
Рис.
8.17 Расчётная схема рамы к определению ветровой нагрузки
Ветер
слева
С
наветренной стороны:
где
Wm – распределенная ветровая нагрузка:
.
С
заветренной стороны:

Wm/= .
где
γf = 1,4 – коэффициент надёжности по нагрузке;
W0
=0,23 кПа –
нормативное значение ветровой нагрузки для I-го ветрового района;
Кэкв=0,81
– равномерно распределённое эквивалентное ветровое давление;
C=0,8
– аэродинамический коэффициент, учитывающий форму зданий и сооружений с
наветренной стороны;
C/=0,6 – аэродинамический коэффициент,
учитывающий форму зданий и сооружений с заветренной стороны;
Вк=5
м – ширина распределения ветровой нагрузки на колонну ;
Ветер
справа
С
наветренной стороны:
где
Wm – распределенная ветровая нагрузка:
.
С
заветренной стороны:

Wm/= .
8.4
Расчет рамы и составление итоговой таблицы расчетных усилий
Исходные
данные для расчёта на ЭВМ:
– длина надкрановой части
колонны К1 и К2;
– высота колонн К1,
К2, К3;
– размеры пролетов;
– интенсивность постоянной
нагрузки на ригель первого и второго пролетов;
– интенсивность снеговой
нагрузки на ригель первого и второго пролетов;
– максимальное давление
колёс крана на колонну;
– минимальное давление
колёс крана на колонну;
– максимальный момент от
вертикального кранового давления;
– минимальный момент от
вертикального кранового давления ;
– поперечное торможение
двух кранов на раму;
– интенсивность ветровой
нагрузки с наветренной стороны при ветре слева;
– интенсивность ветровой
нагрузки с заветренной стороны при ветре слева;
– сосредоточенная нагрузка
на ригель с наветренной стороны при ветре слева;
– сосредоточенная нагрузка
на ригель с заветренной стороны при ветре слева;
– интенсивность ветровой
нагрузки с наветренной стороны при ветре справа;
– интенсивность ветровой
нагрузки с заветренной стороны при ветре справа;
– сосредоточенные нагрузки
на ригели пролетов 1-го и 2-го с наветренной стороны при ветре справа;
– сосредоточенная нагрузка
на ригель первого пролета с заветренной стороны при ветре справа;
Рис.
8.18 Расчетные сечения в колоннах
Полученные
с ЭВМ данные ( расчет произведен программой Structure CAD) представляем в виде таблиц 8.9, 8.10, 8.11. Результат
расчёта колонны К1 на ЭВМ
Таблица
8.9
|
№ заггружения
|
Вид
загружения
|
Характерные сечения
частей колонны
|
|
1–1
|
2–2
|
3–3
|
|
М
(кН´м)
|
N
(кН)
|
М
(кН´м)
|
N
(кН)
|
М
(кН´м)
|
N
(кН)
|
|
1
|
Постоянная
|
0
|
-85,5
|
0
|
-85,5
|
0
|
-85,5
|
|
2
|
Снеговая
|
0
|
-216,0
|
0
|
-216,0
|
0
|
-216,0
|
|
3
|
Dmax
|
На колонну К1
|
-60,72
|
-250,25
|
97,74
|
-250,25
|
-49,55
|
0
|
|
3*
|
На колонну К2
|
-15,13
|
-62,34
|
24,35
|
-62,34
|
-12,34
|
0
|
|
4
|
Т
(торм.)
|
На колонну К1
|
±6,72
|
0
|
±9,51
|
0
|
±9,51
|
0
|
|
4*
|
На колонну К2
|
0
|
0
|
0
|
0
|
0
|
0
|
|
5
|
Ветровая
|
Слева
|
17,73
|
0
|
-9,48
|
0
|
-8,32
|
0
|
|
5*
|
Справа
|
-12,67
|
0
|
6,77
|
0
|
5,94
|
0
|
Результат
расчёта колонны К2 на ЭВМ
Таблица
8.10.
|
№
заггружения
|
Вид загружения
|
Характерные сечения
частей колонны
|
|
1–1
|
2–2
|
3–3
|
|
М
(кН´м)
|
N
(кН)
|
М
(кН´м)
|
N
(кН)
|
М
(кН´м)
|
N
(кН)
|
|
1
|
Постоянная
|
0
|
-131,4
|
0
|
-131,4
|
0
|
-131,4
|
|
2
|
Снеговая
|
0
|
-378,0
|
0
|
-378,0
|
0
|
-378,0
|
|
3
|
Dmax
|
На колонну К1
|
15,13
|
-62,34
|
-24,35
|
-62,34
|
12,34
|
0
|
|
3*
|
На колонну К2
|
60,72
|
-250,25
|
-97,74
|
-250,25
|
49,55
|
0
|
|
4
|
Т
(торм.)
|
На колонну К1
|
0
|
0
|
0
|
0
|
0
|
0
|
|
4*
|
На колонну К2
|
±6,72
|
0
|
±9,51
|
0
|
±9,51
|
0
|
|
5
|
Ветровая
|
Слева
|
0
|
0
|
0
|
0
|
0
|
0
|
|
5*
|
Справа
|
0
|
0
|
0
|
0
|
0
|
0
|
Результат
расчёта колонны К3 на ЭВМ
Таблица
8.11.
|
№
заггружения
|
Вид загружения
|
Характерные
сечения частей колонны
|
|
1–1
|
|
М
(кН´м)
|
N
(кН)
|
Постоянная
|
0
|
-45,9
|
|
2
|
Снеговая
|
0
|
-162,0
|
|
3
|
Dmax
|
На колонну К1
|
0
|
0
|
|
3*
|
На колонну К2
|
0
|
0
|
|
4
|
Т
(торм.)
|
На колонну К1
|
0
|
0
|
|
4*
|
На колонну К2
|
0
|
0
|
|
5
|
Ветровая
|
Слева
|
9,16
|
0
|
|
5*
|
Справа
|
-10,88
|
0
|
На
основании таблиц результатов расчёта колонн на ЭВМ составляем таблицы
комбинаций усилий, далее используемых для расчёта колонн.
Комбинации
усилий в сечениях колонны К1.
Таблица
8.12
|
Комбинация
усилий
|
Коэффициент
сочетания
|
Номера
нагрузок и усилия
|
Характеристика
сечения частей колонны
|
|
1-1
|
2-2
|
3-3
|
|
М
(кН×м)
|
N
(кН)
|
М
(кН×м)
|
N
(кН)
|
М
(кН×м)
|
N
(кН)
|
|
+Ммах
Nсоотв.
|
y=1
|
№
нагрузок
|
1,5
|
1,3,4
|
1,5*
|
|
усилия
|
17,73
|
-85,5
|
90,78
|
-335,75
|
5,94
|
-85,5
|
|
y=0,9
|
№
нагрузок
|
1,2,5
|
1,2,5*
|
1,2,5*
|
|
усилия
|
15,96
|
-279,9
|
6,09
|
-279,9
|
5,35
|
-279,9
|
|
-Ммах
Nсоотв.
|
y=1
|
№
нагрузок
|
1,3,4
|
1,5
|
1,3,4
|
|
усилия
|
-58,10
|
-335,75
|
-9,48
|
-85,5
|
-51,44
|
-85,5
|
|
y=0,9
|
№
нагрузок
|
1,3,4,5*
|
1,2,5
|
1,2,5
|
|
усилия
|
-63,69
|
-310,72
|
-8,53
|
-279,9
|
-7,49
|
-279,9
|
|
Nмах
+Mсоотв.
|
y=1
|
№
нагрузок
|
1,5
|
1,3,4
|
1,5*
|
|
усилия
|
17,73
|
-85,5
|
90,78
|
-335,75
|
5,94
|
-85,5
|
|
y=0,9
|
№
нагрузок
|
1,2,5
|
1,2,5*
|
1,2,5*
|
|
усилия
|
15,96
|
-279,9
|
6,09
|
-279,9
|
5,35
|
-279,9
|
|
Nмах
-Mсоотв.
|
y=1
|
№
нагрузок
|
1,3,4
|
1,5
|
1,3,4
|
|
усилия
|
-58,10
|
-335,75
|
-9,48
|
-85,5
|
-51,44
|
-85,5
|
|
y=0,9
|
№
нагрузок
|
1,3,4,5*
|
1,2,5
|
1,2,5
|
|
усилия
|
-63,69
|
-310,72
|
-8,53
|
-279,9
|
-7,49
|
-279,9
|
|
Nмin
+Mсоотв.
|
y=1
|
№
нагрузок
|
1,5
|
|
|
усилия
|
17,73
|
-85,5
|
|
|
Nмin
-Mсоотв.
|
y=1
|
№
нагрузок
|
1,5*
|
|
|
усилия
|
-12,67
|
-85,5
|
|
|
|
|
|
|
|
|
|
|
|
|
Комбинации
усилий в сечениях колонны К2.
Таблица
8.13.
|
Комбинация
усилий
|
Коэффициент
сочетания
|
Номера
нагрузок и усилия
|
Характеристика
сечения частей колонны
|
|
1-1
|
2-2
|
3-3
|
|
М
(кН×м)
|
N
(кН)
|
М
(кН×м)
|
N
(кН)
|
М
(кН×м)
|
N
(кН)
|
|
+Ммах
Nсоотв.
|
y=1
|
№
нагрузок
|
1,3*,4*
|
-
|
1,3*,4*
|
|
усилия
|
76,79
|
-381,65
|
-
|
-
|
66,69
|
-134,4
|
|
y=0,9
|
№
нагрузок
|
1,2,3*,4*
|
-
|
1,2,3*,4*
|
|
усилия
|
76,79
|
-696,83
|
-
|
-
|
60,02
|
-509,4
|
|
-Ммах
Nсоотв.
|
y=1
|
№
нагрузок
|
-
|
1,3*,4*
|
-
|
|
усилия
|
-
|
-
|
-122,29
|
-381,65
|
-
|
-
|
|
y=0,9
|
№
нагрузок
|
-
|
1,2,3*,4*
|
-
|
|
усилия
|
-
|
-
|
-110,06
|
-696,83
|
-
|
-
|
|
Nмах
+Mсоотв.
|
y=1
|
№
нагрузок
|
1,3*,4*
|
-
|
1,2
|
|
усилия
|
76,79
|
-381,65
|
-
|
-
|
0
|
-365,17
|
|
y=0,9
|
№
нагрузок
|
1,2,3*,4*
|
-
|
1,2,3*,4*
|
|
усилия
|
76,79
|
-696,83
|
-
|
-
|
60,02
|
-509,4
|
|
Nмах
-Mсоотв.
|
y=1
|
№
нагрузок
|
-
|
1,3*,4*
|
-
|
|
усилия
|
-
|
-
|
-122,29
|
-381,65
|
-
|
-
|
|
y=0,9
|
№
нагрузок
|
-
|
1,2,3*,4*
|
-
|
|
усилия
|
-
|
-
|
-110,06
|
-696,83
|
-
|
-
|
|
Nмin
+Mсоотв.
|
y=1
|
№
нагрузок
|
1,3,4
|
|
|
усилия
|
17,46
|
-193,74
|
|
|
Nмin
-Mсоотв.
|
y=1
|
№
нагрузок
|
-
|
|
|
усилия
|
-
|
-
|
|
|
|
|
|
|
|
|
|
|
|
|
Комбинации
усилий в сечениях колонны К3.
Таблица
8.14.
|
Комбинация
усилий
|
Коэффициент
сочетания
|
Номера
нагрузок и усилия
|
Характеристика
сечения частей колонны
|
|
1-1
|
|
М
(кН×м)
|
N
(кН)
|
|
+Ммах
|
y=1
|
№
нагрузок
|
1,5
|
|
усилия
|
9,16
|
-45,9
|
|
y=0,9
|
№
нагрузок
|
1,2,5
|
|
усилия
|
8,25
|
-191,70
|
|
-Ммах
Nсоотв.
|
y=1
|
№
нагрузок
|
1,5*
|
|
усилия
|
-10,88
|
-45,9
|
|
y=0,9
|
№
нагрузок
|
1,2,5*
|
|
усилия
|
-9,79
|
-191,70
|
|
Nмах
+Mсоотв.
|
y=1
|
№
нагрузок
|
1,5
|
|
усилия
|
9,16
|
-45,9
|
|
y=0,9
|
№
нагрузок
|
1,2,5
|
|
усилия
|
8,25
|
-191,70
|
|
Nмах
-Mсоотв.
|
y=1
|
№
нагрузок
|
1,5*
|
|
усилия
|
-10,88
|
-45,9
|
|
y=0,9
|
№
нагрузок
|
1,2,5*
|
|
усилия
|
-9,79
|
-191,70
|
|
Nмin
+Mсоотв.
|
y=1
|
№
нагрузок
|
1,5
|
|
усилия
|
9,16
|
-45,9
|
|
Nмin
-Mсоотв.
|
y=1
|
№
нагрузок
|
1,5*
|
|
усилия
|
-10,88
|
-45,9
|
8.4.2 Расчет колонн
Расчет колонн произведен программой Norm
CAD.
Определение
расчётных длин колонн К1, К2 и К3
– длина подкрановой части
колонны К1 и
К2;
– длина надкрановой части
колонны К1 и
К2;
– длина колонны К3;
Для
колонн К1 и К2 в плоскости рамы:
;
Для
колонны К3 в плоскости рамы:
;
Для
колонн К1 и К2 из плоскости рамы:
;
Для
колонны К3 из плоскости рамы:
;
Расчет колонны К1
Исходные данные:
Геометрические размеры элемента:
- Расчетная длина элемента lefx
= 2326 см;
- Расчетная длина элемента lefy
= 1163 см;
- Длина элемента l = 1163 см;
Нагрузка:
- Нормальная сила N = 33,575 тс = 33,575
/0,001 = 33575 кгс;
- Изгибающий момент Mx = 9,078тс
м = 9,078/0,00001 = 907800 кгс см;
- Поперечная сила на одну стенку сечения
Qy = 1,8 тс = 1,8/0,001 = 1800 кгс;
Физические характеристики:
- Модуль упругости E = 2100000 кгс/см2;
Прочность:
(Вид металла - Фасонный прокат; Сталь и
толщина металла - С235 ; От 2 до 20 мм;):
- Предел текучести стали Ryn
= 2400 кгс/см2;
- Временное сопротивление стали разрыву
Run = 3700 кгс/см2;
- Расчетное сопротивление растяжению,
сжатию, изгибу по пределу текучести Ry = 2350 кгс/см2;
- Расчетное сопротивление растяжению,
сжатию, изгибу по временному сопротивлению Ru = 3600 кгс/см2;
- Расчетное сопротивление стали сдвигу Rs
= 1363 кгс/см2;
Коэффициенты надежности и условия работы:
- Коэффициент условия работы gc
= 1 ;
- Коэффициент надежности в расчетах по
временному сопротивлению gu
= 1,3 ;
Основные характеристики сечений:
(Сечение ветви - из сортамента; Характеристики
сечения - Двутавры колонные с параллельными гранями полок по СТО АСЧМ 20-93; 40
К1; Сечение - одноветьевое):
Результаты расчета:
1) Расчет на прочность
внецентренно-сжатых или внецетренно-растянутых элементов
Проверка условий выполнения расчета по
формуле ( 49 ):
Т.к. Ry r
5900 кгс/см2 :
Непосредственное воздействие на элемент
динамических нагрузок - отсутствует.
2) Расчет по п. 5.12 СНиП II-23-81
Ослабления стенки отверстиями -
отсутствуют.
Площадь нетто:
An = A =186,81 см2 .
Косательные напряжения:
t
= Qy
Sx/(Jx
t) =1800 · 1559,3/(56147 · 1,1) =
45,44467 кгс/см2 (формула (29); п. 5.12 СНиП II-23-81).
3) Продолжение расчета по п. 5.25 СНиП
II-23-81
Т.к. все или некоторые из следующих
условий:
t/Rs=45,44467/1363=0,03334
r 0,5 и
N/(An Ry)=33575/(186,81 · 2350)=0,07648 > 0,1
- не выполнены, требуется расчет по
следующим формулам СНиП II-23-81.
Расчет должен быть выполнен по формуле (
50 ).
4) Учет ослаблений сечения
Ослабления рассматриваемого сечения -
отсутствуют.
Изгиб - в одной из главных плоскостей.
N/An+Mx/Wxn1=33575/186,81+907800/2850,1=498,24321кгс/см2
r
Ry·gc=2350·1=2350
кгс/см 2 (21,20184% от предельного значения) - условие выполнено (формула (50);
п. 5.25 СНиП II-23-81).
5) Продолжение расчета по п. 5.25 СНиП
II-23-81
Расчет на устойчивость
внецентренно-сжатых элементов в плоскости действия момента
Тип сечения - спошностенчатый стержень.
6) Определение гибкости стержня
Радиус инерции:
i = = = 17,33657 см .
Гибкость стержня относительно оси x:
lx
= lefx/i=2326/17,33657 = 134,16725 .
Условная гибкость:
l = lefx/i =2326/17,33657· = 4,48819 .
7) Продолжение расчета по п. 5.27 СНиП
II-23-81
Момент сопротивления для сжатого пояса:
Wc = Wx2 =2850,1
см3 .
Относительный эксцентриситет:
m = (Mx/N) (A/Wc)=(908000/33575)
· (186,81/2850,1) = 1,77221 .
m r
20 (8,86105% от предельного значения) - условие выполнено .
8) Коэффициент влияния формы сечения
Тип сечения по табл. 73 СНиП II-23-85 -
5.
Коэффициент влияния формы сечения:
По табл. 73 СНиП II-23-81
h = 1,34328 .
9) Продолжение расчета по п. 5.27 СНиП
II-23-81
Приведенный относительный
эксцентриситет:
mef =
hm
=1,34328 · 1,77221 = 2,38057 (формула (52); п. 5.27 СНиП II-23-81).
Т.к. mef r
20:
Коэффициент:
По табл. 74 СНиП II-23-81 в зависимости
от l
и mef
fe
= 0,2136 .
N/(fe
A)=33575/(0,2136 · 186,81)=841,42353 кгс/см2 r
Ry·gc=2350·1=2350
кгс/см2 (35,80526% от предельного значения) - условие выполнено (формула (51);
п. 5.27 СНиП II-23-81).
Коэффициент:
a
= N/( fe
A Ry·gc)=33575/(0,2136
· 186,81 · 2350 · 1) = 0,35805 .
Гибкость:
l
= lx
=134,1673 .
10) Проверка по условию предельной
гибкости сжатых элементов
По таблице 19 СНиП II-23-81:
Тип элемента - 4. Основные колонны.
Т.к. a
< 0,5:
Коэффициент:
a =0,5
l=134,1673 r180-60·a=180-60·0,5=150
(89,44487% от предельного значения) - условие выполнено
11) Продолжение расчета по п. 5.27 СНиП
II-23-81
Расчет на устойчивость
внецентренно-сжатых элементов постоянного сечения из плоскости действия момента
при изгибе в плоскости наибольшей жесткости, совпадающей с плоскостью симметрии
(Jx>Jy)
Радиус инерции:
iy = = = 10,06427 см .
Гибкость стержня относительно оси y:
ly
= lefy/iy=1163/10,06427 = 115,55731 .
Коэффициент продольного изгиба:
По табл. 72 СНиП II-23-81 в зависимости
от
ly
и Ry
fy
= 0,4601 .
12) Определение коэффициента с для
расчета на устойчивость из плоскости изгиба по формуле (56) п. 5.31
Момент сопротивления для сжатого пояса:
Wc = Wx2 =2850,1 см3 .
Относительный эксцентриситет:
mx = (Mx/N) (A/Wc)=(907800/33575)
· (186,81/2850,1) = 1,77221 .
Тип сечения - открытые.
Т.к. mx r
5:
13) Расчет по п. 5.31 СНиП II-23-81
Т.к. mx > 1:
Коэффициент:
a = 0,65+0,05 mx
=0,65+0,05 · 1,77221 = 0,73861 .
14) Расчет по п. 5.31 СНиП II-23-81
Коэффициент:
lc
= 3,14 =3,14 · = 93,86536 .
Т.к. ly=115,5573
> lc=93,86536:
Коэффициент:
По табл. 72 СНиП II-23-81 в зависимости
от lc
и Ry
fc
= 0,59858 .
Коэффициент:
b = = = 1,1406 .
Коэффициент:
c = b/(1+a
mx) =1,1406/(1+0,73861 · 1,77221) = 0,49399 (формула (57); п. 5.31
СНиП II-23-81).
15) Продолжение расчета по п. 5.31 СНиП
II-23-81
Коэффициент с не должен превышать cmax,
определяемого в зависимости от коэффициентов:
Коэффициент:
r
= (Jx+Jy)/(A h2)=(56147+18921,9)/(186,81 · 39,42) = 0,25886 .
Коэффициент:
m
= 2+0,156·Jt/(A·h2) ·ly2=2+0,156·93,25/(186,81·39,42)·115,55732
= 2,66985 .
Коэффициент:
d
= 4 r/
m=4 · 0,25886/2,66985 = 0,38783 .
cmax
= 2/(1+d+
=
=2/(1+0,38783+ =0,62976 (формула (60); п. 5.31 СНиП II-23-81).
16) Продолжение расчета по п. 5.30 СНиП
II-23-81 N/(c·fy
A)=33575/(0,49399·0,4601·186,81)=790,76149 кгс/см2 r
Ry·gc=2350·1=2350
кгс/см2 (33,64943% от предельного значения) - условие выполнено (формула (56);
п. 5.30 СНиП II-23-81).
Коэффициент:
a
= N/( fy
A Ry · gc)=33575/(0,4601
· 186,81 · 2350 · 1) = 0,16622 .
Принимаем гибкость для проверки
предельной гибкости:
Гибкость:
l = ly
=115,5573 .
17) Проверка по условию предельной
гибкости сжатых элементов
По таблице 19 СНиП II-23-81:
Тип элемента - 4. Основные колонны.
Т.к. a
< 0,5:
Коэффициент:
a =0,5 .
l=115,5573 r
180-60·a
=180-60 · 0,5=150 (77,0382% от предельного значения) - условие выполнено
Расчет колонны К2
Исходные данные:
Геометрические размеры элемента:
- Расчетная длина элемента lefx
= 2326 см;
- Расчетная длина элемента lefy
= 1163 см;
- Длина элемента l = 1163 см;
Нагрузка:
- Нормальная сила N = 69,683 тс = 69,683
/ 0,001 = 69683 кгс;
- Изгибающий момент Mx = 11,006
тс м = 11,006 / 0,00001 = 1100600 кгс см;
- Поперечная сила на одну стенку сечения
Qy = 2 тс = 2 / 0,001 = 2000 кгс;
Физические характеристики:
- Модуль упругости E = 2100000 кгс/см2;
Прочность:
(Вид металла - Фасонный прокат; Сталь и
толщина металла - С235 ; От 2 до 20 мм;):
- Предел текучести стали Ryn
= 2400 кгс/см2;
- Временное сопротивление стали разрыву
Run = 3700 кгс/см2;
- Расчетное сопротивление растяжению,
сжатию, изгибу по пределу текучести Ry = 2350 кгс/см2;
- Расчетное сопротивление растяжению,
сжатию, изгибу по временному сопротивлению Ru = 3600 кгс/см2;
- Расчетное сопротивление стали сдвигу Rs
= 1363 кгс/см2;
Коэффициенты надежности и условия
работы:
- Коэффициент условия работы gc
= 1;
- Коэффициент надежности в расчетах по
временному сопротивлению gu
= 1,3;
Основные характеристики сечений:
(Сечение ветви - из сортамента;
Характеристики сечения - Двутавры колонные с параллельными гранями полок по СТО
АСЧМ 20-93; 40 К1; Сечение - одноветьевое):
Результаты расчета:
1) Расчет на прочность
внецентренно-сжатых или внецетренно-растянутых элементов
Проверка условий выполнения расчета по
формуле ( 49 ):
Т.к. Ry r
5900 кгс/см 2 :
Непосредственное воздействие на элемент
динамических нагрузок - отсутствует.
2) Расчет по п. 5.12 СНиП II-23-81
Ослабления стенки отверстиями -
отсутствуют.
Площадь нетто:
An = A =186,81 см 2 .
Косательные напряжения:
t = Qy Sx/(Jx
t) =
=2000 · 1559,3/(56147 · 1,1) = 50,49408
кгс/см 2 (формула (29); п. 5.12 СНиП II-23-81).
3) Продолжение расчета по п. 5.25 СНиП
II-23-81
Т.к. все или некоторые из следующих
условий:
t/Rs=50,49408/1363=0,03705r0,5
и
N/(An Ry)=69683/(186,81 · 2350)=0,15873 > 0,1
- не выполнены, требуется расчет по
следующим формулам СНиП II-23-81.
Расчет должен быть выполнен по формуле (
50 ).
4) Учет ослаблений сечения
Ослабления рассматриваемого сечения -
отсутствуют.
Изгиб - в одной из главных плоскостей.
N/An+Mx/Wxn1=69683/186,81+1100600/2850,1=759,18
кгс/см2 r
Ry·gc=2350·1=2350
кгс/см2 (32,3055% от предельного значения) - условие выполнено (формула (50);
п. 5.25 СНиП II-23-81).
5) Продолжение расчета по п. 5.25 СНиП
II-23-81
Расчет на устойчивость
внецентренно-сжатых элементов в плоскости действия момента
Тип сечения - сплошностенчатый стержень.
6) Определение гибкости стержня
Радиус инерции:
i = = = 17,33657 см .
Гибкость стержня относительно оси x:
lx
= lefx/i=2326/17,33657 = 134,16725 .
Условная гибкость:
l = lefx/i =2326/17,33657· = 4,48819 .
7) Продолжение расчета по п. 5.27 СНиП
II-23-81
Момент сопротивления для сжатого пояса:
Wc = Wx2 =2850,1
см 3 .
Относительный эксцентриситет:
m = (Mx/N) (A/Wc)=(1100600/69683)
· (186,81/2850,1) = 1,03524
m r
20 (10,05925% от предельного значения) - условие выполнено.
8) Коэффициент влияния формы сечения
Тип сечения по табл. 73 СНиП II-23-85 -
5.
Коэффициент влияния формы сечения:
По табл. 73 СНиП II-23-81
h = 1,35082 .
9) Продолжение расчета по п. 5.27 СНиП
II-23-81
Приведенный относительный
эксцентриситет:
mef = h
m =1,35082 · 1,03524 = 1,39842 (формула (52); п. 5.27 СНиП II-23-81).
Т.к. mef r
20:
Коэффициент:
По табл. 74 СНиП II-23-81 в зависимости
от
l
и mef
fe
= 0,2639 .
N/(fe·A)=69683/(0,2639·186,81)=1413,47239кгс/см2r
Ry·gc=2350·1=2350
кгс/см2 (60,14776% от предельного значения) - условие выполнено (формула (51);
п. 5.27 СНиП II-23-81).
Коэффициент:
a
= N/( fe
A Ry gc)=69683/(0,2639
· 186,81 · 2350 · 1) = 0,60148.
Гибкость:
l = lx
=134,1673 .
10) Проверка по условию предельной
гибкости сжатых элементов
По таблице 19 СНиП II-23-81:
Тип элемента - 4. Основные колонны.
l=134,1673 r
180-60·a
=180-60·0,60148=143,9112 (93,22923% от предельного значения) - условие выполнено
.
11) Продолжение расчета по п. 5.27 СНиП
II-23-81
Расчет на устойчивость
внецентренно-сжатых элементов постоянного сечения из плоскости действия момента
при изгибе в плоскости наибольшей жесткости, совпадающей с плоскостью симметрии
(Jx>Jy)
Радиус инерции:
iy = = = 10,06427 см .
Гибкость стержня относительно оси y:
ly
= lefy/iy=1163/10,06427 = 115,55731 .
Коэффициент продольного изгиба:
По табл. 72 СНиП II-23-81 в зависимости
от ly
и Ry
fy
= 0,4601 .
12) Определение коэффициента с для
расчета на устойчивость из плоскости изгиба по формуле (56) п. 5.31
Момент сопротивления для сжатого пояса:
Wc = Wx2 =2850,1
см 3 .
Относительный эксцентриситет:
mx = (Mx/N) (A/Wc)=(1100600/69683)
· (186,81/2850,1) = 1,03524 .
Тип сечения - открытые.
Т.к. mx r
5:
13) Расчет по п. 5.31 СНиП II-23-81
Т.к. mx > 1:
Коэффициент:
a = 0,65+0,05 mx
=0,65+0,05 · 1,03524 = 0,70176 .
14) Расчет по п. 5.31 СНиП II-23-81
Коэффициент:
lc
= 3,14 =3,14 · = 93,86536 .
Т.к. ly=115,5573
> lc=93,86536
:
Коэффициент:
По табл. 72 СНиП II-23-81 в зависимости
от lc
и Ry
fc
= 0,59858 .
Коэффициент:
b = = = 1,1406 .
Коэффициент:
c = b/(1+
a
mx ) =
=1,1406/(1+0,75059 · 1,03524) = 0,66065 (формула
(57); п. 5.31 СНиП II-23-81).
15) Продолжение расчета по п. 5.31 СНиП
II-23-81
Коэффициент с не должен превышать cmax,
определяемого в зависимости от коэффициентов:
r
= (Jx+Jy)/(A h 2)=(56147+18921,9)/(186,81 · 39,4 2) = 0,25886.
Коэффициент:
m
= 2+0,156 Jt/(A h 2) ly
2=2+0,156 · 93,25/(186,81 · 39,4 2) · 115,5573 2 = 2,66985.
Коэффициент:
d
= 4 r/
m=4 · 0,25886/2,66985 = 0,38783.
cmax
= 2/(1+
d+
=
=2/(1+0,38783+ = 0,78602 (формула (60); п. 5.31 СНиП
II-23-81).
16) Продолжение расчета по п. 5.30 СНиП
II-23-81
N/(c·fy
A)=69683/(0,66065· 0,4601 · 186,81)=1227,16524 кгс/см2 r
Ry·gc=2350·1=2350
кгс/см2 (39,08079% от предельного значения) - условие выполнено (формула (56);
п. 5.30 СНиП II-23-81).
Коэффициент:
a
= N/( fy
A Ry gc)=69683/(0,4601
· 186,81 · 2350 · 1) = 0,34499.
Принимаем гибкость для проверки
предельной гибкости:
Гибкость:
l =
ly
=115,5573 .
17) Проверка по условию предельной
гибкости сжатых элементов
По таблице 19 СНиП II-23-81:
Тип элемента - 4. Основные колонны.
Т.к. a
< 0,5:
Коэффициент:
a =0,5 .
l=115,5573r180-60·a
=180-60 · 0,5=150 (77,0382% от предельного значения) - условие выполнено .
Расчет колонны К3
Исходные данные:
Геометрические размеры
элемента:
- Расчетная длина
элемента lefx = 1916 см;
- Расчетная длина
элемента lefy = 958 см;
- Длина элемента l =
958 см;
Нагрузка:
- Нормальная сила N 19,17
тс =19,17 / 0,001 = 19170 кгс;
- Изгибающий момент Mx
= 0,979 тс м = 0,979 / 0,00001 = 97900 кгс см;
- Поперечная сила на
одну стенку сечения Qy = 0,5 тс = 0,5 / 0,001 = 500 кгс;
Физические
характеристики:
- Модуль упругости E =
2100000 кгс/см2;
Прочность:
(Вид металла - Фасонный
прокат; Сталь и толщина металла - С235 ; От 2 до 20 мм; ):
- Предел текучести
стали Ryn = 2400 кгс/см2;
- Временное
сопротивление стали разрыву Run = 3700 кгс/см2;
- Расчетное
сопротивление растяжению, сжатию, изгибу по пределу текучести Ry =
2350 кгс/см2;
- Расчетное
сопротивление растяжению, сжатию, изгибу по временному сопротивлению Ru
= 3600 кгс/см2;
- Расчетное
сопротивление стали сдвигу Rs = 1363 кгс/см2;
Коэффициенты надежности
и условия работы:
- Коэффициент условия
работы gc
= 1 ;
- Коэффициент
надежности в расчетах по временному сопротивлению gu
= 1,3 ;
Основные характеристики
сечений:
(Сечение ветви - из
сортамента; Характеристики сечения - Двутавры колонные с параллельными гранями
полок по СТО АСЧМ 20-93; 30 К1; Сечение - одноветьевое):
Результаты расчета:
1) Расчет на прочность
внецентренно-сжатых или внецетренно-растянутых элементов
Проверка условий
выполнения расчета по формуле ( 49 ):
Т.к. Ry r
5900 кгс/см 2 :
Непосредственное
воздействие на элемент динамических нагрузок - отсутствует.
2) Расчет по п. 5.12
СНиП II-23-81
Ослабления стенки
отверстиями - отсутствуют.
Площадь нетто:
An = A
=110,8 см2 .
Касательные напряжения:
t
= Qy Sx/(Jx t) =
=500 · 694,7/(18849 ·
0,9) = 20,47559 кгс/см2 (формула (29); п. 5.12 СНиП II-23-81).
3) Продолжение расчета
по п. 5.25 СНиП II-23-81
Т.к. все или некоторые
из следующих условий:
t/Rs=20,47559/1363=0,01502
r 0,5 и
N/(An Ry)=19170/(110,8 2350)=0,07362 > 0,1
- не выполнены,
требуется расчет по следующим формулам СНиП II-23-81.
Расчет должен быть
выполнен по формуле ( 50 ).
4) Учет ослаблений
сечения
Ослабления
рассматриваемого сечения - отсутствуют.
Изгиб - в одной из
главных плоскостей.
N/An+Mx/Wxn1=19170/110,8+97900/1265,1=250,39963
кгс/см2 r
Ry·gc=2350·1=2350
кгс/см (10,6553% от предельного значения) - условие выполнено (формула (50); п.
5.25 СНиП II-23-81).
5) Продолжение расчета
по п. 5.25 СНиП II-23-81
Расчет на устойчивость
внецентренно-сжатых элементов в плоскости действия момента
Тип сечения -
сплошностенчатый стержень.
6) Определение гибкости
стержня
Радиус инерции:
i = = = 13,0429 см .
Гибкость стержня
относительно оси x:
lx
= lefx/i=1916/13,0429 = 146,89985 .
Условная гибкость:
l
= lefx/i =1916/13,0429
· = 4,91412 .
7) Продолжение расчета
по п. 5.27 СНиП II-23-81
Момент сопротивления
для сжатого пояса:
Wc = Wx2
=1265,1 см3 .
Относительный
эксцентриситет:
m = (Mx/N)
(A/Wc)=(97900/19170) · (110,8/1265,1) = 0,44728 .
m r
20 (2,2364% от предельного значения) - условие выполнено .
8) Коэффициент влияния
формы сечения
Тип сечения по табл. 73
СНиП II-23-85 - 5.
Коэффициент влияния
формы сечения:
По табл. 73 СНиП
II-23-81
h
= 1,30954 .
9) Продолжение расчета по
п. 5.27 СНиП II-23-81
Приведенный
относительный эксцентриситет:
mef = h·m
=1,30954 · 0,44728 = 0,58573 (формула (52); п. 5.27 СНиП II-23-81).
Т.к. mef r
20 :
Коэффициент:
По табл. 74 СНиП
II-23-81 в зависимости от l и mef
fe
= 0,29494 .
N/(fe
A)=19170/(0,29494·110,8)=586,60894 кгс/см2 r
Ry·gc=2350·1=2350
кгс/см2 (24,96208% от предельного значения) - условие выполнено (формула (51);
п. 5.27 СНиП II-23-81).
Коэффициент:
a
= N/( fe
A Ry gc)=19170/(0,29494
· 110,8 · 2350 · 1) = 0,24962 .
Гибкость:
l
=
lx
=146,8999 .
10) Проверка по условию
предельной гибкости сжатых элементов
По таблице 19 СНиП
II-23-81:
Тип элемента - 4.
Основные колонны.
Т.к. a
< 0,5:
Коэффициент:
a
=0,5 .
l=146,8999
r
180-60·a
=180-60 · 0,5=150 (97,93327% от предельного значения) - условие выполнено .
11) Продолжение расчета
по п. 5.27 СНиП II-23-81
Расчет на устойчивость
внецентренно-сжатых элементов постоянного сечения из плоскости действия момента
при изгибе в плоскости наибольшей жесткости, совпадающей с плоскостью симметрии
(Jx>Jy)
Радиус инерции:
iy
= = = 7,50505 см .
Гибкость стержня
относительно оси y:
ly
= lefy/iy=958/7,50505 = 127,64738 .
Коэффициент продольного
изгиба:
По табл. 72 СНиП
II-23-81 в зависимости от ly
и Ry
fy
= 0,39213 .
12) Определение
коэффициента с для расчета на устойчивость из плоскости изгиба по формуле (56)
п. 5.31
Момент сопротивления
для сжатого пояса:
Wc = Wx2
=1265,1 см3 .
Относительный
эксцентриситет:
mx = (Mx/N)
(A/Wc)=(97900/19170) · (110,8/1265,1) = 0,44728 .
Тип сечения - открытые.
Т.к. mx r
5:
13) Расчет по п. 5.31
СНиП II-23-81
Т.к. mx r
1 :
Коэффициент:
a
= 0,7 .
14) Расчет по п. 5.31
СНиП II-23-81
Коэффициент:
lc
= 3,14 =3,14 · = 93,86536
Т.к. ly=127,6474
> lc=93,86536:
Коэффициент:
По табл. 72 СНиП
II-23-81 в зависимости от lc
и Ry
fc
= 0,59858 .
Коэффициент:
b = = = 1,23551 .
Коэффициент
c = b/(1+
a
mx ) =
=1,23551/(1+0,7 · 0,44728)
= 0,94091 (формула (57); п. 5.31 СНиП II-23-81).
15) Продолжение расчета
по п. 5.31 СНиП II-23-81
Коэффициент с не должен
превышать cmax, определяемого в зависимости от коэффициентов:
Коэффициент:
r
= (Jx+Jy)/(A h2)=(18849+6240,9)/(110,8 · 29,8 2) =
0,25499 .
Коэффициент:
m
= 2+0,156 Jt/(A h 2) ly2=2+0,156
· 33,91/(110,8 · 29,82) · 127,64742 = 2,876 .
Коэффициент:
d
= 4 r/
m=4 · 0,25499/2,876 = 0,35465 .
cmax
= 2/(1+
d+
=
=2/(1+0,35465+ = 0,94512 (формула (60); п.
5.31 СНиП II-23-81).
16) Продолжение расчета
по п. 5.30 СНиП II-23-81
N/(c·fy
A)=19170/(0,94091 · 0,39213 · 110,8)=468,92588кгс/см2 r
Ry·gc=2350
·1=2350 кгс/см2 (19,95429% от предельного значения) -условие выполнено (формула
(56); п. 5.30 СНиП II-23-81).
Коэффициент:
a
= N/( fy
A Ry gc)=19170/(0,39213
· 110,8 · 2350 · 1) = 0,18775 .
Принимаем гибкость для
проверки предельной гибкости:
Гибкость:
l
= ly
=127,6474 .
17) Проверка по условию
предельной гибкости сжатых элементов
По таблице 19 СНиП
II-23-81:
Тип элемента - 4.
Основные колонны.
Т.к. a
< 0,5 :
Коэффициент:
a
=0,5 .
l=127,6474
r
180-60·a
=180-60 · 0,5=150 (85,09827% от предельного значения) - условие выполнено .
Принимаем сечения колонн:
·
К1
- 40К1 по СТО АСЧМ 20-93;
·
К2
- 40К1 по СТО АСЧМ 20-93;
·
К3
- 30К1 по СТО АСЧМ 20-93;
8.4.2
Расчет консоли колонн.
Расчет
произведен программой Norm CAD.
Рис.
8.19 К расчету консоли колонн К1 иК2.
Расчет сварного
соединения с угловыми швами на одновременное действие продольной и поперечной
сил и момента соединяемого консоль с колонной.
Исходные данные:
Нагрузка:
N
=0 тс = 0/0,001 = 0 кгс; Mx
=11,261 тс м = 11,261 /0,00001 = 1126100 кгс см; My
= 0 тс м = 0 / 0,00001 = 0 кгс см; Mxy
= 0 тс м = 0 /0,00001 = 0 кгс см; Qx
= 0 тс = 0 /0,001 = 0 кгс; Qy
= 25,025 тс = 25,025 /0,001 = 25025 кгс; F
= 0 тс = 0 /0,001 = 0 кгс;
Физические
характеристики:
E = 2100000 кгс/см2;
Прочность:
(Вид металла - Фасонный
прокат; Сталь и толщина металла - С235 ; От 2 до 20 мм; ]): Ryn =
2400 кгс/см2; Run = 3700 кгс/см2; Ry = 2350 кгс/см2; Ru
= 3600 кгс/см2; Rs = 1363 кгс/см2;
Коэффициенты надежности
и условия работы:
gc
= 1 ; gu
= 1,3 ;
Основные характеристики
сечений:
h
= 39,4 см; b = 39,8 см; t
= 1,1 см; tf
= 1,8 см;
Характеристики сечения
ветви:
hb
= 39,4 см; bb
= 39,8 см; tb
= 1,1 см; tfb
= 1,8 см; Ab=
186,81 см2; Jxb
= 56147 см4; Jyb
= 18921,9 см4; Wx1b
= 2850,1 см3; Wx2b
= 2850,1 см3; Wy1b
= 950,8 см3; Wy2b
= 950,8 см3;
Параметры сварного
соединения:
kf
= 6 мм; l = 235,8 см; t=
1,1 см; tmax
= 1,8 см;
Характеристики сечения
сварного соединения:
(Тип сечения - полоса;
Сечение ветви - из сортамента; Характеристики сечения - Двутавры колонные с
параллельными гранями полок по СТОАСЧМ 20-93; 40 К1; Сечение - одноветьевое): Aw
= 186,81 см2; Jwx = 56147 см4; Jwy = 18921,9 см4; Wwx1
= 2850,1 см3; Wwx2 = 2850,1 см3; Wwy1 = 950,8 см3; Wwy2
= 950,8 см3; x = 19,90103м; y = 19,70001 см;
Результаты расчета:
1) Расчетное
сопротивление сварных соединений
Шов - угловой.
Тип электрода - Э42,
Э42А.
По табл. 56 СНиП
II-23-81
Rwf
= 1800 кгс/см2 .
Rwz
= 0,45 Run=0,45
· 3700 = 1665 кгс/см2 .
Rws = Rs
=1363 кгс/см2 .
2) Расчет сварных
соединений с угловыми швами на одновременное действие продольной и поперечной
сил и момента
lw = l
-1=235,8-1 = 234,8 см .
3) Расчет по п. 11.2 СНиП
II-23-81
Т.к. Ryn r
5400 кгс/см2 :
Коэффициенты bf
и gz
принимаются по табл. 34.
Вид сварки -
полуавтоматическая.
Сварка проволокой -
порошковой.
bf=0,7.
bz=1.
4) Расчет по п. 11.2
СНиП II-23-81
Климатический район
строительства - кроме I1, I2, II2 или II3.
gwf=1.
gwz=1.
5) Проверка условий для
Rwf и Rwz.
Размеры шва -
установлены расчетом.
Т.к. Ryn r
2900 кгс/см2:
Вид сварки -
полуавтоматическая.
Rwf=1800
кгс/см2 > Rwz=1665 кгс/см2 (108,10811% от предельного значения) -
условие выполнено .
Rwf=1800
кгс/см2 r
Rwz bz/
bf=1665
· 1/0,7=2378,57143 кгс/см2 (75,67568% от предельного значения) - условие
выполнено .
6) Продолжение расчета
по п. 11.5 СНиП II-23-81
Определяем напряжения в
расчетном сечении, равные геометрическим суммам напряжений, вызываемых
продольной и поперечной силами и моментом.
Изгибающие моменты
действуют - из плоскости шва.
Wwx
= min(Wwx1 ; Wwx2)=min(2850,1;2850,1) = 2850,1 см3
.
Wwy
= min(Wwy1 ; Wwy2)=min(950,8;950,8) = 950,8 см3
.
tf
= =
= =565,01149 кгс/см
2 .
tz
= =
= = 395,50805 кгс/см2
.
tf=565,0115
кгс/см2 r
Rwf gwfgc=1800
· 1 · 1=1800 кгс/см2 (31,38953% от предельного значения) - условие выполнено (формула
(126); п. 11.5 СНиП II 23-81).
tz=395,5081
кгс/см2 r
Rwz gwz
gc=1665
· 1 · 1=1665 кгс/см2 (23,75424% от предельного значения) - условие выполнено
(формула (126); п. 11.5 СНиП II 23-81).
7) Конструктивные
требования к сварным соединениям
По п. 12.8 а:
kf=0,6 см r1,2
t=1,2·1,1=1,32 см (45,45455% от предельного значения) - условие выполнено.
8) По п. 12.8 б:
Вид соединения -
тавровое с двухсторонними угловыми швами.
Вид сварки -
полуавтоматическая.
По табл. 38 СНиП
II-23-81 в зависимости от Ryn и tmax
kf, min = 6
мм .
9) Продолжение расчета
по п. 12.8 СНиП II-23-81
Группа конструкций - 1,
2 или 3.
По п.2 примеч. к табл.
38 для конструкций групп 1, 2 и 3 минимальный катет шва не уменьшается.
kf=6 мм t
kf, min=6 мм (100% от предельного значения) - условие
выполнено.
10) По п. 12.8 в:
lw = l
-1=235,8-1 = 234,8 см .
lw=234,8 см t
4 kf=4·0,6=2,4см (9783,33333% от предельного значения) - условие
выполнено
lw t
4 см (5870% от предельного значения) - условие выполнено.
11) По п. 12.8 г:
Вид шва - фланговый.
Усилие действует - на
всем протяжении шва.
Проверки по п. 12.8г не
требуется.
8.4.3 Конструирование и расчет базы и
оголовка колонн.
Колонны К1 и К2.
Примем класс прочности бетона на сжатие
В20, что соответствует Rпр=11,5 МПа.
Расчетное сопротивление бетона смятию
где Rпр
–
расчетное сопротивление бетона осевому сжатию;
Требуемая площадь плиты в плане
Ширину плиты В назначаем конструктивно,
принимая консольный свес плиты с=40 мм.
где 40 – округленная высота
сечения прокатного профиля;
c
– консольный участок плиты, с = 40…120 мм.
Принимаем В = 500 мм, С = 50 мм.
Тогда длина плиты будет L=500мм.
Фактическая площадь плиты
, что больше требуемой, равной 466,12 см2
.
Фактическое давление фундамента на плиту
Согласно принятой конструкции плита
имеет два участка для определения изгибающих моментов
Участок 1 – опирание плиты на три канта.
Расчет произведен
программным пакетом SCAD
OFFICE.
Группа конструкции по
таблице 50* СНиП:
Расчетное сопротивление
стали Ry= 23,544 кН/см2
Коэффициент условий
работы 1,1
Коэффициент надежности
по ответственности 1,15
Тип опирания
Размеры:
a = 24,35 см
b = 35,8 см
Нагрузка 0,279 кН/см2
Коэффициент
ответственности 1,15
Коэффициент условий
работы 1,1
Расчетное сопротивление
стали по пределу текучести Ry= 23,544 кН/см2
Требуемая толщина плиты
30,0 мм
Участок 3 – консольный.
Расчет произведен
программным пакетом SCAD
OFFICE.
Группа конструкции по
таблице 50* СНиП:
Расчетное сопротивление
стали Ry= 23,544 кН/см2
Коэффициент условий
работы 1,1
Коэффициент надежности
по ответственности 1,15
Тип опирания
Размеры:
a = 50,0 см
b = 5,0 см
Нагрузка 0,279 кН/см2
Коэффициент
ответственности 1,15
Коэффициент условий
работы 1,1
Расчетное сопротивление
стали по пределу текучести Ry= 23,544 кН/см2
Требуемая толщина плиты
10,0 мм
Примем толщину плиты
30мм. Проведем
расчет сварных швов, прикрепляющих колонну к плите базы. Назначим
полуавтоматическую сварку проволокой диаметром 1,4-2,0 мм, для которой βz
= 1.0, βf=
0.8
при Kf=9…12
мм, Rwz=166.5
МПа , Rwf=180
МПа.
При βfRwf
=
0,8*180 = 144 МПа < βzRwz
=
1.0*165.5 = 166.5 МПа расчет выполняем по металлу шва.
В расчетную длину сварных швов
включаются длина швов, прикрепляющих колонну по контуру:
Требуемый катет шва
Принимаем катет шва Kf
=
7
мм.
kf=7 мм t kf, min=7
мм (100% от предельного значения) - условие выполнено.
Колонна К3 .
Примем класс прочности бетона на сжатие
В20, что соответствует Rпр=11,5 МПа.
Расчетное сопротивление бетона смятию
где Rпр
–
расчетное сопротивление бетона осевому сжатию;
Требуемая площадь плиты в плане
Ширину плиты В назначаем конструктивно,
принимая консольный свес плиты с=40 мм.
где 30 – округленная высота
сечения прокатного профиля;
c
– консольный участок плиты, с = 40…120 мм.
Принимаем В = 400 мм, С = 50 мм.
Тогда длина плиты будет L=400мм.
Фактическая площадь плиты
, что больше требуемой, равной 128,23 см2
.
Фактическое давление фундамента на плиту
Согласно принятой конструкции плита
имеет два участка для определения изгибающих моментов
Участок 1 – опирание плиты на три канта.
Расчет произведен
программным пакетом SCAD
OFFICE.
Группа конструкции по
таблице 50* СНиП:
Расчетное сопротивление
стали Ry= 23,544 кН/см2
Коэффициент условий
работы 1,1
Коэффициент надежности
по ответственности 1,15
Тип опирания
Размеры:
a = 19,5 см
b = 27,0 см
Нагрузка 0,12 кН/см2
Коэффициент
ответственности 1,15
Коэффициент условий
работы 1,1
Расчетное сопротивление
стали по пределу текучести Ry= 23,544 кН/см2
Требуемая толщина плиты
16,0 мм
Участок 3 – консольный.
Расчет произведен
программным пакетом SCAD
OFFICE.
Группа конструкции по
таблице 50* СНиП:
Расчетное сопротивление
стали Ry= 23,544 кН/см2
Коэффициент условий
работы 1,1
Коэффициент надежности
по ответственности 1,15
Тип опирания
Размеры:
b = 5,0 см
Нагрузка 0,12 кН/см2
Коэффициент
ответственности 1,15
Коэффициент условий
работы 1,1
Расчетное сопротивление
стали по пределу текучести Ry= 23,544 кН/см2
Требуемая толщина плиты
8,0 мм
Примем толщину плиты
16мм.
Проведем расчет сварных швов,
прикрепляющих колонну к плите базы.
Назначим полуавтоматическую сварку
проволокой диаметром 1,4-2,0 мм, для которой βz
= 1.0, βf=
0.8
при Kf=9…12
мм, Rwz=166.5
МПа , Rwf=180
МПа.
При βfRwf
=
0,8*180 = 144 МПа < βzRwz
=
1.0*165.5 = 166.5 МПа расчет выполняем по металлу шва.
В расчетную длину сварных швов
включаются длина швов, прикрепляющих колонну по контуру:
Требуемый катет шва
Принимаем катет шва Kf
=
5
мм.
kf=5 мм t kf, min=5
мм (100% от предельного значения) - условие выполнено.
Оголовок колонн примем t=16мм.
Размеры для колонн К1 и К2- 450х450мм; для колонны К3 -350х350мм.
Ребро оголовка принимаем t=10мм,
L= 200мм.
8.4.4
Расчет анкерных болтов колонн
Расчёт
анкерных болтов колонны К1.
М=17,73кН×м; N=85,5 кН.
С
учётом перехода от расчётной нагрузки к нормативной, а затем опять к расчётной,
N необходимо домножить на коэффициент
0,8.
N/=85,5.0,8=68,4кН;
Принимаем
два болта (n=2), тогда усилие в одном болте:
Требуемая
площадь сечения болта нетто:
где
Rbn=185 МПа – расчётное сопротивление
растяжению фундаментных болтов из стали марки ВСт3кп2;
Окончательно
принимаем 2 болта Æ 20 мм, с Аbn=2,45 см2.
Расчёт
анкерных болтов колонны К2.
М=17,46кН×м; N=193,74 кН.
С
учётом перехода от расчётной нагрузки к нормативной, а затем опять к расчётной,
N необходимо домножить на коэффициент
0,8.
N/=193,74 . 0,8=154,99кН;
Принимаем
два болта (n=2), тогда усилие в одном болте:
Требуемая
площадь сечения болта нетто
где
Rbn=185 МПа – расчётное сопротивление
растяжению фундаментных болтов из стали марки ВСт3кп2;
Окончательно
принимаем 2 болта Æ 30 мм, с Аbn=5,60 см2.
Расчёт
анкерных болтов колонны К3.
М=10,88кН×м; N=45,9 кН.
С
учётом перехода от расчётной нагрузки к нормативной, а затем опять к расчётной,
N необходимо домножить на коэффициент
0,8.
N/=45,9.0,8=36,72кН;
Принимаем
два болта (n=2), тогда усилие в одном болте:
Требуемая
площадь сечения болта нетто
где
Rbn=185 МПа – расчётное сопротивление
растяжению фундаментных болтов из стали марки ВСт3кп2;
Окончательно
принимаем 2 болта Æ 16 мм, с Аbn=1,57 см2.
Оголовок колонн примем t=16мм.
Размеры для колонн К1 и К2 450х450мм; для колонны К3 -350х350мм.
8.5 Основания
и фундаменты
8.5.1 Оценка инженерно-геологических
условий
Плотность грунта
(p.
γ /10)
p1
=
1.8 т/м3
p2
=
1.86 т/м3
p3
=
1.97 т/м3
Плотность частиц грунта
( ps
=
γs/10)
ps1
=2.62
т/м3
ps2
=2.64 т/м3
ps3
=2.72т/м3
Коэффициент пористости
e
= ps( 1+ W)
/ p – 1.0
e 1= ps(
1+ W) / p – 1.0 = 2.62( 1+ 0.074) / 1.8 – 1.0 = 0.56
e 2= ps(
1+ W) / p – 1.0 = 2.64( 1+ 0.262) / 1.86 – 1.0 = 0.79
e
3=
ps( 1+ W)
/ p – 1.0 = 2.72( 1 + 0.802) / 1.97 –
1.0 = 1.49
Коэффициент водонасыщения
Sr = Wps
/epw
Sr2 = Wps
/epw = 0.262 * 2.64 / 0.79 * 1.0 = 0.88
Число пластичности для глинистых грунтов
Jp
= We - Wp
Jp1 = We
- Wp = 0.26 – 0.16 = 0.1
Jp3= We
- Wp = 0.42 – 0.23 = 0.19
Показатель консистенции для глинистых
грунтов
JL
=
W – Wp
/ We- Wp
JL1 = W – Wp
/ We- Wp = 0.074 – 0.16 / 0.1 = -0.86
JL 3= W – Wp
/ We- Wp = 0.803 – 0.23 / 0.19 = 3.02
Литологическое описание грунта.
1 слой - супесь твёрдой консистенции
2 слой - песок крупный, рыхлый,
насыщенный водой (если понадобится в расчётах, применяем цементизацию и доводим
до средней плотности )
3 слой - глина тягучей консистенции
4 слой – скальный грунт-гранит
8.5.2 Проектирование
фундамента под колонну К
Рис. 8.20. Схема к определению несущей
способности сваи под колонну К1.
1. Исходные данные.
Наиболее невыгодное сочетание нагрузок
на уровне обреза фундамента
N=335,75кН,
М= 58,10кН*м, Q=18кН.
2. Выбор глубины заложения ростверка,
несущего слоя грунта и конструкции сваи.
Глубину заложения ростверка принимаем из
конструктивных соображений dr=1,5м,
высота ростверка 1,3м и расположение обреза ростверка ниже поверхности грунта
на 0,2м. Принятая глубина заложения ростверка больше расчетной глубине
промерзания грунта df=1,4м.
Наиболее благоприятным грунтом для
использования в качестве несущего слоя является супесь, но мощности слоя не
достаточно. Используем в качестве несущего слоя песок. Принимаем глубину
заделки сваи в ростверк Dz=0.05м,
в несущий слой грунта hz=2,95м.
Требуемую длину сваи определяем по формуле 9,4/
Учитывая возможность погружения свай
забивкой и не значительные нагрузки на фундамент, принимаем сваи сечением
30х30см. марка сваи С5-30, бетон кл. В15, рабочая арматура - 4Æ12,
кл. A-I.
3. Определение несущей способности и
силы сопротивления сваи по материалу и по грунту. Силу расчетного сопротивления
сваи по материалу определяем по формуле 9,5 [9], учитывая, что γс=1
(при d³0,2м);
φ=1 (для низкого ростверка); γсd=1
(для забивных свай); Rb=8500кПа
(для бетона В15); Ab=0,3х0,3=0,09м2;
Rsc=225000кПа (для
арматуры A-I);
As
=
4πr2 =
4*3,14*0,0062 = =0,452х10-
3м2,
По характеру работы свая относится к
висячей, так как опирается на сжимаемый грунт ( модуль деформации несущего слоя
грунта Е=30МПа<50МПа). Поэтому несущую способность сваи по грунту определяем
по формуле 9,10 [9] при γс=1; R=6600кПа
(принято по таблице 9,3 с учетом интерполяции) [9]; A=0,3х0,3=0,09м2;
u=4*0,3=1,2м; Σ γсffihi=254,05кПа
(см. таблицу на рис.8.20.); fi-расчетное
сопротивление i-го слоя грунта, кПа,
принимаемое по табл. 9,4[9]; hi-толщина
i-го слоя грунта, м; γсR=1,
γсf=1
при забивке свай молотом (см. таблицу 9,5) [9].
Силу расчетного сопротивления сваи по
грунту находим по формуле 9,1для коэффициента надежности γk=1,4
В дальнейших расчетах используем меньшее
значение силы расчетного сопротивления сваи FR=RRs=642,04кН
4. Определение приближенного веса
ростверка и числа свай.
По формулам 9,23[9]
и
9,24[9]
определяем соответственно среднее давление под подошвой ростверка pg,
площадь подошвы ростверка Ag
и приближенный вес ростверка с грунтом на уступах Ng,
учитывая, что здание без подвала, среднее значение удельного веса материала
ростверка и грунта на его уступах γm
= 20кН/м3,
Число свай определяем по формуле 9,25[9]
где ==1,5 - коэффициент учитывающий действие
момента;
Принимаем число свай 1шт.
5. Конструирование ростверка.
Габаритные размеры ростверка
(подколонника) в плане равны 0,6х0,6м, по высоте – 1,3м.
Вес ростверка Ng
и грунта Ngg
на его уступах определяем по формулам 9,27[9]
и 9,28[9],
учитывая , что γf=1,1-коэффициент
надежности по нагрузке для собственного веса материала;
;
γb=24
кН/м3 – удельный вес железобетона;
;
γ1=16 кН/м3 –
удельный вес насыпного грунта, расположенного выше ростверка,
Армирование ростверка конструктивное,
сеткой с ячейками 200х200 Æ12, кл. A-I.
6. Проверка усилий передаваемых на сваи.
При действии момента, наиболее
нагруженными оказываются сваи, максимально удаленные от центра тяжести свайного
поля (в рассматриваемом случае yi=0).
Вычисляем суммарную расчетную нагрузку на сваю в уровне подошвы ростверка и
момент в уровне подошвы ростверка.
Расчетное усилие, передаваемое на сваю,
определяем по формуле 9,29
Свая сжата, расчетное усилие на сваю не
превышает силы расчетного сопротивления сваи.
7. Расчет осадок фундамента.
Проверку давления на грунт выполняем от
условного фундамента ABCD
(см. рис. 8.21.). определяем средневзвешенное значение угла внутреннего трения
φIImt и размеры
подошвы условного фундамента bc
и lc соответственно по
формулам 9,39[9] и 9,40[9],
учитывая, что для отдельных слоев грунта толщиной hi,
м, расчетные значения угла внутреннего трения φIIi,
град (см. рис. 8.21.) и расстояния между наружными гранями крайних рядов свай b0=0,3м,
l0=0,3м
Вес условного фундамента Nc
и давление на грунт по его подошве pII
вычисляемпо формулам 9,41[9] и 9,42[9],
используя значения удельного веса γIIi
отдельных слоев грунта толщиной hi,
в пределах глубины заложения условного фундамента dc
(см.
рис.8.21.) и нагрузку на фундамент II
группы предельных состояний NII=NI/γf=349,38/1,2=291,15кН
(где γf=1,2
– среднее значение коэффициента надежности по нагрузке),
асчетное сопротивление грунта R,
расположенного ниже условного фундамента, определяем по формуле 4,8[9],
принимая d=dc
и b=bc
и учитывая, что γс1=1,25 (табл. 4,6 [9]); γс2=1,0
(табл. 4,6 [9]);k=1; kz=1;My=1,81,
Mq=8,24, Mc=9,97(для
φII=36°
несущего слоя табл. 4,7 [9]);bc=0,96м;
γII=18,6кН/м3-удельный
вес грунта, расположенного под подошвой условного фундамента; dc=6,45м;
средневзвешенное значение удельного веса
грунта в пределах глубины заложения условного фундамента dc;
сII=2 кПа –
параметр сцепления несущего слоя грунта,
Проверяем давление на грунт по подошве
фундамента pII=432,79кПа<R=1396,04кПа.
Требование по п.2,41 СНиП 2.02.01-83 удовлетворено. Расчет осадки основания
можно выполнять, используя решения теории упругости. Так как ширина подошвы
фундамента меньше 10м, для расчета осадки фундамента используем метод
послойного суммирования.
Природное давление на уровне подошвы
условного фундамента
Дополнительное давление по подошве
условного фундамента
Вычисляем природные и дополнительные
напряжения в основании (таблица 8.15.) и строим эпюры этих напряжений (см. рис.
8.21.) для η=lc/bc=1
и hi=0,4bc
=0,384м.
Вычисление природных и дополнительных
напряжений под подошвой условного фундамента колонны К1.
Таблица 8.15
|
№
границ слоев
|
Грунт
|
z,м
|
m=2z/ bc
|
α
|
σzg,
кПа
|
σzр,
кПа
|
σzр,m,
кПа
|
|
0
|
Песок
Е0=30МПа
|
0
|
0
|
1,000
|
116,87
|
315,92
|
-
|
|
1
|
0,384
|
0,8
|
0,800
|
124,01
|
252,70
|
284,29
|
|
2
|
0,768
|
1,6
|
0,449
|
131,15
|
141,83
|
197,27
|
|
3
|
1,152
|
2,4
|
0,257
|
138,30
|
81,18
|
111,51
|
|
4
|
1,536
|
3,2
|
0,160
|
145,44
|
50,54
|
65,86
|
|
5
|
1,92
|
4,0
|
0,108
|
152,58
|
34,11
|
42,33
|
Мощность сжимаемого слоя Yc=1,92м,
так как на границе его выполняется условие 6,15[9] 0,2σzg=0,2*152,58=30,52кПа
≈ σzр=34,11кПа.
Осадку вычисляем по формуле 6,14
Осадка фундамента 0,7см меньше предельно
допустимой осадки фундаментов su=12см
производственных зданий с металическим каркасом.
Рис. 8.21 Расчетная схема к определению
осадки свайного фундамента под колонну К1.
8.5.3 Проектирование
фундамента под колонну К2.
1. Исходные данные.
Наиболее невыгодное сочетание нагрузок
на уровне обреза фундамента
N=696,83кН,
М= 76,79кН*м, Q=20кН.
2. Выбор глубины заложения ростверка,
несущего слоя грунта и конструкции сваи.
Расчет см. п.8.5.2.
3. Определение несущей способности и
силы сопротивления сваи по материалу и по грунту.
Расчет см. п.8.5.2.
4. Определение приближенного веса
ростверка и числа свай.
По формулам 9,23[9]
и
9,24[9]
определяем соответственно среднее давление под подошвой ростверка pg,
площадь подошвы ростверка Ag
и приближенный вес ростверка с грунтом на уступах Ng,
учитывая, что здание без подвала, среднее значение удельного веса материала
ростверка и грунта на его уступах γm
= 20кН/м3,
Число свай определяем по формуле 9,25[9]
где ==1,5 - коэффициент учитывающий действие
момента;
Принимаем число свай 3шт.
5. Конструирование ростверка.
Расстояние от края ростверка до внешней
стороны сваи:
е = 0,2·d
+5 = 0,2·0,3 + 5 = 11см =0,11м.
Ширина ростверка: 2·е + d
= 2·11 + 30 = 52см = 0,52м.
Высота ростверка: h
= h1
+ h2 ;
h2
= 5см = 0,05м.
Высоту h1
определяем из условия прочности на продавливание ростверка сваей:
h
= 0,34 + 0,05 = 0,39м.
Размещаем сваи в плане таким образом,
чтобы рассояние между их центрами было не менее 3d.
Тогда размеры плиты ростверка в плане оказываются равными 1,6х1,6м. По высоте
принимаем h=0,5м, высоту
подколонника 0,8м (см. рис. 8.22.).
Рис. 8.22 Конструкция ростверка свайного
фундамента под колонну К1.
Вес ростверка Ng
и грунта Ngg
на его уступах определяем по формулам 9,27[9]
и 9,28[9],
учитывая , что γf=1,1-коэффициент
надежности по нагрузке для собственного веса материала;
;
γb=24
кН/м3 – удельный вес железобетона;
;
γ1=16 кН/м3 –
удельный вес насыпного грунта, расположенного выше ростверка,
Армирование ростверка конструктивное,
сеткой с ячейками 200х200 Æ12, кл. A-I.
6. Проверка усилий передаваемых на сваи.
При действии момента, наиболее
нагруженными оказываются сваи, максимально удаленные от центра тяжести свайного
поля (в рассматриваемом случае yi=0,522).
Вычисляем суммарную расчетную нагрузку на сваю в уровне подошвы ростверка и
момент в уровне подошвы ростверка.
Расчетное усилие, передаваемое на сваю,
определяем по формуле 9,2
Проверку расчетных усилий, передаваемых
на сваи, выполняем по условию 9,1
Np
max=259,41+51,79=311,2кН<
RRs=642,04кН, Np
min=259,41 51,79=207,62кН
Все сваи сжаты, максимальное расчетное
усилие на сваю не превышает силы расчетного сопротивления сваи.
7. Расчет осадок фундамента.
Проверку давления на грунт выполняем от
условного фундамента ABCD
(см. рис. 8.23.). определяем средневзвешенное значение угла внутреннего трения
φIImt и размеры
подошвы условного фундамента bc
и lc соответственно по
формулам 9,39[9] и 9,40[9],
учитывая, что для отдельных слоев грунта толщиной hi,
м, расчетные значения угла внутреннего трения φIIi,
град (см. рис. 8.23.) и расстояния между наружными гранями крайних рядов свай b0=1,1м,
l0=1,08м
Вес условного фундамента Nc
и давление на грунт по его подошве pII
вычисляемпо формулам 9,41[9] и 9,42[9],
используя значения удельного веса γIIi
отдельных слоев грунта толщиной hi,
в пределах глубины заложения условного фундамента dc
(см.
рис.8.23.) и нагрузку на фундамент II
группы предельных состояний NII=NI/γf=778,23/1,2=648,53кН
(где γf=1,2
– среднее значение коэффициента надежности по нагрузке),
Расчетное сопротивление грунта R,
расположенного ниже условного фундамента, определяем по формуле 4,8[9],
принимая d=dc
и b=bc
и учитывая, что γс1=1,25 (табл. 4,6 [9]); γс2=1,0
(табл. 4,6 [9]);k=1; kz=1;My=1,81,
Mq=8,24, Mc=9,97(для
φII=36°
несущего слоя табл. 4,7 [9]);bc=0,96м;
γII=18,6кН/м3-удельный
вес грунта, расположенного под подошвой условного фундамента; dc=6,45м;
Cредневзвешенное
значение удельного веса грунта в пределах глубины заложения условного
фундамента dc;
сII=2 кПа –
параметр сцепления несущего слоя грунта
Проверяем давление на грунт по подошве
фундамента pII=328,64кПа<R=1396,04кПа.
Требование по п.2,41 СНиП 2.02.01-83 удовлетворено. Расчет осадки основания
можно выполнять, используя решения теории упругости. Так как ширина подошвы
фундамента меньше 10м, для расчета осадки фундамента используем метод
послойного суммирования.
Природное давление на уровне подошвы
условного фундамента
Дополнительное давление по подошве
условного фундамента
Вычисляем природные и дополнительные
напряжения в основании (таблица 8.16.) и строим эпюры этих напряжений (см. рис.
8.23.) для η=lc/bc≈1
и hi=0,4bc
=0,704м.
Вычисление природных и дополнительных напряжений
под подошвой условного фундамента колонны К1.
Таблица 8.16.
|
№
границ слоев
|
Грунт
|
z,м
|
m=2z/ bc
|
α
|
σzg,
кПа
|
σzр,
кПа
|
σzр,m,
кПа
|
|
0
|
Песок
Е0=30МПа
|
0
|
0
|
1,000
|
116,87
|
211,77
|
-
|
|
1
|
0,704
|
0,8
|
0,800
|
129,96
|
169,42
|
190,60
|
|
2
|
1,408
|
1,6
|
0,449
|
143,06
|
95,08
|
132,25
|
|
3
|
2,112
|
2,4
|
0,257
|
156,15
|
54,42
|
74,75
|
|
4
|
2,816
|
3,2
|
0,160
|
169,25
|
33,88
|
44,15
|
Мощность сжимаемого слоя Yc=2,816м,
так как на границе его выполняется условие 6,15[9] 0,2σzg=0,2*169,25=33,85кПа
≈ σzр=34,11кПа.
Осадку вычисляем по формуле 6,14
Осадка фундамента 0,8см меньше предельно
допустимой осадки фундаментов su=12см
производственных зданий с металлическим каркасом.
Неравномерность осадков в пролете А-Б
Рис. 8.23 Расчетная схема к определению
осадки свайного фундамента под колонну К2.
8.5.4 Проектирование
фундамента под колонну К3.
1. Исходные данные.
Наиболее невыгодное сочетание нагрузок
на уровне обреза фундамента
N=191,7кН,
М= 9,79кН*м, Q=5кН.
2. Выбор глубины заложения ростверка,
несущего слоя грунта и конструкции сваи.
Расчет см. п.8.5.2.
3. Определение несущей способности и
силы сопротивления сваи по материалу и по грунту.
Расчет см. п.8.5.2.
4. Определение приближенного веса
ростверка и числа свай.
По формулам 9,23[9]
и
9,24[9]
определяем соответственно среднее давление под подошвой ростверка pg,
площадь подошвы ростверка Ag
и приближенный вес ростверка с грунтом на уступах Ng,
учитывая, что здание без подвала, среднее значение удельного веса материала
ростверка и грунта на его уступах γm
= 20кН/м3,
Число свай определяем по формуле 9,25[9]
где ==1,5 - коэффициент учитывающий действие
момента;
Принимаем число свай 1шт.
5. Конструирование ростверка.
Расчет см. п.8.5.2.
6. Проверка усилий передаваемых на сваи.
При действии момента, наиболее
нагруженными оказываются сваи, максимально удаленные от центра тяжести свайного
поля (в рассматриваемом случае yi=0).
Вычисляем суммарную расчетную нагрузку на сваю в уровне подошвы ростверка и
момент в уровне подошвы ростверка.
Расчетное усилие, передаваемое на сваю,
определяем по формуле 9,29
Свая сжата, расчетное усилие на сваю не
превышает силы расчетного сопротивления сваи.
7. Расчет осадок фундамента.
Проверку давления на грунт выполняем от
условного фундамента ABCD
(см. рис. 8.24.). определяем средневзвешенное значение угла внутреннего трения
φIImt и размеры
подошвы условного фундамента bc
и lc соответственно по
формулам 9,39[9] и 9,40[9],
учитывая, что для отдельных слоев грунта толщиной hi,
м, расчетные значения угла внутреннего трения φIIi,
град (см. рис. 8.24.) и расстояния между наружными гранями крайних рядов свай b0=0,3м,
l0=0,3м
Вес условного фундамента Nc
и давление на грунт по его подошве pII
вычисляемпо формулам 9,41[9] и 9,42[9],
используя значения удельного веса γIIi
отдельных слоев грунта толщиной hi,
в пределах глубины заложения условного фундамента dc
(см.
рис.8.24.) и нагрузку на фундамент II
группы предельных состояний NII=NI/γf=205,33/1,2=171,11кН
(где γf=1,2
– среднее значение коэффициента надежности по нагрузке),
Расчетное сопротивление грунта R,
расположенного ниже условного фундамента, определяем по формуле 4,8[9],
принимая d=dc
и b=bc
и учитывая, что γс1=1,25 (табл. 4,6 [9]); γс2=1,0
(табл. 4,6 [9]);k=1; kz=1;My=1,81,
Mq=8,24, Mc=9,97(для
φII=36°
несущего слоя табл. 4,7 [9]);bc=0,96м;
γII=18,6кН/м3-удельный
вес грунта, расположенного под подошвой условного фундамента; dc=6,45м;
средневзвешенное значение удельного веса
грунта в пределах глубины заложения условного фундамента dc;
сII=2 кПа –
параметр сцепления несущего слоя грунта,
Проверяем давление на грунт по подошве
фундамента pII=302,54кПа<R=1396,04кПа.
Требование по п.2,41 СНиП 2.02.01-83 удовлетворено. Расчет осадки основания
можно выполнять, используя решения теории упругости. Так как ширина подошвы
фундамента меньше 10м, для расчета осадки фундамента используем метод
послойного суммирования.
Природное давление на уровне подошвы
условного фундамента
Дополнительное давление по подошве
условного фундамента
Вычисляем природные и дополнительные
напряжения в основании (таблица 8.16.) и строим эпюры этих напряжений (см. рис.
8.24.) для η=lc/bc=1
и hi=0,4bc
=0,384м.
Вычисление природных и дополнительных
напряжений под подошвой условного фундамента колонны К1.
Таблица 8.16
|
Грунт
|
z,м
|
m=2z/ bc
|
α
|
σzg,
кПа
|
σzр,
кПа
|
σzр,m,
кПа
|
|
0
|
Песок
Е0=30МПа
|
0
|
0
|
1,000
|
116,87
|
185,67
|
-
|
|
1
|
0,384
|
0,8
|
0,800
|
124,01
|
148,54
|
167,11
|
|
2
|
0,768
|
1,6
|
0,449
|
131,15
|
83,37
|
115,96
|
|
3
|
1,152
|
2,4
|
0,257
|
138,30
|
47,72
|
65,55
|
|
4
|
1,536
|
3,2
|
0,160
|
145,44
|
29,71
|
38,72
|
Мощность сжимаемого слоя Yc=1,92м,
так как на границе его выполняется условие 6,15[9] 0,2σzg=0,2*145,44=29,09кПа
≈ σzр=29,71кПа.
Осадку вычисляем по формуле 6,14
Осадка фундамента 0,4см меньше предельно
допустимой осадки фундаментов su=12см
производственных зданий с металлическим каркасом.
Неравномерность осадков в пролете Б-В
Рис. 8.24 Расчетная схема к определению
осадки свайного фундамента под колонну К3.
Сваи и ростверк под фахверковые стойки и
колонны бытового корпуса принимаем такие же, как под колонну К3.
9. Технология,
организация, планирование и управление строительства
Организация строительного производства
должна обеспечивать направленность организационных, технических и
технологических решений на достижение конечного результата ввода объекта в
эксплуатацию с необходимым качеством и в установленные сроки.
Для выполнения строительно-монтажных
работ эффективным способом и с высокими технико-экономическими показателями
разрабатывается организационно-технологическая документация - проект
организации строительства (ПОС) и проект производства работ (ППР). Как уже
отмечалось, ППР на строительство новых, расширение и реконструкцию предприятий,
зданий или сооружении разрабатываются подрядными организациями.
На отдельные виды общестроительных,
монтажных и специальных строительных работ ППР разрабатываются организациями,
выполняющими эти работы. ПНР по заказу генеральной подрядной или субподрядной
строительно-монтажной организации могут разрабатываться проектными,
проектно-конструкторскими организациями, а также проектно-технологическими и
научно-исследовательскими институтами.
В зависимости от продолжительности
строительства объекта и объемов работ по решению строительной организации ППР
разрабатывается на строительство здания или сооружения в целом, на возведение
их отдельных частей (подземные и наземные части, секция, пролет, этаж, ярус и
т.п.), на выполнение отдельных технически сложных строительных, монтажных и
специальных строительных работ, а также работ подготовительного периода и передан
на строительную площадку до начала возведения тех частей здания (сооружения)
или начала выполнения тех работ, на которые составлен ППР.
Исходными материалами для разработки ППР
служат:
• задание на разработку, выдаваемое
строительной организацией как заказчиком ППР, с обоснованием необходимости
разработки его на здание (сооружения) в целом, его часть или вид работ и с
указанием сроков разработки;
• ПОС;
• необходимая рабочая документация;
• условия поставки конструкций, готовых
изделий, материалов и оборудования; использования строительных машин и
транспортных средств, обеспечение рабочими кадрами строителей по основным
профессиям, производственно-технологической комплектации и перевозки
строительных грузов, а в необходимых случаях также условия организации
строительства и выполнения работ вахтовым методом;
• материалы и результаты технического
обследования действующих предприятий, зданий и сооружений при их реконструкции,
а также требования к выполнению строительных, монтажных и специальных работ в
условиях действующего предприятия.
Обязательные положения по составу и
содержанию проектов производства работ на возведение здания, сооружения или его
части (узла) включаются:
а) календарный план производства работ
по объекту или комплексный сетевой график, в которых устанавливаются
последовательность и сроки выполнения работ с максимально возможным их
совмещением;
б) строительный генеральный план с
указанием: границ строительной площадки и видов ее ограждений, действующих и
временных подземных, наземных и воздушных сетей и коммуникаций, постоянных и
временных дорог, схем движения средств транспорта и механизмов, мест установки
строительных и грузоподъемных машин, путей их перемещения и зон действия,
размещения постоянных, строящихся и временных зданий и сооружений, мест
расположения знаков геодезической разбивочной основы, опасных зон, путей и
средств подъема, работающих на рабочие ярусы (этажи), а также проходов в здания
и сооружения, размещения источников и средств энергообеспечения и освещения
строительной площадки, расположения заземляющих контуров, мест расположения
устройств для удаления строительного мусора, площадок и помещений складирования
материалов и конструкций, площадок укрупнительной сборки конструкций,
расположения помещении для санитарно-бытового обслуживания строителей, питьевых
установок и мест отдыха, а также зон выполнения работ повышенной опасности;
в) технологические карты (схемы) на
выполнение отдельных видов работ с включением схем операционного контроля
качества, описанием методов производства работ, указанием трудозатрат и
потребности в материалах, машинах, оснастке, приспособлениях и средствах защиты
работающих, а также последовательности демонтажных работ при реконструкции
предприятий, зданий и сооружений;
г) решения по производству геодезических
работ, включающие схемы размещения знаков для выполнения геодезических
построении и измерений, а также указания о необходимой точности и технических
средствах геодезического контроля выполнения строительно-монтажных работ;
д) решения по технике безопасности в
составе, определенном СНиП 111-4-80*;
е) решения по прокладке временных сетей
водо-, тепло- и энергоснабжения и освещения (в том числе аварийного)
строительной площадки и рабочих мест с разработкой, при необходимости, рабочих
чертежей подводки сетей от источников питания;
ж) перечни технологического инвентаря и
монтажной оснастки, а также схемы строповки грузов;
з) пояснительная записка, содержащая:
- потребность в энергетических ресурсах
и решения по ее покрытию;
- мероприятия, направленные на
обеспечение сохранности и исключение хищения материалов, изделий, конструкций и
оборудования на строительной площадке, в зданиях и сооружениях;
Проект производства работ на выполнение
отдельных видов работ (монтажных, санитарно-технических, отделочных,
геодезических и т.п.) должен состоять из: календарного плана производства работ
по виду работ; строительного генерального плана; технологической карты
производства работ с приложением схемы операционного контроля качества; данных
о потребности в основных материалах, конструкциях и изделиях, а также
используемых машинах, приспособлениях и оснастке и краткой пояснительной
записки с необходимыми обоснованиями и технико-экономическими показателями.
Данный дипломный проект производства
работ разработанный на строительство отдельного здания выполняется на основании
задания и исходных данных, которые в нем содержатся. Пожарную безопасность
объекта обеспечить в соответствии с «Правилами пожарной безопасности в
Российской Федерации» ППБ 01-93 и ГОСТ 12.1.004-76. При производстве работ
руководствоваться требованиями рабочих чертежей, СНиП 3.03.01-87 «Несущие и
ограждающие конструкции», СНиП 12-03-2001 и 12-04-2002 «Безопасность труда в
строительстве», ПБ 10-382-00 «Правила устройства и безопасной Эксплуатации
грузоподъемных кранов».
9.1 Выбор
методов производства работ
Возведение (монтаж) сооружения в целом,
а также отдельных его частей и конструкций можно выполнить различными методами.
Совокупность этих методов образует варианты методов монтажа отдельных
конструкций и всего сооружения.
Процесс формирования вариантов методов
монтажа является одним из наиболее ответственных этапов проектирования
технологии монтажа. От правильно научно обоснованного выбора окончательного
решения во многом зависят производительность труда, себестоимость работ и их
качество, эффективность использования капитальных вложений.
Разработку вариантов процесса монтажа
производят на основе анализа следующих исходных данных:
архитектурно – планировочного и
конструктивного решений возводимого объекта;
- рекомендуемых методов производства
работ;
технологических, технических,
климатических и других условий;
материально – технических возможностей
монтажной организации.
Определяющим для разработки вариантов
методов монтажа является анализ архитектурно – планировочного и конструктивного
решений объекта, а именно:
определение массы отправочных элементов
и их количества, отдельных частей или блоков;
определение высот подъема отдельных
элементов или блоков, глубины их подачи;
определение насыщенности возводимого
объекта технологическим оборудованием.
Во всех случаях варианты методов монтажа
должны формироваться с максимальным применением принципов индустриализации.
Выбор комплекта монтажных средств
заключается в подборе для каждого варианта монтажа возводимого объекта такой
строительной техники, которая обеспечит его реализацию.
Подбор строительной техники для каждого
варианта монтажа включает в себя подбор ведущей машины (одной или несколько),
которая обеспечивает теми выполнения работ, и вспомогательных, обеспечивающих
производительную работу ведущей.
Ведущей машиной, как правило, является монтажный
кран, а вспомогательными краны меньшей грузоподъемности и различные
транспортные средства.
Рис 9.1. Схема определения рабочих
параметров крана при монтаже колонн и подкрановых балок
Рис. 9.2 Схема определения рабочих
параметров крана при монтаже стропильных ферм и прогонов
Полученным результатам удовлетворяет
кран СКГ-30.
Грузовые и высотные характеристики крана
СКГ-30, L=25м.
Монтажная зона равна контуру здания плюс
7метров. Опасная зона работы крана Ron=Rmax
+
0.5*lmax
+
lбез =
16 + 0,5 * 24 + 7= 35м.
Опасная зона поворотной платформы
= Rпов+
=4+1=5м.
9.2
Проектирование технологии производства работ
Подготовительные работы:
1)
общеплощадочные;
2)
инженерная
подготовка.
Территорию стройплощадки и полосы, отведенные
для строительства дорог и трубопроводов, очищают от деревьев, пней, кустов и
больших камней. Размещают и устанавливают временные здания и сооружения,
устраивают временный водоотвод. Проводится геодезическая разбивка земляных
сооружений. Прокладываются инженерные сети для нужд строительства, в которые
входят:
- временные водопроводные сети;
- электросети;
- газовые линии.
Земляные работы:
1)
срезка
растительного слоя;
2)
планировка
площадки;
3)
разработка
грунта экскаватором;
4)
ручная
доработка грунта;
5)
обратная
засыпка грунта бульдозером;
6)
уплотнение
грунта (на 0,3м.) механизировано.
Срезка растительного слоя выполняется
бульдозером ДЗ-18: снимается плодородный слой почвы, с целью дальнейшего
использования для благоустройства территории объекта. Бульдозером срезают и
перемещают грунт, укладывая его в промежуточные валики, которые затем
окучиваются для погрузки в самосвал ЗИЛ-ММЗ-555 экскаватором. Разработка грунта
в выемках осуществляется экскаватором ЭО-2141А, оборудованным обратной лопатой,
разработка ведется ниже уровня стоянки. Обратная засыпка выполняется
бульдозером ДЗ-18 после возведения фундаментов. Уплотнение осуществляется с
помощью прицепного катка ДУ-39А.
Нулевой цикл:
1) Вертикальное
погружение одиночных свай гусеничными копрами;
2) Срубка
голов свай;
3) Устр-во
щебеноч. подст. слоя;
4) Устройство
подбетонки;
5) Устр-во
деревянной опалубки до 1м2;
6) Уст-ка
арм-х сеток и каркасов массой до 20 кг;
7) Укладка
бетонной смеси;
8) Разборка
деревянной опалубки;
9) Окрасочная
гидроизоляция.
Монтаж каркаса:
1) выверочный
монтаж колонн;
2) монтаж
крестовых связей по колоннам;
3) монтаж
фахверковых колонн;
4) монтаж
подкрановых балок;
5) монтаж
ферм;
6) монтаж
связевых ферм;
7) монтаж
стержневых связей по фермам;
8) монтаж
ферм фонаря;
9) монтаж
связевых ферм фонаря;
При монтаже колонн, стоек и подкрановых
балок, укладка конструкций ведется в положение, удобное для подъема.
Устанавливают опорных деталей на фундамент (при установке колонн). Удерживают
оттяжками при подъеме и установке конструкций. Выверка. Все свариваемые
элементы после монтажа привариваются. Монтаж колонн осуществляется «с колес»,
без предварительной их раскладки. До начала подъема колонны должны быть
обстроены подмостями, лестницами и площадками, а также монтажными стяжными приспособлениями.
Перед установкой колонну снимают с колоновоза, переводят из горизонтального
положения в вертикальное, в этом положении подают к месту установки и опускают
на фундамент, наводя на анкерные болты. Кран, перемещаясь вдоль ряда колонн, в
направлении башмака колонны, поднимает колонну грузовым полиспастом,
поворачивая её вокруг опоры до вертикального положения. При подъеме не следует
допускать отклонения грузового полиспаста от вертикального более чем на
1.5º. Расстроповку можно выполнить только после надлежащего закрепления
установленных колонн. Устанавливают опорных деталей на фундамент (при установке
колонн). Удерживают оттяжками при подъеме и установке конструкций. После монтажа
крестовых связей по колоннам приваривают их сваркой – работы ведется
специализированной бригадой. Подкрановые балки монтируют отдельными элементами
без предварительной раскладки. Балки наводят на разбивочные оси, намеченные на
консолях колонн. Нижний пояс балки крепят к колоннам болтами через отверстия в
поясе. Верхний пояс балки крепят к колонне стальной планкой, устанавливают
свободно на сварке, чем компенсируется возможное крепление балки в плане.
Наводку и установка конструкции
производят после приведения её в проектное положение, которое обеспечивается
путём выверки. Её выполняют в процессе установки конструкции, когда последнюю
удерживают краном или после временного (монтажного) закрепления с помощью
специальной оснастки, когда произведена расстроповка. Постоянное (проектное)
закрепление железобетонных конструкций состоит из сварки закладных деталей и
заполнения стыков бетонной смесью. Замоноличивание стыков производят после
выверки установленных конструкций, приёмки сварных соединений и нанесения
антикоррозийного покрытия.
Монтаж стенового ограждения:
1)
монтаж
стеновых панелей площадью до 10м2;
2)
кирпичная
кладка;
3)
укладка
брусковых перемычек;
4)
монтаж
оконных переплетов;
5)
монтаж
оконных переплетов фонаря;
6)
устройство
пожарных лестниц.
Стеновое ограждение выполнено из панелей
типа «сэндвич» прикрепляемые к колоннам через собственный каркас- швеллера
болтами. Ограждение между 2-м пролетом и двухэтажной пристройкой выполнено из
кирпича толщиной 380мм. отделанной штукатуркой. При сплошной кладке стен
последовательно выполняют следующие операции:
1.Устанавливают и перестанавливают
причалку для того, чтобы обеспечить правильное расположение горизонтальных
рядов кирпича. Её необходимо устанавливать с обеих сторон возводимой стены ,
прикрепляя с помощью скоб к порядовым или к предварительно уложенным кирпичам.
2. Подают и раскладывают кирпич таким
образом, чтобы было удобно как для исполнителя (подручного), так и для
каменщика.
3. Подают и расстилают раствор.
4. Укладывают кирпич на раствор,
заполняют швы и проверяют правильность кладки. Правильность кладки проверяют с
помощью контрольно – измерительных инструментов и приспособлений по мере их
возведения не реже 2 раз на каждый метр высоты . При этом проверяют
прямолинейность стен, вертикальность поверхностей и углов кладки ,
горизонтальность рядов, правильность перевязки клаки и толщину швов.
5. При необходимости производят околку и
тёску кирпича, и расшивку швов.
Поскольку кладку стен обычно начинают
после возведения фундаментов, то первое рабочее место каменщиков располагается
на уровне земли, но затем после возведения кладки на высоту 1,0м (ярус кладки),
новое рабочее место каменщика необходимо поднять на подмостки.
Для устройства проемов в кирпичной
кладке используют перемычки. Оконные переплеты - металлические устанавливают с
помощью крана. Пожарные лестницы устанавливают с шагом по периметру не более
120м.
Кровельные работы:
1) установка
прогонов;
2) монтаж
проф. листа;
3) устройство
пароизоляции;
4) устройство
теплоизоляции;
5) покрытие
рубероидом;
6) устройство
защитного слоя из гравия.
По прогонам укладывают проф. листы
поштучно длиной 12м. скрепляемыми между собой заклепками и прикрепляемые к
прогонам саморезами. Порядок работы: удерживание оттяжек при подаче листов в
пачке на кровлю; раскладка и укладка листов вручную с подгонкой; комплектовка
заклепок и винтов; сверление отверстий под заклепки и винты; установка заклепок
и винтов. Поверх укладывают пароизоляцию, утеплитель, гидроизоляцию и защитный
слой.
Устройство полов:
1)
устройство
подстилающего слоя;
2)
устройство
асфальтобетонного пола.
Устраивают подстилающий слой из щебня с
уплотнением и укладывание асфальта с уплотнением. При устройстве
асфальтобетонного пола сначала устанавливают маячные рейки, потом укладывают
асфальтобетонную смесь, разравнивают смесь, уплотненяют смесь, снимают маячные
рейки, заделывают борозды, посыпают поверхность песком и затирают.
Отделочные работы:
1)
оштукатуривание
внутренних стен;
2)
внутренняя
окраска;
3)
окраска
металлических поверхностей;
4)
окрашивание
оконных проемов;
5)
окрашивание
фасада.
Оштукатуривание поверхности (простое):
провешивание поверхностей, нанесение обрызга, нанесение грунта с
разравниванием, затирка поверхности с разделкой углов, установка и снятие
правил (при разделке углов), подбор отскоков раствора с наброской его на
поверхность вручную, переноска рукавов по ходу работ. Окраска поверхности
(простое): очистка поверхности, грунтование очищенной поверхности, заполнение
трещин и раковин, очистка и обеспыливание, окрашивание. Окраска фасадов:
очистка, расшивка трещин, подмазывание, шлифование, шпатлевание, шлифование,
первое окрашивание, второе окрашивание.
Прочие работы:
1)
сантехнические
работы;
2)
электромонтажные
работы.
Устанавливаются сантехнические приборы,
производится разводка и подводка водопроводных и отводящих труб. Электромонтаж
сетевых кабелей и малоточной проводки.
Ведомость объемов работ.
Таблица 9.1
|
№
п/п
|
Наименование
работ
|
Объем
работ
|
|
Ед.
изм.
|
Кол-во
|
|
1
|
2
|
3
|
4
|
5
|
|
1
|
Подготовительные
работы.
|
|
%СМР
|
5
|
|
2
|
Земляные
работы:
-срезка
растительного слоя;
|
|
1000м2
|
31,24
|
|
-планировка
площадки;
|
1000м2
|
31,24
|
|
-разработка
грунта экскаватором;
|
См.
графическую часть проекта.
|
100
м3
|
92,11
|
|
-ручная
доработка грунта;
|
1м3
|
16,16
|
|
-обратная
засыпка грунта бульдозером;
|
100
м3
|
84,84
|
|
-уплотнение
грунта (на 0,3м.) механизировано.
|
100
м2
|
33,26
|
|
3
|
Нулевой
цикл:
-
вертикальное погружение одиночных свай гусеничными копрами;
|
См.
графическую часть проекта.
|
1шт.
|
83
|
|
-
срубка голов свай;
|
1шт.
|
83
|
|
-
устр-во щебеноч. подст. слоя;
|
100м2
|
0,81
|
|
-
устройство подбетонки;
|
100м2
|
0,81
|
|
-
устр-во деревянной опалубки до 1м2;
|
1м2
|
159,04
|
|
-
уст-ка арм-х сеток и каркасов массой до 20 кг;
|
1
шт.
|
86
|
|
-
укладка бетонной смеси;
|
1м3
|
49,26
|
|
-
разборка деревянной опалубки;
|
1м2
|
159,04
|
|
-
окрасочная гидроизоляция;
|
100м2
|
1,59
|
|
4
|
Монтаж
каркаса:
-выверочный
монтаж колонн;
|
См.
графическую часть проекта.
|
1
эл-т
|
32
|
|
-монтаж
крестовых связей по колоннам;
|
См.
графическую часть проекта.
|
1
эл-т
|
5
|
|
-монтаж
фахверковых колонн;
|
См.
графическую часть проекта.
|
1
эл-т
|
34
|
|
-монтаж
подкрановых балок;
|
1
эл-т
|
24
|
|
-монтаж
ферм;
|
1
эл-т
|
19
|
|
-монтаж
связевых ферм;
|
См.
графическую часть проекта.
|
1
эл-т
|
60
|
|
-монтаж
стержневых связей по фермам;
|
1
эл-т
|
45
|
|
-монтаж
ферм фонаря;
|
См.
графическую часть проекта.
|
1
эл-т
|
11
|
|
-монтаж
связевых ферм фонаря.
|
См.
графическую часть проекта.
|
1
эл-т
|
22
|
|
5
|
Монтаж
стенового ограждения:
-монтаж
стеновых панелей площадью до 10м2;
|
См.
графическую часть проекта.
|
1
панель
|
542
|
|
-кирпичная
кладка;
|
1
м3
|
10
|
|
-укладка
брусковых перемычек;
|
1
проем
|
2
|
|
-монтаж
оконных переплетов;
|
1
эл-т
|
38
|
|
-монтаж
оконных переплетов фонаря;
|
1
эл-т
|
20
|
|
-устройство
пожарных лестниц.
|
1т.
|
4
|
|
6
|
Кровельные
работы:
|
См.
графическую часть проекта.
|
1
эл-т
|
186
|
|
-монтаж
проф. листа;
|
100м2
|
38,5
|
|
-устройство
пароизоляции;
|
100м2
|
38,5
|
|
-устройство
теплоизоляции;
|
100м2
|
38,5
|
|
-покрытие
рубероидом;
|
100м2
|
38,5
|
|
-устройство
защитного слоя из гравия.
|
100м2
|
38,5
|
|
7
|
Устройство
полов:
-устройство
подстилающего слоя;
|
См.
графическую часть проекта.
|
100
м2
|
38,5
|
|
-устройство
асфальтобетонного пола.
|
См.
графическую часть проекта.
|
100м2
|
38,5
|
|
8
|
Отделочные
работы:
-оштукатуривание
внутренних стен;
|
См.
графическую часть проекта.
|
100м2
|
2,63
|
|
-внутренняя
окраска;
|
100м2
|
2,63
|
|
-окраска
металлических поверхностей;
|
100м2
|
34,14
|
|
-окрашивание
оконных проемов;
|
100м2
|
0,7
|
|
-окрашивание
фасада.
|
34,14
|
|
9
|
Сантехнические
работы.
|
|
%СМР
|
12
|
|
10
|
Электромонтажные
работы.
|
|
%СМР
|
8
|
|
11
|
Неучтенные
работы
|
|
%СМР
|
5
|
Произведем калькуляцию трудозатрат на
производство строительно-монтажных работ.
Калькуляция трудозатрат и стоимость СМР.
Таблица 9.2
|
№
п/п
|
Наименование
работ
|
Объем
|
Трудоемкость
чел.-час.
|
Трудоемкость
маш.-час.
|
Заработная
плата
|
Состав
звена
|
Наименование
машин
|
Обоснование
|
|
Ед.
изм.
|
Кол-во
|
Ед.
|
Всего
|
Ед.
|
Всего
|
Ед.
|
Всего
|
|
|
|
1
|
2
|
3
|
4
|
5
|
6
|
7
|
8
|
9
|
10
|
11
|
12
|
13
|
|
Подготовительные
работы.
|
|
1
|
Общеплощадочные
и
инженерная
подготовка
|
%СМР
|
5
|
|
429,2
|
|
|
|
330
|
|
|
|
|
Земляные
работы.
|
|
1
|
Срезка
растительного слоя бульдозером марки ДЗ-18 группы грунта I.
|
1000м2
|
31,24
|
-
|
-
|
0,69
|
21,6
|
0-73,1
|
22-8
|
маш.6
разр.
|
БульдозерДЗ-18
|
Е2-1-5
|
|
2
|
Окончательная
планировка площадки бульдозером ДЗ-18 при рабочем ходе в одном направлении
|
1000м2
|
31,24
|
-
|
-
|
0,28
|
8,8
|
0-28,6
|
8-9
|
маш.6
разр.
|
БульдозерДЗ-18
|
Е2-1-36
|
|
3
|
Разработка
грунта в траншеях одноковшовым экскаватором, оборудованным обратной лопатой
марки ЭО-2141А с погрузкой в транспортные средства.
|
100
м3
|
92,11
|
-
|
-
|
1,6
|
147,4
|
1-70
|
156-6
|
маш.6
разр.
|
Экскава-тор
ЭО-2141А
|
Е2-1-13
|
|
4
|
Разработка
не мерзлого грунта в выемках, при послойной разработке.
|
1м3
|
16,16
|
0,85
|
13,7
|
-
|
-
|
0-54,4
|
8-8
|
зем.
2разр.
|
|
Е2-1-47
|
|
5
|
Засыпка
выемок бульдозером ДЗ-18, перемещая грунт на 8м.
|
100
м3
|
84,84
|
-
|
-
|
0,79
|
67,0
|
0-83,9
|
71-2
|
маш.6
разр.
|
БульдозерДЗ-18
|
Е2-1-34
|
|
6
|
Уплотнение
грунта поверхности прицепным катком ДУ-39А при четырех проходах по одному
следу
|
100
м2
|
33,26
|
-
|
-
|
1
|
33,3
|
1-06
|
35-3
|
маш.6
разр.
|
Бульдозер
ДЗ-18
|
Е2-1-29
|
|
Нулевой
цикл.
|
|
1
|
Вертикальное
погружение одиночных свай гусеничными копрами
|
1
шт
|
83
|
-
|
-
|
2,43
|
201,69
|
2-28
|
189-24
|
Машинист
6р.-1
Копр-к-5,3р.
|
Копровая
установка С-870
|
Е12-28
|
|
2
|
Срубка
голов свай
|
1
шт
|
83
|
0,29
|
24,07
|
-
|
-
|
0-20,3
|
16-85
|
Бетонщик
3р.-2
|
-
|
Е12-39
|
|
3
|
Устр-во
щебеноч. подст. слоя
|
100
м2
|
0,81
|
15
|
12,15
|
-
|
-
|
10-05
|
8-14
|
Бетонщик
3р.-1
|
-
|
Е19-39
|
|
4
|
Устр-во
подбетонки
|
100
м2
|
0,81
|
7,5
|
6,08
|
-
|
-
|
5-03
|
4-07
|
Бетонщик
3р.,2р. –1
|
-
|
Е19-38
|
|
5
|
Устр-во
деревянной опалубки до 1м2
|
1
м2
|
159,04
|
0,62
|
98,61
|
-
|
-
|
0-44,3
|
70-45
|
Плотник
4р.,2р.-1
|
-
|
Е4-1-34
|
|
6
|
Уст-ка
арм-х сеток и каркасов массой до 20 кг
|
1
шт.
|
83
|
0,17
|
14,62
|
-
|
-
|
0-11,2
|
9-63
|
Арматурщик
3р.-1,2р.-2
|
-
|
Е4-1-44
|
|
7
|
Укладка
бетонной смеси
|
1
м3
|
49,26
|
0,42
|
20,69
|
-
|
-
|
0-30
|
14-78
|
Бетонщик
4р.,2р. –1
|
-
|
Е4-1-49
|
|
8
|
Разборка
деревянной опалубки
|
1
м2
|
159,04
|
0,15
|
23,86
|
-
|
-
|
0-10,1
|
16-06
|
Плотник
3р., 2р. –1
|
-
|
Е4-1-34
|
|
9
|
Окрасочная
гидроизоляция
|
100
м2
|
1,59
|
1,7
|
2,7
|
-
|
-
|
1-22
|
1-94
|
Гидроизол.
4р., 2р. –1
|
-
|
Е11-37
|
|
1
|
2
|
3
|
4
|
5
|
6
|
7
|
8
|
9
|
10
|
11
|
12
|
13
|
|
Монтаж
каркаса.
|
|
1
|
Выверочный
монтаж колонн массой до 5т.
|
1
эл-т
|
32
|
7,25
|
232
|
1,3
|
41,6
|
5-88
|
188-2
|
монт.6разр
монт.4раз.-2
монт.3разр
маш.6разр
|
Кран
СКГ-30 L=25м.
|
Е5-1-9
|
|
2
|
Монтаж
крестовых связей по колоннам.
|
1
эл-т
|
5
|
0,33
|
1,7
|
0,11
|
0,55
|
0-26,4
|
1-3
|
монт.5разр
монт.4разр
монт.3разр
маш.6разр
|
Кран
СКГ-30 L=25м.
|
Е5-1-6
|
|
3
|
Монтаж
фахверковых колонн.
|
1
эл-т
|
34
|
5,96
|
202,6
|
0,32
|
10,88
|
4-76,8
|
162-1
|
монт.5разр
монт.4разр
монт.3разр
маш.6разр
|
Кран
СКГ-40 L=20м.
|
Е5-1-6
|
|
4
|
Монтаж
подкрановых балок массой до 1т.
|
1
эл-т
|
24
|
3,06
|
73,4
|
0,52
|
12,48
|
2-47,6
|
59-4
|
монт.6разр
монт.4раз.-2
монт.3разр
маш.6разр
|
Кран
СКГ-30 L=25м.
|
Е5-1-9
|
|
5
|
Монтаж
ферм массой до 5т.
|
1
эл-т
|
19
|
5,55
|
105,5
|
1,13
|
21,47
|
4-59
|
87-2
|
монт.6разр
монт.4раз.-3
монт.3разр
|
Кран
СКГ-30 L=25м.
|
Е5-1-6
|
|
6
|
Монтаж
связевых ферм.
|
1
эл-т
|
60
|
0,25
|
15
|
0,08
|
4,8
|
0-28,0
|
16-8
|
монт.5разр
монт.4разр
монт.3разр
маш.6разр
|
Кран
СКГ-30 L=25м.
|
Е5-1-6
|
|
7
|
Монтаж
стержневых связей по фермам;
|
1
эл-т
|
45
|
0,33
|
14,9
|
0,11
|
4,95
|
0-26,4
|
11-9
|
монт.5разр
монт.4разр
монт.3разр
маш.6разр
|
Кран
СКГ-30 L=25м.
|
Е5-1-6
|
|
8
|
Монтаж
ферм фонаря.
|
1
эл-т
|
11
|
0,3
|
3,3
|
0,1
|
1,1
|
0-24
|
2-6
|
монт.5разр
монт.4разр
монт.3разр
маш.6разр
|
Кран
СКГ-30 L=25м.
|
Е5-1-6
|
|
9
|
Монтаж
связевых ферм фонаря.
|
1
эл-т
|
22
|
0,25
|
5,5
|
0,08
|
1,76
|
0-28
|
6-2
|
монт.5разр
монт.4разр
монт.3разр
маш.6разр
|
Кран
СКГ-30 L=25м.
|
Е5-1-6
|
|
Монтаж
стенового ограждения.
|
|
1
|
2
|
3
|
4
|
5
|
6
|
7
|
8
|
9
|
10
|
11
|
12
|
13
|
|
1
|
Монтаж
стеновых панелей площадью до 10м2
|
1
панель
|
542
|
3
|
1626
|
0,75
|
406,5
|
2-28
|
1235-8
|
монт.5разр
монт.4разр
монт.3разр
монт.2разр
маш.6разр
|
Кран
СКГ-30 L=25м.
|
Е4-1-8
|
|
2
|
Кирпичная
кладка, при заполнении стен каркасных зданий, под штукатурку
|
1
м3
|
10
|
3
|
30
|
-
|
-
|
2-10
|
21
|
кам.
3разр.
|
-
|
Е3-3
|
|
3
|
Укладка
брусковых перемычек массой до 0,5т.
|
1
проем
|
2
|
0,45
|
0,9
|
0,15
|
0,3
|
0-32
|
0-6
|
кам.
4разр
кам.
3разр.
кам.
2разр.
маш.5разр
|
Кран
СКГ-30 L=25м.
|
Е3-16
|
|
4
|
Монтаж
оконных переплетов.
|
1
эл-т
|
38
|
4,3
0,57
|
163,4
21,7
|
1,4
|
53,2
|
3-44
0-45
|
130-7
17-1
|
монт.5разр
монт.4разр
монт.3разр
свар.4разр.
маш.6разр
|
Кран
СКГ-30 L=25м.
|
Е5-1-15
|
|
5
|
Монтаж
оконных переплетов фонаря (первый ярус).
|
1
эл-т
|
20
|
24,5
|
490
|
6,1
|
122
|
18-99,0
|
379-8
|
монт.5разр
монт.4разр
монт.3раз.-2
маш.6разр
|
Кран
СКГ-30 L=25м.
|
Е5-1-16
|
|
6
|
Устройство
пожарных лестниц массой до 0,16т.
|
1т.
|
4
|
11,0
3,1
|
44
12,4
|
3,7
|
14,8
|
8-03
2-45
|
32-1
9-8
|
монт.4разр
монт.3раз.-2
свар.4разр.
маш.6разр
|
Кран
СКГ-30 L=25м.
|
Е5-1-10
|
|
Кровельные
работы.
|
|
1
|
Установка
прогонов
|
1
эл-т
|
186
|
0,3
|
55,8
|
0,1
|
18,6
|
0-24
|
44-6
|
монт.5разр
монт.4разр
монт.3разр
маш.6разр
|
Кран
СКГ-30 L=25м.
|
Е5-1-6
|
|
2
|
Установка
стального профилированного настила кровли отдельными листамидлиной 12м., при
количестве комбинированных заклепок настила кровли 430 и количестве
самонарезающих винтов 200,при сверлении отверстий с удлинительной штангой.
|
100м2
|
38,5
|
10,5
|
404,3
|
-
|
-
|
7-90
|
304-1
|
монт.5разр
монт.4разр
монт.3раз.-2
|
-
|
Е5-1-20
|
|
3
|
Устройство
пароизоляции основания под кровлю рулонными материалами.
|
100м2
|
38,5
|
6,7
|
258
|
-
|
-
|
4-49
|
172-9
|
изолир.
3разр. и 2разр.
|
-
|
Е7-13
|
|
4
|
Устройство
теплоизоляции из пенополистирола, толщиной до 50 мм с нанесением холодной
битумной мастики, с разравниванием мастики, наклеиванием плит и заделкой
швов и углов при размере плит 2х1м.
|
100м2
|
38,5
|
8,7
|
335
|
-
|
-
|
5-83
|
224-5
|
изолир.
3разр. и 2разр.
|
-
|
Е7-14
|
|
5
|
Покрытие
крыш рулонными материалами вручную, при покрытии насухо в закрой с промазкой
кромок мастикой.
|
100м2
|
38,5
|
6,5
|
250,3
|
-
|
-
|
4-36
|
167-9
|
кров.
3разр. и 2разр.
|
-
|
Е7-3
|
|
6
|
Устройство
защитного слоя из гравия на горячей битумной мастике при нанесении мастики
вручную.
|
100м2
|
38,5
|
6,3
|
242,6
|
-
|
-
|
4-28
|
164-8
|
кров.3раз.-2
кров. 2разр.
|
-
|
Е7-4
|
|
Устройство
пола.
|
|
1
|
Устройство
щебеночного подстилающего слоя до 100мм.
|
100
м2
|
38,5
|
15
|
577,5
|
-
|
-
|
10-05
|
386-9
|
бет.
3 разр.
бет.
2 разр.
|
-
|
Е19-39
|
|
2
|
Устройство
асфальтобетонных полов, уплотняя ручными катками и вальками. Толщина
покрытия 50мм.
|
100м2
|
38,5
|
22
|
847
|
-
|
-
|
15-73
|
605-6
|
асфальтобетонщик
4разр. и 2разр.
|
-
|
Е19-33
|
|
Отделочные
работы.
|
|
1
|
Простое
оштукатуривание поверхностей стены.Нанесение грунта вручную.
Нанесение
обрызга вручную.
Грубая
затирка с разделкой углов вручную.
|
100м2
|
2,63
|
20
10,5
16
|
52,6
27,6
42,1
|
-
|
-
|
14-00
7-35,0
11-20
|
36-8
19-3
29-5
|
штукатур
3разр.
|
-
|
Е8-1-2
|
|
2
|
Простое
окрашивание поверхностей внутри помещений по штукатурке водоэмульсионными
составами электрокраскопультом.
|
100м2
|
2,63
|
2,5
|
6,6
|
-
|
-
|
2-28
|
6-0
|
маляр
5разр.
|
-
|
Е8-1-15
|
|
3
|
Простое
окрашивание поверхностей внутри помещений по металлу масляными составами
пистолетом-распылителем.
|
100м2
|
34,14
|
3,2
|
109,3
|
-
|
-
|
2-91
|
99-4
|
маляр
5разр.
|
-
|
Е8-1-15
|
|
4
|
Простое
окрашивание оконных проемов по металлу масляными составами кистью.
|
100м2
|
0,7
|
8,1
|
-
|
-
|
9-09
|
6-4
|
маляр
4разр.
|
-
|
Е8-1-15
|
|
5
|
Окрашивание
фасадов перхлорвиниловыми составами пистолетом-распылителем с люлек с
электроприводом
|
100м2
|
34,14
|
3,6
|
122,9
|
-
|
-
|
3-28
|
112
|
маляр
5разр.
|
-
|
Е8-1-18
|
|
Прочие
работы
|
|
1
|
Сантехнические
работы.
|
%СМР
|
12
|
|
1030
|
|
|
|
792
|
|
|
|
|
2
|
Электромонтажные
работы.
|
%СМР
|
8
|
|
686,7
|
|
|
|
528
|
|
|
|
|
Неучтенные
работы
|
|
1
|
|
%СМР
|
5
|
|
429,2
|
|
|
|
330
|
|
|
|
|
Итого
по всей калькуляции( зарплата с учетом коэф. 50 и 1,7)
|
10880,4
|
1005,19
|
814266
|
|
|
|
|
|
|
|
|
|
|
|
|
|
|
|
|
|
9.3 Технологическая карта на монтаж
каркаса покрытия
Ведущим процессом является монтаж
конструкций покрытия, на который и составляется данная технологическая карта.
Технологическая карта – один из основных
элементов проекта производства работ, содержащий комплекс информативных
указаний по рациональной организации и технологии строительного производства.
Технологическая карта на монтаж
конструкций покрытия разрабатывается с учетом:
·
применения
прогрессивной технологии и передовых методов выполнения строительных процессов;
·
внедрения
комплексной механизации с применением высокопроизводительных машин;
·
поточности
выполнения строительного процесса;
·
обоснования
методов производства работ технико-экономическими расчетами, соблюдение правил
охраны труда и техники безопасности.
Монтаж конструкций покрытия
осуществляется на основании рабочих чертежей в соответствии с правилами
производства и приемки монтажных работ и правилами техники безопасности в
строительстве.
Раздел предусматривает основные решения
и организационно-технические мероприятия по монтажу конструкций покрытия здания
1-го этапа строительства завода цинкования мелкоразмерных конструкций в г.
Туле.
На период производства работ
предусматривается использование для нужд строительства временных и постоянных
автодорог, сетей электроэнергии и водоснабжения.
Монтаж строительных конструкций здания
ведется в условиях нового строительства. Строительная площадка расположена на
открытой местности свободной от застройки.
Работы по монтажу конструкций
предусматривается вести в определенной последовательности, в светлое время
суток.
Временное складирование и укрупнительная
сборка конструкций производится непосредственно у мест монтажа и на
приобъектных складах металлоконструкции.
Подача конструкций с приобъектных
складов осуществляется автотранспортом по временным автодорогам.
Разгрузка и складирование конструкций у
мест монтажа выполняется монтажными кранами СКГ-30, а на приобъектной площадке
складирования автокраном типа К-162.
Требования к генподрядчику:
До начала производства монтажных работ
необходимо выполнить:
·
устройство
постоянных и временных автодорог для подачи конструкций и работы монтажных
кранов;
·
устройство
площадок складирования металлоконструкций с отводом поверхностных вод;
·
подвод
электроэнергии на территорию строительства;
·
расстановку
источников света наружного освещения;
·
разбивку
осей сооружения и реперов, которые должны обеспечивать использование их в
течение всего периода производства работ;
·
устроить
фундаменты под установку колонн и сдать их по акту, смонтировать колонны и
связи между ними.
Обеспечить монтажную площадку
энергоресурсами с установкой шкафов электропитания для подключения установок
электропотребителей монтажной организации.
В случае необходимости производства
работ в темное время суток, использовать установки источников света для
обеспечения места проведения работ общим равномерным освещением с освещенностью
не менее 2 лк и местным - с освещенностью не менее 30 лк в горизонтальной и
вертикальной плоскостях.
Количество и места расположения источников
света уточнить при разработке проекта освещения.
Выделить место на территории бытового
городка под бытовые помещения подрядчика с подключением их к сетям водо- и
электроснабжения.
Освободить от строительного мусора
площадки для работы монтажных кранов. Спланировать и уплотнить их основание,
подсыпать выравнивающим слоем щебня (5 = 150 мм) и выстелить железобетонными
плитами.
Разработать совместно с подрядчиком
мероприятия по безопасности
труда и пожарной безопасности.
Требования к исполнителю работ:
Назначить приказом лицо, ответственное
за безопасное производство работ кранами из числа мастеров, прорабов или
начальников участков.
Подготовить необходимое
подъемно-транспортное и сварочное оборудование, средства малой механизации и
инструмент.
Подобрать из имеющихся в наличии или
изготовить необходимое количество монтажных и съемных грузозахватных
приспособлений.
Обеспечить монтажную площадку наглядной
агитацией, знаками пожарной безопасности, а также первичными средствами
пожаротушения в соответствии с действующими нормами (Приложение 3 к ППБ
01-93**), установить контроль за исправным содержанием и постоянной готовностью
к применению средств пожаротушения, сигнализации и связи.
Основные технические решения:
Монтаж конструкций здания первого этапа
строительства осуществляется при помощи гусеничного крана CКГ-30 в башенно стреловом
исполнении (Lстp = 25 м, lг = 5 м).
Укрупнение ферм в монтажные блоки
выполнять в пролете у мест монтажа при помощи монтажного крана СКГ-305 или
автокрана типа К-162. Монтируются фермы, связи по фермам, прогоны, затем по ним
укладывается профилированный лист, пароизоляция, утеплитель и профлист.\
Рис. 9.3 Монтаж
стропильных ферм
Рис. 9.4. Монтаж прогонов
Риз. 9.5 Монтаж профилированного
стального листа
9.4 Выбор
рациональных методов организации работ
В строительстве известны следующие
наиболее применяемые методы организации участков строительства или
строительного производства :
- последовательный
- параллельный
- поточный
- вахтовый
- мачтовый
Последовательный метод организации
предусматривает выполнение исполнителем отдельных видов работ или видов
инженерных услуг последовательно, т.е. без одновременного пребывания в каком
либо интервале на площадке или при исполнении работ рабочих машин или
механизмов. Последовательный метод характеризуется максимальной
продолжительностью строительства, но уровень потребления ресурсов (рабочих
кадров, машин, материалов) будет минимальным: r = R / T0 (где R –
количество ресурсов на весь объем строительства; Т0 – общий срок
строительства), а длительность потребления – максимальной. Каждый из видов
ресурсов будет участвовать кратковременно, так как в процессе сооружения
объекта периодически требуются рабочие разных специальностей, различные машины,
механизмы и материалы. Неизбежны также простои машин и потери на их
перебазировку. Частая смена видов материалов, изделий и конструкций вносит
большие трудности в работу предприятий-изготовителей, транспорта и органов
снабжения.
Параллельный метод организации
используется при наличии избыточного объема имеющихся мощностей, рабочих и
механизмов. Он позволяет сократить продолжительность работ, но при этом требует
разделения объемов или объектов на рациональные площадки застройки, которые
называют участками и в пределах которых не нарушается техника безопасности. При
параллельном методе общая продолжительность строительства принимается по продолжительности
максимальной одного участка или объекта , но для всей стройки будет минимальной
. Параллельный метод обеспечивает минимальную продолжительность, так как срок
возведения объекта равен продолжительности максимально продолжительного
процесса. Потребление ресурсов – максимальное. Но современный уровень
строительного производства, когда строительно-монтажные работы в основном
ведутся силами подрядных общестроительных организаций, исключает использование
последовательного и параллельного методов строительства в чистом виде. Это
связано в первую очередь с необходимостью равномерного использования ресурсов
(машин, рабочих бригад и т.п.), а также с ограниченностью этих ресурсов.
Например, при строительстве любого
объекта по мере выполнения работ в установленной технологической
последовательности освобождаются механизмы и бригады, закончившие работы
определенного этапа. Так, вначале освобождается землеройная техника, затем
бригады монтажников, монтажные краны и т.д. Для того чтобы эти мощности не
простаивали, их необходимо переключить на строительство другого объекта.
Вахтовый метод организации
предусматривает проектирование рациональной смены на строительстве
задействованных мощностей. Период нахождения мощностей на строительной площадке
называется вахтовым. Этот период не дает снижения продолжительности - Вахтовый
метод проектируется для условий строительства объектов, при которых место
строительства задано на больших расстояниях от существующих дислокации
строительных баз управлений и т.д.
Мачтовый метод предусматривает большие
затраты на производство конструкций и их сварку в заводских условиях и
минимальные затраты на монтаж на площадке. При мачтовом методе строители
значительно экономят целосменные простои и потери рабочего времени на
стройплощадке за счет переноса большого комплекса монтажных работ в заводские
условия/
Поточный метод, сохраняя соответствующие
преимущества последовательного и параллельного методов, позволяет избежать их
недостатков. Для поточного метода характерны следующие черты:
расчленение работы на составляющие
процессы в соответствии со специальностью и квалификацией исполнителей;
расчленение фронта работ на отдельные
участки для создания наиболее благоприятных условий работ отдельным
исполнителям;
максимальное совмещение процессов по
времени;
Интенсивность потребления ресурсов здесь
будет также больше, чем при последовательном методе, но меньше, чем при
параллельном; при этом создаются благоприятные условия для работы
организаций-смежников: подрядных организаций заводов-поставщиков, транспорта,
снабженческих структур.
Исходя из вышеуказанного, принимаем
поточный метод производства работ по возведению здания.
Поточная организация строительства:
Поточная организация строительства
позволяет сократить сроки , теоретически и практически выполнить расстановку кадров,
позволяет выполнить расчеты возможных сроков завершения работ бригад на
отдельных частях зданий , добиваться стоимостных эффектов.
N - число объектов (число потоков
специализированных или частных)
nз - число захваток
tр - ритм потока (время выполнения работ
на захватке)
Проектирование поточного метода
заключается в определении рационального числа захваток на объекте.
Захватка — это часть объекта , где без
нарушения техники безопасности отдельно взятое звено или бригада рабочих может
выполнять вид или комплекс работ с необходимым для этого расчетным временем.
Расчетное время для завершения работ на
захватке называется ритмом работ. По величине ритма производится деление
основных элементов потока. Поточной организацией строительства - называется
метод организации при котором достигается максимальное сокращение времени одной
бригады или звена на выполнение одного вида работ , за счет сокращения
внутрисменных потерь. Количество захваток может назначаться по опыту других
объектов, при этом учитывается деление объекта в плане или по объему на
равновеликие участки на которых объем работ приблизительно равен.
При проектировании потоков первоначально
строят циклограммы . Циклограммы это модель организации строительства.
Циклограммы строятся на определенные
потоки:
Строительные потоки различают:
1) по структуре и виду продукции -
частные, специализированные, объектные и комплексные.
Частный - это элементарный строительный
поток, состоящий из одного или нескольких процессов, выполняемый бригадой или
звеном на частных фронтах работ.
Специализированный поток — совокупность
технологически связанных частных потоков , объединенных единой системой
параметров и схемой потока. Объектный поток - совокупность технологических и
организационно связанных специализированных потоков, совместной продукцией
которых являются законченные здания.
Комплексный поток - совокупность
организационно связанных объектных потоков, объединенных общей продукцией в
виде комплекса зданий и сооружений.
2) по характеру ритмичности - ритмичные,
разноритмичные и неритмичные потоки.
Ритмичный - в котором все составляющие
потоки имеют единый ритм, т.е. продолжительность выполнения работ каждой
отдельной бригадой на частных фронтах работ одинакова.
Разноритмичный - в котором составляющие
его потоки имеют одинаковые ритмы однотипных работ и разные ритмы разнотипных
работ.
Неритмичный - в котором продолжительность
выполнения каждой отдельной бригадой работ на частных фронтах неодинакова.
3) по продолжительности потоки бывают
кратковременные и долговременные.
Кратковременные - поток организуют при
возведении отдельных зданий или групп объектов, продолжительность строительства
которых не превышает одного года.
Долговременный - при строительстве
объектов или комплексов, продолжительность строительства которых составляет
более одного года.
При возведении спортивного комплекса
проектируются неритмичные потоки, т.е. составляющие общего потока,
продолжительность каждой из работ выполняемой отдельной бригадой различаются.
При выполнении работ по возведению
данного объекта существуют промежутки времени в течение которых работы на
захватках не ведутся из-за технологического перерыва (например связанного с
твердением бетона).
Требуется запроектировать в качестве
объектного потока «Одноэтажное двухпролетное промышленное здание». В состав
объектного потока входят следующие специализированные потоки (в состав которых
входят частные потоки).
Подготовительные работы:
1)
общеплощадочные;
2)
инженерная
подготовка.
Земляные работы:
1)
срезка
растительного слоя;
2)
планировка
площадки;
3)
разработка
грунта экскаватором;
4)
ручная
доработка грунта;
5)
обратная
засыпка грунта бульдозером;
6)
уплотнение
грунта (на 0,3м.) механизировано.
Нулевой цикл:
1)
вертикальное
погружение одиночных свай гусеничными копрами;
2)
врубка
голов свай;
3)
устройство
щебеночного подстилающего слоя;
4)
устройство
подбетонки;
5)
устройство
деревянной опалубки до 1м2;
6)
установка
арматурных сеток и каркасов массой до 20 кг;
7)
укладка
бетонной смеси;
8)
разборка
деревянной опалубки;
9)
окрасочная
гидроизоляция.
Монтаж каркаса:
1)
выверочный
монтаж колонн;
2)
монтаж
крестовых связей по колоннам;
3)
монтаж
фахверковых колонн;
4)
монтаж
подкрановых балок;
5)
монтаж
ферм;
6)
монтаж
связевых ферм;
7)
монтаж
стержневых связей по фермам;
8)
монтаж
ферм фонаря;
9)
монтаж
связевых ферм фонаря;
Монтаж стенового ограждения:
1)
монтаж
стеновых панелей площадью до 10м2;
2)
кирпичная
кладка;
3)
укладка
брусковых перемычек;
4)
монтаж
оконных переплетов;
5)
монтаж
оконных переплетов фонаря;
6)
устройство
пожарных лестниц.
Кровельные работы:
1)
установка
прогонов;
2)
монтаж
проф. листа;
3)
устройство
пароизоляции;
4)
устройство
теплоизоляции;
5)
покрытие
рубероидом;
6)
устройство
защитного слоя из гравия.
Устройство полов:
1)
устройство
подстилающего слоя;
2)
устройство
асфальтобетонного пола.
Отделочные работы:
1)
оштукатуривание
внутренних стен;
2)
внутренняя
окраска;
3)
окраска
металлических поверхностей;
4)
окрашивание
оконных проемов;
5)
окрашивание
фасада.
Прочие работы:
1)
сантехнические
работы;
2)
электромонтажные
работы.
Состав и компоновка строительных бригад
генподрядной и субподрядных организаций.
При компоновке строительных бригад
выбирается наиболее трудоёмкий процесс, при выполнении которого зафиксировано
определённое нормативное количество рабочих в составе звена, а так же при
механизации работ с добавлением машиниста. Компонуем бригаду для оптимальной технологии
и продолжительности выполнения работ, вводя в бригаду необходимое количество
рабочих.
Все бригады формируются на один поток.
Количество человек входящее в состав
комплексной бригады:
чел
= r + k,
где Rчел
-
необходимое количество рабочих, чел;
r
-
количество рабочих наиболее трудоёмкого процесса по ЕНиР, чел;
k
- недостающее число рабочих других разрядов или
другого количественного состава.
Таблица 9.3
|
№
п/п
|
Виды
работ
|
Состав
комплексных бригад
|
Кол-во
человек
|
|
1
|
Подготовительные
работы
|
-
|
1
|
|
2
|
Земляные
работы
|
маш.6
разр.
|
1
|
|
3
|
Нулевой
цикл
|
бетонщ.-
4,3р.; арм-ки-3 р.; гидроизол-к-4р; плот-ки-4,3р.; монт-ки-5,4,2р,3р-2.;
маш-т.-6разр.
|
12
|
|
4
|
Монтаж
каркаса
|
монт.3,4-2,5,6разр.;
маш. 6разр.
|
6
|
|
5
|
Монтаж
стенового ограждения
|
монт.2,3,4,5,разр.;
камен. 3разр.; свар. 4разр.; маш. 6разр.
|
7
|
|
6
|
Кровельные
работы
|
монт.2,3,4,5,разр.;
камен. 3разр.; свар. 4разр.; маш.6разр.
|
7
|
|
7
|
Устройство
пола
|
асфальтобет.4
и 2разр.; бет. 3разр.
|
3
|
|
8
|
Отделочные
работы
|
штук.3разр.;
маляр 5разр.
|
2
|
|
9
|
Сантехнические
работы
|
-
|
5
|
|
11
|
Электромонтажные
работы
|
-
|
5
|
|
12
|
Неучтенные
работы
|
-
|
5
|
Определение стоимости выполнения этапови
их продолжительности для объектного потока
Стоимость строительства:
С = Пз+Нр+Пн,
где
Пз = з.п.×100/20
-
прямые затраты;
Нр = 0,18×Пз
-
накладные расходы;
Пн = (Пз+Нр)×0,06
-
плановые накопления;
Продолжительность работ на каждом
специализированном потоке:
Т = ΣQ/(8,2×nсм×Rчел),
где
ΣQ
- суммарная трудоёмкость работ, чел.-
час;
nсм
-
количество смен;
Rчел
-
состав комплексной бригады рабочих.
1. Подготовительные
работы
Пз = 28050×100/20
= 140250 руб.;
Нр = 0,18×Пз
= 0,18×140250
= 25245 руб.;
Пн = (Пз+Нр)×0,06
= (140250+25245)×0,06 = 9929,7 руб.;
С = Пз+Нр+Пн = 140250+25245+9929,7 =
175424,7 руб.;
Т = 434,6/(8,2×2×1)
≈ 27 дн.
2. Земляные работы:
Пз = 25806×100/20
= 129030 руб.;
Нр = 0,18×Пз
= 0,18×129030=
23225,4 руб.;
Пн = (Пз+Нр)×0,06
= (129030+23225,4)×0,06 = 9135,32 руб.;
С = Пз+Нр+Пн = 129030+23225,4 +9135,32=
161390,72 руб.;
Т = 295,2/(8,2×2×1)
≈ 18 дн.
3. Нулевой цикл:
Пз = 131979,5×100/20
= 659897,5 руб.;
Нр = 0,18×Пз
= 0,18×659897,5
= 118781,55 руб.;
Пн = (Пз+Нр)×0,06
= (659897,5 +118781,55)×0,06 = 46720,74 руб.;
С = Пз+Нр+Пн
= 659897,5 +118781,55 +46720,74 = 825399,79 руб.;
Т = 2369,8/(8,2×2×7)
≈ 21 дн.
4. Монтаж каркаса:
Пз = 45534,5×100/20
= 227672,5 руб.;
Нр = 0,18×Пз
= 0,18×227672,5
=40981,1 руб.;
Пн = (Пз+Нр)×0,06
= (227672,5 +40981,1)×0,06 = 16119,2 руб.;
С = Пз+Нр+Пн
= 227672,5 +40981,1 + 16119,2 = 284772,75 руб.;
Т= 656/(8,2×2×6)
≈ 7 дн.
5. Монтаж стенового ограждения:
Пз = 155286,5×100/20
= 776432,5 руб.;
Нр = 0,18×Пз
= 0,18×776432,5
= 139757,85 руб.;
Пн = (Пз+Нр)×0,06
= (776432,5 +139757,85)×0,06 = 54971,4 руб.;
С = Пз+Нр+Пн
= 776432,5 +139757,85 +54971,4 = 971161,75 руб.;
Т = 2394,4/(8,2×2×7)
≈ 21дн.
6. Кровельные работы:
Пз =91698 ×100/20
= 191250 руб.;
Нр = 0,18×Пз
= 0,18×191250=
34425 руб.;
Пн = (Пз+Нр)×0,06
= (191250+34425)×0,06 = 13540,5 руб.;
С = Пз+Нр+Пн
= 191250+34425+13540,5 = 239215,5 руб.;
Т = 1090,6/(8,2×1×7)
≈ 9 дн.
7. Устройство пола:
Пз = 84362,5×100/20
= 421812,5 руб.;
Нр = 0,18×Пз
= 0,18×421812,5
= 75926,25 руб.;
Пн = (Пз+Нр)×0,06
= (421812,5 +75926,25)×0,06 = 29864,33 руб.;
С = Пз+Нр+Пн
= 421812,5 +75926,25 +29864,33 = 527603,1 руб.;
Т = 1426,8/(8,2×1×3)
≈ 29дн.
8. Отделочные работы:
Пз = 26299×100/20
= 263869,75 руб.;
Нр = 0,18×Пз
= 0,18×263869,75
= 47496,56 руб.;
Пн = (Пз+Нр)×0,06
= (263869,75 +47496,56)×0,06 = 18681,98 руб.;
С = Пз+Нр+Пн
= 263869,75 +47496,56 +18681,98 = 330048,29 руб.;
Т = 377,2/(8,2×2×2)
≈23 дн.
9. Сантехнические работы:
Пз = 67320×100/20
= 119514,25 руб.;
Нр = 0,18×Пз
= 0,18×119514,25
= 21512,57 руб.;
Пн = (Пз+Нр)×0,06
= (119514,25 +21512,57)×0,06 = 8461,61 руб.;
С = Пз+Нр+Пн
= 119514,25 +21512,57 +8461,61 = 149488,43 руб.;
Т = 1030/(8,2×1×5)
≈ 26 дн.
10. Электромонтажные работы:
Пз = 44880×100/20
= 144092 руб.;
Нр = 0,18×Пз
= 0,18×144092
= 25936,56 руб.;
Пн = (Нр +Пз)×0,06
= (25936,56 +144092)×0,06 = 10201,71 руб.;
С = Пз+Нр+Пн
= 144092+25936,56 +10201,71 = 180230,27 руб.;
Т = 686,7/(8,2×1×5)
≈ 16 дн.
11. Неучтенные работы:
Пз = 28050×100/20
= 140250 руб.;
Нр = 0,18×Пз
= 0,18×140250
= 25245 руб.;
Пн = (Пз+Нр)×0,06
= (140250+25245)×0,06 = 9929,7 руб.;
С = Пз+Нр+Пн = 140250+25245+9929,7 =
175424,7 руб.;
Т = 429,2/(8,2×2×5)
≈ 11 дн.
Рис. 9.6 Циклограмма объектного потока
Проектирование поточного метода
заключается в определении рационального числа захваток на объекте. Захватка -
часть объекта, на который без нарушения техники безопасности отдельно взятое
звено или бригада может выполнить вид работ с необходимым расчетом времени.
Ритм работы - расчетное время выполнения работ на захватке.
Поток - такой метод организации, при
котором достигается сокращение времени по максимуму одной бригады или звена на
выполнение спец. вида работ. По виду ритма потоки делятся на равноритмичные,
кратноритмичные, разноритмичные и неритмичные.
Проектируем неритмичные потоки, т.е.
такие у которых время работы на захватках разное. При проектировании необходимо
довести суммарную величину технологических перерывов до минимума, а
организационные перерывы следует проектировать в такой последовательности,
чтобы снизить общий простой спецзвеньев или бригад.
Расчёт частного потока.
Неритмичный частный поток – устройство
пола. Площадь пола делим на 12 участков и принимаем число захваток по количеству участков, nз=12.
Объем работ на захватке 3780/12=315 м2.
Продолжительность работ на захватке
определяется по формуле:
Продолжительность устройства щебеночного
подстилающего слоя до 100мм. составляет:
Продолжительность устройства
асфальтобетонных полов, уплотняя ручными катками и вальками(толщина покрытия
50мм) составляет:
Рис. 9.7 Циклограмма частного потока
(устройство пола)
9.5
Проектирование плана финансирования строительства
Общая сумма затрат на производство
строительно–монтажных работ определяется суммированием затрат по элементам,
включая прочие затраты и накладные расходы. Материальные затраты определяются
исходя из потребности в материальных ресурсах согласно производственным нормам
расхода и физическим объемам работ, а их стоимость рассчитывается по планово –
расчетным ценам. В составе стоимости материальных ресурсов выделяются затраты
на их доставку транспортом общего пользования, а также транспортом строительных
организаций.
На снижение стоимости строительно–монтажных
работ оказывают влияние многие факторы:
- применение более производительных
машин и лучшего их использования; снижение норм расхода топлива и
электроэнергии; снижение затрат на ремонт и техническое обслуживание.
- повышение сменности и изменение режима
работы строительных организаций; совершенствование работы транспорта, занятого
на перевозках в пределах стройки; улучшение контроля за качеством работ и
сокращению брака; внедрение прогрессивных технологии и способов производства
строительно – монтажных работ.
- совершенствование управлением
строительством за счет повышения уровня специализации и укрупнения строительных
организаций; внедрение передовых форм организации труда рабочих в строительстве
(включая коллективный и бригадный подряд); сокращение текучести кадров и потерь
рабочего времени.
- снижение норм расхода материалов;
сокращение потерь материалов при транспортировке, погрузке, выгрузке и
хранении; снижение заготовительно-складских расходов путем выбора рациональных
форм снабжения, механизации складских операций, улучшения использования тары и
упаковочных материалов, сокращения потерь материалов при хранении.
Нормативные
показатели задела.
Таблица 9.4
|
Продолжительность
строительства, мес.
|
Готовность
на конец месяца нарастающим итогом, % сметной стоимости
|
|
1
|
2
|
3
|
4
|
|
4
|
16
|
36
|
70
|
100
|
Используя
календарный план производства работ определяем фактическую потребность в
капитальных вложениях.
Фактическая
потребность в капитальных вложениях.
Таблица 9.5
|
Продолжительность
строительства, мес.
|
Готовность
на конец месяца нарастающим итогом, % сметной стоимости
|
|
1
|
2
|
3
|
4
|
|
4
|
18
|
40
|
74
|
100
|
Сравниваем
графики финансирования фактический и нормативный оцениваем достаток вложения
капитальных.
9.6 Календарные
планы строительства объекта
Календарный
план разрабатывается для определения последовательности и сроков выполнения
общестроительных, специальных и монтажных работ при возведении объекта.
Чтобы построить здание в короткие сроки
с наилучшими технико-экономическими показателями, необходимо заранее
проанализировать и исследовать варианты решения и найти наиболее целесообразное
из них. Для этого процесс строительства объекта следует представить в виде
модели, с помощью которой анализируются все возможные производственные ситуации.
Такой моделью служит календарный план,
представляющий собой технологическую и организационную модель строительства.
Являясь основным документом проекта
производства работ, календарный план охватывает весь комплекс работ по
возведению здания, начиная подготовительными работами и заканчивая
пусконаладочными.
При разработке календарного плана
учитываются требования технических условий на производство работ, правила
охраны труда, меры для обеспечения надлежащего качества работ.
На основе календарного плана
устанавливается общая продолжительность строительства объекта, определяется
потребность в трудовых и материальных ресурсах, сроки поставки конструкций и
оборудования и т.д.
Соблюдение правильной технологической
последовательности при выполнении строительных процессов имеет первостепенное
значение при составлении календарного плана.
Большое значение на выбор
последовательности производства работ оказывает время года. Необходимо по
возможности перенести на теплый период те работы, выполнение которых в зимнее
время связано с наибольшим удорожанием.
Календарный план должен отвечать
требованиям равномерной и бесперебойной загрузки рабочих. Для этого составляется
график движения рабочих во времени. Такой график строится под календарным
планом на листе графической части. Над линиями, указывающими срок выполнения
работ, в календарном плане проставляется число рабочих, ежедневно занятых на данном
виде работ, затем суммируют количество рабочих по вертикали, т.е. ежедневное
потребное число рабочих получают суммированием количества рабочих, работающих в
этот день.
При составлении календарного плана
должны соблюдаться следующие принципы:
1. Соблюдение правильной технологической
последовательности выполнения отдельных строительных процессов.
2. Максимальное совмещение отдельных
строительных процессов во времени.
3. Соблюдение требований охраны труда.
Календарный план устанавливает
последовательность работ и сроки выполнения на объекте. Он служит средством
повседневного контроля за ходом работ, является основой для выполнения планов
завоза материалов, конструкций. Календарный план составляется на основе
сравнения различных вариантов и выбора такого, в котором намечено выполнение
работ передовыми методами в заданный срок, с минимальными затратами
материальных ресурсов и соблюдение требований охраны труда.
Продолжительность возведения объекта не
должна превышать директивных норм, предусмотренных СНиП 1.04.03.85.
Последовательность разработки
календарного плана: определяется перечень работ и их объемы, проводится выбор
методов производства работ и ведущих машин и механизмов по калькуляции,
рассчитываем нормативную машино- и трудоемкость, выявляется технологическая
последовательность производства работ, устанавливается сменность работ,
определяется продолжительность отдельных работ и их совмещение между собой,
сравнивается расчетная продолжительность с нормативной и вводятся необходимые
поправки. Исходными данными для разработки календарного плана являются рабочая
документация, норматив продолжительности строительства.
Трудоемкость
работ и затраты машинного времени рассчитываем по калькуляции на основе ЕНиРов.
Продолжительность выполнения работ:
Т
= Q / 8,2 х R x n, где Q – норма времени х
объем:
R –
число человек в звене.
n
- количество смен в сутки, (1) - для ручных работ; (2) - для работ с использованием
механизмов; иногда при больших объемах ручных работ целесообразно применять n=2;
t
= 8,2 - количество часов в смене.
С позиции равномерности использования
рабочих календарный план работ оценивают по коэффициенту неравномерности
движения рабочих:
(1£К£1,8)
где Rmax
– максимальное число рабочих, занятых на строительстве (принимается после
составления графика движения рабочих), чел.;
Rср
– среднее число рабочих, чел., определяется по формуле:
;
где
– общие трудозатраты выполнения работ;
Т – общая продолжительность
строительства по календарному плану, дн.
Для определения коэффициента
неравномерности распределения рабочих вычисляем:
9.7 Разработка
планов обеспечения ресурсов
Для составления графика поступления на
объект строительных конструкций, изделий, материалов и оборудования составляем
ведомость потребности в основных строительных материалах, которая выполняется в
виде таблицы.
Ведомость потребности в основных
строительных материалах
Таблица 9.6
|
№
п/п
|
Наименование
работ (номенклатура)
|
Ед.
изм.
|
Кол-во
|
Потребность
в материальных ресурсах
|
|
Наименование
материала
|
Ед.
изм.
|
Норма
на ед. объема работ
|
Кол-во
на весь объем
|
|
1
|
2
|
3
|
4
|
5
|
6
|
7
|
8
|
|
1
|
Устройство
щебеночного подстилающего слоя до 150мм.
|
100
м2
|
12,17
|
Щебень
|
м3
|
1,01
|
12,29
|
|
2
|
Сборка
элементов деревянной опалубки в щиты площадью до 1м2.
|
10м2
|
146,32
|
Пиломатериалы
хвойных пород. Доски обрезные длиной 4-6,5 м, шириной 75-150 мм, толщиной 25
мм III сорта
Гвозди
строительные
|
м3
т
|
0,038
0,006
|
5,56
0,88
|
|
3
|
Укладка
бетонной смеси.
|
100м3
|
7,27
|
Бетон
|
м3
|
101,5
|
730,64
|
|
Рогожа
|
м2
|
10,1
|
73,43
|
|
4
|
Установка
арматуры
|
т
|
148.8
|
Сталь
стержневая арматурная
|
т
|
1
|
148.8
|
|
5
|
Кирпичная
кладка
|
100м3
|
0,01
|
Кирпич
глиняный обыкновенный
Раствор
готовый кладочный цементный, марка 50
|
тыс.шт
м3
|
0,38
0,23
|
0,004
0,003
|
|
6
|
Устройство
кровли
|
100м2
|
38,5
|
Материалы
рулонные кровельные
|
м2
|
460
|
17710
|
|
Мастика
битумная кровельная горячая
|
т
|
1.26
|
48,51
|
|
Гравий
для строительных работ фракции (3) 5-10 мм
|
м3
|
1.05
|
40,43
|
|
7
|
Оштукатуривание
поверхностей.
|
100м2
|
2,63
|
Раствор
готовый отделочный тяжелый, известковый 1:2,5
|
м3
|
1,4
|
3,68
|
|
Сетка
тканая с квадратными ячейками № 05 без покрытия
|
м2
|
2,64
|
6,94
|
|
8
|
Окрашивание
поверхностей:
внутренняя
поверхность;
фасады
|
100м2
|
37,47
|
Краски
масляные готовые к применению для внутренних работ
|
т
|
0,027
|
1,01
|
|
34,14
|
Краски
перхлорвиниловые
|
т
|
0,059
|
2,01
|
Спецификация сборных элементов
Таблица 9.7
|
№
п/п
|
Наименование
сборных элементов
|
Кол-во
|
Эскиз
|
Размеры
элемента, м
|
Масса,
т
|
|
Длина
|
Ширина
|
Высота
|
|
2
|
Колонны:
К1
К2
|
26
6
|
|
Сечение:
Двутавр
40К1
Двутавр30К1
|
1.91
0,87
|
|
3
|
Подкрановые
балки
|
24
|
|
10
|
0.25
|
0.8
|
0,9
|
|
4
|
Фахверковые
стойки
|
25
9
|
|
|
0.52
0.42
|
|
5
|
Прогоны
|
186
|
|
|
0.33
|
|
6
|
Фермы:
Ф1
Ф2
|
13
6
|
|
24
18
|
-
-
|
2.3
3.31
|
3,6
1,5
|
|
7
|
Ферма
фонаря
|
11
|
|
6
|
-
|
2.1
|
0.9
|
|
8
|
Окна
|
38
|
|
5
|
0.12
|
1.2
|
0.12
|
|
9
|
Стеновые
панели
|
542
|
|
1.2
|
0.3
|
6
|
1.4
|
|
|
|
|
|
|
|
|
|
|
Комплектные поставки:
1)
Рейсовый
комплект Кп1: колонны К1 (2 шт.), фахверковые стойки (1 шт.), кондукторы (2
шт.), подкрановые балки (2 шт.), ферма Ф1 (1 шт.), ферма фонаря (1 шт.),
прогоны (14 шт.), проф. лист (4 шт.).
2)
Рейсовый
комплект Кп2: стеновая панель (4 шт.), оконный переплет (1шт.).
График смотри графическую часть.
По графику поставки материалов и
конструкций определяем:
1.Запас по объёму – тот запас
материалов, который обеспечит ритм работы в первые две смены (подготовительный
страховой запас) = 30% от общего объёма материалов и конструкций. Остальной
объём завозят равномерно в дни производства работ.
2.Запас по времени – участок времени от
начала производства в дело, который соответствует нормам СНиП и предназначен
для исключения всех рисков и возможности задержки поставки во время
производства работ.
График движения основных машин по
объекту.
Основные машины
Таблица 9.8
|
№
п/п
|
Наименование
|
Основные
параметры
|
|
1
|
Бульдозер
ДЗ-18
|
тип
отвала – поворотный; длина отвала – 3,97 м;
высота
отвала – 1,0м; управление – гидравлическое;
мощность
– 79 кВт; марка трактора – Т–100
|
|
2
|
Экскаватор
ЭО-2141А
|
база
– КРаЗ–25В;
ковш
– обратная лопата зубьями;
вместимость
– 1 м3;
длина
стрелы – 5,5 м;
наибольший
радиус резания – 9,2 м;
наибольшая
глубина копания – 5,6 м;
радиус
выгрузки в транспорт – 5 м;
высота
выгрузки в транспорт – 2,3 м;
мощность
– 59 кВт;
|
|
3
|
Автосамосвал
платформой ЗИЛ-ММЗ-555
|
грузоподъемность
– 4,5 т;
максимальная
скорость – 65 км/ч;
выгрузка
– назад;
размеры:
длина – 5940мм;
ширина
– 2290мм;
высота
– 2160мм;
емкость
кузова – 3 м3;
|
|
4
|
Кран
гусеничный СКГ-30 L=25м.
|
длина
стрелы –25м;
гусёк
5м;
мощность
Эл. двигателя – 30 кВт.
|
|
5
|
Битумно-краскорассыпательная
установка с распылителем УМБР-1
|
производительность
– 400 м2/ч;
тип
насоса – АШ – 50;
мощность
– 2,2 кВт;
масса
– 120 кг.
|
|
6
|
Колоновоз
ППК-14
|
Длина
15м.
Ширина
2,5м.
Грузоподъемность
14 т.
МАЗ-504Б
|
|
7
|
Фермовоз
«БашПИИ-строй»
|
Длина
25м.
Грузоподъемность
12 т.
МАЗ-504
|
|
8
|
Автобетосмеситель
|
Объем
2,5м3
МАЗ-504
|
По графику потребности в машинах и
механизмах определяем:
- коэффициент использования машин и
механизмов, где
-плановые машинозатраты;
-время, которое техника находится на объекте.
График движения основных машин по
объекту смотри графическую часть.
9.8 Строительный
генеральный план
Строительным генеральным планом,
называется план строительной площадки, на котором нанесены как строящиеся
объекты, так и все временные сооружения, необходимые для осуществления
строительства.
На стройгенплане показываются:
- постоянные здания и сооружения, в том
числе железные и автомобильные дороги, сети водопровода, канализации,
электроснабжения и другие коммуникации с выделением условным обозначением
объектов, строящихся в подготовительный период для нужд строительства;
- временные административно – бытовые и
производственные здания, механизированные установки, склады, коммуникации,
временные дороги;
- существующие здания и сооружения.
При разработке стройгенплана должны
соблюдаться следующие принципы:
- рациональное использование
строительной площадки;
- обеспечение организации и технологии
возведения здания;
- рациональное размещение на
стройплощадке производственных установок, складского хозяйства, сетей и устройств
временного водо- и энергоснабжения, дорог и временных зданий и сооружений,
необходимых для бесперебойного обслуживания производства работ при возведении
объекта;
- соблюдение требований по технике
безопасности и противопожарных правил;
- обеспечение санитарно-бытового
обслуживания рабочих на строительстве объекта.
Данный проект предусматривает комплекс
зданий завода. Участок распложен на окраине г. Тула.
Подъезд пожарных машин, машин скорой
помощи и другого специального транспорта обеспечен со всех сторон здания.
Временные дороги и площадки устраиваются
из плит типа «ПДП» на песчаном основании. Временные помещения для нужд
строительства контейнерного типа 1 и 2 яруса устанавливаются на территории
строительной площадки и рассчитаны на размещение 144 человек. На период
отделочных и специальных работ размещение рабочих осуществляется в помещениях
возведенного комплекса с последующим косметическим ремонтом или на резервной
территории.
Площадку под установку инвентарных
вагончиков бытовых помещений уплотнить и подсыпать щебнем. Предусмотреть отвод
поверхностных вод.
Обеспечить безопасный и удобный подход к
бытовым помещениям, а также подключение их к сетям водо- и электроснабжения.
Обеспечить бытовые помещения телефонной связью и питьевой водой, качество
которой должно соответствовать санитарным требованиям.
Питание рабочих осуществляется в
городской столовой по договору, заключенному заказчиком.
Проектом предусмотрена мойка колес
автомашин на выезде со стройплощадки.
9.8.1 Определение зон влияния крана
Монтажной зоной называют пространство,
где возможно падение груза при установке и закреплении элементов. Согласно СНиП
эта зона является потенциально опасной. Она равна контуру здания + 7 метров при
высоте здания до 20 метров. На стройгенплане зоны обозначают пунктиром, а на
местности хорошо видимыми предупредительными знаками или надписями, места
проходов через монтажную зону снабжают навесами.
Зоной обслуживания крана, или рабочей
зоной крана, называют пространство, находящееся в пределах линии, описываемой
крюком крана.
Для стреловых кранов эту зону определяют
радиусом, соответствующему максимальному рабочему вылету стрелы крана,
показывают отдельными стоянками.
Зоны перемещения груза называют
пространство, находящееся в пределах возможного перемещения груза, подвешенного
на крюке крана.
Определяется радиусом соответствующему
возможному падению стрелы крана, т.е. суммой максимального рабочего вылета
стрелы и ширины зоны, принимаемой равной половине длинны самого длинного
перемещаемого груза.
Опасной зоной крана называют
пространство, где возможно падение груза при его перемещении с учетом
возможного рассеивания при падении.
Монтажная зона равна контуру здания плюс
7метров. Опасная зона работы крана
Ron=Rmax
+
0.5*lmax
+
lбез =
16 + 0,5 * 24 + 7= 35м.
Опасная зона поворотной платформы
= Rпов+
=4+1=5м.
9.8.2 Временные построечные дороги
Запроектирована кольцевая построечная
автодорога обеспечивающая подъезд в зону действия монтажного крана, погрузочно-разгрузочных
механизмов, складам. При трассировке дорог должны соблюдаться минимальные
расстояния, между дорогой и складской площадкой - 1 м, до забора, ограждающего
площадку не менее 1м. Не допускается размещение временных дорог над подземными
сетями в непосредственной близости к проложенным и подлежащим прокладке
подземными коммуникациям, так как это ведет к осадке грунта откосов или засыпке
и деформации дорог. Ширину проезжей части принимаем 3,5 м для однополосной
дороги. На участках дорог, где организованно одностороннее движение по кольцу в
пределах видимости, но не менее чем через 100 м, устраивают площадки шириной 6
м и длиной 12 м. Такие же площадки выполняют в зоне разгрузки материалов.
Радиусы закругления дорог равные минимум 12 м определены исходя из маневровых
свойств автомашин и автопоездов. При минимально допустимом радиусе 12 м, ширина
проездов в 3,5 м недостаточна для движения автомобильных поездов, и поэтому
проезды в пределах кривых (габаритных коридоров) необходимо уширять до 6м. Построечные
временные дороги выполняются из сборных железобетонных плит уложенных на
песчаную постель. Толщина слоя песка назначается в зависимости от группы
грунтов земляного полотна и степени увлажнения и назначается порядка 10 - 25
см. При поперечном пересечении подземных сетей траншеи под дорогой должны
засыпаться на всю глубину песком. Если это условие не может быть выполнено,
следует пройти место пересечения с определенным подъемом, величина которого
должна быть пропорциональна коэффициенту разрыхления грунта. По мере уплотнения
грунта этот участок дороги в продольном направлении примет горизонтальное
положение.
9.8.3 Временные здания на строительной
площадке
R=
(Rmax +Rитр+
Rмон
)/1,06 = (34 + 0,06 * 34 + 0,03 * 34) / 1,06 = 35чел.
Площади инвентарных зданий
Таблица 9.9
|
№п/п
|
Наименование
инвентарных зданий
|
Численность
персонала
|
Норма
на 1 чел.
|
Расчетная
площадь, м2
|
|
Всего
|
Одновременно
пользующихся
|
Ед.
изм.
|
Величина
показателя
|
|
1
|
Контора
строительства
|
7
|
6
|
м2
|
4
|
28
|
|
2
|
Диспетчерская
|
3
|
3
|
м2
|
7
|
21
|
|
3
|
Гардеробная
|
35
|
35
|
м2
|
0,6
|
21
|
|
4
|
Умывальная
|
35
|
2
|
м2
|
1,5
|
3
|
|
5
|
Душевая
|
35
|
5
|
м2
|
3
|
15
|
|
6
|
Помещения
для сушки одежды
|
35
|
5
|
м2
|
0,2
|
12
|
|
7
|
Комната
приема пищи
|
35
|
35
|
м2
|
0,25
|
9
|
|
8
|
Туалет
|
35
|
2
|
м2
|
3
|
6
|
|
9
|
Здравпункт
|
31
|
1
|
м2
|
10
|
10
|
9.8.4 Организация приобъектных складов
Емкость складов определяют с учетом
номенклатуры подлежащих хранению материалов и конструкций, условий их хранения и
способа укладки. При этом исходят из необходимого запаса строительных
материалов и максимального дневного их потребления. Рассчитывая емкость склада,
принимают во внимание вид применяемого транспортного грузоподъемного
оборудования.
Площадь склада определяют в такой
последовательности:
1.Устанавливают запас материала Р,
подлежащего хранению на складе, по формуле

,
где Q- количество материала,
необходимого для осуществления строительства в течении расчетного периода; а-
коэффициент неравномерности поступления материалов на склады строительства
а=1,1; Т- продолжительность расчетного периода, дни; n1- норма запаса материала
, 15 дней; К- коэффициент неравномерности потребления материалов К=1,3.
2.Полезную площадь склада S, необходимую
для размещения строительных материалов и конструкций, определяют по формуле:
Sполезн=Р/V
Где V- количество материала,
укладываемого на 1 м2 площади склада.
При установлении общей площади склада
Sобщ следует учитывать площадь, занятую проходами и проездами:
Sобщ=Sполезн
где
- коэффициент, учитывающий площадь склада,
занятую проходами и проездами ( обычно принимают 1,2-1,4).
Полученное значение общей площади склада
уточняют с точки зрения размещения на плане склада штабелей, стеллажей,
проездов исходя из удобства загрузки и выдачи материалов. Ширину склада
принимают, ориентируясь на зоны обслуживания используемых в процессе
погрузочно-разгрузочных работ механизмов.
Определяем общую площадь складов для хранения
материалов по формуле:
Где Q – требуемый запаса материалов, м3;
– норма складирования материалов на 1м2
площади склада, определяют из таблицы;
К1 – коэффициент, учитывающий проходы,
проезды на территории склада = 1,2;
К2 – коэффициент, учитывающий
неравномерность использования складов = 0,8.
Определим площади складирования для 4
видов материалов:
1. Строительные материалы, складируемые
в закрытом складе – рубероид.
Общий объём рубероида Q=17710м2.
Общая площадь склада:
2. Строительные материалы, складируемые
под навесом – стеновые панели.
Общий объём стеновых панелей Q=3903м2.
Общая площадь склада:
3. Строительные материалы и конструкции,
складируемые на открытых площадках – щебень.
Объём запаса щебня Q=12,3м3.
Общая площадь склада:
4. Также необходимо предусмотреть
площадки для приёмки раствора.
9.8.5 Расчёт энергоснабжения
Увеличение энерговооруженности - необходимое
условие повышения производительности труда в строительстве.
Основным видом энергии, применяемой на
строительной площадке, является электрическая.
Электроэнергия на строительной площадке
необходима для работы строительных машин и механизмов, ручного
механизированного инструмента и средств малой механизации, подъемников. Она
используется для производства электросварочных работ, для технологических нужд,
для освещения территории строительной площадки и строящихся объектов, для
отопления.
В строительстве используют переменный
электрический ток напряжением 220/380 В. Напряжение 380В используется для
питания силовых установок, 220В – для освещения.
В ходе проектирования электроснабжения
строительной площадки необходимо учитывать:
обилие потребителей и неравномерное их
размещение на территории строительства;
возможность изменение мест подсоединения
нагрузок;
требования техники безопасности и ряд
других моментов.
Запроектированная сеть энергоснабжения
строительной площадки должна при минимальных затратах на ее устройство
обеспечить надежную подачу энергии к местам потребления при небольших потерях
энергии в сети. Наиболее экономичным решением является подача электроэнергии на
строительной площадке по постоянному кабелю, уложенному в подготовительный
период строительства, с использованием постоянных энергетических сооружений.
Проект энергоснабжения разрабатывают в
такой последовательности: определяют потребителей электроэнергии, их мощность и
места расположения; выбирают источники получения электроэнергии; намечают места
установки и подбирают понижающие трансформаторы; проектируют электросети;
выбирают инвентарные распределительные устройства, электроустановки и
электрооборудование.
Мощность Р, источника энергоснабжения,
необходимая для работы отдельных видов потребителей энергии, без учета потери
мощности в разводящей сети определяют по формуле:
Кс- коэффициент спроса (0,1-1);
Ру- установленная мощность
токоприемников, определяемая на основании паспорта применяемого оборудования;
- средне расчетный коэффициент использования
мощности ( 0,4-1).
Общую мощность источника энергоснабжения
строительной площадки Робщ определяют суммированием мощностей, необходимых для
работы силовых и технологических потребителей, а также неиспользуемых для
освещения и обогрева с учетом потерь мощности в разводящей сети:
где Рс, РТ, Рос, Рот- установленные
мощности токоприемников;
Кс, Кт, Кос, Кот- коэффициенты спроса;
- средне расчетные коэффициенты использования
мощности.
Определив необходимую мощность
источников, выбирают источник энергоснабжения.
Расчет потребности во временном
энергоснабжении
Таблица 9.10
|
№
п\п
|
Наименование
потребителей
|
Ед.
изм.
|
Кол-во
|
Удельн.
мощн. на
ед.
изм.
|
Коэф.
спроса
|
Коэф.
мощн.
|
Трансформ.
мощн.
|
|
1.
|
Силовая
энергия
-сварочный
аппарат
-
краскопульт
|
шт
шт
|
1
1
|
48,5
2,2
|
0,5
0,1
|
0,4
0,4
|
61
0,52
|
|
2
|
Внутреннее
освещение:
-
инвентарных зданий
-склады
закрытые
-под
навесом
|
м2
|
125
57
84
|
0,015
0,015
0,003
|
0,8
0,35
0,35
|
1
1
1
|
1,5
0,27
0,1
|
|
3
|
Наружное
освещение
-основные
дороги
-открытые
склады
-фронт
производства работ
|
км
100
м2
100
м2
|
0,4
0,17
37,8
|
5
0,05
0,015
|
-
|
-
|
2
0,01
0,57
|
|
4
|
Охранное
освещение
|
100м2
|
312,4
|
0,015
|
-
|
-
|
4,7
|
Общая потребность в электроэнергии 70
кВт.
Количество прожекторов, требуемое для
освещения строительной площадки N=24 лампы.
Принимаем трансформаторную подстанцию.
При проектировании стройгенплана
необходимо предусмотреть рабочее, охранное и аварийное освещение строительной
площадки.
Для освещения территории строительства
применяют светильники, устанавливаемые в зависимости от их типа и мощности на
высоте от 2 до 8 м над освещаемой площадкой. В случае, если использование
светильников невозможно или нерационально, применяют прожекторы. Прожекторы
устанавливают на столбах, инженерных сооружениях, специальных мачтах.
Освещенность рабочих мест принимается в
соответствии с видом выполняемой работы. Она колеблется в пределах 0,5-100 лк и
не должна быть ниже значений, приведенных в нормах.
Для организации охранного освещения
территории строительной площадки и ее границ устанавливают прожекторы; их
размещают на высоте 8-10 м через каждые 150-200 м. Освещенность, создаваемая
охранным освещением, не должна быть менее 0,5 лк.
Аварийное освещение должно обеспечивать
освещенность мест, где предусмотрены основные спуски и проходы. Питание сети
аварийного освещения производиться от отдельной линии независимо от питания
сети рабочего освещения.
9.8.6 Проектирование водоснабжения
На строительной площадке вода
используется для производственно-технологических и хозяйственно-питьевых нужд,
для устройства душа и организации противопожарной защиты возводимых сооружений
и объектов строительного хозяйства.
В качестве источника водоснабжения
строительной площадки следует стремиться использовать сети постоянного
водопровода, выполненные в подготовительный период. В этом случае сеть
проектируется в виде тупиковых ответвлений от постоянных сетей к местам
водопотребления.
При невозможности использовать
постоянный водопровод проектируют разводящую сеть временного водоснабжения.
Пожарные гидранты в соответствии с
правилами противопожарного надзора устраивают на расстоянии не более 100 м один
от другого, с тем чтобы тушение пожара в любой точке строительной площадки
могло осуществляться с подачей воды из двух гидрантов. Расстояние от здания до
ближайшего гидранта не должно превышать 50 м. Устройство гидрантов вдоль дорог
предусматривается на расстоянии не более 2 м от края дороги и не менее 5 м от
здания.
Расход воды на производственные нужды
Qпр, л/с, определяют по формуле:
л/с
Где S – удельный расход воды на единицу
объема работ;
А – объём строительных работ,
выполняемых в смену с максимальным водопотреблением;
K1ч – коэффициент часовой
неравномерности водопотребления; принимается равным для строительных работ –
1,5;
N – число часов работы в смену.
Расход воды устанавливается по всем
работам, выполняемым в период максимального водопотребления. Расход воды на
хозяйственно-питьевые нужды Qхоз, л/с, определяют по формуле:
где b – норма расхода воды на
хозяйственно-питьевые нужды на одного человека в смену;
N1 – максимальное число работающих в
одну смену;
К2ч- часовой коэффициент потребления,
принимаемый равным 2-3.
Расход воды на душевые установки Qдуш,
л/с, определяют по формуле:
Общий расход воды на строительстве
, л/с, определяют по
формуле:
Потребность в воде рассчитывается на
период максимального водопотребления, чтобы сети водопровода могли обеспечивать
потребителей водой в часы максимального водоразбора и на случай пожара.
Диаметр труб определяют по формуле
Где Q – расчетный расход воды, л/с;
V – скорость движения воды по трубам (
принимается равной 1,5 л/с).
Для водоснабжения строительной площадки
наиболее рационально использовать действующий водопровод, расположенный в районе
строительства. Принимаем диаметр труб 200мм.
9.8.7 Технико-экономические показатели
стройгенплана
Площадь строящегося здания F1=3780 м2
Площадь открытых складов F2=17 м2
Площадь закрытых складов и навесов
F3=141 м2
Площадь дорог F4=1450м2.
Общая площадь застройки F5=31240 м2
Общая протяженность дорог 400м.
Общая протяженность электросетей 850м.
Общая протяженность водопроводных сетей
200м.
Мощность временной трансформаторной
подстанции - 70 кВт
Коэффициент использования территории 0,2
10.
Экономическая часть и технологические показатели
Локальная смета на общестроительные
работы.
Для определения сметной стоимости
строительства проектируемых зданий, сооружений или их очередей составляется
сметная документация, состоящая из локальных смет, локальных сметных расчетов,
объектных смет, объектных сметных расчетов, сметных расчетов на отдельные виды
затрат, сводных сметных расчетов стоимости строительства, сводок затрат и др.
При подсчете объемов работ необходимо
соблюдать следующие требования:
перечень работ следует разбить по
разновидностям, предусмотренным в сметных нормах;
объемы работ должны быть выражены в
измерителях, принятых в сметных нормах;
итоги следует подсчитать с точностью до
двух знаков.
После определения объемов работ
необходимо приступить к составлению сметы, которая составляется по сборникам единичных
расценок ТЕР.
По каждому разделу сметы подсчитываются
итоги. В конце сметы показываются затраты на неучтенные работы – 3% от общего
итога. На сумму прямых затрат начисляются накладные расходы – 118%. После
составления локальной сметы определяется: сметная стоимость общестроительных
работ, сметная зарплата и нормативная трудоемкость (трудозатраты). Трудоёмкость
рабочих-строителей обслуживающих машины определяется путём умножения з/п
машинистов на коэффициенты: 0,076 – для земляных работ с применением
строительных машин; 0,068 – для остальных работ.
Форма №4 ЕР
Локальная смета №1
Завод цинкования мелкоразмерных
конструкций в городе Тула.
Сметная стоимость 39868705,7 руб.
Основание: раздел технологии
производства и чертежи
Нормативная трудоемкость 33869 чел.-ч
Составлена в базисных ценах на 2001 г.с
пересчетом на август 2006 г.
Сметная заработная плата 1820138,8 руб.
|
№
п/п
|
Шифр
и №
позиции
норматива
|
Наименование
работ и затрат,
материалов,
изделий и
конструкций
|
Ед.
изм.
|
Кол-во
|
Стоимость
ед, руб.
|
Общая
стоимость, руб.
|
Затраты
труда рабочих, чел.-ч., не занятых обсл. машин
|
|
|
|
Всего
осн.
зарплата
|
Эксплуатац.
машин
в
т.ч. зарплата машинистов
|
Всего
|
Основной
зарплаты
|
Эксплуатац.
машин
в
т.ч. зарплата машинистов
|
|
|
обслуж.
машины
|
|
|
на
един.
|
всего
|
|
|
1
|
2
|
3
|
4
|
5
|
6
|
7
|
8
|
9
|
10
|
11
|
12
|
|
|
Раздел
1. Земляные работы.
|
|
|
1
|
ТЕР
01-01-031-7
|
Срезка
растительного слоя бульдозером группы грунта I
|
1000м3
|
1,42
|
2787,19
-
|
2787,19
342,39
|
3960,65
|
-
|
3960,65
486,19
|
_-_
3,3
|
-
4,69
|
|
|
2
|
ТЕР
01-01-036-1
|
Окончательная
планировка площадки бульдозером ДЗ-18 при рабочем ходе в одном направлении
|
1000м2
|
4,73
|
1472,13
|
1472,13
186,71
|
6963,17
|
-
|
6963,17
883,14
|
_-_
1,3
|
-
6,15
|
|
|
3
|
ТЕР
01-01-002-1
|
Разработка
грунта в котловане одноковшовым экскаватором, оборудованным обратной лопатой
марки ЭО-2141А с погрузкой в транспортные средства
|
100
м3
|
54,7
|
2120,65
50,57
|
2070,08
202,63
|
115999,56
|
2766,18
|
113233,38
11083,86
|
6,1
15,4
|
333,67
842,38
|
|
|
1
|
2
|
3
|
4
|
5
|
6
|
7
|
8
|
9
|
10
|
11
|
12
|
|
|
4
|
ТЕР
01-02-056-1
|
Разработка
грунта вручную в котловане
|
100
м3
|
0,15
|
1660,5
1660,5
|
-
-
|
249,08
|
249,08
|
-
-
|
162,0
-
|
24,30
-
|
|
|
5
|
ТЕР
01-01-035-1
|
Засыпка
котлована бульдозером ДЗ-18, перемещая грунт на 8м.
|
100
м3
|
51,6
|
316,76
-
|
316,76
-
|
16344,82
|
-
|
16344,82
-
|
-
3,84
|
198,14
-
|
|
|
6
|
ТЕР
01-02-001-7
|
Уплотнение
грунта поверхности прицепным катком ДУ-39А на пневмо-колесном ходу при
четырех проходах по одному следу
|
1000
м3
|
1,52
|
2197,51
-
|
2197,51
343,97
|
3340,22
|
-
|
3340,22
522,83
|
-
3,98
|
-
6,05
|
|
|
Раздел
2. Фундамент.
|
|
|
7
|
ТЕР
8-01-002-2
|
Устройство
основания под фундаменты, щебеночного,
|
1
м3
|
48
|
182,28
7,87
|
22,06
2,22
|
8749,44
|
377,76
|
1058,88
105,65
|
0,99
|
47,52
|
|
|
|
Материалы
|
|
|
151,35
|
|
7264,8
|
|
|
|
|
|
|
8
|
ТЕР 06-01-001-1
|
Устройство
бетонной подготовки
|
100
м3
|
1,2
|
60977,17
1188,49
|
805,66
125,49
|
73172,6
|
1426,19
|
966,79
150,59
|
163,03
|
195,64
|
|
|
|
Материалы
|
|
|
58983,02
|
|
70779,6
|
|
|
|
|
|
|
9
|
ТЕР 5-02-004-1
|
Погружение
свай длиной 5м
|
м3
|
88,2
|
514,3
35,73
|
394,05
26,08
|
45361,3
|
3151,38
|
34755,2
2300,3
|
2,47
|
217,85
|
|
|
|
Материалы
|
|
|
84,52
|
|
7454,66
|
|
|
|
|
|
|
10
|
ТЕР 06-01-005-4
|
Устройство
монолитного ж/б ростверка из бетона В20
|
100м3
|
0,95
|
58177,48
3592,51
|
2557,99
286,53
|
55268,61
|
3412,88
|
2430,1
272,2
|
453,60
|
430,92
|
|
|
|
Материалы
|
|
|
52026,98
|
|
49425,63
|
|
|
|
|
|
|
11
|
ТЕР 06-01-001-10
|
Устройство
монолитного ж/б подколонника
|
100м3
|
0,25
|
79786,11
3620,43
|
2334,11
331,74
|
19946,53
|
905,11
|
583,52
82,94
|
453,12
|
113,28
|
|
|
|
Материалы
|
|
|
73813,57
|
|
18453,39
|
|
|
|
|
|
|
12
|
ТЕР
06-01-001-22
|
Устройство
ленточных монолитных ж/б фундаментов под стены цокольного этажа
|
100м3
|
0,34
|
92862,09
3697,67
|
3344,60
346,97
|
31573,11
|
1257,2
|
1137,16
117,97
|
446,04
|
151,65
|
|
|
|
Материалы
|
|
|
85819,82
|
|
29178,74
|
|
|
|
|
|
|
13
|
ТЕР
08-01-003-7
|
Гидроизоляция
боковая обмазочная битумом в
2слоя
|
100м2
|
1,65
|
1247,83
188,68
|
70,11
|
2058,92
|
311,32
|
115,68
|
21,2
|
34,98
|
|
|
|
Материалы
|
|
|
989,04
|
|
1631,92
|
|
|
|
|
|
|
Раздел
3. Каркас здания.
|
|
|
14
|
ТЕР
09-01-001-12
|
Монтаж каркаса гражданского здания
высотой до 25 м
|
1
т
|
741
|
1005,23
308,79
|
368,72
46,60
|
744875,43
|
228813,39
|
273221,52
34530,60
|
24,75
4.57
|
18339,75
3386,37
|
|
|
|
Материалы
|
|
|
11452,27
|
|
8485932,1
|
|
|
|
|
|
|
Раздел
4. Стены.
|
|
|
1
|
2
|
3
|
4
|
5
|
6
|
7
|
8
|
9
|
10
|
11
|
12
|
|
|
15
|
ТЕР
08-02-001-3
|
Монтаж
стеновы х панелей площадью до 10м2
|
100 шт
|
3,85
|
17963,18
6082,94
|
9132,94
1419,97
|
69
158,2
|
23
419,3
|
35
161,82
5
466,88
|
511,70
112.91
|
1
970,05
434,70
|
|
|
|
Материалы
|
|
|
165365,29
|
|
636
656,37
|
|
|
|
|
|
|
16
|
ТЕР
08-02-001-3
|
Кладка
кирпичных стен средней сложности из керамического кирпича
|
1
м3кладки
|
298
|
690.28
47.35
|
30,17
4,84
|
205703,44
|
14110,3
|
8
990,66
1
442,32
|
5.66
0,33
|
1
686,68
98,34
|
|
|
|
Материалы
|
|
|
1864,27
|
|
555
552,46
|
|
|
|
|
|
|
17
|
ТЕР
07-01-021-5
|
Укладка
перемычек массой до 0,7 т
|
100 шт.
|
0,03
|
4685,55
1035,22
|
3577,19
566,27
|
140,57
|
31,06
|
107,32
16,99
|
96,75
45,24
|
2,90
1,36
|
|
|
|
Материалы
|
|
|
46892,32
|
|
1406,77
|
|
|
|
|
|
|
18
|
ТЕР
10-01-027- 2
|
Установка
в общественных зданиях оконных блоков
|
100
м2
|
1,2
|
8498.84
1243.25
|
601.23
64.53
|
10198,6
|
1491,9
|
721,48
77,44
|
134.52
4,29
|
161,42
5,14
|
|
|
|
Материалы
|
|
|
15755,18
|
|
18906,2
|
|
|
|
|
|
|
Раздел
4. Покрытие.
|
|
|
19
|
ТЕР
10-02-035-1
|
Установка
прогонов и связей при устройстве кровли
|
100
м2
|
23,1
|
1010.73
456,09
|
129,69
7,62
|
23347,86
|
10
535,68
|
2
995,84
176,02
|
58,1
0,52
|
1
342,11
12,01
|
|
|
|
Материалы
|
|
172147,4
|
|
|
|
|
|
|
20
|
ТЕР
12-01-017-1
|
Установка
стального профилированного настила кровли отдельными листами длиной до 12м
|
100
м2
|
23,1
|
|
|
29460,82
|
3659,73
|
4992,6
449,75
|
27,22
1,34
|
628,78
30,95
|
|
|
|
Материалы
|
|
|
9585.2
|
|
221418,12
|
|
|
|
|
|
|
21
|
ТЕР
12-01-015-1
|
Устройство
пароизоляции рулонными материалами
|
100
м2
|
23,1
|
1856,95
154,09
|
76,42
2,18
|
42
895,55
|
3
559,48
|
1
765,30
50,36
|
17,51
0,15
|
404,48
3,47
|
|
|
|
Материалы
|
|
|
68,24
|
|
1
576,34
|
|
|
|
|
|
|
22
|
ТЕР
12-01-014-2
|
Утепление
конструкций плитными материалами
|
100
м2
|
23,1
|
3780,2
210,16
|
76,52
2,28
|
87
322,62
|
4
854,70
|
1
864,70
52,71
|
11,04
0,46
|
255,02
10,63
|
|
|
|
Материалы
|
|
|
13271,44
|
|
306
570,26
|
|
|
|
|
|
|
23
|
ТЕР
12-01-001-2
|
Устройство
плоской кровли из листовых кровельных материалов
|
100
м2
|
23,1
|
6605,48
239,89
|
356,32
14,7
|
152
586,59
|
5
541,46
|
8
230,99
339,57
|
27,26
0,99
|
629,71
22,87
|
|
|
|
Материалы
|
|
|
6009,27
|
|
138
814,14
|
|
|
|
|
|
|
Раздел
5. Устройство полов
|
|
|
24
|
ТЕР 11-01-002-4
|
Устройство
щебеночного подстилающего слоя до 100мм.
|
1 м3
|
231
|
299,38
41,61
|
31,61
6,73
|
69
156,78
|
9
611,91
|
7
301,91
1
554,63
|
3,73
0,59
|
861,63
136,29
|
|
|
|
Материалы
|
|
|
196,5
|
|
45
391,50
|
|
|
|
|
|
|
25
|
ТЕР 11-01-032-4
|
Устройство
бетонного подстилающего слоя до 100мм
|
100
м2
|
23,1
|
1341,22
293,56
|
28,35
12,62
|
30
982,18
|
6
781,24
|
654,89
291,52
|
39,51
0,86
|
912,68
19,87
|
|
|
|
Материалы
|
|
|
4052,1
|
|
93
603,51
|
|
|
|
|
|
|
26
|
ТЕР
11-01-027-2
|
Устройство
цементных полов с толщина слоя покрытия 30мм.
|
100м2
|
23,1
|
10898,74
981,0
|
91,37
26,07
|
251
760,89
|
22
661,10
|
2
110,65
602,22
|
119,78
1,77
|
2
766,92
40,89
|
|
|
|
Материалы
|
|
|
3058,74
|
|
70
656,89
|
|
|
|
|
|
|
Раздел
6. Отделочные работы.
|
|
|
1
|
2
|
3
|
4
|
5
|
6
|
7
|
8
|
9
|
10
|
11
|
12
|
|
|
27
|
ТЕР
15-02-001- 1
|
Высококачестве
нная штукатурка поверхностей цементным раствором
|
100м2
|
7,5
|
1700,38
637,92
|
59,03
25,02
|
12
752,85
|
4
784,40
|
442,73
187,65
|
70,88
1,77
|
531,60
13,28
|
|
|
|
Материалы
|
|
|
2923,43
|
|
21
925,73
|
|
|
|
|
|
|
28
|
ТЕР
15-04-030-3
|
Масляная
окраска металлических поверхностей за 2 окраски
|
100м2
|
4,7
|
847,45
336,49
|
1,93
0,1
|
3
983,02
|
1
581,50
|
9,07
0,47
|
40,59
0,0068
|
190,77
0,03
|
|
|
|
Материалы
|
|
|
40714,56
|
|
191
358,43
|
|
|
|
|
|
|
29
|
ТЕР
15-04-025-7
|
Высококачественная
окраска масляным колером по штукатурке
|
100м2
|
7,5
|
574,5
340,6
|
1,35
0,1
|
4
308,75
|
2
554,50
|
10,13
0,75
|
40,07
0,0068
|
300,53
0,05
|
|
|
|
Материалы
|
|
|
40714,56
|
|
305
359,20
|
|
|
|
|
|
30
|
ТЕР
15-04-005-2
|
Окраска
перхлорвиниловыми составами наружных стен здания
|
100м2
|
7,5
|
1100,52
142,13
|
5,41
0,1
|
8
253,90
|
1
065,98
|
40,58
0,75
|
16,94
0,0068
|
127,05
0,05
|
|
|
|
Материалы
|
|
|
32715,62
|
|
245
367,15
|
|
|
|
|
|
|
|
Прямые
затраты в базовых ценах
|
-
|
-
|
-
|
-
|
1954819
|
369946,9
|
503257,2
60034,3
|
-
|
33869
5279,87
|
|
|
Расч.
инд. РХЦЦС
2006
|
Индекс
на зарплату рабочих
|
руб.
|
k=4,92
|
-
|
-
|
-
|
1820138,8
|
-
|
-
|
-
|
|
|
|
Индекс
на эксплуатацию машин
|
руб.
|
k=4,99
|
-
|
-
|
-
|
-
|
2511253,4
|
-
|
-
|
|
|
В
том числе на зарплату машинистов
|
руб.
|
k=4,92
|
-
|
-
|
-
|
-
|
295368,8
|
-
|
-
|
|
|
Индекс
на материалы
|
руб.
|
k=2,64
|
-
|
-
|
31242833
|
-
|
-
|
-
|
-
|
|
|
МДС
81
-33.2004
|
Накладные
расходы
|
руб.
|
118%
|
-
|
-
|
2496299
|
-
|
-
|
-
|
-
|
|
|
|
Итого
с накладными расходами
|
руб.
|
|
-
|
-
|
38070524
|
-
|
-
|
-
|
-
|
|
|
МДС
81-
25.2004
|
Сметная
прибыль
|
руб.
|
85%
|
-
|
-
|
1798181,5
|
-
|
-
|
-
|
-
|
|
|
|
Всего
сметная стоимость
|
|
|
|
|
39868706
|
1820139
|
2511253
295369
|
-
|
33869
5280
|
|
Объектная смета на строительство завода
цинкования мелкоразмерных конструкций
Результат сметных расчетов по
общестроительным, санитарно-техническим, электрическим работам сводятся в смету
на объект, которая составляется в соответствии с инструкцией СН 202-81.
Суммой сметной стоимости всех работ и
затрат на строительство здания определяется сметная стоимость СМР по зданию
(Ссмр). Показатель единичной стоимости строительства здания рассчитывается
отношением Ссмр к общей площади здания.
Форма №3
Объектная смета № 1
На строительство завода цинкования
мелкоразмерных конструкций в городе Тула.
Сметная стоимость 46643,99 тыс. руб.
Средства на оплату труда 2129,45 тыс.
руб.
Расчетный измеритель единичной стоимости
20,19 тыс. руб./м2
Составлено в ценах по состоянию на
август 2006 г.
№
п/п
|
Номера
сметных расчетов (смет)
|
Наименование
работ и затрат
|
Сметная
стоимость, тыс. руб.
|
Средства
на оплату труда, тыс. руб.
|
Показатели
ед. стоимости
|
|
Строительных
работ
|
Монтажных
работ
|
Оборудования,
мебели, инвентаря
|
Прочих
затрат
|
Всего
|
|
1
|
3
|
4
|
5
|
6
|
7
|
8
|
9
|
10
|
|
1
|
ЛC
№1
|
Общестроительных
работ
|
39868,71
|
–
|
–
|
–
|
39868,71
|
1820,14
|
17,26
|
|
2
|
|
Отопление
5%
|
1993,44
|
–
|
–
|
–
|
1993,44
|
91,01
|
0,86
|
|
3
|
|
Вентиляция
2%
|
797,37
|
–
|
–
|
–
|
797,37
|
36,40
|
0,35
|
|
4
|
|
Внутренний
водопровод 3%
|
1196,06
|
–
|
–
|
–
|
1196,06
|
54,60
|
0,52
|
|
5
|
|
Канализация
2%
|
797,37
|
–
|
–
|
–
|
797,37
|
36,40
|
0,35
|
|
6
|
|
Электроосвещение
1%
|
398,69
|
–
|
–
|
–
|
398,69
|
18,20
|
0,17
|
|
7
|
|
Электросиловое
оборудование
|
–
|
–
|
–
|
–
|
–
|
–
|
–
|
|
8
|
|
Технологическое
оборудование
|
–
|
–
|
–
|
–
|
–
|
–
|
–
|
|
9
|
|
Приспособления,
инвентарь, инструмент ( 3% от (8) )
|
–
|
–
|
–
|
–
|
-
|
–
|
–
|
|
|
Итого
по гл. 1 – 9
|
45051,64
|
–
|
–
|
–
|
45051,64
|
2056,76
|
19,50
|
|
10
|
ГЭСН
81-05-01-2001
|
Временные
здания и сооружения 1,1%
|
495,57
|
–
|
–
|
–
|
495,57
|
–
|
0,22
|
|
|
Итого
по гл. 1 – 10
|
45547,21
|
–
|
–
|
–
|
45547,21
|
2056,76
|
19,72
|
|
11
|
ГЭСН
81-05-02-2001
|
Зимнее
подорожание 0,4%
|
171490,94
|
–
|
–
|
–
|
182,19
|
8,32
|
0,08
|
|
12
|
По
факту или по плану
|
Приобретение
хоз. инвентаря (0,3% от (8))
|
–
|
–
|
–
|
–
|
–
|
–
|
–
|
|
|
Итого
по гл. 1 – 12
|
45729,40
|
–
|
–
|
–
|
45729,40
|
2087,70
|
19,80
|
|
13
|
|
Резерв
на непредвиденные работы и затраты 2%
|
914,59
|
–
|
–
|
–
|
914,59
|
41,75
|
0,40
|
|
14
|
|
Всего
по смете
|
46643,99
|
–
|
–
|
–
|
46643,99
|
2129,45
|
20,19
|
Технико-экономические показатели
проекта.
На основании сметных расчетов произведен
экономический анализ эффективности принятого варианта проекта.
Технико-экономические показатели
стоимости строительства:
Общая трудоемкость - 4130,4 чел-дн.
Трудоемкость строительства на 1м2
площади здания - 1,79 чел-дн./ м2;
Сметная стоимость СМР по локальной смете
– 39868,7 тыс. руб;
Сметная стоимость строительства -
46643,99 тыс. руб;
5. Полная сметная стоимость
строительства в текущих ценах – 58165,06 тыс. руб;
Стоимость 1м2 общей площади –20,19 тыс.
руб/ м2;
Стоимость 1 м3 объема здания –1,83 тыс.
руб;
Фонд оплаты труда рабочих – 2129,45 тыс.
руб.
Из расчетов технико-экономических
показателей можно сделать вывод о том, что выполненный проект здания
соответствует требованиям экономической эффективности и целесообразности
заложенных в него объемно-планировочных и архитектурно-конструктивных решений,
а также принципам передовых методов и технологий ведения строительного
процесса.
11 Техника
безопасности и охрана труда
11.1 Анализ
основных опасных и вредных факторов производственного процесса.
Производственная пыль.
Производственная пыль образуется при
земляных работах, монтаже строительных конструкций, отделочных работах, очистке
и окраске строительных изделий, при транспортировке материалов, сжигании
топлива и т.п.
Вредность пыли зависит от ее состава,
концентрации в воздухе и крупности частиц. В легких человека при дыхании
задерживаются частицы размером от 0,2 до 0,7 мкм.
Для нормализации воздуха при
производстве работ на строительном участке запланированы следующие мероприятия:
- максимальная механизация и
автоматизация производственных процессов;
- применение герметичного оборудования,
герметичных устройств для транспортировки пылящих материалов;
- тщательная и систематическая уборка
рабочих мест с помощью вакуумных установок
- применение индивидуальных средств
защиты от пыли - респираторов (лепестковых, шланговых и др.), очков и
противопыльной спецодежды.
Вредные вещества.
При строительстве объекта исключено
использование сильнодействующих ядовитых веществ. Но при различных
технологических процессах может выделяться ряд вредных веществ, описание
которых приведено ниже. ГОСТ 12.1.005-88 "Общие санитарно-гигиенические
требования к воздуху рабочей зоны" устанавливает предельно допустимые
концентрации (ПДК) вредных веществ в воздухе рабочей зоны.
Бензин - смесь углеводородов, прозрачная
бесцветная жидкость, легко испаряющаяся, с характерным запахом. В строительстве
применяется в качестве растворителей красок при малярных работах. Бензин может
поступать в организм через органы дыхания, желудочно-кишечный тракт и кожу. ПДК
для бензина - 100 мг/м3.
Ацетон СН3СОСН3 - бесцветная жидкость с
неприятным запахом. Применяется в качестве растворителя и разбавителя
нитрокрасок. Оказывает на организм наркотическое действие. ПДК составляет 200
мг/м3.
При сварке выделяются вредные аэрозоли
(марганец). Токсические материалы выделяются при малярных, изоляционных
работах, работах с полимерными материалами; при асфальтобетонных и кровельных
работа с применением битумных мастик.
Для предотвращения отравления вредными
веществами необходимо вести регулярный контроль их содержания в воздухе рабочей
зоны в соответствии со СНиП 12.1.007-76. Для анализа воздушной среды
используется хроматограф ЛК-2.
Работы с вредными отравляющими
веществами необходимо свести к минимуму или вообще исключить.
Все рабочие должны быть обучены технике
безопасности и знать начальные признаки действия вредных веществ, должны уметь
оказать первую помощь.
Для защиты частей тела рабочих
применяется спецодежда:
для защиты рук перчатки или рукавицы,
прорезиненные или из кислостойких материалов;
органы дыхания защищаются специальным
противогазом при проведении малярных работ в закрытом помещении;
- для предупреждения заболеваний кожи
применяются мази (пасты) и моющие средства.
Физические факторы.
Строительно-монтажные работы второго
этапа строительства завода выполняются в весенне-летний период.
Оптимальная величина температуры воздуха
рабочей зоны установлена ГОСТ 12.1.005-88 и колеблется пределах от 16 до 25 С°,
в зависимости от выполняемой работы и времени года.
Оптимальная относительная влажность установлена
ГОСТ 12.1.005-88 и составляет 40-60%. Допустимая величина может быть до 75% в
зависимости от сочетания температуры воздуха со скоростью его движения.
Тепловое самочувствие человека в
значительной мере зависит от скорости движения воздуха. В теплый период года
скорость движения воздуха в рабочей зоне составляет от 0,2 до 1,0 м/с, а в
холодный - от 0,2 до 0,5 м/с.
Для обеспечения удовлетворительной
работы необходимо предусматривать:
- защиту рабочих от переохлаждения путем
обеспечения теплой одеждой и теплой обувью в период холодного времени года, с
периодическими перерывами для обогрева в специальных помещениях;
- для исключения нарушения
водно-солевого баланса в организме человека предусмотрено установление
сатуратора, снабжающего работающих газированной водой с добавлением 0,2-0,5%
поваренной соли.
Шум.
Разработка мероприятии по борьбе с
производственным шумом должна начаться на стадии проектирования технологических
процессов и машин, разработки плана производственного помещения и генерального
плана предприятия, а также технологической последовательности операции. Этими
мероприятиями могут быть: уменьшение шума в источнике возникновения; снижение
шума на путях его распространения; архитектурно-планировочные мероприятия;
совершенствование технологических процессов и машин; акустическая обработка
помещении.
Уменьшение шума в источнике
возникновения является наиболее эффективным и экономичным. В каждой машине
(электродвигатель, вентилятор, виброплощадка) в результате колебании
(соударении) как всей машины так и составляющих её деталей (зубчатых передач,
подшипников, валов, шестерён) возникают шумы механического, аэродинамического и
электромагнитного происхождения.
При работе различных механизмов снизить
шум па 5...10 дБ можно путем: устранения зазоров в зубчатых передачах и
соединения деталей с подшипниками; применение глобоидных шеврованных
соединений; широкого использования пластмассовых деталей. Шум в подшипниках
качения и зубчатых передачах уменьшается также при снижении частоты вращения и
нагрузки. Часто повышенные уровни шума возникают при несвоевременном ремонте
оборудования, когда ослабляется крепление деталей и образуется недопустимым
износ деталей. Снижение шума вибрационных машин достигается посредством:
уменьшения площади вибрирующих элементов: замены зубчатых и цепных передач па
клиноремонтные или гидравлические: замены подшипников качения на подшипники
скольжения, гам, где это не вызывает значительного повышения расходов энергии
(снижение шума до 15 дБ): повышения эффективности виброизоляции, так как
снижение уровня вибрации деталей всегда приводит к уменьшению шума: снижение
интенсивности процесса виброформирования за счет некоторого увеличения времени
вибрирования.
Снизить шумы аэродинамического и электромагнитного
происхождения часто можно только уменьшением мощности или рабочих скоростей
машины, что неизбежно приведет к снижению производительности или нарушению
технологического процесса. Поэтому во многих случаях, когда существенного
уменьшения шума в источнике не удалось достичь, используя методы снижения шума
на путях его распространения, т. е. Применяют шумозащитные кожухи, экраны,
глушители аэродинамического шума.
В необходимых случаях меры защиты
дополняются применением средств индивидуальной защиты от шума в виде:
наушников, вкладышей из улыратонкого волокна, противошумных касок, действие
которых основано на изоляции и поглощении звука.
Средства индивидуальной защиты от шума
должны обладать следующими основными свойствами: снижать уровень шума до
допустимых пределов на всех частотах спектра; не оказывать чрезмерного давления
па ушную раковину: не снижать восприятия речи: не заглушать звуковые сигналы
опасности: отвечать необходимым гигиеническим требованиям.
Основными источниками шума на строительной
площадке являются:
·передвижные
строительные машины - экскаватор, бульдозер, кран, электровибратор,
компрессорная установка;
·бетоносмесительная
установка, бетоноукладчики;
·ручной механизированный
инструмент.
При строительстве завода следует обеспечить
следующие мероприятия:
·максимально исключить
виброакустическое оборудование;
·по возможности
сократить число рабочих, работающих в непосредственной близи с источником шума;
·применить средства
индивидуальной защиты от шума - наушники, вкладыши и шлемы;
·проводить
санитарно-профилактические мероприятия для рабочих, занятых на акустическом
оборудовании;
·применить звукоизоляцию
шумных машин (например компрессор) в виде кожуха;
Существенное ослабление шума достигается
качественным монтажом отдельных узлов машин, их динамической балансировкой и
своевременным проведением планово-предупредительных ремонтов. Необходимо
регулярно проверять работу подшипников, устранять удары и биение деталей при
возникновении зазоров.
Для возведения нашего объекта подбирались
исправные машины и механизмы, у которых уровни звукового давления были в пределах
нормы.
Вибрация.
При строительстве завода будут
выполнятся работы по бетонированию, следовательно, главным источником вибрации
являются машины для приготовления, распределения и виброуплотнения бетонной
смеси - бетоносмесители, виброплощадки. Также источниками вибрации на
стройплощадке являются бульдозер, кран, передвижные компрессорные установки.
Защита от вибрации:
·при работе с ручным
механизированным инструментом использовать средства индивидуальной защиты -
рукавицы или перчатки, а также виброзащитную обувь, виброзащитные прокладки и
пластины.. Требования, предъявляемые к упругим ставкам виброзащитных рукавиц,
эффективность виброзащиты, толщина упругих вставок, а также сила нажатия на
ручную машину установлены в ГОСТ 12.4.002-74 "Средства индивидуальной
зашиты рук от вибрации. Общие технические требования";
· для защиты от вредной
вибрации рабочие места бетонщиков располагают на массивной железобетонной
плите, опирающейся с помощью стальных пружин виброизоляторов на колеблющееся
основание.
Искусственное освещение.
Для охраны строительной площадки из
рабочего освещения необходимо выделить несколько осветительных вышек, которые
обеспечат горизонтальную на уровне земли или вертикальную на плоскости
ограждения освещенность, равную 0,5 лк.
Аварийное освещение, устраивается в
местах производства работ по бетонированию особенно ответственных конструкций в
тех случаях, когда перерыв в укладке бетона недопустим - это бетонирование
фундаментов.
При необходимости часть светильников
рабочего или аварийного освещения может использоваться для дежурного освещения.
Эвакуационное освещение устроено в
местах основных путей эвакуации через два входа на территорию строительства.
Произведем расчет прожекторного
освещения
Прожектора размещены по два на одной
мачте высотой H=10м. Вид освещения - рабочее. Размеры площадки: длина 220м,
ширина 142м. Угол наклона оптической оси 180.
Рис. 11.1 Построения при расчете
освещенности в точке А
В соответствии с СНиП 23-05-95 Ен=2
лк, k=1.5 подбираем подходящий тип прожектора ПЗС-35 с лампой накаливания Г
215-225-500. Тогда
N=EнkS/FлpuZ
Где Eн – нормативная
освещенность, Ен=2лк
К – коэффициент запаса, к=1,5
S – освещаемая площадь, S=31240 кв.м
Fл – световой поток лампы, Fл=8000
(для ПЗС- 35)
p - КПД прожектора, p=0,8 (для ПЗС-35)
u - коэффициент использования светового
потока, u = 0,8
Z – коэффициент неравномерности
освещения, Z = 0,75
N – количество прожекторов типа ПЗС

ЛН Г215-225-500 имеет максимальную силу
света Imax=8300кд, а следовательно минимальная высота установки
прожекторов над освещаемой поверхностью,
hmin=
=7м
Произведем расчет прожекторного
освещения методом изолюкс. Полагаем, что для освещения стройплощадки выбран
прожектор ПЗС-35 с ЛН Г 215-225-500, высота установки дана равной 10м. Угол
наклона оптической оси
Световой поток лампы при напряжении 220В
Фл=8300 лм, угол рассеяния прожектора в вертикальной плоскости
,
угол рассеяния в горизонтальной плоскости
Где L0 ,м - расстояние от
основания прожекторной мачты до освещаемой зоны. Расстояние неосвещенной зоны
м
Мощность лампы 500Вт, мощность двух ламп
1000 Вт.
Удельная мощность освещения
Вт/м2.
Для рассматриваемой площадки
рекомендуется 24 прожектора ПЗС - 45 с лампой 215-225-500, расстояние между
мачтами 30 м, количество прожекторов на каждой мачте N=1 высота мачты h=10 м,
угол наклона прожекторов
=180.
Подъездные пути и ограждения.
Для выделения территории стройплощадки,
участков производства работ строительно-монтажных и опасных зон предусмотрено
устройство ограждений, показанных на стройгенплане. Ограждения выполнены с
учетом требований ГОСТ 23407-78. Для обеспечения безопасной и безаварийной
работы транспорта на строительной площадке предусмотрены подъездные пути и
внутрипостроечные дороги. Дороги имеют твердое покрытие и обеспечивают
свободный доступ транспортных средств и строительных машин к участкам
производства работ.
Опасными зонами являются зоны проезда
транспортных средств. На границах зоны перемещения транспортных средств должны
быть установлены защитные ограждения, а в зоне потенциально возможного
перемещения транспортных средств – сигнальные ограждения и знаки безопасности.
Работа на высоте
Рабочие места и проходы к ним,
расположенные на покрытиях на высоте более 1,3 м и на расстоянии менее 2 м от
границы перепада по высоте ограждены защитными или страховочными ограждениями,
а при расстоянии более 2 м – сигнальными ограждениями, соответствующими
требованиям государственных стандартов. При невозможности или экономической
нецелесообразности применения защитных ограждений допускается производство
работ с применением предохранительного пояса для строителей, соответствующего
государственным стандартам, и оформлением наряда-допуска. При выполнении работ
на высоте, внизу, под местом работы выделяются опасные зоны. При совмещении
работ по одной вертикали нижерасположенные места оборудованы соответствующими
защитными устройствами (настилами, сетками, козырьками), установленными на
расстоянии не более 6 м по вертикали от нижерасположенного рабочего места.
11.2 Пожарная
безопасность
До начала строительства площадка была
обеспечена противопожарным водоснабжением и телефонной связью – для вызова
пожарной части в случае возникновения пожара.
Пожарные гидранты установлены на
площадке в закрытых колодцах вдоль дорог. У места расположения пожарного
гидранта расположен информационный указатель с нанесенным буквенным индексом
ПГ.
Во избежание пожара расстояние между
рабочим местом сварщика и огнеопасными материалами должно быть не менее 5м.
Причиной пожара может быть неисправность
отопительных или нагревательных приборов, неисправность оборудования,
неосторожное обращение с огнем, искрение, плохое состояние электроустановок и
электропроводки, самовозгорание материалов и веществ, взрывы паров легковоспламеняющихся
жидкостей и газов, разведение огня и курение в недозволенных местах, удары
молнии и т. д.
Требования пожарной безопасности должны
соответствовать СНиП 21-01-97.
В зданиях должны быть предусмотрены
конструктивные, объёмно-планировочные и инженерно-технические решения,
обеспечивающие в случае пожара:
возможность эвакуации людей не зависимо
от их возраста и физического состояния наружу на прилегающую к зданию
территорию (далее - наружу) до наступления угрозы их жизни и здоровью
вследствие воздействия опасных факторов пожара;
возможность спасения людей;
возможность доступа личного состава
пожарных подразделений и подачи средств пожаротушения к очагу пожара, а также
проведение мероприятий по спасению людей и материальных ценностей;
нераспространение пожара на рядом
расположенные здания, в том числе при обрушении горящего здания;
ограничение прямого и косвенного
материального ущерба, включая содержимое здания и само здание, при экономически
обоснованном соотношении величины ущерба и расходов на противопожарные
мероприятия, пожарную охрану и ее техническое оснащение.
Система противопожарной защиты должна
обеспечивать незадымление, снижение температуры и удаление продуктов горения и
термического разложения па путях эвакуации в течение времени, достаточного для
эвакуации людей.
В процессе строительства необходимо
обеспечить:
·приоритетное выполнение
противопожарных мероприятии, предусмотренных проектом, разработанными в
соответствии с действующими нормами и утверждёнными в установленном порядке;
·соблюдение
противопожарных правил и охрану от пожара строящегося и вспомогательных
объектов, пожаробезопасное проведение строительных и монтажных работ;
·наличие и исправное
содержание средств борьбы с пожаром;
·возможность безопасной
эвакуации и спасения людей, а также защиты материальных ценностей при пожаре в
строящемся объекте и на строительной площадке.
В случае пожара эвакуацию людей
производить через существующие двери и ворота, ведущие наружу здания. Расчётная
норма воды на наружное пожаротушение для стройплощадки и количество колодцев с
пожарными гидрантами рассчитано и запроектировано в пункте временное
водоснабжение организационно-технологической части дипломного проекта (смотри п.9).
На территории строительной площадки
предусмотрено размещение мест складирования строительных отходов, а также
размещены пункты-щиты с набором огнетушителей, пожарного инвентаря и ручного
инструмента.
В целях пожарной безопасности на
строительной площадке рабочий должен выполнять следующие требования:
·курить только в
специально отведенных местах, обеспеченных средствами пожаротушения;
·не разводить костры, не
сжигать мусор и отходы;
·горючие строительные
отходы убирать ежедневно после работы с рабочих мест и непосредственно со
строительной площадки в специально отведенные места на расстояние не ближе 50
метров от зданий и складов;
·не загромождать доступы
и проходы к противопожарному инвентарю.
Производственные территории оборудованы
средствами пожаротушения согласно ППБ-01, зарегистрированных Минюстом России 27
декабря 1993г. № 445.
На рабочих местах, где применяются или
приготовляются клеи, мастики, краски и другие материалы, выделяющие
взрывоопасные или вредные вещества, не допускаются действия с использованием
огня или вызывающие искрообразование. Эти рабочие места должны проветриваться.
Электроустановки в таких помещениях (зонах) должны быть во взрывобезопасном
исполнении. Кроме того, должны быть приняты меры, предотвращающие возникновение
и накопление зарядов статического электричества.
Рабочие места, опасные во взрыво- или
пожарном отношении, укомплектованы первичными средствами пожаротушения и
средствами контроля и оперативного оповещения об угрожающей ситуации.
11.3
Электробезопасность
Для обеспечения электробезопасности
необходимо ограждать токоведущие части установок во избежание случайного
прикосновения к ним. Части электрооборудования, которые могут оказаться под
напряжением, должны быть заземлены.
В помещениях без повышенной опасности
применять электроинструмент напряжением 42В и 12В. в помещениях с повышенной
опасностью и особо опасных - 12В. Во время работы с электроинструментами
пользоваться защитными резиновыми перчатками ботами или резиновыми ковриками.
Работы с инструментом и установками,
находящимися под напряжением следует выполнять в присутствии второго лица.
К обслуживанию электроустановок
допускаются лица, обученные правилами техники безопасности, сдавшие экзамен с
последующей проверкой знаний.
При эксплуатации машин, приборов,
аппаратов, инструмента необходимо соблюдать требования правил устройства
электроустановок и соответствующих конструкций.
Одно из главных условий безопасности
электроустановок - надежная изоляция. Сопротивление изоляции на участке между
двумя смежными предохранителями должно составлять не менее 0.5 МОм. а также
между любым проводом и землей.
Для защиты от опасности прикосновения к
токоведущим частям установки применяют автоматические устройства отключения.
Потребность электроснабжение па
производственные нужды (сварочные трансформаторы и др.), технологические нужды
(электропрогрев бетона, грунта) и освещение (наружное и внутреннее), количество
прожекторов для наружного освещения рассчитано и запроектировано в пункте
электроснабжение строительной площадки организационно-технологической части
дипломного проекта (смотри п.9).
Временное наружное освещение при
строительстве завода располагают на высоте:
2,5 м над рабочим местом;
3,5 м над проходом
6,0 м над проездом
Все выключатели, рубильники, а также
токоведущие части электроустановок изолируются и ограждаются.
Металлические части строительных машин и
оборудования с электроприводом имеют защитное заземление.
Предусмотрено обеспечение обслуживающего
персонала средствами индивидуальной защиты.
Устройство и эксплуатация
электроустановок соответствует требованиям ГОСТ 12.1.038-82, правилам
устройства электроустановок, правилам эксплуатации электроустановок
потребителей.
К обслуживанию электроустановок допускаются
лица, обученные правилам техники безопасности, сдавшим экзамен с последующей
проверкой знаний. При эксплуатации машин, приборов, аппаратов, инструмента
соблюдать требования правил устройства электроустановок и соответствующих
конструкций.
11.4 Расчёт
устойчивости крана
Расчет производится для гусеничного
крана СКГ-25 L=25м,l=5м.
Безопасная эксплуатация грузоподъёмных
механизмов при выполнении монтажных работ обеспечивается правильным выбором
параметров кранов и их устойчивостью.
Грузовая устойчивость крана
обеспечивается при условии
К1 ×
Мг £ МII
Где К1 – коэффициент грузовой
устойчивости принимаемый для горизонтального пути – 1,4;
Мг – момент, создаваемый
рабочим грузом относительно ребра опрокидывания.
Грузовой момент:
Мг=Q×(a-b)=7,9×(17.5-6,0)=90,9кН×м,
где
Q – вес наибольшего рабочего груза (кН);
а – расстояние от оси вращения крана до
центра тяжести максимального рабочего груза (м);
b – расстояние от оси вращения до ребра
опрокидывания (м).
Удерживающий момент, возникающий от
действия основных и дополнительных нагрузок:
МII = Мв’ - Mу
- Мц.с .- Ми - Мв, где
Мв’ – восстанавливающий
момент от действия собственного веса крана:
Мв’= G ×(b+c)×
cos
Где G – вес крана СКГ-25, G=30т;
с – расстояние от оси вращения крана до
его центра тяжести, с=0,5м;
a - угол наклона пути крана, a=5°;
Мв’ = 30 ×(6,0+0,5)×cos5°
= 194,3 кН×м.
Мy – момент возникающий от
действия собственного веса крана при уклоне пути,
My = G×h1×sina
= 30×4×sin5°
= 8,7 кН×м
h1 – расстояние от центра
тяжести до плоскости, проходящей через точки опорного контура – 4м;
Мц.с. – момент от действия
цетробежных сил,
Мц.с.=
Q×n2×a×h
/ (900-n2×H) = 5×0,62×17,5×25
/ (900-0,62×23,7) = 0,88кН×м,
n – частота вращения крана вокруг вертикальной
оси – 0,6 об/мин;
Н – расстояние от оголовка стрелы до
центра тяжести подвешенного груза – 23,7м;
h – расстояние от оголовка стрелы до
плоскости, проходящей через точку опорного контура – 25м.
Ми – момент от силы инерции
при торможении опускающегося груза,
Ми = Q×U×(a-b)/g×t
= 5×0,06×(17,5-6)/9,81×0,05
= 8,3 кН×м,
где
U – скорость опускания груза – 0,06 м/с;
g – ускорение свободного падения;
t – время неустановившегося режима
работы механизма подъёма – 3м/мин, 0,05м/сек.
Мв – ветровой момент,
Мв = Мв.к.+Мв.г.=
W×r
+ W1×r1,
где
Мв.к. – момент от действия
ветровой нагрузки на подвешенный груз;
W – ветровая нагрузка, действующая
параллельно плоскости, на которой установлен кран, на наветренную площадь
крана, W=100Па;
W1 – ветровая нагрузка,
действующая параллельно плоскости, на которую установлен кран, на подветренную
площадь груза, W1=50Па;
Давление ветра на кран
W = qнс×F,
Где F – наветренная поверхность крана;
qнс – статическая
составляющая ветровой нагрузки, qнс=qо×кс;
qо – скоростной напор;
кс – коэффициент, учитывающий
изменение скоростного напора по высоте.
Мв=100×20+50×40
= 4000 Н×м
= 4 кН×м.
МII = Мв’ - Mу
- Мц.с. - Ми - Мв = 194,3 – 8,7 – 0,88 – 8,3 -
4 = 172,4 кН×м
К1×Мг
= 1,4×90,9
= 127,3 кН×м < МII = 172,4 кН×м.
Вывод: устойчивость крана обеспечена.
11.5 Техника
безопасности на строительной площадке при выполнении работ
Земляные работы.
Строительно-монтажные работы нулевого
цикла должны производиться в соответствии со СНиП 12-03-2001 ч. 1, СНиП
12-04-2002 ч. 2, ППБ-01-03, ПБ 10-382-00.
До начала производства земляных работ в
местах расположения действующих подземных коммуникаций разработать и
согласовать с организациями, эксплуатирующими эти коммуникации, мероприятия по
безопасным условиям труда, а расположение подземных коммуникаций на местности
обозначено соответствующими знаками или надписями.
Место работ очистить от валунов и
деревьев, принять меры по отводу поверхностных вод
Производство земляных работ в зоне
действующих подземных коммуникаций осуществляться под непосредственным
руководством прораба или мастера, а в охранной зоне кабелей, находящихся под
напряжением, или действующего газопровода, кроме того, под наблюдением
работников электро- или газового хозяйства.
При обнаружении взрывоопасных материалов
земляные работы в этих местах следует немедленно прекратить до получения
разрешения от соответствующих органов.
Выемки под ростверки огорожены защитными
ограждениями. На ограждении необходимо установлены предупредительные надписи и
знаки, а в ночное время — сигнальное освещение.
Грунт, извлеченный из котлована, следует
размещать на расстоянии не менее 0,5 м от бровки выемки. Валуны и камни, а
также отслоения грунта, обнаруженные на откосах, должны быть удалены.
При производстве работ принять крутизну
откосов 1:1 при глубине разработке до 3 м.
Проход людей на рабочие места (в
котлован) оборудовать приставными деревянными лестницами шириной не менее 0,6
м.
При работе экскаватора не разрешается
производить другие работы со стороны забоя и находиться работникам в радиусе
действия экскаватора +5 м.
Автомобили-самосвалы при разгрузке и
обратной засыпке котлованов устанавливать не ближе 1 м от бровки естественного
откоса, разгрузка с эстакад, не имеющих защитных брусьев запрещается
Погрузка грунта на автосамосвалы должна
производиться со стороны заднего или бокового борта.
Безопасность при производстве бетонных
работ.
При подаче, укладке и уходе за бетоном,
установке арматуры, а также установке и разборке опалубки (далее - выполнении
бетонных работ) необходимо предусматривать мероприятия по предупреждению
воздействия на работников опасных и вредных производственных факторов,
связанных с характером работы:
·расположение рабочих
мест вблизи перепада по высоте 1,3 м и более;
·движущиеся машины и
передвигаемые ими предметы;
·обрушение элементов
конструкций;
·шум и вибрация;
·повышенное напряжение в
электрической цепи, замыкание которой может произойти через тело человека.
Размещение
на опалубке оборудования и материалов, не предусмотренных ППР, а также
нахождение людей, непосредственно не участвующих в производстве работ на
установленных конструкциях опалубки, не допускаются.
Ходить по уложенной арматуре допускается
только по специальным настилам шириной не менее 0,6 м, уложенным на арматурный
каркас.
Элементы
каркасов арматуры необходимо пакетировать с учетом условий их подъема,
складирования и транспортирования к месту монтажа.
Ежедневно перед началом укладки бетона в
опалубку необходимо проверять состояние тары, опалубки и средств подмащивания.
Обнаруженные неисправности следует незамедлительно устранять.
При подаче бетона с помощью бетононасоса
необходимо:
- осуществлять работы по монтажу,
демонтажу и ремонту бетоноводов, а также удалению из них пробок только после
снижения давления до атмосферного;
- удалять всех работающих от бетоновода
на время продувки на расстояние не менее 10 м;
- укладывать бетоноводы на прокладки для
снижения воздействия динамической нагрузки на арматурный каркас и опалубку при
подаче бетона.
Удаление пробки в бетоноводе сжатым
воздухом допускается при условии:
- наличия защитного щита у выходного
отверстия бетоновода;
- нахождения работающих на расстоянии не
менее 10 м от выходного отверстия бетоновода;
- осуществления подачи воздуха в
бетоновод равномерно, не превышая допустимого давления.
При невозможности удаления пробки
следует снять давление в бетоноводе, простукиванием найти место нахождения
пробки в бетоноводе, расстыковать бетоновод и удалить пробку или заменить
засоренное звено.
При уплотнении бетонной смеси
электровибраторами перемещать вибратор за токоведущие кабели не допускается, а
при перерывах в работе и при переходе с одного места на другое электровибраторы
необходимо выключать.
Изоляционные работы.
При выполнении изоляционных работ с
применением огнеопасных материалов, а также выделяющих вредные вещества следует
обеспечить защиту работающих от этих факторов. Рабочие имеют специальную обувь,
предохраняющую от ожогов.
Для подогрева битумных составов внутри
помещений не применять устройства с открытым огнем.
При выполнении работ с применением
горячего битума несколькими рабочими звеньями расстояние между ними должно быть
не меньше 10м.
Не допускается использовать в работе
битумные мастики температурой выше 180°С.
Котлы для варки и разогрева битумных
мастик должны быть оборудованы приборами для замера температуры мастики и
плотно закрывающимися крышками. Загружаемый в котел наполнитель должен быть
сухим. Возле варочного котла должны быть средства пожаротушения.
При приготовлении грунтовки, состоящей
из растворителя и битума, следует расправленный битум вливать в растворитель.
Не допускается вливать растворитель в
расплавленный битум.
При выполнение работ по гидроизоляции и
приготовление грунтовки запрещается курить, разводить огонь, проводить
сварочные работы в радиусе 25 м
Меры безопасности при производстве
монтажных работ.
При производстве строительно-монтажных
работ должны выполняться правила техники безопасности и производственной
санитарии, предусмотренные СНиП 12-03-2001 часть 1 и СНиП 12-03-2002 часть 2
«Безопасность труда в строительстве», стандартами, организация охраны труда,
предусмотренная пунктом 6,7 СНиП 3.01.01-85* и другими нормативными
документами.
Перед началом работ ответственному
производителю работ проинструктировать монтажников о мерах безопасности,
сделать запись в специальном журнале под подпись всех членов бригады.
Эксплуатацию грузоподъемных кранов,
механизмов и средств малой механизации осуществлять в соответствии с
требованиями ГОСТ 12.3.033-84. Строительные машины. Общие требования
безопасности при эксплуатации; Правил устройства и безопасной эксплуатации грузоподъемных
кранов ПБ 10-382-00,утвержденных Госгортехнадзором России 31.12.99 г.
Производителю работ назначить ИТР,
ответственного за безопасное производство работ кранами, из числа лиц,
прошедших проверку знаний правил ПБ 10-382-00 и производственных инструкций для
крановщиков и стропальщиков.
Отклонение грузового полиспаста крана от
плоскости подвеса стрелы при подъеме и перемещении конструкций не должно
превышать значений, указанных в инструкции завода-изготовителя.
Стропальщик может находиться возле груза
во время его подъема и перемещения, если последний расположен на высоте не
более 1м от уровня площадки (земли, перекрытия, и пр.), где находится
стропальщик. При монтаже конструкция или монтажный блок наводится монтажником
на место ее установки при нахождении груза на высоте не более 30см от его
проектного положения.
Съемные грузозахватные приспособления в
процессе эксплуатации
должны подвергаться техническому осмотру лицом, ответственным за их исправное
состояние, в сроки, установленные ПУ и БЭГК (ПБ 10-382-00 п. 9.3.25).
Строповку грузов производить
инвентарными стропами. При перемещении конструкций расстояние между ними и
выступающими частями ранее установленных конструкций должно быть по горизонтали
не менее 1м, по вертикали- 0,5м.
Элементы монтируемых конструкций во
время перемещения должны удерживаться от раскачивания и вращения оттяжками из
капронового каната.
Не допускается пребывание людей на
элементах конструкций или блоках во время их подъема и перемещения.
Не допускается нахождение людей под
монтируемыми конструкциями до установки их в проектное положение и закрепление.
Работу на высоте выполнять с
использованием предохранительных поясов по ГОСТ Р 50 849-96, стропами которых
крепиться к надежно закрепленным конструкциям здания.
Подачу материалов и строительных
конструкций к рабочим местам осуществлять в технологической последовательности
их установки, обеспечивающей безопасность проведения монтажных работ.
При работе на высоте монтажники имеют
предохранительные пояса и каски. Конструкции поднимают плавно, без рывков и
раскачивания, применяя оттяжки (при установке длинномерных и громоздких
элементов). При перемещении сборных конструкций монтажники находятся вне
контура устанавливаемых элементов или с противоположной стороны подачи
конструкции краном.
Расстроповку установленных элементов
выполнять только после прочного и надёжного их закрепления
Перемещение уложенной конструкции после
снятия крепления запрещено.
В темное время суток строительная
площадка и рабочие места освещены. Монтажные работы прекращать при гололёде,
сильном снегопаде, дожде, при ветре более 6 баллов.
На всех стадиях монтажа предусматривать
меры по обеспечению устойчивости, неизменяемости и прочности, как отдельных
смонтированных элементов, так и всего здания в целом.
На участке, где ведутся монтажные
работы, не допускается выполнение других работ и нахождение посторонних лиц.
Способы строповки элементов конструкций
и оборудования обеспечивают их подачу к месту установки в положении, близком к
проектному. Установленные в проектное положение элементы конструкций или
оборудование закреплены так, что обеспечивается их устойчивость и
геометрическую неизменяемость.
Очистку подлежащих монтажу элементов
конструкций от грязи производить до их подъема.
Во время перерывов в работе не допускается
оставлять поднятые элементы конструкций и оборудования на весу.
Не допускается выполнять монтажные
работы на высоте в открытых местах при скорости ветра 15 м/с и более, при грозе
или тумане, исключающем видимость в пределах фронта работ. Работы по
перемещению и установке вертикальных панелей и подобных конструкций с большой
парусностью следует прекращать при скорости ветра 10м/с и более.
До выполнения монтажных работ установлен
порядок обмена условными сигналами между лицом, руководящим монтажом, и
машинистом (мотористом). Все сигналы подаются только одним лицом (бригадиром
монтажной бригады, звеньевым, такелажником-стропальщиком), кроме сигнала «Стоп»,
который может быть подан любым работником, заметившим явную опасность.
При перемещении конструкций расстояние
между ними и другими конструкциями должно быть по горизонтали не менее 1м, по
вертикали — 0,5м.
Углы отклонения от вертикали грузовых
канатов и полиспастов крана в процессе монтажа не должны превышать величину,
указанную в паспорте крана.
Навесные монтажные площадки, лестницы и
другие приспособления, необходимые для работы монтажников на высоте, следует
устанавливать и закреплять на монтируемых конструкциях до их подъема.
Меры безопасности при
погрузочно-разгрузочных работах.
При погрузочно-разгрузочных работах
запрещается:
·поднимать или отрывать
примёрзшие или засыпанные конструкции;
·подтаскивать сборные
элементы поворотом крана или косым натяжением грузового каната;
·оставлять конструкции в
подвешенном состоянии даже на короткое время;
·проходить и находиться
под грузом и стрелой крана.
Погрузку на транспортные средства
выполнять в соответствии с разработанными схемами укладки сборных изделий. При
этом укладываемые штучные грузы в кузов машин и прицепов должны находиться от
края бортов не ближе 50 – 100мм. Для подъёма в кузова автомобилей и на штабеля
конструкции использовать приставные лестницы. Спрыгивать со штабелей и кузовов
автомобилей запрещено.
Для подъёма грузов используют
грузозахватные устройства и стропы, имеющие клеймо или бирку, в которых
указывается предельная грузоподъёмность и дата освидетельствования. Способы
строповки должны исключать возможность падения или скольжения застропованного
груза. При выполнении погрузочно-разгрузочных работ не допускается строповка
груза, находящегося в неустойчивом положении, а также смещение строповочных
приспособлений на приподнятом грузе.
Грузы строповать в соответствии с
утвержденными схемами строповки, обеспечивающими безопасность работ.
При загрузке или погрузке транспортных
средства запрещается перемещение стрелы или крюка крана над кабиной водителя.
Крюк подъёмного механизма подавать вертикально над поднимаемым грузом. До
подъёма груза проверять исправность строповки, затем выходить из опасной зоны и
после этого подавать сигнал машинисту крана. Подаваемый к месту укладки груз
запрещается перемещать над работающими людьми.
При подъёме груза находиться вне опасной
зоны, со стороны, противоположной подаче (на расстоянии 7 – 10м от места
приёмки). Разрешается подходить к опускаемому грузу, когда он опущен на высоту
0,5 1,0м над местом установки.
Перед разгрузкой панелей, блоков и
других сборных железобетонных конструкций монтажные петли должны быть
осмотрены, очищены от раствора или бетона и при необходимости выправлены без
повреждения конструкции.
При загрузке автомобилей экскаваторами
или кранами шоферу и другим лицам запрещается находиться в кабине автомобиля,
не защищенного козырьками.
Площадки для разгрузо–погрузочных работ,
должны быть спланированы и, иметь уклон не более 5%.
Каменные работы.
При перемещении и подаче на рабочее
место грузоподъемными кранами кирпича, керамических камней и мелких блоков
применять поддоны, контейнеры и грузозахватные устройства, исключающие падение
груза при подъеме.
При кладке стен зданий на высоту до 0,7м
от рабочего настила и расстоянии от его уровня за возводимой стеной до
поверхности земли (перекрытия) более 1,3м необходимо применять средства
коллективной защиты (ограждающие или улавливающие устройства) или
предохранительные пояса.
При кладке стены на уровне более 7м
необходимо применять защитные козырьки по периметру здания, удовлетворяющие
следующим требованиям:
·ширина защитных
козырьков не менее 1,5м, и они установлены с уклоном к стене так, чтобы угол,
образуемый между нижней частью стены здания и поверхностью козырька, был 110°,
а зазор между стеной здания и настилом козырька не превышал 50мм;
·защитные козырьки
должны выдерживать сосредоточенную нагрузку не менее 1600 Н (160 кгс),
приложенную в середине пролета;
·первый ряд защитных
козырьков имеет сплошной настил на высоте не более 6м от земли и сохраняться до
полного окончания кладки стен, а второй ряд, изготовленный сплошным или из
сетчатых материалов с ячейкой не более 50х50мм, — устанавливаться на высоте
6-7м над первым рядом, а затем по ходу кладки переставляться через каждые 6-7м.
Рабочие, занятые на установке, очистке
или снятии защитных козырьков, должны работать с предохранительными поясами.
Ходить по козырькам, использовать их в качестве подмостей, а также складывать
на них материалы не допускается.
Кровельные работы.
Допуск рабочих к выполнению кровельных
работ разрешается после осмотра прорабом или мастером совместно с бригадиром
исправности несущих конструкций крыши и ограждений.
Размещать на крыше материалы только в
местах, предусмотренных проектом производства работ, с принятием мер против их
падения, в том числе от действия ветра.
Не допускается проведение кровельных
работ во время гололеда, тумана, исключающего видимость в а пределах фронта
работ, грозы и ветра со скоростью 15 м/с и более.
Отделочные работы.
Средства подмащивания, применяемые при
отделочных работах, в местах, под которыми ведутся работы или есть проход,
имеют настил без зазоров.
При производстве штукатурных работ с
применением растворонасосных установок обеспечена двустороннюю связь оператора
с машинистом установки.
Для просушивания помещений строящихся
зданий и сооружений при невозможности использования системы отопления применять
воздухонагреватели (электрические или работающие на жидком топливе). При их
установке выполнять требования Правил пожарной безопасности. Запрещается
обогревать и сушить помещение жаровнями и другими устройствами, выделяющими в
помещение продукты сгорания топлива.
Малярные составы следует готовить
централизованно. При их приготовлении на строительной площадке использовать для
этих целей помещения, оборудованные вентиляцией, не допускающей предельных
концентраций вредных веществ в воздухе рабочей зоны.
Запрещается приготовление малярные
составы, нарушая требования инструкции завода-изготовителя, краски, а также
применять растворители, на которых нет сертификата с указанием о наличии и
характере вредных веществ.
Тару с взрывоопасными материалами
(лаками, нитрокрасками и т.п.) во время перерывов в работе следует закрывать
пробками или крышками и открывать инструментом, не вызывающим искрообразования.
Электропроводка в этих местах должна быть обесточена или выполнена во
взрывобезопасном исполнении.
Места, над которыми производятся
стекольные работы ограждать.
До начала стекольных работ необходимо визуально
проверить прочность и исправность оконных переплетов. Подъем и переноску стекол
к месту их установки следует производить с применением соответствующих
безопасных приспособлений или в специальной таре.
11.6 Определение
опасных зон
При организации строительной площадки, размещении
участков работ транспортных средств следует установить опасные для людей зоны,
в пределах которых постоянно действуют или могут действовать опасные
производственные факторы.
К зонам постоянно действующих опасных
производственных факторов относятся:
·места, над которыми
происходит перемещение грузов грузоподъемными кранами;
·места перемещения машин
и оборудования или их рабочих органов и открытых двигающихся или вращающихся
частей.
К зонам потенциально действующих опасных
производственных факторов относятся:
·монтажные зоны, участки
территории вблизи строящегося здания или сооружения;
·этажи (ярусы) здании и
сооружений в одной захватке, над которыми происходит монтаж ( демонтаж)
конструкций или оборудования.
Зоны постоянно действующих опасных
производственных факторов во избежание доступа посторонних лиц должны быть
выделены ограждениями (ГОСТ 23407-78). Производство строительно-монтажных работ
в них зонах, как правило, не допускается.
Зоны потенциально действующих опасных
производственных факторов выделяются сигнальными ограждениями.
При производстве строительно-монтажных
работ в указанных опасных зонах осуществляется организационно-технические
мероприятия, обеспечивающие безопасность работающих.
Граница опасных зон вблизи движущихся
частей и рабочих органов, определяется расстояниям в пределах 5м. если другие
повышенные требования отсутствуют в паспорте и инструкции завода изготовителя.
Граница опасных зон работы вертикального
охватываем пространство возможного падения груза. Опасную зону следует
принимать для зданий до 20м - не менее 5м от конструкции подъемника.
Граница опасных зон в местах прохождения
временных электрических сетей определяется пространством, в пределах которого
рабочий может коснутся проводом монтируемых длинномерными деталями. Опасная
зона в этом случае определяется максимальной длинной детали плюс 1метр.
Расчет опасных зон работы крана
рассчитано и запроектировано в пункте определение зон влияния крана
организационно-технологической части дипломного проекта (смотри п.9).
11.7 Охрана
окружающей среды
Снижение воздействия па окружающую среду
осуществляется путем рассеивания вредностей через трубы с факельными выбросами.
Для создания санитарно-гигиенических
условий на застраиваемой территории выполняются работы по благоустройству и
озеленению.
В состав работ входит: строительство и
восстановление проездов и тротуаров, посадка деревьев - саженцев и устройство
газона. Все автодороги и тротуары запроектированы с асфальтобетонным покрытием,
что значительно уменьшает запыленность воздуха. Для предотвращения
заболачиваемости территории выполнена вертикальная планировка с нормативными
продольными уклонами к проектируемым дождеприемникам и дальнейшим сбросом воды
в очистные сооружения и ливневую канализацию.
В соответствии с СанПиН 2.2.1/2.1.1
1031-01 по санитарной классификации завод относится к III классу. Размер
санитарно-защитной зоны составляет 300м. Санитарно-защитная зона максимально
озеленяется на площади 50% от ее территории. Озеленение выполняется смешанными
древесно-кустарниковыми насаждениями, чередующимися с газонной посадкой.
При посадке деревьев (50%) используется
главная древесная порода, обладающая наибольшей санитарно-гигиенической
эффективностью, жизнеспобностью и устойчивостью по отношению к выбросам завода.
При проектировании данного объекта были
учтены все требования СНиП 11-01-95, а именно:
·при проведении
вертикальной планировки проектные отметки территории назначены исходя из
условий максимального сохранения естественного рельефа, почвенного покрова и
существующих древесных насаждений, отвода поверхностных вод со скоростями,
исключающими возможность эрозии почвы, минимального объема земляных работ с
учетом использования вытесняемых грунтов на площадке строительства;
·все строительные
материалы, используемые при строительстве, имеют сертификат качества и
экологической безопасности для применения на территории России;
·накопленный
строительный мусор и отходы будут в обязательном порядке утилизироваться или
вывозиться на территорию городской свалки;
·в связи с небольшим
количеством строительно-монтажных работ негативные воздействия на жизнь
городского населения будут минимальны;
·количество вредных
веществ, выбрасываемых автомобильным транспортом и строительными машинами, не
превышает предельно допустимых;
·после завершения
строительства вся окружающая территория будет благоустроенна, озеленена,
правильно (в соответствии с проектом) подобран набор пород деревьев, зеленых
насаждений.
Производство работ будет вестись с
обеспечением максимальной сохранности зеленых насаждений.
Зеленые насаждения, не подлежащие
вырубке на строительной площадке, должны выгораживаться оградой. Стволы
отдельно стоящих деревьев предохраняются от повреждения путем обшивки
пиломатериалами высотой не менее 2метров.
В период свертывания строительных работ
все строительные отходы необходимо вывезти с благоустраиваемой территории для
дальнейшей утилизации.
Использование переработанного
строительного мусора и вторичного щебня допускается при условии его
сертификации на предмет соответствия СНиПам и ГОСТам на инертные материалы и
части гранулометрического состава и содержания органических и вредных веществ.
После вывоза отсортированных отходов
строительства осуществляется механизированная уборка территории строительной
площадки с применением бульдозеров и поливочно-уборочной техники.
Образовавшийся в процессе уборки территории смёт загружается в отдельный
бункер-накопитель, который в последствии вывозится на захоронение. Все автотранспортные
средства (самосвалы и контейнеровозы, перевозящие открытые бункер накопители с
отходами) должны перед выездом оснащаться брезентовым тентом, а также
подвергаться мойке колес.
Сжигание горючих отходов и строительного
мусора на участке в пределах городской застройки запрещается. В проекте
предусматривается мойка колес автомашин. Мойка колес производится на посту
(ж.б. плите) одновременно с двух сторон по отдельным осям автомобиля.
Автомобиль заезжает на пост мойки по аппарели. По команде операторов моечной
установки автомобиль продвигается вперед для обмыва следующей оси. При мойке
колес и в момент прохождения автомобиля по аппарели с колес падают на аппарель
и ж.б. плиту комья глины (грязи). После рабочей смены требуется обязательная
уборка от грязи поста мойки и аппарели. Потребность в воде для мойки автомашин
– 0,2 л/сек или 720 л/час. За 1 час мойку колес могут пройти 4 машины.
12. Список
использованной литературы
1. ГЕСН
Сборники 2,4,6,7,8,10. Нормы времени и расценки на строительно-монтажные
работы. – М.: Стройиздат, 2001 г.
2. ГОСТ
21.101-97. СПДС. Основные требования к рабочей документации.
3. ГОСТ
21.501-93. СПДС. Правила выполнения архитектурно-строительных рабочих чертежей.
4. ЕНиР,
1987. Сборники 1-8,11,19,22,25.
5. Кузин
Н.Я. Проектирование и расчёт стальных ферм покрытий промышленных зданий:
Учебное пособие. – М.: изд-во АСВ, 1998. – 184 с.
6. Металлические
конструкции. Общий курс: Учебник для вузов / Е. И. Беленя, В. А. Балдин, Г. С.
Ведеников и др..; Под общ. ред. Е. И. Беленя. – 6-е изд., перераб. и доп. – М.:
Стройиздат, 1985. – 560с., ил.
7. Организация
и планирование строительного производства: Учеб. Для вузов по спец. «пром. и
гражд. стр-во»/Под ред. А.К.Шрейбера. – М.:Высш.шк.,1987.-368с.: ил.
8. Пособие
по проектированию стальных конструкций (к СНиП II-23-81*).
– М.: ЦИТП Госстроя СССР, 1986. – 148 с.
9. Проектирование
фундаментов зданий и подземных сооружений: Учеб. пособие / Под ред. Б. И.
Далматова; 2-е изд. – М.: Изд-во АСВ; СПб.: СПбГАСУ, 2001.-440с.; ил.
10. Проектирование
элементов балочной клетки: Учеб. пособие / Г. А. Нехаев: Тул. гос. ун-т. Тула.
1996. – 76с.
11. СНиП
1.04.03-85* Нормы продолжительности строительства и задела в строительстве
предприятий, зданий и сооружений.–М.: Стройиздат, 1986 г.
12. СНиП
2.01.07-85 Нагрузки и воздействия / Госстрой СССР. – М.: ЦИТП Госстроя СССР,
1987. 36 с.
13. СНиП
2.09.02-85. Производственные здания.
14. СНиП
3.01.01-85. Организация строительного производства.–М.: Стройиздат, 1986 г.
15. СНиП23-01-99.
Строительная климатология. М.: Стройиздат.2000.
16. СНиП
II-3-79*. Строительная теплотехника.
М.: Стройиздат.1998.
17. СНиП
II-23.81* Стальные конструкции /
Госстрой России. – М.: ГУП ЦПП, 2002. – 90 с.
18. СНиП
II-89-80* Генеральные планы
промышленных предприятий.
19. СНиП
III-4-80 Техника безопасности в
строительстве. – М.: Стройиздат, 1987.
20. Составление
смет в строительстве на основе сметно-нормативной базы 2001 года (практическое
пособие)/ П.В. Горячкин – Москва, Санкт-Петербург, 2003г.- 560с.
21. ФЕР-2001г.
Сборники