Оценка стоимости недвижимого имущества
ДЕПАРТАМЕНТ
ОБРАЗОВАНИЯ ГОРОДА МОСКВЫ
ГОСУДАРСТВЕННОЕ
БЮДЖЕТНОЕ ОБРАЗОВАТЕЛЬНОЕ УЧРЕЖДЕНИЕ
СРЕДНЕГО
ПРОФЕССИОНАЛЬНОГО ОБРАЗОВАНИЯ
СТРОИТЕЛЬНЫЙ
ТЕХНИКУМ № 12
КУРСОВАЯ
РАБОТА
Оценка
стоимости недвижимого имущества
Москва
2014
год
Содержание
Введение
1. Задание на оценку
2. Анализ наилучшего и наиболее эффективного
использования объекта недвижимости
. Определение стоимости делового центра
различными подходами к оценке недвижимости
.1 Оценка делового центра затратным подходом
3.2 Оценка делового центра сравнительным
подходом
3.3 Оценка делового центра доходным подходом
4. Согласование стоимостных показателей оценки
делового центра
Заключение
Список литературы
Ведение
Актуальность данной работы
заключается в том, что недвижимое имущество играет особую роль в экономической
и социально-культурной жизни общества страны, выступая в качестве важнейшего
экономического ресурса и играя роль той пространственной среды, в которой
осуществляется любая человеческая деятельность. Как бы ни был высок уровень
индустриального и интеллектуального развития страны, земля и недвижимость
всегда составляет весомую часть национального богатства. Поэтому развитие рынка
недвижимости имеет важное значение, как для юридических, так и физических лиц,
для оживления инвестиционной деятельности, для удовлетворения потребностей
общества и субъектов хозяйствования в недвижимости, для развития ипотечного
кредитования, а в конечном итоге - для развития экономики страны.
Изучение выбранной темы
предполагает достижение следующей цели исследовать основные теоретические и
практические аспекты оценки стоимости объекта коммерческой недвижимости. В
соответствии с определенной целью в представленной курсовой работе были
поставлены и решены следующие задачи:
идентифицировать объекта оценки:
и составить задание на оценку;
проанализировать наилучший и
наиболее эффективный вариант использования объекта оценки;
определение стоимости объекта
оценки различными подходами к оценке;
обобщить полученный материал в
данной работе и сделать выводы.
Нормативно-правовую базу
курсовой работы составили законодательные акты Российской Федерации и
региональных органов исполнительной власти по исследуемым вопросам, комплекс
методических указаний, инструкций и материалов по оценке недвижимости,
Международные и Европейских Стандарты Оценки, а также стандарты и другие
документы Российского Общества Оценщиков.
1. Постановка
задачи оценки
1.1.Общая
информация, идентифицирующая объект оценки
Идентификация объекта оценки
представляет собой процесс описания основных характеристик объектов оценки,
таких как адрес, полное юридическое описание, точное местонахождение и границы
недвижимости.
Идентификацию объекта
недвижимости целесообразно составлять на основе предоставленной заказчиком
информации. Необходимая информация может быть получена из государственного
реестра данных обследования земельных участков в соответствии с местным и
государственным законодательством.
Важно отметить, что
федеральными стандартами оценки[1] предъявляются четкие требования к
составлению отчета об оценке, в том числе к идентификации объекта оценки:
принципы существенности и
обоснованности - отчет должен содержать всю информацию, оказывающую влияние на
формирование стоимости объекта оценки; данная ценообразующая информация, должна
быть подтверждена[2];
принцип однозначности -
содержание отчета об оценке не должно вводить в заблуждение пользователей
отчета, а также допускать неоднозначного толкования отчета;
принципы проверяемости и
достаточности - содержание отчета об оценке, состав и последовательность
изложения ценообразующей информации должны позволить пользователям отчета
воспроизвести расчет стоимости объекта оценки и привести его к результатам,
содержащимся в отчете. Объект оценки
представляет собой одноэтажный деловой центр, расположенный в средне-отдаленном
районе города Москвы на второстепенной улице (рисунок 1)
Рисунок 1. Местоположение
делового центра
Транспортная доступность
характеризуется как хорошее, ближайшее станции метро: Профсоюзная - 650 м,
Академическая - 700 м, в 200 м расположены автобусные остановки.
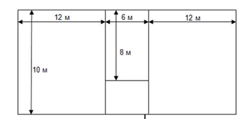
Площадь оценки составляет 300
метров, конструктивной особенностью объекта оценки является то, что он состоит
из трех помещений, два из которых площадью 120 кв.м (административные помещения)
и одно помещение площадью 48 кв.м (хозяйственное помещение) ( рисунок 3)
Рисунок 3. Конструктивная
особенность делового центра.
На дату осмотра объект оценки
используется как деловой центр. Физическое состояние конструкций объекта оценки
характеризуется как работоспособное, когда конструкции имеют лишь допустимые
отклонения, дефекты и повреждения, наличие таких дефектов и повреждений, при
которых несущая способность конструкций оказывается обеспеченной при действии
фактических расчетных нагрузок. На момент осмотра помещение находится в хорошем
состоянии, накопленный износ 17,48%.
Деловой центр расположен на
земельном участке, площадью 500 кв.м., асфальтированная часть которого
составляет 40% и представляет собой наземный паркинг.
1.2 Имущественные
права на объект оценки
Объект оценки принадлежит
Аропеятяну А.В. на праве собственности.
Согласно статье 209 «Содержание
права собственности» Гражданского кодекса Российской Федерации, право
собственности включает права владения, пользования и распоряжения имуществом.
Собственник вправе по своему усмотрению совершать в отношении принадлежащего
ему имущества любые действия, не противоречащие
закону и иным правовым актам и
не нарушающие права и интересы других лиц, в том числе отчуждать свое имущество
в собственность другим лицам; передавать им, оставаясь собственником права
владения, пользования и распоряжения имуществом; отдавать имущество в залог и
обременять его другими способами, распоряжаться им
иным образом.
Право собственности,
подтверждаются следующими документами:
. Свидетельство о собственности
. Свидетельством на право
собственности на землю
. Кадастровый паспорт с
экспликацией и поэтажным планом, выписка из технического паспорта, справка из
БТИ)
1.3 Задание на
оценку
Таблица 1.
Задание
на оценку
|
Основание
для проведения оценки
|
Договор
№ 18 на оценку от 18 февраля 2014 года между Аропеятян А.В. и ООО «Аналит»
|
|
Объект
оценки
|
Помещение
делового центра. Площадь 300 кв. м.
|
|
Адрес
объекта оценки
|
*10021,
Московская область, г. Москва,, ул. Воровского, д. 121
|
|
Правообладатель
|
Аропеятян
А.В.
|
|
Цель
оценки
|
Обеспечение
доли кредита (залоговая база)
|
|
Вид
стоимости
|
Залоговая
стоимость определяется как максимальная сумма обязательств клиента, которую
может обеспечить данное имущество, данная сумма определяется как рыночная
стоимость залога за вычетом затрат на его реализацию и возможных скидок на
скорость реализации, которая составляет в данной работе 50%.
|
|
Имущественные
права на объект оценки
|
Право
собственности
|
|
Наилучшее
и наиболее эффективное использование
|
По
назначению
|
|
Текущее
использование объекта
|
По
назначению
|
|
Применяемые
стандарты оценки
|
Федеральные
стандарты оценки ФСО
|
|
Дата
осмотра объекта оценщиком
|
20
февраля 2014 года
|
|
Дата
оценки (дата проведения оценки)
|
20
февраля 2014 года
|
|
Дата
составления отчета
|
24
февраля 2014 года
|
|
Допущения
и ограничения, на которых должна основываться оценка
|
нет
|
2. Анализ
наилучшего и наиболее эффективного использования делового центра
Заключение о наилучшем
использовании отражает мнение оценщика в отношении наилучшего и наиболее
эффективного использования объекта оценки, исходя из анализа состояния рынка.
Понятие «Наилучшее и наиболее эффективное использование», применяемое
подразумевает такое использование, которое из всех разумно возможных, физически
осуществимых, финансово-приемлемых, должным образом обеспеченных и юридически
допустимых видов использования объекта обеспечивает максимально высокую текущую
стоимость будущих денежных потоков от эксплуатации недвижимости.
Как видно из приведенного выше
определения наилучшее и наиболее эффективное использование недвижимости
определяется путем анализа соответствия потенциальных вариантов ее
использования следующим критериям:
ПОТЕНЦИАЛ МЕСТОПОЛОЖЕНИЯ -
доступность участка (подъезд к нему), неудобства расположения земельного
участка, скрытые опасности расположения.
РЫНОЧНЫЙ СПРОС - насколько
планируемый вариант использования земельного участка представляет интерес на
данном рынке и в данной местности. Анализируется уровень спроса и предложения
на все объекты недвижимости различного функционального назначения.
Анализируются достоинства недвижимости, обеспечивающие её конкурентно
способность и недостатки.
ДОПУСТИМОСТЬ С ТОЧКИ ЗРЕНИЯ
ЗАКОНОДАТЕЛЬСТВА (ПРАВОВАЯ ОБОСНОВАННОСТЬ) - характер предполагаемого
использования не противоречит законодательству, ограничивающему действия
собственника участков, и положениям зонирования.
ФИЗИЧЕСКАЯ ВОЗМОЖНОСТЬ -
возможность возведения зданий с целью наилучшего и наиболее эффективного
использования их на рассматриваемом земельном участке.
ФИНАНСОВАЯ ОПРАВДАННОСТЬ -
рассмотрение тех физически осуществимых и разрешенных законом вариантов
использования, которые будут приносить доход.
ОПТИМАЛЬНЫЙ ВАРИАНТ
ИСПОЛЬЗОВАНИЯ - рассмотрение того, какой из физически осуществимых, правомочных
и финансово оправданных вариантов использования Объекта будет приносить
максимальный чистый доход или максимальную текущую стоимость.
Опираясь на анализ наиболее
типичного использования нежилых зданий и помещений, расположенных в рассматриваемой
части города, а также исходя из технических особенностей Объекта, я решил
рассмотреть в ходе анализа наилучшего и наиболее эффективного использования
объекта, следующие виды использования, представленные в таблице 2.
Таблица 2.
Виды
коммерческой недвижимости и уровень арендных ставок за месяц, р./м2
|
Тип
здания
|
Назначение
|
Площадь
|
Местоположение
(с/о)
|
Месячный
доход
|
|
Административное
|
Офис,
банк
|
300
кв.м.
|
450
|
135000
|
|
Складское
|
Склад,
автомоб.гараж
|
|
300
|
90000
|
|
Производственное
|
Пищевое
производство, СТО
|
|
350
|
105000
|
|
Общественного
питания
|
Столовая,
ресторан, кафе
|
|
400
|
120000
|
|
Торговое
|
Магазин,
супермаркет,
|
|
500
|
150000
|
При анализе оптимального
варианта использования я провел качественный анализ возможных видов
использования объектов, удовлетворяющих вышеописанным критериям.
АДМИНИСТРАТИВНОЕ НАЗНАЧЕНИЕ
Учитывая, что уровень арендных
ставок за аналогичные помещения оцениваемого объекта при использовании их под
административное назначения соответствует действительности, я принял решение,
что административное назначение объекта соответствует критерию максимальной
эффективности. Факторы, положительно сказывающиеся на использовании
оцениваемого объекта в качестве делового центра:
) Оцениваемый объект
представляет собой нежилые помещения;
) Административная планировка;
) Расположение объекта недалеко
от центра, хорошая транспортная доступность;
) Наличие парковки
) Финансового оправдано
(месячный доход 135 тыс. рублей )
ПРОИЗВОДСТВЕННОЕ И СКЛАДСКОЕ
НАЗНАЧЕНИЯ.
Факторы, отрицательно
сказывающиеся на использовании оцениваемого объекта в качестве складских и
производственных помещений:
) Конструктивная особенность
здания не позволяет использовать объект оценки в качестве складских и
производственных помещений.
) Финансово неоправданно
ТОРГОВОЕ НАЗНАЧЕНИЕ
Факторы, положительно
сказывающиеся на использовании оцениваемого объекта под торговое помещение:
оцениваемый объект представляет собой нежилое помещение;
Факторы, отрицательно
сказывающиеся на использовании оцениваемого объекта под торговое помещение:
) Отсутствие витрин;
) Наличие только одного входа;
ОБЩЕСТВЕННОГО ПИТАНИЯ
Факторы, отрицательно
сказывающиеся на использовании оцениваемого объекта в качестве складских и
производственных помещений:
) Конструктивная особенность
здания не позволяет использовать объект оценки в качестве складских и
производственных помещений.
) Финансово неоправданно
) Санитарно-эпидемиологические
нормы не позволяют использовать объект в качестве помещений общественного
питания.
Определение факторов наилучшего
и наиболее эффективного использования сведены в таблицу 3.
Таблица 3.
Факторов
наилучшего и наиболее эффективного использования
|
Факторы
|
Административное
помещение
|
Произв-ое
и складское назначения
|
Торговые
помещения
|
Помещение
общественного питания
|
|
Потенциал
местоположения
|
+
|
-
|
+
|
+
|
|
Правовая
обоснованность
|
+
|
+
|
+
|
-
|
|
Физическая
возможность
|
+
|
-
|
-
|
-
|
|
Финансовая
оправданность
|
+
|
-
|
+
|
-
|
|
Максимальная
эффективность
|
+
|
-
|
-
|
-
|
Исходя из вышеуказанных
критериев анализа наилучшего использования, месторасположения, физического
состояния и ситуации, которая сложилась на рынке нежилой недвижимости, а также
учитывая проведенный качественный анализ возможных функций использования
оцениваемого объекта, я пришел к выводу, что наилучшим и наиболее эффективным
использованием является использование в качестве делового центра.
3. Определение
стоимости делового центра различными подходами
недвижимость
затратный доходный стоимостный
Определение стоимости
осуществляется с учетом всех факторов, существенно влияющих как на рынок
недвижимости в целом, так и непосредственно на ценность рассматриваемой
собственности. При определении стоимости недвижимости обычно используют три
основных подхода: затратный подход, сравнительный подход, доходный подход.
Использование трех подходов
приводит к получению трех различных величин стоимости одного и того же объекта.
После анализа результатов, полученных разными подходами и методами, проводится
согласование результатов и устанавливается оценка стоимости недвижимости,
исходя из того, какой метод(ы) наиболее соответствует оцениваемому объекту.
Данный расчет проводится методом математического взвешивания с присвоением
каждому из подходов весовых коэффициентов.
3.1 Оценка делового
центра затратным подходом
В основе затратного подхода
лежит принцип замещения, согласно которому инвестор не заплатит за объект
недвижимости сумму большую, чем та, в которую обойдется получение
соответствующего участка под застройку и возведение аналогичного по назначению
и качеству объекта без чрезмерной задержки. В затратном подходе стоимость
недвижимости равна стоимости земли плюс стоимость улучшений на участке за
вычетом накопленного износа.
Процедура оценки включает
следующие последовательные шаги:
. Расчет стоимости приобретения
свободной и имеющейся в распоряжении земли в целях её оптимального использования.
. Расчет затрат на возведение
новых аналогичных объектов, получение восстановительной стоимости объекта.
. Определение величины
накопленного износа здания.
. Уменьшение восстановительной
стоимости на сумму износа для получения остаточной стоимости здания.
. Добавление к рассчитанной
остаточной стоимости здания стоимости земли.
Расчет стоимости приобретения
свободной и имеющейся в распоряжении земли в целях её оптимального
использования.
Для оценки стоимости земельного
участка используется метод прямого сравнения продаж.
Первым этапом метода прямого
сравнения является изучение рынка и сбор информации об объектах-аналогах, т.е.
таких объектах, которые схожи с оцениваемым (таблице 4)
Таблица 4
Данные
о продажах земельных участков
|
Характеристики
|
А1
|
А2
|
А3
|
А4
|
А5
|
А6
|
|
Цена
продажи, тыс.р
|
1650
|
4500
|
6020
|
4200
|
4375
|
2025
|
|
Размер,
кв.м.
|
1000
|
5000
|
4300
|
2800
|
3500
|
1500
|
|
Права
собственности
|
Частная
|
Сервитут
|
Государственная
|
Сервитут
|
Государственная
|
Частная
|
|
Условия
финансирования
|
Типичные
|
Кредит
|
Типичные
|
Типичные
|
Типичные
|
Кредит
|
|
Условия
продаж
|
Срочная
продажа
|
Срочная
продажа
|
Типичные
|
Сделка
м/у партнерами
|
Типичные
|
Приобретение
соседнего уч для расширения
|
|
Дата
продажи
|
3
мес. назад
|
9
мес. назад
|
Наст.
время
|
6
мес. назад
|
3
мес. назад
|
6
мес. назад
|
|
Местоположение
|
цен
|
отд.
|
с/о
|
цен
|
отд.
|
с/о
|
|
Асфальтобетонное
покрытие
|
До
10%
|
До
30%
|
До
50%
|
До
30%
|
До
50%
|
До
10%
|
|
Несущая
способность грунтов
|
Низк.
|
Выс.
|
Сред.
|
Сред.
|
Низк.
|
Выс.
|
Единицы сравнения будет цена 1
м2.
Следующим этапом метода прямого
сравнения продаж является внесение поправок на выделенные различия в
ценообразующих характеристиках сравниваемых объектов. Основное правило внесения
процентных поправок: если оцениваемый объект лучше сопоставимого аналога, то к
цене последнего вносится повышающий коэффициент, если хуже -
понижающий
коэффициент. [7] Расчет скорректированных цен земельных участков представлен в
таблице 5
Таблица 5.
Расчет
скорректированных цен земельных участков
|
Элемент
сравнения
|
Об.
оценки
|
А1
|
А2
|
А3
|
А4
|
А5
|
А6
|
|
Цена
продажи, т.р
|
|
1650
|
4500
|
6020
|
4200
|
4375
|
2025
|
|
Размер,
кв.м.
|
500
|
1000
|
5000
|
4300
|
2800
|
3500
|
1500
|
|
Цена
единицы сравнения, т.р/ кв.м
|
|
1,65
|
0,9
|
1,4
|
1,5
|
1,25
|
1,35
|
|
Оцениваемые
права собственности: наличие сервитута снижает стоимость на 12 %;
государственные объекты стоят на 10 % меньше частных
|
Частная
|
Частная
|
Сервитут
|
Государственная
|
Сервитут
|
Государственная
|
Частная
|
|
-
процент отличия
|
|
|
12,00
|
10,00
|
12,00
|
10,00
|
|
|
-
корректировка, т.р
|
|
|
0,11
|
0,14
|
0,18
|
0,13
|
|
|
-скорр.цена,т.р
|
|
1,65
|
1,01
|
1,54
|
1,68
|
1,38
|
1,35
|
|
Условия
финансирования: кредиты под 15 %
|
Кредит
|
Типичные
|
Кредит
|
Типичные
|
Типичные
|
Типичные
|
Кредит
|
|
-
процент отличия
|
|
15
|
|
15
|
15
|
|
15
|
|
-
корректировка, т.р
|
|
0,2475
|
|
0,231
|
0,252
|
|
0,2025
|
|
-скорр.цена,т.р
|
|
1,90
|
1,01
|
1,77
|
1,93
|
1,38
|
1,55
|
|
Условия
продаж: срочная продажа изменяют цену на 10 %, при сделке между партнерами по
бизнесу цена была занижена на 8 %, особая заинтересованность покупателя при
приобретении соседнего позволила продавцу завысить цену на 7 %
|
Типичные
|
Срочная
продажа
|
Срочная
продажа
|
Типичные
|
Сделка
м/у партнерами
|
Типичные
|
|
-
процент отличия
|
|
10
|
10
|
|
8
|
|
-7,00
|
|
-
корректировка, т.р
|
|
0,19
|
0,10
|
|
0,15
|
|
-0,11
|
|
-скорр.
цена, т.р
|
|
2,09
|
1,11
|
1,77
|
2,09
|
1,38
|
1,44
|
|
Дата
продажи: за 3 мес. цены на рынке возросли на 2 %, за 6 мес. - на 4%, за 9мес-
на 8 %
|
Наст.
|
3
мес. назад
|
9
мес. назад
|
Наст.
|
6
мес. назад
|
3
мес. назад
|
6
мес. назад
|
|
-
процент отличия
|
|
2
|
8
|
|
4
|
2
|
4
|
|
-
корректировка, т.р
|
|
0,04
|
0,09
|
|
0,08
|
0,03
|
0,06
|
|
-скорр.
цена, т.р
|
|
2,13
|
1,20
|
1,77
|
2,17
|
1,41
|
1,50
|
|
Местоположение:
Цен.и с/о - 20 %, с/о и отд. -10%,
|
с/о
|
цен
|
отд.
|
с/о
|
цен
|
отд.
|
с/о
|
|
-
процент отличия
|
|
-20
|
10
|
|
-20
|
10
|
|
|
-
корректировка, т.р
|
|
-0,43
|
0,12
|
|
-0,43
|
0,14
|
|
|
-скорр.
цена, т.р
|
|
1,70
|
1,32
|
1,77
|
1,74
|
1,55
|
1,50
|
|
Асфальтобетонное
покрытие: разница в ценах при наличии асфальтобетонного покрытия на площади
до 30 % по сравнению с площадью до 50 % - 3 %, до 10 % по сравнению с
площадью до 50 % - 5 %;
|
До
50%
|
До
10%
|
До
30%
|
До
50%
|
До
30%
|
До
50%
|
До
10%
|
|
-
процент отличия
|
|
5,00
|
3,00
|
|
3,00
|
|
5,00
|
|
-
корректировка, т.р
|
|
0,09
|
0,04
|
|
0,05
|
|
0,08
|
|
-скорр.
цена, т.р
|
|
1,79
|
1,36
|
1,77
|
1,79
|
1,55
|
1,58
|
|
Несущая
способность грунтов: разница в ценах между низкой и средней несущей
способностью грунтов - 3 %, средней и высокой - 4 %
|
Сред.
|
Низк.
|
Выс.
|
Сред.
|
Сред.
|
Низк.
|
Выс.
|
|
-
процент отличия
|
|
7,00
|
|
4,00
|
4,00
|
7,00
|
|
|
-
корректировка, т.р
|
|
0,05
|
-0,05
|
|
|
0,05
|
-0,06
|
|
-скорр.
цена, т.р
|
|
1,84
|
1,31
|
1,77
|
1,79
|
1,59
|
1,51
|
|
Итоговая
скорректированная цена, т.р.
|
|
1,84
|
1,31
|
1,77
|
1,79
|
1,59
|
1,51
|
Для вывода о стоимости
земельного участка необходимо провести согласование полученных
скорректированных цен. Согласование - это не усреднение полученных
промежуточных результатов, а процесс взвешивания и сравнения показателей с их
характеристиками. Согласование проводится в соответствии с имеющимися отличиями
аналогов от оцениваемого объекта.
Суждение о стоимости объекта
применяем в результате анализа четырех показателей:
среднего арифметического
значения скорректированных цен;
модального значения. Мода -
наиболее часто встречающееся значение в числовом ряду. Могут быть взяты
наиболее близкие часто встречающиеся вместе значения;
медианного значения. Медиана -
середина ранжированного числового ряда. Для определения медианы необходимо
ранжировать ряд (записать все цены от минимального до максимального значения и
выбрать значение, находящееся в центре ряда, либо среднее между двумя - при
четном количестве значений);
скорректированной цены самого
похожего на оцениваемый объект аналога. Чем меньше количество и величина
поправок, тем больше аналог похож на объект оценки.
Стоимость земельного участка в
итоге принимается как среднее арифметическое между значениями приведенных выше
показателей. Все расчеты сведены в таблицу 6.
Таблица 6.
Стоимость
земельного участка, тыс. рублей
|
Наименование
|
Сумма,
тыс. руб.
|
|
Среднее
арифметическое значение скорректированных цен
|
1,64
|
|
Модальное
значение
|
(1,79+1,77)/2=1,78
|
|
Медианное
значение
|
(1,59+
1,77)/2=1,68
|
|
Скорректированная
цена самого похожего на оцениваемый объект аналога
|
1,77
|
|
Среднее
арифметическое
|
1,72
|
|
Стоимость
оцениваемого земельного участка (500 кв.м.)
|
1,72*500
=860
|
Стоимость оцениваемого
земельного участка составляет 860 тыс. рублей.
Расчет затрат на возведение
новых аналогичных объектов, получение восстановительной стоимости объекта.
Стоимость строительства можно
оценить двумя способами: по стоимости восстановления или по стоимости
замещения.
Стоимость восстановления
определяется как стоимость создания точной копии оцениваемого сооружения с
использованием тех же материалов и спецификаций, но по текущим ценам.
Стоимость замещения
определяется как стоимость строительства на этом же участке современного сооружения
эквивалентной полезности с использованием текущих стандартов, материалов,
дизайна и текущих цен.
В данном отчете стоимость
строительства оценивается по полной стоимости восстановления.
Один из методов оценки
стоимости нового строительства - метод укрупненных обобщенных показателей
стоимости на единицу сравнения.
Для
получения стоимости нового строительства объекта оценки величина укрупненного
обобщенного показателя стоимости умножается на количество единиц сравнения
объекта оценки. В качестве единицы сравнения в данной работе принимается 1
кв.м.
При
расчете стоимости нового строительства необходимо учесть следующую информацию:
материалы рассчитывается в соответствии с расходом по проектной документации,
нормативными материалами и на основе данных об аналогичных объектов,
расположенных в Москве на дату проведения оценки; заработная плата составляет
35 % от стоимости материалов; накладные расходы - 25 % от прямых затрат;
прибыль подрядчика - 12 % от суммы прямых и накладных затрат; оплата услуг
проектно-сметных организаций - 5 % от прямых затрат; маркетинговые, рекламные,
страховые расходы - 6 % от цены подрядчика; затраты на покупку энергетических
мощностей - 10 % от цены подрядчика; налоги (НДС) - 18 % от суммы всех
предыдущих затрат; прибыль инвестора - 30 % от понесенных расходов.
Расчёт
величины укрупненного обобщенного показателя стоимости на 1 кв.м. выполнен в
таблице 6
Таблица
6. Расчёт укрупненного
обобщенного показателя стоимости при строительстве здания на 1 кв.м. в тысячах
рублей.
|
Наименование
|
Затраты
|
|
1.
|
Прямые
затраты, в том числе
|
2,77
|
|
-
материалы
|
2,05
|
|
-
заработная плата
|
0,72
|
|
2
|
Накладные
расходы
|
0,69
|
|
3
|
прибыль
подрядчика
|
0,42
|
|
4
|
Итого
цена подрядчика
|
3,87
|
|
5
|
Косвенные
затраты
|
|
|
-оплата
услуг проектно-сметных организаций
|
0,14
|
|
-
маркетинговые, рекламные, страховые расходы
|
0,23
|
|
-
затраты на покупку энергетических мощностей
|
0,39
|
|
-
налог
|
0,83
|
|
Итого
затраты инвестора
|
5,47
|
|
6
|
Прибыль
инвесторы
|
1,64
|
|
7
|
Итого
укрупненный обобщенный показателя стоимости
|
7,11
|
|
8
|
Количество
единиц сравнения объекта оценки
|
300,00
|
|
9
|
Стоимость воспроизводства
|
2132,01
|
Таким
образом, стоимость нового строительства составит 2132,01 тысяч рублей.
Определение
величины накопленного износа здания.
Износ - это потеря стоимости
из-за ухудшения физического состояния объекта и/или морального устаревания.
Накопленный износ определяется как разница между текущей стоимостью
восстановления (замещения) и реальной рыночной стоимостью объекта на дату
оценки.
При определении общей величины
накопленного износа методом разбивки используется формула:
ИН = 1 - (1 - ИФИЗ/100) х (1 -
ИФУНК/100) х (1 - ИВН/100), (2)
где ИФИЗ- физический износ
здания, %;
ИФУНК - функциональный износ
здания, %;
ИВН- внешний износ здания, %
В зависимости от причин,
вызывающих потерю стоимости, износ подразделяется на три типа: физический
износ, функциональный износ, износ внешнего воздействия.
Физический износ - это потеря
стоимости за счёт естественных процессов во время эксплуатации. Он выражается в
старении и изнашивании, разрушении, гниении, ржавлении, поломке и
конструктивных дефектах. Такой тип износа может быть как устранимым, так и
неустранимым. Устранимый физический износ (т.е. износ, который может быть
устранён в результате текущего ремонта) включает в себя плановый ремонт или
замену частей объекта в процессе повседневной эксплуатации. Неустранимый
физический износ- это износ, исправлять который нецелесообразно с экономической
точки зрения, т.е. затраты на его устранение больше, чем добавляемая стоимость
сооружения.
Физический износ определяется
нормативным методом. Метод предполагает использование ВСН 53- 86(р) «Правила
оценки физического износа жилых зданий» (таблица 7).
Таблица 7.
Количественная
оценка физического и износа
|
Признаки
износа
|
Количественная
оценка
|
Физический
износ, %
|
Примерный
состав работ
|
|
Фундаменты
ленточные каменные
|
|
Мелкие
трещины в цоколе и под окнами первого этажа
|
Ширина
трещин до 2 мм
|
0-20
|
Расшивка
трещин
|
|
Стены
кирпичные
|
|
Глубокие
трещины и отпадение штукатурки местами, выветривание швов
|
Ширина
трещин до 2 мм, глубина до 1/3 толщины стены, разрушение швов на глубину до 1
см на площади до 10%
|
11-20
|
Ремонт
штукатурки или расшивка швов, очистка фасадов
|
Для оценки физического износа
необходимо изучить степень повреждения конструктивных элементов здания (таблица
8). Расчеты физического износа приведены в таблице 9
Таблица 8.
Характеристика
конструктивных элементов
|
Конструктивный
элемент
|
Характеристика
элемента
|
|
Ленточный
каменный
|
Ширина
трещин до 2 мм
|
|
Кирпичные
|
Ширина
трещин до 2 мм
|
Таблица 9.
Расчет
физического износа здания
|
№
|
Конструктивные
элементы
здания
|
Удельный
вес по типам зданий.
|
Износ
конструктивного элемента, %
|
Итого
износ,
%
|
|
1
|
Фундаменты
|
0,04
|
15
|
0,6
|
|
2
|
Стены
|
0,28
|
17
|
4,76
|
|
3
|
Перекрытия
|
0,16
|
7
|
1,12
|
|
4
|
Кровля
|
0,13
|
15
|
1,95
|
|
5
|
Полы
|
0,07
|
13
|
0,91
|
|
6
|
Проемы
|
0,1
|
10
|
1
|
|
7
|
Отделочные
работы
|
0,07
|
14
|
0,98
|
|
8
|
Инженерное
оборудование
|
0,11
|
13
|
1,43
|
|
9
|
Прочие
работы
|
0,04
|
11
|
0,44
|
|
Итого
|
1
|
|
13,19
|
Физический износ делового
центра определен в размере 13,19 %, состояние оцениваемого здания хорошее
Функциональный (моральный)
износ - это потеря стоимости вследствие относительной неспособности данного
сооружения обеспечить полезность по сравнению с новым сооружением, созданным
для таких же целей. Он обычно вызван плохой планировкой, несоответствием
техническим и функциональным требованиям по таким параметрам как размер, стиль,
срок службы и т.д. Функциональный износ объекта оценки составляет 2 %.
Внешний
(экономический) износ характеризует ущерб, нанесенный стоимости недвижимости
внешними по отношению к ней факторами (макроэкономических, отраслевых,
региональных и др.). Внешний износ
объекта оценки составляет 3 %.
Процентное значение
накопленного износа определяется по формуле (2) и составляет:
ИН = 1 - (1 - 13,19/100) х (1 -
2/100) х (1 - 3/100) = 0,1748 или 17,48%.
Накопленный износ делового
центра составляет 17,48%.* 2132,01 тысяч рублей = 372,64 тыс. рублей.
Итоговая стоимость делового
центра
Стоимость объекта оценки
затратным подходом предсьавляет собой сумму стоимости земеленьного участка и
стоимости восстановления, усеньшенная на стоимость накопленного износа: 860
тысяч рублей + 2132,01 тысяч рублей - 372,64 тыс. рублей = 2619,37 тысяч
рублей.
Таким образом, стоимость
делового центра затратным подходом на дату оценки составит 2619,37 тысяч рублей.
3.2 Оценка делового
центра сравнительным подходом
Сравнительный подход -
совокупность методов оценки стоимости объекта оценки, основанных на сравнении
объекта оценки с объектами - аналогами объекта оценки, в отношении которых
имеется информация о ценах. Объектом - аналогом объекта оценки для целей оценки
признается объект, сходный объекту оценки по основным экономическим,
материальным, техническим и другим характеристикам, определяющим его стоимость.
Сравнительный подход базируется на рыночной информации и учитывает текущие
действия продавца и покупателя.
Одним из методов данного
подхода является метод прямого сравнения продаж.
Метод сравнения продаж наиболее
действителен для объектов недвижимости, по которым имеется достаточное
количество информации о недавних сделках купли-продажи. Любое отличие условий
продажи сравниваемого объекта от типичных рыночных условий на дату оценки
должно быть учтено при анализе. Поэтому при применении метода сравнения продаж
необходимы достоверность и полнота информации. В данном случае рассматривались
как цены предложений так и цены продаж объектов.
Применение метода сравнения
продаж заключается в последовательном выполнении следующих действий:
•подробное исследование рынка с
целью получения достоверной информации о всех факторах, имеющих отношение к
объектам сравнимой полезности;
•определение подходящих единиц
сравнения и проведение сравнительного анализа по каждой единице;
•сопоставление исследуемого
объекта с выбранными объектами сравнения с целью корректировки их продажных цен
или исключения из списка сравнимых;
•приведение ряда показателей
стоимости сравнимых объектов к одному или к диапазону рыночной стоимости
исследуемого объекта.
При корректировке продажных цен
объектов сравнения все поправки делаются от объекта сравнения к объекту оценки.
В оценочной практике принято
выделять девять основных элементов сравнения, которые должны анализироваться в
обязательном порядке: права собственности на недвижимость; условия
финансирования; условия продажи; местоположение, транспортная доступность и др.
Первые четыре корректировки
определяют цену продажи объекта сравнения при нормальных рыночных условиях на
дату оценки и являются базой для остальных корректировок.
В то же время, основными
проблемами, с которыми приходится сталкиваться при выполнении процедур
сравнительного подхода, являются:
.Невозможность проверки
выполнения всех условий и требований, необходимых для того, чтобы цена сделки
по продаже объекта недвижимости могла считаться рыночной;
.Недостаточная полнота данных о
физических и экономических характеристиках объектов-аналогов;
.Отсутствие критерия подбора
аналогов из базы данных, так как сравнивать приходиться по большому числу
факторов;
Первые две проблемы являются
труднопреодолимыми, так как информация подобного рода относится к разряду
коммерческих тайн, и, следовательно, доступ к ней крайне ограничен.
Что касается вопроса
методологии расчета поправок к стоимости объектов-аналогов, то несмотря на
существование разнообразных процедур, применяемых для расчета корректирующих
коэффициентов, приходится все еще ограничиваться экспертным методом, который
базируется на профессиональном опыте и интуиции.
Предполагается, что условия
сделки и состояние рынка были похожи. В качестве единицы сравнения принимается
все здание. Данные о продажах сопоставимых объектов приведены в таблицах 10
Таблица 10.
Данные
о продажах коммерческой недвижимости
|
Аналоги
|
Площадь,
кв.м.
|
Местоположение
|
Транспортная
доступность
|
Состояние
|
|
А1
|
345
|
с/о
|
гл.
|
хорошее
|
|
А2
|
225
|
с/о
|
гл.
|
удовлетворительное
|
|
А3
|
540
|
с/о
|
втр.
|
хорошее
|
|
А4
|
195
|
отд.
|
втр.
|
хорошее
|
|
А5
|
420
|
отд.
|
гл.
|
удовлетворительное
|
|
А6
|
390
|
отд.
|
хорошее
|
|
А7
|
600
|
цен.
|
гл.
|
хорошее
|
|
А8
|
150
|
цен.
|
гл.
|
удовлетворительное
|
|
А9
|
270
|
цен.
|
втр.
|
хорошее
|
Цена продажи, приведенная к
оцениваемому объекту по площади и стоимости оборудовании (Цкх), производится по
всем аналогам и определяется по следующей формуле:
Цкх= ( А- О ) / S *Поц,
А - цена аналога, О - стоимость
оборудования, S - площадь аналога, Поц - площадь оцениваемого объекта
Поправки на состояние объекта и
условия транспортной доступности определяются путем анализа подобранных
аналогов методом парных продаж.
Под парной продажей
подразумевается продажа двух объектов, в идеале являющихся точной копией друг
друга, за исключением одной характеристики, наличием которой и объясняется
разница в ценах этих объектов.
При определении поправок
необходимо учесть:
) поправки
определяются исходя из цен, приведенных к оцениваемому объекту по
количественным характеристикам;
) подбираются
пары аналогов, имеющие только одно отличие, например одинаковое местоположение и
транспортная доступность, но разное состояние;
) при
определении поправок по той или иной характеристике всегда делить цены аналогов
с одинаковой с объектом оценки характеристикой на цену аналога с отличающейся
характеристикой.
Расчет скорректированных цен
объектов коммерческой недвижимости необходимо провести по форме таблице 11
. Корректировка по
местоположению. На основании сравнительного анализа цен продаж известно, что
различия в ценах аналогичных объектов коммерческой недвижимости за счет
местоположения следующие:
% между расположенными в
отдаленном районе и районе средней отдаленности;
10 % между центром и районом
средней отдаленности.
Для Аналог 1,2,3
Аналог 1,2,3 расположен в
районе средней отдаленности, объект оценки
центральном. Следовательно, необходимо
провести повышающую корректировку на 10%.
Для Аналог 4,5,6
Аналог 4,5,6 расположен в
отдаленном районе, объект оценки в центре. Следовательно, необходимо провести
повышающую корректировку на 25%.
. Корректировка по состоянию:
А3 /А2= 3354/ 3309 = 1,01
А4/А5 = 2942 / 2724 = 1,08
А9/А8 = 3812 / 3632 = 1,05
Среднее арифметическое: 1,05
. Корректировка на транспортную
доступность:
А3 /А1 = 3354/ 3600 = 0,93
А4/А6 = 2942 / 3081 = 0,95
А9/А7 = 3812 / 3983 = 0,96
Среднее арифметическое: 0,95
. Скорректированные цены
аналогов определяются с учётом всех поправок и рассчитывается как:
Скорректированные цены аналогов
= Цкх * поправки по местоположению *поправки по состоянию* поправки по
транспортной доступности
Таблица 11.
Расчет
скорректированных цен объектов коммерческой недвижимости
|
Объект
сравнения
|
Площадь,
кв. м.
|
Местоположение
|
Состояние
|
Транспортная
доступность
|
Стоимость
оборудования, т. р.
|
Цена
продажи, т.р. кв.м
|
Цена,
т.р (Цкх)
|
Поправки
|
Скорректированная
цена, т.р.
|
|
|
|
|
|
|
|
оборудование
|
площадь
|
по
местоположению
|
по
состоянию
|
по
транспортной доступности
|
|
|
Об.оценки
|
300
|
с\о
|
хор
|
вт
|
|
|
|
|
|
|
|
|
|
А1
|
345
|
с/о
|
хор.
|
гл.
|
100
|
4240
|
4140
|
3600
|
1
|
1
|
0,95
|
3420
|
|
А2
|
225
|
с/о
|
удовл.
|
гл.
|
95
|
2577
|
2482
|
3309
|
1
|
1,05
|
0,95
|
3301
|
|
А3
|
540
|
с/о
|
хор
|
втр.
|
110
|
6147
|
6037
|
3354
|
1
|
1
|
1
|
3354
|
|
А4
|
195
|
отд.
|
хор
|
втр.
|
|
1912
|
1912
|
2942
|
1,15
|
1
|
1
|
3383
|
|
А5
|
420
|
отд.
|
удовл
|
гл.
|
|
3813
|
3813
|
2724
|
1,15
|
1,05
|
0,95
|
3124
|
|
А6
|
390
|
отд.
|
хор
|
гл.
|
90
|
4095
|
4005
|
3081
|
1,15
|
1
|
0,95
|
3366
|
|
А7
|
600
|
цен.
|
хор
|
гл.
|
115
|
8081
|
7966
|
3983
|
0,9
|
1
|
0,95
|
3405
|
|
А8
|
150
|
цен.
|
удовл
|
гл.
|
112
|
1928
|
1816
|
3632
|
0,9
|
1,05
|
0,95
|
3261
|
|
А9
|
270
|
цен.
|
хор
|
втр.
|
|
3431
|
3431
|
3812
|
0,9
|
1
|
1
|
3431
|
Суждение о стоимости объекта
можно принять в результате анализа четырех показателей:
. Среднее арифметическое
значение скорректированных цен:
Ср..арф. = 30045 тысяч рублей /
9 = 3338 тысяч рублей.
. Модальное значение
скорректированных цен:
(3354 тысяч рублей + 3366 тысяч
рублей)/2 = 3360 тысяч рублей.
. Медианного значения
скорректированных цен: 3366 тысяч рублей.
. Скорректированной цены самого
похожего на оцениваемый объект аналога. Наименьшее количество поправок были
внесено для аналогов 3 и составит 3354 тысяч рублей.
Стоимость делового центра
составит:
Са = (3338 тысяч рублей +3360
тысяч рублей + 3366 тысяч рублей + 3354 тысяч рублей)/4 = 3355тысяч рублей.
Таким образом, стоимость
делового центра сравнительным подходом составит 3355 тысяч рублей.
3.3 Оценка делового
центра доходным подходом
Подход с точки зрения дохода
представляет собой процедуру оценки стоимости, исходя из того принципа, что
стоимость недвижимости непосредственно связана с текущей стоимостью всех
будущих чистых доходов, которые принесёт данная недвижимость. Другими словами,
инвестор приобретает недвижимость, приносящую доход от её коммерческой
эксплуатации (например, от сдачи в аренду) и от последующей продажи.
Существуют два метода пересчёта
чистого дохода в текущую стоимость: метод прямой капитализации и метод
дисконтированного денежного потока.
. Метод прямой капитализации
наиболее применим к объектам, приносящим доход со стабильными предсказуемыми
суммами доходов и расходов.
. Метод дисконтирования
денежных поступлений более применим к приносящим доход объектам, имеющим
нестабильные потоки доходов и расходов.
В данной курсовой работе
используем метод прямой капитализации. Основные этапы процедуры оценки при
данном методе:
1
Оценка
потенциального валового дохода для первого года, начиная с момента оценки, на
основе анализа текущих ставок и тарифов на рынке аренды для сравнимых объектов.
2
Оценка
потерь от неполной загрузки (сдачи в аренду) и не взысканных арендных платежей
на основе анализа рынка, характера его динамики применительно к оцениваемой
недвижимости. Рассчитанная таким образом величина вычитается из валового дохода
и определяется действительный (эксплутационный) валовой доход.
3
Расчёт
издержек по эксплуатации оцениваемой недвижимости основывается на анализе
фактических издержек по её содержанию и/или типичных издержек на данном рынке.
В статье издержек включаются только отчисления, относящиеся непосредственно к
эксплуатации собственности и не включаются ипотечные платежи, проценты и
амортизационные отчисления. Величина издержек вычитается из действительного
валового дохода и получается величина чистого операционного дохода.
4
Определение
нормы капитализации.
5
Пересчёт
чистого операционного дохода в текущую стоимость объекта:
Сдп = ЧОД / Ккап,
где Сдп - стоимость объекта
недвижимости, определенная в рамках доходного подхода, ЧОД - чистый
операционный доход оцениваемого объекта за год, Ккап- коэффициент
капитализации.
Для оценки рыночной арендной
платы использованы данные по аренде объектов, сопоставимых с оцениваемым. Все
доходы для оцениваемого объекта прогнозируется на основе арендной платы для
помещений сопоставимого функционального назначения. Проведенное исследование
рынка, цель которого - установить арендные ставки для помещений
соответствующего класса и прочих типов нежилых помещений, которые бы являлись
сопоставимыми с помещениями оцениваемого объекта.
В результате исследования рынка
аренды помещений был отобран объект оценки, который наиболее сопоставим с
объектом оценки по основным характеристикам (площадь, состояние,
местоположение). Потенциальный валовый доход (ПВД) данного объекта - аналога
составит: 135 тысяч рублей* 12 месяцев =1620 тысяч рублей в год (таблица 2).
В районе расположения объекта
оценки наблюдается избыток площадей предлагаемых в аренду. Учитывая близость
крупных объектов, принимаем коэффициент недозагрузки на уровне 10% от ПВД.
Данная величина включает в себя и риск, связанный с потерей или недосбором
арендных платежей, при смене арендаторов и недобросовестным исполнением
обязательств. Исходя из этого, эффективный валовой доход составит: ЭВД = 1620*
0,9 = 1458 тысяч рублей
Операционные расходы ( ОР)
включают в себя:
. Налог на землю (7 рублей за
кв.м. в квартал): 7руб *500 кв.м* 4 квартала/1000=14 тысяч рублей
. Налог на имущество (2 % в год
от восстановительной стоимости с учетом износа):
(2132,01 тысяч рублей - 372,64
тыс. рублей) *0,02= 35 тысяч рублей.
. Коммунальные расходы (40
р/кв.м/мес): 40 рублей*12 месяцев*300кв.м./1000 тысяч рублей = 144 тысячи
рублей
. Расходы на управление (15 %
от ЭВД): 1458 тысяч рублей*0,15= 219 тысяч рублей
. Страхование (0,1% от
восстановительной стоимости в год): 2132,01 тысячи рублей *0,1% = 2 тысячи
рублей
. Обеспечение безопасности (15%
от ПВД): 1620тысяч рублей *0,15= 243 тысячи рублей
Резервы составят 2% от
восстановительной стоимости: 2132,01 тысяч рублей *0,02 = 43 тысячи рублей
Расчет ЧОД сведен в таблицу 12.
Таблица 12.
Расчет
ЧОД
|
Показатель
|
Сумма,
тысяч рублей
|
|
ПВД
|
1620
|
|
Убытки
|
162
|
|
ЭВД
|
1458
|
|
ОР
|
|
|
-
налог на землю
|
14
|
|
-
налог на имущество
|
35
|
|
-
коммунальные расходы
|
144
|
|
-
расходы на управление
|
219
|
|
-
страхование
|
2
|
|
-обеспечение
безопасности
|
243
|
|
Резервы
|
43
|
|
ЧОД
|
758
|
Расчет ставки капитализации
Формула определения коэффициента
капитализации имеет следующий вид:
Ккап = Нд + Нв где:
Ккап - коэффициент
капитализации,
Нд - норма дохода на капитал,
Нв - норма возврата капитала.
Норма дохода на капитал
определялась кумулятивным методом. Модель кумулятивного построения подразумевает
оценку определенных факторов, порождающих риск недополучения запланированных
доходов. При построении ставки за основу расчета берется безрисковая норма
доходности, а затем к ней добавляется норма доходности за риск инвестирования в
данную недвижимость. [6]
Формула определения нормы
дохода методом кумулятивного построения выглядит следующим образом:
R
= Rf + S1
+ … + Sn,
Где
Rf
- доходность безрисковых активов;
S1
- Sn - риски, присущие предприятию и учитываемые определяются
экспертным путём.
Безрисковая ставка. В данном
расчете за безрисковую ставку была принята средняя доходность ГКО-ОФЗ -6 %
. Риск низкой
ликвидности учитывается невозможность немедленного возврата вложений в объект
недвижимости - 3%
. Риск вложения в
недвижимость- учитывается возможность случайной потери потребительной стоимости
- 2%
. Риск инвестиционного
менеджмента целесообразно рассчитывать с учетом коэффициента недогрузки и
потерь при сборе арендных платежей - 3%
R
= 6 % + 3%+2% + 3%=14 %
Возмещение инвестированного
капитала осуществляется прямолинейно (метод Ринга). Годовая норма возврата
капитала рассчитывается путем деления 100%-ной стоимости актива на остающийся
срок полезной жизни, т.е. это величина, обратная сроку службы актива. Норма
возврата инвестированного капитала - ежегодная ставка капитала, инвестированный
в актив с уменьшающей стоимостью, возмещается из дохода, получаемого из этого
актива. Ежегодная прямолинейная норма возврата капитала - 5%, так как за 20 лет
будет списано 100% актива (100%/20=5%). Срок жизни объекта примерно равен 20
лет.
Таким образом, ставка
капитализации составляет:
Ккап = 14 %+ 5% =19%.
Стоимость делового центра
составит: 758 тысяч рублей/ 0,19 = 3990 тысяч рублей
Таким образом, стоимость
делового центра, рассчитанная методом прямой капитализации, составляет 3990
тысяч рублей.
4.
Согласование стоимостных показателей оценки делового центра
Затратный подход базируется на
рыночной стоимости реальных затрат и имеет следующие недостатки: статичность и
невозможность учесть перспективы развития бизнеса. Использование подхода
наиболее привлекательно, когда типичные продавцы и покупатели в своих решениях
серьезно ориентируются на строительные затраты.
Метод капитализации позволяет
отразить будущую доходность недвижимости, что в наибольшей степени интересует
инвесторов. При этом учитывается риск инвестиций, возможные темпы инфляции, а
также ситуацию на рынке. Недостаток метода состоит в не гарантированности
ожидаемых в будущем изменений, на которые опирается приведенный расчет. Обычно
данный подход считается наиболее предпочтительным, несмотря на его ограничения,
особенно когда типичные продавцы и покупатели ориентируются на коммерческое
использование объекта, либо рассматривают его в качестве объекта
инвестирования.
Сравнительный подход базируется
на трех принципах оценки недвижимости: спроса и предложения, замещения и
вклада. Посредством анализа рыночных цен продаж аналогичных объектов
недвижимости моделируется рыночная стоимость оцениваемого объекта недвижимости.
Преимущество данного подхода состоит в его способности учитывать реакцию
продавцов и покупателей на сложившуюся конъюнктуру рынка. Его недостаток
состоит в том, что практически невозможно найти два полностью идентичных
объекта, а различия между ними не всегда можно с достаточной точностью вычленить
и количественно оценить. Использование подхода наиболее привлекательно, когда
имеется достаточная и надежная рыночная информация о сопоставимых сделках.
Для
окончательного определения итоговой величины рыночной стоимости, рассчитываем
весовые показатели. Результаты расчетов с учетом указанных весов приведены в
таблице 13.
Таблица 13.
Расчет
весов подходов оценки
|
Критерий
|
Подходы
|
|
Доходный
|
Сравнительный
|
Затратный
|
|
Полнота
информации
|
40
|
40
|
20
|
|
Достоверность
информации
|
40
|
50
|
10
|
|
Способность
учитывать конъюнктуру рынка
|
40
|
40
|
20
|
|
Допущения
в отчете
|
40
|
50
|
10
|
|
Сумма
баллов
|
160
|
180
|
60
|
|
Вес
|
40
|
45
|
15
|
Таблица 14.
Расчет
рыночной стоимости делового центра
|
Подход
|
Рыночная
стоимость, тысяч рублей
|
Вес
в %
|
Средневзвешенная
стоимость, тысяч рублей
|
|
Затратный
|
2620
|
0,15
|
393
|
|
Доходный
|
3990
|
0,40
|
1596
|
|
Сравнительный
|
3355
|
0,45
|
1510
|
|
ИТОГО
|
|
|
3500
|
Залоговая стоимость
определяется как рыночная стоимость залога за вычетом затрат на его реализацию
и возможных скидок на скорость реализации, которая составляет в данной работе
50% от рыночной стоимости.
Залоговая стоимость делового
центра на дату оценки составит 1750 тысяч рублей.
Заключение
Таким образом, стоимость
делового центра, рассчитанная методом прямой капитализации, составляет 3990
тысяч рублей
Таким образом, стоимость
делового центра сравнительным подходом составит 3355 тысяч рублей.
Таким образом, стоимость
делового центра затратным подходом на дату оценки составит 2620 тысяч рублей.
Список литературы
Нормативные документы
1. Закон РФ от
29.07.98 «Об оценочной деятельности в Российской Федерации» № 135-ФЗ
2. Приказ
Минэкономразвития России «Общие понятия оценки, подходы к оценке и требования к
проведению оценки (ФСО №1)» от 20.07.2007 №256
Учебники и учебные пособия
3. Бухарин Н.А.,
Озеров Е.С., Пупенцова С.В., Шаброва О.А. Оценка и управление стоимостью
бизнеса: учеб. пособие / под общей редакцией Е.С. Озерова - СПб: ЭМ-НиТ, 2011 -
238 с
4. Варламов А.А.,
Комаров С.И. Оценка объектов недвижимости: Учебник / А.А. Варламов, С.И.
Комаров; Под общ. ред. А.А. Варламова. - М.: Форум, 2010. - 288
5. Гараникова Л.Ф.
Оценка стоимости предприятия: учебное пособие/ Л.Ф. Гараникова. Изд. 1-е.
Тверь: ТГТУ, 2007. - 140 с.
6. Грязнова А.Г.,
Федотова М.А., Ленская С.А. и др. Оценка бизнеса: [Учеб. для вузов по экон.
спец.] / Под ред. Грязновой А.Г., Федотовой М.А. - М.: Финансы и статистика,
2010. - 509 с.: табл.
7. Косорукова, И. В.
Оценка стоимости имущества : Учеб. пособие / О. М. Ванданимаева, П. В. Дронов,
Н. Н. Ивлиева и др.; под ред. И. В. Косоруковой. - М.: Московский финансово-промышленный
университет «Синергия», 2012. - 736 с
8. Кузин Н. Я. Оценка
стоимости нематериальных активов и интеллектуальной собственности: Учеб. пос. /
Н.Я. Кузин, Т.В. Учинина, Ю.О. Толстых. - М.: НИЦ Инфра-М, 2013. - 160 с.:
9. Оценка стоимости предприятия
(бизнеса)/ А.Г. Грязнова, А.М. Федотова, М.А. Эскиндаров, Т.В. Тазихина, Е.Н.
Иванова, О.Н. Щербакова. - М.: Интерреклама, 2003. - 544 с.
10. Чеботарев, Н. Ф.
Оценка стоимости предприятия (бизнеса): Учебник для бакалавров / Н. Ф.
Чеботарев. - 3-е изд. - М.: Издательско-торговая корпорация «Дашков и К°»,
2014.- 256 с.
Интернет ресурсы
Официальный сайт ЦБ РФ: http://www.cbr.ru/