Грузоподъемные машины в транспортных системах

  • Вид работы:
    Курсовая работа (т)
  • Предмет:
    Транспорт, грузоперевозки
  • Язык:
    Русский
    ,
    Формат файла:
    MS Word
    2,12 Мб
  • Опубликовано:
    2015-04-02
Вы можете узнать стоимость помощи в написании студенческой работы.
Помощь в написании работы, которую точно примут!

Грузоподъемные машины в транспортных системах

Министерство транспорта Российской Федерации

Федеральное агентство железнодорожного транспорта

Федеральное государственное бюджетное образовательное учреждение

высшего профессионального образования

Омский государственный университет путей сообщения (ОмГУПС)

Кафедра «Экономика транспорта, логистика и управление качеством»






РАСЧЕТНО-ПОЯСНИТЕЛЬНАЯ ЗАПИСКА

к курсовому проекту

по теме «Грузоподъемные машины в транспортных системах»

Выполнила: студентка гр. 51 Г

Кутепова Т.С.







Омск 2014

Реферат

Грузоподъёмные машины, электроталь, передвижной подъемный стол, лифт, домкрат, грузоподъемный кран

Задачи - рассмотреть теоретические основы по данной теме, выявить недостатки работы грузоподъемного оборудования в строительной компании «Фреза»

Объект исследования - строительная организация «Фреза»

Цель курсовой работы - разработка мероприятий по совершенствованию работы грузоподъемных машин.

В процессе работы были изучены теоретические основы темы «Грузоподъемные машины», а также деятельность организации «Фреза». По окончании изучения и рассмотрения деятельности организации, были разработаны мероприятия по усовершенствованию деятельности компании с целью повышения экономического эффекта.

Введение

Актуальность данной темы состоит в том, что грузоподъёмные машины являются неотъемлемой частью современного производства, так как с их помощью осуществляется механизация основных процессов и вспомогательных работ. В поточных и автоматизированных линиях роль подъёмных машин качественно возросла, и они стали органической частью строительного процесса, а влияние их на технико-экономические показатели стало весьма существенным.

В проблеме осуществления научно-технического прогресса значительная роль отводится подъемно-транспортному машиностроению, перед которым поставлена задача широкого внедрения во всех областях народного хозяйства комплексной механизации и автоматизации производственных процессов, ликвидации ручных погрузочно-разгрузочных работ и исключения тяжелого ручного труда при выполнении основных и вспомогательных технологических операций.

Жизненно необходимым является увеличение производства прогрессивных средств механизации подъемно-транспортных, погрузочно-разгрузочных и складских работ. Современные поточные технологические и автоматизированные линии, межцеховой и внутрицеховой транспорт требуют применения разнообразных типов подъемно- транспортных машин и механизмов, обеспечивающих непрерывность и ритмичность производственных процессов. Поэтому подъемно-транспортное оборудование в настоящее время превратилось в один из основных решающих факторов, определяющих эффективность производства. Насыщенность производства средствами механизации трудоемких и тяжелых работ, уровень механизации технологического процесса определяют собой степень совершенства технологического процесса.

Правильный выбор подъемно-транспортного оборудования влияет на нормальную работу и высокую продуктивность производства. Нельзя обеспечить его устойчивый ритм на современной ступени интенсификации без согласованной и безотказной работы современных средств механизации внутрицехового и межцехового транспортирования сырья, полуфабрикатов и готовой продукции на всех стадиях обработки и складирования.

Современные высокопроизводительные грузоподъемные машины, работающие с большими скоростями и обладающие высокой грузоподъемностью, являются результатом постепенного развития этих машин в течение долгого времени.

Целью данной курсовой работы является рассмотрение современных грузоподъёмных машин и механизмов, предназначенных для возведения высотных зданий и сооружений, их преимущества и недостатки, возможность совершенствования.

1. Грузоподъемные машины и механизмы. Теоретические основы

.1 Грузоподъемные машины в транспортных системах: определение, классификация, виды

Грузоподъёмные машины - это аппараты, предназначенные специально для погрузки и передвижения грузов, к примеру, строительных материалов, собранных в один большой блок. Такая машина способна передвигать грузы по вертикали и горизонтали, причём передвижение по вертикали может превышать шесть метров (зависит от высоты направляющих мачт, которые подбираются по высоте здания). Для удержания грузов используются массивные усы, расположенные в передней части аппарата. Характерной особенностью грузоподъёмников является управление задним приводом, усиленная передняя группа.

Классификация грузоподъемных машин

В зависимости от назначения, конструкции и характера выполняемой работы грузоподъемные машины можно разделить на три основные группы:

первая группа включает простейшие машины: домкраты, тали и лебедки, используемые в основном в качестве вспомогательного оборудования на монтажных и других работах;

вторая группа - подъемники, при помощи которых обеспечивается только вертикальная транспортировка грузов;

третья группа - краны, обеспечивающие как вертикальное, так и горизонтальное перемещение грузов в любом направлении в пределах, зависящих от параметров крана.

Домкраты

Устройства, предназначенные для подъема груза на небольшую высоту (до 1 м) воздействием на него снизу вверх. Подъем груза на большую высоту можно осуществлять домкратом в несколько последовательных приемов с перестановкой домкрата на подкладки, удерживая при этом груз на подставках.

Домкратами можно выполнять и горизонтальное перемещение груза, воздействуя на него сбоку, при упоре основанием домкрата в неподвижную опору.

Домкраты используют также для передвижения и выверки конструкций при строительно-монтажных работах, для подъема и выправки путевой решетки при сооружении верхнего строения железных дорог (рис. 1).

Рисунок 1 - Домкрат

Тали

Подвесные грузоподъемные устройства с ручным, электрическим или гидравлическим приводом. Цепные тали применяют при разных монтажных работах малого объема. Электрические тали (тельферы) используют для подъема и перемещения массовых грузов в технологическом потоке производства (рис. 3).

Цепные тали подвешивают над поднимаемым грузом при помощи крюка 1 к опорной конструкции неподвижно или к специальной тележке (кошке), которая может перемещаться по нижним полкам двутавровой балки опорной конструкции (рис. 2).

Рисунок 2 - Цепная таль

Рисунок 3 - Электроталь

Лебедки.

Лебедкой называется грузоподъемная машина, перемещающая груз при помощи стального каната, наматываемого на вращающийся барабан.

Лебедки применяют самостоятельно для подъема и опускания грузов, а также как составную часть исполнительных механизмов грузоподъемных, землеройных и других строительных машин.

Лебедки бывают с ручным и машинным приводом. Каждая лебедка характеризуется тяговым усилием, канатоемкостью и скоростью навивания каната на барабан. Лебедки с ручным приводом применяют на монтажных работах при редком перемещении грузов. Грузоподъемность этих лебедок составляет 0,5 - 10 т, канатоемкость - от 100 до 300 м (рис. 4).

Лебедки с машинным приводом бывают одно- и многобарабанными; они могут иметь одну или несколько скоростей тягового каната (рис. 5).

Рисунок 4 - Лебедка с ручным приводом

Рисунок 5 - Лебедка с машинным приводом

Лифт.

Лифтом называют подъемно-транспортное устройство периодического действия, предназначенное для подъема и спуска грузов с одного уровня на другой. Лифт состоит из лебедки с электроприводом, кабины, шахты, противовеса (рис.6).

Рисунок 6 - Лифт

Грузовой подъемник.

Предназначен для подъема грузов на платформе или в кабине на определенную высоту. Подъемники в отличие от грузовых лифтов имеют более простую конструкцию, удобны в эксплуатации (рис. 7).

Рисунок 7 - Грузовой подъемник

Передвижной подъемный стол.

Передвижной подъемный стол с ручным управлением предназначен для механизированной погрузки и выгрузки грузов с автомашин и из железнодорожных вагонов при отсутствии погрузочно-разгрузочных рамп, а также для погрузки и разгрузки пакетированных и затаренных грузов (рис.8).

Рисунок 8 - Передвижной подъемный стол

Грузоподъемный кран.

Машина циклического действия, предназначенная для подъема и перемещения в пространстве грузов, удерживаемого грузозахватными приспособлениями. В зависимости от конструкции различают грузоподъемные краны: мостовые, козловые, краны-штабелеры, автомобильные, башенные строительные и другие (рис. 9).

Рисунок 9 - Грузоподъемный кран


Рисунок 10 - Мостовой кран

Козловой кран отличается от мостового тем, что его пролетные конструкции опираются на две пары жестких стоек, расположенных под углом в виде козел. Кран передвигается по рельсам, уложенным на земле. Грузоподъемным механизмом служат электротали или подвижные грузовые тележки. Пролет козлового крана определяется расстоянием между опорами (рис. 11).

Рисунок 11 - Козловой кран

Автомобильный кран - грузоподъемная машина с поворотной платформой, установленной на шасси грузового автомобиля или на специальные шасси. Он может иметь автоматический, электрический или гидравлический привод. Привод механизмов крана осуществляется как от двигателя автомобиля, так и от отдельного двигателя, установленного на поворотной платформе (рис. 12).

Рисунок 12 - Автомобильный кран

 

.2 Требования безопасности при эксплуатации грузоподъемных машин


Безопасность труда при подъеме и перемещении грузов в значительной степени зависит от конструктивных особенностей подъемно-транспортных машин и соответствия их правилам и нормам Ростехнадзора. Все части, детали и вспомогательные приспособления подъемных механизмов в отношении изготовления, материалов, качества сварки, прочности, устройства, установки, эксплуатации должны удовлетворять соответствующим техническим условиям, стандартам, нормам и правилам. При эксплуатации подъемно-транспортных машин следует ограждать все доступные движущиеся или вращающиеся части механизмов. Необходимо исключать непредусмотренный контакт работающих с перемещаемыми грузами и самими механизмами при их передвижении, а также обеспечить надежную прочность механизмов, вспомогательных, грузозахватных и строповочных приспособлений.

Для обеспечения безопасной эксплуатации подъемно-транспортные машины снабжают средствами защиты, включая системы дистанционного управления. Для дистанционного управления подъемно-транспортными машинами применяют электрические следящие системы (при стационарном пульте управления) и радиоуправление (при управлении с разных мест).

Грузоподъемные машины, находящиеся в работе, должны подвергаться периодическому техническому освидетельствованию; частичному - не реже одного раза в год; полному - не реже одного раза в три года, за исключением редко используемых. Возможно внеочередное полное техническое освидетельствование грузоподъемной машины (после монтажа на новом месте, реконструкции, смены крюка, ремонта металлических конструкций грузоподъемной машины с заменой расчетных элементов и т.д.). При полном техническом освидетельствовании грузоподъемная машина должна подвергаться осмотру, статическому и динамическому испытанию. При частичном техническом освидетельствовании статические и динамические испытания не проводятся.

Осмотр сопровождается проверкой работы механизмов и электрооборудования, тормозов и аппаратуры управления, освещения и сигнализации, приборов безопасности и регламентируемых габаритов.

Цель статических испытаний - проверка прочности металлических конструкций грузоподъемных машин и устойчивости против опрокидывания (для стреловых кранов). Статические испытания кранов производят нагрузкой, на 25% превышающей его грузоподъемность. Кран устанавливают над опорами крановых путей, а его тележку (тележки) - в положение, отвечающее наибольшему прогибу. При стреловом кране стрела устанавливается относительно ходовой платформы в положение, соответствующее наименьшей устойчивости крана. Крюком или заменяющим его устройством захватывается груз и поднимается на высоту 200-300 мм (при стреловом кране - 100-200 мм) с последующей выдержкой в таком положении в течение 10 мин. По истечении 10 мин груз опускают и проверяют наличие или отсутствие остаточной деформации моста крана (при стреловых кранах груз не должен опуститься на землю, не должны появиться трещины, деформации и т.п.).

Динамическое испытание грузоподъемных машин производится грузом, на 10% превышающим грузоподъемность машины, и имеет целью проверку действия механизмов грузоподъемной машины и их тормозов. Допускается динамическое испытание осуществлять рабочим грузом. При динамическом испытании производят повторный подъем и опускание груза.

При техническом освидетельствовании стальные канаты (тросы) бракуют по числу обрывов проволок на длине одного шага свивки каната, при этом учитывается их конструкция, степень износа или коррозии, назначение, соотношение диаметра блока, огибаемого канатом, к диаметру последнего. При обнаружении оборванной пряди канат к эксплуатации не допускают.

Грузозахватные приспособления и тару до пуска в работу подвергают осмотру, причем первые, кроме того, испытываются нагрузкой, превышающей на 25% их номинальную грузоподъемность. Испытанные вспомогательные грузозахватные приспособления снабжают бирками и клеймами, без которых их не допускают к использованию.

Большое значение для безопасности работы подъемно-транспортных машин имеет выполнение основных требований при проведении такелажных работ: при канатовании груза необходимо использовать специальные устройства - рым-болты, проушины; центр тяжести поднимаемого груза должен находится в середине между захватами стропа; строповочные канаты необходимо располагать на поднимаемом грузе равномерно, без узлов и перекруток; строповочный трос следует отделять от острых кромок и ребер груза прокладками (доски, резина и т.п.); сплетение грузовых канатов не допускается; при проведении такелажных работ должна применяться оперативная сигнализация.

Для обеспечения безопасности эксплуатации подъемно-транспортных машин применяют: концевые выключатели, автоматически отключающиеся механизмы подъема крюка или механизмы передвижения крана при подходе к крайним положениям, концевые упоры для предотвращения перехода перемещаемых подъемных механизмов за рельсовые пути, ограничители грузоподъемности, предохраняющие кран от перегрузки путем выключения механизма подъема; устройства, предотвращающие соскальзывание канатов с крюка; буферные устройства, амортизирующие толчки при столкновении с соседними кранами и другими объектами; звуковую и световую сигнализацию, предупреждающую о наступлении опасного момента при работе крана; блокировочные приспособления для автоматического отключения неогражденных троллейных проводов при выходе человека с площадки, лестницы, галереи, с которых возможно случайное прикосновение к троллейным проводам; тормозные и удерживающие устройства (ловители).

грузоподъёмный машина строительный механизм

2. Грузоподъемные машины на примере строительной компании

.1      Характеристика строительной организации «Фреза»

Строительная организация ООО «Фреза» основана в 1949 году. Организация занимается строительством загородной жилой недвижимости. Работает очень успешно вот уже более 60 лет, благодаря ответственному подходу к делу, высококвалифицированным специалистам, современному оборудованию, использованию качественного сырья. За время своего существования организация построила большое количество заказов по Ленинградской, Новгородской, Псковской, Московской, Калужской областях. Заказы выполняются как по типовым проектам, так и по индивидуальным.

У организации есть свой завод, который изготавливает материалы для постройки дома, так же есть свои склады для хранения сухих пиломатериалов, офис и площадка погрузки готовой продукции, производственный цех, оборудование. Организация располагает большим автотранспортным парком и складскими помещениями. Все это, в совокупности с современными методами работы, обеспечивает высокое качество предоставляемых услуг.

Цели организации ООО «Фреза»:

-     удовлетворение потребностей заказчика;

      быстрое и качественное выполнение заказов;

      применение более совершенного грузоподъемного оборудования.

Сферой деятельности данной организации является:

      строительство загородных малоэтажных домов «под ключ»;

      строительство домов не полной готовности;

      строительство бань, бытовок, беседок, а так же любой дачной архитектуры из бруса;

      возведение фундамента;

      есть опыт в отделочных и плотницких работах;

      осуществление кровельных работ;

-     благоустройство территории;

-     строительно-монтажные работы;

Компания использует в своем арсенале различного вида грузоподъемные машины:

Электрическая лебедка KDJ-F/F1

Стационарная промышленная лебедка из прочного, надежного алюминиевого сплава. Лебедки оснащаются электродвигателем мощностью 1100 или 1500 Вт с тепловым датчиком. Класс изоляции электропроводов B. Напряжение на пульте управления 24 В. Питание - 220 или 380 В.

Электрическая таль ТОР CD 109112

Выполнена в прочном металлическом корпусе на котором закреплен двигатель мощностью 1.5 кВт. Данное грузоподъемное приспособление отличается высоким качеством и хорошей ремонтопригодностью. Прочный трос защищен от разрывов. Таль с грузом перемещается по балке при помощи специальных подвижных роликов из износостойкого материала.

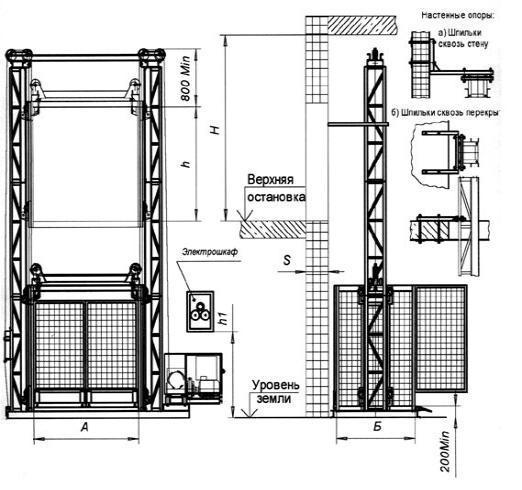
Строительный подъемник DONG JIAN SC200/(200)

Применяемый род тока переменный, трёхфазный, частота 50Гц 380 вольт

Двери кабины:

чистая высота двери кабины не меньше 2.0м,

чистая ширина кабины не меньше 0.6м

Секции мачты:

четырехгранные

с взаимозаменяемой зубчатой рейкой Кабина:

кабина закрытого типа (защищена от ветра и осадков прозрачным пластиком) с монтажной площадкой и вспомогательной консолью (монтажным мини краном) для монтажа с крыши кабины Крепежное устройство:

с винтовыми устройствами для возможности регулировки зазора, от здания и выравнивания мачты по вертикали.

Характерной особенностью этого типа устройств является их способность значительно сократить нецелевой расход времени при строительстве крупных объектов - своевременная и быстрая доставка грузов ускоряет темпы возведения зданий. Надежное зубчато-реечное сцепление с конструкцией мачты, вместительная двойная кабина, мощный привод - все это делает подъемные механизмы DONG JIAN незаменимым помощником застройщика.

Автомобильный кран ZOOMLION

Стреловое оборудование является сменным. Это позволяет на одну платформу устанавливать различные грузоподъемные стрелы, меняя конфигурацию крана, область его использования. Основными достоинствами автокранов с автомобильной основной является:

•  Высокая мобильность, скорость перемещения;

•  Проходимость;

•  Способность работать в условиях ограниченного пространства;

•  Сравнительно небольшие (по отношению к грузоподъемности) масса и габариты;

•  Широкий диапазон выполняемых крановых операций.

Недостатком является большое количество ограничений на перемещение с грузом, небольшая (по сравнению со стационарными моделями) грузоподъемность.

Гусеничный кран ДЭК-321

Используется для проведения погрузо-разгрузочных работ разных сложностей и для выполнения строительно-монтажных работ. Для них не обязательна подготовка рабочей площадки, в связи с небольшим удельным давлением на грунт, они обладают большой маневренностью и способны поворачиваться на месте с грузом и без него.[6, с. 345]

2.2    Преимущества и недостатки в работе грузоподъемных машин на предприятии

В грузоподъемных машинах на предприятии применяется следующее силовое оборудование: двигатели внутреннего сгорания, гидравлический и пневматический приводы.

Двигатели внутреннего сгорания используют на самоходных кранах. Так как эти двигатели не связаны с внешним источником энергии, они обеспечивают работу кранов в любых условиях. Основные их недостатки: невозможность реверсирования и отсутствие перегрузочной способности, необходимость в коробке передач для изменения крутящего момента и для реверсирования, зависимость от температурных условий и сравнительно малый срок службы.

На передвижных кранах компания использует карбюраторные двигатели и недостатком является дорогое топливо, что уменьшает экономичность. 5, с. 32]

Имеются две разновидности управления краном: ручное и электрическое, которые имеют довольно существенные отличия. К примеру, электрический механизм используются только вне помещения. Передвигаться он может лишь по подкрановым путям, которые проложены заранее. Ручной же кран обычно применяется в помещениях и оборудован колесами, с помощью которых может передвигаться в любом нужном направлении. Но грузоподъемность его значительно меньше и составляет только пять тонн.

Применение такого оборудования дает возможность значительно уменьшить расходы и сроки работ. Помимо этого, их можно использовать в самых разных областях промышленности. Это оборудование часто применяется на открытых складах для подъема штучной клади, с его помощью производится монтаж сборных сооружений и т.д.[7, с. 90]

Так же, в качестве недостатка работы грузоподъемных машин я выделила устаревание оборудования или отдельных его частей, что приводит торможению строительного процесса.

Стационарное управление кранами, что занимает значительно больше времени и сил. Закупка поломанных частей или всей машины приводит к значительным затратам. Износ оборудования так же отрицательно складывается на строительных работах. [4, с. 190]


.3 Разработка рекомендаций по улучшению работы грузоподъемного оборудования в строительной компании "Фреза"

Исходя из выявленных недостатков работы, для улучшения можно порекомендовать такие мероприятия, как модернизация оборудования.

Ее целью является улучшение технических и рабочих характеристик мостовых и козловых грузоподъемных кранов. Модернизация предполагает замену устаревших или несовершенных деталей более новыми.

Модернизация касается и пультов управления, замены на более компактные и эргономичные.

Целесообразно так же проводить капитальный ремонт оборудования или отдельных механизмов, так, как это отличная возможность сэкономить средства, поскольку модернизация кранов и ремонт грузоподъемных механизмов всегда обходится существенно дешевле, чем покупка нового крана.

Ремонт и модернизация кранов - не просто замена неисправных деталей, а качественное улучшение всего оборудования мостового крана. В большинстве случаев ни к чему приобретать новый кран, а достаточно просто купить крановое оборудование и усовершенствовать уже имеющийся. К тому же можно обеспечить радиоуправляемость мостовых и козловых грузоподъемных кранов, возможность дистанционно ими управлять.

На передвижных кранах использовать дизельные двигатели, ведь дизельное топливо дешевле, экономичнее и менее опасны в пожарном соотношении.

Использовать самоходный кран-подъемник, который позволяет доставлять грузы в разные места стройки быстрее, чем переносной подъемник.

Таким образом, можно отметить, что в процессе модернизации грузоподъемного оборудования значительного сократятся затраты, улучшится работа и безопасность рабочих. [6, с.189]

Заключение

После изучения теоретических аспектов и рассмотрения деятельности организации, было выявлено, что на сегодняшний день ни одни строительные работы не обходятся без применения грузоподъемных механизмов. Правильный выбор подъемно-транспортного оборудования влияет на нормальную работу и высокую продуктивность производства.

В соответствии с целью курсового проекта были разработаны мероприятия по совершенствованию работы транспортных механизмов.

В первой главе были рассмотрены и изучены всевозможные виды грузоподъемных машин и механизмов, их классификация в целом, а так же правила безопасной эксплуатации транспортных средств.

Во второй главе описана характеристика строительной компании «Фреза», которая на протяжении многих лет обеспечивает население выполнением заказов и услуг за счет качественного сырья и современного оборудования. Здесь же были рассмотрены транспортные средства данной компании и выявлены достоинства и недостатки.

В качестве рекомендаций было предложено проведение капитального ремонта, замены оборудования и применение более современного вспомогательного оборудования для простоты и удобства применения.

Данные мероприятия положительно скажутся на финансовой деятельности предприятия и на безопасности эксплуатации грузоподъемных машин и механизмов.

Библиографический список

1. Строительные машины. - Под ред. Д.П. Волкова. - М.: «Высшая школа», 1999.

. И.П. Барсов, А.П. Станковский. Строительные машины и их эксплуатация. М.: «Высшая школа», 2001.

. Бетоны. Материалы, технологии, оборудование. - Стройинформ. - М.: «Феникс», 1999.

. Волков Д.П., Крикун В.Я. Строительные машины и средства малой механизации. - М.: «Академия», 2007,

. Александров М.П. Грузоподъемные машины. - Москва: Высшая школа, 2000;

. Барсов И.П. Строительные машины и оборудование. - Москва: Стройиздат, 2012;

. Астахов А.И. Автомобильные краны. - Москва: Высшая школа, 1969;

. Зайцев Л.В., Полосин М.Д. Автомобильные краны. - Москва: Высшая школа, 1987

Похожие работы на - Грузоподъемные машины в транспортных системах

 

Не нашли материал для своей работы?
Поможем написать уникальную работу
Без плагиата!
Без нейросетей!