Виробництво м'ятного ефірного масла
Зміст
Вступ
1. Літературний огляд
1.1 Поняття про ефіромасляну сировину
1.2 Ефірні масла
1.3 Смоли та бальзами
1.4 Воски та воскоподібні речовини
1.5 Прийом ефіромасляної сировини та відбір проб
1.6 Зберігання ефіромасляної сировини
1.7 Класифікація ефірних олій в залежності від сировини, з якої їх
отримують
1.8 Технології отримання ефірних олій в залежності від сировини
1.9 Трав’яниста ефіромасляна сировина. М’ята
2. Технологічна частина
2.1 Виробництво м’ятного ефірного масла
2.2 Вакуум - ректифікація м’ятного масла - сирця
2.3 Технологічні розрахунки
2.3.1 Матеріальний баланс виробництва. Матеріальні розрахунки
2.3.2 Тепловий баланс
2.4 Компонування обладнання в цеху
3. Екологія
4. Охорона праці
Висновки
Список використаної літератури
Вступ
Ефірні масла та синтетичні запашні речовини
являються основною сировиною для виробництва парфумерно-косметичних виробів і
харчових есенцій. Останнім часом синтетичні запашні речовини набули великого
значення при виготовленні віддушок для туалетних мил, синтетичних миючих
засобів, виробів із пластмас, шкірозамінників та багатьох інших товарів
харчової і хімічної промисловості. На сьогодні 80% всіх запашних речовин, що
випускаються, складають синтетичні речовини.
Використання синтетичних запашних речовин в
композиціях для одеколонів становить 75%, в композиціях для ароматизації
туалетних мил і синтетичних миючих засобів - 90%, в харчових ароматичних
есенціях - 80%.
Ефіромасляні рослини завжди привертали увагу
людей. Пам’ятки культури далеких епох стали свідченням того, що ефірні масла
освоювалися в різних регіонах світу, в різний час. Відомо, що єгиптяни ще 6
тис. років до н. е. уміли добувати з рослин скипидар, який застосовували у
своїх обрядах та ритуалах. А індійці навчилися отримувати запашні води рози та
лемонграсу. В Японії не тільки могли отримувати м’ятне масло, але і виділяли з
нього ментол. Та найбільшого розквіту та популярності ефірні олії набули за
часів римської імперії.
Однак, парфюмерно-косметична промисловість набула
популярності на території нашої країни тільки в 40-х роках минулого століття.
Але всі підприємства належали закордонним капіталістам. Не було належної
сировинної бази. Та завдяки належним грунтово-кліматичним умовам почали
вирощувати такі культури як: аніс, фенхель, м’яту, коріандр, збирали дикорослий
кмин. Більшу частину сировини продавали за кордон, а решту переробляли на малих
мануфактурних цехах. Загальний рівень виробництва не перевищував 100 т/рік.
Більшість олій для парфумерії, мил і миючих засобів ввозилось з-за кордону.
1.
Літературний огляд
1.1
Поняття про ефіромасляну сировину
Ефірні олії отримують з різних рослин, які відомі
під назвами ефіромасляні та ароматичні. Ці рослини володіють певним запахом,
який обумовлений наявністю ефірних масел і смолистих речовин. В світі відомо
близько 2500 видів духмяних рослин більше 40% яких проростають у тропіках 1100
видів знайдено на території колишнього СРСР. Із всіх відомих рослин, у складі
яких є ефірні масла, промислову цінність мають близько 200. Ефіромасляною
сировиною називають такі рослини, які мають ефірні масла належної якості та у
кількості достатньої для промислової переробки. Ефірні олії розділяються по
органам рослин не рівномірно, найчастіше в якомусь одному органі (листя,
квітки, коріння, плоди), або у декількох органах (листі і квітках, листі і
стеблі). Тому у промисловості прийнято використовувати не всю рослину, а тільки
ту його частину, де зосереджена найбільша кількість ефірного масла. Та на
практиці часто до сировини відносять ті органи, які фактично не містять ефірної
олії і являються баластними компонентами (стебла м’яти, герані, базиліка,
лаванди). Для подібної сировини є дуже важливим співвідношення між
ефіромасляними та баластними органами. Кількість ефірного масла в такій
сировині визначається даним показником. Воно знижується зі збільшенням долі
баластних органів.
.2
Ефірні масла
Ці масла утворюються в рослинах в процесі їх
росту та розвитку. Вони являють собою рідкі багатокомпонентні суміші різних
органічних сполук, які володіють певним запахом, добре розчиняються в органічних
розчинниках, та частково у воді. На відміну від жирних олій повністю
випаровуються і не залишають на папері жирних плям.
В склад ефірних олій входять терпеноїди (більше
500 найменувань), більшість речовин ароматичного та аліфатичного ряду. Кожне
ефірне масло складається з багатьох компонентів, серед яких один, або кілька
містяться у великій кількості, які являються головними, визначають напрям
запаху та цінність ефірної олії. Наприклад у м’ятній олії ідентифіковано 60
компонентів, основним з яких є ментол 60% - тверда речовина з температурою
плавлення 42 - 44 ос, та температурою кипіння 213 ос.
Парфумерні якості та цінність ефірного масла в
основному обумовленні вмістом головних компонентів та співвідношенням між ними,
якщо їх кілька. Так якісна м’ятна олія повинна містити (-) ментол 45 - 60%, (-)
ментон - не більше 30%. Однак високий вміст та оптимальне співвідношення
головних компонентів не можуть бути єдиними критеріями якості ефірних олій. Але
в ряді випадків олія, яка відповідає вимогам по цим показникам отримує низьку
оцінку парфумерів, завдяки присутності інших компонентів з неприємним запахом
чи пекучим смаком, так як їхні кількості перевищують норми. До таких речовин,
наприклад у м’яті, є ментон. Однак аромат ефірних олій в рослинах певним чином
відтіняється мікрокількостями цих сполук, які впливають на парфумені якості;
так у м’яті це ментилацетат і ментофуран.
.3
Смоли та бальзами
Смоли та бальзами містяться в багатьох рослинах.
Це складні суміші органічних сполук, в основному дитерпенової структури,
в’язкої консистенції, не летких з водяним паром, розчинних в етиловому спирті
та інших розчинниках. В смолах найчастіше зустрічаються циклічні смолянисті
кислоти. Крім того, в їхній склад входять смоляні спирти, складні ефіри
смоляних кислот і різних спиртів, вуглеводні, дубильні речовини, феноли, і т.д.
Як правило смоли присутні в рослинах в сукупності з ефірними маслами.
Співвідношення між ними коливається в широких межах. Вміст смол також різко
відрізняються в залежності від сировини.
.4 Воски
та воскоподібні речовини
При переробці ефіромасляної сировини методом
екстракції разом з ефірними оліями і смолами виділяються і воски. Це
жироподібні не леткі речовини, тверді за стандартної температури, легко
плавляться при нагріванні, розчинні у гідрофобних розчинниках. Рослинні воски
являють собою складні суміші високомолекулярних сполук, основу яких складають
складні ефіри вищих монокарбонових кислот С10 - С36 та
вищих одноатомних спиртів С16 - С31. У восках містяться
також відповідні вільні кислоти, спирти, кетони, вуглеводні.
.5
Прийом ефіромасляної сировини та відбір проб
Сировина здається і приймається партіями. Під
партією розуміють будь - яку кількість однорідної сировини, яка поступає
одночасно в одній транспортній одиниці від одного поставника, і оформлена
однією товарно - транспортною накладною. Якість партії установлюється на основі
результатів аналізу середнього зразка. Середній зразок зернової сировини у
відповідності до ДСТУ виділяють з загальної проби, складеної з разових проб. В автомашинах
разові проби беруть з п’яти місць поверхні по всій глибині насипу. У вагонах
вантажопідйомністю до 20 т разові проби відбирають щупом в п’яти місяцях; у
вагонах більшої вантажопідйомності - в одинадцяти місцях із трьох слоїв:
верхнього на глибині 10 - 15 см від поверхні насипу, середнього - на половині
висоти насипу і нижнього - біля підлоги. Кутові разові проби відбирають в
автомашинах на відстані 50 см від бортів, у вагонах - 50-75 см від стін. При
механізованому вивантаженні вагонів разові проби відбирають з падаючого
транспортного потоку плодів, зачерпуючи сировину спеціальним ковшом через рівні
проміжки часу. Загальна маса відібраних разових проб повинна бути не менше 0,1
кг на 1 т сировини. З мішків разові проби відбирають щупом: із розкритих мішків
в трьох точках по висоті, із зашитих - з одного кута щупом. Разові проби у
партіях сировини до 10 мішків відбирають з кожного другого мішка, від партії 11
- 50 мішків - з кожного третього, а з партії більше 50 мішків - з кожного
п’ятого.
Середній зразок квіткової та трав’янистої
сировини складають в процесі вивантаження партії. Від кожної транспортної
одиниці відбирають рівні проби з п’яти різних місць, змішують їх, отримують
середній зразок масою не менше 3 кг. Середній зразок сировини з етикеткою, де
вказана організація, яка доставила сировину, дата і час відбору проби
передається для аналізу до лабораторії. В лабораторії визначають вміст домішок,
поверхневої вологи у свіжій сировині, вологість сухої чи підв’яленої сировини у
відповідності до ДСТУ на даний вид сировини. Домішки діляться на сміття,
ефіромасляні даної рослини та ефіромасляні інших рослин. Присутність останніх
жорстко контролюється через їх негативний вплив на якість олії. Домішки сміття
складаються з мінеральних та органічних. До органічних відносять частини інших
не ефіромасляних рослин та не ефіромасляних органел цієї ж рослини. До складу
ефіромасляних домішок входять промислова частина сировини, яка не відповідає
належним показникам якості, та не промислова частини даної сировини, яка
містить ефірне масло низької якості. Всі види домішок докладно характеризуються
технічними умовами на сировину.
По результатам аналізу визначають знижки та
надбавки за якість, визначають зараховану масу партії та розплачуються з
поставниками.
Маслянистість сировини визначають по різним
методикам в залежності від її виду та способу переробки. Результати аналізу
використовують при контролі виробництва, і не рахують при розрахунку з
поставниками.
Через те, що вміст домішок і зовнішній вигляд
промислової частини тільки частково характеризує маслянистість, такий спосіб
прийому ставить у не зручне положення ефіромасляний завод, і не зацікавлює
поставника забезпечувати належну якість сировини. У зв’язку з цим виконується
перепідготовка фахівців, вводяться нові методики прийому сировини.
.6
Зберігання ефіромасляної сировини
Тривалість і умови зберігання ефіромасляної
сировини залежать від її вологості. Вологість сухої сировини у відповідності до
діючих стандартів знаходиться в межах 12 - 14%. В сухому вигляді переробляють
всі види зернової та кореневої сировини, дубовий мох, відходи тютюнового
виробництва, частково м’яту, лавр, евкаліпт. Суха якісна сировина витримує
тривале зберігання при не значних змінах кількості ефірного масла. Втратам
ефірної олії сприяють підвищена вологість та сміття, зараженість шкідниками. У
вологій сировині при зберіганні розвиваються плісняви, утворюються осередки
запрівання, підвищується інтенсивність дихання сировини, на яке витрачаються
білки, жири, вуглеводи, виділяється вода, тепло. При цьому відбуваються хімічні
зміни масла, значна частина його втрачається, запах плісняви спотворює аромат,
а залишки мають не товарний вид. У зв’язку з цим перед зберіганням вологу
сировину підсушують, очищують від домішок і шкідників, та переробляють. Основна
маса ефіромасляної сировини поступає на заводи свіжою з вологістю до 90%, або
підв’яленою (м’ята), з вологістю 40 - 60%. Така сировина не витримує тривалого
зберігання. Воно швидко зігрівається, пліснявіє, та втрачає ефірну олію. Тому
тривалість зберігання повинна бути максимально скорочена, графіки збору
сировини обговорені з поставниками. При вимушеному зберіганні на заводі шар
сировини не повинен перевищувати 0,5 м, а майданчик для зберігання повинен бути
захищеним від сонячних променів та протягів.
1.7
Класифікація ефірних олій в залежності від сировини, з якої їх отримують
Всі ефірні масла концентруються в різних органах
та тканинах рослин: квітках, листі, корі, коріннях, плодах, насінні, бруньках -
і в залежності від цього ефіромасляну сировину поділяють на 4 види.
Зернова - плоди, насіння (ажгон,
кардамон, коріандр, фенхель)
- Квітково-трав’яниста - листя, наземна
частина трав'янистих рослин, молоді гілки (м’ята, базилік, герань, пачулі,
аніс, шавлія, тютюн, розмарин)
Квіткова - квітки, суцвіття, квіткові
бутони (роза, жасмин, лілія, нарцис, ірис, тубероза)
Кореневе - корені, кореневища (аір,
ветиверія, ірис)
.8
Технології отримання ефірних олій в залежності від сировини
В залежності від характеру рослинної сировини та
властивостей ефірних олій використовують різні способи для їх отримання, які
дозволяють одержати найбільший вихід продукту високої якості. Існує чимало
способів отримання ефірних олій, але найбільш поширеними являються:
Механічний (пресування), для даного
методу використовують преси різної конструкції.
- Перегонка з водяним паром (дистиляція)
Вивільнення ефірних масел леткими
розчинниками (екстракція)
Вивільнення ефірних масел нелеткими
розчинниками (мацерація)
Екстракція зрідженими газами
Поглинання ефірних масел тваринними і
рослинними жирами - сорбція (анфлераж)
Ефірну олію м’яти отримують методом перегонки з
водяним паром. Цей метод являється одним з найпоширеніших. Він заснований на
леткості ефірних олій з парами води.
Суть методу в тому, що при обробці ефіромасляної
сировини паром ефірне масло переходить в парову фазу і в суміші з парами води
конденсується, а потім відділяється від води. Перегонка проводиться при
підвищеному тиску, та температурі нижче 100 ос. Таким чином
отримують первинне масло - сирець, яке потім іде на ректифікацію, так як
товарним продуктом являється масло - ректифікат.
.9
Трав’яниста ефіромасляна сировина. М’ята
Ефіромасляна рослинність, яка дає трав'янисту
сировину, складає велику групу. Серед яких рослини для багатотоннажного
виробництва: герань рожева, базилік євгенольний, укроп, лавр, м’ята перцева.
Ця група постійно поповнюється новими сортами і
видами рослин. На сьогоднішній день в промисловості також застосовуються такі
рослини як: полинь, гринделія, кореопсис, ромашка аптечна.
М’ята
Ця культура займає друге місце по об’єму
виробництва ефірного масла. Виробництвом мятної олії займаються ефіромасляні
заводи.
М’ята - це трав’яниста рослина сімейства
грубоцвітних. Проростає в одному місці протягом декількох років. Коренева
система складається з горизонтальних розгалуджених чотирьохгранних кореневищ,
від яких відходять придатки коренів та стебла. Стебло гільчате чотирьохгранне,
листя на коротких черешках, загостреноовальне, по краях зубчате, зверху
темно-зелене, розташоване на гілочках супроти. Гілочки закінчуються
колосковидними суцвіттями, на яких мілкі фіолетові квітки зібрані у колосок
супротивно. Ефіромасляні вмістища - це залозисті лусочки, трьохклітинні
сосочковидні волоски. Перші знаходяться в основному на нижній поверхні листа і
на квітколожах квіток. Сосочковидні утворюють залозисті плями на зубчиках
листків. В квітках міститься на 20 - 25% більше ефірного масла ніж у листі. В
себлах ефірної олії майже немає. Ефірна олія із листя та суцвіть відрізняються
різною кількістю окремих компонентів. В олії з листя більше спиртів і меньше
кетонів. У зв’язку з цим від співвідношення органів рослини залежить вміст
ефірного масла в сировині в цілому, та його якість. В самому маслі
ідентифіковано більше 60 компонентів, основним з яких являється (-) ментол у
вільному та зв’язаному стані. Характерний запах та холодний смак олії
обумовлений ментолом, квітковий відтінок запаху - складними ефірами ментолу та
інших спиртів, а також ментофураном. В маслі також міститься багато ментону,
який має різкий м’ятний запах та пекучий смак. Ефірне масло цінується загальним
вмістом ментолу, якого повинно міститися в самому маслі не менше 47%.
Із м’яти отримують два вида сировини: цілі
підв’ялені рослини вологістю 40 - 60%, і сухе обмолочене листя і суцвіття
вологістю 14%. В промисловості 80% ефірного масла отримують з підв’ялених цілих
рослин. Вміст ефірної олії в сухих обмолочених листах і суцвіттях 2,1 - 2,4%.
Маслянистість підв’яленої м’яти залежить від співвідношення окремих органів
рослини і вологості. Розмножують м’яту відрізками кореневищ. Вміст ефірного
масла також залежить від таких факторів: сорт рослини, якості посадкового
матеріалу, сроків посадки, освітлення, наявність вологи в землі, агротехробіт,
забруднення плантацій дикорослими м’ятами, сроків збору сировини. Срок збору
рослини залежить від району посадки. На території України найбільша кількість
ефірного масла хорошої якості відповідає повному цвітінню рослини, тому збір
починають коли зацвітає 50% суцвіть. Ще одним показником готовності сировини до
збору є коефіцієнт, який виражає співідношення вмісту ментону до ментолу - він
не має перевищувати 0,6. При зараженні плантацій іржою збір проводять раніше,
перед масовим осипанням листя. Готові до збору рослини косять, і залишають на
полі в валках на 1,5 - 2 дні для підв’ялення, і на 3 - 4 дні для підсушування в
залежності від виду сировини, яку підготовляють. Потім заготовлена сировина
направляється на заводи, для отримання ефірної олії. Збір цілими підв’яленими
рослинами усуває можливість втрати сировини до 25% за рахунок осипання листя, у
2 рази скорочує трудові затрати, усуває зберігання сухої сировини на складах,
дає можливість застосування безперервнодіючих апаратів для переробки сировини.
М’ятну олію отримують методом перегонки з водяним
паром, з виходом 1,5 - 2%. В склад масла входять (-) ментол (46 - 60%), (-)
ментон (до 30%), ментилацетат, карвон, пулегон, вуглеводні, та інші сполуки.
М’ятна олія - це рухома світло - жовта, або жовта рідина з запахом м’яти,
холодним освіжаючим смаком. Останнім часом більшого значення набувають
синтетичні методи отримання компонентів даної олії, зокрема ментолу. Що
економічно є більш доцільним.
Ментол має чотири просторових ізомери, кожен з
яких може бути рацематом, або оптично активним ізомером. Стереоізомерні ментоли
відрізняються фізичними та токсикологічними властивостями, а також по запаху та
смаку.
Рис. 1 "ізомери ментолу"
Ізоментол, неоментол, а особливо неоізоментол
мають менш приємний смак та запах, з відтінком камфори (рис.1).
1.10
Властивості та застосування м'ятної олії
М'ятне масло міститься у
всіх частинах рослини - в суцвіттях, листі, стеблах і залежно від того, який
сорт м'яти, його кількість коливається.
До складу масла вводять:
ментол, терпінен, пінен, лімонен, тимол та інші компоненти. Всі ці речовини є
дуже активними біологічними сполуками, що володіють масою корисних
властивостей, завдяки яким ефірне масло м'яти так широко застосовується.
Властивості олії м'яти
1. Нервова система
Основна властивість олії
м'яти, яка широко використовується в народній і традиційній медицині - це
регулювання артеріального і венозного кровотоку, сприяє відтоку крові, яка
проходить по зовнішніх венах. Масло має антисептичну, протибактеріальну,
загоюючу, тонізуючу, стимулюючу, судинорозширювальну, розсмоктувальну й
відхаркувальну властивість.
. Сердечно -
судинна система
Хворим, у яких порушення
в динаміці роботи серця, проблеми з судинами, рекомендується приймати
розслаблюючі ванни з маслом м'яти і вживати чай з м'ятою, медом і лимоном.
. Шлунково-кишковий
тракт
При виразковій хворобі
шлунка і частому шлунковому болю, наносять масло на область живота або роблять
холодний компрес з маслом.
. Опорно-рухова
система
При травмах, ударах,
болях у м'язах, слід робити масаж з маслом, який сприяє профілактиці і при артриті
та ревматизмі.
. Простудні та
вірусні захворювання
Олія використовується як
потогінний, жарознижуючий, антисептичний засіб.
Протипоказання до
застосування олії м'яти
Лікарі категорично не
рекомендують використовувати масло для дітей молодше семи років, тому що воно
має сильний збудливий вплив. Ніколи не застосовуйте масло при лікуванні
бронхіту, так як воно пригнічує дію всіх гомеопатичних ліків. Не
використовується масло і ввечері - воно занадто збудливо впливає на нервову
систему, а ось вранці його використання буде більш доречним. Під час вагітності
ви можете використовувати масло, але дуже рідко і в самих мінімальних дозах.
Масло може викликати алергічні реакції, тому перед його використанням,
проведіть тест на алергію.
Допустимі дози масла:
· Масаж - не більше
6 крапель
· Компреси - не
понад 4 крапель
· Інгаляції теплі -
1, максимум 2 краплі
· Аромолампи - 3
краплі
· Аромомедальони -
2 краплі
· Ванни - 6 крапель
Внутрішнє вживання олії
залежить від вашого діагнозу, загального стану та інструкції по застосуванню
масла в тому чи іншому випадку. Щоб уникнути неприємних наслідків, перед
застосуванням масла потрібно консультуватися з лікарем.
Застосування ефірного
масла м'яти в косметології
Олія м'яти є найлегшим
серед усіх відомих масел, які містять у своєму складі ментол і чудово підходить
для будь-якого типу шкіри.
. Жирна шкіра
В даному випадку масло
допомагає очистити пори шкіри, стимулює роботи сальних залоз, зберігає в
клітинах вологу і підвищує еластичність шкіри, прибирає всі сліди набряків і
млявості. Сьогодні в аптеках, які спеціалізуються на екологічно чистих
препаратах, зроблених тільки з натуральних компонентів, продається засіб від
вугрової висипки, створене на основі ефірного масла м'яти. Допомагають ці
засоби і при бактеріальному дерматиті.
. Суха шкіра
З сухою шкірою завжди
багато проблем, особливо з її зволоженням і видаленням подразнення і лущення.
Але швидко і ефективно впоратися з проблемою допомагають маски з маслом м'яти:
кілька крапель олії змішують з вівсяними пластівцями або сметаною, вершками,
білою косметичною глиною, подрібненою м'якоттю огірка, гарбуза або кабачка.
. Чутлива шкіра
Для цього типу шкіри
використовуються тоніки, збагачені маслом м'яти, які підвищують захисні функції
шкіри, покращують її колір і вирівнюють рельєф.
Живильний крем для
чутливої шкіри: візьміть натуральний бджолиний віск (5 гр), масло м'яти (2
краплі), масло ши (2 гр). Віск і масло ши розтопіть на водяній бані, введіть
масло м'яти і ретельно все перемішайте, не знімаючи з бані. Чим частіше і
енергійніше ви будете працювати ложечкою, тим сильніше збагатите компоненти
киснем і поліпшите всі якісні характеристики свого крему. Склад покладіть в
скляну баночку і в літній час, зберігайте її в холодильнику. Масло м'яти досить
активне, тому його використовують і для боротьби з целюлітом.
Для маски вам потрібно: олія м'яти (5 крапель), кавова гуща
(3 ст. л.),масло кипариса
<#"868138.files/image002.gif">
0,900 - 0,910; 
1,459 - 1,470; КЧ - не вище 0,7 мг КОН/г; вміст зв’язаного
ментолу 4 - 10%; вміст вільного та зв’язаного ментолу - не менше 50%; вміст
ментону - не більше 30%; розчинність у чотирьох об’ємах 70% - вого етилового
спирту.
Переробка підв’яленої м’яти в апаратах -
контейнерах.
Даний спосіб переробки широко застосовується в США та
Канаді, які займають перше місце у переробці м’ятного масла. Досвід показав, що
в таких апаратах вихід ефірного масла підвищується не менше ніж на 20%;
ліквідується трудомістка операція загрузки сировини та відходів, знижуються
енергозатрати, збільшується продуктивність, та покращуються умови праці.
Переробка здійснюється наступним чином. Апарат - контейнер вивозиться в поле,
приєднується до польового подрібнювача, що разом складають збірний апарат.
Підбір, подрібнення підв’ялених валків м’яти і загрузка сировиною прикріпленого
контейнера проводиться косилкою підбірником - помільчувачем. Загрузка
подрібненої сировини здійснюється через передній загрузочний люк. Повнота
загрузки регулюється за рахунок повороту загрузочної труби. Заповнений
контейнер від’єднується від збірної машини, та приєднується до трактора, яким
транспортується на завод до пунтку для первинної перегонки масла. При
транспортуванні відбувається рівномірна укладка сировини по перерізу апарату.
На заводі контейнер установлюється на вільну пост - секцію, та приєднується до
іншого контейнера, в якому уже закінчився процес перегонки ефірної олії -
сирця.
Доставлений контейнер приєднується до паропроводу пункту,
загрузочний люк закривається кришкою, яка з’єднана трубопроводом з
холодильником та прийомником - маслороздільником так утворюється перегонна
установка. Після цього відкривається вентиль паропроводу і відбувається прогрів
сировини протягом 20 - 30 хв. з появою потоку дистиляту пускається вода в
холодильник і відраховується час перегонки. Швидкість гонки 500 - 600 л/год,
регулюють подачею пару в апарат, а температуру дистиляту - подачею води у
холодильник. Час перегонки складає 2 години. Через кожні 30 - 40 хв зливається
конденсат. По закінченні перегонки припиняють подачу пари, зливають конденсат,
від’єднують від контейнера паропровід і верхню кришку загрузочного люка з
відвідним паропроводом. Далі контейнер доставляють на місце вигризки відходів,
яка відбувається за допомогою самозвального механізму, при відкинутій задній
кришці. Кількість сировини, яка надходить до апарату складає 2800 кг. Час
повного циклу (загрузка сировини, транспортування, перегонка масла, вигризка
відходів) складає 230 - 290 хв.
Продуктивність контейнера, відповідно до часу циклу, 730 -
580 кг/год. Процес декантації м’ятного масла потрібно проводити при температурі
45 - 50 оС. Концентрація ефірної олії в дистиляційній воді після
прийомника - масло роздільника 0,06%. Вторинне ефірне масло отримують при
максимальній продуктивності когобаційної установки. Вторинна олія містить
більше ментолу ніж первинне.
Тому в кінцевому результаті їх купажують, зневоднюють
відстоюванням і направляють на ректифікацію.
Рис. 2 Установка для первинної перегонки м’яти
2.2
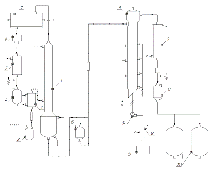
Вакуум - ректифікація м’ятного масла - сирця
Процес проводять під тиском 3,3 кПа в дві стадії:
на першій отримують збагачене масло та головні фракції, на другій - олію -
ректифікат та смоли. Масло - сирець зі збірника 2 через підігрівач 3 поступає в
ректифікаційну колону 1 ефективністю 7,7 ТТ. Утворені пари піднімаються по
колоні збагачуються легколеткими речовинами і направляються у дефлегматор 7.
Тут частина парів конденсується і через розподільник флегми 6 повертається у
вигляді флегми у ректифікаційну колону. Друга частина парів поступає в
холодильник 5, де проходить конденсація і охолодження дистиляту, який потім
стікає в вакуум - приймач 4. Збагачена олія з куба ректифікаційної колони
поступає безпосередньо в роторно - плівковий випарник 8, або через збірник 15 і
розділяється на олію - ректифікат та смоли. Утворенні пари олії конденсуються і
охолоджуються в холодильнику 9, масло - ректифікат збирається в маслозбірнику
10, а далі періодично транспортується в збірник 11. Смоли відводяться з нижньої
частини дистилятора насосом 14 через теплообмінник 12 в збірник 13. Оптимальні
режими відбору головних фракцій в колоні ректифікації забезпечується
температурою в парах 68 - 69 ос і флегмовим числом не менше 14.
Оптимальні режими відбору масла - ректифіката - питоме навантаження роторно-плівкового
випарника 12 кг збагаченого масла за годину на 1 м2 поверхні
теплообміну. При ректифікації стандартного масла-сирця (47% загального ментолу)
отримують близько 92% масла - ректифіката, 2 - 3% головних фракцій. Вихід
ментолу складає 98%, 1,5% залишається в смолах, інше в головних фракціях.
Втрати ментолу можуть бути зменшені виділенням зі смол ефірної олії водяним
паром.
Рис. 3 Технологічна схема вакуум - ректифікації
м’ятного масло - сирця.
2.3
Технологічні розрахунки
Габаритні розміри колони ректифікації.
Вихідні данні: 
500л/год = 12000л/добу, 
t=35оc. Хс = 0,4%
Кількість олії, яка переганяється із сировини.
Продуктивність по сировині:
Робочий об’єм апарату:
Площа поверхні контакту фаз:
- лінійна швидкість.
Діаметр колони:

=
Висота колони:
На основі отриманих даних, обираємо обладнання, яке є
найбільш оптимальним для процесу перегонки. Таким чином, вибираємо як основний
апарат колону ректифікації типу НДТ-3М. Технічні характеристики колони: d=0,85;
H=6,8м; Vp= 1,5м3; для процесу ректифікації заповнюємо
колону сировиною на 40% - 750 кг, зі швидкістю гонки 
, для головних фракцій, 170л/год для середніх фракцій, та 300л/год
для кінцевих твердих фракцій.
2.3.1
Матеріальний баланс виробництва. Матеріальні розрахунки

- вихід
готової продукції

- залишок, який повертається на повторну перегонку
Видатковий коефіцієнт апарату К=1,067
Загальний обсяг отримання ефірного масла, з первинного
масла-сирця:
Виробничі втрати:
Вихід товарного масла з первинного сирця:
Коефіцієнт виробничих втрат:
2.3.2
Тепловий баланс
=2,6кДж/кг - теплоємність ефірного масла при
середній температурі.

(підігрів)
= 
- питома теплота пароутворення
Втрати теплоти складають 5% від загальної кількості
теплоти.
Маса пару на 1 кг сировини, який поступає в апарат під
тиском р = 2 атм:
м'ятне ефірне масло ректифікація

питома теплота пароутворення для води при р = 2 атм.
Норми витрат води, і електроенергії на виробництво ефірної
олії м’яти, з сировини вологістю 55%, беремо з довідника.
Витрата води становить 2000 кг/зміну;
Витрати електроенергії - 5,6 кВт*год/кг.
2.4
Компонування обладнання в цеху
Розміщення обладнання в цеху здійснюється згідно
технологічної схеми отримання ефірного масла м’яти. Розміри основного апарату -
ректифікаційної колони розраховуються, решта обладнання підбирається відповідно
до об’єму випускної продукції за технічними характеристиками. Загальна площа
цеху 144м2 (12*12). Специфікація технологічного обладнання
приводиться в додатку В. План розміщення технологічного обладнання в цеху
приводиться в додатку Б.
3.
Екологія
Охорона навколишнього
середовища - сукупність заходів, які забезпечують оптимальне функціонування
фізичних, хімічних і біологічних параметрів природних і антропогенних систем, в
яких проходить праця, побут і відпочинок людей.
У процесі виробничої
діяльності відбувається природний процес вилучення з природи необхідних
речовин, сировини для промислового виробництва. Забруднення і отруєння
навколишнього середовища шкідливими речовинами і виснаження природних ресурсів
набули в останній період великих масштабів.
Охорона навколишнього
середовища і раціональне використання природних ресурсів у процесі виробничої
діяльності є однією з найбільш актуальних природоохоронних заходів.
Радикальне вирішення
проблем охорони навколишнього середовища від негативного впливу промислових
об'єктів можливе при широкому застосуванні безвідходних і маловідходних
технологій. Використання очисних пристроїв і споруд не дозволяє повністю
локалізувати токсичні викиди, а застосування більш досконалих систем очищення
завжди супроводжується ростом витрат на здійснення процесів очищення навіть у
тих випадках, коли це технічно можливо. Стовідсоткове очищення теоретично
можливе, але практично нездійсненно через громіздкість очисних споруд і їх
колосальної вартості. Отже, потрібно шукати альтернативне рішення, а саме:
впроваджувати маловідходну і ресурсозберігаючу технологію.
Екологічний паспорт
промислового підприємства - нормативно-технічний документ, що включає дані по
використанню підприємством природних та вторинних ресурсів і визначення впливу
виробництва на навколишнє середовище. В екологічному паспорті відображаються
дані про вплив на навколишнє середовище всіх елементів:
відомості про технології;
кількісні і якісні
характеристики використовуваних ресурсів: сировини, палива, енергії;
кількісні характеристики
продукції;
кількісні і якісні
характеристики викидів (скидів, відходів) забруднюючих речовин від
підприємства.
Дане ефіромасляне
виробництво пов'язане з використанням вогне- і вибухонебезпечних розчинників,
які є швидколеткими і легколеткими рідинами. Отже, особливу увагу слід приділити
охороні атмосфери.
При виробництві ефірної
олії м'яти утворюються стічні води і тверді вторинні матеріальні продукти
(відходи дистиляції).
Стічні води підприємства
містять забруднюючі речовини хімічного походження, які надходять у воду при
контакті з водою, миття обладнання, трубопроводів і ємностей.
На ефіромасляному заводі
стічні води, що містять хімічні речовини піддаються попередньої очищення та
регенерації у випарних апаратах.
Відходи дистиляції після
регенерації у випарнику є нешкідливими для навколишнього природного середовища
і можуть бути використані в якості органічного добрива.
При виборі способів і
технологічного обладнання для очищення стічних вод від домішок необхідно
враховувати, що задані ефективність і надійність роботи будь-якого очисного
пристрою забезпечуються в певному діапазоні значень концентрацій домішок і
витрат стічної води.
4.
Охорона праці
Охорона праці - це
система правових, соціально-економічних, організаційно-технічних,
санітарно-гігієнічних і лікувально-профілактичних заходів та засобів,
спрямованих на збереження здоров'я і працездатності людини в процесі праці.
Правовою основою
законодавства щодо охорони праці є Конституція України, Закони України:
"Про охорону праці", "Про охорону здоров'я", "Про
пожежну безпеку", "Про забезпечення санітарного та епідеміологічного
благополуччя населення", "Про загальноосвітній державне соціальне
страхування від нещасного випадку на виробництві та професійного захворювання,
які спричинили втрату працездатності", а також Кодекс законів про працю
України.
Працівники підприємств
мають право на соціальний захист, повне відшкодування шкоди від нещасних
випадків і професійних захворювань.
Для створення здорових і
безпечних умов праці необхідно правильно вибрати майданчик для розміщення підприємства
з виробництва абсолютного масла і раціонально розташувати на ній виробничі,
допоміжні та інші будівлі і споруди.
Виробничі будівлі по
виробництву абсолютного масла розташовують по ходу технологічного процесу і
згруповані з урахуванням спільності санітарних, протипожежних вимог, споживання
електроенергії, руху транспорту і людей.
При плануванні виробничих
приміщень для підприємства по виробництву абсолютного масла необхідно
враховувати санітарну характеристику виробничих процесів, дотримуватись норм
корисної площі для працюючих, а також нормативів площ для розташування
устаткування і необхідної ширини проходів, що забезпечують безпечну роботу та
зручне обслуговування устаткування.
Відповідно до вимог ГОСТу
і санітарним нормам об'єм виробничих приміщень на одного працюючого повинен
складати не менше 15 м3, а площа приміщень - не менше 4,5 м2.
Ширина основних проходів
всередині цехів та дільниць повинна бути не менше 1,5 м, а ширина проїздів -
2,5 м.
Важливе значення для
здорових та безпечних умов праці працівників має раціональне розташування
основного та допоміжного обладнання. До устаткування, що має електропривід,
згідно вимогам безпеки повинен бути вільний підхід з усіх сторін шириною не
менше 1 м зі сторони робочої зони і 0,6 м - зі сторони неробочої зони.
Ширина виходів з
приміщень має бути не меншою 1 м, висота - 2,2 м При русі транспорту через
двері їх ширина повинна бути на 0,8 м більше габариту транспорту з обох сторін.
Підлоги виробничих
приміщень повинні бути зносостійкими, теплими, неслизькими, щільними, легко
митися, а в деяких цехах та дільницях волого-, кислото- та вогнестійкими. Через
підлогу в інші приміщення не повинні проникати вода, масло, шкідливі речовини,
гази.
Обладнання повинно бути
оснащене контрольно-вимірювальними приладами, автоматичними регуляторами,
автоматикою безпеки і виробничої сигналізацією згідно з технологічною схемою
виробництва.
Пускові пристрої
обладнання у відповідності з технологічною схемою повинні бути зблоковані таким
чином, щоб у разі зупинки будь-якого апарату або транспортного засобу,
попереднє обладнання автоматично відключалося, а подальше працювало до повного
видалення продукту, що транспортується.
Апарати, дистилятори,
екстрактори, ректифікатори проміжні ємності і т.п. повинні бути оснащені
майданчиками для безпечного обслуговування, огляду та ремонту, розташованими у
місцях, доступних для обслуговування. При цьому обов'язково наявність
аварійного зливу.
Запобіжні клапани, що
встановлені на апаратах і трубопроводах, повинні бути підключені до
конденсаторів рекупераційної системи.
Вакуум-апарат повинні
мати огородження приводу мішалки. Завантажувальна горловина апарату повинна
бути піднята над майданчиком обслуговування не менш ніж на 0,5 м. Знімна кришка
повинна мати запірний пристрій, який закривається при роботі мішалки.
Перегінні апарати повинні
бути забезпечені:
кранами для спуску
конденсату з сорочки апарату;
конденсаційними горщиками
на лінії спуску конденсату;
запобіжним пристроєм, що
виключає можливість перевищення робочого тиску всередині апарату: установка
запірного пристрою між перегінним апаратом і гідравлічним затвором не
допускається;
манометром з
пристосуванням для встановлення контрольного манометра - триходовим краном або
пристроєм його замінює, для відключення манометра від апарату і з'єднання з
атмосферою; манометри повинні забезпечуватися сифонними трубками.
Щоб уникнути гідравлічних
ударів у зв'язку з несправністю конденсаційних горщиків, останні треба
піддавати періодичному огляду і регулювати не рідше одного разу на місяць,
згідно з графіком, затвердженим головним інженером підприємства.
При спуску кубового
залишку з перегінних апаратів повинні бути передбачені спеціальні
пристосування, що виключають розбризкування.
Конструкція обладнання та
його вузлів повинні забезпечувати безпеку й зручність при обслуговуванні,
ремонті і санітарної обробки.
Операції з чищення, миття
та санітарної обробки ємкостей та апаратів повинні проводитися механізованим
способом, що забезпечує безпеку обслуговуючого персоналу.
Розміщення трубопроводів,
шлангів, штуцерів повинно забезпечувати безпеку експлуатації, можливість
безпосереднього спостереження за їх технічним станом і виконанням монтажних
робіт.
Шланги до трубопроводів
повинні кріпитися за допомогою фіксованої накидкою гайки.
Обслуговуючий персонал
ефіроолійних підприємств повинен знати характеристики пожежної небезпеки
застосовуваних або вироблюваних (отримуваних) речовин та матеріалів.
Застосовувати в технологічних процесах речовини й матеріали з невивченими
показниками пожежної небезпеки забороняється.
Механізація і
автоматизація виробничих процесів повинні забезпечувати пожежовибухобезпечність
їх проведення, а також можливість контролю і регулювання технологічного
процесу. Дистанційне управління повинно здійснюватись з центрального пульта
управління.
Відновлення роботи
сезонних підприємств повинно здійснюватися після перевірки комісією та
приведення виробництв в пожежо - вибухобезпечний стан.
Збірники ефірного масла і
розчинників повинні експлуатуватися з герметично закритими кришками люків і
мати пристрій для виміру рівня заповнення без відкривання люків.
Відбір проб ефірного
масла і ректифікату для аналізу слід здійснювати в місцях, встановлених
технологічним регламентом.
Робота дистиляційних
апаратів дозволяється тільки після пуску води в конденсатор.
Інструкція з охорони
праці при роботі на апаратах.
. Загальні вимоги.
.1 До управління
допускаються особи не молодше 18 років, які мають кваліфікацію апаратника, що
пройшли інструктаж по техніці безпеки на даному робочому місці і володіють
необхідними знаннями і навичками по експлуатації та обслуговування даній
установці.
.2 Особи, знов прийняті в
цех екстракції, а також переведені з іншого робочого місця, можуть бути
допущені до самостійної роботи тільки після стажування на робочому місці.
Тривалість роботи стажиста встановлюється адміністрацією підприємства з
урахуванням складності виробництва і професії, але не повинна бути для основних
професій менше десяти днів.
.4 При слабкому отруєння
може виникнути головний біль, біль в області шлунка, неприємне відчуття в
горлі, кашель, подразнення очей з почервонінням, кон'юнктивіт. При сильному
отруєнні - запаморочення, нудота, збудження (голосна розмова, безпричинний
сміх, легке сп'яніння).
При слабкому отруєння
потерпілого вивести на свіже повітря, забезпечити спокій, тепло, звільнити від
одягу, що стискує, дати валеріанові краплі.
При втраті свідомості
потерпілого необхідно надати горизонтальне положення з дещо опущеною головою і
забезпечити вдихання парів нашатирного спирту. При різкому ослабленні дихання
провести штучне дихання. Негайно викликати лікаря.
.5 Для ослаблення
можливої дії водяних парів необхідно використовувати такі засоби
індивідуального захисту: бавовняні халати або бавовняні костюми, спецвзуття,
рукавиці та захисні окуляри.
.6. Організація і
загальне керівництво робіт по техніці безпеки, пожежної безпеки і промсанітарії
покладається на керівництво підприємства.
.7 Відповідальність за
техніку безпеки і пожежну безпеку окремих дільниць цеху, несуть їх керівники.
Парфумерно-косметичні виробництва
характеризуються трьома видами небезпеки: пожежонебезпечністю,
травмонебезпечністю, токсичністю. Сировиною для косметичних, парфумерних
засобів є горючі та легкозаймисті речовини. До горючих відносять рідини з
температурою загоряння вище 66ос, легкозаймистими рідинами - рідини
з температурою загоряння нижче 61ос. Температурою загорання
називають найменшу температуру горючої рідини, при якій її пари піднесенні до
вогню спалахують. Легко займисті речовини (ЛЗР) поділяються на 3 групи:
· I - надзвичайно
небезпечні ЛЗР з температурою загорання від - 13ос і нижче.
· II - постійно небезпечні
ЛЗР з температурою загорання від 13ос до +27ос.
· III - небезпечні ЛЗР при
підвищеній температурі повітря з температурою спалахування від 27 до 61ос
Наприклад: етиловий спирт, який застосовується у
великих кількостях має температуру спалахування 12ос, відповідно,
він відноситься до ЛЗР II класу. Композиції, що входять до складу парфумів та
одеколонів, відносяться до горючих рідин, а власне парфуми - до II класу.
Так як сировина і готова парфумерно-косметична
продукція відноситься до горючих і легкозаймистих речовин, їх відносять до
пожежо - та вибухонебезпечних.
Обслуговуючий персонал повинен бути ознайомлений
з пожежонебезпечними видами робіт, та знати правила попередження спалахування
та самозагорання. Кожен робітник повинен знати і вміти користуватися первинними
засобами пожежогасіння, у випадку загорання вміти викликати пожежну бригаду,
користуючись сигналізацією, або телефоном.
Парфумерно-косметичні виробництва також
відносяться до травмонебезпечних. При недотриманні інструкцій по обслуговуванню
обладнання і веденню технологічного процесу можуть бути виробничі травми.
Виробничим травматизмом називають пошкодження
окремих органів, або порушення функцій всього організму робітника в результаті
несподіваної, короткочасної дії на нього оточуючого середовища, під час роботи.
До виробничого травматизму відносять: порізи, уколи, забиття, переломи кісток,
хімічні та термічні опіки, ураження електричним струмом, і т.п. При отриманні
травми на виробництві відразу ж звертаються до медичного пункту, чи
адміністрації цеху. Установлене на підприємстві та підсобних приміщеннях
обладнання та його робочі органи ретельно огороджуються щитами, які не
заважають при обслуговуванні апарату у роботі та ремонті. При відсутності
огороджень забороняється працювати, так як з’являється можливість захвату одягу
частинами апарату, що обертаються.
На механізмах та обладнаннях вивішують показники
допустимих експлуатаційних нормативів, із вказівними стрілками направлення
обертання. На запірній арматурі трубопроводів вивішують таблички з вказівною
стрілкою направлення руху пари, гарячої води, продуктів виробництва. Перед
включенням автомата, лінії, окремої машини переконуються, що вона справна, а
також в тому, що пуск обладнання не загрожує нікому небезпекою. У випадку
несправності робітник сповіщає про це бригадиру.
Природне та штучне освітлення робочих місць в
значній мірі сприяє кращій організації виробництва, постійному підтриманню
санітарного режиму і високої продуктивності праці.
Всі транспортні операції з сильнодіючими
речовинами (кислоти, луги і т.д.) здійснюється тільки за допомогою вакуума чи
насоса. Дозволяється працювати з кислотами та лугами тільки кваліфікованим
працівникам, з обов’язковим застосуванням захисних окулярів та рукавиць. При
хімічних опіках рану обробляють нейтралізуючим препаратом. При роботі
фасувальних машин вони вмикаються та вимикаються автоматично, зупинити їх
можливо при закінченні роботи, а у екстрених випадках за допомогою кнопки
"екстрена зупинка". При виготовлені кремів слідкують за тим, щоб не
переповнювались котли - реактори, через що буває викид маси і робочий може
отримати опік.
Завантаження, вивантаження та відбір проб
косметичних мас проводять тільки при вимкнених мішалках. Для запобігання
термічних опіків всі тубопроводи теплоізолюють.
Обладнання, механізми, трубопроводи та їх деталі
фарбують за установленими правилами, що значно полегшує обслуговування і
попереджує від нещасних випадків. Наприклад, обладнання небезпечне по
відношенню до травматизму фарбують вертикальними полосами жовтого та чорного,
парові трубопроводи - в яскраво-червоний, водяні - в зелений, повітряні - в
блакитний, пожежний водопровід - в оранжевий.
Парфумерно-косметичні виробництва можуть
представляти небезпеку з точки зору токсичності. Цілий ряд речовин, які
використовуються в даних виробництвах, відносяться до шкідливих речовин. Це
такі речовини, які при певній концентрації в повітрі можуть викликати
професійні отруєння та захворювання. Тому для належних умов праці установлені
санітарні норми - гранично допустимі концентрації.
ГДК - це така концентрація шкідливих речовин, при
якій не відбувається змін в організмі, при тривалій дії цих речовин,
вимірюється в мг/кг.
По ступеню дії на організм людини, шкідливі
речовини поділяються на 4 класи:
· 1-й - надзвичайно
небезпечні (етиловий спирт)
· 2-й - високо небезпечні
(формалін)
· 3-й - помірно небезпечні
(окис цинку)
· 4-й - мало небезпечні
(ізоамілацетат)
На підприємствах постійно ведеться контроль за
станом повітряного середовища. При фасуванні та пакуванні готової продукції
керуються типовими правилами по техніці безпеки, з деякою специфікацією, в
залежності від операцій.
Категорично забороняється на робочому місці
куріння та прийоми їжі. Крім дотримання правил техніки безпеки, всі працюючі на
підприємстві виконують санітарні правила в роботі. Вони включають нормативні
вимоги, санітарні правила, яких потрібно дотримуватися при проведені
технологічних процесів, утримання устаткування, робочого місця та підприємства
в цілому. Дані норми розробляються на підприємстві на основі загальних правил,
але які стосуються даного цеху і виробництва, та затверджуються адміністрацією.
Дотримання санітарних правил робітниками підприємств строго обов’язкове,
особливо для косметичних виробництв, де проводяться роботи з біологічно
активними речовинами, та ідеальною чистотою готової продукції.
Висновки
У курсовому проекті розглянуті основи процесу
отримання м’ятного ефірної масла - ректифіката, принципи роботи основного
обладнання та його переваги над іншими способами. Основною перевагою процесу
отримання м’ятного масла з підв’яленої сировини вологістю 55%, є більший вихід
продукту, краща якість продукту, і данний спосіб одержання олії є найбільш
економічно вигідним.
Також у роботі приведені розділи щодо видів
ефіромасляної сировини, методів отримання ефірних олій, відомості про охорону
праці та навколишнього середовища.
Був проведений розрахунок габаритних розмірів
технологічного обладнання, та здійснений вибір найбільш оптимального
додаткового конструктивного устаткування, з наступними параметрами висота
колони Н=6,8м, діаметр d=0,85м. Був також розрахований матеріальний та тепловий
баланс виробництва.
У процесі роботи було розроблено технологічну
схему виробництва, план розташування обладнання у цеху.
Список
використаної літератури
1. Павлов К.Ф. Примеры и задачи по курсу процессов и
аппаратов химической технологии / К.Ф. Павлов, П.Г. Романков, А.А. Носков. -
Л.: Химия, 1987. - 575 с.
2. Основные процессы и аппараты химической технологии:
Пособие по проектированию / под ред. Ю.М. Дытнерского. - 2-е изд. - М.: Химия,
1992.
. Основы проектирования химических производств: Учебник для
вузов /Под ред.А.И. Михайличенко. - М.: ИКЦ "Академкнига" 2010. -
371с.
. Санитарные нормы проектирования промышленных предприятий.
СН 245-74. - М.: Стройиздат, 1971.
. Башура А.Г., Гладух Н.П. Технология косметических и
парфюмерных средств. - НФАУ, 2002. - 272 с.
. Пешук Л.В., Бавіка Л.І., Демідов І. Технологія
парфумерно-косметичних продуктів. - К.: Центр учбової літератури, 2007. - 376c.
. Кривова А.Ю., Паронян В.Х. Технология производства
парфюмерно-косметических продуктов. М.: ДеЛи принт, 2009. - 668 с.
. Каспаров Г.Н. Основы производства парфюмерии и косметики.
- 2-е изд., перераб. И доп. - М.: "Агропромиздат", 1988. - 287 с.:
ил. - (Учебники и учеб. Пособия для техникумов).
9. Гельперин Н.И. Основные процессы и
аппараты химической технологии. - М.: Химия, 1981. - 610 с.
10. Генкин А.Э. Оборудование химических
заводов. - М.: Высшая школа, 1978. - 272 с.
. Охрана труда в химической промышленности
/Н.В. Соловьев, М.А. Стрельчук, П.И. Ермилов, Б.Л. Канер - М.: Химия, 1969. -
363 с.
. А.П. Чипига. Справочник технолога эфиромасличного
производства. - М.: Легкая и пищевая промышленность, 1981. - 184 с., ил.
13. Технология натуральных эфирных масел и синтетических
душистых веществ/ Сидоров И.И., Турышева Н.А., Фалеева Л.П., Ясюкевич Е.И. М.;
Легкая и пищевая промышленность, 1984. - 368 с.
. Войткевич С.А. Эфирные масла для парфюмерии и
аромотерапии.М. "Пищевая промышленность" - 1999. - 673с.
15. Оборудование производства парфюмерно-косметических изделий,
синтетических душистых веществ и эфирных масел.А.М. Журавлев, В.С. Непомнящий,
А.Е. Огарев, В.В. Осипов. - М.: Пищевая промышленность, 1980. - 264 с.
. Основы охраны труда. Купчик М.П. и др. - К.: Основа,
2000. - 41
. Конструирование промышленных зданий и сооружений: Учеб.
пособие для студентов строит. специальностей вузов. - 3-е изд., перераб. и доп.
Шерешевский И.А. - Л.: Стройиздат, 1979. - 168 с.
. Кускова С.Д. Справочник по эфирным маслам.М.,
"Пищевая промышленность", 1978г. - 208с.
. Маркетинговая стратегия предприятий АПК. Иванец В.М.
КГАУ. - Симферополь.: "Таврия”, 1997.
. Методические рекомендации и практическое руководство по
составлению бизнес-плана. Учебное пособие. Воронин А.Е., Горин В.А., Заготов
В.А., Иванец В.М. Симферополь: Таврия, 2001. - 84с.
. Международный конгресс по эфирным маслам, 4-й. Тбилиси
1968г. Краткое содержание докладов. М.: Агропромиздат - 224с.