Расчет механизма подъема крана с электроприводом

  • Вид работы:
    Курсовая работа (т)
  • Предмет:
    Другое
  • Язык:
    Русский
    ,
    Формат файла:
    MS Word
    214,61 Кб
  • Опубликовано:
    2016-04-17
Вы можете узнать стоимость помощи в написании студенческой работы.
Помощь в написании работы, которую точно примут!

Расчет механизма подъема крана с электроприводом

1. Выбор типа подъемного органа

подъемный барабан двигатель грузозахватный

В качестве подъемного органа выбираем стальной проволочный канат двойной свивки.

- стальные проволочки, составляющие прядь;

- прядь;

- сердечник каната;

Сечение каната

2. Определение натяжения каната и выбор его по ГОСТ

                                                              (2.1)

где

Fрасч - расчетное разрывное усилие каната;

k - коэффициент запаса, для ПВ = 25% k = 5,5                 [2, с. 6]

Fmax - максимальное натяжение в ветке каната;

Fразр - разрывное усилие каната;

;                                                           (2.2)

где

iпол. - кратность полиспаста;

ηпол. - КПД полиспаста (ηпол.=0,96); [2, с. 7]

Gпод. - вес грузовой подвески, Н;

;

По ГОСТ 2688 - 80 выбираем канат двойной свивки с            [1, с. 277]

Канатная формула:

Канат 12 - Г - I - 1764 ГОСТ 2688 - 80

где

- диаметр каната, мм;

Г - назначение каната, канат грузовой;

I - марка проволок;

- предел прочности на разрыв проволоки, МПа;

ГОСТ 2688 - 80 - ГОСТ каната;

Конструкция каната:

Канат ЛК - Р - 6×19 (1+6+6/6)+1 о.с. ГОСТ 2688 - 80

где

ЛК - Р - с линейным касанием проволок разных диаметров в верхнем слое пряди;

6×19 - канат шестипрядный, по 19 проволок в пряди;

(1+6+6/6) - навивка проволок по слоям;

о.с. - органический сердечник;

ГОСТ 2688 - 80 - ГОСТ каната.

3. Расчет барабана

Профиль канавок на барабане

Определение диаметров барабана

                                                                    (3.1)

где

Dб - диаметр барабана;

e - коэффициент диаметра барабана, принимаемый по нормам

Госгортехнадзора в зависимости от режима работы (для ПВ = 25% е = 25);                                                                                            [1, с. 59]

dк - диаметр каната, мм;

;

                                                             (3.2)

где

Dб.расч - расчетный диаметр барабана;

Выбор профиля и размеров канавок.

Размеры профиля канавок барабана выбираются в зависимости от диаметра каната dк.

Для dк = 12 мм                                                            [1, с. 60]

t - шаг нарезания канавок на барабане;

t = 13,5 мм

rк - радиус канавки;

rк = 6,5 мм

с - глубина нарезания канавок; с = 3,5 мм

Определение длины нарезаемой части и полной длины барабана.

                                                               (3.3)

где

zр - число рабочих витков барабана

Схема барабана




;


Принимаем zр = 8,5

                                                        (3.4)

где

zсум - общее число витков каната на барабане;

zкр - витки каната на барабане, находящиеся под зажимным устройством, принимаем zкр = 2;

z0 - число несматываемых витков, принимаем z0 = 2;


                                                                    (3.5)

где

lн - длина нарезаемой части барабана;

Принимаем

                                                               (3.6)

где

lб - длина барабана;

b - длина не нарезаемой части барабана, принимается b = (6…8)∙t;

b = 6∙13,5 = 81 мм

а - расстояние между винтовыми нарезками в центре барабана принимается конструктивно, исходя из расстояния между блоками крюковой подвески (а=150…200 мм);

Принимаем

Определение толщины стенки барабана

Для изготовления барабана применяем серый чугун СЧ 15 ГОСТ 1412 - 85 ().

Тогда:

                                      (3.7)

где

δ - толщина стенки барабана;

Принимаем

Проверка барабана на прочность.

Т.к. lб<3∙Dб, то основными являются напряжения сжатия.

                                                       (3.8)

Барабан пригоден для работы.

4. Выбор типа крепления каната к барабану и его проверочный расчет

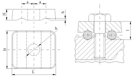
Для закрепления каната на барабане устанавливаем накладку с полукруглыми канавками с одним болтом.

Крепление каната накладкой

                                                                    (4.1)

где

Fкр - натяжение каната в месте крепления на барабане;

f - коэффициент трения между канатом и барабаном, (f = 0,1…0,16);

Принимаем f = 0,13

α - угол обхвата барабана неприкосновенными витками, α = z0∙2π;

α = 2∙2π=4π




Размеры накладки выбираются в зависимости от диаметра каната.

Для dк = 12 мм                                                            [3, с. 10]

Н - толщина накладки;

Н = 12 мм;

В-длина накладки;

В = 40 мм;

L - ширина накладки;

L = 40 мм;

d - диаметр отверстия под винт;

d = 13 мм;

r - диаметр канавки;

r = 10 мм;

h - глубина канавки;

h = 1,5 мм;

a= 13 мм;

α= до 5ͦ

Принимаем для крепления каната к барабану 2 накладки и выбираем винт М12

Сила затяжки одного винта:

                                                (4.2)

где

α1 - угол обхвата барабана витком каната, α = 2π; (один виток вокруг барабана);

 - приведённый коэффициент трения между канатом и накладкой; Для канавок с полукруглыми канавками принять ;

Сила, изгибающая винт:

                                                                          (4.3)

где

Fи - сила, изгибающая винт;

= (dк+Н) - h

= (12+12) - 1,5=22,5 мм


                                                  (4.4)

где

d1 - внутренний диаметр резьбы винта, для резьбы М12 d1 =10,106 мм;

К - коэффициент запаса, надежности крепления каната, К≥ 1,5;

(Принимаем К=2).

р] - допускаемое напряжение винта на растяжение, МПа

;

где

предел текучести материала винта, МПа (для стали 35МПа) [4, с. 98]

коэффициент запаса прочности. При диаметрах винта М6 - М16 n=3…4

МПа;


Накладка работоспособна с запасом в 1,1 раз.

5. Выбор грузового крюка и его подвески

Выбор грузового крюка и его подвески осуществляется в зависимости от величины грузоподъемности и режима работы.

Для Q = 5 т и ПВ=25% по ГОСТ 6627 - 74 выбираем крюк однорогий с номером заготовки крюка - 13 исполнение 1: [1, с. 297]

Заготовка крюка 13 - 1 ГОСТ 6627 - 74

Табл.1 Размеры крюка

D

S

b

h

d

d1

d2

L

l

l1

l2

r

r1

r2

r3

r5

r6

r7

r8

r9

Вес в кг

75

55

48

75

52

45

М42

250

38

105

60

11

85

10

40

100

50

75

25

-

9,6


Все размеры в мм.

Материал крюка Сталь 20 ГОСТ1050-88

Для Q=5 т. и среднего режима работы выбираем крюковую подвеску:


Табл.2. Размеры крюковой подвески

Q, т

Режим работы

Тип

Диаметр каната в мм

D

D1

B

b

b1

H

h

Вес в кг.

5

С

I

11

320

405

305

200

125

612

335,5

72




Крюк однорогий

Крюковая подвеска

Рассчитаем хвостовик крюка на растяжение

 (5.1)

где -внутренний диаметр резьбы М42

Для стали 20 МПа

 Условие прочности выполняется.

Схема полиспаста

6. Выбор специального грузозахватного устройства и его расчет на надежность

Постановка задачи:

В качестве специального грузозахватного устройства выбираем эксцентриковый захват.

Подъем производится на высоту Н = 3 м,

Груз - стальные листы т = 2000 кг, (G=19620 Н);

Длина: а = 4000 мм

Ширина: b = 1000 мм

Толщина: δ=10 мм.

Расчет:

Усилие распора N создаёт силу трения:

                                                   (6.1)

где

 - коэффициенты трения груза (стального листа), соответственно об эксцентрик и заднюю стенку захвата.

Условие удержания поднятого груза:

                                                                     (6.2)

где

, , тогда необходимая сила распора:

                                                                    (6.3)

где

k - коэффициент запаса, (k=1,25…1,5).



 следовательно условие удержания груза выполняется.       

Из уравнения моментов относительно оси эксцентрика (т. О) получаем соотношение, определяющее параметры эксцентрика:

                                                       (6.4)

где

 - радиус эксцентрика

 - толщина листа

Из (6.4) получим:

                                                           (6.5)


Схема эксцентрикового захвата

7. Определение частоты вращения барабана и выбор КПД механизма


                                                    (7.1)


где


nб - частота вращения барабана;

Выбор КПД механизма.

                                                             (7.2)

где

ηобщ - общий КПД механизма;

ηпер - КПД передач, принимаем ηпер = 0,85;

ηпол - КПД полиспаста (ηпол=0,96);


8. Определение требуемой мощности двигателя и выбор его по ГОСТ

                                                     (8.1)

где

kзап - коэффициент запаса, kзап = 1,15;

Выбираем двигатель серии MTKF с короткозамкнутым ротором по ГОСТ 19523 - 81

Электродвигатель серии MTKF 312-6

Мощность на валу электродвигателя (при ПВ=25%): Рдв = 17,5 кВт;

Частота вращения ротора: пдв = 915 мин-1

Диаметр вала: dдв = 50 мм

Пусковой момент: Тпус.=590 Н·м;

Маховый момент ротора: GD2 = 4g·Jрот., Н·м2;

где

Jрот. - момент инерции ротора двигателя, кг·м2; (Jрот.=0,3 кг·м2);

g - ускорение свободного падения, g=9.81 м/с2.

GD2 дв= 4·9,81·0,3 =11,77 Н·м2;

Масса: 195 кг

Определение общего передаточного числа и выбор редуктора по ГОСТ.

                                                                    (8.1)

где

Uпер - передаточное число передач;

Выбираем по передаточному числу и мощности в зависимости от режима работы горизонтальный цилиндрический двухступенчатый редуктор типа РМ - 500 по ГОСТ 20373 - 80.                                      [1, стр. 322]

Частота вращения вала: 1000 мин-1

Передаточное число

Uред = 31,50;

Диаметр хвостовика быстроходного вала: d = 50 мм

ηред = 0,96

Так как передаточное число редуктора отличается от расчетного передаточного отношения, определим фактическую скорость подъёма груза:

                                                                                (8.2)

                      

                                                                       (8.3)

Фактическая скорость подъёма:

;                                                                      (8.4)

Расхождение составляет 2,17%, что допустимо.

Выбор муфт

Расчетный момент муфты

                                                          (8.5)

где

 - номинальный момент на валу муфты;

k1 - коэффициент, учитывающий степень ответственности механизма, k1 = 1,3;

k2 - коэффициент, учитывающий режим работы механизма, k2 = 1,2; [1, стр. 42]

Для вала барабана

                                                       (8.6)

Для вала двигателя

                                                             (8.7)

                                                                 (8.8)

Выбираем муфты:

Для вала двигателя МУВП 800 ГОСТ 21424 - 75 с тормозным шкивом.

С передаваемым крутящим моментом 800 Н ∙ м;                        [1, стр. 340]

шириной тормозного шкива B = 145 мм;

маховым моментом инерции: GD2 = 4g·Jм., Н·м2;

где

Jм. - момент инерции муфты, кг·м2; (Jм.=0,6 кг·м2);

g - ускорение свободного падения, g=9.81 м/с2.

GD2 м= 4·9,81·0,6 =23,54 Н·м2;

Масса муфты - 60 кг.

Муфта упругая втулочно-пальцевая 800-50-I ГОСТ 21424-75

Для вала барабана МЗ 8000 ГОСТ 5006 - 55.                   [1, стр. 333]

С передаваемым крутящим моментом 8000 Н ∙ м.

Муфта зубчатая 8000-90 - ГОСТ 5006-55

9. Проверка двигателя на перегрузку

Проверка двигателя на перегрузку в установившемся режиме работы.

Для нормальной работы электродвигателя необходимо соблюдать следующее условие:

Тном > Тст                                                                      (9.1)

где

Тном - номинальный момент на валу электродвигателя;

Тст - необходимый вращающий момент на валу электродвигателя в установившемся режиме работы;

                                                         (9.2)

,65 Н ∙ м > 148,12 Н ∙ м.

Условие выполняется.

Проверка двигателя на перегрузку в момент пуска.

                                                             (9.3)


ψ - кратность пускового момента;

Тпуск - пусковой момент (момент на валу электродвигателя в момент пуска);

Тпуск = Тст + Тдин                                                                                                  (9.4)

Тдин - динамическая составляющая пускового момента;

Тдин = Тин1 + Тин2                                                          (9.5)

                                                                     (9.6)

где

п1 - частота вращения 1-го вала (nдв);

tП - время пуска, принимаем tП = 2 c;

 - маховой момент суммарный;

 = GD2дв + GD2муф                                                          (9.7)

 = 11,77 + 23,54 = 35,31 кгс ∙ м2;


                                                            (9.8)

Тдин = 48,63 +1,76 = 50,39 Н∙м

Тпуск = 148,12 + 50,39 = 198,51 Н∙м

,34<3,23

Условие выполняется.

. Выбор двухколодочного тормоза и его проверочный расчет.

Выбор двухколодочного тормоза по ГОСТ.

                                                               (10.1)

Выбираем Тормоз колодочный с электромагнитом переменного тока

ТКТ - 300/200 с наибольшим тормозным моментом Тторм = 240 Н ∙ м

шириной колодки Вк = 140 мм;

диаметром тормозного шкива D = 300 мм;

углом обхвата шкива колодкой β = 70˚.

Проверка тормоза на износостойкость.

. Проверка по допускаемому давлению

                                                             (10.2)

где

N - сила давления колодок на шкив;

[P] - допускаемая величина давления колодок на шкив, [P] = 0,6 МПа;

                                                                             (10.3)

где

f - коэффициент трения, для вальцованной ленты по стали и чугуну, f = 0,4

Условие выполняется.

. Проверка по величине динамического трения.

                                                                          (10.4)

где

[p∙v] - допустимая величина динамического трения, [p∙v] = 2,5 МПа∙м/с;

                                                                         (10.5)

Условие выполняется.


Схема двухколодочного тормоза

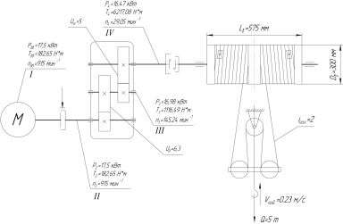
Кинематическая схема механизма


Список использованных источников

1. Кузьмин А.В., Марон Ф.Л. Справочник по расчётам механизмов подъёмно-транспортных машин. Минск, Высшая школа, 1983

. Миндовский С.К., Телицын А.А. Расчет механизма подъёма кранов с электроприводом. Кострома, 2005

. Александров М.П. Подъёмно - транспортные машины, атлас конструкций. М.: Машиностроение, 1987. - 123 с.

. Анурьев В.И. Справочник конструктора - машиностроителя. Т.1. - М.: Машиностроение, 2001. - 920 с.

. Александров М.П. Подъемно-транспортные машины: Учебник для машиностроительных специальностей вузов. - 6-е изд., переработанное - М.: Высшая школа, 1985. - 520 с., ил.

Похожие работы на - Расчет механизма подъема крана с электроприводом

 

Не нашли материал для своей работы?
Поможем написать уникальную работу
Без плагиата!
Без нейросетей!