Организационно-технологический проект магазина 'Хуторок'

  • Вид работы:
    Бизнес-план
  • Предмет:
    Маркетинг
  • Язык:
    Русский
    ,
    Формат файла:
    MS Word
    68,32 Кб
  • Опубликовано:
    2014-08-22
Вы можете узнать стоимость помощи в написании студенческой работы.
Помощь в написании работы, которую точно примут!

Организационно-технологический проект магазина 'Хуторок'















Организационно-технологический проект магазина «Хуторок»

Заусаев И.А.

Подготовка к открытию новой торговой точки, магазина связана с множеством проблем и вопросов, на которые невозможно сразу найти однозначные ответы. Так и в нашем случае в процессе подготовки к работе нового магазина шаговой доступности «Хуторок», расположенного в Южном районе города Кемерово, пришлось решать задачи технологической планировки торгового зала; выбора первоначальной структуры ассортимента; определения ориентировочного количества покупателей, средней стоимости чека и др.

. Подготовка документации

Для осуществления торговли продовольственными товарами необходимо получить разрешение и быть внесенным в общий торговый реестр.

Документацию можно разделить на два блока: стандартная (пакет, необходимый для открытия любого магазина) и специализированная (пакет документов для торговли продтоварами).

Документы о субъекте предпринимательства. Это документы, которые подтверждают формальный статус, юридическую индивидуализацию:

o     Свидетельство о регистрации юр лица или ИП

o     Учредительная документация (устав, учредительный договор)

o     Свидетельство о постановке на учет в налоговой инспекции

o     Коды Госкомстата

Документы, связанные с торговым помещением:

o     Договор аренды (если в собственности, то копию свидетельства на право собственности)

o     Заключение Госпожнадзора (ГПН/МЧС)

o     Договор на обслуживание пожарной сигнализации (для МЧС)

o     Поэтажный план БТИ с экспликацией;

o     Заключение СЭС Роспотребнадзора

o     Договор на вывоз твердых бытовых и пищевых отходов

o     Договор на проведение дезинсекционных работ (для СЭС)

o     Аттестат рабочих мест (СП 2.3.6.1066-01)

Документы, связанные с организацией торговли:

o     Личные медкнижки работников

o     Тексты законов о защите прав потребителей и правил торговли (для размещения непосредственно в торговом зале)

o     Книга жалоб и предложений (в торговом зале).

. Планировка магазина

Для устройства магазина предполагалось:

выполнить внутреннюю планировку всех помещений;

произвести зонирование торгового зала;

подобрать оборудование и выполнить технологическую планировку торгового зала с расстановкой выбранного оборудования.

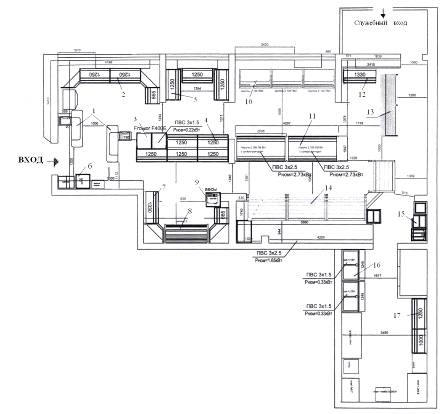
В результате проделанной работы была разработана схема планировки (рис.1).

Рисунок 1 Схема общей внутренней и технологической планировки магазина «Хуторок»

N.B.: Согласно нормам ГОСТ, размеры торгового зала магазина «шаговой доступности» должны позволять обслуживать одновременно до 20 человек, при площади торгового зала 200-250 кв.м.

Направление движения покупательского потока организовано против часовой стрелки. На схеме справа от входа выделена зона продажи фруктов и овощей. Для демонстрации товара подобраны две пристенные горки 7,8, фасовочный стол и настольные весы 9. Далее по провой стороне расположилась зона продажи мясоколбасных изделий. Продажу этой группы товаров решено осуществлять через прилавок с индивидуальным обслуживанием покупателей. Для данной зоны подобраны 3 холодильных прилавка-витрины 14. Дневной запас хранится в холодильных шкафах 16, размещенных в кабинете директора. В центре зала разместили две островные холодильные горки 4, 11 для продажи молочной продукции. Развернувшись покупатели последовательно проходят через зону хлебобулочных изделий, выложенных на стеллажах 10, бакалейной продукции, размещенной на пристенных стеллажах 5. Последней перед кассами на специальном торговом оборудовании 2 выбрана зона продажи спиртных напитков. Для демонстрации и продажи мороженых продуктов выбраны два морозильных ларя 3.

В торговом зале также предусмотрены две кассовых кабины 1, и стеллажи 12 и 13 для хранения товарных запасов. Служебный вход отгорожен от торгового зала. В служебной зоне расположены сан. узел, мойка 15 и общий кабинет для персонала. В кабинете имеются письменные столы, тумбы для орг. техники и шкаф для хранения одежды.

3.      Организационная структура и персонал

Организационная структура магазина имеет линейно-функциональную форму и включает 4 уровня (рис 2).

§  1-й уровень - заведующий магазином (директор) - разрабатывает (совместно с учредителем) и реализует стратегию деятельности магазина.

§  2-й уровень - управленческий персонал - товаровед, бухгалтер, менеджер по рекламе, администратор - реализуют функциональные направления деятельности магазина.

§  3-й уровень - исполнительный персонал - менеджер по закупкам, продавцы, кассиры - обеспечивают выполнение торгово-технологического процесса в магазине.

§  4-й уровень - обслуживающий персонал - подсобный рабочий, дворник, охранник, техничка.

Рисунок 2 - Организационно-управленческая структура магазина

Для торговли продуктами первой необходимости через прилавок при режиме работы с 10.00 до 23.00 запланировано включить в штат 4 продавца (по в 2 смену). Общая численность персонала и уровень заработной платы представлены в табл. 1.

Таблица 1 - Штатный состав магазина на 2013 год

Должность

Кол. штатных единиц

Оклад, руб.

Директор

1

20000

Гл. бухгалтер

1

14000

Администратор (менеджер)

2

2*16000=32000

Товаровед - маркетолог

1

14000

Менеджер по закупкам

1

15000

Продавцы

4

4*11000=44000

Кассиры

4

4*12000=48000

Грузчик-дворник

8000

Техничка

1

7000

Итого:

16

203000


Кроме основного оклада, персонал премируется по коэффициенту трудового участия (КТУ). Пример начислений премиальных показан в таблице 2.

Таблица 2 - Распределение премиального фонда (ПФ)

Должность (премиальный фонд 100 %)

Размер ПФ (руб.)

Выполнение плана по товарообороту

Качественное выполнение должностных обязанностей и совмещение

Соблюдение трудовой дисциплины

Отсутствие замечаний со стороны руководства

Директор

3000

20 %

60% - зависит от работы персонала

Товаровед

2000

20 %

40 %

10 %

10 %

Администратор

2000

20 %

40 %

10 %

10 %

Менеджер по закупкам

1500

20 %

40 %

10 %

10 %

Кассир

1000

20 %

40 %

10 %

10 %

Продавец

1000

20 %

40 %

10 %

10 %

Уборщица

500

20 %

40 %

10 %

10 %

Грузчик

700

20 %

40 %

10 %

10 %

ИТОГО:

11700






Для рациональной организации выполнения всех операций в условиях ограниченной численности персонала, была предложена матрица «совмещения функций» (табл. 3).

Примеры совмещения функций:

1.      подсобный рабочий - грузчик;

2.      кассир - продавец - контролер - консультации, выкладка тов.;

.        функции администратора может выполнять старший продавец.

.        менеджер по закупкам - товаровед.

Таблица 3 - Распределение функций и совмещение

Разгрузка транспортных средств

Приемка товара

Подготовка к продаже

Доставка в торговый зал

Выкладка на оборудовании

Контроль качества и сроков реализации

Директор

+


+

Товаровед

+


+

Администратор

+

+

+

+

Менеджер по закупкам

+




Кассир

+

+

Продавец

+

+

+

+

Грузчик

+

+


N.B. Совмещение функций позволяет повысить зарплату одного работника в 1,5 раза и при этом, сэкономить по 0,5 ставки в общем объеме фонда зарплаты на каждой штатной единице.

Важным фактором является прием на работу грамотных продавцов. Продавец должен не просто «сидеть» в магазине и своим видом показывать покупателям "Мол приперлись и отвлекают меня" а должен встречать каждого покупателя улыбкой, узнавать о его потребностях и вежливо отвечать на все вопросы.

Желательно, чтобы зарплата продавцов была чуть выше, чем средняя по рынку и напрямую зависела от выручки.

Для контроля за продавцами в магазине можно разместить камеры видео наблюдения (для этих целей подойдут обычные «вэб» камеры).

Так же необходимо с определённой периодичностью (1-2 раза в месяц) делать инвентаризацию товарных остатков.

Учет рабочего времени ведется директором, администратором, бухгалтером) с помощью тетради учета рабочего времени, в которой отмечается время прихода и ухода сотрудников (табл. 4).

торговый зал ассортимент персонал

Таблица 4 - Пример тетради учета рабочего времени сотрудников

Должность

Фамилия

Время прихода

Роспись

Время ухода

Роспись

Директор






Бухгалтер






Кассир






Продавец







N.B. Для реального представления о проходимости торговой точки и контроля выручки управленцам необходимо, на первых порах (раз в 2 недели), самостоятельно стоять за прилавком.

4. Ассортимент и выкладка

Главные риски розничного торгового бизнеса - неудачные выбор места расположения магазина, персонал и подбор ассортимента.

Потенциальный покупатель магазина это человек, проживающий неподалеку в 100-300 м. (таких должно быть 1500-2500 чел.), которому нужно сделать небольшую покупку 100-150 рублей (буханка хлеба, пакет молока, бутылка пива, корм для домашнего питомца, бытовая химия) за которой ему нет необходимости идти в супермаркет. На основе проведенного анкетирования жителей ближайших домов (бланки анкет раскладывались в почтовые ящики и затем были собраны путем обхода квартир), была принята средняя стоимость чека в размере 200 руб.

Известно, что широта ассортимента прямым образом влияет на объем товарооборота магазина. Однако количество групп товаров и число наименований ограничивается возможностями выкладки и площадью торгового зала.

В табл. 5 и 6 представлен вариант первоначального ассортимента товаров повседневного спроса и уровня розничных цен для магазина шаговой доступности «Хуторок».

Таблица 5 - Ассортимент молочной продукции магазина

МОЛОЧНАЯ ПРОДУКЦИЯ

Наименование продукта

Масса нетто

Цена, руб

1. Молоко «Для всей семьи» 2,5 % Кувшин

900 мл.

36,80

2. Кефир«Для всей семьи» 2,5 % Кувшин

900 мл.

32,60

3. Молоко отборное «Домик в деревне» Бутылка

950 мл.

41,90

4. Молоко пастер. Домик в деревне 2,5% Бутылка

950 мл.

5. Молоко пастер. «Скоморожка» 2,5 %

1 л.

35,90

6. Кефир «Скоморожка» 2,5%

1 л.

29,90

7.Молоко «Живой продукт» 2,5 %

1 л.

26,00

8. Молоко «Село Луговое» 2,5 % тв.упаковка

1 л.

40,00

9. Молоко «Село Луговое» 3,2 % тв.упаковка

1 л.

42,60

10. Ряженка «Простоквашено» 4% Бутылка

930 мл.

41,10

11. Сметана «Простоквашено» 15%

350 гр.

44,10

12. Сметана «Простоквашено» 25%

350 гр.

53,50

13. Сметана «Веселый молочник» 15%

330 гр.

27,50

14. Сметана «Живой продукт» 10%

400 гр.

28,20

15. Сметана «Живой продукт» 15%

400 гр.

40,00

16. Сырок глазир. пастила\клуб. «Коровкино»

50 гр.

9,50

17. Сырок глазир. сливочный «Снеговичок»

40 гр.

8,40

18. Сырок глазир. птичье молоко «Снеговичок»

40 гр.

10,50

19. Йогурт «Чудо» питьевой 2,5%

400 мл.

30,80

20. Йогурт «Био макс» мюсли 2,5%

400 мл.

24,60


В ассортимент магазина обязательно нужно внести товары низкого ценового уровня, например:

§  Анжерское молоко в 1литровых мягких пакетах (цена 25-28 руб.).

§  Анжерское сливочное масло «Крестьянское» (400гр - 43 руб.),

Алтайское (цена 300-350 руб./кг).

§  Сыр «Российский» и др. твердых и мягких сортов.

§  Свежий расфасованный творог.

N.B. Для уменьшения нагрузки на персонал, лучше закупать фасованные изделия, тогда не потребуется дополнительная подготовка к продаже.

Желательно находить поставщиков-производителей в своем городе, тогда себестоимость закупаемых товаров будет ниже. Но не исключены варианты завоза из соседних регионов, особенно из Новосибирской области, если цены на товары будут ниже.

Таблица 6 - Ассортимент мясной продукции магазина «Хуторок»

МЯСНАЯ ПРОДУКЦИЯ

Наименование продукта

Изготовитель

Масса нетто

Цена, руб.

1. Колбаса вареная «Нежная»

ЗАО «Кузбасский Пищекомбинат»

400 гр.

89-90

2. Колбаса вареная «Вятская»

ЗАО «Кузбасский Пищекомбинат»

400 гр.


3. Колбаса вареная «Московская»

400 гр.

89-00

4. Колбаса п\к Купеческая

ЗАО «Кузбасский Пищекомбинат»

450 гр.

175-50

5. Колбаса п\к «Тангинская», «Купеческая»

ЗАО «Кузбасский Пищекомбинат»

400 гр.

126-00

6. Колбаса вареная «Докторская» в/с

КХ «Волков»

400 гр.

108

7. Колбаса вареная «Чайная» 2/с

КХ «Волков»

400 гр.

79-50

8. Колбаса вареная «Вятская» 1/с

КХ «Волков»

400 гр.

59-00

9. Колбаса полукопченая «Новая»

КХ «Волков»

350 гр.

83-00

10. Колбаса полукопченая «Российская»

КХ «Волков»

350 гр.

74-00

11. Колбаса полукопченая «Георгевская»

КХ «Волков»

350 гр.

69-00

12. Ветчина «Праздничная»

КХ «Волков»

400 гр.

129-00

13. Колбаса «Докторская»

ООО «Барнаульский пищевик»

400 гр.

116-00

14. Колбаса «Салями»

ООО «Барнаульский пищевик»

350 гр.

139-90

15. Колбаса вареная «Посадская»

ООО «А-Г Кемеровский м/к»

450 гр.

77-00


Объемы запасов скоропортящихся продуктов рассчитывались исходя из емкости холодильного оборудования в магазине.

Сколько хранятся охлажденные продукты в жару (при температуре в холодильном оборудовании магазина +2…+6 градусов) [1, с. 84]:

мясной фарш - 12 часов;

мясо птицы и полуфабрикаты - 48 часов;

заливные, зельцы, студни, холодцы - 12 часов;

торты и пирожные: без крема - 72 часа, с кремом - 18 часов;

молоко, до 7 суток;

расфасованный творог, до 30 дней;

колбаса - от 24 часов до нескольких суток;

натуральный йогурт - до 2 суток.

N.B. Для повышения спроса необходимо менять ассортимент исходя из сезона. Так в летний сезон можно больше продавать свежие овощи и фрукты, напитки, а осенью картошку и т.д.;

Согласно правилу торгового запаса в магазине необходим уровень запаса, достаточный для постоянного наличия ассортимента на торговом предприятии. Если поставки продукции постоянны, то ее запасы можно минимизировать.

Ассортиментная политика магазина должна быть направлена на наибольшее совпадение предлагаемого ассортиментного перечня и спроса со стороны населения района на конкретные наименования продуктов. Идеального совпадения быть не может т.к. спрос меняется изо дня в день и по сезонам. Упорядочение ассортимента будет происходить постепенно в процессе деятельности магазина с учетом выявленных предпочтений покупателей.

Наиболее благоприятное время для открытия магазина считается - осень, т.к. пик продаж приходится на предновогодние дни, а до этого времени магазин «набивает шишек» и исправляет выявленные недостатки. Для рационального построения ассортимента в различные сезоны года, важно вести учет продаж по товарным группам в следующем виде (Табл. 7):

Таблица 7 - Анализ продаж (за месяц, квартал, год)

Наименование товара

Объем продаж, тыс. руб

Цена закупки

Цена продажи

примечания

Выкладка товаров в торговом зале является элементами использования средств мерчандайзинга. Под выкладкой товара понимаются технологические процессы, связанные с расположением, укладкой на торговом оборудовании и показом товаров.

Существует множество типов выкладки, наиболее распространены:

) Горизонтальная выкладка - при данном способе выкладке определенные однородные товары размещают по всей длине оборудования. На самой нижней полке при этом размещается товар самых больших размеров или более дешевый. Товар выкладывается слева направо по серии, по уменьшению объема.

) Вертикальный способ выкладки - такая выкладка предусматривает расположение однородных товаров несколькими рядами на всех полках метра стеллажей сверху вниз. Это хороший показ товаров, удобный покупателям любого роста. Распределение товара должно быть строгим, от меньшего к большему. Меньший располагается на верхних полках, а больший на нижних.

) Дисплейная выкладка - обычно этот способ выкладки применяют на дополнительных точках продажи. Он представляет собой отдельно стоящий фирменный стенд или стойку, не привязанный к основной точке продажи этого товара.

При организации выкладки было рекомендовано использовать несколько общих принципов:

Недорогое вперед (недорогие товары работают на то, чтобы создать у покупателя благоприятное впечатление об уровне цен в магазине). Если их разместить в начале торгового зала, то покупатель втягивается в процесс покупок и дальше берёт товары «автоматически», и меньше внимания обращает на цены.

Товары с низкими ценами и товары, приносящие наибольшую прибыль чередуются по ходу движения покупателей в торговом зале. Основные марки следует размещать в начале каждой ассортиментной группы. Известно, что с одних полок товар продается лучше, с других хуже. Полки, которые находятся на уровне глаз покупателя и «до третьей пуговицы на рубашке» считаются самыми привлекательными. При перемещении товара с этих полок вниз теряется от 40 до 80% продаж. В наиболее выгодном положении должен находится товар приносящий наибольшую прибыль!

N.B.: При торговле продтоварами ближе всего к покупателю должен располагаться товар у которых срок хранения истекает. Товар с истекающим сроком годности также можно использовать во время дегустации, презентации и прочих мероприятий.

Метод двух пальцев. Полка по высоте должна соответствовать высоте продаваемого товара. Если между верхним краем товара и следующей полкой проходит 2 пальца и больше, то нужно менять расстояние между полками, это позволит установить на стеллаже дополнительную полку.

Воздействовать на покупательские предпочтения и увеличивать продажи продукции, можно используя следующие правила мерчандайзинга [2, с. 125]:

«Фокусный пункт». Товар должен быть расположен в фокусе внимания покупателя - по центру витрины со смещением вправо. Если Вы продаете товары в супермаркетах, где торговое пространство велико, то площади нужно зонировать по принципу «магазин в магазине».

«Движение глаз». Движение глаз покупателя в магазине около полки подобно чтению страницы - сначала взгляд направляется в правый верхний угол, далее перемещение справа налево и сверху вниз.

«Визуальное восприятие». Потребитель воспринимает информацию более осознанно в пространстве, которое находится в 30 градусах от точки, где сфокусирован его взгляд. Если Вы хотите занять визуальное доминирующее положение на розничной полке, то необходимо заполнить Вашей продукцией место, превышающее эти 30 градусов.

«Золотой треугольник». Правило «золотого треугольника» таково: чем больше площадь, образующаяся между входом, кассовым узлом и самым продаваемым товаром, тем выше объем продаж. Когда покупатель пересечет зал и пойдет за необходимым ему товаром, например хлебом, он ознакомится и с другим ассортиментом. Соответственно, оптимально размещать товар в зоне этого треугольника.

N.B.

§  Для магазинов, торгующих продуктами питания, хорошим рекламным приемом является предложение попробовать товар на вкус. Особенно это срабатывает при индивидуальном обслуживании через прилавок.

§  Использование света при оформлении помещения магазина и выкладке товаров также имеет большое значение. Замечено, что покупатели предпочитают те торговые точки, где преобладает достаточно яркое интенсивное освещение.

§  Выкладка товара выполняется таким образом, чтобы полностью закрывать торговое оборудование и исключать «пустоты» и «дырки».

§  Если есть желание придать «изюминку» своему магазину - сделайте так, чтобы цены были указаны на каждом отдельном упакованном товаре!

. Экономические показатели

Не имея данных о количестве посетителей магазина и средней стоимости чека, невозможно точно определить прибыль предприятия.

В этом случае можно вести речь о точке безубыточности, рассчитываемой из суммы всех расходов магазина за анализируемый период - месяц. В этой точке доходы магазина должны быть равны расходам (т.е. предприятие «выходит в ноль»).

Бизнес сначала придется вести исключительно на общей системе налогообложения. Тогда не нужно будет выплачивать ЕНВД. На первых порах предприятие будет показывать убыток, таким образом, налог с оборота (20% от прибыли) взиматься не должен. Останутся только социальные выплаты и НДС.

В среднем за месяц предполагаются следующие расходы:

заработная плата персонала; налоги; коммунальные платежи; управленческие расходы; реклама.

Заработная плата:

Из штатного расписания месячный фонд оплаты труда - 203000руб; Премиальный фонд 11700. Итого: 203000 + 11700 = 214700 руб.

Сумма социальных выплат - 36 % от ФЗП. 214700 * 1,36 = 291992 руб.

Другие рассчитанные значения текущих месячных затрат магазина представлены в таблице 8.

Таблица 8 - Текущие (постоянные) месячные расходы магазина

Вид расходов

Месяц

6 мес.

год

Заработная плата, руб.

292000



Налоги, руб.

12600



Коммунальные платежи, руб.

14500



Управленческие и др. непредвиденные расходы, руб.

20000



Реклама, руб.

10000



ИТОГО:

349100

1 974600

3 949200


Вывод: Чтобы окупить только текущие (постоянные) расходы «выйти в ноль», магазину ориентировочно нужно делать выручку - 350 тыс. руб. Но эта сумма только покроет все текущие расходы, а нужно получать прибыль, которая со временем должна окупить капитальные затраты на организацию магазина.

Список литературы

1.    Практикум по курсу «Организация и технология проектирования торговых предприятий»/ Ф.Г. Панкратов, О.А. Новиков, З.М. Пономарева. - М.: ИТК «Дашков И Ко», 2006. - 240с. - ISBN 5-94798-030-4.

2.      Снегирева, В. Книга мерчандайзера / В. Снегирева. - СПб.: Питер, 2005. - 381с. - Библиогр.: с. 379-380. - ISBN 5-469-00432-1.

Похожие работы на - Организационно-технологический проект магазина 'Хуторок'

 

Не нашли материал для своей работы?
Поможем написать уникальную работу
Без плагиата!
Без нейросетей!