Процеси викидів та міграції в атмосфері шкідливих речовин по ТОВ 'Дунаєвецький арматурний завод'

  • Вид работы:
    Дипломная (ВКР)
  • Предмет:
    Экология
  • Язык:
    Украинский
    ,
    Формат файла:
    MS Word
    1,38 Мб
  • Опубликовано:
    2015-05-21
Вы можете узнать стоимость помощи в написании студенческой работы.
Помощь в написании работы, которую точно примут!

Процеси викидів та міграції в атмосфері шкідливих речовин по ТОВ 'Дунаєвецький арматурний завод'

ВСТУП

Актуальність теми. Впровадження у виробництво найновіших досягнень науки і техніки, поява нових технологій, матеріалів, джерел енергії призвели до революційних змін у житті суспільства.

В ході діяльності людей направленої на задоволення своїх потреб складалася сучасна екологічна ситуація що носить стихійний характер. Людина досягла висот сучасної цивілізації завдяки постійному впливові на природу і постійній її зміні у відповідності зі своїми цілями [6,8,9].

Науково-технічна революція сприяє зміні стосунків людини з природою, створює нові умови її існування, помітно впливає на спосіб її життя і праці. Використовуючи сучасні засоби виробництва, людство впливає на природу в планетарному масштабі. Різке збільшення масштабів такого впливу загострило проблему передбачення наслідків людської діяльності [12].

Зв'язок роботи з науковими програмами, планами, темами. Екологічна оцінка та екологічне прогнозування є необхідною умовою оптимізації процесів взаємодії суспільства і природи. Досить ефективним при цьому є метод екологічного моніторингу що передбачений Законом України про охорону навколишнього середовища [1] та Постановою Кабінету Міністрів України від 30 березня 1998р., № 391 [2]. Виходячи з цього, наша робота щодо екологічного обґрунтування модернізації очисних споруд на прикладі ТОВ «Дунаєвецький арматурний завод» є актуальною як з науково - теоретичного так і практичного боку.

Мета роботи полягає в проведенні екологічного обґрунтування модернізації очисних споруд ТОВ «Дунаєвецький арматурний завод» для розробки рекомендацій що сприяли б зменшенню негативного впливу виробництва на екосистеми та здоров’я населення з одночасним підвищенням економічних показників на підприємстві.

Для досягнення поставленої мети передбачалося дослідити та вивчити:

1. інвентаризацію джерел забруднення атмосферного повітря та забруднюючих речовин ТОВ «Дунаєвецький арматурний завод»;

2. розрахувати максимальні приземні концентрації забруднюючих речовин, що викидаються підприємством і відстані формування максимальних приземних концентрацій забруднюючих речовин;

3.      проаналізувати вплив забруднення на прилеглі території;

4.      встановити категорію небезпечності підприємства і уточнити розмір санітарно-захисної зони;

. дослідити особливості організації охорони праці на підприємстві;

. визначити екологічну ефективність модернізації очисних споруд.

Об’єктом досліджень є процеси викидів та міграції в атмосфері шкідливих речовин по ТОВ «Дунаєвецький арматурний завод».

Предмет досліджень - кількісні та якісні показники техногенного забруднення, зв’язок обсягів викидів забруднюючих речовин із встановленням очисних споруд на підприємстві.

Практичне значення одержаних результатів: виконано оцінку та аналіз впливу забруднення на прилеглу територію, встановлено санітарно-захисну зону підприємства і розроблено рекомендації, щодо зменшення негативного впливу забруднення на екосистеми і здоров’я населення та скорочення грошових відрахувань за забруднення навколишнього середовища.

Зв’язок із спеціальністю:Робота виконана у відповідності до змістовних модулів 1.П.Ф.С.01.; 1.П.Ф.С.03.; 1.ПФ.С.04.; 1.ПФ.С.05.; 2.ПФ.Д.01.; 2.П.Ф.Д.03.; 2.П.Ф.04.; 4.П.Ф.С.04.; [33].

Структура роботи: кваліфікаційна робота містить вступ, 5 розділів, висновки, пропозиції виробництву, список використаної літератури, додатки, 11 таблиць, 4 рисунки. Загальний обсяг роботи 68 сторінок.

РОЗДІЛ 1. ОГЛЯД ЛІТЕРАТУРИ

.1 Екологія та екологічні проблеми в Україні

Україна здобувши статус незалежної держави вступила в новий історичний період свого розвитку. За природними умовами наша держава є однією з найбагатших держав світу, що дає підстави з оптимізмом дивитися в майбутнє. Територія України займає площу 60355 тис.га. Близько 95% її території рівнинна частина, а на долю гірських систем Карпат і Криму припадає лише 5%. Ліси займають 19% іі території. Разом з тим Україна є однією з найбільш неблагополучних в екологічному відношенні країн Європи, адже від колишнього СССР її територія перенасичена хімічними, металургійними та гірничодобувними виробництвами із застарілими технологіями [3].

Деформована галузева структура виробництва спричиняє деформацію територіальної організації держави. Гігантські центри надмірного зосередження промисловості характеризуються високим антропогенним впливом на природне середовище. Це насамперед Донбас і Придністров’я - найбільш забруднені регіони в Європі. В даному регіоні, що займає 18% території з 28% населення України, виробляється 40% загального обсягу промислової продукції [8].

Географічне положення України сприятливе у природно-ресурсному відношенні. За різноманітністю і багатством мінерально-сировинної бази Україна може забезпечити збалансований розвиток багатьох галузей промисловості і агропромислового комплексу, адже в Україні виробляється близько 5% світового обсягу мінеральної сировини, на її території розвідано близько 8 тис. родовищ, майже 90 видів корисних копалин. Існують значні можливості промислового освоєння таких нових видів мінеральної сировини, як: золото, літій, скандій, алутіни, флюорити, апатити, цеоліти, фосфорити та інше. Багато родовищ залягають у вигідних географічних і еколого-економічних районах, що підвищує їхню цінність [3,8].

За запасами окремих корисних копалин Україна випереджає такі розвинуті країни як США, Канаду, Англію, Німеччину та інші. Це ставить її в ряд країн, які при дбайливому ставленні до своїх надр можуть в основному забезпечити свої потреби за рахунок власної сировини і вийти для її реалізації на міжнародний рівень. Але для цього необхідні докорінні зміни в ставленні до мінерально-сировинної бази нашої країни, адже до сьогодні немає чітко відпрацьованих механізмів управління і необхідного державного нагляду за використанням та охороною надр [33].

Недосконалі технології видобування та переробки мінеральної сировини, незадовільне вирішення питання комплексного освоєння родовищ призводить до значних втрат цінних відкладів, а це біля 70% нафти, 50% солей, 40% вугілля, 25% металу. Відходи видобутку і переробки корисних копалин майже не використовуються в народному господарстві, займаючи при цьому десятки тисяч гектарів сільськогосподарських угідь, ускладнюючи екологічну ситуацію.

У складному стані перебувають земельні ресурси та ґрунти України. ЇЇ земельний фонд (60,4 млн. га) характеризується високим рівнем освоєності. Розораність території становить 56%, чого немає в жодній країні світу. Для порівняння у США цей показник 27%, у Франції - 42%, у Німеччині - 33%. В середньому на одного жителя України припадає 0,81 га сільськогосподарських угідь і 0,65 га ріллі. Високий рівень розвитку продуктивних сил і сприятливі ґрунтово-кліматичні умови для ведення сільського господарства обумовили інтенсивне використання земель. Лише 8% території країни перебуває в природному стані. Це болота, озера, гірські масиви покриті і непокриті лісом. В Україні всі придатні для інтенсивного землекористування землі вже введені в різні сфери господарської діяльності.

Одночасно мають місце значні втрати угідь і відведення земель для несільськогосподарських земель. На заміну виділених з обігу територій, освоювалися сінокоси, пасовища, осушені перезволожені і заболочені угіддя, рекультивовані території. Це значною мірою сприяло значному погіршенні якісного складу орних земель [26, 29].

Внаслідок екстенсивного розвитку сільського і лісового господарства, водних і хімічних меліорацій, відбувається інтенсивний розвиток ерозійних процесів, ущільнення орного шару ґрунту, зниження його родючості, ослаблення стійкості природних ландшафтів України. Стан ґрунтів у цілому досяг критичного і перебуває на грані виснаження. Це зумовлено тривалим екстенсивним використанням земельних угідь, а особливо ріллі, що не компенсувалося рівнозначними заходами з відтворення родючості ґрунтів.

Внаслідок нераціонального використання засобів хімізації в ґрунтах накопичуються залишки мінеральних добрив і пестицидів. Щороку використовується понад 4 млн. т мінеральних добрив, що в перерахунку на душу населення становить майже 85 кг. В останні роки намічається тенденція до зменшення застосування хімічних і зростання біологічних засобів захисту рослин. З закордонної практики необхідною умовою покращення стану земельних ресурсів є забезпечення існування різних форм власності на землю, зведення розораності території держави до екологічно обґрунтованих норм, здійснювати випуск та використання сільськогосподарських машин які б не переущільнювали грунт, впроваджувати нові нормативи відведення земель для несільськогосподарських потреб.

Велике занепокоєння викликає стан водних ресурсів та способи їхнього використання. Це насамперед води рік, озер, боліт, ставків, водосховищ та підземних вод. В Україні протікає понад 22 тис. річок загальною довжиною більш як 170 тис. км. Основні запаси води знаходяться в північній і північно-західній частині, в південних областях води не вистачає. З метою більш надійного забезпечення водою маловодних районів виконані значні роботи з регулювання стоку річок, створено 1087 водосховищ, зроблено 28 тис. ставків [4, 9, 17].

1.2 Загальна характеристика та екологічна оцінка Хмельницької області

Хмельницька область займає вигідне географічне положення, характеризується сприятливими природними і кліматичними умовами, різноманітністю ландшафтних територій, багатством рослинного і тваринного світу, мінеральних вод достатньою мережею річок та ставків.

Розташована Хмельниччина на межі центральної і західної частин України. Її площа дорівнює 20,6 тис.кв.км. Адміністративним центром області є м. Хмельницький [3].

Екологічна ситуація в області визначається передусім обсягами впливу на навколишнє природне середовище підприємств промисловості та комунальної сфери, сільського господарства, транспортних засобів, а також рівнем дотримання природоохоронного законодавства жителями області. Контроль за використанням природних ресурсів, дотримання природоохоронного законодавства та забезпечення екологічної безпеки у регіоні в цілому веде Державна екологічна інспекція у Хмельницькій області.

За попередній 2009 рік, у відповідності з основними напрямами державної політики України у галузі охорони довкілля інспекцією в області було проведено 4048 перевірок на предмет додержання природоохоронного законодавства.

За порушення екологічної безпеки в регіоні до адміністративної відповідальності притягнуто 2060 посадових осіб і громадян, складено 2110 протоколів. До органів прокуратури передано 59 матеріалів по 19 із них порушені кримінальні справи, призупинено діяльність 47 об’єктів господарської діяльності.

Техногенний вплив на довкілля Хмельниччини в 2009 році здійснювали 1002 користувачі водними ресурсами, 1445 підприємств зі стаціонарними джерелами та забруднення довкілля, 178 тисяч одиниць автомобільного транспорту забруднювали атмосферне повітря, зустрічалися поодинокі випадки псування і забруднення сільськогосподарських та інших земель. Аналіз попередніх років вказує на тенденцію до зменшення в 2009 році користувачів водними ресурсами (на 46), збільшення кількості розвіданих родовищ корисних копалин (на 106), та підприємств із стаціонарними джерелами забруднення довкілля (на 340). За останній 2009 рік кількість одиниць автомобільного транспорту збільшилася по відношенні до попереднього року на 16%, а це 28 тис. автомобілів, що також є джерелом негативного техногенного впливу на довкілля [10, 12, 13].

Слід відмітити, що найбільшу питому вагу складають викиди автотранспорту, кількість якого за останні 5 років збільшилась майже втричі. Пересувними джерелами забруднення атмосфери у 2009 році викинуто 51,2 тис. тонн забруднюючих речовин.

Найменше занепокоєння викликає зміна хімічного складу орних земель області що займають 1254,3 тис. га. Це насамперед пов’язано з різким зменшенням кількості внесення хімічних засобів захисту рослин та мінеральних добрив.

Основні порушення і найбільший розрахунок розмірів шкоди при використанні земельних ресурсів в області зумовлені забрудненням земельних ресурсів нафтопродуктами ХКП «Спецкомунтранс», засміченням земельних ресурсів твердими побутовими відходами Шепетівським комбінатом благоустрою і ХКП «Спецкомунтранс».

Особлива увага Державної екологічної інспекції у Хмельницькій області приділяється охороні природно-заповідного фонду, адже лісовою рослинністю вкрито близько 266 тис. га., що складає 12,9% території області. Основна частина лісових масивів зосереджена у її поліській частині, де вони займають близько 40 % лісовкритої площі області. У межах інших географічних районів площа під лісами набагато менша і приблизно становить : у Придністров’ї - 17 % , Хмельницькому Побужжі - 15 % , північному Поділлі - 12 % від загальної лісовкритої площі. Запас деревини становить 33,3 млн. куб. м. Розрахункова лісосіка - 332,87 тис. га. Площа земель державного лісового фонду становить 186,1 тис. га.

Найбільш вагомі збитки завдані лісовому фонду Хмельницької обл. в 2008 році зареєстровані на території Старогутянської селищної ради Дунаєвецького району. За значне пошкодження дерев в лісосмугах порушено кримінальну справу.

Клімат помірно - континентальний. За даними обласного центру з гідрометеорології середня річна температура повітря у 2003 році становила 7,4-8,4°С, а за останні 5 років 8,1-9,0°С. Середня річна кількість опадів у 2003 р. становила 485-567 мм, за останні 5 років - 580-640 мм.

В області розвивається промисловість (в основному переробна) і сільське господарство.

На Хмельниччині широко розвинута сітка санаторно-курортних та оздоровчих закладів: в області діє 50 санаторно-курортних та оздоровчих закладів різних форм власності та відомчого підпорядкування, в 16 з них безпосередньо проводиться медична реабілітація.

За умов відсутності об’єктів або зношеності обладнання із забезпечення очистки стічних вод і атмосферного повітря, вичерпання ресурсу та необлаштованості полігонів побутових відходів у переважній частині населених пунктів, скорочення асигнувань на впровадження заходів боротьби з ерозією та відновлення родючості ґрунтів - утримувати стабільним екологічний стан області стає все важче. Забезпечення ефективної очистки виробничих і зливових стоків, безпечного для довкілля складування та переробки побутових і промислових відходів, припинення ерозії земель залишаються найголовнішими з екологічних проблем Хмельниччини.

За статистичними даними у 2006 р у повітряний басейн області викинуто 57 тис. тонн забруднюючих речовин, у водні об’єкти скинуто 64,21 млн. м3 зворотних вод, у т. ч. 36,07 млн. м3 недостатньо очищених і без очистки, утворено 13,1 тис. т промислових і 270,0 тис. т побутових відходів.

Основними забруднювачами атмосферного повітря були підприємства переробної промисловості та автотранспорт, водних ресурсів - підприємства комунального господарства та переробки сільськогосподарської продукції, заклади охорони здоров¢я.

За галузями народного господарства найбільші обсяги викидів належали підприємствам обробної промисловості -10,405 тис. тонн, харчової промисловості-2,880 тис. тонн, виробництва електроенергії, газу та води - 2,775 тис.тонн [3].

Спостереження за станом атмосферного повітря велося обласним центром гідрометеорології в м. Хмельницькому. Рівень забруднення атмосфери міста визначався за 10 інградієнтами. Відмічено незначне , порівнюючи з попереднім роком, зменшення в повітрі пилу та фенолу,оксиду вуглецю, формальдегіду. Концентрації двуокису азоту у повітряному басейні міста становили 0,8-3,4 ГДК, а оксиду вуглецю - 1,1 і формальдегіду - 1,1-1,6 граничні норми.

1.3 Вербальний опис ТОВ «Дунаєвецький арматурний завод»

Товариство з обмеженою відповідальністю «Дунаєвецький арматурний завод» створене згідно з рішенням загальних зборів засновників від 27 вересня 1994 року. Протокол №11, Установчого договору про створення закритого акціонерного товариства «Дунаєвецький арматурний завод», договору купівлі-продажу майна Дунаєвецького арматурного заводу №68, від з1 січня 1994 року, укладеного між організацією орендарів «Дунаєвецький арматурний завод» та фондом державного майна України[37].

З моменту державної реєстрації підприємство є юридичною особою, має відокремлене майно, що враховується на самостійному балансі, розрахунковий, валютний та інші притаманні юридичній особі реквізити. Товариство здійснює свою діяльність відповідно до чинного законодавства України, Установчого договору, а також статуту. Майно товариства належить йому на праві власності та формується з джерел не заборонених чинним законодавством України. Товариство здійснює володіння, користування та розпродаж належним йому майном відповідно до цілей його діяльності. Товариство несе відповідальність за своїми зобов’язаннями в межах свого майна що йому належить і на яке може бути звернене стягнення згідно з чинним законодавством. Товариство не несе відповідальності за зобов’язання його засновників та/або акціонерів, а засновники та/або акціонери несуть відповідальність за зобов’язаннями товариства тільки в межах своїх вкладів до його статутного фонду, в тому числі недонесеною їх частиною.

Повна назва товариства:

Українською мовою: Закрите акціонерне товариство «Дунаєвецький арматурний завод»;

Російською мовою: Закрытое акционерное общество «Дунаевецкий арматурный завод».

Скорочене найменування товариства:

ЗАТ «ДУНАЗ» - українською мовою;

ЗАО «ДУНАЗ» - російською мовою.

Місце знаходження підприємства: 32400 м. Дунаївці, вул. Леніна, 13. Підприємство з північного сходу межує з житловими забудовами, зі сходу - територією державної адміністрації м. Дунаївці., з південного заходу - територія Дунаєвецької міської ради, з інших сторін підприємства розташовуються житлова забудова.

Найближча віддаль до житлових забудов становить 50 м.

ТОВ «Дунаєвецький арматурний завод» має багату історію. Підприємству вже більше 125 років. Перша його продукція - запчастини для сільськогосподарських машин. З 1960 року завод почав випуск трубопровідної арматури - засувок. Пропозиція виробів постійно розширюється [37].

Площа заводу в межах огорожі 3,0 га. Джерелом водопостачання заводу служить міська сітка господарчо-питного водопроводу. Внутрішня заводська сітка побутової каналізації підключена до існуючої сітки міської каналізації. Тепловодопостачання заводу не здійснюється. Транспортний зв'язок заводу з містом і сировинними базами здійснюється заводським автотранспортом по існуючих автодорогах.

Товариство створюється з метою здійснення підприємницької діяльності для отримання прибутку в інтересах акціонерів Товариства, а також його працівників.

Основними функціями товариства є:

виробництво і реалізація на внутрішньому та зовнішньому ринках обладнання, приладів, пристроїв для об’єктів енергетики нафтогазодобування та нафтопереробної, хімічної, харчової, целулозопаперової та інших галузей господарства.

надання послуг вітчизняним та зарубіжним підприємствам по розробці і виготовленню дослідних партій виробів народного споживання та продукції виробничо-технічного призначення;

надання інформаційної та технічної допомоги суб’єктам підприємницької діяльності;

виробництво товарів народного споживання;

виконання будівельних та ремонтних робіт;

торгова, торгово-посередницька, торгово-закупівельна діяльність;

зовнішньоекономічна діяльність (експорт, імпорт капіталів та робочої сили;

діяльність, яка не підлягає ліцензуванню здійснюється після одержання відповідного дозволу;

проведення сертифікаційних та інших випробувань трубопровідної арматури (робота по випробуванню для цілей сертифікації проводиться у відповідності з діючим законодавством, нормативними та методичними рекомендаціями Держстандарту України та Положенням про випробовувальну лабораторію трубопровідної арматури, при цьому органами управління Товариством співробітниками випробувальної лабораторії не може бути доручено участь в торгівельно-закупівельній, посередницькій та постачально-збутовій діяльності;

інші види господарської діяльності, що не суперечать законодавству України.

Товариство самостійно здійснює зовнішньоекономічну діяльність у будь-якій сфері , пов’язаній з предметом його діяльності. При здійсненні зовнішньоекономічної діяльності товариство користується повним обсягом прав суб’єкта зовнішньоекономічної діяльності відповідно до чинного законодавства України.

Підприємство спеціалізується на виробництві засувок, пневматичних мембранно-виконавчих механізмі, люків дощової, кабельної та телефонної каналізації, опори паркових лавок, пічного чавунного литва та інше (Додатки Д5-Д6).

Основним матеріалом при виготовлені виробів на підприємстві є сірий чавун та листова сталь.

Підприємство виконує замовлення на виготовлення будь-якої продукції в діапазоні своїх технологічних можливостей, забезпечує комплектацією, електроприводами, фланцями, кріпленнями для будь яких типів запірної арматури.

інвентаризація забруднення атмосфера повітря

РОЗДІЛ II УМОВИ І МЕТОДИКА ДОСЛІДЖЕНЬ

2.1 Умови забруднення атмосферного повітря ТОВ «Дунаєвецький арматурний завод»

Товариство з обмеженою відповідальністю «Дунаєвецький арматурний завод» розташований на одному промисловому майданчику [38] і налічує 18 стаціонарних джерел викидів забруднюючих речовин в атмосферне повітря. Оскільки підприємство спеціалізується на виготовленні кранів та клапанів, основні джерела забруднюючих речовин знаходяться в наступних цехах та ділянках:

Ливарний цех;

Механічно-збиральний цех;

Столярна дільниця;

Інструментальна дільниця;

Заточна дільниця;

Дільниця ЧПУ;

Ковальско-пресовий цех.

Від джерел викидів підприємства в атмосферне повітря надходять такі забруднюючі речовини: оксид вуглецю, діоксин азоту, оксид азоту, пил деревний, сірки діоксин, пил металевий, пил абразивний, оксид заліза, оксид марганцю, пил неорганічний з вмістом SiO2 20-70%, ненасичені вуглеводні міді оксид, мастило мінеральне, емульсор, ксилол, уайт-спірит, аерозоль фарби.

Ливарний цех (джерела №1-16)

В ливарному цеху знаходиться полігональне сито призначене для просіювання формовочних матеріалів, конвеєр візковий та транспортер стрічковий (джерела №2,4), що подає формувальні матеріали. Бігуни для приготування суміші (джерело №3) є змішувачами безперервної дії для приготування формувальної та стрижневої суміші. Приготовлені суміші завантажуються в формувальні машини (джерело №5) та подаються в електропіч індукційну тигельну НТПЭ 1.0/0.8ТГІ що призначені для виплавлення чавуну (джерела № 6, 7, 16). В печі індукційній (джерело №8) відбувається процес виплавки латуні, також в цеху експлуатуються пристрій для заливання відливок (джерело №9), камерне сушило стержнів (джерело № 10), камера дробометна (джерело № 11) для очищення чавунного крупного литва, барабан дробометний (джерело №12), галтовочний барабан для галтовки деталей (джерело №13), гратки відбивні (джерела №14, 15) на яких відбувається очистка виробів від формувальної суміші за рахунок вібраційної дії (табл. 2.1).

Таблиця 2.1 Перелік забруднюючих речовин що викидаються в атмосферу ТОВ «Дунаєвецький арматурний завод»

Забруднююча речовина

Кількість викидів

Клас небезпеки

ГДК м.р. (ОБВР)

Код

Назва

т/рік

1-4

мг/м3

0337

Оксид вуглецю

654,185

4

5,0

2908

Пил неорганічний з вмістом SiO2 20-70%

29,366

3

0,3

2752

Уайт-спірит

5,227

-

1

0330

Сірки діоксид

3,286

3

0,5

10329

Пил металевий

2,3636

-

(0,1)

10292

Пил абразивний

1,47427

-

(0,04)

0616

Ксилол

1,307

3

0,2

10293

Пил деревний

0,959

-

(0,1)

2754

Насичені вуглеводні

0,3

4

1

0301

Діоксид азоту

0,187

2

0,085

11510

Аерозоль фарби

0,0548

-

0,1

0304

Оксид азоту (NO)

0,033

3

0,4

2735

Мастило мінеральне

0,0294

-

0,05

0123

Оксид заліза

0,0051

3

-

0143

Оксид марганцю

0,00044

2

0,01

10265

Емульсол

0,000027

-

0,05

0146

Міді оксид

0,047

2

0,0020

Разом:

698,824




Ливарний цех є джерелом забруднень на пил неорганічний з вмістом SiO2, оксид вуглецю, діоксин азоту, сірки діоксин, насичені вуглеводні, оксид міді та оксид азоту (Додаток А).

Механічно-збиральний цех (джерела №17,18)

В механічно-збиральному цеху розташовані три верстати, що експлуатуються з метою механічної обробки металів. В атмосферне повітря від цих джерел потрапляють пил абразивний та пил металевий(Додаток А).

Фарбувальна камера (джерело №19)

Фарбувальна камера призначена для фарбування готових виробів. Викиди від джерела забруднення: ксилол, уайт-спірит, аерозоль фарби.

Деревообробна дільниця (джерело №20)

Деревообробна дільниця включає три деревообробні верстати.

Викиди від верстатів: пил деревний (Додаток А).

Інструментальна дільниця (джерела №21, 22)

Експлуатується пост газового різання, пост ручного електродугового зварювання, верстатний парк що налічує 23 токарно-карусельних станків. Інструментальна дільниця є джерелом забруднення атмосферного повітря на оксид заліза, оксид марганцю та пил металевий(Додаток А).

Заточна, слюсарня та ЧПУ дільниці (джерела №№23-27)

На дільницях експлуатуються 8 верстатів для механічної обробки металу.

В атмосферне повітря з цієї дільниці надходять: заліза оксид, марганцю оксид, масло мінеральне, емульсор, пил абразивний та пил металевий.

Ковальско-пресовий цех (джерело №28)

В цеху експлуатується горн ковальський для термічної обробки металів та на пресах обробляються деталі мембранно-виконавчих механізмів з листової сталі. Паливом служить кокс. В повітря надходить оксид вуглецю.

Основні джерела забруднення атмосферного повітря ТОВ «Дунаєвецький арматурний завод» це:

. Аппарат гідроочистки ваграночних газівелектропечі індукційної тигельної НТПЭ 1.0/0.8ТГІ (Труба джерело № 6);

. Аппарат гідроочистки ваграночних газівелектропечі індукційної тигельної НТПЭ 1.0/0.8ТГІ (Труба джерело № 7).

Метеорологічні характеристики і коефіцієнти, які визначають умови розсіювання забруднюючих речовин в атмосфері м. Дунаївці та Дунаєвецькому районі Хмельницької області вказані в таблиці 2.2.

Таблиця 2.2 Метеорологічні характеристики й коефіцієнти, що визначають умови розсіювання забруднюючих речовин в м. Дунаївці та Дунаєвецькому районі

Найменування характеристик

Величина


1

2

3

Коефіцієнт, що залежить від стратифікації атмосфери

200

200

200

Коефіцієнт рельєфу місцевості

1

1

1

Середня максимальна температура повітря найбільш жаркого місяця (липня)

24,5

24,5

24,7

Середня з абсолютних мінімумів температур повітря найбільш холодного місяця (січня)

-8,1

-8,1

-

Середня температура повітря найбільш холодного місяця (січня)

-5,0

-

-5,6

Середньорічна шкала вітру, %

Пн.

13,5

13,5

13,0

Пн. Сх.

4,7

4,7

5,0

Сх.

6,4

6,4

9,0

Пд. Сх.

22,4

22,4

29,0

Пд.

16,1

16,1

7,0

Пд. Зх.

2,6

2,6

3,0

Зх.

10,2

10,2

7,0

Пн.Зх.

24,1

24,1

27,0

Швидкість вітру (по середнім багаторічним даним), повторюваність перевищення якої становить 5%, м/с

6

3

-

Середня швидкість вітру протягом року

3

-

3


2.2 Методика проведення досліджень

В 1979 році була затверджена і впроваджена в дію інструкція по проведенню інвентаризації джерел викидів забруднюючих речовин в атмосферу.

Цією інструкцією було встановлено, що інвентаризацію проводять всі виробничі об'єднання та промислові підприємства (в цілому по об'єднанню та по кожній виробничій одиниці окремо), а також всі заклади та організації, у відомстві яких знаходяться виробничі підрозділи, які викидають забруднюючі речовини в атмосферу.

При інвентаризації викидів забруднюючих речовин в атмосферу дозволяється використовувати як прямі методи приборного вимірювання, так і методи балансових розрахунків за загально прийнятим методом [22, 24, 25].

Методика проведення інвентаризації.

. Провести розрахунки викидів котельні (при умові, що на котельні ніяких вловлювачів немає).

розрахувати викиди твердих часток

 

В - кількість використаного палива, т/рік; А - зольність палива на робочу масу, А = 1; η - доля твердих часток, що вловлюється, η = 0

розрахувати викиди окисів сірки:

 

- вміст сірки у паливі;  - доля оксидів сірки, що зв'язується летючим попелом палива, ; - доля окисів сірки, що вловлюється,

розрахувати викиди окису вуглецю

 

- теплота згорання палива, Q = 4,3; Kco - кількість окисів вуглецю, що утворюються на одиницю тепла, Кco= 0,32; qco- витрати теплоти внаслідок механічного неповного згорання палива, qco = 0,5.

розрахувати викиди окису азоту

 

кількість окисів азоту, що утворюються на одиницю теплоти, KNO = 0,11; η -доля окису азоту, що вловлюється, η = 0.

Максимальне значення приземної концентрації шкідливої речовини См(мг/м3) при викиді газоповітряної суміші з одиничного джерела з круглим гирлом, яке досягається за несприятливих умов на відстані Хм(м) від джерела, визначають за формулою

 

де А - коефіцієнт, що враховує частоту температурних інверсій; для розміщених в Україні джерел висотою менше 200 м у зоні від 50° до 52° п. ш. - 180 (Чернігівська, Сумська, Київська, Волинська, Рівненська, Житомирська області), а південніше 50° п. ш. - 200; М - маса шкідливої речовини, викинутої в атмосферу за одиницю часу, г/с; F- коефіцієнт швидкості осідання шкідливих речовин в атмосфері (для газів - 1, для пари - 2, для пилу 3); Н - висота джерела викиду, м (для наземних джерел Н = 2 м); η - коефіцієнт, що враховує вплив рельєфу місцевості. Якщо місцевість рівна або з перепадом висот, які не перевищують 50 м на 1 км, приймають η = 1; ΔТ(°С) - різниця між температурою, що викидається газоповітряною сумішшю Тгі температурою навколишнього атмосферного повітря Тп; V1(м3/с) - витрата газоповітряної суміші, яку визначають за формулою

,

де D- діаметр гирла труби, м; - середня швидкість виходу газоповітряної суміші з гирла джерела викиду, м/с; т і п - коефіцієнти, що враховують умови виходу газоповітряної суміші з гирла джерела викиду, їх визначають залежно від параметрів f; fe; VM; VM':

 

 

 

 

де VM- небезпечна швидкість вітру, V'M - швидкість вітру, за якої приземні концентрації мають найбільші значення. Коефіцієнт т визначають залежно від f за формулою

 

 

Для fe<f< 100 значення коефіцієнта т знаходять при f = fe. Коефіцієнт п при f<100 визначається залежно від VM:

 

 

 

При  коефіцієнт п обчислюється так

 

 

Коефіцієнт п розраховують за формулами (а) або (б) при VM= V'M. Усі розрахунки зводять у табл. 2.3.За результатами таблиці необхідно зробити висновок, щодо перевищення значення максимально разових і середньодобових ГДК.

Після цих розрахунків визначають відстань, на якій формується максимальна приземна концентрація.

Таблиця 2.3

Результати розрахунків максимальних приземних концентрацій

Назва забруднюючої речовини

Маса викиду, г/с, М

Висота джерела викиду, м, Н

Витрата газової суміші, м3/с, V1

Коефіцієнти

Максимальна концентрація, Cmax, мг/м3

ГДК макс. раз., мг/м3

ГДК сер.доб., мг/м3

Клас шкідливості речовин





аА

АF

V η

m m

n n

f f

V VM

V´ V´M

f fe





11

12

33

44

55

66

77

88

99

110

111

112

113

114

115

117

1


















Відстань Хм(м) від джерела викидів, на яких приземна концентрація С за несприятливих метеорологічних умов досягає максимального значення См, визначають за формулами і заносять в таблицю2.4.

Таблиця 2.4 Результати розрахунків відстані формування максимальних приземних концентрацій

d


Забр. речов.

Сірчаний газ

Сірководень

Оксид вуглецю

Пил нетоксичний

Сажа

Діоксид азоту

F







Xm (м)








 

 

Значення безрозмірного параметру dзнаходять за формулами (при f< 100)

 

 

 

Для речовин, концентрації яких перевищують гранично допустимі максимальні разові концентрації, розраховують відстань, на якій формується концентрація в межах ГДК. За небезпечної швидкості вітру VMприземну концентрацію шкідливих речовин С (г/м3) в атмосфері по осі факела викиду на різних відстанях Хмвід джерела викиду визначають за формулою

 

де Sx - коефіцієнт, який визначається залежно від відношення Х/Хмі коефіцієнта F.

 

 

 

 

Розрахунки записують у вигляді таблиці (табл. 2.5).

Таблиця 2.5

Відстані формування приземних концентрацій в межах ГДК

X

X/XM

S1

C

CГДКм. р.

X1



C1


X2



C2


Xm



Cm ≤ CГДК



Оскільки у газоповітряній суміші, що викидає завод, присутні речовини, концентрації яких перевищують ГДК, слід з'ясувати відстані, на яких ці концентрації досягають допустимих значень.

Для проведення розрахунків щодо ефекту сумації враховують, що сума концентрацій речовин, наділених ефектом сумації, нормована на їх гранично допустимі рівні і не повинна перевищувати 1

 

де C1, С2, ..., Сп- фактичні концентрації речовин в атмосфері; ГДК1, ГДК2, ..., ГДКп - гранично допустимі концентрації тих самих речовин.

Речовини з ефектом сумації окремо можуть мати концентрації, що не перевищують ГДК, і бути нешкідливими, але разом вони діють, як і речовини, вміст яких перевищує ГДК [4, 7, 13].

Деякі інші, менш поширені, речовини теж характеризуються ефектом сумації.

Категорію небезпечності підприємств (КНП) обчислюють за виразом:


де Mi- маса викиду і-тої речовини, т/рік; ГДКс.д. - середньодобова гранично допустима концентрація і-тої речовини, мг/м3; n- кількість викинутих підприємством шкідливих речовин, які забруднюють атмосферу; ai- безрозмірна константа, яка дає змогу порівняти ступінь шкідливості і-тої речовини зі шкідливістю сірчистого газу (визначають за табл. 2.6).

Таблиця 2.6.

Відповідність безрозмірної константи класу небезпечності речовини

Константа

Клас небезпечності речовини

 

1

2

3

4

ai

1,7

1,3

1,0

0,9


Для розрахунку КНП за відсутності середньодобових значень ГДК використовують значення максимально разових ГДК, ОБРВ (орієнтовно безпечні рівні впливу) або зменшені в десять разів значення ГДК робочої зони забруднюючих речовин [1, 5, 24].

Значення КНП для речовин, щодо яких немає інформації про ГДК або ОБРВ, прирівнюють до маси викидів даних речовин. За величиною КНП підприємства поділяють на 4 категорії небезпечності. Граничні умови для з'ясування категорії небезпечності підприємства наведено в табл. 2.7.

Таблиця 2.7 КНП і їх граничні значення

Категорії небезпечності

Значення КНП

СЗЗ, м

І

≥ 108

1000

II

104 ≤ КНП < 108

500

III

103 ≤ КНП < 104

300

IV

<103

100


Уточнення розмірів стандартної СЗЗ проводять з урахуванням «рози вітрів» за формулою:


де Lcaн - відстань від джерела забруднення до межі санітарної зони, м. Її обчислюють за співвідношеннями:

якщо Х <Lсанст, то Lсан = Lсанст;

якщо Lсанст < Х < 3Lсанст., то Lсан = Х;

якщо Х > 3Lсанст., то Lсан = 3Lсанст.,

де Lсанст - розміри стандартної санітарно-захисної зони, м;- найбільша відстань, де формується концентрація забруднюючої речовини в межах ГДК;

Р - середньорічна повторюваність напрямку вітру;

Р0 - повторюваність напрямку вітрів одного румба при круговій «розі вітрів» (при восьмирумбовій «розі» Р0 = 100/8 =12,5%).

РОЗДІЛ ІІІ РЕЗУЛЬТАТИ ДОСЛІДЖЕНЬ

.1 Інвентаризація джерел забруднення атмосферного повітря ТОВ «Дунаєвецький арматурний завод»

Атмосферне повітря є одним з основних життєво важливих елементів навколишнього природного середовища. Для того, щоб запропонувати ряд заходів по охороні атмосферного басейну, які призведуть до зниження можливостей його забруднення викидами стаціонарних джерел, необхідно знати сучасний стан та тенденції зміни рівнів забруднення атмосферного повітря, види та параметри джерел забруднення, щільність їх розміщення, склад та об'єм викидів. Ці дані разом з такими факторами, як метеорологічні явища, топографічні особливості та фізико-хімічні процеси трансформації речовин в атмосферному повітрі дозволяють, використовуючи сучасні математичні методи і можливості комп'ютерів, з малими витратами та за короткий час розробляти варіанти природоохоронних заходів [15, 17, 18].

Результати інвентаризації джерел викидів разом з розрахунками розсіювання домішок дозволяють визначити складові окремих джерел, оцінювати екологічну ефективність природоохоронних заходів, здійснювати контроль за викидами окремих джерел при групових викидах і розробляти програми досягнення необхідної якості повітря.

З метою визначення всіх стаціонарних джерел забруднення атмосферного повітря, встановлення їх місцезнаходження, складу та об'єму викидів, встановлення ГДВ було запропоновано провести інвентаризацію джерел викидів шкідливих речовин в НПС.

За результатами інвентаризації джерел забруднення атмосферного повітря виділено два стаціонарних джерела, якими є труби джерела 6 і джерела 7 (таб. 3.1).

Таблиця 3.1 Параметри викидів забруднюючих речовин з основних джерел забруднення атмосферного повітря ТОВ «Дунаєвецький арматурний завод»

№ джерела викиду

Найменування джерела

Висота джерела, м

Діаметр джерела, м

Обєм, м3

Швидкість, м/с

Температура °С

Код забруднюючої речовини

Найменування забруднюючої речовини

Потужність викидів, г/с

Потужність викидів, т/рік

Клас небезпеки

ГДК м.р. (ОБВР)

6.

 Джерело№6  Труба(аппарат гідроочистки ваграночних газів)

9

0,4

1,683

13,4

1100

0337

Оксид вуглецю

168,300

303,000

4

5,0








0301

Діоксид азоту

0,0330

0,0600

2

0,085








0304

Оксид азоту (NO)

0,0060

0,0110

3

0,4








0330

Сірки діоксид

0,2500

0,4500

3

0,5








2908

Пил неорганічний з вмістом Si O2

0,9920

1,7850

3

0,3








2754

Насичені вуглеводні

0,0830

0,1500

4

1

7.

 Джерело № 7  Труба(аппарат гідроочистки ваграночних газів)

9

0,4

1,595

12,7

1100

0337

Оксид вуглецю

168,300

303,000

4

5,0








0301

Діоксид азоту

0,0330

0,0600

2

0,085








0304

Оксид азоту (NO)

0,0060

0,0110

3

0,4








0330

Сірки діоксид

0,2500

0,4500

3

0,5








2908

Пил неорганічний з вмістом Si O2

0,9920

1,7850

3

0,3








2754

Насичені вуглеводні

0,0830

0,1500

4

1


Рис.3.1 Схематичний розріз вагранки: 1 - горн; 2 - шахта; 3 - труба; 4 - искрогасник; 5 - повітряна коробка; 6 - накопичувач; 7 - фурми; 8 - лійка для випускання

Параметри викидів забруднюючих речовин із цих джерел показані в в середньому за роки досліджень становили 610,912 т/рік - 87,4 % викидів із всіх джерел-забруднювачів товариства.

Найбільше виробничими потужностями підприємства викидається в атмосферне повітря оксиду вуглецю - 654,185 та пилу неорганічного з вмістом SiO2 20-70% - 29,366 т/рік (табл. 2.1) причому обома джерелами викидається майже однакова кількість забруднюючих речовин.

Окрім оксиду вуглецю та пилу неорганічного з вмістом SiO2 в атмосферу здійснюються викиди діоксину азоту, оксиду азоту (NO), сірки діоксиду та деякої кількості насичених вуглеводнів.

Із забруднюючих речовин, що викидаються підприємством в повітря такі як оксид азоту (NO), сірки діоксид тапил неорганічний з вмістом SiO2 належать до 3 класу небезпечності, оксид вуглецю та насичені вуглеводні - до 4 класу небезпечності.

Перевищення максимально-разової граничнодопустимої концентрації відбувається за всіма забруднюючими речовинами. Ефектом сумації володіють такі речовини як оксид вуглецю та діоксид азоту.

3.2 Уточнення розмірів санітарно-захисної зони ТОВ «Дунаєвецький арматурний завод»

В роботі, з метою проведення уточнення санітарно-захистної зони ТОВ «Дунаєвецький арматурний завод» використовували дані Звітів з інвентаризації забруднюючих речовин в атмосферне повітря та Звітів про охорону атмосферного повітря (Форма №2-ТП (повітря)).

За результаттами розрахунків визначено, що підприємство відноситься до третьої категорії небезпечності.

Враховуючи показник КНП проводиться облік викидів забруднюючих речовин в атмосферу, запроваджують періодичність контролю за викидами підприємств і визначають стандартну санітарно-захисну зону (СЗЗ) від джерел забруднень до житлових районів, У таких зонах розміщують адміністративно-службові приміщення, склади, гаражі, депо тощо.

Для підприємств ІІІ категорії небезпечності стандартна санітарно-захисна зона (Lсанст) становить 300 м.

Проте, після проведення уточнення цієї зони з урахуванням «рози вітрів» і відстані формування концентрацій забруднюючих речовин у межах гранично допустимої концентрації отримали дещо інший результат (табл. 3.2).

Таблиця 3.2 Уточнена санітарно-захисна зона ТОВ «Дунаєвецький арматурний завод»

Напрямки вітру

Пн

Пн-Сх

Сх

Пд-Сх

Пд

Пд-Зх

Зх

Пн-Зх

Lсанст

300

300

300

300

300

300

300

300

Lсан

800

800

800

800

800

800

800

800

Х

800

800

800

800

800

800

800

800

Р

13,5

4,7

6,4

22,4

16,1

2,6

10,2

24,1

Р/Р0

1,82

0,22

0,41

5,02

2,59

0,12

1,04

5,81

Lсан`

1458

177

328

1616

1864

96

832

1776


Відстань від джерела забруднення до межі санітарної зони (Lсан) в нашому випадку дорівнює найбільшій відстані, де формується концентрація забруднюючої речовини в межах ГДК і складає 800 м, адже:санст<Х<3Lсанст

<800<(3*300)

Майданчики для розміщення промислових підприємств,окремих виробництв і інших об'єктів повинні вибиратись зврахуванням можливості створення санітарно-захисних зон (СЗЗ), розміри яких визначаються класами виробництв у відповідності з Державними санітарними правилами планування та забудови населених місць.

Межі зони встановлюються від крайнього джерела викидів на територіїпроммайданчика до межі найближчої існуючої чи перспективної житлові забудови. Достатність розмірів санітарно-захисних зон перевіряється за даними прогнозних розрахунків очікуваного забруднення атмосферного повітря, виконаних за діючими методиками розрахунків розсіювання ватмосфері шкідливих речовин, що містяться у промислових викидах, а також за результатами лабораторних досліджень забруднення атмосферного повітря в районах розміщення аналогічних діючих об'єктів.

Для ТОВ «Дунаєвецький арматурний завод», після врахування рози вітрів, маємо, що у всіх напрямках уточнена санітарно-захисна зона становить від 96 до 1864 м. Негативним фактом є входження житлових масивів в санітарно-захисну зону, що спостерігається як в південному так і в північному напрямкахпо відношенні до підприємства (рис. 3.2).

Насамперед це пов’язано з напрямами переважаючих вітрів характерних для регіону, які значною мірою збільшують територію зони забруднення. Аналіз літературних джерел показує, що біля 70% завислих речовин повітря осідає на дерева, чагарники, траву. Фільтруюча поверхня дерева перевищує проекцію крони у 375000 разів. Довжина хвої однієї дорослої сосни становить 200 км, і вся ця могутня поверхня фільтрує повітряні потоки. Деревні насадження зменшують запиленість повітря у вегетаційний період на 42%, а у без листяний період - на 37%. Навіть у найменших насадженнях кількість пилу на 30% менша в порівнянні з відкритим простором. І саме тому в містах і районах підвищеної промислової діяльності звертають увагу на зелені насадження. Досить ефективні для цього хвойні породи. Вони затримують в 1,5 рази більше пилу, ніж широколистяні.

Враховуючи схему уточнення санітарно-захисної зони ТОВ «Дунаєвецький арматурний завод» ефективним заходом покращення екологічного стану прилеглих територій є насадження направляючих лісозахисних насаджень з південно-східної та північно-західної сторони території підприємства. Направляючі насадження слід проводити використовуючи три ряди туї висаджених в шахматному порядку, або сосни, з густотою насаджень не менше 5000 шт./га. Це сприятиме коригуванні направлення потоків повітря із забруднюючими речовинами та частковому зменшенню їх поширення в напрямку житлової зони.

Окрім цього по периметрі підприємство необхідно обсадити ізолюючими насадженнями, для чого підійдуть такі породи дерев як: клен гостролистий, ясень звичайний та акація біла.

РОЗДІЛ ІV. ОРГАНІЗАЦІЯ ОХОРОНИ ПРАЦІ НА ТОВ «ДУНАЄВЕЦЬКИЙ АРМАТУРНИЙ ЗАВОД»

4.1 Управління охороною праці, обов'язки і права роботодавця та працівників

При обслуговувані виробничих потужностей всі відносини між РОБОТОДАВЦЕМ - ТОВ «Дунаевецький арматурний завод» та ПРАЦІВНИКАМИ - особами, які працюють на підприємстві та виконують обов'язки або функції згідно з трудовим договором (контрактом) щодо охорони праці регулюються вимогами охорони праці що забезпечуються спеціалістом з окладом в 1 ст. ЗАКОНОМ УКРАЇНИ Про охорону праці (останні доповнення та зміни від 4 червня 2009 року N 1454-VI).

Цей закон визначає основні положення щодо реалізації конституційного права працівників на охорону їх життя і здоров'я у процесі трудової діяльності, на належні, безпечні і здорові умови праці, регулює за участю відповідних органів державної влади відносини між роботодавцем і працівником з питань безпеки, гігієни праці та виробничого середовища і встановлює єдиний порядок організації охорони праці в Україні [39 ].

Згідно Статті 13 «Управління охороною праці та обов'язки роботодавця» на підприємстві, роботодавцем на робочому місці в кожному структурному підрозділі створюються умови праці відповідно до нормативно-правових актів, а також забезпечуються додержання вимог законодавства щодо прав працівників у галузі охорони праці.

З цією метою керівництво підприємства забезпечує функціонування системи управління охороною праці, а саме:

створює відповідні служби і призначає посадових осіб, які забезпечують вирішення конкретних питань охорони праці, затверджує інструкції про їх обов'язки, права та відповідальність за виконання покладених на них функцій, а також контролює їх додержання;

забезпечує виконання необхідних профілактичних заходів відповідно до обставин, що змінюються;

впроваджує прогресивні технології, досягнення науки і техніки, засоби механізації та автоматизації виробництва, вимоги ергономіки, позитивний досвід з охорони праці тощо;

забезпечує належне утримання будівель і споруд, виробничого обладнання та устаткування, моніторинг за їх технічним станом;

забезпечує усунення причин, що призводять до нещасних випадків, професійних захворювань, та здійснення профілактичних заходів, визначених комісіями за підсумками розслідування цих причин;

організовує проведення аудиту охорони праці, лабораторних досліджень умов праці, оцінку технічного стану виробничого обладнання та устаткування, атестацій робочих місць на відповідність нормативно-правовим актам з охорони праці в порядку і строки, що визначаються законодавством, та за їх підсумками вживає заходів до усунення небезпечних і шкідливих для здоров'я виробничих факторів;

розробляє і затверджує положення, інструкції, інші акти з охорони праці, що діють у межах підприємства (акти підприємства), та встановлюють правила виконання робіт і поведінки працівників на території підприємства, у виробничих приміщеннях, на будівельних майданчиках, робочих місцях відповідно до нормативно-правових актів з охорони праці, забезпечує безоплатно працівників нормативно-правовими актами та актами підприємства з охорони праці;

здійснює контроль за додержанням працівником технологічних процесів, правил поводження з машинами, механізмами, устаткуванням та іншими засобами виробництва, використанням засобів колективного та індивідуального захисту, виконанням робіт відповідно до вимог з охорони праці;

організовує пропаганду безпечних методів праці та співробітництво з працівниками у галузі охорони праці;

вживає термінових заходів для допомоги потерпілим, залучає за необхідності професійні аварійно-рятувальні формування у разі виникнення на підприємстві аварій та нещасних випадків.

Роботодавець розробляє за участю сторін колективного договору і реалізує комплексні заходи для досягнення встановлених нормативів та підвищення існуючого рівня охорони праці; несе безпосередню відповідальність за порушення зазначених вимог.

Окрім обов’язків роботодавця щодо додержання вимог нормативно-правових актів з охорони праці на підприємстві регламентуються і обов’язки працівників. За статтею 14 кожен працівник підприємства зобов'язаний:

дбати про особисту безпеку і здоров'я, а також про безпеку і здоров'я оточуючих людей в процесі виконання будь-яких робіт чи під час перебування на території підприємства;

знати і виконувати вимоги нормативно-правових актів з охорони праці, правила поводження з машинами, механізмами, устаткуванням та іншими засобами виробництва, користуватися засобами колективного та індивідуального захисту;

проходити у встановленому законодавством порядку попередні та періодичні медичні огляди.

Працівник несе безпосередню відповідальність за порушення зазначених вимог.

4.2 Гарантія прав на охорону праці в колективному та трудовому договорі

Згідно Розділу II ГАРАНТІЇ ПРАВ НА ОХОРОНУ ПРАЦІ, Статті 5 «Права на охорону праці під час укладання трудового договору», під час укладання трудового договору роботодавець в обов’язковому порядку інформує працівників під розписку про умови праці та про наявність на його робочому місці небезпечних і шкідливих виробничих факторів, які ще не усунуто, можливі наслідки їх впливу на здоров'я та про права працівника на пільги і компенсації за роботу в таких умовах відповідно до Статті 6 «Права працівників на охорону праці під час роботи» і колективного договору.

Працівнику не пропонується робота, яка за медичним висновком протипоказана йому за станом здоров'я. До виконання робіт підвищеної небезпеки та тих, що потребують професійного добору, допускаються особи за наявності висновку психофізіологічної експертизи.

Усі працівники згідно із законом підлягають загальнообов'язковому державному соціальному страхуванню від нещасного випадку на виробництві та професійного захворювання, які спричинили втрату працездатності.

Згідно Статті 7 «Право працівників на пільги і компенсації за важкі та шкідливі умови праці» працівники, зайняті на роботах з важкими та шкідливими умовами праці, безоплатно забезпечуються лікувально-профілактичним харчуванням, молоком або рівноцінними харчовими продуктами, газованою солоною водою, мають право на оплачувані перерви санітарно-оздоровчого призначення, скорочення тривалості робочого часу, додаткову оплачувану відпустку, пільгову пенсію, оплату праці у підвищеному розмірі та інші пільги і компенсації, що надаються в порядку, визначеному законодавством.

Протягом дії укладеного з працівником трудового договору роботодавець не пізніше як за 2 місяці, письмово інформує працівника про зміни виробничих умов та розмірів пільг і компенсацій, з урахуванням тих, що надаються йому додатково.

Всі працюючі Дунаєвецького арматурного заводу як і обумовлено Статтею 8 «Забезпечення працівників спецодягом, іншими засобами індивідуального захисту, мийними та знешкоджувальними засобами» безоплатно за встановленими нормами забезпечені спеціальним одягом, спеціальним взуттям та іншими засобами індивідуального захисту, а також мийними та знешкоджувальними засобами. Роботодавець за свій рахунок забезпечує придбання, комплектування, видачу та утримання засобів індивідуального захисту відповідно до нормативно-правових актів з охорони праці та колективного договору.

У разі передчасного зношення цих засобів не з вини працівника роботодавець замінює їх за свій рахунок.

На виробництві підприємства що характеризуються часто шкідливими або небезпечними умовами праці не використовується праця жінок. Адже за умовами Статті 10 «Охорона праці жінок забороняється застосування праці жінок на таких роботах».

Те ж стосується праці неповнолітніх. Згідно Статті 11 «Охорона праці неповнолітніх» на підприємстві не допускається залучення неповнолітніх до праці на важких роботах і на роботах із шкідливими або небезпечними умовами праці.

Неповнолітні (практиканти) приймаються на роботу лише після попереднього медичного огляду згідно порядку трудового і професійного навчання неповнолітніх професій, пов'язаних з важкими роботами і роботами із шкідливими або небезпечними умовами праці, що визначається положенням, яке затверджується центральним органом виконавчої влади з нагляду за охороною праці.

Всі питання пов’язані із дотримання правил охорони праці на підприємстві регламентуються Службою охорони праці. Згідно Статті 15 так як на підприємстві задіяно менше ніж 50 працюючих, функції служби охорони праці виконує в порядку сумісництва особа, яка має відповідну підготовку.

Служба охорони праці підпорядковується безпосередньо роботодавцю.

Спеціаліст служби охорони праці за своєю посадою і заробітною платою на підприємстві прирівнюється до керівників і спеціалістів основних виробничо-технічних служб.

Припис спеціаліста з охорони праці може скасувати лише роботодавець.

Ліквідація служби охорони праці допускається тільки у разі ліквідації підприємства чи припинення використання найманої праці фізичною особою.

Згідно Статті 17 «Обов'язкові медичні огляди працівників певних категорій» роботодавець за свої кошти забезпечує фінансування та організовує проведення попереднього (під час прийняття на роботу) і періодичних (протягом трудової діяльності) медичних оглядів працівників, зайнятих на важких роботах, роботах із шкідливими чи небезпечними умовами праці або таких, де є потреба у професійному доборі, щорічного обов'язкового медичного огляду осіб віком до 21 року.

Роботодавець, при потребі, в установленому законом порядку притягає працівника, який ухиляється від проходження обов'язкового медичного огляду, до дисциплінарної відповідальності, а також відсторонює його від роботи без збереження заробітної плати.

Працівники під час прийняття на роботу і в процесі роботи (згідно Статті 18 «Навчання з питань охорони праці») проходять за рахунок роботодавця інструктаж, навчання з питань охорони праці, з надання першої медичної допомоги потерпілим від нещасних випадків і правил поведінки у разі виникнення аварії.

Працівники, зайняті на роботах з підвищеною небезпекою або там, де є потреба у професійному доборі, щороку проходять за рахунок роботодавця спеціальне навчання і перевірку знань відповідних нормативно-правових актів з охорони праці.

Не допускаються до роботи працівники, у тому числі посадові особи, які не пройшли навчання, інструктаж і перевірку знань з охорони праці.

У разі виявлення у працівників, у тому числі посадових осіб, незадовільних знань з питань охорони праці, вони повинні у місячний строк пройти повторне навчання і перевірку знань.

На підприємстві, (відповідно до частини другої Статті 19 із змінами, внесеними згідно із Законом України від 25.03.2005 р. N 2505-IV), незалежно від форм власності, або фізичних осіб, які використовують найману працю, витрати на охорону праці становлять не менше 0,5 відсотка від суми реалізованої продукції. Суми витрат з охорони праці, що належать до валових витрат юридичної особи, яка відповідно до законодавства використовує найману працю, визначаються згідно з переліком заходів та засобів з охорони праці, що затверджується Кабінетом Міністрів України.

Роботодавець (у відповідності з Статтею 23 «Інформація та звітність про стан охорони праці») інформує працівників або осіб, уповноважених на здійснення громадського контролю за дотриманням вимог нормативно-правових актів з охорони праці, та Фонд соціального страхування від нещасних випадків про стан охорони праці, причину аварій, нещасних випадків і професійних захворювань і про заходи, яких вжито для їх усунення та для забезпечення на підприємстві умов і безпеки праці на рівні нормативних вимог.

Працівникам та/або їхнім представникам забезпечується доступ до інформації та документів, що містять результати атестації робочих місць, заплановані роботодавцем профілактичні заходи, результати розслідування, обліку та аналізу нещасних випадків і професійних захворювань і звіти з цих питань, а також до повідомлень, подань та приписів органів державного управління і державного нагляду за охороною праці.

Керівництво підприємства значної уваги приділяє стимулюванню охорони праці. Як вказано в статті 25 «Економічне стимулювання охорони праці» до працівників застосовуватися різні заохочення за активну участь та ініціативу у здійсненні заходів щодо підвищення рівня безпеки та поліпшення умов праці. При розрахунку розміру страхового внеску для підприємства Фондом соціального страхування від нещасних випадків, за умови відсутності травматизму і професійної захворюваності внаслідок здійснення роботодавцем відповідних профілактичних заходів, встановлено знижку до нього або надбавку до розміру страхового внеску за високий рівень травматизму і професійної захворюваності та неналежний стан охорони праці.

Розрахунок розміру страхового внеску із застосуванням знижок та надбавок для кожного підприємства, передбачених частиною другою цієї статті, провадиться відповідно до законодавства про загальнообов'язкове державне соціальне страхування від нещасного випадку на виробництві та професійного захворювання, які спричинили втрату працездатності.

РОЗДІЛ 5. ЕКОЛОГІЧНА ЕФЕКТИВНІСТЬ МОДЕРНІЗАЦІЇ ОЧИСНИХ СПОРУД ТОВ «ДУНАЄВЕЦЬКИЙ АРМАТУРНИЙ ЗАВОД»

5.1 Технічні характеристики установки для очистки ваграрночних газів ИЛ №54-304-00

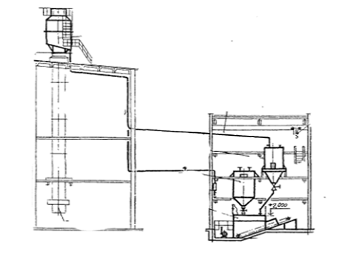
З метою зменшення шкідливих речовин що потрапляють в атмосферу у процесі ливарного виробництва ТОВ «Дунаєвецький арматурний завод» рекомендується встановити установку для очистки ваграрночних газів розробленої ООО "Внедренческий Центр Инсофт Сервис" (РФ) Додоток Д 2 (рис. 5.1).

Система очищення ваграночних газів шялхом шламовидалення призначена для забезпечення вимог, що пред'являються до охорони атмосферного повітря.

Рис. 5.1 Пиловловлювач ИЛ №54-304-00

1. Труба для відведення шламових стоків діаметром 160 мм;

. Бак-накопичувач;

. Бак освітленої води;

. Емність зі скребковим конвейером;

. Насос пісковий ПР 12,5/12,5;

. Насос подачі осветленої води до пилеуловлювача;

. Бак-мішалка для приготування вапняного молока;

. Бак-мішалка розхідна для вапняного молока;

. Насос-дозатор НД 1,0 400/10;

. Колектор осветленої води;

. Кран подвісний однобалковий 5 тонний.

Система складається з наступних основних умов: пиловловлювача і установки по утилізації стоків від пиловловлювача, що включає групу баків (два баки-накопичувачі і бака освітленої води), ємність для шламу із скребковим конвеєром, устаткування для приготування вапняного молока і оборотну систему водопостачання пиловловлювача.

Опис до ИЛ №54-304-00:

Установка представляє собою циліндричний корпус с нахиленим дном та водорозподільною трубою всередині.

По висоті корпусу розміщуються два рівні тарілок с великою кількістю щілин для виходу води. Гази із вагранки поступають в установку по спеціальному газоходові з різною кінетичною енергією. Пройшовши через шар щілин нижнього рівня, частинки пилу взаємодіють з плівкою води і переносяться на другий рівень щілин, де пара конденсується і відділяється від пило-паро-водогазової суміші, а частинки пилу виділяються в шлам.

Пиловловлювач встановлений на стволі вагранки вище за дах вагранкового відділення. Відмітка верху пиловловлювача 30 м. Вагранкові гази, виходячи із ствола вагранки потрапляють в пиловловлювач, в якому розміщено три рівні зрошування:

парасолька водорозподільна, створює водяну завісу на шляху руху газів;

система форсунок для зрошування стінок корпусу;

краплинна занавіска, що створюється центральною форсункою.

Зверху корпусу пиловловлювача встановлений каплеуловлювач.

Вода зі зрошення вловлює пил і частково поглинає оксиди азоту, вуглецю і сірки. Зрошення всіх рівнів сприяє тому, що шламові стоки потрапляють в нижню частину пиловловлювача, звідти прямують в бак-накопичувач по трубі діаметром 160 мм.

Одночасно з шламовими стоками в бак-накопичувач подається вапняне молоко для нейтралізації кислот, що утворюються в стоках при розчиненні оксидів сірки і азоту у воді. Вапняне молоко готується з гашеного вапна в спеціальній установці, передбаченій проектом.

У баку-накопичувачі шлам осідає в конусній частині, а вода постійно перетікає з середньої частини бака в бак освітленої води. Кожні 2 зміни згущений шлам вивантажується з конусної частини бака в ємність із скребковим конвеєром.

Для проведення вивантаження шламові стоки від направляються в другий бак-накопичувач.

У бак освітленої води - вода подається з водопроводу для компенсації її внесення з пиловловлювача і для зниження температури циркулюючої в системі води до 50 градусів. Вода з бака насосом подається в пиловловлювач.

По мірі накопичення мілкодисперсного осаду в конусній частині баку освітленої води здійснюється його розвантаження в ємність із скребковим конвеєром. Видалення шламу з цієї ємкості відбувається одночасно із зливом баків. Шлам віддаляється похилим скребковим конвеєром в спеціальну ємність, яка виводиться навантажувачем. Вода з верхньої частини ємності скребкового конвеєра переливається самопливом в каналізацію. Вода, що залишилася з шламом перекачується пісковим насосом в бак-накопичувач.

Враховуючи інформацію надану виробником, внаслідок використання апарату відбувається покращення стану навколишнього середовища за рахунок очистки ваграночних газів на 20%.

5.2 Еколого-економічна ефективність модернізації очисних споруд ТОВ «Дунаєвецький арматурний завод»

Сучасне розуміння процесів охорони довкілля передбачають комплексні економічні, правові, соціально-політичні та суто організаційно-господарські механізми спрямовані на зменшення навантаження на довкілля у відповідності до межі її стійкості. На сьогоднішній день, при вирішенні проблем охорони довкілля, найбільш актуальним та найбільш дієвим серед вище перелічених є комплексний механізм, що передбачає ефективне поєднання вищеперечислених важелів управління.

У світовій практиці найпоширенішими методами управління процесом природокористування є економічні методи. Це - платежі за ресурси та забруднення, надання пільг в оподаткуванні підприємств, надання на пільгових умовах коротко- і довгострокових позичок для реалізації проектів щодо забезпечення раціонального використання природних ресурсів та охорони навколишнього природного середовища, звільнення від оподаткування фондів охорони довкілля; передача частини коштів позабюджетних фондів охорони навколишнього природного середовища на довготривалих договірних умовах підприємствам, установам, організаціям і громадянам для вжиття заходів із гарантованого зниження викидів і скидів забруднювальних речовин, на розвиток екологічно безпечних технологій та виробництв, інвестиції на охорону природи, створення державного та регіональних екологічних фондів.

В Україні всі дії пов’язані із впровадженням економічних методів управління процесом природокористування регламентуються згідно з Порядком встановлення нормативів за забруднення навколишнього природного середовища і стягнення цього збору, затвердженого постановою Кабінету Міністрів України від 1 березня 1999 р. N 303 (в редакції постанови Кабінету Міністрів України від 28 березня 2003 р. N 402 ( 402-2003-п ).

Ліміти розміщення відходів у навколишньому природному середовищі визначаються для підприємств як фізичний обсяг відходів за класами їх токсичності. Встановлюють їх органи Міністерства охорони навколишнього природного середовища України у формі видачі дозволів на викиди і скиди забруднювальних речовин і розміщення відходів. За понадлімітні викиди і скиди забруднювальних речовин і розміщення відходів (понад ГДВ, ГДС) установлюються штрафні платежі - підвищений розмір плати порівняно з базовими нормативами плати (податками в межах від 1 до 5 разів).

Підприємство ТОВ «Дунаєвецький арматурний завод» також є платником збору за викиди в атмосферу забруднювальних речовин стаціонарними та пересувними джерелами забруднення.

Дозвіл за викиди забруднюючих речовин із вказаними новими нормами підприємством отримується щорічно.

В результаті виробничої діяльності ТОВ «Дунаєвецький арматурний завод» утворюється цілий ряд відходів, це промислові відходи 4-х класів безпечності та нешкідливі відходи. Всього на підприємстві в середньому за 2007-2009 рр. утворювалося 736,115 тон відходів. Основними серед яеих є відходи ливарних цехів: відходи формовочних та стержневих сумішей, шлам ваграночний, шлам очистки ваграночних газів, промислово-побутові та інші відходи. Аналіз показників щодо зборів за забруднення навколишнього середовища за 2007-2009 рр. (Додатки В1-В2) показав тенденцію до збільшення щорічних виплат підприємством за забруднення навколишнього середовища (табл. 3.2)

Таблица 3.2 Плата за викиди, скиди та розміщення промислових відходів ТОВ «Дунаєвецький арматурний завод», грн. (2007-2009 рр.)

Джерела забруднення

Плата по роках


2007

2008

2009

Стаціонарні

624,393

696,826

812,484

Пересувні

519,797

279,450

700,810

Всього за рік

1144,190

976,276

1513,294


Виходячи з даних таблиці 3.2 можна зробити висновок, що найбільше відрахувань підприємством здійснюється за забруднення навколишнього середовища стаціонарними джерелами забруднення, що становить за 2007-2009 рр 54,6; 71,4   та 53,6% відповідно по відношенню до загальних виплат .

На частку стаціонарних джерел забруднень припадає дещо менший обсяг виплат, проте за роки досліджень спостерігається чітка тенденція до їх збільшення.

В разі врахування наших рекомендацій та встановлення пиловловлювача ИЛ №54-304-00 кількість викидів стаціонарними джерелами забруднень та відповідно обсяг відрахувань за забруднення окремими речовинами зменшиться на 20% (Рис 3.4).

Рис.3.4 Економічна ефективність встановлення пиловловлювача ИЛ №54-304-00

Очікувана ефективність природоохоронних заходів рекомендованих ТОВ «Дунаєвецький арматурний завод»:

Назва заходу

Строк виконання

Вартість, грн.

Ефект від виконання

Встановлення системи очищення ваграночних газів ИЛ №54-304-00 шляхом шламовидалення

2010-2012

679 000

Зменшення викидів на т/рік: Оксид вуглецю - 121,2 Діоксид азоту - 0,024 Оксид азоту (NO) - 0,0044 Сірки діоксид - 0,18 Пил неорганічний з вмістом Si O2 -0,714 Насичені вуглеводні - 0,06

Модернізація фарбувальної камери № 19, введення в експлуатацїю якої дозволить перейти від покраски литва нітроемалями на покраску водоемульсійними красками.

2010

46 000

Зменшення викидів на т/рік: ксилол - 1,307 уайт-спірит - 5,227 аерозоль фарби - 0,0548.

Забезпечення контролю за вмістом СО (оксиду вуглецю) і димності відпрацьованих газів

2010

9200

-


Виконання рекомендованих для підприємства природоохоронних заходів дозволить значною мірою зменшити викиди окремих забруднюючих речовин в повітря, а такі як ксилол, уайт-спірит, аерозоль фарби повністю виключити з виробництва ( Додатки Д1-Д4 ).

ВИСНОВКИ

. На основі еколого-економічної оцінки забруднення атмосферного повітря ТОВ «Дунаєвецький арматурний завод», на підприємстві виділено 2 джерела забруднення через які здійснюється 87,4 % викидів забруднюючих речовин а це:оксид вуглецю, пил неорганічний з вмістом SiO2, діоксид азоту, оксиду азоту (NO), сірки діоксид, насичені вуглеводні.

. Встановлені відстані формування максимальної концентрації забруднюючих речовин: для оксиду вуглецю, діоксиду азоту, оксиду азоту (NO), сірки діоксиду - 136,8 м, пилу неорганічного з вмістом SiO2- 60,8, насичених вуглеводнів - 91,2 м.

. Перевищення гранично допустимих концентрацій відбувається за такими речовинами: оксид вуглецю, пил неорганічний з вмістом SiO2, діоксид азоту, сірки діоксид, насичені вуглеводні;

. ТОВ «Дунаєвецький арматурний завод» відноситься до ІІІ категорії небезпечності підприємств. Стандартна санітарно захисна зона становить 300 м. В уточнену СЗЗ у південно-західному та північно-східному напрямку входять житлові масиви.

. В середньому за роки досліджень що найбільше відрахувань підприємством здійснюється за забруднення навколишнього середовища стаціонарними джерелами забруднення, що становить за 2007-2009 рр 54,6; 71,4    та 53,6% по відношенню до загальних виплат .

. Для очистки викидів з основних стаціонарних джерел забруднень підприємства найбільш ефективним буде встановлення установки для очистки ваграночних газів ИЛ №54-304-00 розробленої ООО "Внедренческий Центр Инсофт Сервис" (РФ), що сприятиме зменшенню викидів оксиду вуглецю на 121,2 т/рік, діоксиду азоту на 0,024, оксиду азоту (NO) на 0,0044, сірки діоксиду на 0,18, пилу неорганічного з вмістом SiO2 на 0,714, насичених вуглеводнів на 0,06 т/рік.

. Модернізація фарбувальної камери № 19 та перехід від покраски литва нітроемалями на покраску водоемульсійними красками дозволить повністю виключити з виробництва такі шкідливі речовини як ксилол, уайт-спірит та аерозоль нітрофарби.

ПРОПОЗИЦІЇ ВИРОБНИЦТВУ

. Для зменшення негативного впливу викидів підприємства на житлові масиви, та навколишнє середовище в цілому, рекомендується насадити направляючі лісозахисні насаджень з південно-східної та північно-західної сторони території підприємства, а по периметрі підприємства провести посадку ізолюючих насаджень дерев;

. Встановити на основні стаціонарні джерела забруднень ТОВ «Дунаєвецький арматурний завод» установки для очистки ваграночних газів ИЛ №54-304-00 розробленої ООО "Внедренческий Центр Инсофт Сервис" (РФ).

. Модернізувати фарбувальну камеру № 19 від покраски литва нітроемалями на покраску водоемульсійними красками.

СПИСОК ВИКОРИСТАНОЇ ЛІТЕРАТУРИ

1.   Закон України про охорону навколишнього середовища. - К.: Мінекобезпеки, 1991.

2.      Постанова Кабінету Міністрів України від 30.03.1998 р. №391 «Положення про державну систему моніторингу довкілля».

.        Екологія та природні багатства України 2008. - «Український видавничий портал». 2008. http:/bookmaket/ecology2008/. - С 1-2.

.        ДСТУ 3959 - 2000 Охорона довкілля та раціональне поводження з ресурсами. Методики біотестування води. Настанови.

.        ГОСТ 8.417 - 81 (С Т СЭВ 1052 - 78) ГСИ: Единицы физических величин. М.: Изд-во стандартов, 1981.

.        ГОСТ 17.0.0.01 - 75. Система стандартов в области охраны природы и использования природных ресурсов. Основные положения.

.        Шелудченко Б.А. Інженерна екологія. Ч. 5. Фізика геосфер. - Житомир: ДАУ, 2003. - 157 с.

.        Білявський Г.О. та ін.. Основи екології: Підручник/ Г.О. Білявський, Р.С. Фурдуй, І.Ю. Костіков. -2-ге вид. - К.: Либідь, 2005. - 408 с.

.        Израэль Ю.А. Экология и контроль состояния природной среды. - М.: Гидрометеоиздат, 1984.

.        Луканин В.Н., Трофименко Ю.В. Промышленно-транспортная экология. М.: Высшая школа, 2001.

.        Куклев Ю.И. Физическая экология. - М.: Высш. шк., 2003.

.        Сухарев С.М., Чундак С.Ю., Сухарева О.Ю. Техноекологія та охорона навколишнього середовища. - Львів: Новий Світ-2000, 2004.

.        Шелудченко Б.А., Малиновський А.С, Зосимович М.В. та ін. Інженерна екологія. Ч. 1. Основи техноекології / За ред. Б.А.Шелудченка. - Житомир: Волинь, 2001.

.        Шелудченко Б.А., Можаровсысий М.М., Забродський П.М., Шелудченко І.А. Вступ до машинознавства. - Житомир: Полісся, 2000.

.        Клименко М.О., Прищепа А.М., Вознюк Н.М. Моніторинг довкілля: Підручник. - К.: Видавничий центр "Академія", 2006. - 360 с.

.        Некос В.Е. Основы общей экологии и неоэкологии: Учеб. пособие: [в 2-х ч.]. - Ч. 2. Основы общей и глобальной неоэкологии. -X.: Прапор, 2001.

.        Косьяненко А.А. Контроль качества окружающей среды. - М: Университет дружбы народов, 1992.

.        Безуглая Є.Ю. Мониторинг состояния загрязнения атмосферы в городах. Л.: Гидрометеоиздат, 1989.

.        Яцик А.В. Экологические основы рационального природопользования. - К.: Генеза, 1997.

.        Григорович А.Д. Методы контроля загрязнения воздушного бассейна. - К.: УкрНИИНТИ, 1982.

.        Правова база з питань екології та охорони природного середовища. Збірник нормативно-правових актів / Укладач М.І. Камлик - К.: Атіка, 2001. 632 с.

.        Беккер А.А., Агаев Т.Б. Охрана и контроль загрязнений природной среды. Л.: Гидрометеоиздат, 1989.

.        Мазур И.И., Молдаванов О.И. Курс инженерной экологии. - М.: Высшая школа, 1999.

.        Мацнєв А.І., Проценко С.Б., Саблій Л.А. Практикум з моніторингу та інженерних методів охорони довкілля. - Рівне: ВАТ Рівненська друкарня, 2002.

.        Боков В.А., Лущик А.В. Основы экологической безопасности. - Симферополь: СОНАТ, 1998.

.        Джигирей В.С. Основи екології та охорона навколишнього природного середовища. - Львів: Афіша, 2000.

.        Кубланов С.Х., Шпаківський Р.В. Моніторинг довкілля: Навчальний посібник. - К., 1998.

.        Охрана и оптимизация окружающей среды/ Под ред. А.А. Лаптева. - К.: Либыдь, 1990.

.        Сафронов Т.А. Екологічні основи прородокористування: Навчальний посібник для студентів вищих навчальних закладів. - Львів: Новий світ-2000, 2003 р.

30. Складові галузевого стандарту вищої освіти - освітньо-кваліфікаційна характеристика (ОКХ) і освітньо-професійна програма (ОПП) підготовки фахівців освітньо-кваліфікаційного рівня бакалавр за напрямом підготовки 0708 «Екологія» ( наказ Міністерства освіти і науки України №487 від 15.06.2004р.)

.     Методи екологічної та економічної регламентації господарської діяльності. М., 1994 г.

32.    Охорона навколишнього середовища США, наука і національні программи.М., 1990 г.

.        Бочкарев Т.ЗВ. Формування якості довкілля та його регулювання в міських агломераціях США. М., 1982 г.

.        Голуб А.А., Струкова Е.Б. Економічні методи управління природокористуванням. М., “Наука”, 1993.

35. Луканин В.Н., Трофименко Ю.В. Промышленно-транспортная экология. М.: Высшая школа, 2001

36.    <#"819970.files/image041.gif">

Очікуваний ефект від застосування природоохоронних заходів в ТОВ «Дунаєвецький арматурний завод» по зменшенні викидів пилу неорганічного


Очікуваний ефект від застосування природоохоронних заходів в ТОВ «Дунаєвецький арматурний завод» по зменшенні викидів речовин в межах 0,02- 0,54т/рік


Очікуваний ефект від застосування природоохоронних заходів в ТОВ «Дунаєвецький арматурний завод» по зменшенні викидів в цілому

Каталог продукції ТОВ «Дунаєвецький арматурний завод» (сторінка із сайту підприемства)

Похожие работы на - Процеси викидів та міграції в атмосфері шкідливих речовин по ТОВ 'Дунаєвецький арматурний завод'

 

Не нашли материал для своей работы?
Поможем написать уникальную работу
Без плагиата!
Без нейросетей!