|
Найменування сировини
|
Витрати сировини в г. на 1000 шт.
|
Технологічні вимоги до сировини
|
|
Борошно
|
300
|
Сировина відповідає вимогам НТД
|
|
Яйця
|
270
|
|
|
Горіхи
|
120
|
|
|
Ізюм
|
115
|
|
|
Цукор
|
100
|
|
|
Вихід
|
1000
|
|
Технологія приготування
Білки збити в густу піну, жовтки розтирають з
цукром, потім все це змішують з борошном та добавляють горіхи та ізюм. Ще раз
перемішують. Приготовлене тісто вливають у форму змащеною маслом та посипаною
сухарями. Випікають у духовці при температурі 180° С, 45-50 хв.
Вимоги до якості
· Форма: прямокутна;
· Поверхня: рельєфна;
· Колір: світло - жовтий
з золотистим відтінком;
· Консистенція: крихка;
· Смак: солодкий.
1.3 Організація роботи кондитерського цеху
Кондитерський цех займає особливе місце в системі
ресторанного господарства. Як правило, він працює самостійно, незалежно від
кухні і зазвичай постачає свою продукцію, крім основного, дрібним
підприємствам, буфетам і т.д. Загальна площа цеху і його планування залежать
від кількості й асортименту продукції, яка виготовляться. Кондитерський цех, що
випускає 2-3 тис. виробів, може складатися з двох підрозділів: заготівельного й
оздоблювального. У заготівельному здійснюється підготовка виробів до випікання
і власне випікання продукції, а в оздоблювальному - її оформлення.
Великі цехи, які випускають до 10-12 тис. виробів
за зміну, виділяють окремі приміщення для замісу тіста, обробки (формування)
виробів, випікання й оформлення. Зрозуміло, якщо такі підприємства випускають
продукцію для постачання іншим підприємствам ресторанного господарства і
торгівлі, вони повинні передбачити при проектуванні приміщення експедиції та
мийної тари.
Розміщення приміщень кондитерського цеху може
бути різним, однак завжди необхідно попередити можливість зустрічних потоків
при технологічному процесі. Приміщення кондитерського цеху має бути світлим,
щодо решти вимоги висуваються такі самі, як і до гарячого цеху.
У кондитерському цеху виконуються такі операції:
просівання борошна і приготування (заміс) тіста, формування, випікання,
оформлення виробів після випікання, приготування помадок, сиропів, кремів,
збивання білків.
На робочому місці для просіювання борошна встановлюють
відповідне обладнання і просіювальні машини. Залежно від потужності цеху
просіювальні машини можуть бути різної продуктивності. Сучасні просіювачі
займають мало місця і зручні для використання в кондитерських цехах. За
відсутності машин борошно просіюють за допомогою сит, які встановлюють над тією
ємністю, у якій буде замішуватися тісто.
Можна встановити також універсальний привід для
кондитерських цехів і з його допомогою виконати цю роботу. Так звичайно буває у
невеликих цехах. Процес замісу тіста машинним способом триває від 10 до 20 хв.
Крім машини для замісу тіста, на цьому робочому
місці має бути водонагрівальний апарат, виробнича раковина зі змішувачем
гарячої і холодної води та товарні ваги для зважування борошна.
Борошно подається на робоче місце просіяним, сіль
і цукор - у вигляді процідженого розчину певної концентрації. Для зручності і
полегшення дозування солі і цукру встановлюють мірну сталеву посудину з краном
і фільтром на дні.
За відсутності тістомісильних машин і
універсальних приводів заміс тіста роблять вручну. Для цього рекомендується
застосовувати спеціальний стіл-ящик таких розмірів: довжина 100 см, ширина 75
см, висота 98 см, глибина 43 см. Використовують також ящик висотою 90, шириною
70 і глибиною 50 см.
У тістомісильному відділенні організовується
робоче місце для виконання підсобних операцій: перебирання і промивання ізюму,
приготування і проціджування цукрового сиропу і розчину солі. Тут встановлюють
виробничий стіл із вмонтованою в кришку раковиною, до якої підведена холодна і
гаряча вода. Поряд зі столом ставлять ящик для солі і цукру. Для інструментів
та інвентарю на робочому місці встановлюють шафку.
Як і на підприємствах хлібопекарної
промисловості, для створення необхідних умов для бродіння дріжджового тіста у
великих кондитерських цехах виділяються спеціальні приміщення, в яких
підтримується оптимальна температура. Якщо таких приміщень немає, тісто
підвозять або підносять до кондитерських печей, біля яких температура повітря
вища. Бродіння тіста відбувається в тих самих діжах, у яких робився його заміс.
Після бродіння дріжджового тіста або його замісу
формують вироби. При виконанні цієї операції тісто розділяють на шматки певної
ваги і надають їм необхідної форми. Формування виробів потребує багато часу,
хоча найчастіше ця операція механізована. Це спеціальні напівавтоматичні тісто
розділювачі, що ділять тісто на порції певної ваги, автомати і напівавтомати,
що ділять тісто і формують вироби. На робочому місці для дозування тіста має
бути виробничий стіл, обладнаний висувним ящиком для борошна, ящиком для ножів
і вагами. Зліва від працівника встановлюють діжу з тістом, а справа - тісто
розділювач і стіл для формування тіста. Для розкачування тіста служить
тісторозкачувальна машина. На невеликих підприємствах або при випуску невеликої
кількості виробів розкачування можна робити вручну, хоча при цьому важко
одержати тісто потрібної товщини. Процес розкачування виконується значно легше
при використанні контрольної качалки, що складається з порожнього металевого
робочого валика діаметром 80 мм з розміщеною усередині нього віссю. На краю
валика з двох боків насаджуються контрольні кільця. Вісь валика має ручки,
закріплені на осі гвинтами з шайбами. Контрольні кільця закріплюються на валику
за допомогою штифтів. До набору валика входять п'ять номерів кілець із
зовнішнім діаметром від 88 до 100 мм.
Розкатують тісто на столі з кришкою, що має рівну
поверхню. Для розкачування і нанесення на тісто певного малюнка застосовуються
дерев'яні качалки з вирізаними на них штампами. Формування виробів може
здійснюватися різними виїмками, пристосованими для виготовлення напівфабрикатів
певної ваги.
Для нарізання тіста застосовують різець, за
допомогою якого одержують тісто із зубчастими краями, скалки -
тісторозділювачі, що розрізають тісто на рівні смуги, різець для нарізання на
кружки. Ці пристрої на великих підприємствах не використовуються.
Робочі місця для дозування, розкачування тіста і
формування виробів організовуються по-різному, залежно від ступеня розподілу
праці робітників кондитерського цеху. Власне кажучи, всі ці три операції можуть
виконуватися на одному робочому місці. У цехах, де застосовується поопераційний
розподіл праці, організовуються три спеціалізовані робочі місця, розміщені
поряд. Кількість працівників на кожному з них визначається з урахуванням
трудомісткості конкретної операції.
Рис. 1. Розміщення обладнання у кондитерському
цеху на ділянці оформлення виробів: 1 - Шпильки кондитерські для
транспортування готових кондитерських напівфабрикатів у доготовочні або
допоміжні цехи. 2 - Холодильні шафи для зберігання інгредієнтного складу
кондитерських виробів. 3 - Стіл виробничий. 4 - Полиці настінні для зберігання
сипучих кондитерських інгредієнтів. 5 - Універсальний привід, використовується
для приготування тіста, кондитерських фаршів, збивання вершків за допомогою
планетарного міксера
На робочому місці для розкачування тіста, крім
виробничих столів, встановлюють тісторозкатувальну машину і холодильну шафу для
охолодження тіста. Виробничі столи рекомендується робити з шафками для
інструментів і висувними ящиками для борошна.
Також застосовується механізм для подрібнення
горіхів.
- Стелаж для зберігання інвентаря і насадок до
універсального приводу.
- Столи кондитерські.
Робоче місце для формування виробів обладнують
такими самими спеціалізованими столами, як і для розкачування тіста. Зліва від
столу встановлюють пересувні малогабаритні стелаж і-шафи з кондитерськими
листами, на які викладають відформовані вироби. У міру заповнення їх відкочують
до місця розстойки.
На робочому місці приготування начинок
встановлюють виробничий стіл і невелику газову або електричну плиту для
приготування помадки, заварного тіста, крему. Тут використовують також
протиральну машину і м'ясорубку від пересувного універсального приводу. Для
транспортування і зберігання начинок застосовуються діжі на колесах, пересувні
ванни або стільці зі встановленими на них лотками.
Якщо в кондитерському цеху виробляються пиріжки,
смажені у фритюрі, то організовується спеціальне робоче місце, обладнане
електричними або газовими жаровнями. При великому завданні з випуску пиріжків
може бути встановлений пиріжковий автомат.
Вироби з листового і пісочного тіста готують на
тих же робочих місцях, що й вироби з дріжджового тіста, але в інший час. За
необхідності одночасного випуску виробів з цих видів тіста додатково
організовують робочі місця, аналогічні за своїм устаткуванням робочим місцям
для виробництва виробів із дріжджового тіста.
Для приготування бісквітного тіста обладнують
окреме робоче місце. Збивання бісквітного тіста здійснюється на механічній
збивачці з індивідуальним електромотором або від універсального приводу.
Для виконання підготовчих операцій (приготування
яєчної маси, цукру та ін.), а також для укладання збитого тіста у форми
встановлюють виробничий стіл. Після того як виробам надали певної форми їх
викладають на кондитерські листи, які ставлять на стелажі. Пересувні металеві
стелажі найбільш зручні в роботі, вони легко пересуваються і можуть
встановлюватися біля робочого місця. Крім пересувних стелажів, є стаціонарні
металеві полиці, вбудовані в стіну.
Після формування і розстоювання вироби піддаються
тепловій обробці - випіканню. Час випікання залежить від розміру виробу,
готовність визначається за зовнішнім виглядом.
Для випікання кондитерських виробів застосовують
електричні і газові жарочні шафи. Нині існують електричні жарочно-кондитерські
шафи, оснащені терморегуляторами, що дозволяють автоматично підтримувати задану
температуру в будь-яких межах.
Для випікання кондитерських виробів різних видів
необхідна відповідна температура. Так, булочки, пиріжки, ватрушки, кулеб'яки
випікають при температурі 200-250°С; бісквітне тісто - при 200-210°С; пісочні
штучні вироби - 210-220°С; листові штучні вироби - 250-260°С; трубочки і булочки
із заварного тіста - 215-220°С.
Після випікання вироби виймають і ставлять на
стелажі для охолодження, а після цього відправляють у приміщення для зберігання
готової продукції. Бісквіти, коржі для тортів, булочки з кремом і т. ін.
нарізають, змочують сиропом, покривають кремом або помадкою й оформляють. У
великих цехах для цих операцій виділяють спеціальне приміщення. Для змочування
бісквітів можна користуватися лійкою ємністю 2-3 л.
Оформлення кондитерських виробів здійснюється в
основному вручну. Для виконання цієї операції застосовують різні пристрої. Так,
для змазування кремом тортів і тістечок слід користуватися великою і малою
лопатками. Наповнювати тістечка кремом зручніше за допомогою кондитерського
мішка, закріпленого в стійці. Накінечники різної форми, що прикріплюються до
кондитерських мішків, дають можливість наносити на тістечка і торти
різноманітні візерунки. Для полегшення цього процесу можна застосовувати
трафарети з дроту діаметром 4 мм.
У великих кондитерських цехах для наповнення виробів
кремом застосовується пневматичний пристрій, який монтується на пересувному
металевому столі. Унизу столу встановлюється повітряний компресор з
електромотором, від якого стиснене повітря подається до встановлених на столі
бачків з кремом. До кожного бачка прикріплений гумовий шланг, на кінці якого
мається наконечник з рукояткою.
Наступна операція приготування сиропів, кремів,
збитих білків, помадок. Для її виконання кондитерський цех має нескладне
теплове обладнання плити або спеціальні пристрої, на яких встановлюють
кондитерські котли. Великі підприємства застосовують відкриті парові й
електричні соусні котли без кришок. У невеликих цехах для цього мається
наплитний кухонний посуд.
При невеликих об'ємах виробництва для
підігрівання і зберігання розігрітої помадки доцільно користуватися водяною
банею. Для цього у ванну ставлять каструлю меншого розміру з помадкою і за
необхідності витрачають, завжди маючи її під рукою. У водяній бані вона не
кристалізується і завжди має потрібну температуру.
Для збивання і перемішування продуктів великі
підприємства встановлюють збивальні машини, інші застосовують універсальні
приводи, м'ясорубки, протиральні машини малої потужності.
Універсальні приводи для кондитерських цехів у
поєднанні з універсальною збивальною машиною дозволяють приготовляти багато
видів напівфабрикатів: заварне тісто, тісто для бісквіта, тортів і тістечок,
помадку, вершковий і білковий креми. За відсутності машин ці процеси
здійснюються вручну за допомогою кондитерських вінчиків.
Для виконання інших операцій застосовують різні
інструменти і пристрої - ступки з пестиками, ручні та електричні кавомолки,
сита, друшляки, грохоти та ін.
При приготуванні листового тіста після кожного
розкачування його охолоджують. Для цього в приміщенні обробної, подалі від
кондитерських печей, встановлюють холодильну шафу, яка служить також для
зберігання швидкопсувних продуктів (вершкового масла, м'ясного фаршу і т. ін.).
Готові кондитерські вироби викладають в лотки і зберігають до реалізації в
окремому приміщенні - експедиції, обладнаній стелажами. З цеху їх транспортують
на пересувних стелажах або візках.
У великому кондитерському цеху необхідно
передбачити склад добового запасу сировини для забезпечення безперебійної
роботи протягом дня.
Для зберігання інструментів, пристроїв та
інвентарю в цеху встановлюють інструментальні шафи.
Для обробки яєць на робочому місці встановлюють
ванну, поряд з нею стіл з овоскопом і столик з ящиком для яєць, призначених для
перевірки. Перевірені на овоскопі яйця укладають в сітку й опускають по черзі у
ванну з дезінфікуючим розчином, потім у ванну з розчином соди і після цього у
ванну з проточною водою.
Обладнання і його типи для кондитерського цеху
підбираються залежно від передбачуваної продуктивності цеху. При цьому
враховується кількість завантажень, час роботи і коефіцієнт використання кожної
машини.
Теплове обладнання (кондитерська піч, шафи)
підбирається залежно від часової продуктивності апаратів. Для цього необхідно
знати вагу виробів, що випікаються, кількість їх на одному деку, кількість
деків, тривалість випікання.
Керівництво кондитерським цехом здійснює
начальник цеху. Він ознайомлює бригадирів з асортиментом виробів, що
випускаються, розподіляє сировину між бригадами, контролює технологічний.
У кондитерських цехах, як правило, застосовують
лінійний графік. У великих цехах робота організовується в дві зміни, у
невеликих - в одну. Бригади формуються або за видом продукції (одна виготовляє
вироби з дріжджового тіста; інша - торти, тістечка), або за операціями
технологічного процесу (замісу, формування, випікання і оформлення виробів). У
кожній зміні працюють дві-три бригади залежно від потужності цеху з
поопераційним розподілом праці.
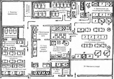
Рис. 2. Розміщення обладнання в кондитерському
цеху продуктивністю 10 тис. виробів за день
- стелаж кондитерський пересувний;
- підтоварник металевий;
З - холодильна шафа;
- стіл конторський;
- стіл виробничий;
- ванна мийна;
- стіл з охолодженням;
- збивальна машина;
- вібросито з підставкою;
- тістомісильна машина;
- стіл із вбудованою мийною ванною;
- стелаж виробничий;
- стерилізатор;
- мийна ванна;
- дозатор крему;
- слектрошафа;
- тісторозкатувальна машина;
- діжа для замісу тіста; 1
- електроплита;
- пристрій для охолодження сиропу
Кондитери V розряду виготовляють фігурні торти на
замовлення і тістечка. Вони проводять підготовку і перевірку якості сировини,
начинок, оздоблювальних напівфабрикатів, готують тісто, формують вироби,
здійснюють їх художнє оформлення.
Кондитери IV розряду виготовляють різні кекси,
рулети, печиво вищих сортів, складні торти і тістечка.
Кондитери III розряду виготовляють прості торти і
тістечка, хлібобулочні вироби, різні види тіста, кремів, начинок.
Кваліфікаційні вимоги до кондитера:
· кондитер повинен мати
початкову або середню професійну освіту;
· знати рецептуру і
технологію виробництва борошняних кондитерських і булочних виробів з різних
видів тіста, оздоблювальних напівфабрикатів;
· знати товарну
характеристику сировини, види смакових і ароматичних речовин, розпушувачів та
барвників, дозволених для виготовлення кондитерських виробів;
· дотримуватися
санітарно-гігієнічних умов виробництва борошняних кондитерських виробів, їх
терміни зберігання, транспортування і реалізації;
· знати органолептичні методи
оцінки якості кондитерських виробів;
· використовувати способи і
прийоми високохудожнього оздоблення складних видів кондитерських виробів;
· дотримуватися принципів
роботи і правил експлуатації технологічного обладнання, яке використовується
при виготовленні кондитерських виробів.
Кваліфікаційні вимоги до кондитера визначені
відповідно до вимог стандарту галузі ДСТ 30524-97 «Громадське харчування.
Вимоги до виробничого персоналу», який використовується при проведенні
сертифікації послуг підприємств ресторанного господарства.
Кондитери II розряду виконують окремі роботи в
процесі виготовлення тортів, тістечок, готують сиропи і креми.
Кондитери І розряду виконують роботу під наглядом
кондитерів вищого розряду, знімають з листів випечені вироби, зачитують
кондитерські дека, листи і форми.
Пекарі II і III розрядів випікають і смажать
кондитерські, хлібобулочні вироби. Вони визначають готовність напівфабрикатів
до випікання, підготовляють льєзон і змазують вироби. Пекар повинен вивчити
технологічний процес, режими і тривалість випікання кондитерських виробів,
знати норми виходу готових виробів, режим їх охолодження, а також правила
експлуатації та обслуговування.
Кондитери повинні усвідомлювати відповідальність
за виконувану роботу. Начальник цеху і бригадири слідкують за раціональною
організацією роботи в цеху, яка здійснюється відповідно до планового завдання з
випуску продукції.
1.6 Обладнання для приготування кондитерських
виробів
Плита електрична ПЕСМ - 4Ш
Електроплити є універсальним тепловим обладнанням,
використовуються у кондитерських та гарячих цехах підприємств харчування. Плита
ПЕСМ 4Ш є секційно - модульованою.

Рис. 1. Будова плита електрична ПЕСМ - 4Ш
Будова:
а - загальний вигляд б - креслення (розріз)
- регулювальний гвинт
- упор
- конфорки
- болт заземлення
- перемикачі-піддон
- верхні тени шафи
- вентиляційний патрубок
- дверцята
- теплоізоляційний шар
- нижні тени шафи
- ніжки
Принцип роботи
Нагрівання конфорок здійснюється за допомогою
теплових нагрівальних елементів (тенів), що вмонтовані у них. Електрострум
підводиться до тенів через електрокомутаційну проводку. Духова шафа
обігрівається трьома верхніми і трьома нижніми тенами, які закриті подовим
листом. Ступінь нагрівання кожної конфорки і духової шафи регулюється
відповідними перемикачами.
Правила експлуатації
· Перевіряють надійність і
справність заземлення, присутність гумових килимків, санітарний стан плити.
· Перевіряють стан
конфорок.
· Перевіряють справність
перемикачів, сигнальних ламп, які повинні світитися при вмиканні відповідної
конфорки.
· Вмикають загальний
пусковий пристрій а потім за допомогою перемикачів необхідну кількість
конфорок.
· Спочатку встановлюють
максимальний нагрів, а потім перемикають на середній.
· Плита ПЕСМ - 4Ш
розігрівається до повної потужності протягом години.
· Заборонено залишати
незавантажені конфорки у режимі сильного нагріву.
· Наплитний посуд
заповнюють не більше, ніж на 80%.
· Забороняється залишати
увімкнену плиту без нагляду.
· Після роботи плиту
охолоджують, конфорки чистять сухим способом, інші поверхні протирають вологою
тканиною, піддон миють з миючим засобом і просушують.
2. Універсальний привід 822-1
Основними елементами приводу є рушійний механізм
- горизонтально розміщений електродвигун трьохфазного змінного струму і
передаточний механізм - співосний двохступінчатий зубчатий редуктор з
горизонтальним розміщенням валів.
Рис. 2. Загальний вид візка універсального
привода 822-1
Обидва механізми встановлюють і закріплюють на
візку, який має плиту 1, що підтримується на трьох стійках 2, жорстко зв’язаних
між собою розпірками 3 які спираються на три ходових колеса 4.
Рис. 3. Загальний вид універсального приводу
822-1
Універсальний привід служить для послідовного
приведення у дію наступних механізмів: м’ясорубки, кремозбивалки,
картоплечистки, овочерізки з протирочним пристосуванням.
Експлуатація універсальних приводів.
При роботі з універсальними приводами необхідно
дотримуватись наступних правил:
· настільні універсальні
приводи кріплять до столу (при цьому кришка столу повинна бути достатньої
товщини і міцності);
· приводи зі станиною
встановлюють на рівній підлозі чи фундаменті і закріплюють болтами;
· при підключенні привода
до електричної мережі його заземлюють; у більшості випадків провід заземлення
під’єднують до спеціального болта на станині чи корпусі, оснащеному табличкою
«земля». Одночасно для захисту електродвигуна від струмів короткого замикання
на розподільчому щитку встановлюють плавкі запобіжники розраховані на
номінальну силу струму в 20 - 30 А;
· при під’єднанні проводів
до мережі звертають увагу на правильність обертання електродвигуна, напрямок
обертання вказують стрілкою;
· не вмикають привід до тих
пір, поки не буде встановлено і міцно закріплено в гнізді змінний механізм;
· змінний механізм знімають
із привода тільки при вимкненому електродвигуні;
· при завантаженому
механізмі електродвигун не вмикають, так як це призводить до зношування
контактів вимикача і до перевантаження електродвигуна;
· змінний механізм
завантажують продуктом тільки після вмикання електродвигуна; виняток становлять
кремозбивалки, у яких навпаки, спочатку завантажують в бачок продукт, а потім
вмикають привід;
· якщо після вмикання
двигуна електродвигун не обертається, а видає сильне гудіння, його потрібно
негайно вимкнути6 гудіння вказує на вихід із ладу одної із фаз. При роботі на
двох фазах двигун швидко нагрівається і, якщо він не оснащений відповідним
захистом, перегорає;
· для запобігання
передчасного зношення деталей необхідно слідкувати за наявністю і кількістю
олії, її якістю. Олію потрібно замінювати у приводі раз у рік;
· поряд із заміною мастила
приводи слід регулярно розбирати для огляду і виявлення та заміни зношених
деталей. Перед розбиранням усі приводи відключаються від електромережі і з них
виливається олія.
3. Машина для просіювання борошна МПБ-800
Рис. 4. Машина для просіювання борошна МПБ-800
Складається з таких
основних частин:
· Платформа 1;
· Завантажувальний
бункер 5;
· Шнек 7;
· Просіювальна
головка 3;
· Привід 16.
Завантажувальний бункер 5
місткістю 40 л. встановлений на платформі 1 і наділений запобіжною решіткою 14,
яка дозволяє спорожнювати мішок під час роботи машини. До зовнішньої частини
корпусу за допомогою хрестовини прикріплюється рухома рама 2, призначена для
підіймання мішків з борошном до завантажувального бункера.
На дні бункера розміщена
крильчатка 15, за допомогою якої борошно подається до приймального вікна
вертикального гвинтового конвеєра. Гвинтовий конвеєр, що подає борошно до
просіювальної головки 3, складається з вертикальної труби 8 та шнека 7.
Просіювальна головка являє собою металевий корпус, всередині якого обертається
сито 13, насаджене на вал шнека. Машина комплектується двома змінними ситами з
комірками розміром 1, 4 та 1, 6 мм. (відповідно для борошна вищого та першого
сорту) Для розпушування борошна в сито вставляється нерухома ножова решітка,
складена із диска та вертикальних ножів.
Просіювальна головка
наділена кришкою 12, яка закривається за допомогою відкидного гвинта 11. Кришка
одночасно фіксує ножову решітку з підшипником, який є верхньою точкою опори
вала. Розвантажувальне вікно обладнане магнітною пасткою 10 для затримування
металевого пилу та рукавом 9 із щільної тканини, який запобігає розпилюванню
борошна, що виходить з просіювача.
Привод машини для
просіювання борошна встановлений на платформі 1 і складається з електродвигуна
6 потужністю 1, 1 кВт та двох клинопасових передач 16, які забезпечують
обертання шнека з ситом та крильчатки бункера. Натяг ременів регулюється за
допомогою двох натяжних гвинтів.
Принцип роботи.
Підняте спеціальним
пристроєм та розвантажене в бункер борошно крильчаткою подається до гвинтового
конвеєра, підхоплюється шнеком, який направляє борошно всередину обертового
сита просіювальної головки. Тут борошно під дією відцентрової сили
розпушується, просіюється через сито, надходить до проміжку між корпусом
головки, ситом та лопатками і надходить до розвантажувального вікна.
Борошно проходить через
магнітну пастку, звільняється від металевих домішок і через тканинний рукав
потрапляє до підставленої посудини. Не просіяні частинки та домішки зчищаються
лопастями з внутрішньої поверхні сита і після зупинення машини видаляються.
Правила експлуатації
просіювача борошна.
. Перед початком
роботи в машині для просіювання борошна МПБ - 800 необхідно перевірити напрям
обертання крильчатки (проти стрілки годинника).
. Механізми МППП
-1 та МЗ 24-300 надійно закріплюються на валу спеціалізованого приводу.
. Сито або барабан
повинні відповідати сорту борошна.
. У машині МПБВ -
300 встановлюють сито, так щоб його нижня, покрита гумою, поверхня опиралася на
бортик корпусу.
. Закривають
кришку, а на горловину надівають капроновий рукав, під який підставляють тару.
. Машину включають
і опробовують на холостому ходу протягом ЗО - 40 с.
. Щоб борошно не
розпилювалося під час просіювання, завантажувальний бункер повинен бути
заповнений продуктом.
. Вологе борошно,
яке затримується в завантажувальному бункері, вилучають легким постукуванням по
стінці бункера
. Через кожні 25 -
ЗО хвилин машину зупиняють, відкривають кришку або знімають завантажувальний
бункер в просіювальних механізмах, виймають сито і очищують його від частинок,
що не просіялися.
. Після закінчення
роботи пристрій для підіймання мішків встановлюють у верхньому положенні, із
просіювача виймають сито чи барабан і очищають від відходів.
. Потім всі
поверхні протирають спочатку сухою, а потім вологою тканиною. Пофарбовані
поверхні промивають теплою водою, споліскують і витирають насухо.
. Забороняється
знімати сито чи барабан до повної зупинки електродвигуна.
Список літератури
кондитерський тісто цех
обладнання
1. А.А. Куліш «Чудеса з тіста» Мінськ ООО
«Хелтон» (1995 р)
2. Зайцева Г.Т. Горпенко Т.М. Технологія
виготовлення борошняних кондитерських виробів. Київ. Вікторія 2002 рік.
. В.О. Циганенко «Домашні кондитерські
вироби» Київ «Техніка» (1995 р)
. Р.П. Кенгис «Домашнє приготування
домашніх страв» Сімферополь «Реноме» (1996 р)
. Саєнко Н.П. Устаткування підприємств
харчування К.: лДл. 2001 рік.
6. Сидорук Т.П., Дідик Л.М. Технічне
оснащення підприємств громадського харчування. Механічне устаткування Львів.
Оріяна Нова. 2005 рік.
7. Сиромох Г.В. Товарознавство продовольчих
товарів. Київ. Лібра. 2005 рік.
. Современная энциклопедия приготовления
тортов. /Сост. Т.П. Тарасова. - Донецк: ПКФ «БАО», 2001. - 384 с.
. Левашова Е.Н. Сладкий сюрприз. - М.: ЗАО
Изд-во ЭКСМО-Прес, 1999. - 272 с.
. Шаповалов М.Н., Пивоваров В.У., Кримська
Б.Л. Організація роботи підприємств громадського харчування М.: Економіка. 1990
рік.