Разработка конструкции и технология изготовления компьютерного стола

  • Вид работы:
    Курсовая работа (т)
  • Предмет:
    Другое
  • Язык:
    Русский
    ,
    Формат файла:
    MS Word
    1,18 Мб
  • Опубликовано:
    2014-07-23
Вы можете узнать стоимость помощи в написании студенческой работы.
Помощь в написании работы, которую точно примут!

Разработка конструкции и технология изготовления компьютерного стола

Министерство образования Республики Карелия

государственное бюджетное образовательное учреждение

среднего профессионального образования Республики Карелия







Письменная экзаменационная работа

Тема: Разработка конструкции и технология изготовления компьютерного стола


Выполнил: учащийся ММП-3

Кулишов Арсений Сергеевич

Преподаватель:

Клюшина Н.В.

Мастер производственного обучения:

Абрамов В.М.




Петрозаводск 2015

Введение

История компьютерного стола

Испокон веков человек стремился к комфорту, и, изобретя первую мебель, он постоянно совершенствовал ее, приспосабливая под свои актуальные нужды. Если изначально компьютеры стояли на «вооружении» преимущественно у государственных структур и крупных корпораций, то с развитием сферы высоких технологий, оптимизацией производства и уменьшением финансовых расходов, персональные компьютеры начали появляться в обычных офисах и жилых домах. Стали открываться магазины по продаже ПК и аксессуаров к ним, оказался широко востребован и ремонт компьютеров. А вместе с компьютером в офисы и дома пришел и компьютерный стол, который сразу показал всю степень своей незаменимости.

Первые компьютерные столы стали появляться в конце 40-х - начале 50-х годов прошлого века, когда западные страны, придя в себя после разрушительной войны, начали усиленно поднимать производство и развивать различные его сферы. Помимо вопроса практичности, также остро встал вопрос эргономики, поскольку работникам умственного труда приходилось много часов ежедневно проводить, сидя за компьютером. Производители мебели вплотную занялись вопросом производства специальной офисной мебели, и так появились первые компьютерные столы, за ними компьютерные стулья и специальные офисные кресла. На территории России первые компьютерные столы появились вскоре после того, как на рабочих местах стали в массовом порядке устанавливаться «старинные» ЭВМ, это и положило началу производства компьютерной мебели на территории уже бывшего Советского Союза.

Методом проб и ошибок, расчетов и изучения нужд потребителей, были разработаны особые стандарты для офисной мебели, предусматривающие удобное и грамотное размещение оргтехники и комфортабельные условия работы для пользователя. ПК со временем «оброс» периферийными устройствами, его габариты и дизайн стремительно менялись, вместе с ним менялся и компьютерный стол, приспосабливаясь под потребности пользователей.

Домашний компьютерный стол появился сразу же, как только персональные компьютеры поступили в массовую продажу и стали доступны широкому кругу потребителей. Удобный и функциональный, стильный и занимающий, по большому счету, совсем немного места, домашний компьютерный стол уверено занял свое место среди стандартного набора мебели для дома. И поскольку в настоящее время усовершенствовать конструкцию компьютерного стола уже не приходится, производители стали делать упор на его дизайн, чтобы позволить покупателям выбирать среди большого количества самых разнообразных изделий, подбирая стол под стать оформлению интерьера. И сейчас, на заре 21-го века, каждый пользователь может выбрать именно то изделие, которое наиболее полно соответствует его представлениям и идеальном компьютерном столе - как с функциональной точки зрения, так и с эстетической, что в наше время также немаловажно, поскольку культ хорошего вкуса - это одна из визитных карточек современной цивилизации.

изготовление стол дефект мебельный

Характеристика изделия и технические требования к готовой продукции

В моей письменной экзаменационной я разрабатываю конструкцию компьютерного стола. Компьютерный стол имеет корпусную конструкцию, состоит из стола и надстроечной полки, которая возводится вокруг монитора, что позволяет оптимальным образом использовать верхнюю часть области над столом. Там, как правило размещаются звуковые колонки и малоиспользуемая оргтехника - принтеры, сканеры. Важное отличие компьютерного стола от любого другого - наличие специальной выезжающей полочки для мыши и клавиатуры. Такая полка не только экономить на столе место, но и позволяет принять правильную позу за столом. Выдвижная полочка ездит по стальным роликовым направляющим.

Стол имеет габаритные размеры 1360х600х750. Изделие изготавливается из ДСП одного цвета, мною был выбран этот материал так как:

ЛДСП обладают высокой прочность и твердостью;

Разнообразной цветовой гаммой, что позволяет разрабатывать дизайн стола;

Устойчивость к воздействию температуры, воды и растворителей.

Трансформируемые, выдвижные, раздвижные элементы изделий мебели должны иметь свободный ход без заеданий и перекосов. Фурнитура, выходящая на поверхность изделий, не должна иметь заусенцев; ребра торцов погонажных деталей должны быть притуплены.

Облицовка из шпона и других материалов для пластей фасадных и рабочих поверхностей единичного изделия или изделий набора, гарнитура и изделий, блокируемых по длине и высоте, должна быть подобрана по породе, текстуре (рисунку) и цвету. В пределах одного пласта или кромки лицевых поверхностей, облицовка должна быть одной породы, одного цвета и вида среза. Художественным решением может быть предусмотрен другой подбор облицовки.

Видимые поверхности мебели из древесины и древесных материалов, кроме поверхностей разделочных досок, наружных боковых стенок ящиков и полуящиков, и наружные невидимые горизонтальные поверхности мебели из древесины и древесных материалов, расположенные на высоте 1700 мм и более, должны иметь защитно-декоративные покрытия, отвечающие требованиям нормативной документации на эти покрытия. Наружные невидимые горизонтальные поверхности, расположенные на высоте 1700 мм и более, могут вместо защитно-декоративных покрытий иметь облицовку или защитное покрытие, допускающее влажную уборку.

Перпендикулярность кромок может определяться разностью длин диагоналей пласте, которая не должна быть более 0,2% длины плиты.

Для производства плит применяют:

для групп А и Б - плиты древесностружечные марок П-А и П-Б по ГОСТ 10632 первого сорта с мелкоструктурной поверхностью, шлифованные.

для группы В - плиты древесностружечные марок П-А по ГОСТ 10632 первого сорта с мелкоструктурной поверхностью, шлифованные. Допускается применять плиты древесностружечные по действующей нормативной документации, соответствующие по качеству плитам указанных марок;

пленки декоративные на основе термореактивных полимеров с неполной степенью конденсацией смолы по действующей нормативной документации.

Летучие химические вещества, выделяющиеся при эксплуатации изделий из плит в воздухе жилых помещений, не должны превышать допустимые уровни, указанные в гигиенических нормативах, предельно допустимых концентраций загрязняющих веществ в атмосферном воздухе населенных мест и ориентировочно безопасных уровней воздействия загрязняющих веществ в атмосферном воздухе населенных мест.

По результатам определения уровней летучих химических веществ, выделяющихся при эксплуатации изделий из плит в воздухе жилых помещений, должны быть оформлены санитарно-эпидемиологические заключения на продукцию органами Минздрава Российской Федерации.

Предельно-допустимые концентрации летучих химических веществ установлены в Государственных санитарных правилах и нормах, утвержденных Минздравом Российской Федерации.

На материалы, используемые для изготовления плит рекомендуется иметь санитарно-эпидемиологические заключения органов Минздрава Российской Федерации.

В условиях производства количество химических веществ, выделяемых плитами в окружающую среду, не должно превышать предельно допустимых концентраций для атмосферного воздуха. Лица, связанные с изготовлением плит, должны быть обеспечены средствами индивидуальной защиты специальной одеждой, защитными очками, для защиты рук - комбинированными рукавицами.

Технические требования к материалам

Компьютерный стол изготавливается из ламинированных плит.

ГОСТ Р 52078-2003

ПЛИТЫ ДРЕВЕСНО-СТРУЖЕЧНЫЕ, ОБЛИЦОВАННЫЕ ПЛЕНКАМИ

НА ОСНОВЕ ТЕРМОРЕАКТИВНЫХ ПОЛИМЕРОВ

Технические условия

Номинальные размеры плит должны соответствовать указанным в таблице 1.

Таблица 2

В миллиметрах

Длина

Ширина

Толщина

Номиналь- ный размер

Предельное отклонение

Номиналь- ный размер

Предельное отклонение

Номиналь- ный размер

Предельное отклонение

1830 2440 2750 3500 3660 5500

±5,0

1220 1500 1750 1830

±5,0

От 8 до 38 - включ. с градацией через 1 мм

±0,5


Отклонение от прямолинейности кромок не должно быть более 2,0 мм на 1м.

Отклонение от перпендикулярности кромок плит не должно быть более 2,0 мм на 1м.

Перпендикулярность кромок может определяться разностью длин диагоналей пласти, которая не должна быть более 0,2% длины плиты.

Для производства плит применяют:

для групп А и Б - плиты древесностружечные марок П-А и П-Б по ГОСТ 10632 первого сорта с мелкоструктурной поверхностью, шлифованные

для группы В - плиты древесностружечные марок П-А по ГОСТ 10632 первого сорта с мелкоструктурной поверхностью, шлифованные:

с плотностью не более: 720 кг/м - для толщин 13 мм и более, 800 кг/м - для толщин до 13 мм.

разбуханием по толщине за 2 часа не более 16%.

пленки декоративные на основе термореактивных полимеров с неполной степенью конденсацией смолы по действующей нормативной документации.

Показателя качества плит должны соответствовать нормам, указанным в табл. 2.

Таблица 3

№ п/п

Наименование показателя

Нормы для групп качества



А

Б

В

Приемо-сдаточные показатели:

1

Предел прочности при изгибе, МПа, не менее От 8 до 12 мм От 13 до 19 мм От 20 до 30 мм От 31 до 38 мм

  18,0 16,0 14,0 12,0

  16,0 14,0 12,0 10,0

  18,0 16,0 14,0 12,0

2

Покоробленность, мм, не более - для плит с двухсторонней облицовкой; - для пиит с односторонней облицовкой.

1,2  -

2,0  -

1,2  -

3

Гидротермическая стойкость покрытия

Допускаются незначительные: потеря блеска, цвета, проявление структуры плиты-основы *)

Не допускается изменения внешнего вида покрытия

4

Предел прочности при растяжении перпендикулярно пласти, МПа, не менее От 8 до 12мм От 13 до 19мм От 20 до 30 мм От 31 до 38 мм

    0,35 0,30 0,25 0,25

    0,30 0,30 0,25 0,22

    0,35 0,30 0,25 0,25

5

Удельное сопротивление при нормальном отрыве покрытия, МПа, не менее

0,80

0,60

0,80

Периодические испытания:

6

Твердость защитно-декоративного покрытия, (метод царапанья - по ГОСТ 27326 при весе груза 1,5 Н (метод 1), мкм, не более; - по приложению Д, Н, не менее

  80,0 2,0

  100,0 1,5

  60,0 2,5

Типовые испытания:

7

Стойкость покрытия к повышенной температуре воздуха

Изменение внешнего вида покрытая не допускается

8

Термическая стойкость покрытия

Не допускается изменения внешнего вида покрытия за исключением незначительной потери блеска, цвета

9

Стойкость покрытия к истиранию, обороты, не менее

65

Не нормируется

100

10

Стойкость поверхности к пятнообразованию

Изменение внешнего вида покрытия не допускается

Допускается незначительное изменение внешнего вида

Изменение внешнего вида покрытия не допускается

11

Стойкость покрытия к воздействию переменных температур, %, не менее

100

Примечание: Показатель п.3 "гидротермическая стойкость" контролируется (по требованию потребителей) только для элементов мебельных изделий, подвергающихся воздействию водяного пара.

Летучие химические вещества, выделяющиеся при эксплуатации изделий из плит в воздухе жилых помещений, не должны превышать допустимые уровни, указанные в гигиенических нормативах, предельно допустимых концентраций загрязняющих веществ в атмосферном воздухе населенных мест и ориентировочно безопасных уровней воздействия загрязняющих веществ в атмосферном воздухе населенных мест.

По результатам определения уровней летучих химических веществ, выделяющихся при эксплуатации изделий из плит в воздухе жилых помещений, должны быть оформлены санитарно-эпидемиологические заключения на продукцию органами Минздрава Российской Федерации.

Предельно-допустимые концентрации (ДДК) летучих химических веществ установлены в Государственных санитарных правилах и нормах, утвержденных Минздравом Российской Федерации.

На материалы, используемые для изготовления плит рекомендуется иметь санитарно-эпидемиологические заключения органов Минздрава Российской Федерации.

В условиях производства количество химических веществ, выделяемых плитами в окружающую среду, не должно превышать предельно допустимых концентраций для атмосферного воздуха в соответствии с требованиями ГОСТ 12.1.005.

Лица, связанные с изготовлением плит, должны быть обеспечены средствами индивидуальной защиты по ГОСТ 12.4.011 специальной одеждой, защитными очками, для защиты рук - комбинированными рукавицами.

Обеспечение пожарной безопасности должно соответствовать требованиям ГОСТ 12.1.004. Виды пожарной техники должны соответствовать требованиям ГОСТ 12.4.009.

Требования к показателям внешнего вида покрытия по классам представлены в табл. 3.

Перечень типовых дефектов покрытий мебельных деталей представлен в приложении А.

№ п/п

Наименование дефектов на поверхности

Классы



1

2

1

Вмятины: *) количестве, шт./м2 не более Наибольший размер на поверхности, мм, не более Глубина мм, не более

 1   5,0 0,2

 3   15,0 0,4

2

2. Включения: *) Количество, шт./м2 не более Наибольший размер на поверхности, мм, не более

Не допускается

 2  20,0

3

Серебристость пор, не более (рассеянная)

Не допускается

5% поверхности

4

Пятно Количество, шт./м2 не более Наибольший размер на поверхности, мм, не более

Не допускается

 1  30,0

5

Риски отдельные Волосяные *) Количество, шт./м2 не более

Не допускается

   4

6

Царапина *) Количество, шт./м2 не более размер, мм, не более

Не допускается

  1 200

7

Перекос рисунка

Не допускается

8

Непропечатка рисунка

Не допускается

Допускается незначительная, не портящая внешний вид

9

Проявление: 1. структуры древесностружечной плиты количество, шт./м2, не более Наибольший размер на поверхности, мм, не более 2. волнистости древесностружечной плиты

  1 5,0  Не допускается

  3 15,0  Допускается незначшельная при отсутствии серебристости

10

Блескость

Не допускается

Допускается не более 1% поверхности

Примечания:

. Суммарное количество одновременно присутствующих дефектов из числа допускаемых табл. 3 и обозначенных звездочкой *) должно быть не более на м2:

для покрытий 1 класса - 2 шт.;

для покрытий 2 класса - 5 шт.;

. Для плит конкретного формата количество допускаемых дефектов вычисляют в расчете на фактическую площадь; если получают нецелое число, то полученное значение округляют в сторону большего числа.

. Плиты с двусторонней облицовкой, имеющие на одной из сторон дефекты, превышающие указанные в табл. 3, переводятся в раздел плит с односторонней облицовкой. Сортность плит в этом случае устанавливается по качественным показателям лучшей стороны. Дефекты на оборотной стороне в этом случае не регламентируются.

Характеристика применяемых инструментов и оборудования

Для изготовления компьютерного стола используется следующее оборудование и приспособления:

Широкоформатный станок для листового раскроя плитных материалов

Форматно-раскроечные станки являются одним из самых распространённых видов оборудования в мебельных цехах и используются для раскроя листовых материалов. С их помощью раскраивают мебельные щиты как в продольном и поперечном направлении, так и под определённым углом. Форматно-раскроечные станки могут быть вертикального и горизонтального типа, что определяется позиционированием на рабочем столе раскраиваемой заготовки. Операция распила ДСП осуществляется посредством дисковой пилы. Плоскость дисковых пил на некоторых моделях может менять позицию от 90 до 45 градусов по отношению к плоскости рабочего стола.


Размер каретки

3200х360мм

Максимальная длинна распиловки

3120мм

Максимальная ширина распиловки

1250мм

Диаметр основной пилы

250-300мм

Высота распила

70мм

Скорость вращения основной пилы

4000/6000 оборотов в минуту

Диаметр шпинделя основной пилы

<300

Угол наклона пилы

Двигатель основной пилы

4 квт

Диаметр подрезной пилы

120

Скорость вращения подрезной пилы

8000 оборотов в минуту


Станки Кромкооблицовочные (автоматические)

Кромкооблицовочные станки предназначены для отделки края мебельных щитов специальным кромочным материалом из шпона, меламина или ПВХ. Для облицовки прямолинейных, криволинейных и скошенных кромок требуются различные модификации оборудования.


Минимальная длина панели, мм

160

Минимальная ширина панели, мм

80

Толщина панели, мм

10-60

Максимальная толщина кромки, мм

15

Ширина кромки, мм

15-63

Скорость подачи, м/мин

10,5/15,79

Мощность двигателя подачи материала, кВт

1,3/1,8

Габариты, мм

3750х850х1380

Масса, кг

1450


Станки сверлильно-присадочные

Сверлильно-присадочные станки являются незаменимым оборудованием при сверлении отверстий всех типов в плоскостях и торцах.

 Технические характеристики сверлильно-присадочного станка Наименование характеристики Значение характеристики  Модель GF23 GF27 GF35                   Количество шпинделей, шт 23 27 35                   Расстояние между шпинделями, мм 32 32 32                   Максимальное расстояние между крайними шпинделями, мм 704  832 1088                   Максимальная глубина сверления, мм 85 85 85                   Частота вращения шпинделей, об/мин 2800 2800 2800                   Мощность двигателя, кВт 1,5 1,9 1,9                   Габариты, мм 1150*780*1300 1 ,2*0,8*1,1 1,6*0,8*1,1                   


Шуруповерта. Для работы с шурупами и винтами применяются сменные насадки с различными наконечниками отвёрток - биты, которые представляют собой стержень из стали с унифицированным по размеру шестигранным хвостовиком с одной стороны, и рабочим концом, вставляемым в шлиц крепёжного изделия с другой. Биты могут устанавливаться как непосредственно в зажимной патрон (для этого предназначены биты длиной от 50 мм <#"810741.files/image004.gif">Форматно-раскроечные станки

Рулетка

 

 

2

Высверливание отверстий в деталях

   Сверлильно-присадочные станки

Рулетка

 

3

Кромление деталей

 Кромкооблицовочные станки

Визуально

 

 2. сборка компьютерного стола нижняя часть

 

1

Соединение боковых стенок и крышке

Евровинт, шуруповерт

Рулетка

 

2

Соединение полочки под компьютер и еще одной боковины и основанию компьютерного стола

Евровинт, шуруповертрулетка

 

3

Прикручивание фурнитуры к полочке для клавиатуры

Саморез, шуруповертрулетка


сборка компьютерного стола верхняя часть

1

Соединение боковых стенок и крышке

Евровинт, шуруповерт

рулетка


2

Присоединение полочки

Евровинт, шуруповертрулетка



3

Присоединение надстроечноечной полки к основанию стола

Евровинт, шуруповерт





Техника безопасности при выполнении работ и меры пожарной безопасности

Техникой безопасности это правила и мероприятия, имеющих целью охрану рабочих от производственных травм и несчастных случаев во время работы. Правила по технике безопасности нужно хорошо знать и обязательно выполнять.

На всех предприятиях должны быть внедрены современные средства техники безопасности и созданы такие санитарно-гигиенические условия, при которых будет исключена возможность производственного травматизма и профессиональных заболеваний.

Основные правила при работе ручным инструментом.

Инструменты должны быть плотно посажены на рукоятки, ручки ударных инструментов, расклинены деревянными или металлическими клиньями. Древесина рубанков, ручек молотков и стамесок должна быть гладкой. Ручки должны иметь овальную форму и постепенно утолщаться к свободному концу.

После окончания работы инструмент надо очистить от опилок, пыли и положить в соответствующее место для хранения. Держать инструменты в инструментальных шкафчиках навалом воспрещается.

Правила при работе ручным электроинструментом.

Все электроинструменты при выдаче их рабочим должны быть тщательно осмотрены: проверена целостность проводов, заземления и правильность действия электроинструмента.

Готовность электроинструмента к работе проверяют включением его в электросеть и пуском на короткое время вхолостую. Электродвигатель должен работать с нормальным звуком и не гудеть, а режущий инструмент вращаться без вибрации.

Включив электродвигатель, вначале надо дать рабочему валу набрать полное число оборотов, а затем подавать инструмент спокойным и плавным движением, без сильного нажима и перекосов на обрабатываемую древесину.

Если электродвигатель начинает усиленно гудеть и вращение инструмента останавливается или резко замедляется, следует вывести инструмент из древесины, дать валу вновь набрать полное число оборотов и только тогда подавать инструмент на обрабатываемую древесину. Частое повторение такого явления указывает на неисправность инструмента.

Работать электроинструментами разрешается только в резиновых перчатках и специальной обуви.

Ручки электроинструментов и вводы питающих их электропроводов должны иметь надежную изоляцию.

Присоединять электроинструменты к электросети без штепселей категорически воспрещается.

Во время перерыва в работе инструмент надо выключить и уложить так, чтобы он не опирался режущей частью на верстак. Оставлять без присмотра не отключенный от сети электроинструмент воспрещается.

После работы электроинструмент следует отключить от токопроводящей сети, очистить от стружек и опилок, протереть тряпкой, положить в специальный ящик и сдать лицу, ответственному за его исправность и хранение.

Правила при работе на деревообрабатывающих станках.

Все выступы на вращающихся частях станка должны быть снабжены гладким покрытием.

Детали станков и механизмов - станины, кронштейны, крышки, ограждения и .т.д.- не должны иметь обломанных бортиков, заусенцев, острых краев и выступов.

Рабочая часть режущих инструментов деревообрабатывающих станков обязательно закрывается либо автоматически действующим ограждением, открывающимся на необходимую высоту и ширину во время прохождения обрабатываемого материала, либо неподвижным ограждением, сблокированным с пусковым и тормозным устройствами станка.

Каждый деревообрабатывающий станок и механизм должен иметь надежно действующее приспособление для включения, а также выключательное приспособление, дающее возможность станочнику быстро и надежно остановить станок, не отходя от своего рабочего места.

Необходимо, чтобы каждый станок был снабжен надежно действующим тормозным приспособлением , обеспечивающим остановку его в течение 2-6 сек. с момента выключения двигателя. Тормоз должен быть сблокирован с пусковым устройством так, чтобы торможение при не выключенном двигателе было невозможно.

Возле каждого станка должны быть вывешены на видном месте правила работы на данном станке и инструкция по технике безопасности.

Запрещается использование станков и механизмов для работ, не соответствующих их прямому назначению.

Рабочие места следует располагать так, чтобы материал по отношению к работающему, как правило, поступал справа налево и чтобы обеспечивались наиболее благоприятные условия естественного освещения рабочего места .

Хранить материал на столе станка, механизмах или ограждении запрещается.

Все механизмы станков должны быть правильно отрегулированы.

При работе на станках следует применять различные направляющие приспособления в виде линеек и шаблонов.

На циркульных пилах и фуговальных станках должны быть толкатели для продвижения коротких заготовок.

Деревообрабатывающие станки, из которых под действием режущего инструмента возможен выброс обрабатываемого материала, необходимо снабжать специальными приспособлениями, предотвращающими возможность такого выброса.

Все рабочие места должны быть обеспечены нужными приспособлениями и инвентарем, а также устройствами для их хранения. Применять сжатый воздух для очистки станков и рабочих мест от опилок и пыли запрещается.

Удаление опилок, щепы, стружек должно быть механизировано. При обработке сухой древесины для удаления опилок и стружек можно применять только пневмотранспортные установки.

Вращающиеся рабочие части станков тормозить руками или какими-либо предметами запрещается.

Электродвигатель должен быть закрыт запирающимся ящиком или иметь специальное ограждение.

Противопожарные требования

В лесопильных и деревообрабатывающих цехах часто применяются легко воспламеняющиеся при неосторожном обращении с которыми может возникнуть пожар. Причиной пожара может быть также небрежное обращение с электрическими установками, замыкание проводов, курение в недозволенных местах. В целях предотвращения пожаров должны осуществляться следующие противопожарные мероприятия:

Все электрические провода должны быть тщательно изолированы, электрические аппараты и электродвигатели защищены от попадания внутрь них посторонних предметов.

Во время перерыва и по окончании работы электродвигатели должны быть выключены.

Рабочие места, где имеется возможность возникновения пожара, должны быть снабжены огнетушителями, ящиками с песком, совковыми лопатами .

Рабочие места и вся площадь цехов, а также и территория предприятия систематически должны освобождаться от опилок, стружки и обрезков.

В лесопильных и деревообрабатывающих цехах запрещается пользоваться огнем, электросваркой и автогеном без применения предохранительных мер.

Курить разрешается только в специально отведенных для этого местах.

В случае возникновения пожара рабочие должны немедленно принять меры к его тушению, используя местные противопожарные средства- огнетушители, песок, воду. Кроме того, надо изолировать горючие материалы от огня и от доступа к ним посторонних лиц. Одновременно с принятием мер следует немедленно вызвать по телефону пожарную команду.

Электробезопасность.

Электробезопасность включает в себя:

. Организацию безопасной эксплуатации электроустановки

. Технические способы и средства защиты от поражения электрическим током.

. Организационные мероприятия, обеспечивающие безопасность работ в электроустановках.

. Технические мероприятия, обеспечивающие безопасность работ со снятием напряжения.

. Средства защиты, используемые в электроустановках.

. Молниезащиту зданий и сооружений.

В зависимости от объема и сложности работ по эксплуатации электроустановок у Потребителей создаётся энергослужба, укомплектованная соответствующим по квалификации персоналом.

Допускается производить эксплуатацию электроустановок по договору со специализированной организацией, имеющей лицензию на право такой деятельности.

Потребитель обязан обеспечить:

• содержание электроустановок в работоспособном состоянии и их эксплуатацию в соответствии с требованиями нормативных документов по электробезопасности, правил безопасности и др. нормативно-технических документов;

• своевременное качественное проведение технического обслуживания, планово-предупредительного ремонта, испытания, модернизации и реконструкции электроустановок и электрооборудования;

• подбор электротехнического и электротехнологического персонала, периодические медосмотры работников, проведение инструктажей по безопасным методам труда и пожарной безопасности;

• надежность работы и безопасность эксплуатации электроустановок;

• охрану труда электротехнического и электротехнологического персоналов;

• охрану окружающей среды;

• учёт, анализ и расследование нарушений в работе электроустановок, несчастных случаев, связанных с эксплуатацией электроустановок и принятие мер по устранению причин их возникновения;

• представление сообщений в органы Энергонадзора об авариях, смертельных. Тяжелых и групповых несчастных случаях, связанных с эксплуатацией электроустановок;

• разработку должностных, производственных инструкций и инструкций по охране труда для электротехнического персонала;

• укомплектование электроустановок защитными средствами, средствами пожаротушения и инструментом;

• учёт, рациональное использование электрической энергии и проведение мероприятий по энергосбережению;

• проведение необходимых испытаний электрооборудования. Эксплуатацию устройств молниезащиты, измерительных приборов и средств учета электрической энергии;

• выполнение предписаний органов государственного энергетического надзора

Допускается производить эксплуатацию электроустановок по договору со специализированной организацией, имеющей лицензию на право такой деятельности.

Потребитель обязан обеспечить:

• содержание электроустановок в работоспособном состоянии и их эксплуатацию в соответствии с требованиями нормативных документов по электробезопасности, правил безопасности и др. нормативно-технических документов;

• своевременное качественное проведение технического обслуживания, планово-предупредительного ремонта, испытания, модернизации и реконструкции электроустановок и электрооборудования;

• подбор электротехнического и электротехнологического персонала, периодические медосмотры работников, проведение инструктажей по безопасным методам труда и пожарной безопасности;

• надежность работы и безопасность эксплуатации электроустановок;

• охрану труда электротехнического и электротехнологического персоналов;

• охрану окружающей среды;

• учёт, анализ и расследование нарушений в работе электроустановок, несчастных случаев, связанных с эксплуатацией электроустановок и принятие мер по устранению причин их возникновения;

• представление сообщений в органы Энергонадзора об авариях, смертельных. Тяжелых и групповых несчастных случаях, связанных с эксплуатацией электроустановок;

• укомплектование электроустановок защитными средствами, средствами пожаротушения и инструментом;

• учёт, рациональное использование электрической энергии и проведение мероприятий

по энергосбережению;

• проведение необходимых испытаний электрооборудования. Эксплуатацию устройств молниезащиты, измерительных приборов и средств учета электрической энергии;

• выполнение предписаний органов государственного энергетического надзора

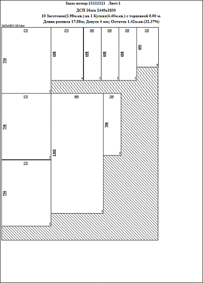
Расход материала


Перечень использованной литературы, ресурсы Интернет

Бобиков П. Д. Конструирование столярно-мебельных изделий: Учебник для сред.проф.техн. училищ. - 2-е изд., перераб. и доп. - М.: Высш.шк.,1980.- 174 с, ил

Григорьев М.А. Материаловедение для столяров и плотников.- М.: Высш.шк., 1981.-173 с.

Гурвич А.О. Столярные работы. - изд. 5-е, перераб.. и доп. - М.: Высш.шк.,. 1964.- 605 с.

Крейндлин Л.Н. Столярные работы.- Высш.шк.,1982.-128с.

Куксов В.А. Столярное дело.- М.: Профтехиздат, 1960.-523 с.

Кулебакин Г.И. Столярное дело.- М.: Стройиздат,1983.-143 с.

Практические советы. Столярные работы. Издательства Харвест, 2000 - 208 с.

ШумегаС.С. Иллюстрированное пособие по производству столярно-мебельных изделий. М., Экология, 1991. - 320 с.

Похожие работы на - Разработка конструкции и технология изготовления компьютерного стола

 

Не нашли материал для своей работы?
Поможем написать уникальную работу
Без плагиата!
Без нейросетей!