Электронные системы охраны

  • Вид работы:
    Курсовая работа (т)
  • Предмет:
    Информатика, ВТ, телекоммуникации
  • Язык:
    Русский
    ,
    Формат файла:
    MS Word
    811,71 Кб
  • Опубликовано:
    2015-06-28
Вы можете узнать стоимость помощи в написании студенческой работы.
Помощь в написании работы, которую точно примут!

Электронные системы охраны

Содержание

1. Введение

1.1 Проектирование

1.2 Структура системы безопасности жилого дома

2. Подсистема контроля и управления доступом

.1 Аудиодомофоны

.2 Видеодомофоны

2.3 Подсистема видеонаблюдения

.4 Подсистема охранной и пожарной сигнализации

.5 Подсистема диспетчеризации и мониторинга инженерных систем дома

.6 Подсистема сбора, обработки, хранения и отображения информации

2.7 Интеграция средств безопасности

2.8 Системы охранно-пожарной сигнализации ОПС

.9 Рубежи

2.10 Датчики

.11 Вход и выход

. План размещение устройств ОС 4 этаж

3.1 Описание

Приложение

Введение

Электронные системы охраны

Общие принципы организации охраны объектов хорошо известны и описаны в многочисленных источниках. При всем многообразии и особенностях различных способов защиты эти принципы сводятся к созданию нескольких рубежей защиты и комплексу организационных мер по пресечению действий злоумышленника.

При выборе способов защиты жилища, потребитель исходит в первую очередь из оценки возможной угрозы. Эта оценка зависит от рода занятий, месторасположения, благосостояния потребителя и т.п. Оценка возможной угрозы во многом субъективна, поэтому окончательный выбор структуры электронной системы защиты всегда остается за потребителем.

При выборе концепции построения охранной системы для частного домовладения существуют некоторые отличия от систем охраны крупных объектов.

Главное отличие состоит в различных финансовых возможностях промышленного или торгового предприятия и владельца частного коттеджа или дачного дома. В большинстве случаев хозяин дома исходит не столько из желаемых технических характеристик охранной системы, сколько из той денежной суммы, которую он готов выделить на оснащение электронной охранной системы.

Отсюда вытекают повышенные требования к надежности оборудования. Общеизвестно, что надежность системы в целом тем ниже, чем большее число элементов составляет данную систему. Поэтому, для повышения надежности системы нужно свести число различных устройств (датчиков, расширителей, распределительных коробок и т.п.) к минимуму, разумно необходимому для выполнения поставленной задачи. Кроме того, обслуживание значительно упрощается, если система состоит из однотипных, взаимозаменяемых элементов.

Даже сложная система электронной защиты должна состоять из нескольких функционально независимых частей, простых в настройке и применении. Такой подход повышает надежность системы в целом и снижает эксплуатационные расходы. С другой стороны не стоит экономить на стадии построения системы, приобретая более дешевое оборудование малоизвестных фирм, морально устаревшее или функционально ограниченное. На стадии разработки желательно закладывать некоторую избыточность оборудования по техническим и функциональным характеристикам. Большинство современных охранных систем имеют модульную структуру, позволяющую расширять систему путем добавления дополнительных блоков.

Третье отличие электронных систем безопасности индивидуального дома состоит в повышенных эстетических требованиях к элементам систем безопасности и качеству выполнения монтажных работ. Выполнение этого требования также облегчается при сведении к функционально разумному минимуму числа различных датчиков и других элементов системы, требующих открытой установки.

.1 Проектирование

При проектировании системы безопасности котеджа, дома, квартиры или другого объекта необходимо предусмотреть множество аспектов.

Рисунок 1- Схема котеджа

От грамотности проекта охранной системы зависит дальнейшая её работа, а, следовательно, степень безопасности которую она может обеспечить людям и материальным ценностям. Нужно учесть, то, что система безопасности состоит из многих сложных самих по себе подсистем, таких как:

Система видеонаблюдения

Система контроля доступа

Система контроля периметра

Система контроля утечек воды и газа

Охранная и пожарная сигнализации

Рисунок 2- Схема

Во время проектирования учитывается множество моментов, от архитектурных особенностей до параметров электрики, которые установлены на объекте. Проектирование системы видеонаблюдения включает распределение видеокамер на объекте в соответствии с техническим заданием для обеспечения максимальной безопасности объекта.

.2 Структура системы безопасности жилого дома

Систему безопасности дома можно представить как совокупность подсистем:

контроля и управления доступом;

видеонаблюдения;

охранной и пожарной сигнализации;

диспетчеризации и мониторинга инженерных систем дома;

сбора, обработки, хранения и отображения информации;

оперативного реагирования.

Каждая из подсистем представляет обособленный технический комплекс. Например, оборудование подъезда стальной дверью и замком является основой для создания системы управления доступом, а установка видеокамеры и организация дуплексной связи от двери каждого подъезда - основой для создания диспетчерской службы и т. д.

. Подсистема контроля и управления доступом

.1 Аудиодомофоны

безопасность жилой дом видеонаблюдение

Аудиодомофоны (далее домофоны) являются неотъемлемой частью инженерной инфраструктуры современного дома. Это простая и удобная в эксплуатации система ограничения доступа на защищаемую территорию (подъезд). Установка домофона помогает справиться с проблемой вандализма и порчи общего имущества дома: сохранить в целости стены, лифт, почтовые ящики, электроосвещение на этажах и т. п. Кроме того, установка домофона снижает вероятность проникновения в подъезд случайных лиц и уменьшает риск нападений с преступными целями в защищенном доме.

Обязательным условием для установки домофона является наличие металлической двери с двухслойной либо трехслойной конструкцией.

Монтаж домофона должен производиться с соблюдением требований действующих СНиП и других нормативных документов по эксплуатации жилищного фонда.

.2 Видеодомофон

Принцип работы видеодомофона отличается от работы аудиодомофона только в части получения у жильца видеоизображения посетителя, дающего о нем более полную информацию.

Разные варианты использования видеодомофона позволяют получить видеоизображение во всех квартирах подъезда.

Видеодомофон наиболее эффективен при наличии поста консьержа в подъезде. Хорошее и относительно недорогое решение, позволяющее консьержу, как лицу, отвечающему за порядок и безопасность в подъезде, иметь полную (аудио- и видео-) информацию о посетителе.

.3 Подсистема видеонаблюдения

В простейшем случае система видеонаблюдения представляет собой видеокамеру, фиксирующую входящих в подъезд, подключенную к специальному записывающему устройству.

Следует отметить, что уже сам факт наличия видеонаблюдения оказывает заметное останавливающее воздействие на потенциальных нарушителей. Еще более эффективным является вариант с использованием средств видеоконтроля, при которых жители извещены о том ,что территория в доме и вокруг него просматривается видеокамерами.

Рисунок 3- Единая система диспетчеризации и передачи аварийных и тревожных сообщений

Существенное различие централизованного видеонаблюдения от системы локальной видеозаписи доступа в подъезд - это возможность не только комплексного контроля ситуации, но и оперативного реагирования на нее.

При этом консьерж в каждом подъезде не обязателен, достаточно одного диспетчера (организации одного рабочего места для круглосуточного контроля) на несколько подъездов, весь дом или даже на несколько домов. Более того, в каждой охранной видеосистеме есть возможность программно-аппаратного контроля движения в поле зрения видеокамер, что значительно упрощает работу диспетчера, внимание которого может быть ослаблено (из-за усталости или других причин).

Рисунок 4- Структура систем охранной сигнализации

Система видеонаблюдения может включать в себя видеокамеры различной конфигурации. Тип видеокамеры определяется условиями ее работы: темный подвал или узкий лифт, улица, котельная и т. п. Технические средства управления видеокамерами (поворотное устройство, трансфокатор - для дистанционной фокусировки) и аппаратно-программный комплекс обработки и записи видеоинформации (видеомагнитофон, компьютер) существенно облегчают и повышают эффективность работы диспетчера.

места (зоны контроля), где будет установлена и куда будет направлена каждая видеокамера;

степень детализации видеоконтроля (количество прошедших человек, кто именно прошел, в каком состоянии был, когда проходил) для каждой конкретной зоны;

систему регистрации;

место нахождения диспетчерского пункта, обязанности оператора.

.4 Подсистема охранной и пожарной сигнализации

Важным элементом комплексной системы безопасности является подсистема охранной и пожарной сигнализации.

Система охранно-тревожной сигнализации (СОТС) должна обеспечивать охрану выделенных зон в автоматизированном режиме. СОТС нижнего уровня (квартира) в типовом варианте решения управляются с пульта локального приемно-контрольного прибора, размещаемого непосредственно в охраняемой зоне. С данного локального приемно-контрольного прибора в систему диспетчеризации должна обеспечиваться дифференцированная подача сигналов постановки/снятия с охраны, несанкционированного проникновения, пожарной тревоги, при детектировании наличия опасной концентрации в воздухе - газовой опасности. Элементы охранных систем общедомового назначения должны управляться через систему сбора, обработки, хранения и отображения информации (ССОИ) централизованно. В жилых зданиях рекомендуется оборудовать средствами СОТС выходы в подвал, на чердаки или крыши, запасные выходы, технологические помещения.

В зависимости от условий размещения, прогнозируемой вероятности тех или иных угроз, принятой тактики охраны создаются один или два рубежа охраны. Они создаются на подступах к зданию и по его периметру (стены, перекрытия, двери, окна), в помещениях.

Для обеспечения надежной охраны используют комбинированные датчики (извещатели), основанные на различных физических принципах обнаружения. Извещателями системы охранной сигнализации объемного типа блокируются помещения, имеющие оконные проемы. Магнитоконтактными извещателями блокируются все наружные двери, двери основных помещений и двери, оборудованные элементами СКУД, створки оконных рам. Помещения нижних этажей зданий, а также расположенные возле пожарных лестниц, балконов, карнизов и т. п. с оконными проемами, не оборудованными декоративными металлическими решетками, блокируются акустическими извещателями разбития стекла.

СОТС и ССОИ должны обеспечивать протоколирование (архивирование) всех происходящих событий (постановка и снятие с охраны, тревожные сообщения, неисправности, переход на электропитание от резервных источников, корректирование времени и др.). Целесообразно обеспечить ведение общего протокола с системой контроля и управлением доступом.

Состав систем пожарной безопасности для большинства объектов строго регламентирован нормативными документами и учитывается при проектировании. Для жилых зданий, не вошедших в нормативные перечни, установка данных средств безопасности до выхода региональных норм и требований носит рекомендательный характер.

При наличии в жилых зданиях оборудованных помещений для постов охраны (диспетчерских) с круглосуточным режимом функционирования рекомендуется создавать автоматические системы пожарной сигнализации с размещением в указанных помещениях приемно-контрольных приборов. При отсутствии дежурных служб или сложностях одновременного оборудования средствами пожарной сигнализации всех квартир (например, в находящемся в эксплуатации жилом здании) рекомендуется устанавливать средства охранно-пожарной сигнализации локального уровня.

Система оповещения предназначена для доведения информации о чрезвычайных ситуациях и местах их возникновения до жильцов, а также управления эвакуацией людей. Кроме того, она может использоваться для трансляции важных сообщений, радио_ или музыкальных программ. Оборудование системы оповещения должно обеспечивать:

передачу сообщений о чрезвычайных ситуациях (избирательное и последовательное оповещение) в автоматическом режиме или при помощи микрофона диспетчерского пульта

доведение информации при помощи микрофонов, установленных на рабочих местах службы эксплуатации дома и постах операторов КТСБ, а также заранее записанных на магнитную ленту, жесткий диск компьютера.

.5 Подсистема диспетчеризации и мониторинга инженерных систем дома

Основой финансовой стабильности и эксплуатационной безопасности любого многоквартирного дома является применение энерго-- и ресурсосберегающих технологий, постоянный контроль состояния инженерных систем.

Ввод в эксплуатацию единой многоуровневой автоматизированной системы диспетчеризации инженерных сетей, контроля и управления объектами городского хозяйства (СДИС) направлен на создание информационной системы, обеспечивающей контроль расхода топливно-энергетических ресурсов и автоматизацию деятельности диспетчерских служб. Создание подобной системы в рамках отдельного многоквартирного дома или группы домов ведет к значительному снижению затрат на энергоресурсы и повышению эффективности их использования (электроэнергия, газ, тепло, вода и пр.). Кроме того, введение в эксплуатацию полноценной СДИС предоставляет эксплуатационным службам и органам управления эффективный инструмент контроля, позволяющий решить следующие задачи:

создание механизма получения в автоматизированном режиме объективной, оперативной и достоверной информации о состоянии инженерного оборудования зданий и сооружений;

повышение оперативности получения данных о признаках технологических аварий, неисправности оборудования инженерных сетей и автоматики здания;

создание условий, стимулирующих реализацию ресурсо- и энергосберегающих технологий, режима экономии;

автоматизация процессов сбора, обработки, протоколирования и отображения данных, подготовки статистических и финансовых документов по расчету за предоставленные услуги.

Общими функциональными требованиями к СДИС являются:

сбор и автоматическая обработка данных со счетчиков электроэнергии, горячей и холодной воды, тепла, природного газа на уровнях квартира (офис), - дом (строение);

определение баланса здания по электроэнергии, горячей и холодной воде, теплу, природному газу;

обнаружение инцидентов, связанных с техническими авариями в инженерных сетях, нарушением нормального функционирования счетчиков;

сбор, протоколирование событий, автоматическая подготовка и передача аварийных сообщений в установленном формате (идентификатор координат, тип оборудования и признак инцидента);

автоматический и/или интерактивный анализ данных, генерация отчетов и протоколов;

хранение протоколируемых данных на сервере в стандартизированном формате, позволяющем производить их обработку и использование с помощью программного обеспечения других производителей;

ведение баз данных по оборудованию (планируемые сроки и отметки о проведении регламентных и ремонтных работ, статистика, метрология и т. д.);

мониторинг инцидентов в системе (регистрация аварийных, тревожных сигналов), обеспечение приоритетов передачи таких сообщений;

функционирование под управлением операционных систем жесткого реального времени;

разграничение доступа к данным по уровню администрирования и по принадлежности данных;

возможность обмена данными в СДИС через унифицированные протоколы и интерфейсы.

.6 Подсистема сбора, обработки, хранения и отображения информации

Подсистема сбора, обработки, хранения и отображения информации (ССОИ) является важным элементом комплекса технических средств безопасности (КТСБ) в масштабах города, района, муниципального образования, жилого квартала, отдельного многоквартирного дома. ССОИ должна обеспечивать выполнение следующих функций:

согласование работы всех технических систем безопасности, обеспечение адекватного реагирования операторов постов охраны и наблюдения на возникающие сигналы тревоги и другие сообщения;

выполнение централизованной и децентрализованной постановки и снятия с охраны отдельных зон в соответствии с полномочиями операторов и пользователей

прием и обработку всей информации, которая поступает от приемно-контрольных приборов, непосредственно от средств обнаружения (извещателей охранной и пожарной сигнализации, детекторов наличия опасной концентрации газа и т. п.), а также обеспечивать приоритетный прием сигналов тревоги;

вывод информации, поступающей от средств КТСБ на мониторы АРМ операторов постов охраны и наблюдения, оперативно-дежурных смен Единой службы спасения, диспетчеров аварийных служб в соответствии с заданной конфигурацией распределения данных и с привязкой сигналов тревоги к электронным планам и ГИС;

оповещение персонала постов охраны и служб безопасности о возникших на объекте нештатных ситуациях и выдачу рекомендаций по реагированию на них, посредством отображения оперативной предупреждающей текстовой, графической информации на АРМ операторов и администрации. Кроме того, автоматически должны выдаваться установленные директивы, инструкции, рекомендации операторам;

документирование в электронной форме с возможностью вывода на бумажные носители для последующего детального анализа всех событий, контролируемых системой, с указанием места их возникновения, характера, даты и времени, а также сообщений, команд по управлению техническими средствами КТСБ, действий персонала;

разграничение доступа персонала к функциям и ресурсам системы в соответствии с его должностными обязанностями;

анализ обстановки и блокирование действий, приводящих к нештатным ситуациям и снижению уровня безопасности объекта;

оперативное предоставление по запросу администратора ретроспективной информации о состоянии безопасности объекта;

дистанционное управление включением систем дежурного и ночного освещения, оповещения на функционирование по графикам в заданные промежутки времени, контроль их текущего состояния и возможность их оперативного изменения по командам и автоматически по фактам запрограммированных событий;

автоматизацию процессов принятия решений при внештатных ситуациях;

автоматический переход на автономный режим функционирования при повреждении линий связи или нарушении установленной схемы централизованного (дистанционного) управления на любом уровне и по другим причинам с сохранением и накоплением данных;

возможность дистанционного подключения и управления с АРМ администратора (в случае тревоги - с АРМ операторов) любыми устройствами сетевого уровня в соответствии с предоставленными полномочиями.

Управление КТСБ является многоуровневыми гибким, с приоритетом выполнения команд с центрального пульта. При этом одновременно должна сохраняться возможность выбора управляющих функций территориально разнесенными подсистемами, обеспечение многовариантной их настройки, обмена информацией между подсистемами на сетевом уровне. Возможные схемы интеграции различных систем должны учитываться при разработке технических заданий на проектирование, выборе состава и варианта компоновки технических средств, определении топологии их размещения и прокладки коммуникаций, а также при подготовке проектной документации.

Для повышения надежности функционирования КТСБ должна быть предусмотрена периодическая автоматическая проверка присутствия оператора путем запроса соответствующего пароля. Факт отсутствия оператора или неадекватное его реагирование на запросы должен протоколироваться, а в определенных случаях должна передаваться команда на включение внешних устройств оповещения и сигнализации.

.7 Интеграция средств безопасности

Наиболее эффективным вариантом применения подсистем безопасности и жизнеобеспечения является их объединение в единую систему комплексной безопасности. Применение аналоговых систем архивирования и записи видеоинформации в этом случае (видеомагнитофон) неудобно - долгий поиск фрагмента записи, отсутствие возможности интеграции на уровне обработки сигнала с другими подсистемами. Поэтому, даже когда сигналы передаются в аналоговом формате, их регистрация осуществляется на цифровой носитель, позволяя производить их дальнейшую обработку с помощью современных программных средств.

Таким образом, интегрированные системы безопасности дают возможность прямо с диспетчерского пункта пользоваться следующими дополнительными функциями:

речевая связь диспетчера с любым подъездом, вызов диспетчера с любого подъезда

разграничение доступа и управление объектами (открывание дверей подъезда, черного хода, чердака, подвала, включение и выключение освещения, управление поворотными устройствами и трансфокаторами видеокамер, управление шлагбаумом на автостоянке и др.);

охранно-пожарная сигнализация служебных и нежилых помещений, чердаков, подвалов, лифтовых машинных помещений и т. п.;

мониторинг сетей теплоснабжения, газоснабжения, водоснабжения, электроснабжения. Обеспечение комплексной безопасности включает в себя: постоянный контроль состояния основных составных частей жизнеобеспечения объекта и реагирование на тревожные (аварийные) сигналы. Мероприятия по техническому обеспечению безопасности объекта включают установку:

В подъезде

металлической входной двери, электромагнитного замка

домофона,

скрытой (или защищенной) видеокамеры с выводом сигнала на диспетчерский пульт, пост консьержа,

речевой двусторонней связи диспетчера с любым подъездом.

В кабине лифта

скрытой видеокамеры с выводом на диспетчерский пульт (возможно подключение микрофона, отображение номера этажа, на котором находится лифт).

В машинном отделении лифта

металлической двери и решеток на окна

электромагнитного замка на дверь (возможен вариант подключения управляющего контроллера для управления замком из диспетчерской, либо просто отпирания замка по электронному ключу, который можно выдать работникам эксплуатационной службы)

датчиков охранно-пожарной сигнализации с выводом сигнала на диспетчерский пульт,

датчика защиты от перегрузки двигателя лифта.

металлических дверей и решеток на окна,

электромагнитного замка на дверь (аналогично п. 3),

датчиков охранно-пожарной сигнализации с выводом сигнала на диспетчерский пульт,

бессальниковой арматуры на трубопроводах, с датчиками технического состояния (с выводом сигнала на пульт мониторинга),

датчика контроля концентрации газа с выводом тревожного сигнала на пульт диспетчера.

В подвале

металлической двери и решеток на окна,

электромагнитного замка на дверь (аналогично п. 3),

датчиков охранно-пожарной сигнализации с выводом сигнала на пульт диспетчера,

бессальниковой трубопроводной арматуры, с датчиком технического состояния с выводом сигнала на пульт мониторинга в качестве вводных задвижек на прямом и обратном трубопроводе холодного и горячего водоснабжения, на коллекторах отопления.

В электрощитовой

металлической двери и решеток на окна,

электромагнитного замка на дверь (аналогично п. 3)

датчиков охранно-пожарной сигнализации с выводом сигнала на пульт диспетчера,

датчика контроля сопротивления сети и реле контроля состояния с выводом сигнала на диспетчерский пульт.

На посту консьержа

металлической двери и решеток на окна

электромагнитного замка на дверь (доступ в диспетчерскую разрешен только управляющим дома и дежурным диспетчерам),

датчиков охранно-пожарной сигнализации,

«тревожной» кнопки вызова милиции (службы безопасности),

аппаратно-программных средств управления доступом в подъезд (в служебные и нежилые помещения) и открытия дверей подъездов экстренным службам (милиция, МЧС, скорая помощь),

средств связи с подъездами и устройств контроля датчиков.

На прилегающей (придомовой) территории

обзорной видеокамеры с выводом сигнала на диспетчерский пульт (возможна установка купольной поворотной видеокамеры).

Диспетчеризация дома либо нескольких домов позволяет осуществлять комплексный контроль работоспособности инженерных систем, предотвращение аварийных ситуаций (возникновение пожара, затопление подвала, утечка газа), своевременное выявление и предупреждение правонарушений и порчи имущества и контроль деятельности эксплуатационных служб.

Оборудование рабочего места дежурного диспетчера голосовой связью, с возможностью дистанционного управления подъездным замком позволяет обеспечить доступ в подъезд бригад скорой помощи, милиции, эксплуатационных служб, а также требовать соблюдения правил поведения от посетителей, находящихся у входа в подъезд.

.7 Системы охранно-пожарной сигнализации ОПС

Построив собственный загородный дом и превратив его в уютное домашнее гнёздышко, человек неизбежно сталкивается с проблемой сохранности имущества от пожара и злоумышленников. Просто оформить страховку бывает недостаточно: хотелось бы устранить проблему на корню. В этом случае помешать огню и грабителям может комплекс мер по охранно-пожарной сигнализации (ОПС) в доме. Отнюдь не являясь некой панацеей, такие системы, тем не менее, в значительной степени способствуют спокойствию хозяев за сохранность своей собственности.

Для начала имеет смысл определиться с самим понятием охранно-пожарной сигнализации (ОПС).

комплекс ОПС по защите зданий включает в себя:

первичные датчики, непосредственно осуществляющие контроль отведённой территории;

контроллер (контрольная панель), собирающий и анализирующий показания датчиков, а также управляющий всей охранной системой и вырабатывающий её ответную реакцию на возможные нештатные ситуации;

пульт управления (клавиатура), предназначенный для постановки помещения на охрану и снятия с неё.

Рисунок 5- Комплекс ОПС по защите зданий

Далее начинаются различия, определяющие как эффективность системы. Делятся ОПС на простые и сложные. В простейшем варианте единственным действием, предпринимаемым в случае срабатывания тревоги, является подача звукового и светового сигнала (с помощью «ревуна» и «мигалки»). Применение такой схемы может быть оправданно только тогда, когда неподалёку от дома находится пункт охраны - её сотрудники услышат сигнал тревоги и смогут соответственно на него отреагировать. Правда, им придётся тратить драгоценное время на то, чтобы определить объект, где сработала сигнализация. Гораздо более удачным решением будет установка передающего модуля, который отправит извещение охранникам: некоторые модели ОПС позволяют сразу судить о характере тревоги (проникновение посторонних лиц или пожар). Кроме того, при наличии соответствующей функции у оборудования можно вычислить расположение датчика, просигнализировавшего о нештатной ситуации, что особенно важно для больших коттеджей. Как дополнительная опция абсолютно любой схемы ОПС возможна отсылка уведомления в виде короткого сообщения (SMS) или звонка (что ещё оперативнее) на сотовый телефон хозяина дома.

При отсутствии охраны вблизи от дома применяется так называемая пультовая охрана, когда передающий блок ОПС подключают к центральному пульту вневедомственной охраны или альтернативной коммерческой организации. Вариантов подключения множество: по прямому проводу, по телефонной линии, через Интернет, по радиоканалу или GSM - всё зависит от конкретной ситуации. Выбор в пользу той или иной организации, осуществляющей пультовую охрану, должен производиться с учётом максимального времени прибытия группы реагирования на место происшествия и количества выездных бригад в смене.

.9 Рубежи

Специалисты делят систему ОПС на рубежи, то есть условные линии, которые предстоит пересечь злоумышленнику на пути к цели. Разумеется, чем больше рубежей, тем выше вероятность обезвреживания нарушителя ещё на подступах к дому и тем более дорогостоящей будет сигнализация в целом.

Первым рубежом можно считать охрану периметра территории вокруг дома: как правило, контролируются ворота и калитки - на открывание, а также ограждение участка, если вор попытается проломить забор или перелезть через него. Самое сложное на этом этапе - сделать датчики незаметными, чтобы избежать их умышленного повреждения. Кроме того, здесь очень высока вероятность ложных срабатываний - виной тому могут стать как животные и птицы, так и крупные насекомые или даже природные явления - мокрый снег, сильный дождь или туман.

Второй рубеж - это охрана входов в само здание. Здесь контролируется открывание дверей и окон, а также попытка разбить стекло или проломить стену. Дополнительно отслеживается любое движение в охраняемой зоне.

Третьим рубежом, к примеру, может стать непосредственный контроль доступа в определённые зоны дома: в личный кабинет хозяина, к сейфу и т. д.

.10 Датчики

Существует несколько видов первичных датчиков системы ОПС - в зависимости от конкретной ситуации могут применяться те или иные устройства, а также группы устройств, контролирующих одну и ту же территорию по разным параметрам.

Рисунок 6- Датчики

Объёмный инфракрасный датчик движения

Как следует из названия, устройство контролирует изменение теплового поля помещения. При этом настройка системы и место установки датчика должны учитывать наличие в доме животных. Кошки и небольшие собаки могут игнорироваться на аппаратном или программном уровне, но крупные породы собак, сопоставимые по размерам с вставшим на четвереньки человеком, будут вызывать ложное срабатывание.

Рисунок 7- Объёмный инфракрасный датчик движения

Магнитно-контактный датчик

Устанавливаемый на дверях и окнах, он реагирует на их открывание. Устройство состоит из двух частей: одну из них, оснащённую постоянным магнитом, располагают на подвижном элементе двери или окна. Вторая подключается к соответствующей цепи контроллера и представляет собой запаянный в корпус геркон. Когда обе части датчика совмещены, магнит воздействует на геркон, цепь замкнута. При попытке открыть окно магнит отдаляется от геркона, цепь размыкается, и с контроллера поступает сигнал тревоги. Остаётся добавить, что такие устройства могут быть как накладными, то есть закрепляемыми на дверях и окнах со стороны комнаты, так и встроенными (скрытыми), врезаемыми внутрь подвижной и неподвижной деталей конструкции. В последнем случае доступ к самим элементам датчика и проводке для злоумышленника значительно затрудняется.

Рисунок 8- Магнитно-контактный датчик

Механический размыкатель

Его можно считать разновидностью магнитно-контактного датчика - конечно, не по конструкции, а по принципу действия. Устройство, состоящее из корпуса с кнопкой, устанавливают на неподвижной части двери или окна, а подвижная часть давит на кнопку датчика, тем самым замыкая контакт. В остальном же механический размыкатель работает аналогично магнитно-контактному. По большому счёту, подобная технология является устаревшей, но многие производители до сих пор продолжают выпуск таких устройств.

Рисунок 9- Механический размыкатель

Акустический датчик

Реагирует на звук разбиваемого оконного стекла, и потому устанавливается в непосредственной близости к окну. Сам по себе этот датчик оказывается бесполезен в случае, например, если злоумышленник не станет разбивать стекло, а воспользуется стеклорезом. По этой причине подобные датчики не могут являться основными или единственными и применяются как дополнение к другим устройствам.

Рисунок 10- Акустический датчик

Вибрационный датчик

Устройство крепится на стену и улавливает вибрацию на стадии создания пролома. Также не рекомендуется для использования как основной либо единственный датчик для контроля. Самая распространённая область применения - защита особо важных помещений.

Рисунок 11- Вибрационный датчик

Датчик задымления

Это устройство относится к пожарной части ОПС и реагирует на появление дыма в контролируемом помещении. Дым поднимается к потолку и растекается по его поверхности, именно туда и устанавливают датчик задымления. Очевидно, что он не может применяться, например, в гараже или на кухне, где образование дыма - вполне нормальное явление, иначе при готовке или прогревании двигателя автомобиля возможны ложные срабатывания пожарной сигнализации.

Рисунок 12- Датчик задымления

Также относясь к пожарной части ОПС, этот датчик срабатывает при значительном повышении температуры в помещении, причём при условии, что она нарастает не менее 10-30 сек. Устройство применяют либо в паре с датчиком задымления, либо отдельно - для гаражей и кухонь.

Рисунок 13- Датчик температуры

Применяются также схемы направленного действия, когда под контролем находятся строго определённые зоны помещения. Например, многие пользователи ОПС включают систему, даже будучи дома, - чаще всего это происходит в ночное время. В данном случае используют схему, называемую специалистами шторой или занавесом. Чтобы не лишать обитателей дома возможности спокойно передвигаться из комнаты в комнату, под контроль берутся только внешние стены вместе с дверьми и окнами, а также небольшое пространство перед ними. Всё, что требуется при этом от жильцов, - не приближаться к ограждающим стенам здания менее чем на оговоренное расстояние, то есть не попадать в зону контроля датчиков ОПС.

Следует также упомянуть такие устройства, как датчики протечки воды или газа. Достаточно редко применяемые в нашей стране, они играют не меньшую роль в обеспечении безопасности жилища, чем любые другие. Установленный на полу в санузле датчик протечки воды отправляет сигнал на контроллер, а тот в свою очередь информирует пульт охраны и, при наличии такой возможности у системы, подаёт команду на электропривод вводной задвижки водопровода. Соответственно датчик утечки газа анализирует наличие в атмосфере компонентов используемого в доме газа и через контроллер передаёт сигнал на вводную задвижку газопровода.

В зависимости от способа передачи сигнала на контроллер датчики ОПС делятся на проводные и беспроводные. Если связь осуществляется по проводам, то устройство не нуждается в дополнительном источнике питания, что можно отнести к достоинствам. Однако такая схема предусматривает штробление стен для скрытой укладки проводки, поэтому её выполняют ещё на стадии ремонта или отделки дома. Беспроводные датчики не требуют никаких сложных работ по монтажу, но подразумевают автономное питание. В этом случае, как правило, используются обычные батарейки, которые нужно периодически заменять. Беспроводные устройства являются мобильными, и технические специалисты в случае необходимости могут легко произвести их перестановку или переориентирование для более надёжного контроля помещений.

.11 Вход и выход

Для постановки и снятия дома с охраны используются специальные коды, которые должны быть введены с пульта управления (выносной клавиатуры). При постановке на охрану возможны два варианта:

. Человек вводит с контрольной панели команду на включение ОПС, после чего ему даётся определённый (заранее запрограммированный) промежуток времени, чтобы покинуть дом и закрыть входную дверь. По истечении заданного срока система сигнализации полностью активируется.

. После ввода команды на включение ОПС котроллер ждёт, пока будет открыта и закрыта входная дверь, и только потом активирует весь комплекс охранных устройств системы.

При снятии с охраны вошедший в дом человек в течение отведённого ему времени (запрограммированного при настройке системы) должен ввести код деактивации. Вообще, оптимальной является установка клавиатуры, принимающей этот код, непосредственно возле входной двери, а основную контрольную панель системы и передающее устройство лучше убрать как можно дальше, максимально затруднив доступ к ним. Здесь необходимо отметить, что пауза для ввода кода деактивации действительна только для датчиков, контролирующих входную дверь: во всех остальных случаях тревога будет поднята немедленно.

Рисунок 14-Ввод- вывод

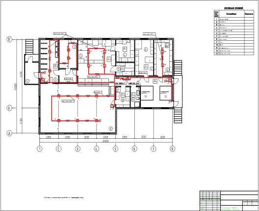
. План размещение устройств ОС 4 этаж

.1 Описание

Данный объект представляет собой многоэтажное здание, в данном случае взят четвертый этаж. Т.к. комнаты предназначены для различного пользования и у каждой различная планировка в соответствии этого размещались извещатели пульты и т.д. Ниже представлены извещатели используемые в схеме.

Рисунок 15-ИО-102-2

Извещатель охранный точечный магнитоконтактный

Технические характеристики: ИО 102-2 (СМК-1)

Предназначен для поверхностного монтажа

Евродизайн

Крепление

на винтах

Цвет: белый. Другие цвета - по согласованию

Длина выводов: 170 мм, более по согласованию

Выводы из многожильного провода в полихлорвиниловой изоляции, сечение жилы 0.2 мм2.

Расстояние срабатывания макс.: 10 мм

Материал корпуса: полистирол УПМ-0508

Предназначен для поверхностного монтажа

Евродизайн

Крепление на винтах

Цвет: белый. Другие цвета - по согласованию

Длина выводов: 170 мм, более по согласованию

Выводы из многожильного провода в полихлорвиниловой изоляции, сечение

жилы 0.2 мм2.

Расстояние срабатывания макс.: 10 мм

Материал корпуса: полистирол УПМ-0508

Коммутирующий элемент сухой геркон

Коммутируемое напряжение 0,05 -72В

Коммутируемый ток 0.0001 -0,25 A

Коммутируемая мощность, макс 10 Вт

Выходное сопротивление датчика 0,5 Ом

Электрическая прчность изоляции, мин 500 В эфф / 700 В пост

Число срабатываний извещателя не менее: 106 в режиме 30В-0,25А

Вибрационные нагрузки (10-35 Гц ) 0,5g

Диапазон рабочих температур -50°С...+50°C

Срок службы не менее 8 лет

Извещатель охранный оптико-электронный "Фотон-18, 18А, 18Б, 18Д"


Рисунок 15-Фотон-18, 18А, 18Б, 18Д

Предназначен для обнаружения проникновения в охраняемое пространство взрывоопасных зон закрытого помещения.
Особенности три зоны обнаружения формируются тремя типами линз Френеля: объемная - "Фотон-18" ИО409-40, линейная - "Фотон-18А" ИО209-30, поверхностная - "Фотон-18Б" ИО319-18, объемная зона с устойчивостью к животным весом до 10 кг - "Фотон-18Д" ИО409-53

микропроцессорная обработка сигналa

Технические характеристики:

Маркировка взрывозащиты - 0ExiaIIВT6X

Напряжение питания - от 9 до 14 В

Ток потребления - не более 10 мА

Дальность действия (зона обнаружения) - 12 м (объемная); 20 м (линейная); 15 м (поверхностная); 10 м (объемная "Фотон-18Д")

Габаритные размеры - 100х73х54,5 мм

Масса - не более 0,1 кг

Степень защиты оболочки - IP41

Диапазон рабочих температур - минус 30 … +50 °С

Извещатель охранный объемный оптико-электронный адресный "С2000-ИК исп. 03"

Рисунок 16- С2000-ИК исп. 03

Предназначен для обнаружения проникновения (попытки проникновения) в охраняемое пространство закрытого помещения

Извещение о тревоге передаётся по двухпроводной линии связи (ДПЛС) на контроллер "С2000-КДЛ" интегрированной системы охраны "Орион". К одному контроллеру в линию связи можно включить до 127 "С2000-ИК исп.03"

В "С2000-ИК исп.03" предусмотрены:

сферическая оптическая линза с антисаботажной зоной;

кнопка ТАМПЕР для настройки извещателя и обнаружения попыток несанкционированного доступа;

световой индикатор красного цвета для контроля работоспособности;

Выдаются сообщения ВЗЯТ, ТРЕВОГА, ВСКРЫТИЕ, уровень напряжения ДПЛС в месте установки извещателя

"С2000-ИК исп.03" обеспечивает:

надёжное обнаружение проникновения в охраняемое помещение;

устойчивость к перемещению мелких животных;

устойчивость к изменению фоновой освещённости;

устойчивость к тепловым потокам;

устойчивость к электростатическим разрядам;

устойчивость к импульсам напряжения в линии связи ДПЛС;

отключение светового индикатора

ТЕХНИЧЕСКИЕ ХАРАКТЕРИСТИКИ

Рабочая дальность действия - 12 м

Чувствительность извещателя обеспечивает выдачу тревожного извещения при перемещении человека со скоростью от 0,3 до 3 м/с на расстояние не более 3 м

Ток потребления при отключенной индикации, не более - 0,6 мА

Время технической готовности, не более - 15 с

Диапазон рабочих температур - от минус 30 до плюс 50 °С

Габаритные размеры извещателя - 68х93х41 мм

Масса, не более - 125 г

Извещатель охранный поверхностный пьезоэлектрический
ИО 304-3 "ГРАНЬ-2"

Извещатель предназначен для обнаружения попытки преднамеренного разрушения бетонных и кирпичных стен и перекрытий, деревянных конструкций и металлических сейфов.

“ГРАНЬ-2” выдает на пульты централизованного наблюдения следующие сигналы:

извещение “НОРМА”, указывающее, что объект находится под охраной, отсутствуют разрушающие воздействия на охраняемую поверхность и на извещатель подано напряжение питания;

извещение “ТРЕВОГА”, указывающее на попытку проникновения на охраняемый объект или указывающее на факт отключения напряжения питания.

Извещатель обладает высокой помехоустойчивостью и исключает возможность ложной выдачи извещения “ТРЕВОГА” при случайных одиночных или длительных постоянных вибрационных помехах.

Извещатель “ГРАНЬ-2” рассчитан на непрерывный, круглосуточный режим работы и может быть использован в сочетании с любыми типами извещателей охранной, охранно-пожарной сигнализации.

Рисунок 17-Грань-2

ТЕХНИЧЕСКИЕ ХАРАКТЕРИСТИКИ

Максимальная площадь, контролируемая одним ДСВ-1, м................от 8,0 до 15,0 в зависимости

от материала конструкции

Максимальная площадь, контролируемая одним ДСВ-2, м2 в каждую сторону.... 15,0 (1,5м от звуковода, со звуководом длиной до 5м)

Напряжение питания от источника постоянного тока, В.....................................0,2...15

Максимальный коммутируемый ток, мА.................................... 50

Диапазон рабочих температур, °С................................................ -10...+50

Массы, кг:

БОС........................................................................................................ <0,7

ДСВ-1, ДСВ-2........................................................................< 0,15

ИОАРС "СОЛО" паспорт - извещатель охранный акустический разбития стекла

Извещатель охранный акустический разбития стекла ИОАРС "СОЛО" (в дальнейшем извещатель) предназначен для дистанционного обнаружения разрушения обрамленного стекла в закрытом помещении, фиксации несанкционированного проникновения в корпус и формирования извещения о тревоге.

Извещатель рассчитан на совместную работу с пультами централизованного наблюдения (ПЦН) или приборами приемно-контрольными (ППК), реагирующими на размыкание контактов извещателя, включенного в шлейф охранной сигнализации.

Извещатель в автономном режиме работает совместно с устройствами сигнализации.

Извещатель рассчитан на непрерывную круглосуточную работу и является невосстанавливаемым, неремонтируемым, периодически обслуживаемым и контролируемым изделием.

Извещатель не предназначен для использования в химически агрессивных средах.

Приложение

Похожие работы на - Электронные системы охраны

 

Не нашли материал для своей работы?
Поможем написать уникальную работу
Без плагиата!
Без нейросетей!