Технологічний процес роботи вантажного комплексу аеропорту
МІНІСТЕРСТВО
ОСВІТИ I НАУКИ,
МОЛОДІ
ТА СПОРТУ УКРАЇНИ
НАЦІОНАЛЬНИЙ
АВІАЦІЙНИЙ УНІВЕРСИТЕТ
Кафедра
організації авіаційних перевезень
КУРСОВИЙ
ПРОЕКТ
з
дисципліни "Вантажні перевезення"
Тема:
"Технологічний процес роботи вантажного комплексу аеропорту"
Виконав:
Худяй М.В.
Київ
2013
Зміст
Вступ
Розділ 1.
Розрахунок технологічних параметрів вантажного комплексу аеропорту
.1 Аналіз структури
вантажопотоку і обґрунтування структури вантажного комплексу аеропорту
.2 Розрахунок
технологічних параметрів комплексно-механізованих вантажних складів для ВПЛ та
МПЛ
.2.1 Технологічних
площ комплексно-механізованих вантажних складів для ВПЛ та МПЛ (робочої,
додаткової, допоміжної та службової площ)
.2.2 Геометричні
параметри складів, кількість складських піддонів
.2.3 Довжина фронту
навантажувально-розвантажувальних робіт
.2.4 Оптимальне
число місць приймання вантажів
.3 Розрахунок
кількості засобів механізації вантажного комплексу аеропорту
.3.1 Кількість
засобів складської механізації (електричних вилочних навантажувачів) для
транспортування та завантаження-розвантаження вантажів всередині складу
.3.2 Кількість
засобів перонної механізації (автомашин з піднімальним кузовом (АПК), дизельних
тягачів із возиками, перенавантажувачів авіаційних контейнерів та палет)
Розділ 2.
Організація і технологія роботи вантажного комплексу аеропорту
.1 Технологія
обробки вантажів у вантажному комплексі аеропорту
2.2 Алгоритми технології
обробки вантажів
.3 Завантажувальні
характеристики повітряних суден
.4 Технічні характеристики
стандартних засобів пакетування (ULD)
.5 Організаційна структура
служби поштово-вантажного обслуговування ВКА
Висновки
Список використаної літератури
Додатки
Вступ
Склади транспортних організацій
створюються для тимчасового складування. Це склади залізничних станцій,
вантажні термінали автотранспорту, морських і річкових портів, термінали
повітряного транспорту. За характером виконуваних операцій вантажопереробки їх
відносять до транзитно - перевалювальних. Термін зберігання вантажів зведений до
мінімуму, адже цей склад призначений для ефективного і своєчасного забезпечення
клієнтів шляхом заміни одного виду доставки (або транспортного засобу) на
інший. Вантажі постачаються і відправляються великими партіями, при цьому
вантажна одиниця, що постачається (піддон або контейнер), на складі не
розформовується.
Розробка СС базується на виборі
раціональної системи з усіх технічно можливих систем для вирішення поставленого
завдання методом кількісного і якісного оцінювання. Процес вибору та
оптимізації передбачає виявлення пов’язаних між собою факторів,
систематизованих у декількох основних підсистемах. Отже, система складування
містить такі складські підсистеми:
складована вантажна одиниця;
вид складування;
обладнання з обслуговування складу;
система комплектації;
управління переміщенням вантажу;
обробка інформації;
«будова» (конструктивні особливості
будов і споруд).
Комерційна доцільність перевезення
вантажів авіатранспортом залежить від багатьох факторів. Насамперед, це,
безсумнівно, швидкість доставки під час перевезення на великі відстані. Час
доставки вантажу від відправника вантажу до вантажоодержувача містить у собі і
таку складову як швидкість обробки вантажу у вантажному комплексі аеропорту.
Тому розробка технологічного процесу роботи вантажного комплексу аеропорту є
дуже принциповою.
Вибір ділянки під складський
комплекс потребує особливого підходу, і саме тут можуть виникнути перші
складнощі. Сучасний склад має на увазі не лише присутність прилеглої розвинутої
транспортної інфраструктури, але і вигідне місце розташування з точки зору
організації дистрибуції. Крім того, при виборі місця для будування складського
комплексу необхідно враховувати можливість підключення до залізничної дороги.
Хоча, присутність під’їзних залізно-дорожніх шляхів вагомо на вантажному
комплексі аеропорту не відображається, це являється допоміжним критерієм, що
враховується клієнтами при прийнятті рішень про вибір терміналу для зберігання
свого вантажу.
Розділ 1.
Розрахунок технологічних параметрів вантажного комплексу аеропорту
.1 Аналіз структури
вантажопотоку і обґрунтування структури вантажного комплексу аеропорту
Вантажний комплекс аеропорту (ВКА) -
сукупність будівель, споруд, засобів механізації та автоматизації, обладнання,
зв’язку, обслуговуючого персоналу, що забезпечує обробку вантажів,
документації, інформації у відповідності до діючих правил перевезення при
заданих об’ємах вантажообігу.
Вантажні комплексі
аеропортів, включають:
·
вантажні комерційні склади, що
призначені для короткострокового збереження вантажів після прийманні від
вантажовідправника, перед комплектуванням на рейс та до видачі вантажів
вантажоодержувачам;
·
вантажний двір, що призначений для
навантаження і розвантаження автомашин з вантажами, які доставляються до
аеропорт для відправлення, чи для вивозу вантажів, що отримані на складі
адресатом;
·
вантажний перон, на якому
виконуються навантажувально-розвантажувальні роботи вантажних літаків.
Крім цих основних
споруд, до складу вантажних комплексів аеропортів звичайно входять спеціалізовані
склади для радіоактивних та небезпечних вантажів, навіси-майданчики для
збереження довгомірних і важковагових вантажів, а також
службово-адміністративне приміщення і майданчик для стоянки засобів
механізації.
Вантажопотоком на транспорті
називають кількість вантажів в тоннах, перевезених в одному напрямі за
визначений термін часу. Він складається з різних вантажів, структура яких
поділяється на галузеву, групову та видову.
В загальному обсязі
добової вантажопереробки виділяють таки потоки:
·
вантажі, що відправляються
міжнародними повітряними лініями;
·
вантажі, що прибувають міжнародними
повітряними лінями;
·
трансферні вантажі, що перевозяться
на міжнародних повітряних лініях;
·
вантажі, що відправляються
внутрішніми повітряними лініями;
·
вантажі, що прибувають внутрішніми
повітряними лініями.
Для обслуговування
окремих вантажопотоків можуть бути передбачені окремі технологічні зони на
складі, або при великому обсязі - окремі склади.
Звичайна
технологічна схема розміщення споруджень вантажного комплексу на
службово-технічній території аеропорту наведена нижче.
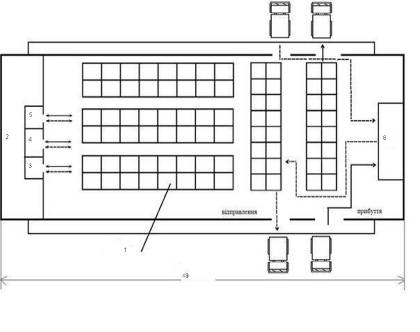
Рис. 1. Схема
вантажного комплексу:
. Склад ВПЛ, 2 - склад МПЛ, 3 -
склад для небезпечних вантажів, 4 - склад для радіоактивних вантажів, 5 -
естакада для збереження великовагових і великогабаритних вантажів, 6 -
аеропортовое відділення перевезення пошти.
Планування
вантажного комплексу повинно задовольняти наступним основним вимогам:
·
розподіл транспортних потоків до
пасажирського і вантажного комплексів аеропорту з тим, щоб потік вантажних
автомашин, що направляються до комерційного складу, не перешкоджав нормальному
руху транспорту з пасажирами, що прибувають до аеропорту;
·
наближення комерційних складів до
пасажирського перону, що обумовлюється необхідністю транспортування значної
частини вантажів, що перевозяться у багажниках пасажирських літаків, до місця
стоянки літаків на пероні;
·
максимально можливе скорочення
шляхів вантажопотоків як при внутріскладському транспортуванні вантажів, так і
при проведенні транспортних і перевантажувальних операцій.
Основною спорудою
вантажного комплексу аеропорту є вантажний комерційний склад.
Вантажні склади
аеропортів можуть бути класифіковані за технологією внутріскладської переробки
вантажів і за пропускною спроможністю складу
За пропускною
спроможністю вантажні комерційні склади поділяються на :
·
малі - із добовим вантажообігом, що
не перевищує 80 т/добу;
·
середні - із добовим вантажообігом
від 80 до 300 т/добу;
·
великі - із добовим вантажообігом,
що перевищує 300 т/добу.
За характером заповнення складського
об’єму розрізняють підлоговий, підвісний та комбінований спосіб зберігання.
Вибір того чи іншого способу
розміщення вантажів при зберіганні здійснюється з урахуванням окремих факторів,
найважливішими з котрих є фізико-хімічні параметри, ступінь масовості вантажів
і механізованої її переробки, вимоги до техніки безпеки.
Штабельне зберігання здійснюється,
коли потрібно зберігати затарені або штучні товари. При цьому формують штабель
з урахуванням тиску, котре створюють верхні матеріали. Цей спосіб оптимальний
при зберіганні вантажів великих кількостей і невеликої номенклатури. Перевага
штабельного зберігання в максимальному використанні площ та об’ємів. Крім
цього, цей вид зберігання спрощує облік матеріалів та контроль за їх рухом.
Недолік у тому, що він може
використовуватись тільки при обмеженні номенклатури вантажів, а також у
незручності виймання їх зі штабеля і неможливості автоматизації складських
процесів. Стелажне зберігання - найбільш часто використовуваний спосіб для
багатономенклатурних вантажів. Він забезпечує механізацію та автоматизацію
складських процесів. Його недоліком можна вважати недостатнє використання
складських площ та об’ємів складу, потреба у стелажах та в більш складному
підйомно-транспортному обладнанні.
На складах використовуються вантажні
піддони різних конструкцій (розбірні та нерозбірні).
Залежно від будови піддони
поділяються на три групи: пласкі - без надбудов над верхньою площиною настилу,
стоякові - з постійними чи зйомними стояками, ящикові - з постійними, зйомними
чи відкидними стояками. Виготовляються піддони з дерева, металу, пластмаси,
пресованого паперу. Існують також комбіновані піддони (дерев’яно-металеві).
Для зберігання різних сипких
матеріалів використовують бункери, засіки, траншеї, естакади.
Згідно зі схемою,
підйомно-транспортні машини поділяються на машини періодичної і безперервної
дії. Крім, того існують ще і спеціальні допоміжні пристрої і машини, котрі
використовують тільки для виробництва вантажних або розвантажувальних робіт.
Для горизонтального і ледь
нахиленого переміщення різних матеріалів і виробів на складах використовують
ручні та механічні візки, різні конвеєри та ін.
Для оптимізації руху вантажопотоку
на транспорті використовують транспортні методи, які дають змогу обрати
найкращий варіант перевезення вантажів з декількох пунктів постачання в
декілька пунктів призначення (споживання), забезпечуючи найменші сумарні
витрати, пов’язані з виробництвом і транспортуванням виробів. Для цього
вивчається потужність кожного з клієнтів (постачальників і споживачів).
1.2 Розрахунок
технологічних параметрів комплексно-механізованих вантажних складів для ВПЛ та
МПЛ
При проектуванні
вантажних складів підлягають розрахункам таки технологічні площі:
- площа, зайнята безпосередньо під
вантажем, що зберігається;
- площа, необхідна для здійснення
операції по прийманню та видачі вантажу;
- площа, зайнята проїздами і
проходами;
- площа, зайнята під службові
приміщення.
Загальна площа складу
розраховується за формулою:
[м2].
1.2.1 Розрахунок технологічних площ
комплексно-механізованих вантажних складів для ВПЛ та МПЛ (робочої, додаткової,
допоміжної та службової площ)
Розрахунок робочої площі вантажного
складу.
При розрахунку потрібної робочої
площі вантажного складу в першу чергу розраховується ємність складу (складських
приміщень).
Розрахунок ємності складу
,
виконується за формулою:
[т],
де
- добовий
вантажообіг аеропорту по відправленню чи прибуттю вантажів, т/добу.
- коефіцієнт, що враховує
нерівномірність надходження вантажів на склад протягом різних сезонів і місяців
року;
- середня тривалість збереження
вантажів на складі, діб.
Розрахунок робочої площі складу
виконується роздільно для відділень з вантажами ВПЛ, установлюваними поштучно на
підлогу складу чи складованих у штабелі, і для відділу з вантажами МПЛ, що
укладаються на стелажі.
Розрахуємо
добовий вантажообіг аеропорту по відправленню чи прибутті вантажів:
ВПЛ = 300*0,3 = 90 [т/добу];
МПЛ = 300*0,7= 210[т/добу];
=90*0,45 = 41 [т/добу];
ВПЛвідпр = 90*0,55 = 50 [ т/добу];
МПЛприб = 210*0,7 = 147 [т/добу];
МПЛвідпр = 210*0,15 = 32 [т/добу];
МПЛтранс = 210*0,15 =32 [т/добу];
МПЛтрансULD= 210*0,7=147 [т/добу];
МПЛнавалом= 210*0,3=63 [т/добу].
Розрахуємо ємність складу:
[т];
[т];
[т];
[т];
[т];
[т];
[т].
Розрахунок робочої площі для
вантажів, перевезених на ВПЛ виконується виходячи з питомих навантажень на м2
підлоги складського приміщення і виконується за формулою:
[ м2 ],
де
- ємність
приміщень, призначених для складування вантажів на підлогу, чи в штабелях, т;
- питоме навантаження, що
допускається, на 1 м2 площі складу (дорівнює 0,6 т/м2 згідно з
вихідними даними)
- коефіцієнт надлишкової площі, що
враховує нерівномірність розподілу вантажів (дорівнює 1,2 згідно з вихідними
даними)
[ м2 ];
[ м2 ].
Кількість штабелів
розраховується за формулою:
[од],
де
- площа
одного штабелю,
= 24 (м2) - згідно з вихідними
даними
[од];
[од].
При визначенні необхідної
робочої площі для вантажів, складованих на стелажах (МПЛ), за основу розрахунку
приймається обсяг робочої комірки стелажа
:
[м3],
Де l - довжина комірки, (м), -
ширина комірки, (м)., - висота комірки, (м).= 1,5 (м), b = 1,2 (м), h = 1,2 (м)
- згідно з вихідними даними.
[ м3 ].
Розрахунок вагової ємності
комірки стелажа
виконується
за формулою:
[т],
де
- об'ємна
вага складованого вантажу, т/м3;
- коефіцієнт заповнення комірки
вантажем.
= 1, 2
(т/м3),
= 0,4 - згідно з вихідними даними.
[т].
Кількість робочих комірок
стелажів, що необхідне для розміщення вагової ємності складованого вантажу
,
визначається за формулою:
[од];
[од];
[од];
[од];
[од];
[од].
Кількість ярусів стелажів
визначається за формулою:
[од],
де
- питоме
навантаження, що допускається, на 1 м2 площі складу стелажного збереження, т/м2;
- площа однієї комірки;
= 3,6 (т/м2),
= 1,8 (м2) - згідно з вихідними даними.
Кількість ярусів є цілим
числом. У разі отримання нецілого результату розрахунків його треба округлити у
менший бік.
[од].
Розрахункове число робочих
комірок у нижньому ярусі стелажів визначається з умови:
[од].
[од];
[од];
[од];
[од];
[од].
Сумарна робоча площа відділу
складу, призначеного для збереження вантажів на стелажах, розраховується по
формулі:
[м2],
де
- ширина
прорізів між суміжними комірками.
= 0,1
(м) - згідно з вихідними даними.
[м2];
[м2];
[м2];
[м2];
[м2].
Розрахунок додаткової площі
вантажного складу.
Площа ділянок приймання і
комплектування вантажів розраховуються на підставі показника розрахункового
навантаження на 1 м2 площі. Площа ділянки приймання і комплектування
розраховується по наступній формулі:
[м2],
де
-
навантаження на 1 м2 на ділянці приймання і комплектації, т/м2;
- термін збереження вантажів на
ділянці приймання і комплектації, діб.
= 0,5 (т/м2),
= 0,9 (доби),
= 1,6 - згідно з вихідними даними.
[м2];
[м2];
[м2];
[м2];
[м2];
[м2];
[м2].
Розрахунок допоміжної площі
вантажного складу.
Орієнтований підрахунок площі
, зайнятої
проїздами і проходами, може бути виконаний по формулі:
[м2],
де
-
коефіцієнт, що враховує потребу в допоміжній площі усередині складу, зайнятої
проїздами і проходами. Він дорівнює 0,6 згідно з вихідними даними.
[м2];
[м2];
[м2];
[м2];
[м2];
[м2];
[м2].
Розрахунок службової площі
вантажного складу.
[м2],
де
- кількість
працівників на складі, чол.
, - нормативна площа на 1 чоловік, м2.
Для складу МПЛ врахувати
також чисельність робітників митниці.
n
= 7 (чол), nm = 4 (чол) - згідно з вихідними даними.
[м2];
[м2].
.2.2 Розрахунок геометричних
параметрів складів, кількості складських піддонів
Як правило, при проектуванні
складів задаються їхньою шириною Вскл, що за будівельними вимогами
застосовується кратної 3 і складає, наприклад, 18,24,36 чи 48 м.
Довжина складу
,
визначається за формулою:
[м]
[м2]
=582+262+349+22,75 = 1216 [м2];
=309+1211+198+35,75 =1754 [м2];
[м2];
[м2];
[м2];
[м2];
[м2];
[м2];
[м2].
Отже, довжина складу буде
наступною:

[м];

34 [м]; штабеля

[м].стелажи
.2.3 Розрахунок довжини
фронту навантажувально-розвантажувальних робіт
Необхідна довжина фронту
вантажно-розвантажувальних робіт визначається за формулою:
[м],
де
- довжина
або ширина транспортного засобу, в залежності від способу розстановки
автомашин, м;
- запасна відстань між суміжними
машинами, встановленими біля розвантажувальної рампи.
=2,9 (м),
= 2 (м) -
згідно з вихідними даними.
[м];
[м];
[м];
[м];
[м];
[м];
[м].
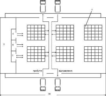
Рис. 2. Схема вантажного
комплексу при штабельному зберіганні вантажів.
Рис. 3. Схема вантажного
комплексу при стелажному зберіганні вантажів.
.2.4 Розрахунок оптимального
числа місць приймання вантажів
Оптимальне число місць
приймання і чисельність комплектів машин і устаткування для забезпечення
вантажно-розвантажувальних робіт і операцій, зв'язаних із прийманням і
оформленням вантажів, розраховується за формулою:
[од],
де
-
інтенсивність вхідного потоку автомашин од/год;
- середній час очікування машин з
вантажем у черзі на розвантаження, год;
- імовірність того, що пункти
приймання будуть зайняті, і чергова автомашина з вантажем буде чекати своєї
черги на розвантаження;
- імовірність того, що час простою
машин у чеканні розвантаження може виявитися більше заданого;
-
інтенсивність обслуговування одного відправника вантажу (зворотно пропорційна
середньому часу обслуговування одного відправника вантажу
).
=1 (год),
= 0,9,
=0,1,
= 1/0,5=2 -
згідно з вихідними даними.
Інтенсивність вхідного потоку
автомашин
може бути
розрахована за формулою:
[од/год],
де
- час
роботи складу протягом доби з приймання та відправлення вантажів зі складу,
годин на добу;
- середня вантажопідйомність
використовуваних засобів транспорту, т;
- коефіцієнт використання
вантажопідйомності машини.= 18 (год/добу),
= 3 (т),
= 0,5 -
згідно з вихідними даними.
[од/год];
[од/год];
[од/год];
[од/год];
[од/год];
[од/год];
[од/год].
Отже,
[од];
[од];
[од];
[од];
[од];
[од];
[од].
.3 Розрахунок кількості засобів
механізації вантажного комплексу аеропорту
Для обробки вантажів необхідні
механізація й автоматизація всіх процесів наземного обслуговування вантажних
перевезень: для виконання внутрішньо складських операцій, транспортування
вантажів від складів до літаків, виконання навантажувально-розвантажувальних
робіт.
У сучасних
вантажних комплексах аеропортів велика частина операцій по переробці вантажів
виконується за допомогою засобів механізації. У крупних складах і вантажних
аеровокзалах поряд з механізацією широке застосування мають також засоби
автоматизації виробничих процесів.
Засоби механізації
й автоматизації, що застосовуються для обслуговування вантажних перевезень на
повітряному транспорті, за місцем їх застосування у технологічному процесі
класифікуються на:
1) засоби
внутрішньо складської механізації й автоматизації (автоматизовані пристрої для
передачі й одержання інформації з кількісними й ваговими даними вантажів,
механізоване й автоматизоване вагове обладнання; засоби механізації для
внутріскладського транспортування й укладки вантажів);
2) засоби
механізації для навантажувально-розвантажувальних і транспортних робіт з
вантажами всередині аеродрому (машини і обладнання для навантажувально-розвантажувальних
робіт на вантажному дворі, засоби механізації для транспортування вантажів
всередені аеродрому, засоби механізації для навантажувально-розвантажувальних
робіт біля літака);
3) засоби
внутрішньо-літакової механізації (устаткування для пакетизації і
контейнеризації вантажів, швартування вантажів, переміщення вантажів у вантажні
кабіні літака).
У вантажному комплексі, що
проектується, для обробки вантажів всередині складу передбачені
електронавантажувачі, для внутрішньо аеродромної обробки вантажів - автомашини
з піднімальним кузовом.
1.3.1 Розрахунок кількості засобів
складської механізації (електричних вилочних навантажувачів) для
транспортування та завантаження-розвантаження вантажів всередині складу
Для обробки вантажів усередині
складу розрахуємо потрібну кількість електронавантажувачів:
[од],
де
, - годинна
продуктивність електронавантажувача, т/ч;
Т - термін роботи
електронавантажувача год/добу;
- коефіцієнт використання
навантажувача у часі.
Кількість
електронавантажувачів є цілим числом. У разі отримання нецілого результату
розрахунків його треба округлити у більший бік.
Розрахунок годинної
продуктивності електронавантажувача виконується за формулою
[т/год]
де
-
вантажопідйомність електронавантажувача, т;
- коефіцієнт використання
вантажопідйомності;- кількість робочих циклів електронавантажувача протягом
години.
= 1,6 (т),
=0,65 -
згідно з вихідними даними.
[т/год].
Кількість робочих циклів
електронавантажувача розраховується за формулою:
[од],
[од],
де Тчаса
-тривалість години (хвилин або секунд);
Тц - тривалість
одного робочого циклу роботи електронавантажувача (хвилин або секунд).
Розрахунок тривалості одного
робочого циклу вилочного навантажувача розраховується за формулою:
ц= t1+ t2+ t3+ t4+ t5+ t6 (с),
ц=25+9+12+9+12+9=76 (с).
де, t1 - час заведення вил під
вантаж, підйому вантажу на вилах та розвороту навантажувача (приймати у
розрахунках 25 с);- тривалість переміщення навантажувача із вантажем;- час піднімання
вантажу на необхідну висоту;- час укладки вантажу в штабель та відхилення рами
вантажопідйомника назад без вантажу (приймати у розрахунках 9 с);- час
опускання порожніх вил навантажувача вниз (дорівнює t3);
t6 - час на зворотній холостий хід.
Час переміщення навантажувача із
вантажем чи без нього визначається за формулою:
Де, Lнав - шлях переміщення
навантажувача, м (визначається самостійно, в залежності від розмірів складу,
від одного кінця складу до іншого по діагоналі); нав - середня швидкість руху
навантажувача, м/с;
tрз - час на розгін та уповільнення
(4 сек).
Тривалість підйому чи опускання
вантажу визначається за формулою:
де, Hнав - висота підйому
(опускання) вил навантажувача, м
Vнав.гр. - швидкість піднімання
опускання вил навантажувача, м/с.
Отже,
[од];
[од];
[од];
[од];
[од];
[од];
[од].
1.3.2 Розрахунок кількості
засобів перонної механізації (автомашин з піднімальним кузовом (АПК), дизельних
тягачів із возиками, перенавантажувачів авіаційних контейнерів та палет)
Основними засобоми механізації, які
використовуються в аеропортах для транспортування вантажів на пероні і
виконання навантажувально-розвантажувальних робіт біля літаків є автомобілі з
піднімальним кузовом (АПК) для вантажу, який перевозиться навалом та дизельні
тягачі із возиками (як правило двома) і перенавантажувачі авіаційних
контейнерів/палет для вантажу, який перевозиться у стандартних засобах
пакетування.
До засобів механізації, які
забезпечують перевантаження і перевезення вантажів між складом і літаком,
пред'являються наступні вимоги:
вантажопідйомність, достатня для
завантаження одного літака;
висота підйому кузова, що забезпечує
навантаження у люки чи двері літака;
гарна маневреність і наявність
механізмів керування, що дозволяють здійснювати безпечне переміщення машини
поблизу літака.
Необхідна кількість АПК, дизельних
тягачів із двома возиками та перенавантажувачів авіаційних контейнерів/палет
розраховується за формулою:
N
[од],
де П АПК;(д.т.;пер)-
продуктивність АПК, дизельного тягача із двома возиками чи перенавантажувача
авіаційних контейнерів/палет відповідно, т/добу;
Ктг- коефіцієнт технічної
готовності АПК, дизельного тягача із двома возиками чи перенавантажувача
авіаційних контейнерів/палет, відповідно (у розрахунках приймати 0,7-0,8).
[од];
[од];
[од];
[од];
[од];
[од].
Кількість АПК, дизельних тягачів із
двома возиками та перенавантажувачів авіаційних контейнерів/палет NАПК
є цілим числом. У разі отримання нецілого результату розрахунків його треба
округлити у більшу сторону.
Продуктивність АПК; дизельного
тягача із двома возиками чи перенавантажувача авіаційних контейнерів/палет
визначається за формулою:
ПАПК= Q АПК;(д.т.;пер);*
ZАПК;(д.т.;пер.) *Кв [т/добу].
Пдт= 25* 29*0,75=544
[т/добу];
ПАПК= 4* 36*0,75=108
[т/добу];
Ппер= 7* 48*0,75=252
[т/добу].
де, Q АПК;(д.т.;пер) -
вантажопідйомність АПК; дизельноготягача із двома возиками чи перенавантажувача
авіаційних контейнерів/палет, відповідно, т;в - коефіцієнт використання
вантажопідйомності засобу перонної механізації (у розрахунках приймати
0,7-0,8);АПК;(д.т.;пер.) - число рейсів протягом доби АПК;
дизельного тягача із двома возиками чи перенавантажувача авіаційних
контейнерів/палет, відповідно.
Число рейсів протягом доби АПК;
дизельного тягача із двома возиками чи перенавантажувача авіаційних
контейнерів/палет розраховується за формулою:
[од],
де
[од];
[од];
[од].
Т - час роботи складу, годин
на добу (приймати за таблицею 5, додатку 3);
V - середня швидкість руху АПК;
дизельного тягача із двома возиками чи перенавантажувача авіаційних
контейнерів/палет, відповідно, км/год; м в.п- коефіцієнт
використання пробігу (приймати у розрахунках 0,7-0,8); - середня відстань від
вантажного складу до місця стоянки літака, км;пр- тривалість простою
машини під завантажувально- розвантажувальними роботами протягом одного
робочого циклу, год (приймати у розрахунках 10 хв., що дорівнює 0,17год.);
K вр - коефіцієнт
використання машини у часі (приймати у розрахунках 0,6).
Розрахунок числа автомобілів з
піднімальним кузовом (АПК).
Основним засобом механізації,
застосовуваним в аеропортах для внутрішньо аеродромного транспортування
вантажів і виконання навантажувально-розвантажувальних робіт біля літаків, є
автомобілі з піднімальним кузовом.
·
вантажопідйомність, достатня для
завантаження одного літака;
·
висота підйому кузова, що забезпечує
навантаження у люки чи двері літака;
·
гарна маневреність і наявність
механізмів керування, що дозволяють здійснювати безпечне переміщення машини
поблизу літака.
Необхідну кількість АПК можна
розрахувати за формулою:
[од],
де
-
продуктивність АПК, т/добу;
- коефіцієнт технічної готовності
АПК.
[од]
[од]
[од]
[од]
[од]
Розділ 2.
Організація і технологія роботи вантажного комплексу аеропорту
2.1 Технологія
обробки вантажів у вантажному комплексі аеропорту
Технологія обробки
вантажів, що відправляються ВПЛ.
Вантажовідправник
оформляє необхідні для перевезення документи. Разом із документацією доставляє
вантаж до аеропорту на приймально-відправочний майданчик. На ньому проводять
розвантаження вантажу. Вантаж, насамперед, підлягає контролю на безпеку. Якщо
він відповідає вимогам цього контролю, вантаж приймають на склад. Якщо ні -
вантаж вивозять з АП.
При прийомі
вантажів повинні бути дотримані наступні вимоги: наявність необхідної
документації, виконання вимог до тари, упаковки, ваги та габаритам вантажів.
Вантаж приймає
приймальноздатчик. Він перевіряє наявність маркіровки, зважує вантаж, заповнює
документи щодо ваги, маркірує і відправляє вантажовідправника оплатити
перевезення вантажу. Вантаж прямує на склад до місця короткострокового
зберігання.
Вантаж при прийомі
до перевезення зважується у присутності вантажовідправника. При розходженні
більш ніж на 1% ваги оформляється відповідний акт. Потім вантаж маркірується за
стандартом і нормативними документами. Проходить контроль безпеки (якщо
необхідно - ветеринарний, фітосанітарний та ін.) і реєструється.
На складі вантаж
обробляють у наступному порядку: підбір вантажів на конкретний рейс за
документацією; комплектування завантаження рейсу;
пере завантаження
вантажу на внутрішньо аеродромний транспортний засіб.
Диспетчер
оперативної групи дає завдання диспетчеру по руху вантажів на комплектування за
конкретним рейсом. Диспетчер відбирає за документацією вантажі, використовуючи
дані про наявність на складі, вантажні накладні, враховуючи черговість
відправки вантажів та відповідність параметрів вантажів за вантажними відсіками
ПС. Оператор по оформленню документації оформлює поштово-вантажну відомість.
Черговий по руху вантажів перевірює чи правильно заповнена поштово-вантажна
відомість, підписує її і передає диспетчеру оперативної служби складу. Вантаж
зберігається до відправки у зоні.
Диспетчер дає
вантажникам вказівки щодо завантаження вантажу. Бригадир вантажників отримує
від приймальноздатчика вантаж. Водій завантажника по команді бригадира
перевозить вантаж із зони зберігання до зони комплектування завантаження і до
завантажувальної рампи.
Вантажники
перевантажують вантаж на внутрішньо аеродромний транспортний засіб. По
закінченню завантаження, бригадир вантажників і приймальноздатчик підписують
поштово-вантажну відомість, що служить основою для списання вантажу зі складу.
За вказівкою
бригадира вантажників бригадир транспортного засобу доставляє вантаж до ПС.
Вантаж перевантажується у ПС, при цьому присутній член екіпажу, при потребі
супровідна особа. Бригадир вантажників передає документи члену екіпажу,
відповідальному за комерційне завантаження, він приймає вантаж, звіряє його із
відповідною документацією. По закінченню завантаження він ставить свій підпис у
поштово-вантажну відомість, отримує перевізну документацію, що слідує разом із
вантажем. Бригадир вантажників, що отримав поштову - вантажну відомість,
повертається до складу і здає відомість в обліковий сектор. Інформатор складу
відправлення заносить вантаж в журнал надходження і відправок. Диспетчер по
руху вантажів перевіряє документацію і відправляє її у архів.
Вантаж у ПС
перевантажується за допомогою засобів бортової механізації. Всередині ПС
вантажі рухаються у відповідності до центровки ПС. Завершенням процесу обробки
вантажів, що відправляються є їх списання зі складу
Технологія обробки
вантажів, що прибули ВПЛ.
Диспетчер
оперативної групи отримує повідомлення про прибуття ПС. Дані містять всю
необхідну інформацію. Після прибуття ПС диспетчер отримує дані про посадку ПС і
номер і місце стояки, час прибуття і кількість вантажу. Потім проводять
підготовку до розвантаження ПС, розраховуючи необхідну кількість транспортних
засобів. Далі дані передаються командиру вантажників, який доставляє
вантажників до ПС. Розвантаження проходить в присутності екіпажу, при потребі -
супроводжуючої особи. Бригадир отримує вантаж, вантажну документацію, перевіряє
стан упакування, кількість місць вантажу, ставить підпис у поштово - вантажній
відомості, що вантаж отриманий.
Завантажують вантаж
на внутрішньо аеродромний засіб пересування. Доставляють вантаж на склад.
Бригадир доповідає диспетчеру про закінчення завантаження. Приймає вантаж
приймальноздатчик, перевіряє кількість місць, стан упакування, сортирує вантаж
і дає вказівки щодо місця складування вантажу.
Розвантажують
вантаж на завантажувальну рампу. Поштово-вантажна відомість передається в
обліковий сектор. Вантаж реєструється в журналі надходжень і видачі вантажів.
Якщо приймальноздатчик зафіксував пошкодження або нестачу вантажу, то вантаж не
реєструють на складі, а складають акт (акт про пошкодження вантажів). Всі
порушення заносять у AWB і CM. Вантаж транспортують до місця короткострокового
зберігання. Потім повідомляють вантажоодержувача про прибуття вантажу. Вантаж
зберігається на складі до видачі його одержувачу. Вантаж перевозять всередині
складу до зони приймання та видачі вантажів. Перед видачею отримувачу проводять
остаточні розрахунки і перевірки кількості, ваги і стану упаковки вантажу.
Вантаж завантажують на транспортний засіб вантажоотримувача. Видача вантажу
отримувачу: вантаж видається отримувачу; він повинен оплатити всі належні з
нього збори та платежі. Тільки після надання ним квитанцій про оплату
перевізник має право видати вантаж; отримувач зобов’язаний перевірити кількість
місць і вагу вантажу; при видачі вантажу, отримувач ставить свій підпис в
накладній відправника про видачу вантажу. Отримувачу разом із вантажем
видається вантажна накладна. Після видачі вантажу приймальноздатчик передає
вантажні документи інформатору складу, який списує вантаж у журналі надходжень
і видачі вантажів.
Технологія обробки
вантажів, що відправляються МПЛ.
Вантажовідправник
оформлює необхідні для перевезення документи. Разом із документацією доставляє
вантаж до аеропорту на приймально-відправочний майданчик. На ньому проводять
розвантаження вантажу. Вантаж, насамперед, підлягає контролю на авіа безпеку.
Якщо він відповідає вимогам цього контролю, вантаж приймають на склад. Якщо ні
- вантаж вивозять з АП.
Вантаж приймається
до перевезення після митних формальностей. Інспектор митниці приймає від
відправника супровідну документацію, що засвідчує право на відправку вантажу за
кордон, проводить догляд вантажу, стягує збори за митні процедури. Після цього
проставляє на декларації і накладний штамп „Випуск дозволений”. Проводиться
комплетвання ULD. Один екземпляр залишається в митниці. Якщо вантаж потребує
карантинного контролю, то після митниці вантаж оглядають санітарно - карантинні
служби і, якщо вони випускають вантаж за кордон, то також проставляється штамп
і дають дозвіл на вивезення вантажу. Вантаж проходить контроль безпеки.
Відповідальний
приймальноздатчик складу митних вантажів приймає до відправлення за кордон
вантажі у відповідності до правил перевезення. Працівник дирекції вантажних перевезень
авіакомпанії перевіряє вантаж. Після надходження вантажу на склад,
приймальноздатчик складу аеропорту робить відмітку на вантажній накладній, що
вантаж прийнятий. В журналі вантажних відправок комерційного складу аеропорту
робиться відмітка про прийняття вантажу, йому надається реєстраційний номер.
Цей номер вказують у вантажній накладній, після чого представник авіакомпанії
відносить накладну у офіс вантажних перевезень.
Комплектування
завантаження рейсу.
За день до вильоту
інженер комплектує вантаж на рейс і надсилає повідомлення про попереднє
завантаження в аеропорт призначення. Підготовлюється СМ. Після комплектування
вантажу, вантаж транспортують до навантажувальної рампи. Далі отримується
дозвіл митниці на вивіз вантажу зі складу. Вантаж завантажують на внутрішньо
аеродромні транспортні засоби і транспортують його до ПС. Відправлення вантажу.
Відправці
підлягають ті вантажі, які були попередньо заброньовані на цей рейс і вказані у
вантажному маніфесті. За 6 годин до вильоту ПС агент відділу поштово-вантажних
перевезень повідомляє диспетчера центру оперативного контролю авіакомпанії про
попереднє завантаження, залишає собі одну копію вантажного маніфесту і по
одному екземпляру вантажних накладних і відносить маніфест диспетчеру чергової
зміни СОПВП.
Завантаження рейсу
на авіатранспорт. За 2 години до вильоту агент вносить до вантажного маніфесту
необхідні дані щодо рейсу. Агент повідомляє диспетчеру центру оперативного
контролю авіакомпанії кінцевий тоннаж вантажу і узгоджує з ним також в які
вантажні відсіки ПС у відповідності із центруванням повинен бути завантажений
вантаж. За 1,5 години до вильоту починається завантаження заброньованого на цей
рейс вантажу. Перед завантаженням вантажу на ПС, він підлягає перевірці. Він
транспортується і закріплюється в середині ПС. Вся необхідна документація
передається екіпажу ПС і ставиться підпис представника АК про прийняття вантажу
на ПС. Цей вантаж списується зі складу.
Технологія обробки
вантажів, що прибули на МПЛ.
Диспетчер
оперативної групи отримує повідомлення про прибуття ПС. Дані містять всю
необхідну інформацію. Після прибуття ПС диспетчер отримує дані про посадку ПС і
номер і місце стоянки, час прибуття і кількість вантажу. Потім проводять
підготовку до розвантаження ПС, розраховуючи необхідну кількість транспортних
засобів. Далі дані передаються командиру вантажників, який доставляє
вантажників до ПС. Розвантаження проходить в присутності екіпажу, при потребі -
супроводжуючої особи. Бригадир отримує вантаж, вантажну документацію, перевіряє
стан упакування, кількість місць вантажу, ставить підпис у поштово-вантажній
відомості, що вантаж отриманий. До ПС бригада вантажників і здійснює зняття
вантажу та пошти, отримавши документи із відмітками митниці. При розвантаженні
перевіряється відповідність вантажу і його параметрів із вказаними у
документах.
До ПС прибуває
співробітник митниці, після чого член екіпажу доповідає йому про наявність
вантажу і пошти і надає необхідні документи.
Співробітник
митниці проставляє на всіх документах штамп „Вантаж митний”. Залишає екземпляр
авіанакладних, поштових накладних, у себе.
Всі вантажі,
включаючи несправні, доставляються на склад, де їх приймає приймальноздатчик і
дає вказівки про розміщення вантажу. Проводиться розкомплектування ULD.
Співробітник
митниці контролює надходження вантажу на склад. Далі вантаж реєструється і
підлягає короткостроковому збереженні на складі.
Після цього,
інформатор сповіщає одержувача про надходження вантажу, звертаючи увагу на те,
що для отримання інформації про порядок отримання вантажу, необхідно звернутися
в митницю.
При звертанні
одержувача в СОПВП, видається накладна, і він вирушає до декларанта. Декларант
перевіряє документи, і при необхідності, заповнює митну декларацію. Після
цього, одержувач йде до митниці.
Інспектор перевіряє
митну декларацію, документи, стягує при необхідності мито і ставить на
документах штамп „Випуск дозволений”, що є підставою для видачі вантажу.
Видача вантажу
одержувачу: вантажоотримувач зобов’язаний прибути за вантажем в аеропорт
призначення; пред’явити документи, що засвідчують його особу; він зобов’язаний
оплатити всі належні платежі та збори. Зобов’язаний врегулювати всі
формальності, пов’язані із вивезенням вантажу, отримати необхідні ліцензії,
сертифікати та інші документи, якщо потрібно, то оплатити всі податки і митні
збори.; завантаження та вивезення здійснюється силами одержувача. Йому
видається копія вантажної накладної.
Після одержання
вантажоодержувачем вантажу, він вивозиться з АП і списується зі складу.
Технологія обробки
трансферних вантажів.
Диспетчер
оперативної групи отримує повідомлення про прибуття ПС. Дані містять всю
необхідну інформацію. Після прибуття ПС диспетчер отримує дані про посадку ПС і
номер і місце стоянки, час прибуття і кількість вантажу. Потім проводять
підготовку до розвантаження ПС, розраховуючи необхідну кількість транспортних
засобів. Далі дані передаються командиру вантажників, який доставляє
вантажників до ПС. Розвантаження проходить в присутності екіпажу, при потребі -
супроводжуючої особи. Прибувши до місця стоянки ПС, вантажник одержує
супровідні документи (AWB, CM) на вантаж. При вивантаженні з ПС вантажниками
СНОПС, вантажник СПВО контролює стан, цілісність упакування та кількість
вантажу згідно документів. При виявленні невідповідності кількості вантажу
супровідним документом або ушкодження вантажу, вантажником СПВО робиться
відповідний запис в СМ, що завіряється підписом представника АК і печаткою
співробітника митниці. Ушкоджені місця пред’являються співробітнику САБ, що забезпечує
супровід вантажу до складу СПВО.
Після вивантаження
вантажу, вантажник СПВО робить відмітку про приймання вантажу в СМ і доставляє
вантаж на склад СПВО.
Приймально-здавальник,
одержавши супровідні документи на вантаж від вантажника СПВО та ознайомившись з
ними, дає вказівку на вивантаження автомашини. Бригада вантажників СПВО,
ознайомившись з особливостями вантажу, приступає до вивантаження і сортування
вантажу.
При вивантаженні
перевіряється кількість місць вантажу згідно AWB і стан упакування. Ушкоджені
вантажі упаковуються в мішки і пломбуються керівництвом складу. У випадку
неможливості упакування порушених місць, вантаж розміщується за вказівкою
керівництва складу або начальника зміни.
Після сортування
вантаж зважується (при необхідності), розміщується на складі вантажниками під
контролем приймально-здавальника з відміткою в СМ про приймання вантажу. У
випадку виявлення несправності складається „Акт про пошкодження вантажів”.
Після приймання
вантажу, приймально-здавальник СПВО реєструє вантаж і передає документацію з
відміткою про місце розміщення вантажу та № акту в диспетчерську СПВО. Надалі
вантаж підлягає короткостроковому збереженню на складі. Диспетчер СПВО передає
AWB та CM співробітнику митниці для одержання дозволу на вивіз вантажу зі
складу. Після одержання дозволів документація передається бригадиру вантажників
для одержання вантажу зі складу. Приймально-здавальник СПВО видає вантаж
бригаді вантажників СПВО згідно AWB та CM. Транспортування вантажу усередині
складу до місця комплектування на рейс. Після чого вантаж комплектують на рейс.
Перевіряють вантаж і стан його упаковки на відповідність з записаними даними в
AWB та CM. Якщо виникли будь - які розбіжності, то це фіксується і складається
„Акт про пошкодження вантажів”.
Вантажники
комплектують вантаж на палет або контейнер, транспортують вантаж усередині
складу від місця комплектування до навантажувальної рампи, навантажують
укомплектований вантаж на внутрішньо аеродромні транспортні засоби, доповідають
диспетчеру СПВО.
Диспетчер СПВО
передає інформацію про готовність вантажу до відправлення, кількість місць і
вагу диспетчеру СНОПС, а також, при необхідності, про особливості вантажу
(живий, терміновий, коштовний і т.д.). Також дає вказівку вантажнику СПВО на
транспортування вантажу від складу до місця стоянки літака.
По прибуттю на ПС
вантажник СПВО передає AWB та CM представнику АК, контролює кількість і стан
упакування вантажу, що завантажується вантажниками СНОПС у ПС.
По закінченні
завантаження вантажу, екіпажу передається необхідна документація; вантажник
СПВО одержує один екземпляр СМ з підписом представника АК про приймання вантажу
на ПС. У випадку не (або часткового) завантаження партії вантажу, в AWB та CM
робиться відмітка про кількість, вагу вантажу, що повертається, ставиться
печатка співробітника відділу контролю літаків митниці „Під митним контролем” і
вантаж здається на склад СПВО відповідно до інструкції.
СМ з відміткою
представника АК про приймання вантажу вантажник передає диспетчеру СПВО для
обліку виконання роботи.
2.2 Алгоритми
технології обробки вантажів
Вантажі, що
прибувають на ВПЛ.
Вантажі,
що відправляються на МПЛ.
Трансферні
вантажі
2.3 Завантажувальні характеристики
повітряних суден
Вантажні характеристики літака Іл-76
вантажний.
Розміри
Розмах крила 50,5 м
Довжина літака 46,6 м
Висота 14,8 м
Льотні характеристики
Максимальна швидкість 850 км/г
Крейсерська швидкість 750-800 км/г
Дальність польоту:
З навантаженням 20 000 кг 7 300 км
З навантаженням 50 000 кг 3 650 км
Розміри вантажного відділення
Довжина 20,0 м
(з рампою) 24,5 м
Ширина 3,4 м
Висота 3,5 м
Рисунок 4. Вантажний відсік
вантажного літака Іл-76
Таблиця 1. Боїнг 777. Специфікації
|
777-200ER
|
777-200LR
|
777 Freighter
|
777-300
|
777-300ER
|
|
|
Кількість пілотів
|
Два
|
|
Пасажиромісткість, типова
|
301 (3-класи) 400 (2-класи) 440 (максимум)
|
н/д (вантажний)
|
365 (3-класи) 451 (2-класи) 550 (максимум)
|
|
Довжина
|
63,7 м
|
73,9 м
|
|
Розмах крила
|
60,9 м
|
64,8 м
|
60,9 м
|
64,8 м
|
|
Стріловидність крила
|
31.64<#"806411.files/image202.gif">
Схема розташування та завантаження
вантажу у літаку.
Відповідність типів ПС та засобів
пакетування вказана в довіднику ТАСТ та ULD Technical Manual", ІАТА.
Рисунок 5
2.5 Організаційна структура служби
поштово-вантажного обслуговування ВКА
СОПВП забезпечує обслуговування
організацій, підприємств, комерційних структур та громадян в підготовці,
оформленні вантажів та пошти для відправки повітряним транспортом.
Основні функції СОПВП:
- організація обслуговування
перевезення пошти та вантажу у відповідності з технологією;
- забезпечення
навантажувально-розвантажувальних робіт;
- забезпечення оформлення документації
для перевезення вантажу та пошти;
- забезпечення наземного
комерційного обслуговування ПС;
- організація декларування
експортно-імпортних вантажів;
- виконання розрахунків за зроблені
послуги і перевезення вантажу;
- розгляд скарг та притензій клієнтів;
- проведення міроприємств по
покращенню охорони праці та техніки безпеки;
- підвищення якості роботи служби;
- здійснення робіт та послуг, які не
суперечать дійсному законодавству.
Рис. 6. Типова структура служби
поштого-вантажного обслуговування вантажного комплексу аеропорту.
Висновки
Під час виконання
курсового проекту я навчився:
·
розраховувати технологічні параметри
вантажного комплексу, на основі аналізу структури вантажопотоку;
·
розробляти оригінальну технологію
обробки вантажів, на основі міжнародних стандартів щодо якості та безпеки
технологічного процесу,
·
планувати розташування елементів
вантажного комплексу складських приміщень та обладнання;
·
розробляти організаційну структуру
вантажного комплексу;
·
застосовувати знання, отримані на
лекціях і практичних заняттях, для самостійної розробки технологічного процесу
обробки вантажів у ВКА;
·
теоретично грамотно і логічно
послідовно викладати проблему розробки технологічного процесу обробки вантажів
у ВКА;
Основою для
розрахунку технологічних параметрів вантажних комплексів є:
·
прогнозуємий річний вантажообіг;
·
характеристика нерівномірності
надходження вантажів за сезонами року;
·
номенклатура вантажів, що
відправляються та прибувають до аеропорту;
·
технологія внутрискладської
переробки вантажів і характеристика засобів механізації.
Для обслуговування складів
використовують різноманітні види підйомно-транспортних машин та механізмів. Їх
вибір тісно пов’язаний з уже перерахованими підсистемами і залежить від
характеристик самих технологічних засобів і загальної спрямованості технічної
оснащеності складу. При цьому високий рівень механізації і автоматизації
складських робіт, а отже і використання високопродуктивних технічних засобів доцільне
на великих складах з великою складською площею та стійким однорідним
матеріальним потоком. На складах, використовуваних для різних роздрібних
підприємств, можуть застосовуватися і засоби малої механізації, особливо при
комплектації замовлення. Найбільш поширеними на механізованих складах є такі
види підйомно-транспортних засобів, як електронавантажувачі та
електроштабелери, а на автоматизованих складах - міжстелажні крани-штабелери.
В останні роки, як показали
дослідження, значно покращилось транспортне обслуговування клієнтів. Це стало
можливим не стільки за рахунок покращання роботи транспортних органів, скільки
за рахунок використання логістики, яка дає змогу скоординувати дії закупівлі,
виробництва, збуту і транспортування.
Одна з головних умов успішного
виконання технологічного процесу - суміщення операцій і по можливості не
послідовне, а паралельне їх використання. Резервом підвищення продуктивності
праці є вміле суміщення професій і повне завантаження усіх робітників протягом
дня.
Список використанної
літератури
1. Airport Development
Reference Manual, IATA, поточне видання.
. The Air Cargo Tariffs, IATA,
поточне видання.
. Ашфорд Н. Проектирование
аэропортов / Н. Ашфорд, П.Х. Райт; пер. с англ. А.П. Степушин. - М. :
Транспорт, 1988. - 372с.
. Баран Р.Г. Организация,
технология и правовое регулирование грузовых перевозок на воздушном транспорте
/ Баран Р.Г. - К. : КИИГА, 1993. - 176 с.
. Ведомственные нормы
технологического проектирования грузовых комплексов аэропортов ВНТП 5 - 85. - М.
: ОНТИ ГПИ и НИИ ГА Аэропроект, 1985. - 112 с.
. Правила повітряних перевезень
вантажів Наказ державної служби України з нагляду за забезпеченням безпеки
авіації від 14.03.2006 № 186, Зареєстровано в Міністерстві юстиції України 13
червня 2006 р. за № 705/12579
. Інструкція з організації
перевезень вантажів повітряним транспортом Наказ державної служби України з
нагляду за забезпеченням безпеки авіації від 02.11.2005 № 822, Зареєстровано в
Міністерстві юстиції України 21 листопада 2005 р. за N 1403/11683
. Канарчук В.Е., Чигринець А.Д.
Механизация техно-логических процессов в аэропортах. - М.: Транспорт, 1986. -
254 с.
. Руководство по грузовым
перевозкам на внутренних воздушных линиях СССР. - М.: Воздушный транспорт,
1985.- 280с
. Русинов И.Я. Механизация
наземного обслуживания воздушных перевозок. М: Транспорт, 1971 - 252 с.
. Савин В. Склады: справочное
пособие. М.: Дело и сервис, 2001. - 544 с.
вантажний
аеропорт повітряний поштовий
Додатки
Засоби складської механізації
Електронавантажувачі:
Автомобілі з підіймальним кузовом:
Вихідні дані до
виконання курсового проекту
Загальні дані про
вантажообіг
|
№ варіанту
|
Добовий вантажообіг ,
т/добПитома вага вантажів на ВПЛ,%Питома вага вантажів, що прибули по ВПЛ,
%Питома вага вантажів, що прибули по МПЛ, %Питома вага трансферних вантажів
на МПЛ,%Коефіцієнт Нерівномірності
|
|
|
|
|
|
|
5
|
300
|
30
|
45
|
70
|
15
|
1,6
|
Середня тривалість збереження
вантажів на складі, , діб
|
Від вантажу
|
Варіант
|
|
5
|
|
Що прибув
|
2
|
|
Що відправляється
|
2
|
|
Трансферний
|
0,8
|
Дані для розрахунку робочої площі
при штабельному і стелажному зберіганні
|
№ варіанту
|
Питоме навантаження на підлогу, ,
т/м2Коефіцієнт надлишко-вої площі, Довжина комірки, l, мШирина
комірки, b, мВисота комірки, h, мОб'ємна вага складованого вантажу, т/м3Коефіцієнт
заповнення комірки вантажем, Питоме наван-таження на під-логу
стелажного складу, , т/м2
|
|
|
|
|
|
|
|
|
3
|
0,6
|
1,2
|
1,5
|
1,2
|
1,2
|
1,2
|
0,4
|
3,6
|
Дані для розрахунку додаткової,
допоміжної, та службової площі складу
|
№ варіанту
|
Питоме навантаження, на ділянці приймання і
комплектації, т/м2Термін
збереження вантажів на ділянці приймання і комплектації, ,
дібКоефіцієнт, що враховує потребу в допоміжній площі Кількість
праців-ників на складі, Кількість
раб митниці, Нормативна
площа на 1 чоловік, , м2
|
|
|
|
|
|
|
3
|
0,5
|
0,9
|
0,6
|
7
|
4
|
3,25
|
Дані для розрахунку фронту
навантажувально-розвантажувальних робіт
|
№ варіанту
|
Час роботи складу, Т, годин на добу
|
Середня вантажопідйомність ,тКоефіцієнт
ви-користання вантажопідйомності машини Середній час очікування машин з
вантажем у черзі, год.Імовірність того, що пункти приймання будуть зайняті Імовірність
того, що час простою машин більше заданогоСередній час обслуговування 1
відправника вантажу ,
год.Довжина транспортного засобу, l, м /ширина транспортного засобу, м
|
|
|
|
|
|
|
|
3
|
18
|
3
|
0,5
|
1,0
|
0,9
|
0,1
|
0,5
|
6/2,9
|
Запасна відстань між суміжними
машинами - 1-3 м.
Вантажопідйомність електронавантажувача
1 тона;
Коефіцієнт використання
електронавантажувача у часі - 0,7-0,8;
Коефіцієнт технічної готовності АПК
- 0,7-0,8.
Похожие работы на - Технологічний процес роботи вантажного комплексу аеропорту
|