Компрессорные установки
Введение
Компрессоры относятся к группе
механизмов, получивших широкое распространение на всех промышленных
предприятиях.
Компрессоры применяют для получения
сжатого воздуха или другого газа давлением свыше 4 *
Па (4 кгс/см2). С целью использования его энергии.
Компрессорное оборудование широко
применяются в различных отраслях народного хозяйства. Компрессоры составляют
основу технологического оборудования химических производств, используется при
добыче и переработке нефти, транспортируют природный газ по газопроводам,
закачивают его в подземные хранилища, широко применяются в холодильной технике
и технике распределения газов, во всех видах транспорта, подают сжатый воздух
для привода пневматического оборудования и т.д.
Компрессорные установки промышленных
предприятий в основном предназначаются для обслуживания определенных
технологических процессов, поэтому их производительность зависит от потребления
воздуха (газа) в ходе работ производственного участка и изменений внешних
условий, например: температуры, влажности воздуха, запыленности.
Эти установки достаточно просто
поддаются автоматизации путем применения специальной аппаратуры, которая дает
сигнал об изменении режима работы и производит соответствующие переключения в
схеме управления без участия обслуживающего персонала; задача последнего
сводится лишь к периодическому контролю действия аппаратов и профилактике.
В промышленности используется
различные типы компрессоров. Каждый тип имеет свои области рационального
использования. Очень широко распространены поршневые компрессоры. Компрессоры
этого
типа наиболее многочисленны, так как
обладают рядом преимуществ - высоким КПД, возможностью достижения высоких
давлений в одной установке, приспособленностью к работе на переменных режимах и
т.п.
Так же среди компрессорных машин
распространение получили воздушные компрессоры, служащие для подачи воздуха или
газа
давлением от 1,1*
-4*
Па.
Мощные компрессоры обеспечивают сжатие до 32 МПа.
Компрессоры, упрощенно, состоят из:
1. Электродвигателя или привода;
. Нагнетающей установки;
3. Емкостей для сжатого газа;
. Соединительных шлангов и труб.
Электродвигатели применяемые в
компрессорных установках могут быть постоянного и переменного тока. Двигатели
переменного тока делятся на синхронные и асинхронные. Асинхронные двигатели в
свою очередь на АД с короткозамкнутым ротором и АД с фазным ротором.
Для асинхронные двигателей с
короткозамкнутым ротором преимуществами для их установки в компрессоре является
их экономичность, простота, удобство конструкции и большая надежность работы.
Их недостатки это пусковой ток, который в 5 - 7 раз превышает номинальный ток
двигателя и малый пусковой момент.
Асинхронные двигатели используют
гораздо реже (в основном в центробежных насосах). Они используются в маломощных
сетях или если требуется значительный пусковой момент (при относительно
небольшом пусковом токе). Но у них сложная пускорегулирующая аппаратура и
требуется уход за щетками и кольцами.
Синхронные двигатели используются в
компрессорах большой мощности (более 100 кВт). У них очень высокий коэффициент
мощности (cos (p = 1) и они не очень восприимчивы к изменениям нагрузки. Но в тоже
время они значительно дороже асинхронных двигателей и при пуске у них
наблюдаются те же недостатки что и у АД с короткозамкнутым ротором.
Линейные электроприводы бывают
электромагнитными, магнитоэлектрическими и индукционными. У них низкий КПД, но
они все равно эффективны (из-за отсутствия кривошипно-шатунного механизма и
соответствующих потерь на трение). Они применяются в основном при небольших
поршневых усилиях и при малом ходе поршня.
Развитие компрессоров интенсивно
продолжается и в настоящие время. Новые области применения и всевозрастающий
рост объемов производства вызывают необходимость новых конструкций машин и
увеличение их единичной подачи. Использование сжатого природного газа в
качестве топлива для двигателей автомобилей и других транспортных средств
обусловило необходимость создания компрессоров для газонакопительных станций.
1. Назначение
компрессорной установки
компрессорный
электродвигатель кабель питающий
Компрессорами называют машины,
предназначенные для сжатия и перемещения газов по трубопроводам.
По принципу действия компрессоры
подразделяют на центробежные и поршневые. Центробежные компрессоры по
конструкции подразделяются на турбинные и ротационные,
В объемных компрессорах давление
газа повышается за счет уменьшения пространства, в котором находится газ. В
идеальном случае это пространство является абсолютно герметичным и утечек газа
в процессе повышения давления не происходит.
К динамическим компрессорам
относятся центробежные и осевые компрессоры. В них давление повышается при
непрерывном движении газа через проточную часть машины за счет энергии, которую
сообщают газу лопатки вращающегося ротора. При этом кинетическая энергия
преобразуется в потенциальную,
Существуют такие компрессоры, в
которых нет перемещающихся механических деталей. В таких компрессорах рабочая
среда (обычно вода или пар), перемещаясь с большой скоростью, захватывает с
собой частички газа и сообщает им кинетическую, которая затем в специальных
устройствах преобразуется в давление.
Все компрессоры независимо от принципа
действия подразделяются по основным эксплуатационным параметрам - давлению и
подаче. Подавлению различают компрессоры: низкого давления - 0,2-1,0 МПа;
среднего давления -1-10 МПа; высокого давления - 10-100 МПа. По значению подачи
компрессоры подразделяются на малые (до 0,015
/с), средние (от 0,015 до м3/с) и крупные (свыше 1,5 м3/с).
В турбинном компрессоре (рисунок
1.1, а) ротор 1 с лопастями при вращении захватывает газ из впускного
трубопровода 2 и выбрасывает его в выпускной трубопровод 3.
Увеличение давления происходит за
счет повышения скорости движения частиц газа и его сжатия между лопастями и
корпусом компрессора при эксцентричном расположении ротора.
В ротационном компрессоре (рисунок
1.1, б) увеличение давления осуществляется путем сжатия газа в камерах,
образуемых с помощью пластин 1, которые перемещаются под действием центробежных
сил в направляющих ротора 2 при его вращении и прижимаются к стенкам корпуса.
Впускной вентиль 6 и выпускной вентиль 3 во время работы компрессора открыты.
Для обеспечения работы компрессора при отсутствии потребителя сжатого газа
служит обходной трубопровод с вентилем 5.
Статистическая мощность Р2 на валу
центробежных компрессоров изменяется пропорционально третьей степени угловой
скорости W (рисунок 1.1, г), если отсутствует противодавление. Для этих
механизмов характерны простота конструкции, надежность в эксплуатации и высокая
производительность.
В поршневом компрессоре (рисунок
1.1, в) при вращении кривошипного вала 1 и движении поршня 2 вниз газ
засасывается через открытый впускной клапан 3. При движении поршня вверх клапан
3 закрывается, происходит сжатие воздуха, который через выпускной клапан 4
направляется к потребителям.
Процессы всасывания и нагнетания,
совершаемые за один оборот коленчатого вала, составляют полный цикл работы
компрессора.
Недостатком данного компрессора
является то, что полезная работа совершается только при движении поршня в одном
направлении.
Поршневые компрессоры
характеризуются неравномерностью подачи газа. Высокие давления газа могут быть
получены только в многоступенчатых компрессорах, в которых газ сжимается
последовательно в нескольких цилиндрах или камерах. В компрессоре одинарного
действия подача газа производится только при движении поршня вверх. В
компрессоре двойного действия подача газа производится при ходе поршня в обе
стороны. Мгновенная мощность Р2 на валу таких механизмов изменяется по
синусоидальному закону в зависимости от угла поворота кривошипа (рисунок 1.1,
д).
При сжатии газа в компрессорах
выделяется большое количество тепла, которое отводится с помощью проточной
воды, проходящей через кожух компрессора, Благодаря охлаждению сохраняется
неизменная температура сжимаемого газа и снижается мощность приводного
двигателя. Угловая скорость рабочего вала компрессоров составляет у поршневых
30 - 75 рад / с, у ротационных 300 рад / с, у турбинных до 1200 рад / с
Схемы компрессоров: центробежного
(а), ротационного (б) и поршневого (б) типов. Графики зависимости мощности на
валу механизмов центробежного типа от скорости (г) и поршневого типа от угла
поворота кривошипа (д)
2. Описание принципа
действия силовой и схемы управления компрессорной установки
На рисунке приведена электрическая
схема управления компрессорной установкой, состоящей из двух агрегатов К1 и К2.
Двигатели компрессоров Д1и Д2 питаются от трехфазной сети U = 380 В через автоматические
выключатели QF1 и QF2 с комбинированными расцепителями. Включение и отключение
двигателей производится магнитными пускателями КМ1 и КМ2. Цепи управления и
сигнализации питаются фазным напряжением 220 В через однополюсный магнитный
выключатель QF3 с максимальным электромагнитным расцепителем.
Управление компрессором может быть
автоматическим или ручным. Выбор способа управления производится с помощью
ключей управления КУ1 и КУ2. При ручном управлении включение и отключение
пускателей КМ1 и КМ2 производится поворотом рукояток ключей КУ1 и КУ2 из
положения О (Отключен) в положение Р (Включен).
Автоматическое управление
компрессором производится при установке ключей КУ1 и КУ2 в положение А, а
включение и отключение пускателей производится с помощью реле KL1 и KL2. Контроль давления
воздуха в ресиверах производится двумя электроконтактными манометрами, контакты
которых включены в цепи катушек реле KL1-KL4. Очередь включения компрессоров при падении давления
устанавливается при помощи переключателя режимов ПР. Если ПР установлен в
положение К1, то первым включается компрессор К1.
Предположим, что ресиверы наполнены
сжатым воздухом, давление соответствует верхнему пределу (контакты манометров
М1 - Н и М2-Н разомкнуты) и компрессоры не работают. Если в результате
потребления воздуха давление в ресиверах падает, то при достижении ими
минимального значения, установленного для пуска первого компрессора, замкнется
контакт М1-Н первого манометра (Н - нижний предел), сработает реле KL1 и своим контактом
включит пускатель КМ1 двигателя первого компрессора. В результате работы
компрессора К1 давление в ресиверах будет повышаться и контакт Ml-Н разомкнется, но это
не приведет к отключению компрессора, так как катушка реле KL1 продолжает получать
питание через свой контакт и замкнутый контакт реле KL4. При повышении
давления в ресиверах до максимального предела замкнется контакт манометра Ml-В (В-верхний предел),
сработает реле KL4 и своим контактом отключит реле KL1, потеряет питание
пускатель КМ1 и компрессор К1 остановится.
В случае недостаточной
производительности первого компрессора или его неисправности давление в
ресиверах будет продолжать падать. Если оно достигнет предела, установленного
для замыкания контакта М2-Н второго (манометры Ml и М2 регулируются так,
что бы контакт М2-Н
замыкания по сравнению с контактом Ml-Н при несколько меньшем
давлении), то сработают реле KL3 и KL2. Последнее своим контактом включит пускатель КМ2, т.е. вступит в
работу компрессор К2. Реле KL2 после размыкания контакта М2-Н остается включенным через свой
контакт и замкнутый контакт реле KL4. Когда давление в ресиверах в результате совместной работы обоих
компрессоров (или только К2 при неисправном К1) поднимется до верхнего предела,
замкнется контакт манометра М2-В и включится реле KL4. В результате
отключится реле KL1 и KJL2 и пускатели КМ1 и КМ2. Оба компрессора остановятся.
В схеме предусмотрен контроль
исправности компрессорной установки. Если несмотря на работу обоих компрессоров
давление в ресиверах продолжает падать или не изменяется, то контакт М2-Н
нижнего предела останется замкнутым, и реле KL3 будет включено. Оно
своим контактом приведет в действие реле времени КГ, которое с некоторой
выдержкой времени, необходимой для обеспечения нормального подъема давления
компрессором К2, замкнет свой контакт КТ цепи аварийнопредупредительной
сигнализации, и персоналу будет подан сигнал о необходимости устранения
неисправности.
Сигнальная лампа HLY служит для световой
сигнализации о режиме работы компрессорной установкой при ручном управлении.
Она загорается при падении давления в ресиверах, получая питание через контакт
реле KL3. Сигнальная лампа HLW и реле напряжения KV служат для контроля наличия напряжения в цепях управления.
Контроль температуры воздуха в компрессорах, охлаждающей воды и масла
осуществляется специальными реле (на схеме не показаны), которые вместе с реле KV воздействуют на цепи
аварийно-предупредительной сигнализации, извещая персонал о ненормальной работе
установки.
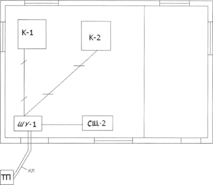
К-1 и К-2 компрессорные установки
ШУ1 - силовой щит
С Ш 2 - шкаф управления
ТП - цеховая трансформаторная
подстанция;
КГ1 - кабельная линия от ТП до Ш-1
3. Расчет и выбор
электродвигателя компрессора
Для компрессоров типичен
продолжительный режим работы, поэтому их электроприводы, как правило, не
реверсивные с резкими пусками. В отличии от механизмов реверсивного транспорта
компрессоры имеют небольшие пусковые статические моменты - 20 - 25% от
номинального. В зависимости от назначения, мощности и характера производства
где установлены механизмы этой группы, они могут требовать
небольшого но постоянного подрегулирования
производительности при отклонении
параметров воздуха (газа) от заданных значений, или же регулирования
производительности в широких пределах.
Для большинства поршневых
компрессоров не требуется регулирования угловой скорости приводных двигателей.
Поэтому здесь применяют асинхронные двигатели с короткозамкнутым ротором и
синхронные двигатели. При мощности более 50 КВт привод с синхронным оказывается
экономичнее и выгоднее, чем привод с асинхронным двигателем. Хотя синхронные
двигатели сложнее по устройству и дороже, чем асинхронные, применение их
целесообразно для одновременного улучшения coscp предприятия.
При достаточной мощности питающей
сети производится прямой пуск асинхронных и синхронных двигателей. В тех
случаях, когда сеть не позволяет осуществление прямых пусков, применяют
различные способы ограничения пускового тока, например пуск двигателей через
автотрансформаторы или реакторы.
При выборе двигателя для
компрессоров, как и для механизмов с продолжительным режимом работы и
постоянной нагрузкой, требуемую мощность двигателя Рдв находят по
мощности на валу механизмов с учетом потерь в промежуточных механических
передачах.
Мощность двигателя поршневого
компрессора Рдв.к, кВт, определяется но приближенной
формуле:
где Q-производительность (подача)
компрессора,
/с;
А=(Аи+Аа)/2 - работа,
Дж/м3, изотермического и
адиабатического сжатия 1
атмосферного воздуха давлением Р1=1.0*
Па до требуемого давления P2, Па для давлений до 10*
Па значения А указаны ниже:
Отношение давления к работе
|
3
|
4
|
5
|
6
|
8
|
9
|
10
|
|
Дж/м3
|
132
|
164
|
190
|
213
|
230
|
245
|
260
|
272
|
ƞк- индикаторный КПД компрессора, учитывающий потери мощности при
реальном процессе сжатия воздуха, и равный 0.6 - 0.8; ƞп - КПД механической передачи между компрессором и двигателем, его
значения лежат в пределах 0.9 - 0.95; Кз - коэффициент запаса,
равный 1.05 - 1.15 и учитывающий неподлежащие расчету факторы.
Рассчитываем мощность двигателя:
=24.2
n=
=
= 1032
По таблице находим двигатель,
соответствующий данной мощности. Это двигатель 4A200L2Y3 - двигатель серии 4А, со
следующими паспортными данными:
= 1000
об/мин;
=30кВт; S=3.2%; з=90.5%; cos ц = 0.9
=2;
=1.2;
=1;
=6,5.
По степени защиты 1Р44 - это
означает, что двигатель защищен от попадания внутрь оболочки твердых тел,
размером более 1 мм, способных повредить оболочку, и говорит о том, что
двигатель защищен от попадания брызг на токоведущие части и обмотку в любом
направлении и под любым углом.
Двигатель 4A200L6Y3 предназначен для работы в
умеренном климате. Ссылка на литературу: стр. 27, №3, №6
4. Расчет и выбор
питающего кабеля
Выбор сечения кабелей по нагреву
производится по рассчитанной длительно-допустимой токовой нагрузке на провод - Iдоп., причем Iдоп. ≥ Iрасч, 42 А>39,7. [4, с. 280].
где Р - номинальная мощность
электродвигателя компрессора; Uном - номинальное
напряжение сети, 380 В. Исходя из данной формулы найдем Iрасч.
По ПУЭ выбираем сечение жил кабеля
по нагреву. Сечение кабеля ровняется 16
. Для питания электродвигателя компрессора
Выбираем кабель типа АВРГ сечением S = 3* 16 + 1* 10 мм2.
Этот четырехжильный кабель имеет алюминиевые жилы, поливинилхлоридную изоляцию
и резиновую изоляцию, голый. Он применяется в электроустановках напряжением до
1000 В, прокладывается по воздуху, на скобках по стене. Кабель имеет длительно
допустимый ток 60 А.
Выбранный кабель прокладывается от
силового щита до компрессора. В силовом щите жилы кабеля при помощи
наконечников присоединяются к выводным выводам компрессора. На электродвигателе
подключение производится при помощи специальных наконечников к клемной коробке.
Обмотка электродвигателя собирается в «звезду», к зажимам С1, СЗ, С5
присоединяются провода питающего кабеля. Зажимы обмоток статора С2, С4, С6, при
помощи перемычки соединяются между собой.
Для питания компрессора от ТП до
СЩ-1 выбираем кабель типа АСБ сечением
S= 3 5 + 115 мм2. При условии что он должен быть в два
раза толще чем кабель от ЩС-1 до К-1 и К-2. Этот четырехжильный кабель имеет
алюминиевые жилы, свинцовый обычный, бронированный. Кабель прокладывается в
земле. Кабель имеет длительно допустимый ток 75 А
5. Выбор элементов
силовой схемы и схемы управления
На рисунке 2.1 изображена
принципиальная схема автоматического управления компрессорной установки.
Произведем выбор элементов силовой схемы и схемы управления.
Выбор магнитных
пускателей.
Выбор магнитных пускателей (пусковых
аппаратов) производится по мощности электродвигателя. В настоящее время
промышленностью выпускаются магнитные пускатели шести серий. Магнитные
пускатели бывают типов ПП, ПАЕ, ПНЛ, ПМЕ, ПМА.
Магнитный пускатель размещается в
металлическом корпусе, имеет главные и вспомогательные контакты и тепловое
реле. У магнитных пускателей с малыми номинальными токами теплового реле не
устанавливается.
Произведем выбор магнитных
пускателей:
Из условия Iнмп > Ip; UHMn >Ur производим выбор
магнитного пускателя.
Выбираем магнитный пускатель по
таблице 2.26 [З.с. 86] типа ПА-213 защитного исполнения, снабженный тепловым
реле ТРП-60. его номинальные параметры:
IН = 56 А, Рн =
38кВт, размеры 339 197 363 мм, масса 16,5 кг. Электрическая схема магнитного
пускателя изображена на рисунке 7.1
Выбор
автоматических выключателей
Автоматические выключатели
применяются для защиты от токов короткого замыкания и перегрузки. Число полюсов
автомата должно соответствовать числу фаз сети.
Расчетный ток компрессора составляет
46А. Наибольший максимальный ток с учетом пусковых токов и степени тяжести
пусков определяется по формуле:
где Кп - кратность
пусковых токов (Кп=6); а - степень тяжести пусков (средняя).
Определим максимальный ток из
формулы 7.1:
Выбор автоматических выключателей
производится из условия:
1) Iр, Iр<=Iна, Iна
2) Iнэмр≥Iдл(Iр)
3) Iнтр≥Iдл
4) Iк.з≥1.5Iуст.
Из данных условий номинальный ток
электромагнитного расцепителя равняется 172А, а ток теплового расцепителя 75А.
На основании этого выбираем автоматический выключатель по таблице 9.1.3 [1.с.
197] серии АЕ2000, со следующими паспортными данными: cosr/? = 0.3; масса 2 кг; Iнапт=63А Электрическая
схема автоматического выключателя показана на рисунке.

Электрическая схема автоматического
выключателя
Выбор сигнальных ламп и добавочных
сопротивлений.
В схеме применяются лампы (ЛБ, ЛЖ)
типа ПС-53, ее параметры:
U=220B, Рн=30Вт.
Для выбора добавочных сопротивлений,
питающее напряжения ламп ЛБ и ЛЖ для увеличения срока службы ламп при колебании
сетевого напряжения. На добавочном напряжении, которое снижает напряжение на
лампе до требуемой величины, обычно (0,75-0,8) 11н. Величина добавочного
сопротивления Rд в цепи лампы
накаливания (сигнальной лампы) равна R ~ U» U'.
где Uh - номинальное
напряжение сети. В
Ш - напряжение на лампе (0.75-0.8) Uh, В
I - ток в цепи лампы, А
Ток в цепи лампы I, равен I _ ил
где Rл - сопротивление лампы,
определяемое из номинальных данных, Ом
Сопротивление лампы Rл равно
где Рл - мощность лампы, Вт
где Рл - мощность лампы, Вт
Таким образом, устанавливаем
добавочные сопротивления по 400 Ом на каждую сигнальную лампу.
Выбираем реле
Выбираем реле промежуточное (KL1-KL4) по таблице 9.3.1
[1.С. 202]. Тип РП-23 технические данные Uн=220 В, Iдл.доп=4 А, четко срабатывает при
0.7 UH. Выбор реле напряжения также производим по таблице 9.3.1 [1.С.
201]. Тип РН-50 Технические данные: UH=220 В, Iдл.доп= 10 А, выдержка времени равна 1 - 20
мин, время возврата не более 1 с, число срабатываний не менее 100000 раз
выбор
переключателей.
Выбираем по таблице 13.18 [4.С. 351]
по расчетному току, тип ПК-3, технические данные: UH=220 В, Iдл.дoп= 25 А, число переключений
20000 раз.
6.
Расчет и построение сетевого и линейного графика электромонтажных работ
Основной для
расчета графика являются ведомости объемов ЭМР и сметы на оборудование и монтаж
электроустановки.
· составляется перечень всех работ, предусмотренных проектом, с
соблюдением технологической последовательности их производства в две стадии;
· в графы
2 и 3 заносятся физические объемы ЭЛР;
· в графу
4 заносится общая трудоемкость в человек днях, которая определяется на
основании сметной документации или нормативных затрат труда для оперативного
планирования работ;
· намечается
возможная длительность выполнения каждой из работ, при этом надо исходить из
общей продолжительности работ по монтажу электроустановки, их количества и
состава;
· рассчитывается
количество человек в бригаде (можно определить путем деления величины суммарных
трудозатрат на директивный срок продолжительности строительства объекта), при
этом рекомендуется численный состав бригады принимать не менее шести человек;
· строится
график производства работ.
График размещается
в соответствующих графах с учетом стадий выполнения работ в целом на объект или
по МЗТ. Для большей наглядности работу разных звеньев рекомендуется обозначать
линиями разных цветов или очертаний с указанием количества работающих в звене.
Работа
производственный
процесс, требующий затрат времени, трудовых и материальных ресурсов: под линией
указывается продолжительность работы в днях и численность выполняющих ее
рабочих.
Ожидание
процесс, требующий
затрат времени без расходования других материальных ресурсов: оно показывает,
что новая работа не может быть начата до окончания предыдущего события.
Зависимость
отражает взаимосвязь
работ и последовательность их производства, не требует затрат времени или каких

либо материальных
ресурсов.
Критический путь
непрерывная
технологическая последовательность одной ветви сетевого графика с наибольшей
продолжительностью работ между начальным и конечным событиями.
Событие
процесс, требующий
затрат времени без расходования других материальных ресурсов: оно показывает,
что новая работа не может быть начата до окончания предыдущего события.
Начальное событие
определяется следующими параметрами:
· готовностью проектно
сметной документации и
ППР разработанного на основании ее изучения;
· готовностью строительной
части;
· наличием
электрооборудования, материалов и комплектующих изделий, узлов и заготовок МЭЗ;
· нормокомплектов
инструмента, машин и приспособлений;
· людскими ресурсами
(бригады и звена для производства ЭМР).
Конечное событие
является завершением всего комплекса работ со сдачей под наладку, а затем и в
эксплуатацию. Основанием для определения параметров сетевого графика являются:
проектно
сметная документация и
рабочие чертежи по монтажу силового электрооборудования заданного объекта;
нормы продолжительности монтажа и директивный срок ввода объекта в
эксплуатацию, который задается в данном случае произвольно руководителем
проектирования или самим учащимся. В соответствии с технологической
последовательностью производства ЭМР в две стадии составляется перечень работ,
который заносится в таблицу с указанием трудозатрат, взятых из сметной
документации для соответствующих видов работ из нормативов затрат труда на выполнение
ЭМР.
Построение
сетевого графика. На основе параметров,
приведенных в таблице 4, строится сетевой график. Для этого сначала определяют,
сколько путей он будет иметь и, соответственно, сколько звеньев будет работать
в бригаде. Количество человек в бригаде устанавливается исходя из соотношения
общих трудозатрат в человеко-днях к заданной продолжительности строительства
(директивные сроки). Количество путей, начинают строить график с начального
события слева направо, при этом надо строго соблюдать технологическую
последовательность двухстадийного выполнения ЭМР. Например, сначала выполняются
работы первой стадии:
Монтаж заземления,
металлоконструкций, трубной разводки, скрытой проводки проводом АППВ и.т.д., а
затем 
работы второй стадии:
монтаж силового электрооборудования, проводов и кабелей, шинопроводов и их
подключение. Монтаж объектов электроснабжения РУ и ТП, электроосвещения и
подъемно 
транспортного
оборудования можно производить как в одну, так и в обе стадии (в зависимости от
сроков предоставления фронта работ на объекте)
Трудозатраты по видам
работы
|
Виды работ
|
Номер работы на графике
|
Трудозатраты
|
|
|
Чел.  днЧел.Дн.
|
|
|
|
Обслуживание асинхронного двигателя
|
1
|
14
|
6
|
3
|
|
Замена предохранителей
|
2
|
8
|
4
|
2
|
|
Монтаж проводки
|
3
|
6
|
3
|
2
|
|
Наладка механизма передвижения моста
|
4
|
10
|
5
|
2
|
Расчеты ведутся для
каждой из работ графика и сводятся в таблице 14. Шифр работы и ее
продолжительность берутся из сетевого графика. Далее определяется ранние начало
и окончание работ. Раннее начало работ, выходящих из начального события 1
всегда равно нулю.
Сетевой график
График движения
людских ресурсов
Рекомендации
по технологии производства ЭМР должны
включать краткие сведения об основных принятых технологических решениях по всем
видам работ, представленных в графиках производства ЭМР. При этом надо
учитывать, что работы на объекте выполняются в две стадии.
На первой стадии
производства следующие работы: монтируются металлоконструкции для установки
электрооборудования и кабельные металлоконструкции; прокладываются внутренний и
наружный контуры заземления или используются железобетонные фундаменты здания в
качестве естественных заземлителей; монтируется трубная разводка для
электропроводок из пластмассовых или стальных труб либо скрыто (в полу, каналах
и пустотах), либо открытого (по элементам конструкций зданий и сооружений);
устанавливается скрытая проводка проводом АППВ подслоем штукатурки, в штрабах,
каналах и пустотах; монтируется троллеи и подъемно 
транспортное
оборудование мостовых кранов, кран 
блок, тельферов и
электроталей; монтируется электроосветительные установки при условии
обеспечения их сохранности соответствующими службами генподрядчика и заказчика.
На первой стадии
рекомендуется также сооружение объектов электроснабжения: воздушных и кабельных
линий электропередачи, гибких и жестких симметричных токопроводов напряжением 6

35 кВ;
распределительных высоковольтных устройств; трансформаторных подстанций.
На второй стадии
выполняются работы по монтажу низковольтных комплектных устройств НКУ,
шинопроводов, отдельно стоящей пусковой аппаратуры; затягиваются в трубы и
прокладываются по кабельным конструкциям, лоткам и в коробках провода и кабели,
которые разделываются, оконцовываются и подключаются на клеммники и зажимы
электроприемников.
7. Технологическая карта
электромонтажных работ
Рекомендуется разработка
технологических карт по следующим видам ЭМР, включенных в перечень работ на
проектируемом объекте:
· обслуживание асинхронных электродвигателей;
· замена
предохранителей;
· замена
проводки;
· наладка
станка
Контроль
качества. Перечисляются требования,
предъявляемые при приеме под монтаж электрооборудования и материалов,
получаемых от заказчика, контейнеров с материалами, металлоконструкциями и
блоками, получаемых из УКСТ и МЭЗ. Приводятся основные требования, по которым
оценивается строительная готовность зданий, помещений РУ, ТП, КТП, ОРУ, траншей
эстакад и других сооружений при приеме их под монтаж.
Технология
выполнения работ. Технологический процесс
производства ЭМР излагается пооперационно со строгим соблюдением последовательности
выполнения работ, описанием электрооборудования, инструмента для выполнения
каждой операции.
Нормокомплект
механизмов, инструментов и приспособлений все
инструменты, механизмы, приспособления и средства сводятся в единый
нормокомплект, необходимый для производства данного вида работ.
Оценка
качества работ. Перечисляются
требования, предъявляемые к оценке качества выполнения работ, согласно
положениям комплексной системы управления качеством электромонтажных работ
(КСУК ЭМР), а также основные требования к проведению операционного и
инспекционного контроля качества ЭМР.
Технико-экономические
показатели. Приводится состав исполнителей, их разряды и укрупненная норма
трудовых затрат (в человеко
днях) и расценок (в
рублях) на 1000 руб. сметной стоимости с указанием суммы зарплаты. Составляется
на основании расчета в экономической части проекта и нормативных данных.
Технологическая карта на
монтаж концевой заделки типа КВТп
1
|
Вид работ, операций
|
Описание технологического процесса
|
Механизмы, инструмент, приспособления
|
|
|
|
|
Вводной контроль качества
|
Проверить комплектность набора термоусаживаемых изделий, деталей
и материалов, необходимых при разделке конца кабеля и пайки провода
заземления. Выполнить внешний осмотр перчаток, трубок и манжет с целью
выявления трещин.
|
|
Технология выполнения
работ по операциям После разделки жил концов кабеля на них
одевается изолирующая манжета и сдвигается вниз к оболочке кабеля. Разделанный
конец кабеля обезжиривается, ступени оболочки и брони зачищаются до блеска.
Термоусаживаемые трубки одевают на каждую жилу кабеля и усаживают их, начиная
от корешка заделки, с помощью равномерного обогрева пламенем газовой горелки
или электрическим феном; пламя горелки должно быть размытым, желтого цвета.
Оболочку кабеля нагревают горелкой до 60  сближают концы жил и
надевают перчатку.
Жилы разводят и, начиная
от середины, усаживают перчатку на оболочку кабеля, затем на изолированные
трубками жилы.Ножницы секторные НС; бронерезка; нож НКА
Кардощетка
НСП  1 м
НСП  1 м
|
НСМ  1 м
|
|
Трубки
на концах жил вместе с изоляцией удаляют на длину цилиндрической части
наконечников и на каждую жилу одевают бандажирующие манжеты и сдвигают вниз к
корешку заделки. Оконцевание алюминиевых жил выполняют опрессовкой с
применением наконечников по ГОСТ 9581  80.
Цилиндрическую часть
наконечников подогревают до 60  , надвигают на них
манжеты и усаживают их, при усадке необходимо следить за расплавлением клея.
Оболочка кабеля в месте
пайки провода заземления защищается от коррозии ранее надетой манжетой. Манжета
надвигается на оболочку кабеля и участок перчатки длиной не менее 30 мм,
производится усадка.
ПГЭ  20; комплект НИСО
НСП  1 м
Состав нормокомплекта Набор
НКИ  3 инструментов и
приспособлений для кабельных работ.
Набор НСП  1 м принадлежностей для
пропановоздушной пайки.
Пресс ПГЭ  20 гидравлический с
электроприводом.
Комплект матриц и
пуансонов типа НИСО. Нормокомплект размещается в двухосном прицепе.
Техника безопасности Монтаж
производится с соблюдением общих правил техники безопасности и противопожарной
безопасности в соответствии с требованиями СНиП 111  4  80.
Запрещается работать с
зажженной горелкой при обезжиривании бензином изоляции жил кабеля.
Оценка качества работ По
периметру перчатки, усаженной на оболочку и манжет должен быть виден
выступивший из под них расплавленный
клей.
Трубки, перчатка и
манжеты должны плотно облегать оболочку и жилы кабеля, не иметь морщин и
вздутий.
При обнаружении неполной
усадки операцию проводят повторно.
|
|
|
|
|
Технико-экономические показатели
|
Состав звена: электромонтажник 4 разряда (2 человек)
электромонтажник 3 разряда (2 человек) Норма трудовых затрат и расценок:
трудозатраты и зарплата.
|
|
Технологические
карты на производство пусконаладочных работ могут быть разработаны по следующим
видам работ:
. Испытания и
проверка силовых трансформаторов: испытание изоляции; измерение сопротивления
обмоток постоянному току; проверка коэффициента трансформации; измерение тока и
потерь холостого хода; проверка работы переключающих устройств; фазировка
трансформаторов; включение трансформаторов под напряжение.
. Испытания
электрооборудования распредустройств: испытания вводов и изоляторов; проверка
масляных выключателей; измерение сопротивления; определение скоростных и
временных характеристик; испытание вторичных цепей; испытания измерительных
трансформаторов.
. Испытания силовых
кабелей; высоковольтные испытания; прожигании кабеля, не выдержавшего
испытаний, отыскание мест повреждения на кабеле методом петли, импульсным,
индукционным или акустическим методами, методом колебательного разряда.
. Проверка релейной
защиты, схем управления, автоматизации и сигнализации подстанций: проверка
расчета установок всех защит; настройка реле прямого действия; настройка реле
косвенного действия; регулировка тепловых реле и реле напряжения; настройка
реле времени; наладка промежуточных и указательных реле; проверка аппаратов
схемы управления; проверка устройств оперативного тока; включение подстанции под
напряжение.
5. Проверка величины
защитного заземления приборами МС  08,
М  416, Ф 4103.
. Измерение сопротивления
петли «фаза  нуль».
. Наладка асинхронных
электродвигателей.
. Наладка синхронных
электродвигателей.
. Наладка тиристорных
преобразователей.
. Наладка логических
схем с проверкой на функционирование.
. Наладка
микропроцессоров и микроЭВМ: расшифровка и проверка управляющей программы;
анализ информации, записанной по командам, в которых были сбои; выделение
неисправных магистралей или блоков; определение неисправных цепей; составление
цепи потока информации, в которой произошел сбой; контрольные измерения для
нахождения дефектного узла.
Технологическая карта на
производство пусконаладочных работ силового трансформатора ТМЗ  1000 на напряжение 10
кВ
|
Наименование работ
|
Описание технологического процесса
|
Приборы, приспособления
|
|
Нормативная документация
|
Правила устройства электроустановок. Справочник по наладке
электрооборудования промышленных предприятий. СНиП 3.05.06  85.
|
|
Подготовительные
мероприятия Изучается электрическая часть проекта и техническая
документация завода  изготовителя.
Согласовывается график
производства работ.
|
подготавливается нормокомплект приборов, приспособлений и
защитных средств.
|
|
|
|
Технология выполнения работ
|
Испытание изоляции. Измерение сопротивления обмоток постоянному
току. Измеряются междуфазные сопротивления на всех обмотках трансформатора.
Результаты измерений не должны отличаться более чем на 2  от
сопротивления, указанного в паспорте заводскихМост постоянного тока Р333
|
|
Производится
методом фазометра. Токовую обмотку однофазного фазометра подключают через
реостат к зажимам одной из обмоток, а обмотку напряжения  к одноименным зажимам
другой обмотки испытуемого трансформатора. Затем к одной из обмоток
трансформатора производятся напряжение, в результате чего фазометр показывает
угол сдвига между векторными напряжениями обмоток.
|
При определении группы соединения трансформатора производят не
менее двух измерений.Фазометр Д120, реостат
|
|
|
|
Контроль качества пусконаладочных работ
|
Включение трансформатора. Поставить трансформатор под напряжение
разрешается в том случае, если результаты всех измерений и испытаний
удовлетворяют нормам. При опробовании трансформатора все устройства релейной
защиты должны действовать на отключение. Первое включение производится на
время, достаточное для наблюдения за его состоянием после этого выполняется
три включения трансформатора на номинальное напряжение в режиме холостого
хода для проверки отстройки максимальной токовой защиты от бросков
намагничивающего тока.
|
|
|
Техника безопасности
|
Работы по испытанию трансформаторов должны производиться
бригадой наладчиков не менее двух человек. Бригадир должен иметь
квалификационную группу не ниже 5, остальные не ниже 3.
|
|
|
Все выводы силовых трансформаторов на время производства работ
до подачи рабочего напряжения должны быть закорочены и надежно заземлены.
Предохранители в цепях контроля и управления должны быть сняты, на месте их
установки вывешивают знак безопасности «Не включать. Работают люди».
|
|
Заключение
В период
прохождения производственной практики на предприятии ОАО «УЭХК» цех 101 в
составе бригады были произведены работы:
· Капитальный ремонт масляных выключателей типа МГГ-10
· Текущий
ремонт линейных разъединителей типа РВРЗ-10-4000
· Изготовление
металлоконструкций для ЭГВ-220кВ
· Текущий
ремонт ЭГВ-110кВ
· Утилизация
демонтированного оборудования
· Замена
масла в РПН в АТ-4
· Текущий
ремонт автотрансформаторов АТДЦТН-63000
· Ремонт
освещения в РУ-10кВ
· Текущий
ремонт шинных разъединителей на ОРУ 110кВ 1,2 СШ
· Текущий
ремонт масляных выключателей МВУ-220кВ
· Текущий
ремонт электродвигателей обдува, масляных насосов и ШАОТ автотрансформаторов
АТДЦТН-63000.
В отчете по
производственной практике был произведен расчет электродвигателей, выбран
следующий двигатель: асинхронный электродвигатель 4A200L2Y3
( =30кВт);
При расчете
технико-экономических показателей рассчитана себестоимость электрооборудования
компрессорной установки (Q=3,5м3/мин), которая составила 33351,15
руб.
Литература
1. Зимин Е.В.,
Преображенский В.И., Чувашов И.И. Электрооборудование промышленных предприятий
и установок. - М.: Энергоиздат, 2009.-550 с.
. Кнорринг Г.М., Фадин
И.М., Сидоров В.Н. Справочная книга для проектирования электрического
освещения. - М.: Энергоатомиздат, 2008.-328 с.
. Черкасский В.М.
Насосы, вентиляторы, компрессоры - М.: Энергоатомиздат, 2010.-462 с.
. Правила устройства
электроустановок МЭ и Э СССР.-М: Атомиздат. 2008. - 928 с.
. Фотиев М.М
Электропривод и электрооборудование металлургических цехов-М.: Металлургия,
2010.-350 с.
. Ашев И.И. Справочник
по электротехнике и электрооборудованию - М.: Высшая школа, 2010.-255 с.
. Ашев И.И. Электротехнический
справочник - М.: Радиосорт, 2010.-384 с.
. Белорусов Н.И., Саакян
А.Е., Яковлева А.И. Электрические кабели, провода и шнуры справочник - М.:
Энергоиздат, 2010.-427 с.
. Чипкин М.Г., Сандлер
А.С. Общий курс электропривода - М.: Энергоиздат, 2009.-575 с.
. Правила устройства
электроустановок - сибирское университетское издательство. Новосибирск,
2008.-853 с.
Похожие работы на - Компрессорные установки
|