Оценка целесообразности перевода подвижного состава ОАО 'Ханты-Мансийское автотранспортное предприятие' на газовое топливо и разработка перечня технических и организационных работ

  • Вид работы:
    Дипломная (ВКР)
  • Предмет:
    Транспорт, грузоперевозки
  • Язык:
    Русский
    ,
    Формат файла:
    MS Word
    771 Кб
  • Опубликовано:
    2015-06-14
Вы можете узнать стоимость помощи в написании студенческой работы.
Помощь в написании работы, которую точно примут!

Оценка целесообразности перевода подвижного состава ОАО 'Ханты-Мансийское автотранспортное предприятие' на газовое топливо и разработка перечня технических и организационных работ

МИНОБРНАУКИ РОССИИ

Федеральное государственное бюджетное образовательное учреждение

высшего профессионального образования

"Югорский государственный университет"

Политехнический институт

Кафедра Автомобильного транспорта




Выпускная квалификационная работа на тему

"Оценка целесообразности перевода подвижного состава ОАО "Ханты-Мансийское автотранспортное предприятие" на газовое топливо и разработка перечня технических и организационных работ"


Студент группы 5390

Генюк Никита Андреевич

Научный руководитель к. т. н., доцент

Горгоц Константин Георгиевич





Ханты-Мансийск 2014

Содержание

 

Введение

Глава 1. Исследовательская часть

1.1 Обзор основных видов топлив современных авто

1.2 Технико-эксплуатационные показатели транспортных средств, работающих на КПГ

1.3 Анализ опыта перевода автотранспорта на газовое топливо за рубежом

1.4 Программы и законодательные документы Российской Федерации, стимулирующие перевод автотранспорта на газовое топливо

1.5 Региональное стимулирование перевода автотранспорта на газовое топливо в ХМАО - Югре

1.6 Основные проблемы и тенденции развития общественного транспорта в ХМАО - Югре

Глава 2. Характеристика исследуемого предприятия для реализации проекта

2.1 Характеристика ОАО "Ханты-Мансийское автотранспортное предприятие"

2.2 Подвижной состав ОАО "Ханты-Мансийское автотранспортное предприятие" по состоянию на 03.02.2014 г.

2.3 Производственно-техническая база ОАО "Ханты-Мансийское АТП"

Глава 3. Организационная часть

3.1 Определение видов и объемов организационных работ по переводу подвижного состава городского автобусного парка предприятия ОАО "Ханты-Мансийское автотранспортное предприятие" на газовое топливо

3.2 Определение видов и объемов технических работ по переводу подвижного состава городского автобусного парка предприятия ОАО "Ханты-Мансийское автотранспортное предприятие" на газовое топливо

3.3 Основные требования к производственной базе по ТО и ТР газобаллонных транспортных средств

3.4 Операции технического обслуживания и ремонта для транспортных средств, работающих на КПГ

Глава 4. Экономическая часть

4.1 Расчёт стоимости основных фондов и амортизации

4.2 Расчёт заработной платы

4.3 Расчет затрат предприятия

4.3.1 Расчёт затрат на электроэнергию

4.3.2 Расчёт затрат на воду

4.3.3 Расчет затрат на отопление участка

4.3.4 Расчёт затрат на материалы и инструменты

4.3.5 Прочие расходы

4.4 Расчет себестоимости

4.5 Оценка экономического эффекта от перевода подвижного состава ОАО "Ханты-Мансийского автотранспортного предприятие" на газовое топливо

4.6 Рентабельность проекта

Глава 5. Обеспечение безопасности жизнедеятельности

5.1 Требования техники безопасности при эксплуатации газобаллонных автомобилей работающих на КПГ

5.2 Оценка экологического эффекта от перевода подвижного состава ОАО "Ханты-Мансийского автотранспортного предприятие" на газовое топливо

Заключение

Список использованных источников

Введение

Актуальность данного вопроса обусловлена, в первую очередь, ухудшением экологических показателей в регионе из-за увеличения количества автотранспорта, а так же повышение стоимости топлива и как следствие затрат на эксплуатацию транспортных средств. Так же стоит учитывать государственное и региональное форсирование проектов по переводу автотранспорта на газовое топливо, выраженное в субсидировании для их реализации.

Переход на альтернативное топливо - природный газ, является шагом к более экологически чистому и дешёвому топливу.

Объект исследования: перевод подвижного состава ОАО "Ханты-Мансийского автотранспортного предприятия" на природный газ.

Предметом исследования: разработка перечня необходимых видов технических и организационных работ для ОАО "Ханты-Мансийского автотранспортного предприятия".

Гипотеза исследования: финансовая возможность предприятия для реализации проекта.

В процессе исследования эффективности эксплуатации транспортных средств работающих на газобаллоном оборудовании перевод будет эффективным, если будут выявлены и реализуются следующие условия:

.        Соответствие площадки для реализации участка по обслуживаю газобаллонной аппаратуры;

2.      Соответствие физических и экономических возможностей для реализации проекта;

.        Модернизация процесса технического обслуживания и текущего ремонта, подбора современного оборудования для обслуживания всей газобаллонной периферии, способствующего совершенствованию ТО и ТР.

В связи с вышесказанным необходимо выполнить следующие задачи:

подвижной состав газовое топливо

1.      Изучить процесс ТО и ТР на предприятии ОАО "Ханты-Мансийское АТП" и выполнить условия способствующие совершенствованию ТО и ТР;

2.      Разработать технологический процесс обслуживания, ремонта и стоянки подвижного состава работающего на природном газе.

Нами были использованы следующие методы исследования:

.        Проведен анализ литературы, интернет ресурсов и иных источников при выборе качественного оборудования для участка по обслуживанию газобаллонного оборудования, отвечающего современным требованиям;

2.      Проведён анализ представленного производителями модельного ряда низкопольных городских автобусов различных марок для выбора наилучшего варианта соответствующего условиям проекта;

.        Анализ документации предприятия и подвижного состава ОАО "Ханты-Мансийское АТП";

.        Математической статистики и расчета;

.        Изучение проектов зданий для участка ГБО.

Глава 1. Исследовательская часть

1.1 Обзор основных видов топлив современных авто


Начало применению газа как моторного топлива было положено более 150 лет назад, когда бельгиец Этьен Ленуар создал двигатель внутреннего сгорания, работавший на светильном газе. Особой популярности этот вид топлива не получил. Последовавший вскоре рост добычи нефти и удешевление продуктов ее переработки, а также создание более совершенных двигателей сделали бензин лидером топливного рынка. Вновь интерес к газомоторному топливу возник в первой половине XX века.

Когда были открыты крупнейшие запасы углеводородов Западной Сибири - страна вступила в эпоху нефтяного изобилия, внимание к программе создания газобаллонного транспорта ослабло, хотя работы продолжались. В 80-е годы всерьез заговорили об экономии, и на газ снова обратили внимание. К 1985 году вышли три постановления Совмина о массовом переводе крупных потребителей топлива на газ. За пять следующих лет были построены около 500 автомобильных газонаполнительных компрессорных станций, на КПГ переведено до 0,5 млн. единиц автотранспорта. Координацией работы занимался межведомственный совет при Министерстве газовой промышленности под председательством Виктора Черномырдина.

Начавшаяся в 90-е годы приватизация привела к исчезновению крупных автохозяйств; в частные руки перешла значительная часть муниципального транспорта. И хотя в это же время отмечалось падение добычи нефти (с 624 млн. т в 1988 г. до 281 млн. т в 1997 г.), из-за сокращения количества потребителей дефицит нефтепродуктов не возник.

Основные виды топлива для автомобилей на данный момент - продукты переработки нефти - бензины и дизельные топлива. Они представляют собой смеси углеводородов и присадок, предназначенных для улучшения их эксплуатационных свойств. В состав бензинов входят углеводороды, выкипающие при температуре от 35 до 200 ºС, а в состав дизельных топлив - углеводороды, выкипающие в пределах 180 до 360 ºС [1].

Бензины (в силу своих физико-химических свойств) применяются в двигателях с принудительным зажиганием. Более тяжелые дизельные топлива вследствие лучшей самовоспламеняемости применяются в двигателях с воспламенением от сжатия, т.е. дизелях.

В результате бензин и дизтопливо сохранили рыночные позиции. Новый подъем рынка газомоторного топлива в России начался с 1998 года, когда резко увеличился спрос на пропано-бутановую смесь.

Газ как моторное топливо представлен двумя основными разновидностями - компримированный природный газ (КПГ), который поступает на специальные заправки - АГНКС - по газопроводам, и сжиженный углеводородный газ (СУГ). Первый является метаном, а второй - смесью пропана и бутана, продуктом переработки попутного нефтяного газа (ПНГ). Исторически первым распространение получил пропан-бутан. Его преимущество в том, что он легко сжижается при обычной температуре при давлении всего 10-15 атмосфер. При этом для его перевозки достаточно стального баллона с толщиной стенок всего 4-5 мм. С метаном сложнее. Сжижать его можно только при низких температурах, порядка минус 160 градусов по Цельсию. Соответствующие технологии сжижения и "разжижения" недешевы. Метан можно также сжимать. Однако чтобы количество сжатого газа по объему было хотя бы примерно сопоставимо со сжиженной пропан-бутановой смесью, сжаться он должен до 200-250 атмосфер. Поэтому для перевозки компримированного метана нужны гораздо более прочные и тяжелые баллоны. У метановых установок более высокие требования и к безопасности. Поэтому чаще всего на легковые автомобили устанавливают пропановое оборудование.

Обладая пятью основными качествами, присущими только ему, природный газ как моторное топливо утверждается в XXI веке в качестве дополнительного топлива на транспорте, помимо нефти и ее производных.

Долговременные запасы топлива, имеющегося в больших количествах, дают возможность диверсифицировать его поставки.

Цена бензина растёт с каждым годом, а поиски альтернативных видов топлива всё ещё ведутся. И природным газом, и синтезированными газами и жидкостями, например - спиртом, который получают из самого разного сырья: от тростника до апельсиновых корок.

Стоит также уточнить, что все эти виды топлива менее опасны для окружающей среды, чем бензин.

Исследования опровергли устоявшееся мнение, что использование газа вместо бензина - вынужденная мера. Газовое топливо сгорает полнее, поэтому концентрация окиси углерода в выхлопе газового двигателя в несколько раз меньше.

Автомобиль на бензине выбрасывает в атмосферу сернистый газ, который образуется от сгорания сернистых компонентов топлива, и тетраэтилсвинец. В природном газе серы, как правило, нет, а поэтому в выхлопах газового двигателя нет ни сернистого газа, ни соединений свинца.

В отработанных газах бензинового двигателя из-за неполного сгорания топлива содержится и окись углерода (СО) - токсичное для человека вещество.

Главное преимущество природного газа - экологическое. Отработавшие газы двигателей, работающие на природном газе, содержат низкие уровни вредных веществ. По составу природный газ на 90-98% состоит из метана - нетоксичного углеводорода, который при сгорании дает, главным образом, диоксид углерода и воду. Двигатель на природном газе производит примерно на 65% меньше выбросов оксидов азота и на 80% меньше выбросов твердых частиц, чем дизельный двигатель, оборудованный окисляющим каталитическим нейтрализатором.

Работа на природном газе предполагает и ряд других преимуществ. Он фактически не содержит серы, которая влияет на здоровье людей и окисляет почву и воду, а также разрушает фасады зданий. Если брать все в комплексе, то отработавшие газы двигателя, работающего на природном газе, по наиболее вредным компонентам в несколько раз менее опасны, чем бензиновых или дизельных двигателей. Кроме того, автомобили на природном газе являются бесшумными и меньше вибрируют, чем с дизельными и бензиновыми двигателями.

И газовые, и бензиновые автомобили выбрасывают в атмосферу одинаковое количество углеводородов. Для здоровья человека опасны не сами углеводороды, а продукты их окисления. Двигатель, работающий на бензине, выбрасывает сравнительно легко окисляющиеся вещества - этил и этилен, а газовый двигатель - метан, который из всех предельных углеводородов наиболее устойчив к окислению. Поэтому углеводородный выброс газового автомобиля менее опасен.

Газ как моторное топливо не только не уступает бензину, но и превосходит его по своим свойствам. Двигатель внутреннего сгорания автомобиля работает по классическому четырехтактному циклу. Газообразная смесь воздуха и топлива всасывается в цилиндр двигателя, сжимается поршнем, воспламеняется искрой, давит на поршень и двигает шатунный механизм, а затем выбрасывается из цилиндра.

Чем сильнее можно сжать топливо без возникновения детонации, тем больше мощность двигателя. Антидетонационную способность топлива определяют октановым числом. Чем оно выше, тем лучше топливо. Среднее октановое число природного газа - 105 - недостижимо для любых марок бензина. Как известно, повсеместно используется АИ 92-93, 95 или 98, что и соответствует октановому числу.

Двигатель внутреннего сгорания работает на смеси воздуха и распыленного топлива. Для воспламенения смеси нужна определенная концентрация топлива. Газ, в сравнении с бензином, горит при меньших концентрациях, т.е. при более "бедных" смесях. В случае повышения концентрации газа и обогащения смеси можно добиться увеличения мощности двигателя. Обедняя смесь, наоборот, можно понизить мощность. Возникает возможность изменением состава смеси регулировать мощность двигателя: газ как топливо значительно "послушнее" бензина.

Эксплуатация показала, что автомобили на газовом топливе более выносливы - в полтора-два раза дольше работают без ремонта. При сгорании газа образуется меньше твердых частиц и золы, вызывающих повышенный износ цилиндров и поршней двигателя. Кроме того, масляная пленка дольше держится на металлических поверхностях - ее не смывает жидкое топливо, и, наконец, газ практически не вызывает коррозию металла. Здесь же стоит упомянуть о самом интервале замены масла и свечей. При использовании в качестве топлива газа интервал увеличивается в 1,5 раза.

В переходе на газовое топливо есть свои сложности. Так, например, плотность природного метана в тысячу раз ниже плотности бензина. Поэтому, если заправлять автомобиль <#"803711.files/image001.gif">

Рисунок 1 - Распределение количества транспортных средств на газовом топливе в мире

Ярким примером служит Франция. Половина городов с населением более 200 000 жителей использует в качестве моторного топлива природный газ, т.е. более 30 городов, таких как Безансон, Бордо, Дюнкерк, Гренобль, Манс, Лиль, Монпелье, Нанси, Нант, Ницца, Париж, Пуатье, Страсбург, Тулуза и других. Таким образом, в настоящее время во Франции эксплуатируются 700 автобусов из общего числа планируемых 1 400 единиц, каждый третий новый автобус работает на природном газе [4].

Значительные перспективы развития, как в направлении обновления автобусного парка, так и уборочных машин, а также парка служебных машин малой грузоподъемности.

Природный газ является экономичным топливом. Во Франции экономическое равновесие заправочной станции по отношению к дизелю достигается, начиная с 500 000 м3 (n) природного газа, что в среднем эквивалентно 20 автобусам. Кроме того, природный газ является более конкурентоспособным моторным топливом, чем традиционные виды (не учитывая стоимость автобусов и обустройства депо).

Существует несколько технических решений заправки машин природным газом:

-       заправка на месте: автобус заправляется за несколько часов ночью, пока стоит на стоянке. Этот вариант, как правило, предпочтителен, т.к. время заправки воспринимается пользователем как несколько секунд (время подключения и отключения автобуса);

-       заправка из колонки, которая может быть осуществлена за пять-шесть минут.

Италия адоптирует Европу для газа с более чем 11% новых пассажирских авто на КПГ. По сравнению с США (0,01%) где было продано несколько десятков автомобилей марки Honda. Правительство Италии стимулирует и продвигает натуральный газ открыто и косвенно. Выделяются субсидии на приобретение автомобилей на КПГ и такие крупные концерны как Fiat при обмене старого автомобиля на новый возмещает €700 или $945 для расширения своего рынка газомоторных автомобилей. Косвенно повышаются налоги на другие виды топлива, что "благоприятно" влияет на газовый рынок. Италия имеет более 1300 заправочных станций, что на 40% больше чем в США (~900) и на 70% больше чем в России (~300).

Пакистан имеет богатые запасы данного вида топлива и не удивительно, что именно он возглавляет список с 80% по отношению ко всем транспортным средствам в стране. Более 2 миллионов газовых автомобилей, как результат политики государства по уменьшению импорта нефтяных видов топлив. Иран имеет схожий "путь газификации" [5].

В США остро стоит проблема инфраструктуры, как и в России, что замедляет темп внедрения газового топлива в различные отрасли, а в первую очередь - пассажироперевозок.

Индия, Таиланд, Малайзия и Сингапур сделали упор на общественный транспорт. При поддержке государства преимущественно городской автобусный парк и более 90% всего таксопарка были переведены на КПГ. Стимуляция посредством цены на топливо и налогами является схожей с другими странами.

Цена на газ и экологические проблемы задают тенденции развития этой сферы во всех странах. Каждый год Европа, Азия и Америка увеличивают число газовых автомобилей за счёт государственных программ и выгоды от эксплуатации для каждого потребителя, будь он частным или юридическим лицом представляющим корпорации [6].

1.4 Программы и законодательные документы Российской Федерации, стимулирующие перевод автотранспорта на газовое топливо


Существенным фактором, стимулирующим государства мирового сообщества к развитию рынка ГМТ, являются экологические проблемы. Вклад автотранспорта в загрязнение воздуха крупных городов и агломераций составляет от 50 до 90 % по всем видам загрязнений. Поэтому требования к снижению токсичности выпускных газов двигателей внутреннего сгорания транспортных средств постоянно возрастают - вводятся стандарты Евро-4 и Евро-5. Между тем перевод автомобилей на газомоторное топливо сокращает выбросы диоксида углерода (основной парниковый газ) на 13%, оксидов азота - на 15-20 %, в 8-10 раз снижает дымность отработанных газов и полностью исключает выбросы соединений свинца. По данным Минэнерго России, если взять бензин качества Евро-4 за эталон, то окажется, что по выбросам оксидов азота КПГ выигрывает почти в три раза, по СН - в 14 раз, по бензапирену - более чем в 16 раз, по саже - в 3 раза (в сравнении с соляркой - в 100 раз). Следовательно, по уровню выбросов вредных веществ в атмосферу сжатый природный газ уступает только электроэнергии. Хотя СУГ немного и отстает по экологическим параметрам, зато он позволяет решить проблему утилизации попутного нефтяного газа, который пока сжигается в факелах, хотя еще в январе 2009 года было подписано постановление "О мерах по стимулированию сокращения загрязнения атмосферного воздуха продуктами сжигания попутного нефтяного газа на факельных установках".

Правительством РФ по инициативе ОАО "Газпром" была учреждена Комиссия по использованию природного и сжиженного нефтяного газа в качестве моторного топлива. В 2003 г. такая же комиссия создана при Наблюдательном совете Российского газового общества. Эти две комиссии участвуют в разработке проектов законов по использованию природного газа как автомобильного топлива. До настоящего времени одной из главных причин, препятствующих распространению метана, как газового топлива является отсутствие соответствующей законодательной основы. Законопроект о применении природного газа как автомобильного топлива дважды отклонялся: в 1999 г. Президентом страны, в 2004 г. Правительством России.

Десятого июня 2012 года под председательством первого заместителя губернатора ХМАО - Югры А.М. Кима и генерального директора ООО "Газпром трансгаз Югорск" П.М. Созонова состоялось совещание "О развитии применения природного газа в качестве моторного топлива в Ханты-Мансийском автономном округе - Югре". В совещании приняли участие руководители муниципальных образований, а также предприятий ООО "Газпром трансгаз Югорск" и ОАО "Газпромнефть-Тюмень", ООО "НГТ-Холдинг" и ОАО "Северавтотранс". На совещании было отмечено:

-       преимущество компримированного природного газа перед традиционными видами моторных топлив;

-       отставание развития рынка газомоторного топлива в Российской Федерации относительного мирового;

-       основные причины, сдерживающие увеличение парка транспортных средств, работающих на метане;

-       наличие в ряде регионов РФ дополнительных нормативных актов местного значения, направленных на развитие газомоторного бизнеса;

-       основные факторы успешного развития использования природного газа в качестве моторного топлива в ХМАО - Югре.

Основными результатами совещания стали рекомендации по разработке:

-       окружной нормативно-правовой базы стимулирования применения природного газа в качестве моторного топлива на территории Ханты-Мансийского автономного округа - Югры;

-       концепции, определяющей развитие применения природного газа в качестве моторного топлива на территории Ханты-Мансийского автономного округа - Югры;

-       концепции развития сети автозаправочных станций и многотопливных автозаправочных станций на территории ХМАО - Югры.

Также было предложено Правительству ХМАО - Югры совместно с администрацией г. Югорска и администрацией г. Сургута рассмотреть возможность использования указанных городов в качестве "пилотных" площадок по приобретению и переоборудованию муниципального автотранспорта, работающего на газомоторном топливе [7].

Существуют определенные сложности, возникающие при сооружении газозаправочных станций в условиях городской застройки, связанные с длительностью сроков выделения и оформления земельных участков под строительство, а также с рядом положений Норм пожарной безопасности (НПБ III-98), непосредственно касающихся АГНКС и их отдельных систем. Несмотря на критику НПБ III-98 со стороны заинтересованных организаций, они являются базовым документом для органов пожарной охраны, согласующих проектную документацию на объекты производства ГМТ.

Вышеизложенное, по существу, замедляет развитие газозаправочной сети в России. В результате Россия, занимавшая в 1986-1990 гг. по объему производства и реализации КПГ первое место в мире (более 1,2 млрд. м³ в год), оказалась позади развитых и даже некоторых развивающихся стран.

При проектировании и строительстве объектов газомоторного бизнеса учитывается довольно значительное число государственных стандартов, строительных норм и правил, экологических норм, норм пожарной безопасности и других документов. Это подчеркивает необходимость разработки норм проектирования газозаправочных станций, в том числе в составе многотопливных. На предприятиях ОАО "Газпром" действуют Правила технической эксплуатации АГНКС, введенные в действие в 2003 г. Качество КПГ, отпускаемого потребителю, регламентируется Государственным стандартом, действующим с 2000 г., который устанавливает такие важнейшие показатели, как объемная теплота сгорания, влагосодержание, содержание серы и механических примесей, давление заправки. Проводится работа по приведению Государственного стандарта в соответствие с Европейским стандартом ISO на газомоторное топливо, что в перспективе должно обеспечить возможность беспрепятственного перемещения газовых автомобилей (NGV) на всем пространстве Евразии. В данное время ведется разработка Государственного стандарта на качество сжиженного природного газа взамен Технических условий 1987 г.

Требования к газо-топливному оборудованию на транспортных средствах достаточно четко изложены в соответствующих Правилах ЕЭК ООН (Европейской экономической комиссии Организации Объединенных Наций). В Техническом регламенте "О безопасности колесных транспортных средств" предусмотрено соблюдение требований Правил ЕЭК ООН в России.

Однако, несмотря на многочисленные разговоры о выгодности приобретения так называемых зеленых автомобилей, к которым можно отнести машины, работающие, в том числе и на газу, по данным консалтинговой компании Frost&Sullivan, на данный момент такие автомобили приобретают только 13% потребителей. Однако к 2015 г. Эксперты прогнозируют увеличение этой доли до 30%. Так, общий парк автотранспортных средств через четыре года должен составить 80 млн. и из них 53 - 55% будут приходиться на газовые машины.

В настоящее время подготовка Федерального закона о применении газомоторного топлива на транспорте поручена Комитету по энергетике Госдумы России.

Одним из значимых документов в области расширения применения газового топлива на автомобильном транспорте стала принятая Правительством РФ программа на 2012 год по выделению средств на субсидирование мероприятий субъектов РФ по закупке 2000 автобусов, работающих на газовом топливе, на условиях софинансирования из средств федерального бюджета в размере 30%. Однако только три субъекта РФ решили принять участие в данной программе. Руководство Ханты-Мансийского автономного округа при его значительном бюджете посчитало нецелесообразным участвовать в данной программе. Ямало-Ненецкий автономный округ и Тюменская область также не приняли участия в данном мероприятии.

Специалисты автомобильной промышленности считают одним из приоритетных направлений - совершенствование нормативно-правовой базы использования газовых видов топлива на транспортных средствах. В топливной отрасли назрела необходимость комплексной унификации действующих документов с целью их, приведения к современным требованиям, гармонизации с международными нормами, разумного сокращения количества и упрощения требований.

В Российской Федерации эксплуатация автомобилей оборудованных газовой аппаратурой осуществляется в соответствии с технико-эксплуатационными требованиями к газобаллонным автомобилям, автобусам, прицепам и предложениям по рациональной номенклатуре этих транспортных средств Р 3112199-0307-88, разработанными Государственным научно-исследовательским институтом автомобильного транспорта (НИИАТ) в соответствии с распоряжением Совета Министров СССР N 550-р от 23.03.88 и Совета Министров РСФСР N 387-р от 22.07.88 и заданием Министерства автомобильного транспорта РСФСР N ВЕ-14/764 от 26.06.88.

В последние годы, в связи с обостряющейся нехваткой нефти, разработаны и реализуются различные национальные программы по рациональному и экономному ее расходованию. Наиболее эффективным решением данной проблемы считается замещение нефтяного топлива альтернативным - сжиженным нефтяным или сжатым природным газом. В соответствии с принятыми в последнее время решениями Правительства РФ ведется работа по расширению номенклатуры и увеличению выпуска автомобилей и автобусов, работающих на газовом топливе.

Ресурсы нефтяного и в особенности природного газа достаточны для удовлетворения всех текущих и перспективных потребностей народного хозяйства РФ, включая значительный парк газобаллонных автомобилей. Российской промышленностью осуществляется комплексная работа по созданию структуры парка газобаллонных автомобилей и автобусов. Для обеспечения подвижного состава кондиционным газовым топливом разработаны соответствующие ГОСТы на автомобильные марки газового топлива.

Перевод определенной части парка подвижного состава на газовое топливо является одним из важнейших направлений решения энергетики автотранспорта.

При этом наиболее важным направлением совершенствования складывающейся структуры автомобильного парка является переход от транспортных средств средней грузоподъемности к транспортным средствам большой грузоподъемности, имеющим высокий абсолютный расход топлива нефтяного происхождения. Такие транспортные средства оснащаются дизельными двигателями, работающими по газодизельному циклу.

По прогнозам Министерства энергетики России, за период 2000-2020 годы внутреннее потребление моторного топлива должно вырасти с 61 до 99 млн. тонн в год. Энергетическая стратегия России предусматривает, что к 2020 году газовыми видами топлива должно быть заменено до 10-12 млн. тонн нефтепродуктов.

Цена на компримированный природный газ регулируется Постановлением Правительства РФ № 31 от 15.01.2003 г. "О неотложных мерах по расширению замещения моторных топлив природным газом", где предусмотрен размер цены природного газа не более 50 % от цены реализуемого в данном регионе бензина А-80, включая налог на добавленную стоимость.

Согласно оптимистичному прогнозу НП "Национальная газомоторная ассоциация", общая динамика развития парка машин к 2020 г. составит 58,5 млн. единиц, к 2030 г. - 85,4, по пессимистичному - в 2020 г. - 38,6 млн., к 2030 г. - 51,3. При этом прогноз потребления моторного топлива в России выглядит следующим образом: доля газовых видов моторного топлива в общем балансе к 2030 г. составит по 3% по сжатому природному газу и по сжиженному нефтяному газу. По результатам 2010 года уровень потребления компримированного природного газа составил 4 млн. т., к 2020 г. Должен достигнуть 20 млн. т., в 2030-м - 51 млн. т. Уровень использования сжиженного углеводородного газа в 2010 г. составил 15 млн. т, к 2020 г. достигнет 30 млн., в 2030 г. - 67 млн. т. По данным НП "Национальная газомоторная ассоциация" можно увидеть программу по сжатому природному газу в таблице 1:

Таблица 1 - Производственная программа по сжатому природному газу

Периоды проекта

2011 - 2015

2016 - 2020

2021 - 2025

2026 - 2030

Всего

Показатели

1

2

3

4

5

Потребление сжатого природного газа, млн. м³

2758

6560

12980

20200

42498

Новые ГБА, тыс.

134

210

460

410

1204

Новые баллоны (экв.50 л), тыс.

537

840

1840

1600

4817

Новые АГНКС

134

210

460

400

1204


Кроме того, сегмент КПГ является наиболее устойчивым к кризисным явлениям в российской экономике и наиболее динамичным в среднесрочной перспективе. В 2009 г., в связи со снижением деловой активности во время кризиса, российский рынок КПГ снизился на 1,1%, в то время как потребление бензина и пропан-бутана снизилось на 18% и 4% соответственно [8].

Таблица 2 - Возможные меры стимулирования Российского рынка на примере иностранных программ

Страна

Программа

Австралия, Великобритания, Канада, Малайзия, Япония

Выделение грантов и дотаций на приобретение автомобилей, работающих на природном газе, газобаллонного оборудования.

Великобритания, Италия, Чили, Китай

Нераспространение на автомобили, работающие на газе, запрета на въезд в природоохранные зоны.

Франция

Ограничения на использование углеводородных видов моторного топлива, за исключением муниципальных автобусов и мусороуборочных автомобилей.

Франция, Италия, Иран

Предоставление предприятиям, использующим компримированный природный газ, преимущественного права на получение муниципального заказа.

США

Обязательное приобретение бюджетными организациями газобаллонных автомобилей при обновлении автотранспортного парка.

Чехия

Действует нулевой налог для автотранспорта, работающего на метане. Государство выделяет субсидии на закупку "газовых" автобусов.


1.5 Региональное стимулирование перевода автотранспорта на газовое топливо в ХМАО - Югре

Субсидирование пассажирских перевозок позволяет компенсировать убытки и, соответственно, обеспечивать надежность и безопасность по основным социально значимым маршрутам. Тем не менее, объем выделяемых бюджетных средств недостаточен. Полученная прибыль от прочих видов деятельности автотранспортных предприятий не позволяет обеспечить развитие материальной базы. В результате автотранспортные предприятия не имеют возможности обновить основные фонды собственными силами без государственной поддержки.

Достижение поставленной цели и решение задач государственной программы предусмотрено посредством реализации комплекса мероприятий.

В рамках подпрограммы "Обеспечение деятельности органов государственной власти в сфере транспортного обслуживания населения и дорожного хозяйства" предусмотрено решение задачи "Осуществление функций по реализации единой государственной политики в сфере транспортного обслуживания населения и дорожной деятельности" посредством реализации следующих мероприятий:

.        Обеспечение деятельности Депдорхоза и транспорта Югры, совершенствование нормативного правового регулирования в сфере транспорта и дорожного хозяйства.

Одна из главных задач, которая стоит перед федеральными, региональными и муниципальными органами власти в сфере дорожного хозяйства и транспорта, - определить механизмы управления, которые позволят в полной мере реализовать государственную политику в указанной сфере. Для обеспечения устойчивого развития транспортного комплекса автономного округа потребуется внесение поправок в действующие и разработка новых проектов нормативных правовых актов в сфере транспорта и дорожного хозяйства, определяющих взаимодействие органов исполнительной власти, органов местного самоуправления и бизнес структур автономного округа.

.        Организация проведения общественной экспертизы проектов нормативных правовых актов, принимаемых органами государственной власти по вопросам транспорта и дорожного хозяйства.

Решение проблем эффективной организации дорожного движения и функционирования процесса перемещения людей и грузов по автомобильным дорогам, транспортного обслуживания населения требует урегулирования различных направлений деятельности, что может быть обеспечено проведением общественной экспертизы проектов нормативных правовых актов, принимаемых органами государственной власти автономного округа и затрагивающих сферу транспорта и дорожного хозяйства.

.        Организация внедрения новых эффективных материалов, техники, оборудования, технологий и инновационных подходов в транспортной инфраструктуре.

Развитие транспортной инфраструктуры и внедрение в этой области инновационных решений сегодня рассматривается как основной фактор развития экономики городов и районов автономного округа и региона в целом. В рамках данного мероприятия ключевыми задачами в применении инноваций является снижение применения ручного труда, повышение уровня механизации и уменьшение нагрузки на естественную среду. Инновации в транспортной инфраструктуре связаны с применением новых видов материалов и конструкций, в том числе композитных материалов, изделий и конструкций, обладающих особыми эксплуатационными характеристиками (высокая прочность, коррозийная стойкость, гидрофобность, легкость, тепло - и огнестойкость, устойчивость к агрессивным средам, звукопоглощение), которые определяют возможность применения таких материалов практически во всех отраслях экономики. Реализация таких мероприятий будет способствовать ускоренному развитию и дальнейшему совершенствованию сети автомобильных дорог общего пользования регионального и межмуниципального значения, повышению безопасности дорожного движения, сохранности существующей дорожной сети, позволит сократить транспортные издержки и повысить скорость и безопасность дорожного движения

.        Разработка плана мероприятий по переводу пассажирского автомобильного транспорта на газомоторное топливо.

В целях расширения использования природного газа в качестве моторного топлива необходима разработка и реализация комплекса мер, направленных на создание условий для развития газозаправочной инфраструктуры, а также стимулирование владельцев транспортных средств переоборудовать автотранспорт для работы на газовом топливе.

В рамках региональной подпрограммы "Автомобильный транспорт" планируется приобретение автобусов для пассажирских перевозок на межмуниципальных и пригородных маршрутах и приобретение автобусов работающих на газомоторном топливе.

Данное мероприятие направлено на повышение доступности и качества транспортных услуг для населения автономного округа, а также исполнения распоряжения Правительства Российской Федерации от 13 мая 2013 года № 767-р. Согласно указанному распоряжению органам государственной власти субъектов Российской Федерации поручена разработка комплекса мер, направленных на создание условий для доведения к 2020 году уровня использования природного газа в качестве моторного топлива на общественном автомобильном транспорте и транспорте дорожно-коммунальных служб: до 30% - в городах с численностью населения более 300 тыс. человек и до 10% в городах с численностью населения более 100 тыс. человек [9].

1.6 Основные проблемы и тенденции развития общественного транспорта в ХМАО - Югре

По состоянию на 1 января 2013 года в автономном округе зарегистрировано более 674 тыс. ед. автотранспорта, в том числе: легковых автомобилей - 478 тыс. ед., автобусов - 19 тыс. ед.; грузовых автомобилей - 122 тыс. ед. На 1000 жителей Югры приходится 311 легковых автомобилей, что превышает показатель в среднем по Российской Федерации на 20 %.

Перевозку пассажиров автомобильным транспортом выполняют 17 организаций автомобильного пассажирского транспорта и более 100 индивидуальных предпринимателей. Организации автомобильного пассажирского транспорта обеспечивают перевозки по 253 социально значимым маршрутам, в том числе по 142 городским и внутрирайонным и 111 межмуниципальным и пригородным маршрутам. Годовой пассажирооборот автомобильным транспортом составляет более 342 млн. пассажиро-километров, годовой объем перевозок пассажиров - более 41,3 млн. пассажиров.

Основными проблемами выполнения пассажирских перевозок автомобильным транспортом являются:

.        Высокий износ автобусного парка.

К концу 2013 года средний износ автобусов составит более 78 %, из них 313 автобусов большого класса с износом 100 %. Дальнейшее отставание темпов обновления автобусного парка от темпов их старения ведет к снижению качества и уровня безопасности перевозки пассажиров, массовому выходу транспорта из эксплуатации, при котором возможности автотранспортных организаций не обеспечат потребности населения в перевозках по социальным маршрутам.

.        Убыточность пассажирских перевозок на маршрутах с малым пассажиропотоком.

Финансово-хозяйственнаядеятельностьпредприятий, обеспечивающих пассажирские перевозки на социальных маршрутах в автономном округе, характеризуется убыточностью. Так, по итогам работы за 2013 год убытки по пассажирским перевозкам составили 1 863,2 млн. рублей. На величину себестоимости 1 поездки на городских маршрутах оказывают влияние два фактора: уровень затрат на 1 километр поездки на маршруте и уровень загрузки автобусов. Структура расходов по статьям затрат на 1 км пути представлена в диаграмме:

Рисунок 2 - Структура расходов по статьям затрат в среднем по городским перевозкам

Из представленной диаграммы видно, что в структуре себестоимости 1 километра на городских маршрутах, наибольший удельный вес занимают затраты по заработной плате водителей и кондукторов с отчислениями на социальные нужды, ГСМ и затраты на техническое обслуживание и ремонт, накладные расходы.

Следовательно, основной причиной высокой себестоимости проезда является низкая загрузка салона автобуса.

За период с 2012 по 2013 годы загрузка автобусов на городских маршрутах снизилась в 8 муниципальных образованиях. Снижение составляет от 1 % в Нефтеюганском районе до 85,8% в Когалыме.

В основном перевозка пассажиров на городских маршрутах осуществляется следующими марками автобусов: "ЛиАЗ", "МАЗ", "ПАЗ", полная загрузка которых составляет 117, 100, 55 человек соответственно.

На городских маршрутах работает 56% автобусов парка автотранспортных предприятий, из них 71,7% автобусы большого класса (МАЗ, ЛиАЗ), 25,3% среднего класса (ПАЗ) и 3% малого класса (Газель, Форд, Ивеко).

Фактически в 2013 году средняя загрузка салона по региональным предприятиям составила всего 17,2 % или 14,98 чел. на 1 рейс.

Динамика количества поездок на 1 человека в год общественным транспортом автобусами за 2012-2013 гг.

Таблица 3 - Динамика количества перевозок

Муниципальное образование

Население, тыс. чел.

Количество поездок на 1 человека, ед. /год



2011 год

2012 год

2013 год

г. Ханты-Мансийск

90,9

86,5

84,21

62,34


Исходя из количества перевезенных пассажиров автобусами на городских маршрутах, по данным анализируемых автотранспортных предприятий, в среднем на 1 жителя в 2012 году приходится 37,84 поездок в год. Эти показатели колеблются от 2 до 28 поездок в городах с населением 17 - 60 тыс. чел. до 62,34 поездок в городе Ханты-Мансийске. В крупных городах приходится порядка 46 - 71 поездок на одного жителя.

Таблица 4 - Средняя загрузка транспорта на городских маршрутах в расчете на 1 пассажира за 201-2013 год

Муниципальное образование/автотранспортное предприятие

Средняя протяженность рейса, км.

Перевезено пассажиров за 1 рейс, чел.

Количество пассажиров на 1 км пробега, чел.

г. Х-Мансийск ОАО Ханты-Мансийское АТП

15,74

46,01

2,92


Ниже представлена таблица основных статистических данных пассажирского транспорта осуществляемых Ханты-Мансийским автотранспортным предприятием.

Минимальное количество автобусов на линии составляет 35 единиц [10].

Таблица 5 - Анализ городских автобусных пассажироперевозок осуществляемых Ханты-Мансийским автотранспортным предприятием

№ п. п.

Номер маршрута

Количество автобусов на линии, ед.

Количество рейсов в день

Протяжённость маршрута, км.

Дневной пробег, км

1

1

5

34

23

789

2

2

1

12

14

163

3

3

1

6

21

126

4

4

3

12

23

277

5

5

16

70

44

3080

6

8

4

20

20

404

7

77

7

26

22

564

8

Дачный

1

5

250

268

Итог

38

185

11236

5671



Глава 2. Характеристика исследуемого предприятия для реализации проекта

2.1 Характеристика ОАО "Ханты-Мансийское автотранспортное предприятие"

 

ОАО "Ханты-Мансийское автотранспортное предприятие" было создано в августе 1955 года, открытое акционерное общество с 1992 года. Учредитель общества Департамент муниципальной собственности Ханты-Мансийского автономного округа.

Предприятие имеет следующий почтовый адрес:

626012 г. Ханты-Мансийск, ул. Мира 102. Тел.8 (346) 332195.

Целью создания ОАО "Ханты - Мансийское АТП" является извлечение прибыли посредством осуществления предпринимательской деятельности. Основными видами деятельности Общества являются:

-       перевозка пассажиров;

-       перевозка грузов;

-       перевозка опасных и негабаритных грузов.

Управление Обществом осуществляется:

-       общим собранием участников;

-       единоличным исполнительным органом - Управляющим.

Высшим органом управления Обществом является собрание участников. Управляющий предприятием ОАО "Ханты - Мансийское АТП" является Кобыльник В.И. Предприятие зарегистрировано распоряжением Главы города Ханты - Мансийска № 407 - рг. от 10.08.1955 г. и действует в соответствии с Гражданским кодексом Российской Федерации, а также на основании действующих федеральных законов и иных правовых актов, а также в соответствии с Уставом, решениями органов управления, принятыми в пределах их компетенции и в порядке, предусмотренном законом и Уставом. Размер уставного капитала составляет 5882 тыс. руб. Основным видом деятельности предприятия является перевозка пассажиров на регулярных автобусных маршрутах.

Автотранспортное предприятие расположено на охраняемой территории общей площадью 3257 гектаров и полезной площадью зданий 8250 квадратных метров. На территории размещены: административно-бытовой корпус, здание ремонтно-механических мастерских, производственный корпус, мойка автомобилей, два склада материальных ценностей, теплая стоянка для автобусов, теплая стоянка на 12 микроавтобусов, павильон автостанции, котельная, три пожарных резервуара запаса воды с насосной станцией, трансформаторная подстанция, открытая стоянка автомобилей с линией электроподогрева.

В состав автотранспортного предприятия входит авторемонтное подразделение включающее: аккумуляторный участок, агрегатный участок, моторный участок, участок по ремонту электрооборудования, зона ТР, зона ТО-1, ТО-2, пост смазки автомобиля, центральный склад и прочие участки и линии предприятия.

ОАО "Ханты - Мансийское автотранспортное предприятие" работает по шестидневной рабочей неделе. Рабочий день длится с 8: 00 до 17: 00 часов, с перерывом на обед с 12: 00 до 13: 00 часов.

В АТП имеется отдел охраны труда и безопасности дорожного движения, этими отделами разработаны должностные инструкции по профессиям, видам работ и инструкции при производстве работ. При приеме работника проводится инструктаж по безопасности. Организация труда и заработной платы в Обществе осуществляется по индивидуальной и коллективной форме труда, которая направлена на создание нормальных условий, обеспечивающих рациональную расстановку работающих и эффективное использование рабочей силы, машин и механизмов, материально-технических ресурсов.

Оплата труда работников Общества производилась на основании Единой тарифной сетки. Оплата труда водительского состава, рабочих РММ производилась по часовым тарифным ставкам.

Структура ОАО "Ханты-Мансийское АТП" приведена на рисунке 3.

Рисунок 3 - Структура открытого акционерного общества "Ханты-Мансийское АТП"

2.2 Подвижной состав ОАО "Ханты-Мансийское автотранспортное предприятие" по состоянию на 03.02.2014 г.


В Ханты-Мансийском АТП в эксплуатации находятся автомобили и автобусы различных марок и модификаций. Подвижной состав парка по маркам приведён в таблице 6.

Таблица 6 - Подвижной состав ОАО "Ханты-Мансийское АТП" по состоянию на 03.02.2014 г

№ п/п

Марка т/с

Год выпуска

Гос. №

№ п/п

Марка т/с

Год выпуска

Гос. №

1

ГАЗ-32213

2004

Вв 076 86

62

УРАЛ-3255-0010-41

2011

а481ч86

2

ГАЗ-32213

2009

ва 982 86

63

ГолАЗ 52911-0000011

2009

вв 275 86

3

ГАЗ-322130

1996

т778вм86

64

ГолАЗ 529112-0000011


вв 294 86

4

2005

ат 892 86

65



вв 295 86

5



ас 028 86

66

ГолАЗ 529112-0000011

2010

вв 331 86

6

КАМАЗ-4310

1988

м911ар86

67



вв 332 86

7

КАВЗ-422430

2003

е513не86

68



вв 334 86

8

УРАЛ-32551-0010-01

2005

ат 907 86

69



вв 335 86

9

УРАЛ-3255-0010-41

2007

ва 538 86

70

Кавз 4239-00

2009

вв 276 86

10

Автолайн 32361Ford Transit

2007

ва 506 86

71

Mercedes - Benz О 560

2000

т931ур86

11



ва 507 86

72

Mercedes - Benz О RHD

2005

вв 001 86

12



ва 508 86

73

Neoplan tourliner Р21

2007

ва 646 86

13



ва 999 86

74

Volvo - B10M

2004

вв 048 86

14

IVECO Daily-32402

2008

ва 814 86

75



вв 049 86

15



ва 967 86

76



вв 050 86

16

ПАЗ-3237-01

2008

ва 803 86

77



вв 051 86

17



ва 804 86

78



вв 052 86

18



ва 805 86

79



вв 053 86

19

ПАЗ-3237-03


ва 826 86

80

Karosa C 934.1351

2002

ах 213 86

20



ва 827 86

81



ах 214 86

21



ва 828 86

82



ах 215 86

22



ва 077 86

83


2001

ах 216 86

23



ва 830 86

84


2002

ах 217 86

24



ва 831 86

85

Karosa C 935.1039

2001

ах 218 86

25



ва 832 86

86



ах 219 86

26



ва 833 86

87



ва 988 86

27



ва 834 86

88

Karosa C 934.1351

ах 222 86

28

КАВЗ-39765-022

2001

ах 223 86

89

2001

ах 234 86

29



ах 224 86

90

Karosa C 956.1074

2007

ах 267 86

30



ах 225 86

91



ах 268 86

31



ах 226 86

92



ах 269 86

32



ах 227 86

93

КамАЗ-55111

2000

о420мм86

33



ах 228 86

94

ГАЗ-3307

1994

к758ке86

34



ах 230 86

95

ГАЗ-3102

2000

м871ре86

35



ах 263 86

96

ГАЗ-31105

2006

р199хм86

36



ах 264 86

97

Audi Allroad

2001

о905хм86

37

МАЗ-103075

2006

ах 057 86

98

Toyota Land Cruiser

1995

у070ск86

38



ах 058 86

99

Opel Astra

2007

с883ср86

39



ах 059 86

100

ЭО-2621

1988

63-49хт86

40



ах 060 86

101

ДЗ-171.1

1990

63-50хт86

41



ах 096 86

102

УМТ-82

1997

97-79ха86

42



ах 106 86

103

Авропогрузчик 40816

1993

99-82ха86

43



ах 141 86

104

ПАЗ-3237-01

2007

ва 606 86

44



ах 142 86

105

ЛиАЗ-52563

2002

ак 017 86

45



ах 143 86

106



ва 859 86

46



ах 144 86

107

ПАЗ-3237-01

2007

ва 625 86

47



ах 145 86

108



ва624 86

48



ах 146 86

109

КАВЗ-399765-022

2002

вв 017 86

49

МАЗ-103075


ас 806 86

110



вв 018 86

50



ас 807 86

111

Mudan MD 6122

2005

ас 046 86

51



ас 810 86

112

УРАЛ-3255-0013-41

2012

а839ас186

52



ас 811 86

113

Луидор 223700


а840ас186

53



ас 812 86

114

ПАЗ-320538-70 (школьный)

2012

а633аа86

54



ас 830 86

115



а634аа86

55



ас 831 86

116



а635аа87

56



ас 832 86

117



а637аа87

57



ас 833 86

118



а638аа88

58



ас 834 86

119



а639аа88

59



ас 835 86

120



а640аа89

60



ва 893 86

121



а642аа89

61

МАЗ-206067

2011

т452xx86






На производственной базе располагаются следующие производственные участки: участок по ремонту агрегатов, моторный участок, медницкий участок, слесарно-механический участок, сварочный участок, участок по ремонту электрооборудования и шиномонтажный участок. Участки ТО и ТР оборудованы подкатными и стационарными четырёх стоечными подъёмниками на 16 тонн. Слесари, выполняющие работы на участке, имеют свои наборы инструментов и по мере необходимости могут получить специализированное оборудование в инструментальном цехе.

На предприятии разработан экологический паспорт по всем требованиям и ведется в соответствии с законодательством. В Обществе создан отдел промышленной безопасности, который занимается экологическими вопросами на предприятии.

Производственно-технический отдел следит, что бы техника, выпускающаяся на линию, была исправной, ведь от того, как исправно техническое средство во многом зависит количество выбросов загрязняющих веществ. В соответствии с федеральным, экологическим законодательством и по решению Управления по технологическому и экологическому надзору Ростехнадзора по ХМАО для ОАО "Ханты - Мансийское АТП" были введены лимиты на размещение отходов, разрешение на выброс загрязняющих веществ в атмосферу от стационарных источников загрязнения.

На территории АТП обустроены открытые и закрытые стоянки, участки по обслуживанию и ремонту автотранспорта и имеются сточные системы в соответствии с экологическими нормами. Температура в стояночных боксах поддерживается в пределах 17-20°C. В соответствии с требованиями ГОСТ 20774-75 температура воздуха в автобусах на линии должна быть не ниже +10°C при наружной температуре от - 15 до - 25°C и не ниже +5°C при наружной температуре воздуха до - 40°С. На открытой стоянке, рассчитанной на семь единиц автобусов (8% от всего автобусного парка) их подогрев производится посредством электрических котлов.

Заправка подвижного состава топливом осуществляется с помощью передвижного заправочного комплекса. АТП имеет административно-бытовые и производственные здания - боксы для технического обслуживания и ремонта подвижного состава, РММ (ремонтно-механические мастерские), склады, КТП (контрольно-технический пункт).

2.3 Производственно-техническая база ОАО "Ханты-Мансийское АТП"

В показателях работ указываются основные параметры предприятия. Показатели работы ОАО "Ханты - Мансийское АТП" приведены в таблице 7.

Таблица 7 - Показатели работы ОАО "Ханты-Мансийское автотранспортное предприятие"

№ п/п

Наименование

Величина



За отчетный год

План на следующий год



план

факт


1

Число раб дней в год

250

250

250

2

КУЭ

IV

IV

IV

3

Число смен

2

2

2

4

Время в наряде

8

8

8

5

Режим работы на линии

6

6

6

Среднесуточный пробег МАЗ-103075 ПАЗ-3237-03 КАВЗ 3976 ЛиАЗ-5256.25 МАЗ-104x25

 150 250 200 300 300

 153 248 216 305 339

 150 250 250 300 335

7

Коэффициенты технической готовности

0,60

0,65

0,65

8

Удельный простой в ТО и Р

3,2

3,2

3,0

9

Общий простой в ТО и ТР

8

8

6,8

10

Общий годовой пробег парка автомобилей

8,976 млн. км

8,989 млн. км

9,245 млн. км


Технологический процесс ТО и ТР на предприятии выглядит следующим образом: автомобили, выходящие на линию на АТП осматривает и проверяет техническое состояние контрольный мастер. Убедившись в исправности транспортного средства и отметив в журнале показатели спидометра, машина уходит на линию. После возвращения автомобиля в парк контрольный мастер осматривает автомобиль, проверяет его техническое состояние, опрашивает водителя обо всех неисправностях, обнаруженных во время эксплуатации. При отсутствии замечаний механика направляется в зону хранения. Для автомобилей, требующих ремонта, выписывается ремонтный лист и машина направляется в зону ТР. Для проведения плановых ТО, машину отправляют согласно графика в зону ТО-1 или ТО-2. При проведении ТО, если на машине обнаружена неисправность, для устранения, которых необходима большая трудоемкость, машину снимают с ТО и отправляют в зону ТР. После прохождения ТР машина проходит очередное обслуживание. После проведения ТО и ТР машины отправляют в зону стоянки.

Предприятие обеспечивается водой и теплом от городских сетей, собственных водоочистных сооружений не имеет.

Глава 3. Организационная часть

3.1 Определение видов и объемов организационных работ по переводу подвижного состава городского автобусного парка предприятия ОАО "Ханты-Мансийское автотранспортное предприятие" на газовое топливо


Внедрение в эксплуатацию принципиально новой техники, особенно такой как автобусный транспорт, оборудованный газобаллонной аппаратурой, требует выполнения большого объёма проектных и технических работ в области подготовки и освоения производственного процесса автотранспортного предприятия.

Проектные и технические работы должны включать в себя следующие этапы:

технико-экономическое обоснование проекта (бизнес-планирование);

разработка технического задания на выполнение проектных работ;

выполнение проектных работ;

подготовка производства;

освоение производства.

Каждый из этапов выполняется в соответствии с утверждённой в отрасли нормативной документацией и в зависимости от уже существующей материально-технической базы автотранспортного предприятия и поставленных задач по внедрению в эксплуатацию новой техники может отличаться в каждом конкретном случае.

В общем случае при переводе подвижного состава городского пассажирского автобусного парка предприятия ОАО "Ханты-Мансийское АТП" на газовое топливо могут возникать вопросы, требующие выполнения следующих организационных работ.

. Установление целей, задач и основных технико-экономических параметров, ожидаемых от реализации намечаемого проекта.

. Установление источников финансирования выполнения проектных работ, строительно-монтажных работ (работ по реконструкции материально-технической базы), приобретения необходимого основного и вспомогательного оборудования, подготовки и переподготовки персонала.

. Составление технического задания на разработку проекта реконструкции материально-технической базы автотранспортного предприятия. В техническом задании должны содержаться:

-назначение реконструкции материально-технической базы;

-показатели качества реконструкции материально-технической базы;

-технико-экономические требования, предъявляемые к реконструкции материально-технической базы;

-число стадий разработки конструкторской документации;

-специальные требования;

-описание существующей материально-технической базы;

-объемы выполняемых и планируемых работ;

-продолжительность изготовления документации.

. Согласование проекта в соответствующих инстанциях и получение разрешений на выполнение работ.

. Подготовка производства:

.1 Техническая подготовка производства

Выполнение в соответствии с разработанным утвержденным проектом работ по реконструкции материально-технической базы:

–       организация стоянок для хранения автобусов с газобаллонной аппаратурой;

–       организация заправки газовым топливом, выпуска и слива газа;

–       организация участка технического обслуживания, диагностики и ремонта автомобилей;

–       организация участка испытания и регулировок газобаллонной аппаратуры;

–       приобретение основного оборудования (подвижного состава);

–       приобретение вспомогательного и дополнительного оборудования для эксплуатации автобусов с газобаллонным оборудованием;

–       приобретение вспомогательного и дополнительного оборудования для обслуживания и ремонта газобаллонного оборудования.

5.2 Технологическая подготовка производства:

–       разработка документации на обслуживание маршрутов, хранение и заправку автобусов с газобаллонным оборудованием;

–       разработка технологической документации на техническое обслуживание, диагностику и ремонт автобусов с газобаллонным оборудованием;

–       разработка технологической документации на техническое обслуживание, диагностику и ремонт газобаллонного оборудования.

5.3 Подготовка персонала:

–       подготовка и переподготовка инженерно-технического состава, слесарей по обслуживанию и ремонту, водителей для эксплуатации автобусов с газобаллонным оборудованием;

–       подготовка персонала для обслуживания и ремонта газобаллонного оборудования.

6. Ввод в эксплуатацию реконструированной материально-технической базы:

–       получение разрешительных документов на эксплуатацию автобусов с газобаллонным оборудованием;

–       получение разрешительных документов на обслуживания и ремонта газобаллонного оборудования;

–       выполнение пробных маршрутов на автобусах с газобаллонным оборудованием, выход на заданные объемы перевозочных работ и работ по техническому обслуживанию и ремонту автобусов, а также газобаллонного оборудования.

7. Организация материально-технического обеспечения процесса эксплуатации автобусов с газобаллонным оборудованием.

Перечисленные виды работ выполняются в соответствии со следующими утвержденными нормативными документами, приведенных в таблице 8 и должны соответствовать выбранной площадке для реализации.

Таблица 8 - Нормативные документы

ГОСТ 27577-200

Газ природный топливный компримированный для двигателей внутреннего сгорания. Технические условия.

ГОСТ 51753-2001

Баллоны высокого давления для сжатого природного газа используемого в качестве моторного топлива на автомобильных транспортных средствах. Общие технические условия.

ГОСТ Р 17.2.2.06-99

Охрана природы. Атмосфера. Нормы и методы измерения содержания оксида углерода в отработавших газах газобаллонных автомобилей.

ГОСТ Р 52087-2003

Газы углеводородные сжиженные топливные. Технические условия.

ГОСТ 21561-76

Автоцистерны для транспортирования сжиженных углеводородных газов на давление до 1,8 МПа (18 кгс/см2). Общие технические условия.

ГОСТ Р 41.34-2001

Единообразные предписания, касающиеся официального утверждения транспортных средств в отношении предотвращения опасности возникновения пожара

ГОСТ Р 41.83-2004

Единообразные предписания, касающиеся сертификации транспортных средств в отношении выбросов вредных веществ в зависимости от топлива, необходимого для двигателей

Продолжение таблицы 8

ГОСТ Р ИСО 11439-2010

Газовые баллоны. Баллоны высокого давления для хранения на транспортном средстве природного газа как топлива. Технические условия

ГОСТ Р 41.49-2003

Единообразные предписания, касающиеся сертификации двигателей с воспламенением от сжатия и двигателей, работающих на природном газе, а также двигателей с принудительным зажиганием, работающих на сжиженном нефтяном газе, и транспортных средств, оснащенных двигателями с воспламенением от сжатия, двигателями, работающими на природном газе, и двигателями с принудительным зажиганием, работающими на сжиженном нефтяном газе, в отношении выбросов вредных веществ

ОСТ 37.001.653-99

Газобаллонное оборудование для транспортных средств, использующих газ в качестве моторного топлива. Общие технические требования и методы испытаний

ОСТ 37.001.654-99

Газоредуцирующая аппаратура и теплообменные устройства. Общие технические требования и методы испытаний

ОСТ 37.001.655-99

Газосмесительные и газоредуцирующие устройства. Общие технические требования и методы испытаний

ОСТ 37.001.656-99

Электромагнитные клапаны. Общие технические требования и методы испытаний

ОСТ 37.001.657-99

Расходно-наполнительное и контрольно-измерительное оборудование. Общие технические требования и методы испытаний

ОСТ 26-04-2153-77

Оборудование криогенное. Общие требования к конструкции.

ТУ 152-12-007-99

Автомобили. Установка на автомобили газобаллонного оборудования для работы на компримированном природном газе. Приемка и выпуск после установки. Испытание газотопливных систем. Технические условия.

ТУ 152-12-008-99

Автомобили и автобусы. Установка на автомобили газобаллонного оборудования для работы на газе сжиженном нефтяном. Приемка и выпуск после установки. Испытания газотопливных систем. Технические условия

Продолжение таблицы 8

РД 03112194-1014-97

Автобусы. Установка на автобусы газобаллонного оборудования для работы на компримированном природном газе (КПГ). Приемка и выпуск после установки. Испытание газотопливных систем. Технические условия

ТУ 51-03-03-85

Газ горючий природный сжиженный. Топливо для двигателей внутреннего сгорания. Технические условия.

ПБ 03-576-03

Правила устройства и безопасной эксплуатации сосудов, работающих под давлением

РД-200-РСФСР-12-0046-85

Методические указания по организации работ по освидетельствованию баллонов для СПГ

ПБ 08-342-00

Правила безопасности при производстве, хранении и выдаче сжиженного природного газа на газораспределительных станциях магистральных газопроводов (ГРС МГ) и автомобильных газонаполнительных компрессорных станциях (АГНКС)

Р 3112199-0300-89

Технические требования для пунктов заправки газобаллонных автомобилей сжиженными нефтяными газами

РД 03112194-1095-03

Требования пожарной безопасности для предприятий, эксплуатирующих автотранспортные средства на компримированном природном газе

Справочник 2003г.

Сжиженный природный газ. Физико-химические, энергетические и эксплуатационные свойства

РД-3112199-0187-95

Положение о пункте по периодическому освидетельствованию автомобильных баллонов для сжиженных нефтяных газов, создаваемом на имеющихся площадках

РД 03112194-1099-03

Руководство по организации и выполнению услуг и работ по переводу на компримированный природный газ автотранспортных средств, находящихся в эксплуатации

ВРД 39-1.10-064-2002

Руководящий документ. Оборудование для сжиженного природного газа (СПГ). Общие технологические требования при эксплуатации систем хранения, транспортирования и газификации

Продолжение таблицы 8

РД 03112194-1094-03

Руководство по организации эксплуатации газобаллонных автомобилей, работающих на сжиженном нефтяном газе

РД 3112199-1069-98

Требования пожарной безопасности для предприятий, эксплуатирующих автотранспортные средства на компримированном природном газе

ВНТП-51-1-88

Ведомственные нормы технологического проектирования установок по производству и хранению сжиженного природного газа, изотермических хранилищ и газозаправочных станций (временные)

РД 03112194-1098-03

Руководство по организации и выполнению услуг и работ по переводу на газ сжиженный нефтяной автотранспортных средств, находящихся в эксплуатации

РД 200-РСФСР-12-0227-88

Руководство по переоборудованию грузовых автомобилей с дизельного для работы на СПГ

МУ 200-РСФСР-12-0163-87

Методические указания по эксплуатации газодизельных автомобилей на сжатом природном газе

МУ 200-РСФСР-12-0049-85

 Типовая технология периодичности освидетельствования баллонов высокого давления для сжатого газа, применяемого в качестве топлива для автомобилей и других транспортных средств

МУ 200-РСФСР-12-0049-85

Руководство по переоборудованию грузовых автомобилей с дизельного для работы на СПГ


Рекомендации по использованию компримированного природного газа в качестве моторного топлива для транспортно-энергетических средств сельскохозяйственного назначения.


Временные правила перевозки сжиженного природного газа автомобильным транспортом


Таким образом, организационные работы по переводу подвижного состава пассажирского автотранспорта на газовое топливо сводится к выполнению проектно-технических работ, подготовке производства, подготовке персонала, вводу в эксплуатацию реконструированной материально-технической базы и организации материально-технического обеспечения процесса эксплуатации автобусов с газобаллонным оборудованием.

3.2 Определение видов и объемов технических работ по переводу подвижного состава городского автобусного парка предприятия ОАО "Ханты-Мансийское автотранспортное предприятие" на газовое топливо


Практическую работу по организации эксплуатации ГБА, включая решение вопросов перевода автотранспортных средств на КПГ и освидетельствование газовых баллонов, должны осуществлять технические службы автотранспортных или специализированных предприятий, организаций и фирм, имеющих соответствующую производственную базу, нормативную документацию и квалифицированных специалистов в области технической эксплуатации ГБА. В данном случае обученные и сертифицированные рабочие.

Техническое обслуживание и текущий ремонт ГБА в автотранспортных предприятиях можно осуществлять на постах и линиях обслуживания базовых автомобилей, за исключением специальных работ по газовой аппаратуре.

Диагностика, техническое обслуживание и ремонт ГБА при АГНКС и в других не транспортных организациях могут выполняться в специально подготовленных существующих или вновь построенных помещениях.

Наилучшим вариантом для перевода подвижного состава на газовое топливо, является вывод из эксплуатации автобусов с дизельными двигателями на автобусы с двигателями, работающими на газовом топливе. При этом виды и объемы работы по переводу подвижного состава на газовое топливо будут связаны с модернизацией производственно - технической инфраструктуры. Для нормальной эксплуатации автобусов на газовом топливе должны быть решены следующие вопросы:

-       способ хранения автобусов;

-       способ заправки автобусов газовым топливом;

-       обустройство боксов для технического обслуживания и ремонт автобусов;

-       способы обслуживания и ремонта газобаллонной аппаратуры.

Существует два способа хранения автобусов: открытый и закрытый (гаражный). При открытом хранении автобусов, работающих на газовом топливе необходимо, чтобы открытые площадки для хранения располагались отдельно от зданий и сооружений на расстоянии установленном действующим нормативным правовым актом [12]. Они должны иметь твердое и ровное покрытие с уклоном для стока воды. Поверхность площадок необходимо очищать (летом от грязи, зимой от снега и льда).

Площадки, расположенные в районах с температурой воздуха (зимой) ниже - 15°С, должны оборудоваться средствами для подогрева автомобилей, облегчающими пуск двигателей в холодное время года.

При оборудовании средствами подогрева площадок для хранения автомобилей, работающих на сжатом или сжиженном газе, конструкция подогревающих устройств должна исключать возможность нагрева газовых баллонов.

Устройства, облегчающие пуск двигателей в холодное время года, должны обеспечивать безопасность обслуживающего персонала и водителей.

Площадки должны иметь разметку, выполненную несмываемой краской или другим способом и определяющую место установки автомобилей и проезды. При разметке следует учитывать, что расстояние между двумя параллельно стоящими автомобилями должно быть достаточным для свободного открывания дверей кабины.

Опыт эксплуатации автомобильного транспорта, оборудованного газобаллонной аппаратурой, в условиях ХМАО - Югры, наработанный дочерними предприятиями ОАО "Газпром", показывает, что этот вопрос решается с минимальными затратами путём подачи тёплого воздуха к двигателям по системе трубопроводов. При этом воздух разогревается путём сжигания газа в специальных отопителях.

При закрытом способе хранения автобусов необходимо обеспечить соответствие помещений требованиям СНиП 2.01.02-85 "Противопожарные нормы проектирования зданий и сооружений. Нормы проектирования" и ОНТП 24-86 (о классификации помещений по взрывопожарной и пожарной опасности), а также требований ГОСТ 12.1.005-88 "ССБТ. Воздух рабочей зоны", ГОСТ 12.4.021-75 "ССБТ. Системы вентиляции. Общие требования", СНиП 2.04.05-91 "Отопление, вентиляция и кондиционирование. Нормы проектирования".

Хранение и работы с газобаллонными автотранспортными средствами, в баллонах которых находится компримированный природный газ под давлением, может проводиться в помещениях без принудительной вентиляции и системы автоматического пожаротушения при условии, что свободный объем (объем воздуха в помещении) превышает минимально допустимую величину, определяемую расчетным путем. В расчет принимается допущение, что происходит авария только одного баллона. Для парка автотранспортных средств с установленными баллонами объемом 100 л и рабочим давлением 19,6 МПа, оснащенными вентилем или автоматическим клапаном, допустимый свободный объем составляет не менее 2872 м3 [13]. Стояночный бокс имеет площадь равную 20000 м3, что в значительной мере превышает минимальные требования по хранению автотранспортных средств в закрытом боксе.

Наиболее подходящим способом заправки автобусов компримированным природным газом для "Ханты-Мансийского АТП" является передвижной заправочный комплекс. Также возможно заключение договоров с предприятиями, осуществляющими деятельность по отпуску компримированного природного газа на территории муниципального образования, о доставке по расписанию газа на территорию автотранспортного предприятия или согласованные точки конечных маршрутов передвижными автомобильными газовыми заправщиками.

В случае организации на автотранспортном предприятии пункта заправки газовым топливом, выпуска и слива газа необходимо обеспечить выполнение следующих требований:

Пункты заправки автомобилей топливом и смазочными материалами, размещаемые на территории предприятия, должны соответствовать настоящим Правилам, а также действующим нормативным правовым актам [12, 14] и обеспечивать удобную и безопасную заправку.

При наличии на заправочном пункте нескольких заправочных колонок они должны располагаться так, чтобы обеспечить безопасный подъезд и заправку автомобилей одновременно на всех колонках.

Планировка территории заправочного пункта и расположение водоприемных устройств должны исключать попадание сточных вод и нефтепродуктов за пределы этой территории. Покрытие проездов у раздаточных колонок не должно давать искру при ударе и быть стойким к воздействию нефтепродуктов и пожаробезопасным.

Автозаправочные пункты, размещенные на территории предприятия, должны соответствовать требованиям действующих нормативных правовых актов [15, 16, 17].

На пунктах заправки должны быть вывешены на видном месте основные правила безопасности при заправке автомобилей.

Передвижные топливно-заправочные пункты должны устанавливаться не ближе 12 м от зданий и сооружений.

Посты для выпуска сжатого природного газа должны соответствовать действующему нормативному правовому акту и могут располагаться на одной площадке при условии разделения их глухой негорючей перегородкой, превышающей высоту подвижного состава на 0,5 м.

Расстояние от площадки до зданий и сооружений, в зависимости от степени их огнестойкости, регламентируется действующими документами, но должно быть не менее 9 м, а до подземных резервуаров и топливораздаточных колонок - не менее 6 м.

Для технического обслуживания и ремонта автомобилей, работающих на газовом топливе существуют дополнительные требования [18].

Технологические процессы технического обслуживания (ТО) и текущего ремонта (ТР) газобаллонных автомобилей на КПГ имеют ряд своих специфических особенностей. Объем и содержание этих работ зависит от мощности предприятия и парка ГБА.

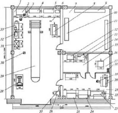
Типовая схема проведения работ по ТО и ТР ГБА на КПГ представлена на рисунке 3 На территории предприятия должны быть организованы:

–       пост проверки герметичности газобаллонного оборудования;

–       пост выпуска (аккумулирования) газа и дегазация баллонов;

–       специализированный участок по ТО и ТР газовой аппаратуры.

Кроме того, в эксплуатационной зоне могут быть организованны:

–       склад для хранения опорожненных дегазированных автомобильных баллонов для КПГ;

–       площадка для размещения передвижного заправочного средства (типа ПАГЗ);

–       площадка для размещения стационарного заправочного средства (типа АГНКС);

–       открытые площадки для хранения ГБА.

Техническое обслуживание, диагностика и ремонт автомобилей, работающих на газовом топливе, могут производиться в одном помещении с автомобилями, работающими на жидком топливе, при условии выполнения следующих условий:

–       помещения для технического обслуживания, диагностики, ремонта и хранения автомобилей, работающих на газе, должны соответствовать требованиям, указанным в нормативном правовом акте [19]. При этом для автомобилей, работающих на газовом топливе, учитывается, что в случае полного выпуска газа из одной секции, включающей максимальное количество баллонов наибольшей емкости одного автомобиля (аварийная ситуация), концентрация газа в помещении не должна превышать 1,1 г на 1 м3 свободного объема помещения для сжатого природного газа, а для сжиженного нефтяного газа - 1,45 г на 1 м3.

В данном случае расчетное количество поступающего газа превышает указанные величины, то помещение должно быть дополнительно оборудовано: системой автоматического контроля воздушной среды с сигнализацией в соответствии с требованиями, указанными в нормативном правовом акте [19]; системой аварийной вентиляции и аварийного освещения, выполненной во взрывозащищенном исполнении.

Рисунок 3 - Типовая технологическая схема проведения ТО и ТР газобаллонных автомобилей в условиях АТП, где И - движение исправных автомобилей, Пл - движение автомобилей при плановом ТО, НГ - движение автомобилей при неисправной газовой аппаратуре (остальное исправно), НА - движение неисправных автомобилей при исправной газовой аппаратуре, Н - движение автомобилей с неисправностями газового и другого оборудования.

Автомобиль при возвращении в АТП после прохождения технического осмотра на контрольно-пропускном пункте направляют для проверки герметичности газобаллонного оборудования на специализированный пост. Проверке герметичности подвергаются все соединения газовых трубопроводов, резьба горловины газовых баллонов, запорно-предохранительная арматура и т.п. При проверке на герметичность давление в баллонах должно быть не менее 2,0 МПа (20 кгс/см 2), что определяется по показанию манометра газовой системы питания.

При отсутствии неисправностей и при наличии герметичности газовой системы питания автомобиль направляют на мойку, далее (при необходимости) на заправку КПГ и стоянку.

При проведении планового технического обслуживания (ТО-1 и ТО-2) автомобиль, после возвращения с линии, поступает на пост проверки герметичности газобаллонного оборудования. При наличии герметичности ГБО автомобиль направляют на мойку и, в зависимости от плановых технических воздействий, в соответствующую зону технического обслуживания (ТО-1 и ТО-2).

После выполнения регламентных работ на общих постах и линиях автомобиль поступает на участок ТО, ремонта и диагностики газобаллонного оборудования.

Контрольно-регулировочные работы по газовой системе питания проводят при работе двигателя на газе, поступающего из одного баллона и при этом должно соблюдаться условие, что рабочее давление газа в этом баллоне не должно превышать 5,0 МПа (50 кгс/см 2). Вентили остальных баллонов должны быть закрыты.

Если при проведении регулировочных работ питание автомобиля газом происходит от внешнего источника, то этот источник (аккумуляторная батарея с КПГ или передвижное газозаправочное средство) должен быть расположен вне здания на открытой площадке. После выполнения регламентных работ ГБА направляют на заправку КПГ (в случае необходимости) и стоянку исправных автомобилей.

Если газовая аппаратура исправна, а транспортное средство неисправно выполняются следующие операции.

–       после проверки герметичности ГБО автомобиль направляют на мойку, далее в зону текущего ремонта базовых автомобилей для устранения неисправности;

–       после выполнения ремонтных работ исправный автомобиль направляют на площадку для заправки КПГ (при необходимости) и стоянку исправных автомобилей.

В случае обнаружения неисправностей газовой аппаратуры, в т. ч. и связанной с ее не

герметичностью, автомобиль направляют на пост выпуска (аккумулирования) газа и освобождают баллоны от газа.

Выпуск газа производят через открытый наполнительный или специальный вентиль, у которого должен быть снят предохранительный колпачок. Контроль над выпуском газа из баллонов осуществляют по манометру газовой системы питания. При этой операции магистральной клапан (вентиль) должен быть закрыт, а баллонные (расходные) вентили - открыты. Газ из системы питания двигателя должен быть предварительно выработан.

После выпуска газа в некоторых случаях необходима дегазация баллонов (продувка негорючим инертным газом).

Выпуск газа и дегазацию баллонов проводят в следующих случаях:

–       нарушение герметичности запорно-предохранительной арматуры и газопроводов, связанных с газовыми баллонами;

–       текущего ремонта, связанного с заменой баллонов, газопроводов, проведением сварочных и окрасочных работ;

–       снятие баллонов с автомобиля для их технического освидетельствования;

–       технологической или технической необходимости, в т. ч. при опрессовке (испытаний) газовой системы питания сжатым воздухом.

После выпуска газа автомобиль направляют на мойку и затем на участок ТО и ТР газовой аппаратуры, где производят устранение неисправностей или замену отдельных узлов.

После устранения неисправностей автомобиль направляют на заправку КПГ и стоянку исправных автомобилей.

При неисправности автомобиля и газовой аппаратуры после проверки герметичности автомобиль направляют на пост выпуска газа и дегазации баллонов и выполняют операции по выпуску газа и дегазации баллонов.

Далее автомобиль направляют на мойку и зону текущего ремонта, для устранения неисправностей не связанных с ГБО. После устранения неисправностей автомобиль направляют на участок ТО и ТР газобаллонного оборудования, где устраняют неисправности ГБО. Исправный автомобиль направляют на заправку КПГ и стоянку.

Обслуживание и ремонт газобаллонного оборудования требуют наличия специального инструмента, приборов, оборудования, стендов, в частности:

-       мультиметр;

-       осциллограф двухканальный;

-       компьютер с системой не ниже WIN-95;

-       интерфейсы AE 171 (AE 171 US);

-       ключ программы AEB ON LINE (дилерский);

-       четырехкомпонентный газоанализатор двухкомпонентный (СО/СН/СО2, О2);

-       компрессоры, рабочее давление 1, 6 МПа (СУГ), 10,0 МПа (КПГ);

-       автотестер для контроля зажигания и электрооборудования автомобиля;

-       тестер плотности (мыльная пена);

-       детектор утечек газа;

-       подъемник платформенный;

-       стенд для проверки газового оборудования;

-       стенд для проверки газовых форсунок;

-       прибор для проверки свечей малогабаритный;

-       профессиональный цифровой стробоскоп;

-       сканер диагностический типа ДСТ.

Для автомобилей, работающих на газовом топливе, периодически проводится свидетельствование газовых баллонов и испытание топливной системы автомобиля.

Баллоны для сжатого природного газа и сжиженного нефтяного газа должны подвергаться испытаниям (освидетельствованию) в сроки:

-       баллоны для сжатого природного газа из углеродистой стали - 1 раз в три года;

-       из легированной стали - 1 раз в 5 лет;

-       баллоны для сжиженного нефтяного газа - 1 раз в 2 года.

Испытания баллонов и топливной системы автомобиля, работающего на газовом топливе, должны выполняться специально обученным персоналом согласно требованиям действующего нормативного правового акта [20].

Испытания газовой системы питания газобаллонных колесных транспортных средств проводятся по следующим условиям.

Испытания газовой системы питания газобаллонных колесных транспортных средств производятся на специализированных станциях (участках) сжатым воздухом с последующим вакуумированием ГБО газобаллонных автотранспортных средств.

Испытания ГБО включают в себя:

–       проверку на герметичность давлением 1,6 МПа (СУГ), 10,0 МПа (КПГ);

–       проверку на прочность соединений газопроводов, агрегатов и узлов ГБО на КПГ (опрессовку) давлением 19,6 МПа;

–       регулировку двигателя, проверку работоспособности;

–       проверку содержания СО, СН в отработавших газах двигателя, дымности двигателя.

К автомобилям, работающим на газовом топливе предъявляются следующие дополнительные требования эксплуатации.

Эксплуатация, техническое обслуживание и ремонт автомобилей, работающих на газовом топливе, должны осуществляться с соблюдением требований, указанных в руководствах по эксплуатации этих автомобилей [21, 22, 23, 24].

При обнаружении в пути утечки газа необходимо немедленно остановиться, остановить двигатель, закрыть все вентили и принять меры к устранению неисправности, если это возможно, или сообщить на предприятие.

Работа двигателя на смеси двух топлив - бензина и газа - не допускается.

При постановке автомобиля, работающего на газовом топливе, на ночную или длительную стоянку необходимо закрыть расходные вентили, выработать оставшийся в магистрали газ до полной остановки двигателя, затем выключить зажигание, отключить "массу" (минусовая клемма), после чего закрыть магистральный вентиль.

При остановке двигателя на короткое время (не более 10 мин) магистральный вентиль может оставаться открытым.

Магистральный и расходный вентили следует открывать медленно во избежание гидравлического удара.

Запрещается:

-       выпускать сжатый природный газ или сливать сжиженный нефтяной газ при работающем двигателе или включенном зажигании;

-       оставлять в промежуточном положении расходные вентили, они должны быть полностью открыты или закрыты;

-       применять дополнительные рычаги для закрытия или открытия расходных, магистрального и наполнительного вентилей;

-       ударять по газовой аппаратуре или арматуре, находящейся под давлением;

-       останавливать автомобиль, работающий на газовом топливе, ближе 5 метров от места работы с открытым огнем, а также пользоваться открытым огнем ближе 5 м от автомобиля;

-       проверять герметичность соединений газопроводов, газовой аппаратуры и арматуры открытым огнем;

-       эксплуатировать автомобили со снятым воздушным фильтром;

-       пускать двигатель при утечке газа из газовой аппаратуры, а также при давлении газа в баллонах менее 0,5 МПа (5 кгс/м2) (для сжатого природного газа);

-       находиться на посту выпуска и слива газа посторонним лицам;

-       курить и пользоваться открытым огнем на посту слива или выпуска газа, а также выполнять работы, не имеющие отношения к сливу или выпуску газа.

Перед заправкой автомобиля газовым топливом необходимо остановить двигатель, выключить зажигание, отключить "массу", закрыть магистральный вентиль (расходные вентили при этом должны быть открыты).

При заправке газовым топливом запрещается:

-       стоять около газонаполнительного шланга и баллонов;

-       подтягивать гайки соединений топливной системы и стучать металлическими предметами;

-       работать без рукавиц;

-       заправлять баллоны в случае обнаружения разгерметизации системы питания;

-       заправлять баллоны, срок освидетельствования которых истек.

Если при пуске на заправочной колонке двигатель работает с хлопками, то водитель обязан немедленно заглушить двигатель и отбуксировать автомобиль для устранения неисправностей в безопасное место.

После наполнения баллонов газом необходимо сначала закрыть вентиль на заправочной колонке, а затем - наполнительный вентиль на автомобиле.

Отсоединять газонаполнительный шланг можно только после того, как оба вентиля закрыты.

Если во время заправки газонаполнительный шланг случайно разгерметизировался, необходимо немедленно закрыть выходной вентиль на газонаполнительной колонке, а затем - наполнительный вентиль на автомобиле.

Также к автомобилям, работающим на газовом топливе, предъявляются следующие дополнительные требования.

Техническое состояние и эксплуатация автомобилей, работающих на газовом топливе, должны соответствовать требованиям технических условий и инструкций заводов-изготовителей.

Аппаратура, трубопроводы, магистральный и расходные вентили должны быть герметичными, исключающими проникновение газа в кабину, кузов, а также в атмосферу.

Герметичность газового оборудования на автомобиле должна проверяться в сроки, предусмотренные действующими нормативными правовыми актами [25, 26].

Баллоны для сжатого природного газа должны отвечать требованиям действующих нормативных правовых актов [20, 17].

Баллоны, устанавливаемые на автомобиль, должны окрашиваться в красный цвет, иметь нанесенные на них паспортные данные в соответствии с действующими нормативными правовыми актами [20, 17] и надпись белой краской "Пропан" или "Метан".

Запрещается эксплуатировать автомобили, у баллонов которых:

-       отсутствуют паспортные данные;

-       истек срок освидетельствования;

-       имеются наружные повреждения (коррозия, трещины, выбоины, раковины и т.п.);

-       неисправны переходники и вентили;

-       окраска и надписи не соответствуют требованиям.

Баллоны с газом должны быть надежно закреплены на автомобиле.

Трубки газопровода высокого давления должны быть окрашены в красный цвет.

Запрещается эксплуатация автомобилей, работающих на газовом топливе, с неисправной газовой аппаратурой.

Автомобили с неисправной аппаратурой должны храниться на открытых, специально отведенных для этой цели площадках, без газа в баллонах.

Таблица 9 - Укрупненный сводный перечень видов технических работ по реорганизации производственной базы автотранспортных предприятий при их переводе на эксплуатацию автомобилей, работающих на газовом топливе

Виды технических работ

Решение

Регламентирующие документы или необходимые действия

Организация хранения

Закрытая

СНиП 2.01.02-85 Противопожарные нормы проектирования зданий и сооружений. Нормы проектирования, ОНТП 24-86 (о классификации помещений по взрывопожарной и пожарной опасности), ГОСТ 12.1.005-88 ССБТ. Воздух рабочей зоны, ГОСТ 12.4.021-75 ССБТ. Системы вентиляции. Общие требования, СНиП 2.04.05-91 Отопление, вентиляция и кондиционирование. Нормы проектирования.

Организация заправки

Передвижной заправочный комплекс типа ПАГЗ

Приобретение в собственность или лизинг

Обустройство боксов для технического обслуживания и ремонта автобусов

Организация участка испытания и регулировок газобаллонной аппаратуры

Руководство по организации эксплуатации газобаллонных автомобилей, работающих на сжиженном нефтяном газе. Минавтотранс РСФСР, 1989. Руководство по эксплуатации газобаллонных автомобилей, работающих на сжатом природном газе. РД-200-РСФСР-12-0185-87. Методические указания по эксплуатации газодизельных автомобилей на сжатом природном газе. МУ-200-РСФСР-12-0163-87 Положение о пункте по периодическому освидетельствованию баллонов для сжатого природного газа и испытанию топливных систем автомобилей, работающих на нем РД-200-РСФСР-12-0046-85. Минавтотранс РСФСР от 21.05.85. Правила устройства и безопасной эксплуатации сосудов, работающих под давлением. Госгортехнадзор СССР от 27.11.87 (с изм. 1991, 1994).

Техническое обслуживание и ремонт

Собственными силами

Правила по охране труда на автомобильном транспорте. ПOT PO 200-01-95. Методические указания по приспособлению действующих предприятий для эксплуатации автомобилей, работающих на СПГ и СНГ, и устройству пунктов выпуска СПГ и слива СНГ. МУ-200-РСФСР-13-0199-87 Минавтотранс РСФСР, от 29.04.1987.

3.3 Основные требования к производственной базе по ТО и ТР газобаллонных транспортных средств

Производственная база автотранспортных предприятий, эксплуатирующих ГБА на КПГ, должна отвечать требованиям соответствующих нормативных документов, регламентирующих различные нормативы безопасности к зданиям, сооружениям, помещениям, оборудованию, площадкам для хранения ГБА и т.п.

К таким документам относятся:

–       государственные стандарты;

–       строительные нормы и правила;

–       правила и нормы пожарной безопасности;

–       правила и нормы по эксплуатации оборудования;

–       различные ведомственные руководящие документы.

Некоторые положения этих требований, касающихся производственной базы по ТО и ТР газобаллонных автомобилей изложены ниже.

Согласно нормативного документа РД-3112199-1069-98 "Требования пожарной безопасности для предприятий, эксплуатирующих автотранспортные средства на КПГ" при организации работ по ТО и ТР ГБА, а также их хранению в закрытых помещениях возможны две принципиально различные схемы:

–       схема 1, при которой ГБА поступают в зону ТО и ТР и на хранения с опорожненными от газа баллонами;

–       схема 2, при которой ГБА поступают в зону ТО и ТР и на хранения без предварительного выпуска газа из баллонов автомобиля при условии герметичности газотопливного оборудования.

В случае применения схемы 1 должны соблюдаться лишь требования, предъявляемые к производственным помещениям по ТО и ТР предприятий по обслуживанию автомобилей, работающих на нефтяном топливе, и каких-либо дополнительных мероприятий по реконструкции производственной зоны ТО (ТР), связанных с техническим обслуживанием ГБА и их хранением, не требуется.

Схема 2 рекомендуется, когда свободные объемы производственных помещений предприятия для ТО и (ТР) и хранения ГБА больше допустимых (V 0 > [V]) или, когда объем капвложений в реконструкцию производственной базы предприятия не являются ограничивающим фактором.

Выбор схемы организации ТО (ТР) ГБА зависит от объема используемых баллонов, структуры и количественного состава парка ГБА, имеющихся производственных помещений и их геометрических размеров, принятой технологии технического обслуживания ГБА и их хранения, располагаемого объема капитальных вложений в строительство производственной базы предприятия.

Возможность использования имеющихся в предприятии постов (боксов) для ТО, ТР и других работ для ГБА или необходимость их создания вновь определяется на стадии разработки рабочего проекта строительства производственной базы предприятия в соответствии с исходными данными на проектирование.

При расчете количества постов ТО (ТР) для ГБА следует исходить из того, что периодичность технического обслуживания и нормы постов в зоне ТО и ТР на 1000 км пробега для ГБА установлены такими же, как и для базовых моделей, эксплуатируемых на нефтяном топливе.

Свободный объем помещения V0 определяется как разность между его геометрическим строительным объемом VS и суммарным объемом, занимаемым технологическим оборудованием (Vм) и подвижным составом (Vпс):

V0 = VS - (Vм + Vпс), м3

 (1)


В случае сложности определения геометрического объема, занимаемого технологическим оборудованием и подвижным составом, свободный объем помещения (V0) допускается принимать равным 0,8 (80%) геометрического объема помещения VS, т. e.

V0= 0,8 VS = 20000 м3

 (2)


Допустимый объем помещения определяется расчетом из условия максимально возможного аварийного поступления КПГ в помещение из одного баллона с запорным вентилем независимо от количества ГБА, одновременно находящихся в помещении.

При хранении (обслуживании) в одном помещении автомобилей с газовыми баллонами различной емкости, расчет допустимого объема помещения производится по автомобилю, имеющему наибольшую емкость баллона, подсоединенного к одному (запорному) вентилю.

При наличии в помещении смешанного парка ГБА, эксплуатируемых ГСН и КПГ, величина допустимого объема помещения принимается наибольшей из всех возможных значений для рассматриваемых ГБА.

Величина допустимого объема помещения рассчитывается по формуле:

V=1000М/mуд. =346,5М=17325 м3

 (3)


где, М - масса газа, поступившего в помещение в результате аварии, 50 кг; mуд - допустимая удельная масса КПГ, равная 2,886 г/м3 при отсутствии в помещении аварийной вентиляции.

Если величина свободного объема помещения V0 превышает допустимый объем помещения, т.е. выполняется соотношение V0 > V то это помещение относится к категории В2 по взрывопожарной и пожарной опасности без аварийной вентиляции.

К участкам ТО, ТР и хранения ГБА применяются такие же требования по свободному объёму помещения. В данном случае должно быть использована аварийная вентиляция, и данное помещение должно быть оборудовано:

–       непрерывно действующей системой автоматического контроля воздушной среды с установкой датчиков довзрывоопасных концентраций;

–       аварийной вентиляцией, обеспечивающей кратность воздухообмена и расход воздуха не ниже вычисленных по формуле (4), с характеристиками, приведенными в п.3.7 НПБ 105-95.

А=1/Т (433M/Vz - 1)

 (4)


Если выполняется соотношение V0 < V, т.е. свободные объемы помещений меньше допустимых, то помещения относятся к категории А. При этом, указанные помещения должны быть оборудованы:

–       непрерывно действующей системой автоматического контроля САК воздушной среды в помещении с установкой датчиков довзрывоопасных концентраций;

–       аварийной вентиляцией кратностью не менее 5 объемов в час с резервными вентиляторами;

–       электрооборудованием согласно ПУЭ-86 для зоны класса В1а;

–       легкосбрасываемыми конструкциями в соответствии с требованиями СНиП 2.09.02-85 для помещений категории А.

Независимо от категории помещения должны быть обеспечены воздухообменом кратностью не менее 1 объема в час.

При не возможности осуществления однократного воздухообмена только за счет естественной вентиляции, помещения должны быть оборудованы вентиляцией с механическим побуждением, выполненной в соответствии с требованиями СНиП 2.04.05-91 и ПУЭ и обеспечивающей однократный воздухообмен. В ремонтных канавах (при их наличии) следует предусмотреть принудительную приточную вентиляцию.

Электроснабжение систем автоматического контроля воздушной среды, аварийного освещения и аварийной вентиляции (при их наличии) следует предусматривать по 1-й категории надежности (ПУЭ-86).

САК воздушной среды должна срабатывать при достижении в помещениях концентрации природного газа (по метану), составляющей 20 % от нижнего концентрационного предела распространения пламени (НКПР).

Приемные отверстия для удаления газовоздушной смеси должны быть размещены в верхней зоне помещения.

Сигналы о достижении опасного уровня концентрации газа от системы автоматического контроля должны поступать в помещения, где осуществляется круглосуточное дежурство обслуживающего персонала (диспетчерская, контрольно-пропускной пункт, помещение охраны и т.п.).

Включение аварийной вентиляции следует предусматривать от приборов, сигнализирующих об опасной концентрации газа в воздухе в помещении, дублированных ручным пуском. Одновременно с этим должно обеспечиваться отключение других приемников электрической энергии в помещении, а так же приточной вентиляции рассматриваемого и смежных с ним помещений.

Электрооборудование смежных помещений, расположенное в 5-метровой зоне от дверных проемов помещений при выполнении его в не взрывозащищенном исполнении (по ПУЭ-86), при срабатывании САК должно отключаться одновременно с электрооборудованием соответствующего участка.

Вторичные приборы системы автоматического контроля воздушной среды, контрольно-измерительные и испытательные устройства, выполненные в не взрывозащищенном исполнении, должны располагаться вне взрывоопасных зон по ПУЭ-86.

Установку и размещение датчиков САК следует проводить в соответствии с РД БТ 39-0147171 - 003-88. Рекомендуется устанавливать не менее двух датчиков САК на каждый пост ТО (ТР) и на каждые 50 м2 в помещениях для хранения ГБА.

Учитывая, что относительная плотность природного газа по воздуху менее 0,54 - 0,56 датчики САК для КПГ должны размещаться в верхних точках помещений (над источниками возможной утечки природного газа).

Следует исключить возможность рециркуляции воздуха для дежурного отопления помещений. Посты ТО, ТР и хранения для ГБА на КПГ должны предусматривать наличие выгороженных натяжных вентиляционных камер.

При достижении в одном из контролируемых зон помещения концентрации КПГ, составляющей 1% газа по объему (в пересчете на метан), САК должна обеспечивать:

–       включение аварийной вытяжной вентиляции помещений хранения, ТО, ТР, диагностических и регулировочных работ, выполненной во взрывозащищенном исполнении;

–       включение звуковой сигнализации и аварийного освещения указанных помещений, включая рампы, а также всех путей эвакуации из них с установкой световых указателей над выходами из помещений и через каждые 50 м по путям эвакуации;

–       отключение всех прочих потребителей электроэнергии, за исключением систем противопожарной автоматики и связи (при их наличии).

Пост проверки герметичности газобаллонного оборудования может быть организован непосредственно на контрольно-пропускном пункте (КПП) АТП.

Площадка поста должна иметь твердое несгораемое покрытие и размеры, равные наибольшему размеру эксплуатируемых ГБА плюс не менее 1 метр в каждую сторону.

Площадка поста может иметь навес из несгораемых материалов, выполненных без ограждающих конструкций. Допускается продуваемое ограждение с площадью постоянно открытых проемов не менее 35 % от площади каждой стороны ограждения.

Для проверки герметичности соединений газовых трубопроводов и запорно-предохранительной арматуры баллонов, расположенных на крыше АТС, пост должен иметь стационарную или передвижную лестницу с технологической площадкой на уровне крыши наибольшего по высоте автотранспортного средства. Проверку герметичности осуществляется с помощью прибора - течеискателя. Допускается применение мыльных растворов.

На автомобилях, имеющих в конструкции ГБО системы сигнализации утечки газа, производят проверку работоспособности этой системы.

У газобаллонных автомобилей с нарушенной герметичностью арматуры газовых баллонов, соединительных элементов трубопроводов или возникшей неисправностью газовой системы питания возникает необходимость выпуска газа из баллонов и их дегазация инертным газом. Эти работы в АТП производятся на посту выпуска и аккумулирования КПГ и дегазации баллонов, создаваемых на предприятиях, имеющих более 25 газобаллонных автомобилей и предназначенного для:

–       сбора (аккумулирования) газа в случае необходимости его выпуска из баллонов автомобиля;

–       дегазации газовых баллонов инертным газом;

–       использования аккумулированного газа для технологических нужд предприятия (обкатка отремонтированных двигателей, подогрев двигателей автомобилей в зимнее время и др.);

–       использования аккумулированного газа для заправки ГБА.

Площадка поста должна иметь твердое несгораемое покрытие и размеры, обеспечивающие въезд наибольшего по габаритам газобаллонного автомобиля (автобуса) плюс не менее 1 м с каждой стороны и быть проездной.

Площадка поста должна иметь сетчатую ограду, высотой не менее 1,5 м и навес, выполненный из негорючих или трудно горючих материалов, а также предупреждающие надписи "Осторожно Газ", "Не курить".

Пример организации поста выпуска и аккумулирования КПГ, а так же дегазации баллонов показан на рисунке 4.

Рисунок 4 - Планировка поста выпуска, аккумулирования газа и дегазации баллонов, где 1 - бокс для газобаллонных автомобилей на КПГ; 2 - пульт управления; 3 - кассета баллонов с инертным газом; 4 - секция баллонов высокого давления; 5 - секция среднего давления; 6 - секция низкого давления; 7 - бокс для баллонов высокого и низкого давления; 8 - перегородка между боксами.

Хранение опорожненных дегазированных баллонов для КПГ на территории предприятия может осуществляться в специальных помещениях, открытых площадках, складе при посте аккумулирования газа и дегазации баллонов. В нашем случае хранение осуществляется на участке ТО и ТР газобаллонного оборудования.

Открытые площадки хранения опорожненных дегазированных автомобильных баллонов должны иметь ограждение из металлической сетки по периметру, ограничивающие доступ к баллонам посторонних лиц.

Участок ТО и ТР газобаллонных автомобилей включает в себя пост с одним машино-местом и цех для ремонта и регулировки газового оборудования. Участок рекомендуется размещать в основном производственном корпусе в отдельном специально оборудованном помещении, изолированном от других помещений перегородками (стенами). Планировочные решения могут быть видоизменены с учетом конкретных условий АТП. В вариантном исполнении допускается производить регулировку газовой системы питания на постах диагностирования при их размещении в отдельных изолированных помещениях.

Текущий ремонт газовой системы питания допускается выполнять в помещениях ремонта приборов питания карбюраторных и дизельных двигателей.

При эксплуатации газобаллонных автомобилей с прицепами пост с машино-местом выполняется проездным.

Производственные помещения участка должны соответствовать требованиям, изложенным выше.

На участке выполняются работы по ТО и ТР газового оборудования автомобилей, включающие в себя:

–       ТО и ремонт газового оборудования на автомобиле;

–       регулировку и ремонт газового оборудования, снятого с автомобиля;

–       мойку и хранение газового оборудования;

–       проверку герметичности газовой системы питания.

Число постов определяется расчетным путем исходя из производственной программы по ТО и ТР газовой аппаратуры.

Примерная планировка участка по ТО и ремонту газовой аппаратуры приведена на рисунке 5.

Рисунок 5 - Пример планировки участка для технического обслуживания и ремонта газового оборудования, где 1 - помещение для переоборудования и демонтажно-монтажных работ; 2 и 20 - верстаки слесарные; 3 и 19 - рабочие места; 4 и 5 - стеллажи для деталей; 6 - ларь для мусора; 7 - помещение склада ГБО; 8 - стенд для диагностики ГБО; 9, 10, 11 и 12 - стеллажи; 13 и 22 - подвод сжатого воздуха; 14 - моечная установка; 15 - вспомогательное помещение; 16 - компрессор (20 МПа); 17 - помещение для компрессора; 18 - баллоны со сжатым воздухом; 21 - помещение для ремонта ГБО; 23 - стенд для проверки ГБО; 24 - шкаф инструментальный; 25 - станок универсальный для механической обработки; 26 - ящик для песка; 27 - шкаф с огнетушителями; 28 - тележка для баллонов; 29 - канава для монтажа и осмотра ГБО; 30 - местный отсос; 31 - вентиляционная установка; 32 - подставка для оборудования; 33 - мотор-тестор.

При техническом обслуживании газобаллонных автомобилей, помимо плановых воздействий, характерных для базовых моделей, возникает ряд работ, связанных с наличием и спецификой газового оборудования.

Для газобаллонных автомобилей установлены следующие виды технического обслуживания:

–       ежедневное техническое обслуживание (ЕО);

–       первое техническое обслуживание (ТО-1);

–       второе техническое обслуживание (ТО-2);

–       сезонное обслуживание (СО);

–       техническое освидетельствование газовых баллонов.

Работы по ТО-1 и ТО-2 газовой системы питания выполняются с периодичностью технического обслуживания самого автомобиля. Сезонное обслуживание газовой аппаратуры совмещается с очерёдным ТО-2 и выполняется 1 раз в год [3].

Таблица 10 - Величина дополнительной трудоёмкости ТО и ТР газобаллонных автомобилей по сравнению с базовыми, чел. ч.

Вид обслуживания

Подвижной состав


Легковые автомобили

Грузовые автомобили

Автобусы

ЕО

0,15

0,15

0,15

ТО-1

0,4

1,0

1,2

ТО-2

1,2

1,8

2,0

СО

1,65

2,34

2,6

ТР на 1000км пробега

0,2

0,4

0,4


3.4 Операции технического обслуживания и ремонта для транспортных средств, работающих на КПГ

Ежедневное техническое обслуживание:

ЕО выполняется перед выездом автомобиля на линию и после возвращения на АТП.

1.      Перед выездом проверить легкость пуска двигателя на газовом топливе на холостом ходу и при различных частотах вращения коленчатого вала.

2.      Последующие работы выполняются после возвращения автомобиля на АТП.

3.      Проверить состояние газовой аппаратуры и герметичность соединений газовой системы питания.

4.      Очистить арматуру газовых баллонов от пыли и грязи, при необходимости вымыть.

5.      Слить отстой из газового редуктора низкого давления.

6.      Закрыть магистральный вентиль и выработать газ из системы питания.

7.      Проверить отсутствие подтеканий бензина в соединениях топливопроводов, электромагнитного клапана.

Первое техническое обслуживание транспортных средств, работающих на КПГ:

.        Проверить состояние и крепление газовых баллонов и кронштейнов.

2.      Проверить состояние и крепление наполнительной и расходной арматуры.

.        Проверить крепление газовой аппаратуры (РВД, РНД, карбюратора-смесителя, электромагнитного клапана-фильтра).

4.      Слить отстой из газового редуктора низкого давления.

.        Проверить герметичность газовой системы питания.

6.      Проверить и при необходимости отрегулировать содержание токсичных компонентов в отработавших газах в соответствии с ГОСТ Р 17.2.02.06-99, ГОСТ 17.2.2.03-87 и ГОСТ 21393-75 (газодизельные автомобили) на КПГ и жидком моторном топливе.

Второе техническое обслуживание транспортных средств, работающих на КПГ:

Основные операции ТО-2 и СО разработаны на примере газобаллонного оборудования РЗАА.

.        Проверить состояние и крепление газовых баллонов к кронштейнам.

2.      Проверить состояние и крепление кронштейнов к кузову или платформе, а для некоторых моделей автомобилей крепление секций баллонов к раме автомобиля.

.        Проверить состояние и крепление наполнительного и расходного вентиля и газопроводов.

.        Проверить крепление газовой аппаратуры (РВД, РНД, карбюратора-смесителя, электромагнитного клапана-фильтра).

.        Слить отстой из газового редуктора низкого давления.

.        Снять, очистить и установить на место керамический фильтр расходного вентиля, проверить состояние уплотнительной прокладки.

.        Проверить и при необходимости отрегулировать редуктор высокого давления на рабочее давление.

.        Проверить ход штока и герметичность клапана 2-ой ступени РНД; при необходимости отрегулировать и заменить уплотнитель клапана.

.        Проверить давление КПГ во 2-ой ступени РНД на минимальной частоте вращения холостого хода; при необходимости отрегулировать.

.        Проверить действие приводов карбюратора-смесителя на полноту открытия дроссельных заслонок.

.        Проверить герметичность газовой системы питания.

.        Отрегулировать минимальную частоту вращения холостого хода и переходные режимы, проверить и отрегулировать токсичность отработавших газов на соответствие ГОСТ Р 17.2.02.06-99, ГОСТ 17.2.2.03-87 и ГОСТ 21393-75 (газодизельные автомобили) на КПГ и жидком мотором топливе.

Сезонное обслуживание транспортных средств, работающих на КПГ:

Выполняется 1 раз в год и совмещается с очередным ТО-2.

.        Снять редуктор высокого давления, разобрать, очистить, промыть.

–       проверить состояние редуцирующего клапана и толкателя; в случае необходимости заменить;

–       промыть и продуть керамический фильтр РВД; в случае необходимости заменить;

–       заменить диафрагму;

–       собрать редуктор высокого давления;

–       отрегулировать РВД на рабочее давление и давление срабатывания предохранительного клапана, проверить на герметичность;

–       установить РВД на автомобиль.

2.      Снять газовый редуктор низкого давления.

–       заменить диафрагму 1-ой ступени и уплотнители клапанов 1-ой и 2-ой ступени;

–       отрегулировать рабочее давление 1-ой ступени, ход клапана 1-ой ступени, ход штока диафрагмы 2-ой ступени и герметичность клапана 2-ой ступени;

–       проверить герметичность разгрузочного устройства;

–       проверить дозирующе-экономайзерное устройство на момент открытия клапана экономайзера;

–       при необходимости заменить;

–       установить РНД на автомобиль.

3.      Смазать резьбы штоков наполнительного и расходного вентилей.

4.      Снять, очистить и установить на место фильтры электромагнитных клапанов газа и бензина.

.        Подтянуть крепление газовых баллонов к кронштейнам (момент затяжки 15 - 20 Нм).

.        Подтянуть крепление кронштейнов к платформе (момент затяжки 100 Нм),

.        Проверить герметичность газовой системы питания.

.        Отрегулировать давление КПГ во 2-ой ступени РНД при работе двигателя на минимальной частоте холостого хода.

.        Отрегулировать минимальную частоту вращения коленчатого вала двигателя, переходные режимы, содержание вредных веществ в ОГ двигателя на бензине по ГОСТ 17.2.2.03-87 и на КПГ по ГОСТ Р 17.2.02.06-99, а для газодизельных автомобилей по ГОСТ 21393-75.

.        Проверить манометр высокого давления, опломбировать и поставить клеймо со сроком следующей проверки.

11. Проверить работу ограничителя частоты вращения коленчатого вала двигателя [3].

 


Глава 4. Экономическая часть

4.1 Расчёт стоимости основных фондов и амортизации


Наименование основных фондов берется исходя из технологического процесса и основных регламентов.

Таблица 11 - Расчёт основных фондов и амортизации

Наименование

Модель

Количество, ед

Цена, т. руб.

Стоимость, т. руб.

Срок службы, лет

Нормы амортизации, %

Сумма амортизации, т. руб.

Подвижной состав

1

Автобус марки ЛиАЗ

529271

50

8000

400000

10

10

40000

2

Передвижной автомобильный газовый заправщик

ПАГС-4000

1

8750

8750

10

10

875

Всего:

-

-

408750

-

-

-

Оборудование

3

Установка дегазации

МКЗПА-50У1

1

900

3500

10

10

350

4

Универсальный стенд для контроля и регулировки компонентов газобаллонного оборудования

 ИС - 001

1

496

496

7

14,3

70,9

5

Воздушный компрессор

ТехМаш -  КР-2

1

340

340

10

10

34

6

Комплект приборов для очистки и проверки свечей зажигания

Э203

1

1,95

19,5

7

14,3

2,79

7

Течеискатель-сигнализатор горючих газов

ФП-12

1

13,5

13,5

10

10

1,4

8

Газоанализатор 2-х компонентный

"Инфракар-08.01"

1

27,9

27,9

7

14,3

4

9

Автоматическая промывочная установка  <#"803711.files/image006.gif">

На участке по обслуживанию газобаллонного оборудования будут работать три человека. Предусмотрен пятидневный режим работы с двумя выходными днями в неделю. Рабочий день будет составлять 8 часов по трудовому законодательству. В среднем норма рабочего времени в месяц составляет 22 рабочих дня.

Определим годовую З/П = 126225×10,5 = 1325362,5 руб.

Размер выплат по ЕСН составляет 30% от заработной платы:

ЕСН=126225×10,5×30%=397608,75 руб.

4.3 Расчет затрат предприятия


4.3.1 Расчёт затрат на электроэнергию

Расход на электроэнергию включая в себя затраты на освещение и на

оборудование.

Таблица 13 - Основные потребители электроэнергии на участке

Наименование

Модель

Максимальная мощность, кВт

Коэффициент загрузки

Потребляемая мощность, кВт×час

Установка дегазации

МКЗПА-50У1

22

0,85

18,7

Универсальный стенд для контроля и регулировки компонентов газобаллонного оборудования

ИС - 001

1,2

0,7

0,84

Воздушный компрессор высокого давления

"ТехМаш" КР-2

15

0,9

13,5

Автоматическая промывочная установка  <http://motor-teh.ru/catalog/washing/am800/>АМ8005,80,63,48





Освещение

2 настольные лампы, 12 ламп общего освещения

0,7

0,99

0,7

Итог:

44,7

0,858 (ср)

37,22


Стоимость электроэнергии составляет 2014г.2р.17 коп. за 1кВт×ч. За 8 часов работы в день по счетчику 37,22кВт/ч.

Расход за год=360×8×37,22×2,17 = 232610,112 руб.

В год расход денежных средств на электроэнергию составит 232610,112 руб.

4.3.2 Расчёт затрат на воду

Для технических нужд и соблюдение гигиены подключаем холодную и горячую воду. Автоматическая промывочная установка АМ800 потребляет 18 м³/час и 28,73 м³/час в день с учётом времени использования. Тариф на холодную воду составляет 40 руб. м³.

Таблица 14 - Расчёт средних затрат на рабочего и оборудования

№ п/п

Наименование

Потребители

Стоимость (в год), руб.

1

Холодная вода

3 человека и АМ800

415402

2

Горячая вода

3 человека

12257,7

Итог:

427659,7


4.3.3 Расчет затрат на отопление участка

Годовая сумма затрат на отопление рассчитывается по формуле:

Зот=S×T×Ц, (6)

где S - площадь отапливаемого помещения; T - отопительный сезон, месяцев; Ц - стоимость отопления в месяц, руб/м².

Таблица 15 - Расчёт средних затрат на отопление участка

№ п/п

Площадь, м²

Отопительный сезон, месяц

Стоимость отопления, руб. / м²

Итог, руб.

1

250

8

35,06

45578


4.3.4 Расчёт затрат на материалы и инструменты

При производстве любой продукции требуются материалы и как следствие их учёт.

В данном случае это: наждачная бумага, Аэрозоль противо-окислительная (для деталей) и провода. А так же затраты на инструменты и приспособления применяемые для улучшения качества продукции.

Таблица 16 - Затраты на материалы

№ п/п

Наименование

Количество, ед

Цена ед, руб.

Стоимость, руб.

1

Наждачная бумага

100

15

1500

2

Электромагнитные газовые клапаны

15

70

4500

3

Провода

20

20

400

Продолжение таблицы 16

4

Набор инструментов

3

4000

12000

5

Газовые фильтры

12

300

3600

6

Спецодежда

3

900

2700

7

Перчатки

40

10

400

8

Санитарные предметы

-

-

1000

Итог:

22650



4.3.5 Прочие расходы

Затраты на охрану труда и технику безопасности приведены в таблице 17.

Таблица 17 - Затраты на охрану труда и технику безопасности

№ п/п

Наименование

Количество, ед.

Стоимость, руб.

1

Затраты на ОТ и ТБ

3

350

1050

Итог

3

350

1050


Раз в три года проводится освидетельствование газовых баллонов. Стоимость услуги составляет 826 рублей для одного баллона. Автобус оснащён 8-мью баллонами объёмом 100 литров. Итоговая стоимость 300000 для всего парка из 50 автобусов.

Так же стоит учесть затраты на обучение персонала в размере 5000 рублей на водителя и 50000 рублей для сертификации рабочих участка:

Обучение=5000×100+50000×3=650000 руб.

4.4 Расчет себестоимости


Себестоимость - выраженные в денежной форме затраты предприятия на производство и реализацию продукции (работ, услуг). Это основной показатель предприятия, который является основой для ценообразования.

Для сравнения мы возьмём две сметы эксплуатационных расходов. Первая будет отражать основные расходы для ввода в эксплуатацию газомоторной техники, а именно низкопольных автобусов ЛиАЗ-52927, а вторая представлена для МАЗ-103075 работающих на дизельном топливе. Смета эксплуатационных расходов для газомоторной техники приведена в таблице 18.

Таблица 18 - Смета эксплуатационных расходов

№ п. п.

Наименование затрат

Себестоимость руб.

Процент от стоимости, %

Перевод подвижного состава на газовое топливо

1

Фонд оплаты труда

1325362,5

3,43

2

Отчисления на ЕСН

397608,75

1,03

3

Эксплуатационные материалы

74267,5

0, 19

4

Электроэнергия, отопление и водоснабжение

705847,812

1,83

5

Амортизация

36151992

93,52

6

ОТ и ТБ

1050

0,001

Итого:

38656128,56

100

Обновление существующего подвижного состава на дизельном топливе

1

Фонд оплаты труда

-

-

2

Отчисления на ЕСН

-

-

3

Эксплуатационные материалы

-

-

4

Электроэнергия, отопление и водоснабжение

-

-

5

Амортизация

30000000

100

6

ОТ и ТБ

-

-

Итого

30000000

100


Затраты на эксплуатацию и обслуживание газовых автобусов превышают по некоторым статьям в соотношении к дизельной модели (время на техническое обслуживание), но уравновешиваются другими (смазочными материалами). Разница по расходам между обновлением и заменой подвижного состава является 8656128,56 рублей, в основе которых лежит организация участка и подготовки производства для эксплуатации газобаллонного оборудования. Экономия по топливу является доходом предприятия и составляет 788000 рублей в год для одного автобуса.

Таблица 19 - Расчёт топливной экономичности всего автобусного парка за 1 год

№ п. п.

Количество автобусов, ед.

Годовой пробег одного автобуса, 100 км.

Цена за один литр топлива, руб.

Расход на 100 км., л.

Экономия для всего автобусного парка, руб.




дизель

газ

дизель

газ


1

50

875

35

12

40

45

39400000


Прибыль при реализации данного проекта складывается из экономии предприятия на топливе при прочих равных затратах на обслуживание и ремонт однотипных автобусов дизельных моделей и составляет П=39400000-8656128,56=30743871,44 рублей. Чистая прибыль предприятия за вычетом налога в 20% составит 24595097,2 рублей.

4.5 Оценка экономического эффекта от перевода подвижного состава ОАО "Ханты-Мансийского автотранспортного предприятие" на газовое топливо


Экономический эффект от перевода подвижного состава автомобильного автотранспорта на газовое топливо на предприятии оценивается путем сопоставления основных эксплуатационных расходов автобусов марок МАЗ-103075 (с дизельным двигателем) и ЛиАЗ-52927 (с двигателем работающем на газовом топливе).

Утвержденный рейсовый расход дизельного топлива у автобуса марки МАЗ-103075 составляет в летний период 36,6 л/100 км. В зимний период, длящийся в ХМАО-Югре с 15 октября по 30 апреля рейсовый расход топлива увеличивается дифференцированно максимум до 18% в зависимости от температуры окружающего воздуха. В приведенных ниже расчетов на зимний период принято увеличение расхода топлива на 10%, то есть 43,6 л/100 км пути.

Топливный эксплуатационный эквивалент 1 литра дизельного топлива равен 1,0 м3 компримированного природного газа. Розничная цена дизельного топлива составляет в ХМАО - Югре примерно 35 рублей за один литр. Цена компримированного природного газа составляет около 12 руб. /м3. Таким образом экономия затрат на топливе составит 841,8 и 1003 рублей на каждые 100 км пробега в летний и зимний период соответственно.

Расчеты специалистов Российского научно-исследовательского института природных газов и газовых технологий ООО "Газпром ВНИИГАЗ", являющегося на 100% дочерним предприятием ОАО "Газпром" <http://ru.wikipedia.org/wiki/%D0%9E%D0%90%D0%9E_%C2%AB%D0%93%D0%B0%D0%B7%D0%BF%D1%80%D0%BE%D0%BC%C2%BB>, показывают, что чистый экономический эффект по топливу возникает на третьем году эксплуатации автобусов и составляет:

-       для автобусов Икарус от 72 000 рублей до 50 000 рублей;

-       для автобусов ЛАЗ от 153 000 рублей до 136 000 рублей;

-       для автобусов ПАЗ от 97 000 рублей до 80 000 рублей.

Практический опыт Муниципального Екатеринбургского грузового автотранспортного предприятия (МЕГАП) № 3, эксплуатирующего на природном газе более восьми лет 192 автомобиля на природном газе, показывает, что увеличение затрат на техническое обслуживание и ремонт газобаллонных автомобилей составляет 8,5%, при этом затраты на смазочные материалы сокращаются на 13%. Расход газового топлива превышает расход дизельного топлива на 15%.

В настоящей работе при расчете срока окупаемости приняты следующие условия эксплуатации: количество дней работы в году - 365, из них 169 дня в летний период и 196 в зимний. Работа автобуса осуществляется в 2 смены, суммарный суточный пробег автобуса - 250 км, суммарный годовой пробег автобуса составляет 87500 км.

Для расчёта окупаемости используем следующую формулу:

Tокуп=К/П, (7)

где К - капитальные вложения; П - годовая прибыль.

Проведенный расчеты показывают, что для принятых исходных данных срок окупаемости за счёт топливной экономичности по отношению к разнице эксплуатационных затрат составит Tокуп=114464230/24595097,2=4,65 года. При поддержке действующей государственной программы по субсидированию в 30% при переводе подвижного состава на газовое топливо получаем экономию Э=300000000-280000000=20000000 рублей по отношению к дизельным автобусам той же категории. За вычетом расходов по организации участка и подготовки производства получаем экономию для предприятия на закупку газомоторной техники равную 5262370 рублей.

4.6 Рентабельность проекта


Рентабельность характеризует экономическую эффективность использования основных производственных фондов и оборотных средств предприятия:

Р= [П/ (СтОф + VC)] ×100%, Р= [ (24595097,2/ (114464230+8656128,56)] ×100=20%

Глава 5. Обеспечение безопасности жизнедеятельности

5.1 Требования техники безопасности при эксплуатации газобаллонных автомобилей работающих на КПГ


Въезд ГБА на технологические участки, посты и линии, включая специализированные участки ТО и ТР газовой аппаратуры, следует осуществлять после обязательной проверки герметичности вентилей, переходников, соединительных трубопроводов газобаллонного оборудования.

Проведение текущего ремонта, контрольно-регулировочных и диагностических работ по газовой аппаратуре, снятой с транспорта, необходимо осуществлять на специальном участке (или в цехе) технического обслуживания и ремонта газовой аппаратуры.

Регулировку газовой аппаратуры на КПГ непосредственно на автомобиле и проверку токсичности отработавших газов (ОГ) двигателя ГБА при работе на газе следует производить на специально оборудованных для этих целей постах.

Герметичность запорной и соединительной арматуры проверяют на специальных площадках или контрольно-пропускных пунктах (КПП) специальными приборами (течеискателями) или визуально - путем омыливания мест соединений арматуры водомыльной эмульсией.

При наличии нарушения герметичности газобаллонного оборудования газ из баллонов должен быть выпущен на площадке выпуска газа или посту аккумулирования газа с последующей (в случае необходимости) дегазацией газовых баллонов инертным или негорючим газом (азот, углекислый газ и др.), давлением 0,2 - 0,3 МПа (2 - 3 кгс/кв. см).

Хранение ГБА, работающих на КПГ, может осуществляться как на открытых стоянках, так и в закрытых помещениях с соблюдением требований РД-3112199-1069-98 "Требования пожарной безопасности для предприятий, эксплуатирующих автотранспортные средства на компримированном природном газе".

Въезд ГБА на мойку или открытую стоянку может осуществляться как при работе двигателя на нефтяном топливе, так и на газе при наличии герметичности ГБО.

Въезд ГБА в помещения, предназначенные для производства пожароопасных работ (сварка, окраска, антикоррозийная обработка, склады топливно-смазочных материалов и др.), допускается только с предварительно опорожненными от газа и дегазированными баллонами и при помощи вспомогательных средств с соблюдением мер пожарной безопасности при выполнении указанных выше работ.

Природный газ относится к группе веществ, способных образовать с воздухом пожаро-взрывоопасные смеси.

Содержание газа в воздухе помещений и на рабочих местах (по метану) не должно быть более 20% от нижнего концентрационного предела его воспламенения (НКПВ), т.е. не более 1,0 % по объему.

По токсикологической характеристике природный газ, являющийся смесью углеводородных газов, в состоянии с требованиями ГОСТ 12.1.007-76, относится к веществам 4-го класса опасности.

Концентрация углеводородов компримированного природного газа в воздухе рабочей зоны не должна превышать предельно допустимую (ПДК) по ГОСТ 12.1.005-88 и гигиенических нормативов ГН 2.2.5.686-98 - 300 мг/м. куб. в пересчете на углеводород. Предельно допустимая концентрация сероводорода в воздухе рабочей зоны не должна превышать 10 мг/м3, сероводорода в смеси с углеводородами C1-C2 - 3 мг/м3.

Наличие газа в рабочей зоне и его содержание определяют по запаху или газоанализаторами. Одорированный газ при содержании его в воздухе 1 % по объему имеет запах не менее 3-х баллов.

При определении концентрации газа газоанализаторами следует учитывать, что они по ГОСТ 12.1.005-88 должны быть выполнены во взрывозащитном исполнении.

В соответствии с ГОСТ 27577-2000 температура газа, заправляемого в автомобильный баллон ГБТС, на автомобильной газонаполнительной станции (АГНКС) может превышать температуру окружающего воздуха не более чем на 15°С, но не должна быть выше +60°С.

Давление газа в баллонах определяют после окончания каждой заправки. Температуру газа, подаваемого на заправку, определяют по требованию потребителя.

. Общие положения.

.1 Инженерно-технические работники и руководители, ремонтные рабочие и обслуживающий персонал, связанные с эксплуатацией ГБА, их сервисным обслуживанием, переоборудованием дизельных и бензиновых автомобилей в газобаллонные, переосвидетельствованием баллонов проходят обучение по "Правилам по охране труда на автомобильном транспорте", "Правилам устройства и безопасной эксплуатации сосудов, работающих под давлением", "Правилам устройства и безопасной эксплуатации стационарных компрессорных установок, воздухопроводов и газопроводов", "Правилам безопасности в газовом хозяйстве", и должны иметь соответствующее удостоверение (свидетельство) на право организации и проведения указанных работ.

.2 Должностные лица, нарушающие указанные Правила, несут ответственность независимо от того, привело это нарушение к авариям или несчастным случаям, и могут быть привлечены к дисциплинарной, а также иной ответственности, предусмотренной действующим законодательством, в зависимости от характера нарушения и тяжести его последствий.

.3 Рабочие несут ответственность за нарушение указанных правил в порядке, установленном требованиями внутреннего трудового распорядка на предприятии.

.4 Каждый работающий, обнаруживший нарушение положений указанных правил, обязан сообщить об этом своему непосредственному руководителю, а в случае его отсутствия - вышестоящему руководителю.

.5 Обо всех авариях и несчастных случаях, связанных с использованием природного газа, а также сжатого воздуха администрация предприятия обязана немедленно сообщать местному органу государственного технического надзора.

.6. Администрация предприятия должна разработать инструкцию по охране труда для каждой отдельной профессии (вида работы) с учетом специфики производства и оборудования. Инструкции утверждаются руководством предприятия совместно с профсоюзным комитетом.

. Требования техники безопасности для водителей газобаллонных автомобилей.

.1 К управлению газобаллонными автомобилями допускаются водители, прошедшие

специальную подготовку и сдавшие экзамен по программе технического минимума в объеме 40 ч. Программа предусматривает доведение до обучаемых сведений и данных об устройстве газобаллонных автомобилей, правил по охране труда и безопасности.

.2 Водитель должен:

–       перед выездом на линию произвести осмотр автомобиля с целью обнаружения неисправностей и утечек газа, проверить крепление газовой аппаратуры и баллонов;

–       при обнаружении утечки газа закрыть магистральный вентиль и эвакуировать автомобиль в безопасное для людей место;

–       при появлении запаха газа во время движения остановить автомобиль, устранить, если возможно, неисправность или сообщить о происшедшем на АТП;

–       производить выпуск газа на специальной площадке при неработающем двигателе и отключенной бортовой электросети (массе);

–       категорически запрещается выпуск газа в помещениях, в непосредственной близости от места стоянки автомобилей или вблизи от источников огня и мест нахождения людей;

–       пуск двигателя на КПГ после длительной стоянки производить при открытом капоте;

–       отогревать газовую аппаратуру в зимнее время только горячей водой, паром, горячим воздухом или с применением инфракрасных беспламенных горелок; применение открытого огня недопустимо;

–       в случае пожара на автомобиле выключить зажигание, закрыть магистральный и баллонные вентили;

–       тушить пожар огнетушителем, песком или струей распыленной воды; во избежание взрыва во время пожара баллоны следует интенсивно охлаждать холодной водой, не допуская повышения в них давления.

2.3 Водитель не должен:

–       эксплуатировать автомобиль, у которого истек срок очередного освидетельствования газовых баллонов;

–       стоять около наполнительного шланга или баллонов во время наполнения баллонов газом, наклоняться к наполнительному вентилю, отсоединять наполнительный шланг, находящийся под давлением;

–       подтягивать гайки или соединения под давлением, стучать металлическими предметами по аппаратуре и газопроводам, находящимися под давлением;

–       производить какой-либо текущий ремонт или регулировку газовой системы питания на территории АГНКС (если после заправки газом при пуске двигателя на территории АГНКС наблюдаются "хлопки" необходимо немедленно остановить двигатель, а автомобиль откатить на 15 м от заправочной колонки с помощью имеющихся на станции средств.);

–       производить самостоятельно испытание газовой системы питания с помощью какого-либо источника сжатого воздуха или газа (установки К-277, К-278, АКС-8М и др.).

2.4 Запрещается:

–       хранить автомобиль с неисправной газовой аппаратурой на открытых стоянках с газом в баллонах;

–       перестановка и замена баллонов на автомобиле без разрешения лица, ответственного за эксплуатацию транспортного средства;

–       оставлять автомобиль на длительную стоянку с открытыми вентилями на баллонах и в газовой магистрали;

–       перевозить в кузове автомобиля или кабине водителя взрывоопасные или легковоспламеняющиеся грузы.

2.5 Автомобиль должен быть оборудован огнетушителем, кошмой, спец инструментом.

. Требование техники безопасности для технического персонала при обслуживании и ремонте газобаллонных автомобилей.

.1 Технический персонал должен:

–       проверить перед началом работ исправность инструмента и оборудования, включить вентиляцию;

–       производить ремонт газовой аппаратуры на автомобиле только при отсутствии давления газа в газопроводах;

–       производить при работающем на газе двигателе только регулировку частоты вращения холостого хода (все прочие работы производятся при неработающем двигателе);

–       выполнять работы по снятию и установке газовой аппаратуры специальными инструментами, а не случайными подручными средствами, агрегаты можно снимать только в остывшем состоянии;

–       производить сварочные, окрасочные работы (включая горячую сушку), а также работы с электродрелью, абразивными материалами и т.п., дающими искрение, только при полном отсутствии газа в баллонах.

3.2 Запрещается:

–       производить ремонт аппаратуры при наличии людей в кузове или кабине автомобиля;

–       запускать двигатель при утечке газа;

–       выпускать газ из баллонов вне установленного места;

–       производить снятие и ремонт аппаратуры при наличии в ней газа;

–       пользоваться неисправным инструментом;

–       проверять пламенем герметичность соединений и пользоваться открытым огнем для каких-либо технологических целей при техническом обслуживании и ремонте ГБА;

–       применять дополнительные рычаги при открывании и закрывании вентилей;

–       очищать краску и красить наполненные газом баллоны;

–       пользоваться замасленными шлангами, скрученными и сплющенными резиновыми трубками.

3.3 При возникновении утечек газа на автомобиле, находящимся в помещении и

невозможности их устранения, автомобиль необходимо отбуксировать на улицу, а помещение проветрить.

.4 По окончании технического обслуживания или ремонта газового оборудования автомобиль направляют на общие посты для дальнейшего прохождения ТО и ТР автомобиля в целом.

. Правила техники безопасности при перевозке газового топлива автомобильным транспортом.

.1 К управлению транспортным средством, на котором перевозят газовое топливо (передвижные газозаправщики и др.), допускаются водители, имеющие стаж непрерывной работы в качестве водителя не менее 3-х лет, удостоверение на право управления транспортным средством соответствующей категории и прошедшие специальную подготовку и инструктаж.

.2 Водитель транспортного средства обязан соблюдать Инструкцию о порядке перевозки опасных грузов автомобильным транспортом и правила или технические условия на перевозку отдельных видов опасных грузов. В случае, когда водитель при междугородних перевозках вынужден управлять автомобилем более 12 ч, в рейс направляются два водителя.

.3 Водитель, осуществляющий перевозку газового топлива, кроме документов, перечисленных в Правилах дорожного движения, обязан иметь при себе:

–       аварийную карточку системы информации об опасности;

–       свидетельство о допуске транспортного средства;

–       маршрут перевозки (при отсутствии ответственного за перевозку лица).

4.4 Каждое транспортное средство, предназначенное для перевозки газового топлива комплектуется:

–       набором инструмента для мелкого (аварийного) ремонта транспортного средства;

–       одним огнетушителем, предназначенным для тушения пожара на транспортном средстве, и не менее чем одним огнетушителем, предназначенным для тушения пожара при загорании перевозимого газового топлива;

–       не менее чем одним противооткатным упором; размеры упора должны соответствовать типу транспортного средства;

–       одним знаком аварийной остановки;

–       аптечкой.

4.5 В процессе эксплуатации передвижной автогазозаправщик для КПГ (ПАГЗ) должен ежедневно подвергаться осмотру для проверки герметичности газового оборудования и его исправности.

.6 Запрещается:

–       эксплуатация ПАГЗ с неисправным газовым оборудованием и утечками газа;

–       въезд в гараж с неисправной газовой аппаратурой, с утечкой газа. Эти неисправности должны устраняться немедленно. В этих случаях КПГ из соответствующего резервуара должен быть выпущен в трубопровод с низким давлением или в атмосферу. Выпуск должен осуществляться при неработающем двигателе и отключенной бортовой электросети (массе);

–       ремонт газового оборудования при работающем двигателе тягача или находящегося под давлением;

–       выпуск газа в помещениях, в непосредственной близости от места стоянки других автомобилей или вблизи от источников огня и местонахождения людей;

–       останавливать ПАГЗ в местах с открытым огнем и подносить к нему горящие источники пламени для освещения, проверки герметичности и т.п.;

–       наполнение газом баллонов автомобиля, имеющего негерметичные газопроводы или соединения;

–       находится около наполнительного шланга во время наполнения баллонов;

–       отсоединять шланги, находящиеся под давлением;

–       присутствие при заправке посторонних лиц;

–       введение при заправке работ, не относящихся к заправке;

–       пользование открытым огнем и курение;

–       нахождение водителя в кабине автомобиля при заправке;

–       стоянка заправщиков около общественных мест, жилых и производственных зданий.

4.6 При появлении запаха во время движения водитель транспортного средства, перевозящего газовое топливо, должен немедленно остановить автомобиль, устранить неисправность или сообщить о ней на предприятие.

.7 В случаях возникновения пожара действовать согласно обстановке, используя для тушения огнетушители, песок, воду, кошму.

.8 Заправочная площадка для ПАГЗа должна быть оборудована средствами пожаротушения: огнетушителями, ящиками с песком, пожарным инвентарем [3].

5.2 Оценка экологического эффекта от перевода подвижного состава ОАО "Ханты-Мансийского автотранспортного предприятие" на газовое топливо

Основным загрязнителем окружающей среды в современных городах является автомобильный транспорт. По данным экологов на долю автотранспорта приходится 70-90 % загрязнений воздушного бассейна городов. Поэтому во всех развитых странах мира ужесточаются требования к экологической безопасности автомобилей и вводятся жесткие стандарты Евро-4 и Евро-5, в настоящее время разрабатывается стандарт Евро-6.

Автомобильные и тракторные двигатели внутреннего сгорания загрязняют атмосферу вредными веществами, выбрасываемыми с отработавшими газами, картерными газами и топливными испарениями. При этом 95-99 % вредных выбросов современных автомобильных двигателей приходится на отработавшие газы представляющие собой аэрозоль сложного состава, зависящего от режима работы двигателя. При идеальном сгорании стехиометрической смеси углеводородного топлива с воздухом в продуктах сгорания должны присутствовать лишь соединения N2, СО2, Н2О. В реальных условиях отработавшие газы содержат продукты неполного сгорания (оксид углерода, углеводороды, альдегиды, твердые частицы углерода, перекисные соединения, водород и избыточный кислород), продукты термических реакций взаимодействия азота с кислородом (оксиды азота), неорганические соединения веществ, присутствующих в топливе (сернистый ангидрид, соединения свинца и т.д.).

Всего в отработавших газах обнаружено около 280 компонентов, которые можно подразделить на несколько групп [27]. Группа нетоксичных веществ - азот, кислород, водород, водяной пар, углекислый газ. Группа токсичных веществ - оксид углерода СО, оксиды азота NOX, углеводороды CnHm (парафины, олефины, ароматики и др.), альдегиды КХ-СНО, сажа. При сгорании сернистых топлив образуются неорганические газы - сернистый ангидрид SO2 и сероводород H2S. В отдельную группу относятся канцерогенные полициклические ароматические углеводороды (ПАУ), наиболее активный из которых бенз (а) пирен, являющийся индикатором присутствия канцерогенов в отработавших газах. При применении этилированных бензинов образуются токсичные соединения свинца. В таблице 21 представлены данные по составу отработавших газов бензинового и дизельного двигателей.

Основными токсичными компонентами отработавших газов бензиновых двигателей являются соединения СО, CnHm, NOX и соединения свинца, у дизельных двигателей соединения NOX, СХНУ, SO2 (больше в 10.15 раз, чем бензинового) и сажа.

Таблица 20 - Состав отработавших газов автомобильных двигателей

Состав ОГ

Содержание в объёме, %

Примечание


Бензиновые

Дизельные


N2

74.77

76.78

не токсично

О2

0,3.0,8

2,0.18,0

не токсично

Н2О

ЗД.5,5

0,5.4,0

не токсично

СО2

5,0.12,0

1,0.10,0

не токсично

СО

0,1.10,0

0,01.0,5

токсично

NOх

0,1.0,5

0,001.0,4

токсично

CхНу

0,2.3,0

0,009.0,5

токсично

RхСНО (альдегид)

0,0.0,2

0,01.0,09

токсично

SO2

0,0.0,002

0,0.0,03

токсично

Сажа, г/м3

0,04

0,01. Л,1

токсично

Бенз (а) пирен

до 0,02

до 0,01

канцерогенно


Картерные газы представляют смесь газов, проникающих через зазоры между поршневыми кольцами и стенками цилиндров в картер, а также паров масла, находящегося в картере попадающих в окружающую среду.

Отработанные газы (СО, СН, NOX, сажа и др.) представляют смесь газообразных продуктов полного или неполного сгорания топлива, избыточного воздуха и различных микропримесей (газообразных, жидких и твердых частиц, поступающих из цилиндров двигателя в его выпускную систему).

Оксид углерода (СО) - прозрачный, не имеющий запаха газ, несколько легче воздуха, практически нерастворим в воде. Поступая в организм с вдыхаемым воздухом, СО снижает функцию кислородного питания, выполняемую кровью, так как поглощаемость СО кровью в 240 раз выше поглощаемости кислорода. Нормы на токсичность двигателей допускают 2 % содержания СО при работе на холостом ходу.

Оксиды азота (NOX) - самый токсичный газ из отработавших газов, действуют раздражающе на слизистые оболочки глаз, носа, остаются в легких в виде азотной и азотистых кислот, получаемых в результате их взаимодействия с влагой верхних дыхательных путей.

Оксиды азота способствуют разрушению озонового слоя. Считается, что токсичность NOX больше в 10 раз, чем СО. Норма NOX в воздухе - 0,1 мг/м3.

Выброс NOX с отработавшими газами зависит от температуры среды, с увеличением температуры в камере сгорания увеличивается выброс NOX. Для дизельных двигателей состав NO зависит от угла опережения впрыска топлива и периода задержки воспламенения топлива. С увеличением угла опережения впрыска топлива удлиняется период задержки воспламенения, улучшается однородность топливовоздушной смеси, большее количество топлива испаряется, и при сгорании резко (в 3 раза) увеличивается температура, соответственно увеличивается количество NOX. Уменьшая угол опережения впрыска топлива можно существенно снизить выделение NOX, но при этом снижаются мощностные и экономические показатели.

Углеводороды (СХНУ) это этан, метан, бензол, ацетилен и др. (всего около 200 различных типов). В дизельных двигателях СХНУ образуется в камере сгорания из-за гетерогенного состава рабочей смеси. Двигатель выделяет большое количество углеводородов при работе в режиме холостого хода, СХНУ действуют раздражающе на органы зрения, обоняния и очень вредны для окружающей среды

Наиболее активную роль в образовании смога играют олефины. Вступая в реакции с оксидами азота под воздействием солнечного облучения, они образуют озон и другие фотооксиданты - биологически активные вещества, вызывающие раздражение глаз, горла, носа у людей, нанося также ущерб флоре и фауне.

Дым - непрозрачный газ. Может быть белым, синим или черным. Цвет зависит от состояния отработавших газов. Белый и синий дым представляет смесь капель топлива с микроскопическим количеством пара, образуется из-за неполного сгорания и последующей конденсации. Белый дым образуется при холодном состоянии двигателя, затем исчезает после нагрева. Наличие дыма показывает, что температура недостаточна для полного сгорания топлива. Дым отрицательно влияет на организм человека, животных и растительность. Черный дым состоит из сажи.

Сажа - бесформенное тело без кристаллической решетки. В отработавших газах дизельных двигателей сажа состоит из неопределенных частиц с размерами 0,3.100 мкм. Причина образования сажи заключается в том, что энергетические условия в цилиндре дизельного двигателя оказываются достаточными, чтобы молекула топлива разрушилась полностью. Более легкие атомы водорода диффундируют в богатый кислородом слой, вступают с ним в реакцию и изолируют углеводородные атомы от контакта с кислородом.

Образование сажи зависит от температуры, давления в камере сгорания, типа топлива, состава топливовоздушной смеси. Содержание сажи в отработавших газах уменьшается с увеличением угла опережения впрыска топлива. При уменьшении этого угла выделение сажи заметно возрастает. Количество сажи также зависит от температуры в зоне сгорания топлива.

При вдыхании сажи ее частицы вызывают негативные изменения в системе дыхательных органов человека. Относительно крупные частицы сажи размером 2.10 мкм легко выводятся из организма, мелкие размером 0,5.2 мкм, задерживаются в легких, дыхательных путях и вызывают аллергию. Сажа загрязняет воздух, ухудшает видимость на дорогах, на саже адсорбируются ароматические углеводороды, в том числе канцерогенный бенз (а) пирен, обладающий высокими токсичными свойствами. Норма сажи в отработавших газах составляет 0,8 г/м3.

Оксиды свинца (РbО) возникают в отработавших газах только карбюраторных двигателей при использовании этилированного бензина. РbО выбрасываются с отработавшими газами в виде аэрозолей в соединении с бромом, фосфором и хромом. Аэрозоли, попадая в организм при дыхании, через кожу и с пищей, вызывают отравление, приводящее к нарушениям функций органов пищеварения, нервно-мышечных систем, мозга. Свинец плохо выводится из организма и может накапливаться в нем до опасных концентраций.

Сернистый ангидрид (SO2) - бесцветный, с острым запахом газ. Раздражающее действие на верхние дыхательные пути объясняется поглощением SO2 влажной поверхностью слизистых оболочек и образованием в них кислот. Этот газ вызывает раздражение глаз, кашель, нарушает белковый обмен и ферментативные процессы. SO2 и H2S также очень опасны для растительности. SO2 образуется во время работы двигателя из топлива, получаемого из сернистой нефти (особенно в дизельных дигателях).

Альдегиды (RyCHO). В отработавших газах присутствуют в основном формальдегид и акролеин (С2Н3СНО). Формальдегид - бесцветный газ с резким и неприятным запахом, раздражает глаза и верхние дыхательные пути, поражает центральную нервную систему, печень, почки. Акролеин также обладает сильным раздражающим действием. Альдегиды образуются при сжигании топлива при низких температурах, а так же при обедненной смеси. Именно эти газы определяют запах отработавших газов.

По данным работы [28], загрязнение воздуха происходит следующим образом (усредненные показатели):

-       отработавшие газы, выбрасываемые через выхлопную трубу (65 %);

-       картерные газы (20 %);

-       углеводороды в результате испарения топлива из бака, трубопроводов (15 %).

Результаты многочисленных исследований токсичности автомобилей с газовыми двигателями показывают, что при использовании природного газа вместо нефтяного топлива выброс токсичных веществ в окружающую среду снижается приблизительно в 5-10 раз по оксиду углерода, по окислам азота - до 2,5 раз, по углеводородам - в 3 раза, по задымлённости - в 9 раз, образование сажи, свойственное дизельным двигателям, отсутствует.

Заключение


Результатом проделанной работы является глубокий анализ состояния вопроса в области разработки и реализации государственных и региональных программ по переводу подвижного состава автомобильного транспорта на газовое топливо. Исходя из технических и организационных работ перевод на газовое топливо подвижного состава ОАО "Ханты-Мансийского автотранспортного предприятия" является возможным при минимальных затратах по отношению к получаемой экономии за счёт топлива.

Экономические расчёты показывают, что реализация данного проекта возможна и более экономична при поддержке государственных и федеральных программ.

Основной проблемой перевода подвижного состава на газовое топливо является не развитость газовых автозаправочных комплексов в регионе и в целом по стране. Этот вопрос поднимался на последних промышленных форумах в г. Ханты-Мансийске и данный проект форсируется предприятием ОАО "Газпром" на протяжении нескольких лет.

Подводя итоги можно сделать вывод, что перевод подвижного состава ОАО "Ханты-Мансийского автотранспортного предприятия" на газовое топливо является целесообразным с точки зрения снижения затрат и обеспечения экологичности.

Список использованных источников


1.      Электронный ресурс. - Режим доступа: www.investments. academic.ru/1308/ Природный_газ

2.      Кириллов, Н.Г. Нефть, природный газ и альтернативные моторные топлива [Текст] / Н.Г. Кириллов // Нефтегазовые технологии. - 2002. - № 4. - С.15-20.

.        Руководство по организации эксплуатации газобаллонных автомобилей, работающих на компримированном природном газе. Минавтотранс РСФСР, РД 03112194-1095-03.

.        Электронный ресурс. - Режим доступа: http://en. wikipedia.org/wiki/Natural_gas_vehicle

.        Электронный ресурс. - Режим доступа: http://theenergycollective.com/geoffrey-styles/201361/natural-gas-vehicles-already-big-italy-iran

.        Электронный ресурс. - Режим доступа: http://www.businessweek.com/news/2012-09-17/gasoline-sticker-shock-fuels-fiat-natural-gas-auto-sales

.        Кириллов, Н.Г. Альтернативные моторные топлива XXI века [Текст] / Н.Г. Кириллов // Авто-ГазоЗаправочный Комплекс + Альтернативное Топливо (АГЗК + AT). - 2003. - № 3 (9). - С.58-63.

.        Электронный ресурс. - Режим доступа: www.ogaze.ru/article/prirodnyy-gaz-kak-motornoe-toplivo

.        Постановление о государственной программе Ханты-Мансийского автономного округа - Югры "Развитие транспортной системы Ханты-Мансийского автономного округа - Югры на 2014-2020 годы", № 418-п от 9.092013.

.        Статистика по округу

.        Ведомственные строительные нормы. Предприятия по обслуживанию автомобилей. ВСН-01-89. Минтранса России, № ВА-15/10 от 12.01.1990.

.        Ведомственные строительные нормы. Предприятия по обслуживанию автомобилей. ВСН-01-89. Минтранса России, № ВА-15/10 от 12.01.1990.

.        Методические рекомендации по установке газобаллонного оборудования на колесные транспортные средства, находящиеся в эксплуатации в Российской Федерации. Минтранс России, № НА-96-р от 30.07.2012.

.        Строительные нормы и правила. СНиП 2.11.03-83. Склады нефти и нефтепродуктов. Противопожарные нормы Госстрой СССР, 1983.

.        Правила технической эксплуатации Стационарных, контейнерных и передвижных автозаправочных станций. Главнефтепродукт, ГП "Роснефть", 24.12.93.

.        Методические указания по проектированию автотранспортных передвижных автозаправочных станций автозаправочных пунктов и площадок для предприятий стационарных. Минавтотранс РСФСР, 16.02.84.

.        Правила технической эксплуатации нефтебаз. Госкомнефтепродукт РСФСР, 28.17.84.

.        Правила по охране труда на автомобильном транспорте. ПOT PO 200-01-95. Минтранс России, № 106 от 13 декабря 1995 г.

.        Методические указания по приспособлению действующих предприятий для эксплуатации автомобилей, работающих на СПГ и СНГ, и устройству пунктов выпуска СПГ и слива СНГ. МУ-200-РСФСР-13-0199-87 Минавтотранс РСФСР, от 29.04.1987.

.        Правила устройства и безопасной эксплуатации сосудов, работающих под давлением. Госгортехнадзор СССР от 27.11.87 (с изм. 1991, 1994).

.        Руководство по организации эксплуатации газобаллонных автомобилей, работающих на сжиженном нефтяном газе. Минавтотранс РСФСР, 1989.

.        Руководство по эксплуатации газобаллонных автомобилей, работающих на сжатом природном газе. РД-200-РСФСР-12-0185-87.

.        Автомобили. Переоборудование автомобилей в газобаллонные для работы на сжиженном нефтяном газе. Приемка на переоборудование, испытание топливной системы питания. Технические условия ТУ-200-РСФСР-12-544-87. Минавтотранс РСФСР, 20.03.87.

.        Методические указания по эксплуатации газодизельных автомобилей на сжатом природном газе. МУ-200-РСФСР-12-0163-87.

.        Автомобили. Переоборудование грузовых автомобилей в газобаллонные, работающие на сжатом природном газе. Приемка на переоборудование и выпуск после переоборудования, испытание топливных систем питания. Технические условия. ТУ-200-РСФСР-12-537-86. Минавтотранс РСФСР, 17.01.86.

.        Автомобили. Переоборудование легковых автомобилей в газобаллонные, работающие на сжатом природном газе. Приемка на переоборудование и выпуск после переоборудования, испытание топливных систем. Технические условия. ТУ-200-РСФСР-12-538-86. Минавтотранс РСФСР, 19.12.85.

.        Автомобильные топлива ХХI века: учебное пособие [Текст] / С.М. Клементьев, В.М. Пономарёв, В.М. Фёдоров. - 2-е изд. - Чайковский; Екатеринбург: Изд-во института экономики УрО РАН, 2008. - 139 с.

.        Бендарский, В.В. Экологическая безопасность при эксплуатации и ремонте автомобилей: учеб. пособие [Текст] / В.В. Бендарский. - Ростов н/Д.: Феникс, 2003. - 384 с.

Похожие работы на - Оценка целесообразности перевода подвижного состава ОАО 'Ханты-Мансийское автотранспортное предприятие' на газовое топливо и разработка перечня технических и организационных работ

 

Не нашли материал для своей работы?
Поможем написать уникальную работу
Без плагиата!
Без нейросетей!